Abstract
Carbon-neutral and carbon-negative construction is gaining significant interest in the home building industry. Accordingly, the development of new materials and innovative redesign of the existing materials are on the rise. This paper presents the results of a review study on hempcrete as a new, emerging construction material, which is crop-based and is accordingly expected to provide a highly sustainable construction system. The paper reviews the mixture design, properties and attributes, different methods for its application in construction, building code requirements for construction of hempcrete homes, mechanical and structural properties for home building, and evaluation of the current state of hempcrete application as a non-load-bearing construction material. The paper also reviews the status of developments toward using hempcrete as a load-bearing system. The study shows a snapshot of the methods used for the construction of hempcrete buildings and touches on efforts that are ongoing to increase the compressive strength of hempcrete toward load-bearing applications. Such an increase would depend on different factors such as curing temperature and humidity, binder type and percentage, hemp-to-binder ratio, water-to-binder ratio, and additives.
1. Introduction
The building construction industry has realized the need to reduce both its energy use and its carbon footprint and is encouraging advancements in the field. Greenhouse gas emissions in terms of carbon dioxide are considered to have a large share due to the construction process in addition to the materials and operation of buildings in the U.S. According to the National Renewable Energy Laboratory reports [1], the percentages of electricity use, total U.S. primary energy consumption, and operational greenhouse gas emissions associated with buildings are, respectively, 70%, 40%, and 30%. The construction industry is also encouraging the use of sustainable building products into mainstream construction in an effort to reduce its energy use and carbon footprint. Due to limited resources, the industry is re-evaluating its current construction practices and looking for ways to use alternative materials to the traditional use of concrete, steel, and aluminum as primary materials.
The need for sustainability of our construction practices has resulted in extensive efforts toward the development of alternative materials that satisfy the target carbon-neutral or -negative building construction. In recent years, hemp has been considered one such material, with great potential as an alternative building material for the construction industry. Currently, industrial hemp is used in hempcrete, hemp wood, fiberboard, wallboard, roofing materials, insulation, carpet, textiles, plastics, and hemp-oil-based finishes. The focus of this paper, which draws most of its content from a recent research report to sponsor [2], is on hempcrete to be used for homebuilding. While there is a growing number of publications discussing the advantages of hempcrete for construction from a sustainability perspective, there is a lack of information and understanding on how the building code treats hempcrete. Furthermore, given the interest in the possibility of using hempcrete as a load-bearing material for wall construction, the issue is seldom discussed, since the current use of hempcrete is as an insulation material. Accordingly, while this paper discusses the hempcrete mixture design, its properties and attributes, and different methods for its application in construction, it also focuses on non-structural vs. structural properties as well as building code aspects. More specifically, this study discusses how a typical home can be designed using hempcrete for wall systems based on the building code requirements and what the status of hempcrete application is as a load-bearing construction material. A good part of the current literature on the properties and attributes of hempcrete has been reviewed in multiple recent publications, and some are cited throughout this paper. On the other hand, a great source of knowledge and practical information about the technology as it can be used in real life is due to the companies that produce materials related to hemp and go a step further and manufacture construction and building components using hempcrete. in addition to the more scholarly publications, this paper also cites numerous sources of the latter category.
Figure 1 shows a photo that includes hemp fiber, hemp hurd, and a small block of hempcrete. The stalk is the primary component of the hemp plant used for building construction [3]. Hemp wood is typically made up of the whole stalk [4], while hempcrete is primarily made using hemp hurd. As a non-psychoactive variety of the Cannabis plant, industrial hemp can be utilized in different ways. Industrial hemp can be grown in most areas [5], and it can be harvested in 100 to 120 days, once planted. The soil in the farm for planting hemp can be new or old, and the plant is also resistant to frost, needing only a minimal amount of water [6].
Figure 1.
(a) Hemp fiber, (b) hemp hurd, and (c) hempcrete.
Hemp Wood
For construction, perhaps the most plausible use of hemp is hemp wood and hempcrete. While this paper is about hempcrete, in this section, a brief introduction to hemp wood is also provided. Most of the applications of hemp wood in residential construction are for interior use. Hemp wood is manufactured using the woody hurd fibers in the stalk. After the stems are softened and fibers combed to align, the fibers are compressed and solidified using a strong adhesive [7]. Currently, the most common application of hemp wood is for flooring and some wall paneling, as shown in Figure 2a. Furthermore, as shown in Figure 2b, hemp wood can also be made in the form of solid sawn wood, which can be used for typical interior trim work, which are molding pieces that can be used around windows, doors, and ceilings [8]. As a composite material, hemp wood can also be produced in different sizes as in other wood products such as lumber, microlam, or LSL boards [9,10].
Figure 2.
(a) Hemp wood flooring installed in a living room; (b) hemp lumber [8] (used with permission).
2. Use of Hempcrete in Building Construction
Made by mixing hemp hurds, water, and a binding agent (lime) following recommended ratios, hempcrete is a cementitious material that can be used in home construction [6,11]. While the binder is normally lime, cement can also be used in some cases [12]. Lime binder characteristics such as the speed of set, structural integrity (e.g., how well the binder holds the aggregates together), vapor permeability, and strength vary between hydraulic and non-hydraulic categories [13]. Considering that the setting time of hydraulic lime can vary from weeks to months, one should preferably not use this category of lime for cast-in-place hempcrete applications. On the other hand, for pre-casting or making blocks in a factory/shop, such hydraulic limes may be suitable [14]. Functioning as the binding agent, lime adheres the hurd and fibers together [15] (Figure 3a). Hemp fibers and hurd show acceptable performance under alkaline environments [16]. Currently, hempcrete is applied based on one of the three methods of cast-in-place, pre-casting into wall assemblies or blocks (Figure 3b), or on-site spray applied [6,11]. When using hempcrete blocks, a lime mortar is typically used to join the blocks.
Figure 3.
(a) Close-up view of hempcrete; (b) typical hempcrete masonry unit.
The compressive strength of conventional hempcrete is a fraction (say, 1% to 10%) of that of concrete (concrete normally has a compressive strength ranging from 20 MPa to 50 MPa) [6]. On the other hand, it has a highly desirable thermal resistance, for example, an R-value of 1.5 to 2.0 per inch (i.e., 0.264 to 0.352 m2K/W), largely due to the cellular composition of the cured and hardened mixture, which has extensive air gaps [11]. The low compressive strength allows the material to be utilized only as non-load-bearing infill for building components such as floors, roofs, and walls. While currently most applications are non-load-bearing, there is also some interest in load-bearing applications [17,18,19]. As such, walls made from hempcrete need to incorporate framing elements and alternative binders to increase the compressive strength. Typical data for properties such as compressive strength, water absorption, vapor permeability, etc. are discussed in [6,11].
The hempcrete industry promotes this construction material as a zero or negative carbon footprint product, with the following benefits: energy efficient; non-toxic; flame, water, and pest resistant; lightweight and breathable; and with high insulation, in addition to being long-lasting [20]. One hempcrete manufacturer, Limetechnology (http://www.americanlimetechnology.com/tradical-hemcrete (accessed on 6 June 2024)), introduces its hemp-based wall system (Hemcrete) as potential carbon-negative wall construction. The basis for such claims is generally the sequestering of carbon dioxide during the growing process of the hemp, which is thought to more than offset that produced in the manufacture of the lime binder. Another known positive aspect is that over the life of hempcrete construction, some carbon dioxide is reabsorbed in the lime cycle as the lime cures and reverts back to limestone [21].
Due to the abundant availability and lower associated carbon dioxide emissions during the production of lime, its use instead of conventional cement has been preferred [11,22]. Limestone, shale, and marl are quarried as raw ingredients in the cement production process. These materials are sorted in appropriate proportions and run through a furnace to produce clinker, which is subsequently cooled, ground, and packaged as cement, the binding ingredient in concrete [23]. According to the Portland Cement Association [22], the production of clinker and cement results in considerable production of carbon dioxide. More specifically, approximately 60% of carbon dioxide is associated with a chemical reaction during heating of the raw ingredients and their transformation into clinker. Additionally, approximately 40% of the carbon dioxide generation is due to the combustion process associated with the furnace operation. Overall, the manufacture of cement accounts for 1.25% of U.S. carbon dioxide emissions [22]. While 1.25% is not insignificant, it is a relatively small percentage of the overall carbon dioxide emissions. Of course, according to [1,24], when one also considers other aspects of the construction and operation of buildings, this results in a much larger percentage than 1.25%.
In any case, although much less than carbon dioxide emissions due to cement, the overall embodied carbon in the hempcrete mixture due to lime use is still relatively high due to the energy used in the kiln process. Accordingly, sometimes unfired binders such as clay may be used to reduce the embodied carbon level [25].
3. Examples of Residential Hempcrete Construction Methods and Buildings
Renewed use of hempcrete in buildings can be traced to its development in France in the 1980s for the retrofit of aging wattle and daub infill in medieval timber-framed buildings [14]. However, the current application of hempcrete has gone beyond such initial use, and it is now being utilized in a variety of different building types (Figure 4). Today, hempcrete is being used to build exterior walls, interior walls, floors, and roofs to provide a sustainable alternative to more carbon-intensive building materials [26,27].
Figure 4.
Examples of homes built using hempcrete. (a) Hempcrete Row House in Newburyport, MA, USA; (b) Hempcrete Single-family Home in Nickelsville, VA, USA.
Regardless of the form of its application (cast-in-place, precast, or spray-applied), hempcrete is currently utilized as non-structural, non-load-bearing infill that relies on a structural backup wall or integrated structural framing for wall construction (Figure 5 and Figure 6). While the function of hempcrete is not structural, it has a structural function as well, as it enhances buckling resistance of the integral framing [28]. According to [29], hempcrete is listed under Division 7, which means hempcrete should be considered as providing thermal and moisture protection. With respect to thermal resistance, one can consider R-values of 1.41 to 1.94 per inch, according to [28]. This level of resistance is significantly higher than most cementitious building materials (e.g., concrete has R 0.1 to R 0.2 per inch [30]). However, to satisfy building code requirements, hempcrete walls generally need to be much thicker than conventional wood-frame walls. For example, considering that wood-frame walls consisting of wood studs (3.5 in. or 5.5 in.), drywall (0.5 in.), and sheathing (0.5 in.) would have a total thickness of 4.5 in. (114 mm) or 6.5 in. (165 mm), a hempcrete wall with studs within the hempcrete will have a thickness of at least twice that of the wood frame. According to IRC Appendix BL [31], hempcrete has R-values ranging from 1.2 to 2.10 and a compressive strength ranging from 0.2 (minimum) to 1.15 MPa, depending on the density of the mix. Therefore, if one considers the requirements of the International Energy Conservation Code (IECC) [32] that requires an R 13 or R 17 for an exterior mass wall assembly, one may need a wall as thick as 14.5 in. for a Climate Zone 5A wall assembly. While the thermal mass property of hempcrete improves enclosure energy performance, one may need dynamic modeling of the heat flow to establish the beneficial effects [14]. According to [6], when hempcrete is used as an infill material, it offers several benefits, including high thermal resistance, a significant reduction in thermal bridging, offering a high level of thermal mass, and providing vapor permeability and moisture storage capacity, while also scoring high with respect to fire resistance and sound insulation. Such attributes can provide enhanced comfort and indoor air quality in addition to safety to hempcrete home occupants if constructed following recommended standards/specifications.
Figure 5.
Typical single-wall cast-in-place hempcrete construction application using proprietary forms [33] (used with permission).
Figure 6.
Typical double-wall cast-in-place hempcrete construction using temporary OSB shuttering [34] (used with permission).
Figure 6 and Figure 7 show examples of hempcrete being used for cast-in-place applications. In addition to the proprietary forms that can be used to construct hempcrete walls around the structural framing (Figure 5), currently, conventional Oriented Strand Board (OSB) is mostly utilized as the form for hempcrete wall construction (Figure 6 and Figure 7). Given that hempcrete walls are thick, solid walls, any utilities that need to be placed within the walls are typically placed directly prior to casting, or some forms of conduits are installed to allow for the later installation of utility branch lines. Hempcrete walls easily allow drilling after the material is set/cured to create holes and recesses. However, one must consider the effect of the alkaline lime binder on copper piping or other metals. Accordingly, good practice calls for the use of some plastic conduit to encase copper piping. Furthermore, because of the potential thermal expansion of copper pipes, an annular space should be provided around such piping to prevent damage to the wall assembly [14].
Figure 7.
(a) Typical single-wall, cast-in-place construction using temporary OSB shuttering [35] (used with permission). (b) Finished cast-in-place walls with forms removed [15] (used with permission).
Considering the low strength of hempcrete to support anchors, additional elements such as wooden wedges can be pounded into the wall assembly to support light components. Otherwise, blocking would need to be positioned in the framing prior to casting the walls to support heavier items such as radiators or cabinets [14].
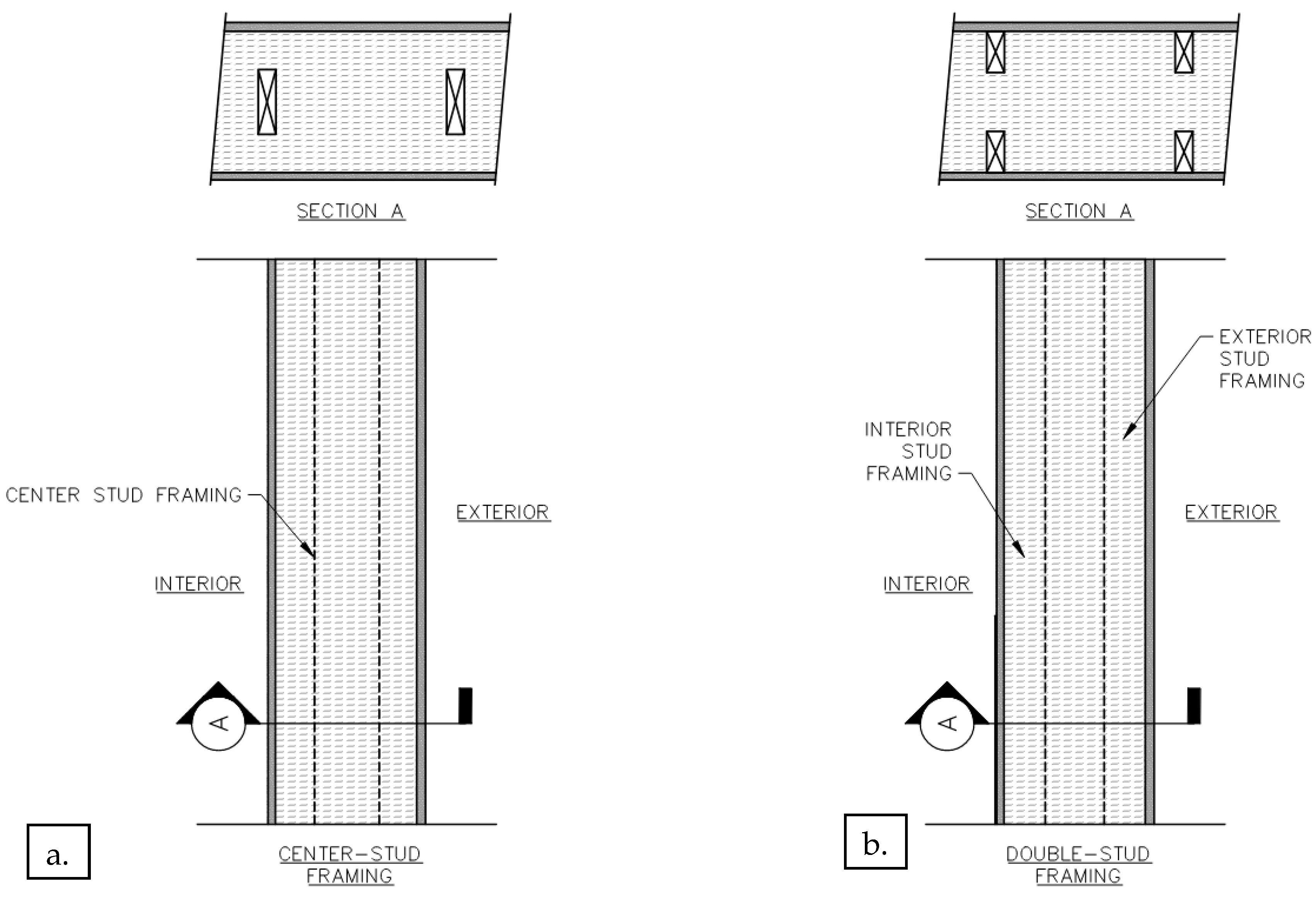
To provide a structural support system for gravity and lateral load resistance, conventional light framing embedded in hempcrete walls or the post-frame method is relied on in platform framing systems when using hempcrete infill. In general, wood framing is embedded within the hempcrete wall assembly, as shown in Figure 8a,b, while the center-stud and double-stud details shown in Figure 9a,b are also commonly used. The details shown these figures were developed considering various resources, including International Residential Code (IRC) [31] Appendix BL, reviewed for the purposes of this paper. Several notes were drawn from reviewing the IRC, as listed below. While these notes are referenced only in Figure 8, they can also be considered for similar situations, which may be found in other typical details:
Figure 8.
Two typical hempcrete wall sections: (a) single-stud framing, (b) interior stud framing.
Figure 9.
Two alternative hempcrete wall sections in which the position of the light framed members varies in the assembly: (a) center-stud framing; (b) double-stud framing.
- Provide a vapor permeance of 5 perms or greater for interior plaster finish.
- Consider the limit of an average moisture content of less than 20% at a depth of 1.5 inches for hemp–lime infills.
- No membrane shall be used between hemp–lime and plaster finishes.
- Unless the wood is naturally durable, to separate wood framing from plaster, use a Grade D building paper.
- Must provide bridging across the juncture of dissimilar materials, which extends 3 inches past the juncture on all sides.
- Depending on the sheathing type used (e.g., wood fiber board and MgO board), bridging such as lath and Grade D building paper separation layer, as called for in Note 4, may be required.
- With reference to Figure 9b, horizontal anchorage using minimum 1 × 2 rails fastened with minimum 8D box nails per stud should be provided at maximum 24 inches on-center.
In general, hempcrete infill functions as a non-load-bearing wall on the front, back, or between the framing members when using post-frame methods. An example of a post-frame wall assembly with a hempcrete exterior layer that would function in the manner mentioned is shown in Figure 10.
Figure 10.
(a) An example of a post-frame hempcrete assembly and (b) an example of a potential base of wall detail.
Figure 7b shows a building structure in which the forms have been removed after initial curing; even though the walls are non-structural in nature, they are still strong enough to carry their own weight. Needless to say, the mixture design should include the proper binder to provide the needed compressive strength, which will enable the hempcrete to carry its own gravity load.
Because of moisture issues, hempcrete walls cannot be utilized as below-grade foundation walls, which means that there is a need for a permanent concrete or masonry foundation. It is well established that prolonged exposure to moisture can damage walls containing organic substances due to mold and pests. Of course, the lime binder provides resistance to mold; however, the organic hemp hurds may deteriorate over time under long-term exposure to moisture. Due to high porosity, hempcrete walls also have a large moisture storage capacity, which means moisture may wick and transport water horizontally and vertically, potentially damaging more sensitive interior components such as wood framing and interior finishes. Accordingly, hempcrete walls are vapor permeable, and therefore, such walls are not intended to be in direct contact with soils or moisture.
While hempcrete walls are meant to be used above grade, concrete and masonry walls are still the best choices for use as crawlspace or basement-type foundations. The exterior hempcrete wall should be at least approximately 8 inches (203 mm) above the finished grade. This means the concrete or masonry foundation wall should extend to this height around the perimeter of the finished floor to protect the hempcrete wall assembly from the ground moisture [14]. In general, a capillary break such as a membrane is placed between the base of the hempcrete wall and the top of the foundation wall to prevent moisture from wicking up. A potential base-of-wall detail is shown in Figure 10b.
According to [28], the formwork or shuttering used to construct cast-in-place hempcrete walls can be removed or kept permanently. Forms made of OSB, plywood, or similar sheathing material with a thickness of ½ in. (13 mm) can be utilized for temporary shuttering; this thickness offers a lightweight formwork. However, due to its low permeability, OSB is not suitable for use as permanent shuttering due to the long drying time required for the wall assemblies, which may take two to eight weeks to dry before the surface is dry enough for finish placement [28]. On the other hand, higher permeability materials such as the wood wool product shown in Figure 11 may be appropriate as permanent shuttering. The labor cost may be the driver of the decision to use permanent shuttering vs. temporary shuttering. Of course, due to the extra thickness provided by permanent shuttering, its application typically results in higher levels of embodied energy [14].
Figure 11.
Wood wool board product [36] (used with permission).
Conventional hempcrete wall construction uses 24-inch-tall shuttering starting from the bottom of the wall. The hempcrete mixture is placed in 4- to 8-inch lifts, followed by tamping between lifts to consolidate the infill and fill any voids present [28]. The process is continued until the top of the shuttering is reached; at this point, once the hempcrete is sufficiently cured, the forms are removed. The “sufficient” curing time depends on the mixture design, which could take anywhere from 30 min to 24 h [14]. Typical wall thickness may range from 10 to 15 inches, depending on the energy code requirement and the performance that is expected of the wall [37].
In addition to its primary application for wall construction, hempcrete can also be cast into floor and subfloor assemblies as well as ceiling layers or insulation between roof rafters. As such, both temporary and permanent forms (shuttering) may be utilized to contain the hempcrete. As shown in Figure 12 [38,39], OSB is often used as a temporary form. Similar to wall construction, vapor-permeable components also must be used if permanent shuttering is intended. Magnesium Oxide Board (MgO) is one example of a vapor-permeable sheathing [40] used in hempcrete structures. MagPanel is a commercial type of MgO board, as shown in Figure 13. Made with inorganic material, MgO board is known for its enhanced resistance to fire, mold, fungus, insects, mildew, moisture, and termites [41]. The MagPanel MgO board can be used like a gypsum board conventionally used in ceilings and walls or as a subfloor or tile backer. Furthermore, its exterior uses can be fascia, soffit, or wall/roof sheathing. These panels are typically available in standard sizes such as 4′ × 8′, 4′ × 9′, or 4′ × 10′. However, both the permeability and the strength of the boards may vary depending on the manufacturer [28]; accordingly, one should review the manufacturer’s data to ensure its appropriateness for the application. However, if environmental impact is a criterion for design, one should consider that MgO board has a moderate to high impact in many categories [28].
Figure 12.
(a) Hempcrete ceiling showing OSB temporary shuttering and furring keys [38] (used with permission); (b) hempcrete roof insulation [39] (used with permission).
Figure 13.
MagPanel Magnesium Oxide Board [41] (used with permission).
For ceiling applications, as shown in Figure 12a, furring strips are installed perpendicular to the framing. This provides keying action to support the hempcrete ceiling layer, which is installed from above. It should be noted that this layer can be installed as a single, thin ceiling layer, or it can be combined with an additional insulation layer on top (Figure 12b). Construction of the ceiling layer requires tamping to densify the hempcrete to improve durability and eliminate potential voids. If hempcrete is to be used as an insulative layer, it is typically a low-density mixture, which minimizes weight while maximizing the insulative value. In much the same manner, one can construct inter-story floor–ceiling assemblies such as the one shown in Figure 5.
While hempcrete can be used as a sub-base or floor slab for on-grade applications (Figure 14b), it is not intended to be in direct contact with soil or moisture due to its organic nature. As mentioned earlier, hempcrete assemblies are intended to be vapor permeable, which relieves the need for a vapor barrier for a hempcrete subfloor assembly [14]. On the other hand, hempcrete subfloor needs vapor-permeable floor coverings such as stone tiles to allow vapor to pass through the assembly. A typical application of natural floor covering showing how the top-of-wall detail might look is shown in Figure 14a.
Figure 14.
(a) An example of how the top of wall could be detailed when a light wooden framing system is used and (b) an example of a potential base-of-wall detail.
Direct contact with moist soil can be prevented using a separation layer such as the black aggregate that is installed beneath the hempcrete subfloor or slab, as shown in Figure 15a. Such a separation layer must be free draining while preventing capillary action. Furthermore, as shown in the figure, a separation layer is often placed upon a stone base to provide additional stability and create a buffer for the hempcrete from the moist soil layer. The thicknesses of both the separation layers and hempcrete floors are on the order of 3 to 6 inches [14]. For subfloor applications, typically a binder-rich, dense mix is utilized to increase its compressive strength. However, with the increase in density, there will likely be reduced thermal resistance. Figure 15b shows a finished hempcrete sub-base.
Figure 15.
(a) Light expanded-clay aggregate base layer being placed over a small-aggregate choke layer; (b) hempcrete subfloor cast over base layer [42] (used with permission).
In addition to the cast-in-place option, another popular method to apply hempcrete is to spray the material directly on the wall or floor–ceiling assembly. Figure 16 shows an example of a hempcrete spray-on application, which illustrates how the contractor uses specialized equipment to apply the hempcrete mix to an exterior wall. With this method, only one side of the wall assembly needs shuttering. According to [43], the contractor Americhanvre’s approach results in cutting down manpower need by 60%, which dramatically reduces the installation time. According to the article [43], the mixture that Americhanvre uses requires less binder, which is the expensive portion of the mix, and also about half the amount of water conventionally used. The reduction in water helps reduce the cure time to around 6–8 weeks [43].
Figure 16.
Americhanvre employee spraying hempcrete on an exterior wall [44] (used with permission).
Americhanvre uses specialized equipment, known as the EREASY spray system (Figure 17b), licensed to them exclusively by a French manufacturer [45]. As shown in Figure 17a, another equipment item needed is the EZG Manufacturing Mud Hog, which mixes the hempcrete and feeds it to the EREASY equipment, which then advances it to the spray nozzle for application. According to the promotional video [44] by Americhanvre, three laborers are required to apply the mixture: one to spray, one to tend the material supply and air tubing to the nozzle, and one to distribute and smooth out the hempcrete application with a trowel. The spray-on process results in some material loss, but the level of loss could be minimized with the skill level and experience of the application crew.
Figure 17.
(a) The Mud Hog material mixer; (b) EREASY hempcrete spray system [44] (used with permission).
In addition to the cast-in-place and the spray-on methods, prefabrication of hempcrete in the form of blocks or panels is also quite common, which minimizes on-site work and allows immediate finishing. An example of a hempcrete block building is shown in Figure 18. One advantage of prefabrication is that the design of the mixture and curing of the hempcrete can be controlled with greater precision in a factory environment. Unlike using blocks that tend to reduce the ability to customize, cast-in-place or spray-on methods allow odd-shaped spaces and assemblies to be insulated with ease. Regardless of the method of application, one of the main advantages of hempcrete is the ability to accommodate a variety of wall, floor, and ceiling geometries.
Figure 18.
Premanufactured hempcrete block building under construction [46] (used with permission).
Further on the prefabrication of hempcrete, blocks can be manufactured on a small scale or on a large scale. As one example of commercial blocks, manufacturer HempBLOCK USA offers two product lines (“HempBLOCK” n.d.): the HempBLOCK LB 300 load-bearing system (Figure 19a) [19], that will be discussed subsequently in detail, and the HempBLOCK Range solid veneer non-load-bearing system (Figure 19b) [47].
Figure 19.
(a) LB 300 load-bearing system blocks [19] (used with permission); (b) solid veneer blocks [47] (used with permission).
The non-load-bearing system, HempBLOCK Range, is used as an insulative substrate for exterior veneer, interior partition, and subfloor systems. The installation guide for this hempcrete block informs us that much like traditional masonry, the veneer blocks are installed in a running bond pattern. A thin layer of HempBLOCK mortar adheres the blocks that come in nominal 4 in. (102 mm) 6 in. (152 mm), 8 in. (203 mm), and 12 in. (305 mm) thicknesses to each other. The blocks have insulative value in the range from R8.6 to R26.3. Different from the traditional 8 in. (203 mm) × 16 in. (406 mm) masonry size, the HempBLOCK block dimensions are nominally 12 in. (305 mm) × 24 in. (610 mm) (height × length).
In addition to blocks, hempcrete can also be prefabricated into panel forms. As one commercial example, American Lime Technology manufactures two prefabricated panel products [48]: the Hemclad System and the Hembuild System. The first one needs non-structural wood framing to contain the proprietary hempcrete material during fabrication. Once cured, the panels are hoisted into place and installed on a structural frame, as shown in Figure 20a, illustrating placement of the panels on a commercial building. For the second panel type, the Hembuild System (Figure 20b shows their installation), the structural frame is incorporated into the panel. Both these panelized systems can be manufactured with varying degrees of prefabrication and finishes.
Figure 20.
(a) Installation of Hemclad panels and (b) installation of Hembuild panels on a commercial building [49] (used with permission).
While the prefabricated panelized systems offer several benefits to users, they also have some potential disadvantages [14]. For example, there are some concerns about the life-cycle costs of the panels and the level of sustainability due to the factory production process and additional materials included in the panels. Furthermore, having the additional wood framing material and panel joints, there can be thermal bridging and air leakage introduced to the cladding system.
3.1. Hempcrete Wall Finishing Systems
To allow hempcrete walls to maintain their vapor permeability, a natural finish system such as lime- and clay-based plasters or stone should be used. While there are a variety of other finishing systems, hygrothermal performance must be given consideration to maintain the breathability of the assemblies. To apply traditional systems like paint, additional manufactured components such as the MgO board are often required (Figure 13). However, it should be noted that additional components are associated with an increase in the environmental impact and construction costs of the overall build.
To apply lime- or clay-based plaster finish, one needs to have specially trained and skilled craftworkers experienced with such plasters [14]. While clay-based plasters can be applied mainly on the interior, lime-based plasters are appropriate for both interior and exterior applications. Such plasters are available as a premixed product, or they can be made from raw ingredients. A variety of premixed products for different applications are marketed by American Lime Technology [37].
As shown in Figure 21a, plasters are typically applied directly to the hempcrete by hand, or, as shown in Figure 21b, through the use of specialized spray-on equipment, without the need for an additional bonding layer. According to [28], to apply finish over exposed wood or similar smooth surfaces, a mesh should first be applied to provide a mechanical key and support for the plaster. Typically, two to three coats of plaster with thicknesses ranging from 1/8 to 3/8 inch (3 to 9 mm) are applied as a finish. After the plaster is applied, the application of a lime wash or silicate dispersion allows us to provide a finish color coat.
Figure 21.
(a) Hand application of a plaster base coat directly onto hempcrete substrate [50] (used with permission); (b) spray application of plaster onto base coat [51] (used with permission).
3.2. Building Code Regulations Applicable to Hempcrete Used in Residential Construction
Recognized as an allowable building material, hempcrete was accepted in 2022 for inclusion in the 2024 International Residential Code (IRC) (International Residential Code [31,52]. Appendix BL [31] in the IRC provides the regulations governing the use of hempcrete in one-or two-family dwellings and townhomes. The appendix limits the use of hempcrete only in low seismic areas and for non-structural exterior wall applications. The appendix acknowledges the three application types: hand-cast construction, spray applied, and precast blocks and panels. However, it requires the design of the panels to be approved by a registered design professional. Based on the review of the code requirements, the following summarizes some limitations for the use of hemp–lime assemblies:
- The maximum number of stories is a one-story building.
- The building’s height shall not exceed 25 feet.
- The wall panel must be braced in accordance with Sections R602.10.3 and BL103.3.2.f and restricted to Seismic Design Categories A, B, and C. As for bracing type, only the Let-in Bracing Method (LIB) is acceptable, i.e., solid sheathing is not allowed.
- The hempcrete wall unit weight shall not exceed 65 psf. If used as block veneer, the limit is 50 psf.
- The thickness of hempcrete walls shall be limited to the range of 3 inches and the thickness achieving maximum unit wall weight.
- If there is any metal in contact with the hemp–lime, it shall be stainless steel or painted with an approved coating.
- Water-to-binder ratio may be between 1:1 and 2:1; alternatively, one may consider the manufacturer’s recommendations.
- If there are masonry or concrete walls that are lined with hemp–lime, they are required to have anchorage (lining to substrate) according to Section BL103.6.7.
- Regarding moisture control, the following should be considered:
- a.
- Hemp–lime walls need no water-resistive barriers (WRBs) and vapor retarders, but there are some exceptions listed in the Appendix:
- i.
- Horizonal hempcrete surfaces exposed to water need to have a WRB and a minimum slope of 1:12.
- ii.
- Between hemp–lime/exterior plaster and the foundation, a moisture barrier is required.
- All interior and exterior surfaces need to have vapor-permeable air barriers.
- a.
- In general, plaster can be considered an acceptable air barrier.
- At least an 8-inch separation from (above) exposed earth or paving must be provided for hemp–lime and plaster walls.
- Plaster should be finished as per BL104.3.
- If non-plaster finishes are used, ventilation should be provided.
- Hemp–lime walls can be categorized as mass walls per IECC, with R-values per inch as provided in Table BL106.2 in the IRC [31].
- Hempcrete mixture needs to have compressive strength demonstrated in accordance with BL107.1.1 in the IRC [31], with a minimum value of 29 psi required to hold plaster.
The IRC Appendix BL describes four typical hand-cast (cast-in-place) wall assemblies, with one of the four types shown in Figure 22. The wall section type shown in Figure 22 illustrates a case where the structural support framing is installed in the center of the wall. As such, no anchorage is required to connect the hemp–lime to the framing. However, if the support framing is installed on one side, i.e., toward the exterior or interior of the wall assembly, then some form of anchorage (bullet item 8), as shown in Figure 7b, would need to be approved by a registered design professional. While the appendix places limitations on horizontal bracing, it does not prescriptively provide guidance on the specifications of the bracing.
Figure 22.
The 2024 IRC, Appendix BL, Figure BL103.1(2): Typical hemp–lime with center stud framing [31].
3.3. Performance and Durability of Hempcrete Assemblies
The design of building enclosure components must consider adequate performance needed for the specific climatic region in which the building structure is located. The building enclosure is intended to separate the interior from the exterior environment. In general, the building enclosure typically consists of all exterior skin of the building, including the above- and below-grade wall assemblies, the roof assembly, and the base floor system. Four major functions can be identified for the building enclosure assembly: (a) structural support, (b) control of air, moisture, heat, sound, etc. across the enclosure, (c) offering an aesthetically pleasing, durable finish, and (d) distributing services and utilities throughout the building [53].
Prior to specifying their use for a project, the unique physical and mechanical properties of hempcrete assemblies must be considered. Vapor permeability of the wall assemblies is one important property that must be maintained during the initial curing and during service. While the recommendation for natural finishes has already been discussed, this may not be appropriate or affordable for all projects. Climate or precipitation conditions should be considered and understood prior to choosing hempcrete assemblies.
The thermal insulation property of hempcrete can satisfy typical building and energy code requirements in various climactic regions [54,55,56]. For example, a study by [55] has shown that a hempcrete wall assembly having similar thermal resistance to a wood-frame wall assembly has similar heating and cooling energy performance in cold climates. However, due to its thermal mass properties and moisture buffering capabilities, the performance of the hempcrete wall assembly varies slightly from the wood-framed assembly. According to the study, exterior hempcrete wall assemblies have reduced cooling energy consumption (34.6% in Vancouver, 37.4% in Toronto) and slightly increased heating energy consumption (2.1% in Vancouver, 1.8% in Toronto). According to the same study, the moisture-buffering capabilities of the hempcrete wall assemblies may have a moderating effect on indoor humidity in the buildings. The study shows that for wall assemblies, paint significantly limits the moisture-buffering capability. Based on a study by [54,56] on a hempcrete home in New Castle, PA, “Despite high outdoor humidity levels during hot summer weeks, the indoor relative humidity was always less than 60%”. According to the same study, the CO2 level was measured to be below 1000 ppm throughout the monitoring period, which highlights the materials’ ability to maintain healthy air-quality parameters. The study also showed that hempcrete walls are associated with marginal infiltration results (4.93 ACH50 with a 5.00 maximum limit). The study points out that in retrofit situations, air sealing may face some challenges associated with wall assemblies.
With respect to the durability of hempcrete assemblies over time, the material is generally regarded as being resistant to mold and insects due to the alkalinity of the lime. According to [57], hempcrete houses in France have existed for over 20 years without reported serious durability problems. Nonetheless, there are some concerns regarding the proliferation of microorganisms in hempcrete assemblies due to the material’s high vapor permeability and moisture storage capacity, which may contribute to reductions in vapor permeability and increases in thermal conductivity over time. However, some studies have shown this to be unlikely due to insufficient nutrients, unsuitable environmental conditions, and perhaps PH variations with time [57].
Age, seasonal exposure to the weather, and mixture design can affect hempcrete performance in a variety of ways. In one study reviewed [58], the samples were subjected to repeated cycles of immersion in water, freezing, and drying. The study showed that while the porosity of the hemp concrete increased due to changes in the microstructure of the material, the compressive strength and thermal conductivity of the material decreased. In particular, the compressive strength was reported to have decreased by 56%. A separate study by [57] also suggests that aging and the carbonation process can influence compressive strength. The study showed that the type of binder influences freeze–thaw resistance as well as compressive strength. The study further shows freeze–thaw resistance to be a function of the hydraulicity of the binder (i.e., the ability of the binder to harden in contact with water).
While it has been shown that vapor-permeable hempcrete has resistance to microbial growth, this should be considered the case only as long as the hempcrete is not exposed to moisture on a long-term basis. Accordingly, the hempcrete assemblies must be protected from exposure to significant amounts of rain or surface runoff. This requires adequate detailing to prevent moisture reaching the assemblies in the hope of improving the useful service life of the hempcrete assemblies.
Finally, as mentioned earlier, while natural finishes are desirable for hempcrete assemblies, they may not be appropriate for all regions. For example, for hempcrete walls exposed to a significant dirt load, it may be difficult to clean the surface without additional finish coatings. Furthermore, excessive building deformation in high-wind regions or unstable ground conditions may also lead to the development of cracks in the rigid hempcrete wall assemblies.
4. Structural Capacity of Hempcrete Building Components
While hempcrete is mainly utilized as a non-structural insulative infill, some studies have shown that the material’s mechanical properties may be enhanced to increase the compressive strength of hempcrete [11,57,59]. Conventional hempcrete has widely varying compressive strengths (e.g., 0.2 to 1.15 MPa (28 to 167 psi)), which depends on many factors including curing temperature, curing relative humidity, age, binder composition, binder type, hemp-to-binder ratio, and water-to-binder ratio. The compressive strength increases with the density of the mixture (typical range of density according to the International Residential Code is 200 to 400 kg/m3 (12.5 to 25 lb/ft3)) and the percentage of Portland cement, if used. It is also reported that age increases compressive strength because of the carbonation process [11]. On the other hand, compressive strength may decrease due to changes in the microstructure of the hemp concrete with time [58]. According to the study reported by [60], by substituting magnesium oxide for hydrated lime as a binder and adding additives such as metakaolin, Class F fly ash, and nano silica, the compressive strength could increase beyond conventional values to about 2.63 MPa (387 psi). Such experiments indicate the potential that hempcrete has toward structural use, but at this time, it still is in the experimentation phase.
Because the compressive strength and Young’s modulus are relatively low in hempcrete mixes, hempcrete is generally not suitable for structural applications. According to one study, to consider hempcrete for structural applications, the compressive strength should be in the range of 3 to 5 MPa (435 to 725 psi), and the Young’s modulus increased significantly [11]. Considering that the nominal axial capacity for unreinforced masonry is capped at 0.80 f’m, for f’m = 1500 psi, one would get 1200 psi for structural design. Furthermore, to compare with concrete, we note that the nominal axial capacity of concrete is generally accepted as 0.85f’c, which gives 2550 psi for a concrete mixture with a compressive strength of 3000 psi. Based on such an approximate compressive axial capacity of CMU and concrete, it seems that the range of 435 to 725 psi provided from the study is reasonable.
While currently hempcrete is used mainly as a non-load-bearing material, its conventional compressive strength is adequate to support self-weight and its respective exterior/interior finish systems. Based on the results of the study illustrated in Figure 23a [57], after approximately 1 year of curing for the 6 different mixtures tested, the results of the compressive tests were in the range from 0.32 to 0.40 MPa (46.4 psi to 58 psi). In this study, the raw ingredients in the mixture (binder, hemp, water) were varied along with the binder composition. Another study [58] summarizes a group of past studies, which show the compressive strengths to be in the range of 0.10 to1.01 MPa (14.5 psi to 146.5 psi).
Figure 23.
(a) Hempcrete compressive tests reproduced from a study (lines with different color show different test results) [57] (used with permission); (b) typical hemp–lime concrete stress–strain behavior during compressive axial load, reproduced from the same study [57] (used with permission).
Because many factors contribute to the compressive strength of a hempcrete mixture, this causes a quality control challenge, considering that hempcrete is mainly mixed in the field for cast-in-place or spray application. Of course, the availability of commercial binders and mixture recipes can help to improve the consistency of hempcrete mixture design.
In addition to the compressive strength that is of principal interest in hempcrete structures, there are also studies that report flexural strength as well. For example, ref. [57] tested beam samples constructed with different mixes of hempcrete (Figure 23b) and determined the flexural capacity (Figure 24) to be in the range of 0.13 and 0.20 MPa (18.9 to 29.0 psi). To put this into perspective, in comparison with masonry and concrete, we note that allowable bending stress for unreinforced masonry and concrete would be based on the modulus of rupture. The modulus of rupture associated with tensile stresses normal to the bed joints in running bond masonry is 0.25 MPa) (38 psi) for type M or S masonry mortar. For concrete, however, the modulus of rupture is commonly taken as . For concrete with a compressive strength of 3000 psi (20.68 MPa), this would yield a flexural strength of 2.834 MPa (411 psi) (before the application of any strength reduction factors). It is clear that while the flexural capacity of hempcrete is low, when we compare it to masonry flexural strength, the difference is not large. Accordingly, this would suggest that for the use of hempcrete for structural walls, more improvements in compressive strength are necessary compared with improvements in flexural strength.
Figure 24.
Typical flexural strength test [57] (used with permission).
Overall, the mechanical properties of hempcrete are well suited for its current use as a non-load-bearing insulative infill material. However, significant improvement in the compressive strength of hempcrete would be needed before one could introduce a reliable stand-alone load-bearing hempcrete product. Currently, there are some concerns about the structural performance of hempcrete assemblies subjected to conventional external building loads. Perhaps the concern is because of the potential cracks that may be unaccounted for in the assembly. Accordingly, introducing some sort of reinforcing in the hempcrete might help minimize crack widths, which will then improve confidence in the current non-load-bearing use of the material under structural loading. On the other hand, as discussed earlier, hempcrete already has various desirable properties such as thermal resistance, moisture storage capacity, fire resistance, sound insulation, and healthy indoor air quality [6,11,61].
The Use of Hempcrete for Load-Bearing Building Construction Applications
A recent study [2] has concluded that without further research and development of the mixture design for increased compressive strength, at this time, hempcrete is not ready to be considered as a stand-alone load-bearing structural building material. Nonetheless, companies have been developing innovative methods to still use hempcrete for structural applications. Currently, one of two acceptable methods is currently used in practice when hempcrete is required for load-bearing applications. The first method is to use precast blocks as forms, then add steel reinforcement, and finally pour concrete into the cavities, which creates a structurally reinforced concrete framework within the insulative hempcrete forms. The second method consists of inserting steel rebar or Fiber-Reinforced Polymer (FRP) framing elements into the hempcrete block cavities and then connecting the elements to create the complete structural framing system.
These commercial load-bearing systems seem efficient in their use of structural material. The use of reinforced concrete or steel/FRP members and beams is appropriate for the low-magnitude loading that one expects in single-family residential construction. Of course, the embedded framing system is expected to create some thermal bridging, which may lead to reductions in the R-value. However, the efficiency of the framing and presence of thermal breaks is expected to minimize adverse effects.
The first method is illustrated in Figure 25, in which reinforcement is installed in the cavities of the prefabricated hempcrete block system. For these prefabricated hempcrete blocks, the curing occurs prior to installation. Therefore, the construction process can move forward quicker than that for cast-in-place applications. As shown in Figure 25, the tongue-and-groove blocks are cut to size using handsaws or chainsaws and then dry-stacked to form the wall system. Next, reinforcing cages are constructed, and then concrete is poured to form columns and beams within special cavities. Figure 25 also shows that temporary bracing needs to be used to prevent block blow-outs and maintain wall plumbness.
Figure 25.
Hempblock USA load-bearing system [62] (used with permission).
The second method of installation is shown in Figure 26, where the method is like the first method, but instead of reinforced concrete members, FRP (shown in Figure 26a) or steel rebar is used for the framing. Insulative infill is also used around the FRP/steel members to fill in the annular space between the member and the hempcrete blocks.
Figure 26.
(a) FRP members inserted into HempBLOCK units; (b) installation of FRP column stubs [62] (used with permission).
As can be seen in Figure 26, connection components are required along with solid members. The FRP connections shown in the image (Figure 26a) would not be as rigid as the reinforced concrete connections created using method 1 (Figure 25). For the FRP example shown in Figure 26a, the HempBLOCK wall systems with the vertical truss members are intended to act as shear walls to resist lateral loads from wind and earthquake effects. Another difference between the two construction methods is that for both the FRP and the steel systems, column stubs that act as anchorage for the building (Figure 26b) are installed on the concrete slab or subfloor prior to installing the blocks.
5. Summary and Conclusions
Hempcrete has been introduced as a versatile building material that can be utilized as an insulative infill for buildings, mainly residential. The methods of application of hempcrete include cast in place, sprayed on, or prefabricated into blocks or panels. Shown to have a proven history of success in residential construction, hempcrete can, for the most part, be installed using common tools and without specialized work crews. Since the 1980s, some buildings have been constructed with hempcrete without significant issues reported. The main benefit of using hempcrete is the lower environmental impact in comparison with traditional residential building systems.
As a crop, hemp can be grown in a variety of environmental conditions. This crop can be used as a cover crop to help regenerate soil during crop rotation, which adds to its usefulness. The hurd component used in the production of hempcrete is actually considered a waste product of the plant, taken from the stalk. Other parts of the plant, such as seed, leaves, and fibers can still be harvested and used for other applications.
Hempcrete assemblies have been shown to provide a healthy indoor environment. Considering that the material has both high vapor permeability and high moisture-storage capacity, this helps to maintain healthy indoor humidity levels throughout the year. Yet, the most outstanding property of hempcrete is its thermal resistance and its light weight compared with the heavy cementitious products, the first being able to facilitate stable indoor temperatures and reduce heating costs. Furthermore, the hempcrete assemblies provide good acoustic insulation along with excellent fire resistance, among other benefits.
However, hempcrete construction also has a few disadvantages. While being a cementitious mixture, hempcrete should not be considered a viable alternative to concrete. Unlike concrete, hempcrete is not a stand-alone structural product because of its very low compressive strength, and it cannot be exposed to moisture for prolonged periods of time. Because hempcrete currently is not reinforced, it cannot withstand significant tensile stresses. Furthermore, because of the lack of reinforcement, hempcrete assemblies need accompanying structural support. While the material is known for its low-shrinkage properties, there is the potential for cracks or voids to develop in the assemblies due to other reasons, such as poor installation practices or changes in the microstructure over time, which can have negative effects on the strength of the material. Significant improvements in the mechanical properties such as compressive strength would be required for hempcrete to be used as a stand-alone load-bearing material. Even with improvements in the compressive strength, some form of reinforcement is still needed for the hempcrete in the absence of wood framing.
While specialized equipment or crews are not required to install hempcrete assemblies, there are certain specialty pieces of equipment that should be purchased for cast-in-place or spay-on applications. Also, there is a certain level of special training that the operators need to have to accomplish effective and flawless installations.
Proper selection of the mixture proportions is key to the best performance of hempcrete. It should be noted that poor hempcrete mixture design can lead to degradation and pest issues over time. In this regard, selection of the binder is critical. The type of binder along with the mix ratio significantly affects both the mechanical properties of the material and the curing time. Today, commercial binders are becoming increasingly available, which can improve the chances of success for hempcrete contractors. In addition to the mixture design and application considerations, it is important to have skilled workers for lime plaster installation for interior and exterior finish systems. Because lime plaster is not installed in the same manner as gypsum plaster, it requires special skill to provide an effective and durable finish system.
While cast-in-place or spray-on hempcrete application is commonly used today, it requires curing time, which can take two to eight weeks before the finish system can be applied. Ventilation can be used to help curing and allow for early installation of finish systems, but it may incur an added expense. The rational alternative to cast-in-place construction is the use of precast block or panel systems, which allow for immediate installation of finish systems.
The other issue to consider is that the hempcrete assemblies are generally thicker than traditional wood-framed wall assemblies. While hempcrete has good insulative value for a cementitious material, its R-value is significantly lower than conventional insulative materials such as fiberglass or cellular foam. Accordingly, to satisfy the energy code requirements, one needs to design hempcrete walls to be thicker, which may not be appropriate to be accommodated for all projects.
In the final summary, hempcrete is a viable alternative construction material, currently used as an insulation material that can be utilized in residential wall, floor, and roof assemblies. It has an established track record of successful installations for home building and can offer advantages over traditional residential construction materials in certain applications. The study shows that there are ongoing efforts to increase the compressive strength of hempcrete toward load-bearing applications. Such an increase would depend on different factors such as curing temperature and humidity, binder type and percentage, hemp-to-binder ratio, water-to-binder ratio, and additives. Extensive research is still necessary to improve the properties of hempcrete for its increased use in construction.
Author Contributions
Conceptualization, A.M.M. and A.C.J.; methodology, A.C.J. and A.M.M.; software, A.C.J.; validation, A.C.J. and A.M.M.; formal analysis, A.C.J.; investigation, A.C.J.; resources, A.M.M.; data curation, A.C.J. and A.M.M.; writing—original draft preparation, A.C.J.; writing—review and editing, A.M.M.; visualization, A.C.J.; supervision, A.M.M.; project administration, A.M.M.; funding acquisition, A.M.M. All authors have read and agreed to the published version of the manuscript.
Funding
Funding for this study was provided by the Pennsylvania Housing Research Center (PHRC).
Acknowledgments
The support of the Pennsylvania Housing Research Center (PHRC) for this study is acknowledged. Any opinion expressed are those of the authors and do not necessarily represent the sponsor.
Conflicts of Interest
The authors declare no conflict of interest.
References
- Goetsch, H.; Deru, M. Operational Emissions Accounting for Commercial Buildings; MREL/TP-5500-81670; National Renewable Energy Laboratory (NREL): Golden, CO, USA, 2022. [Google Scholar]
- Jellen, A.C.; Memari, A.M. The Use of Hempcrete in Single-Family Home Construction; Report Submitted to Sponsor PHRC; The Pennsylvania Housing Research Center (PHRC): University Park, PA, USA, 2024; 76p. [Google Scholar]
- Tyagi, P.; Gutierrez, J.; Lucia LHubbe, M.; Pal, L. Evidence for Antimicrobial Activity in Hemp Hurds and Lignin-Containing Nanofibrillated Cellulose Materials. Cellulose 2022, 29, 5151–5162. [Google Scholar] [CrossRef]
- Lancaster Farming. Making Wood Substitutes from Hemp at the HempWood Facility in Kentucky. United States: YouTube. July 2021. Available online: https://www.youtube.com/watch?v=Uua964Y6BbA (accessed on 6 June 2024).
- Nelson, S. All the Hype About Industrial Hemp. The Agriculturist (Blog). April 2018. Available online: https://ttuagriculturist.com/2018/04/11/all-the-hype-about-industrial-hemp/ (accessed on 6 June 2024).
- Zuabi, W.; Memari, A.M. Review of Hempcrete as a Sustainable Building Material. Int. J. Archit. Eng. Constr. 2021, 10, 1–17. [Google Scholar] [CrossRef]
- Ortiz, P. Hemp Wood as a Building Material: Pros, Cons, Guide & Properties. HouseGrail. March 2024. Available online: https://housegrail.com/hemp-wood-as-a-building-material/#:~:text=To%20obtain%20hemp%20wood%2C%20the%20inner%20stalk%20of,used%20on%20floors%2C%20plasters%2C%20furniture%2C%20and%20interior%20decor (accessed on 6 June 2024).
- HempWood. HempWood Flooring. 2024. Available online: https://hempwood.com/flooring/ (accessed on 21 November 2024).
- Bourland, L. Hemp Wood: A Comprehensive Guide. Rise. 2022. Available online: https://www.buildwithrise.com/stories/hempwood-the-sustainable-new-building-material (accessed on 6 June 2024).
- Hempwood. Hemp Paneling. 2025. Available online: https://hempwood.com/lumber/ (accessed on 3 January 2025).
- Asghari, N.; Memari, A.M. State of the Art Review of Attributes and Mechanical Properties of Hempcrete. Biomass 2024, 4, 65–91. [Google Scholar] [CrossRef]
- Stella mary, F.; Nithambigai, G.; Rameshwaran, P.M. Effect of Binders and Hemp Fiber in Concrete. Mater. Today Proc. 2021, 46, 3791–3794. [Google Scholar] [CrossRef]
- Zhang, D.; Zhao, J.; Wang, D.; Xu, C.; Zhai, M.; Ma, X. Comparative Study on the Properties of Three Hydraulic Lime Mortr Systems: Natural Hydraulic Lime Mortar, Cement-aerial Lime-based Mortar, and Slag-aerial Lime-based Mortar. Constr. Build. Mater. 2018, 186, 42–52. [Google Scholar] [CrossRef]
- Stanwix, W.; Sparrow, A. The Hempcrete Book; Green Books: Cambridge, UK, 2021. [Google Scholar]
- Gunderson, D. Fargo House Will Research Hemp Construction Material. MPRnews (Blog). August 2022. Available online: https://www.mprnews.org/story/2022/08/02/fargo-house-will-research-hemp-construction-material (accessed on 6 June 2024).
- Bollino, F.; Giannella, V.; Armentani, E.; Sepe, R. Mechanical Behavior of Chemically-treated Hemp Fibers Reinforced Composites Subjected to Moisture Environment. J. Mater. Res. Technol. 2023, 22, 762–775. [Google Scholar] [CrossRef]
- Bohn, A.; Mazelli, R.; Bocco, A. Load Bearing Hempcrete? A Preliminary Research. In Proceedings of the 18th International Conference on Non-Conventioanl Materials and Technologies, NOCMAT 2022, Virtual, 7–23 June 2022; Papadopoulos, C., Harries, K.A., Eds.; [Google Scholar] [CrossRef]
- UK Hempcrete. Hempcrete Block: New Load-Bearing System Available. UK Hempcrete. 2018. Available online: https://www.ukhempcrete.com/load-bearing-hempcrete-blocks/ (accessed on 6 June 2024).
- HempBLOCK International. LB 300 HempBLOCK—Load Bearing System. 2025. Available online: https://hempblockinternational.com/welcome/ (accessed on 27 February 2025).
- 2050 Materials. Hemp: A Game Changer for the Building Industry. 2050 Materials. 2024. Available online: https://2050-materials.com/blog/hemp-a-game-changer-for-the-building-industry/#:~:text=Main%20Types%20of%20Building%20Products%20Made%20of%20Hemp&text=Hempcrete%3A%20Hempcrete%20is%20a%20bio,walls%2C%20floors%2C%20and%20roofs (accessed on 18 September 2024).
- Limetechnology. Tradical Hemcrete Embodied CO2. 2024. Available online: https://www.americanlimetechnology.com/tradical-hemcrete/ (accessed on 7 November 2024).
- Portland Cement Association (PCA). Roadmap to Carbon Neutrality. Portland Concrete Association. 2021. Available online: https://www.cement.org/a-sustainable-future/roadmap-to-carbon-neutrality/ (accessed on 6 June 2024).
- Engineering World. How Cement Is Made (Mega Factories Video). Online. 23 September 2022. Available online: https://www.youtube.com/watch?v=RcrMBYsB93E (accessed on 6 June 2024).
- Leung, J. Decarbonizing U.S. Buildings. Center for Climate and Energy Solutions. 2018. Available online: https://www.c2es.org/document/decarbonizing-u-s-buildings/ (accessed on 6 June 2024).
- Haik, R.; Meir, I.A.; Peled, A. Lime Hemp Concrete with Unfired Binders vs. Conventional Building Materials: A Comparative Assessment of Energy Requirements and CO2 Emissions. Energies 2023, 16, 708. [Google Scholar] [CrossRef]
- Banks, G. The House Made of Hemp. New Atlas. December 2010. Available online: https://newatlas.com/first-us-hemp-house/17115/ (accessed on 6 June 2024).
- Lotus, J. Spotlight: 3 New Hemp Houses in the USA. Hempbuild Magazine. July 2024. Available online: https://hempbuildmag.com/home/3-hemp-houses (accessed on 15 November 2024).
- Magwood, C. Essential Hempcrete Construction; New Society Publishers: Gabriola, BC, Canada, 2022; Available online: https://www.google.com/search?q=Essential+Hempcrete+Construction&rlz=1C1GCEA_enUS976US976&oq=Essential+Hempcrete+Construction&gs_lcrp=EgZjaHJvbWUyBggAEEUYOTIHCAEQLhiABDIICAIQABgWGB4yDQgDEAAYhgMYgAQYigUyDQgEEAAYhgMYgAQYigUyDQgFEAAYhgMYgAQYigUyDQgGEAAYhgMYgAQYigUyCggHEAAYgAQYogTSAQkxMTI0ajBqMTWoAgCwAgA&sourceid=chrome&ie=UTF-8 (accessed on 6 June 2024).
- U.S. Hemp Building Association. Thermal Insulation—Hempcrete. ARCAT. 2024. Available online: https://www.arcat.com/sdspecs/htm04/07_21_00uhb.htm (accessed on 18 September 2024).
- The Constructor. What Is R-Value and U-Value of Concrete Slab per Inch, Calculation, Home/Building Technology Guide, Building Ideas, The Constructor. Available online: https://test.theconstructor.org/building/r-value-u-value-concrete-slab-calculation/27294/ (accessed on 25 March 2025).
- International Code Council (ICC). International Residential Code for One- and Two-Family Dwellings “Appendix BL Hemp Lime Hempcrete Construction—2024 International Residential Code (IRC)”. 2024. Available online: https://codes.iccsafe.org/content/IRC2024P1/appendix-bl-hemp-lime-hempcrete-construction (accessed on 21 October 2024).
- International Code Council (ICC). (2021) International Energy Conservation Code (IECC). Available online: https://codes.iccsafe.org/content/IECC2021P3 (accessed on 21 October 2024).
- Hempcrete International. Application of Hempcrete in a Post and Beam Construction. 2013. Available online: https://www.youtube.com/watch?v=G2qhjxnSiU4&t=3s (accessed on 6 June 2024).
- Matloff, J. The Lower Sioux in Minnesota Need Homes—So They Are Building Them from Hemp. Grist. November 2023. Available online: https://grist.org/indigenous/hempcrete-lower-sioux-housing/ (accessed on 6 June 2024).
- GharPedia (Blog). Hempcrete as a Building Material: Pros & Cons|Properties|Applications. October 2019. Available online: https://gharpedia.com/blog/hempcrete-pros-cons/ (accessed on 6 June 2024).
- Hempstone. Wood Wool Board—A Complementary Natural Building Material. July 2020. Available online: https://hempstone.net/catalyst-for-change/wood-wool-board-complementary-natural-building-material (accessed on 6 June 2024).
- American Lime Technology. Baumit Lime Stucco & Plasters. 2024. Available online: https://www.americanlimetechnology.com/baumit-lime-stucco/ (accessed on 21 October 2024).
- Stanwix, W. Shoe Makers Garden Studio. The Hempcrete Guy. 2010. Available online: https://thathempcreteguy.com/work/hempcrete-shoe-makers-studio (accessed on 6 June 2024).
- Hempcrete: Insulating Roofs. Weber Saint-Gobain. September 2023. Available online: https://www.fr.weber/en/hempcrete-insulating-roofs (accessed on 6 June 2024).
- Hempitecture. Magnesium-Oxide Board Wall Assembly. Truly Sustainable Solutions. 2024. Available online: https://www.hempitecture.com/wp-content/uploads/2024/03/Hempitecture-MagOx-Wall-Section.pdf (accessed on 9 October 2024).
- MAGPANEL. MagPanel Is New Alternative to Traditional Building Material. 2024. Available online: https://www.magpanelmgo.com/magnesium-oxide-board-applications (accessed on 9 October 2024).
- Stanwix, W. Hempcrete Floor. That Hempcrete Guy (Blog). 2012. Available online: https://thathempcreteguy.com/work/hempcrete-solid-floor (accessed on 6 June 2024).
- Lotus, J. Spray-Applied Hempcrete System Gets New U.S. Distributor. Hempbuild Magazine. March 2024. Available online: https://www.hempbuildmag.com/home/espray-applied-hemp-usa (accessed on 15 November 2024).
- Fiber Fort. Americhanvre Cast Hemp. 2024. Available online: https://americhanvre.com/michigan/ (accessed on 9 October 2024).
- Americhanvre. U.S. Green Building Council. 2024. Available online: https://www.usgbc.org/organizations/americhanvre (accessed on 6 June 2024).
- Lotus, J. As Lumber Prices Surge, Hemp Blocks Get a Closer Look. Let’s Talk Hemp. May 2021. Available online: https://letstalkhemp.com/as-lumber-prices-surge/ (accessed on 15 November 2024).
- HempBLOCK. n.d. HempBLOCK USA. Available online: https://hempblockusa.com/hemp-block/ (accessed on 10 October 2024).
- American Lime Technology. Hembuild & Hemclad Pre-Cast Wall Systems; Standard Wall Cross Section; American Lime Technology: Chicago, IL, USA, 2024; Available online: https://thenvirohaus.wordpress.com/wp-content/uploads/2013/01/hembuild-guide.pdf (accessed on 6 June 2024).
- Hempclad-Hempbuild. Hempclad Panels and Hempbuild Panels, Hembuild Pre-Cast Wall Systems. n.d. 2024. Available online: https://www.americanlimetechnology.com/tradical-hembuild/ (accessed on 21 October 2024).
- Hempsteads. Hempsteads.Info. Pinterest. 2024. Available online: https://www.pinterest.com/pin/base-coat-being-applied-on-hempcrete-wall-nauhaus-2010--444237950718533249/ (accessed on 21 October 2024).
- Lime Plastering. UK Hempcrete. UK Hempcrete Ltd. 23 October 2015. Available online: https://www.ukhempcrete.com/gallery/gallery-lime-plastering/ (accessed on 6 June 2024).
- HempToday®. Hempcrete Takes ‘Important Step’ in U.S. by Entering International Code. HempToday®. 27 February 2023. Available online: https://hemptoday.net/hempcrete-takes-important-step-in-u-s-by-entering-international-code/ (accessed on 6 June 2024).
- Straube, J. The Building Enclosure. Building Science Digest 18. Building Science Corporation: Westford, MA, USA, 2006. Available online: https://buildingscience.com/documents/digests/bsd-018-the-building-enclosure_revised (accessed on 6 June 2024).
- Memari, A.; Griffin, C.; Yi, H.; Klinetob Lowe, S.; Mirzai, N.; Hashemi, M. Thermal, Energy, and Indoor Environmental Quality Performance of the PA Hemp House; The Pennsylvania Housing Research Center: University Park, PA, USA, 2022; Available online: https://www.phrc.psu.edu/Publications/Research-Publications.aspx (accessed on 6 June 2024).
- Shang, Y.; Tariku, F. Hempcrete Building Performance in Mild and Cold Climates: Integrated Analysis of Carbon Footprint, Energy, and Indoor Thermal and Moisture Buffering. Build. Environ. 2021, 206, 108377. [Google Scholar] [CrossRef]
- Memari, A.M.; Mirzai, N.; Hashemi, M.; Lu, X.; Griffin, C.G.; Yi, H.; Klinetob Lowe, S. In-Situ Measurement of Residential Buildings with Hempcrete Walls: A Case Study. Front. Sustain. J. 2025, 5, 1508940. [Google Scholar] [CrossRef]
- Walker, R.; Pavia, S.; Mitchell, R. Mechanical Properties and Durability of Hemp-Lime Concretes. Constr. Build. Mater. 2014, 61, 340–348. [Google Scholar] [CrossRef]
- Benmahiddine, F.; Belarbi, R. Effect of Immersion/Freezing/Drying Cycles on the Hygrothermal and Mechanical Behaviour of Hemp Concrete. In Construction Technologies and Architecture; Trans Tech Publications Ltd.: Zurich, Switzerland, 2022. [Google Scholar] [CrossRef]
- Demir, İ.; Doğan, C. Physical and Mechanical Properties of Hempcrete. Open Waste Manag. J. 2020, 13, 26–34. [Google Scholar] [CrossRef]
- Asghari, N. Study of Effective Experimental Approcahes to Improve Hempcrete’s Compressive Strength. Master’s Thesis, Penn State University, University Park, PA, USA, 2024. Available online: https://etda.libraries.psu.edu/files/final_submissions/30609 (accessed on 6 June 2024).
- Ansari, H.; Tabish, M.; Zaheer, M.M. A Comprehensive Review on the Properties of Hemp Incorporated Concrete: N Approach to Low Carbon Foorprint Construction. Next Sustain. 2025, 5, 100075. [Google Scholar] [CrossRef]
- Hempblock International. LB 300 HempBlock-Load-Bearing System. Hempblock International. 2024. Available online: https://hempblockinternational.com/welcome/#:~:text=FRP%20%28Fibre%20Reinforced%20Polymer%29%2C%20or%20CFT%20%28Composite%20Fibre,plus%20the%20most%20affordable%20patented%20system%20to%20date (accessed on 7 November 2024).
Disclaimer/Publisher’s Note: The statements, opinions and data contained in all publications are solely those of the individual author(s) and contributor(s) and not of MDPI and/or the editor(s). MDPI and/or the editor(s) disclaim responsibility for any injury to people or property resulting from any ideas, methods, instructions or products referred to in the content. |
© 2025 by the authors. Licensee MDPI, Basel, Switzerland. This article is an open access article distributed under the terms and conditions of the Creative Commons Attribution (CC BY) license (https://creativecommons.org/licenses/by/4.0/).

























