Next Article in Journal
Advancing Farm Entrepreneurship and Agribusiness Management for Sustainable Agriculture
Next Article in Special Issue
Diurnal Behaviour, Health and Hygiene of Dairy Cows in Compost Barn Systems Under Different Climates in Argentina: A Bayesian Approach
Previous Article in Journal
Fault Diagnosis of Rolling Bearings in Agricultural Machines Using SVD-EDS-GST and ResViT
 
 
Font Type:
Arial Georgia Verdana
Font Size:
Aa Aa Aa
Line Spacing:
Column Width:
Background:
Article

Effects on the Indoor Environment in a Stable for Horses in Winter: A Case Study

1
Department of Technological Equipment of Buildings, Faculty of Engineering, Czech University of Life Sciences Prague, 16521 Prague, Czech Republic
2
Department of Mathematics and Physics, Faculty of Engineering, Czech University of Life Sciences Prague, 16521 Prague, Czech Republic
3
Department of Animal Science, Faculty of Agrobiology, Food and Natural Resources, Czech University of Life Sciences Prague, 16521 Prague, Czech Republic
*
Author to whom correspondence should be addressed.
Agriculture 2024, 14(8), 1287; https://doi.org/10.3390/agriculture14081287
Submission received: 10 July 2024 / Revised: 26 July 2024 / Accepted: 2 August 2024 / Published: 4 August 2024

Abstract

The aim of this article is to show the most significant factors influencing the indoor environment in winter considering the operating conditions of an older stable modified for housing 12 horses and an indoor riding arena for teaching and sports purposes. This research focused on assessing the influences affecting the internal environment from the point of view of the construction of the building and ventilation control in the operating conditions of working and non-working days. The analysis of the results showed that the massive masonry structure has sufficient thermal insulation and accumulation, which was manifested by good temperature stability inside the stable of 7.2 ± 1.7 °C when the outside air temperature was −4.80 ± 1.5 °C. At low outdoor air temperatures of −6.44 ± 0.4 °C, the following conditions were found: a higher relative air humidity (76.0 ± 5.3%), a high CO2 concentration 2317.1 ± 931.7 ppm, and a high airborne dust concentration PM10 = 231.94 ± 19.13 μg·m−3 and PM2.5 = 160.13 ± 6.28 μg·m−3. Therefore, it is necessary to improve the solution and function of the stable ventilation. The small size of the windows and their uneven distribution (average daylight factor ei from 0.313 ± 0.154 to 0.835 ± 0.309) caused insufficient daylight in some individual boxes.

1. Introduction

It is assumed that the first domestication of the horse may have occurred somewhere in the Eastern European steppes 5 to 6 thousand years ago [1]. Other opinions and findings of scientists push the domestication of horses to a later period in other areas of the world. According to [2], 4.–3. millennium BC, the wild horse lived in different regions (Europe, Eurasian steppes, and the Middle East). Historically, the oldest and most natural environment for the life of horses is certainly the steppes and open plains, with the possibility of grazing. Not only people but also their good and efficient helpers, horses, gradually adapted to the different and, in many cases, even colder living conditions. This led to the development of many breeds that are well-adapted to harsher climates. The basis is usually primitive breeds with good adaptability to variable and often harsh natural conditions.
The thermoregulatory mechanisms of horses develop with age. Nutrition also influences the ability to live in colder conditions [3]. Yearling horses fed ad libitum have an LCT of −11 °C, and acclimatized adult horses have an LCT of −15 °C.
By examining thermoregulatory mechanisms, one can find horses adapted to cold conditions and, vice versa, adapted to heat, which coincides with the traditional classification into cold-blooded and warm-blooded breeds [4]. Most breeds can be classified somewhere between these two types of horses. In terms of body structure, heavier, compact horses with shorter limbs are well equipped with subcutaneous fat and protected by thick skin and fur, and many are more cold-blooded. These breeds are calm, sociable, and have considerable aerobic and high endurance capacity. On the contrary, warm-blooded horses are usually lighter, slimmer, and have longer limbs. Their bodies are less thermally insulated by skin and fur. They can produce sudden, powerful efforts thanks to anaerobic metabolism and the mobilization of glycogen stores in the muscles.
Theoretical knowledge and experience with horse breeding in Nordic conditions are provided in many publications from Scandinavia, including the application of this knowledge in the breeding of trotters, warm-blooded riding horses, and Icelandic Toelter horses [5,6,7,8]. Standard and cold-blooded trotters start racing at the age of three. Optimal nutrition and the possibility of free movement during the rearing period are important to cope with the physiological demands during training. There were no adverse effects on the health of horses, even when training or racing was performed at low temperatures, e.g., −25 °C [8].
For horse breeding in cold, wet areas with a lot of rainfall, the use of pasture is suitable. The ability to accumulate a large amount of body fat in summer, which can be mobilized as a source of energy in winter, is of great importance in freely moving horses. The mixed grazing of horses with sheep and cattle has ecological and economic significance for farms in terms of grass cover [8].
The long-term breeding of cultural horse breeds and the development of many sports activities associated with horse breeding create a problem with breeders’ interests in expanding them to climatic conditions that are different from their countries of origin. Further development and the acquisition of new knowledge also benefit from past breeding experiences with some breeds situated in specific local conditions characterized by a sometimes less favorable climate or a natural way of breeding [9,10,11,12]. The current development of genetic sciences and informatics, including the collection and analysis of data on breeds and genetic resources, provides very good information about the 22 breeds of horses bred in the Czech Republic [13].
The gradual domestication and expansion of horse breeding in other areas of the world with different climatic conditions led to the gradual construction of various shelters and stables where horses stay for a longer time, which are part of entire horse farms. These special farms must provide suitable conditions for stables and for the life of horses during their other activities (training and work) [14]. Therefore, they also include outdoor and increasingly indoor riding arenas. Inside the fully enclosed spaces of indoor arenas, a cold or very cold microclimate was usually found, usually with high air humidity [15].
The horse industry contributes a total of USD 122 billion annually to the United States economy. Owners, managers, and riders were interviewed on a variety of topics, including arena construction and design, arena usage, type of running, maintenance practices, environmental issues, and potential health problems encountered by the facility. Overall, 71% of the respondents said they were concerned about the environment in the indoor arena. The three main problems identified were airborne dust, air moisture, and insufficient ventilation [14]. Inadequate ventilation and a higher concentration of dust are greatly influenced by the construction of the indoor riding arena for horses [16]. It is therefore necessary to focus further research on the issue of airborne dust reduction in indoor riding arenas.
A stable should provide safe accommodation for horses and good working conditions for people. Several factors contribute to the creation of the conditions that we include under the collective term “animal welfare” [17,18,19,20]. Horse welfare can be threatened by many factors, and exposure to adverse conditions can lead to stressful conditions [21,22,23,24]. It is therefore necessary to continue to investigate the relationship between the state of horse well-being in their environment and different riding situations [25].
Because of the considerable sensitivity of horses, especially powerful warm-blooded and sport horses, much attention is paid to stressful situations, the possibilities of how to prevent these situations, and how horses can manage them [24,26,27]. When assessing the welfare of working and breeding horses during summer and winter, worse conditions were found for working horses, and for both evaluated categories of horses, conditions were worse in winter [28].
The predominant system of housing domestic horses is individual housing. However, the results of one study that evaluated the behavior of group-housed horses and the effect on training show the advantages of keeping young horses in groups [29]. Housing that restricts social relationships among animals is a welfare issue [30]. The dimensions of housing boxes and enclosures are important from the beginning of foal training and in the subsequent period of breeding and training [31]. Movement in the stable area, its shape, derived locomotion patterns, and the amount of time thoroughbred horses spend walking in the stable characterize the stable conditions. This can help predict future risks of muscle damage, dehydration, muscle fatigue, and other problems [32].
In Turkey, a significant proportion of the horses are thoroughbreds, Arabian horses, and native horses. Thoroughbred and Arabian horses are used in horse racing, while indigenous horses are used in traditional local equestrian sports. It was found that 75.6% of these horses are housed in binding stalls and 24.4% in box stalls [33].
According to [34], 84% of the total number of horses in Europe are kept in individual housing systems (boxes), and 16% are kept in group housing systems. Most horses in Germany are bred for recreational activities [34,35]. Horses are mostly kept individually in individual pens. Horses stabled in individual stalls usually spend little time moving. Another variant of this system is group housing in open stables. These stables improve housing conditions and welfare. Horses can move in the fresh air and have better contact with other horses in the group.
Group housing provides horses with social contacts, the lack of which is sometimes related to problematic horse behavior or health problems. However, despite the aforementioned advantages of group housing, horse owners are concerned about aggressiveness and resulting injuries. A study [36] confirmed the feasibility and relative safety of a group of horses reared in larger group-rearing systems. However, sufficient paddock space is needed, as well as pens for stables. Providing at least 342 m2 per horse can reduce the possibility of injury in horses accustomed to group participation [37].
The possibility of allowing horses access to pastures is important. The influence of the grazing system on the state of the pasture is significant, where alternating pastures showed a higher height of grass, mass of vegetation, and vegetative cover [38]. The presented results support the recommendation for rotational grazing to optimize pasture yield and prevent the deterioration of vegetative cover, which has significant environmental and ecological consequences.
In practice, different housing systems are available for the group breeding of horses. Horse breeding in so-called active stables is becoming popular. The main feature of active stables is the spatial separation of various functional areas for rest, feeding, and receiving feed with a sufficiently large space. For the distribution of concentrated feed and mineral supplements for group-reared horses, it is advantageous to use an automatic feeding station [39]. One study found that group housing provides horses with a great opportunity for movement and better well-being [40]. The daily walking distances of the entire group and newly arrived horses were measured. The horses traveled an average of 8.43 km/day.
When studying the formation of groups and the behavior of horses in groups, it is advantageous to use detection of movement locations by collecting data using data loggers. Research on spatial and temporal proximities among group-housed horses was ascertained by comparing location data using GPS [41,42]. The use of data for the analysis of movement on-premises also allows for evaluating the effect of additional equipment on the movement of horses and the frequency of visits to different facilities (feeding areas, water supply, prioritization of certain lying stalls, types of materials for the construction of halls, etc.) [43,44].
The aim of the study [45] was to evaluate the feeding and agonistic behavior of horses kept in two types of stables in a semiarid region. The difference was mainly in the construction of the roof. The stable with a tin roof had worse temperature conditions (higher temperatures inside the stable in summer) than the stable covered with clay bags, with better storage and insulation capacity. The average feeding time was longer in the barn with a tin roof under conditions of some heat stress than in the barn better insulated with roof tiles.
Research [46] shows that climate change will affect the energy consumption of buildings in future years and thus should be considered when designing stable heating and ventilation systems. The selection of reflectance and insulation values for a building’s roof should include an annual calculation of energy consumption for heating and cooling. In cold regions, when roofs are covered with snow for a long time, the increased solar reflectance of a roof will have less effect on the energy efficiency of the building in winter. Increased solar reflectivity of the roof always leads to less energy consumption for cooling in summer.
According to [47], the climate changes observed in recent years, particularly, the increase in the average air temperature, affect the microclimate conditions in livestock barns not only in summer but also in winter. As expected, because of year-round higher temperatures in Central Europe, temperatures in stables are higher during winter, but because of the different structural features of the buildings, the internal conditions are different.
One study [48] suggested that climatic factors such as temperature, precipitation, and lighting during the perinatal period in foals have no significant effect on coat cortisol concentrations measured at birth or 30 days of age. The absence of a significant effect of these factors suggests that compensatory mechanisms allow foals to buffer environmental changes without chronic changes in cortisol levels.
According to [49], horses that have less sleep because of prolonged activities have poor health and poor living conditions. Therefore, it is necessary to pay sufficient attention to the possibilities for comfort regarding the sleep well-being of horses when designing the size and solution of the housing, the choice of bedding, and the operating conditions during the day and night.
The results of the study [34] showed that the activity of horses is influenced by space and functional areas. The use of automation for feeding hay and concentrates, together with a well-designed interior layout of the stable, results in significantly higher horse activity compared with conventional open stables.
The research on microclimatic conditions in new and modernized older stables for horses showed that most of the examined horse stables did not have suitable design parameters in terms of thermal–technical properties of the stables, and the ventilation equipment for winter and cold periods was insufficient [50]. Inadequately thermally insulated stables with excessively large stalls would require heating in winter if optimal conditions were to be achieved. The thermal technical properties of indoor riding arenas are also often insufficient, an insulated riding arena with a double-skinned roof is suitable [51].
For sport horses, the optimal temperature in summer is 18 to 22 °C, whereas in winter, it is 10 to 18 °C, with a relative humidity of 50 to 75% [51]. According to [52], relative humidity should be from 60 to 80% with a maximum of 85%. At a higher humidity above 80%, there is a risk of condensation of water vapor on the surface of the walls and ceiling. Insulation of the perimeter walls and ceiling is recommended. Thermally insulated stables are also suitable. When building a stable, it is advisable to use natural materials that contribute to a good internal microclimate, e.g., wood. Sufficient ventilation and sufficient light are important. For a sufficient intensity of daylight, the window size ratio should be 1 m² of the window area per 15 m² of stable floor. The recommended intensity of artificial lighting is 40 lux.
The volume of the stable, which should correspond to the number of stabled horses, requires at least 25 m3 for one horse [52]. The minimum floor area requirement in free stables for sport and breeding horses should be 9 to 16 m2 per one horse. The optimal air temperature in summer should be 15 to 20 °C depending on the category of horses; in winter, the air temperature should not drop below 6 °C for a long time. The optimal air flow speed should be up to 0.5 m/s in summer and 0.25 m/s in winter. The maximum CO2 concentration should be up to 0.25%.
Some dusty materials are handled in horse stables, such as feed and bedding, and horse hair is also a source of dust. Airborne respirable dust in a stable environment has a significant negative impact on the respiratory health of horses and can cause a debilitating allergic condition known as equine asthma. Equine asthma is a common disease in horses. Early identification and intervention in horses at risk of lower respiratory tract disease could mitigate the impact of the disease [53]. In contrast, inflammatory airway disease (IAD) can affect horses of any age, and the clinical signs at rest are usually subtle [54]. Respiratory problems in horses are the second largest cause of lost training days in thoroughbreds [55]. Respiratory problems in racehorses can also have significant economic impacts [56].
When monitoring the microclimate in stables and other areas during horse breeding, attention is mainly focused only on suitable conditions for horses, but an increasingly legitimate importance is also attached to the working environment for nurses and other persons moving in this environment [57]. A stable should be designed according to parameters related to the welfare of stabled horses, taking into account that it should be possible to change the size of stables and all other spaces for horses of any breed. It is important to keep in mind that the welfare, safety, and calmness of horses are also the starting points for the safety of the attendants and other persons working and moving around in the stable.
In the study [15], the relationship between the environment and conditions was investigated to ensure the health and well-being of all voluntary workers. The health of workers in riding areas is characterized by an environment in which workers may also be exposed to dust in addition to other deteriorated microclimate parameters. The use of space, safety of residence and work, environmental parameters, and organizational procedures need to be controlled. However, improving living conditions and the indoor environment also have certain economic limits [4].
A suitable acoustic environment is very important to housed horses [58]. The sense of hearing, in both domesticated animals and their wild ancestors, plays a significant role in their lives [59,60,61]. The influence of noise has been recognized and included in minimum standards for keeping animals. For example, according to [62] the minimum standards for the protection of pigs, states that no animal should be exposed to constant or sudden noise, and the noise level must not exceed 85 dB [62]. Sudden sources of noise should be avoided for all species [63].
Our article aims to show the most significant influences acting on the indoor environment in winter considering the operating conditions of an older stable adapted for housing horses and an indoor riding arena for teaching and sports purposes.

2. Materials and Methods

2.1. Description of the Farm

This research work and measurements were carried out on a horse farm situated in the central part of the Czech Republic. Part of the farm area is a stable, which has a part for housing horses and facilities for employees and practical teaching of students. There is also an indoor riding arena, which is used both for teaching needs and for the activities of the Equestrian club. The farm area has grass paddocks for horses with a total area of approximately 30,000 m2. The daily program in winter during a working day is presented in Table 1.
On weekdays, students participate in activities generally from 8:30 a.m. to 1:45 p.m., and the Equestrian club members participate from 3:30 p.m. to 5:45 p.m. During the weekend, students are not in the barn, and the Equestrian club activities are limited to routine horse care and barn operations.
The stable is a masonry building with a gable tin roof, divided into a living area and a stable area, where there are twelve individual boxes for horses and facilities for preparing fodder and bedding. In the following text, the term “stable” refers to the part of the building intended for housing of horses.
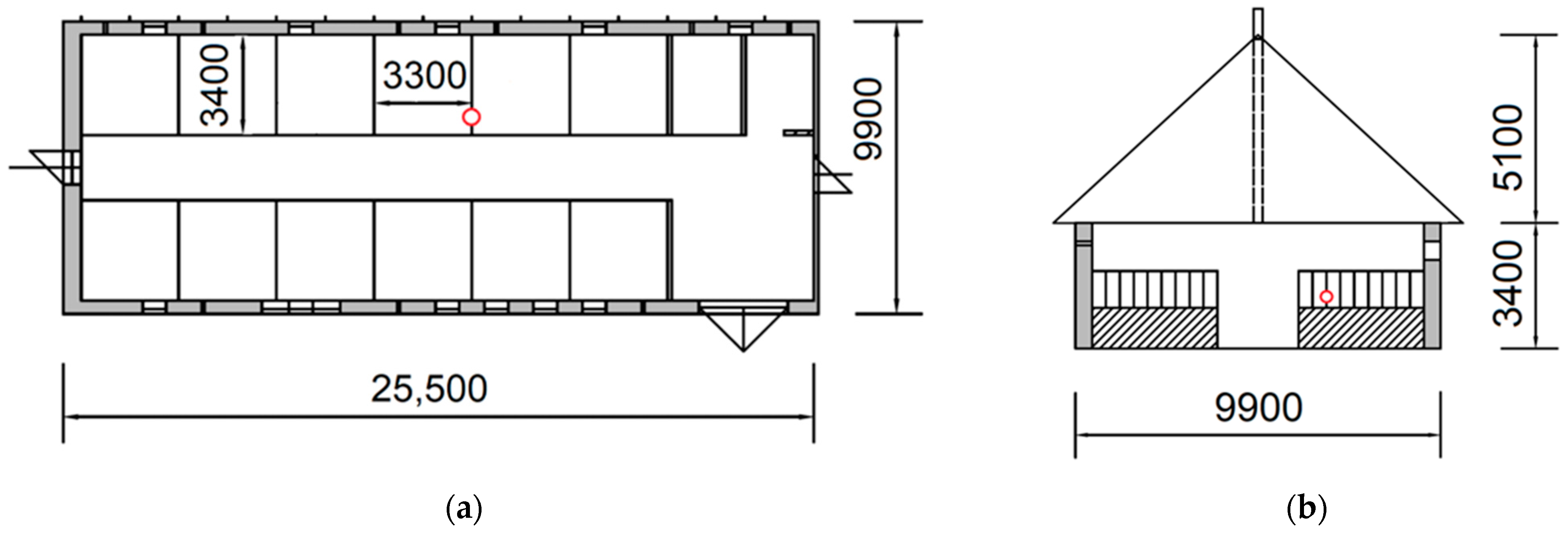
The stable (Figure 1 and Figure 2) has a rectangular floor plan, and the internal dimensions are as follows: length of 24.75 m, width of 9.0 m, and height of 3.4 m, so the total internal volume is 757.35 m3. In the case of housing 12 horses, there is 63.75 m3 per animal. The floor area is 222.75 m2, the total area of the windows in the winter season is 6.375 m2. The closing or opening of the windows on the door side is performed by the stable staff in winter depending on the temperature. On the opposite side of the stable, the windows are always closed to prevent draughts.
The indoor riding arena (Figure 3 and Figure 4) is a steel structure covered with a polyethylene tarpaulin. The hall has dimensions of 40 m by 20 m, the height of the walls is 3.5 m, the height of the roof ridge is 8 m, and the internal volume of the space is 4600 m3. Two doors allow entry. The ventilation system consists of circular openings in the walls (protected by netting and external covers against rain) and exhaust chimneys with fans (rotation is induced by airflow). The riding surface of the floor consists of a mixture of silica sand with geotextile, regularly maintained by dragging (or raking) and sprinkling as needed. Both gates must always be closed when the horses are moving—this is essential for the safety of horses and riders. In the following text, the term “riding arena” means the indoor riding arena.

2.2. Data Acquisition and Processing

For the long-term measurement and recording of measured values, in the stable near the housed horses, an Almemo 2590-9 data logger with relevant sensors from the Ahlborn company was installed (Ahlborn Mess- und Regelungstechnik GmbH, Eichenfeldstraße 1, 83607 Holzkirchen, Germany) [64].
An FHA 646 sensor was used for air temperature and humidity measurement, the concentration of CO2 was measured by FY A600, and the indoor illuminance was measured by an FLA 613-VL sensor. The sound pressure level LpA (dB), according to the frequency weighting filter A, was measured by BEHA Unitest 93411 D. This device is equipped with a connector and the possibility of a permanent power supply from the electrical network for long-term measurements and another AHLBORN-Almemo connector (special modification made by the company Ahlborn.cz) enabling the storage of measured data to the Almemo 2590-9 data logger.
To determine the surface temperatures and temperature distribution of the stable, a thermographic camera IR FlexCam Pro®, produced by Infrared Solutions in the United States, was used (5000 Nob Hill Drive Minneapolis, MN 55439, USA).
Air temperatures and relative humidity inside the indoor riding arena for the purpose of longer-term measurement of the measured values were recorded by a ZTH 65 data logger (the manufacturer and supplier of the dataloggers is the company COMET SYSTEM, Ltd., Rožnov pod Radhoštěm, Czech republic [65]) with registration at intervals of 15 min. The ZTH 65 data logger was placed on the steel structure of the riding arena in the middle of the long wall above the solid wooden part of the side wall at a height of 165 cm.
External air temperatures and relative humidity, solar radiation, and wind speed with the same measurement interval were obtained from the official weather station at a distance from the measured objects of approximately 800 m.
The total dust mass concentration was measured by the special exact laser-photometer instrument Dust-Track™ II Aerosol Monitor 8530 produced by TSI in the USA, 500 Cardigan Road Shoreview, MN, 55126. Zero calibration was used before every use. PM1, PM2.5, PM4, and PM10 impactors were used to measure segregated mass fractions of airborne dust. For this measurement, 90 airborne dust concentration data points were collected for the total airborne dust concentration TDS as well as for each PM size fraction of dust in each measured building. The measurement frequency was 2 s.
The Dust-Track™ II device was always placed in a representative location of the investigated stable at a height of 0.6 m above the floor. Temperatures and relative humidity of air during the dust measurement were measured by the Almemo 2690 instrument and the FHA 646 sensor with registration at intervals of 1 min. During the measurement in the indoor riding arena, the surface temperature of the floor was also measured with the contactless Amir 7811-20 device, and the surface moisture of the floor was measured with the touch moisture capacitive sensor FHA 696-MF. Points of measurement were evenly distributed on the floor.
The short-term measurements were mainly focused on determining the concentration of airborne dust in the air, and at the same time, the temperature and relative humidity of the air were measured, as well as the temperature and humidity of the floor in the case of the indoor riding arena. During these measurements, the internal conditions in the stable were calm, no significant work activities such as the handling of feed or litter or animal care were performed. In the riding arena, the measurements were taken without the presence of horses at first when it was quiet inside. The floor surface in the riding arena was moistened; this measure attempted to reduce the dustiness of the surface. Other measurements in the riding arena were recorded during training when riding (galloping) 3 horses with riders, as organized by the trainer.
A summary of the measuring devices and sensors used in this research is presented in Table 2.
The measurements took place in several stages. Local short-term measurements of airborne dust concentration and the thermal state of the environment in the stable and in the arena were recorded at the beginning of winter (December). The long-term measurement was recorded in the stable and in the arena during the coldest period (January).
Operation in the stable is different during weekdays when students are taught, and on weekends, when there is no teaching. One typical working day (Tuesday) and one typical weekend day (Saturday) were selected to analyze the connections between operational and microclimatic conditions in the stable on the coldest days of the measured period. For these days, some basic ventilation parameters were calculated based on the measured values. The basic calculation relationships are given in the following equations.
For the evaluation, according to [51,52,66], the following boundary conditions for the winter season were considered: the lowest temperature of the optimal air temperature zone tio = 10 °C, the lowest permissible air temperature timin = 5 °C, the highest relative air humidity of the optimal zone relative humidity RHio = 75%, the highest permissible relative humidity RHimax = 85%, the upper limit of the optimal range of CO2 concentration in a stable for horses Kuio = 2500 ppm, and the maximum permissible concentration of CO2 in a stable for horses Kuimax = 3500 ppm.
When evaluating visual comfort and light conditions in the interior, the quantitative criterion of the luminous state of the environment is the value of the daylight factor ei (%), which is calculated according to Equation (1).
e i = E i E e · 100
where ei—daylight factor, %; Ei—illuminance in the interior, lx; and Ee—illuminance in the exterior, lx.
During the measurement, the measuring devices were placed in a comparison plane of 0.85 m, and the internal and external values were measured under a uniformly cloudy sky.
The acquired datasets were processed using MS Excel Microsoft® Excel® 2019 MSO (Version 2402 Build 16.0.17328.20346), and some of the results (assessing whether differences between evaluated datasets are significant or not) were verified by the statistical software TIBCO SW Data Science Workbench Statistica Version 6 (ANOVA and Tukey’s HSD (Honestly Significant Difference) test). The data used to create charts were processed in MS Excel.

3. Results

The results of measuring the internal conditions in the investigated objects are divided into several parts, mainly according to the measured environmental parameters and the time of measurement in the studied objects.

3.1. Long-Term Registration Measurement of the Basic Parameters of the Indoor Environment

Long-term registration measurement of the basic parameters of the indoor environment in the barn includes thermal–humidity conditions (temperature and relative humidity), CO2 concentration, noise, and lighting conditions for a period of 15 days. In the indoor riding arena, temperature and air humidity were only measured with data registration for the same 15-day period.

3.1.1. Measurement Results of the Indoor Environment in the Stable

The results of the recorded measurements are summarized in Table 3. The average outdoor air temperature was −4.80 ± 1.5 °C with an average relative humidity of 85.2 ± 7.2% and an average wind speed of 2.5 ± 1.7 m·s−1. The temperature inside the stable was 7.2 ± 1.7 °C with an average relative humidity of 73.5 ± 5.9% and an average indoor CO2 concentration of 1882.5 ± 929.5 ppm. The indoor sound pressure level LpA was 49.1 ± 8.8 dB.

3.1.2. Analysis of the Indoor Environment in the Stable during a Working Day

The measurement results from a selected typical working day of the cold winter period are summarized in Table 4 and also shown in Figure 5, Figure 6 and Figure 7. When analyzing the measurement results, the influence of operational activities related to the coldest period of the year must be considered at the same time (see Table 1). The ventilation functions of the stable are adapted to these conditions and the cold external conditions.
The average outdoor temperature on this weekday was −7.02 ± 0.7 °C, and the wind speed was relatively low, averaging 1.1 m·s−1. Figure 5 shows the course of the outside air temperature te, the temperature inside the stable ti, the minimum permissible air temperature timin = 5 °C, and the lower limit of the optimal air temperature for horses tio = 10 °C, according to [66].
It can be seen in Figure 5 that the indoor air temperature did not drop below 5°C when the horses were in the stable, especially during nighttime sleep and rest. During the day, when the horses go to the paddock and the stable staff clean up in the stable, because of more intensive ventilation and more open windows and doors, the temperature drops to even below 5 °C. After the horses return to the stable, the air temperature rises again and is maintained throughout the night in the range of 6 to 7 °C.
Figure 6 shows the course of outdoor RHe and indoor air humidity RHi during this winter workday. The figure also shows the highest permissible relative air humidity RHimax = 85% and the upper limit of the optimal winter air humidity RHio = 75%, according to [66]. For most of the time when the horses were in the stable, the relative humidity exceeded the upper limit of the optimum of 75% but did not exceed the permissible limit of 85%. During more intensive ventilation when the stable was cleaned and the horses were in the paddock, the humidity dropped below 75%.
The average CO2 concentration was 1739.2 ± 774.8 ppm. An overview of the CO2 concentration inside the stable during one typical winter working day, the highest permissible limit Kuimax = 3500 ppm, and the highest limit of the optimal CO2 concentration in the stable Kuio = 2500 ppm are shown in Figure 7.
In Figure 7, it can be seen that during the night, when the horses were in the stable, the CO2 concentration was just below the 2500 ppm limit and occasionally slightly exceeded this limit. With more intensive ventilation in the morning and especially after opening the gate when the horses left for the paddock, the CO2 concentration decreased and gradually increased again after the arrival of the horses.

3.1.3. Analysis of the Indoor Environment in the Stable during a Non-Working Day

The measurement results from a selected typical non-working day of the cold winter period are summarized in Table 5 and shown in Figure 8, Figure 9 and Figure 10. When analyzing the measurement results, the influence of operational activities related to the coldest period of the year must be considered at the same time (see Table 1 for the daily program for a working day in winter). The ventilation functions of the stable, etc., are adapted to these conditions and the cold external conditions.
The average outdoor temperature on this non-working day was −6.44 ± 0.4 °C. The outside temperature was lower than −5 °C for the whole day, which, together with a higher wind speed averaging 2.7 m/s−1, affected the ventilation control of the stable and the internal environment.
To reduce the heat losses of the stable, ventilation was limited by closing the ventilation openings (windows, doors) more tightly, especially when the horses were inside the stable. The stable staff therefore limited the ventilation as a precaution so that the influence of stronger winds did not arise, thus allowing the average temperature of the indoor air to be slightly higher than during the working day.
In the course of the indoor air temperature in Figure 8, it is evident that the indoor temperature dropped below 5 °C only briefly when the horses were in the paddock. Since it was a non-working day, there was no teaching, and also the activities of the Equestrian club were minimal, so the stay of the horses outside the stable in the paddock was shorter than during working days.
It can be seen in Figure 9 that during the night, because of the limited ventilation, the relative humidity in the stable was higher. For most of the time when the horses were in the stable, the relative humidity exceeded the upper limit of the optimum of 75%, but it did not exceed the permissible limit of 85% and was 76.0 ± 5.3% on average for the whole day.
Similarly, limited ventilation also affected the CO2 concentration. The stable was better and more tightly closed most of the day, so the average concentration of CO2 = 2317.1 ± 931.7 ppm was high, even though it was windy. During the time that the horses were in the paddock outside the stable, there were a few more leaks and more ventilation, and the CO2 inside the stable dropped quickly (Figure 10). The larger open areas of the vents allowed for more intensive ventilation due to wind and the difference between indoor and outdoor air temperatures. After the return of the horses back to the stable, the CO2 concentration increased rapidly again and practically exceeded the limit value of 2500 ppm for almost the entire time the horses were in the stable.

3.1.4. Measurement Results of the Indoor Environment in the Indoor Riding Arena

The results of the recorded measurement in the indoor riding arena are in Table 6. The results of the registration measurement show that during the entire measurement period, the average temperature inside the arena was very low (ti = −2.3 ± 1.0 °C), which was the same as the dew point temperature (tD = −2.3 ± 0.8 °C), which caused condensation of water vapor on the inner surface of the arena shell with high relative humidity of the indoor air.

3.2. Measurement of Airborne Dust Concentration

The average temperatures and relative humidity of the outdoor air at the time of airborne dust measurement are summarized in Table 7. The average temperatures of the outdoor air were 1.5 ± 0.1 °C, and the average relative humidity ranged from 85.1 ± 0.2% to 86.9 ± 0.1%.
Table 7 also shows the corresponding temperatures and relative humidity of the indoor air in the buildings at the time of airborne dust measurement. In the stable, the average indoor air temperature was 8.0 ± 0.3 °C and the average relative humidity was 67.8 ± 1.8%. In the empty riding arena, the average indoor air temperature was 3.1 ± 0.4 °C and the average relative humidity was 90.6 ± 3.2%. In the riding arena during a training ride with 3 horses, the average indoor air temperature was 2.4 °C and the average relative humidity was 99.5 ± 3.2%.
During the measurement of the airborne dust concentration, the surface temperature of the floor and the surface moisture of the floor were measured in 10 representative locations of the riding arena. The average measured values are in Table 8.
Table 9 shows a summary of the measurement results of the total dust mass concentration TDC (μg·m−3) and concentrations of fractions (μg·m−3) PM10, PM4, PM2.5, and PM1 in the stable, in the arena without horses, and in the arena with horses.
The measurement results of TDC and concentrations of fractions (μg·m−3) PM10, PM4, PM2.5, and PM1 show that the dust concentration in the stable was, in all cases, significantly higher than in the riding arena.
The effect of the active movement of horses in the riding arena during training was manifested by a higher concentration of dust fractions PM10, PM4, and PM2.5. The dustiness of the smallest fraction, PM1, on the other hand, was smaller during horse riding, and in terms of TDC, no difference was found between an empty riding arena and a riding arena during training.
The share of individual fractions of airborne dust particles in the air in individual buildings was rather variable. The share of the size distribution of airborne dust particle fractions PM ˂ 1 μm, 1 μm ≤ PM ˂ 2.5 μm, 2.5 μm ≤ PM ˂ 4 μm, 4 μm ≤ PM ˂ 10 μm, and 10 μm ≤ PM as a percentage of the total dust mass concentration in the examined barns is shown in Figure 11.

3.3. Measurement of the Noise Level of the Indoor Environment in the Stable

Longer-term registration measurements of the basic parameters of the indoor environment in the stable also include noise. The average noise level measured and expressed as sound pressure level LpA (dB) for the entire measured time is shown in Table 10. In the following section, an analysis of operational influences affecting noise during the working day and non-working day in the examined periods is provided.
The results of the recorded noise measurement during the working day are summarized in Table 10 and the course over 24 h is shown in the graph in Figure 12. The stable is in a quiet place that is far from the road and car traffic; therefore, the noise data show a favorable situation during the entire working day, with an average value of the sound pressure level of LpA = 48.2 ± 8.8 dB. There was no significant increase in noise even during teaching or other activities. When cleaning the stable, the noise increased slightly (LpA = 57.9 ± 5.5 dB), and the departure of the horses to the outdoor paddock and their return caused a short-term increase in noise (LpA = 58.0 ± 4.1 dB). Random sounds caused an occasional increase in noise (perhaps caused by an overflying aircraft), but these sounds never exceeded LpA = 70 dB.
The results of the recorded noise measurement during the non-working day are summarized in Table 11, and the course over 24 h is shown in the graph in Figure 13. The operating conditions during the studied non-working day in the winter period did not differ much from the working day, except that on the non-working day, there were no regular classes and the activities of the Equestrian club were minimal. The quietest period was the period of night rest and sleep of the horses (LpA = 44.4 ± 5.3 dB). The noisiest was the movement of horses to the paddock and the arrival of horses back (LpA = 60.7 ± 4.7 dB) as well as cleaning (LpA = 59.0 ± 10.2 dB). During cleaning, the sound pressure level exceeded the value of 70 dB several times and reached LpA = 77.1 dB. This was probably caused by noise that accidentally penetrated inside through the open door or noise caused by work activities.

3.4. Measurement of Light Conditions inside the Stable

The long-term measurements of light conditions in the stable were evaluated according to several criteria. First, the results of the long-term measurement from the installed sensor are summarized in Table 12.
When assessing light conditions during the day, the conditions for the entire measured period including 24 h during each full day are taken into account, but the proportion of the day affected by daylight, depending on the season, was also assessed separately. The winter period is characterized by a smaller number of daylight hours, and, therefore, the proportion of hours with artificial light is also higher. The results of the analysis of the course of lighting for one working day and one non-working day from each period are presented in Figure 14 and Figure 15, in addition to the results of the lighting measurements and the intensity of solar radiation, taken from the meteorological station.

3.4.1. Results of the Light Condition Measurements inside the Stable during One-Day Measurement

Table 13 shows the results of light condition measurements in the stable during one working day (Figure 14) and one non-working day (Figure 15).
It is clear from Figure 14 and Figure 15 that during the working day (Figure 14), the solar radiation was more intense than during the non-working day (Figure 15); therefore, less intense artificial lighting was used, and during the day, the lighting intensity was less intense but lasted longer. During the non-working day, there was less sunlight, so more intense artificial lighting was used, but it was used for a shorter period of time because there was less operational activity in the stable.

3.4.2. Results of the Daylight Factor Measurements

The short-term measurements were mainly focused on determining the daylight factor inside the stable. Daytime illuminance was measured separately in the entrance hall (EH), central corridor (CC), and the individual boxes (in the following text, “boxes” mean individual boxes) on the south (SB) and north side (NB) of the stable. At the same time, the outdoor lighting was detected during the measurement. Table 14 shows the calculated values of the daylight factor in the measured parts of the stable. Daylight factors were statistically evaluated in terms of the difference between the north and south boxes and between the boxes with windows (BWWs) and boxes without windows (WLBs).
In Table 14, the calculated values of the daylight factors based on the measurements show that there are some differences between the boxes in the stable in daylight conditions. The largest daylight factor ei = 0.835 ± 0.309 was found in the entrance corridor, which is favorable from the point of view of the movement of people and horses. However, both people and horses are in this space only briefly, for example, when moving horses to and from the stable and when people are cleaning, handling feed, handling bedding, etc.
The statistical comparison shows that the difference between the southern boxes (SBs) and northern boxes (NBs) was not significant. However, there was a significant difference between boxes with windows (BWWs) and boxes without windows (WLBs), in which the daily factor was only 0.313. This difference is mainly due to the uneven distribution of windows in the walls, where some boxes had insufficient daylight.

4. Discussion

The outdoor climate has a significant influence in determining the indoor environment of horse stables [15,16]. When comparing the measured indoor air temperatures in the stable and values from previous research, it can be stated that in Central European conditions, the outdoor winter temperature did not reach values well below zero, which are reported, for example, in Nordic countries [3,4,5,6,7]. Also, the influence of extreme air conditions in combination with low temperatures and high humidity did not negatively affect the investigated stable [7,8]. The long-term measurement results of the thermal and humid microclimate showed that in winter at low temperatures, the thermal–technical properties of the brick structure of the modernized horse stable allow it to maintain the required temperature of above 5 °C, following the recommendation according to [17,50,66], and above 6 °C, according to [51]. However, a drop below the optimal temperature of 10 °C occasionally occurred.
The internal relative humidity of no more than 75%, as recommended by [51], was observed on average (average Rhi = 72.9 ± 6.7%). However, in the period of lowest temperatures, there was an increase in relative humidity even above 80%, which is the maximum permissible value according to [51]. The winter calculated value of 85%, according to [66], was not exceeded, but the measured values exceed the recommended optimal range of 50 to 75%. Sufficient bedding had a positive effect on the humidity parameters in the barn, which is in accordance with the results in [46,49,50].
The regular movement of horses [31,32,33] in an outdoor paddock in good weather [17,18] or in a covered indoor arena in bad weather [14,15,16,17,18] has a positive effect on the health of horses. High indoor humidity in the riding arena at the lowest outside air temperature is problematic because the air temperature drops below the dew point temperature and water vapor condenses and runs off the walls, which is also pointed out by [51]. A very frequent problem in riding arenas is a high concentration of airborne dust, which, together with insufficient lighting and unsuitable air temperature, worsens indoor conditions [14,15,16].
A prerequisite for good conditions in terms of the quality of the indoor environment is a sufficient volume of housing space. The recommended value is at least 25 m3 per horse according to [52]. In the case of 12 horses in this researched stable, the volume per horse is 63.75 m3, which is good from the point of view of the basic parameters of the stable.
Modernization of the ventilation system, which should be controlled automatically according to air temperature, humidity, and CO2 concentration, would help to improve the thermal and humid microclimate. It is difficult to maintain the required highest CO2 concentration even at low temperatures in the investigated stable because the staff strives to minimize heat loss through ventilation, as shown by the calculations supplementing measurements for one working day and one non-working day. Ventilation regulation is insufficient, and exceeding the CO2 concentration limit value of 2500 ppm, according to [66], in the stable worsens the air quality in the stable, especially at night. The influence of the wind is quite significant on the intensity of ventilation. The operator prevents excessive cooling of the stable by limiting the ventilation, which leads to the opposite effect, where the quality of the indoor environment deteriorates in terms of a higher CO2 concentration.
To evaluate the average airborne dust concentrations listed in Table 9, the measured values must be compared with the limit values required by the corresponding regulations.
The respirable fraction is taken in the event of airborne dust with a predominantly fibrogenic effect. The sources of airborne dust in stables are primarily horses, feed, and bedding; therefore, airborne dust in these buildings is primarily organic, which does not pose a risk of fibrogenic effects. Occupational exposure limits (OELs) are regulatory values (concentration limits) that indicate the levels of exposure that are considered to be safe (health-based) for a hazardous contaminant in the air of a workplace.
This type of airborne dust has only irritating effects (particles of horse skin, coat, hair, feed, straw, and sawdust). OELs that are important for animal houses include animal dust [67]; for example, feathers at 4 mg·m−3, wool, fur, and other animal dust at 6 mg·m−3, and straw and cereals at 6 mg·m−3.
The measured airborne dust inside this type of building is not aggressive; therefore, as a criterion for comparative evaluation of the measured values, it could be interesting to use the limit level of outdoor airborne dust.
The average TDC and PM10, PM4, PM2.5, and PM1 fraction values measured in the stable and in both cases of measurement in the riding arena were rather high, but in neither case was the value of 6 mg·m−3 given in [67] exceeded.
According to the Air Protection Act No. 201/2012 [68], the PM10 limit value in 24 h is 50 µg·m−3, the 1-year limit value is 40 µg·m−3, and the 1-year limit value PM2.5 is 25 µg·m−3.
The measured values of PM10 = 231.94 μg·m−3 show a very high concentration of dust particles. When compared with the conditions prescribed for outdoor dust concentration [68], where the maximum limit of PM10 = 50 μg·m−3 applies, a big difference is evident.
Previous research on determining the conditions in horse stables in terms of airborne dust concentration has focused on various effects of stables and technological operations. A significant reduction in the concentration of respirable dust particles (a reduction on average from 86.7 μg·m−3 to 26.0 μg·m−3) was achieved by changing the bedding from straw to wood shavings, using haylage instead of hay and straw as feed, and treating the hay with moistening [69,70]. Attempts to reduce dust by replacing straw with wood shavings (reduction of average PM10 concentration by 38.07%) and straw pellets by 51.12% came to similar conclusions [71]. The review article [72] reached similar conclusions from a general view of this issue.
The measurement of PM fractions in one study [73] showed that the concentration of bacterial aerosol inside stables was many times higher than outside. In the stables before bedding, the average concentration of PM10 was from 117 to 177 µg·m−3, PM4 was from 115 to 155 µg·m−3, PM2.5 was from 117 to 143 µg·m−3, and PM1 was from 107 to 135 µg·m−3. Analysis of the fractions showed the highest share of the ultrafine fraction (0.65–2.1 μm) and the respirable fraction (below 4.7 μm) exceeded 75%. By handling the bedding, the concentration of airborne dust fractions increased significantly. The measured values roughly corresponded to the results measured in this research in the stable and in the riding arena, as summarized in Table 9.
Research on the amount of dust particles in the air smaller than 5.0 μm is important [74]. In the indoor riding arenas in this research, the largest amount of these dust particles was measured in the winter period. Wetting the surface in the summer months had a positive effect on dust reduction.
Experiments [75] have shown that a surface in a riding arena made of a sand–fiber mixture releases more dust particles into the air than a sand–wood chip mixture. The moisture content, density, and proportion of fibrous material had a significant effect on the release of dust particles, and the separation of additives from the fibrous material could lead to a higher release of dust particles. Regular and adequate watering of the floor surface in the riding arena is necessary to reduce dust.
The moisture of the wet surface of the floor reached 98% at a surface temperature of 2.4 ± 0.4 °C (Table 8) during the airborne dust measurement in the riding arena. According to the results shown in Table 9, the dust concentration in the riding hall was quite high in the winter, even though the surface was moistened. The movement of animals increased the concentration of dust fractions PM10, PM4, and PM2.5, although TDC was insignificantly lower than in the empty riding arena. The concentration of the smallest PM1 particles was significantly lower during riding than in the empty riding arena.
The share of individual fractions of airborne dust particles in the air in individual buildings is rather variable.
The percentage share of size fractions in Figure 11 shows a very high share of the smallest PM1 fractions, which make up 42% of TDC in the stable and 61% in the riding arena. The share of small particles 1 μm ≤ PM < 2.5 μm is also significant in the riding arena, accounting for 14% in an empty riding arena and 17% in a riding arena with active horse movement; in the stable, it was only 10%.
On the contrary, in the stable, 24% of the largest airborne dust particles were PM ≥ 10 μm, and the remaining 24% consisted of airborne dust particles from 2.5 μm to 10 μm. In the empty stable, 16% of the largest airborne dust particles were ≥ 10 μm, and only 7% when the horses were moving. This small proportion of the largest particles can be explained by the high air humidity and, above all, by the high surface humidity of the floor surface.
The noise measurement showed that the stable is located in a part of the village that is not burdened by excessive noise; the average sound pressure level LpAi = 49.1 ± 8.8 dB for the measured period supports this result. The randomly recorded single higher values of LpAi = 77.1 dB were probably caused by the sudden movement of the stabled animals, work activities while cleaning the stable, the passage of a transport plane to a not-too-distant airport, or the penetration of noise through open windows and doors. The maximum prescribed noise values of 85 dB [61,62] were never exceeded.
From the horse health point of view, it is recommended to pay attention to the lighting conditions in the stable [17,24,25,26,31,76,77]. Practical empirical values, e.g., window dimensions [50,51,52,57], are recommended for lighting horse stables, but they do not include other operational influences. For example, in the examined stable, the window-to-floor ratio is = 0.0286, which should be 0.0667 according to [52]. Therefore, according to this criterion, the area of the windows does not meet the recommended values.
The indoor and outdoor lighting measurements and the calculated daylight factor showed that the size and distribution of windows in the boxes are not uniform (average ei values from 0.313 ± 0.154 to 0.835 ± 0.309) and are insufficient (eimin = 0.161). Considering that this is a modernized and rebuilt stable, we recommend replacing the original windows with new windows in the case of further reconstruction and modernization. This would ensure better daylight in all horse boxes.
The recorded values of the lighting intensity showed that the average illuminance fluctuates because of the short winter period and the use of combined lighting, or artificial lighting, which is switched on by the workers in the stable as needed. During the working day when Ei ≠ 0, the average illuminance was Ei = 148 lx, and on the non-working day, it was 98 lx. Considerable fluctuations in lighting intensity were caused by switching on artificial lighting so that the maximum illuminance values reached Ei = 183 lx on the working day and Ei = 234 lx on the non-working day.

5. Conclusions

This study provided some insight into the most significant effects of winter on the indoor environment in the operating conditions of an older horse stable. In the climatic conditions of Central Europe, attention must be paid to two basic seasons that tend to be critical for stabled animals. These include the summer season, when animals can suffer heat stress from high temperatures, and the winter season, when temperatures drop below freezing, which can affect the health of the animals through colds and related health problems. Horse breeding and riding is an increasingly popular and widespread sport, hobby, and study activity. For this purpose, various types of buildings are used, which are being modernized. During modernization, attention must be paid to some basic factors that affect the quality of housing and the living conditions of horses.
The researched stable is situated in a favorable and quiet part of a small village, protected from major weather fluctuations and excessive city noise and traffic; it is within reach of the university and not too far from the capital. The results of this study showed that the older brick building, used as a stable for horses after reconstruction and modernization, has good heat accumulation manifested by good temperature stability inside the stable when the outside air temperatures drop below the freezing point.
The interior arrangement of the stable, with two rows of spacious individual boxes covered with quality bedding every day, contributes to ensuring favorable stable conditions for the horses. The internal equipment for feeding, watering, and nursing care of the horses is in accordance with the requirements and principles of animal welfare. However, this research showed that more attention should be paid to the issue of barn ventilation. At low outdoor air temperatures, higher relative air humidity, higher CO2 concentration, and high dust levels were detected, which can harm stabled horses. Modernization of the ventilation equipment with automatic regulation and suitable sensors would contribute to improving housing conditions. When modernizing an older building, more attention should also be focused on the size and location of windows. The small size of the windows and their uneven distribution caused insufficient daylight in some boxes.
Regular movement has a positive effect on the health and well-being of the horses, which, following the farm’s daily operating schedule, occurs either in a spacious outdoor paddock or, in bad weather, in a coveredindoor arena. Our measurements showed that the temperatures in the riding arena are approximately as low as the outside air. The indoor environment in the riding arena is worsened by high relative humidity, in addition to high airborne dust.

Author Contributions

Conceptualization, P.K., M.W. and L.S.; methodology, P.K., M.W. and L.S.; software, P.K., M.W. and L.S.; validation, P.K., M.W. and L.S.; formal analysis, P.K., M.W. and L.S.; investigation, P.K., M.W. and L.S.; resources, P.K., M.W. and L.S.; data curation, P.K., M.W. and L.S.; writing—original draft preparation, P.K., M.W. and L.S.; writing—review and editing, P.K., M.W. and L.S.; visualization, P.K., M.W. and L.S.; supervision, P.K., M.W. and L.S.; project administration, P.K., M.W. and L.S.; funding acquisition, P.K., M.W. and L.S. All authors have read and agreed to the published version of the manuscript.

Funding

This research received no external funding.

Institutional Review Board Statement

Not applicable.

Data Availability Statement

The horse handlers and riders gave consent for their raw data to be used by the researcher only. Any queries involving the processing of these data can be directed to the corresponding author.

Acknowledgments

The authors would like to thank the stable staff and the members of the Equestrian club for their help in taking all the measurements.

Conflicts of Interest

The authors declare no conflicts of interest.

References

  1. Petr, J. Jak Zdomácněl Kůň (How the Horse Was Domesticated). Available online: https://naschov.cz/jak-zdomacnel-kun/ (accessed on 19 October 2023). (In Czech).
  2. Grigoriev, S. Horse and Chariot. Critical Reflections on one Theory. Archaeol. Austriaca 2023, 107, 159–190. [Google Scholar] [CrossRef]
  3. Cymbaluk, N.F. Thermoregulation of horses in cold, winter weather: A review. Livest. Prod. Sci. 1994, 40, 65–71. [Google Scholar] [CrossRef]
  4. Langlois, B. Inter-breed variation in the horse with regard to cold adaptation: A review. Livest. Prod. Sci. 1994, 40, 1–7. [Google Scholar] [CrossRef]
  5. Arnason, T.; Jensen, P.; Klemetsdal, G.; Ojala, M.; Philipsson, J. Experience from application of animal breeding theory in Nordic horse breeding. Livest. Prod. Sci. 1994, 40, 9–19. [Google Scholar] [CrossRef]
  6. Hugason, K. Breeding of Icelandic toelter horses: An overview. Livest. Prod. Sci. 1994, 40, 21–29. [Google Scholar] [CrossRef]
  7. Gudmundsson, O.; Dyrmundsson, O.R. Horse grazing under cold and wet conditions: A review. Livest. Prod. Sci. 1994, 40, 57–63. [Google Scholar] [CrossRef]
  8. Lindholm, A. Health aspects of horse production including training with special reference to Nordic conditions. Livest. Prod. Sci. 1994, 40, 73–76. [Google Scholar] [CrossRef]
  9. Orbidane, L.; Jonkus, D. The quality of Latvian warmblood broodmares and their progeny depending on type and origin. In Proceedings of the 20th Annual International Scientific Conference on Research for Rural Development, Jelgava, Latvia, 21–23 May 2014; University of Agriculture: Jelgava, Latvia, 2014; pp. 107–113. [Google Scholar]
  10. Topczewska, J.; Krupa, W. Effect of some factors on championship results and performance in Hucul horses. Ann. Anim. Sci. 2018, 18, 209–224. [Google Scholar] [CrossRef]
  11. Kerekes, V.; Ozogány, O.; Sándor, I.; Vegvari, Z.; Czető, C.; Nyírő, B.; Szabados, T.; Széles, L.; Barta, Z. Analysis of habitat use, activity, and body condition scores of Przewalski´s horses in Hortobagy national park, Hungary. Nat. Conserv. Res. 2019, 4 (Suppl. S2), 31–40. [Google Scholar] [CrossRef]
  12. Stefánsdóttir, G.J.; Jansson, A.; Ragnarsson, S.; Gunnarsson, V. Speed of gaits in Icelandic horses and relationships to sex, age, conformation measurements and subjective judges’ scores. Comp. Exerc. Physiol. 2021, 17, 151–160. [Google Scholar] [CrossRef]
  13. Štohlová Putnová, L.; Štohl, R. The assignment success for 22 horse breeds registered in the Czech Republic: The machine learning perspective. Czech J. Anim. Sci. 2021, 66, 1–12. [Google Scholar] [CrossRef]
  14. McGill, S.; Hayes, M.; Tumlin, K.; Coleman, R. Characterization of indoor arenas through an anonymous survey. Transl. Anim. Sci. 2021, 5, txab198. [Google Scholar] [CrossRef] [PubMed]
  15. Tumlin, K.; Liu, S.; Park, J.H. Framing future of work considerations through climate and built environment assessment of volunteer work practices in the United States equine assisted services. Int. J. Environ. Res. Public Health 2021, 18, 10385. [Google Scholar] [CrossRef] [PubMed]
  16. McGill, S.; Coleman, R.; Jackson, J.; Tumlin, K.; Stanton, V.; Hayes, M. Environmental spatial mapping within equine indoor arenas. Front. Anim. Sci. 2023, 4, 1083332. [Google Scholar] [CrossRef]
  17. Dai, F.; Dalla Costa, E.; Minero, M.; Briant, C. Does housing system affect horse welfare? The AWIN welfare assessment protocol applied to horses kept in an outdoor group-housing system: The ‘parcours’. Anim. Welf. 2023, 32, e22. [Google Scholar] [CrossRef] [PubMed]
  18. Minero, M.; Dalla Costa, E.; Dai, F.; Scholz, P.; Lebelt, D. AWIN 2015 AWIN Welfare Assessment Protocol for Horses; European Union: Milan, Italy, 2015. [Google Scholar] [CrossRef]
  19. Harewood, E.J.; McGowan, C.M. Behavioral and Physiological Responses to Stabling in Naive Horses. J. Equine Vet. Sci. 2005, 25, 164–170. [Google Scholar] [CrossRef]
  20. Alia, A.B.A.; El Sayed, M.A.; Matoock, M.Y.; Fouad, M.A.; Heleski, C.R. A welfare assessment scoring system for working equids—A method for identifying at risk populations and for monitoring progress of welfare enhancement strategies (trialed in Egypt). Appl. Anim. Behav. Sci. 2016, 176, 52–62. [Google Scholar] [CrossRef]
  21. Friend, T.H. Stress: What is it and how can it be quantified? Int. J. Stud. Anim. Prob. 1980, 1, 366–374. [Google Scholar]
  22. Seid, M.; Feki, E. Review on the effect of stress on animal productivity and response of animal to stressors. J. Anim. Vet. Adv. 2021, 1, 1–14. [Google Scholar]
  23. Manuja, B.K.; Manuja, A.; Aich, P. Stress and its impact on farm animals. Front. Biosci. 2012, E4, 1759–1767. [Google Scholar]
  24. Budzynska, M. Stress reactivity and coping in horse adaptation to environment. J. Equine Vet. Sci. 2014, 34, 935–941. [Google Scholar] [CrossRef]
  25. Ruet, A.; Biau, S.; Arnould, C.; Galloux, P.; Destrez, A.; Pycik, E.; Boichot, L.; Lansade, L. Horses could perceive riding differently depending on the way they express poor welfare in the stable. J. Equine Vet. Sci. 2020, 94, 103206. [Google Scholar] [CrossRef] [PubMed]
  26. Aurich, J.; Wulf, M.; Ille, N.; Erber, R.; von Lewinski, M.; Palme, R.; Aurich, C. Effects of season, age, sex, and housing on salivary cortisol concentrations in horses. Domest. Anim. Endocrinol. 2015, 52, 11–16. [Google Scholar] [CrossRef]
  27. Roberts, K.; Hemmings, A.J.; McBride, S.D.; Parker, M.O. Causal factors of oral versus locomotor stereotypy in the horse. J. Vet. Behav. 2017, 20, 37–43. [Google Scholar] [CrossRef]
  28. Popescu, S.; Diugan, E.A. The relationship between the welfare quality and stress index in working and breeding horses. Res. Vet. Sci. 2017, 115, 442–450. [Google Scholar] [CrossRef] [PubMed]
  29. Søndergaard, E.; Ladewig, J. Group housing exerts a positive effect on the behaviour of young horses during training. Appl. Anim. Behav. Sci. 2004, 87, 105–118. [Google Scholar] [CrossRef]
  30. Yarnell, K.; Hall, C.; Royle, C.; Walker, S.L. Domesticated horses differ in their behavioural and physiological responses to isolated and group housing. Physiol. Behav. 2015, 143, 51–57. [Google Scholar] [CrossRef]
  31. Loy, J.; Wills, L.; King, S.; Jenkins, K.; Ellis, K.; Randle, H. A preliminary study of the effects of the number of consecutive days of training and days off on foal recall. J. Vet. Behav. 2021, 46, 62–68. [Google Scholar] [CrossRef]
  32. Alonzo, L.M.; Riffo, R.R.; Laurie, M.C.; Leal, J.C.; Luengo, M.B. Locomotion patterns of stall walking in thoroughbred horses. Chil. J. Agric. Anim. Sci. Ex Agro-Cienc. 2019, 35, 245–250. [Google Scholar]
  33. Akyol, H.; Kocak, S. Morphological characteristics of pacing horses and examination of breeding conditions. Acta Vet. Eurasia 2019, 45, 91–95. [Google Scholar] [CrossRef]
  34. Rose-Meierhofer, S.; Klaer, S.; Ammon, C.; Brunsch, R.; Hoffmann, G. Activity behavior of horses housed in different open barn systems. J. Equine Vet. Sci. 2010, 30, 624–634. [Google Scholar] [CrossRef]
  35. Wendl, G.; Wagner, M.; Wendling, F.; Bock, S. Proper horse husbandry in open loose housing stables. In Proceedings of the 13th Conference of the International-Society-for-Livestock-Husbandry–Appropriate Housing Systems for Farm Animals: Newer Developments and Solutions 1997, FAT Tanikon, Switzerland, 23–25 October 1997; Bayer Landesanstalt Landtech: Freising, Germany, 1997; pp. 110–121. [Google Scholar]
  36. Pierard, M.; McGreevy, P.; Geers, R. Effect of density and relative aggressiveness on agonistic and affiliative interactions in a newly formed group of horses. J. Vet. Behav. 2019, 29, 61–69. [Google Scholar] [CrossRef]
  37. Suagee-Bedore, J.K.; Linden, D.R.; Bennett-Wimbush, K. Effect of pen size on stress responses of stall-housed horses receiving one hour of daily turnout. J. Equine Vet. Sci. 2021, 98, 103366. [Google Scholar] [CrossRef]
  38. Williams, C.A.; Kenny, L.B.; Weinert, J.R.; Sullivan, K.; Meyer, W.; Robson, M.G. Effects of 27 mo of rotational vs. continuous grazing on horse and pasture condition. Transl. Anim. Sci. 2020, 4, 1–17. [Google Scholar] [CrossRef]
  39. Gülden, A.; Büscher, W. The effect of a compressed air stimulus on blocking times in a concentrate feeding station for horses in group housing. Appl. Anim. Behav. Sci. 2017, 191, 39–48. [Google Scholar] [CrossRef]
  40. Hildebrandt, F.; Krieter, J.; Büttner, K.; Salau, J.; Czycholl, I. Distances walked by long established and newcomer horses in an open stable system in Northern Germany. J. Equine Vet. Sci. 2020, 95, 103282. [Google Scholar] [CrossRef] [PubMed]
  41. Salau, J.; Hildebrandt, F.; Czycholl, I.; Krieter, J. “HerdGPS-Preprocessor”—A Tool to Preprocess Herd Animal GPS Data; Applied to Evaluate Contact Structures in Loose-Housing Horses. Animals 2020, 10, 1932. [Google Scholar] [CrossRef] [PubMed]
  42. Hildebrandt, F.; Büttner, K.; Salau, J.; Krieter, J.; Czycholl, I. Proximity between horses in large groups in an open stable system—Analysis of spatial and temporal proximity definitions. Appl. Anim. Behav. Sci. 2021, 242, 105418. [Google Scholar] [CrossRef]
  43. Hildebrandt, F.; Büttner, K.; Salau, J.; Krieter, J.; Czycholl, I. Area and resource utilization of group-housed horses in an active stable. Animals 2021, 11, 2777. [Google Scholar] [CrossRef]
  44. Hildebrandt, F.; Büttner, K.; Krieter, J.; Czycholl, I. The behavior of horses stabled in a large group at essential resources (watering point and lying halls). J. Equine Vet. Sci. 2022, 118, 104106. [Google Scholar] [CrossRef]
  45. Da Costa, M.D.; Carvalho, C.C.S.; Ribas, W.F.G.; Gomes, V.M.; Dos Reis, A.F.; Sara Guedes De Paula, S.G.; Rocha Junior, V.R.; Gomes, R.R.R.; Monção, F.P. Behavior of horses kept in different types of stalls in the semiarid region of Minas Gerais, Brazil. J. Anim. Behav. Biometeorol. 2021, 9, 2139. [Google Scholar] [CrossRef]
  46. Hosseini, M.; Tardy, F.; Lee, B. Cooling and heating energy performance of a building with a variety of roof designs; the effects of future weather data in a cold climate. J. Build. Eng. 2018, 17, 107–114. [Google Scholar] [CrossRef]
  47. Angrecka, S.; Herbut, P.; Godyń, D.; Vieira, F.M.C.; Zwolenik, M. Dynamics of microclimate conditions in freestall barns during winter—A case study from Poland. J. Ecol. Eng. 2020, 21, 129–136. [Google Scholar] [CrossRef]
  48. Montillo, M.; Comin, A.; Corazzin, M.; Peric, T.; Faustini, M.; Veronesi, M.C.; Valentini, S.; Bustaffa, M.; Prandi, A. The effect of temperature, rainfall, and light conditions on hair cortisol concentrations in newborn foals. J. Equine Vet. Sci. 2014, 34, 774–778. [Google Scholar] [CrossRef]
  49. Chung, E.L.T.; Khairuddin, N.H.; Azizan, T.R.P.T.; Adamu, L. Sleeping patterns of horses in selected local horse stables in Malaysia. J. Vet. Behav. 2018, 26, 1–4. [Google Scholar] [CrossRef]
  50. Zakopal, J.; Kubícek, K.; Koprivová, M.; Kepková, K. Nĕkteré ukazatele mikroklimatu v nových a adaptovaných stájích sportovních koní (Various indices of microclimate in the newly built and re-adapted stables for race horses). Vet. Med. 1975, 20, 37–45. (In Czech) [Google Scholar]
  51. Mikroklima v Prostorech pro Koně. (Microclimate in Areas for Horses). Available online: https://www.agropress.cz/mikroklima-v-prostorech-pro-kone/ (accessed on 19 October 2023). (In Czech).
  52. Dosek, J.; Misar, D.; Muller, Z.; Navratil, J.; Rajman, J.; Tluchor, V.; Zlumov, P. Chov Koní (Horse-Breeding); Brázda, s.r.o.: Prague, Czech Republic, 2011; 400p, ISBN 978-80-209-0388-4. (In Czech) [Google Scholar]
  53. Thomas, S.J.; De Solis, C.N.; Coleman, M.C. Case-control study of risk factors for equine asthma in Texas. J. Equine Vet. Sci. 2021, 103, 103644. [Google Scholar] [CrossRef]
  54. Couetil, L.L.; Hoffman, A.M.; Hodgson, J.; Buechner-Maxwell, V.; Viel, L.; Wood, J.L.N.; Lavoie, J.P. Inflammatory Airway Disease of Horses. J. Vet. Intern. Med. 2007, 21, 356–361. [Google Scholar] [CrossRef]
  55. Auger, E.J.; Moore-Colyer, M.J.S. The effect of management regime on airborne respirable dust concentrations in two different types of horse stable design. J. Equine Vet. Sci. 2017, 51, 105–109. [Google Scholar] [CrossRef]
  56. Pirrone, F.; Albertini, M.; Clement, M.G.; Lafortuna, C.L. Respiratory mechanics in Standardbred horses with sub-clinical inflammatory airway disease and poor athletic performance. Vet. J. 2007, 173, 144–150. [Google Scholar] [CrossRef]
  57. Checchi, A.; Casazza, S. Safety in the housing of horses. J. Agric. Eng. 2013, 44, 750–751. [Google Scholar] [CrossRef]
  58. Heffner, R.S.; Heffner, H.E. Hearing in large mammals: Horses (Equus caballus) and cattle (Bos taurus). Behav. Neurosci. 1983, 97, 299–309. [Google Scholar] [CrossRef]
  59. Broucek, J. Effect of noise on performance, stress, and behaviour of animals. Slovak J. Anim. Sci. 2014, 47, 111–123. [Google Scholar]
  60. Stomp, M.; Leroux, M.; Cellier, M.; Henry, S.; Lemasson, A.; Hausberger, M. An unexpected acoustic indicator of positive emotions in horses. PLoS ONE 2018, 13, e0197898. [Google Scholar] [CrossRef] [PubMed]
  61. Adamczyk, K.; Górecka-Bruzda, A.; Nowicki, J.; Gumułka, M.; Molik, E.; Schwarz, T.; Earley, B.; Klocek, C. Perception of environment in farm animals—A review. Ann. Anim. Sci. 2015, 15, 565–589. [Google Scholar] [CrossRef]
  62. Council of the European Union: Council Directive 2008/120/EC of 18 December 2008 Laying down Minimum Standards for the Protection of Pigs. 18 December 2008. Available online: http://data.europa.eu/eli/dir/2008/120/oj (accessed on 12 June 2024).
  63. Olczak, K.; Penar, W.; Nowicki, J.; Magiera, A.; Klocek, C. The Role of Sound in Livestock Farming—Selected Aspects. Animals 2023, 13, 2307. [Google Scholar] [CrossRef]
  64. Ahlborn Přesná Německá Měřicí Technika (Ahlborn Precise German Measuring Technology). Available online: https://www.ahlborn.cz/ (accessed on 12 November 2023).
  65. COMET SYSTEM, s.r.o. Available online: https://www.cometsystem.cz/ (accessed on 12 November 2023).
  66. ČSN 730543-2; Vnitřní Prostředí Stájových Objektů. Část 2: Větrání a Vytápění. Internal Environment in Buildings for Animals. Part 2: Ventilation and Heating. Český Normalizační Institut: Prague, Czech Republic, 1997; 36p. (In Czech)
  67. Nařízení vlády č. 361/2007 Sb. Nařízení vlády, kterým se stanoví podmínky ochrany zdraví při práci. Aktuální znění 12.04.2024, Verze 18. (Government Regulation No. 361/2007 Coll. Government Regulation Establishing Conditions for Health Protection at Work. Current Wording 12/04/2024, Version 18). Available online: https://www.zakonyprolidi.cz/cs/2007-361 (accessed on 12 June 2024). (In Czech).
  68. Zákon č. 201/2012 Sb. Zákon o ochraně ovzduší. Aktuální znění 01.01.2024, Verze 18. (Act No. 201/2012 Coll. Air Protection Act. Current Version 01.01.2024, Version 18.). Available online: https://www.zakonyprolidi.cz/cs/2012-201 (accessed on 12 June 2024). (In Czech).
  69. Clements, J.M.; Pirie, R.S. Respirable dust concentrations in equine stables. Part 1: Validation of equipment and effect of various management systems. Res. Vet. Sci. 2007, 83, 256–262. [Google Scholar] [CrossRef]
  70. Clements, J.M.; Pirie, R.S. Respirable dust concentrations in equine stables. Part 2: The benefits of soaking hay and optimising the environment in a neighbouring stable. Res. Vet. Sci. 2007, 83, 263–268. [Google Scholar] [CrossRef]
  71. Fleming, K.; Hessel, E.F.; Van den Weghe, H.F.A. Generation of airborne particles from different bedding materials used for horse keeping. J. Equine Vet. Sci. 2008, 28, 408–418. [Google Scholar] [CrossRef]
  72. Claußen, G.; Hessel, E.F. Particulate matter in equestrian stables and riding arenas. J. Equine Vet. Sci. 2017, 55, 60–70. [Google Scholar] [CrossRef]
  73. Grzyb, J.; Podstawski, Z.; Bulski, K. Bacterial aerosol, particulate matter, and microclimatic parameters in the horse stables in Poland. Environ. Sci. Pollut. Res. 2022, 29, 26992–27006. [Google Scholar] [CrossRef] [PubMed]
  74. Lühe, T.; Mielenz, N.; Schulz, J.; Dreyer-Rendelsmann, C.; Kemper, N. Factors associated with dust dispersed in the air of indoor riding arenas. Equine Vet. J. 2017, 49, 73–78. [Google Scholar] [CrossRef] [PubMed]
  75. Claußen, G.; Grau, D.; Hessel, E.F. Determination of the moisture content and the generation of airborne particulate matter from various types of footing from indoor riding arenas considered to have optimal rideability. J. Equine Vet. Sci. 2019, 79, 113–120. [Google Scholar] [CrossRef] [PubMed]
  76. Ende, H.; Isenbügel, E.; Wilkens, H. Péče o Zdraví Koně (Horse Health Care); Brázda, s.r.o.: Prague, Czech Republic, 2006; 280p, ISBN 80-209-0340-2. (In Czech) [Google Scholar]
  77. Schmidt, R. Péče o Koně bez Chyb a Omylů. (Horse Care without Errors and Mistakes); Brázda, s.r.o.: Prague, Czech Republic, 2013; 160p, ISBN 978-80-209-0397-6. (In Czech) [Google Scholar]
Figure 1. The stable. (a) The stable floor plan. (b) The cross-section (space for stabling horses, without facilities for students). Agriculture 14 01287 i001—position of long-term measurement devices.
Figure 1. The stable. (a) The stable floor plan. (b) The cross-section (space for stabling horses, without facilities for students). Agriculture 14 01287 i001—position of long-term measurement devices.
Agriculture 14 01287 g001
Figure 2. The stable in winter. (a) The north side of the stable in the morning. (b) Thermogram of the main part of the north side of the stable with windows and doors.
Figure 2. The stable in winter. (a) The north side of the stable in the morning. (b) Thermogram of the main part of the north side of the stable with windows and doors.
Agriculture 14 01287 g002
Figure 3. The indoor riding arena: (a) side and (b) front views.
Figure 3. The indoor riding arena: (a) side and (b) front views.
Agriculture 14 01287 g003
Figure 4. Indoor riding arena for horses in winter. (a) Indoor riding arena in the evening in winter. (b) Riding lessons in the indoor riding arena. (c) Snow-covered indoor riding arena in winter.
Figure 4. Indoor riding arena for horses in winter. (a) Indoor riding arena in the evening in winter. (b) Riding lessons in the indoor riding arena. (c) Snow-covered indoor riding arena in winter.
Agriculture 14 01287 g004
Figure 5. The course of air temperature (°C) outside te and in the stable ti during a working day. te—outside air temperature, ti—air temperature in the stable, timin—minimum permissible air temperature, tio—lower limit of optimal air temperature for horses, time (hour:min:sec).
Figure 5. The course of air temperature (°C) outside te and in the stable ti during a working day. te—outside air temperature, ti—air temperature in the stable, timin—minimum permissible air temperature, tio—lower limit of optimal air temperature for horses, time (hour:min:sec).
Agriculture 14 01287 g005
Figure 6. Course of air relative humidity (%) outside and inside the stable during a working day. RHe—outdoor air humidity, RHi—indoor air humidity, RHio—optimal winter air humidity, RHimax—the highest permissible relative air humidity, time (hour:min:sec).
Figure 6. Course of air relative humidity (%) outside and inside the stable during a working day. RHe—outdoor air humidity, RHi—indoor air humidity, RHio—optimal winter air humidity, RHimax—the highest permissible relative air humidity, time (hour:min:sec).
Agriculture 14 01287 g006
Figure 7. Course of concentration CO2 (ppm) in the stable during a working day. CO2—concentration of CO2, Kuimax—the highest permissible limit of CO2 concentration, Kuio—the highest limit of the optimal CO2 concentration in the stable, time (hour:min:sec).
Figure 7. Course of concentration CO2 (ppm) in the stable during a working day. CO2—concentration of CO2, Kuimax—the highest permissible limit of CO2 concentration, Kuio—the highest limit of the optimal CO2 concentration in the stable, time (hour:min:sec).
Agriculture 14 01287 g007
Figure 8. The course of air temperature (°C) outside and inside the stable during a non-working day. te—outside air temperature, ti—air temperature in the stable, timin—minimum permissible air temperature, tio—lower limit of optimal air temperature for horses, time (hour:min:sec).
Figure 8. The course of air temperature (°C) outside and inside the stable during a non-working day. te—outside air temperature, ti—air temperature in the stable, timin—minimum permissible air temperature, tio—lower limit of optimal air temperature for horses, time (hour:min:sec).
Agriculture 14 01287 g008
Figure 9. The course of air relative humidity (%) outside and in the stable during a non-working day. RHe—outdoor air humidity, RHi—indoor air humidity, RHio—optimal winter air humidity, RHimax—the highest permissible relative air humidity, time (hour:min:sec).
Figure 9. The course of air relative humidity (%) outside and in the stable during a non-working day. RHe—outdoor air humidity, RHi—indoor air humidity, RHio—optimal winter air humidity, RHimax—the highest permissible relative air humidity, time (hour:min:sec).
Agriculture 14 01287 g009
Figure 10. The course of CO2 (ppm) concentration in the stable during a non-working day. CO2—concentration of CO2, Kuimax—the highest permissible limit of CO2 concentration, Kuio—the highest limit of the optimal CO2 concentration in the stable, time (hour:min:sec).
Figure 10. The course of CO2 (ppm) concentration in the stable during a non-working day. CO2—concentration of CO2, Kuimax—the highest permissible limit of CO2 concentration, Kuio—the highest limit of the optimal CO2 concentration in the stable, time (hour:min:sec).
Agriculture 14 01287 g010
Figure 11. The average concentrations of airborne dust particles (%) in both examined buildings: (a) stable; (b) empty arena without horses; and (c) arena with horses. The share of the size distribution of dust particle fractions PM inside the buildings in the range above 10 μm, from 4 μm to 10 μm, from 2.5 μm to 4 μm, from 1 μm to 2.5 μm, and smaller than 1 μm is shown as the percentage of the total dust mass concentrations.
Figure 11. The average concentrations of airborne dust particles (%) in both examined buildings: (a) stable; (b) empty arena without horses; and (c) arena with horses. The share of the size distribution of dust particle fractions PM inside the buildings in the range above 10 μm, from 4 μm to 10 μm, from 2.5 μm to 4 μm, from 1 μm to 2.5 μm, and smaller than 1 μm is shown as the percentage of the total dust mass concentrations.
Agriculture 14 01287 g011
Figure 12. The course of noise measurement in the stable during the working day. LpA—sound pressure level (dB), time (hour:min:sec).
Figure 12. The course of noise measurement in the stable during the working day. LpA—sound pressure level (dB), time (hour:min:sec).
Agriculture 14 01287 g012
Figure 13. The course of noise measurement in the stable during the non-working day. LpA—sound pressure level (dB), time (hour:min:sec).
Figure 13. The course of noise measurement in the stable during the non-working day. LpA—sound pressure level (dB), time (hour:min:sec).
Agriculture 14 01287 g013
Figure 14. The course of light inside the stable Ei (lx) and external solar radiation Ie (W·m−2) during the working day; time (hour:min:sec).
Figure 14. The course of light inside the stable Ei (lx) and external solar radiation Ie (W·m−2) during the working day; time (hour:min:sec).
Agriculture 14 01287 g014
Figure 15. Course of light inside the stable Ei (lx) and external solar radiation Ie (W·m−2) during the non-working day; time (hour:min:sec).
Figure 15. Course of light inside the stable Ei (lx) and external solar radiation Ie (W·m−2) during the non-working day; time (hour:min:sec).
Agriculture 14 01287 g015
Table 1. Daily program in winter—working day.
Table 1. Daily program in winter—working day.
ActivityTime [from–to]Duration [min]
Feeding (hay, oats)7:45–8:3045
Blanketing the horses8:30–9:0030
Taking the horses to paddocks9:00–9:3030
Box cleaning, bedding9:30–11:0090
Washing troughs and waterers11:15–11:3015
Dispensing oats into troughs11:30–12:0030
Returning the horses to the stable13:00–13:1515
Feeding the horses13:15–13:3015
Taking the horses to paddocks13:30–13:4515
Returning the horses to the stable15:45–16:0015
Equestrian club activities16:00–17:0060
Feeding (hay, oats)17:00–17:3030
Locking up, staff departure17:30–17:4515
Table 2. A summary of the measuring devices and sensors used in this research.
Table 2. A summary of the measuring devices and sensors used in this research.
InstrumentMeasured ParameterRangeSensitivityAccuracy
ZTH 65Air temperature−30 to +70 °C0.1 °C±0.4 °C
Air relative humidity5 to 95%0.1%±2.5%
Almemo 2590-9Data logger9 inputs for sensors--
Almemo 2690Data logger5 inputs for sensors--
FHA 646Air temperature−20 to +80 °C0.01±0.4 °C
Air relative humidity5 to 98%0.1%±2%
FYA 600CO20 to 0.5%0.001%±0.01%
FHA 696-MFMaterial surface moisture0 to 50%0.1%±1%
Amir 7811-20Surface temperature−32 to +400 °C0.1 °C±2 °C
BEHA Unitest 93411 DSound level30 to 135 dB0.1 dB±2 dB
FLA 613-VLIlluminance 0 to 26,000 lx1 lx5% of value
Dust-Track™ II Aerosol Monitor 8530Airborn dust concentrations0.001 to 150 mg·m−30.001 mg·m−3±0.1%
IR FlexCam Pro®Thermograms0 to 350 °C0.1 °C±2 °C or ± 2%
0 to 50%
Table 3. Measurement results of the external thermal–humidity environment of outdoor air (temperature te, °C; relative humidity Rhe, %), wind speed (we, m·s−1), and measured values of the indoor environment (temperature ti, °C; relative humidity RHi, %; concentration of CO2i, ppm; sound pressure level LpAi, dB) in the stable during 15 days of measurement.
Table 3. Measurement results of the external thermal–humidity environment of outdoor air (temperature te, °C; relative humidity Rhe, %), wind speed (we, m·s−1), and measured values of the indoor environment (temperature ti, °C; relative humidity RHi, %; concentration of CO2i, ppm; sound pressure level LpAi, dB) in the stable during 15 days of measurement.
te ± SDRHe ± SDwe ± SDti ± SDRHi ± SDCO2i ± SDLpAi ± SD
°C%m/s°C%ppmdB
−4.80 ± 1.585.2 ± 7.22.5 ± 1.77.2 ± 1.773.5 ± 5.91882.5 ± 929.549.1 ± 8.8
SD—standard deviation.
Table 4. Measurement results of the external thermal–humidity environment of outdoor air (temperature te, °C; relative humidity Rhe, %), wind speed (we, m·s−1), and measured values of the indoor environment (temperature ti, °C; relative humidity RHi, %; concentration of CO2i, ppm; sound pressure level LpAi, dB) in the stable during the working day.
Table 4. Measurement results of the external thermal–humidity environment of outdoor air (temperature te, °C; relative humidity Rhe, %), wind speed (we, m·s−1), and measured values of the indoor environment (temperature ti, °C; relative humidity RHi, %; concentration of CO2i, ppm; sound pressure level LpAi, dB) in the stable during the working day.
te ± SDRHe ± SDwe ± SDti ± SDRHi ± SDCO2i ± SDLpAi ± SD
°C%m/s°C%ppmdB
−7.02 ± 0.782.2 ± 4.81.1 ± 0.56.3 ± 1.272.9 ± 6.71739.2 ± 774.848.2 ± 8.8
SD—standard deviation.
Table 5. Measurement results of the external thermal–humidity environment of the outdoor air (temperature te, °C; relative humidity Rhe, %), wind speed (we, m·s−1), and measured values of the indoor environment (temperature ti, °C; relative humidity RHi, %; concentration of CO2i, ppm; sound pressure level LpAi, dB) in the stable during the non-working day.
Table 5. Measurement results of the external thermal–humidity environment of the outdoor air (temperature te, °C; relative humidity Rhe, %), wind speed (we, m·s−1), and measured values of the indoor environment (temperature ti, °C; relative humidity RHi, %; concentration of CO2i, ppm; sound pressure level LpAi, dB) in the stable during the non-working day.
te ± SDRHe ± SDwe ± SDti ± SDRHi ± SDCO2i ± SDLpAi ± SD
°C%m/s°C%ppmdB
−6.44 ± 0.483.2 ± 5.72.7 ± 0.96.9 ± 0.976.0 ± 5.32317.1 ± 931.748.5 ± 9.0
SD—standard deviation.
Table 6. Measurement results of the external thermal–humidity environment of outdoor air (temperature te, °C; relative humidity Rhe, %), and the measured values of the indoor environment (temperature ti, °C; relative humidity RHi, %; and dew point temperature tD, °C) in the indoor riding arena.
Table 6. Measurement results of the external thermal–humidity environment of outdoor air (temperature te, °C; relative humidity Rhe, %), and the measured values of the indoor environment (temperature ti, °C; relative humidity RHi, %; and dew point temperature tD, °C) in the indoor riding arena.
te ± SDRHe ± SDti ± SDRHi ± SDtD ± SD
°C%°C%°C
−4.80 ± 1.585.3 ± 7.1−2.3 ± 1.099.9 ± 1.9−2.3 ± 0.8
SD—standard deviation.
Table 7. Basic parameters of the outside air and inside the barn at the time of airborne dust measurement. Different superscript letters (a, b, c) indicate a highly significant difference (ANOVA; Tukey HSD test; p ≤ 0.01) among the measured values in the individual columns.
Table 7. Basic parameters of the outside air and inside the barn at the time of airborne dust measurement. Different superscript letters (a, b, c) indicate a highly significant difference (ANOVA; Tukey HSD test; p ≤ 0.01) among the measured values in the individual columns.
Measured Objectte °C ± SDRHe % ± SDti °C ± SDRHi % ± SD
Stable1.5 ± 0.185.1 ± 0.28.0 ± 0.3 a67.8 ± 1.8 a
Arena—empty1.5 ± 0.185.8 ± 0.33.1 ± 0.4 b90.6 ± 3.2 b
Arena—horses1.5 ± 0.186.9 ± 0.12.4 ± 0.0 c99.5 ± 0.1 c
SD—standard deviation.
Table 8. Surface temperature and moisture of the floor during the airborne dust measurement in the riding arena.
Table 8. Surface temperature and moisture of the floor during the airborne dust measurement in the riding arena.
Measured Objecttf °C ± SDMoisture % ± SD
Arena floor2.4 ± 0.498.0 ± 0
SD—standard deviation.
Table 9. Measurement results and statistical comparison of total dust mass concentration TDC (μg·m−3) and concentrations of fractions (μg·m−3) PM10, PM4, PM2.5, and PM1 in the stable, in the arena without horses, and in the arena with horses. Different superscript letters (a, b, c) indicate a highly significant difference (ANOVA; Tukey HSD test; p ≤ 0.01) between the measured values in the individual columns (SD—standard deviation).
Table 9. Measurement results and statistical comparison of total dust mass concentration TDC (μg·m−3) and concentrations of fractions (μg·m−3) PM10, PM4, PM2.5, and PM1 in the stable, in the arena without horses, and in the arena with horses. Different superscript letters (a, b, c) indicate a highly significant difference (ANOVA; Tukey HSD test; p ≤ 0.01) between the measured values in the individual columns (SD—standard deviation).
Measured ObjectTDC ± SDPM10 ± SDPM4 ± SD PM2.5 ± SDPM1 ± SD
Stable304.84 ± 51.46 a231.94 ± 19.13 a180.71 ± 9.05 a160.13 ± 6.28 a129.79 ± 2.07 a
Arena—empty139.54 ± 9.01 b117.03 ± 5.70 b108.13 ± 3.15 b103.97 ± 2.89 b84.30 ± 4.38 b
Arena—horses135.93 ± 13.23 b125.69 ± 4.69 c114.97 ± 9.12 c106.06 ± 1.69 c82.67 ± 3.27 c
Table 10. Results of noise measurement in the stable during the working day.
Table 10. Results of noise measurement in the stable during the working day.
Operational ActivityAverage LpA ± SDMinimum LpAMaximum LpA
-dBdBdB
Horses resting45.4 ± 6.936.162.8
Feeding41.8 ± 3.837.747.7
Blanketing horses44.0 ± 2.141.946.1
Moving horses to paddock and back58.0 ± 4.151.263.1
Cleaning the stable57.9 ± 5.550.167.6
Teaching students51.7 ± 7.144.658.6
Equestrian club47.7 ± 10.738.062.6
Closing the stable and staff departure60.1 ± 0.459.660.5
All day, 24 h48.2 ± 8.836.169.2
SD—standard deviation.
Table 11. Results of noise measurements in the stable during the non-working day.
Table 11. Results of noise measurements in the stable during the non-working day.
Operational ActivityAverage LpA ± SDMinimum LpAMaximum LpA
-dBdBdB
Horses resting44.4 ± 5.334.660.1
Feeding51.2 ± 12.035.864.2
Blanketing horses45.0 ± 1.243.946.2
Moving horses to paddock and back60.7 ± 4.754.967.3
Cleaning the stable59.0 ± 10.247.777.1
Closing the stable and staff departure50.8 ± 8.339.369.1
All day, 24 h48.5 ± 9.034.677.1
SD—standard deviation.
Table 12. Results of the average, minimum, and maximum lighting conditions during long-term measurement periods in the stable.
Table 12. Results of the average, minimum, and maximum lighting conditions during long-term measurement periods in the stable.
Measured PeriodDays Average Ei (lx)Minimum Ei (lx)Maximum Ei (lx)
January15660434
Table 13. Light condition measurement results in the stable during one working and one non-working day.
Table 13. Light condition measurement results in the stable during one working and one non-working day.
Analyzed DayAverage Ei
in 24 h
Minimum
Ei
Maximum
Ei
Time with
Ei = 0
Time with
Ei ≠ 0
Ei ± SD
in Time Ei ≠ 0
-lxlxlxhhlx
Working 58018314.59.5148 ± 43
Non-working14023420.53.598 ± 103 *
SD—standard deviation. * The unusual size of the SD is caused by short-term but significant changes in the illumination levels, see Figure 15.
Table 14. Average, minimum, and maximum daylight factor ei (-) values in the entrance hall (EH), central corridor (CC), south boxes (SBs), north boxes (NBs), boxes with windows (BWWs), and windowless boxes (WLBs). Different superscript letters (a, b) indicate a highly significant difference (ANOVA; Tukey HSD test; p ≤ 0.01) between the compared values (SBs and NBs; BWWs and WLBs).
Table 14. Average, minimum, and maximum daylight factor ei (-) values in the entrance hall (EH), central corridor (CC), south boxes (SBs), north boxes (NBs), boxes with windows (BWWs), and windowless boxes (WLBs). Different superscript letters (a, b) indicate a highly significant difference (ANOVA; Tukey HSD test; p ≤ 0.01) between the compared values (SBs and NBs; BWWs and WLBs).
Measured Objectei ± SDeimin eimax
EH0.835 ± 0.3090.3981.5
CC0.446 ± 0.2520.1691.271
SBs0.378 ± 0.190 a0.1610.873
NBs0.513 ± 0.425 a0.1862.966
BWWs0.534 ± 0.390 a0.2122.966
WLBs0.313 ± 0.154 b0.1610.805
SD—standard deviation.
Disclaimer/Publisher’s Note: The statements, opinions and data contained in all publications are solely those of the individual author(s) and contributor(s) and not of MDPI and/or the editor(s). MDPI and/or the editor(s) disclaim responsibility for any injury to people or property resulting from any ideas, methods, instructions or products referred to in the content.

Share and Cite

MDPI and ACS Style

Kic, P.; Wohlmuthová, M.; Starostová, L. Effects on the Indoor Environment in a Stable for Horses in Winter: A Case Study. Agriculture 2024, 14, 1287. https://doi.org/10.3390/agriculture14081287

AMA Style

Kic P, Wohlmuthová M, Starostová L. Effects on the Indoor Environment in a Stable for Horses in Winter: A Case Study. Agriculture. 2024; 14(8):1287. https://doi.org/10.3390/agriculture14081287

Chicago/Turabian Style

Kic, Pavel, Marie Wohlmuthová, and Lucie Starostová. 2024. "Effects on the Indoor Environment in a Stable for Horses in Winter: A Case Study" Agriculture 14, no. 8: 1287. https://doi.org/10.3390/agriculture14081287

APA Style

Kic, P., Wohlmuthová, M., & Starostová, L. (2024). Effects on the Indoor Environment in a Stable for Horses in Winter: A Case Study. Agriculture, 14(8), 1287. https://doi.org/10.3390/agriculture14081287

Note that from the first issue of 2016, this journal uses article numbers instead of page numbers. See further details here.

Article Metrics

Back to TopTop