Next Article in Journal
Launch Performance Degradation of the Rupture-Type Missile Canister
Next Article in Special Issue
Potential on Energy Performance Upgrade of National Stadiums: A Case Study for the Pancretan Stadium, Crete, Greece
Previous Article in Journal
Prediction of Viscosity Values of Nanofluids at Different pH Values by Alternating Decision Tree and Multilayer Perceptron Methods
Previous Article in Special Issue
Thermal Properties of New Insulating Juncus Maritimus Fibrous Mortar Composites/Experimental Results and Analytical Laws
 
 
Font Type:
Arial Georgia Verdana
Font Size:
Aa Aa Aa
Line Spacing:
Column Width:
Background:
Article

Retrofitting a Building’s Envelope: Sustainability Performance of ETICS with ICB or EPS

by
José D. Silvestre
1,*,
André M. P. Castelo
1,
José J. B. C. Silva
2,
Jorge M. C. L. de Brito
1 and
Manuel D. Pinheiro
1
1
CERIS—Civil Engineering Research and Innovation for Sustainability, Civil Engineering, Architecture and Georresources Department, Instituto Superior Técnico, Universidade de Lisboa, Av. Rovisco Pais, 1049-001 Lisbon, Portugal
2
Architecture Department, University of Évora, Apartado 94, 7002-554 Évora, Portugal
*
Author to whom correspondence should be addressed.
Appl. Sci. 2019, 9(7), 1285; https://doi.org/10.3390/app9071285
Submission received: 28 January 2019 / Revised: 14 March 2019 / Accepted: 19 March 2019 / Published: 27 March 2019

Abstract

:
This paper analyses the environmental, energy, and economic performances of the External Thermal Insulation Composite System (ETICS) using agglomerated insulation cork board (ICB) or expanded polystyrene (EPS) as insulation material applied in the energetic renovation of the building envelope during a 50-year study period. A comparison between ETICS using ICB and EPS, for the same time horizon, is also presented. The environmental balance is based on “Cradle to Cradle” (C2C) Life Cycle Assessment (LCA), focusing on the carbon footprint and consumption of nonrenewable primary energy (PE-NRe). The characteristics of these products in terms of thermal insulation, the increased energy performance provided by their installation for retrofit of the buildings’ envelope, and the resulting energy savings are considered in the energy balance. The estimation of the C2C carbon and PE-NRe saved is considered in the final balance between the energy and environmental performances. ETICS with ICB is environmentally advantageous both in terms of carbon footprint and of PE-NRe. In fact, the production stage of ICB is less polluting, while EPS requires lower energy consumption to fulfil the heating and cooling needs of a flat, due to its lower U-Value, and its lower acquisition cost results in a lower C2C cost. Comparing both ETICS’ alternatives with reference solutions, it was found that the latter only perform better in the economic dimension, and only for an energy consumption to fulfil less than 25% of the heating and cooling needs. This paper represents an advance to the current state-of-the-art by including all the life-cycle stages and dimensions of the LCA in the analysis of solutions for energy renovation of building envelopes.

1. Introduction

Currently there are a full set of renewable materials that can be used in building energy renovation, like bamboo, wood, cork, and recycled materials, among others. Although Portugal is the world’s largest producer and exporter of cork-based materials, there is no local system of incentives or support programme for the application of cork (or insulation cork boards—ICB) [1] as a sustainable material that can also provide an improvement in the energy efficiency of buildings.
ICB is a renewable, 100% natural, and a fully recyclable material made from natural cork without chemical adhesives or additives that can be applied on the envelope of new and refurbished buildings to improve their energy efficiency. The thermal performance of ICB is highlighted by its low thermal conductivity (between 0.040 and 0.045 W/m·°C). The physical and mechanical properties of cork lead to an elastic, steam permeable and durable product, which also has excellent thermal and acoustic insulation characteristics.
A solution for continuous external thermal insulation of walls of buildings is an External Thermal Insulation Composite System (ETICS). An improved energy efficiency of the envelope of new and refurbished buildings is provided by the application of ETICS as external rendering and insulation of walls.
ETICS comprise an insulation board applied over the substrate (glued, mechanically fixed, or both), above which one or two thin layers of reinforced render are applied, as shown in Figure 1. The latter can also be used to glue the insulation material and should have good adherence to the substrate, high resistance to cracking, low capillarity, and significant mechanical resistance to perforation and impact [1]. ETICS can have different thicknesses and compositions, particularly concerning the percentage of organic matter of the coating layers, reinforcement materials, and fastening solutions [2].
The application of an external thermal insulation in the building allows a reduction of the thermal bridges of the building and evens out the thermal transmission coefficient throughout the façade. This technique [3] allows savings in energy, lower risks of surface condensations, an improvement of the inner thermal comfort both in winter and summer, a reduction of the external wall’s thickness, and, thus, an increase of the net inner area of the construction, a reduction of the walls’ weight and of the dead loads on the building, an improvement in the façades’ permeability, an easier application than other techniques, and a bigger variety of the façades’ colours and textures.
The improvement of the energy efficiency of the external walls of new and refurbished buildings is ensured by the application of ETICS. As shown in Figure 1, ETICS include [4]: Cement-based mortar to glue the ICB and even the walls surface, alkali-resistant glass fibre mesh placed over the ICB and inside the mortar, and pigmented mortar for smoothening and finishing made with modified potassium silicate in aqueous dispersion. The ICB in ETICS also has a high potential for worldwide export, supported by the European Technical Approval (ETA) already awarded to ETICS from some Portuguese suppliers.
ETICS with expanded polystyrene (EPS) is the most common solution in Portugal, namely because of its low cost and thermal conductivity (around 0.035 W/m·°C). EPS is produced from a single nonrenewable raw material (expandable polystyrene beads—oil-based) imported from a foreign country. The application of ICB is gaining momentum in Portugal and in several European countries, despite the recent use of this renewable material in ETICS.
This research study includes the comparative assessment of ETICS with ICB and EPS in terms of Environmental, Economic and Energy (3E) performance. The characterisation of the 3E performance of both construction systems when used in the energy renovation of the buildings envelope was based on reference literature, research works, data from companies, and software databases. The aim of this paper is therefore:
(a)
To provide meaningful results to support decision-making in this type of interventions
(b)
To use an innovative method (see §2 for the knowledge gap the study that this paper aims to cover) that evaluates all dimensions of performance in all the life-cycle stages (see §4)
(c)
To, for the first time, use this method in the energy renovation of external walls by considering two of the most used alternatives
(d)
The application of this method in a model building (Hexa—see §3) that is representative of the most common construction and architecture practices in Portugal [5]
The environmental performance is based on Cradle to Cradle (C2C) Life-Cycle Assessment (LCA) studies and focused on the carbon footprint and on the consumption of non-renewable primary energy of the ETICS and corresponding components. The C2C economic performance considers market prices (e.g., market acquisition cost, which includes the cost of manufacture, transportation to site, and installation) and economic savings provided by these systems when used in envelope renovation [6].
“Gate to Grave” environmental and economic performances are characterized according to realistic scenarios for the following life-cycle stages: transportation and installation onsite, maintenance, demolition, and final disposal [6]. The energy performance considers the main thermal insulating characteristics of these systems, and the enhancement of the energy performance and corresponding energy savings resulting from their installation for renovation of the envelope.

2. State of The Art: Life Cycle Assessment (LCA) Studies of Buildings’ Envelope

LCA studies of building envelope alternatives have been gaining momentum in the construction industry in several countries to help the assessment of solutions to improve the overall performance of the buildings envelope. This envelope is one of the most important parts of the building in terms of its 3E performance. For example, the external walls have a direct influence in that performance due to their large contribution to the envelope’s whole-life cost, users comfort, initial embodied energy, and life-cycle energy consumption.
The 3E impacts of an external wall solution directly result from the properties of the materials used (e.g., thermal properties, initial embodied energy, and design and construction process). Therefore, in the design of new construction or refurbishment alternatives for building envelopes, it is very important to have a method that enables the comparison of different solutions and determines the best solution to implement in each case. In several countries, there are ongoing studies to help the development of these methods, and some of their applications are to determine the solutions that have the best performance when used in the buildings’ envelope, such as the following ones:
  • The LCA of a house in Portugal was calculated considering seven alternative solutions with similar thermal performance for exterior wall, and seven different heating systems. This study included the production stage and the maintenance requirements and the heating energy for 50 years [7]. In the same country, two alternative external claddings (rendering and stone cladding) were compared in an interdisciplinary study of service life prediction and environmental LCA [8].
  • In China, for an office building, five façade solutions were compared considering their economic cost, life-cycle environmental load and cost, and operational energy. Green and general payback times were also calculated [9,10].
  • In the United States of America, 12 external wall solutions were studied in terms of embodied energy and thermal performance in a building at a cold climate region [11].
  • In Australia, a study was undertaken to demonstrate the need to consider not only the life-cycle energy of the building but also that due to activities undertaken by actual users of the building, which comprise: Embodied energy in the production of building materials, building’s operational energy, and consumption of energy in periodic maintenance over a 30-year study period [12].
  • In India, the energy consumption demands of a residential building were evaluated considering different climates and envelopes (fired clay, concrete blocks, soil cement, fly ash, and aerated concrete) in the context of that country [13].
  • In the United Kingdom, a LCA from cradle to site of a low-energy house built using an offsite modular panels timber frame system was used to assess the emissions from materials used in construction, final transportation of the materials to site, wastage of materials on site, transportation of waste to final disposal, and nonrenewable energy used on site using the external thermal envelope as the comparison unit [14].
  • In Spain, a study was made, using LCA performance over an 80-year study period, for evaluating the environmental impacts of five constructive systems for the envelope of a modular house with conventional brick, conventional brick only with polyurethane insulation and also with Phase Changing Materials (PCM), hollow brick, and hollow brick with PCM [15].
  • In Italy, for a conventional house and office building, envelope solutions (with different type and width of masonry and insulating materials), facilities (heating boiler replacement), and smart systems (namely active- and passive-solar systems) were considered in the LCA performance to determine the best solution that could be applied in the construction [16]. In the same country, a low-energy building with energy generation systems was assessed using a cradle to cradle LCA in order to provide energy balances and energy and environmental payback times [17].
  • In Belgium, two external wall solutions were studied via an LCA form Cradle to Grave, including the energy consumption during the use phase. A decision-support tool based on the environmental cost and quality of construction assemblies was developed and applied to this case-study of a three-floor building [18].
  • In Finland, a case-study of a building was used to confirm the influence of material choice on the building sustainability, including insulation and exterior cladding. However, only the environmental and economic performance were considered, and only for the production stage [19].
There are other cases and several methodologies being developed internationally with the purpose of optimizing the buildings performance for a more sustainable construction. The one used in this study was the 3E-C2C method developed at the Instituto Superior Técnico of University of Lisbon [6,20], which compares the 3E (Environmental, Energy, and Economy) performance of alternative solutions considering all stages of their life-cycles (from cradle to cradle—C2C), and allows the assessment, comparison, and selection of the best alternatives considering their whole-life cost, assessing the 3E’s impacts, and considering all contributions for each life-cycle stage.
Since energy consumption is the factor that more prominently affects the environmental and economic performance of an envelope solution, some of the studies identified here only assess the energy performance using the Life-Cycle Energy Assessment (LCEA), not completing a full LCA in all dimensions of performance, and all of them are applied to new construction. Very few studies include all the life-cycle stages of the LCA, making this method and this particular study an innovation and an improvement for the 3E assessment of refurbished buildings envelopes relative to other studies of similar constructive solutions and with similar objectives.

3. Case Study—Insulation Cork Board (ICB)

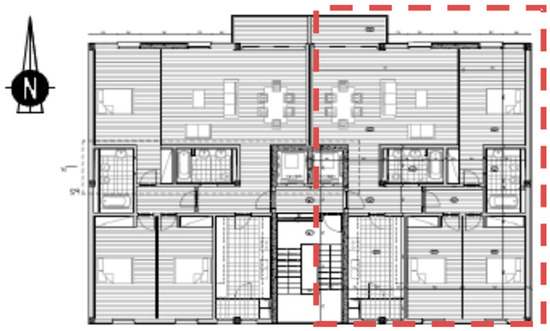
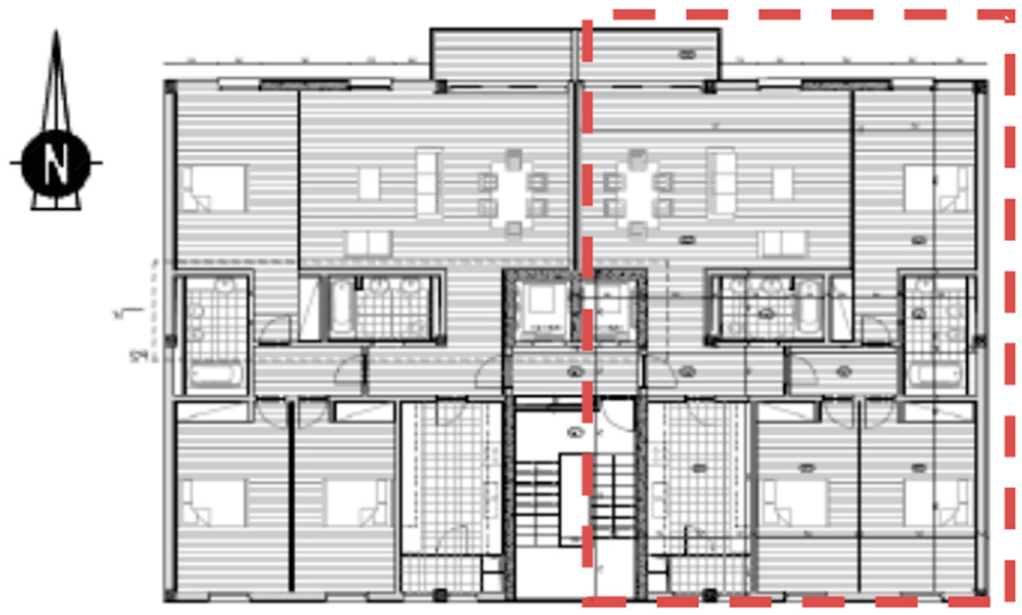
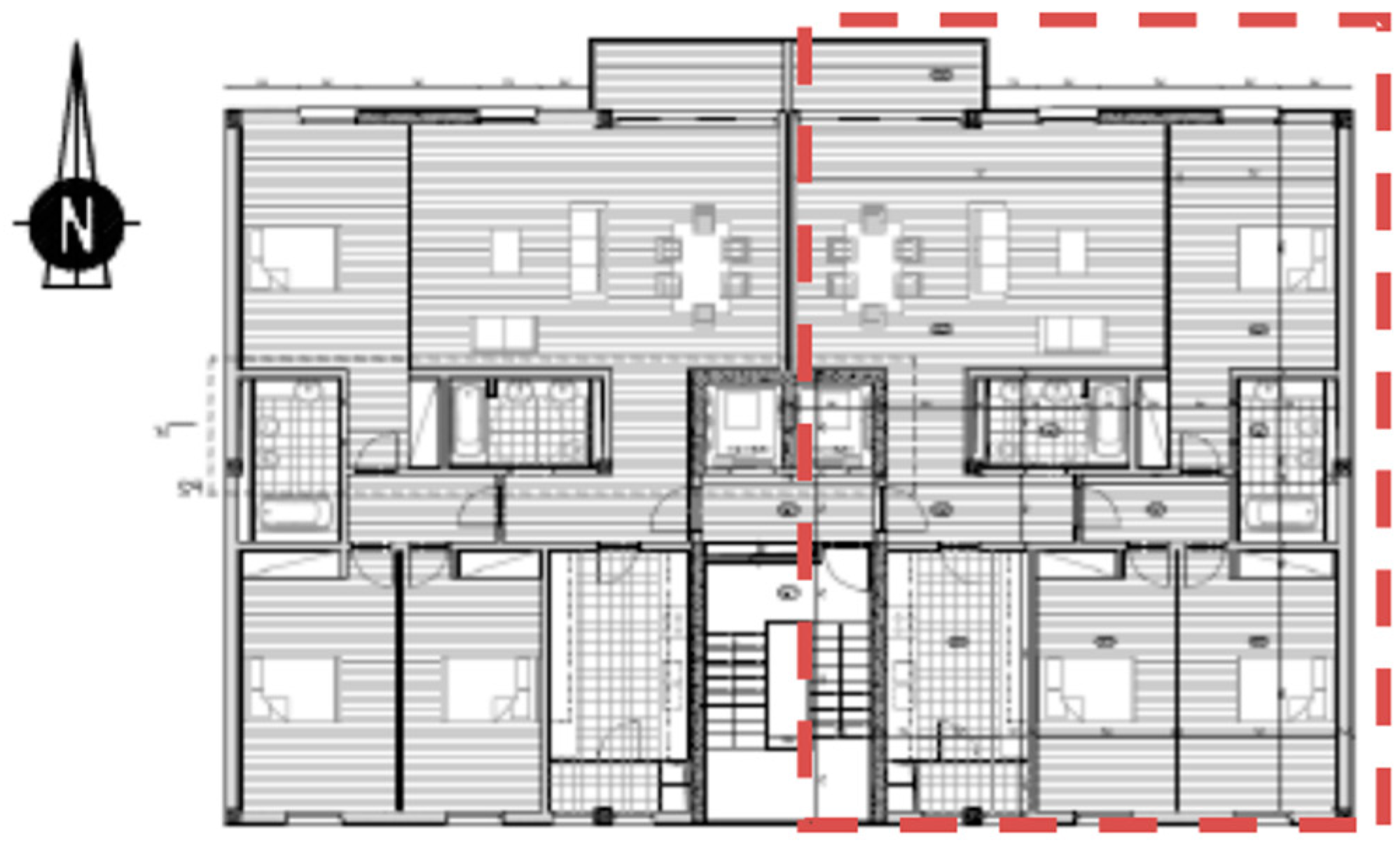
The model building named Hexa comprises a ground floor for commerce and six residential floors [21] that is representative of the Portuguese buildings, either in constructive or in architectural practices [5]. The flat on the right in Figure 2, located in a middle floor without buildings adjacent to the east façade, is the subject of the study. Évora was chosen as the location for Hexa in this study, in the South of Portugal.
North and South façades are the external walls of the flat that were studied. “A square metre of external wall” (being the East façade considered the same as wall W1—see Table 1—for all alternatives) is the declared unit. The reference study period is 50 years [21].
In order to consider the energy renovation of the “Hexa” building façades with ETICS using ICB, two reference solutions without insulation were considered: One with a single-leaf hollow fired-clay bricks wall of with 0.22 m (W1) and another one with a cavity wall of the same material with two leaves of 0.15 m and 0.11 m (W8). Then, six improved solutions using ETICS with ICB were used for the single-leaf walls and six were used in the cavity walls (Table 1).
The energy renovation of reference walls (W1 and W8) is important. However, the heating and cooling needs (in terms of final energy consumption) of the flat depend, in each year of the study period, not only on the lower U-value after this intervention but also on the surface (internal or external) of the external wall where the insulation is applied. In fact, the effect of a lower U-value on decreasing the energy needs for heating and cooling is maximum if the application of the insulation material is made on the external surface of this wall.
The maintenance, repair, and replacement operations of each external cladding and internal coating over the life-cycle after the renovation operation are described in Table 2.

4. E-C2C Method

An integrated approach for the assessment of the 3E’s (Environmental, Energy, and Economy) life-cycle of construction assemblies or materials, closely related to a building thermal performance from cradle to cradle (3E-C2C) was used in this research study [6,20].
The 3E-C2C method assesses the 3E’s impacts over the whole life-cycle (C2C) of a construction material or assembly. This method takes into account all the issues that can affect these solutions, such as their performance in the use phase of the building, and its service life and recycling potential as shown in Table 3.
The declared unit used in this study was “a square metre of external wall for 50 years from energy renovation (ETICS installation),” taking into account the use (including the reference service life of each solution) and end-of-life stages. A declared unit is the “quantity of a construction product for use as a reference unit” [22]. It is not possible to define a functional unit (quantified performance of a product system for use as a reference unit [22]) because the external wall’s alternatives under comparison do not have the same U-Value—see Table 1. Using this approach, external wall solutions can be compared even with different heat transfer coefficients, because the LCA study considers: Impacts if their production depending on their thermal insulation thickness, and the environmental impacts of their thermal performance for 50 years.
The 3E-C2C method was applied in the evaluation and comparison of the 3E performance of the energy retrofit alternatives considered in this study for two reference external walls without insulation (W1 and W8—see Table 1). The envelope renovation is provided by the application of ETICS with ICB or with EPS, considering different thicknesses of these materials. The 3E-C2C method is firstly applied to ETICS with ICB (§5.1, applied to the case study described in §3) and then to ETICS with EPS (§5.2, in comparison with ETICS with ICB).
The approach used in this study is in line with international and European standards and performance labels. The environmental performance results are based in C2C LCA studies and focused on the carbon footprint (expressed by the environmental impact category “Global Warming Potential”—GWP) and on the consumption of non-renewable primary energy (PE-NRe) of the materials used on the energy renovation of the external walls. Even if the 3E-C2C method applied in this study considered all environmental categories recommended by European standards, to provide a meaningful comparison of a significant number of alternatives in the 3E dimensions of performance and in all life-cycle stages, the authors decided to present here only the results for the environmental categories most valuated by the scientific community and by the decision-makers: Carbon footprint (expressed by GWP) and embodied energy (PE-NRe). The C2C economic analysis considered market prices and the “economic savings” (cooling and heating energy) given by ETICS with ICB or EPS when used in envelope renovation of buildings [23].

4.1. Environmental Performance

The quantification of the environmental performance of the 3E-C2C method follows the LCA standardised method [24] and the principles included in European standards [22,25,26]. The CML 2001 baseline Environmental Impact Assessment Method (EIAM) and corresponding environmental impact categories were used in LCA results calculation. Regarding the quality of background data: The LCA databases used (Ecoinvent and ELCD) were updated within the last 10 years, and all selected datasets imply a European average technology or a specific European country. The environmental performance of each life-cycle stage is defined by:
-
Product Stage (A1–A3): The LCA data of the manufacture of each construction material or product started with the corresponding Life-Cycle Inventory (LCI), mainly based on updated site-specific data from Portuguese plants, thus proving its temporal, geographical, and technological representativeness. The composition considered for each material used in ETICS with ICB and EPS was based on one of the Portuguese producers [27]. A detailed inventory analysis is not included in this paper but was already provided for both insulation materials in two other paper of the authors [1,23].
-
Construction Process Stage (A4–A5): The renovation operation corresponds to the installation of the product in the building, including: Removal of the old render and paint and corresponding transportation to waste processing and disposal, and external rendering, and insulation of the external wall with ETICS with EPS or ICB of variable thickness.
-
Use stage—maintenance, repair, and replacement (B2–B4): The environmental impacts of the materials for maintenance, repair, and replacement operations during the study period, including the corresponding waste flows. The impacts do not include other impacts from this operation due to their variable and unpredictable nature.
-
Use stage—energy performance (B6): The 3E-C2C approach determines the energy performance from the estimation of the heating and cooling energy needs during a building’s operation calculated by the simplified assessment method described in Portuguese national regulations [28,29,30]. These needs are, in the 3E-C2C method, divided by the area of the external wall being studied to provide a value associated to the declared unit used, and allow the estimation of their environmental impacts. This value and the environmental impacts are estimated considering a residential heating and cooling model using an updated Portuguese electricity mix [31].
-
End-of-life stage (C): The 3E-C2C considers the transport of the discarded product as part of the waste processing, including the transport of waste (C2), the waste processing (C3) and the waste disposal, and the physical pretreatment and management of the disposal site (C4). The environmental impacts of demolition (C1) were not considered, as they are similar for all the alternatives.

4.2. Economic Performance

The economic module of the 3E-C2C method follows the whole-life cost (WLC) approach [32] and the principles in the European standards [33]. The comparison unit between the solutions is based on the net present value (NPV) throughout the study period and considers the needs of energy for heating and cooling and the operation costs of the different substages. The NPV is estimated taking into consideration the formulas presented in Table 4. Concerning the discount rate, this value was defined based on previous studies [34,35]. Based on previous studies, if a lower value is used, the difference between alternatives decreases, despite the increase of the NPV for all of them. The lower the discount rate is, the greater the influence of future costs in the life-cycle costs due to an increase in the contribution of maintenance and operation stages.
For each life-cycle stage, the economic performance is defined by:
-
Product and construction process stages (A1–A5): The installation cost of the ETICS in the building corresponds to the renovation described in the construction process, excluding the costs of: Workmanship for the removal of the old render and paint, and scaffolding installation on the external area of the external wall. These costs were provided by: One of the Portuguese producers of ETICS with ICB, previous research studies [6,20,33], construction firms, market surveys, and building materials suppliers [21], and reference national documents [37].
-
Use stage—maintenance, repair, and replacement (B2–B4): The economic cost in year “n” per m2 of external wall includes the maintenance, repair, and replacement operations incurred in that year.
-
Use stage—energy cost (B6): The energy cost in year “n” per square metre of external wall corresponds to the price, considering constant prices of the heating and cooling energy calculated by the simplified assessment method described in Portuguese national regulations [28,29,30].
-
End-of-life stage (C and D): The economic cost in year 50 per m2 of external wall only include: costs for transport and disposal of the building assemblies; costs and/or revenues from recycle, reuse, and energy recovery [38,39].

5. Results

5.1. E Performance of External Thermal Insulation Composite System (ETICS) with ICB

5.1.1. Comparison of the Carbon and Energy Consumption Balances of ETICS with ICB

The results achieved in the comparison of the environmental and energy consumption balances concerning the C2C carbon footprint of the external wall alternatives, expressed through the GWP (Figure 3), demonstrated an environmental impact of the alternatives at stages A1–A3 between 72% and 74% of the total C2C GWP, without energy for heating or cooling, and a C2–C4 and D between 1% and 3% of the total C2C GWP, without energy for heating or cooling, and directly proportional to the thickness of insulation applied. The GWP on the B2–B4 stages are similar for all alternatives, due to their equal maintenance strategy, shown in Table 2, and represent 32% to 39% of their C2C GWP in the improved solutions and about 98% for the reference walls.
The C2C consumption of PE-NRe (Figure 4) of the external wall alternatives expresses a performance similar to GWP. The impact at stages A1–A3 represent between 61% and 66% and at the end-of-life between −1 and 0%. The B2–B4 stages represent the remaining 98% C2C PE-NRe for the reference solution, and between 32% and 39% for the remaining solutions, without considering the energy needed for heating and cooling (in terms of final energy consumption).

5.1.2. Energy Savings in Heating and Cooling of ETICS with ICB

The results achieved in the economic balance concerning the “environmental impact savings” demonstrated that the application of the maximum thickness of ICB in ETICS (9 cm) on the external surface of these walls can result on a carbon saving from 24% to 31%. Similar results were achieved for the “environmental impact savings” of consumption of PE-NRe for the energy of heating and cooling during the study period. Thus, analysing the C2C PE-NRe and GWP with energy for heating and cooling, it was found that the alternatives with ETICS with ICB present from 14% to 26% lower impacts than reference ones.

5.1.3. Economic Costs and Benefits of ETICS with ICB

The results achieved for the economic balance regarding the use of ETICS with ICB show that the NPV of the C2C cost of the external wall alternatives (Figure 5) is proportional to the thickness of ICB applied at stages A1–A3, A4, and A5 varying from 31% to 33% and at the end-of-life with 1%. The NPV of the maintenance, repair and replacement operations (stages B2–B4) is similar for all alternatives and represents between 52% and 55% for the reference wall and 41% for the remaining solutions. The remaining contribution of the NPV is about 46% for W1 and 43% for W8 and, according to their heating and cooling needs, and represents 24% to 26% for the remaining solutions.
With the results shown in Figure 5, one can conclude that there are no wall alternatives with ETICS with ICB that can provide any “economic savings” in comparison to the reference solutions. However, the results shown were obtained considering a consumption of energy during the B6 sub-stage to satisfy only 10% of the needs for heating and cooling (a realistic value for Portugal in the present). These “economic savings” only arise, as shown in Figure 6, if higher values are considered to simulate future expectable scenarios for dwellings or multi-familiar residential buildings. In this figure, it is possible to conclude that, considering a consumption of energy during the B6 substage to fulfil 35% or more of the heating and cooling needs, the alternatives with 9 cm of ICB in ETICS (W7 in the single-leaf wall group) have a better performance than the reference walls. In the cavity wall group, this value has to be increased to 50% to allow another alternative with 9 cm of ICB in ETICS (W14) to be cheaper than the reference walls.

5.2. Comparative 3E Performance of ETICS with ICB and Expanded Polystyrene (EPS)

In this section, in order to compare the energy renovation of the “Hexa” building façades with ETICS using EPS or ICB, the same two reference solutions presented before (W1 and W8) were considered. Then, six previously studied solutions using ETICS with ICB (W4, W6, W7, W11, W13, W14) and six new using ETICS with EPS (WE4, WE6, WE7, WE11, WE13, WE14) were compared (Table 5).
The study parameters used for the comparison of the 3E performance of all these solutions are the same as the ones described in §4.
The comparison presented in this section is made between improved solutions with the same thickness of insulation in both construction systems and solutions with the same U-value, even though the difference between U-values of solutions with the same thickness of EPS or ICB is lower than 10%.
The comparison of the energy performance considered the main thermal insulating characteristics of ETICS with EPS or with ICB as insulating material, including the improvements in the energy performance of the building’s envelope after its installation for retrofitting and the corresponding energy savings. Because of ongoing changes in building occupancy and in the comfort demands that led to a higher consumption of energy by heating and cooling equipment, it was considered:
-
The default scenario—10% of the energy needs, according with national regulation.
-
Higher values—30% and 50%, which simulate future expectable scenarios for dwellings or multi-familiar residential buildings [40]. In fact, both values were used in previous studies [34,41] because telecommuting is each day more frequent, and elderly people also stay at home most of the day, which means that energy needs for residential buildings can be estimated based on the use of heating or cooling equipment for much more than the 10% of daytime prescribed in the national regulation.

5.2.1. Comparison of the Carbon and Energy Consumption Balances of ETICS with ICB or EPS Boards

The importance of the use of local renewable resources in buildings for energy renovation is highlighted by this study, namely the application of ETICS with ICB as external rendering and insulation of external walls as an alternative to the application of the same system with a non-renewable material as insulating material (EPS). This section presents the results achieved in terms of the comparison of the environmental and energy consumption balances related to the application of the 3E-C2C method to the use of these construction systems in 12 of the 14 external alternatives defined for this study.
The results achieved in the comparison of the C2C carbon footprint of the external wall alternatives, expressed by the GWP (Figure 7), demonstrated an environmental advantage of the alternatives with ETICS with ICB at stages A1–A3 between 29% and 54% (without energy for heating or cooling) when compared to solutions with similar thickness using EPS. In fact, this difference is proportional to the thickness of the insulation board applied on the external surface. This environmental disadvantage results from the use of nonrenewable resources in the production of EPS. The GWP on the B2–B4 stages are similar for all alternatives, due to their equal maintenance strategy (Table 2) and represents between 23% and 39% of their C2C GWP, without considering the energy consumption for heating and cooling.
The C2C consumption of PE-NRe (Figure 8) expresses a performance similar to GWP. In fact, the environmental advantages of the ETICS with ICB insulation at stages A1–A3 in comparison to EPS solution is also proportional to the thickness of the insulation board applied and can vary from 44% to 78%, thus confirming the environmental advantage of using renewable materials in the production of the insulating element.

5.2.2. Comparison of the Energy Savings in Heating and Cooling of ETICS with ICB or EPS

The results achieved in the comparison of the economic balance concerning the “environmental impact savings” demonstrate that the use of the maximum thickness (9 cm) of insulation in ETICS with ICB or EPS on the external surface of these walls can result in a carbon saving in comparison with the reference alternatives, from 24% to 31%. Similar results were achieved for the “environmental impact savings” of consumption of PE-NRe for the energy of heating and cooling during the study period. Thus, analysing the C2C PE-NRe and GWP with energy for heating and cooling, it was found that the alternatives with ETICS with ICB or EPS present from 13% to 26% lower impacts than reference ones.
These “environmental impact and economic savings” during the B6 substage are expressed in this study per m2 of the external wall of the flat chosen, but the corresponding savings provided by the implementation of this energy renovation in Portugal or in other countries can be extrapolated depending on the thermal performance characteristics of the majority of existing buildings.

5.2.3. Comparison of the Economic Costs and Benefits of ETICS with ICB or EPS

The results achieved in the comparison of the economic balance concerning the NPV of the C2C cost of the external wall alternatives (Figure 9) show that the use of EPS in ETICS provides a saving in the acquisition costs at stages A1–A3, A4 and A5 varying from 28% to 30%. When analysing the NPV of the C2C cost, this value is reduced due to the significance of the maintenance and energy costs, but it still reveals an economic advantage of using EPS in ETICS due to its lower market cost when compared with ICB.
With the results from Figure 9, it is also possible to conclude that none of the wall alternatives where ETICS with ICB or with EPS were applied provide any “economic savings” in comparison to the reference solutions. However, the results shown were obtained considering a consumption of energy corresponding only to 10% of the needs for heating and cooling during the B6 substage. If higher values (35% and 50%) are used to simulate future expectable scenarios for dwellings or multi-familiar residential buildings, these “economic savings” become more significant. In fact, Figure 10 demonstrates that the alternatives with 9 cm of ICB in ETICS have a better performance than the reference walls from an energy consumption point of view to fulfil 35% (W7 in the single-leaf wall group) or 50% (W14 in the cavity wall group) of the heating and cooling needs. For a consumption value of 25%, the alternative of ETICS with 9 cm of EPS (WE7) becomes the best alternative in the single-leaf wall group. In the cavity wall group the WE14 solution (also with 9 cm of EPS) becomes the best alternative only for a consumption pattern of 35%. Nevertheless, the alternatives with ICB in ETICS always present a higher NPV of the C2C cost than the ones with EPS independently of the consumption pattern that is considered for the use stage, because of the higher acquisition cost and U-value for the same thickness of insulation.
Figure 11 is similar to Figure 10, but only includes the external wall alternatives that were renovated by the application of ETICS and also indicates their corresponding U-values. This chart helps the decision-maker to choose the best energy renovation alternative from a C2C economic point of view depending on the U-value and consumption of energy wanted and on the available budget.

6. Discussion and Conclusions

The results of this study show that external wall alternatives of ETICS with ICB are environmentally advantageous when producing the construction materials used, in terms of the categories “Global Warming Potential” (GWP) and consumption of nonrenewable primary energy (PE-NRe) in comparison with the same solution with EPS.
If ETICS with ICB and with EPS are compared considering the same thickness, the EPS solution requires lower energy consumption to fulfil the heating and cooling needs of the flat due to its lower U-Value. This solution always presents a lower “Cradle to Cradle” (C2C) cost because of its lower acquisition cost.
If two solutions with similar U-values are compared (but with different thicknesses, since the ICB boards require a bigger thickness due to the higher thermal transmittance), the consumption of energy to satisfy the heating and cooling needs is almost the same, but their acquisition cost and the energy and resources necessary for the production of their materials are different. Due to the higher cost of ICB, the EPS solution always presents a lower net present value (NPV).
The 3E-C2C analysis showed that reference alternatives only perform better in the economic dimension, and only for an energy consumption to fulfil less than 25% of the heating and cooling needs. Therefore, to provide more specific support for decision-making, Table 6 and Table 7 present, respectively, single-leaf and cavity external wall solutions with the best performance (in each dimension and life-cycle stage), without considering the reference walls.
When comparing the single-leaf external wall solutions in the study, it was found that W2 presents the best environmental performance, if energy use for heating and cooling is not considered (Table 6). At the same time, when taking into consideration the energy used for heating and cooling, W7 shows the best environmental performance. The most economical solution is WE7 for energy needs higher than 10%.
When comparing the cavity wall solutions, it was found that solution W9 presents the best environmental performance if energy use for heating and cooling is not considered (Table 7). When taking into consideration the energy used for heating and cooling, the best environmental performance is shown by W14. For energy needs higher than 10%, the most economical solution is WE14.
The research presented in this paper provides an advance to current state of art by including all the life-cycle stages and dimensions of the LCA in the analysis of solutions for energy renovation of building envelopes. The analysis presented here can be replicated in other solutions for thermal insulation of the building’s envelope, or similar solutions applied in other buildings or weather conditions (namely other countries). Moreover, the conclusions reached show thermal retrofitting has environmental benefits and that environmentally sustainable materials need to be more frequently used in construction. In fact, the environmental advantage of the latter is already known and proved, but they are still expensive. Therefore, a scale effect on their use can promote a decrease in price, making them more competitive in the construction market, or the public financing or the thermal retrofit interventions could include environmental sustainability requirements to reach similar benefits.

Author Contributions

Data curation, J.D.S.; Methodology, J.D.S.; Validation, A.M.P.C. and J.J.B.C.S.; Writing—original draft, J.D.S.; Writing—review & editing, A.M.P.C., J.J.B.C.S., J.M.C.L.d.B. and M.D.P.

Funding

This research work was completed in the scope of the project MARIE—Mediterranean Building Rethinking for Energy Efficiency Improvement (2011–2014), cofunded by the European Regional Development Fund (ERDF) and the MED Programme.

Acknowledgments

The authors are also grateful for the support from FCT (Foundation for Science and Technology) and from CERIS-ICIST Research Institute from Instituto Superior Técnico, Universidade de Lisboa. Special thanks are due to the Portuguese manufacturers of construction materials, for providing the necessary data to complete this research work.

Conflicts of Interest

The authors declare no conflict of interest. The founding sponsors had no role in the design of the study; in the collection, analyses, or interpretation of data; in the writing of the manuscript, and in the decision to publish the results.

References

  1. Silvestre, J.D.; Pargana, N.; de Brito, J.; Pinheiro, M.D.; Durão, V. Insulation cork boards-Environmental Life Cycle Assessment of an organic construction material. Mater. J. 2016, 9, 394. [Google Scholar] [CrossRef] [PubMed]
  2. Veiga, M.R.; Santos, C.P. Claddings for thermal insulation of facades: Efficiency, durability and quality assurance. Construção Mag. 2009, 32, 12–18. (In Portuguese) [Google Scholar]
  3. Freitas, V.P.; de Gonçalves, P.F. Thermic Insulation for External Walls–Reinforced Mortar Mesh over EPS (ETICS); FEUP: Porto, Portugal, 2005. (In Portuguese) [Google Scholar]
  4. Künzel, H.; Künzel, H.M.; Sedlbauer1, K. Long-Term Performance of External Thermal Insulation Systems (ETICS); Fraunhofer-Institute for Building Physics: Holzkirchen, Germany, 2006. [Google Scholar]
  5. Ferreira, J.; Pinheiro, M.D. In search of better energy performance in the Portuguese buildings-The case of the Portuguese regulation. Energy Policy 2011, 39, 7666–7683. [Google Scholar] [CrossRef]
  6. Silvestre, J.D.; de Brito, J.; Pinheiro, M.D. Life cycle impact “cradle to cradle” of building assemblies. In Proceedings of the ICE-Engineering Sustainability; Thomas Telford Ltd.: London, UK, 2013; Volume 167, pp. 53–63. [Google Scholar]
  7. Monteiro, H. Life Cycle Assessment of a Portuguese House with Different Exterior Wall Solutions and Alternative Heating Systems. Master’s Thesis in Energy for Sustainability, University of Coimbra, Coimbra, Portugal, 2010. [Google Scholar]
  8. Silvestre, J.D.; Silva, A.; de Brito, J. Uncertainty modelling of service life and environmental performance to reduce risk in building design decisions. J. Civ. Eng. Manag. 2015, 21, 308–322. [Google Scholar] [CrossRef]
  9. Gu, L.J.; Gu, D.J.; Lin, B.R.; Huang, M.X.; Gai, J.Z.; Zhu, Y.X. Life cycle green cost assessment method for green building design. In Proceedings of the Building Simulation, Beijing, China, 3–6 September 2007; pp. 1962–1967. [Google Scholar]
  10. Gu, L.; Lin, B.; Zhu, Y.; Gu, D.; Huang, M.; Gai, J. Integrated assessment method for building life cycle environmental and economic performance. In Building Simulation; Tsinghua Press: Guangzhou, China, 2008; pp. 169–177. [Google Scholar]
  11. Pierquet, P.; Bowyer, J.L.; Huelman, P. Thermal performance and embodied energy of cold climate wall systems. For. Prod. J. 1998, 48, 53–60. [Google Scholar]
  12. Treloar, G.; Fay, R.; Love, P.E.D.; Iyer-Raniga, U. Analysing the life-cycle energy of an Australian residential building and its householders. Build. Res. Inf. 2000, 28, 184–195. [Google Scholar] [CrossRef]
  13. Ramesh, T.; Prakash, R.; Shukla, K.K. Life cycle energy analysis of a residential building with different envelopes and climates in Indian context. Appl. Energy 2012, 89, 193–202. [Google Scholar] [CrossRef]
  14. Monahan, J.; Powell, J.C. An embodied carbon and energy analysis of modern methods of construction in housing: A case study using a lifecycle assessment framework. Energy Build. 2011, 43, 179–188. [Google Scholar] [CrossRef]
  15. Rincón, L.; Castell, A.; Pérez, G.; Solé, C.; Boer, D.; Cabeza, L.F. Evaluation of the environmental impact of experimental buildings with different constructive systems using material flow analysis and life cycle assessment. Appl. Energy 2013, 109, 544–552. [Google Scholar]
  16. Asdrubali, F.; Baldassarri, C.; Fthenakis, V. Life cycle analysis in the construction sector: Guiding the optimization of conventional Italian buildings. Energy Build. 2013, 64, 73–89. [Google Scholar] [CrossRef]
  17. Cellura, M.; Guarino, F.; Longo, S.; Mistretta, M. Modeling the energy and environmental life cycle of buildings: A co-simulation approach. Renew. Sustain. Energy Rev. 2017, 80, 733–742. [Google Scholar] [CrossRef]
  18. Allacker, K.; De Troyer, F. Development of an ‘eco-cost/quality’ tool to correct market driven decisions in the building sector. In Proceedings of the 10th European Roundtable on Sustainable Consumption and Production (ERSCP), Antwerp, Belgium, 5–7 October 2005. [Google Scholar]
  19. Takano, A.; Hughes, M.; Winter, S. A multidisciplinary approach to sustainable building material selection: A case study in a Finnish context. Build. Environ. 2014, 82, 526–535. [Google Scholar] [CrossRef]
  20. Silvestre, J.D.; de Brito, J.; Pinheiro, M.D. From the new European Standards to an environmental, energy and economic assessment of building assemblies from cradle-to-cradle (3E-C2C). Energy Build. 2013, 64, 199–208. [Google Scholar] [CrossRef]
  21. Real, S.F. Contribution of Life Cycle Cost Analysis to Design Sustainability in Construction. Master’s Thesis in Civil Engineering, Instituto Superior Técnico, Technical University of Lisbon, Lisbon, Portugal, 2010. (In Portuguese). [Google Scholar]
  22. CEN. Sustainability of Construction Works-Environmental Product Declarations-Core Rules for the Product Category of Construction Products, EN 15804; Comité Européen de Normalisation: Brussels, Belgium, 2012. [Google Scholar]
  23. Pargana, N.; Pinheiro, M.D.; Silvestre, J.D.; de Brito, J. Comparative environmental life cycle assessment of thermal insulation materials of buildings. Energy Build. 2014, 82, 466–481. [Google Scholar] [CrossRef]
  24. Silvestre, J.D.; Lasvaux, S.; Hodkova, J.; de Brito, J.; Pinheiro, M.D. NativeLCA-a systematic approach for the selection of environmental datasets as generic data: Application to construction products in a national context. Int. J. Life Cycle Assess. 2015, 20, 731–750. [Google Scholar] [CrossRef]
  25. CEN. Sustainability of Construction Works-Assessment of Buildings–Part 2: Framework for the Assessment of Environmental Performance, EN 15643-2; Comité Européen de Normalisation: Brussels, Belgium, 2011. [Google Scholar]
  26. CEN. Sustainability of Construction Works-Assessment of Environmental Performance of Buildings-Calculation Method, EN 15978; Comité Européen de Normalisation: Brussels, Belgium, 2011. [Google Scholar]
  27. Matos, M.; Soares, L.; Silva, L.; Sequeira, P.; Carvalho, J. Life cycle assessment of an ETICS system composed of a natural insulation material: A case study of a system using insulation cork board (ICB). Portugal SB13. In Proceedings of the Contribution of Sustainable Building to Meet EU 20-20-20 Targets; Multicomp—Artes Gráficas, Lda: Guimarães, Portugal, 2013; pp. 855–862. [Google Scholar]
  28. EDP. EDP-Energias de Portugal, S.A. 2011. Available online: http://www.edpsu.pt/pt/particulares/tarifasehorarios/BTN/Pages/TarifasBTNate20.7kVA.aspx (accessed on 11 April 2011).
  29. Mateus, R.; Bragança, L. Sustainability assessment and rating of buildings: Developing the methodology SBToolPT-H. Build. Environ. 2011, 46, 2166–2175. [Google Scholar] [CrossRef]
  30. RCCTE. Regulation of the Characteristics of Thermal Behaviour of Buildings, Law decree no. 80/2006. 4 April 2016; D.R.I-A Series 67, 2468–2513. (In Portuguese)
  31. ERSE. Electric Energy Labelling. ERSE-the Energy Services Regulatory Authority, Portugal. 2012. Available online: http://www.erse.pt/pt/desempenhoambiental/rotulagemenergetica/comparacaoentrecomercializadores/Paginas/default.aspx (accessed on 23 July 2012). (In Portuguese).
  32. ISO. Buildings and Construction Assets-Service Life Planning-Part 5: Life-Cycle Costing, ISO 15686-5:2008; International Organization for Standardization: Geneva, Switzerland, 2008. [Google Scholar]
  33. CEN. Sustainability of Construction Works-Assessment of Environmental Performance of Buildings-Calculation Method, EN 15643-4; Comité Européen de Normalisation: Brussels, Belgium, 2012. [Google Scholar]
  34. Garrido, R.; Silvestre, J.D.; Flores-Colen, I. Economic and energy Life Cycle Assessment of aerogel-based thermal renders. J. Clean. Prod. 2017, 151, 537–545. [Google Scholar] [CrossRef]
  35. Marrana, T.; Silvestre, J.D.; de Brito, J.; Gomes, R. Lifecycle cost analysis of flat roofs of buildings. J. Constr. Eng. Manag. 2017, 143. [Google Scholar] [CrossRef]
  36. REH. Regulation of the Energy Behaviour of Residential Buildings, Law decree no. 118/2013. 20 August 2013. (In Portuguese)
  37. Manso, A.; Fonseca, M.; Espada, L. Information about Costs-Productivity Sheets; Laboratório Nacional de Engenharia Civil: Lisbon, Portugal, 2010. (In Portuguese) [Google Scholar]
  38. Coelho, A.; de Brito, J. Economic analysis of conventional versus selective demolition-A case study. Resour. Conserv. Recycl. 2011, 55, 382–392. [Google Scholar] [CrossRef]
  39. Silvestre, J.D.; de Brito, J.; Pinheiro, M.D. Environmental impacts and benefits of the end-of-life of building materials-Calculation rules, results and contribution to a “cradle to cradle” life cycle. J. Clean. Prod. 2014, 66, 37–45. [Google Scholar] [CrossRef]
  40. Pinto, A. Application of Life-Cycle Assessment in the Energetic and Environmental Analysis of Buildings. Ph.D. Thesis in Mechanical Engineering, Universidade Técnica de Lisboa, Lisbon, Portugal, 2008; 329p. (In Portuguese). [Google Scholar]
  41. Monteiro, H.; Freire, F. Life-Cycle assessment of a house with alternative exterior walls: Comparison of three assessment methods. Energy Build. 2012, 47, 572–583. [Google Scholar] [CrossRef]
Figure 1. Cross-section of an external wall with External Thermal Insulation Composite System (ETICS) with expanded polystyrene (EPS) applied as external rendering and insulation.
Figure 1. Cross-section of an external wall with External Thermal Insulation Composite System (ETICS) with expanded polystyrene (EPS) applied as external rendering and insulation.
Applsci 09 01285 g001
Figure 2. Residential flat model used in the study (right).
Figure 2. Residential flat model used in the study (right).
Applsci 09 01285 g002
Figure 3. C2C Global Warming Potential (GWP, in kg CO2 eq, without energy for heating and cooling)/m2 of the external wall alternatives with ICB.
Figure 3. C2C Global Warming Potential (GWP, in kg CO2 eq, without energy for heating and cooling)/m2 of the external wall alternatives with ICB.
Applsci 09 01285 g003
Figure 4. C2C consumption of nonrenewable primary energy (PE-NRe, in MJ, without energy for heating and cooling)/m2 of the external wall alternatives with ICB.
Figure 4. C2C consumption of nonrenewable primary energy (PE-NRe, in MJ, without energy for heating and cooling)/m2 of the external wall alternatives with ICB.
Applsci 09 01285 g004
Figure 5. NPV/m2 of external wall of the economic (A1–A5, B2–B4, C2–C4, and D stages) and energy (B6 stage) costs of ETICS with ICB.
Figure 5. NPV/m2 of external wall of the economic (A1–A5, B2–B4, C2–C4, and D stages) and energy (B6 stage) costs of ETICS with ICB.
Applsci 09 01285 g005
Figure 6. Difference between the NPV/m2 of external wall of the economic (A1–A5, B2–B4, C2–C4, and D stages) and energy (B6 substage) costs of each external wall alternative and the NPV/m2 of W1, considering different consumption patterns for the use stage (guaranteeing 10%, 35%, or 50% of the energy needs) of ETICS with ICB.
Figure 6. Difference between the NPV/m2 of external wall of the economic (A1–A5, B2–B4, C2–C4, and D stages) and energy (B6 substage) costs of each external wall alternative and the NPV/m2 of W1, considering different consumption patterns for the use stage (guaranteeing 10%, 35%, or 50% of the energy needs) of ETICS with ICB.
Applsci 09 01285 g006
Figure 7. C2C Global Warming Potential (GWP, in kg CO2 eq, without energy for heating and cooling)/m2 of the external wall alternatives of ETICS with ICB and EPS.
Figure 7. C2C Global Warming Potential (GWP, in kg CO2 eq, without energy for heating and cooling)/m2 of the external wall alternatives of ETICS with ICB and EPS.
Applsci 09 01285 g007
Figure 8. C2C consumption of non-renewable primary energy (PE-NRe, in MJ, without energy for heating and cooling)/m2 of the external wall alternatives of ETICS with ICB and EPS.
Figure 8. C2C consumption of non-renewable primary energy (PE-NRe, in MJ, without energy for heating and cooling)/m2 of the external wall alternatives of ETICS with ICB and EPS.
Applsci 09 01285 g008
Figure 9. NPV/m2 of external wall of the economic (A1–A5, B2–B4 and C2–C4 and D stages) and energy (B6 stage) costs of ETICS with ICB and EPS.
Figure 9. NPV/m2 of external wall of the economic (A1–A5, B2–B4 and C2–C4 and D stages) and energy (B6 stage) costs of ETICS with ICB and EPS.
Applsci 09 01285 g009
Figure 10. Difference between the NPV/m2 of external wall of the economic (A1–A5, B2–B4 and C2–C4 and D stages) and energy (B6 sub-stage) costs of each external wall alternative and the NPV/m2 of W1, considering different consumption patterns for the use stage (guaranteeing 10%, 25%, 35% or 50% of the energy needs) of ETICS with ICB and EPS.
Figure 10. Difference between the NPV/m2 of external wall of the economic (A1–A5, B2–B4 and C2–C4 and D stages) and energy (B6 sub-stage) costs of each external wall alternative and the NPV/m2 of W1, considering different consumption patterns for the use stage (guaranteeing 10%, 25%, 35% or 50% of the energy needs) of ETICS with ICB and EPS.
Applsci 09 01285 g010
Figure 11. Difference between the NPV of the economic (A1–A5, B2–B4 and C2–C4 and D stages) and energy (B6 substage) costs of each external wall alternative renovated and the NPV of W1, considering different consumption patterns for the use stage (guaranteeing 10%, 25% or 35% or 50% of the energy needs) and considering the corresponding U-values.
Figure 11. Difference between the NPV of the economic (A1–A5, B2–B4 and C2–C4 and D stages) and energy (B6 substage) costs of each external wall alternative renovated and the NPV of W1, considering different consumption patterns for the use stage (guaranteeing 10%, 25% or 35% or 50% of the energy needs) and considering the corresponding U-values.
Applsci 09 01285 g011
Table 1. Designation, thickness and thermal performance (U-Value) of the ETICS applied.
Table 1. Designation, thickness and thermal performance (U-Value) of the ETICS applied.
Wall TypeDesignationThickness (m)U-Value (W/(m2·°C))
ICB BoardTotal
Single-LeafW1-0.261.36
W20.040.300.58
W30.050.310.51
W40.060.320.45
W50.070.330.41
W60.080.340.37
W70.090.350.34
Cavity WallW8-0.350.95
W90.040.390.49
W100.050.400.44
W110.060.410.39
W120.070.420.36
W130.080.430.33
W140.090.440.30
Table 2. Maintenance, replacement, and repair operations of the external cladding and internal coatings of the external wall solutions evaluated.
Table 2. Maintenance, replacement, and repair operations of the external cladding and internal coatings of the external wall solutions evaluated.
Cladding or Coating SolutionMaintenance, Repair and Replacement Operations
ECS1—Adherent (water-based paint applied on a 0.02 m render)Cleaning and repainting of the whole area every 5 years; repair of 35% of the area after 25 years
ECS2—ETICS
ICS1—Adherent (water-based paint applied on a 0.02 m render)Cleaning and repainting of the whole area each 5 years; repair of 5% of the area after 10 years
Table 3. Life-cycle stages of buildings and building materials based on European standards (CEN, 2012a).
Table 3. Life-cycle stages of buildings and building materials based on European standards (CEN, 2012a).
LCA BoundariesLife-Cycle Stages/LCA Information ModulesLife-Cycle Stage Designation and Description
Cradle to CradleCradle to GraveCradle to GateProduct Stage (A1–A3)A1Raw material extraction and processing, processing of secondary material input
A2Transport to the manufacturer
A3Manufacturing
Gate to GraveConstruction process stage (A4–A5)A4Transport to the building site
A5Installation in the building
Use stage—information modules related to the building fabric (B1–B5)B1Use or application of the installed product
B2Maintenance
B3Repair
B4Replacement
B5Refurbishment
Use stage—information modules related to the operation of the building (B6- B7)B6Operational energy use
B7Operational water use
End-of-life stage (C1–C4)C1D-construction, demolition
C2Transport to waste processing
C3Waste processing for reuse, recover and/or recycling (3R)
C4Disposal
Benefits and loads beyond the system boundary (D)DReuse, recovery and/or recycling (3R) potentials
Table 4. Equations (1), (2), and (3) used to determine the NPV value of each solution.
Table 4. Equations (1), (2), and (3) used to determine the NPV value of each solution.
Equation NumberEquationUnitList of Abbreviations
(1) N P V = n = 0 50 C n ( 1 + d ) n (€/m2)- C n , cost in year n (€ /m2);
- d, real discount rate (without considering risk) applied (3%).
(2) C n = C e v n + C e c n + C e g n (€/declared unit)- C e v n , application of the EIAM (environmental impact assessment method) eco-costs;
- C e c n , product and construction process stages economic cost;
- C e g n , using stages economic cost;
(3) C e g n = 0 , 1 × T × ( N i c η i + N v c η v ) × A a p A e w (€/year·m2 of external wall)- T, cost of 1 kWh of electricity in Portugal for household consumers, without VAT or standing charges (€/kWh) (0.139 €/kWh considering an installation of more than 2.3 kVA (EDP, 2011));
- N i c , nominal annual heating needs per square metre of net floor area of the flat (kWh/m2*year);
- η i , nominal efficiency of the heating equipment (1, considering the reference value—RCCTE [30], that was recently updated by REH [36]);
- N v c , nominal annual cooling needs per square metre of net floor area of the flat (kWh/m2*year);
- η v , nominal efficiency of the cooling equipment (3, considering the reference value [30]);
- A a p , net floor area of the flat under assessment (129.96 m2);
- A e w , total area of the external wall being assessed (40.27 m2).
Table 5. Designation, thickness and type of insulation board in the ETICS applied, and thermal performance (U-value) of the wall after rehabilitation.
Table 5. Designation, thickness and type of insulation board in the ETICS applied, and thermal performance (U-value) of the wall after rehabilitation.
Wall TypeInsulation MaterialDesignationThickness (m)U-Value (W/(m2·°C))
InsulationWall
Single-leafNoneW1-0.261.36
ICBW40.060.320.45
EPSWE40.060.320.42
ICBW60.080.340.37
EPSWE60.080.340.34
ICBW70.090.350.34
EPSWE70.090.350.31
Cavity wallNoneW8-0.350.95
ICBW110.060.410.39
EPSWE110.060.410.37
ICBW130.080.430.33
EPSWE130.080.430.31
ICBW140.090.440.30
EPSWE140.090.440.28
Table 6. Single-leaf external wall solution with the best performance, without considering the reference wall (the colour of each row depends on the best performing solution for each indicator: Brown for ICB and blue for EPS).
Table 6. Single-leaf external wall solution with the best performance, without considering the reference wall (the colour of each row depends on the best performing solution for each indicator: Brown for ICB and blue for EPS).
Approach (LCA)C2C Life-Cycle Stages ConsideredPerformance AspectsHeating and Cooling Needs Fulfilled (%)Best Performance/Design Difference to the Best Alternative Using the Other Insulation Material
GWPA1–A3; A4; A5; B2–B4; C2–C4 and D, without energy use for heating and coolingEnvironmental-W222% (WE2)
PE-NRe30% (WE2)
GWPA1–A3; A4; A5; B2–B4; B6; C2–C4 and DEnvironmental10W72% (WE7)
30W7/WE7
50
PE-NRe10W74% (WE7)
301% (WE7)
50
WLCA1–A3; A4; A5; B2–B4; B6; C2–C4 and DEconomic10WE48% (W4)
25WE76% (W7)
355% (W7)
504% (W7)
Table 7. Cavity wall solution with the best performance, without considering the reference wall (the colour of each row depends on the best performing solution for each indicator: Brown for ICB and blue for EPS).
Table 7. Cavity wall solution with the best performance, without considering the reference wall (the colour of each row depends on the best performing solution for each indicator: Brown for ICB and blue for EPS).
Approach (LCA)C2C Life-Cycle Stages ConsideredPerformance AspectsHeating and Cooling Needs Fulfilled (%)Best Performance/Design Difference to the Best Alternative Using the Other Insulation Material
GWPA1–A3; A4; A5; B2–B4; C2–C4 and D, without energy use for heating and coolingEnvironmental-W922% (WE9)
PE-NRe30% (WE9)
GWPA1–A3; A4; A5; B2–B4; B6; C2–C4 and DEnvironmental10W142% (WE14)
30W14/WE14
50
PE-NRe10W144% (WE14)
301% (WE14)
50
WLCA1–A3; A4; A5; B2–B4; B6; C2–C4 and DEconomic10WE108% (W11)
25W146% (W14)
355% (W14)
504% (W14)

Share and Cite

MDPI and ACS Style

Silvestre, J.D.; Castelo, A.M.P.; Silva, J.J.B.C.; de Brito, J.M.C.L.; Pinheiro, M.D. Retrofitting a Building’s Envelope: Sustainability Performance of ETICS with ICB or EPS. Appl. Sci. 2019, 9, 1285. https://doi.org/10.3390/app9071285

AMA Style

Silvestre JD, Castelo AMP, Silva JJBC, de Brito JMCL, Pinheiro MD. Retrofitting a Building’s Envelope: Sustainability Performance of ETICS with ICB or EPS. Applied Sciences. 2019; 9(7):1285. https://doi.org/10.3390/app9071285

Chicago/Turabian Style

Silvestre, José D., André M. P. Castelo, José J. B. C. Silva, Jorge M. C. L. de Brito, and Manuel D. Pinheiro. 2019. "Retrofitting a Building’s Envelope: Sustainability Performance of ETICS with ICB or EPS" Applied Sciences 9, no. 7: 1285. https://doi.org/10.3390/app9071285

APA Style

Silvestre, J. D., Castelo, A. M. P., Silva, J. J. B. C., de Brito, J. M. C. L., & Pinheiro, M. D. (2019). Retrofitting a Building’s Envelope: Sustainability Performance of ETICS with ICB or EPS. Applied Sciences, 9(7), 1285. https://doi.org/10.3390/app9071285

Note that from the first issue of 2016, this journal uses article numbers instead of page numbers. See further details here.

Article Metrics

Back to TopTop