Retrofitting of Bridge Slabs for Safety Railing Refurbishment in Italy: A State-of-the-Art Review
Abstract
:1. Introduction
2. Size of the Problem
- -
- legislative actions;
- -
- measures to strengthen control and repression;
- -
- interventions to improve the safety of road infrastructures;
- -
- communication and awareness campaigns.
3. Slab Assessment and Retrofitting Approaches
3.1. Structural Assessment
3.2. Slab Retrofit Approaches
- Additional steel rebars in correspondence with barrier posts
- Additional steel rebars along the whole slab length
- Near surface mounted (NSM) ordinary steel plates connected through chemical anchors
- NSM bars, laminates, or textile composites
3.2.1. Additional Steel Rebars
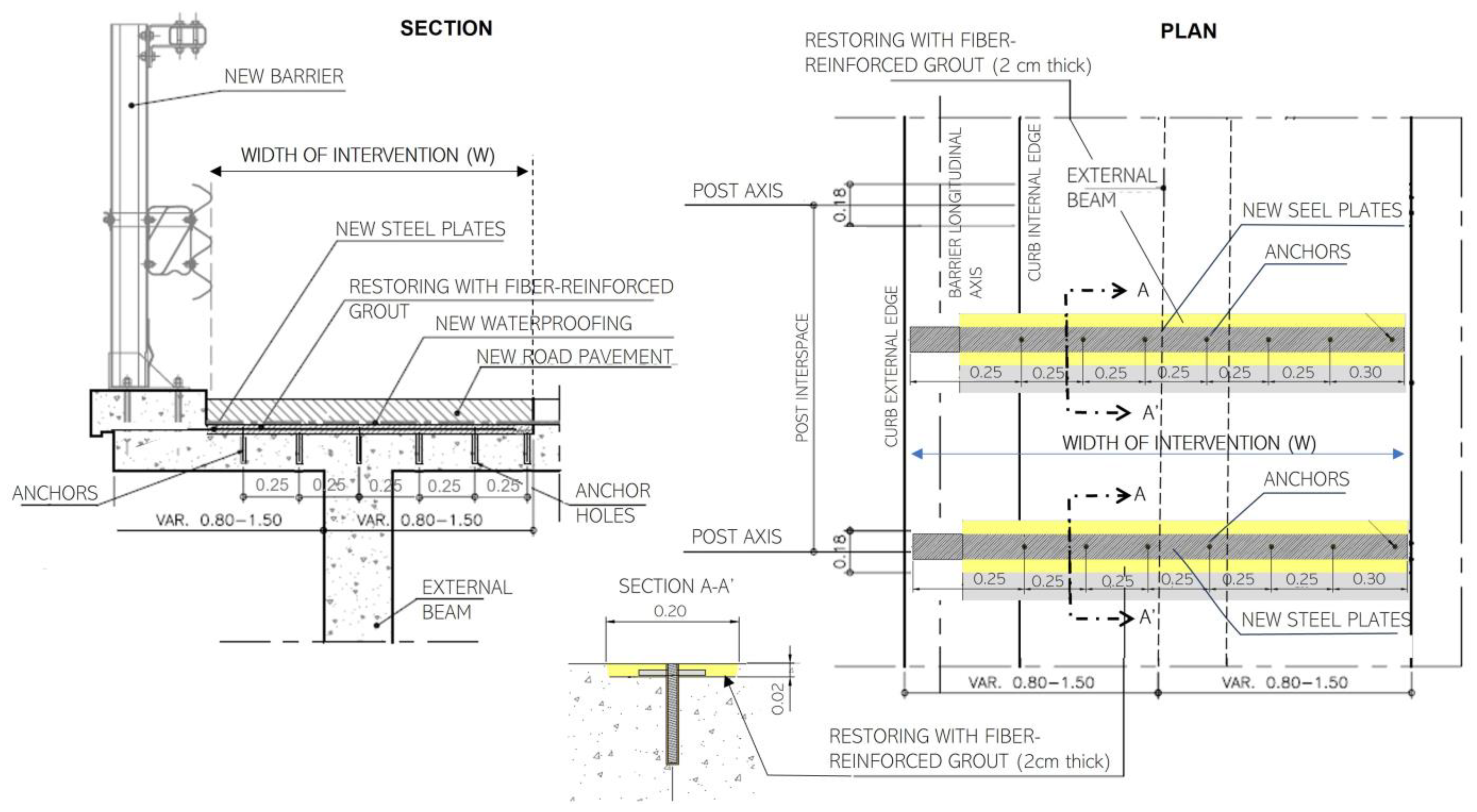
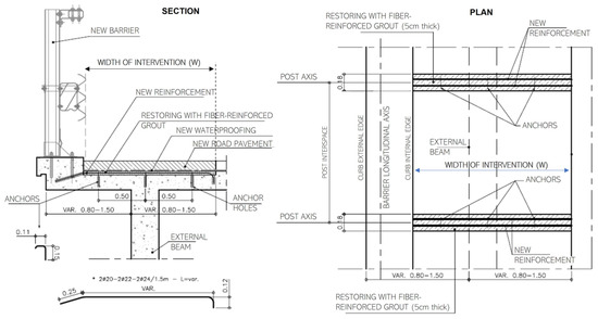
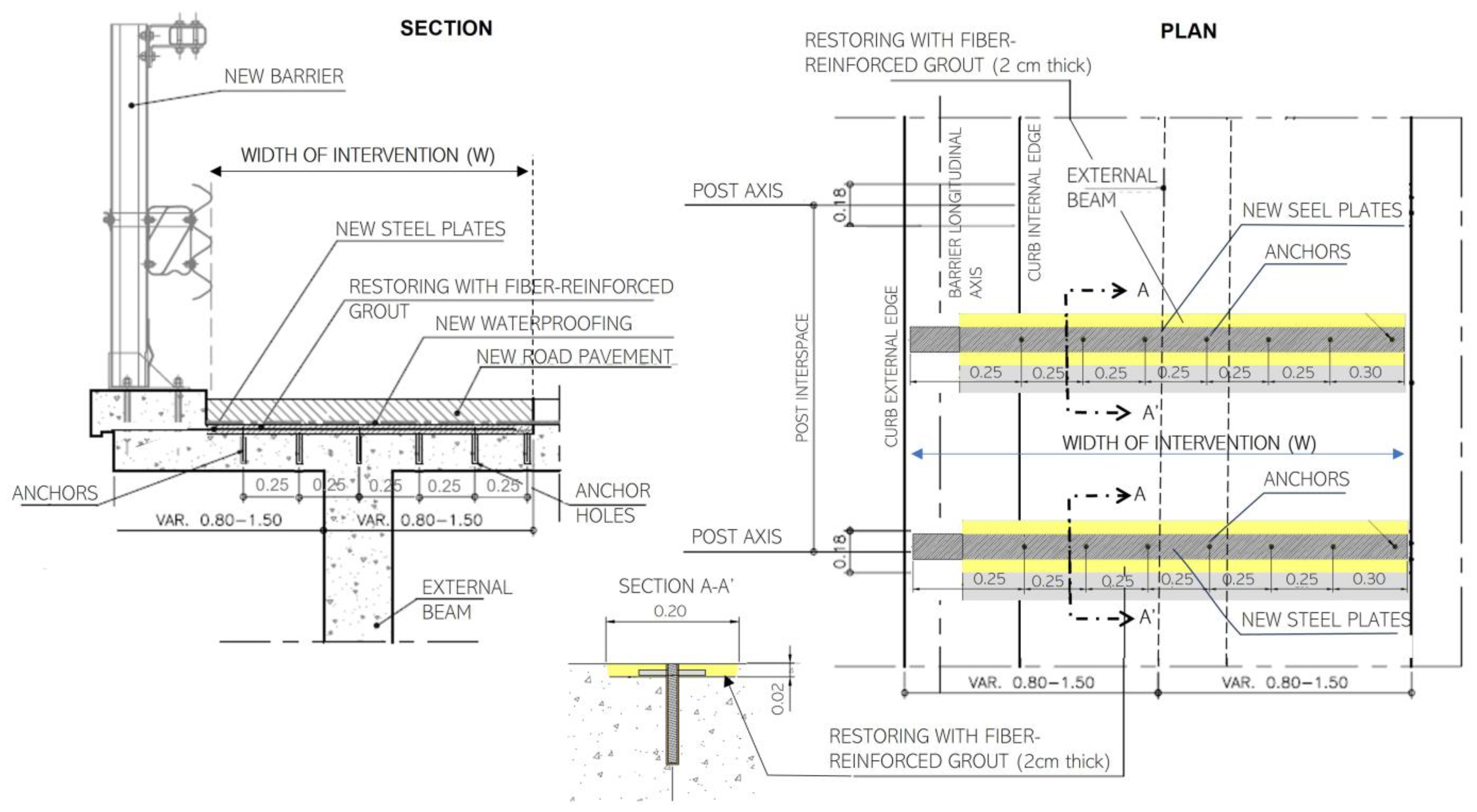
3.2.2. NSM Steel Plates
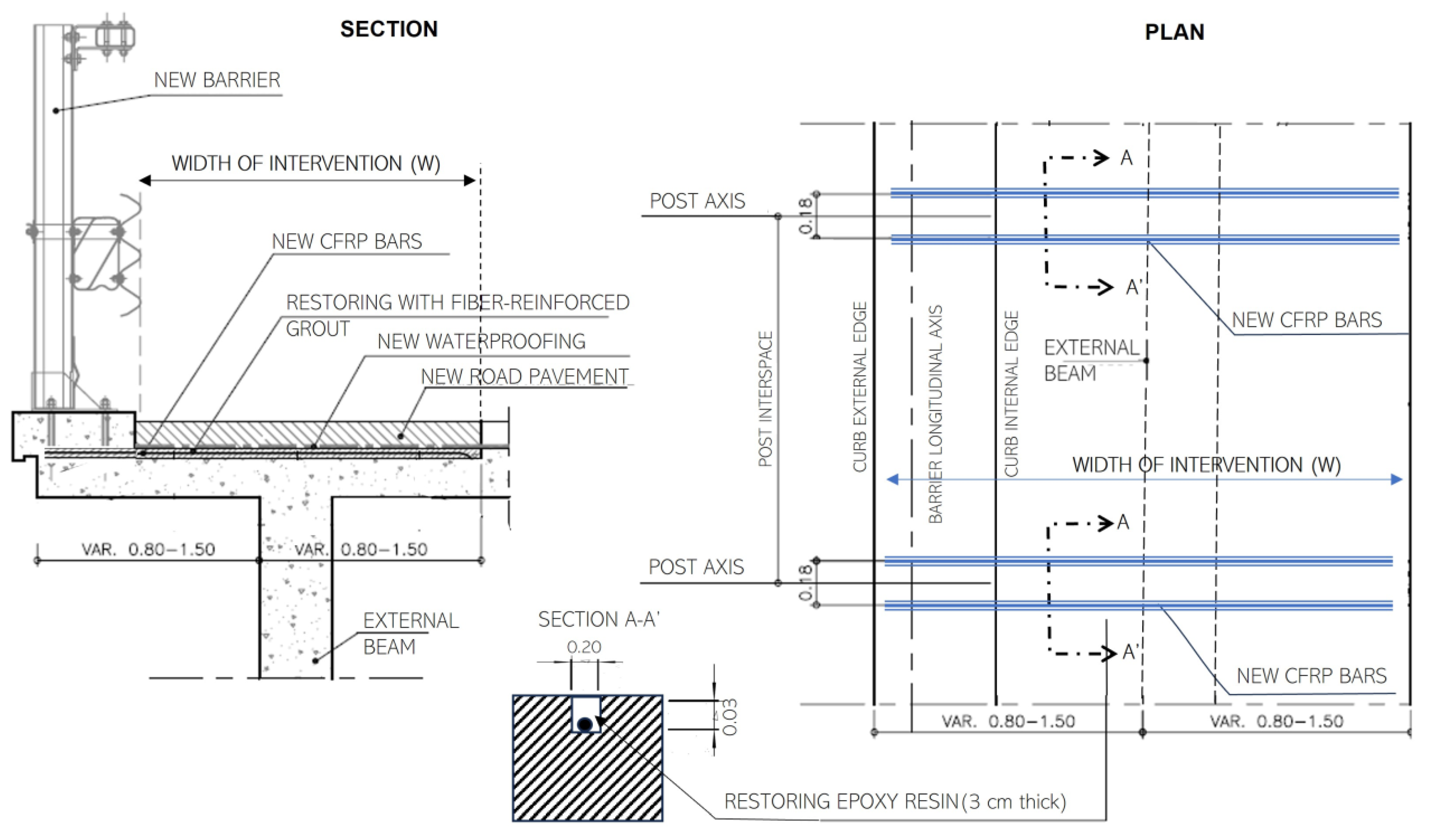
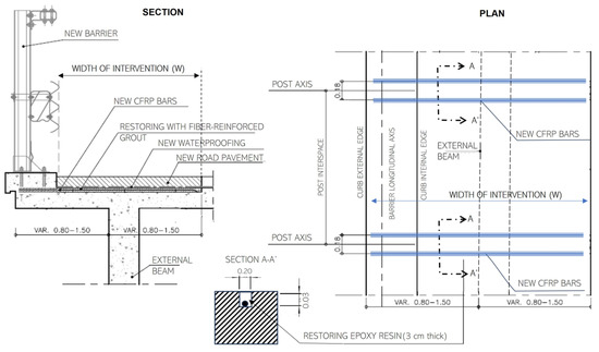
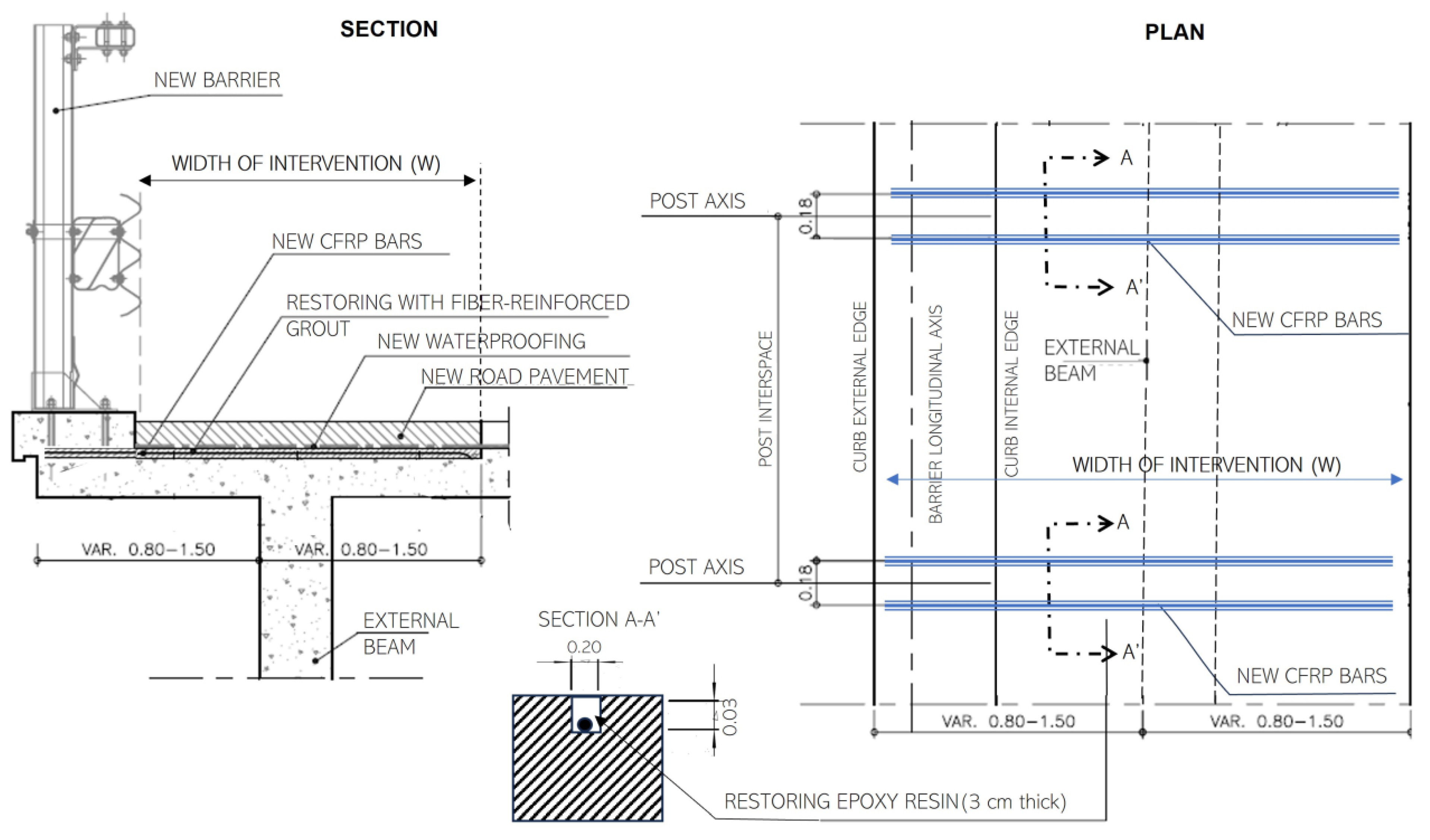
3.2.3. NSM Composites
4. Discussion
5. Conclusions
Funding
Institutional Review Board Statement
Informed Consent Statement
Data Availability Statement
Acknowledgments
Conflicts of Interest
References
- Roberts, H. Italy’s bridge disaster: An inquest into privatization. Financial Times. 2018. Available online: https://www.ft.com/content/874b7e4c-ac3f-11e8-94bd-cba20d67390c (accessed on 6 August 2023).
- DM 18/02/1992 n. 223; Regolamento Recante Istituzioni Tecniche per la Progettazione, L’omologazione e L’impiego Delle Barriere Stradali di Sicurezza (G.U. 16/03/1992, n.63). Ministry of Infrastructure: Roma, Italy, 1992.
- DM 03/06/1998; Istruzioni Tecniche Sulla Progettazione, Omologazione e Impiego Delle Barriere Stradali di Sicurezza. Prescrizioni Tecniche per le Prove ai Fini Dell’omologazione (G.U. 29/10/1998, n.253). Ministry of Infrastructure: Roma, Italy, 1998.
- Norma UNI 01/05/2003 UNI EN 1317-4; Barriere di Sicurezza Stradali—Classi di Prestazione, Criteri di Accettazione per la Prova D’urto e Metodi di Prova per i Terminali e Transizioni di Barriere di Sicurezza. UNI: Milan, Italy,, 2003.
- DM 21/06/2004 n. 2367; Aggiornamento del Istruzioni Tecniche per la Progettazione, L’omologazione e L’impiego Delle Barriere Stradali di Sicurezza e le Prescrizioni Tecniche per le Prove Delle Barriere di Sicurezza Stradale (G.U. 06/08/2004, n. 182). Ministry of Infrastructure: Roma, Italy, 2004.
- Norma UNI 2010 UNI EN 1317-1; Barriere di Sicurezza Stradali. Terminologia e Criteri Generali per I Metodi di Prova. UNI: Milan, Italy, 2010.
- Norma UNI 2010 UNI EN 1317-2; Sistemi di Ritenuta Stradali Parte 2: Classi di Prestazione, Criteri di Accettazione Delle Prove D’urto e Metodi di Prova per le Barriere di Sicurezza Inclusi i Parapetti Veicolari. UNI: Milan, Italy, 2010.
- Norma UNI 2010 UNI EN 1317-3; Barriere di Sicurezza Stradali—Classi di Prestazione, Criteri di Accettabilità Basati Sulle Prove di Impatto e Metodi di Prova Degli Attenuatori D’urto. UNI: Milan, Italy, 2010.
- Incidente stradale del viadotto Acqualonga. In Wikipedia, 4 October 2023. Available online: https://it.wikipedia.org/wiki/Incidente_stradale_del_viadotto_Acqualonga (accessed on 27 July 2023).
- Rymsza, J. Causes of the collapse of the Polcevera Viaduct in Genoa, Italy. Appl. Sci. 2021, 11, 8098. [Google Scholar] [CrossRef]
- Masi, A.; Santarsiero, G.; Chiauzzi, L.; Gallipoli, M.R.; Piscitelli, S.; Vignola, L.; Bellanova, J.; Calamita, G.; Perrone, A.; Lizza, C.; et al. Different damage observed in the villages of Pescara del Tronto and Vezzano after the M6.0 August 24, 2016 central Italy earthquake and site effects analysis. Ann. Geophys. 2016, 59, fast track 5. [Google Scholar] [CrossRef]
- Masi, A.; Santarsiero, G.; Digrisolo, A.; Chiauzzi, L.; Manfredi, V. Procedures and experiences in the post-earthquake usability evaluation of ordinary buildings. Boll. Di Geofis. Teor. Ed Appl. 2016, 57, 199–200. [Google Scholar]
- Ministry of Infrastructure and Transportation - High Council of Public Works (CSLP). Guidelines on Risk Classification and Management, Safety Assessment and Monitoring of Existing Bridges; Ministry of Infrastructure: Rome, Italy, 2020.
- Santarsiero, G.; Masi, A.; Picciano, V.; Digrisolo, A. The Italian Guidelines on Risk Classification and Management of Bridges: Applications and Remarks on Large Scale Risk Assessments. Infrastructures 2021, 6, 111. [Google Scholar] [CrossRef]
- Thanh, L.; Itoh, Y. Performance of curved steel bridge railings subjected to truck collisions. Eng. Struct. 2013, 54, 34–46. [Google Scholar] [CrossRef]
- Zuluaga, C.M.; Albert, A. Preventing falls: Choosing compatible Fall Protection Supplementary Devices (FPSD) for bridge maintenance work using virtual prototyping. Saf. Sci. 2018, 108, 238–247. [Google Scholar] [CrossRef]
- Buildtech, M. Technical Specification of Road Railings. 2023. Available online: https://www.marcegagliabuildtech.it/barriere-sicurezza/ (accessed on 28 August 2023).
- Ibrahim Sallam, A.A.M.A. BEC—Bridge Edge Curbs—GFRP Rebar Reinforcement. Master’s Dissertation, University of Naples “Federico II”, Naples, Italy, 2023. [Google Scholar]
- WHO (World Health Organization). Global Status Report on Road Safety 2018. Available online: https://www.who.int/publications/i/item/9789241565684 (accessed on 30 August 2023).
- Wachnicka, J.; Palikowska, K.; Kustra, W.; Kiec, M. Spatial differentiation of road safety in Europe based on NUTS-2 regions. Accid. Anal. Prev. 2021, 150, 105849. [Google Scholar] [CrossRef] [PubMed]
- 93/704/EC; Council Decision of 30 November 1993 on the Creation of a Community Database on Road Accidents. Available online: https://eur-lex.europa.eu/eli/dec/1993/704/oj (accessed on 12 September 2023).
- DG MOVE—CARE Database on Road Crashes Leading to Death or Injury. Available online: https://dashboard.tech.ec.europa.eu/qs_digit_dashboard_mt/public/extensions/MOVE_CARE_public/MOVE_CARE_public.html (accessed on 10 September 2023).
- Italian national institute of Statistics. Incidenti Stradali Anno 2022. 2023. Available online: https://www.istat.it/it/files/2023/07/REPORT_INCIDENTI_STRADALI_2022_IT.pdf (accessed on 14 September 2023).
- Delibera CIPESS 14 aprile 2022, n. 13; Piano Nazionale Sicurezza Stradale 2030. MIMS. Ministry of Infrastructure and Sustainable Mobility: Rome, Italy, 2022.
- United Nations General Assembly. Resolution Adopted by the General Assembly on 31 August 2020. 2021. Available online: https://frsc.gov.ng/wp-content/uploads/2021/02/UNGA-Resolution-2020.pdf (accessed on 14 September 2023).
- EU. REPORT on the EU Road Safety Policy Framework 2021–2030—Recommendations on Next Steps Towards ‘Vision Zero’. 2021. Available online: https://www.europarl.europa.eu/doceo/document/A-9-2021-0211_EN.html (accessed on 7 September 2023).
- Santarsiero, G.; Albanese, P.; Picciano, V.; Ventura, G.; Masi, A. Level 3 Assessment of Highway Girder Deck Bridges according to the Italian Guidelines: Influence of Transverse Load Distribution. Buildings 2023, 13, 1836. [Google Scholar] [CrossRef]
- ANAS, Listino prezzi. (2022). New construction and scheduled maintenance. Available online: https://www.stradeanas.it/it/elenco-prezzi (accessed on 26 September 2023). (In Italian).
- n.29 del 4/2/2008; NTC2018—Ministry of Infrastructure, DM 17 gennaio 2018: Aggiornamento delle Norme tecniche per le costruzioni, Suppl. or. n.30 alla G.U. Ministry of Infrastructure: Roma, Italy, 2018. (In Italian)
- CIRCOLARE 21 Gennaio 2019, n. 7 C.S.LL.PP; Istruzioni per L’applicazione dell’«Aggiornamento Delle “Norme Tecniche per le Costruzioni”» di cui al Decreto Ministeriale 17 Gennaio 2018. Ministero delle Infrastrutture e dei Trasporti: Roma, Italy, 2018.
- EN 1992-2; Eurocode 2: Design of Concrete Structures—Part 2: Concrete Bridges—Design and Detailing Rules. European Committee for Standardization: Brussels, Belgium, 2005.
- Nagy-Gyorgy, T.; Sas, G.; Daescu, A.C.; Barros, J.A.; Stoian, V. Experimental and numerical assessment of the effectiveness of FRP-based strengthening configurations for dapped-end RC beams. Eng. Struct. 2012, 44, 291–303. [Google Scholar] [CrossRef]
- Santarsiero, G.; Picciano, V.; Masi, A. Structural rehabilitation of half-joints in RC bridges: A state-of-the-art review. Struct. Infrastruct. Eng. 2023, 1–24. [Google Scholar] [CrossRef]
- ANAS. Quaderni tecnici per la salvaguardia delle infrastrutture. Quad. Tec. 2019, 17, 76. [Google Scholar]
- Verderame, G.; Manfredi, G.; Frunzio, G. Le proprietà meccaniche dei calcestruzzi impiegati nelle strutture in cemento armato realizzate negli anni ’60. In Proceedings of the X Convegno Nazionale “L’Ingegneria Sismica in Italia”, Potenza-Matera, Italy, 9–13 September 2001; pp. 9–13. (In Italian). [Google Scholar]
- Verderame, G.; Stella, A.; Cosenza, E. Le proprietà meccaniche degli acciai impiegati nelle strutture in ca realizzate negli anni’60. In Proceedings of the X Convegno Nazionale L’Ingegneria Sismica in Italia, Potenza-Matera, Italy, 9–13 September 2001. (In Italian). [Google Scholar]
- Angst, U.M. Predicting the time to corrosion initiation in reinforced concrete structures exposed to chlorides. Cem. Concr. Res. 2019, 115, 559–567. [Google Scholar] [CrossRef]











| Concrete Cores | Rebars | |
|---|---|---|
| 300 m2 of building floor | 2 | 2 |
| 300 m2 of bridge deck | 2 | 2 |
| # | Description | Advantages | Limitation | Cost |
|---|---|---|---|---|
| 1 | Steel rebars on posts |
|
| Low |
| 2 | Distributed steel rebars |
|
| Medium-low |
| 3 | NSM steel plates |
|
| Medium |
| 4 | NSM composites |
|
| High |
Disclaimer/Publisher’s Note: The statements, opinions and data contained in all publications are solely those of the individual author(s) and contributor(s) and not of MDPI and/or the editor(s). MDPI and/or the editor(s) disclaim responsibility for any injury to people or property resulting from any ideas, methods, instructions or products referred to in the content. |
© 2023 by the author. Licensee MDPI, Basel, Switzerland. This article is an open access article distributed under the terms and conditions of the Creative Commons Attribution (CC BY) license (https://creativecommons.org/licenses/by/4.0/).
Share and Cite
Santarsiero, G. Retrofitting of Bridge Slabs for Safety Railing Refurbishment in Italy: A State-of-the-Art Review. Appl. Sci. 2023, 13, 12051. https://doi.org/10.3390/app132112051
Santarsiero G. Retrofitting of Bridge Slabs for Safety Railing Refurbishment in Italy: A State-of-the-Art Review. Applied Sciences. 2023; 13(21):12051. https://doi.org/10.3390/app132112051
Chicago/Turabian StyleSantarsiero, Giuseppe. 2023. "Retrofitting of Bridge Slabs for Safety Railing Refurbishment in Italy: A State-of-the-Art Review" Applied Sciences 13, no. 21: 12051. https://doi.org/10.3390/app132112051
APA StyleSantarsiero, G. (2023). Retrofitting of Bridge Slabs for Safety Railing Refurbishment in Italy: A State-of-the-Art Review. Applied Sciences, 13(21), 12051. https://doi.org/10.3390/app132112051

