Building Energy Flexibility Assessment in Mediterranean Climatic Conditions: The Case of a Greek Office Building
Abstract
1. Introduction
2. Methodology
2.1. Weather Data
2.2. Electricity Market Data
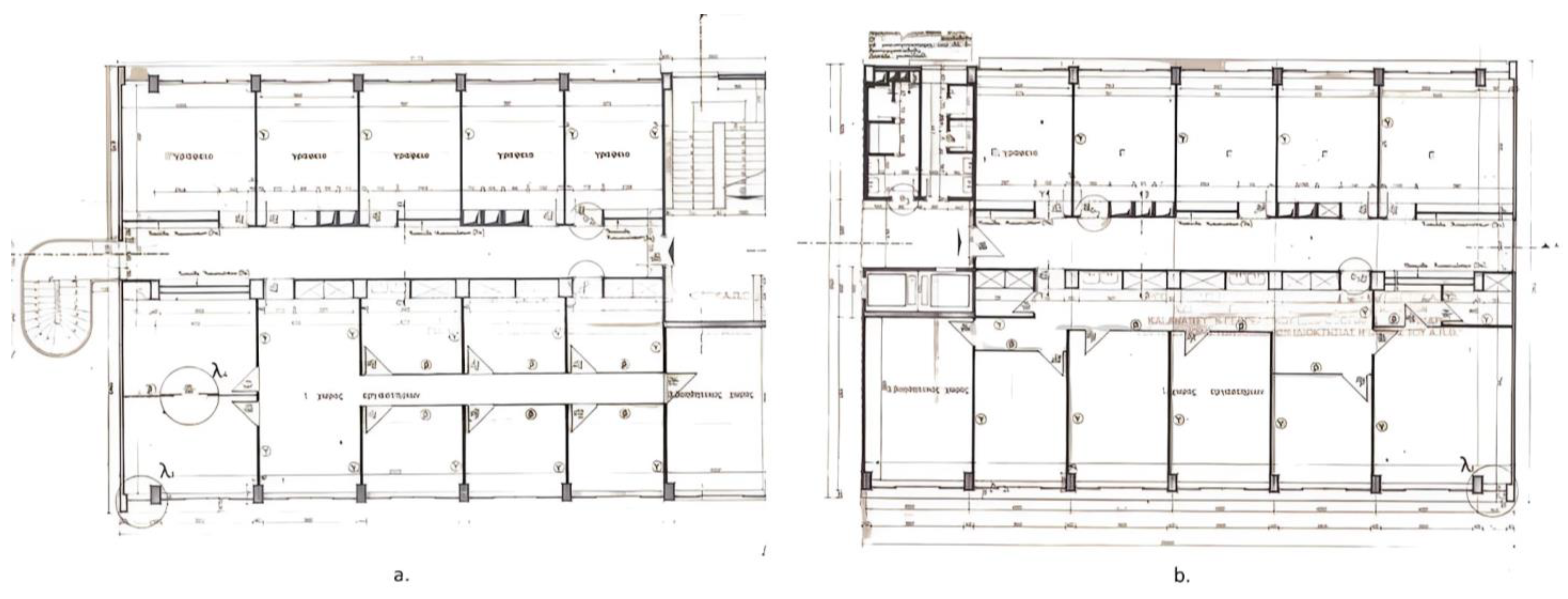
2.3. Building and Thermal Zoning
2.4. Operating Conditions
2.5. Building Shell and HVAC Systems
2.5.1. Building Shell
2.5.2. HVAC Systems
2.6. Modeling and Simulation
3. Control Methods
3.1. Reference
3.2. Predefined Control Strategy
3.3. Cost PRBC
3.4. CO2 PRBC
4. Key Performance Indicators (KPIs)
- Energy use for heating: The electricity consumption of the heat pump during the heating period.
- Average hourly heat pump power: The electricity used for heating averaged to one hour period.
- Coefficient of performance (COP): This metric reflects the heat pump’s energy efficiency.
- CO2eq emissions: CO2eq intensity is used to measure the level of carbon dioxide equivalent emissions caused by the use of the heating system.
- Cost of energy: The cost that occurs during the operation of the heating system.
- Hours of discomfort: During the operation of the building, some people are not satisfied with the indoor environment thermal conditions. Hours of discomfort are calculated as number of hours that the PMV index value is lower than −0.5 or higher than 1.
- Storage capacity: The heat storage capacity of the thermal mass of a building during a DR event [12].
- Storage efficiency: The portion of energy that may be stored in the structure and utilized later for energy flexibility and thermal comfort provision [12].
- Flexibility: When all of a building’s required heating or cooling energy is utilized at the time of day when energy prices or CO2eq intensity are lowest, the Flexibility index, which assumes values from 0% to 100%, is maximized [11].
5. Results and Discussion
5.1. Demand Response Scenario Implementation
5.2. Evaluation of Thermal Mass Flexibility
5.3. Evaluation of Flexibility in Terms of Cost
5.4. Evaluation of Flexibility in Terms of CO2eq Emissions
5.5. Energy Consumption, Cost of Energy, and Carbon Emission Evaluations
6. Conclusions and Future Research
Author Contributions
Funding
Institutional Review Board Statement
Informed Consent Statement
Data Availability Statement
Conflicts of Interest
Nomenclature
| RES | Renewable Energy Sources |
| HVAC | Heating, Ventilation, and Air-Conditioning System |
| DR | Demand Response |
| CHP | Combined Heat and Power |
| AWHP | Air-to-Water Heat Pump |
| TES | Thermal Energy Storage |
| TRNSYS | Transient System Simulation Tool |
| MPC | Model-Predictive Control |
| PRBC | Predictive Rule-Based Control |
| KPI | Key Performance Indicator |
| COP | Coefficient of Performance |
| PMV | Predicted Mean Vote |
References
- Heylen, E.; Deconinck, G.; Van Hertem, D. Review and Classification of Reliability Indicators for Power Systems with a High Share of Renewable Energy Sources. Renew. Sustain. Energy Rev. 2018, 97, 554–568. [Google Scholar] [CrossRef]
- Jensen, S.Ø.; Marszal-Pomianowska, A.; Lollini, R.; Pasut, W.; Knotzer, A.; Engelmann, P.; Stafford, A.; Reynders, G. IEA EBC Annex 67 Energy Flexible Buildings. Energy Build. 2017, 155, 25–34. [Google Scholar] [CrossRef]
- European Commission. Proposal for a Directive of the European Parliament and of the Council on the Energy Performance of Buildings (Recast). Off. J. Eur. Union 2021, 0426, 10–27. [Google Scholar]
- Chantzis, G.; Giama, E.; Nizetic, S.; Papadopoulos, A. The Potential of Demand Response as a Tool for Decarbonization in the Energy Transition. In Proceedings of the 2022 7th International Conference on Smart and Sustainable Technologies (SpliTech), Split/Bol, Croatia, 5–8 July 2022; pp. 1–4. [Google Scholar]
- Lu, F.; Yu, Z.; Zou, Y.; Yang, X. Cooling System Energy Flexibility of a Nearly Zero-Energy Office Building Using Building Thermal Mass: Potential Evaluation and Parametric Analysis. Energy Build. 2021, 236, 110763. [Google Scholar] [CrossRef]
- Chen, Y.; Xu, P.; Gu, J.; Schmidt, F.; Li, W. Measures to Improve Energy Demand Flexibility in Buildings for Demand Response (DR): A Review. Energy Build. 2018, 177, 125–139. [Google Scholar] [CrossRef]
- Nuytten, T.; Claessens, B.; Paredis, K.; Van Bael, J.; Six, D. Flexibility of a Combined Heat and Power System with Thermal Energy Storage for District Heating. Appl. Energy 2013, 104, 583–591. [Google Scholar] [CrossRef]
- Arteconi, A.; Mugnini, A.; Polonara, F. Energy Flexible Buildings: A Methodology for Rating the Flexibility Performance of Buildings with Electric Heating and Cooling Systems. Appl. Energy 2019, 251, 113387. [Google Scholar] [CrossRef]
- De Coninck, R.; Helsen, L. Quantification of Flexibility in Buildings by Cost Curves–Methodology and Application. Appl. Energy 2016, 162, 653–665. [Google Scholar] [CrossRef]
- Oldewurtel, F.; Sturzenegger, D.; Andersson, G.; Morari, M.; Smith, R.S. Towards a Standardized Building Assessment for Demand Response. In Proceedings of the 52nd IEEE Conference on Decision and Control, Firenze, Italy, 10–13 December 2013. [Google Scholar]
- Masy, G.; Georges, E.; Verhelst, C.; Lemort, V.; André, P. Smart Grid Energy Flexible Buildings through the Use of Heat Pumps and Building Thermal Mass as Energy Storage in the Belgian Context. Sci. Technol. Built Environ. 2015, 21, 800–811. [Google Scholar] [CrossRef]
- Reynders, G.; Diriken, J.; Saelens, D. Generic Characterization Method for Energy Flexibility: Applied to Structural Thermal Storage in Residential Buildings. Appl. Energy 2017, 198, 192–202. [Google Scholar] [CrossRef]
- Péan, T.Q.; Torres, B.; Salom, J.; Ortiz, J. Representation of Daily Profiles of Building Energy Flexibility. In eSIM 2018 Conference Proceedings; IBPSA: Montréal, QC, Canada, 2018; pp. 153–162. [Google Scholar]
- D’Ettorre, F.; De Rosa, M.; Conti, P.; Testi, D.; Finn, D. Mapping the Energy Flexibility Potential of Single Buildings Equipped with Optimally-Controlled Heat Pump, Gas Boilers and Thermal Storage. Sustain. Cities Soc. 2019, 50, 101689. [Google Scholar] [CrossRef]
- Yin, R.; Kara, E.C.; Li, Y.; DeForest, N.; Wang, K.; Yong, T.; Stadler, M. Quantifying Flexibility of Commercial and Residential Loads for Demand Response Using Setpoint Changes. Appl. Energy 2016, 177, 149–164. [Google Scholar] [CrossRef]
- Ruusu, R.; Cao, S.; Manrique Delgado, B.; Hasan, A. Direct Quantification of Multiple-Source Energy Flexibility in a Residential Building Using a New Model Predictive High-Level Controller. Energy Convers. Manag. 2019, 180, 1109–1128. [Google Scholar] [CrossRef]
- Vogler-Finck, P.J.C.; Wisniewski, R.; Popovski, P. Reducing the Carbon Footprint of House Heating through Model Predictive Control—A Simulation Study in Danish Conditions. Sustain. Cities Soc. 2018, 42, 558–573. [Google Scholar] [CrossRef]
- Péan, T.; Costa-Castelló, R.; Salom, J. Price and Carbon-Based Energy Flexibility of Residential Heating and Cooling Loads Using Model Predictive Control. Sustain. Cities Soc. 2019, 50, 101579. [Google Scholar] [CrossRef]
- Esmaeilzadeh, A.; Deal, B.; Yousefi-Koma, A.; Zakerzadeh, M.R. How Combination of Control Methods and Renewable Energies Leads a Large Commercial Building to a Zero-Emission Zone—A Case Study in U.S. Energy 2023, 263, 125944. [Google Scholar] [CrossRef]
- Vigna, I.; Lollini, R.; Pernetti, R. Assessing the Energy Flexibility of Building Clusters under Different Forcing Factors. J. Build. Eng. 2021, 44, 102888. [Google Scholar] [CrossRef]
- Clauß, J.; Stinner, S.; Sartori, I.; Georges, L. Predictive Rule-Based Control to Activate the Energy Flexibility of Norwegian Residential Buildings: Case of an Air-Source Heat Pump and Direct Electric Heating. Appl. Energy 2019, 237, 500–518. [Google Scholar] [CrossRef]
- Pallonetto, F.; Oxizidis, S.; Milano, F.; Finn, D. The Effect of Time-of-Use Tariffs on the Demand Response Flexibility of an All-Electric Smart-Grid-Ready Dwelling. Energy Build. 2016, 128, 56–67. [Google Scholar] [CrossRef]
- EnExGroup Webpage. Available online: https://www.enexgroup.gr/web/guest/home (accessed on 27 February 2021).
- IPCC Climate Change 2014: Synthesis Report. Contribution of Working Groups I, II and III to the Fifth Assessment Report of the Intergovernmental Panel on Climate Change 2014; IPCC: Geneva, Switzerland, 2014.
- Greek Government Gazette on the Approval of a Regulation for the Thermal Insulation of Buildings; National Printing House of Greece: Athens, Greek, 1979; p. 362.
- ANSI/ASHRAE Standard 90; 1-2007 Energy Standard for Buildings Except Low-Rise Residential Buildings. ASHRAE: Peachtree Corners, GA, USA, 2007.
- European Parliament. Directive 2010/31/EU; Official Journal of the European Union; European Union: Brussels, Belgium, 2010; p. L153/13. [Google Scholar]
- Chantzis, G.; Antoniadou, P.; Symeonidou, M.; Giama, E.; Oxizidis, S.; Kolokotsa, D.; Papadopoulos, A. Demand Side Flexibility Potential and Comfort Performance of Non-Residential Buildings. J. Phys. Conf. Ser. 2021, 2069, 12151. [Google Scholar] [CrossRef]
- Giama, E.; Chantzis, G.; Kontos, S.; Keppas, S.; Poupkou, A.; Liora, N.; Melas, D. Building Energy Simulations Based on Weather Forecast Meteorological Model: The Case of an Institutional Building in Greece. Energies 2023, 16, 191. [Google Scholar] [CrossRef]
- SCL TRNSYS 18; Thermal Energy System Specialists, LLC: Madison, WI, USA, 2018; Volume 3.
- Toffanin, R.; Péan, T.; Ortiz, J.; Salom, J. Development and Implementation of a Reversible Variable Speed Heat Pump Model for Model Predictive Control Strategies. In Proceedings of the 16th IBPSA Conference, Rome, Italy, 2–4 September 2019. [Google Scholar]
- Chantzis, G.; Antoniadou, P.; Symeonidou, M.; Kyriaki, E.; Giama, E.; Oxyzidis, S.; Kolokotsa, D.; Papadopoulos, A. Evaluation of Methods for Determining Energy Flexibility of Buildings. Green Energy Sustain. 2022, 2, 6. [Google Scholar] [CrossRef]
- Giama, E. Review on Ventilation Systems for Building Applications in Terms of Energy Efficiency and Environmental Impact Assessment. Energies 2022, 15, 98. [Google Scholar] [CrossRef]













| Offices | Ancillary Spaces | |
|---|---|---|
| Working hours | 10 h/day | |
| Days of operation | 5 days/week | |
| Operating period | 12 months | |
| Heating setpoint | 21 °C | 18 °C |
| Number of users | 10 people/100 m2 | - |
| Fresh air required | 3 m3/h/m2 | 2.6 m3/h/m2 |
| Lighting level | 500 lx | 100 lx |
| Installed lighting power | 14 W/m2 | 2.8 W/m2 |
| People heat gain | 80 W/person | - |
| Equipment power | 15 W/m2 | - |
| Component | Materials | U-Value (W/(m2K) | |
|---|---|---|---|
| Reference building | External walls | ![]() | 0.71 |
| Roof | ![]() | 0.77 | |
| Ground floor | ![]() | 3.11 | |
| Windows | double-glazed, aluminum frame | 2.82 | |
| Case A building | External walls | ![]() | 0.35 |
| Roof | ![]() | 0.37 | |
| Ground floor | ![]() | 3.11 | |
| Windows | Argon filler double-glazing, aluminum frame with thermal break | 1.57 |
| CADR | ηADR | |
|---|---|---|
| Unit | kWh | % |
| Reference | 115.6 | 43.9 |
| Case A | 121.9 | 53.2 |
| Energy | Costs | Emissions | Thermal Discomfort | ||||||
|---|---|---|---|---|---|---|---|---|---|
| Unit | kWh | % | EUR | % | CO2eq | % | h | % | |
| Reference building | Reference | 155,220 | - | 39,483 | - | 50,548 | - | 26 | - |
| Cost PRBC | 152,590 | −1.7% | 38,057 | −3.6% | 48,897 | −3.3% | 32 | 23.1% | |
| CO2 PRBC | 154,320 | −0.6% | 38,725 | −1.9% | 48,795 | −3.5% | 30 | 15.4% | |
| Case A building | Reference | 62,056 | - | 15,639 | - | 20,622 | - | 0 | |
| Cost PRBC | 65,119 | 4.9% | 15,747 | 0.7% | 20,839 | 1.1% | 0 | 0% | |
| CO2 PRBC | 65,299 | 5.2% | 16,089 | 2.9% | 20,599 | −0.1% | 0 | 0% | |
Disclaimer/Publisher’s Note: The statements, opinions and data contained in all publications are solely those of the individual author(s) and contributor(s) and not of MDPI and/or the editor(s). MDPI and/or the editor(s) disclaim responsibility for any injury to people or property resulting from any ideas, methods, instructions or products referred to in the content. |
© 2023 by the authors. Licensee MDPI, Basel, Switzerland. This article is an open access article distributed under the terms and conditions of the Creative Commons Attribution (CC BY) license (https://creativecommons.org/licenses/by/4.0/).
Share and Cite
Chantzis, G.; Giama, E.; Papadopoulos, A.M. Building Energy Flexibility Assessment in Mediterranean Climatic Conditions: The Case of a Greek Office Building. Appl. Sci. 2023, 13, 7246. https://doi.org/10.3390/app13127246
Chantzis G, Giama E, Papadopoulos AM. Building Energy Flexibility Assessment in Mediterranean Climatic Conditions: The Case of a Greek Office Building. Applied Sciences. 2023; 13(12):7246. https://doi.org/10.3390/app13127246
Chicago/Turabian StyleChantzis, Georgios, Effrosyni Giama, and Agis M. Papadopoulos. 2023. "Building Energy Flexibility Assessment in Mediterranean Climatic Conditions: The Case of a Greek Office Building" Applied Sciences 13, no. 12: 7246. https://doi.org/10.3390/app13127246
APA StyleChantzis, G., Giama, E., & Papadopoulos, A. M. (2023). Building Energy Flexibility Assessment in Mediterranean Climatic Conditions: The Case of a Greek Office Building. Applied Sciences, 13(12), 7246. https://doi.org/10.3390/app13127246







