Utilization of 3D Digital Technologies in the Documentation of Cultural Heritage: A Case Study of the Kunerad Mansion (Slovakia)
Abstract
1. Introduction
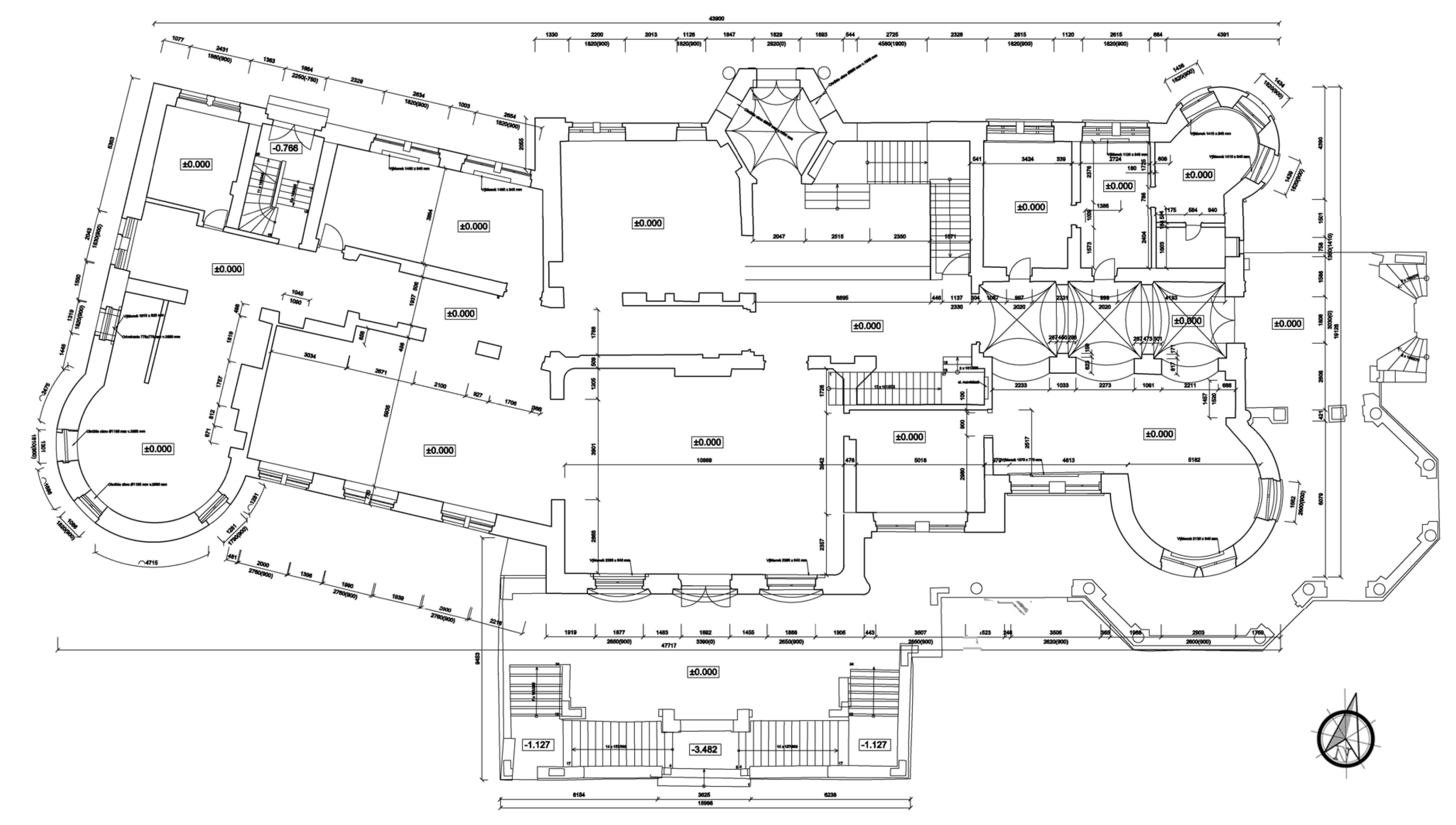
2. Subject of Case Study and Scientific Problem
3. Methods
4. 3D Laser Terrestrial Scanning: Knowledge Base
4.1. Selection of Appropriate Digitization Technology
- Terrestrial laser scanning;
- Terrestrial (ground) photogrammetry;
- Aerial photogrammetry.
4.2. Terrestrial Laser Scanning: Planning Phase
4.3. Terrestrial Laser Scanning: Realization Phase
5. Photogrammetry: Knowledge Base
- Positions;
- Method of evaluation;
- Number of pictures taken;
- Evaluations.
5.1. Photogrammetry General Principles: Planning Phase
- When capturing the subject, there is no relationship between the size of the subject and the number of shots. If there are enough photos available, more details can be captured and there is no need to return to the place and take a new picture of the object.
- If possible, capturing should be performed at the highest possible resolution and without using zoom during shooting. Our advice is to create captured images in RAW format in terms of the larger range of adjustments.
- Time, lighting, weather, haze and spatial conditions need to be considered so that the object can be captured from every possible angle and under consistent lighting conditions in the digitization process. This data can be used in combination with laser scanning.
- Try to avoid shadows, because the RGB information is lost during the 3D model creation process and the model shape is incorrectly rendered.
- When applying the convergent capturing method, it is necessary to ensure a sufficient degree of image overlap. If the overlap level does not reach the value of at least 80%, the detailing process may not be accurate. To ensure sufficient overlap between the individual pictures and adjust for their distortion, the horizontal angle should be in the range (−45°, 45°) and the vertical angle (−30°, 30°) [35].
- Pictures should not show any signs of blur due to hand movement or instability of the body and should also be taken with minimal noise. If there is the need for focus only on the subject, shooting is then performed in automatic mode. In manual mode, we gain control over the basic parameters of the camera (ISO, F, f) and a balance is sought between them through the exposure triangle.
- Capturing should be in the loop and with the same distance around the whole object if possible due to the spatial arrangement. The shooting distance should copy the shape of the subject throughout the loop. From the point of view of the vertical displacement, these loops should be made at intervals, respecting the value of the overlap. The aim is to achieve an even level of detail throughout the building.
- Try to avoid panoramic shots because with these the depth information of each point in the picture is not obtained. Therefore, it is necessary to take pictures at small distances.
- When using unmanned aerial vehicles (UAV), it is necessary to perform a control flight over and next to the building in the initial phase. Based on this flight, places where additional detailed scanning is required are identified.
- Evaluate the situation in terms of setting the UAV selection of individual modes, both automatic and manual. It is also possible to create a combination of individual modes when it is necessary to consider the time of flight, weather conditions, space conditions or the phase of reconstruction carried out at the time.
- In terms of flight speed in automatic flight mode, set the shutter speed and autofocus points so that pictures are not blurred.
- For accurate parameterization of the object, it is suitable to use alignment points with known spacing distances, or to use a measuring tape or other tool of known size.
- In order not to degrade the images, it is necessary to avoid moving objects, dust and smoke during the whole digitization process.
- The subject should be as large as possible in the photo.
5.2. Terrestrial (Ground) Photogrammetry: Realization Phase
5.3. Aerial Photogrammetry: Realization Phase
5.4. Photogrammetry Data Processing
6. Integration of Terrestrial Scanning, Terrestrial Photogrammetry and Aerial Photogrammetry
7. Building Information Modeling: Knowledge Base
7.1. Building Information Modeling: Planning Phase
7.2. Building Information Modeling: Realization Phase
- Changes in individual units in the dispositional solution of the building, including changes in individual parts of structures, materials and location;
- Unexpected complications that occurred during the construction and appropriate solutions applied, including notes and dates of resolved changes;
- Attached with all related shop drawings and appendices [50].
8. Conclusions
- (1)
- If a monument is devastated by fire, a documentary safety analysis of the monument is always required;
- (2)
- Interior spatial conditions can be a limiting factor in the case of a devastated object and it is necessary to consider which method to use for data collection (TLS or photogrammetry);
- (3)
- A 3D model obtained from aerial photogrammetry helps in the planning of reconstruction works in terms of machines and mechanisms’ location;
- (4)
- A BIM model becomes a necessary part of construction management for its monitoring but also for other works associated with reconstruction or renovation;
- (5)
- A HBIM model allows understanding of the state of the monument, the decay of individual materials, and identifies cracks and deformations.
Author Contributions
Funding
Institutional Review Board Statement
Informed Consent Statement
Acknowledgments
Conflicts of Interest
References
- Tornincasa, S.; Di Monaco, F. The future and the evolution of CAD. In Proceedings of the 14th International Research/Expert Conference, “Trends in the Development of Machinery and Associated Technology”, Mediterranean Cruise, Online, 11–18 September 2010. [Google Scholar]
- Logothetis, S.; Stylianidis, E. BIM Open Source Software (OSS) for the documentation of cultural heritage. Virtual Archeol. Rev. 2016, 7, 28–35. [Google Scholar] [CrossRef]
- Volk, R.; Stengel, J.; Schultmann, F. Building Information Modeling (BIM) for existing buildings—Literature review and future needs. Autom. Constr. 2014, 38, 109–127. [Google Scholar] [CrossRef]
- Manjrekar, S.; Sandilya, S.; Bhosale, D.; Kanchi, S.; Pitkar, A.; Gondhalekar, M. CAVE: An Emerging Immersive Technology—A Review. In Proceedings of the UKSim-AMSS 16th International Conference on Computer Modelling and Simulation, Cambridge, UK, 26–28 March 2014; ISBN 978-1-4799-4923-6. [Google Scholar]
- Gizzi, F.T.; Biscione, M.; Danese, M.; Maggio, A.; Pecci, A.; Sileo, M.; Potenza, M.R.; Masini, N.; Ruggeri, A.; Sileo, A.; et al. School-Work Alternation (SWA) Working Group (WG), Students Meet Cultural Heritage: An Experience within the Framework of the Italian School-Work Alternation (SWA)—From Outcomes to Outlooks. Heritage 2019, 2, 1986–2016. [Google Scholar] [CrossRef]
- The Europeana Platform. Available online: https://digital-strategy.ec.europa.eu/en/policies/europeana (accessed on 16 March 2022).
- Summary Report of the Public Consultation on Europeana, Europe’s Digital Platform for Cultural Heritage. 2018. Available online: https://digital-strategy.ec.europa.eu/en/summary-report-public-consultation-europeana-europes-digital-platform-cultural-heritage (accessed on 16 March 2022).
- Toz, G.; Duran, Z. Documentation and Analysis of Cultural Heritage by Photogrametric Methods and GIS: A Case Study. Commission V, WG V/4. 2019. Available online: https://www.isprs.org/PROCEEDINGS/XXXV/congress/comm5/papers/593.pdf (accessed on 16 March 2022).
- Tobiasz, A.; Markiewicz, J.; Łapiński, S.; Nikel, J.; Kot, P.; Muradov, M. Review of Methods for Documentation, Management, and Sustainability of Cultural Heritage. Case Study: Museum of King Jan III’s Palace at Wilanów. Sustainability 2019, 11, 7046. [Google Scholar] [CrossRef]
- Grussenmeyer, P.; Landes, T.; Voegtle, T.; Ringle, K. Comparison Methods of Terrestrial Laser Scanning, Photogrammetry and Tacheometry Data for Recording of Cultural Heritage Buildings. Int. Arch. Photogramm. Remote Sens. Spat. Inf. Sci. 2008, 37, 213–218. Available online: https://www.researchgate.net/profile/Tania-Landes/publication/228645072_Comparison_Methods_of_Terrestrial_Laser_Scanning_Photogrammetry_and_Tacheometry_Data_for_Recording_of_Cultural_Heritage_Buildings/links/0fcfd50afe2b3011ba000000/Comparison-Methods-of-Terrestrial-Laser-Scanning-Photogrammetry-and-Tacheometry-Data-for-Recording-of-Cultural-Heritage-Buildings.pdf (accessed on 16 March 2022).
- Fai, S.; Graham, K.; Duckworth, T.; Wood, N.; Attar, R. Building information modelling and heritage documentation. In Proceedings of the XXIII CIPA International Symposium, Prague, Czech Republic, 11–16 September 2011. [Google Scholar]
- Saygi, G.; Agugiano, G.; Hamamcioglu-Turan, M.; Remondino, F. Evaluation of gis and bim roles for the information management of historical buildings. In Proceedings of the ISPRS Annals of the Photogrammetry, Remote Sensing and Spatial Information Sciences, Volume II-5/W1, XXIV International CIPA Symposium, Strasbourg, France, 2–6 September 2013. [Google Scholar]
- Di Stefano, F.; Chiappini, S.; Gorreja, A.; Balestra, M.; Pierdicca, R. Mobile 3D scan LiDAR: A literature review. Geomat. Nat. Hazards Risk 2021, 12, 2387–2429. [Google Scholar] [CrossRef]
- Muenster, S. Digital 3D Technologies for Humanities Research and Education: An Overview. Appl. Sci. 2022, 12, 2426. [Google Scholar] [CrossRef]
- Parfenov, V.; Igoshin, S.; Masaylo, D.; Orlov, A.; Kuliashou, D. Use of 3D Laser Scanning and Additive Technologies for Reconstruction of Damaged and Destroyed Cultural Heritage Objects. Quantum Beam Sci. 2022, 6, 11. [Google Scholar] [CrossRef]
- Buonamici, F.; Carfagni, M.; Furferi, R.; Governi, L.; Lapini, A.; Volpe, Y. Reverse engineering modeling methods and tools: A survey. Comput.-Aided Des. Appl. 2018, 15, 443–464. [Google Scholar] [CrossRef]
- Saiga, K.; Ullah, S.; Kubo, A.; Tashi, A. Sustainable Reverse Engineering Process. In Proceedings of the 28th CIRP Conference on Life Cycle Engineering, Jaipur, India, 10–12 March 2021; pp. 517–522. [Google Scholar]
- History of Kunerad Castle. Available online: https://www.zamokkunerad.sk/ (accessed on 20 October 2021).
- Wu, C.; Yuan, Y.; Tang, Y.; Tian, B. Application of Terrestrial Laser Scanning (TLS) in the Architecture, Engineering and Construction (AEC) Industry. Sensors 2022, 22, 265. [Google Scholar] [CrossRef]
- Monego, M.; Fabris, M.; Menin, A.; Achilli, V. 3-D survey applied to industrial archaeology by tls methodology. Int. Arch. Photogramm. Remote Sens. Spat. Inf. Sci. 2017, 5, 449–455. [Google Scholar] [CrossRef]
- Marín-Buzón, C.; Pérez-Romero, A.M.; León-Bonillo, M.J.; Martínez-Álvarez, R.; Mejías-García, J.C.; Manzano-Agugliaro, F. Photogrammetry (SfM) vs. Terrestrial Laser Scanning (TLS) for Archaeological Excavations: Mosaic of Cantillana (Spain) as a Case Study. Appl. Sci. 2021, 11, 11994. [Google Scholar] [CrossRef]
- Vosselman, G.; Maas, H.G. Airborne and Terrestrial Laser Scanning, 1st ed.; CRC Press: Boca Raton, FL, USA, 2010; ISBN 978-1904445-87-6. [Google Scholar]
- Arayici, Y. An approach for real world data modelling with the 3D terrestrial laser scanner for built environment. Autom. Constr. 2007, 16, 816–829. [Google Scholar] [CrossRef]
- Segreto, T.; Caggiano, A.; D’Addona, D.M. Assessment of laser-based reverse engineering systems for tangible cultural heritage conservation. Int. J. Comput. Integr. Manuf. 2013, 26, 857–865. [Google Scholar] [CrossRef][Green Version]
- Bradley, C.; Currie, B. Advances in the field of reverse engineering. Comput. Aided Des. Appl. 2005, 2, 697–706. Available online: https://www.scopus.com/record/display.uri?eid=2-s2.0-36249012143&origin=inward&txGid=d567d36d5445d66d28ce5948b33ee117 (accessed on 11 January 2022). [CrossRef]
- Sniderman, D. How to Choose Digitizing Technologies, 3D Scanning 101—Digital Engineering. 2010. Available online: https://www.digitalengineering247.com/article/3d-scanning-101/ (accessed on 11 January 2022).
- Boehler, W.; Marbs, A. The potential of noncontact close range laser scanners for cultural heritage recording. In Proceedings of the CIPA XIX International Symposium, XVIII-2001, Potsdam, Germany, 18–21 September 2001; p. 34. Available online: https://www.researchgate.net/publication/265425255_The_potential_of_non-contact_close_range_laser_scanners_for_cultural_heritage_recording (accessed on 12 January 2022).
- Wolf, P.; Dewitt, B.; Wilkinson, B. Elements of Photogrammetry with Application in GIS, 4th ed.; McGraw-Hill Education: Maidenhead, UK, 2014. [Google Scholar]
- McGlone, J.C. Manual of Photogrammetry, 5th ed.; American Society for Photogrammetry and Remote Sensing; Bethesda: Rockville, MA, USA, 2004; ISBN 978-1570830716. [Google Scholar]
- Alan, A.; Bill, B.; Cathy, T. Digital camera self-calibration. ISPRS J. Photogramm. Remote Sens. 1997, 52, 149–159. [Google Scholar]
- Acosta, E.; Spettu, F.; Fiorillo, F. A procedure to import a complex geometry model of a heritage building into bim for advanced architectural representations. Int. Arch. Photogramm. Remote Sens. Spat. Inf. Sci. 2022. [Google Scholar] [CrossRef]
- Rademacher, P.; Lengyel, J.; Cutrell, E.; Whitted, T. Measuring the perception of visual realism in images. In Rendering Techniques; Gortler, S.J., Myszkowski, K., Eds.; Springer Science and Business Media: Berlin/Heidelberg, Germany, 2001; pp. 235–247. [Google Scholar] [CrossRef]
- Papadopoulou, A.; Kontos, D.; Georgopoulos, A. Developing a vr tool for 3d architectural measurements. Int. Arch. Photogramm. Remote Sens. Spat. Inf. Sci. 2022, 421–427. [Google Scholar] [CrossRef]
- Dostal, C.; Yamafune, K. Photogrammetric texture mapping: A method for increasing the Fidelity of 3D models of cultural heritage materials. J. Archaeol. Sci. Rep. 2018, 18, 430–436. [Google Scholar] [CrossRef]
- Huang, S.; Zhang, Z.; Ke, T.; Tang, M.; Xu, X. Scanning Photogrammetry for Measuring Large Targets in Close Range. Remote Sens. 2015, 7, 10042–10077. [Google Scholar] [CrossRef]
- Dudoň, J. Návrh Učebného Textu v Predmete Fotogrametria a DPZ. SPŠS Žilina. 2009. Available online: http://www.pkgeo.eu/files/fotogrametria-a-DPZ.pdf (accessed on 20 February 2022).
- Photogrammetry Workflow Using a DSLR Camera. Available online: https://scholarslab.lib.virginia.edu/blog/documentation-photogrammetry/ (accessed on 21 January 2022).
- Srnec, K. M—Manuálny Expozičný Režim. Available online: https://www.ephoto.sk/fotoskola/clanky/zaciname-s-fotografovanim/manualny-expozicny-rezim/ (accessed on 21 January 2022).
- Marčiš, M. Automatizované Fotogrametrické Metódy v Procese Digitalizácie Kultúrneho Dedičstva; Slovak Technical Univerzity: Bratislava, Slovakia, 2019; Available online: https://www.svf.stuba.sk/buxus/docs/dokumenty/skripta/Marcis-automatizovane_fotogrametricke_metody_v_procese_digitalizacie_kulturneho_dedicstva_konecna.pdf (accessed on 21 January 2022).
- Ground Sampling Distance (GSD) in Photogrammetry. Available online: https://support.pix4d.com/hc/en-us/articles/202559809-Ground-sampling-distance-GSD-in-photogrammetry (accessed on 20 January 2022).
- Eisenbeiss, H. UAV photogrammetry in plant sciences and geology. In Proceedings of the 6th ARIDA Workshop on Innovations in 3D Measurement, Modeling and Visualization, Povo, Italy, 25–26 February 2008. [Google Scholar]
- Alan, A.; Bill, B.; Cathy, A. Comparative Analysis of Different Software Packages for 3D Modelling of Complex Geometries. In Proceedings of the 8th European-Mediterranean Conference, EuroMed, Online, 2–5 November 2020; Volume 12642, pp. 228–240. [Google Scholar]
- CloudCompare—User Manual. Available online: http://www.cloudcompare.org/doc/qCC/CloudCompare%20v2.6.1%20-%20User%20manual.pdf (accessed on 16 March 2022).
- Daniel Girardeau-Montaut, D. CloudCompare. 2022. Available online: https://www.cloudcompare.org/doc/wiki/index.php?title=SOR_filter (accessed on 16 March 2022).
- Autodesk. Benefits of BIM. Available online: https://www.autodesk.com/solutions/bim/benefits-of-bim (accessed on 11 February 2022).
- Craggs, D.; Crilly, M.; Dawood, N. REALITY CAPTURE for BIM—Application, evaluation and integration within an architectural plan of works. In Proceedings of the 16th International Conference on Construction Applications of Virtual Reality, Hong Kong, China, 11–13 December 2016. [Google Scholar]
- Fai, S.; Rafeiro, J. Establishing an appropriate level of detail (LOD) for a building information model (BIM)—West Block, Parliament Hill, Ottawa, Canada. ISPRS Ann. Photogramm. Remote Sens. Spat. Inf. Sci. 2014, 2, 123. [Google Scholar] [CrossRef]
- Plata, A.R.M.D.L.; Franco, P.A.C.; Franco, J.C.; Gibello Bravo, V. Protocol Development for Point Clouds, Triangulated Meshes and Parametric Model Acquisition and Integration in an HBIM Workflow for Change Control and Management in a UNESCO’s World Heritage Site. Sensors 2021, 21, 1083. [Google Scholar] [CrossRef] [PubMed]
- Capone, M.; Lanzara, E. Scan-to-bim vs 3d ideal model hbim: Parametric tools to study domes geometry. Int. Arch. Photogramm. Remote Sens. Spat. Inf. Sci. 2019, 42, 219–226. Available online: https://pdfs.semanticscholar.org/80be/7ea503e7f187658b4c20ed9dd617b295c26c.pdf (accessed on 11 February 2022). [CrossRef]
- Ellis, G. What Are as Built Drawings? Digital Builder Blog, Autodesk Construction Cloud. 2022. Available online: https://constructionblog.autodesk.com/as-built-drawings/ (accessed on 15 February 2022).
- Cingel, M.; Čelko, J.; Drličiak, M. Analysis in modal split. Transp. Res. Procedia 2019, 40, 178–185. [Google Scholar] [CrossRef]
- Bučko, B.; Michálek, M.; Papierniková, K.; Zábovská, K. Smart Mobility and Aspects of Vehicle-to-Infrastructure: A Data Viewpoint. Appl. Sci. 2021, 11, 10514. [Google Scholar] [CrossRef]















| Case Study Requirements | Description | Planning Estimation |
|---|---|---|
| Project location | It is necessary to consider the influence of weather in given locality, availability, density of vegetation around the object, lighting and area conditions. | Kunerad Castle 2106, 013 13 Kunerad. The building has an access road; there is vegetation in the area that will not interfere with data collection and there is no electricity or lighting in the building. |
| Project type | It can determine the required level of detail, cost, time, etc. | Reverse engineering, cultural heritage, LOD 300. |
| Time required for the project | Thorough planning and estimation of time consuming can contribute to efficiency in solving a project. | Outside–7 h 0 Floor–7 h 1 Floor–5 h 2 Floor–6 h Basement–10 h Total: 35 h. The need to divide the scanning process into several days. |
| Scanning accuracy | Scanning accuracy is determined by the type of scanner. | <2 mm |
| Scanning object | The subjects of scanning are objects and areas respectively scanning scenery. | Outside area of the object, 2 floors with ground floor and basement. |
| Quality Settings | Reference Point Distance | 5 m | 15 m | 30 m | Average Scan Time | |
|---|---|---|---|---|---|---|
| Resolution Setting | with RGB (min) | without RGB (min) | ||||
| 2× | 1/4 | 1150 | 120 | 25 | 5:01 | 2:47 |
| 1/8 | 235 | 22 | - | 3:40 | 1:26 | |
| 3× | 1/4 | 1175 | 126 | 27 | 6:48 | 4:34 |
| 1/8 | 239 | 25 | - | 4:07 | 1:53 | |
| 4× | 1/4 | 1390 | 135 | 25 | 10:23 | 8:09 |
| 1/8 | 200 | 27 | - | 5:01 | 2:47 | |
| Type of Construction/LOD | LOD 100 | LOD 200 | LOD 300 | LOD 350 | LOD 400 | LOD 500 |
|---|---|---|---|---|---|---|
| Wall | x | |||||
| Floor | x | |||||
| Roof | x | |||||
| Windows | x | |||||
| Doors | x | |||||
| Railings balusters | x | |||||
| Columns | x |
Publisher’s Note: MDPI stays neutral with regard to jurisdictional claims in published maps and institutional affiliations. |
© 2022 by the authors. Licensee MDPI, Basel, Switzerland. This article is an open access article distributed under the terms and conditions of the Creative Commons Attribution (CC BY) license (https://creativecommons.org/licenses/by/4.0/).
Share and Cite
Palčák, M.; Kudela, P.; Fandáková, M.; Kordek, J. Utilization of 3D Digital Technologies in the Documentation of Cultural Heritage: A Case Study of the Kunerad Mansion (Slovakia). Appl. Sci. 2022, 12, 4376. https://doi.org/10.3390/app12094376
Palčák M, Kudela P, Fandáková M, Kordek J. Utilization of 3D Digital Technologies in the Documentation of Cultural Heritage: A Case Study of the Kunerad Mansion (Slovakia). Applied Sciences. 2022; 12(9):4376. https://doi.org/10.3390/app12094376
Chicago/Turabian StylePalčák, Michal, Pavol Kudela, Miriam Fandáková, and Juraj Kordek. 2022. "Utilization of 3D Digital Technologies in the Documentation of Cultural Heritage: A Case Study of the Kunerad Mansion (Slovakia)" Applied Sciences 12, no. 9: 4376. https://doi.org/10.3390/app12094376
APA StylePalčák, M., Kudela, P., Fandáková, M., & Kordek, J. (2022). Utilization of 3D Digital Technologies in the Documentation of Cultural Heritage: A Case Study of the Kunerad Mansion (Slovakia). Applied Sciences, 12(9), 4376. https://doi.org/10.3390/app12094376

