Quantitative Assessment of Natural Ventilation in an Elementary School Classroom in the Context of COVID-19 and Its Impact in Airborne Transmission
Abstract
:Featured Application
Abstract
1. Introduction
2. Materials and Methods
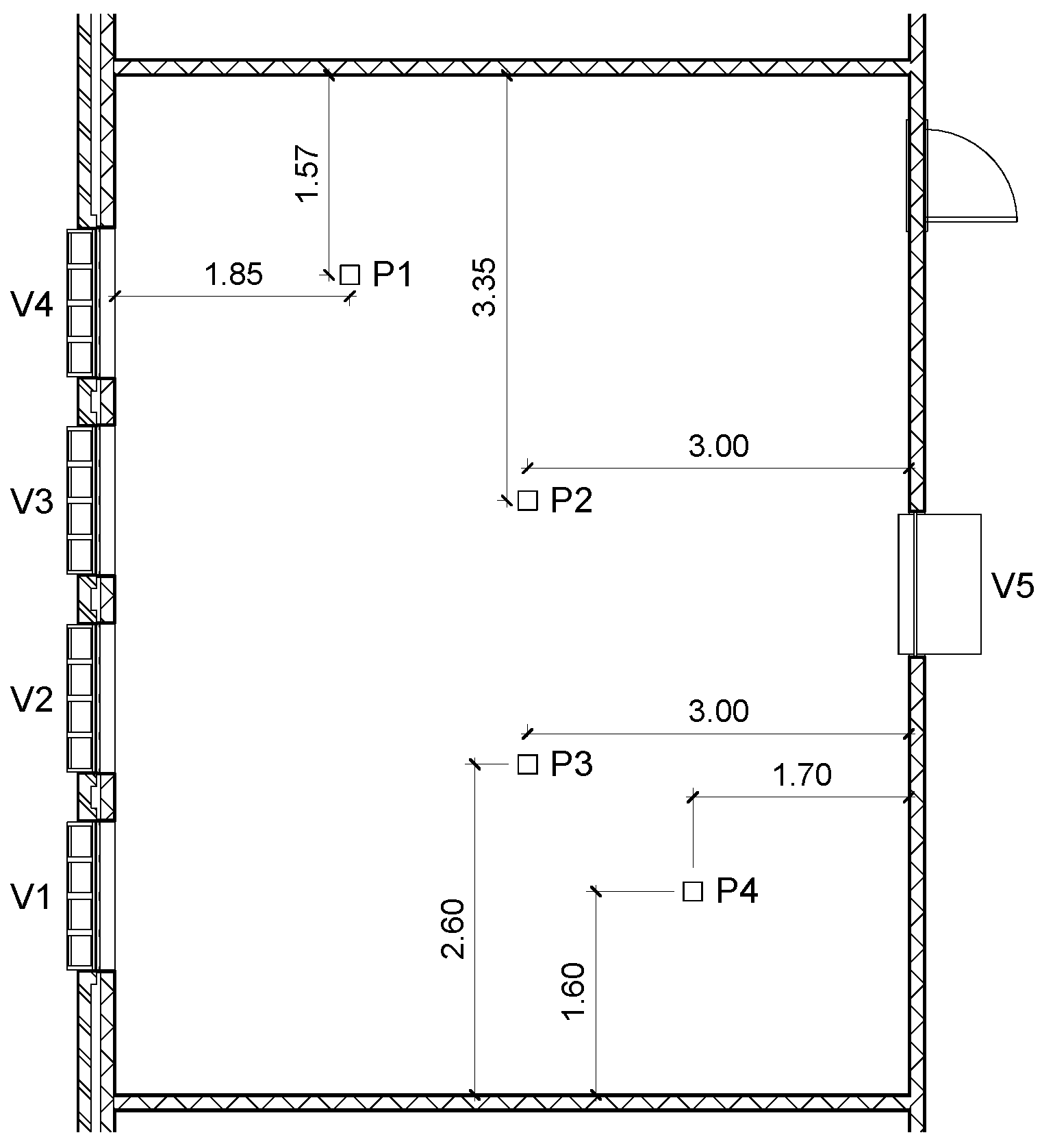
2.1. Measurement Campaign
2.2. Estimation of Ventilation Rates
2.3. Estimation of the Risk of Airborne Infection
3. Results
3.1. Ventilation Rate
3.1.1. Controlled Tests
3.1.2. Daily Measurements
3.1.3. Assessment of the Perfect Mix Hypothesis
3.2. Risk of Infection
3.2.1. Rudnick-Milton Model
3.2.2. Gammaitoni-Nucci Model
3.3. Discussion
4. Conclusions
Author Contributions
Funding
Institutional Review Board Statement
Informed Consent Statement
Data Availability Statement
Conflicts of Interest
Abbreviations
| IAQ | Indoor Air Quality |
| Carbon dioxide | |
| ACH | Air Changes per Hour |
| WHO | World Health Organisation |
| RMSE | Root Mean Square Error |
| CFD | Computational Fluid Dynamics |
| BEM | Building Energy Management |
References
- Worldometers.info. COVID-19 Coronavirus Pandemic. Available online: https://www.worldometers.info/coronavirus/?utm_campaign=homeAdvegas1 (accessed on 4 May 2022).
- WHO. Trasmission of SARS-CoV-2: Implications for Infection Prevention Precausions. Available online: https://www.who.int/news-room/questions-and-answers/item/coronavirus-disease-covid-19-how-is-it-transmitted (accessed on 15 April 2022).
- Morawska, L.; Milton, D.K. It Is Time to Address Airborne Transmission of Coronavirus Disease 2019 (COVID-19). Clin. Infect. Dis. 2020, 71, 2311–2313. [Google Scholar] [CrossRef] [PubMed]
- Kurnitski, J.; Kiil, M.; Wargocki, P.; Boerstra, A.; Seppänen, O.; Olesen, B.; Morawska, L. Respiratory infection risk-based ventilation design method. Build. Environ. 2021, 206, 108387. [Google Scholar] [CrossRef] [PubMed]
- Batterman, S. Review and extension of CO2-based methods to determine ventilation rates with application to school classrooms. Int. J. Environ. Res. Public Health 2017, 14, 145. [Google Scholar] [CrossRef] [PubMed]
- Hänninen, O.; Canha, N.; Kulinkina, A.V.; Dume, I.; Deliu, A.; Mataj, E.; Lusati, A.; Krzyzanowski, M.; Egorov, A.I. Analysis of CO2 monitoring data demonstrates poor ventilation rates in Albanian schools during the cold season. Air Qual. Atmos. Health 2017, 10, 773–782. [Google Scholar] [CrossRef]
- Duarte, R.; Gomes, M.G.; Rodrigues, A.M. Estimating ventilation rates in a window-aired room using Kalman filtering and considering uncertain measurements of occupancy and CO2 concentration. Build. Environ. 2018, 143, 691–700. [Google Scholar] [CrossRef]
- Remion, G.; Moujalled, B.; Mankibi, M.E. Dynamic measurement of the airflow rate in a two-zones dwelling, from the CO2 tracer gas-decay method using the Kalman filter. Build. Environ. 2021, 188. [Google Scholar] [CrossRef]
- Pavilonis, B.; Ierardi, A.M.; Levine, L.; Mirer, F.; Kelvin, E.A. Estimating aerosol transmission risk of SARS-CoV-2 in New York City public schools during reopening. Environ. Res. 2021, 195. [Google Scholar] [CrossRef]
- Wells, W.F. Airborne Contagion and Air Hygiene: An Ecological Study of Droplet Infections; Harvard University Press: Cambridge, MA, USA, 1955. [Google Scholar]
- Riley, E.C.; Murphy, G.; Riley, R.L. Airborne Spread of Measles in a Suburban Elementary School. Am. J. Epidemil. 1978, 107, 421–432. [Google Scholar] [CrossRef]
- Vouriot, C.V.; Burridge, H.C.; Noakes, C.J.; Linden, P.F. Seasonal variation in airborne infection risk in schools due to changes in ventilation inferred from monitored carbon dioxide. Indoor Air 2021, 31, 1154–1163. [Google Scholar] [CrossRef]
- Buonanno, G.; Stabile, L.; Morawska, L. Estimation of airborne viral emission: Quanta emission rate of SARS-CoV-2 for infection risk assessment. Environ. Int. 2020, 141, 105794. [Google Scholar] [CrossRef]
- Buonanno, G.; Morawska, L.; Stabile, L. Quantitative assessment of the risk of airborne transmission of SARS-CoV-2 infection: Prospective and retrospective applications. Environ. Int. 2020, 145, 106112. [Google Scholar] [CrossRef] [PubMed]
- Burridge, H.C.; Fan, S.; Jones, R.L.; Noakes, C.J.; Linden, P.F. Predictive and retrospective modelling of airborne infection risk using monitored carbon dioxide. Indoor Built Environ. 2022, 31, 1363–1380. [Google Scholar] [CrossRef]
- Cammarata, A.; Cammarata, G. Dynamic assessment of the risk of airborne viral infection. Indoor Air 2021, 31, 1759–1775. [Google Scholar] [CrossRef] [PubMed]
- Burridge, H.C.; Bhagat, R.K.; Stettler, M.E.; Kumar, P.; Mel, I.D.; Demis, P.; Hart, A.; Johnson-Llambias, Y.; King, M.F.; Klymenko, O.; et al. The ventilation of buildings and other mitigating measures for COVID-19: A focus on wintertime. Proc. R. Soc. A Math. Phys. Eng. Sci. 2021, 477, 20200855. [Google Scholar] [CrossRef] [PubMed]
- Villanueva, F.; Notario, A.; Cabañas, B.; Martín, P.; Salgado, S.; Gabriel, M.F. Assessment of CO2 and aerosol (PM2.5, PM10, UFP) concentrations during the reopening of schools in the COVID-19 pandemic: The case of a metropolitan area in Central-Southern Spain. Environ. Res. 2021, 197, 111092. [Google Scholar] [CrossRef]
- Vassella, C.C.; Koch, J.; Henzi, A.; Jordan, A.; Waeber, R.; Iannaccone, R.; Charrière, R. From spontaneous to strategic natural window ventilation: Improving indoor air quality in Swiss schools. Int. J. Hyg. Environ. Health 2021, 234, 113746. [Google Scholar] [CrossRef]
- Turanjanin, V.; Vučićević, B.; Jovanović, M.; Mirkov, N.; Lazović, I. Indoor CO2 measurements in Serbian schools and ventilation rate calculation. Energy 2014, 77, 290–296. [Google Scholar] [CrossRef]
- Rajagopalan, P.; Andamon, M.M.; Woo, J. Year long monitoring of indoor air quality and ventilation in school classrooms in Victoria, Australia. Archit. Sci. Rev. 2022, 65, 1–13. [Google Scholar] [CrossRef]
- Muelas, Á.; Remacha, P.; Pina, A.; Tizné, E.; El-Kadmiri, S.; Ruiz, A.; Aranda, D.; Ballester, J. Analysis of different ventilation strategies and CO2 distribution in a naturally ventilated classroom. Atmos. Environ. 2022, 283, 119176. [Google Scholar] [CrossRef]
- Bain-Reguis, N.; Smith, A.; Martin, C.H.; Currie, J. Indoor CO2 and Thermal Conditions in Twenty Scottish Primary School Classrooms with Different Ventilation Systems during the COVID-19 Pandemic. Pollutants 2022, 2, 180–204. [Google Scholar] [CrossRef]
- Fantozzi, F.; Lamberti, G.; Leccese, F.; Salvadori, G. Monitoring CO2 concentration to control the infection probability due to airborne transmission in naturally ventilated university classrooms. Archit. Sci. Rev. 2022, 65, 306–318. [Google Scholar] [CrossRef]
- Rudnick, S.N.; Milton, D.K. Risk of indoor airborne infection transmission estimated from carbon dioxide concentration. Indoor Air 2003, 13, 237–245. [Google Scholar] [CrossRef] [PubMed]
- Gammaitoni, L.; Nucci, M.C. Using a mathematical model to evaluate the efficacy of TB control measures. Emerg. Infect. Dis. 1997, 3, 335–342. [Google Scholar] [CrossRef] [PubMed]
- Gammaitoni, L.; Nucci, M.C. Using Maple to Analyze a Model for Airborne Contagion. MapleTech 1997, 4, 2–5. [Google Scholar]
- Aeroqual. Series 500—Portable Air Quality Monitor. Available online: https://www.aeroqual.com/products/s-series-portable-air-monitors/series-500-portable-air-pollution-monitor (accessed on 18 April 2022).
- TFA. CO2 Monitor with Data Logger AIRCO2NTROL 5000. Available online: https://www.tfa-dostmann.de/en/product/co2-monitor-with-data-logger-airco2ntrol-5000-31-5008/ (accessed on 18 April 2022).
- ANSI/ASHRAE Standard 62.1-2019; Ventilation for Acceptable Indoor Air Quality. American National Standards Institute, American Society of Heating and Refrigerating and Air-Conditioning Engineers: Atlanta, GA, USA, 2018.
- WHO. Roadmap to Improve and Ensure Good Indoor Ventilation in the Context of COVID-19; Technical Report; World Health Organization: Geneva, Switzerland, 2021. [Google Scholar]
- ASTM D6245-18; Standard Guide for Using Indoor Carbon Dioxide Concentrations to Evaluate Indoor Air Quality and Ventilation. American Society for Testing and Materials: West Conshohocken, PA, USA, 2018.
- ASTM E741-11; Standard Test Method for Determining Air Change in a Single Zone by Means of a Tracer Gas Dilution. American Society for Testing and Materials: West Conshohocken, PA, USA, 2011. [CrossRef]
- NOAA. Trends in Atmosfpheric Carbon Dioxide. Available online: https://gml.noaa.gov/ccgg/trends/global.html#global (accessed on 6 January 2022).
- Sze To, G.N.; Chao, C.Y.H. Review and comparison between the Wells-Riley and dose-response approaches to risk assessment of infectious respiratory diseases. Indoor Air 2010, 20, 2–16. [Google Scholar] [CrossRef]
- Wang, Y.; Chen, R.; Hu, F.; Lan, Y.; Yang, Z.; Zhan, C.; Shi, J.; Deng, X.; Jiang, M.; Zhong, S.; et al. Transmission, viral kinetics and clinical characteristics of the emergent SARS-CoV-2 Delta VOC in Guangzhou, China. EClinicalMedicine 2021, 40, 101129. [Google Scholar] [CrossRef]
- Aeroqual. Portable & Fixed Monitor Sensor Specifications. Available online: https://www.aeroqual.com/wp-content/uploads/Aeroqual-Portable-Fixed-Sensor-Specifications.pdf (accessed on 27 November 2021).
- Morawska, L.; Tang, J.W.; Bahnfleth, W.; Bluyssen, P.M.; Boerstra, A.; Buonanno, G.; Cao, J.; Dancer, S.; Floto, A.; Franchimon, F.; et al. How can airborne transmission of COVID-19 indoors be minimised? Environ. Int. 2020, 142, 105832. [Google Scholar] [CrossRef]
- Ding, E.; Zhang, D.; Bluyssen, P.M. Ventilation regimes of school classrooms against airborne transmission of infectious respiratory droplets: A review. Build. Environ. 2022, 207, 108484. [Google Scholar] [CrossRef]
- Park, S.; Choi, Y.; Song, D.; Kim, E.K. Natural ventilation strategy and related issues to prevent coronavirus disease 2019 (COVID-19) airborne transmission in a school building. Sci. Total Environ. 2021, 789, 147764. [Google Scholar] [CrossRef]
- Aguilar, A.J.; de la Hoz-Torres, M.L.; Costa, N.; Arezes, P.; Martínez-Aires, M.D.; Ruiz, D.P. Assessment of ventilation rates inside educational buildings in Southwestern Europe: Analysis of implemented strategic measures. J. Build. Eng. 2022, 51, 104204. [Google Scholar] [CrossRef]
- Johnson, D.L.; Lynch, R.A.; Floyd, E.L.; Wang, J.; Bartels, J.N. Indoor air quality in classrooms: Environmental measures and effective ventilation rate modeling in urban elementary schools. Build. Environ. 2018, 136, 185–197. [Google Scholar] [CrossRef]
- Schibuola, L.; Tambani, C. High energy efficiency ventilation to limit COVID-19 contagion in school environments. Energy Build. 2021, 240, 110882. [Google Scholar] [CrossRef] [PubMed]
- Stabile, L.; Pacitto, A.; Mikszewski, A.; Morawska, L.; Buonanno, G. Ventilation procedures to minimize the airborne transmission of viruses in classrooms. Build. Environ. 2021, 202, 108042. [Google Scholar] [CrossRef] [PubMed]
- Melikov, A.K.; Ai, Z.T.; Markov, D.G. Intermittent occupancy combined with ventilation: An efficient strategy for the reduction of airborne transmission indoors. Sci. Total Environ. 2020, 744, 140908. [Google Scholar] [CrossRef]
- Vignolo, A.; Draper, M.; Usera, G. Estimation of the risk of airborne transmission in an elementary school classroom through Large Eddy Simulation. In Proceedings of the 11th International Conference on Computational Fluid Dynamics, ICCFD, Maui, HI, USA, 11–15 July 2022. [Google Scholar]
- Foster, A.; Kinzel, M. Estimating COVID-19 exposure in a classroom setting: A comparison between mathematical and numerical models. Phys. Fluids 2021, 33. [Google Scholar] [CrossRef]
- Buonanno, G.; Robotto, A.; Brizio, E.; Morawska, L.; Civra, A.; Corino, F.; Lembo, D.; Ficco, G.; Stabile, L. Link between SARS-CoV-2 emissions and airborne concentrations: Closing the gap in understanding. J. Hazard. Mater. 2022, 428, 128279. [Google Scholar] [CrossRef]












| Test Configurations | ||
|---|---|---|
| Test | Open to Exterior | Open to Corridor |
| 1 | V2 | — |
| 2 | V2 | V5 |
| 3 | V1 + V4 | V5 |
| 4 | V1 | V5 + door |
| 5 | V2 | V5 |
| Box Model Adjustment Results For the Controlled Tests | |||||||
|---|---|---|---|---|---|---|---|
| Test | Monitor | [ppm] | [ppm] | RMSE [ppm] | |||
| 1 (10/09) | AQ1 | 3.44 | 1744 | 500 | 56.87 | 3.03 | 0.77 |
| AQ2 | 1.88 | 1816 | 350 | 12.16 | |||
| AC1 | 3.32 | 1690 | 500 | 53.12 | |||
| AC2 | 3.49 | 1625 | 500 | 51.73 | |||
| 2 (10/09) | AQ1 | 12.12 | 2313 | 433 | 74.82 | 13.16 | 1.48 |
| AQ2 | 11.90 | 2189 | 497 | 18.71 | |||
| AC1 | 13.52 | 2063 | 500 | 28.64 | |||
| AC2 | 15.11 | 1898 | 488 | 36.34 | |||
| 3 (15/10) | AQ1 | 16.70 | 1758 | 500 | 7.83 | 16.63 | 1.99 |
| AQ2 | 15.08 | 1842 | 500 | 23.96 | |||
| AC1 | 15.32 | 1795 | 500 | 39.87 | |||
| AC2 | 19.42 | 1915 | 500 | 41.78 | |||
| 4 (15/10) | AQ1 | 14.70 | 1507 | 500 | 25.83 | 14.95 | 1.68 |
| AQ2 | 13.38 | 1383 | 500 | 31.17 | |||
| AC1 | 14.39 | 1496 | 500 | 25.67 | |||
| AC2 | 17.33 | 1465 | 500 | 43.49 | |||
| 5 (15/10) | AQ1 | 9.32 | 1826 | 477 | 35.86 | 10.09 | 1.72 |
| AQ2 | 8.06 | 1645 | 415 | 40.67 | |||
| AC1 | 11.85 | 1836 | 449 | 77.67 | |||
| AC2 | 11.13 | 1786 | 500 | 73.92 | |||
| Mean Environmental Conditions During the Controlled Tests | ||||||
|---|---|---|---|---|---|---|
| Test | [°C] | [%] | [°C] | [%] | [m/s] | [°] † |
| 1 (10/09) | 18.6 | 67.7 | 14.8 | 96.3 | 1.6 | 141 |
| 2 (10/09) | 18.4 | 67.6 | 14.7 | 96.3 | 1.5 | 149 |
| 3 (15/10) | 21.1 | 35.9 | 17.9 | 47.9 | 2.3 | 130 |
| 4 (15/10) | 20.7 | 35.6 | 16.3 | 51.4 | 2.4 | 131 |
| 5 (15/10) | 20.1 | 37.6 | 15.1 | 56.6 | 2.0 | 80 |
| Weekly Estimation of | ||||
|---|---|---|---|---|
| Morning shift | ||||
| Week | [quanta/h] | |||
| 1 | 5 | 10 | 20 | |
| 09/08–13/08 | 0.26 | 1.26 | 2.46 | 4.71 |
| 30/08–03/09 | 0.14 | 0.68 | 1.35 | 2.63 |
| 27/09–01/10 | 0.11 | 0.55 | 1.08 | 2.12 |
| 25/10–29/10 | 0.06 | 0.30 | 0.60 | 1.14 |
| 22/11–26/11 | 0.09 | 0.43 | 0.86 | 1.70 |
| 29/11–03/12 | 0.04 | 0.19 | 0.37 | 0.74 |
| 06/12–10/12 | 0.05 | 0.27 | 0.54 | 1.07 |
| 13/12–17/12 | 0.03 | 0.16 | 0.32 | 0.63 |
| Afternoon shift | ||||
| Week | [quanta/h] | |||
| 1 | 5 | 10 | 20 | |
| 09/08–13/08 | 0.16 | 0.80 | 1.57 | 3.06 |
| 06/09–10/09 | 0.15 | 0.74 | 1.47 | 2.87 |
| 27/09–01/10 | 0.11 | 0.55 | 1.08 | 2.12 |
| 04/10–08/10 | 0.09 | 0.43 | 0.86 | 1.69 |
| 29/11–03/12 | 0.06 | 0.29 | 0.57 | 1.12 |
| 06/12–10/12 | 0.06 | 0.31 | 0.62 | 1.24 |
| Monthly Mean | ||||
|---|---|---|---|---|
| Morning shift | ||||
| Month | [quanta/h] | |||
| 1 | 5 | 10 | 20 | |
| August | 0.18 | 0.88 | 1.74 | 3.38 |
| September | 0.10 | 0.47 | 0.94 | 1.85 |
| October | 0.11 | 0.52 | 1.03 | 2.03 |
| November | 0.07 | 0.37 | 0.73 | 1.45 |
| December | 0.04 | 0.21 | 0.43 | 0.85 |
| Afternoon shift | ||||
| Month | [quanta/h] | |||
| 1 | 5 | 10 | 20 | |
| August | 0.12 | 0.57 | 1.13 | 2.22 |
| September | 0.10 | 0.48 | 0.96 | 1.88 |
| October | 0.07 | 0.35 | 0.70 | 1.37 |
| November | 0.07 | 0.33 | 0.65 | 1.29 |
| December | 0.05 | 0.27 | 0.53 | 1.05 |
| Reduction in with Dynamic Ventilation Rates | ||||||||
|---|---|---|---|---|---|---|---|---|
| 0.3 (7.63) | 1 (4.32) | |||||||
| 6 | 10 | 6 | 10 | |||||
| [min] | 5 | 10 | 5 | 10 | 5 | 10 | 5 | 10 |
| [min] | ||||||||
| 10 | 68.5% (2.40) | 75.6% (1.86) | 77.5% (1.72) | 83.2% (1.28) | 51.6% (2.09) | 60.6% (1.70) | 64.2% (1.55) | 72.3% (1.20) |
| 15 | 63.2% (2.80) | 71.5% (2.18) | 72.5% (2.10) | 79.6% (1.56) | 45.6% (2.35) | 55.3% (1.93) | 57.8% (1.82) | 67.1% (1.42) |
| 20 | 59.1% (3.12) | 67.6% (2.47) | 68.3% (2.42) | 76.0% (1.83) | 41.0% (2.55) | 50.7% (2.13) | 52.5% (2.05) | 62.3% (1.63) |
| 25 | 55.9% (3.36) | 64.2% (2.73) | 64.8% (2.69) | 72.5% (2.10) | 37.6% (2.70) | 46.6% (2.31) | 48.4% (2.23) | 57.6% (1.83) |
| 30 | 52.7% (3.61) | 61.3% (2.95) | 60.9% (2.98) | 69.6% (2.32) | 34.1% (2.85) | 43.3% (2.44) | 43.7% (2.43) | 54.0% (1.99) |
Publisher’s Note: MDPI stays neutral with regard to jurisdictional claims in published maps and institutional affiliations. |
© 2022 by the authors. Licensee MDPI, Basel, Switzerland. This article is an open access article distributed under the terms and conditions of the Creative Commons Attribution (CC BY) license (https://creativecommons.org/licenses/by/4.0/).
Share and Cite
Vignolo, A.; Gómez, A.P.; Draper, M.; Mendina, M. Quantitative Assessment of Natural Ventilation in an Elementary School Classroom in the Context of COVID-19 and Its Impact in Airborne Transmission. Appl. Sci. 2022, 12, 9261. https://doi.org/10.3390/app12189261
Vignolo A, Gómez AP, Draper M, Mendina M. Quantitative Assessment of Natural Ventilation in an Elementary School Classroom in the Context of COVID-19 and Its Impact in Airborne Transmission. Applied Sciences. 2022; 12(18):9261. https://doi.org/10.3390/app12189261
Chicago/Turabian StyleVignolo, Andrés, Ana Paula Gómez, Martín Draper, and Mariana Mendina. 2022. "Quantitative Assessment of Natural Ventilation in an Elementary School Classroom in the Context of COVID-19 and Its Impact in Airborne Transmission" Applied Sciences 12, no. 18: 9261. https://doi.org/10.3390/app12189261
APA StyleVignolo, A., Gómez, A. P., Draper, M., & Mendina, M. (2022). Quantitative Assessment of Natural Ventilation in an Elementary School Classroom in the Context of COVID-19 and Its Impact in Airborne Transmission. Applied Sciences, 12(18), 9261. https://doi.org/10.3390/app12189261

