Stress State of Modular Blocks with Large Door Openings
Abstract
1. Introduction
2. Materials and Methods
- –
- Openings with a width of 4.2 m for buildings up to 9 stories;
- –
- Openings with a width of 3.6 m for buildings up to 12 stories;
- –
- Openings with a width of 3.0 m for buildings up to 17 stories.
3. Results
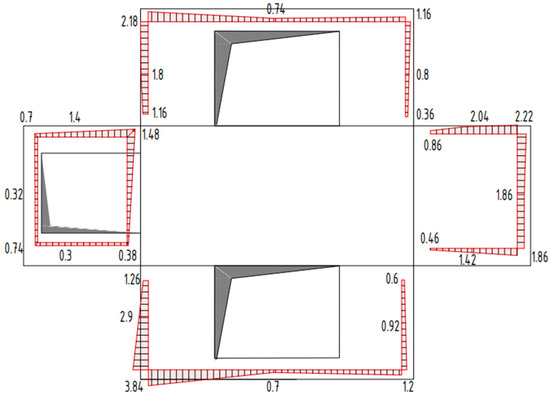
3.1. Modular Block No. 1
3.2. Modular Block No. 2
3.3. Modular Block No. 3
3.4. Modular Block No. 4
3.5. Structural Behavior Coefficient for Modular Blocks with Large Openings
- –
- γc.block.lc = 3.2 for lightweight concrete and expanded clay concrete with a density of 1800 kg/m3;
- –
- γc.block.hc = 2.3 for heavy concrete.
- –
- γc.block.lc = 3.1 for lightweight concrete and expanded clay concrete with a density of 1800 kg/m3;
- –
- γc.block.hc = 2.8 for heavy concrete.
4. Conclusions
- –
- Concrete failure in longitudinal walls in the crack development zone at the junction of walls and slabs near the connection to the end wall;
- –
- Separation of the modular block into individual elements;
- –
- Formation of inclined cracks in the slab, leading to its detachment from the end wall;
- –
- Failure of lintels in longitudinal walls.
Author Contributions
Funding
Data Availability Statement
Acknowledgments
Conflicts of Interest
References
- Teshev, I.; Bespayev, A.; Zhambakina, Z.; Tamov, M.; Altigenov, U.; Zhussupov, T.; Tolegenova, A. Multi-Story Volumetric Blocks Buildings with Lower Frame Floors. Buildings 2024, 14, 1655. [Google Scholar] [CrossRef]
- Generalova, E.M.; Generalov, V.P.; Kuznetsova, A.A. Modular Buildings in Modern Construction. Procedia Eng. 2016, 153, 167–172. [Google Scholar] [CrossRef]
- Bespaev, A.; Teshev, I.; Kuralov, U.S.; Altigenov, U.B. Strength and Deformations of Volume-Blocks. In Smart Geotechnics for Smart Societies; CRC Press: London, UK, 2023; pp. 2408–2412. ISBN 978-1-00-329912-7. [Google Scholar]
- Feldmann, F.G.; Birkel, H.; Hartmann, E. Exploring Barriers Towards Modular Construction—A Developer Perspective Using Fuzzy DEMATEL. J. Clean. Prod. 2022, 367, 133023. [Google Scholar] [CrossRef]
- Thai, H.-T.; Ngo, T.; Uy, B. A Review on Modular Construction for High-Rise Buildings. Structures 2020, 28, 1265–1290. [Google Scholar] [CrossRef]
- Ferdous, W.; Bai, Y.; Ngo, T.D.; Manalo, A.; Mendis, P. New Advancements, Challenges and Opportunities of Multi-Storey Modular Buildings—A State-of-the-Art Review. Eng. Struct. 2019, 183, 883–893. [Google Scholar] [CrossRef]
- Liu, C.; Song, Y.; Li, R.; Ma, W.; Hao, J.L.; Qiang, G. Three-Level Modular Grid System for Sustainable Construction of Industrialized Residential Buildings: A Case Study in China. J. Clean. Prod. 2023, 395, 136379. [Google Scholar] [CrossRef]
- Chen, Z.; Jiang, L.; Xiao, M.; Hu, Y.; Huang, S. Rapid Construction of Modular Buildings for Emergencies: A Case Study from Hong Kong, China. Proc. Inst. Civ.-Eng. Civ. Eng. 2023, 176, 65–72. [Google Scholar] [CrossRef]
- Tolegenova, A.K.; Akmalaiuly, K.; Skripkiunas, G. Study of the Effectiveness of the Use of Complex Additives Master Rheobuild 1000 and Master Air 200. News Natl. Acad. Sci. Repub. Kazakhstan Ser. Geol. Tech. Sci. 2021, 6, 141–146. [Google Scholar] [CrossRef]
- Prefab Technologies. Available online: https://prefabtech.ru (accessed on 16 February 2025).
- MonArch Group of Companies. Available online: https://mon-arch.ru/about (accessed on 16 February 2025).
- Evraz Steel House. Available online: https://evrazsteelhouse.ru (accessed on 16 February 2025).
- Vybor. Available online: https://vyborstroi.ru/about/our-activities/ (accessed on 16 February 2025).
- Plant of Volumetric Block Housing Construction. Available online: https://zaoobd.ru/company/ (accessed on 16 February 2025).
- Technonicol House. Available online: https://dom.tn.ru/production/ (accessed on 16 February 2025).
- WoodCastor. Available online: https://woodcastor.ru (accessed on 16 February 2025).
- INPANS. Available online: https://inpans.ru/panels (accessed on 16 February 2025).
- ModeX. Available online: https://bi.group/ru/modex (accessed on 16 February 2025).
- Max Bögl. Available online: https://max-boegl.de/en/ (accessed on 16 February 2025).
- Chen, C. Advantages and Barriers of Modular Construction Method in Constructing Buildings. Proc. Inst. Civ. Eng.-Smart Infrastruct. Constr. 2023, 176, 75–84. [Google Scholar] [CrossRef]
- Chen, L.; Huang, Z.; Pan, W.; Su, R.K.L.; Zhong, Y.; Zhang, Y. Low Carbon Concrete for Prefabricated Modular Construction in Circular Economy: An Integrated Approach towards Sustainability, Durability, Cost, and Mechanical Performances. J. Build. Eng. 2024, 90, 109368. [Google Scholar] [CrossRef]
- Peiris, A.; Hui, F.K.P.; Duffield, C.; Ngo, T. Production Scheduling in Modular Construction: Metaheuristics and Future Directions. Autom. Constr. 2023, 150, 104851. [Google Scholar] [CrossRef]
- Liu, Z.; Li, X.; Wu, C.; Ma, J.; Yang, Z.; Guo, Y. Automatic Work Package Sizing for Cost-Effective Modular Construction. Autom. Constr. 2023, 154, 105003. [Google Scholar] [CrossRef]
- Kania, T.; Stawiski, B. Research on Crack Formation in Gypsum Partitions with Doorway by Means of FEM and Fracture Mechanics. IOP Conf. Ser. Mater. Sci. Eng. 2017, 245, 042021. [Google Scholar] [CrossRef]
- Daamen, W.; Hoogendoorn, S.P. Emergency Door Capacity: Influence of Door Width, Population Composition and Stress Level. Fire Technol. 2012, 48, 55–71. [Google Scholar] [CrossRef]
- Kania, T.; Derkach, V.; Nowak, R. Testing Crack Resistance of Non-Load-Bearing Ceramic Walls with Door Openings. Materials 2021, 14, 1379. [Google Scholar] [CrossRef]
- Ali, A.; Wight, J.K. RC Structural Walls with Staggered Door Openings. J. Struct. Eng. 1991, 117, 1514–1531. [Google Scholar] [CrossRef]
- Chaudhary, S.S.; Parekar, S.R. Stress Distribution of Different Shapes of Opening in Shear Wall. SSRN J. 2019. [Google Scholar] [CrossRef]
- Lin, Z.-C.; Cheng, C.-H. The Application of Systematic Knowledge Analysis for Improved Door Structure Designs. Expert Syst. Appl. 2010, 37, 7299–7309. [Google Scholar] [CrossRef]
- Guo, F.; Zhang, Y.; Nie, X.; Yu, Y.; Hu, S.; Wei, B.; Jiang, L. Effect of Openings on Lateral Behaviors of Corrugated Plate Module Walls and High-Rise Modular Buildings. Thin-Walled Struct. 2023, 185, 110584. [Google Scholar] [CrossRef]
- Liu, Z.; Crewe, A. Effects of Size and Position of Openings on In-Plane Capacity of Unreinforced Masonry Walls. Bull. Earthq. Eng. 2020, 18, 4783–4812. [Google Scholar] [CrossRef]
- Chourasia, A.; Singhal, S.; Manivannan. Prefabricated Volumetric Modular Construction: A Review on Current Systems, Challenges, and Future Prospects. Pract. Period. Struct. Des. Constr. 2023, 28, 03122009. [Google Scholar] [CrossRef]
- Wang, Q.; Su, M.; Chen, R.; Deng, Z.; Chen, W. Seismic Performance and Shear Capacity of Modular Steel Frames Infilled with Cold-Formed Steel Walls with Openings. Thin-Walled Struct. 2023, 187, 110744. [Google Scholar] [CrossRef]
- Ye, Z.; Giriunas, K.; Sezen, H.; Wu, G.; Feng, D.-C. State-of-the-Art Review and Investigation of Structural Stability in Multi-Story Modular Buildings. J. Build. Eng. 2021, 33, 101844. [Google Scholar] [CrossRef]
- EN 12390-3:2019; Testing Hardened Concrete—Part 3: Compressive Strength of Test Specimens. European Committee for Standardization (CEN): Brussels, Belgium, 2019.
- Ryazhskikh, B.E. Static Load Testing of a Volumetric Reinforced Concrete Block of a 17-Story Volumetric Block Building (OBD). Bull. Belgorod State Technol. Univ. Named After. V. G. Shukhov 2023, 8, 20–34. [Google Scholar] [CrossRef]
- Abramyan, S.G.; Burlachenko, O.V.; Galda, Z.Y. Three-dimensional block modules as a variety of modular structures of prefabricated building systems. Vestnik Volgogradskogo Gosudarstvennogo Arkhitekturno-Stroitel’nogo Universiteta. Seriya: Stroitel’stvo i Arkhitektura (Bull. Volgograd. State Univ. Archit. Civ. Eng. Ser. Civ. Eng. Archit.) 2021, 1, 5–13. Available online: https://www.researchgate.net/publication/352908745_Obemnye_blok-moduli_kak_raznovidnost_modulnyh_konstrukcij_bystrovozvodimyh_zdanij (accessed on 31 July 2021). (In Russian).
- Tamov, M.A.; Tamov, M.M.; Usanov, S.V.; Tabagua, G.R. Strength and Crack Resistance of a “Cap”-Type Volumetric Block without a Floor Panel. Eng. Bull. Don 2015, 3. Available online: http://ivdon.ru/ru/magazine/archive/n3y2015/3171 (accessed on 16 February 2025).















































| № of Block | The Width of the Doorway, m | Type of Main Load-Bearing Walls t, mm | Load Bearing Capacity N, tf | Concrete Strength, MPa | Partial Coefficient of Behavior γc.hc |
|---|---|---|---|---|---|
| 1 | 4.2 | 100 mm | 594.7 | C30/42 | γc.hc = 4.05 |
| 2 | 3.6 | 100 mm | 904.47 | C34/52.9 | γc.hc = 3.08 |
| 3 | 3.0 | 100 mm | 937 | fine-grained C35/45 | γc.hc = 2.5 |
| 4 | 3.0 | 100 mm | 1328.53 | fine-grained C40/53 | γc.hc = 2.0 |
Disclaimer/Publisher’s Note: The statements, opinions and data contained in all publications are solely those of the individual author(s) and contributor(s) and not of MDPI and/or the editor(s). MDPI and/or the editor(s) disclaim responsibility for any injury to people or property resulting from any ideas, methods, instructions or products referred to in the content. |
© 2025 by the authors. Licensee MDPI, Basel, Switzerland. This article is an open access article distributed under the terms and conditions of the Creative Commons Attribution (CC BY) license (https://creativecommons.org/licenses/by/4.0/).
Share and Cite
Teshev, I.; Bespayev, A.; Tamov, M.; Zhambakina, Z.; Altigenov, U.; Zhussupov, T.; Tolegenova, A. Stress State of Modular Blocks with Large Door Openings. Buildings 2025, 15, 1253. https://doi.org/10.3390/buildings15081253
Teshev I, Bespayev A, Tamov M, Zhambakina Z, Altigenov U, Zhussupov T, Tolegenova A. Stress State of Modular Blocks with Large Door Openings. Buildings. 2025; 15(8):1253. https://doi.org/10.3390/buildings15081253
Chicago/Turabian StyleTeshev, Ilia, Aliy Bespayev, Murat Tamov, Zauresh Zhambakina, Ulan Altigenov, Timur Zhussupov, and Aigerim Tolegenova. 2025. "Stress State of Modular Blocks with Large Door Openings" Buildings 15, no. 8: 1253. https://doi.org/10.3390/buildings15081253
APA StyleTeshev, I., Bespayev, A., Tamov, M., Zhambakina, Z., Altigenov, U., Zhussupov, T., & Tolegenova, A. (2025). Stress State of Modular Blocks with Large Door Openings. Buildings, 15(8), 1253. https://doi.org/10.3390/buildings15081253

