Physics-Based and Data-Driven Retrofitting Solutions for Energy Efficiency and Thermal Comfort in the UK: IoT-Validated Analysis †
Abstract
1. Introduction
2. Methodology
2.1. Step 1: Physics-Based Analysis
2.1.1. Energy Consumption Analysis
2.1.2. Thermal Comfort Analysis
2.2. Step 2: Data Automation and Data-Driven Analysis
2.3. Step 3: IOT and Physics-Based Data Validation
3. Case Study
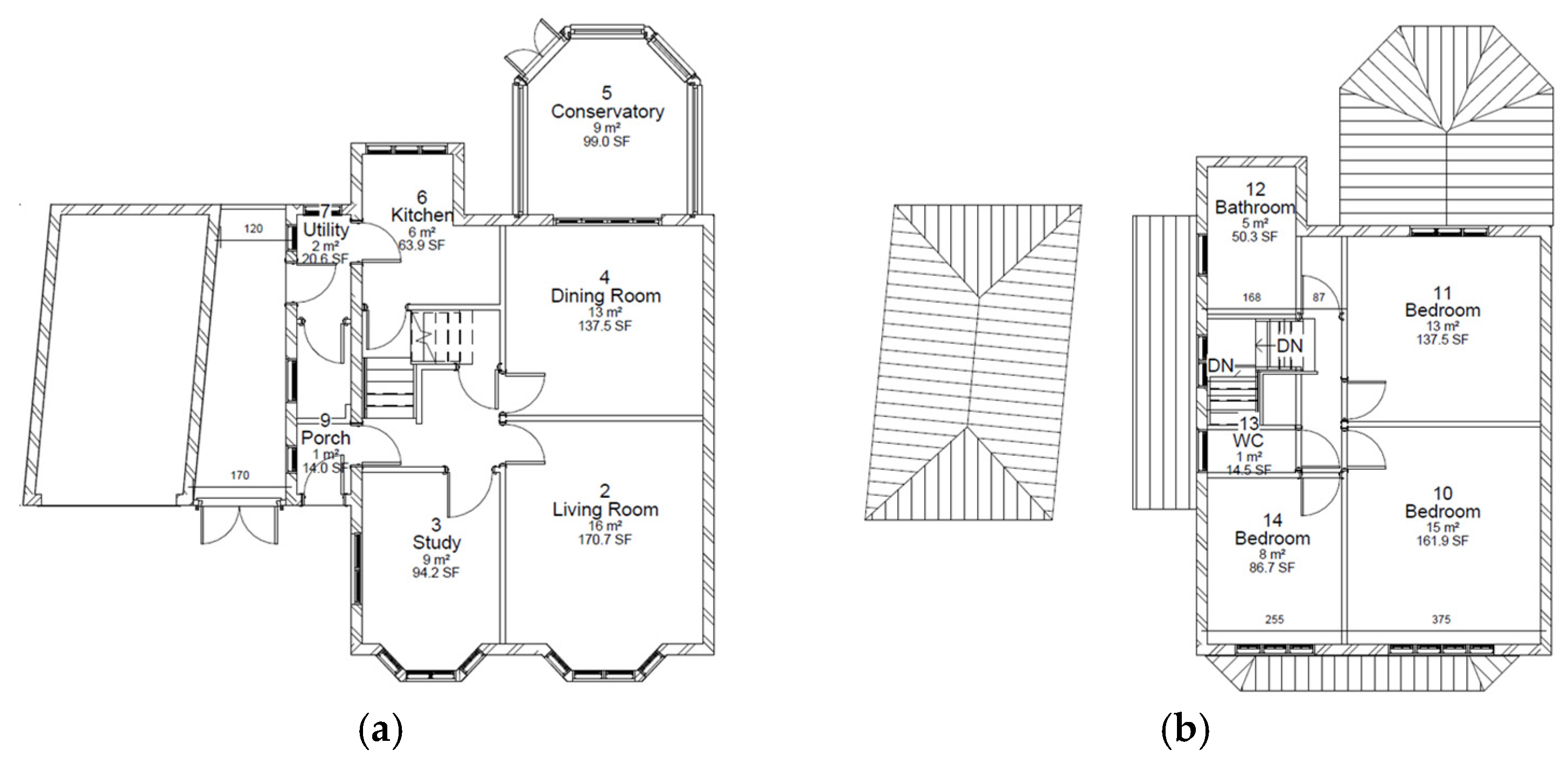
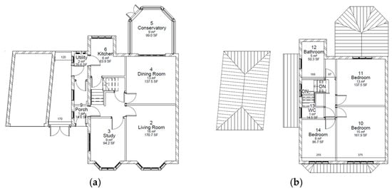
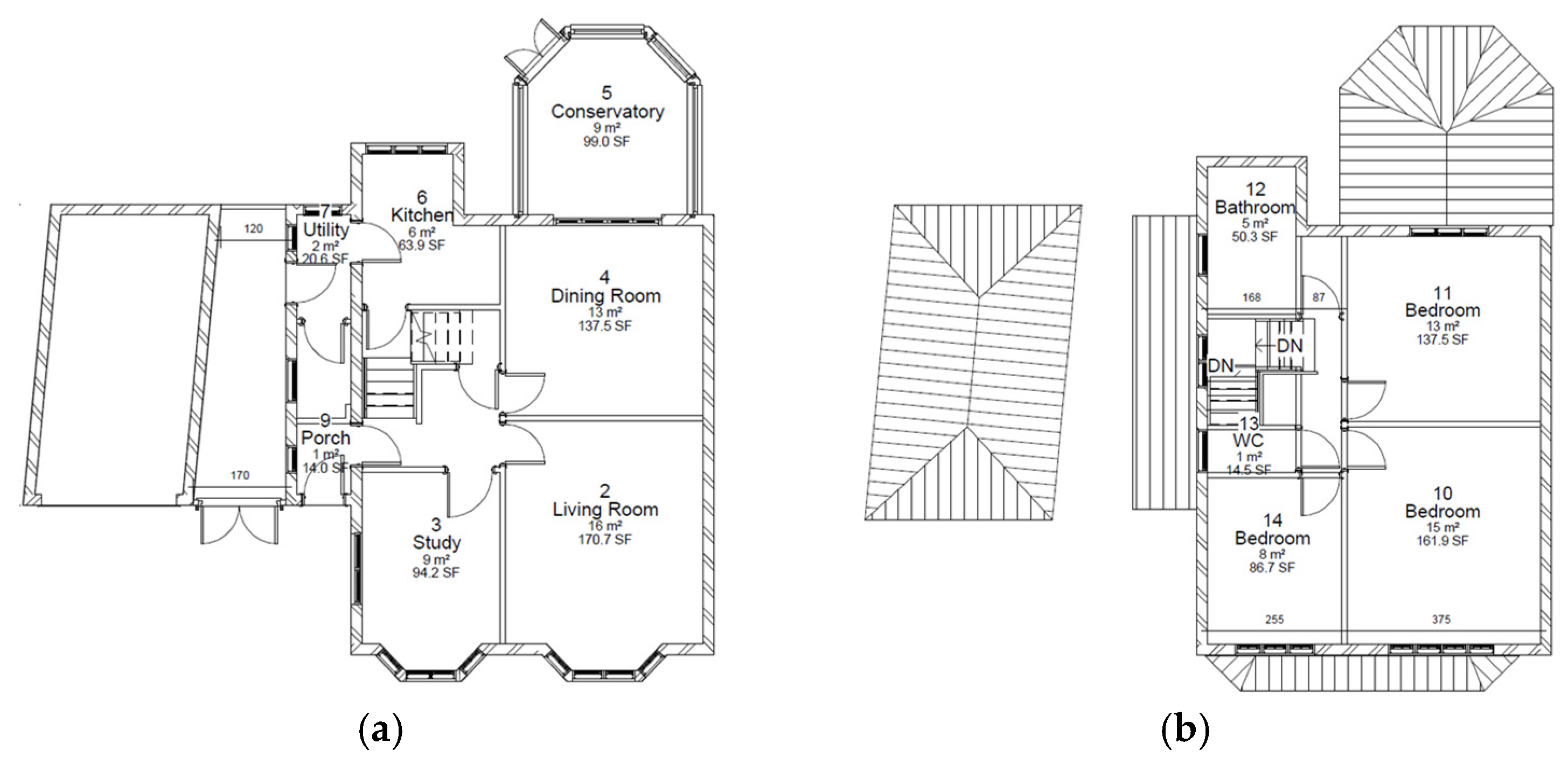
3.1. Simulation Case Study Description
3.2. Weather Conditions for Case Study Simulation
3.3. Simulation Period and Seasonal Breakdown
4. Results and Discussion
4.1. Energy Performance Analysis
4.2. Thermal Comfort Evaluation
4.3. Data-Driven Analysis
4.3.1. Data Automation and Scenario Development
4.3.2. Evaluation of Heating System Efficiency Across Diverse Scenarios
5. IOT-Based Data Validation
5.1. Validation Case Study Description
5.2. Methodology for IoT-Based Thermal Comfort Monitoring
5.3. IoT-Based Data Collection and Results Analysis
5.4. Results
6. Limitations and Future Study
7. Conclusions
Author Contributions
Funding
Data Availability Statement
Acknowledgments
Conflicts of Interest
References
- Kisku, N.; Joshi, H.; Ansari, M.; Panda, S.K.; Nayak, S.; Dutta, S.C. A Critical Review and Assessment for Usage of Recycled Aggregate as Sustainable Construction Material. Constr. Build. Mater. 2017, 131, 721–740. [Google Scholar] [CrossRef]
- Economidou, M.; Todeschi, V.; Bertoldi, P.; D’Agostino, D.; Zangheri, P.; Castellazzi, L. Review of 50 years of EU Energy Efficiency Policies for Buildings. Energy Build. 2020, 225, 110322. [Google Scholar]
- Pungercar, V.; Zhan, Q.; Xiao, Y.; Musso, F.; Dinkel, A.; Pflug, T. A New Retrofitting Strategy for the Improvement of Indoor Environment Quality and Energy Efficiency in Residential Buildings in Temperate Climate Using Prefabricated Elements. Energy Build. 2021, 241, 110951. [Google Scholar] [CrossRef]
- Ma, J.J.; Du, G.; Zhang, Z.K.; Wang, P.X.; Xie, B.C. Life Cycle Analysis of Energy Consumption and CO2 Emissions from a Typical Large Office Building in Tianjin, China. Build. Environ. 2017, 117, 36–48. [Google Scholar] [CrossRef]
- Abdulgader, M.; Lashhab, F. Energy-Efficient Thermal Comfort Control in Smart Buildings. In Proceedings of the 2021 IEEE 11th Annual Computing and Communication Workshop and Conference, CCWC 2021, Las Vegas, NV, USA, 27–30 January 2021; Institute of Electrical and Electronics Engineers Inc.: New York, NY, USA, 2021; pp. 22–26. [Google Scholar]
- Seyedzadeh, S.; Glesk, I.; Roper, M. Machine Learning for Estimation of Building Energy Consumption and Performance: A Review. Vis. Eng. 2018, 6, 5. [Google Scholar] [CrossRef]
- Lu, Y.; Li, P.; Lee, Y.P.; Song, X. An Integrated Decision-Making Framework for Existing Building Retrofits Based on Energy Simulation and Cost-Benefit Analysis. J. Build. Eng. 2021, 43, 103200. [Google Scholar] [CrossRef]
- Krstić, H.; Teni, M. Review of Methods for Buildings Energy Performance Modelling. IOP Conf. Ser. Mater. Sci. Eng. 2017, 245, 042049. [Google Scholar] [CrossRef]
- Yang, M.; Jiang, P.; Zang, T.; Liu, Y. Data-Driven Intelligent Computational Design for Products: Method, Techniques, and Applications. J. Comput. Des. Eng. 2023, 10, 1561–1578. [Google Scholar] [CrossRef]
- Bakmohammadi, P.; Noorzai, E. Optimization of the Design of the Primary School Classrooms in Terms of Energy and Daylight Performance Considering Occupants’ Thermal and Visual Comfort. Energy Rep. 2020, 6, 1590–1607. [Google Scholar] [CrossRef]
- Khan, H. Microclimatic Architectural Design by Interfacing Grasshoppers and Dynamo with Rhino and Revit. Meas. Sens. 2024, 33, 101143. [Google Scholar] [CrossRef]
- Jurizat, A.; Surahman, U.; Tedjawinata, G.K. Operational Energy Analysis of an Educational Building Design; A Case Study of Center of Excellent (CoE) Building at Universitas Pendidikan Indonesia (UPI). IOP Conf. Ser. Earth Environ. Sci. 2021, 738, 012018. [Google Scholar] [CrossRef]
- Razzaghmanesh, D.; Aksoy, M. The Effect of Parametric Design on Designing Performative Facades. In Proceedings of the 41st IAHS World Congress Sustainability and Innovation for the Future, Albufeira, Portugal, 13–16 September 2016. [Google Scholar]
- Medjeldi, Z.; Kirati, A.; Dechaicha, A.; Alkama, D. Parametric Design of a Residential Building System through Solar Energy Potential: The Case of Guelma, Algeria. J. Phys. Conf. Ser. 2023, 2600, 042012. [Google Scholar]
- Xue, Y.; Liu, W. A Study on Parametric Design Method for Optimization of Daylight in Commercial Building’s Atrium in Cold Regions. Sustainability 2022, 14, 7667. [Google Scholar] [CrossRef]
- Waibel, C.; Thomas, D.; Elesawy, A.; Hischier, I.; Walker, L.; Schlueter, A. Integrating Energy Systems into Building Design with Hive: Features, User Survey and Comparison with Ladybug and Honeybee Tools. In Proceedings of the 17th IBPSA Conference, Bruges, Belgium, 1–3 September 2021; Building Simulation Conference Proceedings. International Building Performance Simulation Association: Britton, SD, USA, 2022; pp. 1695–1702. [Google Scholar]
- Ibrahim, Y.; Kershaw, T.; Shepherd, P. A Methodology For Modelling Microclimates: A Ladybug-Tools and ENVI-Met Verification Study. In Proceedings of the 35th PLEA Conference Sustainable Architecture and Urban Design, A Coruna, Spain, 1–3 September 2020. [Google Scholar]
- Jalali, Z.; Noorzai, E.; Heidari, S. Design and Optimization of Form and Facade of an Office Building Using the Genetic Algorithm. Sci. Technol. Built Environ. 2020, 26, 128–140. [Google Scholar] [CrossRef]
- Zocchi, G.; Hosseini, M.; Triantafyllidis, G. Exploring the Synergy of Advanced Lighting Controls, Building Information Modelling and Internet of Things for Sustainable and Energy-Efficient Buildings: A Systematic Literature Review. Sustainability 2024, 16, 10937. [Google Scholar] [CrossRef]
- Far, C.; Far, H. Improving Energy Efficiency of Existing Residential Buildings Using Effective Thermal Retrofit of Building Envelope. Indoor Built Environ. 2019, 28, 744–760. [Google Scholar] [CrossRef]
- Neves-Silva, R.; Camarinha-Matos, L.M. Simulation-Based Decision Support System for Energy Efficiency in Buildings Retrofitting. Sustainability 2022, 14, 12216. [Google Scholar] [CrossRef]
- Luo, D.; Wu, T.; Wang, J.; Wagner, T. Informed Building Retrofit Based on Simulation and Data Analysis. In Proceedings of the 3rd International High Performance Buildings Conference, West Lafayette, IN, USA, 14–17 July 2014. [Google Scholar]
- Nutkiewicz, A.; Jain, R.K. Exploring the Integration of Simulation and Deep Learning Models for Urban Building Energy Modelling and Retrofit Analysis. In Proceedings of the Building Simulation Conference Proceedings; International Building Performance Simulation Association: Britton, SD, USA, 2019; Volume 5, pp. 3209–3216. [Google Scholar]
- Imani, E.; Dawood, H.; Dawood, N.; Occhipinti, A. Retrofitting of Buildings to Improve Energy Efficiency: A Comprehensive Systematic Literature Review and Future Research Directions. In CONVR 2023—Proceedings of the 23rd International Conference on Construction Applications of Virtual Reality, Florence, Italy, 13–16 November 2023; Firenze University Press: Firenze, Italy, 2023. [Google Scholar] [CrossRef]
- Cuerda, E.; Guerra-Santin, O.; Sendra, J.J.; Neila, F.J. Understanding the Performance Gap in Energy Retrofitting: Measured Input Data for Adjusting Building Simulation Models. Energy Build. 2020, 209, 26. [Google Scholar] [CrossRef]
- Imani, E.; Dawood, H.; Dawood, N.; Occhipinti, A. Enhancing building sustainability: A comprehensive review and methodological roadmap for retrofit strategies. J. Inf. Technol. Constr. 2024, 29, 1275–1292. [Google Scholar]
- Elshanshoury, W.; Lila, A.; Lavaf-Pour, Y.; Lamond, J.; Marco, E. Urban Building Energy Modelling and Generative Design—An Integration for Energy-Optimised Urban Design: A Systematic Review. In Building Simulation Conference Proceedings; International Building Performance Simulation Association: Britton, SD, USA, 2023; Volume 18, pp. 1643–1650. [Google Scholar]
- Roudsari, M.S.; Pak, M. Ladybug: A Parametric Environmental Plugin for Grasshopper to Help Designers Create an Environmentally-Conscious Design. In Proceedings of the BS2013: 13th Conference of International Building Performance Simulation Association, Chambery, France, 26–28 August 2013. [Google Scholar]
- ANSI/ASHRAE/IES Standard 90.1; Energy Standard for Buildings Except Low-Rise Residential Buildings. ASHRAE: Peachtree Corners, GA, USA, 2022.
- Kelly, S.; Crawford-Brown, D.; Pollitt, M.G. Building Performance Evaluation and Certification in the UK: Is SAP Fit for Purpose? Renew. Sustain. Energy Rev. 2012, 16, 6861–6878. [Google Scholar] [CrossRef]
- Fanger, P.O. Thermal Comfort. Analysis and Applications in Environmental Engineering; Danish Technical Press: Copenhagen, Denmark, 1970. [Google Scholar]
- ANSI/ASHRAE 55-2020; Thermal Environmental Conditions for Human Occupancy. ASHRAE: Atlanta, GA, USA, 2020.
- ISO-7730, 2005(E); Ergonomics of the Thermal Environment—Analytical Determination and Interpretation of Thermal Comfort Using Calculation of the PMV and PPD Indices and Local Thermal Comfort Criteria, 3rd ed. ISO: Geneva, Switzerland, 2005.
- Gilani, S.I.U.H.; Khan, M.H.; Pao, W. Thermal Comfort Analysis of PMV Model Prediction in Air Conditioned and Naturally Ventilated Buildings. In Proceedings of the Energy Procedia; Elsevier Ltd.: Amsterdam, The Netherlands, 2015; Volume 75, pp. 1373–1379. [Google Scholar]
- Laouadi, A. A New General Formulation for the PMV Thermal Comfort Index. Buildings 2022, 12, 1572. [Google Scholar] [CrossRef]
- The Building Regulations 2010. 2010 No. 2214; Building and Buildings, England and Wales; UK Statutory Instruments, UK Parliament: London, UK, 2010. [Google Scholar]
- Imani, E.; Dawood, H.; Dawood, N.; Occhipinti, A. A Hybrid Framework for Optimizing Energy Efficiency and CO2 Reduction Using Data-Driven and Physics-Based Scenario Analysis. In Proceedings of the 24rd International Conference on Construction Applications of Virtual Reality (CONVR 2024), Sydney, Australia, 4–6 November 2024. [Google Scholar]
- Williams, S.; Short, M.; Selvakumar, A. An Internet of Things Development Framework for Smart Cities Pilot Study. In Proceedings of the 4th International Conference on Robotics, Intelligent Automation and Control Technologies, RIACT 2023, Chennai, India, 20–22 October 2023. [Google Scholar]
- Ferdoush, S.; Li, X. Wireless Sensor Network System Design Using Raspberry Pi and Arduino for Environmental Monitoring Applications. In Proceedings of the Procedia Computer Science; Elsevier B.V.: Amsterdam, The Netherlands, 2014; Volume 34, pp. 103–110. [Google Scholar]
- Bečkovskỳ, D.; Vajkay, F.; Tichomirov, V. Computer Tools to Determine Physical Parameters in Wooden Houses. Mater. Tehnol. 2016, 50, 607–610. [Google Scholar] [CrossRef]
- UK Government. Council Tax: Stock of Properties, 2023—Statistical Commentary. Available online: https://www.gov.uk/government/statistics/council-tax-stock-of-properties-2023/council-tax-stock-of-properties-statistical-commentary (accessed on 22 March 2025).
- Chatzivasileiadi, A.; Lila, A.M.H.; Lannon, S.; Jabi, W. The Effect of Reducing Geometry Complexity on Energy Simulation Results. In Proceedings of the 36th Annual Education and Research in Computer Aided Architectural Design in Europe (eCAADe) 2018, Lodz, Poland, 17–21 September 2018. [Google Scholar]
- Ashrae ANSI/ASHRAF. Addendum a to ANSI/ASHRAE Standard 169-2020; Climatic Data for Building Design Standards; ASHRAE: Peachtree Corners, GA, USA, 2021. [Google Scholar]
- Jacovides, C.P.; Kontoyiannis, H. Statistical Procedures for the Evaluation of Evapotranspiration Computing Models. In Agricultural Water Management; Elsevier: Amsterdam, The Netherlands, 1995; Volume 27. [Google Scholar]
- Suaib, R.M.; Nuha, H.H.; Fathoni, M.F. Monitoring and Prediction of Temperature and Humidity at Telkom University Landmark Tower (TULT) Using Generalized Additive Model (GAM) and Internet of Things (IoT). In Proceedings of the 2023 International Conference on Data Science and Its Applications, ICoDSA 2023, Bandung, Indonesia, 9–10 August 2023; Institute of Electrical and Electronics Engineers Inc.: New York, NY, USA, 2023; pp. 465–470. [Google Scholar]
- Monetti, V.; Davin, E.; Fabrizio, E.; André, P.; Filippi, M. Calibration of Building Energy Simulation Models Based on Optimization: A Case Study. In Proceedings of the Energy Procedia; Elsevier Ltd.: Amsterdam, The Netherlands, 2015; Volume 78, pp. 2971–2976. [Google Scholar]
- Tomorad, J.; Horvat, I.; Dović, D. Study of Operative Temperature Using the Novel Detail Approach in Determining Mean Radiant Temperature—Comparison between Wall-Mounted Convector and Conventional Radiator. Trans. Famena 2018, 42, 27–38. [Google Scholar]



















| Building Element | Type | Thermal Conductivity (W/(m·K)) | Thickness (m) | U Value W/(m2·K) |
|---|---|---|---|---|
| External wall | Cement mortar | 0.93 | 0.02 | 0.2 |
| Brick | 0.710 | 0.10 | ||
| Cavity with insulation 100 mm (Mineral wool) | 0.035 | 0.10 | ||
| Brick | 0.58 | 0.10 | ||
| Plasterboard | 0.25 | 0.013 | ||
| Roof | Roof tiles | 0.93 | 0.2 | |
| Membrane | 0.005 | |||
| Insulation (mineral wool) | 0.04 | 0.20 | ||
| cavity | 0.05 | |||
| Plasterboard | 0.25 | 0.013 | ||
| Floor | Tile | 0.15 | 0.01 | 0.2 |
| Concrete slab | 1.80 | 0.10 | ||
| Insulation | 0.03 | 0.15 | ||
| Membrane | 0.005 | |||
| Compacted layer | 2 | 0.10 | ||
| Window | Triple glazed | 2 |
| Inputs | ||||||
|---|---|---|---|---|---|---|
| Features | Parameter Ranges | Unit | Number of Observations | |||
| Climate 4A | Climate 5A | Climate 5C | Climate 6A | |||
| External Wall U-Value | 0.2–0.5 | (W/(M2K)) | 767 | 767 | 767 | 767 |
| Interior wall U-Value | 0.2–0.5 | (W/(M2K)) | ||||
| Windows Glass U-Value | 2–4 | (W/(M2K)) | ||||
| Floor Material U-Value | 0.2–0.5 | (W/(M2K)) | ||||
| Ceiling Material U-Value | 0.2–0.5 | (W/(M2K)) | ||||
| Roof Material U-Value | 0.2–0.5 | (W/(M2K)) | ||||
| WWR(North) | 0.3–0.7 | - * | 125 | 125 | 125 | 125 |
| WWR(South) | 0.3–0.7 | - * | ||||
| WWR(West) | 0.3–0.7 | - * | ||||
| Heating system | - * | - * | 58 | 58 | 58 | 58 |
| Outputs | |||||
|---|---|---|---|---|---|
| Target | Unit | Winter | Spring | Autumn | Summer |
| EUI | (kWh/m2) | Value 1 | Value 2 | Value 3 | Value 4 |
| Energy need for heating | (kWh/m2) | Value 1 | Value 2 | Value 3 | Value 4 |
| PMV—Ground Floor | - * | Value 1 | Value 2 | Value 3 | Value 4 |
| PMV—First Floor | - * | Value 1 | Value 2 | Value 3 | Value 4 |
| Temperature—Ground Floor | (°C) | Value 1 | Value 2 | Value 3 | Value 4 |
| Temperature—First Floor | (°C) | Value 1 | Value 2 | Value 3 | Value 4 |
| Humidity—Ground Floor | (%) | Value 1 | Value 2 | Value 3 | Value 4 |
| Humidity—First Floor | (%) | Value 1 | Value 2 | Value 3 | Value 4 |
| Climate Zone | Heating System | EUI (kWh/m2) Winter | PMV |
|---|---|---|---|
| 4A | Residential heat pump with no cooling | 36.257 | −1.6478685 |
| 4A | Residential heat pump | 36.325 | −1.6558275 |
| 4A | Water source heat pumps with ground source heat pump | 36.823 | −1.6702195 |
| 4A | Baseboard central air source heat pump | 37.682 | −1.6476725 |
| 4A | Direct evap coolers with baseboard central air source heat pump | 37.705 | −1.6557985 |
| 5A | Water source heat pumps with ground source heat pump | 44.807 | −1.847724 |
| 5A | Residential heat pump with no cooling | 46.526 | −1.8304985 |
| 5A | Residential heat pump | 46.549 | −1.833855 |
| 5A | Baseboard central air source heat pump | 49.874 | −1.8289185 |
| 5A | Direct evap coolers with baseboard central air source heat pump | 49.874 | −1.8326055 |
| 5C | Residential heat pump with no cooling | 37.909 | −1.7071355 |
| 5C | Residential heat pump | 37.931 | −1.7097675 |
| 5C | Water source heat pumps with ground source heat pump | 38.135 | −1.724399 |
| 5C | Baseboard central air source heat pump | 39.379 | −1.705866 |
| 5C | Direct evap coolers with baseboard central air source heat pump | 39.401 | −1.7086605 |
| 6A | Water source heat pumps with ground source heat pump | 44.966 | −1.8951415 |
| 6A | Residential heat pump | 47.024 | −1.8770145 |
| 6A | Residential heat pump with no cooling | 47.024 | −1.8770145 |
| 6A | Baseboard central air source heat pump | 51.502 | −1.8731375 |
| 6A | Direct evap coolers with baseboard central air source heat pump | 51.502 | −1.873162 |
| Building Element | Type | Thickness | U-Value |
|---|---|---|---|
| External Wall | Brick outer leaf | 102.5 mm | 0.15 |
| Cavity, fully filled with Insulation (10 mm cavity) | 125 mm | ||
| Concrete Blockwork | 100 mm | ||
| Plasterboard on Dabs | 12.5 mm | ||
| Roof | Knauf Loft Roll 40 | 400 mm | 0.09 |
| Insulation layer (Joists (38 mm @ 450 mm centers)) | 100 mm | ||
| Plasterboard | 12.5 mm | ||
| Floor | Nuspan NU G300 Composite Decks | 0.16 | |
| Window | Triple Glazed (Low-E Soft 0.05) | 0.80 |
| Zones/Spaces | Temperature (°C) | Humidity (%) | ||||
|---|---|---|---|---|---|---|
| min | max | Average | min | max | Average | |
| Dining room | 21.5 | 25.6 | 22.84 | 39.5 | 48.5 | 44.98 |
| Lounge | 20.4 | 24 | 22.06 | 40.4 | 47.7 | 44.89 |
| Kitchen | 21.5 | 25.1 | 22.82 | 38.2 | 47.3 | 43.42 |
| Bedroom 1 | 20.3 | 24.4 | 22.73 | 40.7 | 47.4 | 43.59 |
| Bedroom 2 | 21 | 24.2 | 22.45 | 42.6 | 47.4 | 44.93 |
| Bedroom 3 | 22.2 | 25.3 | 23.25 | 41.1 | 46.3 | 44.23 |
| Zones/Spaces | Temperature (°C) | Humidity (%) | ||||
|---|---|---|---|---|---|---|
| min | max | Average | min | max | Average | |
| Dining room | 20.99 | 21 | 21 | 31.23 | 62.75 | 41.36 |
| Lounge | 20.99 | 21 | 20.99 | 31.79 | 63.33 | 41.99 |
| Kitchen | 20.99 | 21 | 21 | 30.74 | 62.23 | 40.79 |
| Bedroom 1 | 20.99 | 21 | 21 | 30.52 | 61.99 | 40.53 |
| Bedroom 2 | 20.99 | 21 | 21 | 30.36 | 61.82 | 40.35 |
| Bedroom 3 | 20.99 | 21 | 20.99 | 30.34 | 61.79 | 40.32 |
| Dining Room | Lounge | Kitchen 1 | |||
|---|---|---|---|---|---|
| Temperature (%) | Humidity (%) | Temperature (%) | Humidity (%) | Temperature (%) | Humidity (%) |
| −8.06 | −8.05 | −4.85 | −6.46 | −7.98 | −6.06 |
| Bedroom 1 | Bedroom 2 | Bedroom 3 | |||
| Temperature (%) | Humidity (%) | Temperature (%) | Humidity (%) | Temperature (%) | Humidity (%) |
| −7.61 | −7.02 | −6.46 | −10.19 | −9.72 | −8.84 |
| Building | Heating System | Temperature (°C)—GF | Temperature (°C)—FF | Humidity (%)—GF | Humidity (%)—FF |
|---|---|---|---|---|---|
| Plot 66 | Heat pump | 22.5 | 22.81 | 44.43 | 44.25 |
| Plot 65 | Infrared Heating system | 20.47 | 21.65 | 51.470 | 48.060 |
Disclaimer/Publisher’s Note: The statements, opinions and data contained in all publications are solely those of the individual author(s) and contributor(s) and not of MDPI and/or the editor(s). MDPI and/or the editor(s) disclaim responsibility for any injury to people or property resulting from any ideas, methods, instructions or products referred to in the content. |
© 2025 by the authors. Licensee MDPI, Basel, Switzerland. This article is an open access article distributed under the terms and conditions of the Creative Commons Attribution (CC BY) license (https://creativecommons.org/licenses/by/4.0/).
Share and Cite
Imani, E.; Dawood, H.; Williams, S.; Dawood, N. Physics-Based and Data-Driven Retrofitting Solutions for Energy Efficiency and Thermal Comfort in the UK: IoT-Validated Analysis. Buildings 2025, 15, 1050. https://doi.org/10.3390/buildings15071050
Imani E, Dawood H, Williams S, Dawood N. Physics-Based and Data-Driven Retrofitting Solutions for Energy Efficiency and Thermal Comfort in the UK: IoT-Validated Analysis. Buildings. 2025; 15(7):1050. https://doi.org/10.3390/buildings15071050
Chicago/Turabian StyleImani, Elena, Huda Dawood, Sean Williams, and Nashwan Dawood. 2025. "Physics-Based and Data-Driven Retrofitting Solutions for Energy Efficiency and Thermal Comfort in the UK: IoT-Validated Analysis" Buildings 15, no. 7: 1050. https://doi.org/10.3390/buildings15071050
APA StyleImani, E., Dawood, H., Williams, S., & Dawood, N. (2025). Physics-Based and Data-Driven Retrofitting Solutions for Energy Efficiency and Thermal Comfort in the UK: IoT-Validated Analysis. Buildings, 15(7), 1050. https://doi.org/10.3390/buildings15071050

