Next Article in Journal
Investment Behaviour Towards Build-to-Rent in Australia
Next Article in Special Issue
Study on the Bending Performance of Connection Joints in a New Type of Modular Steel Structure Emergency Repair Pier
Previous Article in Journal
Occupancy and Air Quality Model for Outdoor Events: A Strategy for Preventing Disease Transmission at Mass Events
 
 
Font Type:
Arial Georgia Verdana
Font Size:
Aa Aa Aa
Line Spacing:
Column Width:
Background:
Article

Modular Steel Buildings Based on Self-Locking-Unlockable Connections Seismic Performance Analysis

1
College of Urban and Rural Construction, Hebei Agricultural University, Baoding 071001, China
2
Department of Civil Engineering, Tianjin University, Tianjin 300072, China
3
Key Laboratory of Rural Building Structure Safety and Low-Carbon Construction in Hebei Province, Baoding 071001, China
*
Author to whom correspondence should be addressed.
Buildings 2025, 15(5), 678; https://doi.org/10.3390/buildings15050678
Submission received: 4 February 2025 / Revised: 16 February 2025 / Accepted: 19 February 2025 / Published: 21 February 2025

Abstract

This paper introduces a new self-locking-unlockable modular building with an inter-module connection, and its seismic performance is investigated. The new connection can realize fast connection and unlocking during construction through exceptional design. In this paper, taking the Tianjin Binhai Apartment project as the background, for the actual force situation of the new connection, considering the influence of corrugated steel plate stiffness, a simplified model of the connection is constructed by using multi-fold elastic connection, and the corrugated steel plate stiffness is simulated with equivalent support. In the MIDAS Gen 2021 software, the five-story and six-story structural models using traditional rigid connections and new connections were established, respectively, and reaction spectrum analysis was carried out. Meanwhile, seismic waves that comply with codes were selected for dynamic time course analysis. The results show that the stress ratios of all components of the new connection model and the traditional rigid model are less than 1. Among them, the maximum stress ratios of both floor beams are 0.745 and 0.725, respectively; the maximum stress ratios of the modular columns are 0.655 and 0.494, respectively; the stress ratios of the ceiling beams are all less than 0.5; and the two models show good strength and stiffness reserves, following the design principle of strong columns and weak beams and verifying the reliability of the new connection model. Meanwhile, it is found that the inter-story displacement angle of the six-story structure with the new connections is less than the normative value under the action of rare earthquakes, and the difference in top displacement is about 18% compared with that of the rigid structure, so it is suggested that the new connections can be applied within the height of six stories.

1. Introduction

A modular steel building involves the construction of each room as a modular unit, prefabricated in the factory and transported to the site, and finally assembled into the whole building by reliable connections, which has obvious advantages in terms of construction speed, cost-effectiveness, and sustainability [1,2]. Modular buildings’ high construction quality and efficiency have led to their use in various scenarios, including schools, apartments, hospitals, hotels, offices, and other similar buildings with repetitive units. The constructional form and mechanical properties of the connections between modules are significant, and currently, good connections ensure the integrity, stability, and safety of modular buildings: there are mainly welding, bolting, and prestressed connections [3,4,5,6], as shown in Figure 1. Although these connections have been proven to have satisfactory static or seismic performance in relevant studies, welded connections are overly dependent on welders, their quality is difficult to guarantee, the workload is large, they are expensive, and they require a high level of worker operation; for bolted connections, it is necessary to reserve a certain amount of operating space at connection corners and to make holes in the corner pieces, which may affect the integrality and the appearance of the modular steel building; prestressed connections require specific equipment, and some need to be poured concrete [6], which increases the construction’s complexity and leads to problems such as high-quality control difficulties and a prolonged construction period.
Under earthquakes, the collapse or severe damage of structures may lead to substantial economic losses, human casualties, and severe disruption of social functions [7,8]. However, due to the high cost and low penetration of experimental equipment and test rigs for such large-scale complex structural systems, finite-element analysis (FEA) is commonly used to simulate these behaviors [9]. When performing the overall seismic analysis of modular structures, detailed numerical modeling incurs high computational costs due to the complexity of solid connection configurations [10]. Given this, it is necessary to simplify the connections. At this stage, related studies mainly simplify the connections into rigid or hinged forms or directly input fixed stiffness values to deal with them. However, the assumption that the connections are stiffened will overestimate the seismic capacity of the structure; the assumption that the connections are hinged is not conservative, which may lead to extreme swaying behavior of the building [11,12,13]. While the connections are equivalent to a fixed stiffness value, the connection’s initial stiffness is in a constant state of fluctuation [14,15]. In the process, the corrugated steel plate factor is not included in the scope of consideration, while the corrugated steel plate for the container module has a significant stiffness enhancement. The corrugated steel plate has a significant stiffening effect on the container module, which makes the simplified model deviate from the actual structure in terms of performance.
This paper proposes a new self-locking and unlockable modular building inter-module connection (hereinafter referred to as the new connection) based on the Tianjin Binhai Apartment project, which does not require welding or reserving operation holes at the site and can be disassembled quickly at a later stage, overcoming the limitations of the existing modular steel structure connection and realizing the connection inside the module. In order to study the number of applicable floors of the new connection in this purely modular building, this paper introduces the load–displacement curve derived from the finite-element analysis in ABAQUS 2021 software. It converts it into the equivalent multi-fold elastic connection in the structural computation software MIDAS Gen 2021 to consider the change in connection stiffness and bearing capacity and, at the same time, consider the stiffness of the corrugated steel container plate, which is simplified into equivalent support, and is applied in the MIDAS Gen software. Response spectrum analysis can calculate the structure’s self-oscillation period and vibration mode, verify the influence of connection stiffness on the overall dynamic characteristics, and quickly assess the influence of connections on the overall structural stiffness, period, and seismic force, making it suitable for preliminary design. Dynamic time-course analysis can accurately simulate the nonlinear behavior of connection and verify the energy dissipation capacity and damage. The combination of the two can comprehensively prove the seismic performance of the new connections and provide support for engineering applications. By introducing the traditional rigid connection as a control, the reaction spectrum analysis and power time course elastic–plastic performance analysis of the structure are performed to obtain the structure’s seismic performance more accurately.

2. Connection Constitution

This paper introduces a new inter-module connection based on the Tianjin Binhai Apartment project. It has a self-locking connection, fast unlocking, complete assembly, and high fault tolerance. In addition to lifting, there is no need to weld on-site, and there is no need for additional construction space and construction procedures. It can also be disassembled quickly at a later stage, which reduces assembly time and thus shortens the construction period. The connection is mainly composed of corner pieces, plugs, rotatable snaps, rib plates, gusset plates, limit pins, unlocking levers and springs, etc., as shown in Figure 2; the specific realization is as follows:
Before connection, the top and bottom surfaces of the upper corner piece are provided with square holes to ensure that the unlocking lever and plug can pass through smoothly, and its interior is pre-welded with a ribbed plate, which has two holes reserved for placing the rotatable snap and the limit pin, and the rotatable snap is assembled on top of the ribbed plate through the rotatable snap and then welded and fixed to the upper column, thus constituting the upper module unit. The lower corner piece has a threaded hole on the top, which is easy to connect to the plug, and the bottom is equipped with square holes, which are welded to the lower column to form the lower modular unit.
When connecting the operation, the plug is first screwed through the thread on the top plate of the lower corner piece, according to the need to place various types of gusset plates, as shown in Figure 3. Subsequently, the upper module unit is lifted and slowly lowered so that the bottom of the upper corner of the hole is aligned with the plug, and the plug is inserted into the upper corner of the piece. The top of the plug is in the shape of a prism, with the plug and the rotatable snaps making contact with the upper corner of the plug more expansive than the bottom of the vertical flange of the rotatable snaps’ horizontal distance. Then, the reset spring is compressed, and the rotatable snap is squeezed. When the top of the plug is entirely within the vertical flange of the bottom of the rotatable snaps, with the help of the rebound force of the spring, by the design of the self-locking angle design, the rotatable snap quickly locks the plug, the connection is automatically locked, the upper and lower module unit installation is completed, as shown in Figure 4.
During the unlocking operation, the unlocking lever is vertically probed from the top of the upper module column into the pre-drilled hole at the top of the upper corner piece. When the unlocking lever penetrates deep into the upper corner, when it encounters an obstacle and cannot continue to penetrate, it indicates that the front end of the rotatable snaps has been spread out in all directions, prompting the rotatable snaps to disengage from the plugs. At this point, the upper module unit can be lifted, followed by removing the gusset plate, and finally, the plug can be unscrewed from the top of the lower corner of the lower module unit. This completes the removal process.

3. Project Overview

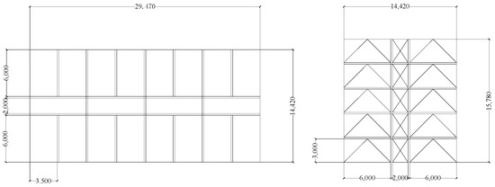
MIDAS Gen is a general-purpose space finite-element structural analysis and design software, which has remarkable functions in dealing with complex structures and space- unique structures and has built-in rich functions and modules for seismic analysis of building structures; in addition to China, it has added the codes of Europe, America, Japan, and other countries, which provides designers with a better design basis. Compared with ABAQUS and Sap 2000, it has the advantages of easy operation, strong specialization in building structure, high efficiency and accuracy in calculation, excellent post-processing function, and good localization support in structural analysis. To study the application scope of the new connections, in this paper, the MIDAS Gen software is used to construct models for comparative analysis. For horizontal comparison, models of five-story and six-story modular buildings with corrugated steel plate stiffness and new connections and models of the same number of stories with rigid connections are established; for vertical comparison, a model without considering the stiffness of corrugated steel plate is added to investigate the effect of corrugated steel plates on the performance of modular buildings. The model is designed concerning a sample apartment building in the Tianjin Binhai tourist area (which is a pure steel modular building), and static and dynamic loads are applied to the structural design requirements and geological conditions of buildings in the Tianjin area [16], the plan and elevation of the five-story structure are shown in Figure 5. The unit type used is a corner column-supported unit, including a room unit and corridor unit; the member columns are made of Q345 steel, the beams are made of Q235 steel, and the corridor unit is supported in the X-direction at both ends to improve the lateral stiffness of the model. The five-story structural model with rigid connection is shown in Figure 4. The module floor is subjected to a static load of 4 kN/m2 and a live load of 2 kN/m2, the ceiling is subjected to a constant load of 1 kN/m2, and the roof of the top story is subjected to a constant load of 1 kN/m2 and a live load of 1 kN/m2. The basic wind pressure is 0.45 kN, and the roughness is B. According to the “Code for Seismic Design of Buildings” [17,18], the seismic intensity is set to be 7°, the site is Class III, and the design category grouping is two groups. The study of five-story and six-story modular buildings found that corrugated steel plates play a similar role in improving the overall stiffness of both structures. Therefore, in this paper, only the five-story model is used as an example to compare the situation with and without considering the stiffness of corrugated steel plates, as shown in Table 1.

4. Simplified Modeling of Structures

4.1. Simplified Connection of Modular Units

The modular building has a double-beam structure and a net spacing between the upper module’s floor beams and the lower module’s ceiling beams. For models with traditional rigid connections, the vertical connections between modular units are rigidly connected using short columns that extend the upper and lower column segments, as is shown in Figure 6. Since the gusset plates are prefabricated in the factory, they need sufficient strength to cope with the force deformation, so their damage is not considered in the structural calculation. On this basis, dummy beams are used for horizontal connections to rigidly connect with the ceiling beams of neighboring modular units. For the model with a new type of connection, vertical connections between modular units are modeled as new types of connections using multifold elastic connections in the MIDAS Gen software, as shown in Figure 6.
Using reference-based modeling and analysis methods [19], the initial stiffness of the new connection in tension, shear, and bending was obtained through finite-element analysis. The European code EC3 classifies the connections as rigid, semi-rigid, and articulated (based on stiffness); in this paper, we refer to this code to judge the properties of the connections based on their stiffness [20]. According to the actual project, the height of the modular column is 3000 mm. The cross-section size of the modular column is 200 mm × 200 mm × 8 mm, and the non-dimensional bending moments and angles are found, which lead to the conclusion that the connection is semi-rigid, as shown in Figure 7. The load–displacement (bending moment–corner) curves obtained from the ABAQUS software were substituted into the MIDAS Gen software to consider the change in stiffness and load-carrying capacity, and the displacement was converged through iterative calculations. An articulated connection was used for the horizontal connection—dummy beams to the ceiling beams of the neighboring modular units. In an earthquake, the seismic forces act on the structure much more than the temperature effects. The inertial forces generated by earthquakes cause the structure to vibrate and deform violently, which may lead to structural members’ destruction or even collapse. In contrast, the internal forces and deformations of the structure caused by temperature changes are usually small. Under the strong influence of seismic action, the effect of temperature action on the structure’s seismic performance is insignificant, so the effect of temperature is not considered in this paper.

4.2. Equivalent Modeling of Corrugated Plates

Studies show that corrugated steel shear walls can show high lateral stiffness and bearing capacity; its corrugated shape makes the steel plate in the out-of-plane direction have a certain bending and torsion resistance, meaning it can better resist the external force from different directions, reduce the deformation of the structure in space, and enhance the overall stability and stiffness of the structure. Meanwhile, when the corrugated steel plate is used as the wall of a modular building, it works with other components, such as the frame structure, to ensure smooth force transfer between the structure so that the corrugated steel plate completely plays its role in enhancing the stiffness of the structure [21]. Not considering the effect of corrugated plates on the building will seriously underestimate the lateral resistance of the modular structure and increase the amount of steel used in the structure. The finite-element modeling process of a corrugated steel plate is too complicated and unsuitable for structural calculation software such as MIDAS Gen, so it needs to be equated to a simplified model. Current researchers have simplified corrugated steel into cross-support, but cross-support requires complex structural design at the nodes and occupies a large space with more complex force transfer and distribution [22,23]. The inverted V-type support has shorter support rods, and there is no need for connectors between the support rods, which can reduce the production and installation costs; the structure of the inverted V-type support enables the force to be transmitted directly to the foundation along the support rods, which is relatively simple and direct, and the structural force is more efficient. Therefore, this paper adopts the equivalent inverted V-shaped support instead of a corrugated plate to simplify the simulation and facilitate the application in the general structural analysis software.
The key to determining the equivalent inverted V-shaped support to simulate the corrugated plate is to calculate the cross-sectional area of the equivalent support, which is determined by the initial lateral stiffness of the corrugated plate according to the principle of stiffness equivalence. For this reason, the corrugated plate can be force-analyzed using finite-element analysis software to obtain the stiffness it contributes to the structure.
According to reference [23] and the structure and dimensions of the members described in this paper, the ABAQUS software is used for finite-element analysis of the corrugated plate. Shell units are taken to model each member, and Tie connections are used to simulate welding between beams, columns, and corrugated plates. The modular columns are constrained articulately at the bottom end, while the floor beams are constrained to have out-of-plane degrees of freedom in the X-direction, and transverse displacement loads are applied to both ends of the top columns simultaneously.
After finite-element analysis, the stress nephogram of the member is shown in Figure 8; when the upper module is subjected to a lateral load, the ceiling beam is subjected to a more significant force, and the modular columns push both sides of the ceiling beam, and some of the lateral displacements rely on the axial deformation of the ceiling beam to balance so that it produces a gradient stress and lateral deformation, which is in line with the stress distribution of the literature [23]. Outputting the load–displacement curve of the ceiling column, the lateral stiffness of the corrugated plate is obtained as 217 kN/mm, and the result is only 1.8% different from the calculated value in the reference (221.4 kN/mm for references), indicating the accuracy of the simulation in this paper.
According to reference [23], assuming that the top of the corrugated plate is subjected to uniform horizontal force, the sidewalls of the corrugated plate and the beam are subjected to uniform force, the columns and the corrugated plate are coordinated to deform, and the members are in the elastic state, the ideal design sketch is shown in Figure 9. According to the equivalent support area calculation Formula (5), the corrugated plate is equivalent to a steel pipe with an outer diameter of 180 mm and a wall thickness of 9 mm (standard support area Ab = 4721 mm2).
The axial force of the bar under horizontal load F is as follows:
N = F 2 cos α
The axial deformation of the support is as follows:
Δ L = F h 2 E A sin α cos α 2
The horizontal displacement of the structure is as follows:
d = Δ L cos α = F h 2 E A sin α cos α 2
From the principle of equivalence of the stiffness of the inverted V-support and the corrugated plate,
F = k b r d
The cross-sectional area of the inverted V-support is as follows:
A = h k b r 2 E sin α cos α 2
  • E : Elastic modulus
  • α : Support inclination angle relative to the horizontal
  • h : Corrugated plate height
  • L: Support length
  • k b r : The lateral stiffness of the corrugated plate

5. Seismic Performance Analysis of Modular Buildings

5.1. Analysis of Structural Self-Oscillation Performance

The stiffness of the corrugated plate is equivalent to the two cases of support, and without considering the corrugated plate, using the new connection and rigid connection modular building model of the first three vibration modes, structural periods, and modal mass participation factors, as shown in Table 2. The vibration characteristics of the XC-5 model show significant changes compared to the RC-5 model. In particular, the first-mode vibration period of the XC-5 model increases by 19.5%, the second-mode vibration period increases by 19.4%, and the third-mode vibration period rises by 5.8%, which means that the vibration frequency of the XC-5 model is significantly reduced and the response time of the structure is lengthened. The stress distribution inside the structure will be reorganized due to the semi-rigidity of connections. Suppose the selection and arrangement of components are still based on the traditional rigid connection mode. In that case, it is very easy to cause the accumulation of fatigue damage of local components under long-term dynamic loading, so it is necessary to consider the influence of the semi-rigidity of connections on the modular structure [24]. Compared with the XC*-5 and RC*-5 models without considering the stiffness of the corrugated plate, the first three modes of intrinsic vibration periods of the XC-5 and RC-5 models considering the stiffness of the corrugated plate are shorter, which indicates that the consideration of the corrugated plate improves the overall stiffness of the structure, and thus shortens the intrinsic vibration period of the structure. Considering the stiffness of the corrugated plate, the first two modes of vibration of the XC-5 model are along the X-direction with a translational mode as the second and along the Z-direction with a rotational mode as the third. In comparison, the first three modes of vibration of the RC-5 model are all X-direction translational. Considering the stiffness of the corrugated plate, the first two modes of vibration of the XC-5 model are along the X-direction with a rotational mode as the second and along the Z-direction with a torsion mode as the third. Without considering the stiffness of the corrugated plate, according to the effective mass participation coefficient, the XC-5* model and RC-5* model have X-translation, Y-translation, and Z-rotation vibration patterns in the first three modes, respectively. The modal mass participation factors show that considering the stiffness of the corrugated plate can effectively improve the Y-direction stiffness of the modular structure, and the Y-direction stiffness of the rigid model is more prominent, so the focus should be on the X-direction damage of the structure under the dynamic load. The vibration periods of the XC-6 and RC-6 models are increased by about 23.6% and 33.5%, respectively, compared with those of the XC-5 and RC-5 models, which indicates that the floor height significantly affects the integrity of the structure.

5.2. Analysis of Reaction Spectrum Results

The inter-story displacement angle refers to the ratio of the maximum horizontal displacement of a floor to the height of that floor of a building structure under horizontal loading. If the inter-story displacement angle exceeds the ultimate deformation capacity of the structure, the structure may collapse locally or as a whole. The five-story models’ inter-story displacement angle and the top displacement are shown in Figure 10 and Table 3 and Table 4. The four model inter-story displacement angle is less than 1/300, which meets the code requirements [25]; Figure 10 shows that the deformation patterns all show typical shear-type characteristics, manifested as follows: the displacement amplitude of the bottom of the structure is relatively small, and with the continuous rise of the story, the displacement shows a gradual, incremental trend. In the X-direction, all modeled inter-story displacement angles show a gradual increase in the early stage and a gradual decrease in the later stage during the change process, so we should pay attention to the influence of the higher-mode vibration mode; the maximum inter-story displacement angle occurs in the two-story case, so this story can easily incur stress damage and stress concentration, and we should strengthen the members in the two- to three-story case. Some of the inter-story displacement angles of the XC-5 and RC-5 models are larger than those of the XC*-5 and RC*-5 models because the corrugated plates increase the structure’s deformation resistance in the Y-direction. Thus, the forces on the structure under dynamic loading are transferred more to the X-direction. In the Y-direction, the inter-story displacement angles of the four models are much less than the normative value of 1/300. The inter-story displacement angles of the XC-5 and RC-5 models are about 1/8 and 1/10 of those of the XC*5 and RC*5 models, while the top displacements are about 1/6 and 1/14 of them. This also indicates that considering corrugated plates can significantly improve the structure’s stiffness. The corrugated steel plate is even more evident in enhancing the stiffness of the RC-5 model.
The six-story models’ inter-story displacement angle and the top displacement are shown in Figure 11 and Table 5 and Table 6. The maximum inter-story displacement angle occurs in the two-story case of the XC-6 model, which is 1/300, equal to the code value, which indicates that the structural strength and height of the XC-6 model are close to the limit value. The frame structure should be added to enhance the lateral resistance of the structure. From Figure 11, it can be seen that the deformation of the two models still shows a shear type. In the X-direction, the maximum inter-story displacement angle also occurs in the two-story case, and the distribution of the inter-story displacement angle is more consistent between the XC-6 model and the RC-6 model compared to the XC-5 and RC-5 models. With the increase in floors, the overall stiffness of the structure becomes smaller, and the inter-story displacement angle becomes larger. The cross-sectional area of the members of the two- to three-story case should be targeted to optimize the structural performance and improve the structural stiffness. In the Y-direction, the inter-story displacement angles of the two models tend to increase with the increase in floors, which indicates that the structure’s higher-order mode response is no longer visible when the Y-direction wall panel stiffness is considered.
As seen from Table 6, the stress ratios of the cross-section of the four model members are all below 1, which can meet the design requirements (the equivalent support of the corrugated plate is noted as Support2). For the XC-5 and RC-5 models, the maximum stress ratio occurs in the floor beam members at 0.731 and 0.725, respectively. For the XC*-5 and RC*-5 models, the maximum stress ratio appears in the support member at 0.870 and 0.788, respectively, and the stress ratios in each member of both models are greater than or equal to those of the XC-5 and RC-5 models. The stress ratios of each member indicate that the addition of equivalent corrugated plate stiffness can share the load carried by other members and improve the overall stiffness of the structure. For the XC-5 and RC-5 models compared to the XC-6 and RC-6 models, the stress ratio of the members increased. The maximum stress ratio of the floor beams in all of the models is greater than that of the modular columns, which indicates that the strength reserve of modular columns is greater than that of floor beams, which aligns with the design principle of strong columns and weak beams. For the XC-5 and XC-6 models compared with the RC-5 and RC-6 models, the maximum stress ratio of the floor beams is close to that of the modular columns. In contrast, the stress ratio of the modular columns has a more significant difference, indicating that the rigid model is more capable of utilizing the energy dissipation capacity of the beam members to ensure that the structure has better ductility than the new connection model.

5.3. Dynamical Time-Course Analysis

5.3.1. Seismic Wave Selection and Amplitude Modulation

When using the structural time course analysis method for seismic response calculation, the data of seismic ground acceleration need to be input. Artificial seismic waves are mathematically superimposed and iteratively modified so that the response spectrum approximates the design response. An artificial seismic wave is a mathematical method to superimpose and combine sinusoidal waves and iteratively modify them so that the response spectrum is close to the standard design response spectrum, which can uniformly “stimulate” the structural vibration response. However, it lacks the non-stationary characteristics and short-period components of natural seismic waves, which can more realistically simulate the actual situation when an earthquake occurs and can only stimulate the structure within the framework of the design response spectrum. The dynamic time-course analysis should be dominated by natural seismic waves and supplemented by artificial waves. Consequently, according to the seismic code requirements, combined with the type of building site and the design of seismic grouping conditions, we usually select “2 + 1” seismic waves, two natural seismic records, and one artificially generated wave according to the response spectrum fitting, and the economy and efficiency of the study is ensured. At the same time, when selecting seismic waves, it is necessary to consider the three significant elements of ground motion: peak value, spectral characteristics, and duration [26]. This paper selects the Taft wave, T2–1-3 wave, and an artificial wave based on the response spectrum. Based on the building located in Site Category III, with a seismic fortification intensity of 7 degrees (0.15 g) and the design seismic group being Group 2, the design response spectrum (with a characteristic period of 0.55 s) is obtained. According to the response spectrum, representative seismic waves such as the Taft wave and T2–1-3 wave are selected, and an artificial seismic wave is also chosen. The PGA scaling method is used to adjust the amplitude of seismic waves. This is a linear amplitude adjustment method. That is, by multiplying the acceleration value at each time instant in the seismic wave by a scaling factor, the scaling of the seismic wave can be completed so that the PGA of the adjusted seismic wave reaches the expected value, as shown in Equation (6). The duration of the seismic waves should be 5~10 times the basic period of the structure, and not less than 15 s and 16 s are selected in this paper.
A ( t ) = ( A m a x / A m a x ) A ( t )
where A′(t) is the time curve of the seismic wave, A′max is the peak acceleration of ground motion for multiple or rare earthquakes under the requirement of fortification intensity, and 55 cm/s2 and 330 cm/s2 are taken in this paper; A(t) and Amax are the time curve and peak value of the original seismic wave, respectively.
The corresponding seismic influence coefficient curve after amplitude modulation is compared with the design response spectrum, as shown in Figure 12. It is close to the response spectrum curve at the main period points of the structure, and the error of the first three periods is less than 20%, which meets the code requirements.

5.3.2. Multi-Earthquake Response

To further verify the reasonableness of the seismic waves, the base shear of the structure under the action of three seismic waves is extracted, and the base shear comparison obtained from the reaction spectrum is shown in Table 7 and Table 8. The seismic code stipulates that in the elastic time course analysis, the base shear in the main direction of the structure under the action of each seismic wave is 65%~130% of the results of the reaction spectrum in the same direction. The average of the base shear inputs of multiple sets of seismic waves is 80%~120% of the results of the reaction spectrum, which can be seen since the base shear of the four models meets the code requirements [27].

5.3.3. Rare Earthquake Response

  • Inter-story Displacement Angle and top Displacement Analysis
Under rare earthquakes, the five-story models’ inter-story displacement angle and the displacement of the top of each floor are shown in Figure 13, from which it can be seen that the inter-story displacement angle of both models in the X-direction and the Y-direction is less than 1/50, which meets the code requirements. The modeled top displacements also show high consistency with the shear-type deformation pattern. In the X-direction, the maximum inter-story displacement angle of both models occurs in the two-story under the action of T2–Ⅰ-3 wave, and the more the angle of inter-story displacement deviates from the two-story case, the smaller the angle is, so the two-story case is subjected to larger shear and bending moments; the angle of inter-story displacement of the XC-5 model is generally larger than that of the RC-5 model, which indicates that the structural stability of the XC-6 model is weaker than that of the RC-6 model, but the overall difference is not significant. In the Y-direction, the inter-story displacement angle of the two models is much smaller than the code value, so the structure is more stable and reliable in the Y-direction. In comparison, the inter-story displacement angle of the RC-5 model is much smaller than that of the XC-5 model, which indicates that the support enhances the lateral capacity of the rigidly connected structure more obviously. For the RC-5 and XC-5 models in the X-direction, the average values of the top displacements under three seismic waves are 141.1 mm and 146.7 mm, respectively. The XC-5 model is only 4% larger than the RC-5 model. In contrast, the top displacements of the two models in the Y-direction are much smaller than those of the X-direction, so the structure is more resistant to the lateral capacity in the Y-direction. Therefore, the overall strength and stability of the two models are better, so the new connections can be applied to five-story modular buildings.
The six-story models’ inter-story displacement angle and the displacement of the top of each floor are shown in Figure 14 and Table 5 and Table 6. The maximum inter-story displacement angle occurs on the two-story XC-6 model structure when the Taft wave action, 1/49, exceeds the code value. This affects the safety and functionality of the main body of the structure, and the two models’ deformation models are also presented in the same shear-type deformation. In the X-direction, the maximum inter-story displacement angle of the two model deformations occurred in the two- to three-story, so the members near the two- to four-story case should increase the cross-sectional area to improve its strength; the RC-6 model under the action of the T2–Ⅰ-3 inter-story displacement angle is partially larger than the XC-6 model, with a large difference, which may be the case because the seismic wave frequency component is close to the structure itself and resonance occurs. Meanwhile, the new connections have a certain rotation ability, which enables the structure to consume part of the energy by rotating the connections under the action of seismic waves, thus reducing the internal force response of the structure and the angle of inter-story displacement. In the Y-direction, the inter-story displacement angle of the RC-6 model is larger than that of the XC-6 model but smaller than the code value, so the structure is more stable and safe. For the RC-5 and XC-5 models in the X-direction, the average values of top displacements under the action of seismic waves of the three wave bars are 189.6 mm and 225.4 mm, which are larger compared to the top displacements of the five-story structure, with an increase of 18.8% in displacement, which suggests that in six-story modular buildings, the different connection forms have a significant effect on the structural top displacement and the angle of inter-story displacement. Therefore, when the number of floors of the modular building exceeds six, the difference in seismic performance between the new type of connection and the rigidly connected building is large under the premise of the same cross-section of members under dynamic load, so the new type of connection is no longer applicable. At this time, in order to expand the applicability of the new connections in the high-rise level, the optimization can focus on the two- to three-story buildings, which are subjected to larger forces, i.e., increase the cross-sectional area of the modular columns and floor beams of the story or the strength of the components, which can effectively reduce the deformation of the components under the action of the earthquake, to improve the seismic performance of the structure. At the same time, the X-direction stiffness of the structure can be increased, such as the addition of core elements, using its strong lateral force resistance to improve the overall stability of the structure; also, in the X-direction, the reasonable arrangement of shear walls and other lateral force components can further strengthen the lateral stiffness of the structure, so that the structure has better resistance to horizontal loads such as earthquakes.
  • Analysis of plastic hinge formation states
Since the modeled plastic hinges using the new connections with rigid connections act similarly under the action of three seismic waves, and the basic mode of the structure mainly shows the lateral deformation along the X-direction, this paper only lists the X-direction distribution of the plastic hinges of the four models under the action of Taft waves in the early stage (t = 0.5 s) and the final stage (t = 16 s). Figure 15 and Figure 16 show the plastic hinge development state of the XC-5 model and RC-5 model, and the value on the right side represents the ductility coefficient (D/D1), i.e., the ratio of the current deformation to the initial yield deformation. When the value is less than 1, the member is still in the elastic stage; when the value is greater than 1, it indicates that the member has entered the yield stage [28].
Figure 15 shows the stage of formation of the plastic hinge of the XC-5 model. In the early stage of the seismic wave action, the location of the internal force is larger for the lower ceiling beam, floor beam, and the lower end of the bottom columns at the lower end. The maximum coefficient of ductility is 6.52 × 10−3. At this time, the seismic load has not yet been fully transferred to the upper part of the structure. As the dynamic time-history curve progresses, plastic hinges appear in the lower part of the structure. The deeper plastic hinges were mainly concentrated in the two-story floor beams and the lower end of the bottom columns of the module, with a ductility coefficient of 1.08. However, most of the structural members were in an elastic state. As shown in Figure 16, the hinge is formed first at the lower end of the module bottom, followed immediately by the one- to two-story floor beams, the one- to two-story ceiling beams, and finally at the module columns, which is in line with the design concept of “strong columns and weak beams” in the actual project. This also indicates that the structure’s seismic energy dissipation is mainly borne by the floor beams, which are stronger than the ceiling beams, so the utilization of the members can be fully utilized to improve the energy dissipation capacity and seismic capacity of the XC-5 model.
Figure 16 shows the formation stage of plastic hinges in the RC-5 model. In the early stage of the seismic wave action, the locations with larger internal forces still occur at the top of the bottom columns, the one-story ceiling beams, and the two-story floor beams, with the maximum ductility coefficients of 1.10 × 10−2, and all the members are in an elastic stage. As the dynamic time-history curve progresses, the internal force of the module structure gradually becomes larger, but all the members are still in an elastic stage. The deeper degree of plastic hinge occurs in the two-story floor beam and the three-story floor beam, with a maximum ductility coefficient of 0.90, which is about 20% smaller than that of the XC-5 model; the ductility coefficients of the bottom of the module bottom columns and other members, such as the ceiling beams, are smaller compared to the XC-5 model. This is caused by the fact that the semi-rigid connections can have a certain degree of rotation, and the overall ductility of the structure is improved; at the same time, the semi-rigid connection works in concert with the plastic deformation of the structural members to dissipate energy. Therefore, the XC-5 model will have a more uniform distribution of the internal forces, and the plastic hinges will be more dispersed, making the new connection structure show more substantial resistance to earthquakes under seismic action.
Figure 17 shows the formation of plastic hinges in the XC-6 model. In the early stage of seismic wave action, the locations with higher stresses are the lower ceiling beams, floor beams, and the lower ends of the bottom columns. This is similar to the XC-5 model, which has a maximum ductility coefficient of 1.06 × 10−2. As the dynamic time-history curve progresses, plastic hinges occur at the lower ends of the bottom columns, the ceiling beams of the one- to three-story, and the floor beams of the two- to four-story. The maximum ductility coefficient is 1.41, which occurs at the lower end of the two- to three-story floor beams and the bottom columns, which is about 30% higher than that of the XC-5 model, which may lead to uneven deformation and stress concentration and then lead to a reduction in the safety and stability of the structure. From Figure 16, it can be introduced that the formation sequence of plastic hinges is firstly at the lower end of the module bottom column, then at the floor beam and ceiling beam, respectively, and finally at the module column. Compared with the XC-5 model, plastic hinges were developed for ceiling beams with floor beams on higher floors, and the formation sequence of plastic hinges remained the same in both models. However, the maximum ductility coefficient increased by 32%. As more members reach yield under seismic loading and deeper plastic hinges are also formed on the three-story structure, the bending moment and shear force on the ground floor of the structure become larger. Combined with the inter-story displacement angle data obtained from the dynamic time course analysis, the inter-story displacement angle of the structure in the two- to three-story case shows a significant increase compared to the XC-5 model. As a result, the damage is altered, and the seismic performance and safety of the structure is weakened, at which point the six-story building with the new connections shows a significant difference from the five-story building.
Figure 18 shows the formation of plastic hinges for the RC-6 model. In the early stage of the seismic wave action, the maximum ductility coefficient is 1.08 × 10−2, and the location is the same as that of the XC-6 model. As the dynamic time-history curve progresses, plastic hinges also appeared at the lower end of the bottom columns, the two- to three-story floor beams, and the one- to two-story ceiling beams; the maximum coefficient of ductility was 1.34, which occurred in the three-story floor beams, which was 48% higher than that of the RC-5 model, but smaller than that of the XC-6 model. From Figure 18, it can be seen that the order of plastic hinge formation is similar to that of the XC-6 model, i.e., the lower end of the module bottom columns–2~3 floor beams–2~3-ceiling beams–module columns, which indicates that the seismic shear force of the structure is inverted-triangularly distributed. This is because semi-rigid connections may allow more deformation, resulting in partial moment release, but axial and shear forces are still transmitted along the original path; also, according to the literature [29], modular buildings inherently create a multi-path load redistribution, and even with semi-rigid connections, due to inter-unit pressurization and inter-module friction, more than 85% of the forces will be transmitted along the main structure, which is similar to the path of the rigid connection’s force transfer. Compared with the RC-5 model, plastic hinges are formed at the lower end of the module beams and module bottom columns at the lower floors. The degree of plastic hinges of the top ceiling beams become deeper and larger than the plastic hinges of the top columns, and the structure consumes more energy to resist the earthquake’s damage. The ductility coefficients of the bottom columns and modular beams are smaller than those of the XC-6 model. Compared with the XC-6 model, the maximum degree of plastic hinges occurs in the two- to three-story case, and the distribution of plastic hinges in the three-story beams of the RC-6 model is more concentrated and less in number. This indicates that the semi-rigid connections can rotate, which reduces the overall stiffness of the structure and can induce all members to participate in the force more equally under seismic action; plastic hinges are formed at multiple floors, which enhances the synergistic effect, and the structure consumes more energy to resist the damage of the earthquake so that the semi-rigid connection model has a better integrality compared to the rigid connection model.

6. Conclusions

1. This paper proposes a new self-locking-unlockable modular building inter-module connection with good mechanical properties, which can overcome the limitations of previous connections. A simplified connection model is established, which can accurately simulate the mechanical properties of the connections.
2. The corrugated steel plates significantly enhance the structural stiffness, and an equivalent simplified model of an inverted V-shaped support is proposed. Compared to the case where the corrugated plates are not considered, the structural inter-story displacement angle is weakened by a factor of about six, and the introduction of the corrugated plates leads to a significant change in the vibration pattern. Therefore, the stiffness of the corrugated plate can be considered by using the equivalent support in the actual engineering to make the simulation results more accurate.
3. A five-story and six-story structural model with rigid and new connections is established, and the structure is analyzed by reaction spectrum analysis and dynamic time course analysis. The results show that the inter-story displacement angle of the six-story structural model with new connections is close to the code value of 1/300 under the reaction spectrum analysis. There is a certain degree of reserve of stiffness and strength, and under rare earthquakes, the inter-story displacement angle is more than the code value of 1/50. The top displacement of this structure differs from that of the rigid connection structure by about 18%. This indicates that the difference between the stiffness of semi-rigid and rigid connection structures is too significant, so new types of connections are not recommended for six-story pure structural models. If the new connection is applied on six or more stories, it should be used on the two- to three-story where the forces are higher, i.e., to increase the cross-sectional area of the combined columns and floor beams in that floor or to increase the strength of the members. At the same time, you can also increase the X-direction stiffness of the structure.
4. The comparative study shows that the different connection forms significantly impact the structure’s seismic performance. The force transfer paths using the new connection structure and the rigid connection structure are both at the lower end of the bottom columns–floor beam–ceiling beam–module column. However, the distribution of plastic hinges of the new connection members is more uniform, and the number is higher. This is because, from the judgment of the connection properties above, it can be seen that the new connections are semi-rigid connections with a certain degree of rotational ability, which can effectively dissipate the energy under the seismic effect through plastic deformation.
Finally, this study has some limitations. This paper only investigates the structural seismic performance in the region where the building is located. The new connection can reduce stiffness, allow controllable displacements, and dissipate energy, but it is necessary to follow up on how the new connection can be maintained (such as pre-tension force detection and anti-corrosion treatment) to make it durable for a long period of time in the high-seismic region. In addition, to fully demonstrate the reliability of the new connection, progressive collapse scenarios, blast loads, and wind loads can be evaluated in addition to the structure’s performance under dynamic seismic loading.

Author Contributions

Conceptualization, methodology, and funding acquisition, X.L.; project administration, Y.L.; analysis, writing—original draft, Q.M.; writing—review and editing, L.X.; editing, X.T. All authors have read and agreed to the published version of the manuscript.

Funding

1. The current research was sponsored by The Second Batch of Teacher-Student Collaborative Innovation Projects at Bo-hai Campus of Hebei Agricultural University (2024-BHXT-04); 2. Science and Technology Research and Development Program of China Railway Jinan Bureau Group Co., Ltd. (2024G20); 3. Research Project of Basic Scientific Research Fund for Provincial Universities in Hebei Province (KY2024018).

Data Availability Statement

Data are contained within the article.

Conflicts of Interest

The authors declare that they have no known competing financial interests or personal relationships that could have appeared to influence the work reported in this paper.

References

  1. Yang, C.; Xu, B.; Xia, J.; Chang, H.; Chen, X.; Ma, R. Mechanical Behaviors of Inter-Module Connections and Assembled Joints in Modular Steel Buildings: A Comprehensive Review. Buildings 2023, 13, 1727. [Google Scholar] [CrossRef]
  2. Li, G.-Q.; Cao, K.; Lu, Y. Column effective lengths in sway-permitted modular steel-frame buildings. Proc. Inst. Civ. Eng. Struct. Build. 2019, 172, 30–41. [Google Scholar] [CrossRef]
  3. Chen, Z.; Liu, Y.; Zhong, X.; Liu, J. Rotational Stiffness of Inter-Module Connection in Mid-Rise Modular Steel Buildings. Eng. Struct. 2019, 196, 109273. [Google Scholar] [CrossRef]
  4. Annan, C.D.; Youssef, M.A.; El Naggar, M.H. Seismic Vulnerability Assessment of Modular Steel Buildings. Earthq. Eng. 2009, 13, 1065–1088. [Google Scholar] [CrossRef]
  5. Lacey, A.W.; Chen, W.; Hao, H.; Bi, K.; Tallowin, F.J. Shear behaviour of post-tensioned inter-module connection for modular steel buildings. Constr. Steel Res. 2019, 162, 105707. [Google Scholar] [CrossRef]
  6. Huang, Z.; Zhao, X.; Deng, W.; Zhang, W.; Li, T.; Zhong, Z. Flexural performance of high strength grouted SHS tube-sleeve connection for modular construction. Thin-Walled Struct. 2024, 198, 111653. [Google Scholar] [CrossRef]
  7. Li, J.; Hu, Z.; Cui, J.; Lin, G. Efficient GPU-accelerated seismic analysis strategy and scenario simulation for large-scale nuclear structure cluster-soil interaction over ten million DOFs. Comput. Geotech. 2024, 174, 106583. [Google Scholar] [CrossRef]
  8. Ghasemi, M.; Zhang, C.; Khorshidi, H.; Zhu, L.; Hsiao, P.-C. Seismic upgrading of existing RC frames with displacement-restraint cable bracing. Eng. Struct. 2023, 282, 115764. [Google Scholar] [CrossRef]
  9. Yao, Y.; Huang, H.; Zhang, W.; Ye, Y.; Xin, L.; Liu, Y. Seismic performance of steel-PEC spliced frame beam. J. Constr. Steel Res. 2022, 197, 107456. [Google Scholar] [CrossRef]
  10. Chen, Z.; Khan, K.; Khan, A.; Javed, K.; Liu, J. Exploration of the multidirectional stability and response of prefabricated volumetric modular steel structures. J. Constr. Steel Res. 2021, 184, 106826. [Google Scholar] [CrossRef]
  11. Gunawardena, T. Behaviour of Prefabricated Modular Buildings Subjected to Lateral Loads. 2016. Available online: https://minerva-access.unimelb.edu.au/items/8764111d-2585-5627-8e89-87f8a5d10e9e (accessed on 17 December 2021).
  12. Fathieh, A.; Mercan, O. Seismic evaluation of modular steel buildings. Eng. Struct. 2016, 122, 83–92. [Google Scholar] [CrossRef]
  13. Chen, Z.; Zhou, Z.; Liu, J. Structural design and analysis of multi-story steel modular buildings. Build. Struct. 2019, 16, 7. (In Chinese) [Google Scholar] [CrossRef]
  14. Chua, Y.S.; Liew, J.R.; Pang, S.D. Modelling of connections and lateral behavior of high-rise modular steel buildings. J. Constr. Steel Res. 2020, 166, 105901. [Google Scholar] [CrossRef]
  15. Wang, Y.; Huang, Z.; An, Q. Analysis of Seismic Performance and Applicable Height of a Cooperative Modular Steel Building. Buildings 2024, 14, 678. [Google Scholar] [CrossRef]
  16. Qu, K. Research on Structural System of Steel Modular Building. Bachelor’s Thesis, Tianjin University, Tianjin, China, 2014. (In Chinese). [Google Scholar]
  17. GB 50011-2010; Code for Seismic Design of Buildings. China Architecture & Building Press: Beijing, China, 2010. (In Chinese)
  18. GB 50009-2012; Load Code for the Design of Building Structures. China Architecture & Building Press: Beijing, China, 2012. (In Chinese)
  19. Liu, Y.; Tian, X.; Liu, X. Finite element analysis of self-locking and unlocking connection connections of new steel structure modules. J. Shandong Agric. Univ. Nat. Sci. Ed. 2023, 54, 137–142. (In Chinese) [Google Scholar] [CrossRef]
  20. EN 1993-1-1; Eurocode 3—Design of Steel Structures. European Committee for Standardization: Brussels, Belgium, 2005.
  21. Ding, Y.; Deng, E.; Zong, L. Cyclic tests on corrugated steel plate shear walls with openings in modularized-constructions. J. Constr. Steel Res. 2017, 138, 675–691. [Google Scholar] [CrossRef]
  22. Dubina, D. Behavior and performance of cold-formed steel-framed houses under seismic action. J. Constr. Steel Res. 2008, 64, 896–913. [Google Scholar] [CrossRef]
  23. Yu, Y.; Chen, Z. Rigidity of corrugated plate sidewalls and its effect on the modular structural design. Eng. Struct. 2018, 175, 191–200. [Google Scholar] [CrossRef]
  24. Mostafaei, H.; Mostofinejad, D.; Ghamami, M.; Wu, C. Fully automated operational modal identification of regular and irregular buildings with ensemble learning. Structures 2023, 58, 105439. [Google Scholar] [CrossRef]
  25. GB 466-2019; Light Modular Steel Structure Modular House Technical Standard. China Construction Industry Press: Beijing, China, 2012. (In Chinese)
  26. Liu, B.; Lu, Y.; Li, W.; Li, J.; Zhao, J.; Wang, S.; Ni, G.; Meng, Q. Study on Seismic Behavior of Different Forms of Eccentrically Braced Steel Frames. Buildings 2024, 14, 2064. [Google Scholar] [CrossRef]
  27. Zong, C.; Zhai, J.; Sun, X.; Liu, X.; Cheng, X.; Wang, S. Analysis of Seismic Responses and Vibration Serviceability in a High-Rise Timber–Concrete Hybrid Building. Buildings 2024, 14, 2614. [Google Scholar] [CrossRef]
  28. Zhang, C.; Li, J.; Liu, Y.; Cheng, Q.; Sun, Z. Seismic Vulnerability Analysis of Concrete-Filled Steel Tube Structure under Main–Aftershock Earthquake Sequences. Buildings 2024, 14, 869. [Google Scholar] [CrossRef]
  29. Lacey, A.W.; Chen, W.; Hao, H.; Bi, K. Structural response of modular buildings—An overview. J. Build. Eng. 2018, 16, 45–56. [Google Scholar] [CrossRef]
Figure 1. Types of existing inter-module connections.
Figure 1. Types of existing inter-module connections.
Buildings 15 00678 g001
Figure 2. Components of new connection.
Figure 2. Components of new connection.
Buildings 15 00678 g002
Figure 3. Gusset plates in different positions.
Figure 3. Gusset plates in different positions.
Buildings 15 00678 g003
Figure 4. Module installation and removal steps.
Figure 4. Module installation and removal steps.
Buildings 15 00678 g004
Figure 5. Five-story structural plan and elevation.
Figure 5. Five-story structural plan and elevation.
Buildings 15 00678 g005
Figure 6. The different connection modes of modular units in MIDAS Gen. (The traditional rigid connection model on the left, and the new connection on the right).
Figure 6. The different connection modes of modular units in MIDAS Gen. (The traditional rigid connection model on the left, and the new connection on the right).
Buildings 15 00678 g006
Figure 7. Mechanical property curve of connection: (a) Tensile simulation result; (b) Shear simulation result; (c) Flexural simulation results; (d) Judgment curve of connection attributes.
Figure 7. Mechanical property curve of connection: (a) Tensile simulation result; (b) Shear simulation result; (c) Flexural simulation results; (d) Judgment curve of connection attributes.
Buildings 15 00678 g007
Figure 8. Finite-element analysis results of corrugated plate.
Figure 8. Finite-element analysis results of corrugated plate.
Buildings 15 00678 g008
Figure 9. Equivalent support design sketch.
Figure 9. Equivalent support design sketch.
Buildings 15 00678 g009
Figure 10. Comparison of inter-story displacement angle and top displacement of five-story models.
Figure 10. Comparison of inter-story displacement angle and top displacement of five-story models.
Buildings 15 00678 g010
Figure 11. Comparison of inter-story displacement angles and top displacement for a six-story model.
Figure 11. Comparison of inter-story displacement angles and top displacement for a six-story model.
Buildings 15 00678 g011
Figure 12. Seismic wave acceleration response spectrum.
Figure 12. Seismic wave acceleration response spectrum.
Buildings 15 00678 g012
Figure 13. Comparison of inter-story displacement angles and top displacement for five-story models.
Figure 13. Comparison of inter-story displacement angles and top displacement for five-story models.
Buildings 15 00678 g013
Figure 14. Comparison of inter-story displacement angles and top displacement for six-story models.
Figure 14. Comparison of inter-story displacement angles and top displacement for six-story models.
Buildings 15 00678 g014
Figure 15. XC-5 model plastic hinge development stage.
Figure 15. XC-5 model plastic hinge development stage.
Buildings 15 00678 g015
Figure 16. RC-5 model plastic hinge development stage.
Figure 16. RC-5 model plastic hinge development stage.
Buildings 15 00678 g016
Figure 17. XC-6 model plastic hinge development stage.
Figure 17. XC-6 model plastic hinge development stage.
Buildings 15 00678 g017
Figure 18. RC-6 model plastic hinge development stage.
Figure 18. RC-6 model plastic hinge development stage.
Buildings 15 00678 g018
Table 1. Model number and connection form.(The model with * is the model where the corrugated plate is not considered.)
Table 1. Model number and connection form.(The model with * is the model where the corrugated plate is not considered.)
NumberConnection FormStoryConnection FormNumberStory
XC-5New connection5RC*-5Rigid connection5
RC-5Rigid connection5XC-6New connection6
XC*-5New connection5RC-6Rigid connection6
Table 2. Structural periods and mass participation factors.
Table 2. Structural periods and mass participation factors.
CaseModePeriod (s)UX (%)UY (%)UZ (%)RotX (%)RotY (%)RotZ (%)
XC-511.35982.67600000
20.43611.4760.0040000
30.3340000069.224
XC*-511.41782.67200000
21.231075.8210000
31.0890000072.730
RC-511.13784.61900000
20.36510.58900000
30.2113.66500000
RC*-511.12284.63200000
20.895079.4250000
30.7180000077.542
XC-611.68181.41600000
20.53811.766000070.377
30.51100.5690000
RC-611.51983.32500000
20.49410.16800000
30.29600.01700075.553
Table 3. Comparison of top displacement and inter-story displacement angle for five-story models considering corrugated plates (in brackets are the inter-story displacement angles, and outside the brackets is the top displacement, in millimeters).
Table 3. Comparison of top displacement and inter-story displacement angle for five-story models considering corrugated plates (in brackets are the inter-story displacement angles, and outside the brackets is the top displacement, in millimeters).
StoryXC-5RC-5
X-DirY-DirX-DirY-Dir
16.93 (1/433)0.58 (1/5116)6.79 (1/442)0.26 (1/11,405)
216.85 (1/313)1.80 (1/2758)15.88 (1/340)0.70 (1/7867)
325.5 (1/347)3.26 (1/2250)23.29 (1/409)1.15 (1/7343)
432.15 (1/440)4.75 (1/2193)27.98 (1/618)1.56 (1/8283)
536.08 (1/720)6.08 (1/2467)29.41 (1/2048)1.85 (1/11,516)
Table 4. Comparison of top displacement of corrugated plate and inter-story displacement angle without consideration (in brackets are the inter-story displacement angles, and outside the brackets is the top displacement, in millimeters).
Table 4. Comparison of top displacement of corrugated plate and inter-story displacement angle without consideration (in brackets are the inter-story displacement angles, and outside the brackets is the top displacement, in millimeters).
StoryXC*-5RC*-5
X-DirY-DirX-DirY-Dir
16.88 (1/435)3.80 (1/790)6.70 (1/448)3.96 (1/756)
216.75 (1/315)11.96 (1/380)15.68 (1/345)10.31 (1/490)
325.43 (1/349)20.77 (1/350)22.99 (415)16.70 (1/483)
431.97 (1/443)28.45 (1/393)27.60 (1/629)22.04 (1/574)
535.88 (1/724)34.31 (1/510)28.99 (1/2124)25.69 (1/853)
Table 5. Comparison of top displacement and inter-story displacement angles for a six-story model (in brackets are the inter-story displacement angles, and outside the brackets is the top displacement, in millimeters).
Table 5. Comparison of top displacement and inter-story displacement angles for a six-story model (in brackets are the inter-story displacement angles, and outside the brackets is the top displacement, in millimeters).
StoryXC-6RC-6
X-DirY-DirX-DirY-Dir
17.08 (1/423)0.67 (1483)7.037 (1/426)0.32 (1/9197)
217.45 (1/300)2.28 (1/1373)16.80 (1/317)0.96 (1/5330)
327.04 (1/346)4.41 (1/1379)25.52 (1/348)1.73 (1/4322)
435.22 (1/351)6.80 (1/1546)32.49 (1/415)2.54 (1/4072)
541.59 (1/430)9.20 (1/2066)37.35 (1/557)3.31 (1/4265)
645.72 (1/667)11.41 (1/4506)39.67 (1/1087)3.98 (1/4874)
Table 6. Maximum stress ratio of members.
Table 6. Maximum stress ratio of members.
ModelMaximum Stress Ratio of Members
Floor BeamCeiling BeamSupportSupport2ColumnShort Column
XC-50.7310.4120.2520.6890.599-
XC*-50.7320.4120.870-0.666-
RC-50.7190.3690.2150.0920.4350.643
RC*-50.7190.3080.788-0.5600.710
XC-60.7450.4280.2880.7760.655-
RC-60.7250.3690.2970.1200.4940.719
Table 7. Five-floor models’ base shear.
Table 7. Five-floor models’ base shear.
TypeXC-5RC-5
X-Direction Shear/kNY-Direction Shear/kNX-Direction Shear/kNY-Direction Shear/kN
Spectrum960.92075.31042.81876.5
Taft974.5 (100.5%)2150.3 (115.8%)768.9 (73.7%)2312.6 (123.2%)
T-Ι-31128.1 (116.4%)2357.1 (126.9%)1129.1 (108.2%)2145.9 (114.3%)
Artificial780.2 (80.5%)1718.8 (92.6%)1014.1 (97.2%)1848.9 (98.5%)
Average960.9 (99.1%)2075.3 (111.8%)970.7 (93.0%)2102.4 (112.0%)
Table 8. Six-floor models’ base shear.
Table 8. Six-floor models’ base shear.
TypeXC-6RC-6
X-Direction Shear/kNY-Direction Shear/kNX-Direction Shear/kNY-Direction Shear/kN
Spectrum1041.62259.41138.42403.7
Taft1045.9 (100.3%)2054.0 (90.9%)1106.8 (97.1%)2090.4 (86.9%)
T-Ι-3914.2 (87.8%)2483.0 (109.9%)1079.2 (94.8%)2665.2 (110.9%)
Artificial932.9 (89.6%)1833.4 (81.1%)1024.0 (89.9%)2172.4 (90.3%)
Average963.6 (92.5%)2123.3 (94.0%)970.7 (93.9%)2102.4 (96.0%)
Disclaimer/Publisher’s Note: The statements, opinions and data contained in all publications are solely those of the individual author(s) and contributor(s) and not of MDPI and/or the editor(s). MDPI and/or the editor(s) disclaim responsibility for any injury to people or property resulting from any ideas, methods, instructions or products referred to in the content.

Share and Cite

MDPI and ACS Style

Liu, X.; Meng, Q.; Xu, L.; Liu, Y.; Tian, X. Modular Steel Buildings Based on Self-Locking-Unlockable Connections Seismic Performance Analysis. Buildings 2025, 15, 678. https://doi.org/10.3390/buildings15050678

AMA Style

Liu X, Meng Q, Xu L, Liu Y, Tian X. Modular Steel Buildings Based on Self-Locking-Unlockable Connections Seismic Performance Analysis. Buildings. 2025; 15(5):678. https://doi.org/10.3390/buildings15050678

Chicago/Turabian Style

Liu, Xingwang, Qingkai Meng, Liwen Xu, Yang Liu, and Xinpeng Tian. 2025. "Modular Steel Buildings Based on Self-Locking-Unlockable Connections Seismic Performance Analysis" Buildings 15, no. 5: 678. https://doi.org/10.3390/buildings15050678

APA Style

Liu, X., Meng, Q., Xu, L., Liu, Y., & Tian, X. (2025). Modular Steel Buildings Based on Self-Locking-Unlockable Connections Seismic Performance Analysis. Buildings, 15(5), 678. https://doi.org/10.3390/buildings15050678

Note that from the first issue of 2016, this journal uses article numbers instead of page numbers. See further details here.

Article Metrics

Back to TopTop