A Parametric Study on Determining the Corrosion Initiation and Propagation Times of Reinforced Concrete Structures Using Different Methods
Abstract
1. Introduction
2. Service Life
2.1. Corrosion Initiation Time
- -
- ke: Environmental factor, with values ranging from 0.27 to 3.88;
- -
- kc: Curing factor, with values ranging from 0.79 to 2.08;
- -
- Dcl: Diffusion coefficient measured at time t0;
- -
- m: Degradation rate factor, with values between 0.2 and 0.93;
- -
- γDa: Partial factor, with values between 1.25 and 3.25.
2.2. Corrosion Propagation Time
- Vu and Stewart proposed a model to calculate the corrosion current density (icorr) based on concrete quality and cover thickness [1]. They stated that under conditions of 75% relative humidity and an external temperature of 20 °C, the corrosion current density could be determined using Equation (17).In the empirical equation, the calculated icorr represents the corrosion rate at the initiation of corrosion, and c is the concrete cover thickness in centimeters. Vu and Stewart later developed an empirical model that relates the corrosion rate to the time passing since the initiation of corrosion:In this context, Tcorr represents the time at which corrosion started, tp (=(t − Tcorr)) is the time passed since the initiation of corrosion and t refers to the exposure time since the start. After calculating icorr (1) using Equation (17), the instantaneous corrosion rate can be easily determined using Equation (18) [1].
- Melchers et al. evaluated the experimental results of samples with a water/cement ratio of 0.45 and proposed Equation (19) [40].
- Liu and Weyers proposed an empirical probabilistic model, which relates the corrosion current density to multiple variables [41].Here, Cl is the chloride content (kg/m³), T is the temperature on the steel surface (Kelvin), and Rc is the ohmic resistance of the concrete cover (ohms). The ohmic resistance is also defined as follows:
- -
- D: reinforcement diameter (mm);
- -
- Cv; concrete cover thickness (mm);
- -
- fcu; concrete cube strength (kN/cm2);
- -
- ; rust thickness (cm);
- -
- H: cracks in the concrete cover.
- -
- W: Equivalent weight of steel = 27.925 g;
- -
- F: Faraday constant = 96,487 C;
- -
- icorr: Corrosion current density (μA/cm2);
- -
- : Steel density (kg/m3).
- -
- C: Concrete cover thickness (mm);
- -
- D: Reinforcement diameter (mm);
- -
- r: Corrosion rate (μm/yıl);
- -
- tcr: Propagation time under steady-state corrosion (years).
- -
- cT: Temperature coefficient;
- -
- r0: Corrosion rate at ±20 °C [24].
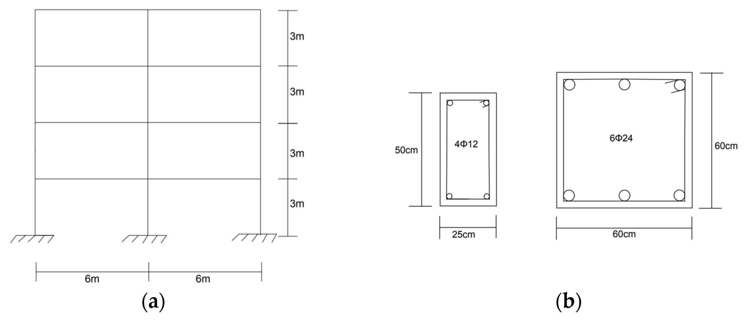
3. Numerical Study and Results
3.1. Corrosion Initiation Time Calculation
3.2. Corrosion Propagation Time Calculation
3.3. Calculation of Corrosion Service Life
4. Conclusions
- The corrosion initiation time is influenced by chloride concentration, concrete cover thickness, cement type, water/cement (w/c) ratio, temperature, and the presence of cracks. The dominant factor in this process is the diffusion coefficient, which decreases with increasing concrete cover thickness.
- Corrosion initiation times were calculated using the Kwon, Bazant, and Hoffman–Weyers models. The longest initiation time was obtained using the Kwon model and the shortest using the Bazant model. The times calculated using the Hoffman–Weyers and Bazant models were found to be similar.
- In the presence of cracks in a reinforced concrete member, only the Kwon model should be used. According to this model, a 0.4 mm crack in the element increases the scale factor by 7.95 times. This increase in the scale factor also increases the diffusion coefficient, significantly reducing the corrosion initiation time by the same proportion. The presence of cracks changes the structural behavior [51,53]. Therefore, when cracks are present in the propagation process, the use of the Kwon model provides more realistic results in the evaluation of the structural behavior.
- According to the Kwon model, increasing the thickness of the concrete cover increases the initiation time. For a 25 mm concrete cover, the presence of a 0.1 mm crack reduces the initiation time by 60.2%. However, for an element with a 40 mm concrete cover and the same crack, the initiation time is reduced by 68.3%. The higher reduction rate compared to the 25 mm concrete cover is due to the significantly increased service life in the 40 mm concrete cover.
- Corrosion propagation time is influenced by factors such as corrosion current density, water/cement ratio, rebar diameter, concrete cover thickness and temperature. The presence of cracks in a reinforced concrete element does not affect the propagation calculations; it only affects the corrosion initiation time. This indicates that the presence of cracks in the concrete cover affects the corrosion initiation time. If there is crack progression or spalling and flaking in the concrete cover, it means that the corrosion has already progressed to the propagation phase. A careful assessment of the structural performance must be made.
- The Morinaga model is a preferred model for calculating the corrosion propagation time of reinforced concrete elements.
- An increase in corrosion current density reduces the propagation time, while an increase in reinforcement diameter and concrete cover thickness increases the propagation time. Increasing the concrete cover thickness will also increase the bond strength [2]. Therefore, increasing the concrete cover thickness will not only extend the service life but will also have a positive effect on the structural behavior. At present, there are studies indicating that the ratio of concrete cover thickness to rebar diameter (c/d) increases bond strength [3]. Increasing the diameter of the rebar increases the propagation time, while reducing this ratio appears to reduce the bond strength. In this case, when increasing the rebar diameter, also increasing the concrete cover thickness will help to maintain a safer bond strength. For reinforced concrete elements exposed to aggressive environments, the greater the concrete cover thickness and reinforcement diameter, the longer the service life.
- In the frame, the service life of the beams was shorter than that of the columns. This suggests that, for corrosion-based service life predictions, it is safer to make estimates based on smaller diameter reinforcement.
- The variation between models in calculating the time to corrosion initiation based on the current age of the building will affect whether corrosion is considered to have started or not. Given the differences in the formulas used in these calculations, it is recommended that caution is exercised in the assessment of service life.
- To accurately estimate the service life of a reinforced concrete structure, all factors must be considered. This is crucial for performing timely and cost-effective repairs on the structures.
- Corrosion level directly affects the structural behavior [53]. Therefore, it is recommended to measure corrosion current density through field studies and calculate the service life using the models explained in the article.
- The models explained for calculating the service life of corrosion-exposed reinforced concrete structures can be used by field and design engineers.
Funding
Data Availability Statement
Conflicts of Interest
References
- Vu, K.A.T.; Stewart, M.G. Structural reliability of concrete bridges including improved chloride-induced corrosion models. Struct. Saf. 2000, 22, 313–333. [Google Scholar] [CrossRef]
- Jiang, C.; Wu, Y.-F.; Dai, M.-J. Degradation of steel-to-concrete bond due to corrosion. Constr. Build. Mater. 2018, 158, 1073–1080. [Google Scholar] [CrossRef]
- Lin, H.; Zhao, Y.; Ozbolt, J.; Feng, P.; Jiang, C.; Eligehausen, R. Analytical model for the bond stress-slip relationship of deformed bars in normal strength concrete. Constr. Build. Mater. 2019, 198, 570–586. [Google Scholar] [CrossRef]
- Rodriguez, J.; Ortega, L.M.; Casal, J. Load carrying capacity of concrete structures with corroded reinforcement. Constr. Build. Mater. 1997, 11, 239–248. [Google Scholar] [CrossRef]
- Mohammed, T.U.; Hamada, H.; Yamaji, T. Concrete after 30 years of exposure—Part II: Chloride ingress and corrosion of steel bars. Mater. J. 2004, 101, 13–18. [Google Scholar]
- Du, Y.G.; Clark, L.A.; Chan, A.H.C. Effect of corrosion on ductility of reinforcing bars. Mag. Concr. Res. 2005, 57, 407–419. [Google Scholar] [CrossRef]
- Dang, V.H.; François, R. Prediction of ductility factor of corroded reinforced concrete beams exposed to long term aging in chloride environment. Cem. Concr. Compos. 2014, 53, 136–147. [Google Scholar] [CrossRef]
- Baniasad, E.; Dehestani, M. Incorporation of corrosion and bond-slip effects in properties of reinforcing element embedded in concrete beams. Structures 2019, 20, 105–115. [Google Scholar] [CrossRef]
- Huang, J.; Yu, D.; Cao, Y.; Fu, C. Flexural performance of reinforced concrete beams subjected to accelerated non-uniform corrosion. Mater. Struct. 2024, 57, 23. [Google Scholar] [CrossRef]
- Hahrigat, A.; Zehtab, B. Structural reliability of reinforced concrete beams/columns under simultaneous static loads and steel reinforcement corrosion. Arab. J. Sci. Eng. 2016, 41, 3945–3958. [Google Scholar] [CrossRef]
- Basheer, P.; Chidiact, S.; Long, A. Predictive models for deterioration of concrete structures. Constr. Build. 1996, 10, 27–37. [Google Scholar] [CrossRef]
- Ahmad, S. Reinforcement corrosion in concrete structures, its monitoring and service life prediction—A review. Cem. Concr. Compos. 2003, 25, 459–471. [Google Scholar] [CrossRef]
- Tuutti, K. Corrosion of Steel in Concrete; Swedish Cement and Concrete: Stockholm, Sweden, 1982. [Google Scholar]
- Muthena, A.; Andrade, C.; Nilsson, L.O.; Edvardsen, C. DuraCrete Final Technical Report; DuraCrete: West Valley City, UT, USA, 2000. [Google Scholar]
- Borah, M.M.; Dey, A.; Sil, A. Service life assessment of chloride affected bridge located in coastal region of India considering variation in the inherent structural parameters. Structures 2020, 23, 191–203. [Google Scholar] [CrossRef]
- Kwon, S.J.; Na, U.J.; Park, S.S.; Jung, S.H. Service life prediction of concrete wharves with early-aged crack: Probabilistic approach for chloride diffusion. Struct. Saf. 2009, 31, 75–83. [Google Scholar] [CrossRef]
- Smilauer, V.; Jendele, L.; Cervenka, J. Prediction of carbonation and chloride ingress in cracked concrete structures. In Proceedings of the Fourteenth International Conference on Civil, Structural and Environmental Engineering Computing, Sardinia, Italy, 3-6 September 2013; Civil-Comp Press: Stirlingshire, UK, 2013. [Google Scholar]
- Hajkova, K.; Smilauer, V.; Jendele, L. Prediction of reinforcement corrosion due to chloride ingress and its effects on serviceability. Eng. Struct. 2018, 174, 768–777. [Google Scholar] [CrossRef]
- Thomas, M.D.A.; Bentz, D. Life 365 Computer Program for Predicting the Service Life and Life-Cycle Costs of Reinforced Concrete Structures Exposed to Chlorides; User Manual (Version 2.2.3). Life-365 Consortium III. Available online: https://life-365.org/ (accessed on 23 December 2020).
- Bazant, Z.P. Physical model for steel corrosion in concrete sea structures-theory. ASCE J. Struct. Div. 1979, 105, 1137–1153. [Google Scholar] [CrossRef]
- Morinaga, S. Prediction of Service Lives of Reinforced Concrete Buildings Based on Rate of Corrosion of Reinforcing Steel; Report No.23; Shimizu Corp.: Tokyo, Japan, 1988; pp. 82–89. [Google Scholar]
- Wang, X.M.; Zhao, H.Y. The residual service life prediction of RC structures. Durab. Build. Mater. Compon. 1993, 6, 1107–1114. [Google Scholar]
- DuraCrete. Probabilistic performance-based durability design of concrete structures. In The European Union–Brite EuRam III, Final Technical Report of Duracrete Project; Document BE95-1347/R17; CUR: Gouda, The Netherlands, 2000. [Google Scholar]
- Ranjith, A.; Rao, K.B.; Mnjunath, K. Evaluating the effect of corrosion on service life prediction of RC structures—A parametric study. Int. J. Sustain. Built Environ. 2016, 5, 587–603. [Google Scholar] [CrossRef]
- Kim, J.; McCarter, W.J.; Suryanto, B.; Nanukuttan, S.; Basheer, P.M.; Chrisp, T.M. Exposed concrete: A comparison of empirical-and physically based models. Cem. Concr. Compos. 2016, 72, 133–145. [Google Scholar] [CrossRef]
- Zemajtis, J. Modeling the Time to Corrosion Initiation for Concretes with Mineral Admixtures and/or Corrosion Inhibitors in Chloride-Laden Environments. Ph.D. Thesis, Virginia Tech, Blacksburg, VG, USA, 1998. [Google Scholar]
- Walraven, J. Fib Model Code 2010; Technical Report; Delft University of Technology: Delft, The Netherlands, 2010. [Google Scholar]
- Akduman, S. Klor Kaynaklı Korozyon Başlangıç Süresi Hesap Yöntemler ive Life-365 Örneği. In Mühendislik Bilimleri, Sorunlar, Fırsatlar, Tartışmalar; Kavak, D., Ed.; Livre De Lyon: Lyon, France, 2023; pp. 25–42. [Google Scholar]
- Mehta, P.K. Concrete in the Marine Environment; Elsevier Applied Science: Essex, UK, 1991. [Google Scholar]
- Neville, A. Chloride attack of reinforced concrete: An overview. Mater. Struct. 1995, 28, 63–70. [Google Scholar] [CrossRef]
- Hoffman, P.C.; Weyers, R.E. Predicting critical chloride levels in concrete bridge decks. Structural safety and reliability. In Proceedings of the ICOSSAR ’93, Innsbruck, Austria, 9–13 August 1993; Brookfield: Rotterdam, The Netherlands, 1994; pp. 957–959. [Google Scholar]
- Thoft-Christensen, P.; Jensen, F.M.; Middleton, C.; Blackmore, A. Assessment of the reliability of concrete slab bridges. In Proceedings of the 7th IFIP WG 7.5 Working Conference, Boulder, CO, USA, 2–4 April 1996; pp. 321–328. [Google Scholar]
- Lentz, A.; Faber, M.H.; Johnson, T. Half-cell potential measurements for condition assessment. In Proceedings of the 1st International Conference on Bridge Maintenance, Safety and Reliability, Barcelona, Spain, 14–17 July 2002; pp. 365–366. [Google Scholar]
- Liu, Y. Modeling the Time-to-Corrosion Cracking of the Cover Concrete in Chloride Contaminated Reinforced Concrete Structures. Ph.D. Thesis, Virginia Tech, Blacksburg, VG, USA, 1996. [Google Scholar]
- Collepardi, M.; Marcialis, A.; Turriziani, R. Penetration of Chloride Ions into Cement Pastes and Concretes. J. Am. Cer. Soc 1972, 55, 534–535. [Google Scholar] [CrossRef]
- Poulsen, E. On a model of chloride ingress into concrete. Having time dependent diffusion coefficient. In Nilsson L-O. Chloride Penetration into Concrete Structures; Nordic Mini Seminar: Goteborg, Sweden, 1993. [Google Scholar]
- Luping, T.; Utgennant, P. Chloride Ingress and Reinforcement Corrosion in Concrete Under De-Icing Highway Environment a Study After 10 Years Field Exposure; SP Report; SP Technical Research Institute of Sweden: Borås, Sweden, 2007; p. 76. [Google Scholar]
- Oslakovic, I.S.; Bjegovic, D.; Mikulic, D. Evaluation of service life design models on concrete structures exposed to marine. Mater. Struct. 2010, 43, 1397–1412. [Google Scholar] [CrossRef]
- Marques, P.F.; Costa, A. Service life of RC structures: Carbonation induced corrosion. Prescriptive vs. performance-based methodologies. Constr. Build. Mater. 2010, 24, 258–265. [Google Scholar] [CrossRef]
- Melchers, R.E.; Li, C.Q.; Lawanwisut, W. Probabilistic modeling of structural deterioration of reinforced concrete beams under saline environment corrosion. Struct. Saf. 2008, 30, 447–460. [Google Scholar] [CrossRef]
- Liu, T.; Weyers, R. Modeling the dynamic corrosion process in chloride contaminated concrete structures. Cem. Concr. Res 1998, 28, 365–379. [Google Scholar] [CrossRef]
- Siemes, A.; Vrouwenvelder, A.; Van Der Beukel, A. Stochastic modeling of building materials performance in durability. In Problems in Service Life Prediction of Building and Construction Materials; NATO ASI Series; Masters, L.W., Ed.; Martinus Nijhoff Publishers: Dortrecht, The Netherlands, 1985; pp. 253–263. [Google Scholar]
- Beeby, A.W. Corrosion of reinforcing steel in concrete and its relation to cracking. Struct. Eng. 1978, 56, 77–81. [Google Scholar]
- Çolakoğlu, H.E.; Öztemel, M. Investigation of linear and nonlınear behavior of reinforced concrete column exposed to corrosion effect for different damage limit levels. Black Sea J. Eng. Sci 2024, 7, 409–422. [Google Scholar] [CrossRef]
- Akduman, S.; Öztürk, H. Effect of Reinforcement Corrosion on Structural Behavior in Reinforced Concrete Structures According to Initiation and Propagation Periods. Buildings 2024, 14, 4026. [Google Scholar] [CrossRef]
- Coşkan, S. Uniform Korozyona Maruz Betonarme Binalarda Deprem Davranışının İncelenmesi. Master’s Thesis, Bülent Ecevit Üniversitesi, Zonguldak, Turkey, 2012. [Google Scholar]
- Uji, K.; Matsuoka, Y.; Maruya, T. Formulation of an equation for surface chloride content of concrete due to permeation of chloride. In Corrosion of Reinforcement in Concrete; Page, C.L., Treadway, K.W.J., Bamforth, P.B., Eds.; Elsevier Science: Barking, UK, 1990; pp. 258–267. [Google Scholar]
- McGee, R. Modelling of durability performance of tasmanian bridges. In Proceedings of the ICASP8 Applications of Statistics and Probability in Civil Engineering, Sydney, Australia, 12–15 December 1999; Melchers, R.E., Stewart, M.G., Eds.; Volume 1, pp. 297–306. [Google Scholar]
- Turkish Building Earthquake Code (TBEC). Principles for the Design of Buildings Under Earthquake; Turkish Building Earthquake Code (TBEC): Ankara, Turkey, 2018. [Google Scholar]
- ACI 222R-01; Protection of Metals in Concrete Against Corrosion. Reported by ACI Committee 222; American Concrete Institute: Farmington Hills, MI, USA, 25 September 2001.
- Ožbolt, J.; Balabanić, G.; Kušter, M. 3D Numerical modelling of steel corrosion in concrete structures. Corros. Sci. 2011, 53, 4166–4177. [Google Scholar] [CrossRef]
- TS 500; Requirements for Design and Construction of Reinforced Concrete Structures. TSE (Turkish Standards Institute): Ankara, Turkey, 2000.
- Turan, A.İ.; Ayaz, Y.; Yalciner, H.; Kumbasaroglu, A. An experimental evaluation on structural performance level of corroded reinforced concrete frames. Eng. Struct. 2025, 325, 119479. [Google Scholar] [CrossRef]
- Pour-Ghaz, M.; Isgor, O.B.; Ghods, P. The effect of temperature on the corrosion of steel in concrete. Part 2: Model verification and parametric study. Corros. Sci. 2009, 51, 426–433. [Google Scholar] [CrossRef]
- Granata, M.F. Seismic Retrofit of Concrete Buildings Damaged by Corrosion: A Case Study in Southern Italy. Buildings 2024, 14, 1064. [Google Scholar] [CrossRef]
- O’flaherty, F.J.; Mangat, P.S.; Lambert, P.; Browne, E.H. Effect of under-reinforcement on the flexural strength of corroded beams. Mater. Struct. 2008, 41, 311–321. [Google Scholar] [CrossRef]













| Relative Dc | Low Temperature | Average Temperature | High Temperature |
|---|---|---|---|
| Low w/c | 0.1 × D0 | 0.2 × D0 | 0.1 × D0 |
| Average w/c | 0.5 × D0 | 0.5 × D0 | 0.5 × D0 |
| High w/c | D0 | D0 | D0 |
| Binder Type | Degradation Rate Factor (m) |
|---|---|
| Portland cement (CEMI) | 0.37 |
| CEMI + Silica fume | 0.39 |
| CEMI + Slag | 0.60 |
| CEMI + Fly ash | 0.93 |
| Parameters | Values |
|---|---|
| The environmental exposure class | XS1 |
| Concrete class | C40 |
| Steel class | B420C |
| Cement type | CEMI |
| w/c | 0.40 |
| Clor Concentration (C0) | 2.415 kg/m3 |
| The chloride threshold | 0.05% |
| Age | 10 |
| Degradation rate factor | 0.37 |
| Environment | Crack Width (mm) |
|---|---|
| Normal environmental conditions inside the structure | 0.4 |
| Humid conditions inside the structure and normal environmental conditions outside the structure | 0.3 |
| Humid environmental conditions outside the structure | 0.2 |
| Aggressive environmental conditions both inside and outside the structure | 0.1 |
| Concrete Cover Thickness (mm) | Crack Free Condition | 0.1 mm Cracked Condition |
|---|---|---|
| C (mm) | Dm (mm2/s) | Dm (mm2/s) |
| 10 | 4.874 × 10−6 | 7.609 × 10−6 |
| 20 | 2.594 × 10−6 | 3.771 × 10−6 |
| 25 | 2.021 × 10−6 | 2.840 × 10−6 |
| 30 | 1.634 × 10−6 | 2.372 × 10−6 |
| 40 | 8.742 × 10−7 | 1.639 × 10−6 |
| Concrete Cover Thickness (mm) | Reduction Percentages |
|---|---|
| 10 | 70 |
| 20 | 63.6 |
| 25 | 60.2 |
| 30 | 63.2 |
| 40 | 68.3 |
| Concrete Cover Thickness | Kwon | Bazant | Hoffman–Weyers |
|---|---|---|---|
| (mm) | (year) | (year) | (year) |
| 10 | 1 | 0.4 | 0.4 |
| 20 | 5.5 | 1.5 | 1.8 |
| 25 | 10.8 | 2.4 | 2.7 |
| 30 | 19 | 3.5 | 4 |
| 40 | 60 | 6.2 | 7 |
| Propagation Time (year) | ||||||||
|---|---|---|---|---|---|---|---|---|
| Corrosion Current Density (µA/cm²) | ||||||||
| 0.1 | 1 | 6 | 10 | |||||
| c (mm)/diameter | 12 | 24 | 12 | 24 | 12 | 24 | 12 | 24 |
| 10 | 57.5 | 83.6 | 5.8 | 8.6 | 0.9 | 1.4 | 0.5 | 0.9 |
| 20 | 86.8 | 114.9 | 8.7 | 12 | 1.5 | 1.9 | 0.87 | 1.2 |
| 25 | 100.8 | 130.0 | 10 | 13 | 1.7 | 2.2 | 1 | 1.3 |
| 30 | 114.5 | 144.8 | 12 | 15 | 1.9 | 2.4 | 1.1 | 1.5 |
| 40 | 141.0 | 173.6 | 14 | 17 | 2.4 | 2.9 | 1.41 | 1.7 |
| Concrete Cover | c = 10 mm | c = 40 mm | |||||
|---|---|---|---|---|---|---|---|
| icorr | Kwon | Bazant | Hoffman–Weyers | Kwon | Bazant | Hoffman–Weyers | |
| Element | (µA/cm²) | (year) | (year) | (year) | (year) | (year) | (year) |
| Column | 0.1 | 84.6 | 84 | 84 | 233.6 | 179.8 | 180.6 |
| 6 | 2.4 | 1.8 | 1.9 | 62.9 | 9.1 | 9.9 | |
| Beam | 0.1 | 58.5 | 57.9 | 57.9 | 201 | 147.2 | 148 |
| 6 | 1.9 | 1.3 | 1.3 | 62.4 | 8.6 | 9.4 | |
| Concrete Cover | c =10 mm | c =40 mm | |||
|---|---|---|---|---|---|
| Element | icorr (µA/cm²) | with Crack | Without Crack | with Crack | Without Crack |
| Column | 0.1 | 83.9 | 84.6 | 192.6 | 233.6 |
| 6 | 1.7 | 2.4 | 21.9 | 62.9 | |
| Beam | 0.1 | 57.8 | 58.5 | 141.3 | 201 |
| 6 | 1.2 | 1.9 | 2.7 | 62.4 | |
Disclaimer/Publisher’s Note: The statements, opinions and data contained in all publications are solely those of the individual author(s) and contributor(s) and not of MDPI and/or the editor(s). MDPI and/or the editor(s) disclaim responsibility for any injury to people or property resulting from any ideas, methods, instructions or products referred to in the content. |
© 2025 by the author. Licensee MDPI, Basel, Switzerland. This article is an open access article distributed under the terms and conditions of the Creative Commons Attribution (CC BY) license (https://creativecommons.org/licenses/by/4.0/).
Share and Cite
Akduman, S. A Parametric Study on Determining the Corrosion Initiation and Propagation Times of Reinforced Concrete Structures Using Different Methods. Buildings 2025, 15, 666. https://doi.org/10.3390/buildings15050666
Akduman S. A Parametric Study on Determining the Corrosion Initiation and Propagation Times of Reinforced Concrete Structures Using Different Methods. Buildings. 2025; 15(5):666. https://doi.org/10.3390/buildings15050666
Chicago/Turabian StyleAkduman, Seda. 2025. "A Parametric Study on Determining the Corrosion Initiation and Propagation Times of Reinforced Concrete Structures Using Different Methods" Buildings 15, no. 5: 666. https://doi.org/10.3390/buildings15050666
APA StyleAkduman, S. (2025). A Parametric Study on Determining the Corrosion Initiation and Propagation Times of Reinforced Concrete Structures Using Different Methods. Buildings, 15(5), 666. https://doi.org/10.3390/buildings15050666
