Spatial Constraints and User Adaptation: A Mixed-Methods Study of High-Density Students Dormitories
Abstract
1. Introduction
- Aim 1: Evaluate the existing literature to identify key findings and gaps regarding the design and use of dormitory environments.
- Aim 2: Conduct a comprehensive analysis of the spatial characteristics of current high-density student dormitories as a comparative analysis.
- Aim 3: Examine the relationship between spatial layout and evolving needs of users to inform the future design of such spaces.
2. Methodology
2.1. Systematic Literature Review: Dormitory Design in Academic Research
2.1.1. Database Selection
2.1.2. Strategy and Analytical Approach
2.2. Case Study Analysis: Dormitory Environments in Use
3. Results
3.1. Systematic Literature Review
3.1.1. SLR Findings: Global Review
3.1.2. SLR Findings: China-Based Review
3.2. Case Study Analysis
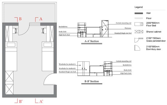
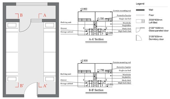
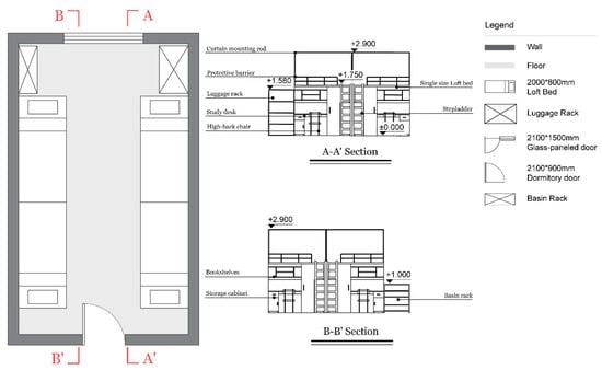
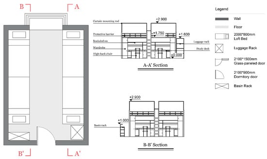
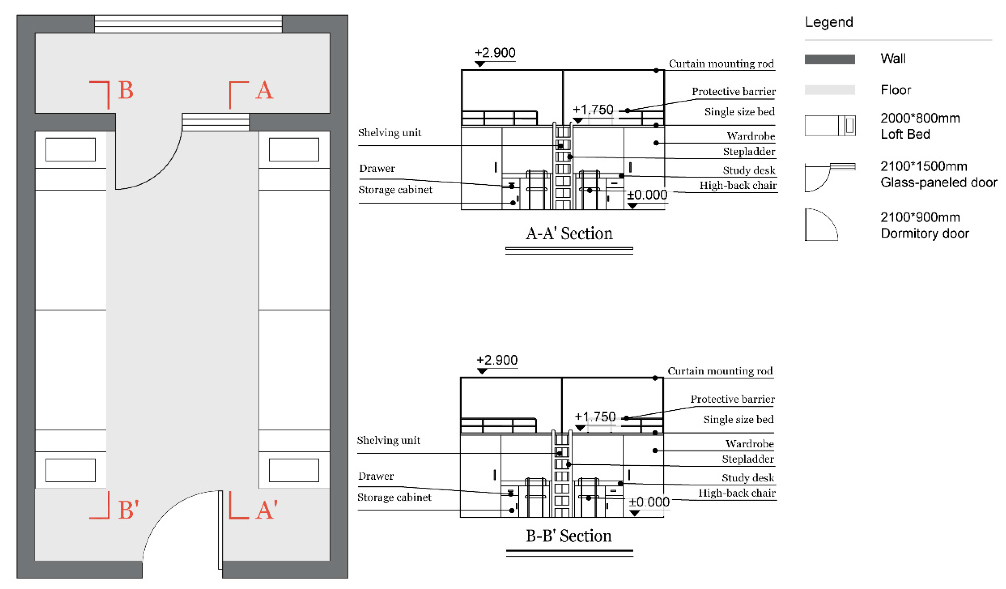
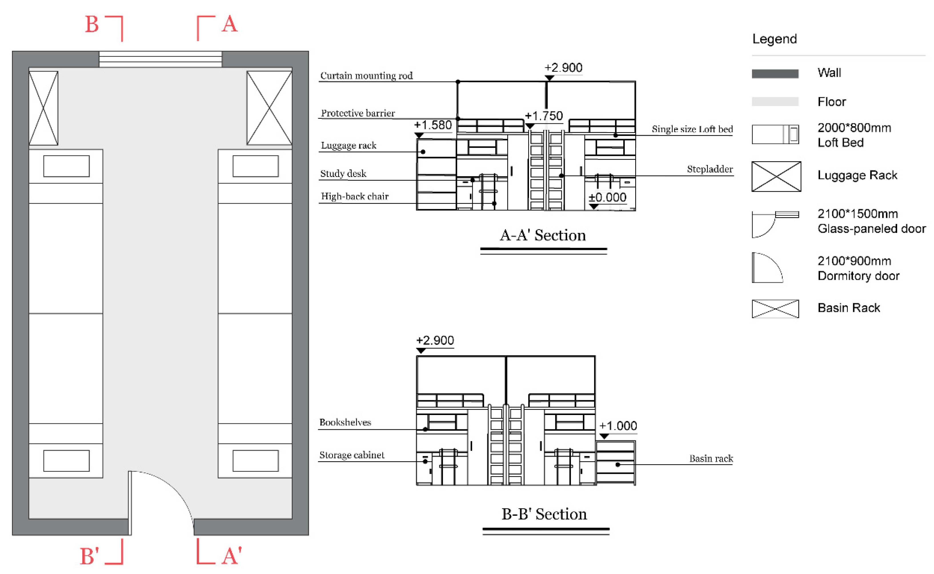
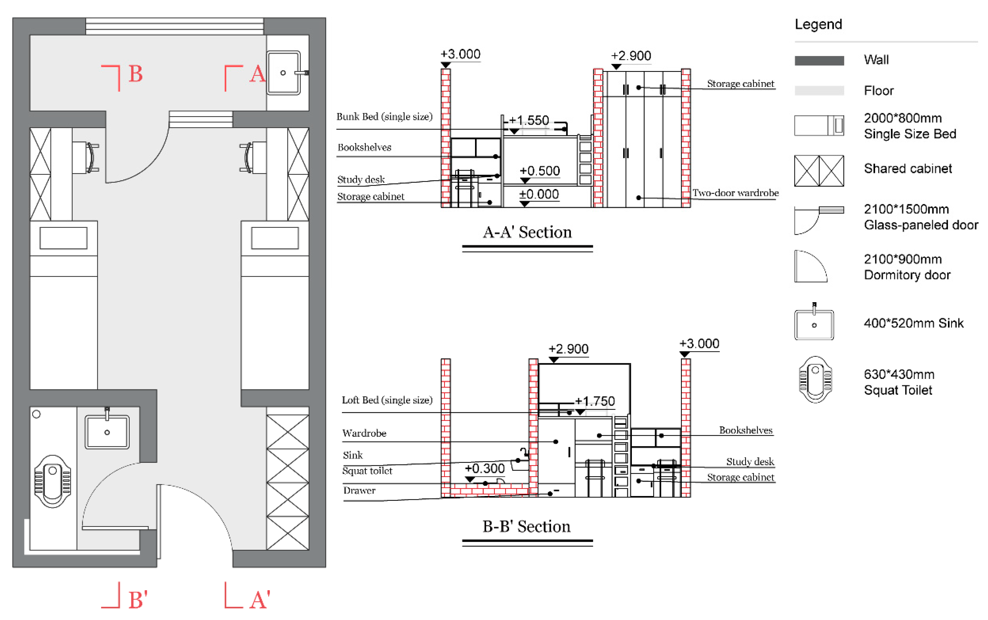
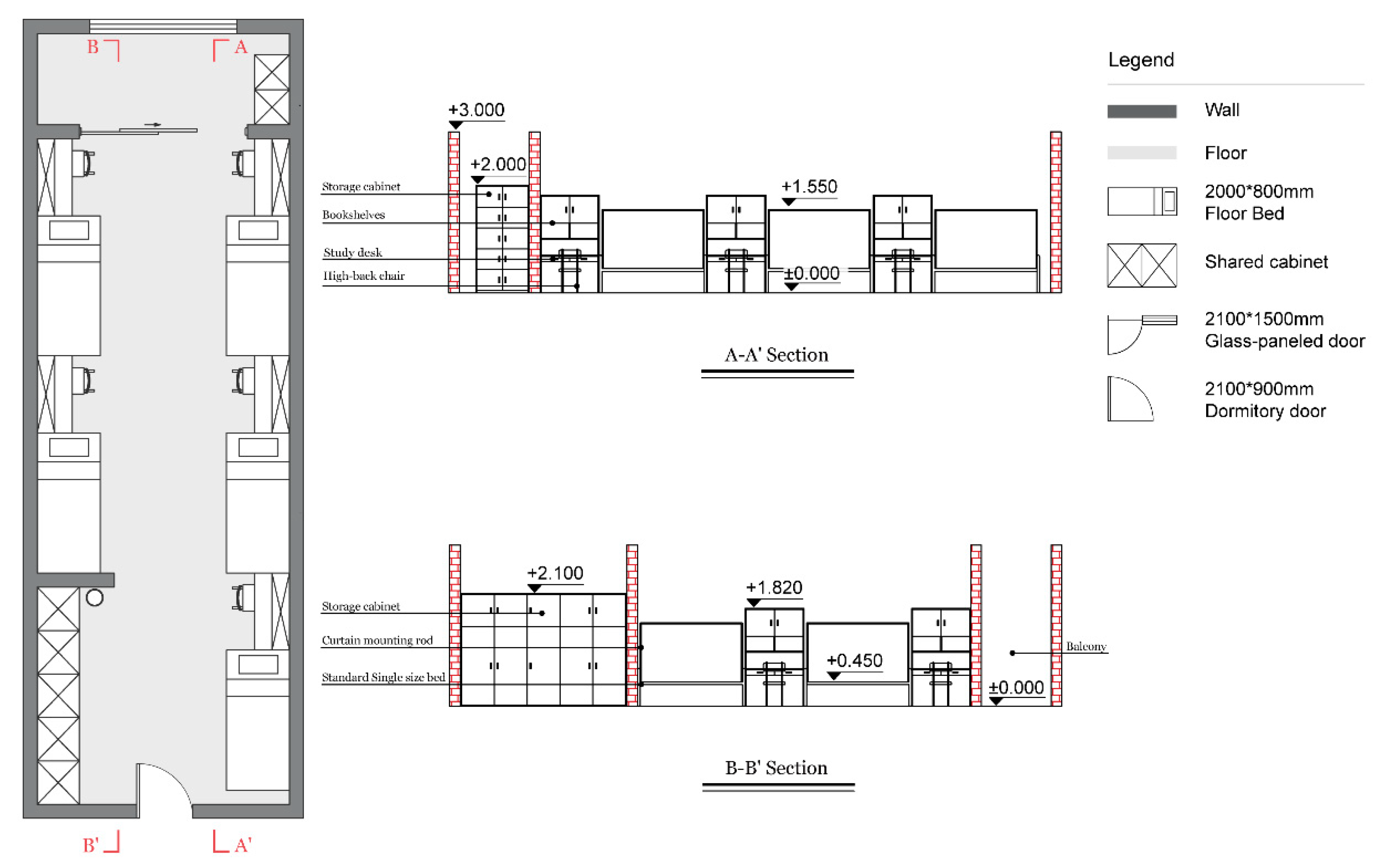
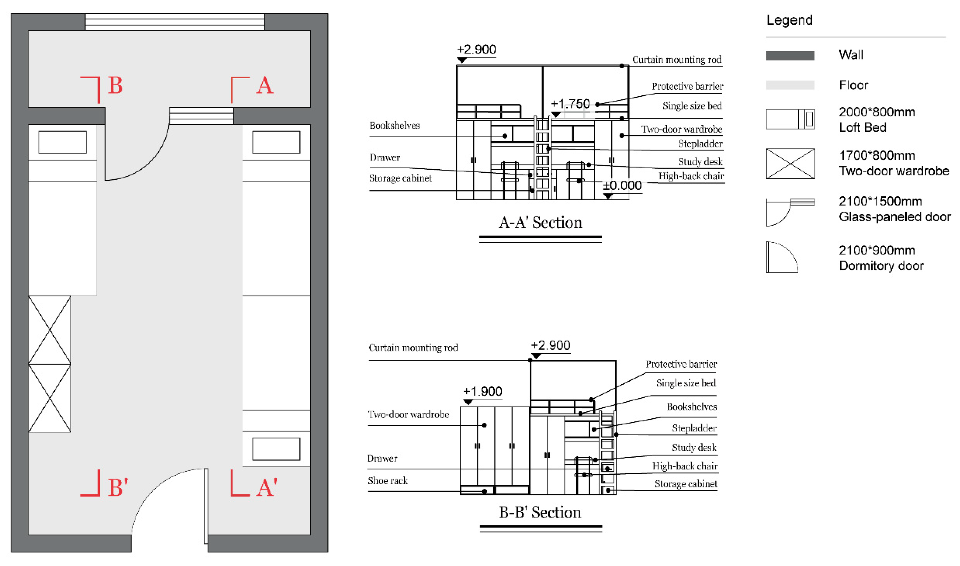
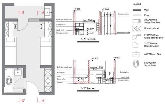
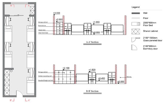
3.2.1. Spatial Analysis
3.2.2. User Adaptation
- i.
- Bed zone upgrades
- ii.
- Seating replacement
- iii.
- Personalized study zone
3.2.3. User Experience
“This dormitory is hard to accept. The ventilation is very poor, the walls are moldy, and the toilet pipes are old. The ceiling of a dormitory in the same building fell off in half.”“The water pressure in the bathrooms is very low, and the environment is poor. I even saw on the university discussion board that a student was bitten on the foot by a centipede while showering.”“The room is too small. With narrow corridors, and extremely low ceiling that will hit your head when you sit up on the bed.”“The one who came up with the idea of turning two-people dormitory into three-people must be a genius. Moving in feels like my life is over.”
“Overall, the new dormitory is good, with plenty of storage space and luxurious decoration.”“Why don’t you post about main dormitory, only choosing to post the good-looking ones? You don’t mention a thing about mosquitoes, dampness, and years-old stains.”“The conditions are really good. I live in the East District, in an old building, and the dormitory isn’t this new.”
“The space is too small to fit student’s things, so we can only be messy and happy.”“The loft bed are really bad. The space utilization is too poor. It is difficult to put clothes in the closet. The cabinet below is very deep and can’t be used at all. The dormitory is small, and I don’t even have a place to put a clothes hanger.”“The air conditioning is utterly unreasonable; the money each students pays to rent an air conditioner is enough to buy a much better new one. Moreover, most students never get their deposit back.”
3.3. Cross-Analysis of Findings (Comparative Insights)
4. Conclusions
5. Limitations
Author Contributions
Funding
Data Availability Statement
Conflicts of Interest
References
- Collins, P.Y.; Sinha, M.; Concepcion, T.; Patton, G.; Way, T.; McCay, L.; Mensa-Kwao, A.; Herrman, H.; de Leeuw, E.; Anand, N.; et al. Making cities mental health friendly for adolescents and young adults. Nature 2024, 627, 137–148. [Google Scholar] [CrossRef]
- UNICEF Innovation & ARM. Innovation for Children in an Urbanizing World: A Use-Case Handbook; UNICEF: New York, NY, USA, 2017; Available online: https://www.unicef.org/innovation/reports/innovation-children-urbanizing-world (accessed on 22 November 2025).
- Ministry of Education of the People’s Republic of China. List of National Colleges and Universities. 2024. Available online: http://www.moe.gov.cn/jyb_xxgk/s5743/s5744/A03/202406/t20240621_1136990.html (accessed on 14 January 2025).
- Ministry of Education of the People’s Republic of China. National Statistical Communiqué on the Development of Education. 2019. Available online: http://www.moe.gov.cn/jyb_sjzl/sjzl_fztjgb/202005/t20200520_456751.html (accessed on 14 January 2025).
- Cambridge Academic Content. Dormitory. Available online: https://dictionary.cambridge.org/fr/dictionnaire/anglais/dormitory (accessed on 16 January 2025).
- Li, Y.; Cheng, F.; Wei, R. Optimization evaluation model of student dormitory design scheme based on multiple evaluation principles. Expert Syst. Appl. 2023, 219, 119605. [Google Scholar] [CrossRef]
- Firmansyah, R.; Shaari, N.; Ismail, S.; Utaberta, N.; Usman, I.M.S. Observation of female dorm privacy in islamic boarding schools in west java, indonesia. J. Islam. Archit. 2021, 6, 360–368. [Google Scholar] [CrossRef]
- Rodger, S.; Johnson, A.M. The impact of residence design on freshman outcomes: Dormitories versus suite-style residences. Can. J. High. Educ. 2005, 35, 83–99. [Google Scholar] [CrossRef]
- Bickman, L.; Teger, A.; Gabriele, T.; McLaughlin, C.; Berger, M.; Sunaday, E. Dormitory Density and Helping Behavior. Environ. Behav. 1973, 5, 465–490. [Google Scholar] [CrossRef]
- Daliri Dizaj, M.; Hatami Khanghahi, T. Students’ residential preferences: A case study is dormitories of University of Mohaghegh Ardabili. J. Asian Archit. Build. Eng. 2022, 21, 1348–1363. [Google Scholar] [CrossRef]
- Amole, D. Students housing preferences in Southwestern Nigeria. J. Archit. Plan. Res. 2011, 28, 44–57. Available online: http://www.jstor.org/stable/43030926 (accessed on 23 December 2024).
- Kim, W.P. Effects of Physical Living Environment on the Social Interaction and Perceived Sense of Community among Students in University Dormitory. J. Korean Inst. Educ. Facil. 2015, 22, 3–10. [Google Scholar] [CrossRef][Green Version]
- Astin, A. Impact of dormitory living on students. Educ. Rec. 1973, 54, 204–210. [Google Scholar]
- Astin, A. Student involvement: A developmental theory for higher education. J. Coll. Stud. Dev. 1999, 40, 518–529. [Google Scholar]
- Erden, G.; Özdoğru, A.A.; Çoksan, S.; Ögel-Balaban, H.; Azak, Y.; Altınoğlu-Dikmeer, İ.; Ergül-Topçu, A.; Yasak, Y.; Kıral-Uçar, G.; Oktay, S.; et al. Social contact, academic satisfaction, COVID-19 knowledge, and subjective well-being among students at Turkish universities: A nine-university sample. Appl. Res. Qual. Life 2021, 17, 2017–2039. [Google Scholar] [CrossRef]
- Hountras, P.T.; Brandt, K.R. Relation of student residence to academic performance in college. J. Educ. Res. 1970, 63, 351–354. [Google Scholar] [CrossRef]
- Nowack, K.M.; Hanson, A.L. Academic achievement of freshmen as a function of residence hall housing. NASPA J. 1985, 22, 22–28. [Google Scholar] [CrossRef]
- ICEF Monitor Global Report Finds That Demand for Student Housing Is Still Far Greater than Supply. Available online: https://monitor.icef.com/2025/02/global-report-finds-that-demand-for-student-housing-is-still-far-greater-than-supply/ (accessed on 21 November 2025).
- Government Portal of the Ministry of Education of the People’s Republic of China. List of General Higher Education Institutions in the Country. 2023. Available online: https://hudong.moe.gov.cn/qggxmd/ (accessed on 14 January 2025).
- China International Engineering Consulting Corporation. Reflections and Recommendations on University Student Dormitory Construction. Available online: https://www.ciecc.com.cn/art/2025/2/27/art_2218_111889.html?utm_source (accessed on 14 January 2025).
- He, W.; Zeng, N. The Relationship Between University Dormitory Environmental Factors and Students’ Informal Learning Experiences: A Case Study of Three Universities in Guangdong Province. Buildings 2025, 15, 2518. [Google Scholar] [CrossRef]
- Ning, Y.; Chen, J. Improving Residential Satisfaction of University Dormitories through Post-Occupancy Evaluation in China: A Socio-Technical System Approach. Sustainability 2016, 8, 1050. [Google Scholar] [CrossRef]
- Beder, D.; Imamoğlu, Ç. Correlates of dormitory satisfaction and differences involving social density and room locations. J. Hous. Built Environ. 2023, 38, 2307–2323. [Google Scholar] [CrossRef]
- Bryman, A. Social Research Methods; Oxford University Press: Toronto, ON, Canada, 2016. [Google Scholar]
- Creswell, J.W. A Concise Introduction to Mixed Methods Research; SAGE publications: Thousand Oaks, CA, USA, 2021. [Google Scholar]
- Dawadi, S.; Shrestha, S.; Giri, R.A. Mixed-Methods Research: A Discussion on its types, challenges, and criticisms. J. Stud. Educ. 2021, 2, 25–36. [Google Scholar] [CrossRef]
- PRISMA 2020. Available online: https://www.prisma-statement.org/prisma-2020 (accessed on 14 January 2025).
- O’Brien, A.M.; Mc Guckin, C. The Systematic Literature Review Method: Trials and Tribulations of Electronic Database Searching at Doctoral Level; SAGE Publications: London, UK, 2016. [Google Scholar] [CrossRef]
- Ministry of Education of the People’s Republic of China. The Action Plan to Education in the 21st Century. Available online: http://www.moe.gov.cn/jyb_xwfb/xw_zt/moe_357/s3580/moe_2448/moe_2470/tnull_41377.html (accessed on 6 May 2025).
- Mok, K.H.; Jiang, J. Massification of higher education and challenges for graduate employment and social mobility: East Asian experiences and sociological reflections. Int. J. Educ. Dev. 2018, 63, 44–51. [Google Scholar] [CrossRef]
- Times Higher Education University Rankings. Available online: https://www.timeshighereducation.com/world-university-rankings/2024/world-ranking (accessed on 18 April 2025).
- Chrysikou, E. Psychiatric institutions and the physical environment: Combining medical architecture methodologies and architectural morphology to increase our understanding. J. Healthc. Eng. 2019, 2019, 4076259. [Google Scholar] [CrossRef]
- Wallace, R.; Costello, L.; Devine, A. Netnographic slog. Int. J. Qual. Methods 2018, 17, 1609406918797796. [Google Scholar] [CrossRef]
- Sandlin, J.A. Netnography as a consumer education research tool. Int. J. Consum. Stud. 2006, 31, 288–294. [Google Scholar] [CrossRef]
- Xu, Y.; Wang, Y. The Influence of Chinese Social Media “Xiaohongshu”. In Proceedings of the Appearance Anxiety Among University Students in Shanghai International Conference on Science Education and Art Appreciation, Chengdu, China, 24–26 June 2022. [Google Scholar]
- Ma, Y. Active User Age Distribution of Xiaohongshu (Rednote) as of March 2025. Available online: https://www.statista.com/statistics/1053545/china-xiaohongshu-user-age-distribution/ (accessed on 23 May 2025).
- Zou, Y.; Sharpe, A.; Demant, D. The effectiveness of podcasts in promoting health among young people: A scoping review. Health Promot. Int. 2025, 40, daaf102. [Google Scholar] [CrossRef] [PubMed]
- Abdollahzadeh, N.; Farahani, A.V.; Soleimani, K.; Zomorodian, Z.S. Indoor Environmental Quality Improvement of Student Dormitories in Tehran, Iran. Int. J. Build. Pathol. Adapt. 2022, 41, 258–278. [Google Scholar] [CrossRef]
- Adebayo, J.; Amole, D. Gender and Students’ Housing Preferences. Int. J. Constr. Environ. 2019, 10, 27–40. [Google Scholar] [CrossRef]
- Kaya, N.; Erkip, F. Satisfaction in a Dormitory Building. Environ. Behav. 2001, 33, 35–53. [Google Scholar] [CrossRef]
- Hasa, A.; Husein, H. Promoting Students’ Well-Being Indicators through Adapting Biophilic Design Attributes in Salahaddin University Dormitories. Al-Qadisiyah J. Eng. Sci. 2023, 16, 180–186. [Google Scholar] [CrossRef]
- Nazarpour, M.-T.; Norouzian-Maleki, S. A Comparative Study of Satisfaction Evaluation between Students of Mid-Rise and High-Rise Student Housing. Facilities 2020, 39, 508–524. [Google Scholar] [CrossRef]
- Vráblová, E.; Czafík, M.; Puskár, B. Spatial Characteristics of Contemporary Prefabricated Modular Dormitory Cells. Spatium 2022, 64–74. [Google Scholar] [CrossRef]
- Gosling, S.D.; Craik, K.H.; Martin, N.R.; Pryor, M.R. Material Attributes of Personal Living Spaces. Home Cult. 2005, 2, 51–87. [Google Scholar] [CrossRef]
- Awal, S. Public, Private & In-Between Spaces in Student Housing. Master’s Thesis, Chulalongkorn University, Bangkok, Thailand, 2020. [Google Scholar] [CrossRef]
- Devlin, A.S.; Donovan, S.; Nicolov, A.; Nold, O.; Zandan, G. Residence Hall Architecture and Sense of Community Everything Old Is New Again. Environ. Behav. 2008, 40, 487–521. [Google Scholar] [CrossRef]
- Vinsel, A.; Brown, B.B.; Altman, I.; Foss, C. Privacy Regulation, Territorial Displays, and Effectiveness of Individual Functioning. J. Personal. Soc. Psychol. 1980, 39, 1104–1115. [Google Scholar] [CrossRef]
- Hou, H.C.; Law, K.K. Examining the Relationship between Student Residents’ Self-Reported Energy Consumption Behavior and Their Energy-Saving Intention. J. Build. Eng. 2024, 98, 111490. [Google Scholar] [CrossRef]
- Chen, X.; Kang, H.; Zhao, J.; Liu, Q. Optimization Design Research of Architectural Layout and Morphology in Multi-Story Dormitory Areas Based on Wind Environment Analysis. Buildings 2025, 15, 1747. [Google Scholar] [CrossRef]
- Cheng, M.-J.; Hwang, R.-L.; Lin, T.-P. Field Experiments on Thermal Comfort Requirements for Campus Dormitories in Taiwan. Indoor Built Environ. 2008, 17, 191–202. [Google Scholar] [CrossRef]
- Jian, W.; He, H.; Wang, B.; Liu, Z. Investigating the Impact of Green Space Ratio and Layout on Bioaerosol Concentrations in Urban High-Density Areas: A Simulation Study in Beijing, China. Sustainability 2024, 16, 3688. [Google Scholar] [CrossRef]
- Kong, D.; Han, D.; Zhai, R.; Wang, C.; Zhang, J.; Xia, Y.; Nian, X.; Liu, C.; He, Y.; Wang, D. A Case Study on Tropical Bed Bug, Cimex Hemipterus (Hemiptera: Cimicidae) Infestation and Management in Dormitories. J. Econ. Entomol. 2022, 116, 5–11. [Google Scholar] [CrossRef] [PubMed]
- Huang, Y.; Guo, Z.; Chu, H.; Sengupta, R. Evacuation Simulation Implemented by ABM-BIM of Unity in Students’ Dormitory Based on Delay Time. ISPRS Int. J. Geo-Inf. 2023, 12, 160. [Google Scholar] [CrossRef]
- Wen, K.; Fang, Y. Daily Information Management System for Postgraduates to Check In and Out of the Dormitory Based on Mobile Edge Computing. Mob. Inf. Syst. 2021, 2021, 5167395. [Google Scholar] [CrossRef]
- Ren, J.; Esangbedo, M.O. Grey Preferences Selection Index with Trimmed Group Preference for Evaluating University Dormitory Renovation Design. Sci. Rep. 2024, 14, 28218. [Google Scholar] [CrossRef]
- Dong, Z.; Zhao, K.; Ren, M.; Ge, J.; Chan, I.Y.S. The impact of space design on occupants’ satisfaction with indoor environment in university dormitories. Build. Environ. 2022, 218, 109143. [Google Scholar] [CrossRef]
- Wang, Z.; Wu, Y.; Jia, Z.; Gao, Q.; Gu, Z. Research on health and thermal comfort of unit-type student apartments in the Western China Science and Technology Innovation Harbor. Front. Public Health 2022, 10, 850107. [Google Scholar] [CrossRef] [PubMed]
- JGJ 36-2005/J408-2005; Code for Design of Dormitory Building. Ministry of Construction of the People’s Republic of China: Beijing, China, 2005. Available online: https://aimg8.dlssyht.cn/u/816266/ueditor/file/409/816266/1723686368312784.pdf (accessed on 22 November 2025).
- Dincer, D.; Tietz, C.; Dalci, K. Beyond Sleep: Investigating User Needs in Today’s Bedrooms. Buildings 2024, 14, 1061. [Google Scholar] [CrossRef]
- Peters, T.; D’Penna, K. Biophilic Design for Restorative University Learning Environments: A Critical Review of Literature and Design Recommendations. Sustainability 2020, 12, 7064. [Google Scholar] [CrossRef]
- Lau, M.H.M.; Wei, X. Housing size and housing market dynamics: The case of micro-flats in Hong Kong. Land Use Policy 2018, 78, 278–286. [Google Scholar] [CrossRef]

















| University | Establishment | Student Population | Key Characteristics |
|---|---|---|---|
| Fudan University (FDU) | 1905 | 15,523 | One of China’s most prestigious comprehensive universities, with strengths in the humanities, sciences, and medicine. |
| Shanghai Jiaotong University (SJTU) | 1896 | 18,582 | Renowned for engineering and technology programs, with a significant research output. |
| Content | Key Outcomes from the 1st Phase of the SLR | Key Reference |
|---|---|---|
| Physical Characteristics | Indoor environment quality: acoustic performance, air quality, and natural light | [38] |
| Adequate daylighting and effective thermal control | ||
| Low-rise building typologies with balconies and/or semi-open spaces | [11,39] | |
| Preference for single and double rooms where possible | [11] | |
| Small clusters for shared rooms with localized facilities | ||
| Bathrooms inside clusters, limit users per shared facility to reduce crowding | ||
| Cluster-plex layouts instead of corridor-style arrangements | [40] | |
| Biophilic design helps improve dormitory environments and enhances students’ physical and mental recovery | [41] | |
| Dormitory air quality (CO2, temperature, humidity, and ventilation) impacts students’ health, comfort, and satisfaction with their living environment | [42] | |
| Experiential Characteristics | Cultural and gender-sensitive spatial design | [7] |
| Visual and acoustic privacy through barriers and buffer zones at entries | ||
| Balanced public–private spaces, spatial hierarchy with semi-private social zones | ||
| Modular design for adaptability to social | [43] | |
| Opportunities for personalization to enhance user satisfaction | [44] | |
| The in-between space most directly influences daily communication and the use of personal space within dormitories | [45] |
| Focus and Country | Dormitory Type and Occupancy | Method | Key Outcomes | Reference |
|---|---|---|---|---|
| Gender differences and housing preferences Nigeria | Resident Hall/NA | Multi-stage sampling technique and questionnaire |
| [39] |
| Students’ performance and privacy Nigeria | Resident Hall/2–4 persons per room | Questionnaire (stratified sampling by course, length of stay, and gender) |
| [11] |
| Crowding perception and dormitory satisfaction Turkiye | Corridor-style dormitory/2 persons per room | Quota sampling and paper questionnaire administered |
| [40] |
| Spatial organization, social interaction, sense of community and privacy United States of America | Traditional; corridor-plex; cluster-plex; specialty housing/2 persons per room | Online questionnaire |
| [46] |
| Privacy aspects (visual, acoustic, olfactory) of female dormitory Indonesia | Boarding-school dormitory/4–8 persons per room | Qualitative case study analysis: participatory observation, semi-structured interviews, documentation, and spatial/photographic analysis |
| [7] |
| Spatial characteristics, layout analysis, space efficiency Slovakia | Prefabricated modular dormitory cells/single rooms 2 to 4 persons sharing cells with common facilities | Mixed-method case study analysis: documentation review of 35 European modular dorm projects |
| [43] |
| Dormitory satisfaction, density, and privacy Turkiye | Dormitory/2–4 persons per room | Questionnaire and case study |
| [23] |
| Dormitory personalization, satisfaction, and privacy United States of America | Corridor-style dormitory/2 persons per room | Questionnaire and photographic content analysis |
| [47] |
| Adaptation of biophilic design in university dormitories Iraq | University dormitory buildings/NA | Field experiment |
| [45] |
| Theme Category | Research Focus | Number of Studies | Key Reference |
|---|---|---|---|
| Physical Environmental Conditions | Building performance and energy consumption | 12 | [48] |
| Outdoor/ventilation studies | 3 | [49] | |
| Thermal comfort and heat adaptation | 8 | [50] | |
| Indoor air quality | 12 | [51] | |
| Functional and Safety Considerations | Functional optimization of dormitory interiors | 7 | [52] |
| Evacuation and safety design | 2 | [53] | |
| Occupancy and usage patterns | 2 | [54] | |
| User Behavior and Design Adaptation | Renovation and student preferences | 2 | [55] |
| Total | 48 |
| Case ID | Room Size (Excluding Balcony and Bathroom) | Number of Residents | Bed Arrangement | Storage Type | Bathroom Use | Other Features |
|---|---|---|---|---|---|---|
| D-01 | 15.84 m2 | 4 | Loft Bed with Desk | Personal Locker | Shared | Enclosed Balcony |
| D-02 | 15.84 m2 | 3 | Loft Bed with Desk | Personal and Shared Storage | Shared | Enclosed Balcony |
| D-03 | 14.55 m2 | 3 | Mixed Bunk and Loft Beds | Personal and Shared Storage | Private | Enclosed Balcony |
| D-04 | 15.52 m2 | 2 | Standard Single Bed | Shared Storage | Shared | Standard Balcony |
| D-05 | 34.20 m2 | 5 | Standard Single Bed | Shared Storage | Shared | Enclosed Balcony |
| D-06 | 15.76 m2 | 4 | Loft Bed with Desk | Personal and Shared Storage | Shared | Bay Window |
| D-07 | 17.60 m2 | 4 | Loft Bed with Desk | Personal and Shared Storage | Shared | None |
| D-08 | 18.02 m2 | 4 | Loft Bed with Desk | Personal and Shared Storage | Shared | None |
| Standards | Type I | Type II | Type III | Type IV | ||
|---|---|---|---|---|---|---|
| Number of Occupants per Room | 1 | 2 | 3-4 | 6-8 | ||
| Minimum Usable Area (m2/person) | Floor Bed/Loft Bed | 16 | 8 | 5 | - | |
| Bunk Bed | - | - | - | 4-3 | ||
| Storage Space | Wall Cabinets, Hanging Cabinets, Bookshelves | |||||
| Case Number | Measured Area (m2/Person) | Standard Requirement (m2/Person) | Compliance |
|---|---|---|---|
| D01 | 3.96 m2 | ≥5 | Below |
| D02 | 5.28 m2 | ≥5 | Meets |
| D03 | 4.85 m2 | ≥5 | Below |
| D04 | 7.76 m2 | ≥8 | Below |
| D05 | 6.84 m2 (5 person) | ≥5 | Meets |
| D06 | 3.94 m2 | ≥5 | Below |
| D07 | 4.4 m2 | ≥5 | Below |
| D08 | 4.5 m2 | ≥5 | Below |
| Comment Topic | Count of Topic |
|---|---|
| Uncomfortable spatial layout (bed height, desk design, narrowness) | 21 |
| Poor maintenance and hygiene issues | 14 |
| Improved conditions after renovation | 3 |
| Emotional stress | 3 |
| Inequity experience | 11 |
| Environmental conditions (noise, humidity, and indoor air quality) | 9 |
Disclaimer/Publisher’s Note: The statements, opinions and data contained in all publications are solely those of the individual author(s) and contributor(s) and not of MDPI and/or the editor(s). MDPI and/or the editor(s) disclaim responsibility for any injury to people or property resulting from any ideas, methods, instructions or products referred to in the content. |
© 2025 by the authors. Licensee MDPI, Basel, Switzerland. This article is an open access article distributed under the terms and conditions of the Creative Commons Attribution (CC BY) license (https://creativecommons.org/licenses/by/4.0/).
Share and Cite
Song, X.; Dincer, D. Spatial Constraints and User Adaptation: A Mixed-Methods Study of High-Density Students Dormitories. Buildings 2025, 15, 4330. https://doi.org/10.3390/buildings15234330
Song X, Dincer D. Spatial Constraints and User Adaptation: A Mixed-Methods Study of High-Density Students Dormitories. Buildings. 2025; 15(23):4330. https://doi.org/10.3390/buildings15234330
Chicago/Turabian StyleSong, Xinyu, and Demet Dincer. 2025. "Spatial Constraints and User Adaptation: A Mixed-Methods Study of High-Density Students Dormitories" Buildings 15, no. 23: 4330. https://doi.org/10.3390/buildings15234330
APA StyleSong, X., & Dincer, D. (2025). Spatial Constraints and User Adaptation: A Mixed-Methods Study of High-Density Students Dormitories. Buildings, 15(23), 4330. https://doi.org/10.3390/buildings15234330

