Next Article in Journal
Visualizing ESG Performance in an Integrated GIS–BIM–IoT Platform for Strategic Urban Planning
Next Article in Special Issue
Eye-Tracking Advancements in Architecture: A Review of Recent Studies
Previous Article in Journal
The Internationalization of the Turkish HVAC Industry in Germany: Drivers, Challenges, and Success Factors
Previous Article in Special Issue
A Virtual Reality-Based Exploration of Chilean Apartment Models with Features from the Surrealist Illustrations of Roberto Matta
 
 
Font Type:
Arial Georgia Verdana
Font Size:
Aa Aa Aa
Line Spacing:
Column Width:
Background:
Article

Achieving Urban Vitality in Knowledge Territories: Morphology Assessment for the Early Design Stages

1
Center for Studies on Knowledge- and Innovation-Based Urbanism (CEUCI), Universidade Estadual de Campinas, Campinas 13083-889, Brazil
2
Information Systems in the Built Environment (ISBE), Eindhoven University of Technology, 5600 Eindhoven, The Netherlands
*
Author to whom correspondence should be addressed.
Buildings 2025, 15(18), 3393; https://doi.org/10.3390/buildings15183393
Submission received: 31 July 2025 / Revised: 4 September 2025 / Accepted: 15 September 2025 / Published: 19 September 2025
(This article belongs to the Special Issue Emerging Trends in Architecture, Urbanization, and Design)

Abstract

The knowledge economy has become ever more important for cities and regions, and different types of urban spaces have been created to accommodate its activities. One of the main assets of these spaces is vitality, a quality that is directly related to innovation and is oftentimes considered the result of spontaneous space arrangements. The recent literature, however, shows that urban vitality is not an intangible quality; it can be correlated to different place quality aspects, such as urban morphology, and measured through existing analytical methods. The aim of this paper is to systematize such indicators and use them to develop algorithms that can be subsequently incorporated into a computational tool for the assessment of knowledge territories during the early design stages, to support their spatial planning and development. The Paris-Saclay Urban Campus is used as a case study to understand and assess these vitality and place quality indicators in an existing benchmark. The results can contribute to the serendipity and the success of new or redeveloped knowledge and innovation areas.

1. Introduction

The second half of the 20th century was marked by a shift from a manufacturing-based economy towards a knowledge and creativity-based one [1]. As cities undergo a transformation from an industrial to a knowledge-intensive production, their urban fabrics reflect these changes. Formal knowledge has typically been produced on university campuses, and different spatial arrangements have been created over time to take advantage of the physical and conceptual proximity to them, such as Science and Technology Parks and, more recently, Innovation Districts [2,3].
These places represent new spatial urban configurations that have, in agreement with shifting theories on innovation development, gradually blurred the boundaries between work, learning, daily life, and community. They have been called by different names that are often used interchangeably, e.g., innovation clusters, innovation hubs, knowledge precincts, and knowledge cities [2,3]. As pointed out by Annerstedt [2] (p. 288), they have become “truly incorporated into the urban fabric as catalysts for innovation.” Thus, to encompass this variety, herein, we refer to these spatial arrangements that aim at fostering innovation and creativity, and producing knowledge, as Knowledge Territories (KT).
For Dong and Zhang [4], vitality is an urban “soft power” that directly influences the number of patents; inventions; and education, science, and technology investments. Pan, Zhu, and Zhang [5] consider technological innovation competitiveness as an indicator to measure urban vitality in existing cities. Zhang et al. [6] echo this idea by stating that cultural vitality directly influences innovation and regional competitiveness as cultural facilities foster creative activities and stimulating environments for new ideas. According to Florida [1] (p. 6), in the knowledge economy, creativity “has become the decisive source of competitive advantage”. As the Creative Class, also referred to as knowledge workers, are highly mobile and choose their location based on material and subjective characteristics, “place” has become “the central organizing unit of our time,” [1] (p. 8) as cities and regions compete to attract and retain creative people, businesses, companies, and industries. Consequently, the concept of “quality of place” has gained attention in areas aiming at knowledge-based social and economic development [1,7], extending the concept of urban vitality as defined by Jane Jacobs in 1961.
Florida [1] (p. 281) defines quality of place as a combination of built and natural environment characteristics, social diversity, street life vibrancy, and social activities. Esmaeilpoorarabi et al. [8] further develop this concept, which they call simply “quality of place”, subdividing it into tangible and intangible attributes across four characteristics: function, form, ambience, and image. Both these definitions are strongly related to built and environmental quality and to the urban vitality that can be fostered through it.
Thus, urban vitality and quality of place can be understood as a fundamental component for the development of KT, as these areas must attract and retain knowledge workers and inhabitants in order to generate an environment that fosters creativity and innovation. This is particularly important for KTs that are located far from consolidated urban centers, or that have been built in recently urbanized areas, as they must plan or redesign their artificially produced territories to achieve attractive and vibrant urban environments that foster creativity and innovation. This specific type of KT is very common across different parts of the world, as many Science and Technology Parks were installed close to university campuses and on the outskirts of cities, aiming at acquiring larger and cheaper areas for their construction. Thus, in the coming years, these outdated existing KT will have to adapt to this changing paradigm by improving their place quality and vitality, as well as becoming more environmentally sustainable, in order to regain their social and economic relevance [9,10].
While previous studies have correlated specific urban vitality indicators to existing built environment characteristics and demonstrated the potential of using quantitative models for territorial planning to support sustainability assessments, there is still a lack of research that discusses what indicators can be applied to the process of planning and designing new urban developments or adapting outdated ones to increase their vitality, particularly in the context of KT [11,12].
Existing analyses predominantly rely on human activity data in already consolidated areas, without providing tools for planning future territories. Moreover, their methodological approach is generally limited to two-dimensional (GIS) and statistical analyses, overlooking the potential of tools such as City Information Modeling (CIM) for integrated spatial assessment. In the context of KT, studies rarely incorporate the specific dynamics of the knowledge economy, and urban vitality is often measured solely by the flow of people, without controlling for possibly confounding factors, i.e., whether it derives from the quality of space—crucial for attracting the creative class—or from a merely functional necessity. Furthermore, even though the use of Cervero and Kockelman’s “5Ds” is recurrent in assessing urban vitality through built environment indicators, such evaluations remain correlational and relative, lacking defined targets or quantitative benchmarks that could objectively guide projects.
A typical example of a KT that adapted its outdated infrastructure to promote its vitality is the Paris-Saclay Urban Campus, a Science and Technology Park, which has undergone this transformation in the past couple of decades, serving as an example of how urban planning and design can be strategically applied to adapt these older parks to the Quintuple Helix Innovation model, in which society and the natural environment became central actors in the innovation process, along with the traditional Triple Helix ones: Academy, Industry, and Government. Furthermore, it is an example of how urban vitality and place quality can be promoted through morphology in an artificially developed territory [10,13].
When urban designers are planning a new place, they cannot control all the aspects that will contribute to vitality and quality of place, especially intangible aspects, such as ambience, atmosphere, or the actual use of the space. However, they can define tangible attributes of the place, such as urban and building morphology. Therefore, this research proposes a systematic approach to evaluating urban vitality in the planning of Knowledge Territories (KTs) through morphological indicators found in the literature.
As an initial phase of the methodological development, our primary goal is to establish the technical and conceptual feasibility of the approach, testing whether it is possible—and how complex it is—to objectively assess urban and building morphology in terms of their contribution to urban vitality. Our final aim is to automate this assessment, developing a tool that can be used in the design of greenfield sites and the renovation of underperforming ones.
The Paris-Saclay Urban Campus—and, more specifically, its Moulon district—was used as a case study to understand and assess these place quality and vitality indicators in an existing benchmark KT [1,7,8,14,15,16].
In the next section, we discuss the relation between urban vitality and place quality, with attention to KT specificities. The third section presents a review on analytical approaches to urban morphology. The fourth presents the methods used in this research, followed by a description of our case study and the results and discussion section. Finally, we present our conclusions and propose future developments.

1.1. Urban Vitality and Place Quality

Low urban vitality has been linked to several contemporary urban challenges, e.g., automobile dependence in cities, urban sprawl, environmental degradation, population and socioeconomic decline, low social dynamism, and the deterioration of public safety and public and open spaces [17,18,19,20,21]. While it has been extensively studied in the urban planning field, the challenge of objectively defining and measuring urban vitality indicators remains an important gap, and more recent studies have focused on developing quantitative methods to improve its assessment [22].
As urban vitality is a multidimensional variable, quantitative studies in the field have focused on developing potentially explanatory frameworks based on two main approaches. The first attempts to decompose urban vitality into interconnected subsystems, such as demographic attractiveness, economic prosperity, economic performance, functional diversity, social inclusiveness, social interaction, entertainment and recreational opportunities, green space availability, environmental quality, and sustainability [4,5,23,24,25]. The second approach studies how different built environment dimensions can influence urban vitality [6,21]. While the frameworks developed in these studies are relevant to the assessment of consolidated urban environments, because they relate vitality to the human activities in place, they give little guidance for the planning of new urban developments or the revitalization of existing ones, particularly in the case of KT. Furthermore, it was found that studies that measured the flow of people fail to identify the cause of this activity, focusing on quantifying presence rather than experience or place quality [18,19,21,26].
The methods used to measure urban vitality are either statistical, applying spatial regression models to correlate built environment indicators to measured vitality, or spatial, using Geographic Information Systems (GIS) in their analysis. Big data from mobile phones and shared vehicles are the main approach to data acquisition, with questionnaires and field observations following close behind [19,20,21,27]. Points of Interest (POIs) from online platforms and night light images obtained with remote sensing are also used, but to a smaller degree, to analyze social and economic activity [6,28,29]. Machine Learning techniques, such as Random Forest and Neural Networks, have gained recent traction in the field with the aim of capturing complex non-linear relationships between variables [17,29].
Several studies establish consistent correlations between urban morphology dimensions and the presence of urban vitality. Cervero and Kockelman’s [30] 3D’s framework—Density, Diversity, and Design—which was originally developed to study the relationship between built environment and travel behavior, is recurrently used to explain urban vitality [6,29,31,32]. These factors are closely related to Jane Jacobs’ [33] discussion of four main conditions through which planning can induce urban vitality: concentration, close-grained diversity of uses, small urban blocks, and aged buildings. Destination Accessibility and Distance to Transit, later added to the 3D’s to form the 5D’s framework, are also used extensively in the study of urban vitality [34]. This highlights the importance of human movement and accessibility to promote vitality as, through density, diversity (functional mix), and design (small blocks), the built environment encourages active mobility and the use of public transportation, while also increasing the presence and flow of people on the streets [29,31].
Despite this growing analytical sophistication on the subject of urban vitality, City Information Modeling (CIM), as well as other three-dimensional modeling and simulation tools, are seldom used to analyze or generate urban vitality-promoting scenarios. Most research operates in two-dimensions, using land use metrics and network analysis. One study, by Lin et al. [17], chose to extract three-dimensional metrics to feed two-dimensional statistical models, rather than integrating the analysis directly into a three-dimensional environment.
The concept of urban vitality has been applied to various urban challenges, but few studies discuss it specifically in relation to the knowledge economy, and none propose how to apply it in the design or requalification of urban developments. Furthermore, the concept of urban vitality performance benchmarks, that could be used to support the design process, remains unexplored. Besides urban vitality, place quality has also been widely identified as a central factor in the success of these areas and as a strategic asset for cities seeking to compete for knowledge workers, companies and investments [1,8]. Often confused, urban vitality and place quality are not exactly the same. Vitality may be the result of a good-quality place. At the same time, vitality can be one of the many elements that give quality to a place (the chicken–egg problem). Yet, both have been related to urban and building morphological aspects. Thus, we will consider the contribution of both for the success of KTs.
This premise is reinforced by the work of Burke and Gras [35], who identify urban infrastructure as one of the three fundamental pillars of KTs, alongside talent networks (workers) and organizational structures (companies and institutions). In their Atlas of Innovation Districts, the authors demonstrate that urban design, i.e., aesthetics, morphology, amenities, and connectivity, acts as an active agent to facilitate collaboration and enhance innovation. This means place quality is not simply an additional benefit in KTs but a precondition for the flourishing of innovation ecosystems. This idea is seconded by Esmaeilpoorarabi et al.’s [8] four-pillar place quality framework for KTs: function, form, ambience, and image. These pillars identified in these two studies are closely related with Jacob’s (1961) [33] discussion on urban vitality, Alexander’s [36] discussion of a “quality without a name”, and Cozzolino’s [37] idea of “spontaneous beauty” that are central concepts in the study of urban morphology. Thus, for this conceptual-to-operational transition proposed herein, we investigated works that relate urban vitality and place quality to urban morphology metrics in relation to these KT pillars [8,38,39,40].

1.2. Analytical Approaches to Urban Morphology

Urban morphology is an interdisciplinary field that studies how cities evolve through time by analyzing the urban form and relating it to cultural, social, and economic changes [16]. It approaches cities from the perspective of complexity, meaning that they are more than the sum of their parts and emerge as a result of multiple components, actors, and subsequent decisions and interactions [15]. Urban morphologists analyze the tangible and objective aspects that result from these multiple interactions and their intentional or unintentional outcomes focusing on the city’s physical form elements, including their streets, blocks, buildings, and open spaces [15,16].
Historically, this field of study has focused mainly on the relationship between the city’s public and private spaces. But as the boundary between them became more blurred, with the addition of private spaces with public use and privatized public spaces, other urban components were subsequently integrated into these analytical frameworks to improve their explanatory capacity, namely buildings, open spaces, plots, streets, and blocks [16,41,42].
In addition to form, a morphological analysis is based on other two components. The first is the resolution, from the fine-grained Buildings/Block, and Streets/Blocks, to the coarser neighborhoods/districts/cities and regions. The second is time, as urban form is studied within a historical context [16,41]. By decomposing urban form into these multiple components, it is possible to understand their influence on several different urban aspects, such as social and economic development, urban vitality, urban mobility, urban regeneration, energy consumption, resource management, the heat island phenomena, etc. [41,43].
Kropf [15] identified four main approaches to the analysis of urban morphology: historico-geographical, process typological, configurational, and spatial analytical. The first approach is rooted in the work of German geographer Michael R. G. Conzen and decomposes urban form into their “constituent elements and development through time” (p. 113). The second approach, also called the Italian school of urban morphology, is based on the work of Saverio Muratori and his pupil Gianfranco Caniggia, and divides cities hierarchically into elements, i.e., buildings; structures of elements, i.e., urban tissue formed by the buildings; systems of structures, i.e., association of urban tissues or districts; and organisms of systems, i.e., the association of the former forming the city. Each of these hierarchical components can then be associated with typologies that represent their social, cultural and historical contexts [15,16]. The third is based on the work by Bill Hillier on Space Synthax, which uses graph theory to understand the urban spatial structure based on movement through the voids left from buildings, i.e., streets and open spaces. The last is based on the work of Michael Batty and collaborators using different computational modeling and simulation methods to study the complex and emergent behaviors in city systems, such as agent-based models, cellular automata, geographic information systems, and fractals [44].
Another spatial-analytical approach to urban morphology analysis is Spacematrix, which relates urban form to density using the relationships between four different indices and the corresponding urban form: Floor Space Index (FSI)—floor space to ground area ratio; Ground Space Index (GSI)—ratio of building footprints; Layer (L)—average number of floors, and Open Space Ratio (OSR)—proportion between open space and total area [42].

2. Methods

As previously stated, the final aim of this research is to automate the assessment of urban vitality in the planning of KTs, such as innovation districts and urban campuses, developing a tool that can be used in the design of future scenarios, both for greenfield and renovation/requalification projects. As seen in Section 2 and Section 3, vitality and place quality are intrinsically related and crucial for successful KTs, and urban morphology plays an important role for achieving it. The specialized literature shows correlations and provides a number of indicators for those typically subjective urban environment aspects. However, using these indicators to make a fully automated assessment procedure requires their translation into quantifiable and objective built environment measures.
This research is based on the Constructive Research Approach, aimed at solving practical problems through the development of new constructs by drawing on existing knowledge from a given field of research [45]. This methodological approach integrates different methods into the research process to: (1) conceptualize the problem; (2) ground the development on relevant references, and (3) identify and analyze the construct’s theoretical contribution. Figure 1 illustrates the methodological steps used to develop the proposed construct, which is further explained below.
In order to set the ground for automating this assessment procedure, we isolated one group of aspects related to urban vitality and quality of place—morphology—and developed a step-by-step procedure, meticulously defining measurement methods and trying to predict all possible exceptions and difficulties. Other aspects found in the literature, such as mobility, use and function, and green spaces, will be added in future research.
The first step consisted of identifying indicators used in the literature to measure urban vitality and selecting those that met the following criteria: (1) geometric parameterization capability—indicators that could be measured and parameterized in a 3D geometric model; (2) measurement feasibility—metrics that were operationally viable to calculate, even when specific benchmarks were not clearly defined in the literature; (3) alignment with research scope—indicators that fit within the established conceptual framework of urban vitality, place quality, and urban morphology. Subsequently, all selected indicators were found in the literature, as well as the information and equations required to calculate each of them. In some cases, the procedures for obtaining the indicators were not perfectly clear in the source texts. For example, the “construction density” indicator, mentioned by [8,38], requires two dimensions (total built area and total block area) and one equation (total built area/total block area). However, it is not clear if the total built area refers just to the ground floor or to the entire construction. In the first case, it is also not clear if one should count covered public passages as built areas or not, and so forth. Moreover, an optimal value for the ratio is not provided by the authors. Clearly defining the procedures to calculate each indicator involved interpretation, discussion, and additional literature support.
The second part of the study consisted of using the list of indicators to assess our case study, the Paris-Saclay Moulon district, based on geometry and qualitative information attached to it. A detailed geometric model of the district was created, based on a field visit and on other data provided by the district management or available on the Internet. The site was visited between 30 September and 13 October 2024, in order to coincide with the beginning of the school semester, when most students are on campus, but the weather is still pleasant enough for people to stay outside. The site observations, done at different times of the day and on different days of the week, were recorded using Fulcrum software (https://www.fulcrumapp.com/, accessed on 30 July 2025) that supports on-site data collection and georeferences photographs, videos, and routes. An interview with the urban development director of Paris-Saclay’s Établissement Publique d’Amenagement (EPAPS) allowed us to gather further information about specific urban morphology strategies used in the district’s planning.
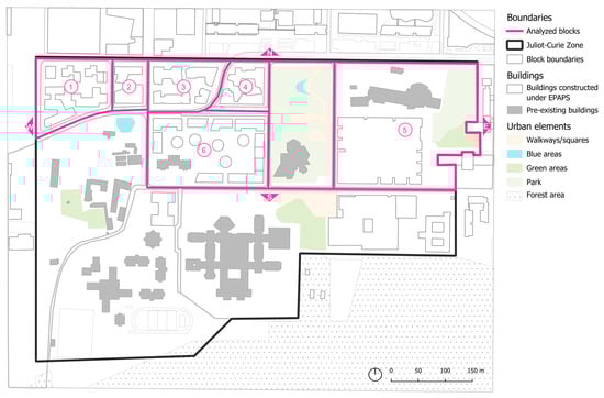
A digital geometric model of the blocks was created on Rhino 3D 8 CAD software, based on the site map. The buildings’ height and the position of their openings and recesses were defined based on on-site photographs manually compared with Google Earth data and inserted in the GIS files. The resulting model included all morphological aspects of the buildings, such as porticos, overhangs, covered and uncovered passages through the blocks, windows, doors, and so forth. Each district block was numbered and each edge labeled (North, South, etc.), as shown in Figure 2. The dimensions and equations needed for calculating each indicator were carefully evaluated, allowing us to compare the results between different district blocks. The procedures for calculating each indicator were analyzed in terms of steps required and difficulty for algorithmic implementation, such as the need to introduce third party plugins or add-ons and the computational cost of the procedure. Following Moudon’s [16] definition of resolution for morphological analyses, the indicators focus on two resolutions: (1) Building/Block; (2) Block/Street. In the first resolution, we list the indicators that are related to the building layout in relation to its block. In the second, we list the indicators that discuss the interface between blocks and streets (or block edges). Having separate evaluations for every edge of each block will allow us to grade the streets and not just the blocks. The following section presents the case study and its value as a base case for the development of these indicators.
The specific metrics for each of the indicators were developed based on three main works by [8,38,39] that specifically discussed place quality indicators related to urban vitality in KT contexts. However, these papers did not discuss how to measure or operationalize the assessment of place quality. Thus, for some of the indicators, we developed our own algorithms based on theoretical concepts and, whenever needed, on benchmarks found in the literature. These indicators were categorized according to four of Ewing and Cervero’s [34] 5D’s: Diversity, Density, Design, and Destination Accessibility.
These algorithms were applied to the Moulon district’s Joliot Curie area as a base study. They were proof-implemented using the Grasshopper visual programming interface for Rhino 3D, in order to test their applicability and capacity to automate the process of assessing KT urban vitality through morphology indicators. The complete table with all the algorithmic procedures is provided as Supplementary Data (authors, 2025).
Finally, based on the indicators, the assessment was compared to the level of vitality and place quality observed during the field visit. The complete automated procedure and comparison with other benchmarks will be addressed in future publications.

3. Case Study: Paris-Saclay

The Paris-Saclay Urban Campus was selected as a base case study in this research, because it is a successful example in terms of quality of place and urban vitality, where urban morphology played an important role. Moreover, while most innovation districts result from the renovation of declining industrial areas and are, thus, limited in terms of site planning, the Paris-Saclay Urban Campus was implemented in what was practically greenfield, with just a few sparsely located existing buildings and science facilities. Therefore, planners had the freedom to—and the challenge of—proposing a particular urban design to achieve very specific goals.
Although the area is located approximately 25 km southwest of Paris, until recently, most researchers and students would rather spend 50 min by train or even more in cars to reach science facilities in the Saclay plateau, rather than living there. As a result, the area was compared to an archipelago of science institutions by Pierre Veltz [46]. EPAPS was a national-interest operation started in 2010, aimed at creating an urban environment that would foster collaboration between institutions (both academic and industry-based R&D) that had been present in the Saclay plateau for decades, but lacked the urban “glue” that can promote vitality, serendipity, and interaction, qualities that can attract and retain talents. With this project, the government expected to create a local community, increase academic performance and stop brain drain. The overall idea was to “go beyond the isolated monofunctional campus in favor of the emergence of a real university city integrated into the Metropolis” [47].
The project started with a comprehensive landscape design by Michel Desvigne’s office in 2009. According to Michel Desvigne Paysage (MDP), the challenge consisted in “moving past the current stage of an area made up of industrial-university activities dotted with large closed off access points, to an authentic neighborhood containing residents, shared facilities, and businesses” [48]. Due to the large extension of the site and the existence of large wooded and agricultural areas on the plateau, the master plan proposed creating a few compact neighborhoods around the existing built-up areas. Connected to each other by public transit and soon to be connected to Paris by the new Grand Paris Express line, each neighborhood was planned to be “of significant dimension”, i.e., dense enough, and built “within the radius of a public transport stop, each of a scale traversable by foot or bicycle” [48]. MDP worked through different scales, from the cluster and the urban campus to the public spaces and gardens, keeping the same logic. Other offices were also hired to further develop neighborhoods, blocks, and buildings.
The EPAPS is composed of three areas—Moulon, École Polytechnique, and Corbeville—with approximately 200 ha each (the latter is still under development), as shown in Figure 3. In this study, we focused on the Moulon district, because it has the greatest functional diversity of the three. Part of the Moulon district, the Joliot-Curie area, was commissioned to OMA France ((Clément Blanchet, in collaboration with Alto, D. Boudet, D’ici là and CVA), and later to others (XDGA, Saison Menu & Taktyk, Germe&JAM, Bruel-Delmar, Artelia, and Scène publique) [49,50]), after the Office for Metropolitan Architecture (OMA) had won the competition for the Centrale-Supélec engineering school facilities in the same area, in collaboration with Bollinger and Grohman and others [51,52].
The design for the Centrale-Supélec was referred by OMA [51] as “the LabCity”, “a stable framework for constantly changing requirements (...) with creative disorder framed under a structural skeleton”, a “city within a city”, based on the concept of block permeability for pedestrians:
…a seamless experience between the building and its surroundings, providing a convenient public route between the future heart of the neighbourhood and the future subway station. Around this urban spine, the program is spread in different buildings of various typologies and sizes, organized on an urban grid served by secondary streets [51].
Similarly, in the Joliot-Curie area, blocks, buildings and public spaces were specifically designed to achieve the main goals of the operation, combining urban density and program interaction. According to Germe&JAM [47], two of the offices responsible since 2017 for extending this area’s masterplan, “the age-old grid model thus [became] the fertile support for a re-territorialization of the campus (...) and the formation of a mixed urban fabric guaranteeing the integration of the diversity of programs, uses and scales”.
The conceptual image published on OMA’s website [49] was a collage with the existing buildings’ black footprints pasted against a birds’ eye photograph of the Saclay plateau’s wheat fields. It clearly stated the problem: how to integrate existing buildings spread out on an agricultural area? The answer is visually explained in the following image, where new buildings are used to define a grid and its urban blocks. A diagonal dotted line links the neighborhood center to the Subway Station, crossing the Centrale-Supélec building, which has a covered privately-owned public passage. Different functions are mixed in the area. The urban design is described as
...a new form of a rigorous and flexible urbanism, capable of combining varied programs and integrating existing buildings into an efficient, unified scheme. Public spaces integrated with existing natural components act to both articulate the diverse functions and provide space for interactions between different users. Density and intensity of use is sought for student housing, while the diversity and plurality of lifestyles guide the design of plots for family housing [49].
The project is therefore divided in three phases, shown in Figure 4 [47]. The first phase is composed of the pre-existing buildings, figures against the ground. The second one is made of large, single program perimeter blocks, with buildings that define inner courtyards open to the public, as privately owned public spaces (POPS). The third and last phase of development is based on a “mixed and diversified urban fabric”:
In contrast with the large size and monumentality of the previous architectural objects or voids, the new urban fabric aims for a return to an “urban ordinary”, of the small scale, tight spacing, the division of blocks, diversity and urban complexity (...), articulating a wide variety of private collective spaces, open or closed to the public domain, [allowing] for “ordinary” operating units, the long-term evolution of which (reversibility) is much simpler to implement than for monolithic blocks [47].
This third method of filling up the empty space allows the evolution of the district over time, with new programs that may appear. There are also some variability rules. For example, on North–South streets, buildings are lined up, but with different heights, while on East–West streets, there is more discontinuity between buildings, assuring visual permeability and views to the valley. Nevertheless, typological rules assure an underlying logic to the entire district, avoiding a random look [47].
As a result, despite being an artificially created district, Moulon has enough complexity and diversity of scales, typologies, and functions, with a variety of open spaces that foster the aimed vitality and quality of place, which was confirmed during the authors’ visits to the site.
It is important to note, though, that vitality in the Moulon district increased in relation to the previous existing situation, when most students and researchers had to commute from nearby towns, or even from Paris, since housing was limited and there were few third places. The vitality observed nowadays cannot be compared to historical downtown areas, but it is definitely an improvement. Aspects related to quality of place, such as the presence of buildings designed by star architects and a beautiful landscape design, certainly help, but our analysis showed that the morphology rated high in the use of strategies that contribute to create vitality, as we will see in the next section.

4. Results

A total of 21 indicators were developed with the aim of assessing urban vitality using place quality aspects and their urban morphology metrics. These indicators were divided into two resolution scales (Building/Block and Street/Block) and four main categories, based on Ewing and Cervero’s [34] 5D’s: Diversity, Density, Design, and Destination Accessibility. While the method for calculating some of those indicators were readily available from the references, others had to be further specified by us. Those are classified as “developed by authors” in the Supplementary Data (authors, 2025). Furthermore, as previously mentioned, few benchmarks were found in the urban vitality and place quality literature; therefore, it was necessary to search for other data sources in the literature that would suit each indicator and make it possible to establish them. For this reason, the detailed reasoning for calculating them is also presented in the above-mentioned Supplementary Data. Table 1 shows the indicators, reference parameters, and respective benchmarks that were used in our assessment.
Because this research focuses on morphology and on Building and Block resolutions, the Distance to Transport category was not included at this point. Nonetheless, the latter is an important aspect of vitality and place quality assessments on district, city, and regional resolutions and should be incorporated in future developments. As stated above, use and function and green areas were also not included and will also be subjects of future studies.

4.1. Destination Accessibility

Although our study focused on morphology and did not include specific transportation aspects, such as cycling infrastructure or distance to transit, some of the indicators used have a direct impact on mobility. In the field of transportation, Destination Accessibility, which measures how easy it is to access destinations or attraction points, i.e., jobs, services, commercial activities, within an urban grid, is usually measured on a city or regional scale. In this case, based on the specific literature on vitality and place quality, this category is approached from a finer grain to reflect the human scale on a Building/Block resolution.
Thus, the selected indicators include Block Crossing Permeability, Morphological Connectivity (MC), Block Dimensional Adequacy (BDA), Block Area (BA), and Block Perimeter Access Interval (BPAI) under the Building/Block resolution, and Access Density and Ground floor permeability under the Block/Street resolution.
The Block Crossing Permeability metric was developed based on its importance for promoting walkability and route diversity in the urban environment. According to Victoria Walks [40], block perimeters exceeding 600 m tend to discourage walking, and it is recommended to create transversal connections that allow crossing through the interior of the block. Adu-McVie et al. [39] reinforce this approach by pointing out that successful innovation districts exhibit high permeability, offering greater freedom of movement and multiple opportunities for enjoying the urban space.
We also developed an extended analysis, based on our methodological interpretation: the Morphological Connectivity (MC) indicator, building upon Kim’s [38] figure-ground analysis, which was used as “the primary method to undertake and communicate morphological elements of urban form” and demonstrated how “buildings defined streets and squares and promoted a small-scale and finely-meshed street grid.” Kim’s figure-ground mapping “visually showed urban blocks that were small in length and width, which allowed for greater freedom of movement, creating more significant opportunities for street frontages, paths, and openings.” While Kim analyzed these “opportunities for paths” qualitatively through visual figure-ground mapping, we extended this analysis quantitatively: if buildings define urban spaces through their spatial arrangement, they also mathematically define the optimal potential paths between these spaces. This metric automates and quantifies Kim’s visual interpretation using Voronoi diagrams generated from building centroids to mathematically identify all optimal potential paths based on spatial distribution, comparing them with actually implemented paths to measure the degree of utilization of connectivity opportunities that the building configuration enables.
The Block Perimeter Access Interval (BPAI), dependent of the calculated indicator Block Dimensional Adequacy (BDA) and Block Area (BA) metric, was complemented with the one for counting perimeter entries of the block that connect its interior to external faces and measuring distances between each entry along the block perimeter, creating an integrated morphological evaluation system that simultaneously considers block scale and its perimeter connectivity capacity. This systemic approach ensures that larger blocks maintain adequate permeability levels through adequately distributed accesses along the perimeter, empirically validating pedestrian accessibility principles even in large-scale development contexts.

4.2. Design

The Design category indicators include Active façades, Building Positioning Definition (BPD), Block Perimeter (BP), and Block Edge Continuity (BEC).
Kim [38] identifies, through qualitative figure-ground mapping, two distinct morphological typologies: buildings that “define space” (characteristic of traditional urban fabrics where buildings are constructed adjacent to one another, providing the “walls” of open space) versus buildings “loose in space” (isolated objects characteristic of modernist design). The Building Positioning Definition metric is used to automate this qualitative analysis by establishing a quantitative threshold of 15 m from the block edge to objectively classify building positioning and calculate percentages of each typology within the block. The 15 m threshold was chosen as it approximately corresponds to the width of a typical building, though this parameter can be modified according to specific urban contexts and research objectives.
The same author further identifies that successful Innovation Districts create “more significant opportunities for street frontages” and that adjacent buildings “provide the walls of open space,” defining streets and squares [38]. Building upon this foundation, our metrics for the Design category quantitatively measure the percentage of block perimeter where urban-defining elements, i.e., solid facades and functional openings such as passages, porticos, and galleries, are aligned or setback to a maximum of 2 m. This approach objectively quantifies the “cohesiveness of space” that Kim [38] observed through figure-ground mapping, distinguishing between mere setbacks and functional openings that maintain spatial continuity. The 2 m threshold was selected for this analysis as an appropriate tolerance for facade alignment, though this parameter remains adjustable according to specific urban contexts. Additionally, we applied Root Mean Square calculations to individual face scores to emphasize spatial quality over simple arithmetic averaging, recognizing that urban spatial excellence benefits from exceptional performance in key relationships rather than uniform mediocrity.

4.3. Density

The indicators for the Density category were developed to capture built form characteristics beyond Building density (Floor to Area Ratio—FAR) and Gross and Net Population Density [42]. In order to capture positive and negative aspects of density perception by users, we included metrics for Spatial congestion degree (SCD), Building Average Height, and Spatial Compactness Rate (Richardson Index) in the Building/Block resolution.
According to Lin et al. [17] higher values of Spatial Congestion are strongly associated with the concentration of socioeconomic activities that could accommodate a large number of people. However, the authors did not offer interpretive benchmarks, limiting its practical application. To transform it into a prescriptive planning tool, a calibration system was developed based on the Compact Midrise model by Stewart and Oke [54], recognized for combining urban efficiency, vitality, and sustainability.
The Spatial Compactness Rate (Richardson Index) is based on Lv et al. [32] and assesses the relationship between urban vitality and spatial compactness considering it as an attribute of the “block pattern” dimension, which directly influences urban performance. The use of the Richardson Index is based on the premise that the most efficient spatial form for urban development is a circle. According to the formula, the index ranges from 0 to 1, with 1 assigned to the most compact shape, i.e., a perfect circle. However, the authors do not propose benchmarks or thresholds to classify the resulting values, limiting its application in comparative studies. To overcome these limitations, we developed a weighted methodology that integrates three fundamental components: shape efficiency (Richardson Index), area adequacy, and perimeter efficiency, based on Victoria Walks’ [40] standards. The weighting scheme – detailed in the Supplementary Data—prioritizes shape efficiency (as the main component of urban vitality) while also accounting for dimensional adequacy, preventing extremely small or elongated blocks from receiving high scores based solely on geometric compactness. This approach recognizes that blocks with similar compactness values may exhibit different urban performances when their absolute dimensions are taken into account. Our analysis is based on Victoria Walks’ [40] reference parameters for ideal block size, which establish optimal perimeter and area dimensions for walkable urban environments. A review of all their benchmarks revealed the following cases, where extremely small or elongated blocks could otherwise receive inflated scores due only to compactness.

4.4. Diversity

While Diversity is usually assessed using entropy equations to measure the variety of land uses, to capture this dimension on a block-by-block scale, we go beyond this concept and include measures to capture building and occupation diversity as well [34]. This is based on the idea that building size and type diversity promotes diversified mixed use, allows for greater urban permeability, attracts people of different income levels, creates vibrant street life, and supports the co-location of diverse types and sizes of innovative industries [38]. Measures related to active facades are also included in the Diversity category, as their use is related to the variety of uses. This category was assessed with the following indicators: Block Open Space (BOS); Building size diversity (BSD); Building Evenness Index (BEI); and Building height diversity under the Building/Block resolution, and Active facades under the Block/Street resolution.
Kim [38] systematically uses the distinction between “built and unbuilt spaces” as the fundamental basis of morphological analysis through figure-ground mapping, even developing a specific formula that considers “Gross area–Open land” for net density calculation. This metric directly automates this central concept by calculating the percentage of block area dedicated to open spaces. While Kim [38] focused on the built/unbuilt relationship for population density analysis, we extended this approach to quantify specifically the balance between built and open spaces within individual blocks, providing an objective measure of the “flexibility of built form and open space” that the author identified as an important morphological characteristic.
Through the morphological analysis of five Urban Innovation Districts, Kim [38] concluded that those characterized by the predominance of small and medium buildings were more successful than those that preferred larger buildings reaching the following thresholds for the Building size diversity (BSD): (1) small, under 500 m2; medium, between 501 and 1000 m2; and large, over 1000 m2.
The Building Evenness Index (BEI) proposed by Xu et al. [26] provides a basis for quantifying the volumetric diversity of buildings (BVD). This metric evaluates urban morphological quality, as the diversity of built volumes is directly related to urban vitality, the social and functional permeability of spaces, and the capacity to attract diverse activities and users [38]. However, these authors did not establish quantitative benchmarks for interpreting BVD values, limiting themselves to comparative analyses between different urban areas. To bridge this gap, we developed a methodology to calibrate this benchmark based on the literature on urban morphology and urban vitality. For the definition of building footprint categories, we adopted Kim’s [38] building size classification, presented above, and established an ideal scenario to be a composition of 40% small, 40% medium, and 20% large buildings, combined with building heights distributed in the range of 15–24 m (5–6 floors), a standard identified by the Healthy Urban Design Index (HUDI) as ideal for urban vitality [55]. This height range is adopted by HUDI for three main reasons: (1) it increases user comfort and well-being; (2) it maintains clear sky visibility, preserving visual connection with the natural environment; and (3) it prevents vertical sprawl, avoiding over-densification harmful to urban quality [55]. This benchmark is further supported by the Local Climate Zone (LCZ) system, which empirically demonstrates that mid-rise buildings, between 10 and 25 m tall, offer the best balance between adequate urban density and thermal-environmental comfort [54].

4.5. Morphological Analysis of the Moulon District in Paris-Saclay

Due to space limitations, the assessment result for only one of the blocks is presented. The block chosen for the application study is between Joliot Curie Street, Sebastienne Guyot Street, Jules Horowitz Street, and Andre Blanc-Lapierre Street (Block 6 in Figure 2). It includes three different types of buildings: (1) a pre-existing isolated building dating from 2005–2006, with a wide setback from the sidewalk; (2) perimetral buildings lined up with the sidewalk (2016–2019); and (3) new isolated buildings placed in the middle of the block (2016–2019). The perimetral buildings display a few facade variations, such as narrow setbacks with overhangs, covered and non-covered openings, and a variety of uses and facade types. There are also a variety of streets and sidewalk widths and components around the block, ranging from a main road with bus stops to a pedestrian commercial street, with an outside restaurant sitting area.
The application of the morphology indicators to our base case block showed that the urban design strategy adopted ranked high in our analysis. All the morphology indicators either met the minimum requirements or exceeded expectations, as shown in Table 2.
The exceptional performance is particularly evident in the Destination Accessibility category, where the block achieved extraordinary results that directly embody OMA’s [51] concept of creating “a seamless experience between the building and its surroundings.” Furthermore, this performance is crucial for its function as a pedestrian and commercial axis. Despite its large area of 24,069 m2 (BA), which classifies it as a block that “requires internal connectivity,” the design effectively overcomes this challenge. The block permeability indicator reached a Connection Index of 2.5, which indicates that the connection points are numerous and well distributed. This is reinforced by the Block Perimeter Access Interval (BPAI = 1.47), showing that the distance between entrances is 47% better than the minimum recommended threshold. The Morphological Connectivity Index achieved a perfect score of 1.0, meaning the existing paths align with the optimal routes suggested by the building layout itself. This confirms a highly intentional design that maximizes pedestrian flow and route choice. These results quantitatively validate the pedestrian block crossing permeability strategy that underpins the entire urban design approach.
The hybrid typological strategy implemented in the district is validated by the indicators in the Design category, which show that the block successfully creates a cohesive yet diverse urban environment. High scores for Interface between built and open space (BEC = 0.84) and Building positioning definition (BMC = 0.94) both exceed expectations. The design achieves this using perimeter buildings to form a strong, continuous “urban wall,” which ensures spatial clarity, while the strategic placement of buildings within the core adds functional complexity. This interior is not empty, as the Block Open Space (BOS = 1) is actively used for circulation and housing. The overall diversity is further enhanced by excellent scores in Building size diversity (BSD = 0.823) and the Building Evenness Index (BEI = 0.83), which confirm a rich mix of building footprints and volumes that avoids both monotony and chaos. This phased approach to development, evolving from the initial “figure-ground” of pre-existing buildings to monumental perimeter blocks with internal courtyards, and finally to a diversified urban fabric signifying a “return to the urban ordinary,” is precisely what forges the “creative disorder framed under a structural skeleton” envisioned by OMA [51] for its LabCity concept.
The Density indicators reveal an adequate performance, reflecting an intentional balance struck between the urban compactness required for innovation ecosystems and the maintenance of a human scale. Specifically, the block meets the requirements for Spatial Congestion (SCD Score = 0.83), Floor Area Ratio (FAR Score = 2.3), and Population Density (PD Score = 0.9). These results point to a density level sufficient to sustain urban vitality and public transportation while avoiding excessive congestion. Furthermore, the Average Building Height (Score = 0.98) and a maximum height of 6 floors firmly establish the block within the “compact mid-rise” category—a typology widely recognized for fostering human scale and urban quality.
These findings offer corroborate that the morphological strategy in Paris-Saclay effectively integrates typological diversity while maintaining spatial coherence, fosters permeability without sacrificing urban definition, and strikes a balance between density and place quality. With all 21 analyzed indicators either meeting requirements or exceeding expectations (100% success rate, with 38% exceeding expectations), the results demonstrate how specific morphological choices can quantitatively enhance urban vitality, translating traditionally subjective concepts into objective metrics for planning knowledge territories. The integration of three distinct building typologies—the pre-existing isolated building, the perimeter blocks, and new isolated buildings in the core—is key to this success, creating multiple opportunities for access, morphological diversity, programmatic flexibility, and spatial vitality across different scales. Even for a large-scale block that would typically pose permeability challenges, the design overcomes these limitations through specific morphological strategies and the shaping of intermediate spaces that act as public space extensions. Ultimately, these strategies yield exceptional connectivity and permeability performance, proving that block size can be effectively offset by intentional morphological design.

5. Discussion

From a methodological perspective, the assessment of the Joliot Curie block in the Moulon district in Paris-Saclay confirms the practical viability of implementing these morphological indicators in computational design environments. The analysis revealed a clear division in automation complexity: 15 of the 21 indicators (71%) were classified as “Easy” to automate in Grasshopper for Rhino 3D, relying solely on geometric input data that is directly extractable from digital geometric model (Figure 5). This group includes fundamental metrics like Block Dimensional Adequacy, Morphological Connectivity Index, Building Average Height, and Population Density, which form the backbone of the morphological evaluation. Six indicators were rated as “Difficult”: Block Crossing Permeability; Block Perimeter Access Interval; Block Edge Continuity; Building Positioning Definition; Ground floor permeability, and Active facades.
The application of the 21 developed morphological indicators to the Joliot Curie block reveals a strong convergence between the quantitative results and the empirically observed urban vitality. The field analysis, conducted during the campus’s peak activity period, confirmed that this specific block functions as the main pedestrian and commercial axis of the area, validating the success of the urban design strategy in creating a dynamic social hub.
The commercial and pedestrian street to the south of the block fosters a sense of neighborhood life, where convenience and routine nurture vitality. Operating at a smaller scale, with full priority given to pedestrians and a focus on active facades, it concentrates essential daily commerce and services, such as bakeries, pharmacies, bars, and restaurants, alongside family and student housing. As a result, the district is not merely a place of work and study with daytime activity peaks but a living neighborhood with its own life at night and on weekends.
Furthermore, its strategic location also contributes to its success, as it connects different territories and flows within Moulon. As observed in the field, it intercepts the natural path of students between the universities and the Parc de Moulon. At the same time, it serves as an attractor between the flow of workers from the economic axis to the north and the residential, student, and family areas to the south. Thus, during peak hours, such as lunch or the end of the workday, the street comes to life. The flow of people mixes with daily activities—going to the market, having lunch, grabbing a coffee—transforming routine tasks into opportunities for social interaction.
Similarly, it is observed that the planned diversity is not limited to the neighborhood scale but also extends to the micro-scale of the block. The axis is situated precisely between two porous blocks, one for family housing and the other for student housing. This design choice encourages interaction between two distinct lifestyles: on one side, children arriving from school and playing in the internal courtyards; on the other, students socializing in the open courtyards of their residences. Both groups, with their own rhythms and needs, converge on the same commercial axis, creating a rich and heterogeneous social dynamic that sustains the area’s vitality. This demonstrates the district’s ability to combine the daily activities of residents, workers, and students, promoting an integrated urban ecosystem.
Moreover, the composition of the blocks also allows for the overlap of different housing typologies within the same block. The offerings include both private and social student housing, as well as family housing, with a portion allocated to the social segment. This planning demonstrates a commitment to social inclusion, resulting in a diversity that encompasses not only different lifestyles and age groups but also various socioeconomic profiles, which further enriches the urban vitality of the axis. Finally, the dialogue between spaces is reinforced by the design of the facades, as the entire perimeter of the blocks was designed with visual and physical permeability. Where there are no commerce or services, the design employs transparent or porous facades. This allows for mutual visibility between the internal courtyards and the street, connecting the private life of the buildings to the urban movement and reinforcing the sense of security and community. The methodological contribution of this research is to transform urban vitality—a fundamentally subjective and experiential quality—into objective and quantifiable metrics by gathering a number of parameters that have been associated to vitality and preparing the ground to its automation and application by architects and planners in the early design phases. Traditional approaches to assessing urban vitality rely heavily on qualitative observations, surveys, or activity mapping, which, though valuable, are difficult to standardize, replicate, or integrate into design processes.
However, this transformation from the subjective to the objective inevitably involves certain reductions and simplifications. The block crossing permeability indicator, while representing a significant advance in objective quantification, exemplifies both the potential and the limitations of automated urban analysis. As currently formulated, the indicator does not fully account for the spatial distribution of access points along the block faces. A block face with two poorly positioned connections near its edges might be less effective for pedestrian movement than one with a single, centrally located access point, particularly on large-scale blocks where the length of internal segments becomes critical. Following the Victoria Walks recommendation that optimal walking segments should range between 60 and 120 m, future refinements could incorporate a Segmentation Factor that assesses not only the number and distribution of access points but also their effectiveness in creating appropriately scaled pedestrian segments.
The classification of indicators into two levels of automation—Easy (15 indicators) and Difficult (6 indicators)—reveals both the potential and the current limitations of automated urban analysis. While 71% of the indicators can be fully automated, the remaining 29% require more advanced algorithmic thinking to interpret the particular conditions of each context or can be implemented as semi-automated procedures.
This manual bottleneck, however, points to a promising future where emerging technologies can be integrated. Tools like Fulcrum, for example, allow for the collection of structured, georeferenced field data, while the use of Artificial Intelligence to analyze Google Street View imagery could automate the large-scale extraction of data on facades, uses, and openings, overcoming current limitations. This suggests that a hybrid approach, combining automated geometric analysis with targeted manual data collection, is the most practical path forward at present, with clear potential for greater automation in the future.
Finally, it is important to state that the aim of this study was not to prove the success of the Moulon district project but to simply test it for the applicability of vitality-related morphology assessment algorithms. As stated above, vitality and place quality are related to a large number of parameters, many of which lie outside the scope of the designer’s influence. While the Joliot Curie block serves as a powerful proof-of-concept, the generalizability of these benchmarks requires further validation. The application of this methodology to additional blocks within the Moulon district and to other knowledge territories will be essential for calibrating the benchmarks and testing the robustness of the assessment algorithms across different contexts. Each new case study will likely reveal specific adaptations needed for varied urban conditions, building typologies, and cultural contexts. This iterative process of application and refinement is crucial for developing truly universal indicators that simultaneously maintain sensitivity to local conditions.

6. Conclusions

Positive aspects of cities related to urban morphology can be seen as the result of spontaneous emergence, or of a fortunate transformation process taking shape along decades—or even centuries—of history. Sometimes, these qualities are even considered hard to name. Alexander [36], for example, coined the term “Quality Without a Name” to refer to some of those indescribable qualities. Urban vitality is one of them. Similarly, Cozzolino [37] (p. 43) states that “a clear bridge connecting the theory of spontaneous order and the issue of beauty in and for cities has not yet been developed”.
In this paper, we introduced the idea of territories where knowledge is present ubiquitously, and not just contained in an enclosed area, such as a university campus, a Science and Technology Park, or an innovation district. Next, we discussed how important urban vitality and place quality—typically seen as subjective aspects of the urban environment—are for attracting and retaining talents in these territories, as well as promoting serendipity and innovation. We then looked at the Moulon district in Paris-Saclay as a case study in which the urban morphology was specifically designed to fill in territorial gaps in a spread-out KT, aiming to synthetically create the optimal conditions for knowledge exchange. Based on indicators found in the literature, we extracted objective values from the existing built environment, describing each procedure to geometrically calculate it as a base for future automation. The results were compared to and considered consistent with field observations.
With this work, we expect to contribute to a more comprehensive and automated procedure for evaluating urban vitality at the design stage, which can be a useful tool for assessing possible scenarios in the development or urban KT projects. As future developments, we plan to apply our assessment method to other KTs. Moreover, other aspects of a successful KT will also need to be taken into account, measured, assessed, systematized, and automated, such as mobility infrastructure, green areas, and other amenities.

Supplementary Materials

The following supporting information can be downloaded at: https://www.mdpi.com/article/10.3390/buildings15183393/s1. References [56,57,58,59,60] are cited in the supplementary materials.

Author Contributions

Conceptualization, G.C.; methodology, M.N. and G.C.; software, A.E.; validation, A.E.; formal analysis, A.E.; investigation, G.C., M.N. and A.E.; resources, G.C., B.T., M.N. and A.E.; data curation, G.C., B.T. and M.N.; writing—original draft preparation, G.C., M.N. and A.E.; writing—review and editing, G.C., B.T. and M.N.; visualization, A.E.; supervision, G.C., B.T. and M.N.; project administration, G.C. and B.T.; funding acquisition, G.C. All authors have read and agreed to the published version of the manuscript.

Funding

This research was funded by Sao Paulo Research Foundation (FAPESP), grants number 21/11962-4, 23/00882-5, 24/03762-3; National Council for Scientific and Technological Development, grant number 304370/2020-7; and Dean’s Office for Research—Universidade Estadual de Campinas.

Data Availability Statement

The data presented in this study are available in the Supplementary Materials.

Conflicts of Interest

The authors declare no conflicts of interest. The funders had no role in the design of the study; in the collection, analyses, or interpretation of data; in the writing of the manuscript; or in the decision to publish the results.

Abbreviations

The following abbreviations are used in this manuscript:
KTKnowledge Territories
GISGeographic Information Systems
CADComputer-Aided Design
EPAPSParis-Saclay’s Établissement Publique d’Amenagement
OMAOffice for Metropolitan Architecture
POPSPrivately owned public spaces

References

  1. Florida, R. The Rise of the Creative Class: Revisited; Basic Books: New York, NY, USA, 2012. [Google Scholar]
  2. Annerstedt, J. Science Parks and High-Tech Clustering. In International Handbook on Industrial Policy; Bianchi, P., Labory, S., Eds.; Edward Elgar Publishing: Cheltenham, UK, 2006; pp. 279–297. [Google Scholar]
  3. Gyurkovics, J.; Lukovics, M. (Eds.) Generations of Science Parks in the Light of Responsible Innovation. In Responsible Innovation; University of Szeged, Faculty of Economics and Business Administration: Szeged, Hungary, 2014; pp. 193–208. [Google Scholar]
  4. Dong, L.; Zhang, L. Spatial Coupling Coordination Evaluation of Mixed Land Use and Urban Vitality in Major Cities in China. Int. J. Environ. Res. Public Health 2022, 19, 15586. [Google Scholar] [CrossRef] [PubMed]
  5. Pan, J.; Zhu, X.; Zhang, X. Urban Vitality Measurement and Influence Mechanism Detection in China. Int. J. Environ. Res. Public Health 2022, 20, 46. [Google Scholar] [CrossRef]
  6. Zhang, P.; Zhang, T.; Fukuda, H.; Ma, M. Evidence of Multi-Source Data Fusion on the Relationship between the Specific Urban Built Environment and Urban Vitality in Shenzhen. Sustainability 2023, 15, 6869. [Google Scholar] [CrossRef]
  7. Yigitcanlar, T.; Pancholi, S.; Esmaeilpoorarabi, N.; Adu-McVie, R. Innovation District Planning: Concept, Framework, Practice; CRC Press: Boca Raton, FL, USA, 2024. [Google Scholar] [CrossRef]
  8. Esmaeilpoorarabi, N.; Yigitcanlar, T.; Guaralda, M. Place Quality in Innovation Clusters: An Empirical Analysis of Global Best Practices from Singapore, Helsinki, New York, and Sydney. Cities 2018, 74, 156–168. [Google Scholar] [CrossRef]
  9. Pancholi, S.; Yigitcanlar, T.; Guaralda, M. Place Making Facilitators of Knowledge and Innovation Spaces: Insights from European Best Practices. Int. J. Knowl. -Based Dev. 2015, 6, 215. [Google Scholar] [CrossRef]
  10. Noronha, M.; Canuto da Silva, R.; Celani, G. Placemaking in the Design of Knowledge-Based Urban Developments. Joelho Rev. Cult. Arquit. 2023, 14, 91–112. [Google Scholar] [CrossRef]
  11. Koe, D.M.d. Urban Vitality Through a Mix of Land-Uses and Functions: An Addition to Citymaker. Master’s Thesis, Wageningen University, Wageningen, The Netherlands, 2013. Available online: https://library.wur.nl/WebQuery/titel/2036780 (accessed on 30 July 2025).
  12. Jácome, R.d.C.G. Vitalidade Urbana: Diretrizes Para Induzir Padrões de Vida Urbana No Hub Internacional Para o Desenvolvimento Sustentável (HIDS). Master’s Thesis, Universidade Estadual de Campinas, Campinas, SP, Brazil, 2021. Available online: https://hdl.handle.net/20.500.12733/5721 (accessed on 30 July 2025).
  13. Carayannis, E.G.; Barth, T.D.; Campbell, D.F.J. The Quintuple Helix Innovation Model: Global Warming as a Challenge and Driver for Innovation. J. Innov. Entrep. 2012, 1, 2. [Google Scholar] [CrossRef]
  14. Eloah, A.; Cruz, S.R.S.; Sousa, M.N.P.d.O.e.; Celani, M.G.C. Analysis of Knowledge Territories Based on the Triple Bottom Line. PARC Pesqui. Arquitetura Construção 2025, 16, e025017. [Google Scholar] [CrossRef]
  15. Kropf, K. Aspects of Urban Form. Urban Morphol. 2009, 13, 105–120. [Google Scholar] [CrossRef]
  16. Moudon, A.V. Urban Morphology as an Emerging Interdisciplinary Field. Urban Morphol. 1997, 1, 3–10. [Google Scholar] [CrossRef]
  17. Lin, J.; Zhuang, Y.; Zhao, Y.; Li, H.; He, X.; Lu, S. Measuring the Non-Linear Relationship between Three-Dimensional Built Environment and Urban Vitality Based on a Random Forest Model. Int. J. Environ. Res. Public Health 2022, 20, 734. [Google Scholar] [CrossRef]
  18. Lee, S.; Kang, J.E. Impact of Particulate Matter and Urban Spatial Characteristics on Urban Vitality Using Spatiotemporal Big Data. Cities 2022, 131, 104030. [Google Scholar] [CrossRef]
  19. Zhao, K.; Guo, J.; Ma, Z.; Wu, W. Exploring the Spatiotemporal Heterogeneity and Stationarity in the Relationship between Street Vitality and Built Environment. Sage Open 2023, 13. [Google Scholar] [CrossRef]
  20. Zhang, R. Evaluation of Emotional Attachment Characteristics of Small-Scale Urban Vitality Space Based on Technique for Order Preference by Similarity to Ideal Solution, Integrating Entropy Weight Method and Grey Relation Analysis. Land 2023, 12, 613. [Google Scholar] [CrossRef]
  21. Li, X.; Li, Y.; Jia, T.; Zhou, L.; Hijazi, I.H. The Six Dimensions of Built Environment on Urban Vitality: Fusion Evidence from Multi-Source Data. Cities 2022, 121, 103482. [Google Scholar] [CrossRef]
  22. Jiang, Y.; Zhang, Y.; Liu, Y.; Huang, Z. A Review of Urban Vitality Research in the Chinese World. Trans. Urban Data Sci. Technol. 2023, 2, 81–99. [Google Scholar] [CrossRef]
  23. Shi, J.; Miao, W.; Si, H.; Liu, T. Urban Vitality Evaluation and Spatial Correlation Research: A Case Study from Shanghai, China. Land 2021, 10, 1195. [Google Scholar] [CrossRef]
  24. Yang, Y.; Wang, H.; Qin, S.; Li, X.; Zhu, Y.; Wang, Y. Analysis of Urban Vitality in Nanjing Based on a Plot Boundary-Based Neural Network Weighted Regression Model. ISPRS Int. J. Geoinf. 2022, 11, 624. [Google Scholar] [CrossRef]
  25. Shi, Y.; Zheng, J.; Pei, X. Measurement Method and Influencing Mechanism of Urban Subdistrict Vitality in Shanghai Based on Multisource Data. Remote Sens. 2023, 15, 932. [Google Scholar] [CrossRef]
  26. Xu, G.; Su, J.; Xia, C.; Li, X.; Xiao, R. Spatial Mismatches between Nighttime Light Intensity and Building Morphology in Shanghai, China. Sustain. Cities Soc. 2022, 81, 103851. [Google Scholar] [CrossRef]
  27. Kashef, M. The Building Blocks of Walkability: Pedestrian Activity in Abu Dhabi City Center. Front. Archit. Res. 2022, 11, 203–223. [Google Scholar] [CrossRef]
  28. Liu, B.; Yang, Z.; Xue, B.; Zhao, D.; Sun, X.; Wang, W. Formalizing an Integrated Metric System Measuring Performance of Urban Sustainability: Evidence from China. Sustain. Cities Soc. 2022, 79, 103702. [Google Scholar] [CrossRef]
  29. Chen, Z.; Dong, B.; Pei, Q.; Zhang, Z. The Impacts of Urban Vitality and Urban Density on Innovation: Evidence from China’s Greater Bay Area. Habitat. Int. 2022, 119, 102490. [Google Scholar] [CrossRef]
  30. Cervero, R.; Kockelman, K. Travel Demand and the 3Ds: Density, Diversity, and Design. Transp. Res. Part D Transp. Environ. 1997, 2, 199–219. [Google Scholar] [CrossRef]
  31. Wu, W.; Ma, Z.; Guo, J.; Niu, X.; Zhao, K. Evaluating the Effects of Built Environment on Street Vitality at the City Level: An Empirical Research Based on Spatial Panel Durbin Model. Int. J. Environ. Res. Public Health 2022, 19, 1664. [Google Scholar] [CrossRef]
  32. Lv, G.; Zheng, S.; Hu, W. Exploring the Relationship between the Built Environment and Block Vitality Based on Multi-Source Big Data: An Analysis in Shenzhen, China. Geomat. Nat. Hazards Risk 2022, 13, 1593–1613. [Google Scholar] [CrossRef]
  33. Jacobs, J. The Death and Life of Great American Cities, 1st ed.; Vintage Books: New York, NY, USA, 1961. [Google Scholar]
  34. Ewing, R.; Cervero, R. Travel and the Built Environment. J. Am. Plan. Assoc. 2010, 76, 265–294. [Google Scholar] [CrossRef]
  35. Burke, J.; Gras, R. The Atlas of Innovation Districts. 2019. Available online: https://www.aretian.com/atlas (accessed on 30 July 2025).
  36. Alexander, C. A Pattern Language: Towns, Buildings, Construction; Oxford University Press: New York, NY, USA, 1977. [Google Scholar]
  37. Cozzolino, S. On the Spontaneous Beauty of Cities: Neither Design nor Chaos. Urban Des. Int. 2022, 27, 43–52. [Google Scholar] [CrossRef]
  38. Kim, I. An Urban Morphology Analysis of Urban Innovation Districts in Canada. Master’s Thesis, University of Waterloo, Waterloo, ON, Canada, 2020. [Google Scholar]
  39. Adu-McVie, R.; Yigitcanlar, T.; Xia, B.; Erol, I. Innovation District Typology Classification via Performance Framework: Insights from Sydney, Melbourne, and Brisbane. Buildings 2022, 12, 1398. [Google Scholar] [CrossRef]
  40. Victoria Walks. Urban Design for Walking. Available online: https://www.victoriawalks.org.au/urban_design/ (accessed on 30 July 2025).
  41. Chen, F. Urban Morphology and Citizens’ Life. In Encyclopedia of Quality of Life and Well-Being Research; Springer: Dordrecht, The Netherlands, 2014; pp. 6850–6855. [Google Scholar] [CrossRef]
  42. Berghauser-Pont, M.; Haupt, P. The Spacemate: Density and the Typomorphology of the Urban Fabric. In Ph.D. Research: Urbanism Laboratory for Cities and Regions: Progress of Research Issues in Urbanism 2007; IOS Press: Amsterdam, The Netherlands, 2007. [Google Scholar]
  43. Jiang, Y.; Huang, Z.; Zhou, X.; Chen, X. Evaluating the Impact of Urban Morphology on Urban Vitality: An Exploratory Study Using Big Geo-Data. Int. J. Digit. Earth 2024, 17, 2327571. [Google Scholar] [CrossRef]
  44. Batty, M. Cities and Complexity: Understanding Cities with Cellular Automata, Agent-Based Models, and Fractals; The MIT Press: Cambridge, MA, USA, 2007. [Google Scholar]
  45. Lukka, K. The Constructive Research Approach. In Case Study Research in Logistics; Ojala, L., Hilmola, O.P., Eds.; Publications of the Turku School of Economics and Business Administration: Turku, Finland, 2003; pp. 83–101. [Google Scholar]
  46. Veltz, P.; Roclarion, P.-L. Saclay, Genèse et Défis d’un Grand Projet; Parenthèses Editions: Marseille, France, 2020. [Google Scholar]
  47. Germe&JAM. Orsay/Gif-sur-Yvette/Saint-Aubin—Quartier universitaire du Moulon, Plateau de Saclay. Available online: https://www.germeetjam.com/saclay-moulon-4185 (accessed on 30 July 2025).
  48. Michel Desvigne Paysagiste. Paris-Saclay, Campus Urbain. Available online: https://micheldesvignepaysagiste.com/en/paris-saclay-campus-urbain (accessed on 30 July 2025).
  49. OMA. Quartier Joliot Curie Masterplan. Available online: https://www.oma.com/projects/quartier-joliot-curie-masterplan (accessed on 30 July 2025).
  50. Clément Blanchet Architecture. Joliot-Curie District. Available online: https://www.clementblanchet.com/joliot-curie-district (accessed on 30 July 2025).
  51. OMA. OMA Wins Competition for Ecole Centrale Engineering School in Saclay, France. Available online: https://www.oma.com/news/oma-wins-competition-for-ecole-centrale-engineering-school-in-saclay-france (accessed on 30 July 2025).
  52. Bollinger+Grohmann. Centrale-Supélec. Available online: https://www.bollinger-grohmann.com/en.projects.centrale-supelec.html (accessed on 30 July 2025).
  53. Teixeira, B.K.; Silva, A.D.S. FACHADAS ATIVAS E SUA INFLUÊNCIA NA QUALIDADE DE VIDA URBANA. Cad. Arquitetura Urban. 2018, 25, 206. [Google Scholar] [CrossRef]
  54. Stewart, I.D.; Oke, T.R. Local Climate Zones for Urban Temperature Studies. Bull. Am. Meteorol. Soc. 2012, 93, 1879–1900. [Google Scholar] [CrossRef]
  55. Montana, F.; Mueller, N.; Barboza, E.P.; Khomenko, S.; Iungman, T.; Cirach, M.; Daher, C.; Chakraborty, T.; de Hoogh, K.; Battiston, A.; et al. Building a Healthy Urban Design Index (HUDI): How to Promote Health and Sustainability in European Cities. Lancet Planet. Health 2025, 9, e511–e526. [Google Scholar] [CrossRef]
  56. Netto, V.M.; Vargas, J.C.; de Saboya, R.T. (Buscando) os efeitos sociais da morfologia arquitetônica. Urbe Revista Brasileira de Gestão Urbana 2012, 4, 261–282. [Google Scholar] [CrossRef]
  57. Lima, F.; Brown, N.; Duarte, J. Urban Design Optimization: Generative Approaches towards Urban Fabrics with Improved Transit Accessibility and Walkability. In Proceedings of the 26th International Conference of the Association for Computer-Aided Architectural Design Research in Asia (CAADRIA), Hong Kong, 29 March–1 April 2021; Volume 2, pp. 719–728. [Google Scholar] [CrossRef]
  58. Demuzere, M.; Betchel, B.; Middel, A.; Mills, G. Mapping Europe into local climate zones. PLoS ONE 2019, 14, e0214474. [Google Scholar] [CrossRef] [PubMed]
  59. OECD. Handbook on Constructing Composite Indicators: Methodology and User Guide; OECD Publishing: Paris, France, 2008. [Google Scholar]
  60. Rezaei, J. Piecewise linear value functions for multi-criteria decision-making. Expert Syst. Appl. 2018, 98, 43–56. [Google Scholar] [CrossRef]
Figure 1. Steps in the methodology of this study. Source: authors, 2025.
Figure 1. Steps in the methodology of this study. Source: authors, 2025.
Buildings 15 03393 g001
Figure 2. Joliot Curie area in the Moulon district in Paris-Saclay. Blocks 1–6 were analyzed. The morphological analysis of Block 6 is presented in Section 4.5. Source: authors, 2025.
Figure 2. Joliot Curie area in the Moulon district in Paris-Saclay. Blocks 1–6 were analyzed. The morphological analysis of Block 6 is presented in Section 4.5. Source: authors, 2025.
Buildings 15 03393 g002
Figure 3. (Upper left) The Paris-Saclay Urban Campus, including the three districts ( 1-Moulon, 2-Corbeville and 3-École Polytechnique) and its location relative to Paris. (Lower right) The Joliot-Curie area, in the Moulon district. Source: authors, 2025.
Figure 3. (Upper left) The Paris-Saclay Urban Campus, including the three districts ( 1-Moulon, 2-Corbeville and 3-École Polytechnique) and its location relative to Paris. (Lower right) The Joliot-Curie area, in the Moulon district. Source: authors, 2025.
Buildings 15 03393 g003
Figure 4. The three development phases of the Moulon district: figure-ground (in black and green), perimeter blocks (in pink), and diversified blocks (in red and pale yellow). Source: authors, 2025, adapted from Germe&JAM [47].
Figure 4. The three development phases of the Moulon district: figure-ground (in black and green), perimeter blocks (in pink), and diversified blocks (in red and pale yellow). Source: authors, 2025, adapted from Germe&JAM [47].
Buildings 15 03393 g004
Figure 5. Extracting information from the detailed geometric model. Source: authors, 2025.
Figure 5. Extracting information from the detailed geometric model. Source: authors, 2025.
Buildings 15 03393 g005
Table 1. Baseline benchmarks used for deriving other benchmarks. Source: authors, 2025.
Table 1. Baseline benchmarks used for deriving other benchmarks. Source: authors, 2025.
IndicatorReference Parameter Block BenchmarksOptimalMinimumMaximumReferences
Building Coverage Ratio (BCR)Percentage (%) of the lot area occupied by the horizontal projection of buildings. For local climate zones of ‘Compact Midrise’ type, this benchmark considers the balance between adequate urban density and soil permeability for ventilation and urban drainage.40% (min.);
70% (max.)
55%40%70%[53]
Building heightAverage height of buildings in medium-density zones with compact mid-rise buildings. Defines buildings of approximately 3–8 floors, providing adequate density without compromising urban quality and natural ventilation.10 m (min.);
25 m (max.)
15–18 m10 m25 m[53]
Number of floorsIdeal number of floors to promote urban vitality and quality of life. Buildings with 5–6 floors offer the best balance between population density, urban vitality and human scale, maintaining visual connection with public space.5–6 floors (ideal)5–6 floors3 floors8 floors[54]
Block facesOptimal dimensions for urban blocks that promote walkability. Blocks with 120–180 m are ideal, allowing walks of approximately 2–3 min between intersections, maintaining urban interest and facilitating pedestrian navigation.axis 1: 60 m–120 m (min.; max.); axis 2: 120 m–240 m (min.; max.)120 m;180 m60 m;120 m120 m;240 m[40]
PerimeterTotal perimeter of the block that directly influences walkability. The 600 m benchmark represents approximately 1.5–2 min of walking to go around a block, considered ideal for maintaining urban interest and facilitating spatial orientation.600 m (excellent)600 m360 m720 m[40]
Population densityMinimum density necessary to sustain efficient public transport and urban vitality. Establishes 400 inhab./ha as benchmark for innovation districts and transit-oriented development (TOD) areas, ensuring critical mass for activation of local commerce and services.≥400 inhab./ha (excellent); 250–300 inhab./ha (min.)400 inhab./ha250 inhab./ha-Based on [40]–adapted
Block Classification by AreaBlock classification system based on total area for urban morphological analysis. Allows differentiated analysis of urban patterns and their implications for vitality and urban functionality.Small: <10,000 m2; Medium: 10,000–20,000 m2; Large: ≥20,000 m2---[38]
Number of accesses per facadeNumber of entrances and accesses per linear meter of ground floor facade. At least 8 accesses per 100 m linear are necessary to maintain urban vitality, ensuring visual and functional permeability between public and private space.8 accesses/100 m (min.); Ideal ≥ 10 accesses/100 m≥10 accesses/100 m8 accesses/100 m-[38]
Active facadePercent (%) of ground floor facade occupied by uses that generate activity and interaction with public space. Includes commerce, services, cafes and other uses that promote urban vitality and safety through natural surveillance.60% (min.);
90% (ideal); ≥90% (optimal)
≥90%60%-[53]
Building Footprint DistributionOptimal proportion of buildings by size category to maximize urban diversity. The ideal distribution includes 55% small buildings, 23% medium and 22% large, based on qualitative analyses, promoting diversity of use, economic accessibility and urban vitality.Small: <500 m2 (55%); Medium: 501–1000 m2 (23%); Large: >1000 m2 (22%)---[53]
Visual permeability of facade% of ground floor facade composed of transparent elements (glass, openings) that allow visual connection between interior and exterior. Promotes urban vitality, safety through natural surveillance and quality of pedestrian experience.50% (min.);
90% (ideal); ≥90% (optimal)
≥90%50%-[38]
Floor Area Ratio (FAR)Calculated (building coverage ratio BCR × number of floors) 3.01.25.6[53,54]
Built area intensityCalculated (FAR × Block area) 30,000 m2/ha12,000 m2/ha56,000 m2/ha[40,53,54]
Block area limitsCalculated (axis dimensions) 15,000–25,000 m27200 m228,800 m2[40]
Residential density from FARCalculated from FAR (3.3 people/60 m2 + 15% circulation) 1400 inhab./ha560 inhab./ha2620 inhab./ha[53,54]
Table 2. Morphological analysis results for the base case. Source: authors, 2025.
Table 2. Morphological analysis results for the base case. Source: authors, 2025.
IndicatorReference Parameter (Benchmarks)Block 1 Result (Score)Classification
Block Crossing PermeabilityAdequate: 8.2EXCEEDS EXPECTATIONS
Morphological Connectivity Index (MCI)INADEQUATE: ≤0.5;
ADEQUATE: 0.5 < MCI < 0.8;
EXCEEDS EXPECTATIONS: ≥0.8
MCI = 1EXCEEDS EXPECTATIONS
Block Dimensional Adequacy (BDA)MEETS THE REQUIREMENTS = 1;
INADEQUATE = 0
BDA = 1MEETS THE REQUIREMENTS
Block Area (BA)INADEQUATE:
7200 m2 > BA > 28,800 m2
MEETS THE REQUIREMENTS:
7200 ≥ BA ≤ 28,800 m2
EXCEEDS EXPECTATIONS:
=21,600 m2 (600 perimeter)
24,069 m2 (Large: requires internal connectivity)MEETS THE REQUIREMENTS
Block Perimeter Access IntervalEXCEEDS EXPECTATIONS: BPAI > 1.0;
MEETS THE REQUIREMENTS: BPAI = 1.0;
INADEQUATE: BPAI < 1.0
BPAI = 1.47EXCEEDS EXPECTATIONS
Block Edge Continuity INADEQUATE: BECS ≤ 0.7;
ADEQUATE: 0.7 < BECS < 0.8;
EXCEEDS EXPECTATIONS: BECS ≥ 0.8
BECS = 0.84EXCEEDS EXPECTATIONS
Building positioning definitionINADEQUATE: BMC ≤ 0.70;
ADEQUATE: 0.70 < BMC < 0.80;
EXCEEDS EXPECTATIONS: BMC ≥ 0.80
BMC = 0.94EXCEEDS EXPECTATIONS
Block Perimeter Score (BPS)INADEQUATE: BP = 0
MEETS THE REQUIREMENTS:
0 < BP < 1
EXCEEDS REQUIREMENTS: BP = 1
BPS = 0.66MEETS THE REQUIREMENTS
Block open space (BOS)INADEQUATE: <0.50;
MEETS REQUIREMENTS: ≥0.7;
EXCEEDS EXPECTATIONS: 1
BOS = 1EXCEEDS EXPECTATIONS
Building size diversity (BSD)INADEQUATE: <0.50;
MEETS REQUIREMENTS: 0.50–0.79;
EXCEEDS EXPECTATIONS: ≥0.80
BSD = 0.823EXCEEDS EXPECTATIONS
Building Evenness Index (BEI)INADEQUATE < 0.7
MEETS THE REQUIREMENTS: 0.7 ≤ QI < 0.8
EXCEEDS EXPECTATIONS: QI ≥ 0.80;
QI = 0.83EXCEEDS EXPECTATIONS
Building height diversityINADEQUATE: <0.79;
MEETS REQUIREMENTS: 0.79–0.95;
EXCEEDS EXPECTATIONS: 0.95–1.00
Score_SDBH = 0.75MEETS THE REQUIREMENTS
Spatial Compactness Rate (Richardson Index)INADEQUATE: RI < 0.65
MEETS REQUIREMENTS: 0.65 ≤ RI < 0.96
EXCEEDS EXPECTATIONS: RI ≥ 0.96
RI = 0.93MEETS REQUIREMENTS
Spatial congestion degree (SCD)INADEQUATE: < 0.56;
MEETS REQUIREMENTS: 0.56–0.89;
EXCEEDS EXPECTATIONS: ≥ 0.90
Score_SCD = 0.83MEETS REQUIREMENTS
Building Average HeightINADEQUATE: <0.8;
MEETS REQUIREMENTS: 0.8–1.0;
EXCEEDS EXPECTATIONS: =1.0
BAH = 0.98MEETS THE REQUIREMENTS
Building density (Floor Area Ratio)INADEQUATE: 2 < FAR > 4.2
MEETS REQUIREMENTS: 2–4.2;
EXCEEDS EXPECTATIONS: 0.90–1.00
FAR = 2.3MEETS REQUIREMENTS
Gross Population density inh./haINADEQUATE: <0.70;
MEETS REQUIREMENTS: 0.70–0.99;
EXCEEDS EXPECTATIONS: =1.0
PD = 0.9MEETS THE REQUIREMENTS
Net population density (NPD) inh./haINADEQUATE: <150;
MEETS THE REQUIREMENTS: 150–250 inhab./ha
NPD = 154 inhab./haMEETS THE REQUIREMENTS
Access densityINADEQUATE: <0.43;
MEETS REQUIREMENTS: 0.43–0.79;
EXCEEDS EXPECTATIONS: ≥0.8
AD = 0.449MEETS THE REQUIREMENTS
Ground floor permeability (GFP)INADEQUATE: <0.5;
MEETS REQUIREMENTS: 0.5–0.69;
EXCEEDS EXPECTATIONS: ≥0.7
Score_Block_GFP = 0.638MEETS THE REQUIREMENTS
Active facades (AF) %INADEQUATE: <0.7;
MEETS REQUIREMENTS: 0.7–0.89;
EXCEEDS EXPECTATIONS: ≥0.9
0.73MEETS THE REQUIREMENTS
Disclaimer/Publisher’s Note: The statements, opinions and data contained in all publications are solely those of the individual author(s) and contributor(s) and not of MDPI and/or the editor(s). MDPI and/or the editor(s) disclaim responsibility for any injury to people or property resulting from any ideas, methods, instructions or products referred to in the content.

Share and Cite

MDPI and ACS Style

Eloah, A.; Noronha, M.; Tuncer, B.; Celani, G. Achieving Urban Vitality in Knowledge Territories: Morphology Assessment for the Early Design Stages. Buildings 2025, 15, 3393. https://doi.org/10.3390/buildings15183393

AMA Style

Eloah A, Noronha M, Tuncer B, Celani G. Achieving Urban Vitality in Knowledge Territories: Morphology Assessment for the Early Design Stages. Buildings. 2025; 15(18):3393. https://doi.org/10.3390/buildings15183393

Chicago/Turabian Style

Eloah, Adriane, Marcela Noronha, Bige Tuncer, and Gabriela Celani. 2025. "Achieving Urban Vitality in Knowledge Territories: Morphology Assessment for the Early Design Stages" Buildings 15, no. 18: 3393. https://doi.org/10.3390/buildings15183393

APA Style

Eloah, A., Noronha, M., Tuncer, B., & Celani, G. (2025). Achieving Urban Vitality in Knowledge Territories: Morphology Assessment for the Early Design Stages. Buildings, 15(18), 3393. https://doi.org/10.3390/buildings15183393

Note that from the first issue of 2016, this journal uses article numbers instead of page numbers. See further details here.

Article Metrics

Back to TopTop