Thermal Comfort in Social Housing in Ecuador: Do Free-Running Buildings Work in Current and Future Climates?
Abstract
1. Introduction
- RQ1: How do two identical homes perform thermally across Ecuador’s diverse climate zones?
- RQ2: Can consistent behavioral patterns be identified across different climates?
- RQ3: How do performances vary under three climate change scenarios?
2. Methodology
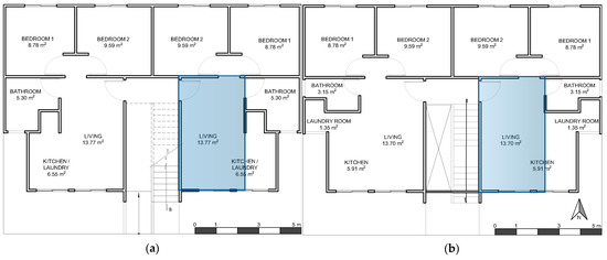
2.1. Case Study
- Walls: 10 cm reinforced concrete with plaster and paint; U-value: 2.695 W/m2·K;
- Floor: 10 cm concrete with ceramic finish; U-value: 3.15 W/m2·K;
- Intermediate slab: 15 cm concrete with ceramic finish;
- Roof: Metal frame with 5 mm polyurethane panel; U-value: 3.13 W/m2·K;
- Windows: 4 mm single-glazed glass in aluminum frames; U-value: 5.70 W/m2·K;
- Doors: Interior wood, exterior metal.
2.2. Parametric Thermal Simulations
2.3. Adaptive Thermal Comfort Model from ASHRAE 55-2020
2.4. Thermal Comfort Assessment
2.5. Climate Data
- Cfb: Quito. Oceanic climate, characterized by cool summers and cold or mild winters;
- Af: Nueva Loja. Humid tropical or jungle climate, with high temperatures and rain throughout the year;
- Aw: Esmeraldas. Tropical savanna, with warm temperatures year-round and a defined dry season;
- Am: Santo Domingo. Tropical monsoon climate, featuring warm temperatures with alternating dry and wet seasons;
- BWh: Santa Elena. Hot desert climate, with mild winters and significant diurnal temperature variation;
- BSh: Portoviejo. Semi-arid hot climate, with mild winters and warm summers;
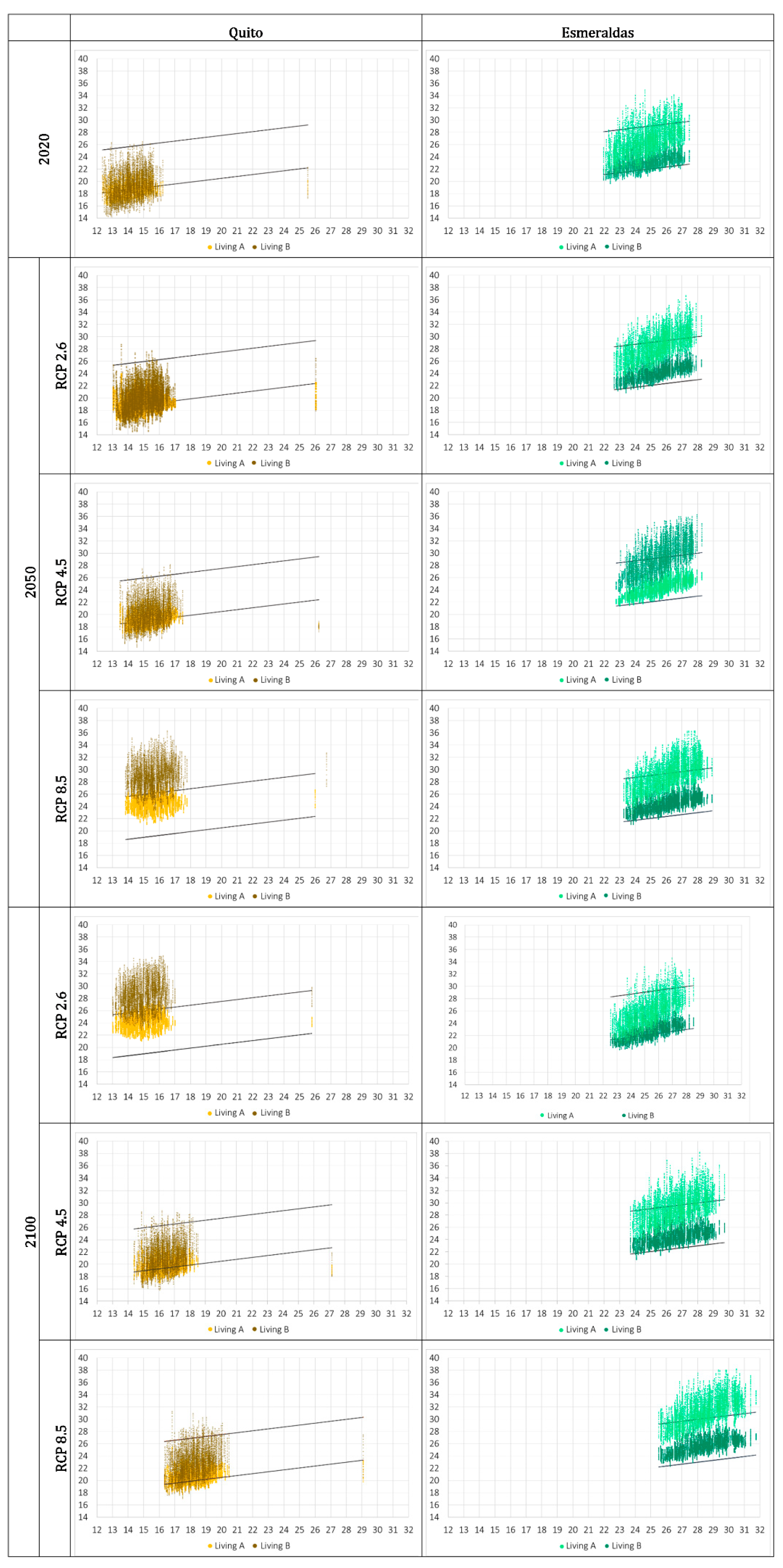
3. Results and Discussion
| Living A | ||||||
|---|---|---|---|---|---|---|
| Scenario | Portoviejo | Quito | Santa Elena | Esmeraldas | Nueva Loja | Santo Domingo |
| 2020 | 98.85% | 44.21% | 99.33% | 89.51% | 95.96% | 90.66% |
| 2050 RCP 2.6 | 99.12% | 52.69% | 95.43% | 99.34% | 99.59% | 100.00% |
| 2050 RCP 4.5 | 99.82% | 54.04% | 99.70% | 99.82% | 98.20% | 100.00% |
| 2050 RCP 8.5 | 97.65% | 94.11% | 99.91% | 99.62% | 98.87% | 94.63% |
| 2100 RCP 2.6 | 98.95% | 93.53% | 99.97% | 70.35% | 97.16% | 93.94% |
| 2100 RCP 4.5 | 99.74% | 62.81% | 99.95% | 99.25% | 99.52% | 97.05% |
| 2100 RCP 8.5 | 100.00% | 75.98% | 100.00% | 99.97% | 100.00% | 99.34% |
| Living B | ||||||
| Scenario | Portoviejo | Quito | Santa Elena | Esmeraldas | Nueva Loja | Santo Domingo |
| 2020 | 69.78% | 58.44% | 60.96% | 83.04% | 78.90% | 88.24% |
| 2050 RCP 2.6 | 66.23% | 67.57% | 71.56% | 60.53% | 60.84% | 44.58% |
| 2050 RCP 4.5 | 49.94% | 70.58% | 52.72% | 49.54% | 66.83% | 49.45% |
| 2050 RCP 8.5 | 69.98% | 10.15% | 49.32% | 56.70% | 26.11% | 82.42% |
| 2100 RCP 2.6 | 64.55% | 14.75% | 45.40% | 89.03% | 71.42% | 83.86% |
| 2100 RCP 4.5 | 57.10% | 78.73% | 44.03% | 57.31% | 54.36% | 79.50% |
| 2100 RCP 8.5 | 36.05% | 88.26% | 25.72% | 31.51% | 29.94% | 63.16% |
4. Conclusions and Future Work
RQ1: How do two identical homes perform thermally across Ecuador’s diverse climate zones?
RQ2: Can consistent behavioral patterns be identified across different climates?
RQ3: How do performances vary under three climate change scenarios?
- Integrating energy-efficient active systems to meet comfort demands in extreme scenarios;
- Expanding analyses to include diverse housing types, informal settlements, and rural configurations;
- Exploring the use of local materials and passive cooling strategies tailored to specific climatic and cultural contexts.
Author Contributions
Funding
Data Availability Statement
Conflicts of Interest
Abbreviations
| ASHRAE | American Society of Heating, Refrigerating and Air-Conditioning Engineers |
| CDDs | Cooling degree days |
| CDHs | Cooling degree hours |
| EPW | EnergyPlus weather file |
| HDDs | Heating degree days |
| HDHs | Heating degree hours |
| RH | Relative humidity |
| HVAC | Heating, ventilation, and air conditioning |
| ISO | International Organization for Standardization |
| INEC | National Institute of Statistics and Census of Ecuador |
| PDAAM | Percentage of Time Within the Adaptive Acceptability Model |
| RCP | Representative Concentration Pathway |
Appendix A


References
- Satterthwaite, D.; Archer, D.; Colenbrander, S.; Dodman, D.; Hardoy, J.; Mitlin, D.; Patel, S. Building Resilience to Climate Change in Informal Settlements. One Earth 2020, 2, 143–156. [Google Scholar] [CrossRef]
- Reina, V.; Aiken, C. Fair housing: Asian and Latino/A experiences, perceptions, and strategies. Rsf 2021, 7, 201–223. [Google Scholar] [CrossRef]
- Núñez Collado, J.R.; Wang, H.H. Slum upgrading and climate change adaptation and mitigation: Lessons from Latin America. Cities 2020, 104, 102791. [Google Scholar] [CrossRef]
- Migración, P.d.D. Sobre Datos Migratorios en América del Sur|Portal de Datos Sobre Migración. Available online: https://www.migrationdataportal.org/es/regional-data-overview/datos-migratorios-en-america-del-sur (accessed on 3 May 2023).
- Banco Interamericano de Desarrollo (BID) Vivienda Y Desarrollo Urbano. Estudio del BID: América Latina y el Caribe Encaran Creciente Déficit de Vivienda. 2012. Available online: https://www.iadb.org/es/noticias/estudio-del-bid-america-latina-y-el-caribe-encaran-creciente-deficit-de-vivienda#getNews(9969,'')%23 (accessed on 3 May 2023).
- Programa de Naciones Unidas Para los Asentamientos Humanos. ONU-Habitat-Elementos de una Vivienda Adecuada, ONU-Habitat. El Programa Las Nac. Unidas Para Los Asentam. Humanos. 2019. Available online: https://onuhabitat.org.mx/index.php/elementos-de-una-vivienda-adecuada (accessed on 10 September 2023).
- Pan American Health Organization. Directrices de la OMS Sobre Vivienda y Salud; Pan American Health Organization: Washington, DC, USA, 2022; ISBN 9789241550376. [Google Scholar] [CrossRef]
- ONU HABITAT, Déficit habitacional en América Latina y el Caribe, UN-Habitat. 2015. Available online: https://unhabitat.org/sites/default/files/download-manager-files/Déficit habitacional.pdf (accessed on 10 September 2023).
- Normas de Arquitectura y Urbanismo de Quito, ORDENANZA 3457; Concejo Metropolitano de Quito: Quito, Ecuador, 2003.
- Arriagada, C. Pobreza en América Latina: Nuevos Escenarios y Desafíos de Políticas para el Hábitat Urbano; Comisión Económica para América Latina y el Caribe: Santiago de Chile, Chile, 2000. [Google Scholar]
- Pereira, P.F.d.C.; Broday, E.E. Determination of Thermal Comfort Zones through Comparative Analysis between Different Characterization Methods of Thermally Dissatisfied People. Buildings 2021, 11, 320. [Google Scholar] [CrossRef]
- Schaudienst, F.; Vogdt, F.U. Fanger’s model of thermal comfort: A model suitable just for men? Energy Procedia 2017, 132, 129–134. [Google Scholar] [CrossRef]
- Amai, H.; Tanabe, S.; Akimoto, T.; Genma, T. Thermal sensation and comfort with different task conditioning systems. Build. Environ. 2007, 42, 3955–3964. [Google Scholar] [CrossRef]
- Arakawa Martins, L.; Soebarto, V.; Williamson, T. A systematic review of personal thermal comfort models. Build. Environ. 2022, 207, 108502. [Google Scholar] [CrossRef]
- Zhao, Q.; Lian, Z.; Lai, D. Thermal comfort models and their developments: A review. Energy Built Environ. 2021, 2, 21–33. [Google Scholar] [CrossRef]
- ASHRAE Standard 55-2017; Thermal Environmental Conditions for Human Occupancy. ASHRAE Inc.: Atlanta, GA, USA, 2017.
- Zhang, J.; Lu, J.; Deng, W.; Beccarelli, P.; Lun, I.Y.F. Investigation of thermal comfort and preferred temperatures among rural elderly in Weihai, China: Considering metabolic rate effects. J. Build. Eng. 2024, 97, 110940. [Google Scholar] [CrossRef]
- Murtyas, S.; Qian, R.; Matsuo, T.; Tuck, N.W.; Zaki, S.A.; Hagishima, A. Thermal comfort in a two-storey malaysian terrace house: Are passive cooling methods sufficient in present and future climates? J. Build. Eng. 2024, 96, 110412. [Google Scholar] [CrossRef]
- Sun, K.; Specian, M.; Hong, T. Nexus of thermal resilience and energy efficiency in buildings: A case study of a nursing home. Build. Environ. 2020, 177, 106842. [Google Scholar] [CrossRef]
- Zune, M.; Rodrigues, L.; Gillott, M. The vulnerability of homes to overheating in Myanmar today and in the future: A heat index analysis of measured and simulated data. Energy Build. 2020, 223, 110201. [Google Scholar] [CrossRef]
- Arsad, F.S.; Hod, R.; Ahmad, N.; Baharom, M.; Ja’afar, M.H. Assessment of indoor thermal comfort temperature and related behavioural adaptations: A systematic review. Environ. Sci. Pollut. Res. 2023, 30, 73137–73149. [Google Scholar] [CrossRef] [PubMed]
- Shaw, E.W. Thermal Comfort: Analysis and applications in environmental engineering, by P. O. Fanger. 244 pp. DANISH TECHNICAL PRESS. Copenhagen, Denmark, 1970. Danish Kr. 76, 50. R. Soc. Health J. 1972, 92, 164. [Google Scholar] [CrossRef]
- Wang, J.; Jiang, C.; Yang, G.; Bai, G.; Yu, S. Study on thermal health and its safety management mode for the working environment. Front. Public Heal. 2023, 11, 1–11. [Google Scholar] [CrossRef]
- Consejo Nacional para la Igualdad Intergeneracional, CNII|INDICADORES Ecuador. Sist. Gest. Inf. Intergerneracional. 2020. Available online: http://indicadores.igualdad.gob.ec/DatosIndicadores-45-8-107 (accessed on 4 May 2023).
- Consejo Nacional para la Igualdad Intergeneracional, CNII|INDICADORES Ecuador. Sist. Gest. Inf. Intergerneracional. 2020. Available online: http://indicadores.igualdad.gob.ec/DatosIndicadores-47-8-122 (accessed on 9 May 2023).
- Vivienda, M.d.D.U. Arquitecturas Insurgentes: Academia, Resistencias y Prácticas Artísticas en Arquitectura y Urbanismo; Pontificia Universidad Javeriana: Bogotá, Colombia, 2018. [Google Scholar]
- Ministerio de Desarrollo Urbano y Vivienda de la República de Ecuador. Empresa Pública Casa Para, Todos Informe de Rendición de Cuentas 2020; Ministerio de Desarrollo Urbano y Vivienda de la República de Ecuador: Quito, Ecuador, 2021; Volume 1, pp. 1–50. [Google Scholar]
- Peel, M.C.; Finlayson, B.L.; Mcmahon, T.A. Updated world map of the Köppen-Geiger climate classification. Hydrol. Earth Syst. Sci. 2007, 11, 1633–1644. [Google Scholar] [CrossRef]
- Delgado, D.; Sadaoui, M.; Pacheco, H.; Méndez, W.; Ludwig, W. Interrelations Between Soil Erosion Conditioning Factors in Basins of Ecuador: Contributions to the Spatial Model Construction. In Proceedings of the 1st International Conference on Water Energy Food and Sustainability, Leiria, Portugal, 10–12 May 2021; pp. 892–903. [Google Scholar] [CrossRef]
- Chimborazo, O.; Vuille, M. Present-day climate and projected future temperature and precipitation changes in Ecuador. Theor. Appl. Climatol. 2021, 143, 1581–1597. [Google Scholar] [CrossRef]
- Código Orgánico de Organización Territorial, Autonomía y Descentralización (COOTAD). Asamblea Nacional de la República del Ecuador; COOTAD: Quito, Ecuador, 2019. [Google Scholar]
- Diz-Mellado, E.; López-Cabeza, V.P.; Rivera-Gómez, C.; Galán-Marín, C.; Rojas-Fernández, J.; Nikolopoulou, M. Extending the adaptive thermal comfort models for courtyards. Build. Environ. 2021, 203, 108094. [Google Scholar] [CrossRef]
- Ozarisoy, B.; Altan, H. Bridging the energy performance gap of social housing stock in south-eastern Mediterranean Europe: Climate change and mitigation. Energy Build. 2022, 258, 111687. [Google Scholar] [CrossRef]
- Escandón, R.; Suárez, R.; Alonso, A.; Mauro, G.M. Is indoor overheating an upcoming risk in southern Spain social housing stocks? Predictive assessment under a climate change scenario. Build. Environ. 2022, 207, 108482. [Google Scholar] [CrossRef]
- Escandón, R.; Suárez, R.; Sendra, J.J. Field assessment of thermal comfort conditions and energy performance of social housing: The case of hot summers in the Mediterranean climate. Energy Policy 2019, 128, 377–392. [Google Scholar] [CrossRef]
- Calama-González, C.M.; Symonds, P.; León-Rodríguez, Á.L.; Suárez, R. Optimal retrofit solutions considering thermal comfort and intervention costs for the Mediterranean social housing stock. Energy Build. 2022, 259, 111915. [Google Scholar] [CrossRef]
- Sánchez-García, D.; Bienvenido-Huertas, D.; Pulido-Arcas, J.A.; Rubio-Bellido, C. Extending the use of adaptive thermal comfort to air-conditioning: The case study of a local Japanese comfort model in present and future scenarios. Energy Build. 2023, 285, 112901. [Google Scholar] [CrossRef]
- Vázquez-Torres, C.E.; Gómez-Amador, A. Impact of indoor air volume on thermal performance in social housing with mixed mode ventilation in three different climates. Energy Built Environ. 2022, 3, 433–443. [Google Scholar] [CrossRef]
- Porras-Salazar, J.A.; Contreras-Espinoza, S.; Cartes, I.; Piggot-Navarrete, J.; Pérez-Fargallo, A. Energy poverty analyzed considering the adaptive comfort of people living in social housing in the central-south of Chile. Energy Build. 2020, 223, 110081. [Google Scholar] [CrossRef]
- Malik, J.; Bardhan, R. A localized adaptive comfort model for free-running low-income housing in Mumbai, India. Energy Build. 2023, 281, 112756. [Google Scholar] [CrossRef]
- Tsoulou, I.; Andrews, C.J.; He, R.; Mainelis, G.; Senick, J. Summertime thermal conditions and senior resident behaviors in public housing: A case study in Elizabeth, NJ, USA. Build. Environ. 2020, 168, 106411. [Google Scholar] [CrossRef]
- Firman, N.S.; Zaki, S.A.; Tuck, N.W.; Singh, M.K.; Rijal, H.B. A study on adaptive thermal comfort and ventilation in Malaysia secondary school classrooms of tropical climate. Build. Environ. 2025, 273, 112701. [Google Scholar] [CrossRef]
- Sánchez-Montes, J.G.; Flores-Prieto, J.J.; López-Pérez, L.A.; Ríos-Rojas, C. Adaptive thermal comfort models comparison in dry and rainy seasons: A tropical climate case. Energy Build. 2025, 331, 115382. [Google Scholar] [CrossRef]
- Onyeizu-Rasheed, E.; Vishnu, P.; Mohsin Shahzad, W.; Attia, S.; Thapa, S.; Pernigotto, G. Adaptive Thermal Comfort in the Different Buildings of Temperate Climates—Comparison Between High-Latitude Europe and Mountainous Himalayas in India. Sustain. 2025, 17, 404. [Google Scholar] [CrossRef]
- Sánchez-García, D.; Bienvenido-Huertas, D.; Martínez-Crespo, J.; de Dear, R. Using setpoint temperatures based on adaptive thermal comfort models: The case of an Australian model considering climate change. Build. Environ. 2024, 258, 111647. [Google Scholar] [CrossRef]
- Bienvenido-Huertas, D.; Sánchez-García, D.; Tejedor, B.; Rubio-Bellido, C. Energy savings in buildings applying ASHRAE 55 and regional adaptive thermal comfort models. Urban Clim. 2024, 55, 101892. [Google Scholar] [CrossRef]
- Miao, Y.; Chau, K.W.; Lau, S.S.Y.; Ye, T. A novel thermal comfort model modified by time scale and habitual trajectory. Renew. Sustain. Energy Rev. 2025, 207, 114903. [Google Scholar] [CrossRef]
- Aqilah, N.; Rijal, H.B.; Yoshida, K.; Nicol, F. Developing new comfort band for adaptive model in Japanese residential building. Energy Build. 2025, 335, 115469. [Google Scholar] [CrossRef]
- Gallego Sánchez-Torija, J.; Fernández Nieto, M.A.; Gálvez Huerta, M.Á. Thermal, lighting, and energy performances of buildings constructed with polycarbonate panels. Case study of a classroom in Madrid. Energy Effic. 2023, 16, 1–14. [Google Scholar] [CrossRef]
- Herreras Martínez, S.; Uyttewaal, M.; Liu, W.; Harmsen, R. Exploring sustainable heating solutions for buildings at the neighbourhood level. Energy Effic. 2021, 14, 1–25. [Google Scholar] [CrossRef]
- Jaffal, I. Physics-informed machine learning for metamodeling thermal comfort in non-air-conditioned buildings. Build. Simul. 2023, 16, 299–316. [Google Scholar] [CrossRef]
- Wang, D.; Liu, H.; Wang, Y.; Liu, K.; Liu, Y.; Gao, M.; Fan, J. Thermal performance and evaluation of a novel stratified and mixed flexible transformation solar heat storage unit. Build. Simul. 2022, 16, 1881–1895. [Google Scholar] [CrossRef]
- Design Builder. Available online: https://designbuilder.co.uk/ (accessed on 3 March 2023).
- Matute-Piedra, M.; Jarrin-Pinos, G. Familia en Cifras, 2nd ed.; EDILOJA Cía. Ltda.: Loja, Ecuador, 2016. [Google Scholar]
- American Society of Heating Refrigerating and Air-Conditioning Engineers—ASHRAE Thermal Environmental Conditions for Human Occupancy. ANSI/ASHRAE Stand-55 2017, 7, 6.
- Kottek, M.; Grieser, J.; Beck, C.; Rudolf, B.; Rubel, F. World map of the Köppen-Geiger climate classification updated. Meteorol. Zeitschrift 2006, 15, 259–263. [Google Scholar] [CrossRef]
- Remund, J.; Müller, S.; Schmutz, M.; Graf, P. Meteonorm Version 8.0. 2020. Available online: www.meteonorm.com (accessed on 3 March 2023).
- Yassaghi, H.; Mostafavi, N.; Hoque, S. Evaluation of current and future hourly weather data intended for building designs: A Philadelphia case study. Energy Build. 2019, 199, 491–511. [Google Scholar] [CrossRef]
- IPCC. AR6 Synthesis Report: Climate Change 2022—IPCC. AR6 Synthesis Report: Climate Change 2022—IPCC. 2022. Available online: https://www.ipcc.ch/report/sixth-assessment-report-cycle/ (accessed on 18 May 2025).
- Delgado-Gutierrez, E.; Canivell, J.; Bienvenido-Huertas, D.; Hidalgo-Sánchez, F.M. Adaptive Comfort Potential in Different Climate Zones of Ecuador Considering Global Warming. Energies 2024, 17, 2017. [Google Scholar] [CrossRef]
- Tewari, P.; Mathur, S.; Mathur, J. Thermal performance prediction of office buildings using direct evaporative cooling systems in the composite climate of India. Build. Environ. 2019, 157, 64–78. [Google Scholar] [CrossRef]
- Nguyen, A.T.; Singh, M.K.; Reiter, S. An adaptive thermal comfort model for hot humid South-East Asia. Build. Environ. 2012, 56, 291–300. [Google Scholar] [CrossRef]
- Rijal, H.B.; Humphreys, M.A.; Nicol, J.F. Adaptive model and the adaptive mechanisms for thermal comfort in Japanese dwellings. Energy Build. 2019, 202, 109371. [Google Scholar] [CrossRef]
- Alonso, A.; Calama-González, C.M.; Suárez, R.; León-Rodríguez, Á.L.; Hernández-Valencia, M. Improving comfort conditions as an energy upgrade tool for housing stock: Analysis of a house prototype. Energy Sustain. Dev. 2022, 66, 209–221. [Google Scholar] [CrossRef]
- Rupp, R.F.; Parkinson, T.; Kim, J.; Toftum, J.; de Dear, R. The impact of occupant’s thermal sensitivity on adaptive thermal comfort model. Build. Environ. 2022, 207, 1–7. [Google Scholar] [CrossRef]
- Bienvenido-Huertas, D.; Rubio-Bellido, C.; Pérez-Fargallo, A.; Pulido-Arcas, J.A. Energy saving potential in current and future world built environments based on the adaptive comfort approach. J. Clean. Prod. 2020, 249, 119306. [Google Scholar] [CrossRef]
- Aqilah, N.; Rijal, H.B.; Zaki, S.A. A Review of Thermal Comfort in Residential Buildings: Comfort Threads and Energy Saving Potential. Energies 2022, 15, 9012. [Google Scholar] [CrossRef]
- De la Hoz-Torres, M.L.; Aguilar, A.J.; Martínez-Aires, M.D.; Ruiz, D.P. Seasonal field study on thermal comfort in university classrooms in Mediterranean climate. Indoor Built Environ. 2024, 33, 1380–1396. [Google Scholar] [CrossRef]
- Aragon, V.; Teli, D.; James, P. Evaluation of Retrofit Approaches for Two Social Housing Tower Blocks in Portsmouth, UK. Futur. Cities Environ. 2018, 4, 4. [Google Scholar] [CrossRef]
- Luisa, M.; Hoz-torres, D.; Aguilar, A.J.; Ruiz, D.P.; Martínez-aires, D. An investigation of indoor thermal environments and thermal comfort in naturally ventilated educational buildings. J. Build. Eng. 2024, 84, 108677. [Google Scholar] [CrossRef]
- García-Alvarado, R.; Campos, P.G. A tool for the assessment of energy-efficiency retrofit packages based on simulations, for single-family housing in Concepcion, Chile. Energy Effic. 2019, 12, 619–636. [Google Scholar] [CrossRef]
- García Ochoa, R.; Graizbord Ed, B. Privation of energy services in Mexican households: An alternative measure of energy poverty. Energy Res. Soc. Sci. 2016, 18, 36–49. [Google Scholar] [CrossRef]
- Osman, M.M.; Sevinc, H. Adaptation of climate-responsive building design strategies and resilience to climate change in the hot/arid region of Khartoum, Sudan. Sustain. Cities Soc. 2019, 47, 101429. [Google Scholar] [CrossRef]








Disclaimer/Publisher’s Note: The statements, opinions and data contained in all publications are solely those of the individual author(s) and contributor(s) and not of MDPI and/or the editor(s). MDPI and/or the editor(s) disclaim responsibility for any injury to people or property resulting from any ideas, methods, instructions or products referred to in the content. |
© 2025 by the authors. Licensee MDPI, Basel, Switzerland. This article is an open access article distributed under the terms and conditions of the Creative Commons Attribution (CC BY) license (https://creativecommons.org/licenses/by/4.0/).
Share and Cite
Delgado-Gutierrez, E.; Rubio-Bellido, C.; Canivell, J. Thermal Comfort in Social Housing in Ecuador: Do Free-Running Buildings Work in Current and Future Climates? Buildings 2025, 15, 2018. https://doi.org/10.3390/buildings15122018
Delgado-Gutierrez E, Rubio-Bellido C, Canivell J. Thermal Comfort in Social Housing in Ecuador: Do Free-Running Buildings Work in Current and Future Climates? Buildings. 2025; 15(12):2018. https://doi.org/10.3390/buildings15122018
Chicago/Turabian StyleDelgado-Gutierrez, Evelyn, Carlos Rubio-Bellido, and Jacinto Canivell. 2025. "Thermal Comfort in Social Housing in Ecuador: Do Free-Running Buildings Work in Current and Future Climates?" Buildings 15, no. 12: 2018. https://doi.org/10.3390/buildings15122018
APA StyleDelgado-Gutierrez, E., Rubio-Bellido, C., & Canivell, J. (2025). Thermal Comfort in Social Housing in Ecuador: Do Free-Running Buildings Work in Current and Future Climates? Buildings, 15(12), 2018. https://doi.org/10.3390/buildings15122018

