CO2 Concentration Assessment for Infection Monitoring and Occupancy Analysis in Tanzanian COVID-19 Isolation Centers
Abstract
1. Introduction
2. Materials and Methods
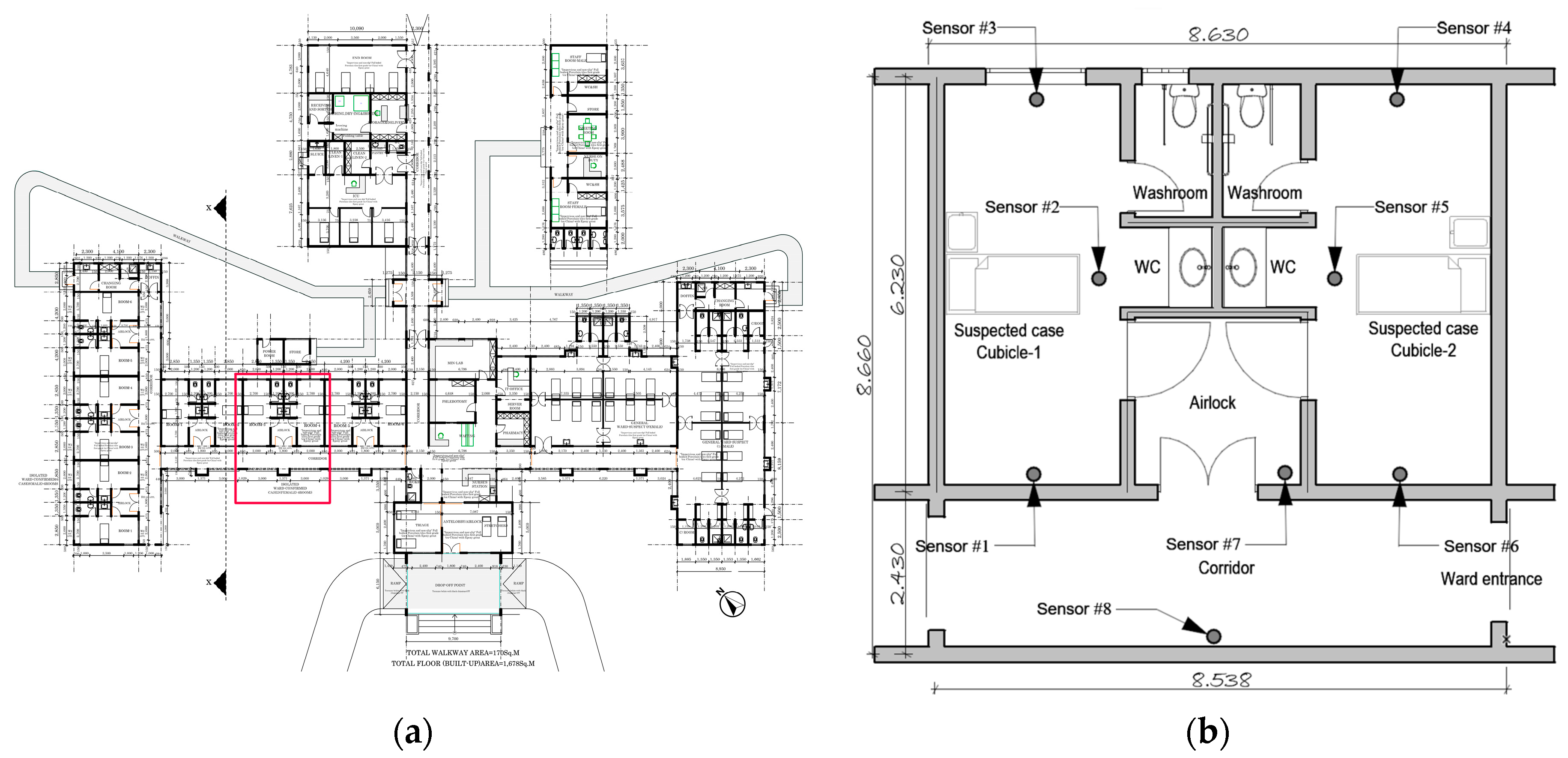
2.1. Case Description
2.2. Experimental Materials
2.3. Filtration Effectiveness on Filters’ Pressure Drop and Submicron Particles
2.4. The Relationship between Particle Concentration and Particle Size
3. Results and Discussion
3.1. Relationship between CO2 Concentration Derivatives and Air Volume Presented Per Patient within Isolation Cubicles
3.2. Energy Load Prediction of Health Facilities
3.3. Indoor Ventilation Efficacy Unaffected by Patient Movement
3.4. CO2 Concentration Levels in Isolation Cubicles Concerning Patients’ Occupancy
3.5. Improving the Air Quality by Proper Positioning of the Patient’s Bed
3.6. Characterization of the Ventilation Conditions of an Isolation Cubicle Environment
3.6.1. System Type and Configuration
3.6.2. Operational Performance
3.6.3. Compliance and Standards
3.7. Valuation of ACH Values from the COVID-19 Isolation Cubicle
4. Conclusions and Recommendations
Author Contributions
Funding
Data Availability Statement
Acknowledgments
Conflicts of Interest
Nomenclature
| IAQ | Indoor Air Quality |
| CFD | Computational Fluid Dynamics |
| ACH | Air Changes per Hour |
| CO2 | Carbon dioxide |
| ppm | parts per million |
| ASHRAE | American Society of Heating, Ventilation, Refrigeration, and Air-Conditioning Engineers |
| CDC | Centers for Disease Control and Prevention |
| VAV | Variable Air Volume |
| HVAC | Heating, Ventilation and Air-Conditioning |
| HEPA | High-Efficiency Particulate Air |
| DCV | Demand-Controlled Ventilation |
| JNIA | Julius Nyerere International Airport |
| KIA | Kilimanjaro International Airport |
| URT | United Republic of Tanzania |
| NEMC | National Environment Management Council |
| BMS | Consolidated Building Management System |
| MOH | Ministry of Health |
References
- Hiscott, J.; Alexandridi, M.; Muscolini, M.; Tassone, E.; Palermo, E.; Soultsioti, M.; Zevini, A. The global impact of the coronavirus pandemic. Cytokine Growth Factor Rev. 2020, 53, 1–9. [Google Scholar] [CrossRef]
- Muralidar, S.; Ambi, S.V.; Sekaran, S.; Krishnan, U.M. The emergence of COVID-19 as a global pandemic: Understanding the epidemiology, immune response and potential therapeutic targets of SARS-CoV-2. Biochimie 2020, 179, 85–100. [Google Scholar] [CrossRef]
- Hamisi, N.M.; Dai, B.; Ibrahim, M. Global Health Security amid COVID-19: Tanzanian government’s response to the COVID-19 Pandemic. BMC Public Health 2023, 23, 205. [Google Scholar] [CrossRef] [PubMed]
- Ayouni, I.; Maatoug, J.; Dhouib, W.; Zammit, N.; Fredj, S.B.; Ghammam, R.; Ghannem, H. Effective public health measures to mitigate the spread of COVID-19: A systematic review. BMC Public Health 2021, 21, 1015. [Google Scholar] [CrossRef]
- Dancer, S.J. Reducing the risk of COVID-19 transmission in hospitals: Focus on additional infection control strategies. Surgery 2021, 39, 752–758. [Google Scholar] [CrossRef] [PubMed]
- Núñez, A.; Sreeganga, S.D.; Ramaprasad, A. Access to Healthcare during COVID-19. Int. J. Environ. Res. Public Health 2021, 18, 2980. [Google Scholar] [CrossRef]
- Mfinanga, S.G.; Mnyambwa, N.P.; Minja, D.T.; Ntinginya, N.E.; Ngadaya, E.; Makani, J.; Makubi, A.N. Tanzania’s position on the COVID-19 pandemic. Lancet 2021, 397, 1542–1543. [Google Scholar] [CrossRef]
- Rasanathan, K. Global health and its discontents. Lancet 2021, 397, 1543–1544. [Google Scholar] [CrossRef] [PubMed]
- Magnavita, N.; Chirico, F.; Sacco, A. COVID-19: From hospitals to courts. Lancet 2021, 397, 1542. [Google Scholar] [CrossRef]
- Mapunda, M.K.K. Progress Report on the Implementation of the COVID 19 Response Plan WHO Tanzania Country Office. W.H.O.C. Office and Tanzania, Editors. World Health Organization Country Office Tanzania. 2020, p. 52. Available online: https://www.afro.who.int/sites/default/files/2021-07/WCO%20Tanzania%20-%20COVID%20-19%20response%20progress%20report%20-%20Jan-June%202020_.pdf (accessed on 6 June 2024).
- Hokororo, J.; Katembo, A.-G.; Kinyenje, E.; Amani, D.; Ndjovu, A.; Eliakimu, E.; Mutayoba, R.; Kiremeji, M. Continuity of essential health services amidst COVID-19 pandemic in Tanzania: A pre and post implementation support assessment. Discov. Health Syst. 2023, 2, 19. [Google Scholar] [CrossRef]
- Kibasa, Tanzania COVID19 Pandemic Emergency Financing Facility Project, MOH, Editor. URT: Dodoma. 2020, p. 92. Available online: https://www.covidlawlab.org/wp-content/uploads/2021/11/Tanzania_2020.10_COVID-19-Pandemic-Emergency-Financing-Facility-Project_EN.pdf (accessed on 6 June 2024).
- IMF. IMF Financing and Debt Service Relief; IMF: Washington, DC, USA, 2021; Available online: https://www.imf.org/en/Topics/imf-and-covid19/COVID-Lending-Tracker (accessed on 27 March 2024).
- Morawska, L.; Cao, J. Airborne transmission of SARS-CoV-2: The world should face the reality. Environ. Int. 2020, 139, 105730. [Google Scholar] [CrossRef] [PubMed]
- Kim, J.; Hu, C.; Moufawad El Achkar, C.; Black, L.E.; Douville, J.; Larson, A.; Pendergast, M.K.; Goldkind, S.F.; Lee, E.A.; Kuniholm, A.; et al. Patient-Customized Oligonucleotide Therapy for a Rare Genetic Disease. N. Engl. J. Med. 2019, 381, 1644–1652. [Google Scholar] [CrossRef] [PubMed]
- Kulkarni, H.; Smith, C.M.; Lee Ddo, H.; Hirst, R.A.; Easton, A.J.; O’Callaghan, C. Evidence of Respiratory Syncytial Virus Spread by Aerosol. Time to Revisit Infection Control Strategies? Am. J. Respir. Crit. Care Med. 2016, 194, 308–316. [Google Scholar] [CrossRef] [PubMed]
- Baker, R.E.; Mahmud, A.S.; Miller, I.F.; Rajeev, M.; Rasambainarivo, F.; Rice, B.L.; Takahashi, S.; Tatem, A.J.; Wagner, C.E.; Wang, L.-F.; et al. Infectious disease in an era of global change. Nat. Rev. Microbiol. 2022, 20, 193–205. [Google Scholar] [CrossRef] [PubMed]
- Buckee, C.; Noor, A.; Sattenspiel, L. Thinking clearly about social aspects of infectious disease transmission. Nature 2021, 595, 205–213. [Google Scholar] [CrossRef] [PubMed]
- Greenhalgh, T.; Jimenez, J.L.; Prather, K.A.; Tufekci, Z.; Fisman, D.; Schooley, R. Ten scientific reasons in support of airborne transmission of SARS-CoV-2. Lancet 2021, 397, 1603–1605. [Google Scholar] [CrossRef] [PubMed]
- Stoekle, H.C.; Ivasilevitch, A.; Herve, C. The COVID-19 pandemic: A time for ethical reflection? Lancet 2021, 397, 1619–1620. [Google Scholar] [CrossRef] [PubMed]
- Song, L.; Zhou, J.; Wang, C.; Meng, G.; Li, Y.; Jarin, M.; Wu, Z.; Xie, X. Airborne pathogenic microorganisms and air cleaning technology development: A review. J. Hazard. Mater. 2022, 424, 127429. [Google Scholar] [CrossRef]
- Antoniadou, P.; Papadopoulos, A.M. Occupants’ thermal comfort: State of the art and the prospects of personalized assessment in office buildings. Energy Build. 2017, 153, 136–149. [Google Scholar] [CrossRef]
- Dimitroulopoulou, S.; Dudzińska, M.R.; Gunnarsen, L.; Hägerhed, L.; Maula, H.; Singh, R.; Toyinbo, O.; Haverinen-Shaughnessy, U. Indoor air quality guidelines from across the world: An appraisal considering energy saving, health, productivity, and comfort. Environ. Int. 2023, 178, 108127. [Google Scholar] [CrossRef]
- Tran, V.V.; Park, D.; Lee, Y.C. Indoor Air Pollution, Related Human Diseases, and Recent Trends in the Control and Improvement of Indoor Air Quality. Int. J. Environ. Res. Public Health 2020, 17, 2927. [Google Scholar] [CrossRef] [PubMed]
- Atkinson, J.; Chartier, Y.; Pessoa-Silva, C.L.; Jensen, P.; Li, Y.; Seto, W.-H. (Eds.) Natural Ventilation for Infection Control in Health-Care Settings; World Health Organization: Geneva, Switzerland, 2009. [Google Scholar] [PubMed]
- Bergeron, V.; Chalfine, A.; Misset, B.; Moules, V.; Laudinet, N.; Carlet, J.; Lina, B. Supplemental treatment of air in airborne infection isolation rooms using high-throughput in-room air decontamination units. Am. J. Infect. Control 2011, 39, 314–320. [Google Scholar] [CrossRef]
- Bueno de Mesquita, P.J.; Delp, W.W.; Chan, W.R.; Bahnfleth, W.P.; Singer, B.C. Control of airborne infectious disease in buildings: Evidence and research priorities. Indoor Air 2022, 32, e12965. [Google Scholar] [CrossRef]
- Cheong, K.; Phua, S. Development of ventilation design strategy for effective removal of pollutant in the isolation room of a hospital. Build. Environ. 2006, 41, 1161–1170. [Google Scholar] [CrossRef]
- Cho, J. Investigation on the contaminant distribution with improved ventilation system in hospital isolation rooms: Effect of supply and exhaust air diffuser configurations. Appl. Therm. Eng. 2019, 148, 208–218. [Google Scholar] [CrossRef]
- Elsaid, A.M.; Ahmed, M.S. Indoor air quality strategies for air-conditioning and ventilation systems with the spread of the global coronavirus (COVID-19) epidemic: Improvements and recommendations. Environ. Res. 2021, 199, 111314. [Google Scholar] [CrossRef] [PubMed]
- Fadaei, A. Can ventilation in healthcare facilities prevention of infection COVID-19? Health Environ. 2021, 2, 96–102. [Google Scholar] [CrossRef]
- Ding, E.; Zhang, D.; Bluyssen, P.M. Ventilation regimes of school classrooms against airborne transmission of infectious respiratory droplets: A review. Build. Environ. 2022, 207, 108484. [Google Scholar] [CrossRef]
- Ferrari, S.; Blázquez, T.; Cardelli, R.; Puglisi, G.; Suárez, R.; Mazzarella, L. Ventilation strategies to reduce airborne transmission of viruses in classrooms: A systematic review of scientific literature. Build. Environ. 2022, 222, 109366. [Google Scholar] [CrossRef]
- Gastmeier, P.; Breier, A.-C.; Brandt, C. Influence of laminar airflow on prosthetic joint infections: A systematic review. J. Hosp. Infect. 2012, 81, 73–78. [Google Scholar] [CrossRef]
- Izadyar, N.; Miller, W. Ventilation strategies and design impacts on indoor airborne transmission: A review. Build. Environ. 2022, 218, 109158. [Google Scholar] [CrossRef] [PubMed]
- Inkarojrit, V. Natural Ventilation in Thai Hospitals: A Field Study. In Proceedings of the 31st AIVC Conference “Low Energy and Sustainable Ventilation Technologies for Green Buildings”, Seoul, Republic of Korea, 26–28 October 2010. [Google Scholar]
- Nourozi, B.; Wierzbicka, A.; Yao, R.; Sadrizadeh, S. A systematic review of ventilation solutions for hospital wards: Addressing cross-infection and patient safety. Build. Environ. 2024, 247, 110954. [Google Scholar] [CrossRef]
- Kalliomäki, P.; Saarinen, P.; Tang, J.W.; Koskela, H. Airflow patterns through single hinged and sliding doors in hospital isolation rooms–Effect of ventilation, flow differential and passage. Build. Environ. 2016, 107, 154–168. [Google Scholar] [CrossRef] [PubMed]
- Kassem, F.A.; AbdelGawad, A.F.; Abuel-Ezz, A.E.; Nassief, M.M.; Adel, M. Design and Performance Evaluation of a Portable Chamber for Prevention of Aerosol Airborne–Infection. J. Adv. Res. Fluid. Mech. Therm. Sci. 2022, 100, 181–197. [Google Scholar] [CrossRef]
- Bazlisyam, S.; Kek, H.Y.; Tan, H.; Othman, M.H.D.; Nyakuma, B.B.; Goh, P.S.; Altowayti, W.A.H.; Al-Ameri, A.Q.A.; Wahul, N.H.A.; Hau, L.C.; et al. Ventilation Strategies for Mitigating Airborne Infections in Healthcare Facilities: A Mini-Review and Bibliometric Analysis (1970 to 2021). Preprints 2023, 2023020135. [Google Scholar] [CrossRef]
- Meroney, R.N. CFD Prediction of Airflow in Buildings for Natural Ventilation. In Proceedings of the Eleventh Americas Conference on Wind Engineering, San Juan, Puerto Rico, 22–26 June 2009; pp. 1–11. Available online: https://www.engr.colostate.edu/~meroney/PapersPDF/CEP09-10-1.pdf (accessed on 28 March 2024).
- Mohamadi, F.; Fazeli, A. A review on applications of CFD modeling in COVID-19 pandemic. Arch. Comput. Methods Eng. 2022, 29, 3567–3586. [Google Scholar] [CrossRef]
- Jeong, D.; Yi, H.; Park, J.-H.; Park, H.W.; Park, K. A vertical laminar airflow system to prevent aerosol transmission of SARS-CoV-2 in building space: Computational fluid dynamics (CFD) and experimental approach. Indoor Built Environ. 2022, 31, 1319–1338. [Google Scholar] [CrossRef]
- Hobeika, N.; García-Sánchez, C.; Bluyssen, P.M. Assessing Indoor Air Quality and Ventilation to Limit Aerosol Dispersion—Literature Review. Buildings 2023, 13, 742. [Google Scholar] [CrossRef]
- Jonathan Burkett PE, H. Airborne transmission and distribution. ASHRAE J. 2021, 63, 10–16. [Google Scholar]
- Zhao, B.; Yang, C.; Chen, C.; Feng, C.; Yang, X.; Sun, L.; Gong, W.; Yu, L. How many airborne particles emitted from a nurse will reach the breathing zone/body surface of the patient in ISO Class-5 single-bed hospital protective environments?—A numerical analysis. Aerosol Sci. Technol. 2009, 43, 990–1005. [Google Scholar] [CrossRef]
- Taheri, H.; Rider, T.R. A review on architectural guidelines to safely reopen buildings in light of COVID-19 in the United States: Establishing future research opportunities. Archit. Sci. Rev. 2022, 65, 147–161. [Google Scholar] [CrossRef]
- Lipinski, T.; Ahmad, D.; Serey, N.; Jouhara, H. Review of ventilation strategies to reduce the risk of disease transmission in high occupancy buildings. Int. J. Thermofluids 2020, 7, 100045. [Google Scholar] [CrossRef]
- Yang, L.; Wang, X.; Li, M.; Zhou, X.; Liu, S.; Zhang, H.; Arens, E.; Zhai, Y. Carbon dioxide generation rates of different age and gender under various activity levels. Build. Environ. 2020, 186, 107317. [Google Scholar] [CrossRef]
- ASHRAE. ASHRAE Position Document on Indoorcarbondioxide 2022; ASHRAE: Peachtree Corners, GA, USA, 2022; Available online: https://www.ashrae.org/file%20library/about/position%20documents/pd_indoorcarbondioxide_2022.pdf (accessed on 28 March 2024).
- Cristino, T.M.; Neto, A.F.; Wurtz, F.; Delinchant, B. The Evolution of Knowledge and Trends within the Building Energy Efficiency Field of Knowledge. Energies 2022, 15, 691. [Google Scholar] [CrossRef]
- Pei, G.; Taylor, M.I. Effects of indoor airflow and ventilation strategy on the airborne virus transmission. ASHRAE Trans. 2021, 127, 206–215. [Google Scholar]
- Thornton, G.M.; Kroeker, E.; Fleck, B.A.; Zhong, L.; Hartling, L. The Impact of Heating, Ventilation, and Air-Conditioning Design Features on the Transmission of Viruses, Including SARS-CoV-2: Overview of Reviews. Interact. J. Med. Res. 2022, 11, e37232. [Google Scholar] [CrossRef]
- Hopkins, S.R. Ventilation/Perfusion Relationships and Gas Exchange: Measurement Approaches. Compr. Physiol. 2020, 10, 1155–1205. [Google Scholar] [CrossRef] [PubMed]
- Watson, M.; Ionescu, M.F.; Sylvester, K.; Fuld, J. Minute ventilation/carbon dioxide production in patients with dysfunctional breathing. Eur. Respir. Rev. 2021, 30, 200182. [Google Scholar] [CrossRef]
- Laurent, M.R.; Frans, J. Monitors to improve indoor air carbon dioxide concentrations in the hospital: A randomized crossover trial. Sci. Total Environ. 2022, 806, 151349. [Google Scholar] [CrossRef]
- Carroll, G.T.; Kirschman, D.L.; Mammana, A. Increased CO2 levels in the operating room correlate with the number of healthcare workers present: An imperative for intentional crowd control. Patient Saf. Surg. 2022, 16, 35. [Google Scholar] [CrossRef]
- Persily, A.; de Jonge, L. Carbon dioxide generation rates for building occupants. Indoor Air 2017, 27, 868–879. [Google Scholar] [CrossRef] [PubMed]
- Rudnick, S.N.; Milton, D.K. Risk of indoor airborne infection transmission estimated from carbon dioxide concentration. Indoor Air 2003, 13, 237–245. [Google Scholar] [CrossRef] [PubMed]
- Mendell, M.J.; Eliseeva, E.A.; Davies, M.M.; Spears, M.; Lobscheid, A.; Fisk, W.J.; Apte, M.G. Association of Classroom Ventilation with Reduced Illness Absence: A Prospective Study in California Elementary Schools. Indoor Air 2013, 23, 515. [Google Scholar] [CrossRef] [PubMed]
- Peng, Z.; Jimenez, J.L. Exhaled CO2 as a COVID-19 Infection Risk Proxy for Different Indoor Environments and Activities. Environ. Sci. Technol. Lett. 2021, 8, 392–397. [Google Scholar] [CrossRef] [PubMed]
- Tellier, R.; Li, Y.; Cowling, B.J.; Tang, J.W. Recognition of Aerosol Transmission of Infectious Agents: A Commentary. BMC Infect. Dis. 2019, 19, 101. [Google Scholar] [CrossRef] [PubMed]
- Allen, J.G.; Ibrahim, A.M. Indoor Air Changes and Potential Implications for SARS-CoV-2 Transmission. JAMA 2021, 325, 2112–2113. [Google Scholar] [CrossRef] [PubMed]
- Li, Y.; Leung, G.M.; Tang, J.W.; Yang, X.; Chao, C.Y.; Lin, J.Z.; Lu, J.W.; Nielsen, P.V.; Niu, J.; Qian, H.; et al. Role of ventilation in airborne transmission of infectious agents in the built environment—A multidisciplinary systematic review. Indoor Air 2007, 17, 2–18. [Google Scholar] [CrossRef]
- Luongo, J.C.; Fennelly, K.P.; Keen, J.A.; Zhai, Z.J.; Jones, B.W.; Miller, S.L. Role of mechanical ventilation in the airborne transmission of infectious agents in buildings. Indoor Air 2016, 26, 666–678. [Google Scholar] [CrossRef] [PubMed]
- Morawska, L.; Tang, J.W.; Bahnfleth, W.; Bluyssen, P.M.; Boerstra, A.; Buonanno, G.; Cao, J.; Dancer, S.; Floto, A.; Franchimon, F.; et al. How can airborne transmission of COVID-19 indoors be minimised? Environ. Int. 2020, 142, 105832. [Google Scholar] [CrossRef]
- Mohammadpour, A.; Anumba, C.J.; Messner, J.I. Integrated Framework for Patient Safety and Energy Efficiency in Healthcare Facilities Retrofit Projects. Herd 2016, 9, 68–85. [Google Scholar] [CrossRef]
- Psillaki, M.; Apostolopoulos, N.; Makris, I.; Liargovas, P.; Apostolopoulos, S.; Dimitrakopoulos, P.; Sklias, G. Hospitals’ Energy Efficiency in the Perspective of Saving Resources and Providing Quality Services through Technological Options: A Systematic Literature Review. Energies 2023, 16, 755. [Google Scholar] [CrossRef]
- Khahro, S.H.; Kumar, D.; Siddiqui, F.H.; Ali, T.H.; Raza, M.S.; Khoso, A.R. Optimizing Energy Use, Cost and Carbon Emission through Building Information Modelling and a Sustainability Approach: A Case-Study of a Hospital Building. Sustainability 2021, 13, 3675. [Google Scholar] [CrossRef]
- Wang, C.C.; Prather, K.A.; Sznitman, J.; Jimenez, J.L.; Lakdawala, S.S.; Tufekci, Z.; Marr, L.C. Airborne transmission of respiratory viruses. Science 2021, 373, eabd9149. [Google Scholar] [CrossRef] [PubMed]
- Johnson, G.R.; Morawska, L.; Ristovski, Z.D.; Hargreaves, M.; Mengersen, K.; Chao, C.Y.H.; Wan, M.P.; Li, Y.; Xie, X.; Katoshevski, D.; et al. Modality of human expired aerosol size distributions. J. Aerosol Sci. 2011, 42, 839–851. [Google Scholar] [CrossRef]
- Weaver, A.K.; Head, J.R.; Gould, C.F.; Carlton, E.J.; Remais, J.V. Environmental Factors Influencing COVID-19 Incidence and Severity. Annu. Rev. Public Health 2022, 43, 271–291. [Google Scholar] [CrossRef] [PubMed]
- van Doremalen, N.; Bushmaker, T.; Morris, D.H.; Holbrook, M.G.; Gamble, A.; Williamson, B.N.; Tamin, A.; Harcourt, J.L.; Thornburg, N.J.; Gerber, S.I.; et al. Aerosol and Surface Stability of SARS-CoV-2 as Compared with SARS-CoV-1. N. Engl. J. Med. 2020, 382, 1564–1567. [Google Scholar] [CrossRef] [PubMed]
- Escandón, K.; Rasmussen, A.L.; Bogoch, I.I.; Murray, E.J.; Escandón, K.; Popescu, S.V.; Kindrachuk, J. COVID-19 false dichotomies and a comprehensive review of the evidence regarding public health, COVID-19 symptomatology, SARS-CoV-2 transmission, mask wearing, and reinfection. BMC Infect. Dis. 2021, 21, 710. [Google Scholar] [CrossRef] [PubMed]
- Chen, C.Y.; Chen, P.H.; Chen, J.K.; Su, T.C. Recommendations for ventilation of remodeled negative-pressure isolation wards for COVID-19 patients: A comparison of international guidelines. J. Formos. Med. Assoc. 2023, 122, 91–97. [Google Scholar] [CrossRef] [PubMed]
- Lowther, S.D.; Dimitroulopoulou, S.; Foxall, K.; Shrubsole, C.; Cheek, E.; Gadeberg, B.; Sepai, O. Low Level Carbon Dioxide Indoors—A Pollution Indicator or a Pollutant? A Health-Based Perspective. Environments 2021, 8, 125. [Google Scholar] [CrossRef]
- Durán del Amor, M.d.M.; Baeza Caracena, A.; Esquembre, F.; Llorens Pascual del Riquelme, M. New Methodology to Evaluate and Optimize Indoor Ventilation Based on Rapid Response Sensors. Sensors 2024, 24, 1657. [Google Scholar] [CrossRef]
- TaşEr, A.; Uçaryilmaz, S.; Çataroğlu, I.; Sofuoğlu, S.C. Indoor air CO2 concentrations and ventilation rates in two residences in İzmir, Turkey. Environ. Res. Technol. 2022, 5, 172–180. [Google Scholar] [CrossRef]
- Sundell, J.; Levin, H.; Nazaroff, W.W.; Cain, W.S.; Fisk, W.J.; Grimsrud, D.T.; Gyntelberg, F.; Li, Y.; Persily, A.K.; Pickering, A.C.; et al. Ventilation rates and health: Multidisciplinary review of the scientific literature. Indoor Air 2011, 21, 191–204. [Google Scholar] [CrossRef]
- Braggion, A.; Dugerdil, A.; Wilson, O.; Hovagemyan, F.; Flahault, A. Indoor Air Quality and COVID-19: A Scoping Review. Public. Health Rev. 2023, 44, 1605803. [Google Scholar] [CrossRef] [PubMed]
- Orosa, J.A.; Oliveira, A.C. A field study on building inertia and its effects on indoor thermal environment. Renew. Energy 2012, 37, 89–96. [Google Scholar] [CrossRef]
- Enescu, D. A review of thermal comfort models and indicators for indoor environments. Renew. Sustain. Energy Rev. 2017, 79, 1353–1379. [Google Scholar] [CrossRef]
- Yang, L.; Yan, H.; Lam, J.C. Thermal comfort and building energy consumption implications—A review. Appl. Energy 2014, 115, 164–173. [Google Scholar] [CrossRef]
- D’Oca, S.; Hong, T.; Langevin, J. The human dimensions of energy use in buildings: A review. Renew. Sustain. Energy Rev. 2018, 81, 731–742. [Google Scholar] [CrossRef]
- ASHRAE Special Publications, Ventilation of Health Care Facilities. ASHRAE Peachtree Corners, GA, USA. p. 14. 2020, p. 14. Available online: https://www.ashrae.org/file%20library/technical%20resources/standards%20and%20guidelines/standards%20addenda/170-2017/170_2017_p_20200302.pdf (accessed on 1 June 2024).
- Kavanagh, K. CDC Update on the Draft 2024 Guideline to Prevent Transmission of Pathogens in Healthcare Settings. Available online: https://www.infectioncontroltoday.com/view/cdc-sends-back-proposals-hicpac-pathogen-spread-health-care-revision (accessed on 19 May 2024).
- Pérez Velasco, R.; Jarosińska, D. Update of the WHO global air quality guidelines: Systematic reviews—An introduction. Environ. Int. 2022, 170, 107556. [Google Scholar] [CrossRef]
- CDC. Ventilation in Buildings. 2023. Available online: https://www.cdc.gov/coronavirus/2019-ncov/community/ventilation.html (accessed on 19 May 2024).
- Elsaid, A.M.; Mohamed, H.A.; Abdelaziz, G.B.; Ahmed, M.S. A critical review of heating, ventilation, and air conditioning (HVAC) systems within the context of a global SARS-CoV-2 epidemic. Process Saf. Environ. Prot. 2021, 155, 230–261. [Google Scholar] [CrossRef]








| Parameters Measured | Carbon Dioxide Temp RH Atm Pressure | <9999 ppm −40 … 150 °C 0–85% −150 … +150 hPa |
|---|---|---|
| Sensor type | NTC TUC (digital sensor with cable) | |
| Communication technology | Bluetooth sensor (digital Bluetooth sensor or testo SmartProbe) | |
| Precision | Temp: ± (0.3 °C + 0.1% of mv.), Pressure: ±0.05 hPa (0 … +1.00 hPa) | |
| Resolution | 0.1 °C, 0.01 hPa | |
| Size | 154 × 65 × 32 mm | |
| Weight | 250 g | |
| Operating and storage temperature | −20 … +50 °C | |
| Testing Area Point Position | |
|---|---|
| 1 and 6 | 30 cm from the patient door, 120 cm from the ground |
| 2 and 5 | On the patient bed, 120 cm from the ground |
| 3 and 4 | 30 cm from a patient window, 120 cm from the ground |
| 7 | 30 cm from the airlock door, 40 cm from the ground |
| 8 | 30 cm from the corridor entrance, 40 cm from the ground |
| S/N | Space Type | Maximum Occupation, N | Floor Surface, A (m2) | Volume, V (m3) | Volume Area Ratio V/A (m3/m2) | Minimum Volume per Patient, V/N (m3) |
|---|---|---|---|---|---|---|
| 1 | Isolation cubicles | 12 | 224.4 | 673.2 | 3 | 56.1 |
| 2 | ICU | 3 | 69.4 | 208.2 | 3 | 69.4 |
| 3 | Triage | 2 | 22.6 | 67.8 | 3 | 33.9 |
| 4 | Pharmacy | 4 | 10.5 | 31.5 | 3 | 7.875 |
| 5 | Laboratory | 3 | 23.9 | 71.7 | 3 | 23.9 |
| 6 | Suspected case ward (male) | 12 | 161.2 | 483.6 | 3 | 40.3 |
| 7 | Suspected case ward (female) | 12 | 128.1 | 384.3 | 3 | 32.025 |
| 8 | Nurse’s station | 4 | 11 | 33 | 3 | 8.25 |
| 9 | Staff rooms | 4 | 40 | 120 | 3 | 30 |
| Type | Temperature | Relative Humidity | Air Exchange Rate | Breathing Flow Rate | Outdoor Air Fraction | Atm CO2 (PPM) |
|---|---|---|---|---|---|---|
| sum | 5272.60 | 20,059.30 | 1328.80 | 178.36 | 130.97 | 101,890.04 |
| Average | 21.01 | 79.92 | 5.29 | 0.71 | 0.522 | 405.94 |
| Count numbers | 251 | 251 | 251 | 251 | 251 | 251 |
| Max | 21.48 | 82.70 | 5.56 | 0.77 | 0.58 | 411.36 |
| Min | 20.49 | 77.23 | 5.01 | 0.66 | 0.48 | 400.01 |
| Floor Area (m2) | 18.40 | |||||
| Headroom Height (m) | 3.0 | |||||
| Room Volume (m3) | 55.20 | |||||
Disclaimer/Publisher’s Note: The statements, opinions and data contained in all publications are solely those of the individual author(s) and contributor(s) and not of MDPI and/or the editor(s). MDPI and/or the editor(s) disclaim responsibility for any injury to people or property resulting from any ideas, methods, instructions or products referred to in the content. |
© 2024 by the authors. Licensee MDPI, Basel, Switzerland. This article is an open access article distributed under the terms and conditions of the Creative Commons Attribution (CC BY) license (https://creativecommons.org/licenses/by/4.0/).
Share and Cite
Karumuna, B.V.; Hao, L. CO2 Concentration Assessment for Infection Monitoring and Occupancy Analysis in Tanzanian COVID-19 Isolation Centers. Buildings 2024, 14, 2139. https://doi.org/10.3390/buildings14072139
Karumuna BV, Hao L. CO2 Concentration Assessment for Infection Monitoring and Occupancy Analysis in Tanzanian COVID-19 Isolation Centers. Buildings. 2024; 14(7):2139. https://doi.org/10.3390/buildings14072139
Chicago/Turabian StyleKarumuna, Benson Vedasto, and Long Hao. 2024. "CO2 Concentration Assessment for Infection Monitoring and Occupancy Analysis in Tanzanian COVID-19 Isolation Centers" Buildings 14, no. 7: 2139. https://doi.org/10.3390/buildings14072139
APA StyleKarumuna, B. V., & Hao, L. (2024). CO2 Concentration Assessment for Infection Monitoring and Occupancy Analysis in Tanzanian COVID-19 Isolation Centers. Buildings, 14(7), 2139. https://doi.org/10.3390/buildings14072139

