Next Article in Journal
Exploring Urban Heat Distribution and Thermal Comfort Exposure Using Spatiotemporal Weighted Regression (STWR)
Next Article in Special Issue
Research on the Effects of Spatial Forms in Residential Blocks on Road Traffic Noise Distribution in Typical City of China
Previous Article in Journal
Study on Vibration Reduction Effect of the Building Structure Equipped with Intermediate Column–Lever Viscous Damper
Previous Article in Special Issue
A Study of Soundscape Restoration in Office-Type Pocket Parks
 
 
Font Type:
Arial Georgia Verdana
Font Size:
Aa Aa Aa
Line Spacing:
Column Width:
Background:
Article

Influence of Surface Scattering on Auditorium Acoustic Parameters

1
School of Architecture, Inner Mongolia University of Technology, Huhhot 010051, China
2
Green Building Autonomous Region Key Laboratory of Higher Education, Huhhot 010051, China
3
School of Architecture, Tianjin University, No. 92 Weijin Road, Nankai District, Tianjin 300072, China
4
Institute for Environmental Design and Engineering, The Bartlett, University College London, London WC1H 0NN, UK
5
School of Architecture, Tsinghua University, Beijing 100080, China
*
Authors to whom correspondence should be addressed.
Buildings 2024, 14(6), 1882; https://doi.org/10.3390/buildings14061882
Submission received: 20 April 2024 / Revised: 13 June 2024 / Accepted: 18 June 2024 / Published: 20 June 2024
(This article belongs to the Special Issue Acoustics and Perception in Special Shape Spaces)

Abstract

Surface scattering greatly impacts and improves the acoustic quality of an auditorium, affecting properties such as the reverberation time, early decay time, definition, and sound strength. However, this aspect has not been sufficiently investigated to date. In this study, six completed auditoriums are taken as research samples and computer simulations are performed to analyze the variation patterns in the acoustic-quality parameters as functions of increments in the surface scattering coefficients. The results show that the reverberation time and early decay time change marginally (<5%) when the ceiling scattering coefficient increases from 0.01 to 0.99. When the sidewall scattering coefficient increases, the reverberation time and early decay time shorten, and the variation range expands (5–16.7%). In most cases, the definition and sound strength do not significantly change (<0.05 and 1.0 dB). A balcony on the auditorium sidewall can affect the reverberation time-change curve when the sidewall scattering coefficient changes. Changes in the ceiling and sidewall scattering coefficients affect the reflected sound-energy distribution along the time axis differently. Sidewall scattering has a significantly greater impact on the impulse response than ceiling scattering. The findings of this study provide theoretical guidance for the scattering design of the surface of theater auditoriums.

1. Introduction

An auditorium is a performance space in which surface scattering is an important mechanism for improving the acoustic parameters and subjective evaluation of the sound environment. Research has shown that the correlation between the surface diffusivity and acoustic quality of such halls is quite high [1].
Diffuse sound fields strongly influence acoustic-quality parameter calculations. The reverberation time (RT) is considered the most important objective parameter of room acoustic quality [2]. However, the degree of sound-field diffusion strongly impacts the accuracy of RT calculations for auditoriums [3,4]. Although the Sabine equation is widely used for these calculations, this formula does not yield accurate RT values in the case of heterogeneously distributed spatial sound absorption and incomplete sound-field diffusion [5,6,7]. A fully diffuse reverberant field is a prerequisite for such RT calculations. Therefore, RT calculation accuracy depends on the degree of diffusion in the spatial sound field.
As a result, diffuse sound fields in confined spaces are now attracting research attention. Ollendorff first utilized a diffusion model to describe the sound field in a closed space [8]. Furthermore, Kuttruff reported enhanced sound-field diffusion in a room with a diffuse reflection wall [2]. Therefore, irregular surface bumps are used in auditoriums to approximate indoor sound-field diffusion.
Surface scattering is one of the most important factors that affects subjective auditory stimuli in an auditorium. Torres et al. [9] investigated diffusion audibility in room acoustic auralization and observed that changes in the diffusion coefficient were audible over a wide frequency range. Takahashi et al. [10] investigated the subjective effects of periodic-scattering diffusers and found that the subjective tonal effects of the responses increased as the listener approached the diffuser. Regarding the subjective aspect of concert-hall acoustics, the concave/convex degrees of the wall and ceiling are considered in subjective evaluation interviews [1]. The results of previous studies [1,11] indicate that the wall- and ceiling-surface scattering states are positively correlated. This literature review indicates that the surface scattering properties are among the most important factors affecting the degree of diffusion in a room. However, although the cited studies analyzed the relationship between surface scattering and subjective auditory function, they did not investigate the basis of this relationship.
Subsequent studies explored the relationship between the surface scattering coefficient and sound-quality parameters. Choon [12] reported a 0.1 s reduction in RT when the sidewall diffusion was installed. Some studies employed scale models to study the influence of sidewall scattering [13,14]. In these studies, the diffusion and reflection wall states of the scale model and an actual concert hall were compared. The test results showed that increased diffusion can increase the number of reflected sound peaks in the high-frequency region and increasing the number of diffusers reduces the sound pressure level and RT [15]. Shtrepi et al. [16] utilized ODEON, CATT, and Raven to analyze the relationship between RT and scattering using computer simulations of 480 rectangular concert halls. They found a decreasing trend for T30 with increasing wall diffusion.
Hodgson [17] reported that, in a room with specular reflection, the slope of the sound-energy attenuation plot as a function of time is lower than that predicted by Eyring. However, in a high-diffusion room, the slope of the sound-energy decay plot over time exhibits more linear characteristics. Finally, Sakurai and Ando [14] showed that varying diffuser positions and numbers impact the sound field. These studies demonstrated that changes in a surface scattering coefficient affect the acoustic parameters of a room, and particularly, the RT. The study of Autio [18,19] and Mateus [20] demonstrates that the surface scattering coefficient is an important factor affecting the accuracy of reverberation time, as evidenced by the method of comparing computer simulations with empirical data.
Previous studies have investigated the differences in acoustic parameters that arise for scenarios with and without diffusers. By contrast, this study analyzes the trends and magnitudes of changes in acoustic parameters induced by variations in surface scattering data from auditoriums.
Therefore, this study aims to determine the following features:
(1)
Examine the changing patterns in acoustic-quality parameters induced by variations in the ceiling scattering coefficients;
(2)
Examine the changing patterns in acoustic-quality parameters due to variations in the sidewall scattering coefficients;
(3)
Explore the influence patterns of varying scattering coefficients on RT for different sidewall shape conditions;
(4)
Explore the influence of surface scattering on reflected-sound decay over time.
In this study, six large theaters (seat (N) > 800) are selected as research samples. Computer simulation methods are utilized to calculate the changes in the audience-seating acoustic parameters and impulse responses caused by changes in the ceiling and sidewall scattering coefficients. Therefore, the influence of surface scattering on auditorium acoustic parameters is elucidated.

2. Method

2.1. Study Samples

Theater audience seating plans commonly have horseshoe or rectangular layouts. In this study, to illustrate the effects of surface scattering, three theaters for each layout type were selected as research samples, including the Daqing (Daqing, Heilongjiang, China), Fujian (Fuzhou, Fujian, China), and Luoyang Theaters (Luoyang, Henan, China), which are horseshoe-shaped, and the Heze (Heze, Shandong, China), Pinglu (Pinglu, Shanxi, China), and Gannan Theaters (Hezuo, Gansu, China), which are rectangular theaters.
All selected theaters are complete and have passed acoustic acceptance tests. The use of theaters subjected to acoustic testing facilitates calibration of the model calculations, enhancing computational accuracy.
As the audience area in an auditorium is restricted by the apron width and number of seats, this area has a narrow front and a wide back. The horseshoe and rectangular planes are based on this layout. Horseshoe-theater sidewalls are inclined and do not produce flutter echoes. By contrast, rectangular-theater sidewalls are parallel and easily produce flutter echoes. Table 1 lists the cross-sections of the theaters considered in this study.
The theater sidewalls were constructed using reflective materials with low sound absorption coefficients. The Daqing, Luoyang, and Heze Theater sidewalls are composed of multilayer wooden boards, each with a total thickness of 35 mm, whereas the Fujian, Pinglu and Gannan Theater sidewalls are composed of single-layer gypsum board with a thickness of approximately 35 mm.
The Daqing and Luoyang Theater ceilings contain multilayer gypsum board with a total thickness of 36 mm, whereas those of the Fujian, Heze, Pinglu, and Gannan Theaters are composed of 35 mm thick single-layer gypsum board. The back walls of all six theaters are decorated with perforated sound-absorbing materials.
In four of the selected theaters (Daqing, Luoyang, Heze, and Pinglu), the ceilings have larger areas and greater sound-absorption proportions than the sidewalls. In the Fujian and Gannan Theaters, the ceilings and sidewalls have the same areas and sound-absorption proportions. The basic data and the surface engineering modes are detailed in Table 2 and Table 3. Table 3 lists the areas and sound-absorption proportions for the different surfaces of the six sample theaters.
The audience-seating RT was tested based on the measurement procedures specified in ISO 3382-1 [21]. Measurements were conducted under unoccupied conditions using an integrated impulse-response method. The sound source was positioned at the stage center, 3.0 m behind the main curtain line and 1.5 m above the stage ground, to mimic a natural sound-source placement. The microphone positions were uniformly distributed along one side of the audience seating area, with six measurement points allocated to the orchestral seats. Gunshots were utilized as sound-source Dirac impulses and a Nor118 sound analyzer (Norsonic Norway) was employed as the recording device.
The RT values of the orchestral seating were recorded on site, with each measurement point being performed three times. The arithmetic mean of these measurements was considered as the RT for the corresponding point. Additionally, the arithmetic mean of all measurement points within the orchestral seating area was calculated to determine the overall RT for the orchestral seats. Figure 1 illustrates the positions of the test sound source and receiver points within the orchestral seating area.

2.2. Computer Simulation

In this study, computer simulations were used to predict the acoustic-quality parameters. The accuracy of these simulations has been proven for various space types [16,22,23,24,25]. Figure 2 shows the flowchart of the simulation process.
CATT-Acoustic v9.0b (CATT, Gothenburg, Sweden) and Odeon 14 Auditorium (Scion DTU, Kongens Lyngby, Denmark) are the two most used simulation software programs [26,27,28,29,30]. CATT is based on a virtual sound source and sound-ray tracing methods for simulation calculations, whereas Odeon is based on a combination of sound-ray and mirror-sound source methods. Both software programs provide high accuracy for conventional simulations. Taking a church as a research object, Shtrepi et al. [31] compared simulation results provided by CATT and Odeon with measured data. The RT and speech intelligibility calculated using CATT and Odeon were in good agreement with the measured values. Additionally, the RTs (T30) calculated by the two programs were in agreement when the scattering coefficients of each frequency band calculated automatically by Odeon for a 707 Hz scattering coefficient were substituted into CATT.

2.3. Simulation Parameter Settings

In this study, six sample theaters were modeled in three dimensions using SketchUp. Different positions of the surfaces in the computational model were set up with different layers to facilitate the assignment of appropriate absorption coefficients and scattering coefficients to different surfaces during the calculation process. The layer names are identical to the surface names in CATT. Figure 1 shows a half longitudinal section of the computational model. For details of the calculation model, please refer to Figure 3.
Six virtual models corresponding to actual theaters were considered in this study. CATT-Acoustics v9.0b was used as a predictive tool to analyze the changes in RT, early decay time (EDT), definition (D50), and sound strength (G) based on variations in the sidewall and ceiling scattering coefficients.
Research conducted by Aspöck et al. [32,33,34] indicates that absorption coefficients obtained from reverberation-chamber measurements can be employed in computer simulations. Furthermore, Brinkmann et al. [35] found that deficiencies in simulation algorithms and errors in absorption coefficient measurements yield significant deviations, particularly for low and high frequencies, compared with measured values. Findings by Aspöck et al. [36] suggest that the differences between simulated and measured impulse responses are due to a lack of diffuse reflections.
In this study, both the sound-absorption and scattering coefficients were meticulously measured by the authors within the Acoustic Laboratory at Tsinghua University. The test procedures were in strict accordance with the ISO 354:2003 standard [37]. The laboratory was certified by the China National Accreditation Service for Conformity Assessment (CANS), which attests to the credibility and reliability of the experimental setup and acquired data.
During the computational process, the data derived from the laboratory measurements were appropriately adjusted in accordance with current engineering practices. This approach ensured that the calculated results not only reflected the empirical evidence but also aligned with real-world applications and considerations.
Taking the Daqing Grand Theater as an example, the sound-absorption and scattering coefficients for the CATT calculations were set as follows: ABS (material position) = < 125–4000 Hz absorption coefficient (%)> L <125–4000 Hz scattering coefficient (%)>, as presented in Table 4.
In the simulation, the sound source point was placed 3.0 m behind the apron centerline and 1.5 m above the stage ground. An omnidirectional sound source with a 90 dB sound pressure level in each octave band in the 125–4000 Hz range was selected as the test source. The sound line number was that recommended for CATT. Six measurement points were evenly arranged on one side of the auditorium centerline, as shown in Figure 1. To increase the calculation reliability, each scattering-coefficient state was calculated thrice and the average value of those from the six measurement points was taken as the auditorium RT. In this study, T20 was used as the RT index. The EDT and D50 were calculated using the same method.

2.4. Calculation of Reverberation Time (RT) Change Rate

In this study, the auditorium walls and ceilings were taken as the research objects. In the simulation, the sound-absorption coefficient of each surface was kept constant, and the scattering coefficient was determined based on the actual wall shape and the value recommended by the simulation software. When the sidewall or ceiling scattering coefficient was changed, the remaining surface was unchanged. The surface scattering coefficients of the research objects were set to one of seven values: 0.01, 0.1, 0.3, 0.5, 0.7, 0.9, and 0.99. Taking the RT value calculated for a scattering coefficient of 0.01 as the reference value RT0.01, the RT change rate relative to RT0.01 for another scattering-coefficient state (RTs) is given by
τ = R T s R T 0.01 R T 0.01 × 100 %
where τ is the RT change rate and RTs is the RT at scattering coefficient s.
The just-noticeable difference (JND) was used to evaluate the variations in the RT and EDT. In studies conducted by Vitale [38], Vorländer [39], and Bork [40,41], the relative difference threshold of the RT measurement was 5–10% in the same environment. The significance level was set at 5%. The EDT calculation method was similar to that for the RT calculation. Therefore, the same evaluation method was utilized. The changes in D50 and G exceeding 0.05 and 1.0 dB, respectively, were considered significant.

2.5. Study Frequency Range

Kuttruff [2] found that geometric acoustics can be used to calculate the indoor sound field for frequency bands exceeding the Schroeder frequency (fs). In geometric acoustics, sound-ray reflection and scattering are used to simulate sound propagation. This method has high accuracy at high frequencies, where the surface size is considerably larger than the wavelength [2]. The Schroeder frequency is expressed as
f s 2000 T V · Hz
where T is the RT and V is the volume of the space.
In this study, the arithmetic mean of the RTs of the three octaves at 500, 1000, and 2000 Hz (which is four times higher than the Schroeder frequency) was considered. Gao [42] and Savioja [43] demonstrated that a frequency range greater than four times fs corresponds to the geometric acoustic frequency band. Table 5 lists the fs values of the six sample theaters used in this study.
In this study, the differences between the arithmetic means of the RTs measured at 500, 1000, and 2000 Hz across the six sample theaters and the simulated calculation values were all less than 1 JND. The data comparison and fs values of the sample theaters are listed in Table 5. The frequency calculated in this study was significantly higher than fs.

3. Results

This study initially undertakes calculations for typical measurement points distributed uniformly across the audience seating area, thereby ascertaining the variations in reverberation time at each measurement point as the scattering coefficients of the ceiling and sidewalls change. Subsequently, taking the Pinglu Theater as a sample, the distribution of reverberation time across the audience seating is computed based on the optimal factors derived from the calculation results.
Based on the previous findings, calculations and analyses are conducted on the trend in acoustic parameters commonly used in performance buildings as they vary with increasing scattering coefficients of different surfaces.

3.1. Variation Trend in Reverberation Time with the Increase in the Surface Scattering Coefficient

3.1.1. Variation in Reverberation Time at Typical Measurement Points

The reverberation time of the six sample theaters is calculated using CATT, with each sample theater having six typical measurement points set in the audience area, as shown in Figure 1. The variation in the reverberation time at the typical measurement points with the increase in scattering on the sidewalls and ceiling is calculated, and the differences in reverberation time among different measurement points are compared. The average value of the reverberation time at the six typical measurement points is taken as the baseline value, with a fluctuation of 5% above and below this baseline value as the critical range. If the reverberation time at the measurement points is within the critical range, the consistency in the reverberation time variation in the audience area is good, and the trend in the reverberation time variation is shown in Figure 4.
From Figure 4, the reverberation time at the six typical measurement points in the audience area decreases for all samples when the scattering coefficient of the sidewalls increases. Measurement point 06 at the Gannan Theater exceeds the critical range, while the reverberation time changes for the other sample theaters are within the critical range, and the reverberation time at all measurement points shows a downward trend. The decrease in reverberation time at the Pinglu Theater and Gannan Theater is greater than that at the other four sample theaters. When the scattering coefficient of the ceiling increases, the changes in reverberation time at all measurement points are within the critical range, and the trend in the decrease in reverberation time is not significant. This study confirms that variations in the surface scattering coefficient can influence the reverberation time within the audience area, and the amplitude of the reverberation time changes induced by alterations in the scattering coefficients at different surface positions is not uniform.

3.1.2. Impact of Sidewall Scattering Coefficient Variation on the Distribution of Reverberation Time

Using the Pinglu Theater as a case study, 72 reception points were uniformly distributed along one side of the centerline of the audience seating area. The reverberation time at each reception point was calculated as the sidewall scattering coefficient increases, and a distribution map illustrating the changes in reverberation time across the audience seating due to variations in the sidewall scattering coefficient is produced based on these calculations (see Figure 5).
From the calculated values of reverberation time in the planar distribution of the orchestra seating at lower scattering coefficients, the reverberation time exhibits a phenomenon of “short in the front and long in the back, lower in the middle and longer on the sides”. In the rear area of the orchestra seating, the reverberation time is longer than in the front area when the scattering coefficient is low, with a difference of approximately 0.25 s, and the middle area is approximately 0.2 s longer than the sides. As the scattering coefficient increases, the reverberation time in the orchestra seating becomes shorter, and the range of differences in reverberation time also decreases. When the scattering coefficient reaches 0.99, the difference in reverberation time in the orchestra seating is reduced to 0.1 s.

3.2. Effect of Changes in the Ceiling Scattering Coefficient

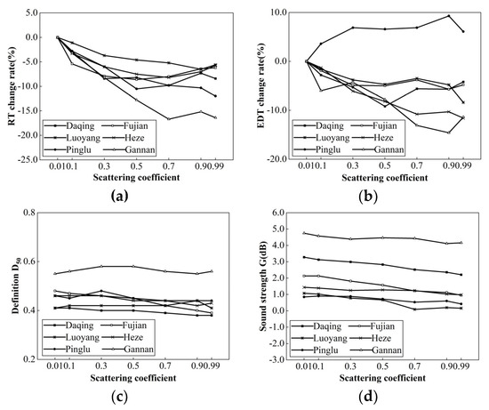
When the ceiling scattering coefficient was altered, the computational results indicated that the changes in RT were all less than 1 JND. For one sample theater, the EDT slightly exceeded 1 JND, whereas for two sample theaters, D50 slightly surpassed 1 JND. The changes in G for all sample theaters were also less than 1 JND, as reported in Figure 6 and Table 6.
The results indicate that no obvious RT change occurred when the ceiling scattering coefficient increased. The maximum rate of change was −4.82%, recorded for the Luoyang Theater, which was less than the significance level of 5%, as shown in Figure 4a and Table 6. Based on Figure 6b and Table 6, the trend in EDT was similar to that in the RT. The maximum rate of change was 5.1%, recorded for the Gannan Theater. Therefore, it is assumed that a change in the ceiling scattering coefficient does not significantly affect the auditorium EDT.
The trends in D50 were observed for the six sample theaters. The D50 changes in the Daqing and Heze Theaters were 0.06, exceeding the significance level of 0.05, whereas the D50 changes in the remaining sample theaters were less than 0.05, as shown in Figure 6c and Table 6. Therefore, the greatest change in the ceiling scattering coefficient did not significantly affect the auditorium clarity. The G of the six sample theaters changed by less than the significance level of 1.0 dB, as shown in Figure 6d and Table 6. Hence, changes in the ceiling scattering coefficient do not change G.

3.3. Effect of Changes in the Sidewall Scattering Coefficient

The change magnitude of RT exceeded 1 JND when the sidewall scattering coefficient was altered. For four theater samples, the EDT variations also surpassed 1 JND. The D50 of one theater sample exceeded 1 JND, and the sound intensity of two theater samples changed by more than 1 JND. The findings are reported in Figure 7 and Table 7.
Overall, the RTs of the six sample theaters exhibited a decreasing trend. The approximate maximum changes in the Daqing, Luoyang, Fujian, Heze, Pinglu, and Gannan Theater RTs were −8.4%, −5.6%, −6.2%, −5.7%, −12.0%, and −16.7%, respectively. Among all six sample theaters, the maximum RT variation was in the range of 5–17%, exceeding 5%, as reported in Figure 7a and Table 7. Therefore, variation in the sidewall scattering coefficient can significantly affect the RT.
The EDTs of the sample theaters decreased by different degrees. The maximum changes in the Daqing, Fujian, Luoyang, Heze, Pinglu, and Gannan Theater EDTs were −4.2%, −4.8%, −8.4%, −11.6%, 6.09%, and 14.6%, respectively, as shown in Figure 7b and Table 7. Thus, changes in the sidewall scattering coefficient significantly affect the EDT of an auditorium.
For all six sample theaters, D50 exhibited a decreasing trend. For the Fujian Theater, the D50 change was 0.09, exceeding 0.05, whereas those of the remaining sample theaters were less than 0.05, as shown in Figure 7c and Table 7. Therefore, the greatest change in the sidewall scattering coefficient did not significantly affect the auditorium clarity. The changes in G for the Daqing and Fujian Theaters exceeded 1.0 dB, whereas those for the remaining sample theaters were less than 1.0 dB (Figure 7d, Table 7).

3.4. RT Change Consistency

The RT rate of change curves obtained for varying surface scattering coefficients exhibited different magnitudes for different auditoriums. In this study, a uniform line of maximum variation was set as the reference line. For the different theater auditoriums, the magnitudes of the sidewall scattering coefficients when reaching this uniform RT line were compared.
Considering the RT consistency with the 5% change threshold as the RT judgment standard, the maximum change in the RT change rate curve was set as the reference value. Hence, the value of the maximum change rate was reduced by 5% as the range boundary of the RT-consistency maximum change rate. When the RT change rate exceeded this value, this was regarded as the maximum amount of change (Figure 6). Hence, the scattering coefficient corresponding to the intersection point of the RT change rate curve and the RT-consistency line can be defined as the critical scattering coefficient.
Based on Figure 8, in the Daqing, Fujian, Luoyang, and Heze Theaters, the sidewall scattering coefficients were all less than 0.2 (0.08–0.18) when the RT change rate reached the uniform RT line. However, in the Pinglu and Gannan Theaters, the sidewall scattering coefficients all exceeded 0.3 (0.37–0.48) when the uniform RT line was reached.
A comparative analysis of the onsite photographs, floor plans, cross-sections, and 3D models of each sample theater in Table 1 and Figure 1 revealed that the Daqing and Fujian Theaters have protruding balcony seats, the Luoyang Theater has horizontally protruding elements and vertically oriented small (600 mm wide) folded designs on the walls, and the Heze Theater has protruding balcony seats and vertically oriented small (1200 mm wide) folded designs on the walls. In contrast, the Pinglu and Gannan Theaters lack protruding balcony seats and only large folded designs (4500 mm wide) protrude from the walls, which are significantly smaller than the balcony-seat dimensions.
The subjective method proposed by Haan [1] was utilized to assign diffusion levels to the sidewalls and ceilings; hence, the Pinglu and Gannan Theater sidewalls were found to exhibit low diffusion levels, whereas those of the other four sample theaters exhibit high diffusion levels. Therefore, the scattering coefficient required for the RT change rate to reach the uniform RT line is effectively reduced when the sidewall shape yields a higher diffusion level. Conversely, for a sidewall shape with a lower diffusion level, a higher scattering coefficient is required for the RT change rate to reach the uniform RT line.

3.5. Influence of Scattering Coefficient Variation on the Impulse Response

The calculations showed that the RT, EDT, D50, and G values of the auditorium pool-seating areas were not significantly affected by changes in the ceiling scattering coefficient. However, the RT of the auditorium pool-seating area significantly changed with changes in the sidewall scattering coefficient.
An analysis of the computed impulse responses, which concentrated on the reflected sound within 200 and 140 ms, showed that changes in the scattering coefficients for both the ceiling and sidewalls affected the temporal distribution of the reflected sound energy.

3.5.1. Influence of Ceiling Scattering on the Impulse Response

A comparative analysis of the sound attenuation curves obtained from the measurement points in the six sample theaters was performed, as shown in Figure 9. The ceiling scattering coefficient was changed, and the measurement point in the center of the front area was selected as a representative measurement point. The comparison reveals that the change in the ceiling scattering coefficient had a diminishing effect on the sound-energy attenuation over time, with the peak sound-energy value decreasing. However, the number of reflected sounds and the time at which the peak value occurred did not significantly change in response to the changes in the ceiling scattering coefficient.

3.5.2. Influence of Sidewall Scattering on the Impulse Response

For all six sample theaters, the variations in the impulse response at the representative measurement point in the audience seating area in response to changes in the sidewall scattering coefficient are shown in Figure 10.
The analysis of the impulse-response curves indicates that the number of strongly reflected sounds decreased or even disappeared, and the number of weakly reflected sounds increased, when the scattering coefficients increased from 0.01 to 0.99. An increase in the sidewall scattering coefficient had a “peak-load shifting” effect on the temporal distribution of the reflected sound energy, dispersing the stronger reflected sound energies to weaker areas, changing the sequence of the reflected sound-energy decay over time.
The RT was calculated based on the slope of the sound decay curve obtained through reverse-time integration of the squared impulse responses, as follows [18]:
E t = t p 2 τ d τ
where p(t) is the impulse-response sound pressure as a function of time t and E(t) is the energy of the decay curve as a function of t.
Based on Equation (3), when calculating the sound-energy decay, the sound energy at any given t is the sum of the squares of the sound pressures within the range t → ∞. Therefore, a change in the temporal distribution of the reflected sound energy causes the sound energy at any given t to change, which, in turn, changes the RT.
From the impulse responses obtained for the selected representative points, changes in the sound-energy distribution caused by changes in the ceiling scattering coefficient altered the RT. However, these changes were relatively small, thus, insufficient to cause significant changes in the auditorium RT. By contrast, changes in the sidewall scattering coefficient caused larger changes in the sound-energy distribution, which significantly altered the RT.
Compared with the phenomenon in which increasing sound absorption induces a shorter RT and higher D50, the calculation results showed that, although sidewall scattering can shorten the RT and EDT, increased ceiling and sidewall scattering coefficients cause small changes in D50 and G of less than 0.1 and 1.0 dB, respectively. Considering the physical definition of D50, this property characterizes the ratio of the sound energy to the total sound energy within 50 ms from the beginning of the direct sound. Therefore, in the ideal state, surface scattering changes can be caused by changes in the sound-energy temporal distribution. However, this depends on the specific sound-energy temporal distribution. The sound-energy distribution for the first 50 ms after the arrival of the direct sound has a smaller effect. Similarly, surface scattering has a minimal impact on G.

4. Discussion

Previous studies [12,13,14,15] have shown that greater surface scattering yields shorter RT. In this study, six existing theaters were utilized as research samples for computer simulations to calculate trends in RT, EDT, D50, and G with changes in the surface scattering coefficients. In the experiment, the RT trends were consistent with previous research results [12,13,14,15]. We investigated and analyzed separately the trends and changes in acoustic-parameter patterns due to different surface scattering changes.
The experimental results indicated that an increase in the sidewall scattering coefficient of a theater more significantly impacts the acoustic parameters than an increase in the ceiling scattering coefficient. The maximum variation in reverberation time attributable to changes in the sidewall scattering coefficient reached 16.7%, which exceeds the range of a JND. By contrast, the maximum variation in reverberation time due to alterations in the ceiling scattering coefficient was only 4.82%, falling short of a JND.
Based on the reverberation time calculation formula outlined in ISO 3382 [21], the duration of reverberation is influenced by both the intensity of the reflected sound and the delay time of the reflected sound. Changes in the scattering coefficient of the surface will alter both the intensity of the reflected sound and the path of sound propagation, as indicated by utilizing the principles of geometric acoustics for analysis. In the presence of scattering phenomena, the sound energy, upon incidence on the surface, undergoes two forms of reflective behavior, as shown in Figure 11.
In the first case (indicated by the blue line in Figure 10), when sound undergoes specular reflection, the primary reflected sound reaches the receiver directly. Should the reflection point exhibit sound scattering, among all the reflected sounds, the first-order specular reflection has the shortest sound propagation path to the receiver, while the path lengths for all scattered sound energies to reach the receiver are greater than that of the first-order reflection. Consequently, the incident sound energy, post-scattering at the surface, experiences alterations in the energy reaching the receiver along the temporal axis. Scattering results in a diminution of the specular-reflected sound energy. Under the assumption of no interfacial absorption, the energy reduction from specular reflection is redistributed within the temporal domain after the arrival of the specular reflection. Based on the reverberation time calculation formula, this phenomenon induces an elongation of the reverberation time.
In the second scenario (Figure 10), when sound undergoes specular reflection, the first-order reflected sound does not reach the receiver point and necessitates the passage of second-order or higher-order reflections for the sound energy to reach the receiver. In the first-order scattering, some of the sound energy can directly reach the receiver point, with a sound propagation path length that is less than that of the energy reflected by specular reflection. The reflected sound energy reaching the receiver point after being reflected by the scattering surface undergoes changes along the time axis. The energy of the reflected sound is reduced. Assuming that there is no interfacial absorption, a portion of the energy reduced by the specular reflection is transferred to the time domain before the arrival of the specular reflection. Based on the reverberation-time calculation formula, this phenomenon results in a decrease in the reverberation time.
Within the theater space, adhering to the principles of geometric acoustics, analysis of a point sound source on the stage has revealed that the height of the sound source delineates the boundary for the sidewalls to engage in the dual reflective behaviors. Sound energy incident upon the sidewall below the sound source height will reflect directly to the audience, aligning with the first type of reflective behavior described earlier, whereas sound reflecting above the sound source height necessitates a secondary reflection off the ceiling or higher points on the sidewalls before returning to the audience through multiple reflections, aligning with the second type of reflective behavior. In theaters of the same scale as the sample theater in this study, the height of the sidewalls, measured from the first row of the audience, typically ranges from 10 to 14 m. The height of the sound source point on the stage, measured from the first row of the audience, ranges from 2.3 to 2.5 m. The reflective surface area for the second type of reflective behavior significantly exceeds that of the first. Additionally, in the vertical dimension, the farther the distance from the sound source height, the greater the variation in the length of the sound propagation path during the second type of reflective behavior. An augmentation in the sidewall’s scattering coefficient intensifies the occurrence of this second type of reflection; hence, an increase in the sidewall scattering coefficient is correlated with a reduction in the reverberation time.
Upon analyzing the ceiling, after the sound is incident upon it, the sound energy that impinges on the central region of the ceiling will directly reflect to the audience through the first type of reflective behavior. Conversely, sound that impinges on the periphery of the ceiling will undergo the second type of reflective behavior, reflecting off the sidewalls before ultimately reaching the audience. Consequently, an increase in the ceiling’s scattering coefficient does not exert a significant impact on the reverberation time.
Thus, this phenomenon may lie in the fact that an increase in the sidewall scattering coefficient results in a greater change in the amplitude of the reflected sound peaks within the impulse response than does an increase in the ceiling’s scattering coefficient.
The incorporation of a prominent balcony in the midsection of the sidewall effectively truncates the wall’s height, reducing the area susceptible to the second type of reflective behavior and concurrently mitigating the alterations in the sound propagation path induced by scattering. As illustrated in previous studies, in instances where the sidewalls of theater auditoriums are equipped with balconies, the variability in reverberation time is markedly lower for the scattering coefficient that corresponds to the consistent line, as opposed to scenarios where the sidewalls are devoid of balconies. Furthermore, when the sidewall has a balcony, the critical scattering coefficient of sidewall must be lower than 0.2. In the absence of a balcony, the critical scattering coefficient must exceed 0.3.
Without considering surficial absorption, scattering does not result in energy dissipation, and the total sound energy at the receiver remains unchanged. Consequently, the changes in the clarity index D50 are predominantly affected by the sound energy within the first 50 ms following the direct sound. Based on the analysis from a geometric acoustics standpoint, the path difference between the reflected sound and the direct sound is less than 17 m. In theaters of a scale comparable to the sample in this study, the width of the auditorium is roughly between 25 and 30 m, with the sidewall’s distance from the auditorium’s centerline being approximately 15 m, which corresponds to the sound path difference for a 50 ms delay; the ceiling is situated approximately 10–14 m from the ground. The first type of sound reflection behavior predominantly influences D50. Figure 3 and Figure 4 demonstrate that the D50 curve shows a declining trend, albeit a minimal one, as the scattering coefficients of the ceiling and sidewalls increase. In this study, sound scattering behavior alters the direction of sound propagation, thus changing the distribution of sound energy within the space without causing a loss in sound energy. Hence, interfacial scattering does not exert a significant impact on G.
The acoustic design of a theater audience hall is based on a decorative design that manages the acoustic environment; thus, the surface diffusion design must be closely aligned with the decorative design. Different decorative design patterns yield distinct scattering coefficients, and the acoustic-quality parameter requirements associated with these coefficients influence the surface geometry design. The results of this study revealed the significance of the decorative and surface-scattering designs in different locations. As changes in the ceiling scattering coefficient minimally impact the acoustic-quality parameters, whereas changes in the sidewall scattering coefficient have a more substantial effect, the ceiling scattering-coefficient design is of secondary important for a theater audience hall, whereas the sidewall scattering-coefficient design is of primary importance.
Using geometric acoustics methodology, this study elucidated the relationship between the scattering coefficient changes and acoustic parameters for both the ceiling and sidewalls. This approach will enhance diffusion design strategies for auditoriums and improve the accuracy of acoustic design, particularly regarding the acoustics of the middle- and high-frequency ranges. Moreover, this study underscores the need for further investigation into the low-frequency band-change rules.
The design schemes for theater decorations are diverse, and due to the limitation in the number of sample theaters, it is challenging for this study to encompass all forms of theaters. Therefore, increasing the quantity and various sample theaters in subsequent research is necessary to further refine the study on the impact of surface scattering on the auditorium acoustic parameters.

5. Conclusions

To assess the influence of surface scattering on auditorium acoustic parameters, six sample theaters were selected, three-dimensional models were constructed based on the decoration schemes of the theater auditoriums, and computer simulations were conducted. In the simulation, the surface sound-absorption coefficients were determined based on laboratory sound-absorption coefficient test data for the decorative styles of the sample theaters and the surface decoration modes. The surface scattering coefficients of the unmeasured objects were determined using the surface shape and size and the scattering coefficient recommended by the calculation software. Accordingly, the following conclusions are drawn.
The reverberation time (RT) and early decay time (EDT) are sensitive to the distribution of sound energy along the time axis; therefore, variations in the scattering coefficients of different surface positions have distinct impacts on the propagation path of reflected sound, leading to different effects on the RT and EDT in the audience seating area. The findings of this study indicate that when the scattering coefficient of the ceiling increases, the changes in the reverberation time and early decay time in the audience seating area are less than one just-noticeable difference (JND). By contrast, an increase in the scattering coefficient of the sidewalls results in a significantly greater change in both reverberation time and early decay time, exceeding one JND. The impact of variations in the ceiling scattering coefficient on reverberation time and early decay time is markedly less than the impact caused by changes in the sidewall scattering coefficient.
The definition and sound strength exhibit relatively lower sensitivity to the distribution of sound energy along the time axis; hence, changes in the scattering coefficients, whether of the ceiling or the sidewalls, do not induce significant alterations in the propagation path and energy of reflected sound, and are insufficient to cause a notable effect on clarity and loudness factors.
The undersurface of the balcony can reflect the incident sound energy toward the audience seating area, effectively altering the reflection path and sound travel difference in the sound energy. Therefore, protruding balconies from the sidewalls can significantly influence the critical scattering coefficients of the sidewalls. When balconies extend from the walls on both sides, projecting forward to the box boom, a decrease in the critical scattering coefficient is observed. Conversely, an increase in the critical scattering coefficient is noted when such protrusions are absent.
The temporal distribution of the reflected sound energy of the impulse response changed, altering the RT, when the ceiling and sidewall scattering coefficients changed. The impulse-response change because of the variation in the sidewall scattering coefficient exceeded that due to variation in the ceiling scattering coefficient.
The conclusions of this study provide a theoretical basis and design guidance for the surface scattering design in theater auditoriums. Additionally, the findings can serve as a foundation for further research into the low-frequency components of the surface and the relationship between surface scattering and acoustic parameters in newly added sample theaters.

Author Contributions

All authors contributed to the study conception and design. X.Z. was responsible for simulation calculations and drafting while G.X. and X.X. were responsible for building computational models. X.X. and Y.H. made revisions to the first- and second-round drafts, while J.K. made revisions to the third-round drafts. All authors commented on previous versions of the manuscript. All authors have read and agreed to the published version of the manuscript.

Funding

This work was supported by Research Program of science and technology at Universities of Inner Mongolia Autonomous Region (grant number NJZY22369) and Research Program of science of Inner Mongolia University of Technology (grant number ZY202105).

Data Availability Statement

Data are contained within the article.

Conflicts of Interest

The authors have no competing interests to declare that are relevant to the content of this article.

References

  1. Haan, C.H.; Fricke, F.R. An evaluation of the importance of surface diffusivity in concert halls. Appl. Acoust. 1997, 51, 53–69. [Google Scholar] [CrossRef]
  2. Kuttruff Room Acoustics, 5th ed.; Spon Press: London, UK, 2009; pp. 101–102.
  3. Polack, J.D. Modifying chambers to play billiards: The foundations of reverberation theory. Acta Acust. United Acust. 1992, 76, 256–272. [Google Scholar]
  4. Yang, L. Architectural Acoustic Environment; China Architecture Publishing & Media Co., Ltd.: Beijing, China, 2021; pp. 102–103. (In Chinese) [Google Scholar]
  5. Hodgson, M. When is the diffuse-field theory applicable? Appl. Acoust. 1996, 49, 197–207. [Google Scholar] [CrossRef]
  6. Bistafa, S.R.; Bradley, J.S. Predicting reverberation time in a simulated classroom. J. Acoust. Soc. Am. 2000, 108, 1721–1731. [Google Scholar] [CrossRef] [PubMed]
  7. Ducourneau, J.; Planeau, V. The average absorption coefficient for enclosed spaces with non-uniformly distributed absorption. Appl. Acoust. 2003, 64, 845–862. [Google Scholar] [CrossRef]
  8. Ollendorff, F. Statistical room-acoustics as a problem of diffusion: A proposal. Acta Acust. United Acust. 1969, 21, 236–245. [Google Scholar]
  9. Torres, R.R.; Kleiner, M.; Dalenback, B.I. Audibility of ‘diffusion’ in room acoustics auralization: An initial investigation. Acust. Acta Acust. 2000, 86, 919–927. [Google Scholar]
  10. Takahashi, D.; Takahashi, R. Sound fields and subjective effects of scattering by periodic-type diffusers. J. Sound. Vib. 2002, 258, 487–497. [Google Scholar] [CrossRef]
  11. Haan, C.H.; Ricke, F.R. Musician and Music Critic Responses to Concert Hall Acoustics. In Proceedings of the 15th International Congress on Acoustics (ICA 95), Trondheim, Norway, 26–30 June 1995. [Google Scholar]
  12. Choon, K.S.; Yong, H.K.; Pyoung, J.L.; Jin, Y.J. Acoustical renovation of small auditoria using sound diffusers. In Proceedings of the ISRA2010, Melbourne, Australia, 29–31 August 2010. [Google Scholar]
  13. Jeon, J.Y.; Jang, H.S.; Kim, Y.H. Influence of wall scattering on the early fine structures of measured room impulse responses. J. Acoust. Soc. Am. 2015, 137, 1108–1116. [Google Scholar] [CrossRef]
  14. Sakurai, M.; Ando, Y.; Yamamoto, I.; Iizuka, T.; Oowaki, M. An evaluation of the effects of scattered reflections in a sound field. J. Sound Vib. 2000, 232, 303–308. [Google Scholar]
  15. Ryu, J.K.; Jeon, J.Y. Subjective and objective evaluation of a scattered sound field in a scale model opera house. J. Acoust. Soc. Am. 2008, 124, 1528–1549. [Google Scholar] [CrossRef] [PubMed]
  16. Shtrepi, L.; Arianna, A. Objective and perceptual assessment of the scattered sound field in a simulated concert hall. J. Acoust. Soc. Am. 2015, 138, 1485–1497. [Google Scholar] [CrossRef] [PubMed]
  17. Hodgson, M. Evidence of diffuse surface reflections in rooms. J. Acoust. Soc. Am. 1991, 89, 765–771. [Google Scholar] [CrossRef]
  18. Autio, H.; Vardaxis, N.G.; Hagberg, D.B. The influence of different scattering algorithms on room acoustic simulations in rectangular rooms. Buildings 2021, 11, 414. [Google Scholar] [CrossRef]
  19. Autio, H.; Nilsson, E. A novel algorithm for directional scattering in acoustic ray tracers. Acoustics 2023, 5, 928–947. [Google Scholar] [CrossRef]
  20. Mateus, D.; Andreia, P. Proposal of a simplified methodology for reverberation time prediction in standard medium size rooms with non-uniformly distributed sound absorption. Acta Acus. 2023, 7, 31. [Google Scholar] [CrossRef]
  21. ISO 3382-1; Measurement of Room Acoustical Parameters—Part 1: Performance Spaces. International Organization for Standards: Geneva, Switzerland, 2009.
  22. Wang, L.M.; Rathsam, J. The influence of absorption factors on the sensitivity of a virtual room’s sound field to scattering coefficients. Appl. Acoust. 2008, 69, 1249–1257. [Google Scholar] [CrossRef]
  23. Vitale, R. Perceptual Aspects of Sound Scattering in Concert Halls; Vol. 21.[S.l.]; Logos Verlag Berlin GmbH: Berlin/Heidelberg, Germany, 2015. [Google Scholar]
  24. Dalenbäck, B.I.L.; Kleiner, M.; Svensson, U. A Macroscopic View of Diffuse Reflection. J. Audio Eng. Soc. 1994, 42, 793–807. [Google Scholar]
  25. Dalenbäck, B.I.L. Verification of prediction based on randomized tail-corrected cone-tracing and array modeling. J. Acoust. Soc. Am. 1999, 105, 1173. [Google Scholar] [CrossRef]
  26. CATT-A v9.0. User’s Manual; CATT: Gothenburg, Sweden, 2011; Available online: http://www.catt.se (accessed on 1 April 2012).
  27. TUCT v1.0g. User’s Manual; CATT: Gothenburg, Sweden, 2011.
  28. Christensen, C.L.; Koutsouris, G.; Gil, J. ODEON User’s Manual; ODEON A/S Scion DTU: Kongens Lyngby, Denmark, 2016. [Google Scholar]
  29. Koutsouris, G.; Christensen, C.L. ODEON Quick Start Guide; ODEON A/S Scion DTU: Kongens Lyngby, Denmark, 2016. [Google Scholar]
  30. Hodgson, M.; York, N.; Yang, W. Comparison of Predicted, Measured and Auralized Sound Fields with Respect to Speech Intelligibility in Classrooms Using CATT-Acoustic and ODEON. Acta Acust. United Acust. 2008, 94, 883–890. [Google Scholar] [CrossRef]
  31. Shtrepi, L.; Pelzer, S.; Rychtáriková, M.; Vitale, R.; Astolfi, A.; Michael, V. Objective and subjective assessment of scattered sound in a virtual acoustical environment simulated with three different algorithms. In INTER-NOISE and NOISE-CON Congress and Conference Proceedings; Institute of Noise Control Engineering: Wakefield, MA, USA, 2012; pp. 7394–7405. [Google Scholar]
  32. Aspöck, L.; Opdam, R.; Vorländer, M. Acquisition of boundary conditions for a room acoustics simulation comparison. In Proceedings of the International Symposium on Musical and Room Acoustics (ISMRA 2016), La Plata, Argentina, 11–13 September 2016. [Google Scholar]
  33. Aspöck, L. Validation of Room Acoustic Simulation Models. Ph.D. Thesis, RWTH Aachen University, Aachen, Germany, 2020. [Google Scholar]
  34. Aspöck, L.; Vorländer, M. Synthesis of room impulse responses based on simulated energy decay curves. In Proceedings of the 43rd Annual German Conference on Acoustics, Kiel, Germany, 6–9 March 2017. [Google Scholar]
  35. Brinkmann, F.; Aspöck, L.; Ackermann, D.; Lepa, S.; Vorländer, M.; Weinzierl, S. A round robin on room acoustical simulation and auralization. J. Acoust. Soc. Am. 2019, 145, 2746–2760. [Google Scholar] [CrossRef] [PubMed]
  36. Aspöck, L.; Vorländer, M. Differences between measured and simulated room impulse responses INTER-NOISE and NOISE-CON Congress and Conference Proceedings. Inst. Noise Control Eng. 2023, 265, 3209–3217. [Google Scholar]
  37. ISO 354:2003; Acoustics—Measurement of Sound Absorption in a Reverberation Room. ISO: Geneva, Switzerland, 2003.
  38. Vitale, R. Perceptual Aspects of Sound Scattering in Concert Halls. Ph.D. Thesis, RWTH Aachen University, Aachen, Germany, 2014. [Google Scholar]
  39. Vorländer, M. International Round Robin on Room Acoustical Computer Simulations. In Proceedings of the 15th ICA 1995, Trondheim, Norway, 26–30 June 1995; pp. 689–692. [Google Scholar]
  40. Bork, I. A comparison of room simulation software—The 2nd round robin on room acoustical computer simulation. Acustica 2000, 86, 943–956. [Google Scholar]
  41. Bork, I. Report on the 3rd round robin on room acoustical computer simulation-part II: Calculations. Acta Acust. United Acust. 2005, 91, 753–763. [Google Scholar]
  42. Gao, Y.L. Definition of the dividing frequency of large and small rooms in the acoustic sense. Perform. Arts Technol. 2016, 3, 15–16. (In Chinese) [Google Scholar]
  43. Savioja, L.; Svensson, U.P. Overview of geometrical room acoustic modeling techniques. J. Acoust. Soc. Am. 2015, 138, 708–730. [Google Scholar] [CrossRef]
Figure 1. Perspective views of the sample theater sections and measurement-point distribution for simulation (: sound source, : reception point).
Figure 1. Perspective views of the sample theater sections and measurement-point distribution for simulation (: sound source, : reception point).
Buildings 14 01882 g001
Figure 2. Flowchart for calculating the effects of scattering coefficient variations.
Figure 2. Flowchart for calculating the effects of scattering coefficient variations.
Buildings 14 01882 g002
Figure 3. Simulation modeling of sample theaters: (a) Daqing; (b) Fujian; (c) Heze; (d) Luoyang; (e) Pinglu; and (f) Gannan Theaters. The surface color represents the magnitude of the sound-absorption coefficient.
Figure 3. Simulation modeling of sample theaters: (a) Daqing; (b) Fujian; (c) Heze; (d) Luoyang; (e) Pinglu; and (f) Gannan Theaters. The surface color represents the magnitude of the sound-absorption coefficient.
Buildings 14 01882 g003
Figure 4. Trend in reverberation time for sensitive points in sample theaters with different surface scattering coefficients: (a,b) Daqing; (c,d) Fujian; (e,f) Heze; (g,h) Luoyang; (i,j) Pinglu; and (k,l) Gannan Theaters, for sidewall scattering coefficients (left column) and ceiling scattering coefficients (right column), respectively.
Figure 4. Trend in reverberation time for sensitive points in sample theaters with different surface scattering coefficients: (a,b) Daqing; (c,d) Fujian; (e,f) Heze; (g,h) Luoyang; (i,j) Pinglu; and (k,l) Gannan Theaters, for sidewall scattering coefficients (left column) and ceiling scattering coefficients (right column), respectively.
Buildings 14 01882 g004aBuildings 14 01882 g004b
Figure 5. Distribution map of reverberation time variations in the audience seating area induced by changes in the sidewall scattering coefficient: (a) model of Pinglu theater; (b) s = 0.01; (c) s = 0.1; (d) s = 0.3; (e) s = 0.5; (f) s = 0.7; (g) s = 0.9; and (h) s = 0.99.
Figure 5. Distribution map of reverberation time variations in the audience seating area induced by changes in the sidewall scattering coefficient: (a) model of Pinglu theater; (b) s = 0.01; (c) s = 0.1; (d) s = 0.3; (e) s = 0.5; (f) s = 0.7; (g) s = 0.9; and (h) s = 0.99.
Buildings 14 01882 g005aBuildings 14 01882 g005b
Figure 6. Trends in the acoustic-quality parameters with increasing ceiling scattering coefficient: (a) RT; (b) early decay time (EDT); (c) definition (D50); and (d) sound strength (G).
Figure 6. Trends in the acoustic-quality parameters with increasing ceiling scattering coefficient: (a) RT; (b) early decay time (EDT); (c) definition (D50); and (d) sound strength (G).
Buildings 14 01882 g006
Figure 7. Trends in the acoustic-quality parameters with increasing sidewall scattering coefficient: (a) RT (T20); (b) EDT; (c) D50; and (d) G.
Figure 7. Trends in the acoustic-quality parameters with increasing sidewall scattering coefficient: (a) RT (T20); (b) EDT; (c) D50; and (d) G.
Buildings 14 01882 g007
Figure 8. Consistency of RT change rate with varying critical sidewall scattering coefficient for different sample theater spaces: (a) Daqing: 0.18; (b) Fujian: 0.08; (c) Pinglu: 0.37; (d) Heze: 0.15; (e) Luoyang: 0.17; and (f) Gannan: 0.48. The calculations were performed using the interpolation method.
Figure 8. Consistency of RT change rate with varying critical sidewall scattering coefficient for different sample theater spaces: (a) Daqing: 0.18; (b) Fujian: 0.08; (c) Pinglu: 0.37; (d) Heze: 0.15; (e) Luoyang: 0.17; and (f) Gannan: 0.48. The calculations were performed using the interpolation method.
Buildings 14 01882 g008
Figure 9. Sound pressure-level decay diagrams for sensitive points in sample theaters with different ceiling scattering coefficients: (a) Daqing; (b) Fujian; (c) Heze; (d) Luoyang; (e) Pinglu; and (f) Gannan Theaters, for ceiling scattering coefficients of 0.01 and 0.99. The pink area is the region where the sound pressure level significantly changes.
Figure 9. Sound pressure-level decay diagrams for sensitive points in sample theaters with different ceiling scattering coefficients: (a) Daqing; (b) Fujian; (c) Heze; (d) Luoyang; (e) Pinglu; and (f) Gannan Theaters, for ceiling scattering coefficients of 0.01 and 0.99. The pink area is the region where the sound pressure level significantly changes.
Buildings 14 01882 g009
Figure 10. Sound pressure-level decay diagrams for sensitive points in sample theaters with different sidewall scattering coefficients: (a) Daqing; (b) Fujian; (c) Heze; (d) Luoyang; (e) Pinglu; and (f) Gannan Theaters, for sidewall scattering coefficients of 0.01 and 0.99. The pink area is the region where the sound pressure level changes significantly.
Figure 10. Sound pressure-level decay diagrams for sensitive points in sample theaters with different sidewall scattering coefficients: (a) Daqing; (b) Fujian; (c) Heze; (d) Luoyang; (e) Pinglu; and (f) Gannan Theaters, for sidewall scattering coefficients of 0.01 and 0.99. The pink area is the region where the sound pressure level changes significantly.
Buildings 14 01882 g010aBuildings 14 01882 g010b
Figure 11. Impact of surface scattering on reflection paths: black line for direct sound; blue line for specular reflection sound of the first type; red line for specular reflection sound of the second type; and green line for scattered sound.
Figure 11. Impact of surface scattering on reflection paths: black line for direct sound; blue line for specular reflection sound of the first type; red line for specular reflection sound of the second type; and green line for scattered sound.
Buildings 14 01882 g011
Table 1. Research-sample interiors, floor plans, and cross-sections.
Table 1. Research-sample interiors, floor plans, and cross-sections.
ProjectTheater InteriorFloor PlanSection
Daqing TheaterBuildings 14 01882 i001Buildings 14 01882 i002Buildings 14 01882 i003
Fujian TheaterBuildings 14 01882 i004Buildings 14 01882 i005Buildings 14 01882 i006
Luoyang TheaterBuildings 14 01882 i007Buildings 14 01882 i008Buildings 14 01882 i009
Heze TheaterBuildings 14 01882 i010Buildings 14 01882 i011Buildings 14 01882 i012
Pinglu TheaterBuildings 14 01882 i013Buildings 14 01882 i014Buildings 14 01882 i015
Gannan TheaterBuildings 14 01882 i016Buildings 14 01882 i017Buildings 14 01882 i018
Table 2. Basic parameters of the study samples.
Table 2. Basic parameters of the study samples.
TheaterDaqing FujianLuoyang Heze PingluGannan
Volume (m3)14,00012,20012,76011,86094647024
Seat (n)14801500142015211309840
Volume of each seat (m3)9.58.19.07.87.28.3
Length (m)32.231.933.130.930.728.3
Front width (m)2624.526.92425.221.2
Rear width (m)30.639.734.731.529.127
Two parallel sidewalls?NNYYYN
Apron width (m)18.018.018.018.022.018.0
500 Hz RT measured on site (s)1.591.461.591.361.401.40
Table 3. Auditorium surface engineering modes and sound-absorption proportions.
Table 3. Auditorium surface engineering modes and sound-absorption proportions.
PositionPropertyDaqing TheaterFujian TheaterLuoyang TheaterHeze TheaterPinglu TheaterGannan
Theater
CeilingArea (m2)15111467150113011250857
Engineering modeCACAAA
Sound-absorption proportion (%)6.67.16.16.78.68.5
SidewallArea (m2)12891497980963726894
Engineering modeDEEDAA
Sound-absorption proportion (%)5.67.24.54.458.8
BackwallArea (m2)444389213257213181
Engineering modeBBBBFB
Sound-absorption proportion (%)14.5149.17.110.112.3
Seat areaArea (m2)14731290160214941191893
Engineering modeGGGGGG
Sound-absorption proportion (%)68.465.974.875.957.160.7
Proscenium openingArea (m2)296332355311386223
Sound-absorption proportion (%)4.85.85.55.911.69.6
Note: Mode A: 35 mm thick glass fiber-reinforced gypsum (GRG) panels, 35 mm thick GRG panels with a 50–60 kg/m2 face density; Mode B: Perforated-wood acoustic panels with ~8% perforation density, perforated plate lined with 50 mm thick glass wool; Mode C: 12 mm thick three-layer gypsum boards; Mode D: Double layer of 18 mm wood trim boards; Mode E: 12 mm thick wood planks + 18 m thick wood trim boards; Mode F: Perforated GRG panels with 10% perforation, lined with 50 mm thick glass wool (behind perforated panels); Mode G: Theater seats.
Table 4. CATT sound-absorption and scattering coefficient settings (Daqing Grand Theater).
Table 4. CATT sound-absorption and scattering coefficient settings (Daqing Grand Theater).
Layer 125–4000 Hz Absorption Coefficient (%)Conversion125–4000 Hz Scattering Coefficient (%)Site
ABS swall=<10 8 8 8 8 8>L<5 5 20 40 50 55>Sidewalls
ABS stwall=<40 45 60 50 50 50>L<5 5 7 15 25 35>Stage walls
ABS stfloor=<10 8 8 8 8 8>L<5 5 7 15 25 35>Stage floor
ABS seat=<55 60 65 70 75 75>L<5 10 40 60 70 75>Seating area
ABS hole=<20 25 30 30 30 30>L<5 5 20 40 50 55>Apron + ceiling light opening
ABS floor=<10 8 8 8 8 8>L<5 10 40 60 70 75>Aisle floor
ABS ceiling=<10 8 8 8 8 8>L<5 10 40 60 70 75>Ceiling
ABSrwall=<50 55 65 65 65 65>L<5 5 20 40 50 55>Rear wall
Note: The sound-absorption and scattering coefficients are in percentage form. Thus, entry “55” corresponds to a sound-absorption or scattering coefficient of 0.55.
Table 5. Comparison of measured and calculated (arithmetic mean) RTs at 500, 1000, and 2000 Hz frequency bands.
Table 5. Comparison of measured and calculated (arithmetic mean) RTs at 500, 1000, and 2000 Hz frequency bands.
TheaterDaqing Fujian Luoyang Heze PingluGannan
RT measured onsite (s)1.511.441.591.351.371.40
Calculated RT (s)1.471.421.561.401.411.35
Difference of RT between calculated and measured−2.6%−1.4%−1.8%3.7%2.9%−3.6%
Schroeder frequency, fs (Hz)21.321.822.321.424.328.2
Table 6. Maximum variation in sound-quality parameters with changes in ceiling scattering coefficient.
Table 6. Maximum variation in sound-quality parameters with changes in ceiling scattering coefficient.
IndexDaqingFujianLuoyangHezePingluGannanConsistency Criteria
Change in ceiling scattering coefficient RT2.960.91−4.82−1.14−3.791.005%
EDT4.554.36−4.80−0.212.50−5.15%
D500.060.020.040.06−0.01−0.010.05
G0.360.260.33−0.110.030.11 dB
Note: The bold font indicates proportional changes exceeding the JND.
Table 7. Maximum variation in sound-quality parameters with changes in sidewall scattering coefficient.
Table 7. Maximum variation in sound-quality parameters with changes in sidewall scattering coefficient.
IndexDaqingFujianLuoyangHezePingluGannanConsistency Criteria
Change in sidewall scattering coefficient RT−8.4−6.2−5.6−5.7−12.0−16.75%
EDT−4.2−4.8−8.35−11.66.09−14.65%
D500.030.090.030.040.04−0.010.05
G1.071.180.910.470.430.591 dB
Note: The bold font indicates proportional changes exceeding the JND.
Disclaimer/Publisher’s Note: The statements, opinions and data contained in all publications are solely those of the individual author(s) and contributor(s) and not of MDPI and/or the editor(s). MDPI and/or the editor(s) disclaim responsibility for any injury to people or property resulting from any ideas, methods, instructions or products referred to in the content.

Share and Cite

MDPI and ACS Style

Zhu, X.; Xu, G.; Kang, J.; Xue, X.; Hao, Y. Influence of Surface Scattering on Auditorium Acoustic Parameters. Buildings 2024, 14, 1882. https://doi.org/10.3390/buildings14061882

AMA Style

Zhu X, Xu G, Kang J, Xue X, Hao Y. Influence of Surface Scattering on Auditorium Acoustic Parameters. Buildings. 2024; 14(6):1882. https://doi.org/10.3390/buildings14061882

Chicago/Turabian Style

Zhu, Xiangdong, Guoqiang Xu, Jian Kang, Xiaoyan Xue, and Yu Hao. 2024. "Influence of Surface Scattering on Auditorium Acoustic Parameters" Buildings 14, no. 6: 1882. https://doi.org/10.3390/buildings14061882

APA Style

Zhu, X., Xu, G., Kang, J., Xue, X., & Hao, Y. (2024). Influence of Surface Scattering on Auditorium Acoustic Parameters. Buildings, 14(6), 1882. https://doi.org/10.3390/buildings14061882

Note that from the first issue of 2016, this journal uses article numbers instead of page numbers. See further details here.

Article Metrics

Back to TopTop