Next Article in Journal
Experimental and Three-Dimensional Numerical Investigations of Dehydration and Pyrolysis in Wood under Elevated and High Temperatures
Next Article in Special Issue
Enhancing Risk Management in Road Infrastructure Facing Flash Floods through Epistemological Approaches
Previous Article in Journal
Automatic Detection of Urban Pavement Distress and Dropped Objects with a Comprehensive Dataset Collected via Smartphone
Previous Article in Special Issue
Expressions of Arab Influence on the Brazilian Architecture: The Case of Solar Control Elements
 
 
Font Type:
Arial Georgia Verdana
Font Size:
Aa Aa Aa
Line Spacing:
Column Width:
Background:
Article

Seismic Assessment of a Modernist Building in Sarajevo, Bosnia and Herzegovina

by
Naida Ademovic
1,*,
Marijana Hadzima-Nyarko
2 and
Admira Piljug
3
1
University of Sarajevo—Faculty of Civil Engineering, Patriotske lige St. 30, 71000 Sarajevo, Bosnia and Herzegovina
2
Josip Juraj Strossmayer University of Osijek, Faculty of Civil Engineering and Architecture Osijek, Vladimir Preloga St. 3, 31000 Osijek, Croatia
3
IPSA INSTITUT d.o.o. Sarajevo IPSA, Put života St. bb, 71000 Sarajevo, Bosnia and Herzegovina
*
Author to whom correspondence should be addressed.
Buildings 2024, 14(6), 1548; https://doi.org/10.3390/buildings14061548
Submission received: 1 May 2024 / Revised: 16 May 2024 / Accepted: 23 May 2024 / Published: 27 May 2024
(This article belongs to the Special Issue Built Environments and Environmental Buildings)

Abstract

This paper presents an in-depth analysis of the Kopčić House, a significant example of modernist architecture in Sarajevo, Bosnia and Herzegovina, focusing on its structural-specific features and seismic performance. The Kopčić House embodies a confined masonry structure with innovative construction features, combining load-bearing masonry walls with reinforced concrete elements. This architectural approach was pioneering for its time, combining traditional construction methods with innovative materials and techniques. Detailed analysis using numerical modeling techniques, specifically 3D modeling with the 3Muri software (Vers.14.2.0.4), was conducted to assess the seismic resilience of the structure. The analysis considered different load distributions and eccentricities to comprehensively evaluate the building’s response to lateral forces. The findings of this research reveal the structural capacity and potential vulnerabilities of the Kopčić House when subjected to seismic events. While the building demonstrates inherent strength due to its confined masonry design, areas requiring structural strengthening were identified through numerical simulations. This study contributes to the broader understanding of confined masonry construction within the context of modernist architecture. By integrating historical research with advanced structural analysis, this work aims to bridge the gap between architectural heritage and contemporary engineering practices.

1. Introduction

1.1. Modernism

Modernism in architecture emerged in the late 19th and early 20th centuries as a response to rapid technological advancements, urbanization, and social changes. It marked a departure from traditional styles, embracing new materials, construction techniques, and functionalist principles. Modernist buildings are characterized by clean lines, geometric shapes, open floor plans, and an emphasis on functionality and simplicity. Central to modernist architecture is the principle of functionality. Architects aimed to design buildings that efficiently fulfilled their intended purpose, often prioritizing the needs of occupants over decorative embellishments. This emphasis led to the creation of open floor plans, flexible spaces, and innovative solutions for everyday living and working environments. In addition to functionality and innovation, modernist architects sought to create buildings that harmonized with their surroundings. Whether in natural landscapes or urban environments, modernist buildings were designed to complement their context rather than dominate it. Large windows, open floor plans, and seamless transitions between indoor and outdoor spaces were common features, blurring the boundaries between inside and outside.
Modernist architects embraced simplicity and minimalism, rejecting ornate ornamentation and historical references. The mantra ‘less is more’ epitomizes this ethos, emphasizing the beauty of simplicity and restraint. Modernist architects celebrated the inherent qualities of materials such as steel, glass, and concrete, together with old materials like brick, often showcasing them in their raw and unaltered states. Rather than disguising or ornamenting materials, modernist buildings often exposed beams, columns, and mechanical systems as esthetic features in their own right. While modernism brought profound changes in architecture and urban design, it also faced criticism for its perceived coldness, uniformity, and disregard for historical context. In the latter half of the 20th century, postmodernism emerged as a reaction against these perceived excesses, advocating for a return to historical references, contextualism, and diverse architectural languages.
In Bosnia and Herzegovina, modernist architecture rose to prominence particularly during the mid-20th century, influenced by global modernist movements and socialist architectural principles. These modernist buildings often blend functionalism with regional characteristics, reflecting a unique architectural identity. During the period of socialist Yugoslavia, modernist architecture played a significant role in urban development, especially in cities like Sarajevo and Mostar. Many public buildings, residential complexes, and cultural institutions were constructed in modernist styles, often incorporating elements of Brutalism, characterized by raw concrete façades and bold, monumental forms.
One notable example of modernist architecture in Bosnia and Herzegovina is Damić House (Figure 1a), located in Radićeva Street in Sarajevo. Constructed based on a design dating back to 1926, this historical edifice stands as one of the pioneering constructions in Sarajevo during the interwar period. Due to its uniqueness, it was designated as a national monument in Bosnia and Herzegovina [1]. During this period, individual freestanding buildings were not characteristic, and significant groupings of such buildings were rare. If constructed, they did not differ significantly in layout from large residential buildings (Figure 1b).
In terms of urban planning conception, the interwar period in Sarajevo represented a notable departure from the city’s residential culture of the Turkish era, albeit with certain enhancements. During the Ottoman period, Sarajevo’s urban fabric was characterized by narrow, winding streets and densely packed residential neighborhoods, reflecting the architectural and cultural influences of the time. However, with the onset of the interwar period, Sarajevo underwent significant changes in its urban landscape and housing development. One of the key transformations during this period was the emergence of advancements in apartment construction. This marked a departure from the traditional single-family homes and courtyard dwellings prevalent in the Turkish era. Instead, there was a growing emphasis on multi-story apartment buildings, reflecting the increasing urbanization and population growth of Sarajevo (Figure 1b). These new apartment buildings not only represented a shift in housing typology but also encompassed broader urban planning considerations. Planners and architects integrated modern urban design principles, including zoning regulations, building codes, and infrastructure planning, to develop more livable, efficient, and esthetically pleasing urban environments.
Furthermore, the disposition, design, construction, and outfitting of dwellings underwent significant refinement during this period [2]. Apartments were designed to maximize space utilization and natural light, with attention paid to functional layouts and modern amenities. Building materials and construction techniques also evolved, with reinforced concrete becoming increasingly common for its structural strength and versatility. Figure 2 illustrates the clear emphasis on constructing urban villas during the first half of the 20th century [2]. These urban villas, often characterized by their elegant façades, spacious interiors, and landscaped gardens, were emblematic of the evolving architectural trends and priorities of the time. They served as symbols of prosperity and modernity, catering to the growing middle and upper classes seeking a higher standard of living in Sarajevo. Overall, the interwar period in Sarajevo witnessed a significant transformation in urban planning and housing development, reflecting the broader socio-economic changes occurring in Bosnia and Herzegovina during the early 20th century.
In terms of construction, the notable utilization of novel materials—concrete and reinforced concrete—resulted in the adoption of new reinforced concrete structures. These advancements facilitated the erection of spacious openings and marked a departure from the rigid longitudinal wall structural system characteristic of the Austro-Hungarian era. Alongside concrete and reinforced concrete, traditional materials such as brick and wood maintained their significance in construction practices. Foundations were typically composed of concrete or stone, while brick was employed for the walls of ground floors and upper stories. Predominantly, slabs were made of prefabricated reinforced concrete elements with fine reinforcement.
The use of reinforced concrete resulted in a decrease in ceiling heights, with floor heights typically ranging between 2.80 m and 3.20 m. Consequently, the overall structural height of a floor ranged from 3.25 m to 3.75 m [3]. The roof structures were built with wood, and the roofing materials consisted of tiles or asbestos cement, with a notably lower slope than in earlier periods.
Despite the challenges posed by political and social upheavals, many modernist buildings in Bosnia and Herzegovina still stand as important cultural and architectural landmarks, contributing to the country’s architectural heritage. However, like modernist architecture in other parts of the world, these buildings often face preservation challenges due to changing tastes, neglect, and lack of maintenance.

1.2. Types of Structures—Unreinforced and Confined Masonry Structures versus Reinforced Concrete Frames

Historical and recent seismic events have clearly demonstrated the inadequate seismic performance inherent in unreinforced masonry (URM) structures. Their pronounced vulnerability arises from multifaceted weaknesses characteristic of URM constructions, including inadequate lateral resistance, poor connections between elements, and brittle failure modes. These structures were often built without consideration for seismic resistance [4], leaving them highly susceptible to damage or collapse during earthquakes.
Conversely, confined masonry (CM) has emerged as a prominent structural solution for low- and mid-rise constructions in seismic-prone regions. By adding vertical and horizontal reinforcement elements within the masonry walls, confined masonry significantly enhances the structural integrity and ductility of buildings, thereby reducing the risk of seismic damage. This approach has been successfully implemented in various seismic retrofitting and new construction projects, demonstrating its effectiveness in improving seismic performance.
It is pertinent to highlight that commencing from 1948 [5], the former Yugoslavia implemented a requirement to incorporate horizontal reinforced concrete (RC) confinement elements at the floor and roof levels in unreinforced masonry (URM) buildings. As a result, the principal differentiation between URM and confined masonry (CM) structures is attributed to the inclusion of vertical confining elements in CM constructions [6]. Additionally, it is noteworthy that according to the provisions outlined in the PTP-12 [7] code established in 1964, the construction of CM buildings was permissible up to six and five stories in Seismic Zones VIII and IX, respectively.
One needs to make a clear distinction between Confined Masonry (CM) structures and Reinforced Concrete Frames (RCF) with masonry infill. CM and RCF represent distinct structural systems used in building construction. Confined masonry structures feature load-bearing masonry walls confined within reinforced concrete (RC) tie-columns and tie-beams. In contrast, RC frames predominantly consist of RC columns and beams, with masonry or other materials used as infill walls. In CM structures, concrete is poured in place after the erection of the masonry wall, enabling integrated composite behavior between the RC and masonry components. While the masonry wall serves as the principal load-bearing element in CM, the small-sized RC tie-elements primarily enhance lateral stability and deformation capacity, strengthening connections to adjacent walls and floor diaphragms. Load distribution in CM relies primarily on the masonry walls confined by surrounding RC elements. In contrast, RC frames bear loads primarily through RC columns and beams, with infill walls providing secondary support. Confined masonry structures tend to offer higher ductility and seismic resilience due to RC confinement, whereas RC frames are valued for their flexibility and energy dissipation capabilities during seismic events.
Nicolleti et al. [8] conducted an experimental campaign on a steel–concrete composite structure with two-bay moment resisting frames, demonstrating that infills substantially enhance the longitudinal stiffness of frames. However, the activation of shear force transfer mechanisms and achievement of maximum secant stiffness require a certain level of drift. At maximum imposed drift, infills suffered severe damage but continued to contribute to the longitudinal stiffness of the frames. Although the strength degradation was not alarming, the significant stiffness reduction suggests potential compromises in the safe utilization of the structure, particularly concerning the out-of-plane stability of infills. Recently, Monical and Puloj [9] investigated the influence of infill on RC frames regarding drift demand and drift capacity. The findings indicate that infill walls reduce drift demand more than they decrease drift capacity, suggesting a net benefit of infill usage. Surveys of low-rise school buildings show that structures with more full-height infill walls experience less earthquake damage. Projections derived from empirical data suggest that infill ratios exceeding 50% in both horizontal and vertical orientations of a structure can result in a notable reduction in the probability of severe damage by up to 300%.
However, accurately predicting the response of masonry structures to seismic loading poses significant challenges. The complex behavior of masonry, influenced by factors such as material properties, geometric configurations, and loading conditions, requires sophisticated numerical modeling techniques for accurate analysis [10]. Finite element analysis (FEA) and discrete element modeling (DEM) are commonly used numerical methods, but their application to masonry structures requires careful consideration of modeling assumptions and boundary conditions. Nevertheless, the adoption of such intricate modeling tools presents challenges for field engineers within their prevailing professional frameworks. Moreover, the adoption of such intricate modeling tools presents challenges for field engineers within their prevailing professional frameworks [11].

1.3. Modeling of Masonry Structures

In recent decades, the development of tools for predicting and assessing the structural behavior of masonry buildings has garnered significant attention within the scientific community. However, the numerical modeling of masonry structures poses significant challenges due to the intrinsic complexities and uncertainties inherent in these structures, particularly evident in historic constructions, further complicated by the highly nonlinear mechanical response of masonry materials.
D’Altri et al. [12] proposed a comprehensive framework consisting of four distinct categories of numerical strategies for modeling masonry structures: block-based models (BBMs), continuum models (CMs), macro-element models (MMs), and geometry-based models (GBMs).
BBMs, representing a prominent category, endeavor to capture the intricate material response at the scale of masonry’s principal heterogeneity. By accounting for the actual texture of masonry, characterized by blocks assembled with mortar joints, these models provide insights into the material’s failure mode and essential mechanical properties, such as anisotropy. Noteworthy subclasses within BBMs include interface element-based approaches, contact-based approaches, textured continuum-based approaches, block-based limit analysis approaches, and extended finite element approaches.
In contrast, continuum models (CMs) employ a continuum deformable body to simulate masonry structures, thereby obviating the need to explicitly represent individual masonry blocks within the computational mesh. This approach allows for larger mesh sizes relative to the block dimensions, thereby reducing computational demands. However, formulating appropriate constitutive laws for masonry remains a formidable challenge, owing to the complex mechanical behavior of these materials. Constitutive laws for masonry can be developed through direct approaches or homogenization procedures and multiscale methodologies.
Macro-element models (MMs) represent another class of numerical strategies that conceptualize masonry structures as assemblies of panel-scale structural components, known as macro-elements, each characterized by mechanical-based or phenomenological behavior. Central to MMs is the identification of principal structural components—piers and spandrels. Piers, serving as vertical bearing elements, are tasked with supporting both vertical and horizontal loads, while spandrels, situated horizontally between aligned openings along the structure’s height, facilitate the coupling of adjacent piers under horizontal loading conditions. In this specific case, 3Muri software was used which introduced a 2D inelastic beam element featuring concentrated plasticity and a bilinear law with cutoffs in strength and stiffness degradation during nonlinear behavior [13]. Subsequently, this nonlinear beam model was enhanced by employing a piecewise linear response. Notably, this constitutive relationship facilitated the representation of nonlinear behavior up to severe damage levels (ranging from 1 to 5), incorporating progressive strength decay governed by predefined drift values. Additionally, the model encompasses an accurate depiction of hysteretic response, formulated via a phenomenological approach, to effectively capture the distinctions among various failure modes (including flexural, shear, or hybrid) and the differing responses of piers and spandrels. These refinements have proven efficient for conducting nonlinear dynamic analyses [14].
Recent advancements in MMs include the proposal of various spring-based solutions, such as inelastic beam elements incorporating concentrated plasticity and bilinear laws with cutoffs in strength and stiffness degradation within the nonlinear regime. These sophisticated models, exemplified by their capability to accurately capture nonlinear dynamic responses, hold promise for enhancing our understanding of masonry structural behavior and informing practical engineering applications.
Detailed and comprehensive data regarding different modeling procedures is available in [12].

1.4. Research Motivation and Workflow of the Paper

The motive for seismically assessing a modernist structure in Bosnia and Herzegovina is diverse, ranging from the primary goal of preserving the region’s distinctive architectural history. These structures function as cultural objects, reflecting their period’s historical and social environment. Given their antiquity and the fact that they were built before contemporary seismic standards were created, assessing their structural integrity is critical to ensuring their ability to survive prospective earthquakes.
This research illuminates the profound influence and significance of modernist architecture, particularly in the context of Bosnia and Herzegovina. By examining modernism against the backdrop of rapid technological advancements and urbanization, the study underscores its pivotal role in shaping urban landscapes and architectural trends. The next impetus for this research comes from observed structural damage during earthquakes in neighboring countries, specifically in Serbia in 2010 and Croatia in 2020, highlighting the vulnerability of similar structure types. Additionally, the study investigates the seismic vulnerabilities of buildings constructed before the implementation of seismic codes in 1949, with their seismic capacity remaining unknown. This is particularly critical given the moderate seismic activity characteristic of Bosnia and Herzegovina. The focal point of this study is the Kopčić House, completed in 1939, which stands as a notable example of successful modernist architecture in Sarajevo. Notably, tie-columns were integrated into this structure a decade before the inaugural seismic code was enforced, adding to its significance in seismic resilience research.
This research is important because it has the potential to improve public safety in a seismically active region. Because of Bosnia and Herzegovina’s earthquake risk, it is critical to understand how existing structures, particularly older ones, would behave during such disasters. The study’s goal is to detect any structural flaws and offer retrofitting options to increase resilience through seismic assessments. This proactive strategy is critical for averting catastrophic failures that might result in major loss of life and property, protecting the safety of building occupants and the surrounding community.
Beyond safety, this research has significant implications for policy-making and economic efficiency. The insights gained from the seismic assessment can inform local and national building codes, ensuring they are better tailored to the seismic risks specific to the region. Economically, the research advocates for retrofitting existing structures, which is often more cost-effective than demolition and reconstruction. This approach not only preserves modernist buildings’ architectural and historical value but also represents a sustainable use of resources. Additionally, by raising awareness about the importance of seismic resilience and engaging the community in preservation efforts, the research fosters a culture of preparedness and collective responsibility, contributing to a safer and more resilient society.
The manuscript is organized into several chapters. The first chapter introduces modernism and its influence on urban construction in Bosnia and Herzegovina, providing background information on the behavior of unreinforced masonry structures, confined masonry structures, and RC frames with masonry infill, emphasizing their distinctions. Following this, the second chapter focuses on the Kopčić House as a representative example of early 20th-century housing. Chapter 3 delves into the analysis of Confined Masonry Structures in ex-Yugoslavia, exploring their specific features and investigations conducted in Bosnia and Herzegovina, Croatia, and Serbia due to shared construction practices. The fourth section involves numerical modeling of the Kopčić House using the 3Muri software, starting with static analysis and progressing to dynamic parameters, pushover curves, and damage distribution. Finally, conclusions are presented in the fifth chapter.

2. Historical Data

The Kopčić House was constructed on Safvet-beg Bašagić Street in 1939, arguably representing one of the most exemplary small-scale residences erected in Sarajevo within the modern architectural style (see Figure 2 and Figure 3) [15]. The structure shows remarkable harmony with its environment, characterized by its proportional design and modest integration with the surrounding context, thereby contributing to the coherence of the urban fabric.
Kahrović-Handžić [2] conducted a typological analysis of urban structures in Sarajevo from the first half of the 20th century. Each case study commenced with a comprehensive review of fundamental data, presenting a catalog of structures accompanied by graphical evaluations. These evaluations included detailed assessments of authenticity and integrity, as well as analyses concerning protection and preservation, exemplified through case study examinations. Within the conducted investigation, the Kopčić House was recognized as a villa embodying a significant facet of Bosnian–Herzegovinian heritage.
Figure 4 illustrates the updated integral methodology developed to systematically and contextually identify and assess the values of 20th-century architectural heritage in Bosnia and Herzegovina. It emphasizes the classification of criteria into four primary categories: architectural, technological, period value, and environmental value. From this figure, one can derive the structured approach used in analyzing and evaluating architectural heritage, emphasizing authenticity, integrity, and various dimensions of value. More details can be found in [2].
In the graphic representation of Kopčić House (Figure 4), criteria related to authenticity (highlighted in red fill) and integrity (highlighted in gray fill) are emphasized in the service of graphical presentation according to graphic appendices (floor plans, cross-sections, elevations, three-dimensional views, and urban context) across categories of values (architectural, technological, period significance, and ambiance) [2].
The integrity of an architectural artifact pertains to its state and wholeness, reflecting the extent to which it has retained its original condition. This concept assumes paramount importance in cultural and historical preservation efforts, as structures inevitably undergo processes of aging, material degradation, and damage over time. Assessing a structure’s integrity necessitates a meticulous examination of its physical state, encompassing any signs of deterioration, material degradation, or restorative interventions, alongside an assessment of its environmental context and maintenance conditions [2].
Similarly, establishing the authenticity of the Kopčić House’s historical period primarily entails a comprehensive understanding of its authorship and the prevailing architectural milieu of its era. Architect Kadić’s adept integration of traditional Ottoman architectural elements into a contemporary framework, enriched by modernist influences, underscores the structure’s architectural authenticity [2].
Over the years, there have been certain changes to the Kopčić House. It is essential to highlight that there have been no alterations in the structural sense; thus, archival drawings can be utilized for numerical modeling of the structure [16]. However, there have been modifications to interior finishes and minor alterations to non-load-bearing partitions to accommodate changing needs and preferences.
Furthermore, the Kopčić House serves as a tangible link to Sarajevo’s architectural heritage and cultural identity. Its preservation not only safeguards a significant architectural artifact but also contributes to the collective memory and sense of place within the urban landscape. By studying and documenting the Kopčić House’s architectural features, historical context, and adaptive reuse, researchers and preservationists can gain valuable insights into the broader narrative of modernist architecture in Sarajevo and its enduring impact on the built environment.
In conclusion, the Kopčić House stands as more than just a physical structure; it embodies a rich tapestry of history, culture, and architectural innovation. Its continued preservation and study are essential for enriching our understanding of Sarajevo’s architectural heritage and shaping future conservation efforts in the region.
Figure 5 shows the Kopčić House as it looks today.
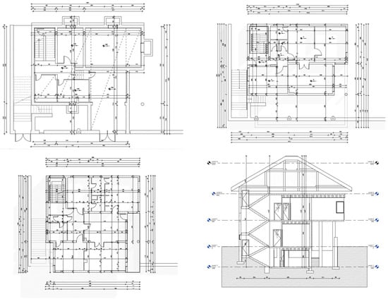
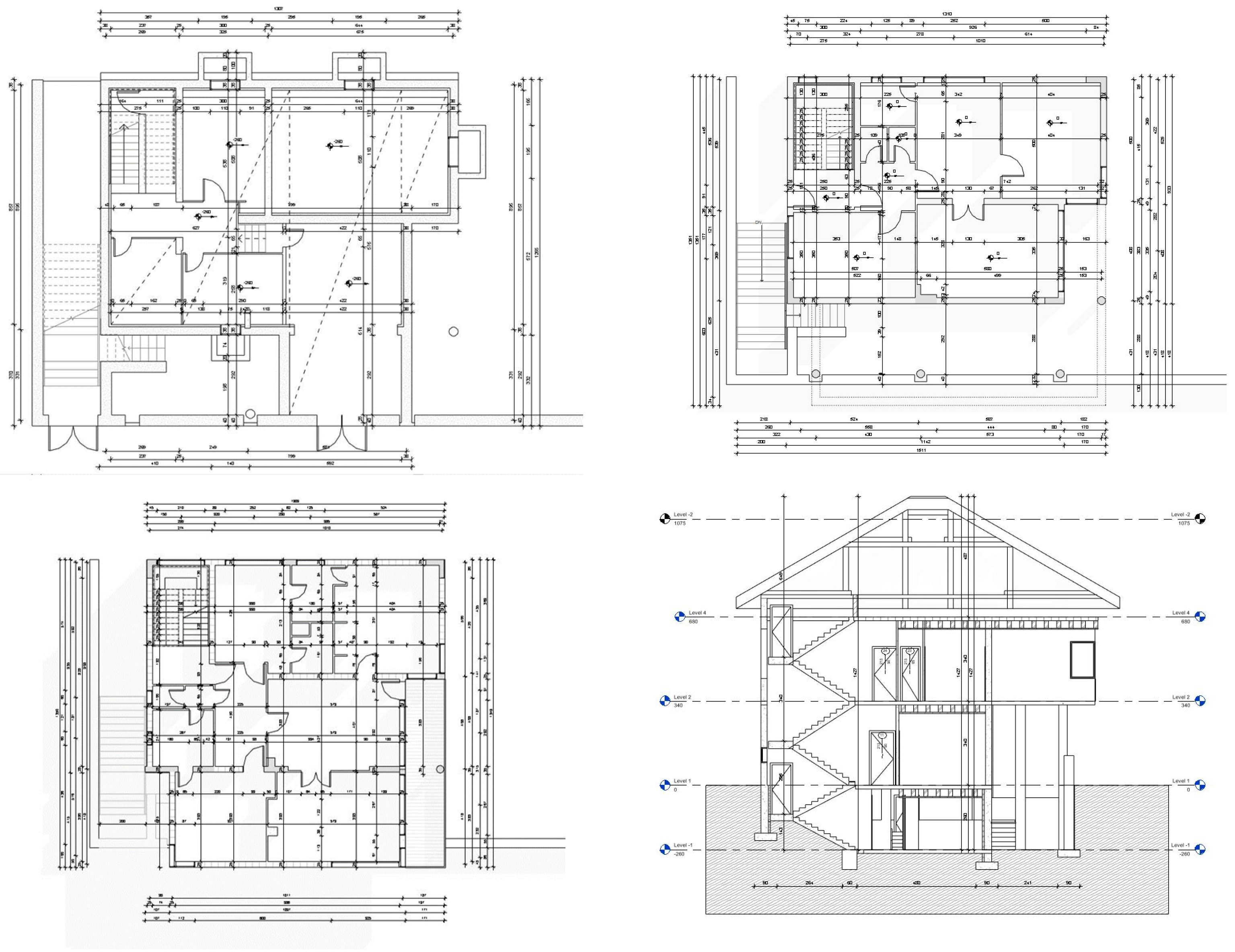
Figure 6 presents the redrawn blueprints of the examined building, providing valuable insight into its structural composition and dimensions. The building under examination is identified as a confined masonry structure, having “reinforced walls” at the corner of the structure, and floors constructed from prefabricated concrete rib elements. Its architectural layout encompasses a basement, ground floor, first floor, and roof structure, each serving distinct functional purposes within the overall design.
Noteworthy are the specific measurements defining the building’s spatial characteristics. The basement’s clear height is determined to be 2.60 m, while the subsequent floors have a height of 3.40 m, with the roof reaching a height of 3.83 m. The cumulative height of the structure is 13.20 m.
In the plan view, the building exhibits a near-regular square shape, delineated by axis spans of 13.10 m × 13.50 m (see Figure 6), illustrating a deliberate architectural symmetry. All external walls fulfill load-bearing functions, providing essential structural support throughout the building. Moreover, the structure features longitudinal load-bearing walls positioned nearly at its midpoint, extending throughout all the floors. Adjacent to the staircase, a transversal load-bearing wall spans the entirety of the structure, guaranteeing structural stability and integrity. Nonetheless, a distinct internal transverse wall in the basement fails to extend to the upper floors. The locations of the non-load-bearing walls are not the same on all the floors but are arbitrarily positioned. The position of the load-bearing walls, along with the four columns, renders the structure structurally asymmetrical.
A detailed examination of the wall compositions reveals varying thicknesses and materials employed in different sections of the building. The basement walls feature thicknesses of 25 and 38 cm, with the walls supporting four circular reinforced concrete columns having a substantial thickness of 60 cm (see Figure 6). Above the basement level, solid brick walls, 25 cm thick, are utilized, with standardized brick dimensions (height/width/length = 6.5/12/25 cm) and general-purpose mortar of M5 quality. Reinforced concrete tie-columns (referred to as “reinforcing walls” with dimensions of 25 cm × 60 cm and 25 cm × 80 cm) are strategically positioned at wall corners to enhance structural stability, with dimensions ranging from 25 cm × 25 cm to 25 cm × 80 cm. The non-load-bearing walls are 7 cm thick.
The floor system, crucial for distributing horizontal loads, comprises slim ribbed slabs characterized by a rigid construction. With a slab thickness of 7 cm and a rib height of 30 cm, the total floor height measures 37 cm, ensuring optimal structural performance and load-bearing capacity.
Regarding the roof structure, it comprises a four-sided roof, featuring wooden beams and rafters for support. Originally tiled, the roof now consists of metal roofing material, reflecting changes in building materials over time. While not explicitly modeled, the roof structure is acknowledged as a permanent load acting upon the building.
From the detailed measurements extracted from the architectural drawings, a comprehensive 3D Building Information Modeling (BIM) model was meticulously constructed, as illustrated in Figure 7. This BIM model serves as a digital representation of the physical building, incorporating precise geometric and spatial data to accurately depict its structural elements, architectural features, and overall layout in a virtual environment.
It should be emphasized that the building was constructed before the implementation of the first seismic codes in ex-Yugoslavia, which came into effect in 1949 [5]. This historical context underscores the innovative nature of the structural design employed in the construction of the building. Generally, it can be stated that this structure was unique in terms of its structural system. A load-bearing masonry with horizontal and vertical RC confining elements, together with “reinforced walls” located at the corners of the building, was used in conjunction with a prefabricated concrete slab, which was not typical for the construction period. This departure from conventional construction practices of the time reflects the forward-thinking approach of the architects and engineers involved in the project. Furthermore, the incorporation of four circular concrete columns to support the balcony of the upper floor (see Figure 5) adds another layer of uniqueness and specificity to the structure.

3. Analysis of Confined Masonry Structures in Ex-Yugoslavia

Ademović et al. [17] conducted a comprehensive study involving a dataset of 2933 buildings. This dataset exclusively comprised unreinforced and confined masonry structures (M4) erected between 1918 and 2014 in Sarajevo and Banja Luka. The primary aim of this research was to undertake an initial investigation into seismic risk assessment in Sarajevo and Banja Luka, employing a methodology centered on the vulnerability index.
Among the analyzed structures, 50.90% were categorized as unreinforced masonry (URM), while the remaining 49.10% were identified as confined masonry (CM) buildings. Notably, CM structures exhibited comparatively minimal damage when contrasted with URM buildings characterized by flexible floors, which are anticipated to endure the most severe damage during seismic events. This study sheds light on the seismic vulnerability of masonry structures in Sarajevo and Banja Luka, providing valuable insights into the performance of different structural systems under seismic loading conditions.
In a thorough examination of confined masonry structures within the urban landscape of Osijek, data parameters prescribed by the GEM building typology, as delineated by Hadzima-Nyarko et al. [18], were meticulously followed. This meticulous adherence to standards ensured a detailed dataset, exclusively comprising 111 confined masonry structures. Notably, in both studies [17,18], it became apparent that the ascribed vulnerability classification could be significantly influenced by modifier factors, thus accentuating their pivotal role in the comprehensive assessment of seismic vulnerability.
The pioneering investigation by Blagojević et al. [19] yielded illuminating insights, particularly concerning the resilience demonstrated by modern confined masonry structures characterized by meticulously constructed RC confining elements, notably observed during the seismic event of 2010 in Kraljevo, Serbia. However, a stark contrast emerged with structures exhibiting inadequately reinforced confining elements and walls featuring horizontally aligned perforations in modular clay blocks, which succumbed to damage. Noteworthy is the considerable damage witnessed on numerous multi-family apartment buildings, ranging from 3 to 5 stories in elevation, during the aforementioned seismic event in Kraljevo. The ensuing repair or retrofitting efforts [20,21] underscored the imperative for structural resilience enhancements in these contexts.
These impacted buildings, typified by their classification as M3-M type according to the proposed classification, were erected using URM in conjunction with ribbed RC floor slabs and RC tie-beams, meticulously engineered to function as rigid diaphragms. In single-family (M3-S) residential constructions, load-bearing masonry walls were predominantly fashioned from modular (multi-perforated) clay blocks or solid clay bricks, complemented by cement–lime–sand mortar. The variable thickness of these walls, ranging from 19 to 38 cm, was contingent upon the structure’s elevation and the specific masonry unit employed. Conversely, multi-family residential buildings typically featured exterior wall thicknesses ranging from 38 to 51 cm and interior wall thicknesses spanning 25 to 30 cm, a testament to the nuanced structural considerations entailed in their design and construction [19].
Moreover, it merits acknowledgment that under certain circumstances, such as the recent seismic event in Croatia in 2020, the omission of vertical tie-column elements can significantly intensify the damage sustained by CM structures. This observation was particularly notable in the context of specific single-family dwellings characterized by URM walls at the ground-floor level and a confined masonry configuration on the upper floors. Notably, the observed damage predominantly manifested at the ground-floor level, a consequence attributed to the absence of vertical reinforced concrete confining elements [6].
In light of these discernible characteristics, the Kopčić House aligns with this distinctive structural profile. This noteworthy correspondence renders the study of this particular structure both exceptional and highly intriguing, affirming its classification as M3-S according to the proposed typology.

4. Numerical Modeling of Kopčić House

The modeling of CM structures is still a challenging task. Borah et al. [22] discuss the challenges in modeling CM buildings and the development of analytical modeling techniques to address these challenges. They also mentioned various commercial software options that have been utilized for modeling purposes, with simplified 2D line element models gaining popularity due to their practical usefulness.
The 3D numerical model of the evaluated structure is generated using 3Muri software. The macro-element approach is selected for its computational efficiency and high precision [23]. The commercial software 3Muri evolved from TREMURI, which originated from development efforts initiated at the University of Genoa around 2001 [13] and has since undergone several improvements.
Details about 3Muri, an equivalent frame model for the nonlinear seismic analysis of masonry, can be found in [13]. The equivalent frame method (EFM) conceptualizes masonry walls as an idealized frame, where deformable elements, concentrating nonlinear responses, interconnect rigid nodes, representing sections resilient to damage. In the examination of intricate masonry walls with openings, primary structural components, namely piers and spandrels, are distinguished. Methodologies akin to frame analysis entail the segmentation of the structure into piers and spandrels, subsequently connecting them via rigid nodes to form an equivalent frame. These criteria are typically backed by post-earthquake damage surveys and experimental studies [13]. Employing a simplified approach employing nonlinear beam elements with lumped inelasticity idealization (bilinear elastic–perfectly plastic behavior), masonry panels, encompassing both piers and spandrels, are modeled as 2D elements, assuming a bilinear relationship with a strength cut-off and stiffness degradation during non-monotonic loading. Emphasizing the exclusive application of loads at nodes is imperative. Rigid end offsets are employed to transfer static and kinematic variables between element ends and nodes. A nonlinear correction procedure is conducted on the elastic prediction by comparing it with the limit strength values defined subsequently. The redistribution of internal forces is performed based on the equilibrium of the elements [13]. The ultimate shear and bending strength are calculated based on simplified criteria aligned with the commonly proposed methods found in the literature and codes for predicting the strength of masonry panels concerning various failure modes, such as rocking and crushing associated with flexural behavior, diagonal cracking, or shear sliding associated with shear behavior [13]. For reinforced concrete elements, elastic–perfectly plastic hinges, situated at element ends, typify nonlinear behavior. Shear and compressive/tensile failures are deemed brittle, while the manifestation of combined axial-bending moment failures, emulated by plastic hinges, is regarded as ductile [13].
Validation of the 3Muri model for confined masonry structures was conducted by [11]. In a broader sense, and concerning the validation of experimental tests, the available analysis tool has enabled a satisfactory prediction of the capacity curve derived from pushover analysis. This includes parameters such as initial stiffness, base shear strength, and displacement capacity, thereby demonstrating accuracy for application in performance-based design. Additionally, the software code facilitates the simulation of the unique characteristics of actual masonry building configurations [11].
The analysis of the structure was conducted according to the relevant Eurocodes, particularly Eurocode 8 (EC 8) [24], which serves as a seismic design standard. EC 8 delineates two fundamental features crucial for ensuring structural resilience against seismic events. Firstly, it mandates the prevention of structural collapse, requiring designs that can withstand seismic loading scenarios without collapsing entirely or partially. This necessitates meticulous engineering to ensure structural stability and integrity, safeguarding against collapse during seismic occurrences. Secondly, EC 8 emphasizes the importance of damage limitation, stipulating that structures must endure seismic forces exceeding design thresholds. This entails engineering structures to mitigate damage, ensuring they retain functionality and usability post-earthquake. These two principles form the cornerstone of seismic design strategies outlined in Eurocode 8, aimed at enhancing structural resilience and mitigating the impact of seismic events on built infrastructure.
The influence of local requirements related to soil is considered by categorizing the soil types when assessing seismic actions in general. EC 8 distinguishes several soil categories. For the analyzed structure, reliable data on the soil upon which the structure is situated were not available, so assumed values typical for the area were used, and soil category C was selected. Soil category C is defined as deep fissured dense or moderately dense sand, gravel, or stiff clay with thickness ranging from several tens of meters to several hundred meters. Understanding the soil type is crucial for seismic analysis and design, as it influences the structural response to seismic forces and helps engineers implement appropriate measures to ensure structural stability and resilience against earthquakes.
The peak ground acceleration value (PGA) is obtained from interactive maps for Bosnia and Herzegovina for return periods of 95 and 475 years, as part of the Annex of Eurocode 8 [25,26]. The subject building is located in Sarajevo, and the recorded PGA for a return period of 475 years is ag = 0.18 g.
The numerical model employed in this study was meticulously constructed using the advanced software package 3Muri v.14, renowned for its robust capabilities in structural analysis and modeling. Archival drawings were utilized as primary data sources for capturing the geometrical features within the 3D model.
However, it is pertinent to acknowledge the inherent challenges posed by the limited availability of comprehensive datasets pertaining to foundational details and material properties. In response to these constraints, informed assumptions were made, drawing upon a deep understanding of historical construction practices prevalent during the period under investigation. These assumptions were meticulously calibrated and validated to align with empirical evidence and established engineering principles, thereby enhancing the reliability and robustness of the numerical model.
Overall, the systematic construction of the numerical model, coupled with the judicious utilization of archival data and informed assumptions, underscores the rigorous scientific approach adopted in this study. By utilizing computational tools and interdisciplinary insights, the study endeavors to unravel the intricate complexities of historical constructions and shed light on their structural behavior and performance over time.
The 3D model is presented in Figure 8.
The material properties utilized for the calculations were acquired through the design process and a comprehensive review of relevant literature, as detailed in Table 1.
The damping value for masonry structures can vary depending on factors such as the type of masonry, construction methods, and the specific characteristics of the structure. Typically, for analytical purposes, damping values between 2% and 5% of critical damping are often assumed for masonry structures under seismic loads. Due to the absence of available experimental data, a damping value of 5% of critical damping was selected in this case, representing a common and conservative choice in structural analysis.
According to Eurocode 8, it is necessary to define the appropriate confidence factor (CF), which depends on the knowledge level. Eurocode 8 delineates three knowledge levels (KL1, KL2, or KL3) for seismic design, depending upon several critical factors. Firstly, the geometry of the structure and any non-structural elements, such as masonry infill panels, significantly influence the structural response to seismic forces. Secondly, the level of detail in various aspects of construction, including reinforcement quantity and detailing, member connections, floor diaphragm connections, masonry bonding, and reinforcement, is taken into account. Lastly, comprehending the mechanical properties of the materials used in construction, such as masonry, concrete, and steel, is essential for precise seismic design. By comprehensively assessing these factors, engineers can assign the appropriate knowledge level, ensuring that the design process adequately addresses the complexities and requirements of seismic-resistant structures.
In the specific case of the Kopčić House, while drawings of the structure were available, additional data regarding details and materials were lacking. Given this situation, to err on the side of caution and ensure a conservative approach, a knowledge level of KL1 was selected. This decision was made to account for the uncertainty regarding the level of detail and material properties, thereby ensuring that the seismic analysis remained robust and accounted for potential limitations in data availability.
When selecting materials, it becomes imperative to account for cracked cross-sections, given that the observed structure was built in 1939. The program reduces the elastic modulus by 50% through the selection of cracked stiffness, acknowledging the existing condition of the structure, which has endured for 85 years.
The Turnšek-Čačović [27] criterion was chosen to estimate shear capacity. According to this criterion, the masonry wall fails primarily due to diagonal cracking under tension, a prevalent failure mode observed in previous seismic events like the Emilia 2012 earthquake [28,29,30,31]. The criterion treats masonry as isotropic, defining failure as when the maximum principal stress σI surpasses the material’s tensile strength ft at the wall’s center. Despite masonry’s inherent anisotropy, this simplifies shear capacity assessment to a single parameter: ft.
The reinforcement of the tie-columns followed the general practice of the region. Longitudinal bars were selected as 4Ø12, and the tie spacing was set at 200 mm. This configuration ensured that the requirement for the amount of confined reinforcement, which should be more than 3 cm2, was satisfied. Additionally, for the reinforcement of the “reinforced walls” and circular columns, the minimum reinforcement specified in Eurocode 2 [32] was utilized.
The non-load-bearing walls, with their small thickness of 7 cm, were excluded from the modeling.
The building is a specific type of confined masonry structure, featuring reinforced concrete columns positioned beneath the balcony on the first floor, along with tie-columns and “reinforced walls” at the corners. The slabs consist of ribbed perforated concrete elements with a thickness of 7 cm. A commonly accepted guideline suggests that a concrete layer thickness of 63 mm results in a rigid diaphragm [33]. Therefore, the floors were modeled as rigid diaphragms to reflect this characteristic of the structure.
The roof was omitted from the modeling. Fortunately, in the seismic analysis, the roof can be disregarded as a load-bearing structure, as it has minimal impact on the structure’s seismic response and does not enhance its resistance. Instead, the roof’s contribution to the static and seismic analysis was treated as a static load on the structure.

4.1. Static Analysis

According to Eurocode 6 [34], two checks need to be performed during the linear static calculation (seismic loads excluded), namely a check for the slenderness of elements and a check related to vertical loading. The slenderness check must satisfy the condition hef/tefλlim = 27, where: hef—effective height of the wall; tef—effective thickness of the wall. During the check for vertical loading on elements, the condition NEdNRd = Φ × fd × A must be satisfied, where: NEd—designed value of the vertical load acting on the wall; A—loaded horizontal gross area of the cross-section of the wall; fd—designed compressive strength of the masonry; Φ—reduction factor of capacity; NRd—designed value of the vertical resistance of wall.
Based on the analysis, all walls have successfully passed both checks. The overall result for the entire structure is presented in Figure 9, where all elements are indicated in green, signifying the fulfillment of both conditions outlined in Eurocode 6: the slenderness check hef/tefλlim = 27 and the condition for vertical loading NEdNRd. Notably, there is a significant difference observed between the values of NEd and NRd, with the maximum value obtained for wall 2 being NEd/NRd = 0.43 compared to the unity threshold, indicating underutilization of elemental capacity. Additionally, it is worth noting that the slenderness criteria are satisfied as the maximum calculated value hef/tef = 13.60 is well below the threshold of 27.

4.2. Dynamic Characteristics of the Structure

Among the dynamic characteristics of masonry structures, natural frequencies, and mode shapes are paramount. Natural frequencies dictate the inherent vibrational behavior of a masonry structure, representing the frequencies at which it tends to oscillate. Understanding these frequencies is crucial for predicting how the structure will respond to external forces and for designing appropriate damping measures to mitigate excessive vibrations. Mode shapes complement natural frequencies, illustrating the spatial distribution and pattern of vibrations exhibited by the structure at each natural frequency. Together, natural frequencies and mode shapes provide critical insights into the dynamic behavior of masonry structures, guiding their design, assessment, and retrofitting for optimal performance and structural safety under dynamic loading conditions.
After completing the static calculation, a modal analysis was conducted. Care was taken to ensure that when selecting the number of oscillation modes in each direction, a minimum of 90% of the total structure mass was accounted for, and that all vibration modes with modal masses exceeding 5% of the total structure mass were included. Table 2 presents the results of the modal analysis, including the fundamental period, mass participation in the x-, y-, and z-directions, and the percentage of participating masses in each respective direction. Only the first two eigenmodes are presented in Table 2.
It is interesting to note that both modes are not purely translational; there is also some rotational motion, as evident in Figure 10. Torsional modes can occur in masonry structures, especially when there are asymmetries or irregularities in the distribution of mass and stiffness. The torsion is primarily attributed to the asymmetric positioning of the load-bearing walls, which results in uneven distribution of forces throughout the structure. Additionally, the presence of the four columns introduces structural irregularities, further exacerbating torsional effects. Moreover, the inclusion of confining elements, such as tie-columns and “reinforcement walls,” contributes to the complex interplay of forces within the structure, ultimately leading to a discrepancy between the center of mass and the center of stiffness. These discrepancies amplified torsional forces, making it a significant factor in the structural behavior of the system.

4.3. Pushover Analysis

The pushover analysis conducted in the 3Muri software serves as a critical tool for assessing the structural response to lateral loads. This method relies on distributing lateral loads throughout the structure, either as uniform loads applied along the building’s height or in alignment with translational mode shapes (modal distribution). The objective was to comprehensively evaluate the behavior of the structure under various loading conditions.
To ensure a thorough examination, twenty-four distinct evaluations were conducted, including two analyses each in the X-direction (+X and −X) and Y-direction (+Y and −Y). This approach allowed us to gain insight into the structural response from different orientations. Adhering to Eurocode 8 specifications, accidental eccentricity within +/− 5% was also considered, accounting for potential deviations in load distribution due to unforeseen factors or construction discrepancies.
Additionally, to provide a comprehensive view of the structure’s performance, capacity curves for both the Y- and X-directions were generated. These curves, depicted in Figure 11 and Figure 12, offer valuable insights into the structure’s ability to withstand lateral loads from different orientations.
Given the asymmetric nature of the structure, selecting the appropriate position for the control node was crucial. The process of determining the appropriate placement of control nodes to monitor the capacity curve was thoroughly discussed in [35] and further investigated in [36]. The optimization of nonlinear pushover analysis convergence requires meticulous selection of the control node, both in terms of elevation and plan. Regarding elevation, it is advisable to position the control node above the level at which collapse occurs, as commonly recommended by codes. In terms of the in-plan location, this consideration is particularly critical for existing buildings with flexible floors. While control node placement has minimal impact on results for rigid floors, it significantly influences outcomes for flexible ones due to variations in masonry wall stiffness and strength. Enhanced numerical accuracy is achieved when the control node aligns with the wall that experiences initial collapse [37]. In our specific case, given the complexity of the structure, this aspect was carefully studied.
The selection of a representative displacement for constructing the pushover curve assumes critical significance, especially in scenarios where diaphragms lack rigidity or the building exhibits plan irregularities. Notably, the resulting capacity curve displays varying displacement capacities (ductility) depending on whether the analyzed displacement corresponds to a wall reaching failure or not. Therefore, instead of solely relying on the displacement of the control node, it is advisable to calculate the weighted average displacement of all nodes at the same level, taking into account their seismic nodal mass [37]. This methodological approach was chosen in this case as it represents a heuristic strategy aimed at ensuring a definitive outcome, supported by a tangible physical interpretation: specifically, the displacement-based approach evaluates the seismic masses’ ability to respond relative to the earthquake-induced displacement demand.
Following the above-mentioned principles, nodes 12 and 59 were identified for the Y- and X-directions, respectively (see Figure 10).
The analysis revealed distinct characteristics in force magnitude, displacement, and directional response under uniform and modal force distributions. These findings not only provide valuable insights into structural behavior but also lay the groundwork for developing effective reinforcement strategies and ensuring compliance with safety standards.
Under uniform force distribution, the structure reaches a maximum force of 1030.1 kN, with a corresponding displacement of 2.52 mm before transitioning into nonlinear behavior. This force signifies the formation of initial cracks in the wall, indicating the structural capacity. Interestingly, there is a decrease in capacity for the +Y-direction when no eccentricity and positive eccentricities are considered, which is not observed when the eccentricity is negative. Upon examining the damage to the wall elements, it was observed that this decrease is attributed to the shear and flexure failure of one of the “reinforcement walls” and one of the masonry walls in the Y-direction, which is in line with the findings [38,39,40]. The highest capacity is achieved in the +Y-direction with a +5% accidental eccentricity, reaching a maximum shear force of 1919.8 kN and a maximum displacement of 18.6 mm (Figure 11).
In all three capacity curves (−Y-direction), the ductility value remains consistent. Notably, the behavior in the −Y-direction exhibits remarkable similarity across all cases—no eccentricity, positive eccentricity, and negative eccentricity—although a significantly higher ductility is observed for negative eccentricity. This suggests that the structural response to lateral loads in the −Y-direction is largely unaffected by the presence or absence of eccentricity. However, when negative eccentricity is introduced, the structure demonstrates a notable increase in ductility, indicating its ability to deform plastically under load. The increase in displacement is 43.3% compared to the other two capacities in the −Y-direction, while the shear force increases by 17.9% compared to the +Y-direction. These findings underscore the importance of considering eccentricity effects in structural analysis, particularly in assessing the ductility and overall response of the structure to lateral loading conditions.
On the other hand, with the modal force distribution, the maximum force required to induce nonlinear behavior is lower, specifically at 642.45 kN. This suggests that the structure can withstand less force before transitioning to the nonlinear regime compared to the uniform distribution. The displacement at this critical force point is slightly higher, measuring 2.19 mm. Interestingly, when analyzing the capacity curves for all six combinations with the load pattern in the form of translational modes, they exhibit remarkable similarity. However, one capacity curve stands out somewhat, particularly in the −Y-direction and with a −5% eccentricity, where the highest shear force is noted at 1362.9 kN, accompanied by a maximum displacement of 17.02 mm. This case demonstrates a notable 22.8% increase in shear force compared to the other values observed in the −Y-direction (Figure 11).
These findings underscore the importance of considering different load distributions and eccentricities in assessing the structural behavior under varying loading conditions. While the capacity curves generally align, specific combinations may exhibit distinct responses, highlighting the need for a thorough analysis to capture all potential scenarios and ensure the structural integrity and safety of the building.
In the X-direction, particular attention is directed towards the positive direction. Upon comparing the structural response between the uniform distribution and the modal distribution, a notable discrepancy in structural capacity and ductility becomes apparent. The uniform distribution consistently demonstrates a higher structural capacity and greater ductility compared to the modal distribution. Interestingly, when examining the capacity curves for uniform distribution across various eccentricity values, a remarkable similarity is observed, indicating a consistent structural response regardless of eccentricity. This uniformity in response is also reflected in the set of modal distributions for different eccentricities.
However, the modal distribution with a +5% eccentricity presents a distinct behavior characterized by its lower capacity and ductility. In this configuration, the shear force measures 1442 kN, accompanied by a maximum displacement of 5.63 mm. Despite experiencing a minor increase of 5.4% in shear force compared to other configurations, this particular modal distribution exhibits the structure’s reduced resilience under positive eccentricity conditions (Figure 12). Conversely, the uniform distribution demonstrates a significantly higher capacity compared to the modal distribution. The maximum obtained shear force in this scenario reaches an impressive 2307.8 kN (refer to Figure 12), underscoring the structural robustness achievable with uniform load distribution across the structure.
This observation underscores once again the sensitivity of the structure’s response to variations in loading patterns and eccentricities, particularly evident in modal distributions. The distinct behavior exhibited by the +5% eccentricity configuration highlights the importance of considering eccentricity effects in structural analysis, as they can significantly influence structural performance and resilience under seismic loading conditions. While the uniform distribution proves advantageous for enhancing structural capacity, modal distributions with specific eccentricities may lead to reduced resilience, emphasizing the need for comprehensive analysis to ensure the structural integrity and safety of the building.
Furthermore, the observed differences in shear force and displacement under different loading conditions emphasize the sensitivity of the structure to variations in loading patterns and eccentricities. It is crucial for engineers and designers to account for these factors during the structural design process to mitigate potential risks and optimize performance.
According to Eurocode 8, the assessment of structural performance involves the consideration of various limit states, each corresponding to specific return periods. In the present study, particular attention was given to two critical limit states: significant damage (SD) and damage limitation (DL).
The significant damage (SD) limit state, associated with a return period of 475 years, delineates a condition wherein the building experiences observable damage that compromises its functionality while not immediately endangering life safety. This state is characterized by moderate to severe damage levels noticeable through visual inspection or detailed structural assessment. In contrast, the damage limitation (DL) limit state aims to limit structural damage to a predetermined extent, ensuring the building remains safe for occupancy with minimal loss of functionality. With a return period of 95 years, this limit state prioritizes damage mitigation to uphold structural integrity and occupant safety, particularly during extreme events such as earthquakes or windstorms.
The 3Muri software facilitates the calculation of the vulnerability index (α) automatically for different limit states corresponding to specific return periods. The vulnerability index represents the ratio of the peak ground acceleration (PGA) capacity to the PGA demand. A vulnerability index (α) less than 1 indicates that the structural resistance is insufficient to meet the demand, necessitating retrofitting or intervention measures to enhance structural performance.
Table 3 presents the vulnerability index obtained from the analysis, focusing on modal analyses that did not meet the specified criteria in the Y-direction. Additionally, the vulnerability index is depicted for the +X-direction, despite the verification check being satisfied, providing comprehensive insight into structural performance under varying loading conditions.
In Figure 13, the damage incurred by the structural elements under loading case 23 (+Y-direction) is depicted, revealing a vulnerability index of 0.632. This index indicates a capacity of only 63.2%, highlighting significant structural vulnerability. Upon closer examination in the final step of the analysis, predominant damages are observed around the structural openings, primarily manifested as bending failures. Furthermore, evidence of shear damage and bending failure is observed within the “reinforced walls”, further emphasizing the structural challenges encountered. In the masonry walls, signs of incipient bending failure gradually progress to full bending failure, particularly pronounced along the outer longitudinal wall parallel to the street façade. Additionally, on the first floor, shear damage is evident, particularly notable around the balcony area.
This comprehensive evaluation of Figure 13 underscores the complex array of structural vulnerabilities presented across various elements under loading case 23. The observed damages provide valuable insights into the structural performance under applied loads, emphasizing the importance of mitigation strategies in enhancing structural resilience.
Although the verification passed for the X-direction, a meticulous analysis revealed a concerning observation regarding the safety margin of the structure, underscored by vulnerability index values nearing unity. This proximity to unity signifies minimal reserve in the structural capacity to withstand significant damage states, ranging from 10% to 29.2%. Such a narrow safety margin raises critical concerns regarding structural robustness and resilience under extreme loading conditions.
The structural vulnerabilities are demonstrated in the form of apparent damage to various structural elements, as delineated by Figure 14. Notably, the “reinforcement walls” and tie-columns exhibit discernible signs of bending damage, indicative of structural distress and compromised load-bearing capacity. Furthermore, the masonry walls display evident indications of bending damage, particularly around openings, progressing to incipient bending damage in localized regions. Additionally, instances of shear damage and even shear failure are observed in select locations, further emphasizing the structural vulnerabilities and susceptibility to loading-induced damage.

5. Conclusions

In conclusion, the detailed analysis of the Kopčić House has provided invaluable insights into the structural behavior and seismic performance of confined masonry buildings, particularly those incorporating reinforced concrete elements within the context of modernist architecture. Through the meticulous application of advanced numerical modeling techniques using the 3Muri software and adherence to Eurocode 8 guidelines, this study has highlighted the unique characteristics and vulnerabilities inherent in this type of structure.
A significant finding of this analysis is the discernible difference in structural response between the X- and Y-directions. This study has identified distinct behaviors under varying load distributions and eccentricities, underscoring the importance of load distribution considerations in structural assessment. While the uniform load distribution has demonstrated higher capacity and ductility, modal distributions with specific eccentricities have revealed potential areas of vulnerability, emphasizing the necessity for comprehensive analysis to ensure structural integrity and safety.
This comprehensive assessment underscores the imperative for proactive measures to mitigate structural vulnerabilities and enhance resilience, particularly in regions prone to seismic activity. Addressing the identified structural deficiencies through targeted retrofitting and reinforcement strategies is paramount to safeguarding structural integrity and ensuring occupant safety in the face of potential extreme events.
The significance of this work lies in its practical applications. The insights gained from this analysis can inform structural assessment practices, retrofitting strategies, and preservation efforts for similar historic structures facing seismic risks. Moving forward, experimental validation of the numerical models and targeted retrofit interventions could further enhance the structural resilience of modernist heritage in seismic-prone regions, ensuring the long-term sustainability and cultural significance of these architectural landmarks. By understanding the specific vulnerabilities identified in the Kopčić House, engineers and preservationists can develop targeted interventions to enhance the structural resilience of similar buildings, ensuring their long-term sustainability and cultural significance.
Moreover, the methodologies and findings presented in this study are generalizable beyond the Kopčić House. The analytical framework developed can be applied to other existing confined masonry structures with reinforced concrete elements, providing valuable guidance for assessing and mitigating seismic risks in architectural heritage. This generalizability enhances the broader impact of the research, making it relevant not only to the preservation of specific buildings but also to the broader field of structural engineering and heritage conservation.
The value of this work lies in its practical utility and broad applicability. By shedding light on the structural behavior of a significant architectural landmark and offering valuable insights for preservation and risk mitigation, this study contributes to the advancement of knowledge in both academic and professional domains.
Interdisciplinary collaboration between architects, engineers, and heritage preservationists will be crucial for advancing resilient building design and safeguarding architectural heritage for future generations. By integrating insights from multiple disciplines, stakeholders can develop holistic strategies to address structural vulnerabilities and enhance the resilience of heritage buildings against diverse loading scenarios.
Beyond safety, this study is extremely valuable for informing local and national policy decisions and enhancing economic efficiency in building maintenance and urban planning. Economically, the research supports the cost-effective method of retrofitting rather than rebuilding, providing a sustainable building maintenance approach. Furthermore, by increasing community knowledge and encouraging a proactive attitude to seismic preparation, our initiative helps to build a more resilient society, ensuring that both the cultural legacy and the safety of residents are safeguarded for future generations.

Author Contributions

Conceptualization, N.A. and M.H.-N.; methodology, N.A.; software, A.P. and N.A.; validation, N.A. and A.P.; formal analysis, N.A. and A.P.; investigation, A.P.; resources, N.A. and A.P.; writing—original draft preparation, N.A., M.H.-N. and A.P.; writing—review and editing, N.A. and M.H.-N.; visualization, N.A.; supervision, N.A.; project administration, N.A.; funding acquisition, N.A. All authors have read and agreed to the published version of the manuscript.

Funding

The research discussed in this article is part of a broader study funded by the Ministry for Science, Higher Education, and Youth of the Sarajevo Canton, titled “Development of a methodology for reducing earthquake risk to prevent and mitigate the spread of infectious diseases caused by the COVID-19 pandemic in the urban area of Sarajevo Canton” (Project code: RIZEMK), No. 03-973-5/21. This project has been selected to receive funding from the 2021 budget of the Sarajevo Canton through a public call for co-financing scientific and artistic research, as well as research and development projects and programs.

Data Availability Statement

The data presented in this study are available on request from the corresponding author. The data are not publicly available due to privacy reasons.

Conflicts of Interest

The authors declare no conflicts of interest.

References

  1. Historijska Građevina—Kuća Damić, Komisija za Očuvanje Nacionalnih Spomenika BiH, 18 May 2009. Available online: http://old.kons.gov.ba/main.php?id_struct=6&lang=1&action=view&id=3225 (accessed on 15 April 2024).
  2. Kahrović Handžić, L. Integralna Metodologija Vrednovanja Arhitektonskog Nasleđa 20. Veka, Studije Slučaja Urbanih vila prve Polovine 20. veka u Sarajevu. Ph.D. Thesis, University in Belgrade, Faculty of Architecture, Beograd, Serbia, 2022. [Google Scholar]
  3. Finci, J. Razvoj Dispozicije i Funkcije u Stambenoj Kulturi Sarajeva, 1st ed.; Faculty of Architecture: Sarajevo, Bosnia and Herzegovina, 1962. [Google Scholar]
  4. Ahmed, A.; Shahzada, K. Seismic vulnerability assessment of confined masonry structures by macro-modeling approach. Structures 2020, 27, 639–649. [Google Scholar] [CrossRef]
  5. Institute for Standardization of Serbia. PTP2—Provisional Technical Regulations for Loading of Structures, Part 2, No. 11730; Institute for Standardization of Serbia: Belgrade, Serbia, 1948. [Google Scholar]
  6. Cvetković, R.; Blagojević, P.; Brzev, S. Seismic Design of a Typical Mid-Rise Residential Building in Serbia Using Confined Masonry and Reinforced Concrete Frame Systems. Buildings 2024, 14, 368. [Google Scholar] [CrossRef]
  7. Institute for Standardization of Serbia. PTP-12—Provisional Technical Regulations for Construction in Seismic Regions; Official Gazette of SFRY No. 39/64; Institute for Standardization of Serbia: Belgrade, Serbia, 1964. [Google Scholar]
  8. Nicoletti, V.; Arezzo, D.; Carbonari, S.; Gara, F. Detection of infill wall damage due to earthquakes from vibration data. Earthq. Eng. Struct. Dyn. 2023, 52, 460–481. [Google Scholar] [CrossRef]
  9. Monical, J.; Puloj, S. A study of the response of reinforced concrete frames with and without masonry infill walls to earthquake motions. Structures 2024, 63, 106345. [Google Scholar] [CrossRef]
  10. Nucera, F.; Santini, A.; Tripodi, E.; Cannizzaro, F.; Pantò, B. Influence of geometrical and mechanical parameters on the seismic vulnerability assessment of confined masonry buildings by macro-element modeling. In Proceedings of the 15th World Conference on Earthquake Engineering, Lisbon, Portugal, 24–28 September 2012; pp. 24–28. [Google Scholar]
  11. Marques, R.; Lourenço, P.B. Unreinforced and confined masonry buildings in seismic regions: Validation of macro-element models and cost analysis. Eng. Struct. 2014, 64, 52–67. [Google Scholar] [CrossRef]
  12. D’Altri, A.M.; Sarhosis, V.; Milani, G.; Rots, J.; Cattari, S.; Lagomarsino, S.; Sacco, E.; Tralli, A.; Castellazzi, G.; de Miranda, S. A review of numerical models for masonry structures. In Numerical Modeling of Masonry and Historical Structures; Woodhead Publishing Series in Civil and Structural Engineering; Woodhead Publishing: Sawston, UK; Matthew Deans: Oxford, UK, 2019; pp. 3–53. [Google Scholar] [CrossRef]
  13. Lagomarsino, S.; Penna, A.; Galasco, A.; Cattari, S. TREMURI program: An equivalent frame model for the nonlinear seismic analysis of masonry buildings. Eng. Struct. 2013, 56, 1787–1799. [Google Scholar] [CrossRef]
  14. Cattari, S.; Camilletti, D.; Lagomarsino, S.; Bracchi, S.; Rota, M.; Penna, A. Masonry Italian code-conforming buildings. Part 2: Nonlinear modelling and time-history analysis. J. Earthq. Eng. 2018, 22 (Suppl. S2), 2010–2040. [Google Scholar] [CrossRef]
  15. Kadić, E. Arhitekt Reuf Kadić i Početci Moderne Arhitekture u Bosni i Hercegovini, 1st ed.; Emir Kadić: Sarajevo, Bosnia and Herzegovina, 2010; pp. 1–95. [Google Scholar]
  16. Piljug, A. Seizmička Analiza Postojeće Stambene Zgrade Izgrađene u Periodu Između Dva Svjetska Rata u Sarajevu. Master’s Thesis, University of Sarajevo-Faculty of Civil Engineering, Sarajevo, Bosnia and Herzegovina, 2023. [Google Scholar]
  17. Ademović, N.; Hadzima-Nyarko, M.; Zagora, N. Seismic vulnerability assessment of masonry buildings in Banja Luka and Sarajevo (Bosnia and Herzegovina) using the macroseismic model. Bull. Earthq. Eng. 2020, 18, 3897–3933. [Google Scholar] [CrossRef]
  18. Hadzima-Nyarko, M.; Pavić, G.; Lešić, M. Seismic vulnerability of old confined masonry buildings in Osijek, Croatia. Earthq. Struct. 2016, 11, 629–648. [Google Scholar] [CrossRef]
  19. Blagojević, N.; Brzev, S.; Petrović, M.; Borozan, J.; Bulajić, B.; Marinković, M.; Hadzima-Nyarko, M.; Koković, V.; Stojadinović, B. Residential building stock in Serbia: Classification and vulnerability for seismic risk studies. Bull. Earthq. Eng. 2023, 21, 4315–4383. [Google Scholar] [CrossRef]
  20. Ostojić, D.; Muravljov, M.; Stevanović, B. Examples of housing rehabilitation multistory masonry buildings damaged in the earthquake in Kraljevo. Izgradnja 2011, 5–6, 315–325. [Google Scholar]
  21. Ostojić, D.; Stevanović, B.; Muravljov, M.; Glišović. IRehabilitation and strengthening of masonry structures damaged in the Kraljevo earthquake. In Proceedings of the 4th International Conference: Civil Engineering—Science and Practice, Žabljak, Montenegro, 20–24 February 2012. [Google Scholar]
  22. Borah, B.; Kaushik, H.B.; Singhal, V. Analysis and Design of Confined Masonry Structures: Review and Future Research Directions. Buildings 2023, 13, 1282. [Google Scholar] [CrossRef]
  23. Mouyiannou, A.; Rota, M.; Penna, A.; Magenes, M. Identification of Suitable Limit States from Nonlinear Dynamic Analyses of Masonry Structures. J. Earthq. Eng. 2014, 18, 231–263. [Google Scholar] [CrossRef]
  24. EN 1998-1; Eurocode 8: Design of Structures for Earthquake Resistance—Part 1: General Rules, Seismic Actions and Rules for Buildings. European Committee for Standardization, Management Centre: Brussels, Belgium, 2004.
  25. Interactive Seismic Map for Bosnia and Herzegovina. Available online: http://eurokodovi.ba/?lang=hr (accessed on 10 December 2023).
  26. BAS EN 1998-1/NA:2018; Eurocode 8: Design of Structures for Earthquake Resistance—Part 1: General Rules, Seismic Actions and Rules for Buildings—National Annex. Institute for Standardization of Bosnia and Herzegovina: Istočno Sarajevo, Bosnia and Herzegovina, 2018.
  27. Turnsek, V.; Cacovic, F. Some experimental results on the strength of brick masonry walls. In Proceedings of the 2nd International Brick Masonry Conference, Stoke-on-Trent, UK, 12–15 April 1971; pp. 149–156. [Google Scholar]
  28. Giaretton, M.; Dizhur, D.; da Porto, F.; Ingham, J.M. Construction Details and Observed Earthquake Performance of Unreinforced Clay Brick Masonry Cavity-walls. Structures 2016, 6, 159–169. [Google Scholar] [CrossRef]
  29. Javed, M.; Magenes, G.; Alam, B.; Khan, A.N.; Ali, Q.; Syed, A.M. Experimental Seismic Performance Evaluation of Unreinforced Brick Masonry Shear Walls. Earthq. Spectra 2015, 31, 215–246. [Google Scholar] [CrossRef]
  30. Penna, A.; Morandi, P.; Rota, M.; Manzini, C.F.; Porto, F.D.; Magenes, G. Performance of masonry buildings during the Emilia 2012 earthquake. Bull. Earthq. Eng. 2014, 12, 2255–2273. [Google Scholar] [CrossRef]
  31. Tomaževič, M. Shear resistance of masonry walls and Eurocode 6: Shear versus tensile strength of masonry. Mater. Struct. 2008, 42, 889–907. [Google Scholar] [CrossRef]
  32. EN 1992-1-1; Eurocode 2: Design of Concrete Structures—Part 1-1: General Rules and Rules for Buildings. European Union: Brussels, Belgium, 2004; p. 230.
  33. Drysdale, R.G.; Hamid, A.A.; Baker, L.R. Masonry Structures: Behaviour and Design, 2nd ed.; The Masonry Society: Boulder, CO, USA, 1999; p. 888. [Google Scholar]
  34. EN 1996-1-1; Eurocode 6—Design of Masonry Structures—Part 1-1: General Rules for Reinforced and Unreinforced Masonry Structures. European Committee for Standardization, Management Centre: Brussels, Belgium, 2005.
  35. Uva, G.; Porco, F.; Fiore, A.; Ruggieri, S. Effects in conventional nonlinear static analysis: Evaluation of control node position. Structures 2018, 13, 178–192. [Google Scholar] [CrossRef]
  36. Ruggieri, S.; Uva, G. Accounting for the Spatial Variability of Seismic Motion in the Pushover Analysis of Regular and Irregular RC Buildings in the New Italian Building Code. Buildings 2020, 10, 177. [Google Scholar] [CrossRef]
  37. Lagomarsino, S.; Cattari, S. Seismic Performance of Historical Masonry Structures Through Pushover and Nonlinear Dynamic Analyses. In Perspectives on European Earthquake Engineering and Seismology. Geotechnical, Geological and Earthquake Engineering; Ansal, A., Ed.; Springer: Cham, Switzerland, 2015; Volume 39. [Google Scholar] [CrossRef]
  38. Brzev, S. Earthquake-Resistant Confined Masonry Construction, 1st ed.; National Information Center of Earthquake Engineering, Indian Institute of Technology Kanpur: Uttar Pradesh, India, 2007. [Google Scholar]
  39. Meli, R.; Brzev, S.; Astroza, M.; Boen, T.; Crisafulli, F.; Dai, J.; Farsi, M.; Hart, T.; Mebarki, A.; Moghadam, A.S.; et al. Seismic Design Guide for Low-Rise Confined Masonry Buildings; Publication WHE-2011-02; World Housing Encyclopedia, Earthquake Engineering Research Institute: Oakland, CA, USA, 2011. [Google Scholar]
  40. Marques, R.; Lourenço, P.B. Structural behaviour and design rules of confined masonry walls: Review and proposals. Constr. Build. Mater. 2019, 217, 137–155. [Google Scholar] [CrossRef]
Figure 1. (a) Damić House (author’s source); (b) Jakub-Paša Building, Obala Kulina bana Street (author’s source).
Figure 1. (a) Damić House (author’s source); (b) Jakub-Paša Building, Obala Kulina bana Street (author’s source).
Buildings 14 01548 g001
Figure 2. Illustration of Safvet-beg Bašagić Street in the 20th century featuring a series of modernist urban villas (houses), with the Kopčić House located second on the right side of the street [2].
Figure 2. Illustration of Safvet-beg Bašagić Street in the 20th century featuring a series of modernist urban villas (houses), with the Kopčić House located second on the right side of the street [2].
Buildings 14 01548 g002
Figure 3. Kopčić House constructed on Safvet-beg Bašagić Street in 1939 [15].
Figure 3. Kopčić House constructed on Safvet-beg Bašagić Street in 1939 [15].
Buildings 14 01548 g003
Figure 4. Catalog of Kopčić House [2].
Figure 4. Catalog of Kopčić House [2].
Buildings 14 01548 g004
Figure 5. Kopčić House today (author’s source).
Figure 5. Kopčić House today (author’s source).
Buildings 14 01548 g005
Figure 6. The original blueprint of the buildings was obtained from the Kopčić family. Reproduced with permission from the Kopčić family.
Figure 6. The original blueprint of the buildings was obtained from the Kopčić family. Reproduced with permission from the Kopčić family.
Buildings 14 01548 g006
Figure 7. BIM model.
Figure 7. BIM model.
Buildings 14 01548 g007
Figure 8. Three-dimensional model of the analyzed building [16].
Figure 8. Three-dimensional model of the analyzed building [16].
Buildings 14 01548 g008
Figure 9. Three-dimensional view of the static analysis results of the structure.
Figure 9. Three-dimensional view of the static analysis results of the structure.
Buildings 14 01548 g009
Figure 10. Eigen modes. (a) First eigen mode, Y-direction; (b) second eigen mode, X-direction.
Figure 10. Eigen modes. (a) First eigen mode, Y-direction; (b) second eigen mode, X-direction.
Buildings 14 01548 g010
Figure 11. Pushover in the Y-direction.
Figure 11. Pushover in the Y-direction.
Buildings 14 01548 g011
Figure 12. Pushover in the X-direction.
Figure 12. Pushover in the X-direction.
Buildings 14 01548 g012
Figure 13. Damage of the structure during analysis No. 23.
Figure 13. Damage of the structure during analysis No. 23.
Buildings 14 01548 g013
Figure 14. Damage of the wall during analysis no. 11.
Figure 14. Damage of the wall during analysis no. 11.
Buildings 14 01548 g014
Table 1. Material properties.
Table 1. Material properties.
Parameters for MasonrySymbolUnitValue
Density (kg/m3)ρmasonrykg/m31900
Compressive StrengthfkN/mm25.738
Modulus of ElasticityEmasonryN/mm25738
Shear ModulusGmasonryN/mm22295
Confidence levelCF-1.35
Mortar compressive strengthfmN/mm25
Poisson’s ratioνmasonry-0.20
Parameters for ConcreteSymbolUnitValue
Density (kg/m3)ρconcretekg/m32500
Compressive StrengthfckN/mm226
Modulus of ElasticityEconcreteN/mm229,000
Poisson’s ratioνconcrete-0.20
Parameters for ReinforcementSymbolUnitValue
Density (kg/m3)ρreinforcementkg/m37900
Yielding strengthfykN/mm2420
Modulus of ElasticityEreinforcementN/mm2200,000
Poisson’s ratioνreinforcement-0.30
Table 2. Results of modal analysis.
Table 2. Results of modal analysis.
ModeT
[s]
mx
[kg]
Mx
[%]
my
[kg]
My
[%]
mz
[kg]
Mz
[%]
10.1784695601.68325,65357.295020.09
20.09604246,38543.3594141.66100.00
Table 3. Results of the vulnerability index.
Table 3. Results of the vulnerability index.
No.Seism Dir.SEISMIC LoadEccentricity [mm]αSDαDL
6+YModal distribution00.6651.025
8−YModal distribution00.6751.218
19+YModal distribution642.450.6361.010
20+YModal distribution−642.450.6991.105
23−YModal distribution642.450.6321.053
24−YModal distribution−642.450.7911.320
2+XModal distribution01.1901.904
11+XModal distribution660.51.1001.859
12+XModal distribution−660.51.2922.017
Disclaimer/Publisher’s Note: The statements, opinions and data contained in all publications are solely those of the individual author(s) and contributor(s) and not of MDPI and/or the editor(s). MDPI and/or the editor(s) disclaim responsibility for any injury to people or property resulting from any ideas, methods, instructions or products referred to in the content.

Share and Cite

MDPI and ACS Style

Ademovic, N.; Hadzima-Nyarko, M.; Piljug, A. Seismic Assessment of a Modernist Building in Sarajevo, Bosnia and Herzegovina. Buildings 2024, 14, 1548. https://doi.org/10.3390/buildings14061548

AMA Style

Ademovic N, Hadzima-Nyarko M, Piljug A. Seismic Assessment of a Modernist Building in Sarajevo, Bosnia and Herzegovina. Buildings. 2024; 14(6):1548. https://doi.org/10.3390/buildings14061548

Chicago/Turabian Style

Ademovic, Naida, Marijana Hadzima-Nyarko, and Admira Piljug. 2024. "Seismic Assessment of a Modernist Building in Sarajevo, Bosnia and Herzegovina" Buildings 14, no. 6: 1548. https://doi.org/10.3390/buildings14061548

APA Style

Ademovic, N., Hadzima-Nyarko, M., & Piljug, A. (2024). Seismic Assessment of a Modernist Building in Sarajevo, Bosnia and Herzegovina. Buildings, 14(6), 1548. https://doi.org/10.3390/buildings14061548

Note that from the first issue of 2016, this journal uses article numbers instead of page numbers. See further details here.

Article Metrics

Back to TopTop