Next Article in Journal
Effects of Staggered Plates on the Uplift Failure State and Bearing Capacity of NT-CEP Pile Groups
Next Article in Special Issue
A Study of Soundscape Restoration in Office-Type Pocket Parks
Previous Article in Journal
Strategies for the Preservation of Historic Areas within Existing Middle Eastern Cities: The Case of Historic Jeddah
Previous Article in Special Issue
Determination of the Sound Absorption Area Inside an Elementary Classroom Using Three Acoustical Methods: Computer Modeling, 1/10-Scale Model Experiment, and Field Acoustic Measurement
 
 
Font Type:
Arial Georgia Verdana
Font Size:
Aa Aa Aa
Line Spacing:
Column Width:
Background:
Article

The Effects of Sound Absorption of Stage House on the Acoustics of Auditorium in an Opera House

State Key Laboratory of Subtropical Building and Urban Science, School of Architecture, South China University of Technology, Guangzhou 510640, China
*
Author to whom correspondence should be addressed.
Buildings 2024, 14(3), 718; https://doi.org/10.3390/buildings14030718
Submission received: 3 October 2023 / Revised: 21 January 2024 / Accepted: 5 February 2024 / Published: 7 March 2024
(This article belongs to the Special Issue Acoustics and Perception in Special Shape Spaces)

Abstract

The coupling effects between the stage house and the auditorium in opera houses make the sound field very complex. In the present study, the effects of stage absorption on the primary monaural objective room acoustic parameters in the seating area of an opera house in China were investigated by means of computer simulation and scaled model measurement. In computer simulations, the absorption coefficient of the ceiling and walls of the stage house was changed across several steps, and then a series of experiments were conducted in a 1:20 scaled hall with and without curtains and wall absorption on the stage to verify the simulation results. It was found that stage absorption has a significant influence on early decay time (EDT), reverberation time (RT) and clarity (C80) in the seating area, while the effect on sound strength (G) is much smaller. The values of EDT and RT decrease with an increase in sound absorption on the stage, while C80 displays an opposite trend. In addition, when the average absorption coefficient of the stage walls and ceiling is over 0.5, the variations in these four parameters due to the increase in stage absorption can be constrained within an acceptable range.

1. Introduction

Differing from concert halls, opera houses consist of two spaces: the auditorium and the stage house. These two spaces are coupled to each other through the proscenium, which makes a description of the spatial characteristics of the sound field in an opera house more sophisticated than in a concert hall [1,2,3,4,5].
The volume of the stage house is generally larger than that of the auditorium, being around two to three times as large as the auditorium in many cases. Some opera houses, such as the Metropolitan Opera House in the USA and the Opéra Bastille in France, even have a stage house with more than five times the volume of the auditorium [6]. This huge volume tends to make the stage house too reverberant, while the absorptive materials in the stage house are helpful for reducing the reverberation time of the stage, which is expected to have important effects on both performers and the audience. Stage absorption can be classified into two categories: fixed stage absorption (i.e., absorptive materials mounted on the ceiling and walls of the stage house) and variable stage elements (i.e., removable components on the stage such as fly curtains, side curtains, stage sets, and a cyclorama) [7].
Although the significance of stage acoustics in opera halls has been underlined by many researchers [1,2,3,4,5,6,8,9], the effects of the stage on the acoustics of the auditorium are, to the knowledge of the authors, not extensively documented in the literature. Pompoli and Prodi [10] suggested a standardized setup to guide acoustical measurements in baroque theatres. They proposed any scenery should not be present on the full length of the stage during the measurements and that 500 m2 of heavy curtains should be suspended from the ceiling in front of the rear wall to simulate the absorption of the scenery. Gustafsson and Natsiopolos [11] measured reverberation time, clarity, and sound pressure level in the audience area of a real opera house with different stage sets and demonstrated the difficulty in describing the acoustics in an opera hall as well as the significance of the stage set design considering the acoustics.
Hidaka and Beranek [12] measured a series of room acoustical parameters, including early decay time (EDT), reverberation time (RT), clarity (C80), sound strength (G), bass ratio (BR), initial time-delay gap (ITDG) and inter-aural cross correlation coefficient (IACC), in 23 opera houses throughout 11 countries with or without stage sets and investigated the relations between these objective parameters and subjective responses. In addition, the absorption of the proscenium in several opera houses with a highly absorbent stage house was also explored using site measurements and scaled model experiments, and it was found that the absorptions of these prosceniums were generally larger than the areas of the prosceniums themselves. The authors pointed out that this phenomenon was possibly explained by coupled room theory, but this assumption was not verified.
Ryu and Jeon [13] studied the effects of the volume and surface absorption of the stage house, as well as the opening size of the proscenium, on the acoustics of the auditorium in a multi-purpose hall. In their investigations, neither curtains nor stage sets were installed on the stage. Among the three factors, the absorption of the stage surface was considered the one that most affects the acoustics in the seating area. In addition, it was reported that an increase in stage volume will cause an increase in reverberation time in the seating area, while an increase in proscenium size has the opposite effect. However, this trend only occurred when the absorption coefficient of the ceiling and walls of the stage house was less than 0.3, but not in highly absorptive cases.
You et al. [14] investigated the effects of the batten area in the fly tower, the absorption characteristics of the stage walls, and stage sets on the acoustics of both the stage house and the auditorium using computer simulation and a 1:50 scaled model of a proscenium hall. It was found that the effects of banners inside the fly tower could be constant when the ratio between the volumes of the banner and fly tower was over 13%. Absorptive materials installed on walls of the lower stage house were found to be more influential on stage acoustics than were those of the fly tower. In addition, the installation of stage sets could increase reverberation time by about 0.1 s in the audience space, while the absorptive materials of stage sets could reduce reverberation time and sound strength.
In order to more systematically investigate the influence of stage absorption on the reverberation time of auditoriums, Jeon et al. [7] measured reverberation times in five opera houses or multi-purpose halls using computer simulation and scaled model measurement. For each hall, an array of cases with and without variable stage elements were investigated, and the absorption coefficient of the ceiling and walls of the stage house was varied at several stages. It was found that variable stage elements significantly affect reverberation times in auditoriums, especially for a stage house with a less absorptive ceiling and walls. However, they did not include the influence of stage absorption on other acoustical parameters (e.g., EDT, C80, and G) in their research.
More recently, Brawata and Kamisiński [15] investigated the effects of the material and layout of stage curtain legs on sound strength (G) and speech transmission index (STI) in the auditoriums of opera houses by means of computer simulation. They found that when the sound source was located at the back of the stage, the installation of reflective legs would result in a noticeable increase in the G values, but the influence on STI was rather small. However, this may bring about the risk of creating a too-reverberant sound field on the stage and thus an unfavorable effect due to the large difference in reverberation time between the stage and the auditorium.
This study aimed to provide a more comprehensive understanding of the effects of stage absorption on the acoustics of the auditorium by means of an elaborate investigation that took Tianjin Cultural Center Opera House (TCCOH) in China as an example. For this purpose, four primary monaural objective room acoustic parameters—namely, EDT, RT, C80, and G—were selected to evaluate the sound field in the auditorium, and both computer simulation and scaled model measurement were adopted. In computer simulations, the absorption coefficient of the ceiling and walls of the stage house was changed from 0.1 to 0.9 in steps and the above four parameters were calculated for each configuration. In scaled model experiments, these parameters were measured in the seating area with and without curtains and wall absorption on the stage to verify the simulation results.

2. Tianjin Cultural Center Opera House

Tianjin Cultural Center Opera House (TCCOP) completed its construction and came into operation on 22 April 2012 and held its first public performance from 29 April to 1 May 2012. This is a hall with a proscenium, mainly used for cultural activities and performances, such as operas, dramas, musicals, dances, concerts, and variety shows, as well as for hosting conferences and ceremonies (see Figure 1 and Figure 2).
TCCOP was designed by gmp (Architekten von Gerkan, Marg und Partner, Hamburg, Germany), and the concept behind the architectural design was “Stage of the City”. Its stage technics were designed by the Kunkel Consulting International GmbH (Bürstadt, Germany), acoustics by the BBM Akustik Technologies (Planegg, Germany), and the acoustic scaled model test was conducted at the State Key Laboratory of Subtropical Building and Urban Science, South China University of Technology. TCCOP was awarded the China Construction Engineering Luban Prize (National Prime-quality Project) in 2013.
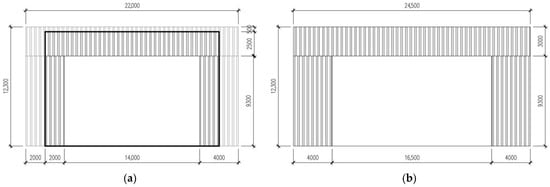
The plan shape of the auditorium is a horseshoe type. The horizontal distance between the rear wall of the auditorium and the proscenium is about 35 m, and the maximum hall width is approximately 33 m. The hall has four stories. The maximum seating capacity is 1608, including four wheelchair seats. The distance between every two adjacent rows of seats is 0.95 m. A dome was constructed in the auditorium, under which one circular and one ring shaped sound reflection panels are suspended. Concealed inside these two reflection panels are face lights, electrical sound equipment, and maintenance catwalks. The volume of the hall excluding the stage house is about 13,810 m3, and that per seat about 8.6 m3. The target RT range for the occupied condition is 1.6 ± 0.1 s at the middle frequencies.
The width and height of the proscenium opening are 18 m and 12 m, respectively, which can be adjusted to 12 m × 8 m by a false proscenium. The distance from the grand drape to the apron stage is 3.3 m. The huge stage house consists of a main stage, a back stage, and two side stages. The main stage is located at the center of the stage house, with a width, length, and height of 32.5 m, 24.5 m, and 36.6 m; the side stages are on the left and right of the main stage, with widths, lengths, and heights of 25.5 m, 23.2 m, and 13.8 m; the back stage lies behind the main stage, with dimensions of 24.7 m, 21.3 m, and 15.5 m. The total volume of the stage house is approximately 52,040 m3, around four times that of the auditorium.
The plan of the orchestra pit is a sector with a front width of 20 m, a back width of 16 m, and a distance between the front and back ends of 6.8 m. The floor of the orchestra pit is vertically movable and can hold up to 160 musicians.
The interior walls of the hall are mostly decorated with a concavo-convex slotted wood structure to scatter sound. In this structure, the width of the bars is 100 mm, with an interval of 100 mm, and the slot depth is 150 mm. Installed on the 2 m-high walls under the dome are 50 mm-thick flame-retardant absorption panels to control the reverberation time of the auditorium. The finishing material of the dome is 40 mm-thick magnesium plate, with 50 mm-thick flame-retardant absorption panels mounted on the back of the troffers to avoid sound focusing from the dome. The remaining areas of the ceiling and the sound reflection panels suspended under the dome are all wooden board. The walls of the stage house are covered with wood wool slabs for absorption. The floors of the stage and auditorium are both parquet and all of seats are upholstered to ensure that the reverberation time in the auditorium is not significantly affected by audience attendance.

3. Computer Simulation

3.1. Computer Model Setup

In this study, the computer simulations were conducted using ODEON software (version 6.5). The number of rays recommended by ODEON, a transition order of one, and an impulse response length of 3000 ms were set in the simulations. An omni-directional sound source with a height of 1.5 m was located at the mid-point of the proscenium setting line, in the same position as the source in the site measurement. In order to obtain reliable simulation results, a total of thirty-two receiver positions (fourteen on the first floor and six on each of the other three floors) were uniformly distributed in half of the seating area on one side of the auditorium symmetry axis. The height of each receiver was 1.2 m from the floor. The simulation model with the source and receiver positions indicated is illustrated in Figure 3.
Computer simulations were carried out to study the variation trends in EDT, RT, C80, and G in the seating area with the change in stage absorption. Prior to the computer simulations, the values of EDT and RT in the whole interested frequency range from 125 Hz to 4000 Hz were fitted to those actually measured in the hall [16] by adjusting the absorption coefficient and scattering coefficient of the auditorium and stage house in the computer model, as shown in Figure 4.

3.2. Results and Discussion

The absorption coefficient of the ceiling and walls of the stage house was changed from 0.1 to 0.9 in nine steps (the same for each octave band between 125 Hz and 4000 Hz), and the four main room acoustical parameters (i.e., EDT, RT, C80, and G) were simulated for every configuration. The simulation results are presented in Figure 5. In order to facilitate a comparison with the absorption coefficient of the stage walls and ceiling, Table 1 lists the average absorption coefficient of the auditorium.
It can be seen from Figure 5a that at 1000 Hz, EDT displays a falling trend with an increase in stage absorption, but this is not a linear decay. When the absorption coefficient of the ceiling and walls in the stage house rises from 0.1 to 0.2, EDT drops dramatically by 1.02 s from 3.01 s to 1.99 s; when the absorption coefficient varies from 0.2 to 0.9, EDT decreases more and more slowly, by 0.63 s from 1.99 s to 1.36 s. The trends in EDT with an increase in stage absorption at the other frequencies are similar to that at 1000 Hz. the lower the frequency, the more remarkable the trend.
As shown in Figure 5b, at 1000 Hz, with an increase in stage absorption, RT shows a similar trend to EDT, but the turning point of the variation curve is different. When the absorption coefficient of the ceiling and walls in the stage house is smaller than 0.3, RT falls significantly with a rise in absorption coefficient, which shows a more notable change than EDT. Likewise, the trends in RT with an increase in stage absorption at the other frequencies are similar to that at 1000 Hz. The trend becomes less obvious at the high frequencies, 2000 Hz and 4000 Hz.
Figure 5c shows that with an increase in stage absorption, C80 shows a climbing trend at every octave band. The least variation occurs at 4000 Hz, where the difference between the maximum and the minimum values is only 1.2 dB, while the values of C80 at 250 Hz and 1000 Hz show the most considerable changes, with a varying range of 2.2 dB.
Figure 5d indicates that with an increase in stage absorption, G diminishes somewhat at every octave band, and that the difference between the maximum and the minimum values at each octave band is less than the subjective limen (or just noticeable difference, JND) of 1 dB [17].
Further analysis of the data in Figure 5 demonstrates that when the absorption coefficient of the stage walls and ceiling is higher than 0.5, the maximum variation caused by an increase in stage absorption will not exceed 10% for EDT, 12% for RT, or 0.5 dB for C80.
In order to ascertain the mechanisms underlying the effects of stage absorption on EDT and RT in the auditorium, Figure 6 presents the 1000 Hz sound energy decay curves at the center of the main floor under different stage absorption conditions. In this figure, the black, blue, and red lines respectively denote the energy decay curves when the absorption coefficient of the stage walls and ceiling is set as 0.1, 0.3, and 0.9. It can be intuitively observed that with an increase in stage absorption, the energy decay curve becomes steeper. In addition, it should be noted that double slopes appear in the decay curve when the absorption coefficient is 0.1. When the absorption coefficient is 0.3, this phenomenon still exists but does not appear to be as explicit. This indicates that the coupling effects between the stage house and the auditorium can occur when the absorption coefficient of the stage walls and ceiling is below 0.3, where the reflected sound from the stage house will slow down the late sound energy decay in the auditorium. This explains not only the above-observed RT variation with stage absorption, but also the large differences between EDT and RT when the absorption coefficient of the stage walls and ceiling is less than 0.4, where the RTs across all octave bands are more than 1.2 times the EDTs. Therefore, sound absorption in the stage house is not only conducive to a decrease in EDT and RT in the auditorium but can also weaken or even eliminate the stage–auditorium coupling effects.

4. Scaled Model Measurement

Undoubtedly, computer simulation plays an important role in the study and design of room acoustics and has largely improved the efficiency of engineering and research due to its ability to change input parameters easily and its high calculation speed. However, room acoustics simulation using image and ray-tracing methods is based on geometrical reflection models and is limited in the modeling of wave phenomena at low frequencies, such as diffraction [7]. In particular, simulation software can only import models composed of planes. Spaces comprised of complicated curved surfaces can only be substituted with planes and approximately simulated, so some deviations between the simulation results and the real ones will emerge. In contrast, scaled model measurements are able to make up for these withdraws, acquiring comparatively more accurate results.

4.1. Experimental Setup

In order to confirm the computer simulation results, experiments were conducted in a 1:20 scaled model of TCCOH. The auditorium model was made of two layers of 15 mm-thick plywood as the base material. Firstly, the drawing of the hall was decomposed in AutoCAD software, and then each part was precisely cut from plywood using a numerical control engraving machine and the model was assembled. Finally, the model’s interior was painted to seal the pores of the wood. The materials used for the different parts of the scaled model were carefully selected so as to properly reflect the absorption characteristics of the full-size materials. The seats in the model were made using 5 mm-thick polyester fiber boards glued onto plastic frame as cushions. The openings of the face light and profile light cabins were simulated with sound absorbing cloths, and the absorption of the orchestra in the orchestra pit was simulated with 5 mm-thick polyester fiber board. The interior of the finished auditorium model can be seen in Figure 7.
The stage house walls were also constructed using 15 mm-thick plywood. To simulate the absorptive finish of the stage walls, 5 mm-thick and 9 mm-thick polyester fiber boards were used. Prior to the scaled model measurements, the four acoustical parameters, EDT, RT, C80 and G, of the scaled model hall were fitted to those measured in the full-scale hall [16].
In the scaled model hall measurements, a BDMS1-040528 electric spark source (manufactured by the Shanghai Youle Electric Co., Ltd., Shanghai, China) and two Brüel & Kjær (Nærum, Denmark) Type 4138 1/8 microphones with Brüel & Kjær Type UA-0355 nose cones were used as the source and receivers, respectively. The acoustical characteristics of the source have been tested in a semi-anechoic chamber [18], showing satisfactory omni-directivity and repeatability. The source signal is an impulse with a width of approximately 80 µs that can achieve a high peak sound pressure level over the whole frequency range of interest from 2.5 kHz to 80 kHz, corresponding to the frequency range from 125 Hz to 4000 Hz for the full-scale measurements.
Impulse responses generated by the spark source were recorded using a Brüel & Kjær PULSE 3560C high frequency module with a 524,288 Hz sampling rate and PULSE LABSHOP software (version 9.0) installed in a laptop computer. The impulse responses recorded in the 1:20 scaled model hall were transformed to full scale via the Brüel & Kjær Type 7841 DIRAC software (version 4.0), with air absorption considered. The acoustical parameters from five impulse responses captured at each receiver position were subsequently calculated and averaged to minimize the influence of measurement uncertainties. In order to implement the air absorption compensation, temperature and relative humidity in the scaled model were measured in real time with a precise electronic thermohygrometer.

4.2. Methods

Scaled model measurements were carried out in four test cases with different stage absorption configurations (see Table 2 and Figure 8).
In the latter two cases, the proper materials, dimensions, and the number and location of the stage curtains were determined by considering those of existing stage curtains in the literature [7,14,19,20,21,22] and the dimensions of the main stage and proscenium opening of TCCOH. One grand drape and five pairs of legs with corresponding borders were installed on the area of the main stage. In the full-scale hall, the grand drape was 0.8 m behind the proscenium, including the 0.2 m thickness of the fireproof curtain, the 0.3 m interval between the fireproof curtain and the proscenium border, and the 0.3 m distance from the proscenium border to the grand drape. The first pair of legs were 3.6 m behind the grand drape, and the interval between two adjacent leg pairs was 3 m. The full-scale dimensions of the grand drape and legs with corresponding borders are illustrated in Figure 9. In the scaled model measurements, 9 mm-thick polyester fiber board was utilized for the simulation of stage curtains (see Figure 10).
In this study, the absorption in the stage house can be divided into two parts: curtains and absorptive wall finish. In order to quantify the sound absorption of the stage house in different cases, the absorption coefficients of the simulation material for curtains (i.e., 9 mm-thick polyester fiber board) and absorptive walls (i.e., 5 mm-thick and 9 mm-thick polyester fiber boards) were measured in a 1:20 scaled reverberation room according to the ISO 354:2003 standard [23]. The acoustical properties of this scaled reverberation room were verified before the measurements were taken. Figure 11 gives two measurement photos, and Table 3 lists the measured sound absorption coefficients in octave bands between 2.5 kHz and 80 kHz, corresponding to the frequency range from 125 Hz to 4000 Hz in the full-size case.
With the purpose of remaining consistent with the absorption coefficients assigned to the ceiling and walls of the stage house in the computer simulations, an average absorption coefficient α ¯ , as calculated from Equation (1), was introduced to quantify the sound absorption of the stage house for all cases above:
α ¯ = A wall + A curtain + A other S ,
where α ¯ is the average sound absorption coefficient of the ceiling and walls in the stage house; Awall is the equivalent sound absorption area of the absorptive walls, in m2; Acurtain is the equivalent sound absorption area of all curtains, in m2; Aother is the equivalent sound absorption area of the ceiling and the other walls without absorptive materials mounted, in m2; S is the total area of the ceiling and walls in the stage house, in m2.
Table 4 and Figure 12 show the average absorption coefficients of the ceiling and walls of the stage house and the frequency characteristic curves in the four test cases, respectively. It can be seen that from Case 1 to Case 4, the absorption coefficient varies from low to high. The frequencies presented in Table 4 and the latter part of this paper are given as full-size equivalents.
Measurements in the TCCOH scaled model were conducted referring to both the international standard ISO 3382-1:2009 [17] and the Chinese standard GB/T 50412-2007 [24]. An electric spark source with a height of 7.5 cm (1.5 m for an equivalent full-size hall) was located in the same position as in the site measurement and computer simulations. A total of eighteen receiver positions (nine on the first floor and three on each floor from the second to the fourth floor) were evenly distributed in half of the seating area on one side of the auditorium symmetry axis. The height of each receiver was 6 cm (corresponding to 1.2 m in full scale) from the floor.

4.3. Results and Discussion

In each stage absorption configuration, the impulse responses of the 18 receiving points in the seating area were measured, from which the main room acoustical parameters were subsequently calculated. Figure 13 presents the frequency characteristic curves of EDT, RT, C80, and G in the auditorium in the four test cases, respectively. The site measurement data of each parameter (indicated by the heavy lines) are also included in this figure for comparison.
As shown in Figure 13a,b, with the increase in stage absorption, both EDT and RT gradually decrease in each octave band, with the maximum decay effect occurring at low frequencies, the second at middle frequencies, and the minimum at high frequencies. Among the four test cases, the EDT and RT of Case 1 (with neither stage curtains nor wall absorption) are both higher than the other three cases, and those of Case 4 (with both curtains and wall absorption) are closest to the site measurement values.
As shown in Figure 13c, unlike EDT and RT, C80 values improve as stage absorption increases across the whole frequency range studied. The increase is relatively consistent across all octave bands, at around 3–4 dB. Among the four test cases, the C80 of Case 1 is prominently lower than that of the other three cases, and the C80 of Case 4 is closest to that measured in the real hall. The large deviation at 1000 Hz between the C80 values of Case 4 and the site measurement could be explained by the differences between the scaled model and the real hall. In reality, the interior walls of the auditorium are covered with concavo-convex scattering slotted wood structure (see Figure 1), with a bar width of 100 mm, intervals of 100 mm, and a slot depth of 150 mm, while in the scaled model hall, this scattering structure was simplified and substituted with smooth lacquered plywood, which led to more early energy and a higher C80 at 1000 Hz in the scaled model measurements. This also caused higher EDTs at 1000 Hz and 2000 Hz, as shown in Figure 13a.
As shown in Figure 13d, G decays with an increase in stage absorption, showing a similar decrease in each octave band. However, the variation in G value with stage absorption is not as prominent as that of the former three parameters. Among the four test cases, the differences between the maximum and minimum values are less than 2 dB in all octave bands except 125 Hz and 4000 Hz. Indeed, apart from Case 1, the difference in G in the other three cases in each octave band is even smaller, never going beyond the JND of 1 dB. Among all of the test cases, the G value of Case 4 is closest to that of site measurement.

5. Conclusions

The effects of stage absorption on EDT, RT, C80, and G in the auditorium of TCCOH were investigated in the present work by adopting computer simulation and scaled model measurement. For each individual parameter, the variation trend with respect to stage absorption is similar across all octave bands from 125 Hz to 4000 Hz.
EDT and RT show more notable variations at lower frequencies. As stage absorption increases, EDT and RT decrease, varying swiftly when there is little stage absorption, but with an increase in stage absorption, the trend gradually becomes smooth. That is to say, a change in the amount of stage absorption has a more significant effect on EDT and RT when there is little stage absorption, while an equal change has a lesser effect when stage absorption is high. An elaborate analysis of the sound energy decay curves derived from the simulated impulse responses demonstrates that when the average absorption coefficient of the stage walls and ceiling is below 0.3, double slopes appear in the decay curves, indicating that coupling effects between the stage house and the auditorium are emerging. Therefore, sound absorption in the stage house is not only conducive to a decrease in EDT and RT in the auditorium, but can also weaken or even eliminate the coupling effects between the stage house and the auditorium.
C80 rises as stage absorption increases, presenting an opposite trend to those of EDT and RT. G falls with an increase in stage absorption, but the variation is smaller than the above three parameters, indicating that stage absorption affects G value less. It was also found that the values of G are related to those of RT. The longer the RT, the higher the G, but the influence of RT on G is generally no more than 3 dB. The computer simulation results also indicate that given the size of the stage house and auditorium discussed in this paper, when the average absorption coefficient of the stage walls and ceiling is over 0.5, with an increase in stage absorption, changes in the above four parameters can be controlled within an acceptable range.
Therefore, stage absorption is an important factor that should be considered in the acoustic design of opera houses. In order to minimize the influence of various genres of performances and stage sets and curtains on the acoustic parameters of the auditorium in opera houses, it is recommended that the side and back walls of the stage house be treated with sound-absorbing materials.

Author Contributions

Conceptualization, Y.Z.; methodology, J.G. and Y.Z.; software, J.G.; validation, J.G. and L.P.; formal analysis, J.G. and Y.Z.; investigation, J.G. and L.P.; resources, Y.Z.; data curation, J.G.; writing—original draft preparation, J.G.; writing—review and editing, L.P. and Y.Z.; visualization, J.G. and L.P.; supervision, Y.Z.; project administration, Y.Z.; funding acquisition, J.G. and Y.Z. All authors have read and agreed to the published version of the manuscript.

Funding

This research was funded by the National Natural Science Foundation of China (NSFC, grant number 52208108 and 52378098) and the Fundamental Research Funds for the Central Universities of China (grant number D2220710).

Data Availability Statement

The data presented in this study are available on request from the corresponding author. The data are not publicly available due to privacy.

Acknowledgments

The authors would like to thank Haitao Sun and Qian Li of the South China University of Technology (SCUT) for the help provided in the scaled model experiments and site measurements. Special thanks are due to Shuoxian Wu of the SCUT for his continuous interest in and support for the present work.

Conflicts of Interest

The authors declare no conflicts of interest. The funders had no role in the design of the study; in the collection, analyses, or interpretation of data; in the writing of the manuscript; or in the decision to publish the results.

References

  1. Prodi, N.; Pompoli, R.; Martellotta, F.; Sato, S.I. Acoustics of Italian historical opera houses. J. Acoust. Soc. Am. 2015, 138, 769–781. [Google Scholar] [CrossRef] [PubMed]
  2. Garai, M.; De Cesaris, S.; Morandi, F.; D’Orazio, D. Sound energy distribution in Italian opera houses. In Proceedings of the 22nd International Congress on Acoustics, Buenos Aires, Argentina, 5–9 September 2016. [Google Scholar]
  3. Gao, J.; Tang, S.K.; Zhao, Y.; Wu, S. Applicability analysis of the revised acoustic energy model for concert auditoriums to predict energy relations in a scaled opera house. In Proceedings of the INTER-NOISE 2017—46th International Congress and Exposition on Noise Control Engineering: Taming Noise and Moving Quiet, Hong Kong, China, 27–30 August 2017. [Google Scholar]
  4. Gao, J.; Tang, S.K.; Zhao, Y.; Cai, Y.; Pan, L. On the performance of existing acoustic energy models when applied to multi-purpose performance halls. Appl. Acoust. 2020, 167, 107401. [Google Scholar] [CrossRef]
  5. Gao, J. Semi-Analytical Prediction of Energy-based Acoustical Parameters in Theatre Auditoriums. Ph.D. Thesis, The Hong Kong Polytechnic University, Hong Kong, China, 2021. [Google Scholar]
  6. Beranek, L.L. Concert Halls and Opera Houses: Music, Acoustics, and Architecture, 2nd ed.; Springer: New York, NY, USA, 2004. [Google Scholar]
  7. Jeon, J.Y.; Kim, J.H.; Ryu, J.K. The effects of stage absorption on reverberation times in opera house seating areas. J. Acoust. Soc. Am. 2015, 137, 1099–1107. [Google Scholar] [CrossRef] [PubMed]
  8. Barron, M. Auditorium Acoustics and Architectural Design, 2nd ed.; Spon Press: London, UK; New York, NY, USA, 2010. [Google Scholar]
  9. Wu, S.; Zhang, S.; Ge, J. Principles of Architectural Acoustics Design, 2nd ed.; China Architecture Publishing & Media Co., Ltd.: Beijing, China, 2019. [Google Scholar]
  10. Pompoli, R.; Prodi, N. Guidelines for acoustical measurements inside historical opera houses: Procedures and validation. J. Sound Vibr. 2000, 232, 281–301. [Google Scholar] [CrossRef]
  11. Gustafsson, J.-I.; Natsiopolos, G. Stage set and acoustical balance in an auditorium of an opera house. In Proceedings of the 17th International Congress on Acoustics, Rome, Italy, 2–7 September 2001. [Google Scholar]
  12. Hidaka, T.; Beranek, L.L. Objective and subjective evaluations of twenty-three opera houses in Europe, Japan, and the Americas. J. Acoust. Soc. Am. 2000, 107, 368–383. [Google Scholar] [CrossRef] [PubMed]
  13. Ryu, J.K.; Jeon, J.Y. The effects of volume and absorption of the stage house on acoustical parameters in a multi-purpose hall. In Proceedings of the 9th Western Pacific Acoustics Conference, Seoul, Republic of Korea, 26–28 June 2006. [Google Scholar]
  14. You, J.; Kim, J.J.; Jeon, J.Y. Effects of absorption elements and stage set on the stage house acoustics in a proscenium hall. In Proceedings of the International Symposium on Room Acoustics, ISRA 2010, Melbourne, Australia, 29–31 August 2010. [Google Scholar]
  15. Brawata, K.; Kamisiński, T. Effect of stage curtain legs arrangement on sound distribution in opera houses. In Proceedings of the 2018 Joint Conference—Acoustics, Ustka, Poland, 11–14 September 2018. [Google Scholar]
  16. Sun, H. Research on Key Technology of Architectural Acoustic Scale Model Measurement. Ph.D. Thesis, South China University of Technology, Guangzhou, China, 2014. [Google Scholar]
  17. ISO 3382-1; Acoustics—Measurement of Room Acoustic Parameters—Part 1: Performance Spaces. International Organization for Standardization: Geneva, Switzerland, 2009.
  18. Pan, L.; Zhao, Y.; Gao, J. Factors influencing scattering coefficient measurement accuracy in scaled reverberation room. Appl. Acoust. 2020, 159, 107072. [Google Scholar] [CrossRef]
  19. Liu, Z. Modern Theatre Design; China Architecture Publishing & Media Co., Ltd.: Beijing, China, 2000; pp. 61–97. [Google Scholar]
  20. Zhang, Q. Briefing on common stage curtains in performance halls. Entertain. Technol. 2004, 4, 50–52. [Google Scholar]
  21. Izenour, G.C. Theater Design; McGraw-Hill Inc.: New York, NY, USA, 2007. [Google Scholar]
  22. Cai, Z. References for Architectural Design, 3rd ed.; China Architecture Publishing & Media Co., Ltd.: Beijing, China, 2017; Volume 4. [Google Scholar]
  23. ISO 354; Acoustics—Measurement of Sound Absorption in a Reverberation Room. International Organization for Standardization: Geneva, Switzerland, 2003.
  24. GB/T 50412-2007; Code for Test of Scale Acoustic Model for Auditorium. China Architecture Publishing & Media Co., Ltd.: Beijing, China, 2007.
Figure 1. Interior photos of Tianjin Cultural Center Opera House (TCCOH): (a) audience view (source: www.ifeng.com); (b) stage view (source: www.vcg.com).
Figure 1. Interior photos of Tianjin Cultural Center Opera House (TCCOH): (a) audience view (source: www.ifeng.com); (b) stage view (source: www.vcg.com).
Buildings 14 00718 g001
Figure 2. (a) Floor plan and (b) cross-section of TCCOH with the stage house.
Figure 2. (a) Floor plan and (b) cross-section of TCCOH with the stage house.
Buildings 14 00718 g002
Figure 3. Computer simulation model of TCCOH: (a) top-down view of the auditorium; (b) profile view of the auditorium; (c) front-on view of the auditorium; (d) perspective view of the auditorium coupled with the stage house. The red point denotes the sound source and blue points denote receivers.
Figure 3. Computer simulation model of TCCOH: (a) top-down view of the auditorium; (b) profile view of the auditorium; (c) front-on view of the auditorium; (d) perspective view of the auditorium coupled with the stage house. The red point denotes the sound source and blue points denote receivers.
Buildings 14 00718 g003
Figure 4. Comparison between the simulated values of early decay time (EDT) and reverberation time (RT) and those measured in the real hall: (a) EDT; (b) RT.
Figure 4. Comparison between the simulated values of early decay time (EDT) and reverberation time (RT) and those measured in the real hall: (a) EDT; (b) RT.
Buildings 14 00718 g004
Figure 5. Variations in room acoustical parameters (averaged over the 32 receiver positions) with a change in stage absorption: (a) EDT; (b) RT; (c) clarity, C80; (d) sound strength, G.
Figure 5. Variations in room acoustical parameters (averaged over the 32 receiver positions) with a change in stage absorption: (a) EDT; (b) RT; (c) clarity, C80; (d) sound strength, G.
Buildings 14 00718 g005
Figure 6. Sound energy decay curves in the 1000 Hz octave band at the center of the main floor when the absorption coefficient of the stage walls and ceiling is 0.1 (black), 0.3 (blue), and 0.9 (red).
Figure 6. Sound energy decay curves in the 1000 Hz octave band at the center of the main floor when the absorption coefficient of the stage walls and ceiling is 0.1 (black), 0.3 (blue), and 0.9 (red).
Buildings 14 00718 g006
Figure 7. Interior of the 1:20 scaled model of TCCOH.
Figure 7. Interior of the 1:20 scaled model of TCCOH.
Buildings 14 00718 g007
Figure 8. Four different stage absorption configurations: (a) Case 1 plan; (b) Case 2 plan; (c) Case 3 plan; (d) Case 4 plan; (e) Case 4 cross-section.
Figure 8. Four different stage absorption configurations: (a) Case 1 plan; (b) Case 2 plan; (c) Case 3 plan; (d) Case 4 plan; (e) Case 4 cross-section.
Buildings 14 00718 g008
Figure 9. Full-scale dimensions (units: mm) of the grand drape (a) and legs (b) with corresponding borders (the heavy line is the outline of the proscenium).
Figure 9. Full-scale dimensions (units: mm) of the grand drape (a) and legs (b) with corresponding borders (the heavy line is the outline of the proscenium).
Buildings 14 00718 g009
Figure 10. Photo of stage curtains for scaled model measurements.
Figure 10. Photo of stage curtains for scaled model measurements.
Buildings 14 00718 g010
Figure 11. Photos of absorption coefficient measurements in the 1:20 scaled reverberation chamber: (a) “stage curtains”; (b) polyester fiber board.
Figure 11. Photos of absorption coefficient measurements in the 1:20 scaled reverberation chamber: (a) “stage curtains”; (b) polyester fiber board.
Buildings 14 00718 g011
Figure 12. Sound absorption frequency characteristic curves of the stage house in the four test cases.
Figure 12. Sound absorption frequency characteristic curves of the stage house in the four test cases.
Buildings 14 00718 g012
Figure 13. Frequency characteristic curves of acoustical parameters in the auditorium in different stage absorption configurations: (a) EDT; (b) RT; (c) C80; (d) G.
Figure 13. Frequency characteristic curves of acoustical parameters in the auditorium in different stage absorption configurations: (a) EDT; (b) RT; (c) C80; (d) G.
Buildings 14 00718 g013
Table 1. Average sound absorption coefficients of the auditorium of TCCOH.
Table 1. Average sound absorption coefficients of the auditorium of TCCOH.
125 Hz250 Hz500 Hz1000 Hz2000 Hz4000 Hz
0.230.270.270.270.280.28
Table 2. Description of four test cases with different stage absorption configurations.
Table 2. Description of four test cases with different stage absorption configurations.
Case No.Main StageSide StagesBack Stage
1No curtainsNo wall absorptionNo wall absorption
2No curtainsSide walls: 9 mm polyester fiber boardBack wall below catwalks:
Back walls: 5 mm polyester fiber board9 mm polyester fiber board
3One grand drape and five pairs of legs with corresponding bordersNo wall absorptionNo wall absorption
4One grand drape and five pairs of legs with corresponding bordersSide walls: 9 mm polyester fiber boardBack wall below catwalks:
Back walls: 5 mm polyester fiber board9 mm polyester fiber board
Table 3. Sound absorption coefficients of the materials used for simulating stage curtains and wall absorption in the scaled model of TCCOH.
Table 3. Sound absorption coefficients of the materials used for simulating stage curtains and wall absorption in the scaled model of TCCOH.
Materials in the Scaled HallAbsorption Coefficient
2.5 kHz *5 kHz *10 kHz *20 kHz *40 kHz *80 kHz *
Stage curtains0.370.760.951.041.151.27
Polyester fiber board (5 mm-thick)0.460.840.950.970.950.90
Polyester fiber board (9 mm-thick)0.670.940.980.980.950.94
* The center frequencies of octave bands presented here correspond to the full-size equivalents of 125 Hz to 4000 Hz.
Table 4. Average sound absorption coefficients of the ceiling and walls of the stage house in the four test cases (presented in full-size frequencies).
Table 4. Average sound absorption coefficients of the ceiling and walls of the stage house in the four test cases (presented in full-size frequencies).
Stage Absorption ConfigurationAverage Absorption Coefficient of Walls and Ceiling of Stage House
125 Hz250 Hz500 Hz1000 Hz2000 Hz4000 Hz
Case 10.020.020.020.030.030.04
Case 20.150.220.240.230.220.28
Case 30.110.210.260.290.320.36
Case 40.240.410.480.490.510.60
Disclaimer/Publisher’s Note: The statements, opinions and data contained in all publications are solely those of the individual author(s) and contributor(s) and not of MDPI and/or the editor(s). MDPI and/or the editor(s) disclaim responsibility for any injury to people or property resulting from any ideas, methods, instructions or products referred to in the content.

Share and Cite

MDPI and ACS Style

Gao, J.; Zhao, Y.; Pan, L. The Effects of Sound Absorption of Stage House on the Acoustics of Auditorium in an Opera House. Buildings 2024, 14, 718. https://doi.org/10.3390/buildings14030718

AMA Style

Gao J, Zhao Y, Pan L. The Effects of Sound Absorption of Stage House on the Acoustics of Auditorium in an Opera House. Buildings. 2024; 14(3):718. https://doi.org/10.3390/buildings14030718

Chicago/Turabian Style

Gao, Jianliang, Yuezhe Zhao, and Lili Pan. 2024. "The Effects of Sound Absorption of Stage House on the Acoustics of Auditorium in an Opera House" Buildings 14, no. 3: 718. https://doi.org/10.3390/buildings14030718

APA Style

Gao, J., Zhao, Y., & Pan, L. (2024). The Effects of Sound Absorption of Stage House on the Acoustics of Auditorium in an Opera House. Buildings, 14(3), 718. https://doi.org/10.3390/buildings14030718

Note that from the first issue of 2016, this journal uses article numbers instead of page numbers. See further details here.

Article Metrics

Back to TopTop