Seismic Design of a Typical Mid-Rise Residential Building in Serbia Using Confined Masonry and Reinforced Concrete Frame Systems
Abstract
1. Introduction
2. An Overview of Seismic Design Provisions for CM- and RC-Frame Buildings
2.1. Seismic Analysis and Design Provisions for CM Buildings
2.1.1. A Summary of the Relevant Provisions per Local Seismic Design Codes and Eurocodes
- A prescriptive design approach called “Rules for simple buildings” for regular low-rise CM buildings (up to five floor levels) (Section 9.7 of EC8-1 code);
- The engineered analysis and design approach requires the verification of seismic resistance of each structural element in a CM building, and the design resistance is to be determined based on the EC 6 requirements; this approach is to be followed when designing CM buildings that do not meet the “Rules for simple buildings”.
2.1.2. A Comparison of the Seismic Design Requirements for CM Buildings
- Spatial integrity
- 2.
- Layout of RC tie columns
- (a)
- At the free edges of each structural wall element;
- (b)
- At both sides of any wall opening with an area of more than 1.5 m. sq.;
- (c)
- Within the wall if necessary to limit the spacing of vertical confining elements to 5 m;
- (d)
- At the intersections of structural walls wherever the confining elements imposed via the above rules are at a distance larger than 1.5 m.
- 3.
- Spacing of RC tie beams
- 4.
- Interface between masonry walls and RC tie columns
- 5.
- Masonry material properties/strength
2.2. Seismic Analysis and Design Provisions for RC Buildings
2.3. A Comparison of the Ductility Requirements for RC-Frame Structures According to Different Codes
3. Design Case Study: Building Description and Consideration of a Structural System
3.1. Background
3.2. Structural Systems Considered in the Study
4. Seismic Analysis and Design
4.1. Input Parameters and Seismic Force Calculation
4.2. Numerical Models
4.3. Modal Analysis—Dynamic Characteristics of the Models
4.4. The Results: Seismic Demand and Overall Resistance
- The magnitudes and distributions of seismic forces along the height of the RC-frame structure (Type A) determined for the VIII and IX Seismic Zones, according to the PTN-S code and EC8-1, were notably different (Figure 14). The design seismic forces according to EC8-1 for an RC-frame structure (the black line) were higher than those of the PTN-S code for Seismic Zone VIII but lower than those calculated in accordance with the PTN-S code for Seismic Zone IX;
- For the analyzed types of masonry structures (B, C, and D), the magnitudes and distributions of seismic forces determined in accordance with the PTN-S code for Seismic Zone IX and EC8-1 were almost identical.
- All three models (B, C, and D) are masonry structures;
- There was an insignificant difference in the total seismic weights for these models (see Table 1);
- The ground acceleration value was the same for all three models;
- The value of the behavior factor according to EC8-1 for all three models were the same, q = 2.4;
- The values of the fundamental period were very similar in both directions: Tx = 0.237–0.280 and Ty = 0.228–0.259.
4.5. The Results: Lateral Displacements
4.6. Seismic Safety Verification for the CM Structure
4.6.1. “Rules for Simple Buildings” (EC 8-1)
4.6.2. Seismic Strength Verification According to the EC8-1 Engineering Design Approach
4.6.3. The Distribution of Design Seismic Forces to Different Members of CM Buildings
- is the characteristic compressive strength of concrete;
- ;
- is the compressive stress in RC tie-column;
- is the axial compression force in tie-columns;
- is the design compressive strength of concrete;
- is the cross-sectional area of 2 tie columns;
- is the partial safety coefficient for concrete (the incident action).
4.7. Seismic Analysis and Design of an Alternative Model: RC Frames with Masonry Infills
4.7.1. Numerical Models and Seismic Analysis
- The fundamental period for the RC-frame structure with masonry infills was 0.65 s, which was approximately 6% lower than that of the corresponding model for the bare RC frame (0.73 s);
- The maximum elastic horizontal displacement for the RC-frame model with infills according to the PTN-S code was 12.43 mm, which was less than that of the corresponding displacement for the bare frame model (16.70 mm);
- The maximum elastic horizontal displacement for the RC-frame model with infills according to the EC8-1 code was 15.43 mm, which was less than that of the corresponding displacement for the bare frame model (19.49 mm).
4.7.2. Design of an RC-Frame Structure Frame According to PTN-S and PBAB 87
5. Conclusions
Author Contributions
Funding
Data Availability Statement
Conflicts of Interest
References
- Brzev, S.; Blagojević, P.; Cvetković, R. Wall index requirements for seismic design and assessment of masonry buildings. In Proceedings of the First Croatian Conference on Earthquake Engineering, Zagreb, Croatia, 22–24 March 2021. [Google Scholar]
- Statistical Office of the Republic of Serbia (SORS). Number and the Floor Space of Housing Units and Dwellings according to the Occupancy Status, by Settlements. The Census of Population, Households and Dwellings; Statistical Office of the Republic of Serbia: Belgrade, Serbia, 2011. Available online: https://www.stat.gov.rs/sr-latn/oblasti/popis/popis-2011/popisni-podaci-eksel-tabele/ (accessed on 10 February 2021).
- Blagojević, N.; Brzev, S.; Petrović, M.; Borozan, J.; Bulajić, B.; Marinković, M.; Hadzima-Nyarko, M.; Koković, V.; Stojadinović, B. Residential building stock in Serbia: Classification and vulnerability for seismic risk studies. Bull Earthq. Eng. 2023, 21, 4315–4383. [Google Scholar] [CrossRef]
- Institute for Standardization of Serbia. PTP-12—Privremeni Tehnički Propisi za Građenje u Seizmičkim Područjima (Provisional Technical Regulations for Construction in Seismic Regions); Official Gazette of SFRY No. 39/64; Institute for Standardization of Serbia: Belgrade, Serbia, 1964. [Google Scholar]
- Institute for Standardization of Serbia. PTN-S—Pravilnik o Tehničkim Normativima za Izgradnju Objekata Visokogradnje u Seizmičkim Područjima (Technical Regulations for the Design and Construction of Buildings in Seismic Regions); Official Gazette of SFRY No. 31/81 (Amendments 49/82, 29/83, 21/88, 52/90); Institute for Standardization of Serbia: Belgrade, Serbia, 1981; Partial English version; Available online: https://iisee.kenken.go.jp/worldlist/64_Serbia/64_Serbia_Code.pdf (accessed on 10 February 2021).
- EN 1998-1:2005; Eurocode 8—Design of Structures for Earthquake Resistance-Part 1: General Rules, Seismic Actions and Rules for Buildings. European Committee for Standardization: Brussels, Belgium, 2005.
- SRPS EN 1998-1/NA: 2018; Evrokod 8—Projektovanje Seizmički Otpornih Konstrukcija Deo 1: Opsta Pravila, Seizmicka Dejstva i Pravila za Zgrade (Eurocode 8—Design of Structures for Earthquake Resistance-Part 1: General Rules, Seismic Actions and Rules for Buildings). Institute for Standardization of Serbia: Belgrade, Serbia, 2018.
- EN 1996-1-1:2004; Eurocode 6—Design of Masonry Structures. Part 1-1: General Rules for Reinforced and Unreinforced Masonry Structures. European Committee for Standardization: Brussels, Belgium, 2004.
- Tomaževič, M.; Klemenc, I. Seismic Behaviour of Confined Masonry Walls. Earthq. Eng. Struct. Dyn. 1997, 26, 1059–1071. [Google Scholar] [CrossRef]
- Tomaževič, M.; Klemenc, I. Verification of Seismic Resistance of Confined Masonry Buildings. Earthq. Eng. Struct. Dyn. 1997, 26, 1073–1088. [Google Scholar] [CrossRef]
- Blagojević, P.; Brzev, S.; Cvetković, R. Simplified Seismic Assessment of Unreinforced Masonry Residential Buildings in the Balkans: The Case of Serbia. Buildings 2021, 11, 392. [Google Scholar] [CrossRef]
- Marinkovic, D.; Stojadinovic, Z.; Kovacevic, M.; Stojadinovic, B. 2010 Kraljevo Earthquake Recovery Process Metrics Derived from Recorded Reconstruction Data. In Proceedings of the 16th European Conference on Earthquake Engineering, Thessaloniki, Greece, 18–21 June 2018. [Google Scholar]
- Manić, M.; Bulajić, B. Ponašanje zidanih zgrada u kraljevačkom zemljotresu od 3. novembra 2010. Godine—Iskustva i pouke (Behaviour of masonry buildings during the November 03, 2010 Kraljevo earthquake). Izgradnja 2013, 67, 235–246. [Google Scholar]
- Manić, M.; Bulajić, B. Examples of typical damages to masonry buildings for individual housing in Kraljevo region during the November 03, 2010 earthquake. In Fourth International Conference Earthquake Engineering and Engineering Seismology, Conference Proceedings; Association of Civil Engineers of Serbia: Bor Lake, Serbia, 2014; pp. 315–324. [Google Scholar]
- Nikolić-Brzev, S.; Marinković, M.; Milićević, I.; Blagojević, N.; Isufi, B. Posledice Zemljotresa u Albaniji od 26.11.2019. na Objekte i Infrastrukturu; Serbian Association for Earthquake Engineering (SUZI-SAEE): Belgrade, Serbia, 2020; 80p. (In Serbian) [Google Scholar]
- Andonov, A.; Baballëku, M.; Baltzopoulos, G.; Blagojević, N.; Bothara, J.; Brûlé, S.; Brzev, S.; Carydis, P.; Duni, L.; Dushi, E.; et al. M6.4 Albania Earthquake on November 26, 2019—EERI Reconnaissance Report; Earthquake Engineering Research Institute: Oakland, CA, USA, 2022; 195p. [Google Scholar]
- Miranda, E.; Brzev, S.; Bijelić, N. Petrinja, Croatia December 29, 2020, Mw 6.4 Earthquake, PRJ-2959; Structural Extreme Events Reconnaissance (StEER) and Earthquake Engineering Research Institute: Oakland, CA, USA, 2021. [Google Scholar]
- Institute for Standardization of Serbia. PTP-Z—Privremeni Tehnički Propisi za Zidove od Opeke (PTP7) (Temporary Technical Regulations for Brick Walls); Official Gazette of Federal People Republic of Yugoslavia No. 32/47; Institute for Standardization of Serbia: Belgrade, Serbia, 1949. (In Serbian) [Google Scholar]
- Institute for Standardization of Serbia. PTN-Z—Pravilnik o Tehničkim Normativima za Zidane Zidove (Technical Norms Regulation for Masonry Walls); Official Gazette of SFRY No. 87/91; Institute for Standardization of Serbia: Belgrade, Serbia, 1991. (In Serbian) [Google Scholar]
- Muravljov, M.; Stevanović, B. Zidane i Drvene Konstrukcije Zgrada (Masonry and Timber Buildings); Faculty of Civil Engineering, University of Belgrade: Belgrade, Serbia, 2003. (In Serbian) [Google Scholar]
- Marques, R.; Pereira, J.M.; Lourenço, P.B. Lateral in-plane seismic response of confined masonry walls: From numerical to backbone models. Eng. Struct. 2020, 221, 111098. [Google Scholar] [CrossRef]
- Cattari, S.; Lagomarsino, S. Modelling the seismic response of unreinforced existing masonry buildings: A critical review of some models proposed by codes. In Proceedings of the 11th Canadian Masonry Symposium, Toronto, ON, Canada, 31 May–3 June 2009. [Google Scholar]
- Lu, S.; Unger, C. Bemessungsmethode für eingefasstes Mauerwerk auf Grundlage des Eurocode 6. Ernst & Sohn. Mauerwerk 2010, 14, 293–296. (In German) [Google Scholar]
- Ivkovic, M.; Pakvor, A. Concrete and Reinforcement Concrete according to PBAB 87, 2nd ed.; DP Građevinska knjiga: Beograd, Serbia, 1991. [Google Scholar]
- Seismological Survey of Serbia (SSS). Seismic Hazard Maps for Serbia; Seismological Survey of Serbia: Belgrade, Serbia, 2018. Available online: http://www.seismo.gov.rs/Seizmicnost/Karte_hazarda_e.htm (accessed on 10 February 2021).
- Brzev, S.; Mitra, K. Earthquake-Resistant Confined Masonry Construction, 3th ed.; NICEE, National Information Center of Earthquake Engineering, Indian Institute of Technology Kanpur: Uttar Pradesh, India, 2018. [Google Scholar]
- Singhal, V.; Rai, D.C. In-plane and out-of-plane behavior of confined masonry walls for various toothing and openings details and prediction of their strength and stiffness. Earthq. Eng. Struct. Dyn. 2016, 45, 2551–2569. [Google Scholar] [CrossRef]
- Borah, B.; Singhal, V.; Kaushik, H.B. Assessment of seismic design provisions for con-fined masonry using experimental and numerical approaches. Eng. Struct. 2021, 245, 112864. [Google Scholar] [CrossRef]
- Borah, B.; Kaushik, H.B.; Singhal, V. Finite Element Modelling of Confined Masonry Wall under In-plane Cyclic Load. In Proceedings of the International Conference on Materials, Mechanics and Structures (ICMMS2020), Kerala, India, 14–15 July 2020. [Google Scholar] [CrossRef]
- Okail, H.; Abdelrahman, A.; Abdelkhalik, A.; Metwaly, M. Experimental and analytical investigation of the lateral load response of confined masonry walls. HBRC J. 2016, 12, 33–46. [Google Scholar] [CrossRef]
- Radimpex Software d.o.o. TOWER-3D Model Builder 8.5-x64 Edition 8547 -Professional Software for Civil Engineers; Radimpex Software d.o.o: Belgrade, Serbia,, 2019. [Google Scholar]
- Lagomarsino, S.; Penna, A.; Galasco, A.; Cattari, S. TREMURI program: An equivalent frame model for the nonlinear seismic analysis of masonry buildings. Eng. Struct. 2013, 56, 1787–1799. [Google Scholar] [CrossRef]
- Radić, J. Zidane Konstrukcije-, Priručnik, 1st ed.; Građevinski Fakultet Sveučilišta u Zagrebu: Zagreb, Hrvatska, 2007; pp. 469–476. [Google Scholar]
- Ghaisas, K.V.; Basu, D.; Brzev, S.; Pérez Gavilán, J.J. Strut-and-Tie Model for Seismic Design of Confined Masonry Buildings. Constr. Build. Mater. 2017, 147, 677–700. [Google Scholar] [CrossRef]
- Applied Technology Council (ATC-33 Project). NEHRP Commentary on the Guidelines for the Seismic Rehabilitation of Buildings (FEMA Publication 274); Applied Technology Council (ATC-33 Project): Redwood City, CA, USA, 1997. [Google Scholar]
- Applied Technology Council (ATC-33 Project). NEHRP Commentary on the Guidelines for the Seismic Rehabilitation of Buildings (FEMA Publication 273); Applied Technology Council (ATC-33 Project): Redwood City, CA, USA, 1997. [Google Scholar]
- EN 1992-1-1:2004; Eurocode 2: Design of Concrete Structures-Part 1-1: General Rules and Rules for Buildings. CEN-European Committee for Standardization: Brussels, Belgium, 2004.




























| Seismic Base Shear Force (kN) | Total Seismic Weight (t) | |||
|---|---|---|---|---|
| Type of Structure | Code | Direction | ||
| X | Y | |||
| A (RC frame with masonry infills) | PTN-S | 476.31 | 483.07 | 1122.51 |
| EC 8-T1 (Type 1 spectra) | 695.56 | 695.56 | 1122.51 | |
| PTN-S/EC8-T1 | 0.68 | 0.69 | 1.00 | |
| B (CM) | PTN-S | 553.56 | 553.56 | 1231.86 |
| EC 8-T1 (Type 1 spectra) | 1445.40 | 1445.40 | 1231.86 | |
| PTN-S/EC8-T1 | 0.38 | 0.38 | 1.00 | |
| C (URM with horizontal confining elements) | PTN-S | 525.17 | 525.17 | 1173.16 |
| EC 8-T1 (Type 1 spectra) | 1378.20 | 1378.20 | 1173.16 | |
| PTN-S/EC8-T1 | 0.38 | 0.38 | 1.00 | |
| D (URM) | PTN-S | 499.99 | 499.99 | 1121.51 |
| EC 8-T1 (Type 1 spectra) | 1317.50 | 1317.50 | 1121.51 | |
| PTN-S/EC8-T1 | 0.37 | 0.37 | 1.00 | |
| Model 1 | Model 2 | Model 3 | Model 4 | |
|---|---|---|---|---|
| A | B | C | D | |
| X-direction | 0.73 | 0.24 | 0.28 | 0.28 |
| Y-direction | 0.72 | 0.23 | 0.26 | 0.26 |
| Type A | Type B | Type C | Type D | ||
|---|---|---|---|---|---|
| PTN-S | Δe (mm) Δd (mm) d (%) | 16.70 25.05 0.153 | 2.97 4.46 0.027 | 4.33 6.49 0.039 | 4.18 6.27 0.038 |
| EC8-1 | Δe (mm) Δd (mm) d (%) | 19.49 29.24 0.178 | 3.96 5.94 0.036 | 5.76 8.64 0.053 | 5.56 8.34 0.051 |
| Type A | Type B | Type C | Type D | ||
|---|---|---|---|---|---|
| PTN-S | Δe (mm) Δd (mm) d (%) | 16.45 24.68 0.150 | 2.28 3.42 0.021 | 3.32 4.98 0.030 | 3.22 4.83 0.029 |
| EC8-1 | Δe (mm) Δd (mm) d (%) | 17.39 26.08 0.159 | 3.11 4.66 0.028 | 4.51 6.76 0.041 | 4.37 6.56 0.040 |
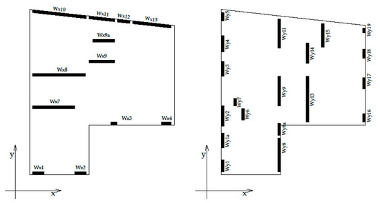
| WX1 | WX2 | WX3 | WX4 | WX7 | WZX8 | WX9 | WX9a | WX10 | WX11 | WX12 | WX13 | |
|---|---|---|---|---|---|---|---|---|---|---|---|---|
| (1) | (2) | (3) | (4) | (5) | (6) | (7) | (8) | (9) | (10) | (11) | (12) | |
| 2.35 | 2.35 | 0.50 | 0.85 | 3.70 | 4.60 | 2.20 | 1.88 | 4.73 | 2.22 | 1.10 | 3.42 | |
| 0.25 | 0.25 | 0.25 | 0.25 | 0.25 | 0.25 | 0.25 | 0.25 | 0.25 | 0.25 | 0.25 | 0.25 | |
| 0.588 | 0.588 | 0.125 | 0.213 | 0.925 | 1.150 | 0.550 | 0.469 | 1.183 | 0.554 | 0.276 | 0.855 | |
| ∑ | 7.474 m2 |
| WY1 | WY1a | WY2 | WY3 | WY4 | WY5 | WY6 | WY7 | WY8 | WY8a | |
|---|---|---|---|---|---|---|---|---|---|---|
| (1) | (2) | (3) | (4) | (5) | (6) | (7) | (8) | (9) | (10) | |
| L(m) | 0.70 | 0.95 | 1.45 | 0.95 | 1.20 | 0.63 | 1.00 | 0.62 | 2.95 | 1.05 |
| 0.25 | 0.25 | 0.25 | 0.25 | 0.25 | 0.25 | 0.25 | 0.25 | 0.25 | 0.25 | |
| 0.175 | 0.238 | 0.363 | 0.238 | 0.300 | 0.158 | 0.250 | 0.155 | 0.738 | 0.263 | |
| WY9 | WY11 | WY13 | WY14 | WY15 | WY16 | WY17 | WY18 | WY19 | ||
| (11) | (12) | (13) | (14) | (15) | (16) | (17) | (18) | (19) | ||
| L(m) | 2.55 | 2.55 | 3.78 | 1.80 | 2.06 | 0.75 | 0.95 | 0.80 | 0.42 | |
| 0.25 | 0.25 | 0.25 | 0.25 | 0.25 | 0.25 | 0.25 | 0.25 | 0.25 | ||
| 0.638 | 0.638 | 0.946 | 0.450 | 0.412 | 0.188 | 0.238 | 0.200 | 0.105 | ||
| ∑ | 6.688 m2 |
| WX1 | WX2 | WX3 | WX4 | WX7 | WZX8 | WX9 | WX9a | WX10 | WX11 | WX12 | WX13 | |
|---|---|---|---|---|---|---|---|---|---|---|---|---|
| (1) | (2) | (3) | (4) | (5) | (6) | (7) | (8) | (9) | (10) | (11) | (12) | |
| VRd (kN) | 89.71 | 89.71 | 19.12 | 30.44 | 178.99 | 233.60 | 93.66 | 74.40 | 240.21 | 88.52 | 40.28 | 157.69 |
| VEd (kN) | 122.60 | 122.60 | 5.53 | 19.67 | 169.02 | 188.64 | 79.94 | 69.82 | 238.94 | 95.55 | 31.33 | 160.20 |
| VRd/VEd | 0.73 | 0.73 | 3.46 | 1.55 | 1.06 | 1.24 | 1.17 | 1.06 | 1.005 | 0.93 | 1.28 | 0.98 |
| WY1 | WY1a | WY2 | WY3 | WY4 | WY5 | WY6 | WY7 | WY8 | WY8a | |
|---|---|---|---|---|---|---|---|---|---|---|
| (1) | (2) | (3) | (4) | (5) | (6) | (7) | (8) | (9) | (10) | |
| VRd (kN) | 24.03 | 32.12 | 49.88 | 32.12 | 40.74 | 21.86 | 34.21 | 21.72 | 121.80 | 36.80 |
| VEd (kN) | 15.56 | 30.42 | 66.24 | 30.42 | 47.77 | 12.10 | 32.18 | 11.31 | 155.35 | 32.41 |
| VRd/VEd | 1.54 | 1.06 | 0.75 | 1.06 | 0.85 | 1.81 | 1.06 | 1.92 | 0.78 | 1.14 |
| WY9 | WY11 | WY13 | WY14 | WY15 | WY16 | WY17 | WY18 | WY19 | ||
| (11) | (12) | (13) | (14) | (15) | (16) | (17) | (18) | (19) | ||
| VRd (kN) | 101.00 | 101.00 | 166.80 | 65.24 | 60.48 | 25.57 | 31.80 | 26.93 | 15.93 | |
| VEd(kN) | 129.79 | 129.79 | 217.65 | 54.71 | 85.19 | 18.35 | 31.70 | 21.97 | 4.44 | |
| VRd/VEd | 0.78 | 0.78 | 0.77 | 1.19 | 0.71 | 1.39 | 1.00 | 1.23 | 3.59 |
| Tie-Column Dimensions (cm) | 25/25 | 25/30 | 25/35 | 25/40 | 25/45 | 25/50 |
|---|---|---|---|---|---|---|
| (1) | (2) | (3) | (4) | (5) | (6) | |
| Bending Moment, | 134.76 | 100.38 | 77.85 | 59.43 | 35.79 | 30.50 |
| Shear Force, | 46.65 | 45.64 | 44.57 | 43.76 | 42.86 | 42.41 |
| Axial Force, | 522.84 | 484.75 | 449.97 | 419.03 | 385.80 | 364.13 |
| Tie-Column Dimensions (cm) | 25/25 | 25/30 | 25/35 | 25/40 | 25/45 | 25/50 |
|---|---|---|---|---|---|---|
| (1) | (2) | (3) | (4) | (5) | (6) | |
| Bending Moment, | 3.43 | 4.62 | 5.90 | 7.28 | 8.68 | 10.16 |
| Shear Force, | 3.38 | 3.41 | 3.83 | 4.29 | 4.81 | 5.37 |
| Axial Force, | 274.21 | 308.71 | 339.28 | 367.60 | 392.14 | 415.41 |
| RC-Frame Structure Model with Masonry Infills | |||||
|---|---|---|---|---|---|
| X1 | X2 | Y1 | Y2 | ||
| Fundamental period (s) | 0.65 | 0.56 | 0.75 | 0.75 | |
| Displacements PTN-S | Δe (mm) | 17.25 | 12.43 | 15.14 | 15.16 |
| Displacements EC8-1 | Δe (mm) | 20.44 | 15.43 | 17.52 | 17.55 |
| Quantity of Concrete for an Entire Structure (All RC Structural Elements) | ||
|---|---|---|
| Type | Description | Quantity m3 |
| A | RC-frame structure | 294.83 |
| B | CM structure with horizontal and vertical RC confining elements | 283.60 |
| C | Masonry structure with horizontal RC confining elements | 260.58 |
| D | Unreinforced masonry structure (URM) | 240.31 |
Disclaimer/Publisher’s Note: The statements, opinions and data contained in all publications are solely those of the individual author(s) and contributor(s) and not of MDPI and/or the editor(s). MDPI and/or the editor(s) disclaim responsibility for any injury to people or property resulting from any ideas, methods, instructions or products referred to in the content. |
© 2024 by the authors. Licensee MDPI, Basel, Switzerland. This article is an open access article distributed under the terms and conditions of the Creative Commons Attribution (CC BY) license (https://creativecommons.org/licenses/by/4.0/).
Share and Cite
Cvetković, R.; Blagojević, P.; Brzev, S. Seismic Design of a Typical Mid-Rise Residential Building in Serbia Using Confined Masonry and Reinforced Concrete Frame Systems. Buildings 2024, 14, 368. https://doi.org/10.3390/buildings14020368
Cvetković R, Blagojević P, Brzev S. Seismic Design of a Typical Mid-Rise Residential Building in Serbia Using Confined Masonry and Reinforced Concrete Frame Systems. Buildings. 2024; 14(2):368. https://doi.org/10.3390/buildings14020368
Chicago/Turabian StyleCvetković, Radovan, Predrag Blagojević, and Svetlana Brzev. 2024. "Seismic Design of a Typical Mid-Rise Residential Building in Serbia Using Confined Masonry and Reinforced Concrete Frame Systems" Buildings 14, no. 2: 368. https://doi.org/10.3390/buildings14020368
APA StyleCvetković, R., Blagojević, P., & Brzev, S. (2024). Seismic Design of a Typical Mid-Rise Residential Building in Serbia Using Confined Masonry and Reinforced Concrete Frame Systems. Buildings, 14(2), 368. https://doi.org/10.3390/buildings14020368

