Abstract
This study introduces precast concrete beam–column connections comprised of composite beams, precast columns, and a monolithic joint core. The composite beams consist of U-shaped beams and floor slabs, leveraging the U-shaped beams for their lightweight nature, acceptable stiffness, and reduced demand for on-site support systems. To mitigate reinforcement congestion in the joint core, the precast connections incorporate large-diameter rebars (greater than 25 mm). This study conducted cyclic loading tests on four full-scale beam–column connections under 0.3 normalized compression, encompassing precast interior and exterior connections, along with two monolithic reference specimens, to investigate their behavior under seismic actions. The results revealed that all specimens exhibited bending failure at the beam ends, with minimal concrete deterioration observed in the joint core areas and columns. The hysteresis curves of the precast specimens and the monolithic connections exhibited a slight pinching effect. The strengths of the interior and exterior precast specimens were 13.3% and 7.8% lower than those of the reference monolithic connections, respectively. The ductility of interior precast connections and monolithic specimens stood at 2.36 and 2.23, respectively, indicating a negligible difference of less than 5%. Meanwhile, the positive and negative ductility of exterior precast connections were 3.06 and 2.34, which was approximately 8% lower than that of the reference connections. Furthermore, the stiffness degradation and energy dissipation capacity of the precast specimens aligned closely with the performance of the reference monolithic ones.
1. Introduction
The application of precast concrete structures originated in Europe in the late 19th century [1]. In contrast to the traditional cast-in-place (CIP), also known as monolithic construction methods, precast concrete structures have gained extensive global usage owing to their superior quality control, heightened construction efficiency, reduced on-site labor requirements, and minimized formwork necessity [2,3,4,5,6,7,8,9,10]. Precast concrete frames offer distinct advantages such as flexible interior space arrangements and excellent compatibility with building facades. Their applications span across various sectors, encompassing public, residential, and industrial buildings [11].
The seismic performance of concrete frames under earthquake forces is heavily reliant on the behavior of their beam–column connections. Recent reports highlight that the collapse of reinforced concrete frames often stems from deteriorating beam–column connections [12,13]. Notable instances include the Marmara earthquake in Turkey in 1999 and the Chiapas earthquake in Mexico in 2017, among others. Consequently, exploring the seismic behavior of precast frame joints holds paramount importance for optimizing their design.
In practice, precast concrete frame joints typically fall into two main categories: beam–column connections with either precast or monolithic joint cores, based on distinct construction approaches. Precast joint cores, prefabricated alongside columns in factories, offer advantages in streamlining on-site assembly and connection processes. However, frame structures featuring precast joint cores often exhibit lower energy dissipation capabilities and are commonly seen as non-emulative structures [14,15,16]. Conversely, employing the CIP joint core involves pouring fresh concrete into the core area as vertical reinforcements pass through the joint core and the longitudinal reinforcements of precast beams extend to the joint post-erection of precast beams and columns. The seismic behavior of such precast concrete frames typically mirrors that of CIP reference frames and can be designed using the “emulative design” principle [17,18,19,20,21,22]. It is noteworthy that frames with monolithic joint cores are widely utilized in seismic-active regions, particularly in China [23,24], New Zealand [25], Turkey [21], and Iran [26].
Currently, numerous research studies have focused on precast concrete frames featuring CIP joint cores. In 2006, Ertas et al. [27] examined the seismic behavior of a ½-scaled exterior precast beam–column connection alongside a CIP control specimen, both with rectangular beam cross-sections. The longitudinal steel bars of the precast columns and beams are 20 mm in diameter. Through reversed cyclic tests at an axial compression ratio of 0.1, the results showcased similar damage mechanisms, energy dissipation capacities, and stiffness degradation laws between the precast and CIP specimens. However, the strength of exterior precast connections was found to be 16.9% lower than that of the reference connections. Notably, the ultimate displacement angle of precast specimens reached 3.5% to 4.0%, indicating commendable deformability. In 2018, Lu et al. [23] conducted tests on six 2/3-scaled precast connections and two monolithic control specimens subjected to cyclic loading at normalized compressions of 0.2 and 0.3. These connections consisted of composite beams with rectangular cross-sections, employing grouted steel sleeves for assembling the longitudinal reinforcements of columns. The precast columns utilized 25 mm rebars, while upper and lower longitudinal bars of the beams were four 16 mm bars. The study revealed that the strengths of precast connections were 13.3% lower than those of monolithic specimens. Additionally, the average ductility of precast connections measured 5.88, marking a 60% increase over the CIP counterparts. However, it is essential to note that the CIP area within the precast specimens encompassed the core area and beam ends, indicating the need for additional formwork and temporary supports for the beams due to the inability of precast beams to directly rest on precast columns. In 2020, Deng et al. [24] conducted an experimental study on a ½-scaled interior precast beam–column connection and a monolithic control specimen under an axial compression of 0.14. The precast beams, rectangular in their cross-sections, utilized two 18 mm bars for longitudinal reinforcements, bent and anchored in the joint core area. Meanwhile, the precast columns featured four 18 mm bars butt-spliced via high-strength steel sleeves. Notably, the joint cores of precast and CIP specimens were cast with highly ductile fiber-reinforced concrete and normal concrete, respectively. Results demonstrated minimal strength differences of less than 2% between the precast and monolithic specimens. Moreover, the ductility of the precast specimen measured 3.65, which was approximately 28.7% higher than that of the CIP connection. It is worth noting that these studies focused on experimental testing using small-scale models and did not account for the influence of floor slabs.
In engineering projects, conventional rectangular sections often characterize most precast beams. However, challenges arise with increased spans or loads, leading to amplified beam sections and self-weight. This, in turn, presents transportation and installation hurdles for prefabricated components. Seeking solutions, engineering practitioners are exploring optimized beam cross-sections. Park et al. [25] proposed precast beams featuring U-shaped beam–shell sections. Their study investigated the seismic performance of three exterior frame joints constructed with precast columns and U-shaped beam–shells, subjected to cyclic loading at 0.1 normalized compression. These beams were T-sectioned, and cyclic loads were applied at the beam ends. The upper and lower longitudinal bars of these beams consisted of four 24 mm bars, while the longitudinal bars of the precast columns ranged between 16 mm and 20 mm. Results indicated satisfactory seismic performance of the precast beam–column connections, with a load-bearing capacity reaching 1.12 to 1.33 times the theoretical value and ductility coefficients approximating 6.0. However, it is important to note that the U-shaped beam–shell served solely as casting formwork, with the behavior of the frame joints reliant on their interior concrete beams.
From the literature review, the following was found:
- (a)
- Previous cyclic tests on beam–column connections predominantly focused on low axial compression ratios (typically less than 0.15) or scaled test models, failing to accurately replicate the real structural behavior of beam–columns in high-rise buildings or under heavy load conditions. Furthermore, most of these tests employed beam end loading, neglecting the influence of geometric nonlinearity.
- (b)
- Conventional rectangular precast beams exhibit high self-weight, presenting challenges during transportation and lifting. U-shaped beams, conversely, possess lighter self-weight and higher stiffness, reducing on-site support requirements. However, there is a lack of relevant studies examining the seismic performance of such connections, necessitating experimental investigation.
- (c)
- Despite the critical role of floor slabs in affecting the stiffness and strength of beam–column connections, most prior research works did not account for their influence, although some studies have demonstrated their significant impact [28,29].
- (d)
- Utilizing large-diameter reinforcement (greater than 25 mm) in precast members has shown promise in reducing the number of reinforcements, simplifying construction processes in joint core areas, and enhancing construction efficiency and quality. However, previous concrete frame tests primarily employed rebars below the 25 mm threshold [23,24,25].
This study introduces a precast beam–column connection comprising composite beams, precast columns, and CIP joint cores. The beams incorporate U-shaped beams and floor slabs, while the connections are reinforced using large-diameter steel bars (exceeding 25 mm). An interior and an exterior precast connection, alongside two monolithic reference specimens—all full-scale—underwent cyclic loading at a 0.3 normalized compression. The investigation encompassed the analysis of damage patterns, hysteresis curves, strength, ductility, stiffness variations, and dissipated the energy of these connections. The aim of this paper’s findings is twofold: to provide a technical foundation for the design and application of precast concrete beam–column connections and to contribute to the establishment of relevant building standards for public use. This research serves to inform the development of precast concrete construction methodologies and standards, which are crucial for future applications and structural integrity.
2. Test Plan
2.1. Specimen Design
Four full-scale precast concrete beam–column connections, comprising one interior, one exterior, and two reference monolithic connections, underwent cyclic loading. The specimen design was modeled after an 18-story frame structure in seismic regions. The ground floor of the building serves as a storage warehouse, featuring a heavy-duty structure with a typical column distance of 10.0 m. The structural design adhered to the fundamental seismic principles of “strong columns-weak beams” and “strong connections-weak members”. Specimen details were in accordance with Chinese concrete structure standards GB 50010-2010 [29], GB 50011-2010 [28], and GB/T 51231-2016 [30], meeting the provisions outlined in ACI 318-19 [31] and Eurocode 2 (2004) [32]. The test specimens are itemized in Table 1.
Table 1.
List of test specimens.
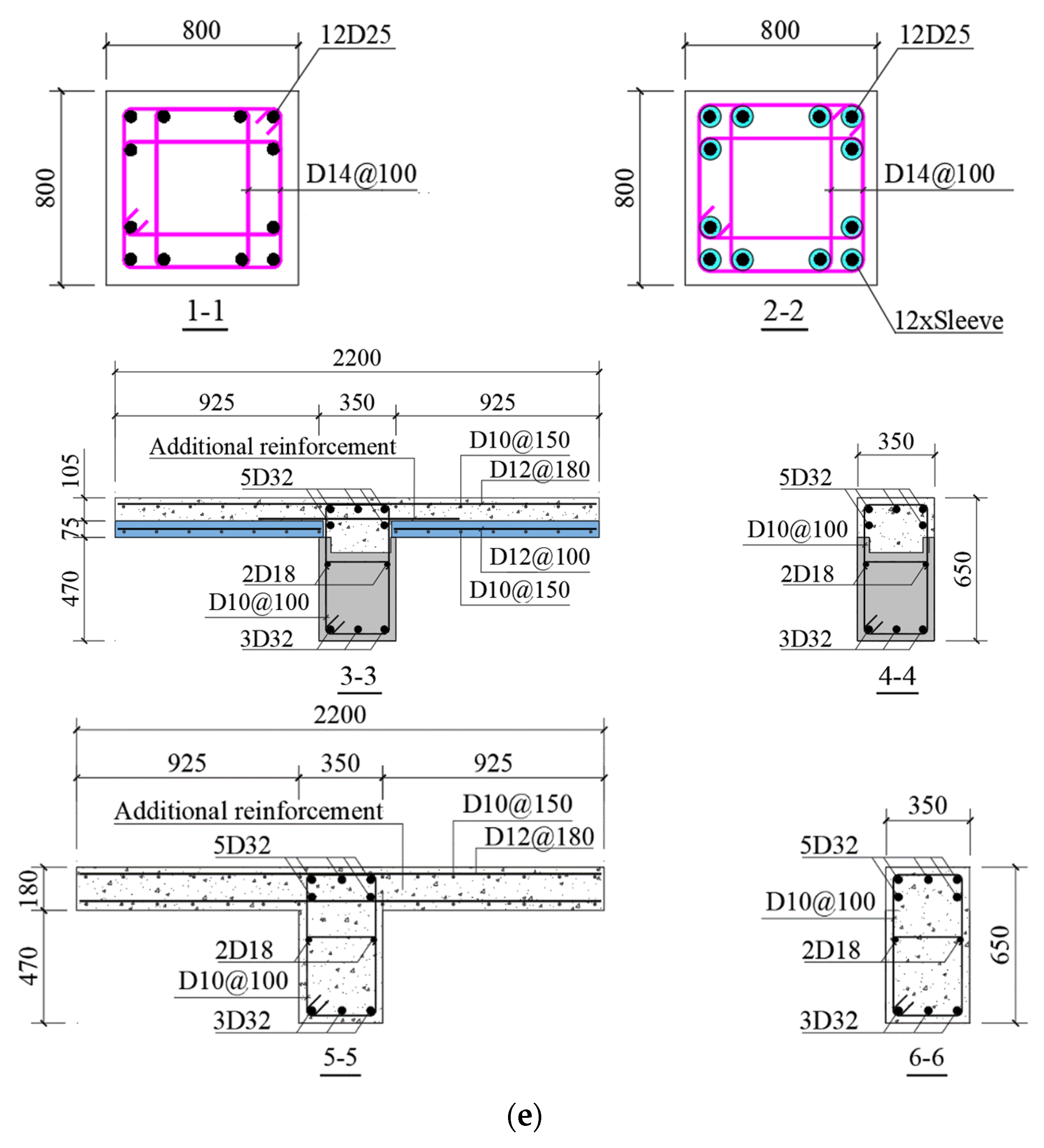
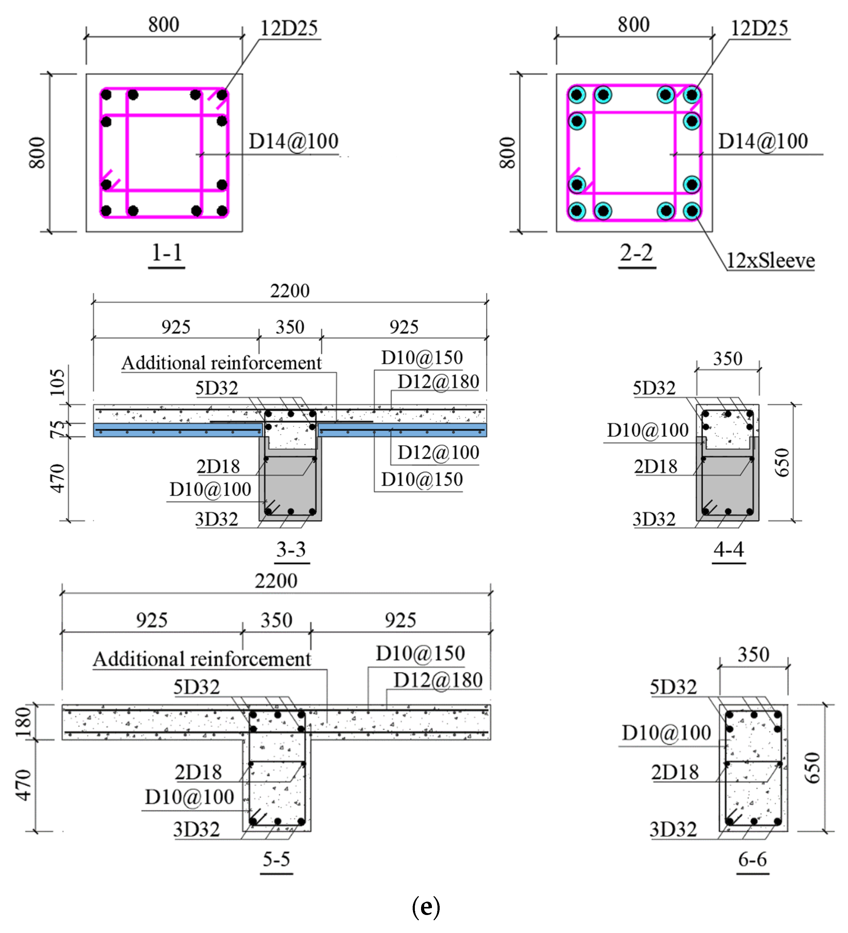
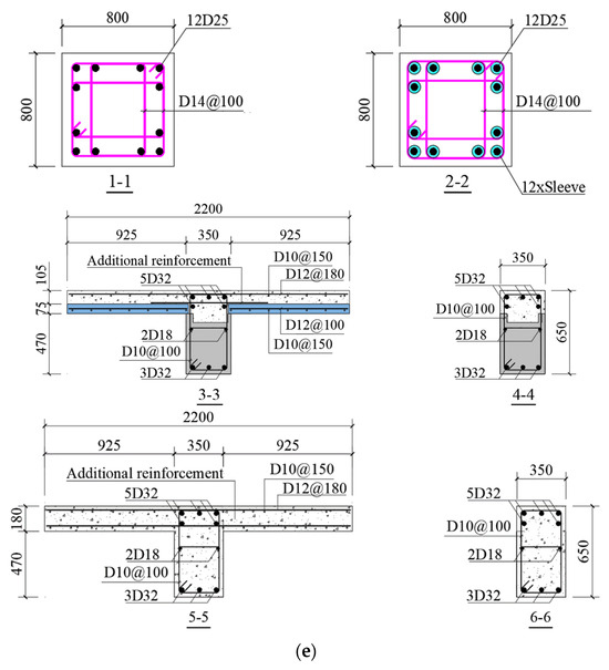
The columns, beams, and slabs had cross-section dimensions of 800 mm × 800 mm, 350 mm × 600 mm, and 2200 mm × 180 mm, respectively. Table 2 provides a summary of the reinforcement’s details. Figure 1 illustrates the adaptable depth of the U-shaped beam section, tailored to meet structural requirements. It is essential to highlight that this project prototype constitutes a heavy-duty structure. Structural analysis revealed an asymmetric arrangement of the upper and lower longitudinal beams, with reinforcement ratios of 1.90% and 1.14%, respectively. Notably, the standard limit for the longitudinal reinforcement ratio on a single side of a frame beam, according to GB 50010-2010 [29], stands at 2.50%. Considering the characteristics of prefabricated structures, large-diameter reinforcements were adopted for both beams and columns to minimize splicing and enhance construction efficiency. Construction details for the connections are depicted in Figure 1 and Figure 2. Moreover, the rebars of precast columns were connected by high-strength steel sleeves at the bottom of the precast upper column. The embedment length of the steel bars in the sleeve was 8d (d represents the diameter of the rebar).
Table 2.
Rebar details.
Figure 1.
Beam–column connections (in mm) of (a) PJ-I; (b) PJ-E; (c) Section ‘A-A’.

Figure 2.
Specimens design (mm) of (a) RJ-I; (b) RJ-E; (c) PJ-I; (d) PJ-E; (e) cross-sections.
2.2. Casting
Casting precast connection basically started from prefabrication in the factory and was completed by assembly on construction site, as shown in Figure 3.
Figure 3.
Details of measures: (a) assembly of precast parts; (b) upper reinforcement preparation; (c) positioning of upper column; (d) grouting of the sleeves.
The beams and columns were initially prefabricated at concrete prefabrication facilities. To enhance the structural integrity of these prefabricated frames, the surfaces of the prefabricated members underwent roughening, achieving an amplitude of over 4 mm for subsequent concrete pouring. This process focused on the connection areas and the top portion of the beams. During the on-site assembly phase, the beams and lower columns were hoisted into their designated positions, and temporary supports were then installed at the beam ends. Subsequently, preparations were made for the upper longitudinal reinforcement in the joint core area and the beams. Following the concrete pouring, the upper column and joint were linked using steel sleeves secured by high-strength mortar.
2.3. Materials
The test connections utilized C50 grade concrete, exhibiting a cubic compressive strength of 50 MPa. The cube strength of concrete adopts cube sample 150 × 150 × 150 mm, and the prismatic strength adopts prismatic sample 150 × 150 × 300 mm. Longitudinal reinforcements within the beams and columns comprised 400 MPa steel, while stirrups and transverse rebars boasted a nominal yielding strength of 335 MPa. Based on GB/T 228-2010 [33] and GB/T 50081-2016 [34], Table 3 and Table 4 outline the verified physical properties of concrete and steel on the testing day. Additionally, the grouting material showcased a compressive strength of 103 MPa at 28 days.
Table 3.
Physical properties of reinforcements.
Table 4.
Mechanical properties of concrete.
2.4. Test Setup
All specimens underwent testing at Tongji University’s Structural Engineering Laboratory in China. Figure 4 and Figure 5 illustrate the test setup and the boundary constraints. The column’s base was hinged, while the ends of the beams were roller supported. To minimize friction at the loading plane and accurately account for geometric nonlinearity, the vertical hydraulic jack was mobilized by automatically tracking the horizontal actuator. This precision ensured meticulous consideration of structural nuances during testing.
Figure 4.
Boundary constraints: (a) interior connection; (b) exterior connection.
Figure 5.
Test setup: (a) RJ-I and PJ-I; (b) RJ-E and PJ-E; (c) LVDTs and strain gauge arrangements.
A constant vertical load, exerted on the upper surfaces of columns, induced a normalized compression of 0.3, approximately 7000 kN in force. This vertical load was applied using a 10,000 kN actuator. Additionally, cyclic lateral actions were imposed on the columns through a 1500 kN horizontal hydraulic actuator. Compared to the beam end loading method, applying loads directly on the columns offered a more comprehensive consideration of geometric nonlinearity effects, enhancing the accuracy of the testing conditions.
Following the guidelines outlined in JGJ/T 101-2015 [35], the loading history comprised two phases: load control before cracking and displacement control after cracking, as depicted in Figure 6. During the displacement control phase, the drift level increased by 0.5% drift (equivalent to 1/200 of the clear height of the column) until the load reduced to 15% of its maximum value. Each drift level encompassed three load cycles.
Figure 6.
Cyclic loading history.
Throughout the tests, load-detecting transducers and displacement sensors were employed to measure forces and deflections, respectively. Strain gauges were utilized to detect strains in the reinforcements of beams and columns, as well as in the stirrups within the joint core area (Figure 5c). Strain gauges were utilized to detect strains in the reinforcements of beams and columns, as well as in the stirrups within the joint core area [36]. Moreover, cracks on the specimens were meticulously marked, and their widths were measured using a specialized crack observer.
3. Experimental Results
3.1. General Response and Failure Mode
3.1.1. Interior Joints
Cracks in PJ-I and RJ-I originated at the lower end of the right beam–column face in the positive direction and at the top of the slab in the negative direction. The average cracking loads measured approximately 160 kN and 260 kN for PJ-I and RJ-I, respectively. As the horizontal loads increased to 702.4 kN for PJ-I and 761.3 kN for RJ-I in the positive direction, the longitudinal reinforcement at the bottom of the right-hand beam began yielding. Simultaneously, cracks primarily concentrated at the beam’s bottom end near the column. Under loading in the negative direction, parallel cracks consistently appeared on the top surface of the slabs, ranging from 514.3 kN to 832.3 kN.
The averaged peak loads for PJ-I and RJ-I reached 851.6 kN and 982.2 kN, respectively, aligning with relative drifts of approximately ±2.0%. At these peak loads for both specimens, severe spalling of the concrete occurred at the bottom of the beam, while the concrete at the top of the slab crushed. Notably, there was no evident deterioration observed in the joint core region. The failure patterns of specimens RJ-I and PJ-E are depicted in Figure 7a,b.

Figure 7.
Photos of loaded connections at failure. (a) RJ-I; (b) PJ-I; (c) RJ-E; (d) PJ-E; (e) composite slabs.
The strains of the longitudinal bar at the bottom section of the RJ-I beam were 158 με and 2368 με at cracking and yielding, respectively. The corresponding PJ-I were 195 με and 2456 με, respectively. The maximum strains of the longitudinal reinforcements in the columns of PJ-I and RJ-I were below 700 µε, which was significantly lower than their measured yield strains (2346 µε). The stirrups in the joint core also exhibited elastic behavior.
3.1.2. Exterior Joints
The cracking loads of RJ-E were +130 kN and −220 kN, and the cracking loads of PJ-E were +140 kN and −180 kN. The initial cracks appeared at the lower part of the beam end next to the column (positive direction) and the upper surface of the slab end (negative direction). When the applied loads achieved 320.6 kN (RJ-E) and 315.4 kN (PJ-E) in the positive direction, the longitudinal bars in the beams began to yield. The peak loads of RJ-E were +444.3 kN (at +1.50% drift) and −496.1 kN (at −2.0% drift). The strengths of PJ-E were slightly lower at +421.2 kN (at +1.50% drift) and −436.2 kN (at −1.50% drift).
For specimen RJ-2, when the beam end cracked and yielded, the tensile strains of the longitudinal bar at the bottom section were 130 με and 2456 με. The tensile strains of the bottom longitudinal bars of specimen PJ-2 at the corresponding stages were 152 με and 2516 με.
At failure, significant concrete spalling at beam ends was noticed in both specimens. Longitudinal reinforcements in the beams were yielded, However, the stirrups were still found to behave in the elastic state, as well as the rebars in the columns. The failed specimens RJ-E and PJ-E are presented in Figure 7c,d.
The bending failure observed at the beam ends near the column face aligned with the design philosophy of “strong column and weak beam” and “strong connections-weak members”. Throughout the test, the maximum slip between the precast slab and the precast beam remained below 0.65 mm. Additionally, the maximum slip between the CIP top slab and the precast slab was less than 0.75 mm. Notably, no significant horizontal cracks were detected between the precast concrete and the post-cast concrete within the composite slab, as illustrated in Figure 7e. This absence of cracks indicates that the CIP components and the precast elements functioned cohesively as a single unit, showcasing the high structural integrity achieved by the precast specimens.
3.2. Hysteretic Curves
The hysteresis curve illustrates the relationship between the applied force on the structure and the resulting induced deflections throughout the cyclic loading process, providing a comprehensive reflection of overall seismic performance of the structure. Figure 8 portrays the hysteretic curves of the four tested connections.

Figure 8.
Hysteretic of tested beam–column subassemblies at failure. (a) RJ-I; (b) PJ-I; (c) RJ-E; (d) PJ-E.
It is worth noting the similarity in shapes among the hysteretic curves of the connections. Prior to yielding, the curves of the specimens exhibited a roughly linear pattern. Following yielding, the curves’ slopes gradually decreased, indicating a degradation in structural stiffness, and the hysteretic loops began displaying a pinching effect. This effect resulted from bond slips in the longitudinal rebars at the beam–column connections. Moreover, the opening and closing behavior of vertical cracks in the connection area led to substantial residual deformation in the longitudinal rebars, contributing to wider cracking and the observed pinching effect on the hysteretic loops. Notably, due to the influence of geometric nonlinearity under high levels of axial compression, capturing ideal hysteretic curves proved challenging.
The enveloped area of the hysteresis curve serves as an indicator of a structure’s energy dissipation capacity, with plumper curves typically signifying higher energy dissipation. The results show that the energy dissipation capacity of precast and CIP beam–column joints is similar. Notably, the interior joints exhibited a greater ability to dissipate energy compared to the exterior ones. This disparity arose due to the formation of dual plastic hinges at beam ends in the interior joints.
3.3. Skeleton Curves
The skeleton curves are drawn according to the envelope of the hysteresis loops, reflecting the load and deflection characteristics of the structural member in different loading stages. Figure 9 depicts the load–displacement envelope curves of precast and CIP beam–column connections.
Figure 9.
Envelope curves: (a) RJ-I and PC-I; (b) RJ-E and PJ-E.
The envelopes of the specimens exhibited linearity before cracking, which is indicative of elastic behavior. Following the onset of cracking, the specimens experienced a reduction in stiffness, gradually reaching negative stiffness until the conclusion of the tests. This notable reduction resulted from the emergence of new concrete cracks and continuous yielding of reinforcements. Moreover, post-peak strength exhibited a gradual decline owing to a shift in the neutral axis caused by severe concrete crushing and spalling. Notably, the strengths of PJ-I and PJ-E were 851.6 kN and 428.7 kN, respectively, only 13.3% and 7.8% lower than RJ-I and RJ-E, respectively.
In exterior joints, the presence of slabs influenced the calculated strengths, resulting in a lower positive calculated strength compared to the negative value. This occurred as the flange of the T-beam sustained tensile stresses in the negative loading direction, while reinforcing rebars in the slabs actively bolstered the tensile response of the section. Consequently, this elucidates why the negative strengths of exterior connections surpass the positive values (refer to Figure 9b). The blue line in Figure 9 is the theoretical bearing capacity Pth of the beam–column specimen. The theoretical bearing capacity is calculated using the actual properties of the material given in Table 3 and Table 4. It is realized by calculating the bending moment of the beam and carrying out balance check. In general, the calculated values are consistent with the experimental values.
Upon comparing the responses of exterior connections with interior connections, PJ-E exhibited a mere 50.3% load-carrying capacity of PJ-I, while RJ-E demonstrated a 47.3% load-carrying capacity of RJ-I. This discrepancy arose due to the pivotal role of the rotating ability of plastic hinges at the beam ends in determining the load-carrying capacity of connections. Interior connections, with two plastic hinges at the beam ends, consequently boasted a load-carrying capacity twice as large. Broadly speaking, the envelopes of the precast connections closely resembled those of the monolithic specimens.
3.4. Displacement Ductility and Deformability
The displacement ductility coefficient serves as a metric reflecting the deformability of a structure or member. Typically, it is calculated as the ratio between the ultimate displacement and the yielding displacement. The ultimate displacement Δu was determined as 85% of the peak load, while the yielding displacement Δy was determined using the energy method as introduced by Park [37]. Characteristic points and the displacement ductility of the specimens are listed in Table 5. The averaged ductility coefficients of the test specimens were 2.36, 2.23, 2.70, and 2.90 for PJ-I, RJ-I, PJ-E, and RJ-E, respectively. The differences in ductility between the precast joints and the CIP joints were below ±7%.
Table 5.
Critical loads, displacements, and specimen ductility.
The interior joints were symmetrically designed along the column’s central axis, resulting in closely aligned positive and negative ductility values. However, the exterior joints, with beams on only one side, presented varied stress states when subjected to positive and negative loads. This disparity led to different ductility values in the positive and negative directions. Remarkably, in the positive direction, the displacement ductility of the exterior precast specimens (3.06 and 3.30) exceeded that of the interior connections (2.20 and 2.11). This divergence can be attributed to the elevated reinforcement ratio of longitudinal bars in the upper part of the beam (1.90%), consequently diminishing the plastic rotation capacity of the beam ends and resulting in lower joint ductility. Similar observations were noted in prior studies [23]. The fraction between the yielding and cracking displacements could indicate the safety margin of the specimen in the post-cracking range. As listed in Table 5, the precast specimens show that their Δy/Δcr varied from 4.18 to 9.70; these results are comparable with the results of the CIP ones. This demonstrates that both the precast and CIP joints possess adequate safety margin after cracking, which measures the service region of the beam–column connection with cracks.
The deformability of the specimens is evaluated via the ultimate drifts at failure. Final drifts for precast and monolithic interior connections were 2.47% and 2.77%, and the final drifts for precast and monolithic exterior connections were 2.36% and 2.42%. Although the deformability of the precast joints was slightly lower than the CIP ones, the ultimate drifts of the precast specimens were still greater than the requirements specified in GB 50010-2010 (2%), revealing satisfactory deformability of the proposed beam–column connections.
3.5. Energy Dissipation
The energy dissipation capacity of the structures is an important reflector of its seismic behavior, which is proportional to the area of the hysteresis loops. The cumulatively increased energy dissipation of the four connections is presented in Figure 10.
Figure 10.
Cumulative energy dissipation of tested connections. (a) interior joint; (b) exterior joint.
Overall, the trend and the amount of dissipated energy exhibited by precast connections and monolithic ones at each displacement level were comparable. Specifically, the final dissipated energy for PJ-I, RJ-I, PJ-E, and RJ-E were 266.7 kN·m, 246.5 kN·m, 130.6 kN·m, and 226.1 kN·m, respectively. The relatively lower dissipated energy in PJ-E can be attributed to its premature failure. Initially, the cumulative energy of the connection before reaching the peak load was relatively small, indicating minor structural damage. However, as displacement increased, the accumulated energy post-peak load notably escalated, emphasizing that the majority of energy dissipation occurred after reaching peak loads. Furthermore, the cumulative energy dissipation of the interior connection slightly exceeded that of the exterior joint due to the presence of an additional beam connected to the column.
3.6. Stiffness Decline
Stiffness decline indicates the reduction in structural stiffness of a structure or member under repeated loading. Secant stiffness is adopted herein to represent the stiffness change of beam–column connections against lateral deflections. The stiffness is presented in the following form:
where is the load at the top of the column for the -th cycle at the -th loading stage. is the corresponding displacement for the -th cycle at the -th loading stage; is the number of cycles. The stiffness degradation of the test specimens is shown in Figure 11.
Figure 11.
The stiffness degradation of (a) RJ-I and PJ-I, and (b) RJ-E and PJ-E.
Overall, the stiffness degradation pattern observed in precast concrete beam–column connections mirrored that of their CIP reference specimens. Throughout the loading process, degradation in stiffness commenced post-cracking, displaying a rapid decline before reaching the peak load. Notably, at equivalent displacements, the stiffness of interior joints surpassed that of the exterior joints. An intriguing observation was the slightly lower stiffness observed in the specimens under negative loading, and was attributed to the cumulative concrete damage’s weakening effect evident in the positive direction.
4. Discussion
The test results revealed that all specimens underwent bending failure, with minor concrete deterioration observed in joint areas and columns. Remarkably, the joint core exhibited elastic behavior consistently throughout the test duration. Additionally, the ductility of connections ranged between 2.23 and 2.90, meeting the ductility standards outlined in ASCE 41-06 [38] for moderately ductile frames (ranging from 2.0 to 4.0).
According to ACI 374.1-05 [39] provisions, frames should achieve a drift ratio of 3.5% in the absence of axial loads. However, under cyclic loading, achieving this inter-story displacement angle of 3.5% in beam–column connections becomes challenging, especially under high axial compression ratios. This experimental study evidenced inter-story displacement angles in prefabricated beam–column connections ranging from 2.36% to 2.77%. Although the hysteresis curve displayed some pinching, overall, it showcased significant width and demonstrated commendable energy dissipation capabilities. Consequently, there is merit in suggesting the incorporation of guidelines specifying different inter-story displacement angles based on varying axial pressure ratios into ACI 374.1-05 [39]. This expansion could enhance the applicability and relevance of the guidelines.
5. Conclusions
This paper investigated precast beam–column joints composed of precast beams, precast columns, and monolithic joint cores, in which the beams were made with U-shaped beams and floor slabs. The connections were reinforced via large-diameter steel bars (greater than 25 mm). Interior and exterior precast connections and two reference specimens were loaded and subjected to cyclic actions at a high normalized compression of 0.3. The main conclusions are presented as follows:
- All specimens exhibited flexural failure at beam ends, with slight concrete damage observed in the joint core area and columns with the test’s conclusions. This aligns with the design concept emphasizing “strong column-weak beams” and “strong connection-weak members”.
- The hysteresis loops from all specimens displayed a pinching effect, with the precast specimens showing relatively plumper curves compared to the CIP joints. Despite this distinction, the dissipated energy between precast and monolithic connections was comparable.
- The maximum strengths recorded for the interior and exterior precast connections were 851.6 kN and 428.7 kN, respectively, representing a 13.3% and 7.8% reduction compared to the monolithic connections.
- The averaged ductility values of the interior precast specimens (2.36) closely resembled those of the CIP specimen (2.23). However, the positive and negative ductility of the exterior precast specimens (3.06 and 2.34) were approximately 8% lower than those of the monolithic connections. Both precast and CIP beam–column connections exhibited similar responses in terms of deformability and ductility.
Therefore, the proposed precast frame joint could be considered as an emulative design by comparing it with the performance of reference specimens. In addition, parts of the results here were referenced in Chinese local building standards GB/T 51231-2016 [30] and DGJ 08-2154-2021 [40].
Author Contributions
Conceptualization, W.X. and J.L.; methodology, W.X. and J.L.; investigation, J.L. and Q.H.; writing—original draft preparation, J.L. and B.Z.; writing—review and editing, Q.H. and B.Z.; funding acquisition, W.X. All authors have read and agreed to the published version of the manuscript.
Funding
This research was funded by Key Technologies Research and Development Program (Grant No. 2022YFC3801400); Science and Technology Innovation Plan of Shanghai Science and Technology Commission (Grant No. 22dz1203100); National Natural Science Foundation of China (Grant No. 52130806).
Data Availability Statement
Data are contained within the article.
Conflicts of Interest
The authors declare no conflicts of interest.
References
- Steinle, A.; Bachmann, H.; Tillmann, M. Precast Concrete Structures; John Wiley & Sons: Hoboken, NJ, USA, 2019. [Google Scholar]
- Yee, A.A.; Eng, P.H.D. Social and environmental benefits of precast concrete technology. PCI J. 2001, 46, 14–19. [Google Scholar] [CrossRef]
- Yee, A.A.; Eng, P.H.D. Structural and economic benefits of precast/prestressed concrete construction. PCI J. 2001, 46, 34–43. [Google Scholar] [CrossRef]
- Xue, W. Progress of studies and applications of precast concrete frame structure systems. Ind. Constr. 2002, 32, 47–50. (In Chinese) [Google Scholar]
- Lim, J.J.; Eom, T.S.; Hwang, H.J.; Lee, S.J.; Lee, S.H. Cyclic Loading Test for Beam–Column Joints of Precast Concrete Beam and Concrete-Encased Steel Angle Column. J. Struct. Eng. 2023, 149, 04023033. [Google Scholar] [CrossRef]
- Jin, K.; Ota, R.; Hao, L.; Kitayama, K. Evaluation Method for Ultimate Flexural State of Prestressed Precast Reinforced Concrete Beam–Column Connection with Debonded Partial Tendon. Appl. Sci. 2023, 13, 2843. [Google Scholar] [CrossRef]
- Yu, J.; Xia, Y.; Guo, Z.; Guo, X. Experimental study on the structural behavior of exterior precast concrete beam-column joints with high-strength steel bars in field-cast RPC. Eng. Struct. 2024, 299, 117128. [Google Scholar] [CrossRef]
- Lu, Z.; Wu, B.; Sakata, H.; Huang, J.; Zhang, M. Mechanical performance of prefabricated concrete beam-column joints with double-grouted sleeve connectors: A numerical and theoretical study. Structures 2023, 56, 104870. [Google Scholar] [CrossRef]
- Liao, X.; Zhang, B.; Xue, W. Cyclic loading response of precast concrete beam-column connections with partially bonded draped prestressing tendon. Eng. Struct. 2024, 302, 117435. [Google Scholar] [CrossRef]
- Jung, D.; Kang, T.H.; Lee, D.J.; Kim, S.; LaFave, J.M. Seismic performance of a ductile rod exterior connection system for precast concrete industrial buildings. PCI J. 2023, 68, 25–47. [Google Scholar] [CrossRef]
- Xue, W.; Hu, X.; Song, J. Experimental study on seismic behavior of precast concrete beam-column joints using UHPC-based connections. Structures 2021, 34, 4867–4881. [Google Scholar] [CrossRef]
- Iverson, J.K.; Hawkins, N.M. Performance of precast/prestressed building structures during Northridge earthquake. PCI J. 1994, 39, 38–56. [Google Scholar] [CrossRef]
- Ghosh, S.K.; Cleland, N. Observations from the February 27, 2010, earthquake in Chile. PCI J. 2012, 57, 52–75. [Google Scholar] [CrossRef]
- Belleri, A. Displacement based design for precast concrete frames with not-emulative connections. Eng. Struct. 2017, 141, 228–240. [Google Scholar] [CrossRef]
- Priestley, M.N. Overview of PRESSS research program. PCI J. 1991, 36, 50–57. [Google Scholar] [CrossRef]
- Stone, W.C.; Cheok, G.S.; Stanton, J.F. Stanton. Performance of hybrid moment-resisting precast beam-column concrete connections subjected to cyclic loading. Struct. J. 1995, 92, 229–249. [Google Scholar]
- Alcocer, S.M.; Carranza, R.; Perez-Navarrete, D.; Martinez, R. Seismic tests of beam-to-column connections in a precast concrete frame. PCI J. 2002, 47, 70–89. [Google Scholar] [CrossRef]
- Choi, H.K.; Choi, Y.C.; Choi, C.S. Development and testing of precast concrete beam-to-column connections. Eng. Struct. 2013, 56, 1820–1835. [Google Scholar] [CrossRef]
- Xue, W.; Hu, X. Seismic performance of a four-story two-bay high-performance concrete frame under low reversed cyclic loading. KSCE J. Civ. Eng. 2017, 21, 2707–2716. [Google Scholar] [CrossRef]
- Im, H.J.; Park, H.G.; Eom, T.S. Cyclic Loading Test for Reinforced-Concrete-Emulated Beam-Column Connection of Precast Concrete Moment Frame. ACI Struct. J. 2013, 110, 115–125. [Google Scholar]
- Yuksel, E.; Karadogan, H.F.; Bal, I.E.; Ilki, A.; Bal, A.; Inci, P. Seismic behavior of two exterior beam–column connections made of normal-strength concrete developed for precast construction. Eng. Struct. 2015, 99, 157–172. [Google Scholar] [CrossRef]
- Xue, W.; Yang, X. Tests on Half-Scale, Two-Story, Two-Bay, Moment-Resisting Hybrid Concrete Frames. ACI Struct. J. 2009, 106, 627–635. [Google Scholar]
- Lu, C.; Dong, B.; Pan, J.; Shan, Q.; Hanif, A.; Yin, W. An investigation on the behavior of a new connection for precast structures under reverse cyclic loading. Eng. Struct. 2018, 169, 131–140. [Google Scholar] [CrossRef]
- Deng, M.; Ma, F.; Song, S.; Lü, H.; Sun, H. Seismic performance of interior precast concrete beam-column connections with highly ductile fiber-reinforced concrete in the critical cast-in-place regions. Eng. Struct. 2020, 210, 110360. [Google Scholar] [CrossRef]
- Bull, D.K.; Park, R. Seismic resistance of frames incorporating precast prestressed concrete beam shells. PCI J. 1986, 31, 54–93. [Google Scholar] [CrossRef]
- Parastesh, H.; Hajirasouliha, I.; Ramezani, R. A new ductile moment-resisting connection for precast concrete frames in seismic regions: An experimental investigation. Eng. Struct. 2014, 70, 144–157. [Google Scholar] [CrossRef]
- Ozturan, T.; Ozden, S.; Ertas, O. Ductile connections in precast concrete moment resisting frames. Concr. Constr. 2006, 9, 11. [Google Scholar]
- GB 50011-2010; Code for Design of Concrete Structures. China Building Industry Press: Beijing, China, 2010.
- GB 50010-2010; Code for Seismic Design of Buildings. China Architecture & Building Press: Beijing, China, 2010.
- GB/T51231-2016; Technical Standard for Assembled Buildings with Concrete Structure. China Building Industry Press: Beijing, China, 2016.
- ACI 318-19; Building Code Requirements for Structural Concrete and Commentary. American Concrete Institute: Farmington Hills, MI, USA, 2019.
- EN-1992-1-1; Eurocode 2, Design of Concrete Structures—Part 1-1: General Rules and Rules for Buildings. CEN European Committee for Standardization: Brussels, Belgium, 2004.
- GB/T 228.1-2010; Metallic Materials-Tensile Testing Part 1: Method of Test at Room Temperature. China Standards Press: Beijing, China, 2010.
- GB/T 50081-2016; Standard for Test Methods of Concrete Physical and Mechanical Properties. China Building Industry Press: Beijing, China, 2016.
- JGJ /T 101-2015; Specification for Seismic Test of buildings. China Architecture & Building Press: Beijing, China, 2015.
- Khan, R.M.A.; Shafighfard, T.; Ali, H.Q.; Mieloszyk, M.; Yildiz, M. Strength prediction and experimental damage investigations of plain woven CFRPs with interacting holes using multi-instrument measurements. Polym. Compos. 2023, 44, 3594–3609. [Google Scholar] [CrossRef]
- Park, R. Evaluation of ductility of structures and structural assemblages from laboratory testing. Bull. New Zealand Soc. Earthq. Eng. 1989, 22, 155–166. [Google Scholar] [CrossRef]
- ASCE/SEI 41-06; Seismic Rehabilitation of Existing Buildings. American Society of Civil Engineers: Reston, VA, USA, 2006.
- ACI 374.1-05; Acceptance Criteria for Moment Frames Based on Structural Testing. American Concrete Institute: Farmington Hills, MI, USA, 2005.
- DGJ 08-2154-2021; Code for Design of Monolithic Precast Concrete Public Buildings. Tongji University Press: Shanghai, China, 2021.
Disclaimer/Publisher’s Note: The statements, opinions and data contained in all publications are solely those of the individual author(s) and contributor(s) and not of MDPI and/or the editor(s). MDPI and/or the editor(s) disclaim responsibility for any injury to people or property resulting from any ideas, methods, instructions or products referred to in the content. |
© 2024 by the authors. Licensee MDPI, Basel, Switzerland. This article is an open access article distributed under the terms and conditions of the Creative Commons Attribution (CC BY) license (https://creativecommons.org/licenses/by/4.0/).













