Evaluation of Temporary COVID-19 Testing Sites at Brussels Airport, Belgium: Users’ Comfort and Privacy
Abstract
1. Introduction
2. Data Collection
2.1. Study Area
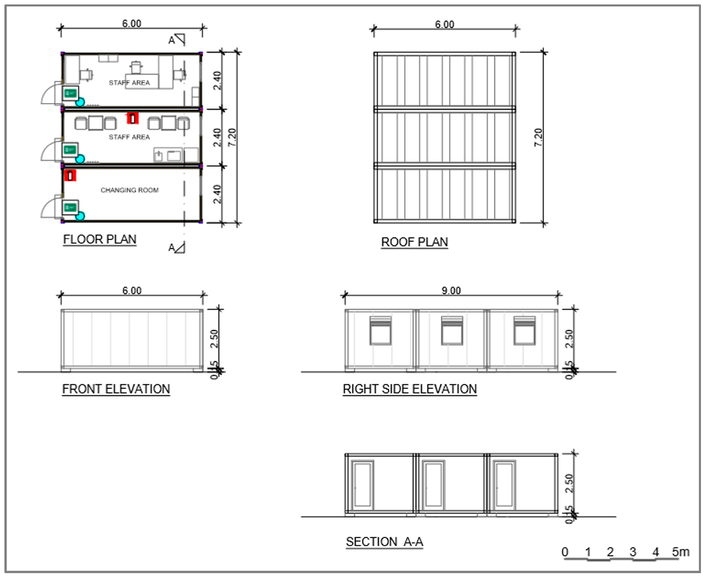
2.1.1. COVID-19 Departure Test Center
2.1.2. COVID-19 Arrivals Test Center
3. Methods
3.1. SWOT Analysis
3.2. Survey Development
3.3. Survey Design
4. Results of SWOT Analysis
4.1. Internal Influences: Privacy, Transparency, and Enclosure
4.2. Internal Influences: Atmospheric Conditions
4.3. External Influences: Context
4.4. External Influences: Weather Conditions
4.5. SWOT Model Validation
5. Survey Results
5.1. Response Rate
5.2. Visitors Data Analysis
5.3. Employee Data Analysis
5.4. Survey Validation
6. Discussion
6.1. Statement 1: The COVID-19 Crisis Indirectly Influenced the Creation of Temporary Modular Buildings with Glass Envelopes
6.1.1. Functionality and Quality of Materials
6.1.2. Durability of Construction
6.1.3. Durability of the Glass Envelope
6.1.4. Quality of Installations
6.1.5. Quality of Promotional Materials
6.2. Statement 2: The Modular Envelope Is Adaptable to the Existing Context
6.2.1. Sustainability in Daily Adaptation, Flexibility, and Reorganization
6.2.2. The Future and Possible Iterations of the Existing Structure
6.3. Statement 3: The Envelope Meets the Needs of the Users
7. Conclusions
- (1)
- The COVID-19 crisis indirectly influenced the creation of temporary modular buildings with glass envelopes.
- The potential of modular buildings to address the rapid need for temporary healthcare infrastructure was proven;
- New possibilities were raised regarding how temporary modular spaces should look and how they should be perceived and used;
- The extensive use of glass creates new design possibilities characterized by substantial aesthetic values resulting from the transparency of glass.
- (2)
- The modular envelope is adaptable to the existing context.
- The principle of modularity was used during planning, design and construction, and flexible use was demonstrated over time;
- This type of envelope works well in various conditions;
- Repurposing and frequently changing the areas and uses of space were undertaken;
- The building’s adaptability to existing environments and to new situations was proven;
- These same elements could be used during new emergencies and for new purposes.
- (3)
- The envelope meets the needs of the users.
- Regardless of their size or function, whether newly constructed or reassembled, temporary building projects can be structured to have a positive impact on people’s well-being;
- Different built environments influence the users’ level of comfort and privacy within the space;
- The glass facade impacts the level of comfort and the privacy of users;
- Users are satisfied with the level of comfort;
- There is a greater dissatisfaction with the level of privacy;
- Parameters such as adaptability, the user’s experience, and the duration of the stay within the space also affect the acceptance levels of comfort and privacy.
Author Contributions
Funding
Data Availability Statement
Acknowledgments
Conflicts of Interest
References
- Büchel, B.; Marra, A.D.; Corman, F. COVID-19 as a window of opportunity for cycling: Evidence from the first wave. Transp. Policy 2022, 116, 144–156. [Google Scholar] [CrossRef] [PubMed]
- Eurostat. EU Annual Regional and Local Barometer 2021. Available online: https://cor.europa.eu/en/our-work/Documents/barometer-fullreportweb.pdf (accessed on 10 February 2023).
- Tokazhanov, G.; Tleuken, A.; Guney, M.; Turkyilmaz, A.; Karaca, F. How is COVID-19 experience transforming sustainability requirements of residential buildings? A review. Sustainability 2020, 12, 8732. [Google Scholar]
- Gatheeshgar, P.; Poologanathan, K.; Gunalan, S.; Shyha, I.; Sherlock, P.; Rajanayagam, H.; Nagaratnam, B. Development of affordable steel-framed modular buildings for emergency situations (COVID-19). Structures 2021, 31, 862–875. [Google Scholar]
- Ndayishimiye, C.; Sowada, C.; Dyjach, P.; Stasiak, A.; Middleton, J.; Lopes, H.; Dubas-Jakóbczyk, K. Associations between the COVID-19 Pandemic and Hospital Infrastructure Adaptation and Planning—A Scoping Review. Int. J. Environ. Res. Public Health 2022, 19, 8195. [Google Scholar] [CrossRef] [PubMed]
- Kunac, N.; Bezić, J.; Vuko, A.; Bašić, Ž.; Jerković, I.; Kružić, I.; Anđelinović, Š. Building the COVID-19 Testing Capacities in Croatia: Establishing the Interdepartmental COVID-19 Unit at the Split University Hospital Centre. Acta Clin. Croat. 2021, 60, 254–258. [Google Scholar] [CrossRef] [PubMed]
- Chen, L.-K.; Yuan, R.-P.; Ji, X.-J.; Lu, X.-Y.; Xiao, J.; Tao, J.-B.; Kang, X.; Li, X.; He, Z.-H.; Quan, S.; et al. Modular composite building in urgent emergency engineering projects: A case study of accelerated design and construction of Wuhan Thunder God Mountain/Leishenshan hospital to COVID-19 pandemic. Autom. Constr. 2020, 124, 103555. [Google Scholar] [CrossRef]
- Meziani, R.; Husnéin, A.; Alkhatib, A.; Wacily, M.; Hamam, Z.; Hejji, H. Spatial Adaptation for Alternative Care Facilities during the Covid-19 Pandemic: Siting Field Hospitals for Abu Dhabi City. Int. Rev. Spat. Plan. Sustain. Dev. 2022, 10, 29–54. [Google Scholar]
- Megahed, N.A.; Ghoneim, E.M. Antivirus-built environment: Lessons learned from Covid-19 pandemic. Sustain. Cities Soc. 2020, 61, 102350. [Google Scholar]
- Nekooie, M.A.; Tofighi, M. Resilient and sustainable modular system for temporary sheltering in emergency condition. Vitruvio 2020, 5, 1–18. [Google Scholar] [CrossRef]
- Hwang, K.E.; Kim, I. Post-COVID-19 modular building review on problem-seeking framework: Function, form, economy, and time. J. Comput. Des. Eng. 2022, 9, 1369–1387. [Google Scholar]
- Hong, Y. A study on the condition of temporary housing following disasters: Focus on container housing. Front. Archit. Res. 2017, 6, 374–383. [Google Scholar] [CrossRef]
- Candel, F.J.; Canora, J.; Zapatero, A.; Barba, R.; González Del Castillo, J.; García-Casasola, G.; San-Román, J.; Gil-Prieto, R.; Barreiro, P.; Fragiel, M.; et al. Temporary hospitals in times of the COVID pandemic. An example and a practical view. Rev. Española Quimioter. 2021, 34, 280–288. [Google Scholar] [CrossRef] [PubMed]
- Paparella, R.; Caini, M. Sustainable Design of Temporary Buildings in Emergency Situations. Sustainability 2022, 14, 8010. [Google Scholar] [CrossRef]
- Pan, W.; Zhang, Z. Evaluating Modular Healthcare Facilities for COVID-19 Emergency Response—A Case of Hong Kong. Buildings 2022, 12, 1430. [Google Scholar] [CrossRef]
- Smolova, M.; Smolova, D. Emergency architecture. Modular construction of healthcare facilities as a response to pandemic outbreak. E3S Web Conf. 2021, 274, 01013. [Google Scholar] [CrossRef]
- Park, B.; Cho, J.; Jeong, Y. Thermal performance assessment of flexible modular housing units for energy independence following disasters. Sustainability 2019, 11, 5561. [Google Scholar] [CrossRef]
- Navas-Martín, M.Á.; Oteiza, I.; Cuerdo-Vilches, T. Dwelling in times of COVID-19: An analysis on habitability and environmental factors of Spanish housing. J. Build. Eng. 2022, 60, 105012. [Google Scholar] [CrossRef]
- Grünewald, D. A Typological Analysis of Temporary Medical Structures before and during the COVID-19 Pandemic: How Can Design Help Us to Deal with Situations of Crisis and Emergency? Student report; Delft University of Technology: Delft, The Netherlands, 2021; Available online: http://resolver.tudelft.nl/uuid:9e58a6b2-8a18-4c27-b677-ce4b448e3d6f (accessed on 10 February 2023).
- Lawson, M.; Ogden, R.; Goodier, C. Design in Modular Construction; CRC Press, Taylor & Frances Group LLc: Boca Raton, FL, USA, 2014. [Google Scholar]
- Smith, R.E. Prefab Architecture: A Guide to Modular Design and Construction; John Wiley & Sons, Inc.: Hoboken, NJ, USA, 2010. [Google Scholar]
- AIA. Alternative Care Sites Preparedness. Available online: https://www.aia.org/resources/6283331-alternative-care-sitespreparedness-tools (accessed on 10 February 2023).
- Askar, R.; Bragança, L.; Gervásio, H. Adaptability of Buildings: A Critical Review on the Concept Evolution. Appl. Sci. 2021, 11, 4483. [Google Scholar] [CrossRef]
- Allam, Z.; Jones, D.S. Pandemic stricken cities on lockdown. Where are our planning and design professionals [now, then and into the future]? Land Use Policy 2020, 97, 104805. [Google Scholar] [CrossRef]
- Kolimárová, S. The phenomenon of temporary architecture—Its background and potential, Fenomén dočasnej architektúry—Východiská a potenciál. ALFA (Archit. Pap. Fac. Archit. Des. STU) 2000, 25, 37–43. [Google Scholar]
- Eriksson, A. Modular Healthcare Facilities: More than just Temporary Buildings. Hospital Times. 2020. Available online: https://www.hospitaltimes.co.uk/modular-healthcare-facilities-more-than-just-temporary-buildings/ (accessed on 10 January 2023).
- Ozdemir, I.; Dursunoglu, C.F.; Kara, B.Y.; Dora, M. Logistics of temporary testing centers for coronavirus disease. Transp. Res. Part C Emerg. Technol. 2022, 145, 103954. [Google Scholar] [CrossRef]
- Bielecki, M.; Patel, D.; Hinkelbein, J.; Komorowski, M.; Kester, J.; Ebrahim, S.; Rodriguez-Morales, A.J.; Memish, Z.A.; Schlagenhauf, P. Air travel and COVID-19 prevention in the pandemic and peri-pandemic period: A narrative review. Travel Med. Infect. Dis. 2020, 39, 101915. [Google Scholar] [CrossRef]
- Blišťanová, M.; Tirpáková, M.; Brůnová, L. Overview of safety measures at selected airports during the COVID-19 pandemic. Sustainability 2021, 13, 8499. [Google Scholar] [CrossRef]
- Dell’Isola, G.B.; Cosentini, E.; Canale, L.; Ficco, G.; Dell’Isola, M. Noncontact body temperature measurement: Uncertainty evaluation and screening decision rule to prevent the spread of COVID-19. Sensors 2021, 21, 346. [Google Scholar] [CrossRef]
- Pulella, A.; Sica, F. Situational awareness of large infrastructures using remote sensing: The Rome–Fiumicino Airport DURING the COVID-19 lockdown. Remote Sens. 2021, 13, 299. [Google Scholar] [CrossRef]
- Brussels Airport COVID-19 Test Center. Available online: https://brusselsairport.ecocare.center/ (accessed on 10 February 2023).
- Kumar, D.; Alam, M.; Memon, R.A.; Bhayo, B.A. A critical review for formulation and conceptualization of an ideal building envelope and novel sustainability framework for building applications. Clean. Eng. Technol. 2022, 11, 100555. [Google Scholar] [CrossRef]
- Suk, Y.K.; Schiler, M.; Kensek, K. Reflectivity and specularity of building envelopes: How materiality in architecture affects human visual comfort. Archit. Sci. Rev. 2017, 60, 256–265. [Google Scholar] [CrossRef]
- Bluyssen, P.M. The Indoor Environment Handbook: How to Make Buildings Healthy and Comfortable; Taylor & Francis: London, UK, 2009. [Google Scholar]
- CABE. Sustainable Places for Health and Well-Being; Commission for Architecture and the Built Environment (CABE): London, UK, 2009. [Google Scholar]
- Mushtaq, H.; Singh, S.; Mir, M.; Tekin, A.; Singh, R.; Lundeen, J.; VanDevender, K.; Dutt, T.; Khan, S.A.; Surani, S.; et al. The Well-Being of Healthcare Workers During the COVID-19 Pandemic: A Narrative Review. Cureus 2022, 14, e25065. [Google Scholar] [CrossRef]
- Peretti, C.; Schiavon, S. Indoor Environmental Quality Surveys. A Brief Literature Review; Center for the Built Environment: Berkeley, UC, 2011; Available online: https://escholarship.org/uc/item/0wb1v0ss (accessed on 10 February 2023).
- Dorizas, P.V.; De Groote, M.; Volt, J. The Inner Value of a Building; Buildings Performance Institute Europe (BPIE): Brussels, Belgium, 2018. [Google Scholar]
- Kunkel, S.; Kontonasiou, E.; Arcipowska, A.; Mariottini, F.; Atanasiu, B. Indoor Air Quality, Thermal Comfort and Daylight: Analysis of Residential Building Regulations in Eight EU Member States; Buildings Performance Institute Europe (BPIE): Brussels, Belgium, 2015. [Google Scholar]
- Galatioto, A.; Leone, G.; Milone, D.; Pitruzzella, S.; Franzitta, V. Indoor environmental quality survey: A brief comparison between different Post Occupancy Evaluation methods. Adv. Mater. Res. 2014, 864–867, 1148–1152. [Google Scholar] [CrossRef]
- Kennett, E.; Post Occupancy Evaluations. WBDG—Whole Building Design Guide, National Institute of Building Science. 2021. Available online: https://www.wbdg.org/resources/post-occupancy-evaluations (accessed on 10 February 2023).
- Qualifying and quantifying thermal comfort in highly glazed spaces. Available online: https://www.glassonweb.com/article/qualifying-and-quantifying-thermal-comfort-highly-glazed-spaces (accessed on 10 February 2023).
- Zheng, P.; Wu, H.; Liu, Y.; Ding, Y.; Yang, L. Thermal comfort in temporary buildings: A review. Build. Environ. 2022, 221, 109262. [Google Scholar] [CrossRef]
- EcoCare. Restoring Economic Continuity and Managing the Tourist Flow; Executive Summary, Ecolog Deutschland GmbH: Düsseldorf, Germany, 2020. [Google Scholar]
- Gudelj, A.; Jelčić, D.; Sopta. Privremena ovojnica u novom normalnom, istraživanje staklenih ovojnica u COVID-19 test centrima; Final Student Seminar Paper AT1; University of Zagreb, Faculty of Architecture: Zagreb, Croatia, 2023. [Google Scholar]
- DS Units in short. Available online: https://www.dsunits.be/?page=home&lang=en (accessed on 10 February 2023).
- Sadiki, E. (Ecolog GmbH, Ecolog Deutschland GmbH, Dusseldorf, Germany). Personal communication. 2022. [Google Scholar]






















| Operation Flow | |
|---|---|
| Website registration | Stewards in front appoint passengers to the correct line and registration QR code. (Administrators who are standing in these areas are sometimes also called stewards). Stewards can be replaced by visual signalization (lights, color signals). The help desk unit provides extra information and helps register. |
| Flow control | The entrance steward appoints passengers to the correct line based on their payment obligations. The cash desk is located on the right, and the help desk for people with special needs is on the left. The exit steward appoints passengers to correct available nurse cubicles based on their test type. |
| Active zone | Divided into individual health care administration cubicles and waiting halls. Health care supervisor location. Flexible administrational and medical operations:
|
| Final control | Steward in the last position checks every passenger registration and payment transaction to have 100% correct test center operation. |
| VISITORS Did you visit the test center in departures terminal or arrivals terminal? | |||||||||
| Frequency | Percent | ||||||||
| Arrivals terminal | 14 | 36.8 | |||||||
| Departures terminal | 24 | 63.2 | |||||||
| Total | 38 | 100 | |||||||
| ARRIVALS General first impression of the test center | |||||||||
| Very bad 1 | 2 | 3 | 4 | Excellent 5 | Total | Median | IQR | ||
| What is your general first impression of the test center? | f | 3 | 3 | 2 | 4 | 2 | 14 | 3.00 | 2.25 |
| % | 21.4 | 21.4 | 14.3 | 28.6 | 14.3 | 100.0 | |||
| Level of comfort in containers | |||||||||
| 1 | 2 | 3 | 4 | 5 | Total | Median | IQR | ||
| How would you rate the level of comfort in glass containers? | f | 1 | 4 | 6 | 2 | 1 | 14 | 3.00 | 1.25 |
| % | 7.1 | 28.6 | 42.9 | 14.3 | 7.1 | 100.0 | |||
| How would you rate the level of comfort in metal containers? | f | 0 | 0 | 6 | 5 | 3 | 14 | 4.00 | 1.25 |
| % | 0.0 | 0.0 | 42.9 | 35.7 | 21.4 | 100.0 | |||
| Level of privacy in glass containers | |||||||||
| 1 | 2 | 3 | 4 | 5 | Total | Median | IQR | ||
| How would you rate the level of privacy in glass containers? | f | 4 | 6 | 2 | 1 | 1 | 14 | 2.00 | 2.00 |
| % | 28.6 | 42.9 | 14.3 | 7.1 | 7.1 | 100.0 | |||
| How would you rate the level of privacy in metal containers? | f | 0 | 0 | 8 | 3 | 3 | 14 | 3.00 | 1.25 |
| % | 0.0 | 0.0 | 57.1 | 21.4 | 21.4 | 100.0 | |||
| Level of comfort for the workers | |||||||||
| 1 | 2 | 3 | 4 | 5 | Total | Median | IQR | ||
| In your opinion, how would you rate the level of comfort for the workers in glass containers? | f | 4 | 2 | 6 | 1 | 1 | 14 | 3.00 | 2.00 |
| % | 28.6 | 14.3 | 42.9 | 7.1 | 7.1 | 100.0 | |||
| In your opinion, how would you rate the level of comfort for the workers in metal containers? | f | 1 | 1 | 6 | 3 | 3 | 14 | 3.00 | 1.25 |
| % | 7.1 | 7.1 | 42.9 | 21.4 | 21.4 | 100.0 | |||
| DEPARTURES General first impression of the test center | |||||||||
| 1 | 2 | 3 | 4 | 5 | Total | Median | IQR | ||
| What was your general first impression of the test center? | f | 2 | 2 | 7 | 8 | 5 | 24 | 4.00 | 1.00 |
| % | 8.3 | 8.3 | 29.2 | 33.3 | 20.8 | 100.0 | |||
| Level of comfort in containers | |||||||||
| 1 | 2 | 3 | 4 | 5 | Total | Median | IQR | ||
| How would you rate the level of comfort in glass containers? | f | 2 | 7 | 11 | 2 | 2 | 24 | 3.00 | 1.00 |
| % | 8.3 | 29.2 | 45.8 | 8.3 | 8.3 | 100.0 | |||
| How would you rate the level of comfort in metal containers? | f | 0 | 5 | 10 | 5 | 4 | 24 | 3.00 | 1.00 |
| % | 0.0 | 20.8 | 41.7 | 20.8 | 16.7 | 100.0 | |||
| Level of privacy in glass containers | |||||||||
| 1 | 2 | 3 | 4 | 5 | Total | Median | IQR | ||
| How would you rate the level of privacy in glass containers? | f | 5 | 9 | 6 | 2 | 2 | 24 | 2.00 | 1.00 |
| % | 20.8 | 37.5 | 25.0 | 8.3 | 8.3 | 100.0 | |||
| How would you rate the level of privacy in metal containers? | f | 0 | 5 | 12 | 3 | 4 | 24 | 3.00 | 1.00 |
| % | 0.0 | 20.8 | 50.0 | 12.5 | 16.7 | 100.0 | |||
| Level of comfort for the workers | |||||||||
| 1 | 2 | 3 | 4 | 5 | Total | Median | IQR | ||
| In your opinion, how would you rate the level of comfort for the workers in glass containers? | f | 3 | 6 | 11 | 2 | 2 | 24 | 3.00 | 1.00 |
| % | 12.5 | 25.0 | 45.8 | 8.3 | 8.3 | 100.0 | |||
| In your opinion, how would you rate the level of comfort for the workers in metal containers? | f | 1 | 4 | 11 | 3 | 5 | 24 | 3.00 | 1.00 |
| % | 4.2 | 16.7 | 45.8 | 12.5 | 20.8 | 100.0 | |||
| EMPLOYEES Did you work in the test center in departures terminal or arrivals terminal? | |||||||||
| Frequency | Percent | ||||||||
| Arrivals terminal | 15 | 32.6 | |||||||
| Departures terminal | 31 | 67.4 | |||||||
| Total | 46 | 100.0 | |||||||
| ARRIVALS Did/Do you work in glass containers? | |||||||||
| Frequency | Percent | ||||||||
| no | 0 | 0.0 | |||||||
| yes | 15 | 100.0 | |||||||
| Total | 15 | 100.0 | |||||||
| For how long have you been working in glass containers? | |||||||||
| Frequency | Percent | ||||||||
| 3–6 months | 5 | 33.3 | |||||||
| 6–12 months | 7 | 46.7 | |||||||
| more than 1 year | 3 | 20.0 | |||||||
| Total | 15 | 100.0 | |||||||
| On average, for how long have you been working in glass containers each day? | |||||||||
| Frequency | Percent | ||||||||
| 1–3 h | 5 | 33.3 | |||||||
| 3–6 h | 8 | 53.3 | |||||||
| more than 6 h | 2 | 13.3 | |||||||
| Total | 15 | 100.0 | |||||||
| Descriptive statistics | |||||||||
| Very bad 1 | 2 | 3 | 4 | Excellent 5 | Total | Median | IQR | ||
| How would you rate the level of comfort in glass containers during warm and sunny weather? | f | 1 | 4 | 6 | 3 | 1 | 15 | 3.00 | 2.00 |
| % | 6.7 | 26.7 | 40.0 | 20.0 | 6.7 | 100.0 | |||
| How would you rate the level of comfort in glass containers during cold weather? | f | 1 | 4 | 6 | 3 | 1 | 15 | 3.00 | 2.00 |
| % | 6.7 | 26.7 | 40.0 | 20.0 | 6.7 | 100.0 | |||
| How would you rate the level of comfort in glass containers during bad weather (strong wind, snow.…)? | f | 1 | 4 | 6 | 3 | 1 | 15 | 3.00 | 2.00 |
| % | 6.7 | 26.7 | 40.0 | 20.0 | 6.7 | 100.0 | |||
| How would you rate the level of privacy in glass containers? (general privacy) | f | 3 | 6 | 3 | 2 | 1 | 15 | 2.00 | 1.00 |
| % | 20.0 | 40.0 | 20.0 | 13.3 | 6.7 | 100.0 | |||
| EMPLOYEES/Departures/Glass container Did/Do you work in glass containers? | |||||||||
| Frequency | Percent | ||||||||
| no | 10 | 32.3 | |||||||
| yes | 21 | 67.7 | |||||||
| Total | 31 | 100.0 | |||||||
| For how long have you been working in glass containers? | |||||||||
| Frequency | Percent | ||||||||
| 0–3 months | 3 | 14.3 | |||||||
| 3–6 months | 7 | 33.3 | |||||||
| 6–12 months | 4 | 19.0 | |||||||
| more than 1 year | 7 | 33.3 | |||||||
| Total | 21 | 100.0 | |||||||
| On average, for how long have you been working in glass containers each day? | |||||||||
| Frequency | Percent | ||||||||
| 0–1 h | 3 | 14.3 | |||||||
| 1–3 h | 4 | 19.0 | |||||||
| 3–6 h | 6 | 28.6 | |||||||
| more than 6 h | 8 | 38.1 | |||||||
| Total | 21 | 100.0 | |||||||
| Descriptive statistics | |||||||||
| Very bad 1 | 2 | 3 | 4 | Excellent 5 | Total | Median | IQR | ||
| How would you rate the level of comfort in glass containers during warm and sunny weather? | f | 1 | 6 | 8 | 5 | 1 | 21 | 3.00 | 2.00 |
| % | 4.8 | 28.6 | 38.1 | 23.8 | 4.8 | 100.0 | |||
| How would you rate the level of comfort in glass containers during cold weather? | f | 2 | 5 | 8 | 5 | 1 | 21 | 3.00 | 2.00 |
| % | 9.5 | 23.8 | 38.1 | 23.8 | 4.8 | 100.0 | |||
| How would you rate the level of comfort in glass containers during bad weather (strong wind, snow.…)? | f | 0 | 7 | 8 | 5 | 1 | 21 | 3.00 | 2.00 |
| % | 0.0 | 33.3 | 38.1 | 23.8 | 4.8 | 100.0 | |||
| How would you rate the level of privacy in glass containers? (general privacy) | f | 2 | 7 | 8 | 3 | 1 | 21 | 3.00 | 1.00 |
| % | 9.5 | 33.3 | 38.1 | 14.3 | 4.8 | 100.0 | |||
| EMPLOYEES/Departures/Metal containers Did/Do you work in metal containers? | |||||||||
| Frequency | Percent | ||||||||
| no | 14 | 45.2 | |||||||
| yes | 17 | 54.8 | |||||||
| Total | 31 | 100.0 | |||||||
| For how long have you been working in metal containers? | |||||||||
| Frequency | Percent | ||||||||
| 0–3 months | 3 | 17.6 | |||||||
| 3–6 months | 6 | 35.3 | |||||||
| 6–12 months | 7 | 41.2 | |||||||
| more than 1 year | 1 | 5.9 | |||||||
| Total | 17 | 100.0 | |||||||
| On average, for how long have you been working in metal containers each day? | |||||||||
| Frequency | Percent | ||||||||
| 0–1 h | 2 | 11.8 | |||||||
| 1–3 h | 8 | 47.1 | |||||||
| 3–6 h | 5 | 29.4 | |||||||
| more than 6 h | 2 | 11.8 | |||||||
| Total | 17 | 100.0 | |||||||
| Descriptive statistics | |||||||||
| Very bad 1 | 2 | 3 | 4 | Excellent 5 | Total | Median | IQR | ||
| How would you rate the level of comfort in metal containers during warm and sunny weather? | f | 2 | 3 | 5 | 6 | 1 | 17 | 3.00 | 2.00 |
| % | 11.8 | 17.6 | 29.4 | 35.3 | 5.9 | 100.0 | |||
| How would you rate the level of comfort in metal containers during cold weather? | f | 2 | 3 | 4 | 6 | 2 | 17 | 3.00 | 2.00 |
| % | 11.8 | 17.6 | 23.5 | 35.3 | 11.8 | 100.0 | |||
| How would you rate the level of comfort in metal containers during bad weather (strong wind, snow.…)? | f | 1 | 3 | 5 | 7 | 1 | 17 | 3.00 | 1.50 |
| % | 5.9 | 17.6 | 29.4 | 41.2 | 5.9 | 100.0 | |||
| How would you rate the level of privacy in metal containers? (general privacy) | f | 1 | 2 | 7 | 3 | 4 | 17 | 3.00 | 1.50 |
| % | 5.9 | 11.8 | 41.2 | 17.6 | 23.5 | 100.0 | |||
Disclaimer/Publisher’s Note: The statements, opinions and data contained in all publications are solely those of the individual author(s) and contributor(s) and not of MDPI and/or the editor(s). MDPI and/or the editor(s) disclaim responsibility for any injury to people or property resulting from any ideas, methods, instructions or products referred to in the content. |
© 2023 by the authors. Licensee MDPI, Basel, Switzerland. This article is an open access article distributed under the terms and conditions of the Creative Commons Attribution (CC BY) license (https://creativecommons.org/licenses/by/4.0/).
Share and Cite
Muraj, I.; Gudelj, A.; Jelčić, D.; Sopta, M. Evaluation of Temporary COVID-19 Testing Sites at Brussels Airport, Belgium: Users’ Comfort and Privacy. Buildings 2023, 13, 985. https://doi.org/10.3390/buildings13040985
Muraj I, Gudelj A, Jelčić D, Sopta M. Evaluation of Temporary COVID-19 Testing Sites at Brussels Airport, Belgium: Users’ Comfort and Privacy. Buildings. 2023; 13(4):985. https://doi.org/10.3390/buildings13040985
Chicago/Turabian StyleMuraj, Iva, Anđela Gudelj, Duje Jelčić, and Martina Sopta. 2023. "Evaluation of Temporary COVID-19 Testing Sites at Brussels Airport, Belgium: Users’ Comfort and Privacy" Buildings 13, no. 4: 985. https://doi.org/10.3390/buildings13040985
APA StyleMuraj, I., Gudelj, A., Jelčić, D., & Sopta, M. (2023). Evaluation of Temporary COVID-19 Testing Sites at Brussels Airport, Belgium: Users’ Comfort and Privacy. Buildings, 13(4), 985. https://doi.org/10.3390/buildings13040985

