You are currently viewing a new version of our website. To view the old version click .
Buildings
  • Article
  • Open Access

21 April 2023

Thermal Performance Assessment of Envelope Retrofits for Existing School Buildings in a Hot–Humid Climate: A Case Study in Chennai, India

,
,
and
1
Manipal School of Architecture and Planning, Manipal Academy of Higher Education, Manipal 576104, India
2
Faculty of Architecture and Planning, Anna University, Chennai 600025, India
3
Department of Architecture, Thiagarajar College of Engineering, Madurai 625015, India
4
Department of Architecture, School of Planning and Architecture, Vijayawada 520008, India
This article belongs to the Section Building Materials, and Repair & Renovation

Abstract

This study aims to propose building envelope retrofit packages for existing naturally ventilated school buildings in the hot–humid climatic region of Chennai, India. Indoor thermal parameters were collected through field studies from nine sample classrooms of a selected school building in May 2019, between 9.00 am and 4.00 pm. The thermal performance assessment of the existing building was performed by examining the discomfort hours using the CBE thermal comfort tool. Envelope retrofit strategies gathered from the literature and building standards were applied and studied through simulation. The findings reveal the enormous potential to increase the thermal comfort of existing school buildings through envelope retrofit measures. The results demonstrate that the whole-building temperature can be reduced up to 3.2 °C in summer and up to 3.4 °C in winter. Implementing retrofit measures to the building envelopes of existing buildings will help school owners to increase the comfortable hours of whole buildings by up to 17%. In comparison, annual energy savings of up to 13% for the whole building can be made by enhancing the thermal performance of the building envelope. The findings will also help architects to optimise thermal performance and energy usage with minimal interventions.

1. Introduction

The International Energy Agency (IEA) estimates that the construction industry is responsible for 36% of global energy demand and 37% of global energy and process-related emissions [1]. Buildings are generally designed to function for over 50 years, but they occasionally require retrofit interventions to optimise their overall performance. Building retrofit interventions have enormous potential to reduce energy costs and increase thermal comfort [2]. In response to the recent coronavirus disease 2019 (COVID-19) crisis, many countries have implemented stimulus programs such as increased incentives to improve building efficiency and solutions for smart energy management aimed at the construction sector. The IEA has proposed programs such as commissioning affordable and efficient retrofits to schools, housing for the poor, offices, and medical facilities [3]. In September 2020, the Global Alliance for Buildings and Construction (GABC) called for incorporating building renovation and modernisation tools and techniques into COVID-19 recovery plans. GABC has recommended a huge renovation wave driven by specific support processes for the energy efficiency of existing buildings, designed in collaboration with national and local partners [3]. Most educational buildings in developing countries like India are constructed without consideration for the climate or the occupants’ comfort. A field investigation of modern buildings in over 30 educational campuses in Chennai in 2019 revealed that passive design strategies needed to be optimised during the design stage, since architects or building professionals were not involved in designing these structures to be sensitive to the microclimate. A study by the United Nations International Children’s Emergency Fund declares that as of 2018, there were around 1.5 million schools in India. These children spend their prime time in existing school buildings built at least 15–20 years ago. Due to the recent COVID-19 pandemic, many school buildings have been unoccupied for over two years, which has led to demands for renovation work to ensure regular functioning and occupancy. In addition, demand has risen for more comfortable spaces and a better lifestyle.
Retrofitting the existing building stock represents a significant way to conserve energy [2]. Small interventions can create considerable thermal comfort and energy savings. For air-conditioned buildings, prime retrofitting initiatives include upgrading the lighting systems, sealing air leakages, and improving insulation and heating, ventilation, and air conditioning (HVAC) system efficiency [4]. However, for naturally ventilated buildings, improving the building envelope via window shading and passive strategies can reduce heat gain significantly, affecting the occupants’ comfort and building energy performance [5]. Studies have revealed that children have a higher temperature tolerance than that defined by standards. The PMV model predicted a neutral temperature of 25.5 °C, which is significantly lower compared to the neutral temperature of 30.2 °C estimated using the thermal sensation vote (TSV) method [6]. Therefore, air conditioning may not be necessary for primary schools in hot–humid climates, as it could result in needless energy usage and carbon emissions [7]. To avoid the shortcomings of retrofitting practices, studies have suggested that rather than undertaking ad hoc retrofitting of facades, a comprehensive building retrofit approach should balance and consider elements including human health, energy savings, and building envelope [8]. Recent studies have suggested various retrofit strategies for buildings in hot–humid climates. For example, increasing the opening size to 20 to 30% of operable wall area positively impacts natural ventilation in classrooms, which is necessary for achieving thermal comfort [9]. In addition, roof reflective paint coating expanded polystyrene (EPS) insulation over or under decking and 150 mm rock wool insulation is suggested to reflect solar radiation on the roof. Exterior wood cladding of 15 mm or polyvinylchloride (PVC) outer cladding of 10 mm is recommended to insulate the wall from solar radiation [10]. Further, the impacts of additional landscaping around the building and night ventilation have been explored [11]. In a recent study, the utilisation of split-unit air conditioning systems realised a 39% saving in energy; according to net present value analysis, the suggested method was also economically viable [12]. In addition to the many retrofit studies in the residential sector [13,14,15,16,17,18,19,20], studies have also been conducted in the education sector [21,22,23,24]. Furthermore, studies that explore the thermal performance arising from retrofitting existing naturally ventilated schools in hot–humid climate regions in India are in their infancy [25,26,27,28]. Enhancing indoor thermal performance through envelope retrofit of existing buildings is essential and has enormous potential [29]. The present work aims to propose building envelope retrofit packages by applying envelope retrofit measures suggested by the literature, the Indian standard code books, and climate consultant software, which would increase thermal performance and lower energy usage of existing school buildings in hot–humid climates. Suitable retrofit interventions will be iterated through energy simulation studies and tested for their implications. The resulting framework will assist stakeholders in decision making and ensure students are taught in enhanced built environments. The study examines the role of building envelope retrofits in achieving adaptable thermal comfort in school buildings in hot–humid climates using simulation tools. In the case of air-conditioned classrooms, the study further examines the future possibility of enhancing envelope performance as per India’s building energy code. The following are the objectives of this study: (1) to explore technological interventions for retrofitting the building envelope to improve indoor thermal performance; (2) to assess the indoor thermal performance and comfort scenario of classrooms of an existing educational building; (3) to evolve optimised systems through iterations of a parametric predictive model to achieve adaptive thermal comfort.

2. Materials and Methods

The primary research method adopted in this study is quantitative. In the first phase, a typical school building was identified. Data on the design parameters, envelope materials, window–wall ratio (WWR), and shading devices of the building were collected through a field survey. The operating schedule of the school was then gathered, and the outdoor and indoor climatic parameters were monitored and analysed. In the second phase, energy simulations were carried out with the generated model using Design Builder software, an advanced user interface for Energy Plus. The energy simulation model was validated using real-time data. In the third phase, the simulated proposed retrofit strategies were applied to the reference building and analysed for their implications. Suitable retrofit options for naturally ventilated and air-conditioned buildings were gathered from the literature and the Indian codebooks of the National Building Code of India (NBC, 2016) [30] and the Energy Conservation Building Code (ECBC 2017) [31]. Retrofit solutions optimising the building envelope for enhanced thermal performance were formulated through various iterations.

2.1. Study Area

Chennai is the capital city of Tamil Nadu, India (13.04° N, 80.17° E). It is located on the eastern coast abutting the Bay of Bengal. According to a list provided by the Indian government’s Ministry of Education, Chennai is the third largest educational centre in the country. It is home to numerous prestigious academic and research institutes. Chennai is hot and humid, with summer temperatures well over the thermal comfort threshold and high humidity, especially during the peak summer months of April, May, and June. Climatic data from the Indian Society of Heating, Refrigerating, and Air conditioning Engineers (ISHRAE) for Chennai show that the yearly outdoor temperature ranges from 14.5 to 39.5 °C. During the academic year and working school hours (9.00–4.00 pm), the outdoor temperature ranges from 21.3 to 37.8 °C during the day in summer (June), with 32.1 °C the prevailing maximum outdoor temperature. In winter (January), the outdoor temperature is between 30.7 °C and 32.6 °C during the day, while 24.5 °C is the minimum prevailing outdoor temperature.
The relative humidity is generally very high, about 27–98%. The prevailing wind direction is southeast during the summer and southwest and northeast during the monsoon months. The southwest monsoon starts in June (52 mm) and ends in August (78 mm). The northeast monsoon is from October (100 mm) to December (142 mm). The American Society of Heating, Refrigerating and Air-Conditioning Engineers (ASHRAE) standard 55 for adaptive thermal comfort shows that the 90% acceptability upper limit temperature is 32.1 °C at 1.2 m/s for Chennai climate conditions [32]. Climate analysis indicates that indoor temperatures in the hot–humid climate of Chennai remain steep during the summer months [33]. According to the results obtained from Climate Consultant software (version 6.0), which are plotted on the psychrometric chart for the adaptive comfort model in ASHRAE 55-2010 [33], it can be inferred that only 21% of the school working hours fall under adaptive comfort. The results suggest using adaptive comfort ventilation strategies and reducing heat intake to increase comfort hours [33].

2.2. Details of the Reference Building

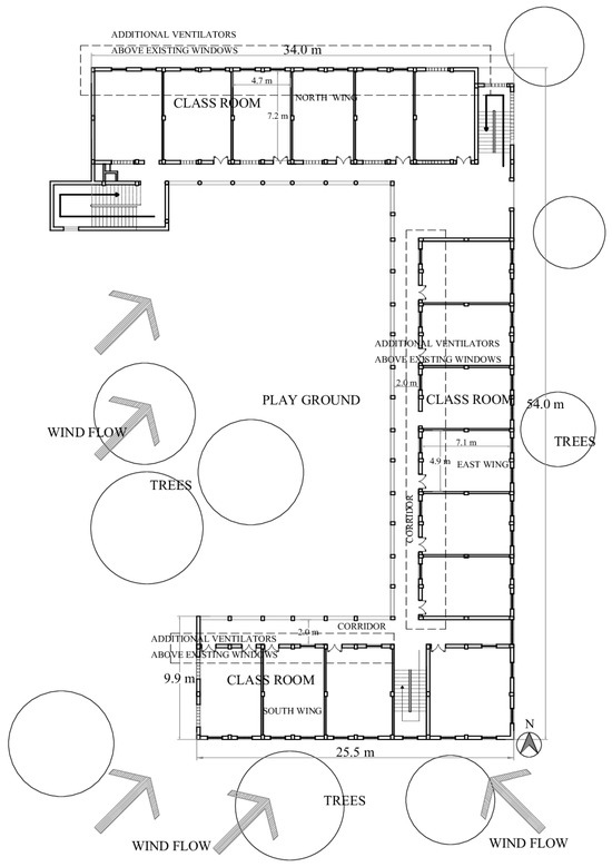
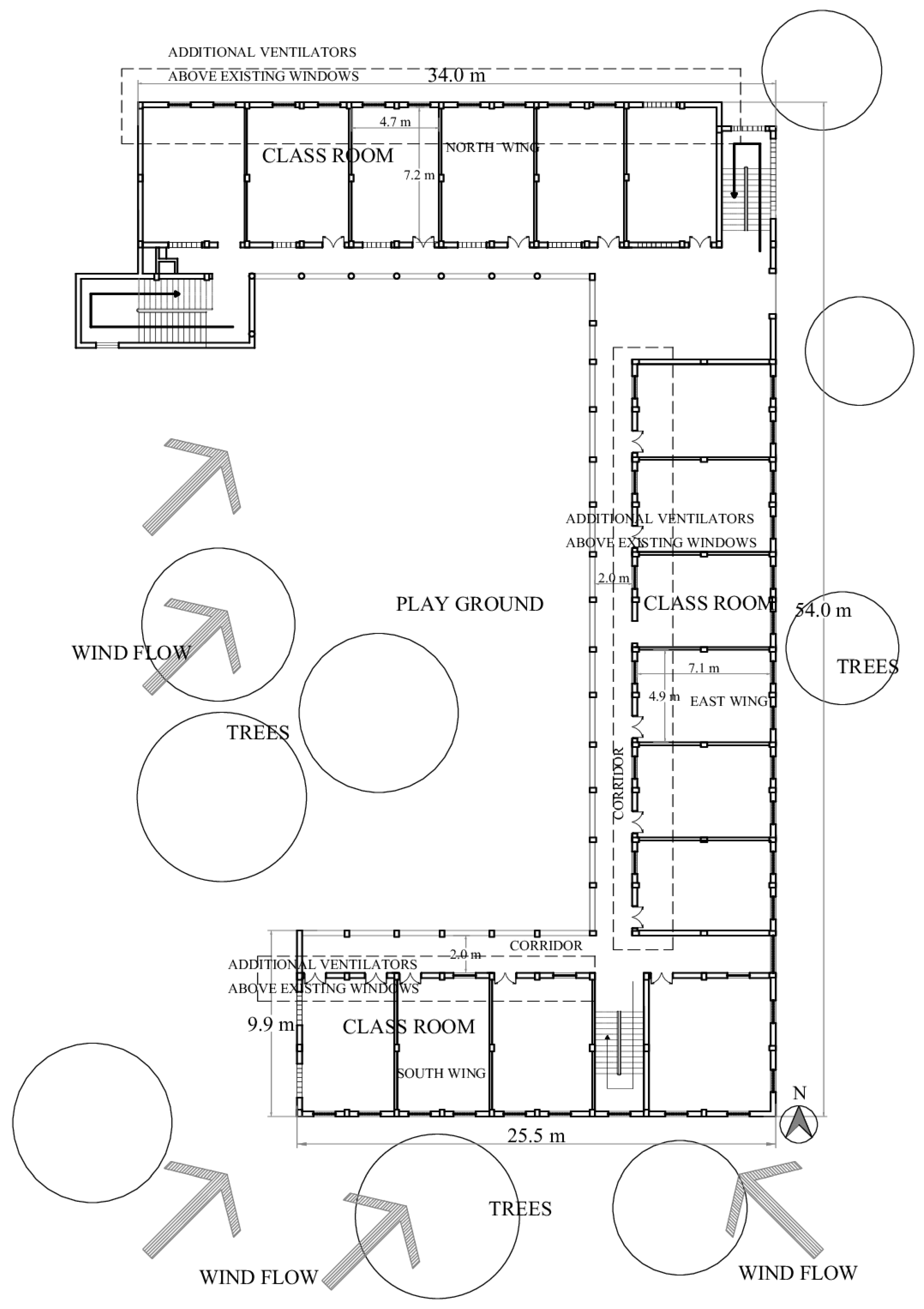
The experiment was conducted in a naturally ventilated classroom in an established typical school in Chennai. Many institutes have expanded their campus infrastructure since 1990 by building new structures with modern materials and technology to accommodate their growing requirements. These buildings are primarily ground-plus-two-story naturally ventilated structures. Only a few individual rooms, such as computer laboratories and the office area, are air-conditioned. In this study, a field investigation was carried out for one such school building in Chennai, as shown in Figure 1. The architectural design details and quantitative environmental data of the identified school building were collected to assess the thermal performance of the building envelope.
Figure 1. Plan and view of the surveyed reference school building. (a) Site plan; (b) Courtyard view of the school; (c) Second-floor plan with the instrument position in the classroom; (d) Classroom view with the instrument.
The school, built in 2009, is a three-story building planned around an open playground with trees and is part of a larger school campus. It has a U-shaped plan (34.0 × 54.0 m) with north, east, and south wings, as shown in Figure 1. It has a 7.1 m wide classroom and a 2.0 m wide corridor facing the playground. The building envelope is off-white with peach borders. The building is a framed structure with isolated column footings. The floor-to-floor height is 3.6 m in each of the three storeys. As per the field survey, the building envelope has the typical construction technology of the region, as in Table 1. The school operates five days per week from 9.00 am to 4.00 pm. The summer vacation is from mid-April until the end of May. There are also seasonal holidays of 10 days at the end of October and an additional 10 days in December.
Table 1. Boundary conditions of building envelope components.

2.3. Details of the Data Collection

The study recorded architectural and planning aspects through physical measurement and observation. The thermal performance of the case study building was assessed by monitoring the environmental parameters of air temperature (Ta, °C), globe temperature (Tg, °C), air velocity (Va, m/s), and relative humidity (RH, %) in the classrooms. Data on the indoor thermal comfort parameters were collected. The details of the instruments are in Table 2.
Table 2. Details of the instruments used during the field study.
The real-time data were validated with simulated data using Design Builder software (version 7.0.1.006). Suitable retrofit options recommended by the NBC 2016 [30] and industry practices were applied through building energy simulation studies and tested for their implications for thermal performance. The indoor environmental parameters were monitored during May 2019 (summer), from 9.00 am to 4.00 pm, in the identified classrooms on each floor along the three cardinal directions. A thermo-anemometer was positioned in the middle of nine sample classrooms at 1.10 m from the finished floor level as per ASHRAE Standard 55-2020 [33]. Thermal environmental variables were recorded every half hour, and the data were continuously logged into a laptop to measure the indoor environment. The nine sample classrooms were naturally cross-ventilated, and no heating or cooling equipment was used. The floor area of the classrooms surveyed varied from 34.5 to 50.0 m2. The indoor environmental parameters were measured without occupants or mechanical fans.

2.4. Simulation Modelling

The case study building was modelled using Design Builder software, as shown in Figure 2, considering the existing construction details, materials, and systems. The boundary conditions of the simulation were also evaluated using Design Builder. The HVAC template “natural ventilation with no heating/cooling” was used to simulate the case study building. The activity of 1 met for sitting (reading), clothing insulation of 0.5 clo for summer clothing, and 1 clo for winter were considered as per ASHRAE standards for the hot–humid climates for annual discomfort performance analysis. A ventilation rate of five air changes per hour was considered, as recommended by NBC 2016 for schools. The windows and doors were considered to be 100 % open. The simulation of the reference building showed that the indoor air temperature (Ta) ranges from 24.80 to 37.81 °C annually, while the operative temperature ranges from 25.02 to 37.80 °C annually. This range is above the thermal comfort zone defined by the ASHRAE 55 adaptive model of 80% acceptability status (23.9–33.1 °C) and 90% acceptability status (24.9–32.1 °C) for Chennai. A base model was created to estimate the annual energy consumption of conventional construction practices for the case study project without considering retrofit strategies.
Figure 2. Simulation model of the reference building.

2.5. Simulation Strategies for Retrofitting Interventions

The selected building has a gross roof area of 1024 m2, a wall area of 2373 m2, and a fenestration area of 548.5 m2. With a classroom area of 2013.2 m2, the building requires 283,300 kWh of energy annually if it uses split-unit air conditioning with a cooling setpoint of 24 °C and minimum fresh air of 5 L/s per person. According to studies, occupants in naturally ventilated learning spaces have greater thermal tolerance levels and can tolerate a wider range of temperatures than occupants in air-conditioned learning spaces [34,35,36,37]. Retrofit interventions would improve the building’s thermal performance and reduce its dependency on mechanical cooling. Such retrofit measures would also help to enhance occupants’ thermal comfort, lower cooling expenditures, and increase energy security. Retrofitting the existing school would impose limitations on the options for modification measures. The base case (BC) building was iterated for two retrofitting scenarios. The first scenario entails enhancing the existing naturally ventilated state. The second scenario adapts envelope U-values recommended by the Bureau of Energy Efficiency of India with the consideration that the classrooms alone are air-conditioned.

2.5.1. Scenario 1: Retrofit Measures for Naturally Ventilated Building

The first scenario considers up to two iterations of retrofit measures for each building envelope element in Table 1. The retrofit measures (RM) (Table 3) proposed to reduce heat ingress and increase cross-ventilation are discussed below.
Table 3. Discomfort hours at each floor level and building orientation for various envelope retrofit strategies.
  • For the roof, exterior reflective tile (RM1) and extensive green roof (RM2) are included to reduce heat ingress.
  • For the walls, light-colour painting (RM3) and shading of west walls with trees (RM4) are considered.
  • For the windows, 450 mm concrete fins are added to the north and south walls (RM5), and an aluminium louver in front of the east wall and a brick wall blocking the west window opening are employed (RM6).
  • To facilitate stack and night ventilation, the percentage of fenestration is increased. The prevailing wind direction is southeast and southwest from March–September in Chennai. The wind passes through the central courtyard towards the south-side trees (Figure 3). The size of the windows is retained along the south wall. Further, the WWR is increased to 40% (RM7) and 60% (RM8) on the leeward side along the corridor on the east wing, south wing, and north side of the north wing for the entire classroom length. The night ventilation and ceiling fan during the day are applied as a retrofit option (RM9).
    Figure 3. Additional ventilator locations and wind direction.
  • Reflective glass (RM10) and double glazing (RM11) are considered for windows.
In addition to this, two integrated retrofit packages were devised. Affordable retrofit package with the combination of RM1 + RM3 + RM5 + RM7 + RM10 measures, and advanced retrofit package with the measures of RM2 + RM3 + RM4 + RM5 + RM6 + RM8 + RM9 + RM11 were considered. The simulation study was iterated for the integrated design of the combination of the retrofit measures for the various building elements discussed in Section 3.

2.5.2. Scenario 2: Retrofit Measures for an Air-Conditioned Building

In the second scenario, the maximum U values prescribed by ECBC 2017 are considered for the building envelopes. The ECBC has prescribed three energy performance standards, named ECBC, ECBC+, and Super ECBC, for each building typology and climate type [31]. Each building component has a defined U-value per each standard of ECBC, as below.
  • The prescriptive requirements for roof assembly of school buildings in warm–humid climates are suggested to be 0.47 (ECBC), 0.26 (ECBC+), and 0.20 W/m2K (Super ECBC). The roof insulation must be installed externally as part of the roof assembly instead of as a false ceiling.
  • For opaque external walls, the maximum U-values of the assembly are suggested to be 0.85 (ECBC), 0.63 (ECBC+), and 0.22 W/m2K (Super ECBC). However, ECBC suggests that in all climatic zones, excluding the cold climatic zone, opaque external walls of unconditioned buildings of no-star hotels, healthcare buildings, and school buildings must have a maximum assembly U-value of 0.8 W/m2K.
  • The vertical fenestration assembly U-value and solar heat gain coefficient (SHGC) must be 3.0 (ECBC) and 2.2 (ECBC+ and Super ECBC). The maximum SHGC of all orientations is 0.27 (ECBC) and 0.25 (ECBC+ and Super ECBC). The maximum WWR must be 40%, and the minimum visible light transmittance is 0.27 [31].
The simulated values and the field study results of the sample classrooms were compared using regression analysis. The R-square was found to be 0.8764, indicating a very strong and good association of correlation (Figure 4). The validation was checked using regression analysis for each sample classroom so that further retrofit iterations simulated in the model would be close to the actual results for the building.
Figure 4. Regression graph for the sample classrooms.

3. Results and Discussions

The building does not have a west wing. Therefore, the northwest and southwest corner classrooms were considered for the west orientation simulation study. The whole-building analysis of the simulation showed that the reference building is comfortable up to 76% of the 90% acceptability status of the ASHRAE 55 adaptive model [32]. April–August months are comfortable for less than 70% of the time (Figure 5). The simulation study results indicate that the reference building provides a comfortable environment for its occupants for a significant portion of the year. Specifically, the north, east, and south wings are comfortable 79%, 83%, and 82% of the time, respectively. However, the northwest and southwest sides are only comfortable 66% and 71% of the time, respectively, annually. Furthermore, the study also reveals that the comfort level varies by floor. The ground floor offers the most comfortable environment 82% of the time, followed by the first floor at 79% and the second floor with 67% per year.
Figure 5. Number of comfortable working hours per month.

3.1. Simulation Performance for Naturally Ventilated Retrofit

A fundamental strategy for lowering the room air temperature of a low-rise building in the equatorial zone is to reduce heat gain through the roof [38]. The BC building’s second (topmost) floor showed the maximum temperatures and discomfort hours. The top level is the most crucial for achieving thermal comfort due to heat gain from the roof [38]. The northwest and southwest classrooms at all levels also had the most discomfort hours due to west exposure. The various retrofit interventions were simulated to increase cross-ventilation, reduce heat ingress, and increase window shading. The thermal performances were compared with the existing reference building for two retrofit packages, as mentioned in Section 2.5.1. The most impactful retrofits for reducing the discomfort hours were on the second floor due to roof retrofits (RM1 and RM2), up to 62%, and lower floors due to west wall retrofits (RM4 and RM6), up to 65% (Table 3 and Figure 6). It was observed that, as an independent retrofit measure, adding concrete fins to the north and south wall (RM5) had the adverse effect of increasing the discomfort hours. Moreover, increasing WWR (RM7 and RM8) had a minimal impact in reducing discomfort hours across all floors Figure 6.
Figure 6. Impact of various envelope retrofit strategies.
Considering the 9.00 am–4.00 pm working hours, Figure 7 shows the trend of discomfort hours for the two retrofit packages for each orientation and floor level. The whole-building simulation study showed a 7% increase in comfort hours due to the affordable retrofit package and a 17% increase for the advanced retrofit package. There are increased discomfort hours on the ground floor in the cardinal directions for the affordable retrofit package. As an integrated measure, the crucial second floor (up to 39%) and the west wall (up to 87%) had the highest reductions in discomfort hours.
Figure 7. Decrease in discomfort hours with envelope retrofit strategies.
The peak winter week appears in the fourth week of January. The affordable package slightly reduces the temperature by 0.41 to 0.75 °C in the afternoon session. The advance retrofit considerably reduces temperatures by 1.02 to 3.38 °C from morning (11.00 am) to evening (4.00 pm) (Figure 8). The peak summer week occurs in the second week of June, once the school reopens for the academic year after a summer vacation break. The affordable retrofit package shows an impact on the reduction in the temperature around 0.8 to 1.18 °C from 1.00 to 4.00 pm. A study in Nigeria showed a reduction of up to 3 °C with minimum retrofit interventions [39]. The advance retrofit package significantly reduces the temperature by about 1.32 to 3.16 °C through the working hours of 9.00 am to 4.00 pm (Figure 9). Though there is a considerable reduction in temperature, the retrofit measures for naturally ventilated conditions cannot completely address the occupant discomfort during the summer of hot, humid climatic regions. Therefore, air conditioning in the classrooms during summer might be a possible solution to attain comfortable conditions with minimal energy usage. After applying the retrofit strategies, it was found that the case study building with a classroom area of 2013.2 m2 would require 43,490 kWh of energy annually, considering the uncomfortable months of April, June, July and August, if split-unit air conditioning with a cooling set-point of 24 °C and minimum fresh air of 5 litres/second per person were used. This equates to a 15.35% energy reduction compared to the BC. According to the literature, active and passive measures should be integrated into building design to maximise energy efficiency [40].
Figure 8. Reduction in temperature from the BC in a winter week.
Figure 9. Reduction in temperature from the BC in a summer week.

3.2. Simulation Performance for Air-Conditioned Classroom Retrofit

According to a study by [41], envelopes designed to meet the Energy Conservation Building Code (ECBC) criteria provide a significantly improved thermal comfort environment for workers, allowing them to spend 60% of their working hours in comfort, compared to the traditional envelope specifications used in India. The study also found that implementing ECBC building envelopes improves energy efficiency in buildings [41]. In this study, classrooms on the northwest side were impacted the most, with 14% (ECBC), 16% (ECBC+), and 17% (Super ECBC) increases in energy savings from the BC, as illustrated in Figure 10. The energy savings were similar for the three ECBC packages. Higher results have been found in other composite climate studies, which have proposed improved glazing and roof insulation for increased thermal comfort [41].
Figure 10. Annual cooling load reduction in the second-floor sample classrooms with the ECBC envelope options.

4. Conclusions

This study examined several retrofit strategies for suitable interventions to help stakeholders to provide an enhanced built environment for students. The study analysed simulation results to select retrofit options that could improve the indoor thermal environment for the hot–humid region of Chennai. Increased cross-ventilation, decreased heat infiltration, and the addition of shading were suggested for naturally ventilated retrofit. Through integrated retrofit measures, the indoor operative temperature was lowered by up to 3.2 °C in summer and 3.4 °C in winter, compared to the Base Case building. Despite implementing retrofit measures, it may not be sufficient to completely alleviate occupant discomfort in hot and humid regions during the summer season. As a result, using air-conditioning in classrooms during the summer could be a viable solution to achieve comfortable conditions while minimising energy consumption. Implementing retrofit measures and passive design principles to remodel the building could help school owners to increase comfortable hours by up to 17%. In the given case study scenario, the second floor showed the greatest reduction in discomfort hours, up to 62%, due to roof retrofits, while the lower floors saw up to a 65% reduction in discomfort hours from west wall retrofits. However, the addition of concrete fins to the north and south walls had a negative effect on discomfort hours when implemented as a standalone retrofit measure. Additionally, increasing the window-to-wall ratio had minimal impact on reducing discomfort hours across all floors. When the envelope follows the ECBC code compliance, up to 13% of the whole building’s energy consumption is saved annually. The findings of this study will help existing school building owners optimise their schools’ thermal performance and energy usage with minimum technical interventions. School stakeholders can decide on the appropriate strategies based on regional practices, suitability, and affordability. This research could help builders, facility managers, and architects evaluate and select the most effective envelope solution for improved comfort. On the case-by-case basis of the condition of the building, the budget constraint of the client, and the requirement of the occupant, the decision can be made by the builders, facility managers, and architects at the individual level from the envelope solutions suggested in the current study, either as an individual retrofit measure or as a combination of the retrofit measures depending on site condition and client requirements. This study is limited to two combinations of retrofit packages. Further, multiple combinations of the retrofit measures can be iterated to visualise the trends of the impacts of the different retrofit elements.
Since the study was conducted during summer vacation, subjective surveys of occupants could not be gathered. As a result, the study is limited to a quantitative survey. The payback period of the retrofit will be analysed by the authors in future research. Augmenting prior findings regarding the positive impact of energy retrofitting on existing buildings, the findings of this study indicate that energy retrofits are effective at a regional level. Policy decisions should be made to facilitate local bodies to mandate code compliance. Further studies can be conducted on other retrofit measures, such as acoustics and air quality. Research on the economic feasibility of new innovative materials to attain the U-value for code compliance set by the ECBC can also be conducted.

Author Contributions

Conceptualization, V.M.S.; methodology, V.M.S.; software, V.M.S.; validation, V.M.S.; formal analysis, V.M.S.; investigation, V.M.S.; resources, V.M.S.; data curation, V.M.S. and C.I.; writing—original draft preparation, V.M.S.; writing—review and editing, V.M.S., C.I., V.J. and V.R.; visualization, V.M.S.; supervision, C.I., V.J. and V.R. All authors have read and agreed to the published version of the manuscript.

Funding

This research received no external funding.

Data Availability Statement

The data presented in this study are available on request from the corresponding author.

Conflicts of Interest

The authors declare no conflict of interest.

Correction Statement

This article has been republished with a minor correction to the correspondence contact information. This change does not affect the scientific content of the article.

References

  1. United Nations Environment Programme. 2021 Global Status Report for Buildings and Construction—Towards a Zero-Emissions, Efficient and Resilient Buildings and Construction Sector; United Nations Environment Programme: Nairobi, Kenya, 2021. [Google Scholar]
  2. Amini Toosi, H.; Lavagna, M.; Leonforte, F.; del Pero, C.; Aste, N. Life Cycle Sustainability Assessment in Building Energy Retrofitting; A Review. Sustain. Cities Soc. 2020, 60, 102248. [Google Scholar] [CrossRef]
  3. United Nations Environment Programme. Renewables 2020 Global Status Report. Global Status Report for Buildings and Construction: Towards a Zero-Emission, Efficient and Resilient Buildings and Construction Sector; United Nations Environment Programme: Nairobi, Kenya, 2020; p. 367. [Google Scholar]
  4. Mirrahimi, S.; Mohamed, M.F.; Haw, L.C.; Ibrahim, N.L.N.; Yusoff, W.F.M.; Aflaki, A. The Effect of Building Envelope on the Thermal Comfort and Energy Saving for High-Rise Buildings in Hot-Humid Climate. Renew. Sustain. Energy Rev. 2016, 53, 1508–1519. [Google Scholar] [CrossRef]
  5. Bano, F.; Sehgal, V. Finding the Gaps and Methodology of Passive Features of Building Envelope Optimization and Its Requirement for Office Buildings in India. Therm. Sci. Eng. Prog. 2019, 9, 66–93. [Google Scholar] [CrossRef]
  6. Hamzah, B.; Mulyadi, R.; Amin, S.; Kusno, A. Adaptive Thermal Comfort of Naturally Ventilated Classrooms of Elementary Schools in the Tropics. IOP Conf. Ser. Earth Environ. Sci. 2020, 402, 2–10. [Google Scholar] [CrossRef]
  7. Munonye, C.; Ji, Y. Evaluating the Perception of Thermal Environment in Naturally Ventilated Schools in a Warm and Humid Climate in Nigeria. Build. Serv. Eng. Res. Technol. 2021, 42, 5–25. [Google Scholar] [CrossRef]
  8. Zuhaib, S.; Manton, R.; Griffin, C.; Hajdukiewicz, M.; Keane, M.M.; Goggins, J. An Indoor Environmental Quality (IEQ) Assessment of a Partially-Retrofitted University Building. Build. Environ. 2018, 139, 69–85. [Google Scholar] [CrossRef]
  9. Mba, E.J.; Okeke, F.O.; Okoye, U. Effects of Wall Openings on Effective Natural Ventilation for Thermal Comfort in Classrooms of Primary Schools in Enugu Metropolis, Nigeria. JP J. Heat Mass Transf. 2021, 22, 269–304. [Google Scholar] [CrossRef]
  10. Ayodele, T.T.; Taki, A.; Oyinlola, M.; Subhes, B. A Review of Retrofit Interventions for Residential Buildings in Hot Humid Climates. Int. J. Environ. Sci. Dev. 2020, 11, 251–257. [Google Scholar] [CrossRef]
  11. Le, A.T.H.; Park, K.S.; Domingo, N.; Rasheed, E.; Mithraratne, N. Sustainable Refurbishment for School Buildings: A Literature Review. Int. J. Build. Pathol. Adapt. 2021, 39, 5–19. [Google Scholar] [CrossRef]
  12. Ma’bdeh, S.N.; Al-Zghoul, A.; Alradaideh, T.; Bataineh, A.; Ahmad, S. Simulation Study for Natural Ventilation Retrofitting Techniques in Educational Classrooms—A Case Study. Heliyon 2020, 6, e05171. [Google Scholar] [CrossRef]
  13. Friedman, C.; Becker, N.; Erell, E. Energy Retrofit of Residential Building Envelopes in Israel: A Cost-Benefit Analysis. Energy 2014, 77, 183–193. [Google Scholar] [CrossRef]
  14. Ashour, R.M.; Muhaisen, A.S.; Ammar, S. Net Zero Energy Retrofit Shading Strategies of Buildings in Gaza, Case Study: Multi-Storey Residential Buildings. In Proceedings of the 2019 IEEE 7th Palestinian International Conference on Electrical and Computer Engineering (PICECE), Gaza, Palestine, 26–27 March 2019. [Google Scholar]
  15. Rahmani, K.; Ahriz, A.; Bouaziz, N. Development of a New Residential Energy Management Approach for Retrofit and Transition, Based on Hybrid Energy Sources. Sustainability 2022, 14, 4069. [Google Scholar] [CrossRef]
  16. Andrade-Cabrera, C.; O’Dwyer, C.; Finn, D.P. Integrated Cost-Optimal Residential Envelope Retrofit Decision-Making and Power Systems Optimisation Using Ensemble Models. Energy Build. 2020, 214, 109833. [Google Scholar] [CrossRef]
  17. Friedman, C.; Becker, N.; Erell, E. Retrofitting Residential Building Envelopes for Energy Efficiency: Motivations of Individual Homeowners in Israel. J. Environ. Plan. Manag. 2018, 61, 1805–1827. [Google Scholar] [CrossRef]
  18. Beyaztas, H.; Oral, G.K. Optimizing Urban Texture and Building Typology for the Goal of Achieving Near-Zero Mid-Rise Residential Building. Gazi Univ. J. Sci. 2020, 33, 592–611. [Google Scholar]
  19. Wu, D.; Zhang, T.; Zhang, J.; Yue, C.; Lu, J.; Zhang, Y.; Fu, M. Uncertainty Analysis of Envelope Retrofits for Existing Residential Buildings in Underdeveloped Areas: A Case Study of Daokou, China. Energy Build. 2023, 284, 112828. [Google Scholar] [CrossRef]
  20. Gali Taşçi, G.; Yilmaz, A.Z.; Becchio, C.; Corgnati, S.P. An Advanced Envelope Retrofit Option to Increase Solar Gain and Ventilation through Façade for Reducing Energy Demand of Residence Buildings. AZ ITU J. Fac. Archit. 2017, 14, 119–130. [Google Scholar] [CrossRef]
  21. Ali, H.H.; Al-Hashlamun, R. Building Envelope Thermal Upgrade for School Buildings in Jordan. IOP Conf. Ser. Earth Environ. Sci. 2019, 290, 12068. [Google Scholar] [CrossRef]
  22. Moazzen, N.; Karagüler, M.E.; Ashrafian, T. Life Cycle Energy Assessment of a School Building under Envelope Retrofit: An Approach towards Environmental Impact Reduction. E3S Web Conf. 2019, 111, 3028. [Google Scholar] [CrossRef]
  23. Su, B.; Jadresin Milic, R.; McPherson, P.; Wu, L. Thermal Performance of School Buildings: Impacts beyond Thermal Comfort. Int. J. Environ. Res. Public Health 2022, 19, 5811. [Google Scholar] [CrossRef]
  24. Yi, L.; Xie, Y.; Lin, C. Thermal Environment and Energy Performance of a Typical Classroom Building in a Hot-Humid Region: A Case Study in Guangzhou, China. Geofluids 2022, 2022, 3226001. [Google Scholar] [CrossRef]
  25. Srivastav, V.; Puchalapalli, S.; Manu, S. Retrofit of an Existing School Building: A Case Study from Hyderabad, India. In PLEA 2018—Smart and Healthy within the Two-Degree Limit: Proceedings of the 34th International Conference on Passive and Low Energy Architecture, Hong Kong, China, 10–12 December 2018; School of Architecture, The Chinese University of Hong Kong: Hong Kong, China, 2018; Volume 3, pp. 1012–1014. [Google Scholar]
  26. Gupta, V.; Deb, C. Energy Retrofit Analysis for an Educational Building in Mumbai. Sustain. Futures 2022, 4, 100096. [Google Scholar] [CrossRef]
  27. Niveditha, S.; Kannamma, D. Evaluation of Retrofitting Strategies to Optimize Thermal Performance of Naturally Ventilated Classrooms: A Simulation-Based Approach. In Design for Tomorrow—Volume 2, Proceedings of ICORD: International Conference on Research into Design, Virtual Event, 7–10 January 2021; Springer: Singapore, 2021; Volume 222, pp. 917–927. [Google Scholar]
  28. Yehuda, R.U.; Bhatnagar, A. Retrofit for Optimizing Building Thermal Performance in Warm-Humid Climate. In Design to Thrive, Proceedings of the 33rd PLEA International Conference, Edinburgh, UK, 2–5 July 2017; NCEUB 2017—Network for Comfort and Energy Use in Buildings: Edinburgh, UK, 2017; Volume 1, pp. 899–906. [Google Scholar]
  29. Laaroussi, Y.; Bahrar, M.; Zavrl, E.; el Mankibi, M.; Stritih, U. New Qualitative Approach Based on Data Analysis of European Building Stock and Retrofit Market. Sustain. Cities Soc. 2020, 63, 102452. [Google Scholar] [CrossRef]
  30. Bureau of Indian Standards. National Building Code of India; Bureau of Indian Standards: Delhi, India, 2016; Volume 2.
  31. Bureau of Energy Efficiency. Energy Conservation Building Code 2017 (With Amendments Up to 2020); Ministry of Power, Government of India: New Delhi, India, 2017; Volume 1.
  32. Tartarini, F.; Schiavon, S.; Cheung, T.; Hoyt, T. CBE Thermal Comfort Tool: Online Tool for Thermal Comfort Calculations and Visualizations. SoftwareX 2020, 12, 100563. [Google Scholar] [CrossRef]
  33. UCLA Energy Design Tools Group. Climate Consultant® Software, v. 6.0, Software Program©; Regents of the University of California: Oakland, CA, USA, 2018.
  34. Lau, S.S.Y.; Zhang, J.; Tao, Y. A Comparative Study of Thermal Comfort in Learning Spaces Using Three Different Ventilation Strategies on a Tropical University Campus. Build. Environ. 2019, 148, 579–599. [Google Scholar] [CrossRef]
  35. López-Pérez, L.A.; Flores-Prieto, J.J.; Ríos-Rojas, C. Adaptive Thermal Comfort Model for Educational Buildings in a Hot-Humid Climate. Build. Environ. 2019, 150, 181–194. [Google Scholar] [CrossRef]
  36. Buonocore, C.; de Vecchi, R.; Scalco, V.; Lamberts, R. Influence of Recent and Long-Term Exposure to Air-Conditioned Environments on Thermal Perception in Naturally-Ventilated Classrooms. Build. Environ. 2019, 156, 233–242. [Google Scholar] [CrossRef]
  37. Mishra, A.K.; Ramgopal, M. A Thermal Comfort Field Study of Naturally Ventilated Classrooms in Kharagpur, India. Build. Environ. 2015, 92, 396–406. [Google Scholar] [CrossRef]
  38. Tuck, N.W.; Zaki, S.A.; Hagishima, A.; Rijal, H.B.; Zakaria, M.A.; Yakub, F. Effectiveness of Free Running Passive Cooling Strategies for Indoor Thermal Environments: Example from a Two-Storey Corner Terrace House in Malaysia. Build. Environ. 2019, 160, 106214. [Google Scholar] [CrossRef]
  39. Onyenokporo, N.C.; Ochedi, E.T. Low-Cost Retrofit Packages for Residential Buildings in Hot-Humid Lagos, Nigeria. Int. J. Build. Pathol. Adapt. 2019, 37, 250–272. [Google Scholar] [CrossRef]
  40. Sun, X.; Gou, Z.; Lau, S.S.Y. Cost-Effectiveness of Active and Passive Design Strategies for Existing Building Retrofits in Tropical Climate: Case Study of a Zero Energy Building. J. Clean Prod. 2018, 183, 35–45. [Google Scholar] [CrossRef]
  41. Dhaka, S.; Mathur, J.; Garg, V. Effect of Building Envelope on Thermal Environmental Conditions of a Naturally Ventilated Building Block in Tropical Climate. Build. Serv. Eng. Res. Technol. 2014, 35, 280–295. [Google Scholar] [CrossRef]
Disclaimer/Publisher’s Note: The statements, opinions and data contained in all publications are solely those of the individual author(s) and contributor(s) and not of MDPI and/or the editor(s). MDPI and/or the editor(s) disclaim responsibility for any injury to people or property resulting from any ideas, methods, instructions or products referred to in the content.

Article Metrics

Citations

Article Access Statistics

Multiple requests from the same IP address are counted as one view.