Abstract
Sacred constructions like churches are built both for holy and architectural purposes. They are influenced by the design fashions, city history and the government. When a church, or more generally a religious building, is constructed, it is rarely torn down. Instead, these kinds of edifices are refurbished, expanded and modified according to the architectural trend of a specific period. The indoor activities of the church have changed over time, especially after the Second Vatican Council. Thus, it can be interesting to study the past modifications of churches and their features and uses. The aim of this paper is to explore the influence of a building’s history on the architectural change over time and more specifically, the subsequent influence on the indoor acoustic field. Additionally, this study aims to show how a precise and scientific reconstruction of a church’s history, using ancient documents, can provide researchers with a valuable method of investigation. Furthermore, this study aims to analyze the indoor acoustics of these holy buildings over time and elucidate whether these were considered or not for the purposes of the contemporary sacred celebrations. Therefore, in this paper, the Dome of Conegliano (Italy) is the focus of the present study. Detailed historical research was performed by means of reviewing ancient documents to faithfully reconstruct the Dome’s history. Furthermore, acoustic measurements were executed to characterize its shape in our times. Using these results, the ancient configuration of the dome was reconstructed virtually and compared to the contemporary one. Interestingly, the results show that seven centuries of history did influence the church’s architecture and consequently its indoor acoustics. The source–receiver distance has been shown to be an influential parameter, determining that the church is acoustically more suitable for listening to music rather than voice. Clearly, the Dome of Conegliano’s indoor acoustics were not modified or improved over time to fulfill their potential use, but the internal shape was modified according to the architectural fashion and to fulfill other requests as well as the structural requirements of the owners.
Keywords:
church; Conegliano; Venice; acoustics; Cima; Dome; reverberation; clarity; cathedral; speech transmission index; Venetian domination 1. Introduction
Churches and their architecture have received significant attention in the literature. Their shapes and designs are always considered interesting and worthy of investigation. However, they often present a mixture of construction styles due to the historical variations over the centuries [1]. It is well-known that when a church—or more generally a religious building—is constructed, it is rarely torn down. Rather it is modified, enlarged or changed according to the contemporary stylistic tastes and fashions [2]. In light of this, the continuous evolution of indoor spaces modifies not only the aesthetic and the structural and functional elements, but also the indoor acoustics [3].
As regards artistic compositions, churches in the past (and in some cases also in the present day) were often decorated with paintings, statues and so on. These works of art were intended to attract individuals, keep them entertained during the long celebrations and teach them about biblical events. Works of art were (and are) used to convey information to the congregation in relation to the church’s history, their funders, saints and biblical events, etc. [1,4,5,6,7,8]. The aesthetic of the building was (and is) its first way of attracting people inside.
The acoustics are of paramount importance in relation to the fruition of such spaces. Particularly in Catholic churches, the liturgy of the spoken word requests a very high acoustic quality in order to be effective and participated in by the congregation [9]. The intelligibility of the spoken word has gained importance since 1961 after the Second Vatican Council [10]. However, in the previous centuries, music was the main medium for information dissemination in Catholic celebrations and activities performed within sacred buildings [11]. Different sound sources such as music and speech need very different indoor acoustic conditions to be properly perceived by an audience [12].
Thus, it is interesting to study and reconstruct the indoor acoustics of sacred buildings over time, especially if they house famous works of art. This issue greatly increases their value, prestige and reputation [8]. This can enhance their step-by-step modernization, enlargement and implementation, because of to the continuous visits of pilgrims and tourists who over the years come and explore these spaces.
The study of indoor acoustics and historical investigations are usually separate disciplines. For example, Schaff [2] presented the history of Christian churches without mentioning the indoor acoustics, as did Kuiper [13] and Walker [1]. On the other hand, when presenting their results on indoor acoustic fields, most authors focus only on the present or on the virtually simulated configurations, disregarding the history [14,15,16,17].
Therefore, it is necessary to study—and if possible reconstruct—the internal acoustics of worship buildings, especially when they contain famous works of art such as the church of Santa Maria dei Battuti, today the Dome of Conegliano (Italy). This church has experienced seven centuries of history, foreign domination and architectural modifications, etc. Furthermore, it houses an important artwork, the Virgin and Child with Saints, a work by Cima da Conegliano [18,19,20,21,22], who was born in Conegliano and moved to Venice where he carried out intense artistic activity. The altarpiece (Figure 1) was painted in 1493 as per the request of the Battuti (the Catholic confraternity).
Figure 1.
The altarpiece of Cima da Conegliano (1493) exhibited in the Dome of Conegliano.
The aim of this paper is to study the history of the Church Santa Maria Dei Battuti in Conegliano as a case study to investigate its architectural transformation over time and its influence on the indoor acoustic field. A further aim is to show that a precise and scientific reconstruction of the church’s history by means of ancient documents can provide researchers with a valuable method of investigation. This approach can be used as a robust foundation for the construction of new research. In this case, the new research pertains to acoustics. Finally, this study investigates the indoor acoustics of holy buildings over time and explores whether this was considered or not for the purposes of the contemporary sacred celebrations. In light of this, a multidisciplinary approach is applied.
2. Materials and Methods
In order to clearly understand and investigate the influence of the history on the architectural shape of the Dome, the study is divided in two main topics:
- (1)
- The historical analysis of the ancient, modern and contemporary documents, which are kept in the historical archives;
- (2)
- The study of the indoor acoustic field using both simulations and measurements.
For the first investigation, local historical archives were visited, explored and studied. All the documents were carefully sorted, photographed, read and translated from Latin, Vulgar Latin, ancient Italian and Italian into English. Furthermore, (i) a wise reconstruction of the events, (ii) a crosslink with different documents, (iii) a selection of the most important documents related to the church and (iv) a robust and reliable restoration of the main actions are provided, based only on the reported historical facts.
For the indoor acoustics, measurements were performed in the contemporary configuration of the Conegliano Dome (Figure 2). Noticeably, the old part is identifiable since some paintings are still present on ancient columns. As regards the newer part, it contains the Cima’s altarpiece. The general criteria of the ISO 3382-1 were considered along with the specific guidelines for the acoustic measurements in churches [23]. The microphones were placed at 1.5 m high, while the source was 1.8 m from the ground.
Figure 2.
The internal view of the current configuration of the Conegliano Dome.
The results were used to calibrate the numerical virtual models, which are capable of reconstructing the ancient configurations of the church.
The following equipment was used:
- -
- A dodecahedral source;
- -
- A directional source;
- -
- An omnidirectional microphone;
- -
- A sound card plugged into a PC, equipped with Dirac software for recording and data post-processing.
The acoustic parameters were then retrieved, namely the Reverberation Time T30, Clarity of the speech C50, Clarity of the music C80, Definition D50 and Speech Transmission Index STI.
The set of the measurements was organized by placing the sources in two different positions and the receivers along the left part of the church (Figure 3).
Figure 3.
Pictures of the source placing. (Top): altar position (source position S1). (Bottom): lectern (source position S2).
Sources S1 and S2 were positioned close to the main altar and close to the lectern, respectively, while the receivers were located close to the desks, both in the central aisle (left side) and in the lateral one (Figure 4).
Figure 4.
The map of the source and receiver positions.
The plan layout is symmetrical; therefore, we could set the microphone positions only on the left side of the church, completely characterizing the sitting areas. The source played a sinusoidal sine sweep having a frequency between 20 Hz and 10,000 Hz and a duration of 15 s [24]. Measurements were performed in an unoccupied configuration (without an audience) [25] and without any set-up other than the one necessary for the Catholic celebrations [26].
A very precise geometric relief was realized. From this, a 3D model was retrieved in order to perform acoustical simulations and in order to comprise the diffusing effects [27]. A three-dimensional reconstruction of the previous configurations was carried out.
In every scenario, the source was positioned close to the altar and, when possible, close to the lectern places, while the receivers were laid in the same positions as the one used during the measurements, so as to faithfully recreate the original conditions. Furthermore, 200 receivers, virtually positioned in the model, were added homogeneously over the whole sitting area on both the aisles and lateral places. There were no computational or management problems as the software was able to accommodate up to 4096 receivers at once [28].
A high number of receiver positions can significantly affect the computational time and the results’ analysis. However, a high number of receivers means a more accurate spatial distribution of the calculated acoustic parameters.
In Table 1, the absorption and scattering characteristics of the materials used are reported, as they were considered during the acoustic simulation. The scattering coefficients were retrieved from [29]. The frequency absorption parameters were based on the literature, calibration and the authors’ previous experience with similar churches.
Table 1.
The absorption and scattering coefficients of the considered materials.
The calibration procedure involved the comparison between the measured and the calculated results. The Just Noticeable Differences (JNDs) approach [30] was used to optimize the calibration. For the reverberation time, the work of Karjalainen and Jarvelainen [31] is considered, where a 10% variation is set as the reference. For clarity, Postma and Katz [32] state that 1 dB is suitable for C80. The calibration is considered successful if the values of these two parameters, averaged over all receivers, do not exceed 1 JND.
3. Results and Discussion
3.1. Seven Centuries of Historical and Architectural Background
The building naturally followed the history of the urban society to which it connected. Here we introduce a framework explaining the events concerning the Dome of Conegliano, which even today is one of the city’s prides. For the purposes of this section of this study, focused research was performed in the historical Archives of the City of Conegliano and of the Dome, sorting, reading and translating several documents. An example of one of the relevant documents is illustrated in Figure 5. It describes in ancient Latin a list of donations made to the Dome.
Figure 5.
Donations (XIV–XV sec.) made to the Dome of Conegliano, from the Church’s Archive.
In order to better explain the church construction and its modification over time, we introduce and analyze the city of Conegliano’s historical development over the centuries. This clearly explains how the Dome was conceived and designed.
3.2. Historical Background
After the first Roman foundation, the territory of Conegliano ceased to be occupied, probably because of the swamps. Even the Longobards in the same period avoided setting their Duchies there, preferring a more solid territory nearby, as also reported by Micarelli et al. [33].
Some evidence indicates that the history of Conegliano began with a watchtower construction on its hill, the Colle di Giano (Hill of Janus), during the barbarian invasions that were interrupted by the arrival of the Franks (8th century), and then continued until the Hungarian domination in the 10th century.
The presence of a castrum (a structure mainly with military purposes) is reported on the hill during the 12th–13th centuries. This is confirmed by precious parchments preserved in the town’s historical archive.
The castrum, surrounded by a circle of walls that were originally also partly wooden, featured a church dedicated to St. Leonard, a saint who was introduced by the Franks. We do not know the proportions of this building, but it is assumed to have been a simple structure designed for the religious needs of the castle residents and their soldiers. It was probably enlarged after 1184, the year in which the important families in the area swore military and political alliances with a consortium pact. This pact forced each group to renounce its feudal prerogatives in favor of a primitive communal structure in which, among other things, a council and two consuls appeared.
In the aforementioned centuries, the church became a plebania, i.e., a church governed by the authority of a priest (plebano), becoming the matrix (mother) of every other church that would subsequently appear within the territory. Within two centuries (13th–14th), the castrum incorporated an increasingly lively economic–political reality within its walls.
The Homines de monte (men coming from the hill), heirs of the consortium nobility, inhabited the upper part of the hill and referred to its church, as did the homines de plano (men living on the plain) who were the artisans belonging to associations known as arti, like skin tanners, wool workers, furriers, carpenters and blacksmiths, etc., but also notaries, doctors and merchants, etc. These people settled in the flat area immediately at the foot of the hill, where an intense agricultural–pastoral and commercial activity developed.
From the beginning of the 15th century, the city was flourishing. Thus, conflicts with other rising economic–military realities were frequent. However, this did not prevent trade from developing further. Through a capillary organization of wagon transportation, goods travelled under the walls of Hunglim (as German merchants used to call the city) to and from Venice, and also between the territories of present-day Germany and the Balkans. Consequently, Venice became interested in Conegliano. In the end, the political and economic intelligence of the lagoon city prevailed. Conegliano was included in its reign in 1388, maintaining some municipal freedoms and losing others.
In the 13th–17th centuries, the presence of religious orders grew within the city (the first to arrive were the Franciscans in the 13th century), who enriched the castrum with their religious–cultural contributions and, in some cases, also with their practical and entrepreneurial skills. Specifically:
- -
- The Franciscans to the west, in approximately 1225;
- -
- The Poor Clares to the east, in approximately 1227;
- -
- The Canons and Canonesses of Mantua to the south, in approximately 1232;
- -
- The Humiliati of San Polo to the south-east, in approximately 1236;
- -
- The Battuti in the city center, after 1250.
At the end of the 13th century, the artisan confraternities (named fraglie) and the Battuti gained momentum. This latter group, the fraglia, was originally only a religious–penitential structure (the brethren beat each other). However, over the decades and throughout the 13th–18th centuries, the brethren became dedicated to helping society (illnesses, widows with orphans, pandemics and the difficulty of marrying daughters without dowries, etc.). The organization was founded in approximately 1253 with the support of the ecclesiastical authorities and it was fundamental to the life of the castrum. Here, it became very powerful because of donations, testamentary legacies, alms for various reasons and shrewd management policies enriching their possessions and holdings.
The brethren were numerous. In one of his manuscripts, the local nobleman Giambattista Coderta stated that there were 400 of them in 1588, with a very high income (4000 ducats). In addition, a document written in 1682 reports that there were 700 Battuti in those days. This number is impressive given that the town did not exceed 2000 individuals at the end of the 19th century.
Toward the middle of the 14th century, having grown in number and importance, the Battuti, who until then had gathered in Santa Maria de Monte, decided to build their own church, Santa Maria dei Battuti, with an adjoining meeting hall.
The building was erected between 1348 and 1354 on the ruga de soto (later Contrada Granda, today XX September Street). It was close to the city walls and very close to the main city place, representing the political and economic hub of the city. However, the entire project, a church with an adjoining meeting hall, was not completed until approximately 1390 [34]. In Figure 6, two pictures of the meeting room are shown.
Figure 6.
The Battuti’s meeting room (porch XV sec., frescoes XVI). (Top): external decorations of the façade. (Bottom): interior view.
These facts represent the beginnings of the building that would become the Dome of Conegliano in 1776, absorbing the ancient plebania of San Leonardo in Castello after a very long process of hesitation and indecision.
Further information on the progress of the church is unavailable as few documents remain from the Battuti archives.
3.3. Architectural Background
Many of the retrieved documents exclusively concern assets forfeited by the execution of a person’s will. Using these historical supports, we can understand how the architecture was modified over time. Interestingly, we report a will written in 1367 (Figure 7), by the nobleman Monflorido Coderta, the great-grandson of Monflorido, mentioned by Dante in the Divine Comedy [35]. He left money and building materials to the church of San Leonardo in Castello and a considerable sum of money to other churches including, Santa Maria dei Battuti. In this document, a description of his donation is depicted. In the following, a transcription of the Latin original text is reported (underlined in red), along with its English translation.
Figure 7.
An ancient document (1367) containing a full donation description made by Monflorido Coderta to the Confraternity of Battuti. Church’s Archive.
Latin: “Item reliquit laborerio ecclesiae Sancti Leonardi de Coneglano Libras Decem denariorum parvorum pro eius anima. Item reliquit unum mileare cuporum (…). Item reliquit solidos 40 denariorum parvorum Plebano dictae ecclesae Sancti Leonardi pro missis dicendis et celebrandis, pro eius anima. Item iusssit, voluit et ordinavit dictus testator quod de suis bonis infrascriptis eius commissarii debeant et teneant reparari facere et adaptari crucem ecclesiae Sancti Leonardi de Coneglano praedicti usque ad summam duodecim denariorum aurei. Item reliquit XX Libras solidorum parvorum cuilibet ecclesiae existenti in Coneglano id est: ecclesiae Sanctae Mariae de Monte, Ecclesiae Sanctae Mariae Batutis …”
English: “He then leaves for the works of St. Leonard of Conegliano ten liras of the little ones (money of that time) for the salvation of his soul. He then leaves to the said church a thousand tiles (...) and to the parish priest 40 denarii of the little ones (money of that time) for him to celebrate masses for the salvation of his soul. He orders his executors that always at his own expense they shall have the cross of said church repaired and arranged for a sum not exceeding twelve gold denarii. He then leaves ten lire of the little ones to each of the 13 churches that are in Conegliano”.
In this same period the city and church went through the most diverse dominations: first Venetian domination (1337–1356); Ludwig of Hungary (1356–1358); second Venetian domination (1358–1381); Leopold Duke of Austria (1381–1384); Francesco da Carrara Lord of Padua (1384–1388) and the third Venetian domination, 1388–1797 during which (1756) the investigated sacred building became the city’s Dome. The continuous domination changes that took place in the 14th century explain why the first major change in the structure (the completion of the important meeting hall) occurred only at the end of the century (c. 1390). This was also reported by Howard [36] who highlighted how Venetian domination boosted the architectural perspective.
What was the Battuti perspective on the church’s aesthetics, shape and adornments? Unfortunately, no drawings, plans or descriptions from that period can accurately identify its original form. Some scholars have tried to describe it based on Vincenzo Botteon’s studies. “The structure (...) contained all the typical elements of Romanesque architecture, but softened and lightened by new structural solutions, elaborated in this period by a gothic style coming from transalpine territories (...), modified, however, in the forms proposed in Venetian territories, a double tripartition marked the internal space of the church. The three naves, divided into three bays with pointed arches, ended with numerous apsidal chapels...” (translation from [37]).
The same author hypothesizes that originally the façade of the church must have been “largely visible for its entire height, given the presence of a decorative frescoed band attributable to the early 15th century” (translation from [18]). Botteon also seems to accept the hypothesis that the church had a gabled roof or “a salient front of smaller dimensions than today” and does not reject the hypothesis that the building might have had a porch.
In the 15th century, by then firmly under the domination of Venice, Conegliano grew economically and its urban organization within the castrum found its definitive layout [38]. The researcher Adolfo Vital illustrates this in the topographical sketch reported in Figure 8.
Figure 8.
Top: an old masterplan of the city of Conegliano in the XV century, [39]. Brown circle: an old church very close to the castle. Green circle: the Dome of Conegliano. Bottom: a contemporary sky view of the City of Conegliano. On the top of the hill, the castle is clearly visible (yellow circle). Down left, the Dome of Conegliano, with its bell tower (cyan circle).
The first works of the artefact of Santa Maria dei Battuti, however, did not take place until 1485 when the confraternity bought the land behind the church from the nobleman Zandonato Petrucci, thus beginning the late 15th-century adaptation of the church hall construction (1485–1491). This permitted the addition of a pentagonal apsidal chapel and two other side chapels to the building. The work was completed with: (i) some frescoes by Desiderio da Feltre on the interior pillars (1491), (ii) the delivery of Giambattista Cima’s large altarpiece Virgin and Child with Saints (1493), as reported in Figure 1, (iii) the fitting of the large wooden doors (1493) and (iv) the construction of the bell tower (1497). In Figure 9, a modern picture shows the church, evidencing the described four different parts.
Figure 9.
A view of the Dome of Conegliano from above. Blue outline: Battuti’s meeting room. Red outline: the former volume of the church. Green outline: the added volume in 1491. The bell tower (1497) is also present.
Now a question arises: why did the Battuti complete such an expensive project before the end of the century? Almost certainly their decision stemmed from the imminence of the mid-millennium Jubilee (year 1500) for which many pilgrims were expected to move to Rome thus visiting Conegliano in their trip. This implied numerous problems for the city, which included public order.
Other alterations were made to the building in the 16th century, but these only concerned the cycle of frescoes inside the assembly hall adding episodes from the life of Christ, which were largely accomplished by Franceso da Milano (1475–1548) from the 1420s onwards. Towards the end of the century, however, Ludovico Toeput (1550–1603) known as Pozzoserrato, created the biblical stories on the façade (1598). Santa Maria dei Battuti, which at the end of the 15th century began to be called Santa Maria Nuova, was thus finished.
In the 17th century, as had happened in the past, Conegliano shared the fate of Venice and its history began to fade, as shown by Ferraro [40]. There were few events of significance in the temple. In 1624, the Battuti moved some altars and in 1633 they conceived the idea of constructing a new building. During this period it was also thought to transfer the juridical prerogatives of the ancient plebania of San Leonardo in Castello.
However, no action was taken until 14 February 1756, when the late 15th-century Santa Maria Nuova became the Collegiate Parish Church of Santa Maria and San Leonardo that we know today.
At that time, the church did not have a presbytery, but only a pentagonal apse to host the high altar. It was therefore necessary to build a structure for choral functions. The task was not easy, since there was a slope of almost two meters between the nave and the hill.
The reorganization began in 1757, but was interrupted in 1761, possibly due to the lack of financial support, and then resumed in 1776. In 1790, two altars were set back as well as the baptistery. This is how Napoleon’s armies found the church in 1797. The situation did not change with the Emperor of Austria (1798–1805), nor with the subsequent French (1805–1814) and then the second Austrian domination (1805–1814), when convents and hamlets were dissolved and all benefices suppressed (1810). In the subsequent Austrian period (1814–1866), simple maintenance was carried out.
Very few changes were made to the sacred building during the Kingdom of Italy (1866–1946), a period in which the archpriest Marchi had added the wooden altar, which was dedicated to St. Leonard, demolished and replaced with a marble one (1850–1860). Finally, the earthquake of 1873 created instability in the ancient structures.
Figure 10 shows a summary of the dominations’ periods plotted against the number of architectural works. It is evident that under the Venetian domination the church underwent the most construction modifications, while in more modern times only one significant renovation was carried out. This corroborates what was previously found by Grubb [41]. During the other periods, no meaningful interest was dedicated to its architectural shape or indoor space distribution.
Figure 10.
The Dominations’ periods vs. the number of architectural works.
In 1906, the church presented such features that shocked an attentive observer such as Vincenzo Botteon, a priest and important historian of the city, who wrote: “The Church of Santa Maria dei Battuti is modest, but reflects the sensibility and pure taste characteristic of the 14th and 15th centuries. Past and present alterations made without a regulator of artistic concept have transformed it into a truly bizarre sacred building, in which all the architectural orders and disorder can be seen randomly; in front [of Cima’s altarpiece] there are truly strange and jarring frescoes. Poor temple! It seems that for some centuries it has been dominated by an evil genius who wants to imprint his capricious and strange character on the environment”.
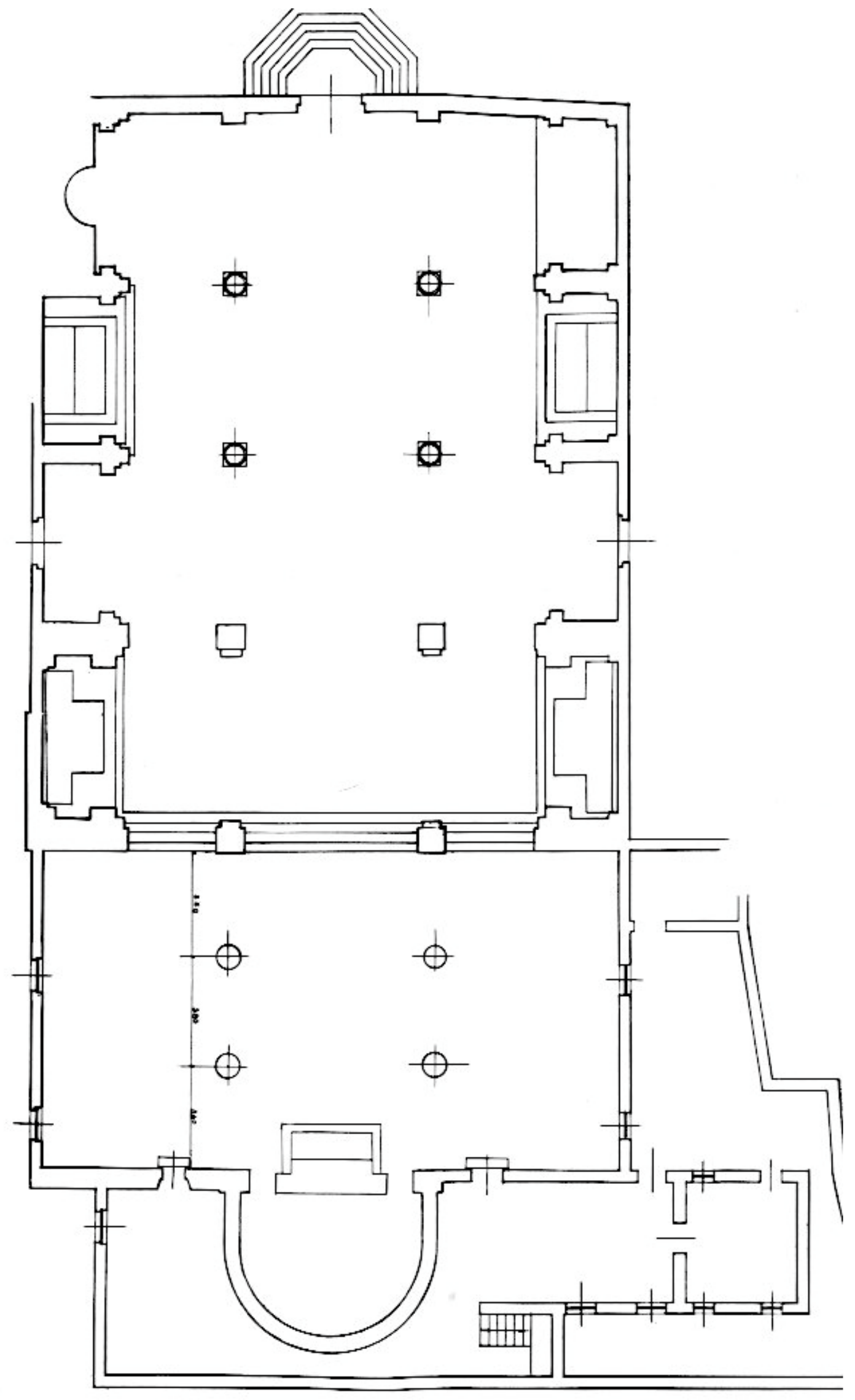
Almost fifty years passed before Archpriest Francesco Sartor planned some changes in 1951 that would give the church more capacity and a more sober design. This renovation included a radical restoration of the adjacent meeting hall and the relocation of the Cima’s altarpiece behind the high altar, after it had been torn from its wooden base and placed on canvas in 1963. All this took place while the work of the Second Vatican Council (1962–1965) was proceeding in Rome. In Figure 11, the contemporary Dome plan is illustrated, while Figure 12 shows an external contemporary view.
Figure 11.
The contemporary Dome plan.
Figure 12.
A contemporary external view of the Dome of Conegliano.
In accordance with the provisions of the Council, the high altar returned, as in ancient times, to being a ‘mensa’ around which the celebrants could move, facing the congregation during the celebration of the rites.
Naturally, the innovation also affected the acoustic problems of the church, and Catholic churches in general, because the congregation was actually invited to participate. Before the conciliar revolution, in fact, the celebrant’s voice was solitary and addressed directly and only to God as also reported by Van Kley [42].
3.4. Acoustic Measurements—Contemporary Configuration
Table 2.
Averaged acoustic parameter results at mid-frequencies—Source in position 1.
Table 3.
Averaged acoustic parameter results at mid-frequencies—Source in position 2.
It is interesting to analyze the room acoustics for both the source positions. They show similar values of other large churches tested in other works [26,43,44,45,46,47] featuring analogous acoustic conditions. When comparing Table 2 and Table 3, it is interesting to notice that the T30 results are similar to those for C50, even when in position 2, better maximum values are registered. When analyzing the C80 outcomes, we observed that when the source is positioned on the altar, better values are measured compared to those at the lectern (position 1). This could be caused by a choir structure behind the altar. Thus, for music, the church provided a better indoor sound field than for voice. The opposite occurred for D50, which strongly depended on the ratio between source and receiver energy. In this case, a maximum of 0.46 was obtained (on the receiver closest to the lectern), while for the source in position 1, a value 0.27 was registered. Similar considerations can be drawn for the STI parameter for which distance and background noise play important roles. In position 2, a better condition was measured. In this case, the background noise could have influenced the receiver position close to the exit door (opposite to the altar, R9).
The results in both tables show that the standard deviations were always higher than 30%. This shows how the indoor acoustic field is not uniform and varies meaningfully throughout the whole church area. This demonstrates once more that the reverberation time T30 is not a suitable parameter to characterize large enclosures [48], such as liturgical spaces.
In Figure 13 and in Figure 14, the frequency results of C50 and C80 respectively for source position 1 and 2 are reported, focusing only on the front space of the altar and the lectern. It is evident that the two sources cannot provide sufficient clarity for any of the tested receivers. Comparing the same frequency to similar source-position relative distances, one can clearly see that the lectern source (source 2) provides better results at all frequencies as expected, when the distance range is 5–10 m. At the distances of 10–15 m and 20–25 m we can see that the results are similar. This can be explained by the difference in the roof height: the roof above the audience is 14.5 m high, while above the source positions it is 11.8 m high.
Figure 13.
C50 vs. distance from the source position 1 (top) and 2 (bottom).
Figure 14.
C80 vs. distance from the source position 1 (top) and 2 (bottom).
Interestingly, for both clarity indexes, linear decays are present for most frequency values, confirming that the indoor sound field is mostly influenced by the relative distance between source and receiver, such as in most “shoebox” cases [49,50].
In Figure 15, D50 is reported for the two different source positions. Similarly in this case, the distance between the source and the receivers drives the final performances. In the range 5–10 m, as expected, position 2 shows better results than position 1, while at other distances the values are similar.
Figure 15.
D50 vs. distance from the source position 1 (top) and 2 (bottom).
In Figure 16, all parameters (averaged at values of 500 Hz–1000 Hz) are plotted and some correlations are found, while in Table 4 the squared regression coefficient R2 and the type of regression curve are reported. Among all the tested possibilities, only the correlation with the highest R2 value is considered and reported. It is noteworthy that when considering reverberation time, a fair correlation is possible, with the exception of the STI. When looking at clarity, a very strong correlation was evident between C50, C80 and D50, while only a mild correlation was found for the STI. In this latter case, except for the reverberation time, where a very poor correlation was found, polynomial regressions were needed, in order to obtain a fair correlation with C50 and D50. Nevertheless, a poor correlation with C80 was still evident.
Figure 16.
The best fit correlation among different acoustic parameters.
Table 4.
The squared regression coefficient R2 and type of best fit correlation.
3.5. Acoustic Simulations—Ancient Configuration
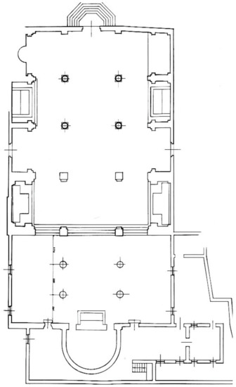
As explained above, two different scenarios were considered (Figure 17):
Figure 17.
Virtual models of the two different scenarios: ancient (left) and contemporary (right).
- (a)
- The ancient one: this is related to the old shape of the building, described by the documents and highlighted in Figure 9 (red line). In this scenario, the ancient church is studied (architecture before 1485);
- (b)
The results of the calibration process are reported in Table 5, where it can be inferred that a valid procedure was performed. Indeed, all obtained values show no JND difference, except for C80 at 500 Hz, where one JND is assessed.
Table 5.
The calibration of the numerical model by means of measured and simulated values comparison.
The results of the averaged measured values are reported in Table 6 (source 1). Clearly, since the lectern position was not present in the ancient configuration and no “liturgy of the word” had been conceived yet, no other position was studied for this configuration.
Table 6.
The averaged acoustic parameter results at mid-frequencies—source in position 1.
Comparing Table 2 with Table 6, it is interesting to note that a more homogeneous indoor sound field was provided by the ancient configuration. Interestingly, a lower standard deviation was provided for the reverberation time and for the two clarity parameters, while a small difference is evident for the definition and speech transmission index. Another interesting finding comes from the maximum values for clarity. For C50 (referred to as clarity of the speech) the result is positive, showing how a more compact volume provides a better understanding of the words. This is also true for the definition D50 and the STI. In conclusion, we can state that while in the past the celebration was based on music, the volume was more suitable for speech; however, in the present the opposite is verified. This shows how the architecture of the Dome of Conegliano was not historically driven by its intended use, but by architectural trends, structural purposes and the owners’ or financers’ desires.
In Figure 18, the scatter plots containing the simulated results (averaged values of 500 Hz–1000 Hz) of the ancient church configuration are reported. Notably, since the volume was reduced, as expected, the overall acoustic performances presented better values, compared to the actual configuration ones (see Figure 16). The reverberation time decreased, while clarity, definition and speech intelligibility increased. In Table 7, the correlation coefficients and the type of regression are reported. The data shows that the correlations pertaining to reverberation time were poor except for the speech transmission, which was clearly improved. It was similar for all other correlations including STI. Another finding is related to the type of correlation. Overall, we can consider that the polynomial is the correlation which related more closely to STI when including clarity and definition, while in the other cases a linear correlation was preferred. In the case of the C80–D50 correlation of the actual configuration, an exponential relationship was found (Table 4), which becomes linear when analyzing the ancient configuration. As an overall finding, we can highlight that there was a good correlation for clarity versus definition and when the volume was reduced (the ancient configuration) for speech transmission index. When the volume was significant (the modern configuration), valid correlations could not be considered for the STI parameter. For the reverberation time, no valid correlation could be assessed in either case.
Figure 18.
The best fit correlation among different acoustic simulated parameters.
Table 7.
The squared regression coefficient R2 and type of best fit correlation.
4. Limitations of This Study
In this study, we aimed to demonstrate how historical, architectural and acoustic investigations can be merged to provide a robust and reliable research method applied to ancient buildings. We used the Dome of Conegliano in Italy to apply this method and to highlight the correct approach for providing interesting scientific results. The limitations are as follows:
- (a)
- The method is applied only to one building at present and more studies are needed to better optimize this approach. However, the details of the method are provided and the authors suggest that it can be applied to other ancient buildings;
- (b)
- The historical background of a building may not always be available due to a lack of documents. Being aware of this should not prevent other researchers from proceeding with their investigations. However, as demonstrated above, the authors strongly suggest, when possible, to perform precise and careful historical research of ancient buildings, using the available documents stored in archives, which will enhance their results and focus their analysis;
- (c)
- The acoustic studies and their related results can certainly be applied to other similar buildings with regard to parameters such as volume, external finishings, scattering and area dimensions. Thus, the relationships between the acoustic parameters should be further investigated when considering very different shapes and/or significantly larger volumes.
5. Conclusions
In this paper, we describe the historical developments and consequent architectural issues of the Dome of Conegliano in Italy, which contains an altarpiece designed by Cima da Conegliano.
The extensive research and analysis of ancient documents was performed in different historical archives in which the Dome of Conegliano’s past was enclosed. This study revealed that the church was significantly modified and improved over time; however, after the Second Vatican Council its internal shape remained unmodified.
For this reason, an extensive acoustic study was performed in order to investigate its ancient and current indoor sound field. Simulations of the past indoor acoustics were calibrated and validated using modern measurements. The results clearly demonstrate that in the past, the indoor acoustic field was more suitable for the voice even if the celebration was devoted to music, while the modern architectural configuration is more suitable for music than for hearing the voice. This clearly emphasizes how the architecture of the Dome of Conegliano was driven more by architectural trends, structural needs and owners’ or financers’ desires rather than being optimized for its intended purpose, which changed significantly over the years.
Overall, it was demonstrated that the history of the Church Santa Maria Dei Battuti in Conegliano, used as the case study, influenced its architectural transformation over time and consequently the indoor acoustic field. A precise and scientific reconstruction of the church’s history by means of ancient documents was demonstrated as a valuable method of investigation. The indoor acoustic investigation of this holy building over seven centuries has derived the understanding that this feature was not considered for the purposes of the contemporary sacred celebrations in all ages. Furthermore, a multidisciplinary approach is applied, showing that the sciences of acoustics and history should be combined for the study of such sacred buildings.
Author Contributions
F.B. and M.C. developed the research. F.B. and M.C. defined the methods and comparisons. F.B. and M.C. studied and analyzed the architecture and the indoor acoustics. F.B. and L.C. performed the historical research. M.C. and F.B. collected the data and analyzed the results. M.C. supervised the research. M.C., F.B. and L.C. wrote the paper. All authors edited and proofread the paper. All authors have read and agreed to the published version of the manuscript.
Funding
This work received no funding.
Data Availability Statement
All data are available in the paper.
Acknowledgments
Conflicts of Interest
The authors declare no conflict of interest.
References
- Walker, W. History of the Christian Church; Simon and Schuster: New York, NY, USA, 2014. [Google Scholar]
- Schaff, P. History of the Christian Church: Volume 2; BoD–Books on Demand: Hamburg, Germany, 2022. [Google Scholar]
- Boren, B.B. Acoustic Simulation of JS Bach’s Thomaskirche in 1723 and 1539. Acta Acust. 2021, 5, 14. [Google Scholar] [CrossRef]
- Rubinkowska-Anioł, H. The paintings in St. George Church in Addis Ababa as a method of conveying information about history and power in 20th-Century Ethiopia. Stud. Afr. Lang. Cult. 2015, 49, 115–141. [Google Scholar]
- Shockey, R.R. The Intersection of Christian Apologetics and the Arts: The Power of the Arts to Convey Truth and Change Lives. Master’s Thesis, Biola University, La Mirada, CA, USA, 2019. [Google Scholar]
- Argyropoulou, M.; Anevlavis, E.; Anevlavi, V. The Ecclesiastical Image as a Conveyor of Communication and Information in Pilgrimage Tourism. Int. J. Cult. Digit. Tour. 2020, 6. [Google Scholar]
- Bracke, J.; Tye, K. Teaching the Bible in the Church; Chalice Press: St. Louis, MO, USA, 2003. [Google Scholar]
- Dillenberger, J. A Theology of Artistic Sensibilities: The Visual Arts and the Church; Wipf and Stock Publishers: Eugene, OR, USA, 2004. [Google Scholar]
- Zimmerman, J.A. The Liturgy of the Word. In Proceedings of the Journal of the Liturgical Conference; Taylor & Francis: Oxford, UK, 2000; Volume 16, pp. 19–33. [Google Scholar]
- Schloeder, S.J. Architecture in Communion: Implementing the Second Vatican Council through Liturgy and Architecture; Ignatius Press: San Francisco, CA, USA, 1998. [Google Scholar]
- Joncas, M. From Sacred Song to Ritual Music: Twentieth-Century Understandings of Roman Catholic Worship Music; Liturgical Press: Collegeville, MN, USA, 1997. [Google Scholar]
- Gade, A.C. Acoustics in halls for speech and music. In Springer handbook of acoustics; Springer: Berlin/Heidelberg, Germany, 2014; pp. 317–366. [Google Scholar]
- Kuiper, B.K. The Church in History; Wm. B. Eerdmans Publishing: Grand Rapids, MI, USA, 1988. [Google Scholar]
- Navarro, J.; Sendra, J.J.; Muñoz, S. The Western Latin Church as a Place for Music and Preaching: An Acoustic Assessment. Appl. Acoust. 2009, 70, 781–789. [Google Scholar] [CrossRef]
- Iannace, G.; Berardi, U.; Rossi, F.D.; Mazza, S.; Trematerra, A.; Ciaburro, G. Acoustic Enhancement of a Modern Church. Buildings 2019, 9, 83. [Google Scholar] [CrossRef]
- Ciaburro, G.; Iannace, G.; Trematerra, A.; Lombardi, I.; Abeti, M. The Acoustic Characteristics of the “Dives in Misericordia” Church in Rome. Build. Acoust. 2021, 28, 197–206. [Google Scholar] [CrossRef]
- Berardi, U.; Cirillo, E.; Martellotta, F. A Comparative Analysis of Acoustic Energy Models for Churches. J. Acoust. Soc. Am. 2009, 126, 1838–1849. [Google Scholar] [CrossRef]
- Humfrey, P. Cima Da Conegliano and Alberto Pio. Paragone Firenze 1978, 341, 86–97. [Google Scholar]
- Humfrey, P. Cima Da Conegliano, Sebastiano Mariani, and Alvise Vivarini at the East End of S. Giovanni in Br Agora in Venice. Art Bull. 1980, 62, 350–363. [Google Scholar] [CrossRef]
- Pericolo, L. Heterotopia in the Renaissance: Modern Hybrids as Antiques in Bramante, Cima Da Conegliano, and the Hypnerotomachia Poliphili. Getty Res. J. 2009, 1, 1–16. [Google Scholar] [CrossRef]
- Richardson, E. The Annunciation by Cima Da Conegliano (c. 1459–1518). Bull. Detroit Inst. Arts City Detroit 1944, 23, 39. [Google Scholar] [CrossRef]
- Watson, P.F. Cima Da Conegliano The Art Bulletin Vol. 69, No. 1 (Mar., 1987); CAA Publisher: Los Angeles, CA, USA, 1987; pp. 139–143. [Google Scholar]
- Martellotta, F.; Cirillo, E.; Carbonari, A.; Ricciardi, P. Guidelines for Acoustical Measurements in Churches. Appl. Acoust. 2009, 70, 378–388. [Google Scholar] [CrossRef]
- Farina, A. Simultaneous measurement of impulse response and distortion with a swept-sine technique. In Proceedings of the Audio Engineering Society Convention 108; Audio Engineering Society, Paris, France, 19–22 February 2000. [Google Scholar]
- Farina, A.; Tronchin, L. Measurements and Reproduction of Spatial Sound Characteristics of Auditoria. Acoust. Sci. Technol. 2005, 26, 193–199. [Google Scholar] [CrossRef]
- Pedrero, A.; Ruiz, R.; Díaz-Chyla, A.; Díaz, C. Acoustical Study of Toledo Cathedral According to Its Liturgical Uses. Appl. Acoust. 2014, 85, 23–33. [Google Scholar] [CrossRef]
- Tronchin, L.; Bevilacqua, A. Acoustic Study of Different Sceneries at the São Carlos National Theatre of Lisbon. Appl. Acoust. 2021, 180, 108102. [Google Scholar] [CrossRef]
- Tronchin, L.; Bevilacqua, A. Historically Informed Digital Reconstruction of the Roman Theatre of Verona. Unveiling the Acoustics of the Original Shape. Appl. Acoust. 2022, 185, 108409. [Google Scholar] [CrossRef]
- Tronchin, L.; Merli, F.; Dolci, M. Virtual Acoustic Reconstruction of the Miners’ Theatre in Idrija (Slovenia). Appl. Acoust. 2021, 172, 107595. [Google Scholar] [CrossRef]
- Seraphim, H.-P. Untersuchungen Über Die Unterschiedsschwelle Exponentiellen Abklingens von Rauschbandimpulsen. Acta Acust. United Acust. 1958, 8, 280–284. [Google Scholar]
- Karjalainen, M.; Järveläinen, H. More about this reverberation science: Perceptually good late reverberance. In Proceedings of the The 111th Convention of the Audio Engineering Society, New York, NY, USA, 21–24 September 2001. [Google Scholar]
- Postma, B.N.; Katz, B.F. Perceptive and Objective Evaluation of Calibrated Room Acoustic Simulation Auralizations. J. Acoust. Soc. Am. 2016, 140, 4326–4337. [Google Scholar] [CrossRef]
- Micarelli, I.; Castorina, F.; Tafuri, M.A. Mobility Patterns from the Povegliano Veronese Burial Ground. Preliminary Strontium Isotope Results. In Migrazioni, Clan, Culture. Archeologia, Genetica e Isotopi Stabili. 3. Incontro per L’archeologia Barbarica; Torrossa: Fiesole, Italy, 2018; pp. 139–156, ebook. [Google Scholar]
- Fossaluzza, G. Gli Affreschi Della Scuola Dei Battuti Di Conegliano; Rotary Club Conegliano: Conegliano, Italy, 2005. [Google Scholar]
- Bruckman, P. La Divina Commedia (the Divine Comedy): Purgatorio; Xlibris Corporation: Bloomington, IN, USA, 2011. [Google Scholar]
- Howard, D. Venice and Islam in the Middle Ages: Some Observations on the Question of Architectural Influence. Archit. Hist. 1991, 34, 59–74. [Google Scholar] [CrossRef]
- Botteon, V.; Barbieri, A. Congregazioni Di Carità e Istituti Pii in Conegliano. Studio Storico Amministrativo Diviso in Due Parti; Stab. Arti Grafiche: Conegliano, Italy, 1904. [Google Scholar]
- Caniato, L.; Palugan, G. Conegliano Guida per Coneglianesi e Turisti Curiosi; ZeL: Conegliano, Italy, 2010. [Google Scholar]
- Vital, A. Il Castello Di Conegliano. Ricostruzione Storica-Topografica Con 4 Incisioni; Stabilimento Arti Grafiche: Conegliano, Italy, 1905. [Google Scholar]
- Ferraro, J.M. Economy and Society in Brescia during the Venetian Domination, 1426–1645 (Italy). Ph.D. Dissertation, University of California, Los Angeles, CA, USA, 1985. [Google Scholar]
- Grubb, J.S. When Myths Lose Power: Four Decades of Venetian Historiography. J. Mod. Hist. 1986, 58, 43–94. [Google Scholar] [CrossRef]
- Van Kley, D. Catholic Conciliar Reform in an Age of Anti-Catholic Revolution; Truman State University Press: Kirksville, MO, USA, 2006. [Google Scholar]
- Suárez, R.; Sendra, J.J.; Navarro, J.; León, A.L. The Sound of the Cathedral-Mosque of Córdoba. J. Cult. Herit. 2005, 6, 307–312. [Google Scholar] [CrossRef]
- Fitzroy, D. The Sounds of St. Mary’s. J. Acoust. Soc. Am. 1973, 54, 349–352. [Google Scholar] [CrossRef]
- Sender, M.; Planells, A.; Perelló, R.; Segura, J.; Giménez, A. Virtual acoustic reconstruction of a lost church: Application to an order of Saint Jerome Monastery in Alzira, Spain. J. Build. Perform. Simul. 2018, 11, 369–390. [Google Scholar] [CrossRef]
- Boren, B.B.; Longair, M. Acoustic Simulation of the Church of San Francesco Della Vigna. Proc. Meet. Acoust. 164ASA Acoust. Soc. Am. 2012, 18, 015003. [Google Scholar] [CrossRef]
- Bueno, A.M.; León, Á.L.; Galindo, M. Acoustic Rehabilitation of the Church of Santa Ana in Moratalaz, Madrid. Arch. Acoust. 2012, 37, 435–446. [Google Scholar] [CrossRef]
- Tronchin, L.; Merli, F.; Dolci, M. Acoustic reconstruction of eszterháza opera house following new archival research. Appl. Sci. 2020, 10, 8817. [Google Scholar] [CrossRef]
- Schimmel, S.M.; Muller, M.F.; Dillier, N. A Fast and accurate “shoebox” room acoustics simulator. In Proceedings of the 2009 IEEE International Conference on Acoustics, Speech and Signal Processing, Taipei, Taiwan, 19–24 April 2009; pp. 241–244. [Google Scholar]
- Beranek, L.L. Concert hall acoustics—2008. J. Audio Eng. Soc. 2008, 56, 532–544. [Google Scholar]
Disclaimer/Publisher’s Note: The statements, opinions and data contained in all publications are solely those of the individual author(s) and contributor(s) and not of MDPI and/or the editor(s). MDPI and/or the editor(s) disclaim responsibility for any injury to people or property resulting from any ideas, methods, instructions or products referred to in the content. |
© 2023 by the authors. Licensee MDPI, Basel, Switzerland. This article is an open access article distributed under the terms and conditions of the Creative Commons Attribution (CC BY) license (https://creativecommons.org/licenses/by/4.0/).

















