Abstract
Timely risk information acquisition and diagnosis during foundation pit excavation (FPE) processes are vital for ensuring the safe and effective construction of underground urban infrastructures. Unfortunately, diverse geological and hydrogeological conditions and complex shapes of the foundation pit create barriers for reliable FPE risk prognosis and control. Furthermore, typical support systems during FPE use temporary measures, which have limited capacity to confront excessive loads, large deformations, and seepage. This study aims to establish an intelligent risk prognosis and control framework based on digital twin (DT) for ensuring safe and effective FPE processes. Previous studies have conducted extensive experimental and numerical analyses for examining unsafe conditions during FPE. How to enable intelligent risk prognosis and control of tedious FPE processes by integrating physics-based models and sensory data collected in the field is still challenging. DT could help to establish the interaction and feedback mechanisms between the physical and virtual space. In this study, the authors have established a DT model that consists of a physical space model and a high-fidelity physics-based model of a foundation pit in virtual space. As a result, a mechanism for effective acquisition and fusion of heterogeneous information from both physical and virtual space is established. Then, the authors proposed an integrated model and data-driven approach for examining safety risks during FPE. In the end, the authors have validated the proposed method through a case study of the FPE of the Wuhan Metro Line. The results show that the proposed method could provide theoretical and practical support for future intelligent FPE.
1. Introduction
Urbanization is proceeding at an unprecedented pace, with towering buildings rising from urban land and ground space being fully developed and utilized. Development of large-scale underground civil infrastructures (e.g., subways, pipelines, etc.) becomes favored by construction practitioners. Excavation processes of the temporary foundation pit are thus important during the construction of large underground civil infrastructures. However, foundation pit excavation (FPE) is known as one of the most dangerous construction processes that threatens the safety of all involved construction personnel. Furthermore, various weather conditions, geological factors, and the hydrogeological environment of the construction site create barriers for ensuring safe and effective FPE processes [1,2]. Safety monitoring and risk prognosis of FPE are vital for ensuring timely acquisition of spatiotemporal risk information (e.g., foundation pit deformations) and effective risk predictions. However, current field practices heavily rely on visual measurements and inspections using traditional measuring equipment and techniques, which is time-consuming and requires engineers to have profound knowledge and extensive field experiences. Even experienced engineers could hardly identify safety risks during FPE and make timely control actions. Collapse accidents may occur and cause fatalities.
Previous studies have examined the stability retaining structures during FPE processes. Fathipour et al. [3] used a well-established lower bound analysis combining the finite element method and second order conic programming (SOCP) to examine active and passive earth pressures on retaining structures with unsaturated backfill. Fathipour et al. [4] also combined the lower bound theorem of limit analysis with the finite element discretization method to conduct an in-depth numerical study on the lateral earth pressure of backfilled retaining walls with reinforced soil layers of geosynthetics. Zhang et al. [5] examined the effect of wall toe resistance on the performance of GRS walls with different toe constraints. Zhang [6] et al. explored the effect of cornering on the stability of reinforced slopes. Liu [7] studied the lateral displacements of segmental GRS walls at the end of construction and after 10 years of creep under constant gravity loads.
In addition, lots of studies have conducted extensive efforts in developing methods and tools for safe and effective risk prognosis and control during FPE [8,9,10,11,12]. However, limited studies have examined methods for (1) capturing the spatiotemporal changes during FPE processes; (2) updating finite element models using the captured field anomalies; and (3) establishing effective risk prediction and control mechanisms for mitigating safety risks during FPE processes. Digital twin (DT) has been developed and extensively studied in the manufacturing domain for creating a high-fidelity virtual space model that could reflect all behaviors of physical objects. Such a method could help for (1) capturing the interactive process between the physical and virtual space; (2) updating the virtual model based on field discoveries; and (3) providing feedback to the physical model for guiding the manufacturing processes. Guo et al. [13] developed a system based on DT for intelligent risk predictions during mining operations in coal mines. Zhang et al. [14] examined the feasibility of using DT to control mine production processes under various scenarios. Song et al. [15] proposed a DT framework with inverse kinematics for modeling human skeletons. Gopalakrishnan, S et al. [16] have created a model-based feature information network (MFIN) based on DT for establishing digital representations of all systems and components. Guo et al. [17] proposed a DT-based health management framework by integrating a self-updating model for fault diagnosis and prediction. Ruppert, T et al. [18] developed a DT-based method for predicting production states by fusing information collected from real-time positioning systems. All these efforts provide the potential for establishing a risk prognosis and control system for safe and efficient FPE.
Timely risk information acquisition and diagnosis during FPE processes are vital for ensuring the safe and effective construction of underground urban infrastructures. Limited studies have examined the integration of emerging sensing techniques, finite element modeling and simulation methods, and real-time data transmission tools for timely risk capturing, analysis, and prediction during FPE processes given diverse geological and hydrogeological conditions and complex shapes of the foundation pit. The major contribution of this study is to enable a DT-based risk prognosis and control for safe and efficient FPE. As seen in Figure 1, DT is a data-centric architecture based on the physical and virtual worlds. The left part of the figure represents the activities in the physical world and the right part represents the activities in the virtual world. Physical space is the three-dimensional world we are in. This includes the structure, components, environment, data collection, and smart devices of the building at the construction site. Virtual space is mainly used to create virtual models by computer and simulate the unperformed construction based on the data. The information technology of DT is embodied through massive data. Data collection, processing, and judgment are the core of the whole system. The maintenance model allows effective maintenance measures to be made based on the results of data processing.
Figure 1.
A vision: digital twin (DT)-based risk prognosis and control for safe and efficient FPE.
The overall goal of this study is to establish a risk prognosis and control method based on DT for examining excavation risks and ensuring the safety of FPE (a vision shown in Figure 1). The proposed method aims to enable intelligent risk prognosis and control of FPE by integrating physics-based models and heterogeneous sensory data collected in the field. First of all, the authors have established a DT-based risk prognosis and control framework for ensuring safe and efficient FPE processes. The proposed method contains a data acquisition section that could help to collect geometric information using sensors and RFID technology. DT enables real-time monitoring of spatiotemporal changes that occur in a complex workspace with a changing environment [19]. Capturing all such spatiotemporal changes via multi-types of sensors could help to create models in the virtual space (e.g., FLAC3D) and update the virtual model continuously with the collected heterogeneous data [20]. Second, a high-fidelity twin model could be established through mapping mechanisms and feedback loops provided by DT for representing all aspects and processes within FPE processes in the physical world [21]. Then, using such a virtual twin model could help to run simulations under certain scenarios for risk predictions given the data and information acquired from the physical world. Then, a bow-tie model is used for selecting corresponding control measures for various unsafe events during FPE. Furthermore, control strategies could be extensively and precisely examined through DT for finding the optimal control policy, which could be used for mitigating FPE risks.
Following this introduction, the organization of the following sections is as follows. Section 2 illustrates the overall framework of FPE based on DT. Section 3 explains how to construct a DTM for pit risk assessment. Section 4 illustrates the rationale for risk control models in security risk situations. Section 5 demonstrates the feasibility of the DT-based pit construction safety assessment model through engineering cases. Section 6 discusses the application of DT in FPE at this stage and concludes this study with future research directions.
2. A Digital Twin-Based Framework for Intelligent Risk Prognosis and Control of Foundation Pit Excavation
Previous studies have extensively examined the use of DT in various engineering scenarios (e.g., aerospace engineering, manufacturing systems, medical systems, etc.). Limited studies have examined the use of DT for risk prognosis and control during complex construction scenarios. Hence, how to enable DT-based risk prognosis and control of FPE is still challenging due to the complex job site environment with numerous uncertainties. According to the concept of a five-dimensional model [22] established by Tao based on the original three-dimensional model [23], the authors have proposed a risk prognosis and control model based on DT. The established digital twin model (i.e., DTM) can be represented using mathematic equations (shown in Formula (1)). Such a model could be used for representing various elements and processes during FPE processes. For example, the DTM of FPE includes, (1) the physical foundation pit construction site; (2) the finite element model in the virtual environment; (3) the collected multi-source heterogeneous information; (4) the security assessment criteria and control measures; and (5) the connection layer between the parts, respectively. Furthermore, data exchange processes between the physical and virtual environment are modeled and realized.
where:
DTM = (PE, VE, Ss, DD, CN)
- PE: Physical entities during FPE
- VE: Virtual entities during FPE
- Ss: Service
- DD: Digital twin data
- CN: Connections between elements
The proposed DT-based risk prognosis and control during FPE consists of five components: (1) a physical model represents the physical entities at the construction site during FPE; (2) a virtual model in the simulation layer represents the FPE simulations conducted in the virtual space; (3) a DT data processing module for fusing, processing, and analyzing the collected DT data (both monitoring data and simulation data); (4) a connection service module; and (5) an application module for risk prognosis and control during FPE. The five components of the proposed DTM are distributed into four parts in conjunction with actual engineering needs: (1) PE as the physical model in the physical world; (2) VE as the simulation model in the virtual space; (3) Ss and DD together to form the universal service module that contains service functions and DT data; and (4) CN to provide connectivity services. An overall framework is formed with the common service and assessment module at the center and the physical entity and simulation model around the outside (see Figure 2).
Figure 2.
An overall framework of foundation pit excavation based on digital twin.
The physical model represents all physical elements and interactive relationships among these elements in the real world during PFE, for example, the foundation pit structure, dynamic excavation job site with changing environment, excavators and other equipment, and relevant personnel. Such a physical model also captures all spatiotemporal details of physical elements and various interactions between humans and the physical environment, including: (1) execution of excavation activities by construction workers with relevant tools (human–physical interactions); (2) communications among excavation team crews (human–human interactions); and (3) spatiotemporal changes (e.g., changes of locations, shapes, stress, loading conditions, etc.) of the foundation pit, construction workers, and equipment. All such multi-source heterogeneous information, such as foundation pit, job site, environmental conditions, and personnel extracted from the physical model, is transmitted to virtual simulation software in real time to establish the corresponding models.
The simulation model is responsible for (1) establishing a physics-based model in the virtual simulation world that contains geometric and physical information based on the real-time information and data transmitted from the physical model, and (2) running simulations for examining various unsafe scenarios [24]. Such a simulation model in the virtual environment creates a twin model by achieving effective mapping using information collected from the physical world. For example, traditional finite element models created based on design documents could hardly represent the as-built conditions of the foundation pit during excavation processes. Model updating using the collected heterogeneous data for determining the most appropriate model parameters and boundary conditions is thus necessary for establishing a high-fidelity virtual model. Using such a model could help to examine various unsafe scenarios through Monte Carlo simulations. Simulation results will then be fed back to the physical space for making changes and updates to the FPE processes for ensuring safety. As a result, simulations can be performed before construction using finite element analysis (FEA) software based on the obtained address exploration report and the developed construction plan. The significance of such simulations is that some construction risks can be effectively avoided before construction. Furthermore, such analysis could help to validate the scientificity, feasibility and safety of the construction plan.
The universal module represents the interactions between the physical and virtual worlds. The mapping mechanisms and feedback loops between the physical and virtual models enable (1) effective data transmissions for creating and updating the virtual model, and (2) predictive guidance to the FPE processes in the physical world based on simulated results. Furthermore, the universal service module will calculate and process the collected information to evaluate the safety and feasibility of each step in FPE processes, and in case of unsafe events, control measures will be activated to ensure the safety of the next FPE step. The data from the universal service module are integrated within the physical model and the simulation model to complete the information interaction, and the processing of multi-source heterogeneous information reflects the characteristics of spatiotemporal evolution [25]. In addition, the CN is responsible for the connection service between each port, and through the network service protocol, B/S structure, and transmission interface that can complete various data conversions [26]; it ensures that the real-time data between each module can be efficiently transmitted through the local area network, thus forming an information connection service for all elements.
3. Construction of a Digital Twin Model (DTM) for Supporting Risk Prognosis and Control of Foundation Pit Excavation
The authors proposed a multidimensional DTM that consists of three components, namely (1) a physical space model that represents the data collected from the physical FPE job site, which contains multi-source heterogeneous information in the whole FPE processes, (2) a virtual space model that is established based on the real-time interaction between the physical and virtual world for establishing and updating the model in the virtual environment, and (3) spatiotemporal information fusion during FPE processes. The following is a detailed description of these three components.
3.1. Modeling of the Physical Space during Foundation Pit Excavation
Capturing sufficient spatiotemporal information from various sources in the physical world using different measures is important for establishing the DTM [27]. Such spatiotemporal information during FPE includes geological information, environmental information, and displacements of the foundation pit during FPE processes. The collected information will be fused and transmitted to the virtual space for mapping the real world to the virtual world [28]. Intelligent information collection is the first step to realize virtual reality interaction. The collection and transmission of various information will be used for establishing the DTM. The following explains (1) what information needs to be collected, and (2) how to collect such information for establishing a DTM for supporting risk prognosis and control of FPE.
- (1)
- Capture of geological information
Geological information includes engineering geology and hydrogeology conditions. The geological data of the construction site is especially important for FPE. Furthermore, engineers must make decisions based on geological conditions. Hence, the survey for geology is often carried out before construction. As an essential work in the pre-construction stage of engineering, geological surveys have also matured in practice and developed several common geological exploration techniques.
Physical prospecting techniques aim to capture various geological conditions such as formation lithology and geological structures. Using these techniques could help to study and observe changes in various geophysical fields. Integrated use of multiple physical prospecting techniques to survey a certain area, which has stronger adaptability, is thus favored by the practitioners. The advantages of using such physical prospecting techniques include low cost, high efficiency, and light equipment compared with traditional drilling technology. However, it is often used in conjunction with drilling because it cannot sample geotechnical bodies. In addition to these traditional measures, remote sensing techniques could also be used for collecting geological information. Such a technique is the collection of electromagnetic wave information of the earth at high altitudes and the processing and analysis of this information by scientific means to obtain the corresponding geological parameters.
- (2)
- Capture of environmental information
The physical and mechanical properties of the foundation pit are affected by the natural environment. Capturing the environmental information in real-time is necessary for diagnosing spatiotemporal changes in the FPE environment. Such environmental information includes (1) the effects of sunshine, (2) temperature, (3) humidity, (4) wind speed, and (5) rainfall.
Among these five environmental factors, rainfall and temperature have the greatest impact on FPE processes. For example, rainfall could result in increases in the water content of the soil, which results in reductions in soil strength and deterioration in structural stability. Furthermore, increased settlement may occur at the bottom of the foundation pit, which brings significant safety risks during FPE. In addition, low temperatures could result in icing conditions that form permafrost. FPE in permafrost areas will face two hazards of permafrost, freezing and thawing. Freezing and swelling refer to the process when the water condenses into ice, the mass remains the same, and the density becomes smaller as the volume increase. In this case, the soil will expand around, causing damage to the surface. Thawing is the opposite process of freezing and swelling; the temperature rises, ice melts into water, the volume becomes smaller, the surface is not supported by the ice, and the original expansion of the area will collapse back, and even form a collapse zone.
In addition, sunshine and humidity could both affect the FPE. The fractality, plasticity, and inhomogeneity of the rock will become larger due to the deepening of the weathering degree. The shear strength and compressive strength of the geotechnical body will show a trend of reduction, so the bearing capacity of the foundation is relatively small in the area with higher temperatures. Wind speed is also a critical factor that could jeopardize FPE safety. High wind speed will bring dust to the construction job site, which seriously affects the health of workers and construction progress. Excessive wind speed can also blow the site’s scattered instruments and parts, causing safety threats to the construction workers and bringing certain economic and property losses to the construction unit.
In response to the demand for real-time data pooling of the DTM, some sensors are arranged at the construction site to collect the environmental information of the construction area. The louvered box is widely used for monitoring the temperature and humidity in real time, the current wind speed is collected using an anemometer, and precipitation and sunshine can be obtained in real time through the constant refreshing of weather satellites. The intelligently collected information is brought together and stored in a database through web service protocols, B/S structure, and transmission links, where it is stored in the form of tables to achieve the integration of the elements. The visualized data can be presented through the cell phone terminal.
- (3)
- Capture of foundation pit displacements in all directions
FPE will change the original topography of the excavation area, which destroys the original mechanical equilibrium state and causes the stress redistribution phenomenon. As a result, the force acting on the object will make the object tend to move, so the foundation pit is often accompanied by deformation in the excavation process. In addition, the directions of forces and deformations are consistent. During the FPE process, engineers focus on the displacements of the foundation pit in both vertical and horizontal directions. The reason for the low degree of intelligence in underground engineering is that the nature of the geotechnical body is influenced by the natural environment, and the mechanical parameters of the same geotechnical body in different areas may be very different. Hence, the monitoring means of foundation pit displacement at this stage is mostly manual monitoring. The following is a brief description of the monitoring methods of foundation pit displacement.
Horizontal displacements mostly use the line-of-sight method (i.e., small angle method), polar coordinate method, angle rendezvous method, and double polar coordinate method. All such methods put the monitoring point and two working base points into a coordinate system, use the law of error propagation to eliminate the error, and finally determine the specific value of horizontal displacement through a geometric relationship. The monitoring of vertical displacement is the so-called foundation settlement monitoring, when monitoring the level meter, according to the collected data to draw the closed level route, to reduce human error, should ensure that the instrument, personnel, and route are fixed, also known as “three fixed”.
3.2. Modeling of the Virtual Space during Foundation Pit Excavation
During FPE, the mechanical properties and displacement will change after each construction step. Establishing a virtual model that could reflect all spatiotemporal changes is thus important. Simulation models in the virtual space can describe and portray physical entities in multiple dimensions. The virtual model (VE) consists of four components: geometric model (Gm), physical model (Pm), behavioral model (Bm), and rule model (Rm), namely VE = (Gm, Pm, Bm, Rm). According to the actual job site environment and the dynamic behaviors of the foundation pit structure during FPE processes, the model of each dimension is associated and integrated to achieve a comprehensive and deep virtual simulation.
In the virtual environment, establishing a geometric model is the first and most basic step for representing all geometrical details of entities in the physical space during FPE. Such a geometric model should represent the size, location, shape, and other geometric parameters of all physical entities of the foundation pit during excavation processes. Various 3D modeling software could help to achieve precise geometric modeling, for example, AutoCAD, Revit, and 3DMAX [29]. For establishing such a virtual model, tags should be arranged at each key node through the RFID technique for obtaining information on all key nodes. The label has basic information, such as label number and location. Furthermore, mechanical and displacement sensors are installed at key locations around the foundation pit. Such sensors collect the actual time series measurement data of each physical entity during various steps of FPE. Using such measurement data as input could help establish and update the virtual model of FPE continuously [30].
Establishing a physics-based model in the virtual environment is also important. Such a physics-based model represents physical constraints based on the geometric model. Such physical constraints aim at correcting the model in the virtual environment and achieving precise mapping of the physical entities. Finite element software, such as FLAC3D, could be used for establishing such a physics-based virtual simulation model and structural analysis of the foundation pit. The mechanical parameter includes soil pressure, modulus of elasticity, shear modulus, and Poisson’s ratio when modeling using FLAC3D. The soil pressure is the cause of foundation displacement. All such mechanical parameters are available from the geological condition exploration reports. The material of the support structure has its own material parameters, such as compressive strength, which will be standardized at the time of delivery. The corresponding material parameters are different for different types of members. A good physics-based model provides model and data support for risk prognosis and control of FPE in the physical and virtual worlds. The geometric model conveys information to the physical model in the virtual environment, reflecting the characteristics of informationization and digitization of the DTM model. Simulation results from the physical model could provide feedback to guide real-world FPE processes. The geometric model and physics-based model complement each other to achieve multi-source heterogeneous information aggregation, transmission, and analysis. The simulation results follow the law of spatiotemporal evolution and realize the dynamic service of DTM in the whole operation and maintenance process.
The behavioral model aims at representing the external environment and disturbances of physical entities at the different granularity and spatiotemporal scales. As a result, the model represents real-time responses and behaviors of different internal operational mechanisms generated by multiple FPE elements. According to the actual working conditions during FPE, initial boundary conditions are established using FLAC3D for simulations of each FPE step. After each round of the simulation, the model will be modified according to the data collected from the real-world environment and be used for simulating the following FPE steps. The authors have analyzed the cloud maps obtained through simulations for obtaining changes in mechanical and material parameters. The behaviors fed back from the behavioral model data include evolutionary behavior over time, dynamic functional behavior, performance degradation behavior, etc. The DTM should be able to examine the risk level of FPE concerning the corresponding parameters. Creating such a behavioral model for representing all physical entities of FPE is complex and requires a combination of multidisciplinary knowledge. Hence, creating such models could be done using various methods (e.g., ontology-based method, Markov chains, finite state machines, etc.). The process of building the model should add both spatial and temporal dimensions to the behavioral model to make sure that the physical and geometric models could represent the spatiotemporal extrapolation process of the virtual and real worlds and to ensure the precision of the established models.
The rule model is the guarantee of risk assessment that continuously monitors data from the geometric model, physical model, and behavioral model to ensure the safety of tedious FPE processes. The value setting of the rule model is prepared concerning the specification and strictly conforms to the industry regulations and national requirements. The simulation data obtained from the behavioral model ensures that various types of working conditions of FPE could be examined. In addition, the rule model also includes regular rules synthesized based on historical records and non-industry normative indicators, such as experience based on tacit knowledge summaries. Non-industry indicators are mostly engineering experience and can be used as secondary conditions to assist industry regulations and assess the safety performance of FPE. We use these indicators to avoid possible risks, pass the risk level into the risk control model, give the corresponding control measures in the model, and realize the guidance for the actual project to ensure the safety of FPE.
The authors have established a process model (see Figure 3) for creating the virtual simulation model of the DT. The established virtual simulation model can be expressed using Formula (2). In this formula, VP is a virtual simulation model established based on DT for representing various physical entities of FPE. Elements in the model set include: (1) geometric model set (gMset); (2) physical model set (pMset); (3) behavioral model set (bMset); and 4) rule model set (rMset). Using such a model could help to represent four elements of the twin model (i.e., geometry elements, physics elements, behavior elements, and rule elements). We associate the physical and virtual models through two dimensions, physical and virtual entities. Dynamic sensing and intelligent collection of data is obtained through RFID and sensors. Real-world data guides virtual-world model building, virtual-world simulation results guide real-world construction, and multi-source heterogeneous information from the physical and virtual models intersect. The risk level is determined by the behavioral model, and the information obtained is evaluated and analyzed using Markov chains. Time-dimensional information and other elements could be fused and represented in real and virtual space. The virtual simulation model based on DT, and the risk control model constructed based on the Markov chain, is used in combination to achieve a real-time risk assessment of FPE processes.
VP = (gMset, pMset, bMset, rMset)
Figure 3.
A process model for creating digital twin (DT) virtual simulation model.
3.3. Fusing Spatiotemporal Information during Foundation Pit Excavation
FPE will be affected by many factors. The properties and parameters of the rock and soil mass of the foundation pit will change with the construction. DTM uses physical data to establish a geometric model; the collected information needs to be integrated with the spatial and temporal dimensions of the FPE process. The virtual model uses existing information to perform simulations; the results can be used to guide the next steps of FPE processes. Multi-source heterogeneous information interacts between the virtual world and the real world. Hence, establishing a reliable data analytics model is thus vital for risk prognosis and control during FPE processes.
During typical FPE processes, the state of the foundation pit in the next excavation step is only related to the parameters of the current excavation step. Hence, taking advantages of the Markov chain model for representing the state transitions during FPE processes is necessary for comprehending the safety risks. The chain structure is an important feature of Markov chain-based machine learning [31]. With this theoretical basis, the Markov chain can be introduced into the risk control model for examining the safety status of the current FPE step. The derived probability of unsafe accidents due to changes in mechanical parameters during FPE could be used for examining and predicting safety risks of the next FPE step. Risk sources include potential safety hazards caused by improper operation of construction personnel and risks caused by changes in environmental factors near the construction site. Furthermore, the bow-tie model has been widely used for examining safety risks and mitigating the identified risks through control measures. Such a bow-tie model has a logical relationship similar to a tree, and each case has corresponding measures. The authors thus integrate the bow-tie model in the proposed DTM for examining the safety performance of the next FPE step according to the results of the finite element simulation.
The DTM enables real-time data transmission and processing for risk prognosis and control, which is more advanced compared to traditional construction methods. Simulation of various working conditions is performed by using FEA software. How to ensure the reliability and realism of the simulation has troubled many scholars. The digital twin system uses the latest data collected after the previous construction step for each simulation. This type of simulation focuses more on the impact of each construction step on the overall construction status than the original simulation. Data acquisition also makes use of advanced equipment such as displacement sensors and mechanics sensors. Smart sensors have increased sensitivity to displacement and the accuracy of data acquisition is guaranteed. Combined with the simulation and monitoring values of the project, the author found that the final error was less than 30 mm. This conforms to the provisions of the Technical Standard for Monitoring of Building Foundation Pit Engineering (GB 50497-2019) [32] and can ensure the safety and reliability of construction in accordance with the specifications.
In this study, the authors used the horizontal displacement and the change rate of horizontal displacement of each FPE step as the measurement and threshold for examining the state transition process. Table 1 lists the accuracy requirements and threshold for horizontal displacement monitoring according to the “GB 50497-2019 Technical Standard for Monitoring of Building Foundation Pit Engineering”. The system records the safety performance as Status I when the horizontal displacement and the change rate of horizontal displacement of each FPE step are both within the threshold. If only the accumulated value of horizontal displacement exceeds the threshold, the system will enter Status II. If only the change rate of horizontal displacement exceeds the threshold, the system will enter Status III. When the horizontal displacement and the change rate of horizontal displacement of each FPE step both exceed the threshold, the system will enter Status IV.
Table 1.
Accuracy requirements and threshold for horizontal displacement monitoring.
Figure 4 shows the state transition diagram established on the Markov chain model during FPE. Various information could be fused through such a state transition process. The use of Markov chains allows an advanced estimation of the safety of the next construction step prior to construction, which is then combined with the results of numerical simulations to provide a comprehensive assessment of safety performance. This approach can minimize the occurrence of unsafe events and identify unsafe factors in advance for maintenance measures. Figure 4 shows the safety state transition process of the foundation pit structure during FPE. The random variable represents the overall safety level of the foundation pit in the nth FPE step. For example, the overall safety performance of the foundation pit is at Status I (Xn = 1; Xn = 2, 3, 4 for Status II, III, and IV, respectively). represents the conditional probability that the nth FPE step is in the ith state. Namely, . The conditional probability is the probability of possible scenarios for each operating condition as summarized by finite element model simulations and engineering experience. defines the conditional probability that the current and the next FPE states are i and j, respectively. In this study, the transition probability (pij) is obtained from the finite element model for the working conditions. The displacement values between the construction steps are compared by the finite element model. Namely, , where i, j = 1, 2, 3, or 4. In this study, the transition probability (pij) is obtained from the finite element model for the working conditions. According to the full probability formula, the probability of various working conditions can be calculated: . Markov chain theory assumes that the result of the current FPE step is only influenced by the result of the previous step (i.e., it is only related to the initial value of this step). Each FPE step can be viewed as a relatively independent event. The probability of each construction step in state j is calculated, and the weighted sum is used to obtain the probability of the whole in this state.
Figure 4.
A state transition diagram during FPE based on Markov chain.
4. Risk Prognosis and Control of Foundation Pit Excavation
FPE is known as one of the most dangerous construction activities, which threatens the safety of all involved construction personnel. Effective risk prognosis and control are thus necessary for ensuring construction quality and personnel safety in case of unsafe events [33]. The establishment of an efficient and feasible model is the premise for unsafe events control. The bow-tie model is widely used in civil aviation accidents [34] for representing various events with preventive and control measures for mitigating risks. Such a model could be divided into three parts: (1) fault tree model, (2) top events, and (3) event tree model. The bow-tie model can determine the event type based on the simulation results of the virtual model. If any risks and insecurity factors have been identified, the event is defined as an unsafe event. Each unsafe event will have corresponding control measures for mitigating risks caused by unsafe events. The bow-tie model could thus help to achieve risk prognosis and control during FPE (see Figure 5).
Figure 5.
The developed bow-tie model for representing preventive and control measures of FPE.
The fault tree model is used for representing correlations among various risk sources and preventive measures. The event tree model is used for representing the control measures and results. Hence, safety level can be determined. The top event also has the function of connecting the fault tree and event tree. In the proposed bow-tie model, the risk source part in the fault tree contains numerous root causes of accidents that occur during FPE. Risk sources include potential safety hazards caused by improper executions of FPE activities of construction personnel and risks brought by changes in environmental factors near the construction site. The fault tree also has corresponding preventive measures for mitigating risks of unsafe events during FPE. Top events have their judgment system. The engineer is in accordance with the relevant national industry specifications and years of technical experience in construction.
Through the bow-tie model, the authors realized the feedback from the discovery and analysis of risk sources to the outcome events. The bow-tie model optimizes problems, such as insufficient quantification of the FPE risk control model. The authors used the bow-tie model for segmenting the model into: (1) basic event part (BE); (2) intermediate event part (IE); (3) top event part (TE); (4) control event part (CE); and (5) result event part (RE) [35] (as shown in Formula (3)).
BE = (BEm, m = 1, 2, 3, …, m)
IE = (IEn, n = 1, 2, 3, …, m)
TE = (TE1, TE2)
CE = (Cep, p = 1, 2, 3, …, p)
RE = (REq, q = 1, 2, 3, …, q)
IE = (IEn, n = 1, 2, 3, …, m)
TE = (TE1, TE2)
CE = (Cep, p = 1, 2, 3, …, p)
RE = (REq, q = 1, 2, 3, …, q)
In the developed bow-tie model, BE defines the basic event part in the model, which corresponds to risk sources during FPE; IE defines the intermediate event part in the model, which corresponds to the preventive measures in the bow-tie model; TE refers to the top event part. TE events are classified into two categories, namely (1) safe events and (2) unsafe events. Effective control measures should be taken for unsafe measures to avoid safety accidents caused by unsafe events during FPE. CE defines control event (control measures), which is the process of taking feasible control measures for mitigating risks caused by unsafe events; RE represents the result event and the foundation pit status after control measures are taken. Figure 6 shows a diagram based on the bow-tie model of control measures of unsafe events during FPE.
Figure 6.
Bow-tie model-based risk control of unsafe events during FPE.
5. Case Study: Foundation Pit Excavation of the Wuhan Metro Line 7
5.1. Project Overview
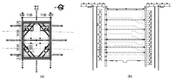
The authors have used an FPE of Wuhan Metro Line 7 as a case for validating the proposed DT-based risk prognosis and control method. This case study investigates the settlement during the FPE of the metro line. The air shaft between Xinlucun Station and Dahualing Street Station is also the No. 3 connecting passage and pump house, which is adjacent to the intersection of Wenhua Avenue Tangxunhu Bridge and the planned road. The design elevation of the existing ground within the site is about 22.73 m. According to the survey data, the site of the project is the Class III terrace (denuded ridge area) of the Yangtze River and the lake area on the Class III terrace. The depth of the air shaft foundation pit is 33.23 m, the width of the wastewater tank is 25.00 m, the total length is 22.50 m, and the total area is 562.5 m. There are no other structures or facilities directly above the foundation pit, and the construction site conditions are good. Cultural Avenue is the connecting channel between Jiangxia Century Avenue and Wuhan Third Ring Road. Figure 7 shows the job site environment and the relative position of the foundation pit and pile of the adjacent bridge.
Figure 7.
Job site condition.
According to the proposed DT-based risk prognosis and control framework, the physical information is collected, and the virtual model is established. The authors have examined the safety performance of each FPE step using the proposed Markov chain model. Furthermore, the authors used the bow-tie model for modeling unsafe events, preventive and control measures. Then, a DT-based risk prognosis and control model is thus established. First, the physical information is collected from the construction site via various sensors. The model is then established in the virtual space using the information transmitted from the physical world. Hence, the risk control model controls the output of unsafe events, thus ensuring the safety of each construction step of the foundation pit project. In this study, the settlement during the excavation of the wind shaft pit in the metro area is the main subject of study. The construction of the pile cap support during the excavation of the pit is guided by DT.
“Bored cast-in-place piles with steel supports” is a well-stressed and widely used internal support structure, which is usually used in subway open excavation foundation pit support structures. This support form starts early, has mature technology, is convenient for construction, and applies to relatively complex stratum conditions. When there are buildings or structures sensitive to displacement and internal force changes or dense and complex pipeline systems around the foundation pit, this kind of support structure has great advantages. The total area of the air shaft foundation pit in this section is 562.5 (depth: 33.2 m, length: 25 m, width: 22.5 m).
Considering the geological environment and checking calculation by relevant design software, the retaining structure of the foundation pit adopts reinforced concrete piles with a diameter of 1200 and a spacing of 1400 to bear the earth pressure. Plain concrete jet grouting piles with a diameter of 800 are used between reinforced concrete to stop the water. A 700 mm × 1800 mm reinforced concrete crown beam is set at the top of the enclosure pile. The first support and the fourth support are concrete supports. The size of the first support is 600 mm × 700 mm, and the size of the fourth concrete is 600 mm × 800 mm. The remaining supports are steel pipe internal supports, of which the second and third are steel supports with a diameter of 600 mm, and the fifth and sixth are steel supports with a diameter of 800 mm. Except for the first support, other supports are supported on an 800 mm × 1000 mm concrete waist beam. The vertical spacing between the supports from top to bottom is getting closer and closer, and a support change is set between the sixth support and the fifth support. Figure 8 shows a schematic diagram of excavation processes.
Figure 8.
A schematic diagram of excavation processes.
Various monitoring points have been arranged before the construction of this FPE. Corresponding monitoring points are installed on the surface of the retaining pile during FPE and the construction of concrete and steel pipe internal supports.
- (1)
- Horizontal and vertical displacement of the top of the wall (slope)
Key points for monitoring horizontal and vertical displacement at the top of the enclosure wall or the slope of the pit are arranged along the perimeter of the pit. The horizontal spacing of monitoring points should not be more than 20 m. Generally, the deformation is larger at the middle and yang corner of each side of the foundation pit. Therefore, measurement points are set at the middle and yang corners. In order to facilitate monitoring, the horizontal displacement monitoring points are used as the monitoring points of vertical displacement at the same time. This is in order to measure the change of distance between the monitoring point and the baseline. The measurement points on each side of the foundation pit should not be less than three points. The observation point is set on the concrete parapet of the pit slope or the top of the enclosure wall (crown beam). Such setting of observation points is conducive to the protection of observation points and improvement of observation accuracy.
- (2)
- Deep horizontal displacement
The monitoring of the deep horizontal displacement of the enclosure wall or soil body is the most direct means to observe the deformation of the foundation pit enclosure system. The monitoring hole is arranged at the position with the largest calculated value of deflection on the plane of the foundation pit. Generally, it is suitable to be arranged in the middle of the pit perimeter, at the sunny corner, and at the representative part. The horizontal spacing of monitoring points should be 20 to 50 m, and the number of monitoring points should not be less than one per side. Deep horizontal displacement observation is mostly observed by inclinometer at present. When the inclined pipe is buried in the body of the enclosure wall, the length of the inclined pipe should not be less than the depth of the enclosure wall. When the inclined pipe is buried in the soil, the length of the inclined pipe should not be less than 1.5 times of the excavation depth of the foundation pit and should be greater than the depth of the retaining wall. Table 2 below shows the monitoring and measuring table of foundation pit.
Table 2.
Monitoring and measuring table of foundation pit.
For analysis, the authors have divided the FPE into several construction steps (as shown in Table 3). The excavation depth between each construction step is about 2 to 3 m. During the excavation, the excavation elevation is recorded at any time, and the measurement data after each construction step is used for analysis.
Table 3.
Major excavation activities.
5.2. Engineering Geology and Hydrogeology in the Project Case
The project site is located next to and on both sides of Culture Avenue, which is a flat terrain with little ground undulation. The ground elevations are between 21.0 and 24.8 m. The shield interval of the Lake Townsend section crosses Lake Townsend along the east side of the Townsend Lake Bridge. The water surface elevation of Lake Townsend during the survey is 18.5 to 19.2 m, and the water depth is about 1.5 to 3.0 m. According to the survey results, the site of this project is hidden class II terrace.
As for the lithology of strata of this project, the main soil layers of the proposed project site contain: (1) artificial fill (i.e., a mixture of clayey soil, gravel, and household waste); (2) clay (Q4al and Q3al + pl); (3) powdered clay (Q4al); (4) clay with gravel (Q3pl + dl); and (5) seven layers of medium-weathered and strongly weathered muddy siltstone. The color of strongly weathered mud siltstone is brown to tawny, mainly composed of mudstone, sandstone, and quartzite rock fragments, which contains iron oxides. The exposed thickness of the strongly weathered muddy siltstone is 0.60 to 12.20 m, and the burial depth at the top of the layer is 3.20 to 25.60 m. The color of the medium-weathered muddy siltstone is brown to maroon. The medium-weathering muddy siltstone is mainly composed of mudstone, sandstone, and quartzite rock fragments.
For the hydrogeological conditions, the surface water within the proposed project site is mainly the Townsend Lake and the Dousi River. Atmospheric precipitation and other runoff recharge are the main conditions for water level fluctuations in the region. Water level and volume are significantly affected by season and rainfall. The water level rises during the rainy season when the water volume is high. The water depth during the survey is generally 1.30 to 3.20 m. The groundwater in the proposed site is mainly loose material pore water and diving, which is slightly corrosive to the steel. The main soil layers present in the basement are the strongly weathered and moderately weathered upper soil layers. The recharge is by way of Townsend Lake and its tributaries. Water level changes are greatly influenced by season and rainfall. According to relevant geological water system information, high groundwater level is from April to October every year. The groundwater level during the survey was around 8.10 to 9.20 m below the surface, with annual variation values of 1 to 2 m.
5.3. Establishment of Physical and Geometric Models
At the FPE job site, there are sensing devices to collect real-time geological information, environmental information, and displacement information. The DT information, component information, slope information, environmental information, and personnel information will be extracted and updated at each construction step during the FPE processes.
RFID tags shall be attached to each component, and the tag number, basic information, engineering information, etc., of the component shall be filled in the tag, and this information shall be entered into the RFID electronic tag and attached to the corresponding component. Before construction, the RFID handheld terminal scans the electronic tags on the components to obtain the initial values of each element of each component [36]. During the construction process, the component information can be dynamically collected and intelligently transmitted using radio frequency identification technology. The data will be updated at the end of every FPE step, and new data will be transmitted.
The slope information involves many different types of information, such as the horizontal displacement of the foundation pit wall, the vertical displacement of the foundation pit, etc. Horizontal displacements of the pit during excavation processes are measured with an inclinometer, and the vertical displacement can be measured with a level. These need to be measured manually. In addition to this, displacement sensors were used in this case to monitor the displacements of the pit sidewalls and key nodes of the support structure. The soil pressure is monitored in real time with mechanical sensors and the final stabilized mechanical parameters are used to update the finite element model. After each construction step, the new data measured will be reported and transmitted to the computer.
Personnel information includes physiological factors such as heart rate and blood pressure, the current position of a person, and emotional factors. The collection of physiological factors can enable employees to wear smartwatches. By collecting the physiological data of employees with smartwatches, smartwatches can be reused in the next project, reducing costs. The collection of specific location information of personnel can also be completed by smartwatches. Emotional factors are more complex, and the current psychological level cannot monitor psychological factors in real time, so we can only take the usual means to prevent and relieve bad emotions from psychological factors. Therefore, only conventional means can be used to prevent and alleviate the negative psychological factors and try to avoid their impact on the work. In this regard, the construction team can arrange weekly counseling and coaching sessions to avoid possible risks by the most professional means.
The environmental information can be judged according to the weather forecast of the day. On-site real-time monitoring requires the use of louver boxes, anemometers, and other instruments. The temperature and humidity can be measured according to the leaf box. The four walls of the leaf box are composed of two layers of thin wooden strips. The outer layer of the louver strips inclines inward, and the inner layer of the louver strips inclines outward. The intersection angle between the louver strips and the horizontal is 45 degrees. There are many meteorological observation instruments inside the louver box. Various instruments work in the box, and various environmental factors are displayed in numerical form. An anemometer is an instrument for measuring air velocity. In windy weather, the wind cup of the anemometer will rotate with the wind, and the specific value of the current wind speed will be determined according to the rotating speed of the wind cup. An anemometer has the advantages of a wide application range, small volume, and high accuracy, and is widely used in various wind speed measuring places. The thermometer displayed in Figure 9 represents the temperature at which the thermometer is located; ‘out’ represents the temperature at which the probe is located; the percentage sign is the humidity at the probe location.
Figure 9.
Thermometer and probe.
5.4. Establishment of the Virtual Model
- (1)
- Modeling assumptions and parameters
The Morh–Coulomb plasticity model under elasto-plasticity mechanics is used in general for soil, rock, and concrete materials. The core of the model is the Mohr–Coulomb damage criterion, which is the theory of damage equilibrium of the soil body. The difference in damage characteristics between soil and other materials of metal is that the physical quantity of the soil’s ability to resist shear damage is the magnitude of the surrounding pressure. Soil shear damage occurs under the action of surrounding inhomogeneous pressure, and different soils correspond to different resistance to shear damage. To calculate the parameters related to the shear damage of the soil, we use only the internal cohesion of the soil and the friction angle, i.e.,:
When in the elastic phase, the forces and deformations on the material follow the generalized Hooke’s law. After the material reaches the plastic stage, the stress–strain curve of the material begins to conform to the Mohr–Coulomb criterion. In order to make the simulation more realistic, several assumptions are set for the simulation before building the model: (1) the consolidation of each soil layer has been completed due to its own gravity and additional stress before the excavation of the foundation pit; (2) the soil layer to be excavated is continuous and homogeneous soil particles and has isotropic mechanical characteristics, which is consistent with the calculation theory of Morh–Coulomb model; (3) the groundwater table is in the medium-weathered soil layer; and (4) the soil is viewed as a continuous homogeneous isotropic elastic-plastic material. Table 4 shows the soil mechanical parameters used in this study.
Table 4.
The soil mechanical parameters.
For the supporting structural units, a total of concrete supports and steel pipe supports are included. According to the basic assumptions and actual engineering needs, each structural parameter is shown in Table 5 below.
Table 5.
Material parameters of concrete and steel.
- (2)
- Constraints of the model and model specifications
The boundary conditions of the model established in this simulation are displacement boundaries. The excavation of the foundation pit caused vertical settlement and horizontal displacement of the soil. Therefore, this model only considers the enclosure structure and the amount of soil displacement change of both. All the surrounding boundaries of the edge soil are set with fixed constraints for simulating the soil displacement of the actual project.
When building the model, we ensure the accuracy and speed of the calculation results and the stable physicochemical properties of the soil. The soil body is assumed to be an ideal elastic-plastic body. The more nodes included in the model, the greater the width and depth of the surrounding soil, and the more accurate the calculation, but it is pointless to keep building more and more tables and bigger models indefinitely. When a certain threshold is exceeded, the impact of pit excavation on the surface and interior is zero. According to the relevant simulation experience, the model is generally taken as 3–5 times of the depth and width of the foundation excavation. Outside this range, the soil is negligibly affected, so that the modeling can not only reduce the number of meshes, but also improve the computational efficiency. The dimensions of this pit are 25 m × 22.5 m × 32.6 m. The horizontal direction of this model takes 20 m on each side of the pit. The vertical direction is taken to 45 m below the bottom of the wind shaft enclosure. The longitudinal calculation length is taken as 63 m. We build the calculation model (65 m × 67.5 m × 63 m). In order to increase the accuracy of the simulation results, the topographic undulations were considered when building the model, and the grid division of the soil above the bottom of the foundation pit is encrypted. The number of model cells is 850,141 and the number of nodes is 864,796. The meshing and grouping of the model are shown in Figure 10.
Figure 10.
FLAC3D meshing.
- (3)
- Validation of finite element model
Differences exist between the measured value from the monitoring data and the simulated value derived from FEA software. Such differences are always due to soil stratification. Different rock and soil have different mechanical properties, and the self-weight stress received by rock and soil increases with the increase of depth. Therefore, the stress of rock and soil mass at different locations is different. This leads to errors between the finite element simulation results and the actual values based on field monitoring. Furthermore, the settlement of the foundation pit is affected by additional stress and compression modulus. The influence factors of additional stress are depth and additional coefficient α, compression coefficient , and void ratio e. However, the void ratio is measured from the actual site condition. Therefore, the calculation error of the finite element model can be eliminated by updating the compression coefficient in the boundary conditions and the additional coefficient. Compression modulus is related to elastic modulus, shear modulus, and bulk modulus. Since the value of the additional coefficient is often very small and with small variations, the model could be updated by updating the . Thus, the adjusted model could achieve the consistency between the simulated value and the monitored value, and the updated model is more accurate and reliable for simulations.
- (4)
- Data acquisition and simulation
The data collected by various instruments and transmission devices, such as sensors, intelligent bracelets, anemometers, and shutter boxes, are transmitted to the virtual world, and multi-source heterogeneous information is fused in the virtual space. Firstly, RFID is used to collect the basic information of components, and then the sensor collects the data of each key node. For complex nodes, displacement meters are also used to extract node deformation data. The collected point data are output from the sensor to the computer’s data acquisition cards (A/D converter) or other sampling devices. An A/D converter converts the analog to digital quantity as data that the computer can recognize. We input the data of the sensor imported points as coordinates into FLAC3D. In this process, the newly obtained data after each construction step are compared with the original data. The changed key node coordinates are updated in FLAC3D to obtain the geometric and physical model that is closest to the actual working condition.
According to the behavior of components, the structure and the earth pressure are borne by the structure. In the finite element model, we set the corresponding rock and soil parameters, component materials and parameters, and mechanical parameters, and simulate the results under various working conditions. FLAC3D uses FISH language to write programs. FISH language can input the data identified by RFID technology into FLAC3D in the form of coordinates. The geometric model is established in FLAC3D, and the current working condition is simulated. After each construction step, various instruments transfer new data to the computer. The technician changes the corresponding parameters by changing the code in FLAC3D. The model in FLAC3D will also update the physical model by changing the coordinate points, part material parameters, and mechanical parameters according to the newly collected data.
The solid properties related to temperature are also subject to change. When the temperature field changes, thermal stresses are generated within the rock system. Studies have shown that the thermal conductivity of rocks decreases with increasing temperature, while the specific heat and thermal conductivity increase with increasing temperature. The temperature of fractured rock increases, fractures close, the number density of open fractures decreases, and hydraulic conductivity decreases. The effect of the temperature field on the stress field is also reflected in the fact that changes in temperature will result in larger changes in pore fluid pressure. When the stress field changes, there is a mechanical energy conversion inside the rock body. The simulation process for the temperature stress field is to turn off the temperature field and input the initial stress parameters together with boundary conditions. When the temperature of the rock body changes, thermal stress is generated, and considered as an equivalent load in the principal structure equation. Then, we open the temperature field to set the coupling step of the stress field and temperature field. The stress field and temperature field are superimposed to obtain the result of temperature stress coupling with each other.
The geometric model integrates the multi-source heterogeneous information collected at the construction site, and the physical model is established in FLAC3D. The established virtual model (consists of a physical model, a geometric model, a behavior model, and a rule model) can thus be used for risk prognosis and control during FPE. The physical model reflects the real characteristics of the object in the objective world. The geometric model can reflect the possible future state of the object under study. The behavior model and rule model can evaluate and guide the current construction state. Figure 11 shows the horizontal displacement nephogram of each working condition.
Figure 11.
Horizontal displacement nephograms of each working condition. (a) excavation to a level 0.5m below the second support; (b) excavation to a level 0.5m below the third support; (c) excavation to a level 0.5m below the fourth support; (d) excavation to the pit bottom.
Figure 11a shows that after the first step of excavation, the soil at the bottom of the pit appears to be elevated with an elevation value of 6.62 mm. The ground surface around the foundation pit began to settle, and the relatively large settlement value was at 2–3 m from the edge of the pit, but the maximum value of settlement was not very large. This is because the construction of the first mixed soil internal support was carried out before the excavation of the foundation pit. This relatively stiff internal support effectively suppressed the displacement of the soil of the enclosure pile. Figure 11b shows that after excavation to 0.5 m below the third support, the maximum settlement of the soil around the pit is 7.34 mm, which is about 3–4 m away from the edge of the pit. Compared with Figure 11a, the maximum settlement location is far from the edge of the pit. Figure 11c shows that with the excavation of the soil, the settlement of the soil around the foundation pit continues to increase. The maximum displacement was 9.94 m when the excavation reached 0.5 m under the fourth support, which was about 4 m from the edge of the foundation pit. Figure 11d shows that the maximum settlement of the soil around the pit after excavation to the design elevation at the bottom of the pit is 15.2 mm, which is about 4 m from the location of the edge of the pit. The vertical displacement cloud of the foundation pit has been quite stable. The vertical displacement varies more relative to the previous excavation conditions because the fifth and sixth courses are steel supports, which are less stiff compared to the concrete supports. Another reason is that as the depth increases, the lateral force of the soil on the support structure increases, but overall, the vertical displacement is far from 30 mm, which is in line with the relevant national specifications
5.5. Deformation Monitoring during Foundation Pit Excavation
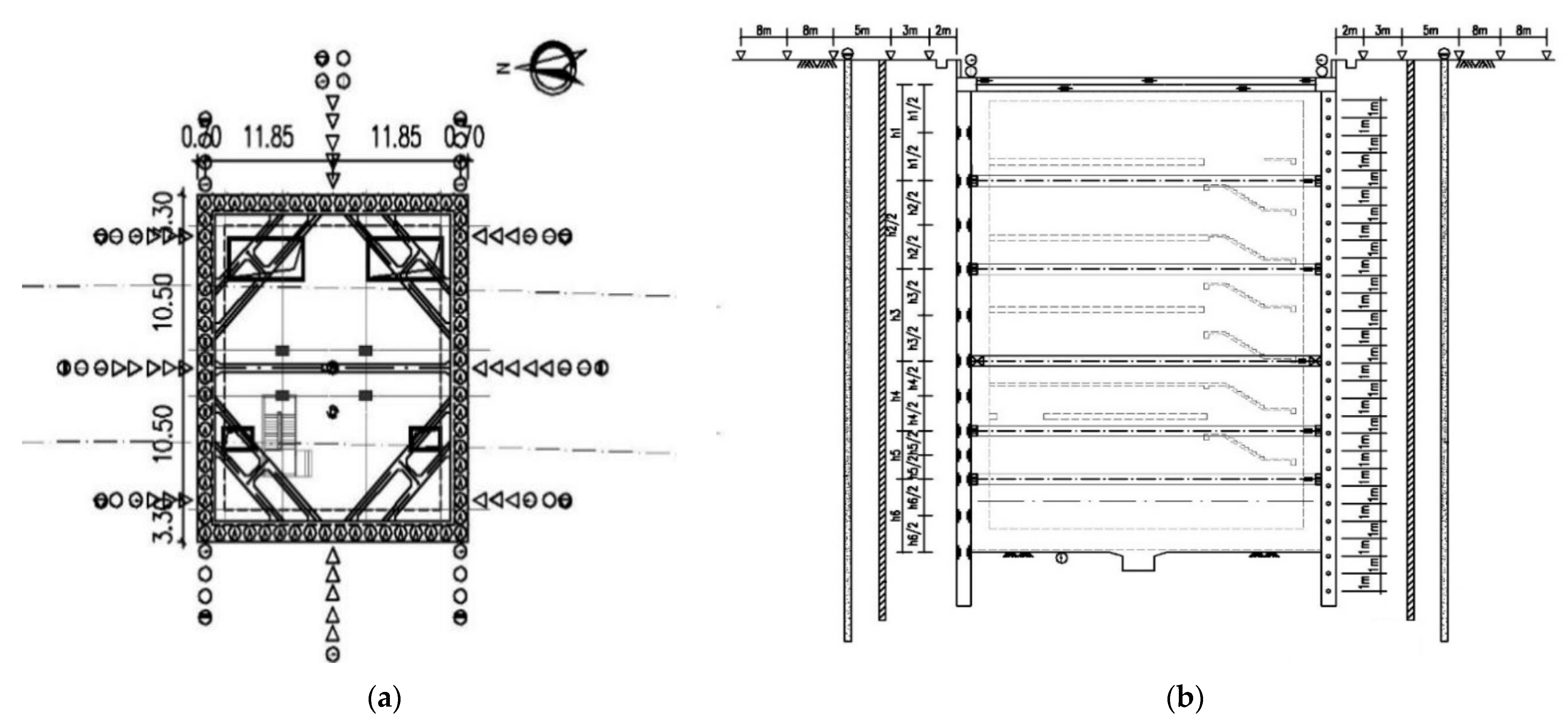
During the excavation of the foundation pit, the soil structure is destroyed, and stress redistribution occurs in the geotechnical body. The mechanical properties of the geotechnical body will also change accordingly. After each excavation, the geotechnical body around the foundation pit should be monitored promptly to ensure that all indicators are within the safe range. Horizontal displacements should be continuously monitored during FPE for the construction of the subway station. The monitoring instrument is a skew meter, and the detection accuracy is controlled at 0.3 mm. Monitoring of horizontal displacements of the foundation pit is mostly carried out manually in the current practices. Therefore, construction workers are required to take measurements with inclinometers at the end of every FPE step and enter the measurement data into the computer promptly in order to realize real-time updates of foundation pit horizontal displacement data. The pit survey layout plan and pit survey profile layout are shown in Figure 12.
Figure 12.
Foundation pit measurement layout plan. (a) cross-section from top view; (b) section of pit measurement.
In the layout plan (Figure 12), on both sides of the foundation pit: (1) an inverted triangle indicates surface subsidence; (2) circles represent pile deformation; (3) the horizontal arrow in the circle represents the horizontal displacement of the pile; (4) the vertical arrows in the circle represent column settlement; (5) the triangle in the circle indicates the lateral deformation of the soil; (6) the black triangle represents building settlement; (7) the vertical dashed lines in the circles indicate pile top settlement; and (8) half of the circles are horizontal lines indicating the location of the groundwater table. The cross-section of the pit survey layout reflects the location and support form of each steel support. Support pile steel strain gauges should be set on the side facing the soil and on the side of the pit. Figure 13 shows the horizontal displacements of the foundation pit under different FPE steps.
Figure 13.
Horizontal displacements of the foundation pit under different FPE steps.
Figure 13b shows the horizontal displacements of the containment pile body in the middle of the north side of the pit for different FPE steps (e.g., the green line represents before excavation; the blue triangular line represents excavation to 0.5 m below the second course; the light blue square line represents excavation to 0.5 m below the third course; the brown line represents excavation to 0.5 m below the fourth course; the dark blue square line represents excavation to 0.5 m below the fifth course; and the red line represents excavation to the bottom of the foundation pit). Figure 13c shows the horizontal displacements of the enclosure pile body in the middle of the east side of the pit for different FPE steps (e.g., the black line represents before excavation; the blue square line represents excavation to 0.5 m below the second course; the red line represents excavation to 0.5 m below the third course; the dark blue star line represents excavation to 0.5 m below the fourth course; the brown line represents excavation to 0.5 m below the fifth course; and the green line represents excavation to the bottom of the foundation pit).
During the excavation of the foundation pit, the excavation side of the pit was always on the east side of the pit. So, the overloading of the soil pile makes the cumulative displacement on the east side become large. The displacement of the crown beam on the east side is positive and moves toward the inside of the pit. The force is transferred to the north side through the concrete support, which makes the crown beam on the north side move out of the pit. After the excavation of the foundation pit was completed, the accumulated displacement on the east side was 2.03 mm larger than that on the north side. It can be seen that the ground overload has a large impact on the displacement of the enclosure structure, and the soil on the ground should be transported away in time after excavation. As the excavation depth of the pit increases, the maximum point of lateral displacement also changes. The position of the maximum point keeps moving downward, and the amount of pile displacement change finally shows a shape, large in the middle and small at both ends. According to the basic principles of geomechanics: this is caused by the point of combined earth pressure located at 1/3 of the excavation depth of the foundation pit from the bottom of the foundation pit.
The horizontal lateral displacement of the enclosure structure gradually accumulates with the increase of the excavation depth of the pit. Generally, it reaches the maximum when the pit is excavated to the design elevation at the bottom of the pit. The authors plotted the monitored and simulated values of the horizontal lateral movement of the enclosure on the east side of the pit on a graph to compare and observe its trend, as shown in Figure 14.
Figure 14.
Horizontal displacement contrast curves (red line: simulated value; black line: monitored value).
Figure 14 shows the horizontal displacement contrast curves, where the red line represents the simulated value, and the black line represents the monitored value. Analysis shows that the maximum horizontal displacements of the enclosure structure after the excavation of the foundation pit was completed were 14.78 mm and 15.98 mm, respectively. The simulated values were 1.2 mm larger than the monitored values. From the longitudinal comparison, the simulated results and the monitoring values are generally consistent along the alignment of the pit depth. The law of change is all gradually increasing with the increase of pit depth. After reaching 1/3 of the pit height from the bottom of the pit, it gradually decreases again. There is still a certain displacement when it reaches the bottom of the pit, but the displacement below the bottom of the pit does not change much. From the horizontal comparison, the maximum horizontal displacement of both meets the national standard. It can be seen from the figure that the curves of the two do not overlap completely. When above 14 m, the monitored value is greater than the simulated value, and the simulated value is greater than the monitored value when below 14 m. The reason for this deviation is that the east side of the foundation pit is the action of the soil accumulation excavated from the outlet. The magnitude of such overload could hardly be determined, so it is difficult to realize this complex force state in the simulation. Therefore, the pile of soil should be removed in time during the excavation of the foundation pit to prevent the deformation and displacement caused by the overload of the pile. Overall, compared to the monitoring value, the larger simulated values indicate a higher safety margin for the FLAC3D simulations.
The whole construction process of the foundation pit under this design condition did not have large deformation and displacement. At the same time, the monitoring value is far less than 30 mm of the relevant codes and design regulations. The simulated values obtained are very close to the monitored values in terms of trend and variation pattern and meet the corresponding design regulations and code requirements. Such simulations could be used as an aid to provide advance warning for foundation excavation to ensure construction safety.
5.6. Finite Element Model Updating
The DTM based on FPE has the advantage of intelligent data collection and real-time data updates, and the transfer of the latest data collected after the last FPE step to the physical and geometric models, which enables data updates in the virtual world and the creation of a simulation of the next construction step using the latest collected data. We are able to judge the safety level of the foundation pit according to the simulation results. If the event is determined to be unsafe event, appropriate control measures need to be taken to maintain it. The modeling diagrams of the four most representative construction steps are selected for display in Figure 15. The reason for selecting these four figures is that the first and fourth figures represent the start and end of foundation pit excavation, respectively. The original structure of rock and soil mass will be destroyed at the beginning of foundation pit excavation. The phenomenon of stress redistribution is often accompanied by the phenomenon of stress concentration. At the stress concentration point, the maximum stress (peak stress) is related to the geometric shape and loading mode of the object, and is prone to adverse factors, such as slope instability, which should be paid attention to. The second figure is located between the excavation and the peak displacement. The displacement value here can be very meaningful when drawing the line chart and can clearly show the linear change trend from excavation to the peak displacement. The excavation depth of the construction step corresponding to the third figure is about 1/3 from the bottom of the foundation pit, and the peak displacement generally occurs in this interval. The inflection point of displacement will appear near this position, which is very special, so it will be shown in the third figure. The last construction step of foundation pit excavation means the end of the whole excavation process, and the state at the end of the last construction step represents the completion quality of foundation pit excavation. The updated FEM model for each construction step is shown in Figure 15.

Figure 15.
FEM simulations of foundation pit excavation and support. (a) Construction of the concrete support at the first level; (b) construction of the steel support at the third level; (c) construction of the concrete support at the fourth level; (d) construction of the steel support at the sixth level.
Updating the virtual model requires the earth pressure of the geotechnical body, the displacement of the pit wall, and the displacement of key nodes of the support structure. The earth pressure of the geotechnical body is collected by mechanical sensors. The deformation of the geotechnical body leads to stress redistribution during FPE. The mechanical sensors can pick up real-time changes in earth pressure. The final stabilized data is transferred to the computer by an A/D converter, and the mechanical parameters are changed in the boundary conditions module in FLAC3D. The deformation during excavation is monitored by both the inclinometer and displacement sensor. The inclinometer is the traditional way to collect data manually, with more engineering experience and reliably collected data. A displacement sensor is an instrument that converts the displacement of the measured part into electrical power and finally presents it in digital form. Displacement sensors have the advantage of being efficient and fast, making it easy to feed the signal directly into a computer system. In this case, for the monitoring of displacement, both methods are applied. The data of key points collected by both methods are recorded in the form of coordinate points. If the two sets of data are very close, the arithmetic average of the two sets of data is used. If the difference between the two sets of data at a certain point is large, the manually collected data is chosen as the final data. The displacement of the key nodes of the support structure can be done with the data of displacement sensors.
5.7. Bow-Tie Model-Based Risk Control
The authors used the Markov chain model to fuse the two major factors of time and space and the data collected on-site in the virtual and real space after the on-site information collection and the establishment of the virtual model. Consider the changes of each element in different time and space dimensions. The overall safety performance of the foundation pit in the next FPE step could be predicted using the risk probability of the current FPE state, incorporating the risk factors or the degree changes of the mechanical parameters and other monitoring indicators.
In this study, the safety performance of the foundation pit is measured by the displacement of the foundation pit and the axial force of the internal support. After each construction step, the latest data collected shall be compared with the relevant construction specifications. If it does not conform to the relevant provisions, it is then determined as an unsafe event. The safety of foundation pit engineering can be judged not only by one parameter, so it is necessary to combine various parameters. The time and space factors are added to the simulation, and the results of external feedback of multi-source heterogeneous information constitute the data association model. Unsafe events will be imported into the bow-tie model for selecting risk control decisions, and finally to verify the feasibility of the control decisions in the virtual model. The control results are fed back to the real world from the virtual model. The information in the virtual world knows the construction in the real world, and the real-time interaction of the information in the virtual world ensures the safety of each FPE step. The results of numerical simulations before starting construction show that the stability of the slope of the foundation pit was poor due to the influence of the adjacent viaduct in the beginning of the excavation of the foundation pit of this project. After discussion, engineers have decided to lay the steel protection fence first. Reinforced protective mesh plays a major role in enclosing the falling geotechnical body by avoiding the landslide of the slope and can also, after laying the reinforcing mesh, be reinforced by slurry spraying. The first time the aggregate is fine, the proportion of water is mixed into more, and into a liquid form to facilitate uniform distribution in all corners. After the first shotcrete set, the shotcrete operation will be carried out. The shotcrete aggregate is coarser, and the proportion of water mixed into it is much less than the first shotcrete. The sprayed concrete tends to be more of a fine-grained solid. The temporary reinforcement is completed by spraying the concrete evenly onto the slope. If the above measures are still not effective in ensuring the safety of the foundation pit, it should be considered to stop the excavation of the foundation pit before laying the steel protection network. In addition, measures such as slope release unloading were carried out to match. After the slope is stabilized, we take the form of slope top unloading to reduce the external pressure on the slope. At the same time, we add tension anchors inside the pit, cut eyes on the slope, and use slope anchor grouting to reinforce it. The slope anchor grouting and the first grouting after laying the reinforced protection network are carried out simultaneously. In addition, the pit can also be supported by adding internal support. Finally, the pit is supported by adding internal supports.
6. Discussion, Conclusions, and Limitations
The authors have proposed a DTM method for augmenting the current practice of risk prognosis and control in the process of FPE. Various information (e.g., components, environment, personnel, etc.) has been captured in the physical space based on emerging sensing techniques and processed based on data processing algorithms. In the virtual space, RFID obtains the basic information of each key component and node at the beginning. The sensor collects the latest mechanical parameters and displacement parameters at the end of every FPE step. The transmission equipment uniformly transmits the latest parameters to the computer. The geometric model of the foundation pit is updated by using the extracted coordinates of key nodes, and a new physical model is obtained by updating the mechanical parameters. The geometric model of the structure is modified by extracting the coordinates of the key nodes in the point data model, and finally, a high-fidelity physical model is established.
According to the existing physical model, the coordinates of the key points of the physical model are input into the FLAC3D interface using FISH language, and mechanical parameters are added. The parameters and geotechnical parameters are constructed, and the geometric model with high fidelity is established. It realizes the mapping of virtual space to the real world. According to the established model, risks during FPE could be captured and examined. Preventive and control measures could be established based on the safety state according to the risk probability and the current state of the foundation pit. In case of any unsafe events, targeted control policies should be taken according to the established risk control model, the preventive measures in the virtual space should be simulated to draw safety assessment conclusions, and finally, on-site construction should be guided to ensure that each construction step is in a safe state. The major conclusions of this study are summarized as follows:
- Timely acquisition of geological information, environmental information, and displacement information during FPE processes is vital for establishing and updating a high-fidelity virtual model that represents real FPE processes, thus providing the most basic data for the risk prognosis and control of FPE.
- The whole framework of FPE based on DT is proposed, which consists of a physical model, simulation model, general service module, assessment and control module, and connection service module.
- In the virtual model, the authors have (1) set the working condition consistent with the site, (2) integrated the Markov chain for analysis, and (3) used the conditional probabilities for deriving the safety status of the foundation pit in the next FPE stage, which can realize the risk assessment of each FPE step.
- The established bow-tie model could be used for supporting prognosis and control of unsafe events during FPE. Various control decisions could be introduced into the virtual model, which provides guidance to the FPE in the physical environment and ensures FPE safety.
In this study, a DT-based risk prognosis and control method was established and validated through case study. The proposed method aims to guide virtual space modeling and updates based on the real-time monitoring data collected from the real world for improving the intelligent level of risk prognosis and control of FPE. This study introduces the concept of DT into FPE, which helps to achieve intelligent risk prognosis and control of FPE processes. Furthermore, this study provides theoretical and practical implications for future FPE when constructing large-scale underground civil infrastructures. Future studies will focus on the integration of real-time sensing techniques and artificial intelligence algorithms driven by DT for effective field information capture and precise risk prediction during underground construction. However, limitations still exist in the proposed method, and future studies will continue to improve the proposed method in the following aspects:
- The proposed method heavily relies on the sensors arranged at the construction site for the collection of spatiotemporal information. However, heterogenous data with high quality are still needed for comprehending system-level risks during FPE. For example, mechanical sensors should be installed at places where the support structure is subjected to the greatest force and torsion for examining the safety performance of the support structure.
- Arranging lots of sensors for collecting real-time heterogenous data during FPE requires significant time efforts and human resources. A huge amount of key points should be monitored during FPE, which leads to a sharp rise in cost. Hence, the cost of this system solution is an issue worth considering.
- In this study, each soil layer is assumed to be a homogeneous and isotropic granular body. Such an assumption should be adjusted to better reflect the actual situation of the soil.
- Future efforts will take (1) the influence of consolidation and settlement of soil over time and (2) the influence of groundwater seepage into account. When the groundwater is richer and the soil is more permeable, problems such as construction precipitation and construction safety should be considered in advance.
Author Contributions
Conceptualization, Z.S.; methodology, Z.S. and H.L.; software, H.L. and D.Z.; validation, Z.S.; formal analysis, Z.S. and H.L.; investigation, Z.S., H.L., and D.Z.; resources, Z.S., Y.B., and X.M.; data curation, Z.S., H.L., Y.B., and X.M.; writing—original draft preparation, Z.S. and H.L.; writing—review and editing, Z.S., Y.B., X.M., and D.Z.; visualization, Z.S., H.L., and D.Z.; supervision, Z.S., Y.B., and X.M.; project administration, Z.S.; funding acquisition, Z.S., Y.B., and X.M. All authors have read and agreed to the published version of the manuscript.
Funding
This research was funded by the National Natural Science Foundation of China (NSFC), grant number: 51829801.
Institutional Review Board Statement
Not applicable.
Informed Consent Statement
Not applicable.
Data Availability Statement
The data presented in this study are available on request from the corresponding author.
Acknowledgments
The authors would like to express their utmost gratitude to the National Natural Science Foundation of China (NSFC), grant number: 51829801, for funding this research, and to the Beijing University of Technology for administrative and technical support. Furthermore, the authors also thank all participants who shared their knowledge to validate and verify this study.
Conflicts of Interest
The authors declare no conflict of interest.
References
- Zhao, L.; Liu, Z.; Mbachu, J. Development of Intelligent Prefabs Using IoT Technology to Improve the Performance of Prefabricated Construction Projects. Sensors 2019, 19, 4131. [Google Scholar] [CrossRef]
- Sun, Y.; Xiao, H. Wall Displacement and Ground-Surface Settlement Caused by Pit-in-Pit Foundation Pit in Soft Clays. KSCE J. Civ. Eng. 2021, 25, 1262–1275. [Google Scholar] [CrossRef]
- Fathipour, H.; Siahmazgi, A.S.; Payan, M.; Chenari, R.J. Evaluation of the lateral earth pressure in unsaturated soils with finite element limit analysis using second-order cone programming. Comput. Geotech. 2020, 125, 103587. [Google Scholar] [CrossRef]
- Fathipour, H.; Payan, M.; Chenari, R.J. Limit analysis of lateral earth pressure on geosynthetic-reinforced retaining structures using finite element and second-order cone programming. Comput. Geotech. 2021, 134, 104119. [Google Scholar] [CrossRef]
- Zhang, W.; Chen, J.F.; Yu, Y. Influence of toe restraint conditions on performance of geosynthetic-reinforced soil retaining walls using centrifuge model tests. Geotext. Geomembr. 2019, 47, 653–661. [Google Scholar] [CrossRef]
- Zhang, F.; Gao, Y.; Leshchinsky, D.; Yang, S.; Dai, G. 3D effects of turning corner on stability of geosynthetic-reinforced soil structures. Geotext. Geomembr. 2018, 46, 367–376. [Google Scholar] [CrossRef]
- Liu, H. Long-term lateral displacement of geosynthetic-reinforced soil segmental retaining walls. Geotext. Geomembr. 2012, 32, 18–27. [Google Scholar] [CrossRef]
- Yang, Y.; Li, X.; Chen, Y. The Influence of Different Excavation Methods on Deep Foundation Pit and Surrounding Environment. In International Conference on Civil Engineering; Springer: Singapore, 2022; pp. 109–129. [Google Scholar]
- Ding, Z.; Jin, J.; Han, T.-C. Analysis of the zoning excavation monitoring data of a narrow and deep foundation pit in a soft soil area. J. Geophys. Eng. 2018, 15, 1231–1241. [Google Scholar] [CrossRef]
- Ye, S.; Zhao, Z.; Wang, D. Deformation analysis and safety assessment of existing metro tunnels affected by excavation of a foundation pit. Undergr. Space 2021, 6, 421–431. [Google Scholar] [CrossRef]
- Song, D.; Chen, Z.; Dong, L.; Tang, G.; Zhang, K.; Wang, H. Monitoring analysis of influence of extra-large complex deep foundation pit on adjacent environment: A case study of Zhengzhou City, China. Geomat. Nat. Hazards Risk 2020, 11, 2036–2057. [Google Scholar] [CrossRef]
- Yin, D.; Wang, B.; Zhou, W. Influences of different directional unloadings upon displacements and internal forces of retaining structure for foundation pit. Rock Soil Mech. 2008, 29, 1701–1705. [Google Scholar]
- Guo, Y.; Yang, F.; Ge, S.; Huang, Y.; You, X. Novel Knowledge-driven Active Management and Control Scheme of Smart Coal Mining Face with Digital Twin. J. China Coal Soc. 2022, 1–12. [Google Scholar] [CrossRef]
- Liu, Z.; Shi, G.; Zhang, A.; Huang, C. Intelligent Tensioning Method for Prestressed Cables Based on Digital Twins and Artificial Intelligence. Sensors 2020, 20, 7006. [Google Scholar] [CrossRef] [PubMed]
- Song, X.; He, X.; Li, K.; Lai, X.; Li, Z. Construction Method and Application of Human Skeleton Digital Twin. J. Mech. Eng. 2022, 58, 1–11. [Google Scholar]
- Gopalakrishnan, S.; Hartman, N.W.; Sangid, M.D. Model-Based Feature Information Network (MFIN): A Digital Twin Framework to Integrate Location-Specific Material Behavior Within Component Design, Manufacturing, and Performance Analysis. Integr. Mater. Manuf. Innov. 2020, 9, 394–409. [Google Scholar] [CrossRef]
- Guo, C.; Yu, J.; Song, Y.; Yin, Q.; Li, J. Application of digital twin-based aircraft landing gear health management technology. Acta Aeronaut. Astronaut. Sin. 2022, 1–18. [Google Scholar] [CrossRef]
- Ruppert, T.; Abonyi, J. Integration of real-time locating systems into digital twins. J. Ind. Inf. Integr. 2020, 20, 100174. [Google Scholar] [CrossRef]
- Mohammadi, N.; Taylor, J.E. Smart city digital twins. In Proceedings of the 2017 IEEE Symposium Series on Computation Intelligence, Honolulu, HI, USA, 27 November–1 December 2017; pp. 1–5. [Google Scholar]
- Liu, Z.; Shi, G.; Du, X.; Jiao, Z. Theory system and realization method of intelligent operation and maintenance based on digital twins. J. Civ. Environ. Eng. 2022, 1–13. [Google Scholar] [CrossRef]
- Peng, Y.; Zhang, M.; Yu, F.Q.; Xu, J.; Gao, S. Digital twin hospital buildings: An exemplary case study through continuous lifecycle integration. Adv. Civ. Eng. 2020, 2020, 8846667. [Google Scholar] [CrossRef]
- Fei, T.; Meng, Z. Digital twins shop-floor: Anewshop-floor paradigm towards smart manufacturing. IEEE Access 2017, 55, 201418–201427. [Google Scholar]
- APRISO. Digital twin: Manufacturing excellence through virtual factory replication. White Paper 2014, 1, 1–7. [Google Scholar]
- Yijiao, W. Study on Learning System of Blasting Engineering Based on Virtual Simulation Technology; Yunnan Normal University: Kunming, China, 2013. [Google Scholar]
- Tao, F.; Liu, W.; Liu, J. Digital twin and its potential application exploration. Comput. Integr. Manuf. Syst. 2018, 24, 1–18. [Google Scholar]
- Liu, Z.; Shi, G.; Jiao, Z. Intelligent analysis method for prestressed steel structure construction based on digital twin. J. Architect. Civ. Eng. 2022, 39, 157–165. [Google Scholar]
- Lu, R.; Brilakis, I. Digital twinning of existing rein⁃ forced concrete bridges from labeled point clusters. Autom. Constr. 2019, 105, 102837. [Google Scholar] [CrossRef]
- D’Emilia, G.; Gaspari, A.; Galar, D.P. Improvement of Measurement Contribution for Asset Characterization in Complex Engineering Systems by an Iterative Methodology. Int. J. Serv. Sci. Manag. Eng. Technol. 2018, 9, 85–103. [Google Scholar] [CrossRef]
- Hu, Z.-Z.; Tian, P.-L.; Li, S.-W.; Zhang, J.-P. BIM-based integrated delivery technologies for intelligent MEP management in the operation and maintenance phase. Adv. Eng. Softw. 2018, 115, 1–16. [Google Scholar] [CrossRef]
- Zhang, J.; Zhai, Y.; Zhao, X. Research on construction technology of prefabricated concrete frame with steel connector based on digital twin. J. Civ. Environ. Eng. 2022, 1–9. Available online: http://qks.cqu.edu.cn/cqdxxbcn/article/abstract/tm-202112103 (accessed on 10 January 2023).
- Sonnenberg, A.H.; Herrmann, J.; Grinstaff, M.W.; Suki, B. A Markov chain model of particle deposition in the lung. Sci. Rep. 2020, 10, 13573. [Google Scholar] [CrossRef]
- Ministry of Housing and Urban-Rural Development of the People’s Republic of China. 2019. Available online: http://ir.amss.ac.cn/handle/2S8OKBNM/8042 (accessed on 10 January 2023).
- Lobato, T.C.; Hauser-Davis, R.A.; Oliveira, T.F.; Silveira, A.M.; Silva, H.A.N.; Tavares, M.R.M.; Saraiva, A.C.F. Construction of a novel water quality index and quality indicator for reservoir water quality evaluation: A case study in the Amazon region. J. Hydrol. 2015, 522, 674–683. [Google Scholar] [CrossRef]
- Cui, L.; Chen, H.; Ren, B.; Zhang, J. Quantitative analysis method of aviation unsafe events under mixed uncertain conditions. J. Natl. Univ. Def. Technol. 2020, 42, 92–97. [Google Scholar]
- Rafael, V.; Sharifi, G.; Karamzadeh, S.; Kartal, M. Beam-steering high-gain array antenna with FP Bow-tie slot antenna element for pattern stabilization. IET Microw. Antennas Propag. 2020, 14, 1185–1189. [Google Scholar]
- Fedtschenko, T.; Utz, A.; Stanitzki, A.; Hennig, A.; Lüdecke, A.; Haas, N.; Kokozinski, R. A New Configurable Wireless Sensor System for Biomedical Applications with ISO 18000-3 Interface in 0. 35 µm CMOS. Sensors 2019, 19, 4110. [Google Scholar] [CrossRef] [PubMed]
Disclaimer/Publisher’s Note: The statements, opinions and data contained in all publications are solely those of the individual author(s) and contributor(s) and not of MDPI and/or the editor(s). MDPI and/or the editor(s) disclaim responsibility for any injury to people or property resulting from any ideas, methods, instructions or products referred to in the content. |
© 2023 by the authors. Licensee MDPI, Basel, Switzerland. This article is an open access article distributed under the terms and conditions of the Creative Commons Attribution (CC BY) license (https://creativecommons.org/licenses/by/4.0/).















