Next Article in Journal
The Use of SMAV Model for Computing Fragility Curves
Next Article in Special Issue
Study on Stability of Transmission Tower-Line System under a Downburst
Previous Article in Journal
Numerical Solutions for Chloride Diffusion Fluctuation in RC Elements from Corrosion Probability Assessments
Previous Article in Special Issue
Optimized Design of a Tuned Mass Damper Inerter (TMDI) Applied to Circular Section Members of Transmission Towers
 
 
Font Type:
Arial Georgia Verdana
Font Size:
Aa Aa Aa
Line Spacing:
Column Width:
Background:
Article

Research on the Flutter Stability of Bridge Sections Based on an Empirical Formula of an Aerostatic Three-Component Coefficient

1
Department of Civil Engineering, Ordos Institute of Technology, Ordos 017000, China
2
School of Highway, Chang’an University, Xi’an 710064, China
3
School of Transportation Engineering, Shandong Jianzhu University, Jinan 250101, China
*
Author to whom correspondence should be addressed.
Buildings 2022, 12(8), 1212; https://doi.org/10.3390/buildings12081212
Submission received: 14 July 2022 / Revised: 4 August 2022 / Accepted: 8 August 2022 / Published: 11 August 2022

Abstract

:
In order to study the relationship between an aerostatic three-component coefficient (ATCC) and bridge flutter and to quickly evaluate the flutter performance of bridges, we proposed a method based on the empirical formula of the ATCC. The correlation between the flutter driving term and the critical flutter wind speed V of nine bridges (six types of girder sections) was analyzed, and its rationality was verified using wind tunnel test results. The results showed that the flutter stability of the X-term damping-driven type, i.e., the slotted box girder, was the best; the flutter stability of the X + D-term damping-driven type, i.e., the H-shape bridge deck, was the worst; the flutter stability of D-term damping-driven type was measured as being between these two values. The gray correlation analysis method was used to analyze the correlation between the ATCC and the critical flutter wind speed. As well as the relationship between the ATCC and aerodynamic damping, an empirical parameter, K, based on the ATCC, was proposed for use in determining the D-term damping-driven flutter. The flutter stability of three types of girder sections was analyzed using parameter K, and the results of the analysis were consistent with the wind tunnel test results. The results show that the ATCC obtained from the segmental model force test can be used to preliminarily realize the rapid comparison and selection of flutter aerodynamic measures for bridges.

1. Introduction

Bridge flutter is a disastrous phenomenon related to aerodynamic instability. The study of flutter aerodynamic measures to improve flutter stability has always been a hot topic amongst bridge wind resistance experts. In particular, long-span flexible bridges are sensitive to wind, and the shape of the main beam determines the aerodynamic performance of a bridge. Poor aerodynamic shape directly leads to the destruction of the bridge. For example, the old Tacoma Strait Bridge has flutter damage due to a blunt section under low wind speed, meaning that the shape of the main beam section is the main factor that affects the aerodynamic stability of the bridge. In the design process of wind-resistant long-span bridges, different aerodynamic measures are mainly applied to the main beam section to improve the flutter stability. Cid Montoya et al. [1,2] found that the gap size in a double box bridge plays an important role in flutter stability, and they optimized the short-gap double box bridge deck structure to meet the flutter performance requirements. Bulkac et al. [3] studied the influence of wind barriers on the flutter performance of long-span cable-stayed bridges, and the results showed that a bridge deck with wind barriers was more prone to fluttering under higher wind speeds. Zhang et al. [4] compared and analyzed the influence of a central stable version on the flutter stability of plate truss composite beams and plate truss separated beams through wind tunnel tests and numerical simulations. Zhang et al. [5] proposed an optimization method of flutter control based on a nonlinear unsteady model to achieve the most economical TMD parameters of nonlinear objectives. Chen et al. [6] studied the effectiveness of TMD in controlling the flutter of multi-modal coupled long-span bridges and found that it had a good effect on soft flutter.
The methods used to study the flutter performance of bridges include wind tunnel tests and numerical simulations. Through wind tunnel tests or numerical simulations, the relationship between flutter critical wind speed and flutter test wind speed under different aerodynamic measures has been studied to determine the effectiveness of aerodynamic measures [7,8]. Numerical simulations are widely used because of their low cost and easy operation, but due to theoretical limitations, the accuracy and scope of the application of numerical simulation methods need to be improved further [9,10,11,12]. Wind tunnel tests are widely used, and the test results have high accuracy. However, the test cycle is long, and the cost is high for these tests. Compared with the bridge wind tunnel vibration test, the ATCC wind tunnel test is simple and has a low cost. The study of the relationship between the ATCC and flutter stability and the rapid evaluation of bridge flutter performance could replace the bridge flutter wind tunnel test, which would be a very competitive method. Mei et al. [13] proved that the flutter stability performance of a streamlined box girder was improved after a central stabilizer plate was installed, and the resistance coefficient increased with the increase in critical flutter wind speed. Li et al. [14] proposed a method to quickly evaluate the flutter stability of streamlined box girders by using aerostatic coefficients in combination with artificial neural networks and CFD. Farquharson [15,16] conducted a segmental model wind tunnel test on six main beam sections, including the original Tacoma Bridge. The results showed that the ATCC reflected the stable state of aerodynamics, and the structural damping ratio of the Tacoma Strait Bridge correlated well with the flutter derivative when it was damaged. Nikhil et al. [17] conducted wind tunnel tests and numerical simulations on cuboids with different degrees of corner cutting. The results showed that the section cut exceeds 22% would lead to changes in the ATCC and the aerodynamic instability of the structure. Chen et al. [18] proved that flutter stability is related to the lift coefficient and the lift moment coefficient. As the sum becomes smaller, the flutter stability becomes better. Simiu et al. [19] deduced the relationship between the ATCC and the flutter derivative on the basis of the Scanlan assumption. Fang et al. [20] discussed the effect of the flutter derivative on the change in critical wind speed. Fung [21] assumed that a wing was in simple harmonic motion and deduced the relationship between the ATCC and the modified flutter derivative by using the Theodorsen function. Bai et al. [22,23,24] obtained the parameter f for the rapid evaluation of a bridge’s flutter stability based on the study of the relationship between the ATCC and flutter stability, combined with the influence of the D-term aerodynamic force on flutter stability.
Although some experts and scholars have studied the relationship between the ATCC and flutter stability and have reached some valuable conclusions, the following problems still require further study:
(1)
Previous studies have only proposed the relationship between the ATCC of a specific type of girder section and flutter stability. Therefore, it is necessary to classify the typical sections of long-span bridges from the perspective of the flutter aerodynamic damping drive and to study the influence of the ATCC on flutter stability under different damping drives.
(2)
Combined with the existing research results, the correlation between the ATCC and flutter stability.
(3)
Regarding the common section types driven by aerodynamic damping, the specific method used to determine flutter stability by using the ATCC.
Based on the classical flexural torsional coupling flutter driving mechanism, in this paper, we divided bridge fluttering into three damping driving mechanisms: the D-term damping driving mechanism, the X-term damping driving mechanism and the X + D-term damping driving mechanism. Nine bridge examples (shown in Table 1) were used to verify the rationality of this division. For D-term damping-driven flutter, an empirical judgment parameter based on the ATCC was proposed to quickly evaluate the flutter performance of bridges, and three bridge examples were used to verify this. The research method proposed in this paper can be used to quickly and accurately determine the flutter performance of bridges and to optimize the flutter performance of preliminary bridge design schemes.

2. Flutter Stability of Different Girder Sections

In classical torsional bending coupled vibration, the divergence of the torsional implicated motion of the system is because the negative aerodynamic damping offsets the positive aerodynamic damping and structural damping on the stability of the system. According to the Scanlan [25] aerodynamic self-excitation theory, the aerodynamic damping of the torsional implicated motion of the system is composed of five parts, as shown in Equation (1):
ξ α a = 1 2 ρ B 4 I A 2 * 1 2 ρ 2 B 6 I m Ω h α A 1 * H 2 * cos θ 1 1 2 ρ 2 B 6 I m Ω h α A 1 * H 3 * cos θ 2 + 1 2 ρ 2 B 6 I m Ω h α A 4 * H 2 * cos θ 1 + 1 2 ρ 2 B 6 I m Ω h α A 4 * H 3 * cos θ 2
where ρ is the air density; B is the bridge width; m is the equivalent mass; I is the equivalent mass moment of inertia; parameter Ω h α = ω α 2 ω h 2 ω α 2 2 + 4 ξ h ω h 2 ω α 2 A 1 * ,   A 2 * , A 4 * ,   H 2 * , and H 3 * are the flutter derivatives; θ 1 = θ 2 + 3 π 2 ,   θ 2 = a r c t a n 2 ξ h ω h ω α ω h 2 ω α 2 ;   ξ h is the damping ratio of the vertical bending motion; ω h is the frequency of the vertical bending motion circle; and ω α is the frequency of the torsional motion circle. For ease, we made the following brief notes on the above-mentioned aerodynamic damping: 1 2 ρ B 4 I A 2 * is denoted as the A-term; 1 2 ρ 2 B 6 I m Ω h α A 1 * H 2 * cos θ 1 is denoted as the B-term; 1 2 ρ 2 B 6 I m Ω h α A 4 * H 2 * cos θ 1 is denoted as the C-term; 1 2 ρ 2 B 6 I m Ω h α A 1 * H 3 * cos θ 2 is denoted as the D-term; and 1 2 ρ 2 B 6 I m Ω h α A 4 * H 3 * cos θ 2 is denoted as the E-term.
When the shape of the bridge deck is different, the aerodynamic characteristics are different [26]. In terms of flutter performance, this is mainly reflected in the different negative aerodynamic damping terms that lead to divergence, meaning the flutter driving mechanisms in different girder sections are different. Among the five aerodynamic damping terms, positive aerodynamic damping is beneficial to the stability of a structure, and negative aerodynamic damping causes vibration divergence and instability in a structure. Generally, the absolute value of aerodynamic damping increases with the increase in wind speed, but in some cases, there is an inflection point with the increase in wind speed. For example, the A-term increases with the wind speed first, which is beneficial to the stability of a structure. After a certain value of wind speed is reached, the A-term begins to decrease, and its effect on the stability of a structure gradually decreases or even starts to increase negatively, which is not conducive to the stability of the structural stability. In the stage in which a model is about to lose stability, the absolute values of the aerodynamic damping A-term and D-term are larger than the other three terms, and the A-term is positive, which is conducive to structural stability, whereas the D-term is negative, which is a divergent driving term. This situation is called D-term driving. When D-term damping is positive, the aerodynamic damping term with the largest absolute value and negative value among the remaining four aerodynamic damping terms is the main driving term, which is called the X-term drive, e.g., the A-term drive. When the D-term and one or more of the remaining four aerodynamic damping terms are negative, this is called the X + D-term common drive, e.g., the A + D-term drive.
In torsional implicated motion, the absolute value of the aerodynamic damping of the A-term and D-term is larger, and the other three aerodynamic damping values are smaller. Therefore, the aerodynamic damping of the torsional implicated motion of a system is simplified as the sum of the A-term and D-term, and the specific expression is shown in Equation (2):
ξ α a 1 2 ρ B 4 I A 2 * 1 2 ρ 2 B 6 I m Ω h α A 1 * H 3 * cos θ 2
E. Simiu and R. H. Scanlan [27] determined the relationship between the flutter derivative of two degrees of freedom and the ATCC according to the assumption of quasi-steady aerodynamic theory [28]. Scanlan applied the derived equation to calculate the flutter derivatives of the Hoga Kusten Bridge, Messina Strait Bridge and Normandy Bridge; H i * i = 1 , 2 , 3 and A i * i = 1 , 2 , 3 . The calculated flutter derivative was compared with the flutter derivative measured in the test, and the results showed that H 1 * , H 3 * , A 1 * and A 3 * were in good agreement with the flutter derivative measured via the test, whereas the values of H 2 * and A 2 * deviated from the test data greatly, which is why the quasi-steady aerodynamic theory was assumed. The flutter derivatives mainly used in this paper are A 1 * and H 3 * , and the expression of these are shown in Equation (3):
A 1 * = C M 2 K ,   H 3 * C L 2 K 2
where K is the reduced frequency, and C L and C M are the derivatives of the static aerodynamic lift coefficient and static aerodynamic lift moment coefficient to the wind angle of attack, respectively. (CD, CL and CM were obtained from the force measurement test of the wind tunnel test and changed with the wind power angle. In the process of using the ATCC to study flutter stability, the slope CD, CL and CM of the ATCC at a certain angle of attack was derived from fitting the original data curve of the wind tunnel.)
Fung [29] calculated the following expression by assuming that a wing vibrates harmonically and by applying the Theodorsen function. Li [30] calculated the A 2 * of a section of a flat steel box girder and compared it with the A 2 * value obtained in the test. It was found that Fung’s equation obtained results very similar to the test results; therefore, Fung’s equation was used when calculating the flutter derivative, as shown in Equation (4):
A 2 * 2 K C M F 4 + G K
where F and G are the real and imaginary parts of Theodorsen function C (u*), respectively.
Therefore, the aerodynamic damping equation expressed by the ATCC is shown in Equation (5):
ξ α a ρ B 4 C M 2 I K + 1 4 ρ 2 B 6 C L C M I m K 3 Ω h α cos θ 2
It can be seen that the flutter stability of the bridge is related to the ATCC. Therefore, combined with the flutter driving mechanism of the torsional implicated motion, the flutter driving term is preliminarily determined by using the ATCC. Then, the flutter stability is determined, and the main beam is directly aerodynamically selected using the ATCC. The following section takes a typical section as an example for verification.

2.1. Instability Driven by X-Term Aerodynamic Damping

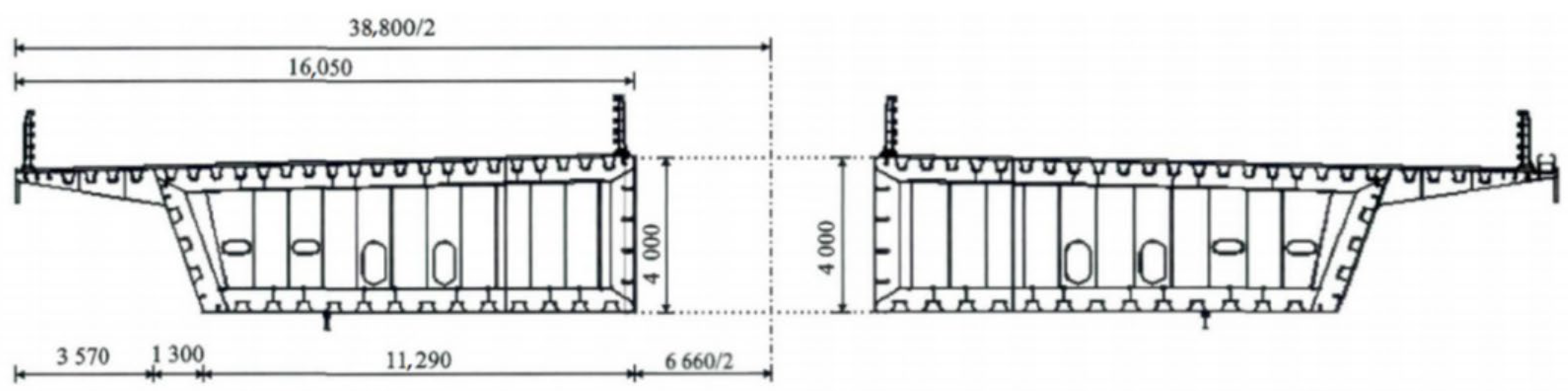
To verify the aerodynamic damping driving the instability of the X-term, we took a three-tower cable-stayed bridge (NO. 9) with a central slotted box girder as an example. The span of the bridge was 129 + 258 + 258 + 129 m, with a total length of 774 m. The section in the construction state was denoted as scheme 1, the wind barrier in the completed bridge state was denoted as scheme 2 and the wind barrier free bridge state was denoted as scheme 3. The main beam width of the three schemes was 38.8 m.
The cross section of the girder is shown in Figure 1. The model is shown in Figure 2. According to the change in the damping ratio with wind speed, the scheme had torsional divergence, as shown in Figure 3. The flutter derivative was identified through the wind tunnel test. The variation values of A 1 * and H 3 * with reduced wind speed were positive, and A 2 * was negative with reduced wind speed. According to Equation (2), we determined that the aerodynamic damping of the A-term was positive, and the aerodynamic damping of the D-term was positive, which is the X-term driving the instability of aerodynamic damping. The flutter derivatives after test fitting are shown in Figure 4.
By analyzing the C L and C M of the main beam of scheme 3 under a 0° angle of attack, it was concluded that the D-term damping was positive, and it was determined to be driven by the X-term. This was consistent with the result that was achieved by determining the flutter driving term by the flutter derivative. The ATCC is shown in Figure 5. Table 2 displays the flutter driving items identified by the ATCC. The critical flutter wind speed in this section was high, and the flutter stability was good.

2.2. Instability Driven by D-Term Aerodynamic Damping

To verify the D-term pneumatic damping drive instability, we took an edge-box open girder section in a suspension bridge (No. 6) as an example. The main span of the bridge was 218 m, and the main girder width was 28.5 m. The standard cross section of the girder is shown in Figure 6. The model is shown in Figure 7. Figure 8 illustrates the ATCC of Bridge 6. C L   and C M were positive. The aerodynamic damping of the A-term and D-term were analyzed using the ATCC, which is shown in Table 3. As determined using Equation (5), the A-term was negative, and the D-term was positive, which verified the D-term aerodynamic damping drive instability.

2.3. Instability Driven by X + D-Term Aerodynamic Damping

The X + D-term damping drive was obtained when the D-term damping and other negative aerodynamic damping were combined as the driving term. The old Tacoma Bridge suffered flutter failure at a low wind speed of 19 m/s. Through wind tunnel tests, Farquharson found that the cross-section lift coefficient of the H-shaped main girder of the old Tacoma Bridge had a negative change rate near the angle of attack of 0°. This showed that the negative rate of change in the ATCC of the bridge was related to its aerodynamic instability. Farquharson also performed circular hole correction on the original bridge web. When the open porosity was small, aerodynamic instability occurred, and a negative slope appeared near the angle of attack of 0°. It could be seen that the steady state of aerodynamics was related to the rate of change in the ATCC. Huston [31] found that A 2 * changed from negative to positive in seven H-shaped-section flutter derivatives with different aspect ratios. According to the classical torsional bending coupled flutter driving mechanism, due to the above-mentioned changes in the flutter derivative A 2 * , the corresponding aerodynamic damping of the A-term changed from positive to negative, i.e., the flutter stability effect of the system changed from favorable to unfavorable with the reduced wind speed, which belonged to the X + D damping drive. The above shows that the flutter stability of the old Tacoma Bridge was related to the change rate of the ATCC from the perspective of the ATCC coefficient, and the flutter stability was explained from the perspective of the aerodynamic damping driving mechanism by using the flutter derivative. The critical flutter wind speed of the H-shaped section was low, and the flutter stability was poor.
Table 4 analyzes the flutter driving terms and flutter stability of six main girder section types for nine bridges. There are three types of aerodynamic damping driving that cause flutter instability. The flutter aerodynamic performance is the worst under the X + D-term aerodynamic damping drive. The X-item aerodynamic damping drive has good flutter stability, and the critical flutter wind speed is high, which is generally found in the slotted section. The D-term-type pneumatic damping drive is the most common, and this kind of section flutter stability was measured as being between the first two.

2.4. Gray Correlation Analysis of the ATCC and Critical Flutter Wind Speed

The gray correlation analysis method was used to analyze the correlation degree between the ATCC and flutter critical wind speed and to determine the key parameters affecting flutter stability:
(1)
The flutter derivatives A 1 * ~ A 3 * and H 1 * ~ H 1 * , obtained by E. Simiu and R.H. Scanlan [27], are related to C′L and C′M, respectively;
(2)
The main beam section is driven by the D-term, and C′L·C′M provides negative aerodynamic damping. As its value becomes larger, the flutter stability becomes smaller;
(3)
The correlation between the ATCC value and flutter critical wind speed is compared and analyzed.
The analysis results are shown in Figure 9. The results show that, among the seven parameters C M C L , C M , C L , C D , C M   C L and C D of the ATCC, the parameter with the largest correlation with flutter critical wind speed was C M C L .

3. Using the ATCC to Make Quick Pneumatic Selection

In selecting the aerodynamic parameters of the main girder, the ATCC was used to determine the flutter drive terms. When the flutter drive was the D-term of aerodynamic damping, the structural characteristic parameters of the main girder were similar due to different aerodynamic measurements. C M was the A-term of aerodynamic damping and was suitable for structural stability. C M · C L was unsuitable for structural stability in the D-term of aerodynamic damping. Therefore, the damping ratio of the torsional motion involved in the system ξ   α a is shown in Formula (6):
K = C M C M C L
where, when the positive aerodynamic damping is larger and the absolute value of the negative aerodynamic damping is smaller, as the K value becomes larger, the structural flutter stability becomes better. Typical bridge sections were used as examples to verify the accuracy of applying parameter K to the rapid pneumatic selection.
(1)
Closed box girder section
A closed box girder suspension bridge (No. 4) was considered. The main span of the bridge was 1688 m. In the preliminary design stage, there were three different comparison schemes for the main beam section. Scheme 1 was a wide-beam scheme, with a beam width of 44.6 m. Scheme 2 and scheme 3 were narrow beam schemes with different wind fairing forms. The beam width of both schemes was 41.7 m, and the beam height was 3.5 m. Figure 10 illustrates the two schemes of the main beam section. The model is shown in Figure 11. According to the change in the damping ratio with wind speed, we determined the scheme to be a torsional divergence scheme, as shown in Figure 12. The flutter derivative was identified through wind tunnel tests. A 1 * and A 2 * were negative following a reduction in wind speed. H 3 * was positive; the A-term of aerodynamic damping was positive; and the D-term of aerodynamic damping was negative, as determined using Equation (2), which was the D-term pneumatic damping drive instability. The flutter derivatives after fitting A 1 * ,   A 2 * and H 3 * are shown in Figure 13. The aerodynamic damping of the A-term and D-term was analyzed using the flutter derivatives presented in Table 5.
According to Equation (5), when the angle of attack was 3°, the D-term of scheme 3 was negative, and the A-term is positive. Therefore, it was determined that the flutter driving term was D-term driving, which was consistent with the result obtained when determining the aerodynamic damping driving term by the flutter derivative. Figure 14 shows the ATCC of Bridge 4, and Table 5 uses the ATCC of two schemes to determine the flutter driving term. Using the ATCC of the two schemes to calculate the K value, the result of scheme 3 was greater than that of scheme 2, indicating that the torsional divergent flutter critical wind speed of scheme 2 was small. The flutter critical wind speeds of the two schemes obtained from wind tunnel tests verified the correctness of the method. Table 6 shows the calculation results of the K value.
(2)
Steel truss section
We considered a steel truss suspension bridge (No. 3) as an example here. The main span of the bridge was 536 m. The critical flutter wind speed (0° angle of attack) obtained through the original wind tunnel test (Scheme 1) was 43.8 m/s, which was less than that of the simulated flutter wind speed test. Through wind tunnel tests on the main girder, it was shown that scheme 2 effectively increased the critical flutter wind speed of the bridge. Figure 15 shows the two schemes of the main beam section. Table 7 shows pneumatic measurements for the two schemes. The sectional model for flutter tests in a wind tunnel is shown in Figure 16. Using the ATCC to calculate the K value of scheme 2, the result was greater than that of scheme 1, indicating that the overall positive aerodynamic damping of scheme 2 was larger than that of scheme 1, and the absolute value of negative aerodynamic damping was smaller than that of scheme 1. Therefore, the critical wind speed of torsional divergence flutter in scheme 2 was small. The K values of the schemes are presented in Table 8. Figure 17 shows their ATCC values.
(3)
Flat steel box girder section
Here, we considered a suspension bridge (No. 2) as an example. The bridge had a total width of 69.8 m and a height of 4.2 m. Under the condition that the ventilation rate of the guardrail is 75%, aerodynamic tests are conducted on the upper central stabilizer set at different intervals to improve the flutter stability of the bridge.. Figure 18 illustrates the main beam section. The sectional model for flutter tests in a wind tunnel is shown in Figure 19. Using the ATCC to calculate the K value of the scheme with pneumatic measurements (scheme 2), the result was greater than that of the scheme without pneumatic measurements (scheme 1), indicating that the overall positive aerodynamic damping of the scheme 2 was larger than that of the scheme 1, and the absolute value of negative aerodynamic damping was smaller than that of the scheme 1. Therefore, the critical wind speed of torsional divergence flutter in the scheme 1 was small. Table 9 presents the ATCC and calculation results of the K value.
Table 10 displays the ATCC for Bridge No. 7. Table 11 summarizes the flutter stability of four types of sections, including five bridges, under different aerodynamic measures using parameter K to judge the flutter stability, and the critical flutter wind speed of the wind tunnel was used to verify the correctness of this method.

4. Conclusions

(1)
Based on the flutter mechanism, the typical section of the main beam was divided into three types of damping drives using the ATCC. The flutter stability of the X-term damping-driven type was the highest, i.e., the slotted box girder; the flutter stability of the X + D damping-driven type was the worst, i.e., the H section; and the flutter stability of the D-term damping-driven type was measured as being between the two, which is common in closed box girder sections and truss sections. The correctness of this method was verified using the flutter derivative.
(2)
Through the gray correlation analysis method, it was concluded that the critical flutter wind speed had the greatest correlation with 1/ C M C L .
(3)
In the case of D aerodynamic damping drive divergence, the parameter k = k ( C M , C L ) was used to select the aerodynamic type of the main beam. As K became larger, the flutter stability became better.
(4)
In this paper, the ATCC was used to realize the rapid comparison and selection of different aerodynamic measures of the main beam driven by D damping. In the future, research should analyze the influence of the geometric parameters of a section, the dynamic characteristic parameters of a model and the influence of the Reynolds number on the ATCC in system damping, and it should establish the critical flutter wind speed prediction model in order to provide a reference for the rapid and accurate preliminary design scheme comparison of long-span bridges in the future.

Author Contributions

Conceptualization, H.G. and Q.G.; methodology, H.G. and J.L.; writing—original draft preparation, H.G., Q.G. and F.W.; data curation, F.W. and J.L.; writing—review and editing, H.G. and H.H.; funding acquisition, Q.G. All authors have read and agreed to the published version of the manuscript.

Funding

This research was funded by the Shandong Provincial Natural Science Foundation, grant number ZR2021ME104.

Institutional Review Board Statement

Not applicable.

Informed Consent Statement

Not applicable.

Data Availability Statement

The data presented in this study are available upon request from the corresponding author.

Conflicts of Interest

The authors declare no conflict of interest.

References

  1. Cid Montoya, M.; Nieto, F.; Hernández, S.; Fontán, A.; Jurado, J.Á.; Kareem, A. Aero-structural Optimization of Streamlined Twin-Box Deck Bridges with Short Gap Considering Flutter. J. Bridg. Eng. 2021, 26, 04021028. [Google Scholar] [CrossRef]
  2. Cid Montoya, M.; Nieto, F.; Hernández, S.; Fontán, A.; Jurado, J.Á.; Kareem, A. Optimization of bridges with short gap streamlined twin-box decks considering structural, flutter and buffeting performance. J. Wind Eng. Ind. Aerodyn. 2021, 208, 104316. [Google Scholar] [CrossRef]
  3. Buljac, A.; Kozmar, H.; Pospíšil, S.; Macháček, M.; Kuznetsov, S. Effects of Wind-Barrier Layout and Wind Turbulence on Aerodynamic Stability of Cable-Supported Bridges. J. Bridg. Eng. 2020, 25, 04020102. [Google Scholar] [CrossRef]
  4. Zhang, T.; Li, M.; Lei, Y.; Sun, Y.; Li, M.; Zhong, Y. Flutter Stability of Long-Span Bridges with Plate-Truss Separated and Composite Girders: Comparative Study. J. Bridg. Eng. 2022, 27, 04022018. [Google Scholar] [CrossRef]
  5. Zhang, M.; Xu, F. Tuned mass damper for self-excited vibration control: Optimization involving nonlinear aeroelastic effect. J. Wind Eng. Ind. Aerodyn. 2022, 220, 104836. [Google Scholar] [CrossRef]
  6. Chen, X.; Kareem, A. Efficacy of Tuned Mass Dampers for Bridge Flutter Control. J. Struct. Eng. 2003, 129, 1291–1300. [Google Scholar] [CrossRef]
  7. Zhang, M.; Xu, F.; Wu, T.; Zhang, Z. Postflutter Analysis of Bridge Decks Using Aerodynamic-Describing Functions. J. Bridg. Eng. 2020, 25, 04020046. [Google Scholar] [CrossRef]
  8. JTG/T 3360-01—2018; Wind-Resistant Design Specification for Highway Bridges. Ministry of Transport of the PRC. China Communications Press: Beijing, China, 2019.
  9. Zhuo, L.; Liao, H.; Zhou, Q.; Li, M. Identification of Aerodynamic Derivatives of a Box-Girder Bridge Deck with Twin Active Flaps Using CFD Simulations. J. Bridg. Eng. 2022, 27, 04022002. [Google Scholar] [CrossRef]
  10. Li, K.; Li, S.; Ge, Y.; Yan, B. An investigation into the bimodal flutter details based on flutter derivatives’ contribution along the bridge deck’s surface. J. Wind Eng. Ind. Aerodyn. 2019, 192, 1–16. [Google Scholar] [CrossRef]
  11. Nieto, F.; Owen, J.S.; Hargreaves, D.M.; Hernández, S. Bridge deck flutter derivatives: Efficient numerical evaluation exploiting their interdependence. J. Wind Eng. Ind. Aerodyn. 2015, 136, 138–150. [Google Scholar] [CrossRef]
  12. Xu, F.; Zhang, Z. Free vibration numerical simulation technique for extracting flutter derivatives of bridge decks. J. Wind Eng. Ind. Aerodyn. 2017, 170, 226–237. [Google Scholar] [CrossRef]
  13. Mei, H.; Wang, Q.; Liao, H.; Fu, H. Improvement of Flutter Performance of a Streamlined Box Girder by Using an Upper Central Stabilizer. J. Bridg. Eng. 2020, 25, 04020053. [Google Scholar] [CrossRef]
  14. Li, Y.; Li, C.; Liang, Y.-D.; Li, J.-W. Fast prediction of the flutter critical wind speed of streamlined box girders by using aerostatic force coefficients and artificial neural networks. J. Wind Eng. Ind. Aerodyn. 2022, 222, 104939. [Google Scholar] [CrossRef]
  15. Farquharson, F.B. Aerodynamic Stability of Suspension Bridges with Special Reference to the Tacoma Narrows Bridge-Part I, Investigation Prior to October, 1941; Engineering Experiment Section, Bulletin No.116, Part I, June 1949; University of Washington: Seattle, WA, USA, 1949. [Google Scholar]
  16. Kawada, T. The Fall of the Tacoma Narrows Bridge. Wind Eng. JAWE 2000, 2000, 25–32. [Google Scholar] [CrossRef]
  17. Gaur, N.; Raj, R. Aerodynamic mitigation by corner modification on square model under wind loads employing CFD and wind tunnel. Ain Shams Eng. J. 2022, 13, 101521. [Google Scholar] [CrossRef]
  18. Chen, X. Analysis of Long Span Bridge Response to Winds: Building Nexus between Flutter and Buffeting. J. Struct. Eng. 2006, 132, 2006–2017. [Google Scholar] [CrossRef]
  19. Simiu, E.; Letchford, C.; Isyumov, N.; Chowdhury, A.G.; Yeo, D. Assessment of ASCE 7-10 Standard Methods for Determining Wind Loads. J. Struct. Eng. 2013, 139, 2044–2047. [Google Scholar] [CrossRef]
  20. Fang, G.; Cao, J.; Yang, Y.; Zhao, L.; Cao, S.; Ge, Y. Experimental Uncertainty Quantification of Flutter Derivatives for a PK Section Girder and Its Application on Probabilistic Flutter Analysis. J. Bridg. Eng. 2020, 25, 04020034. [Google Scholar] [CrossRef]
  21. Fung, Y.C. The Static Stability of a Two-Dimensional Curved Panel in a Supersonic Flow, with an Application to Panel Flutter. Crit. Asian Stud. 1954, 21, 556–565. [Google Scholar] [CrossRef]
  22. Bai, H.; Fang, C. Parameters for rapid evaluation of bridge flutter stability and their applications. J. China Highw. 2016, 29, 92–98. [Google Scholar]
  23. Bai, H.; Gao, H.; Li, Y. Evaluation of bridge flutter stability with the aid of three-component force coefficient. J. China Highw. 2014, 27, 68–73. [Google Scholar]
  24. Hui, G.; Xing, L. Correlation Analysis of Bridge Flutter Critical Wind Speed and Three-Component Force Coefficient Based on Grey Correlation Method. In Proceedings of the 2021 6th International Conference on Minerals Source, Geotechnology and Civil Engineering, Guangzhou, China, 14 January 2021. [Google Scholar] [CrossRef]
  25. Scanlan, R.H. Interpreting Aeroelastic Models of Cable-Stayed Bridges. J. Eng. Mech. 1987, 113, 555–575. [Google Scholar] [CrossRef]
  26. Daemei, A.B.; Khotbehsara, E.M.; Nobarani, E.M.; Bahrami, P. Study on wind aerodynamic and flow characteristics of triangular-shaped tall buildings and CFD simulation in order to assess drag coefficient. Ain Shams Eng. J. 2019, 10, 541–548. [Google Scholar] [CrossRef]
  27. Simiu, E.; Scanlan, R.H. Wind Effects on Structures; Wiley: New York, NY, USA, 1986. [Google Scholar]
  28. Chen, X.; Kareem, A. Advances in Modeling of Aerodynamic Forces on Bridge Decks. J. Eng. Mech. 2002, 128, 1193–1205. [Google Scholar] [CrossRef]
  29. Fung, Y.C. An Introdution to the Theory of Aeroelasticity; Courier Dover Publications: Mineola, NY, USA, 1955. [Google Scholar]
  30. Li, J.W.; Pan, H.; Gao, G.Z.; Xing, S.; Zheng, X.D. Experimental Study on Aerodynamic Measures for Flutter of Flat Steel Box Girder. Highw. Transp. Technol. 2021, 38, 69–78. [Google Scholar]
  31. Huston, D.R. Flutter derivatives from 14 generic deck sections. In Proceedings of the Sessions at Structure Congress ’87 Related to Bridges and Transmisson Line Structures, Orlando, FL, USA, 17–20 August 1987; pp. 281–291. [Google Scholar]
  32. Zhang, J. Wind-Induced Vibration Process and Evolution Mechanism of the Old Tacoma Bridge; Southwest Jiaotong University: Chengdu, China, 2018. [Google Scholar]
Figure 1. Cross section of central slotted girder. (No. 9, mm).
Figure 1. Cross section of central slotted girder. (No. 9, mm).
Buildings 12 01212 g001
Figure 2. Model (No. 9): (a) sectional model for flutter tests in wind tunnel; (b) finite element model.
Figure 2. Model (No. 9): (a) sectional model for flutter tests in wind tunnel; (b) finite element model.
Buildings 12 01212 g002
Figure 3. Central slotted box girder damping ratio (No. 9).
Figure 3. Central slotted box girder damping ratio (No. 9).
Buildings 12 01212 g003
Figure 4. Trial fitting flutter derivatives (No. 9): (a) A 1 * ; (b) A 2 * and H 3 * .
Figure 4. Trial fitting flutter derivatives (No. 9): (a) A 1 * ; (b) A 2 * and H 3 * .
Buildings 12 01212 g004
Figure 5. ATCC of central slotted girder section (No. 9): (a) CL; (b) CM.
Figure 5. ATCC of central slotted girder section (No. 9): (a) CL; (b) CM.
Buildings 12 01212 g005
Figure 6. Cross section of edge-box open girder section (No. 6, mm).
Figure 6. Cross section of edge-box open girder section (No. 6, mm).
Buildings 12 01212 g006
Figure 7. Model (No. 6): (a) sectional model for flutter tests in wind tunnel; (b) finite element model.
Figure 7. Model (No. 6): (a) sectional model for flutter tests in wind tunnel; (b) finite element model.
Buildings 12 01212 g007
Figure 8. ATCC of edge-box open girder (No. 6).
Figure 8. ATCC of edge-box open girder (No. 6).
Buildings 12 01212 g008
Figure 9. Gray correlation coefficient between the ATCC and critical flutter wind speed: (a) steel truss beams; (b) closed steel box gird; (c) slotted steel box girder.
Figure 9. Gray correlation coefficient between the ATCC and critical flutter wind speed: (a) steel truss beams; (b) closed steel box gird; (c) slotted steel box girder.
Buildings 12 01212 g009
Figure 10. Cross section of closed box girder (No. 4, mm): (a) scheme 2; (b) scheme 3.
Figure 10. Cross section of closed box girder (No. 4, mm): (a) scheme 2; (b) scheme 3.
Buildings 12 01212 g010
Figure 11. Model (No. 4): (a) sectional model for flutter tests in wind tunnel; (b) finite element model.
Figure 11. Model (No. 4): (a) sectional model for flutter tests in wind tunnel; (b) finite element model.
Buildings 12 01212 g011
Figure 12. Closed box girder damping ratio.
Figure 12. Closed box girder damping ratio.
Buildings 12 01212 g012
Figure 13. Trial fitting flutter derivatives (a) A 1 * ; (b) A 2 * and H 3 * .
Figure 13. Trial fitting flutter derivatives (a) A 1 * ; (b) A 2 * and H 3 * .
Buildings 12 01212 g013
Figure 14. ATCC of closed box girder section (No. 4): (a) CL; (b) CM.
Figure 14. ATCC of closed box girder section (No. 4): (a) CL; (b) CM.
Buildings 12 01212 g014
Figure 15. Cross section of main girder (No. 3, mm): (a) Scheme 1; (b) Scheme 2.
Figure 15. Cross section of main girder (No. 3, mm): (a) Scheme 1; (b) Scheme 2.
Buildings 12 01212 g015
Figure 16. Sectional model for flutter tests in wind tunnel (No. 3).
Figure 16. Sectional model for flutter tests in wind tunnel (No. 3).
Buildings 12 01212 g016
Figure 17. ATCC of Bridge 3.
Figure 17. ATCC of Bridge 3.
Buildings 12 01212 g017
Figure 18. Cross section of flat steel box girder (No. 2).
Figure 18. Cross section of flat steel box girder (No. 2).
Buildings 12 01212 g018
Figure 19. Sectional model for flutter tests in wind tunnel (No. 2).
Figure 19. Sectional model for flutter tests in wind tunnel (No. 2).
Buildings 12 01212 g019
Table 1. Information regarding nine bridges.
Table 1. Information regarding nine bridges.
Bridge No.LocationBridge TypeType of Cross SectionAngle of AttackPneumatic MeasuresV (m/s)
No. 1U.S.A.Suspension bridgeH-19.0
No. 2ChinaSuspension bridgeFlat steel box girderWithout pneumatic measurements64.4
With pneumatic measurements71.3
No. 3ChinaSuspension bridgeSteel truss beamWithout diversion plate and central stabilizer42.0
With diversion plate and central stabilizer66.5
No. 4China
China
Suspension bridgeClosed box girderDifferent wind barrier46.8
Different wind barrier70.2
No. 5ChinaSuspension bridgeClosed box girder-71.3
No. 6China
(under design)
Suspension bridgeEdge-boxes open girder-82.1
No. 7ChinaSuspension bridgeDouble-slotted bluff body-89.2
+3°Without diversion plate87.1
+3°With diversion plate88.7
No. 8ItalySuspension bridgeDouble-slotted box girder-90.0
No. 9ChinaCable-stayed bridgeSlotted steel box girderWith wind barrier100.7
Without wind barrier116.0
Table 2. Differentiation of flutter driving terms using ATCC (No. 9).
Table 2. Differentiation of flutter driving terms using ATCC (No. 9).
Parameter“+”or “−”ADV (m/s)
C L ++116
C M
A 2 * +
A 1 * +
H 3 * +
Table 3. Differentiation of flutter driving terms using ATCC (No. 6).
Table 3. Differentiation of flutter driving terms using ATCC (No. 6).
Parameter“+”or “−”ADV (m/s)
C L ++82.15
C M +
Table 4. Flutter driving term and critical flutter wind speed of different girder section types.
Table 4. Flutter driving term and critical flutter wind speed of different girder section types.
Bridge NoMain Beam Section FormAngle of Attack (°) A 2 *   A 1 * H 3 *   ADA + DV (m/s)
No. 1H− [32]L19.0
No. 2Flat steel box girder+++M64.4
No. 3Steel truss beam+++M66.5
No. 4Closed box girder+++M70.2
No. 5Closed box girder+++M71.3
No. 6edge-box open girder+++M82.2
No. 7Double-slotted bluff body+++M89.2
No. 8Double-slotted box girder+++M90.0
No. 9Slotted steel box girder++H116.0
where: (1) “L” represents a low critical flutter wind speed and poor flutter stability; (2) “H” represents a high critical flutter wind speed and strong flutter stability; (3) “M” represents a situation between states (1) and (2) above.
Table 5. Differentiation of flutter drive mechanisms for closed box girder with ATCC.
Table 5. Differentiation of flutter drive mechanisms for closed box girder with ATCC.
Parameter“+”or “−”DAV (m/s)
C L ++70.2
C M +
A 2 *
A 1 *
H 3 * +
Table 6. K values of Bridge 4.
Table 6. K values of Bridge 4.
Scheme C M C M C L K V   m / s  
20.8313.05−2.21946.8
30.862.144−1.28470.2
Table 7. Pneumatic measurements for two schemes.
Table 7. Pneumatic measurements for two schemes.
SchemeAerodynamic MeasurementWind Resistance Measurements
SchematicClosed View of Railing
1Original design Buildings 12 01212 i001 Buildings 12 01212 i002
2Lower central stabilizer + horizontal splitter plate + closed part of the crash barrier Buildings 12 01212 i003 Buildings 12 01212 i004
Table 8. K values of Bridge 3.
Table 8. K values of Bridge 3.
Scheme C M C M C L K V   m / s  
10.441.331−0.89142.5
20.5280.949−0.42166.5
Table 9. K values of Bridge 2.
Table 9. K values of Bridge 2.
Scheme C M C L C M C L K V   m / s  
10.89933.50943.1562.25764.38
20.83084.24613.5282.69771.3
Table 10. ATCC of Bridge 7.
Table 10. ATCC of Bridge 7.
ATCCNo. 7
With Splitter PlateWithout Splitter Plate
CL1.241.33
CM0.310.29
Table 11. K values of aerodynamic term selection of typical cross-sectional bridges.
Table 11. K values of aerodynamic term selection of typical cross-sectional bridges.
Bridge NameBridge TypePneumatic MeasuresBridge Section FormWind Power
Angle (°)
VK
No. 2Suspension bridgeWithout pneumatic measurementsFlat steel box girder64.382.257
With pneumatic measurements71.32.697
No. 3Suspension bridgeWithout diversion plate and central stabilizerSteel truss beams42.5−0.891
With diversion plate and central stabilizer66.5−0.421
No. 4Suspension bridgeDifferent wind barrierClosed steel box girder46.8−2.219
Different wind barrier70.2−1.284
No. 7Suspension bridgeWithout diversion plateSlotted steel box girder+3°87.1−0.0957
With diversion plate+3°88.7−0.0744
No. 9Cable-stayed bridgeWith wind barrierSlotted steel box girder100.65−0.235
Without wind barrier116−0.178
Publisher’s Note: MDPI stays neutral with regard to jurisdictional claims in published maps and institutional affiliations.

Share and Cite

MDPI and ACS Style

Gao, H.; Wang, F.; Guan, Q.; Hou, H.; Li, J. Research on the Flutter Stability of Bridge Sections Based on an Empirical Formula of an Aerostatic Three-Component Coefficient. Buildings 2022, 12, 1212. https://doi.org/10.3390/buildings12081212

AMA Style

Gao H, Wang F, Guan Q, Hou H, Li J. Research on the Flutter Stability of Bridge Sections Based on an Empirical Formula of an Aerostatic Three-Component Coefficient. Buildings. 2022; 12(8):1212. https://doi.org/10.3390/buildings12081212

Chicago/Turabian Style

Gao, Hui, Feng Wang, Qinghai Guan, Huifang Hou, and Jiawu Li. 2022. "Research on the Flutter Stability of Bridge Sections Based on an Empirical Formula of an Aerostatic Three-Component Coefficient" Buildings 12, no. 8: 1212. https://doi.org/10.3390/buildings12081212

APA Style

Gao, H., Wang, F., Guan, Q., Hou, H., & Li, J. (2022). Research on the Flutter Stability of Bridge Sections Based on an Empirical Formula of an Aerostatic Three-Component Coefficient. Buildings, 12(8), 1212. https://doi.org/10.3390/buildings12081212

Note that from the first issue of 2016, this journal uses article numbers instead of page numbers. See further details here.

Article Metrics

Back to TopTop