Shear Enhancement of RC Beams Using Low-Cost Natural Fiber Rope Reinforced Polymer Composites
Abstract
:1. Introduction
2. Materials and Methods
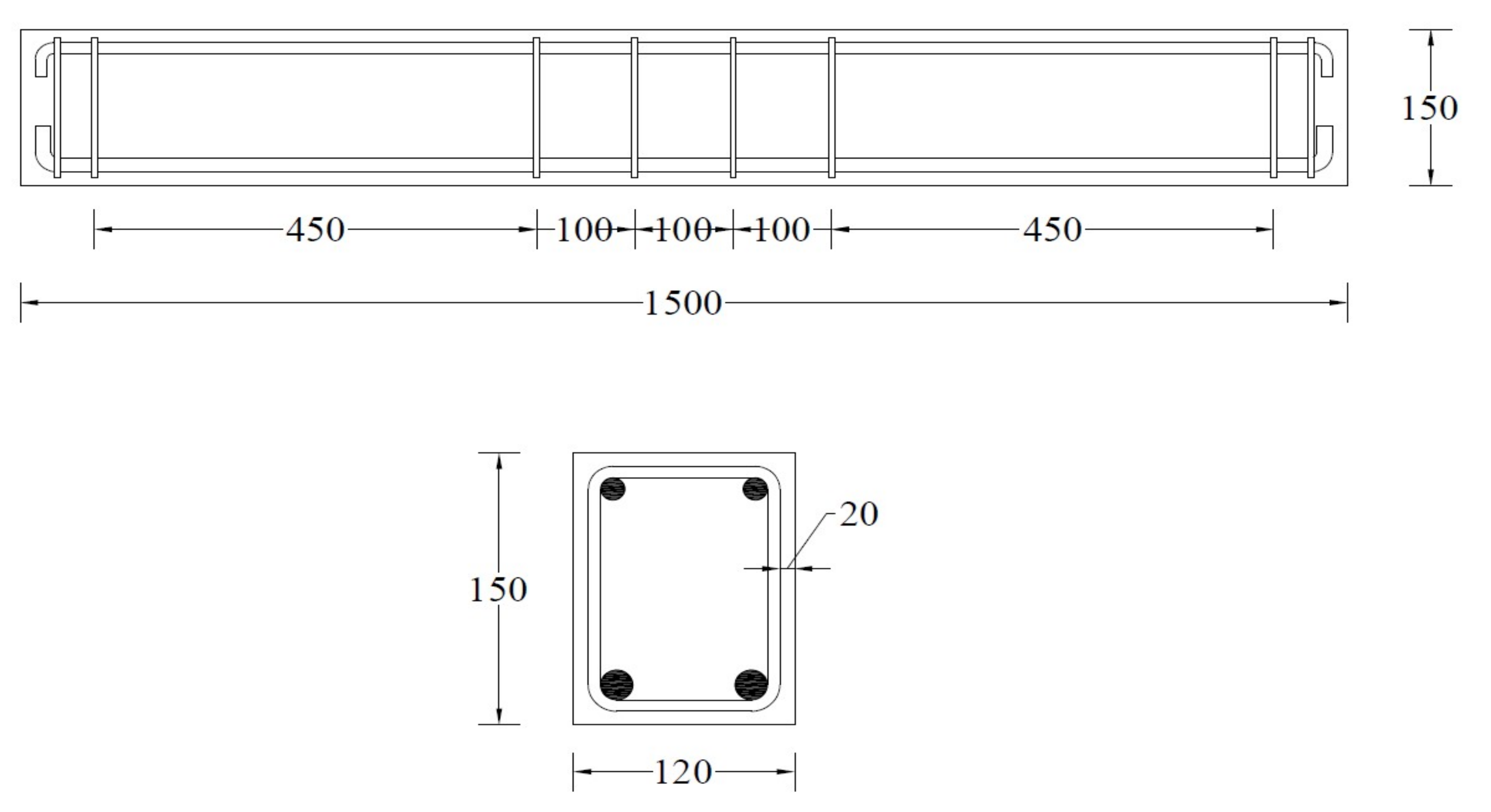
2.1. Details of RC Beams
2.2. Details of Strengthening Using NFRRP Composites
2.3. Details of Materials
2.4. Preparation of RC Beams
2.5. Instrumentation and Loading Setup
3. Results and Discussions
3.1. Ultimate Load and Deflection
3.2. Failure of RC Beams
3.3. Load-Deflection Curves
3.4. Energy Dissipation Capacity
3.5. Tensile Behavior of Steel Bars
3.6. Effect of Strengthening Configuration
3.7. Effect of Type of NFRRP Composite
4. Finite Element Analysis of NFRRP Composite Strengthened Beams
4.1. Comparison of Ultimate Load and Deflection
4.2. Cracking and Ultimate Failure Modes
5. Conclusions
- Epoxy bonded natural fiber ropes are very beneficial and effective in increasing the shear strength, deformation capacity, and energy dissipation capacity of RC beams.
- The ultimate load carrying capacities of the hemp FRRP composite strengthened beams B-H-A, B-H-B, and B-H-C were 50%, 57%, and 63% higher than that of the control beam, whereas the ultimate load carrying capacities of the cotton FRRP composite strengthened beams B-C-A, B-C-B, and B-C-C were 36%, 52%, and 56% higher than that of the control beam.
- Type C configuration had highest amount of load carrying capacity when compared to other configurations, whereas type A configuration for both the hemp and cotton fibers performed the best in deflection as compared to other configurations.
- The load carrying capacities of the hemp FRRP composite strengthened beams were greater than those of the cotton FRRP composite strengthened beams for all types of strengthening configurations, whereas the ultimate deflection performance of the cotton FRRP composite strengthened beams was much better than that of the hemp FRRP composite strengthened beams. The load carrying capacities of the hemp FRRP composite strengthened beams were 11%, 4%, and 5% greater than those of the cotton FRRP composite strengthened beams for configuration types A, B, and C, respectively. The ultimate deflection of the cotton FRRP composite strengthened beams was 11%, 4%, and 5% greater than that of the hemp FRRP composite strengthened beams for configuration types A, B, and C, respectively.
- In terms of energy dissipation capacity, strengthening configuration type B for both types of natural fiber ropes was most effective when compared with other configurations.
- These FRRP fibers are useful, effective, and preferable because they change the failure of beams from shear failure mode to flexural and flexural-shear failure mode.
- FEM analysis was carried out, and the analytical results showed good comparison with the experimental results. The failure modes and cracking patterns of the FEM analysis were well matched with the experimental failure modes and cracking patterns.
Author Contributions
Funding
Institutional Review Board Statement
Informed Consent Statement
Data Availability Statement
Acknowledgments
Conflicts of Interest
References
- Ascione, L.; Feo, L. Modeling of composite/concrete interface of RC beams strengthened with composite laminates. Compos. Part B Eng. 2000, 31, 535–540. [Google Scholar] [CrossRef]
- Sim, J.; Park, C.; Moon, D.Y. Characteristics of basalt fiber as a strengthening material for concrete structures. Compos. Part B Eng. 2005, 36, 504–512. [Google Scholar] [CrossRef]
- Yao, J.; Teng, J.; Chen, J.-F. Experimental study on FRP-to-concrete bonded joints. Compos. Part B Eng. 2004, 36, 99–113. [Google Scholar] [CrossRef]
- Katakalos, K.; Manos, G.; Papakonstantinou, C. Seismic Retrofit of R/C T-Beams with Steel Fiber Polymers under Cyclic Loading Conditions. Buildings 2019, 9, 101. [Google Scholar] [CrossRef] [Green Version]
- Khalifa, A.; Nanni, A. Improving shear capacity of existing RC T-section beams using CFRP composites. Cem. Concr. Compos. 2000, 22, 165–174. [Google Scholar] [CrossRef]
- Chen, J.-F.; Teng, J. Shear capacity of FRP-strengthened RC beams: FRP debonding. Constr. Build. Mater. 2002, 17, 27–41. [Google Scholar] [CrossRef]
- Chen, G.M.; Teng, J.G.; Chen, J.-F. Shear Strength Model for FRP-Strengthened RC Beams with Adverse FRP-Steel Interaction. J. Compos. Constr. 2013, 17, 50–66. [Google Scholar] [CrossRef]
- Triantafyllou, G.; Rousakis, T.; Karabinis, A. Corroded RC Beams at Service Load before and after Patch Repair and Strengthening with NSM CFRP Strips. Buildings 2019, 9, 67. [Google Scholar] [CrossRef] [Green Version]
- Santarsiero, G. FE Modelling of the Seismic Behavior of Wide Beam-Column Joints Strengthened with CFRP Systems. Buildings 2018, 8, 31. [Google Scholar] [CrossRef] [Green Version]
- Mhanna, H.H.; Hawileh, R.A.; Abdalla, J.A. Shear Strengthening of Reinforced Concrete Beams Using CFRP Wraps. Procedia Struct. Integr. 2019, 17, 214–221. [Google Scholar] [CrossRef]
- Chalioris, C.E.; Kytinou, V.K.; Voutetaki, M.E.; Papadopoulos, N.A. Repair of heavily damaged RC beams failing in shear using U-shaped mortar jackets. Buildings 2019, 9, 146. [Google Scholar] [CrossRef] [Green Version]
- Moradi, E.; Naderpour, H.; Kheyroddin, A. An experimental approach for shear strengthening of RC beams using a proposed technique by embedded through-section FRP sheets. Compos. Struct. 2020, 238, 111988. [Google Scholar] [CrossRef]
- Dias, S.; Silva, J.; Barros, J. Flexural and shear strengthening of reinforced concrete beams with a hybrid CFRP solution. Compos. Struct. 2020, 256, 113004. [Google Scholar] [CrossRef]
- Malek, A.M.; Saadatmanesh, H. Ultimate shear capacity of reinforced concrete beams strengthened with web-bonded fiber-reinforced plastic plates. ACI Struct. J. 1998, 95, 391–399. [Google Scholar]
- Triantafillou, T.C. Shear strengthening of reinforced concrete beams using epoxy-bonded FRP composites. ACI Struct. J. 1998, 95, 107–115. [Google Scholar]
- Yang, X.; Gao, W.-Y.; Dai, J.-G.; Lu, Z.-D.; Yu, K. Flexural strengthening of RC beams with CFRP grid-reinforced ECC matrix. Compos. Struct. 2018, 189, 9–26. [Google Scholar] [CrossRef]
- Jirawattanasomkul, T.; Kongwang, N.; Jongvivatsakul, P.; Likitlersuang, S. Finite element modelling of flexural behaviour of geosynthetic cementitious composite mat (GCCM). Compos. Part B Eng. 2018, 154, 33–42. [Google Scholar] [CrossRef]
- Jirawattanasomkul, T.; Kongwang, N.; Jongvivatsakul, P.; Likitlersuang, S. Finite element analysis of tensile and puncture behaviours of geosynthetic cementitious composite mat (GCCM). Compos. Part B Eng. 2019, 165, 702–711. [Google Scholar] [CrossRef]
- Wakjira, T.G.; Ebead, U. Hybrid NSE/EB technique for shear strengthening of reinforced concrete beams using FRCM: Experimental study. Constr. Build. Mater. 2018, 164, 164–177. [Google Scholar] [CrossRef]
- Wambua, P.; Ivens, J.; Verpoest, I. Natural fibres: Can they replace glass in fibre reinforced plastics? Compos. Sci. Technol. 2003, 63, 1259–1264. [Google Scholar] [CrossRef]
- Alam, M.; Hassan, A.; Muda, Z.C. Development of kenaf fibre reinforced polymer laminate for shear strengthening of reinforced concrete beam. Mater. Struct. 2016, 49, 795–811. [Google Scholar] [CrossRef]
- Horsangchai, K.; Jirawattanasomkul, T.; Ueda, T. Behavior of concrete confined with jute and hemp natural fiber reinforced polymer. In Proceedings of the 8th International Conference on Fibre-Reinforced Polymer (FRP) Composites in Civil Engineering (CICE 2016), Hong Kong, China, 14–16 December 2016. [Google Scholar]
- Bambach, M. Compression strength of natural fibre composite plates and sections of flax, jute and hemp. Thin-Walled Struct. 2017, 119, 103–113. [Google Scholar] [CrossRef]
- Alam, M.A.; Al Riyami, K. Shear strengthening of reinforced concrete beam using natural fibre reinforced polymer laminates. Constr. Build. Mater. 2018, 162, 683–696. [Google Scholar] [CrossRef]
- Hussain, Q.; Ruangrassamee, A.; Tangtermsirikul, S.; Joyklad, P. Behavior of concrete confined with epoxy bonded fiber ropes under axial load. Constr. Build. Mater. 2020, 263, 120093. [Google Scholar] [CrossRef]
- Hussain, Q.; Ruangrassamee, A.; Tangtermsirikul, S.; Joyklad, P.; Wijeyewickrema, A.C. Low-Cost Fiber Rope Reinforced Polymer (FRRP) Confinement of Square Columns with Different Corner Radii. Buildings 2021, 11, 355. [Google Scholar] [CrossRef]
- Zhang, Z.; Hsu, C.T.T.; Moren, J. Shear strengthening of reinforced concrete deep beams using carbon fiber reinforced polymer laminates. J. Compos. Constr. 2004, 8, 403–414. [Google Scholar] [CrossRef]
- Majumder, S.; Saha, S. Shear behaviour of RC beams strengthened using geosynthetic materials by external and internal confinement. Structures 2021, 32, 1665–1678. [Google Scholar] [CrossRef]
- Adhikary, B.B.; Mutsuyoshi, H. Shear strengthening of reinforced concrete beams using various techniques. Constr. Build. Mater. 2006, 20, 366–373. [Google Scholar] [CrossRef]
- Bukhari, I.; Vollum, R.; Ahmad, S.; Sagaseta, J. Shear strengthening of reinforced concrete beams with CFRP. Mag. Concr. Res. 2010, 62, 65–77. [Google Scholar] [CrossRef] [Green Version]
- Dias, S.J.; Barros, J.A. Shear Strengthening of RC Beams with Near-Surface-Mounted CFRP Laminates; American Concrete Institute: Farmington Hills, MI, USA, 2005. [Google Scholar]
- Pukl, R.; Cervenka, J.; Cervenka, V. Simulating a response of connections. In Proceedings of the RILEM Symposium on Connections between Steel and Concrete, Stuttgart, Germany, 10–12 September 2001. [Google Scholar]
- Al-Abdwais, A.H.; Al-Mahaidi, R.S. Experimental and finite element analysis of flexural performance of RC beams retrofitted using near-surface mounted with CFRP composites and cement adhesive. Eng. Struct. 2021, 241, 112429. [Google Scholar] [CrossRef]
- Ruiz-Pinilla, J.G.; Montoya-Coronado, L.A.; Ribas, C.; Cladera, A. Finite element modeling of RC beams externally strengthened with iron-based shape memory alloy (Fe-SMA) strips, including analytical stress-strain curves for Fe-SMA. Eng. Struct. 2020, 223, 111152. [Google Scholar] [CrossRef]
- Červenka, V.; Jendele, L.; Červenka, J. ATENA Program Documentation–Part 1; Cervenka Consulting Sro: Prague, Czech Republic, 2000. [Google Scholar]
- MC10. CEB-FIP Model Code. In Bulletin d’Information No. 65/66; Comité Euro-International Du Béton Lausanne: Lausanne, Switzerland, 2010.
- Gambarelli, S.; Ožbolt, J. MESO-Scale Modeling of CFRP-Confined Concrete: Microplane-Based Approach. Fibers 2020, 8, 38. [Google Scholar] [CrossRef]
- Hussain, Q.; Pimanmas, A. Shear strengthening of RC deep beams with sprayed fiber-reinforced polymer composites (SFRP): Part 2 Finite element analysis. Lat. Am. J. Solids Struct. 2015, 12, 1266–1295. [Google Scholar] [CrossRef]
- Kannam, P.; Sarella, V.R. A study on validation of shear behaviour of steel fibrous SCC based on numerical modelling (ATENA). J. Build. Eng. 2018, 19, 69–79. [Google Scholar] [CrossRef]
- Shaaban, I.G.; Said, M.; Khan, S.U.; Eissa, M.; Elrashidy, K. Experimental and theoretical behaviour of reinforced concrete beams containing hybrid fibres. Structures 2021, 32, 2143–2160. [Google Scholar] [CrossRef]
- Malm, R.; Holmgren, J. Cracking in deep beams owing to shear loading. Part 2: Non-linear analysis. Mag. Concr. Res. 2008, 60, 381–388. [Google Scholar] [CrossRef]






















| Specimen | Fiber Rope | Strengthening Configuration |
|---|---|---|
| B-CON | - | - |
| B-H-A | Hemp | A |
| B-H-B | Hemp | B |
| B-H-C | Hemp | C |
| B-C-A | Cotton | A |
| B-C-B | Cotton | B |
| B-C-C | Cotton | C |
| Components | Quantity (kg/m3) |
|---|---|
| Water | 259 |
| Cement (Ordinary Portland Type-1) | 279 |
| Stones (coarse aggregates) | 1035 |
| Sand (fine aggregates) | 828 |
| Steel Bars | Strength (MPa) | Strain (mm/mm) | ||||||
|---|---|---|---|---|---|---|---|---|
| f1 | f2 | f3 | f4 | ε1 | ε2 | ε3 | ε4 | |
| DB16 | 450 | 470 | 515 | 560 | 0.0025 | 0.0044 | 0.0100 | 0.0169 |
| DB12 | 420 | 425 | 470 | 530 | 0.0026 | 0.0046 | 0.0100 | 0.0158 |
| RB6 | 350 | 350 | 415 | 480 | 0.0022 | 0.0038 | 0.0085 | 0.0141 |
| Curing time | 7–10 h |
| Tensile strength | 45 MPa |
| Flexural strength | 65 MPa |
| FRRP Composites | Strength (MPa) | Strain (mm/mm) | ||
|---|---|---|---|---|
| f1 | f2 | ε1 | ε2 | |
| Hemp | 177 | - | 0.0023 | - |
| Cotton | 80 | 129 | 0.0025 | 0.0129 |
| Specimen | Load at First Crack (kN) | Load at First Yield (kN) | Deflection at First Yield (mm) | Ultimate Load(kN) | % Increase in Ultimate Load | Deflection at Ultimate Load (mm) | % Increase inDeflection at Ultimate Load |
|---|---|---|---|---|---|---|---|
| B-CON | 2.3 | 44.4 | 4.8 | 46.7 | - | 5.3 | - |
| B-H-A | 3.8 | 58.3 | 8.3 | 70.1 | 50 | 14.0 | 164 |
| B-H-B | 2.7 | 65.7 | 8.2 | 73.4 | 57 | 13.0 | 145 |
| B-H-C | 6.6 | 55.1 | 6.1 | 76.2 | 63 | 10.5 | 97 |
| B-C-A | 3.0 | 53.3 | 8.7 | 63.4 | 36 | 15.1 | 185 |
| B-C-B | 3.6 | 53.5 | 5.7 | 71.0 | 52 | 11.6 | 119 |
| B-C-C | 5.1 | 62.4 | 6.9 | 72.9 | 56 | 12.3 | 132 |
| Specimen | Energy Dissipation Capacity (kN-mm) | % Increase in Energy Dissipation Capacity |
|---|---|---|
| B-CON | 291 | - |
| B-H-A | 1854 | 536 |
| B-H-B | 2030 | 596 |
| B-H-C | 1995 | 585 |
| B-C-A | 1577 | 441 |
| B-C-B | 2163 | 642 |
| B-C-C | 2005 | 588 |
| Specimen | Ultimate Strain (mm/mm) | % Increase in Ultimate Strain |
|---|---|---|
| B-CON | 0.0021 | - |
| B-H-A | 0.0262 | 1138 |
| B-H-B | 0.0255 | 1103 |
| B-H-C | 0.0250 | 1079 |
| B-C-A | 0.0044 | 106 |
| B-C-B | 0.0470 | 2122 |
| B-C-C | 0.0236 | 1014 |
| Specimen | Ultimate Load | Deflection at Ultimate Load | ||||
|---|---|---|---|---|---|---|
| FEA (kN) | Experiment (kN) | Difference (%) | FEA (kN) | Experiment (kN) | Difference (%) | |
| B-CON | 48.0 | 46.7 | 2.7 | 5.0 | 5.3 | 6.1 |
| B-H-A | 70.5 | 70.1 | 0.5 | 12.1 | 14.0 | 13.5 |
| B-H-B | 73.1 | 73.4 | 0.4 | 13.7 | 13.0 | 4.9 |
| B-H-C | 76.7 | 76.2 | 0.5 | 8.3 | 10.5 | 21.1 |
| B-C-A | 65.7 | 63.4 | 3.6 | 13.6 | 15.1 | 9.9 |
| B-C-B | 72.0 | 71.0 | 1.4 | 9.1 | 11.6 | 20.9 |
| B-C-C | 75.1 | 72.9 | 3.0 | 10.1 | 12.3 | 17.9 |
Publisher’s Note: MDPI stays neutral with regard to jurisdictional claims in published maps and institutional affiliations. |
© 2022 by the authors. Licensee MDPI, Basel, Switzerland. This article is an open access article distributed under the terms and conditions of the Creative Commons Attribution (CC BY) license (https://creativecommons.org/licenses/by/4.0/).
Share and Cite
Hussain, Q.; Ruangrassamee, A.; Joyklad, P.; Wijeyewickrema, A.C. Shear Enhancement of RC Beams Using Low-Cost Natural Fiber Rope Reinforced Polymer Composites. Buildings 2022, 12, 602. https://doi.org/10.3390/buildings12050602
Hussain Q, Ruangrassamee A, Joyklad P, Wijeyewickrema AC. Shear Enhancement of RC Beams Using Low-Cost Natural Fiber Rope Reinforced Polymer Composites. Buildings. 2022; 12(5):602. https://doi.org/10.3390/buildings12050602
Chicago/Turabian StyleHussain, Qudeer, Anat Ruangrassamee, Panuwat Joyklad, and Anil C. Wijeyewickrema. 2022. "Shear Enhancement of RC Beams Using Low-Cost Natural Fiber Rope Reinforced Polymer Composites" Buildings 12, no. 5: 602. https://doi.org/10.3390/buildings12050602
APA StyleHussain, Q., Ruangrassamee, A., Joyklad, P., & Wijeyewickrema, A. C. (2022). Shear Enhancement of RC Beams Using Low-Cost Natural Fiber Rope Reinforced Polymer Composites. Buildings, 12(5), 602. https://doi.org/10.3390/buildings12050602

