Major Building Materials in Terms of Environmental Impact Evaluation of School Buildings in South Korea
Abstract
:1. Introduction
2. Literature review
2.1. Life Cycle Assessment
2.2. Research Trends
3. Materials and Methods
3.1. Analysis Target
3.2. Analysis Method
3.2.1. Weight-Based Analysis Method
3.2.2. Environmental Impact-Based Analysis Method
4. Results
4.1. Weight-Based Analysis of the Major Building Materials
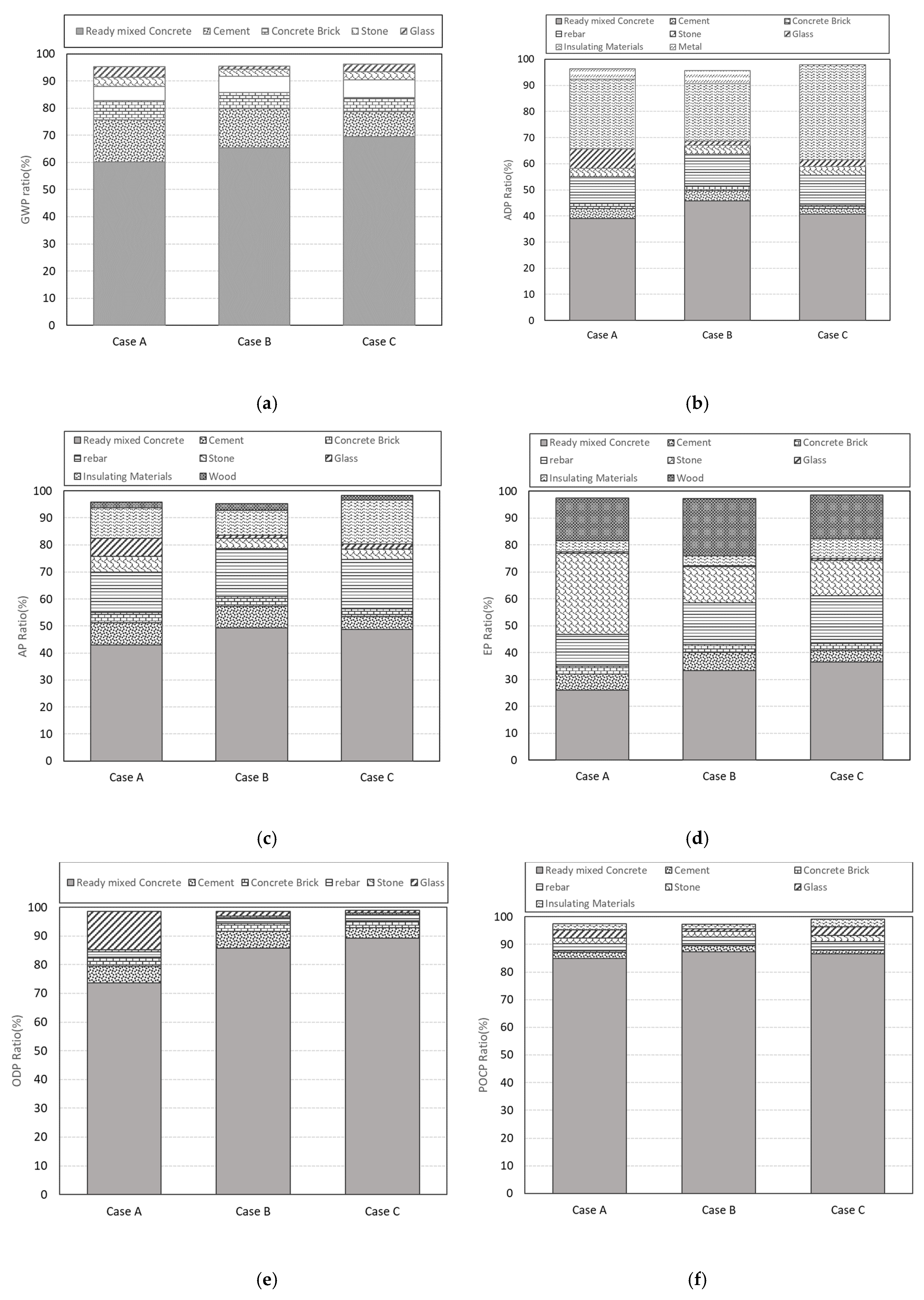
4.2. Environmental Impact-Based Analysis of the Major Building Materials
5. Discussion
6. Conclusions
- As a result of analyzing major building materials in terms of the weight and environment for school building LCA, nine materials (ready-mixed concrete, concrete bricks, aggregate, rebar, cement, stone, glass, insulating materials, and wood) were found to be the major building materials.
- The weight-based major building materials for school buildings were ready-mixed concrete, concrete bricks, aggregate, rebar, and cement, which represented more than 95% of the total weight.
- The major building materials from an environmental perspective included ready mixed concrete, concrete bricks, rebar, and cement, which were also weight-based major building materials, as well as insulating materials such as stone, glass, and wood, which are environmentally influential even though they are excluded by the weight-based method.
- The application of the nine major building materials for school buildings (ready-mixed concrete, concrete bricks, aggregate, rebar, cement, stone, glass, insulating materials, and wood) to school building LCA will contribute toward efficient assessment in terms of time and cost and reduction in environmental load.
- However, this study needs to be verified through additional data construction because there are not many cases of building life-cycle assessment of school buildings. In the future, it is considered that additional analysis of major building materials according to building characteristics such as purpose and structure of buildings, including school buildings, is necessary.
Author Contributions
Funding
Institutional Review Board Statement
Informed Consent Statement
Data Availability Statement
Conflicts of Interest
References
- Bae, C.; Kim, S.; Park, C. Studies on Effectiveness Proof of Green Building Certification through the Quantitative Analysis of Environmental Performance of Multi-Residential Buildings. J. Archit. Inst. Korea Plan. Des. 2016, 32, 145–154. [Google Scholar] [CrossRef]
- Amiri, A.; Emami, N.; Ottelin, J.; Sorvari, J.; Marteinsson, B.; Heinonen, J.; Junnila, S. Embodied Emissions of Buildings-A Forgotten Factor in Green Building Certificates. Energy Build. 2021, 241, 110962. [Google Scholar] [CrossRef]
- Choi, D.; Chun, H.; Ahn, J. Prediction of Environmental Load Emissions from an Apartment House of Construction Phase through the Selection of Major Materials. J. Archit. Inst. Korea Plan. Des. 2012, 28, 237–246. [Google Scholar]
- Roh, S.; Tae, S.; Suk, S.J.; Ford, G.; Shin, S. Development of a Building Life Cycle Carbon Emissions Assessment Program (BEGAS 2.0) for Korea’s Green Building Index Certification System. Renew. Sustain. Energy Rev. 2016, 53, 954–965. [Google Scholar] [CrossRef]
- Chastas, P.; Theodosiou, T.; Kontoleon, K.J.; Bikas, D. Normalising and Assessing Carbon Emissions in the Building Sector: A Review on the Embodied CO2 Emissions of Residential Buildings. Build. Environ. 2018, 130, 212–226. [Google Scholar] [CrossRef]
- Najjar, M.; Figueiredo, K.; Palumbo, M.; Haddad, A. Integration of BIM and LCA: Evaluating the Environmental Impacts of Building Materials at an Early Stage of Designing a Typical Office Building. J. Build. Eng. 2017, 14, 115–126. [Google Scholar] [CrossRef]
- Ahn, J. Study on Estimation of Environmental Load Production in Apartment Buildings through the Result of Major Materials Selection. Master’s Thesis, Suwon University, Suwon-si, Korea, 2013. [Google Scholar]
- Bin Marsono, A.K.; Balasbaneh, A.T. Combinations of Building Construction Material for Residential Building for the Global Warming Mitigation for Malaysia. Constr. Build. Mater. 2015, 85, 100–108. [Google Scholar] [CrossRef]
- Jiménez-González, C.; Kim, S.; Overcash, M.R. Methodology for Developing Gate-to-Gate Life Cycle Inventory Information. Int. J. LCA 2000, 5, 153–159. [Google Scholar] [CrossRef]
- Ji, C.; Hong, T.; Jeong, J. Environmental Impacts Assessment of Elementary School Buildings and Establishment of the Reference Target Using Life Cycle Assessment Model. Korean. J. Constr. Eng. Manag. 2015, 16, 49–58. [Google Scholar] [CrossRef] [Green Version]
- Sergio, R.; Daniele, P.; Marianovella, L.; Giuseppina, U.; Maria, A.A. A prioritization RVS methodology for the seismic risk assessment of RC school buildings. Int. J. Disast. Risk Reduct. 2020, 51, 101807. [Google Scholar] [CrossRef]
- Sergio, R.; Francesco, P.; Giuseppina, U.; Dimitrios, V. Two frugal options to assess class fragility and seismic safety for low-rise reinforced concrete school buildings in Southern Italy. Bull. Earthq. Eng. 2021, 19, 1415–1439. [Google Scholar] [CrossRef]
- ISO 14040:2006; Environmental Management—Life Cycle Assessment—Principles and Framework. ISO: Geneva, Switzerland, 2006.
- ISO 14044:2006; Environmental Management—Life Cycle Assessment—Requirements and Guidelines. ISO: Geneva, Switzerland, 2006.
- ISO 21931-1:2010; Framework for Methods of Assessment of the Environmental Performance of Construction Works—Part 1: Buildings. ISO: Geneva, Switzerland, 2006.
- EN 15643-2:2011; Sustainability of Construction Works—Assessment of Buildings—Part 2: Framework for the Assessment of Environmental Performance. European Committee for Standardization: Brussels, Belgium, 2011.
- EN 15804:2012; Sustainability of Construction Works—Environmental Product Declarations—Core Rules for the Product Category of Construction Products. European Committee for Standardization: Brussels, Belgium, 2012.
- EN 15978:2011; Sustainability of Construction Works—Assessment of Environmental Performance of Buildings—Calculation Method. European Committee for Standardization: Brussels, Belgium, 2011.
- Khasreen, M.; Banfill, P.F.; Menzies, G. Life-Cycle Assessment and the Environmental Impact of Buildings: A Review. Sustainability 2009, 1, 674–701. [Google Scholar] [CrossRef]
- Sharma, A.; Saxena, A.; Sethi, M.; Shree, V.; Varun. Life Cycle Assessment of Buildings: A Review. Renew. Sustain. Energy Rev. 2011, 15, 871–875. [Google Scholar] [CrossRef]
- Haibo, F.; Jianfeng, Z.; Haonan, Z.; Shiyao, Z.; Dezhi, L.; Niraj, T. Uncertainties in whole-building life cycle assessment: A systematic review. J. Build. Eng. 2022, 50, 104191. [Google Scholar] [CrossRef]
- Yashwanth, P.; Kumar, V.S.S.; Mohammad, A.S.; Hemanjali, U. Life Cycle Assessment of a building using Open-LCA software. Mater. Today Proc. 2022, 52, 1968–1978. [Google Scholar] [CrossRef]
- Verbeeck, G.; Hens, H. Life Cycle Inventory of Buildings: A Contribution Analysis. Build. Environ. 2010, 45, 964–967. [Google Scholar] [CrossRef]
- Bribián, I.Z.; Capilla, A.V.; Usón, A.A. Life Cycle Assessment of Building Materials: Comparative Analysis of Energy and Environmental Impacts and Evaluation of the Eco-Efficiency Improvement Potential. Build. Environ. 2010, 46, 1133–1140. [Google Scholar] [CrossRef]
- Dascalaki, E.G.; Argiropoulou, P.; Balaras, C.A.; Droutsa, K.G.; Kontoyiannidis, S. Analysis of the Embodied Energy of Construction Materials in the Life Cycle Assessment of Hellenic Residential Buildings. Energy Build. 2021, 232, 110651. [Google Scholar] [CrossRef]
- Roh, S.; Tae, S.; Kim, R. Analysis of Embodied Environmental Impacts of Korean Apartment Buildings Considering Major Building Materials. Sustainability 2018, 10, 1693. [Google Scholar] [CrossRef] [Green Version]
- Gardner, H.; Garcia, J.; Hasik, V.; Olinzock, M.; Banawi, A.; Bilec, M.M. Materials Life Cycle Assessment of a Living Building. Procedia CIRP 2019, 80, 458–463. [Google Scholar] [CrossRef]
- Li, L. Integrating Climate Change Impact in New Building Design Process: A Review of Building Life Cycle Carbon Emission Assessment Methodologies. Clean. Eng. Technol. 2021, 5, 100286. [Google Scholar] [CrossRef]
- Roh, S.; Tae, S. Building Simplified Life Cycle CO2 Emissions Assessment Tool (B-SCAT) to Support Low-Carbon Building Design in South Korea. Sustainability 2016, 8, 567. [Google Scholar] [CrossRef] [Green Version]
- Pamu, Y.; Kumar, V.S.S.; Shakir, M.A.; Ubbana, H. Life Cycle Assessment of a Building Using Open-LCA Software. Recomm. Artic. 2021, 52, 1968–1978. [Google Scholar] [CrossRef]
- Dalla Mora, T.; Peron, F.; Romagnoni, P.; Almeida, M.; Ferreira, M. Tools and Procedures to Support Decision Making for Cost-Effective Energy and Carbon Emissions Optimization in Building Renovation. Energy Build. 2018, 167, 200–215. [Google Scholar] [CrossRef]
- Jeong, Y.; Choi, G.; Kang, J.; Lee, S. Development of Life Cycle Assessment Program (K-LCA) for Estimating Environmental Load of Buildings. Archit. Inst. Korea Mag. 2008, 24, 259–266. [Google Scholar]
- Roh, S.; Tae, S.; Baek, C.; Shin, S.; Lee, J.; An, J. The Development of Object-Oriented Building Life Cycle CO2 Assessment System (LOCAS). J. Archit. Inst. Korea Struct. Constr. 2012, 28, 101–108. [Google Scholar]
- Roh, S.; Tae, S.; Shin, S. Development of Building Materials Embodied Greenhouse Gases Assessment Criteria and System (BEGAS) in the Newly Revised Korea Green Building Certification System (G-SEED). Renew. Sustain. Energy Rev. 2014, 35, 410–421. [Google Scholar] [CrossRef]
- Tae, S.; Cho, Y.; Shin, S.; Lee, S.; Meang, J. A Study on Realization Method of Low Carbon School Building. J. Educ. Environ. Res. 2010, 9, 30–37. [Google Scholar]
- Ji, C.; Hong, T.; Jeong, J. Evaluation of Life Cycle Energy Consumption and CO2 Emission of Elementary School of Buildings. Korean. J. Constr. Eng. Manag. 2016, 15, 58–65. [Google Scholar]
- Park, P.; Kim, M. The Development of Korean Life Cycle Impact Assessment Index Based on a Damage Oriented Modeling. J. Korean Soc. Environ. Eng. 2010, 32, 499–508. [Google Scholar]




| Classification | Researchers | Research Contents |
|---|---|---|
| Basic concept and Methodology | Khasreen et al. (2009) | Life-Cycle Assessment and the Environmental Impact of Building |
| Sharma et al. (2011) | Life cycle assessment of buildings: A review | |
| Haibo et al. (2022) | Uncertainties in whole-building life cycle assessment: A systematic review | |
| Yashwanth et al. (2022) | Life Cycle Assessment of a building using Open-LCA software | |
| Database construction of CO2 emission per unit | Verbeeck & Hens (2009) | Life cycle inventory of buildings: A contribution analysis |
| Bribián et al. (2010) | Life cycle assessment of building materials: Comparative analysis of energy and environmental impacts and evaluation of the eco-efficiency improvement potential | |
| Dascalaki et al. (2021) | Analysis of the embodied energy of construction materials in the life cycle assessment of Hellenic residential buildings | |
| Environmental impact assessment | Roh et al. (2018) | Analysis of Embodied Environmental Impacts of Korean Apartment Buildings Considering Major Building Materials |
| Gardner et al. (2019) | Materials life cycle assessment of a living building | |
| Li (2021) | Integrating climate change impact in new building design process: A review of building life cycle carbon emission assessment methodologies | |
| Development of LCA program | Roh et al. (2016) | Development of a building life cycle carbon emissions assessment program (BEGAS 2.0) for Korea’s green building index certification system |
| Pamu et al. (2021) | Life Cycle Assessment of a building using Open-LCA software | |
| School Building of LCA in South Korea | Tae et al. (2010) | A Study on Realization Method of Low Carbon School Building |
| Ji et al. (2016) | Evaluation of life cycle energy consumption and CO2 emission of Elementary School of Buildings |
| Division | Case A | |
|---|---|---|
| Location | Gyeonggi | ![]() |
| Structure | RC structure | |
| Total floor area | 6950.00 m2 | |
| Size | 5 Floor | |
| Building Area | 1992.36 m2 | |
| Application | School building | |
| Division | Case B | |
| Location | Gyeonggi | ![]() |
| Structure | RC structure | |
| Total floor area | 10,186.19 m2 | |
| Size | 4 Floor | |
| Building Area | 3325.3 m2 | |
| Application | School building | |
| Division | Case C | |
| Location | Seoul | ![]() |
| Structure | RC structure | |
| Total floor area | 11,634.23 m2 | |
| Size | 5 Floor | |
| Building Area | 3346.26 m2 | |
| Application | School building | |
| Materials | Unit Weight | Unit | Source |
|---|---|---|---|
| Reinforced Concrete | 2400 | kg/m3 | Standard of Construction Estimates |
| Plain Concrete | 2300 | kg/m3 | Standard of Construction Estimates |
| Cement Mortar | 2100 | kg/m3 | Standard of Construction Estimates |
| Cement | 40 | kg/Bag | Standard of Construction Estimates |
| Sand | 1600 | kg/m3 | Standard of Construction Estimates |
| Gravel | 1700 | kg/m3 | Standard of Construction Estimates |
| Granite | 2650 | kg/m3 | Standard of Construction Estimates |
| Marble | 2700 | kg/m3 | Standard of Construction Estimates |
| Glass | 2520 | kg/m3 | Standard of Construction Estimates |
| Stainless Steel (STS340) | 7930 | kg/m3 | Standard of Construction Estimates |
| Stainless Steel (STS430) | 7700 | kg/m3 | Standard of Construction Estimates |
| Aluminum | 2700 | kg/m3 | Metal Specific Gravities Table |
| Building Material | Unit | Six Environmental-Impact Characterization Values of Building Materials | |||||
|---|---|---|---|---|---|---|---|
| GWP | ADP | AP | EP | ODP | POCP | ||
| kg-CO2eq/Unit | kg-Sbeq/Unit | kg-CFC-11eq/Unit | kg-SO2eq/Unit | kg-PO43-eq/Unit | kg-C2H4eq/Unit | ||
| Unsaturated polyesters | L | 2.87 × 100 | 3.62 × 10−2 | 7.14 × 10−3 | 6.56 × 10−4 | 9.35 × 10−7 | 2.48 × 10−3 |
| Water soluble emulsion | L | 3.23 × 10−1 | 6.49 × 10−3 | 1.13 × 10−3 | 9.53 × 10−5 | 8.51 × 10−8 | 4.05 × 10−4 |
| Water soluble liquid | L | 1.19 × 100 | 1.48 × 10−2 | 7.62 × 10−3 | 9.99 × 10−4 | 2.71 × 10−8 | 4.04 × 10−4 |
| Aminoalkyd paint | L | 8.37 × 10−1 | 1.80 × 10−2 | 3.77 × 10−3 | 1.83 × 10−3 | 4.06 × 10−8 | 3.65 × 10−4 |
| Alkyd-enamel | L | 2.26 × 10−1 | 2.42 × 10−2 | 1.63 × 10−3 | 1.18 × 10−4 | 2.03 × 10−8 | 1.82 × 10−4 |
| Urethane paint | L | 3.89 × 102 | 4.59 × 100 | 1.05 × 100 | 1.04 × 10−1 | 1.40 × 10−4 | 4.17 × 10−1 |
| Rank | Case A | Case B | Case C | ||||||
|---|---|---|---|---|---|---|---|---|---|
| Materials | Ratio (%) | Cumulative (%) | Materials | Ratio (%) | Cumulative (%) | Materials | Ratio (%) | Cumulative (%) | |
| 1 | Ready-mixed Concrete | 67.5 | 67.50 | Ready-mixed Concrete | 71.05 | 71.05 | Ready-mixed Concrete | 73.29 | 73.29 |
| 2 | Concrete Brick | 12.11 | 79.61 | Aggregate | 10.12 | 81.17 | Aggregate | 9.74 | 83.03 |
| 3 | Aggregate | 9.82 | 89.43 | Concrete Brick | 9.78 | 90.94 | Concrete Brick | 8.35 | 91.38 |
| 4 | Rebar | 3.11 | 92.54 | Rebar | 3.39 | 94.33 | Rebar | 3.65 | 95.03 |
| 5 | Cement | 3.03 | 95.57 | Cement | 2.73 | 97.06 | Stone | 1.69 | 96.72 |
| 6 | Stone | 2.04 | 97.61 | Stone | 1.51 | 98.58 | Cement | 1.67 | 98.39 |
| 7 | Glass | 1.17 | 98.78 | Glass | 0.37 | 98.94 | Glass | 0.77 | 99.16 |
| 8 | Iron Frame | 0.35 | 99.13 | Tile | 0.28 | 99.22 | Tile | 0.21 | 99.37 |
| 9 | Tile | 0.28 | 99.41 | Iron Frame | 0.24 | 99.46 | Insulating Materials | 0.19 | 99.56 |
| 10 | Gypsum | 0.14 | 99.55 | Wood | 0.14 | 99.60 | Gypsum | 0.15 | 99.71 |
| 11 | Wood | 0.13 | 99.69 | Gypsum | 0.11 | 99.71 | Iron Frame | 0.14 | 99.85 |
| 12 | Insulating Materials | 0.13 | 99.82 | Insulating Materials | 0.10 | 99.81 | Wood | 0.10 | 99.95 |
| 13 | Metal | 0.08 | 99.90 | Metal | 0.10 | 99.91 | Paint | 0.02 | 99.97 |
| 14 | Etc. | 0.16 | 100 | Etc. | 0.1 | 100 | Etc. | 0.03 | 100 |
| Total | 100 | 100 | 100 | ||||||
| Rank | Eutrophication Potential(EP) | Acidification Potential (ADP) | ||||||||||
|---|---|---|---|---|---|---|---|---|---|---|---|---|
| Case A | Case B | Case C | Case A | Case B | Case C | |||||||
| Materials | Ratio (%) | Materials | Ratio (%) | Materials | Ratio (%) | Materials | Ratio (%) | Materials | Ratio (%) | Materials | Ratio (%) | |
| 1 | Stone | 30.04 | Ready- mixed Concrete | 33.40 | Ready- mixed Concrete | 36.47 | Ready- mixed Concrete | 38.96 | Ready- mixed Concrete | 45.77 | Ready- mixed Concrete | 40.69 |
| 2 | Ready mixed Concrete | 25.99 | Wood | 21.17 | Rebar | 17.73 | Insulating Materials | 26.72 | Insulating Materials | 21.91 | Insulating Materials | 36.32 |
| 3 | Wood | 16.05 | Rebar | 15.57 | Wood | 16.32 | Rebar | 10.00 | Rebar | 12.12 | Rebar | 11.39 |
| 4 | Rebar | 11.70 | Stone | 13.44 | Stone | 13.08 | Glass | 7.41 | Metal | 5.17 | Stone | 3.33 |
| 5 | Cement | 6.09 | Cement | 6.71 | Insulating Materials | 7.16 | Metal | 4.02 | Cement | 3.96 | Glass | 2.67 |
| 6 | Insulating Materials | 3.96 | Insulating Materials | 3.57 | Cement | 4.33 | Cement | 3.95 | Stone | 3.32 | Cement | 2.11 |
| 7 | Stone | 2.97 | Concrete Brick | 2.93 | Concrete Brick | 2.65 | Stone | 3.30 | Concrete Brick | 1.83 | Concrete Brick | 1.37 |
| 8 | Glass | 0.73 | Metal | 0.90 | Glass | 0.81 | Concrete Brick | 2.04 | Glass | 1.66 | windows | 0.62 |
| 9 | Etc | 2.48 | Etc | 2.31 | Etc | 1.44 | Etc | 3.60 | Etc | 4.26 | Etc | 1.5 |
| Total | 100 | 100 | 100 | 100 | 100 | 100 | ||||||
| Rank | Case A | Case B | Case C | ||||||
|---|---|---|---|---|---|---|---|---|---|
| Materials | Ratio (%) | Cumulative (%) | Materials | Ratio (%) | Cumulative (%) | Materials | Ratio (%) | Cumulative (%) | |
| 1 | Ready-mixed Concrete | 44.72 | 44.72 | Ready-mixed Concrete | 51.21 | 51.21 | Ready-mixed Concrete | 50.97 | 50.97 |
| 2 | Rebar | 13.88 | 58.60 | Rebar | 16.46 | 67.67 | Rebar | 17.08 | 68.04 |
| 3 | Insulating Materials | 10.10 | 68.71 | Insulating Materials | 8.11 | 75.78 | Insulating Materials | 14.84 | 82.88 |
| 4 | Cement | 8.20 | 76.91 | Cement | 8.06 | 83.84 | Cement | 4.74 | 87.62 |
| 5 | Stone | 6.40 | 83.31 | Stone | 3.90 | 87.74 | Stone | 3.96 | 91.58 |
| 6 | Glass | 6.21 | 89.52 | Concrete Brick | 3.43 | 91.17 | Concrete Brick | 2.82 | 94.40 |
| 7 | Concrete Brick | 3.90 | 93.42 | Wood | 3.04 | 94.20 | Wood | 2.13 | 96.54 |
| 8 | Wood | 2.58 | 96.01 | Metal | 2.14 | 96.34 | Glass | 1.93 | 98.46 |
| 9 | Metal | 1.70 | 97.70 | Glass | 1.27 | 97.61 | Tile | 0.38 | 98.84 |
| 10 | Window framing | 0.58 | 98.29 | Tile | 0.52 | 98.14 | Window framing | 0.29 | 99.13 |
| 11 | Etc | 1.71 | 100.00 | Etc | 1.86 | 100.00 | Etc | 0.87 | 100.00 |
| Total | 100.00 | 100.00 | 100.00 | 100.00 | 100.00 | 100.00 | |||
| Basis of Weight | Environmental Aspects | → | Major Building Materials | ||
| Materials | Ratio (%) | Materials | Ratio (%) | ||
| Ready-mixed Concrete | 70.61 | Ready-mixed Concrete | 48.97 | Ready-mixed Concrete | |
| Concrete Brick | 10.08 | Steel | 15.81 | Concrete Brick | |
| Aggregate | 9.89 | Insulating Materials | 11.02 | Aggregate | |
| Steel | 3.38 | Cement | 7.00 | Steel | |
| Cement | 2.48 | Stone | 4.76 | Cement | |
| Stone | 1.75 | Concrete Brick | 3.38 | Insulating Materials | |
| Glass | 0.77 | Glass | 3.14 | Stone | |
| Tile | 0.25 | Wood | 2.58 | Glass | |
| Iron Frame | 0.24 | Metal | 1.92 | Wood | |
| Insulating Materials | 0.14 | Tile | 0.46 | ||
| Etc | 0.45 | Etc | 1.46 | ||
| 100 | 100 | ||||
Publisher’s Note: MDPI stays neutral with regard to jurisdictional claims in published maps and institutional affiliations. |
© 2022 by the authors. Licensee MDPI, Basel, Switzerland. This article is an open access article distributed under the terms and conditions of the Creative Commons Attribution (CC BY) license (https://creativecommons.org/licenses/by/4.0/).
Share and Cite
Lim, H.; Tae, S.; Roh, S. Major Building Materials in Terms of Environmental Impact Evaluation of School Buildings in South Korea. Buildings 2022, 12, 498. https://doi.org/10.3390/buildings12040498
Lim H, Tae S, Roh S. Major Building Materials in Terms of Environmental Impact Evaluation of School Buildings in South Korea. Buildings. 2022; 12(4):498. https://doi.org/10.3390/buildings12040498
Chicago/Turabian StyleLim, Hyojin, Sungho Tae, and Seungjun Roh. 2022. "Major Building Materials in Terms of Environmental Impact Evaluation of School Buildings in South Korea" Buildings 12, no. 4: 498. https://doi.org/10.3390/buildings12040498
APA StyleLim, H., Tae, S., & Roh, S. (2022). Major Building Materials in Terms of Environmental Impact Evaluation of School Buildings in South Korea. Buildings, 12(4), 498. https://doi.org/10.3390/buildings12040498




