Seismic Fragility Analysis of Low-Rise RC Buildings with Brick Infills in High Seismic Region with Alluvial Deposits
Abstract
:1. Introduction
2. Materials and Methods
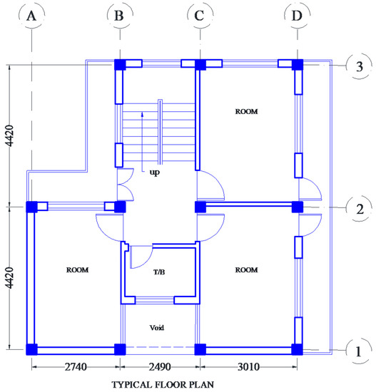
2.1. Case Study Building
2.2. Soil–Structure Interaction Modeling
2.3. Infill Panel Modeling
2.4. Finite Element Modeling
2.5. Fragility Analysis
3. Results and Discussions
4. Conclusions
Author Contributions
Funding
Data Availability Statement
Conflicts of Interest
References
- Gautam, D.; Rodrigues, H.; Bhetwal, K.K.; Neupane, P.; Sanada, Y. Common structural and construction deficiencies of Nepalese buildings. Innov. Infrastruct. Solut. 2016, 1, 1. [Google Scholar] [CrossRef] [Green Version]
- Gautam, D.; Chaulagain, H. Structural performance and associated lessons to be learned from world earthquakes in Nepal after 25 April 2015 (MW 7.8) Gorkha earthquake. Eng. Fail. Anal. 2016, 68, 222–243. [Google Scholar] [CrossRef]
- Sezen, H.; Whittaker, A.; Elwood, K.; Mosalam, K. Performance of reinforced concrete buildings during the August 17, 1999 Kocaeli, Turkey earthquake, and seismic design and construction practise in Turkey. Eng. Struct. 2003, 25, 103–114. [Google Scholar] [CrossRef]
- Romão, X.; Costa, A.; Paupério, E.; Rodrigues, H.; Vicente, R.; Varum, H. Field observations and interpretation of the structural performance of constructions after the 11 May 2011 Lorca earthquake. Eng. Fail. Anal. 2013, 34, 670–692. [Google Scholar] [CrossRef]
- Verderame, G.M.; Ricci, P.; De Luca, F.; Del Gaudio, C.; de Risi, M.T. Damage scenarios for RC buildings during the 2012 Emilia (Italy) earthquake. Soil Dyn. Earthq. Eng. 2014, 66, 385–400. [Google Scholar] [CrossRef] [Green Version]
- Del Gaudio, C.; De Risi, M.T.; Ricci, P.; Verderame, G.M. Empirical drift-fragility functions and loss estimation for infills in reinforced concrete frames under seismic loading. Bull. Earthq. Eng. 2019, 17, 1285–1330. [Google Scholar] [CrossRef]
- Malla, S.; Karanjit, S.; Dangol, P.; Gautam, D. Seismic performance of high-rise condominium building during the 2015 Gorkha earthquake sequence. Buildings 2019, 9, 36. [Google Scholar] [CrossRef] [Green Version]
- Barbosa, A.; Fahnestock, L.A.; Fick, D.R.; Gautam, D.; Soti, R.; Wood, R.; Moaveni, B.; Stavridis, A.; Olsen, M.; Rodrigues, H. Performance of Medium-to-High Rise Reinforced Concrete Frame Buildings with Masonry Infill in the 2015 Gorkha, Nepal, Earthquake. Earthq. Spectra 2017, 33, 197–218. [Google Scholar] [CrossRef]
- Gautam, D.; Forte, G.; Rodrigues, H. Site effects and associated structural damage analysis in Kathmandu Valley, Nepal. Earthq. Struct. 2016, 10, 1013–1032. [Google Scholar] [CrossRef]
- Varum, H.; Furtado, A.; Rodrigues, H.; Dias-Oliveira, J.; Vila-Pouca, N.; Arede, A. Seismic performance of the infill masonry walls and ambient vibration tests after the Ghorka 2015, Nepal earthquake. Bull. Earthq. Eng. 2016, 15, 1185–1212. [Google Scholar] [CrossRef]
- Perrone, D.; Leone, M.; Aiello, M.A. Non-linear behaviour of masonry infilled RC frames: Influence of masonry mechanical properties. Eng. Struct. 2017, 150, 875–891. [Google Scholar] [CrossRef]
- Blasi, G.; Perrone, D.; Aiello, M.A. Fragility functions and floor spectra of RC masonry infilled frames: Influence of mechanical properties of masonry infills. Bull. Earthq. Eng. 2018, 16, 6105–6130. [Google Scholar] [CrossRef]
- Gallipoli, M.R.; Mucciarelli, M.; Vona, M. Empirical estimate of fundamental frequencies and damping for Italian buildings. Earthq. Eng. Struct. Dyn. 2009, 38, 973–988. [Google Scholar] [CrossRef]
- Ricci, P.; Verderame, G.M.; Manfredi, G. Analytical investigation of elastic period of infilled RC MRF buildings. Eng. Struct. 2010, 33, 308–319. [Google Scholar] [CrossRef]
- Furtado, A.; Vila-Pouca, N.; Varum, H.; Arêde, A. Study of the seismic response on the infill masonry walls of a 15-storey reinforced concrete structure in Nepal. Buildings 2019, 9, 39. [Google Scholar] [CrossRef] [Green Version]
- Di Domenico, M.; De Risi, M.T.; Ricci, P.; Verderame, G.M.; Manfredi, G. Empirical prediction of the in-plane/out-of-plane interaction effects in clay brick unreinforced masonry infill walls. Eng. Struct. 2021, 227, 111438. [Google Scholar] [CrossRef]
- Mazza, F.; Donnici, A. In-plane and out-of-plane seismic damage of masonry infills in existing r.c. structures: The case study of De Gasperi-Battaglia school in Norcia. Bull. Earthq. Eng. 2021, 19, 345–376. [Google Scholar] [CrossRef]
- Furtado, A.; Rodrigues, H.; Arede, A.; Varum, H. Mechanical properties characterization of different types of masonry infill walls. Front. Struct. Civ. Eng. 2020, 14, 411–434. [Google Scholar] [CrossRef]
- De Risi, M.T.; Furtado, A.; Rodrigues, H.; Melo, J.; Verderame, G.M.; António, A.; Varum, H.; Manfredi, G. Experimental analysis of strengthening solutions for the out-of-plane collapse of masonry infills in RC structures through textile reinforced mortars. Eng. Struct. 2020, 207, 110203. [Google Scholar] [CrossRef]
- Verderame, G.M.; Ricci, P.; De Risi, M.T.; Del Gaudio, C. Experimental Assessment and Numerical Modelling of Conforming and Non-Conforming RC Frames with and without Infills. J. Earthq. Eng. 2019, 1–42. [Google Scholar] [CrossRef]
- Pujol, S.; Fick, D. The test of a full-scale three-story RC structure with masonry infill walls. Eng. Struct. 2010, 32, 3112–3121. [Google Scholar] [CrossRef]
- Ricci, P.; De Luca, F.; Verderame, G.M. 6th April 2009 L’Aquila earthquake, Italy: Reinforced concrete building performance. Bull. Earthq. Eng. 2011, 9, 285–305. [Google Scholar] [CrossRef] [Green Version]
- Gautam, D.; Adhikari, R.; Rupakhety, R. Seismic fragility of structural and non-structural elements of Nepali RC buildings. Eng. Struct. 2021, 232, 111879. [Google Scholar] [CrossRef]
- Pokhrel, A.; Gautam, D.; Chaulagain, H. Effect of variation on infill masonry walls in the seismic performance of soft story RC building. Aust. J. Struct. Eng. 2018, 20, 1–9. [Google Scholar] [CrossRef]
- Stewart, J.P.; Fenves, G.L.; Seed, R.B. Seismic Soil-Structure Interaction in Buildings. I: Analytical Methods. J. Geotech. Geoenvironmental Eng. 1999, 125, 26–37. [Google Scholar] [CrossRef]
- Hosseinzadeh, N.; Davoodi, M.; Roknabadi, E.R. Shake Table Study of Soil Structure Interaction Effects in Surface and Embedded Foundations. In Proceedings of the 15th World Conference in Earthquake Engineering, Lisbon, Portugal, 24–28 September 2012; pp. 24–28. [Google Scholar]
- Mylonakis, G.; Gazetas, G. Seismic soil-structure interaction: Beneficial or detrimental? J. Earthq. Eng. 2000, 4, 277–301. [Google Scholar] [CrossRef]
- Kraus, I.; Džakić, D. Soil-Structure Interaction Effects on Seismic Behavior of Reinforced Concrete Frames. In Proceedings of the SE-50EEE International Conference on Earthquake Engineering, Skopje, Macedonia, 29–31 May 2013. [Google Scholar]
- Karatzetzou, A.; Pitilakis, D.; Abbas, N.; Cattari, S. Effects of soil-structure interaction on performance based assessment of masonry buildings. In Proceedings of the 15th World Conference in Earthquake Engineering, Lisbon, Portugal, 24–28 September 2012; pp. 24–28. [Google Scholar]
- Jie, G.; Preisig, M.; Jeremić, B. Benefits and Detriments of Soil Foundation Structure Interaction. In Proceedings of the Geo-Denver, ASCE, Denver, CO, USA, 18–21 February 2007. [Google Scholar] [CrossRef]
- Eurocode 8, Design of Structures for Earthquake Resistance, Part 1: General Rules, Seismic Actions and Rules for Buildings. Belgium, 2004. Available online: http://www.confinedmasonry.org/wp-content/uploads/2009/09/Eurocode-8-1-Earthquakes-general.pdf (accessed on 1 January 2022).
- ASCE/SEI 7-10, Minimum Design Loads for Buildings and Other Structures. United States, 2010. Available online: https://ascelibrary.org/doi/book/10.1061/9780784412916 (accessed on 1 January 2022).
- Bureau of Indian Standards, IS 1893 (Part1):2016 Indian Standard Criteria for Earthquake Resistant Design of Structures. India, 2016. Available online: https://nitsri.ac.in/Department/Civil%20Engineering/CSE_202_Chapter_4-1893-part-1-2016-1pdf.pdf (accessed on 1 January 2022).
- Department of Urban Development and Building Construction, NBC-105:2020 Nepal National Building Code for Seismic Design of Buildings in Nepal. Nepal, 2020. Available online: https://www.lsmcebps.gov.np/UploadFiles/NBC105_2020.pdf (accessed on 1 January 2022).
- Adhikari, A.; Rao, K.R.M.; Gautam, D.; Chaulagain, H. Seismic vulnerability and retrofitting scheme for low-to-medium rise reinforced concrete buildings in Nepal. J. Build. Eng. 2019, 21, 186–199. [Google Scholar] [CrossRef]
- Gautam, D. Unearthed lessons of 25 April 2015 Gorkha earthquake (MW 7.8): Geotechnical earthquake engineering perspectives. Geomat. Nat. Hazards Risk 2017, 8, 1358–1382. [Google Scholar] [CrossRef] [Green Version]
- Gazetas, G. Formulas and charts for impedances of surface and embedded foundations. J. Geotech. Eng. 1991, 117, 1363–1381. [Google Scholar] [CrossRef]
- Asteris, P. Lateral Stiffness of Brick Masonry Infilled Plane Frames. J. Struct. Eng. 2003, 129, 1071–1079. [Google Scholar] [CrossRef] [Green Version]
- Al-Chaar, G.; Issa, M.; Sweeney, S. Behavior of Masonry-Infilled Nonductile Reinforced Concrete Frames. J. Struct. Eng. 2002, 128, 1055–1063. [Google Scholar] [CrossRef]
- Applied Technolgy Council. Evaluation of Earthquake Damaged Concrete and Masonry Wall Buildings; ATC: Redwood City, CA, USA, 1998. [Google Scholar]
- Panagiotakos, T.B.; Fardis, M.N. Seismic response of infilled RC frame structures. In Proceedings of the 11th World Conference on Earthquake Engineering, Acapulco, Mexico, 23–28 June 1996. [Google Scholar]
- ETABS, version 18.1.1, Computers and Structures Inc.: Walnut Creek, CA, USA, 2020.
- Lagomarsino, S.; Giovinazzi, S. Macroseismic and mechanical models for the vulnerability and damage assessment of current buildings. Bull. Earthq. Eng. 2006, 4, 415–443. [Google Scholar] [CrossRef]
- Elnashai, A.S.; di Sarno, L. Fundamentals of Earthquake Engineering; Wiley: New York, NY, USA, 2008. [Google Scholar] [CrossRef]
- Jalayer, F.; Ebrahimian, H.; Miano, A.; Manfredi, G.; Sezen, H. Analytical fragility assessment using unscaled ground motion records. Earthq. Eng. Struct. Dyn. 2017, 46, 2639–2663. [Google Scholar] [CrossRef]
- Gautam, D.; Fabbrocino, G.; de Magistris, F.S. Derive empirical fragility functions for Nepali residential buildings. Eng. Struct. 2018, 171, 617–628. [Google Scholar] [CrossRef]












| Component | Description | Details |
|---|---|---|
| Frame | Type | Special moment resisting frame (SMRF) |
| No. of stories | 3 | |
| No. of bays in X-direction | 3 | |
| No. of bays in Y-direction | 2 | |
| Story height | 2.87 m | |
| Total width along X-axis | 8.54 m | |
| Total width along Y-axis | 9.14 m | |
| Size of beam | 230 × 355 mm | |
| Size of column | 305 × 305 mm | |
| Thickness of slab | 125 mm | |
| Load | Live load at floor slab | 2.5 KN/m2 |
| Live load at roof | 1.5 KN/m2 | |
| Staircase load | 3 KN/m2 | |
| External wall load | 8.98 to 12.83 KN/m | |
| Internal wall load | 4.86 to 6.94 KN/m | |
| Isolated square footing | 1.52 × 1.52 m, 1.5 m below the plinth level | |
| Material | Grade of concrete | 20 MPa for all concrete members |
| Grade of steel rebar | Fe-500 for all RCC members | |
| Brickwork | 7.5 MPa bricks in 1:6 cement-sand mortar for 230 mm thick walls |
| Model | Features |
|---|---|
| Bare frame model without soil–structure interaction |
|
| Infill model without soil–structure interaction |
|
| Bare frame model considering soil–structure interaction |
|
| Infill model with soil–structure interaction |
|
| Earthquake | PGA (g) | Station | Magnitude (Mw) |
|---|---|---|---|
| Gorkha (2015) | 0.1771 | Kathmandu | 7.8 |
| Imperial Valley-06 (1979) | 0.2354 | EC County Center FF | 6.53 |
| Kocaeli Turkey (1999) | 0.3642 | Duzce | 7.51 |
| Northridge-01 (1994) | 0.4434 | Beverly Hills-14145 Muhol | 6.69 |
| Loma Prieta (1989) | 0.5699 | LGPC | 6.93 |
| Kobe Japan (1995) | 0.6711 | Takatori | 6.9 |
| Chi-Chi Taiwan (1999) | 0.7604 | CHY028 | 7.62 |
| Mode No. | Modal Period (Sec) | |||
|---|---|---|---|---|
| Bare Frame (fixed) | Bare Frame (SSI) | Infill (Fixed) | Infill (SSI) | |
| Mode 1 | 0.405 | 0.445 | 0.161 | 0.258 |
| Mode 2 | 0.397 | 0.431 | 0.129 | 0.200 |
| Mode 3 | 0.342 | 0.363 | 0.095 | 0.116 |
| Mode 4 | 0.156 | 0.158 | 0.075 | 0.096 |
| Capacity Function | Damage States |
|---|---|
| D1 = 0.7 dy | Slight damage |
| D2 = 1.5 dy | Moderate damage |
| D3 = 0.5(dy + du) | Extensive damage |
| D4 = du | Complete damage |
Publisher’s Note: MDPI stays neutral with regard to jurisdictional claims in published maps and institutional affiliations. |
© 2022 by the authors. Licensee MDPI, Basel, Switzerland. This article is an open access article distributed under the terms and conditions of the Creative Commons Attribution (CC BY) license (https://creativecommons.org/licenses/by/4.0/).
Share and Cite
Adhikari, R.; Rupakhety, R.; Giri, P.; Baruwal, R.; Subedi, R.; Gautam, R.; Gautam, D. Seismic Fragility Analysis of Low-Rise RC Buildings with Brick Infills in High Seismic Region with Alluvial Deposits. Buildings 2022, 12, 72. https://doi.org/10.3390/buildings12010072
Adhikari R, Rupakhety R, Giri P, Baruwal R, Subedi R, Gautam R, Gautam D. Seismic Fragility Analysis of Low-Rise RC Buildings with Brick Infills in High Seismic Region with Alluvial Deposits. Buildings. 2022; 12(1):72. https://doi.org/10.3390/buildings12010072
Chicago/Turabian StyleAdhikari, Rabindra, Rajesh Rupakhety, Prajwal Giri, Rewati Baruwal, Ramesh Subedi, Rajan Gautam, and Dipendra Gautam. 2022. "Seismic Fragility Analysis of Low-Rise RC Buildings with Brick Infills in High Seismic Region with Alluvial Deposits" Buildings 12, no. 1: 72. https://doi.org/10.3390/buildings12010072
APA StyleAdhikari, R., Rupakhety, R., Giri, P., Baruwal, R., Subedi, R., Gautam, R., & Gautam, D. (2022). Seismic Fragility Analysis of Low-Rise RC Buildings with Brick Infills in High Seismic Region with Alluvial Deposits. Buildings, 12(1), 72. https://doi.org/10.3390/buildings12010072

