New Metallic Damper with Multiphase Behavior for Seismic Protection of Structures
Abstract
1. Introduction
2. Design Concept of the New Metallic Damper and Materialization
2.1. Design Concept
2.2. Materialization
3. Experimental Research
3.1. Description of MP-TTDs Tested, Material Properties and Predicted Axial Strength and Yield Deformation
3.2. Quasi-Static Tests
3.2.1. Experimental Set-Up and Loading Histories
3.2.2. Force-Displacement Curves of the Dampers
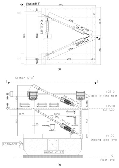
3.3. Dynamic Shake Table Tests
3.3.1. Experimental Set-Up
3.3.2. Dynamic Loadings and Force-Deformation Curves of the Dampers
3.3.3. Additional Quasi-Static Tests Conducted on Dampers MP-TTD-1 and MP-TTD-4
4. Discussion
4.1. Decomposition into Skeleton and Bauschinger Parts
4.2. Ultimate Energy Dissipation Capacity and Failure
5. Model for Predicting the Hysteretic Curve under Arbitrary Cyclic Loading and Failure
5.1. Modelization of the Shape of the Skeleton Part
5.2. Modelization of the Shape of the Bauschinger Part
5.3. Hysteretic Model for Predicting the Hysteretic Curves
6. Conclusions
Author Contributions
Funding
Institutional Review Board Statement
Informed Consent Statement
Data Availability Statement
Conflicts of Interest
Appendix A


References
- Skinner, R.I.; Kelly, J.M.; Heine, A.J. Hysteretic dampers for earthquake-resistant structures. Earthq. Eng. Struct. Dyn. 1974, 3, 287–296. [Google Scholar] [CrossRef]
- Soong, T.T.; Spencer, B.F., Jr. Supplemental energy dissipation: State-of-the-art and state-of-the-practice. Eng. Struct. 2002, 24, 243–259. [Google Scholar] [CrossRef]
- Constantinou, M.; Soong, T.; Dargush, G. Passive Energy Dissipation Systems for Structural Design and Retrofit; Monograph No. 1; MCEER: Buffalo, NY, USA, 1998. [Google Scholar]
- Symans, M.D.; Constantinou, M.C. Semi-active control systems for seismic protection of structures: A state-of-the-art review. Eng. Struct. 1999, 21, 469–487. [Google Scholar] [CrossRef]
- Housner, G.W.; Bergman, L.A.; Caughey, T.K.; Chassiakos, A.G. Structural control: Past, present, and future. J. Eng. Mech. 1997, 123, 897–971. [Google Scholar] [CrossRef]
- Chan, R.; Albermani, F. Experimental study of steel slit damper for passive energy dissipation. Eng. Struct. 2008, 30, 1058–1066. [Google Scholar] [CrossRef]
- Javanmardi, A.; Ibrahim, Z.; Ghaedi, K.; Ghadim, H.B.; Hanif, M.U. State-of-the-art review of metallic dampers: Testing, development and implementation. Arch. Comp. Meth. Eng. 2020, 27, 455–478. [Google Scholar] [CrossRef]
- Whittaker, A.S.; Bertero, V.V.; Thompson, C.L.; Alonso, L.J. Seismic testing of steel plate energy dissipation devices. Earthq. Spect. 1991, 7, 563–604. [Google Scholar] [CrossRef]
- Tsai, K.; Chen, H.; Hong, C.; Su, Y. Design of steel triangular plate energy absorbers for seismic-resistant construction. Earthq. Spect. 1993, 9, 505–528. [Google Scholar] [CrossRef]
- Kobori, T.; Miura, Y.; Fukuzawa, E.; Yamada, T.; Arita, T.; Takenaka, Y.; Miyagawa, N.; Tanaka, N.; Fukumoto, T. Development and application of hysteresis steel dampers. In Proceedings of the Tenth World Conference on Earthquake Engineering, Rotterdam, The Netherlands, 19–24 July 1992; pp. 2341–2346. [Google Scholar]
- Benavent-Climent, A.; Oh, S.; Akiyama, H. Ultimate energy absorption capacity of slit-type steel plates subjected to shear deformations. J. Struct. Constr. Eng. 1998, 63, 139–147. [Google Scholar] [CrossRef]
- Watanabe, A.; Hitomi, Y.; Saeki, E.; Wada, A.; Fujimoto, M. Properties of brace encased in buckling-restraining concrete and steel tube. In Proceedings of the Ninth World Conference on Earthquake Engineering, Tokyo-Kyoto, Japan, 2–9 August 1988; pp. 719–724. [Google Scholar]
- Oh, S.; Kim, Y.; Ryu, H. Seismic performance of steel structures with slit dampers. Eng. Struct. 2009, 31, 1997–2008. [Google Scholar] [CrossRef]
- Ghabraie, K.; Chan, R.; Huang, X.; Xie, Y.M. Shape optimization of metallic yielding devices for passive mitigation of seismic energy. Eng. Struct. 2010, 32, 2258–2267. [Google Scholar] [CrossRef]
- Zheng, J.; Li, A.; Guo, T. Analytical and experimental study on mild steel dampers with non-uniform vertical slits. Earthq. Eng. Eng. Vibr. 2015, 14, 111–123. [Google Scholar] [CrossRef]
- Lee, C.; Ju, Y.K.; Min, J.; Lho, S.; Kim, S. Non-uniform steel strip dampers subjected to cyclic loadings. Eng. Struct. 2015, 99, 192–204. [Google Scholar] [CrossRef]
- Amiri, H.A.; Najafabadi, E.P.; Estekanchi, H.E. Experimental and analytical study of block slit damper. J. Constr. Steel Res. 2018, 141, 167–178. [Google Scholar] [CrossRef]
- Shao, F.; Gu, T.; Jia, L.; Ge, H.; Taguchi, M. Experimental study on damage detectable brace-type shear fuses. Eng. Struct. 2020, 225, 111260. [Google Scholar] [CrossRef]
- Benavent-Climent, A. A brace-type seismic damper based on yielding the walls of hollow structural sections. Eng. Struct. 2010, 32, 1113–1122. [Google Scholar] [CrossRef]
- Lee, J.; Kim, J. Development of box-shaped steel slit dampers for seismic retrofit of building structures. Eng. Struct. 2017, 150, 934–946. [Google Scholar] [CrossRef]
- Marshall, J.D.; Charney, F.A. Seismic response of steel frame structures with hybrid passive control systems. Earthq. Eng. Struct. Dyn. 2012, 41, 715–733. [Google Scholar] [CrossRef]
- Lee, C.; Kim, J.; Kim, D.; Ryu, J.; Ju, Y.K. Numerical and experimental analysis of combined behavior of shear-type friction damper and non-uniform strip damper for multi-level seismic protection. Eng. Struct. 2016, 114, 75–92. [Google Scholar] [CrossRef]
- Hashizume, S.; Takewaki, I. Hysteretic-viscous hybrid damper system with stopper mechanism for tall buildings under earthquake ground motions of extremely large amplitude. Front. Built Environ. 2020, 6, 1–16. [Google Scholar] [CrossRef]
- Fang, Z.; Li, A.; Li, W.; Shen, S. Wind-induced fatigue analysis of high-rise steel structures using equivalent structural stress method. Appl. Sci. 2017, 7, 71. [Google Scholar] [CrossRef]
- Repetto, M.P.; Solari, G. Wind-induced fatigue collapse of real slender structures. Eng. Struct. 2010, 32, 3888–3898. [Google Scholar] [CrossRef]
- West, M.A.; Fisher, J.M.; Griffis, L.G. Serviceability Design Considerations for Steel Buildings; Design Guide 3; AISC: Chicago, IL, USA, 2003. [Google Scholar]
- Krawinkler, H. Guidelines for Cyclic Seismic Testing of Components of Steel Structures; ATC: Redwood City, CA, USA, 1992. [Google Scholar]
- Benavent-Climent, A.; Donaire-Avila, J.; Oliver-Saiz, E. Seismic performance and damage evaluation of a waffle-flat plate structure with hysteretic dampers through shake-table tests. Earthq. Eng. Struct. Dyn. 2018, 47, 1250–1269. [Google Scholar] [CrossRef]
- Structural Engineers Association of California (SEAOC) & Vision 2000 Committee. Vision 2000: Performance Based Seismic Engineering of Buildings; SEAOC & California Office of Emergency Services: Sacramento, CA, USA, 1995; Volume 1. [Google Scholar]
- Benavent-Climent, A. An energy-based damage model for seismic response of steel structures. Earthq. Eng. Struct. Dyn. 2007, 36, 1049–1064. [Google Scholar] [CrossRef]
- Kato, B.; Akiyama, H.; Yamanouchi, H. Predictable properties of structural steels subjected to incremental cyclic loading. In IABSE Symposium on Resistance and Ultimate Deformability of Structures Acted on by Well Defined Loads; International Association for Bridge and Structural Engineering: Lisbon, Portugal, 1973; pp. 119–124. [Google Scholar]





























| E (GPa) | σy (MPa) | σu (MPa) | εy (%) | εu (%) |
|---|---|---|---|---|
| 210 | 362 | 530 | 0.349 | 9.702 |
| Specimen | Loading | Sδu+ | Sδu− | epη+ | epη− | Sη+ | Sη− | Bη+ | Bη− | Sη | Bη | η |
|---|---|---|---|---|---|---|---|---|---|---|---|---|
| MP-TTD 0 | Quasi-Static | 12.69 | 13.08 | 10.94 | 11.30 | 21.96 | 22.99 | 213.15 | 235.47 | 44.95 | 448.62 | 493.57 |
| MP-TTD 5 | Quasi-Static | 21.80 | 18.33 | 19.50 | 16.24 | 41.72 | 36.75 | 113.20 | 142.09 | 78.47 | 255.29 | 333.76 |
| MP-TTD 6 | Quasi-Static | 15.06 | 9.45 | 13.16 | 7.89 | 24.27 | 17.05 | 293.86 | 309.69 | 41.32 | 603.55 | 644.86 |
| MP-TTD 1 | Mixed | 6.24 | 10.43 | 4.87 | 8.81 | 10.78 | 19.09 | 376.73 | 389.42 | 29.87 | 766.15 | 796.02 |
| MP-TTD 4 | Mixed | 22.13 | 20.60 | 19.81 | 18.38 | 46.49 | 51.78 | 142.47 | 195.73 | 98.27 | 338.21 | 436.47 |
| Specimen | Loading | Sδu+ | Sδu− | epη+ | epη− | Sη+ | Sη− | Bη+ | Bη− | Sη | Bη | η |
|---|---|---|---|---|---|---|---|---|---|---|---|---|
| MP-TTD 2 | Dynamic | 7.06 | 28.96 | 5.64 | 26.23 | 8,90 | 87.38 | 386.41 | 327.91 | 96.28 | 714.32 | 810.61 |
| MP-TTD 3 | Dynamic | 11.58 | 18.82 | 9.89 | 16.7 | 18.72 | 48.56 | 483.58 | 317.26 | 67.28 | 800.84 | 868.13 |
Publisher’s Note: MDPI stays neutral with regard to jurisdictional claims in published maps and institutional affiliations. |
© 2021 by the authors. Licensee MDPI, Basel, Switzerland. This article is an open access article distributed under the terms and conditions of the Creative Commons Attribution (CC BY) license (http://creativecommons.org/licenses/by/4.0/).
Share and Cite
Benavent-Climent, A.; Escolano-Margarit, D.; Arcos-Espada, J.; Ponce-Parra, H. New Metallic Damper with Multiphase Behavior for Seismic Protection of Structures. Metals 2021, 11, 183. https://doi.org/10.3390/met11020183
Benavent-Climent A, Escolano-Margarit D, Arcos-Espada J, Ponce-Parra H. New Metallic Damper with Multiphase Behavior for Seismic Protection of Structures. Metals. 2021; 11(2):183. https://doi.org/10.3390/met11020183
Chicago/Turabian StyleBenavent-Climent, Amadeo, David Escolano-Margarit, Julio Arcos-Espada, and Hermes Ponce-Parra. 2021. "New Metallic Damper with Multiphase Behavior for Seismic Protection of Structures" Metals 11, no. 2: 183. https://doi.org/10.3390/met11020183
APA StyleBenavent-Climent, A., Escolano-Margarit, D., Arcos-Espada, J., & Ponce-Parra, H. (2021). New Metallic Damper with Multiphase Behavior for Seismic Protection of Structures. Metals, 11(2), 183. https://doi.org/10.3390/met11020183

