Mineralogical-Petrographic and Physical-Mechanical Features of the Construction Stones in Punic and Roman Temples of Antas (SW Sardinia, Italy): Provenance of the Raw Materials and Conservation State
Abstract
:1. Introduction and Aims of Research
2. Historical and Archaeological Evidences
3. Geological Setting
4. Materials and Methods
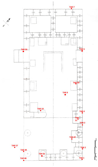
4.1. Sampling
4.2. Specimens and Analytical Methods
5. Results
5.1. Petrographic Characteristics
5.1.1. Metadolostone
5.1.2. Sandstone
5.1.3. “Sandstone” sensu lato (s.l.)
5.1.4. Metasiltstone
5.1.5. Marly Limestone
5.1.6. Limestone
5.2. Petrophysical Properties
6. Discussion
7. Conclusions
Author Contributions
Funding
Acknowledgments
Conflicts of Interest
References
- Zucca, R. Il Tempio di Antas, 1st ed.; Carlo Delfino Editore: Sassari, Italy, 1989. [Google Scholar]
- Esposito, R. Il Tempio punico-romano di Antas: Qualche considerazione. Ann. Fac. Lett. Filos. Univ. Cagliari 2000, 54, 114–119. [Google Scholar]
- Angiolillo, S. Archeologia e Storia dell’Arte Romana in Sardegna: Introduzione Allo Studio, 1st ed.; CUEC: Cagliari, Italy, 2008. [Google Scholar]
- Terpstra, T.T. Mediterranean Silver Production and the Site of Antas, Sardinia. Oxf. J. Archaeol. 2021, 40, 176–190. [Google Scholar] [CrossRef]
- Boni, M.; Iannace, A.; Köppel, V.; Frueh-Green, G.L.; Hansmann, W. Late to post-Hercynian hydrothermal activity and mineralization in southwest Sardinia (Italy). Econ. Geol. 1992, 87, 2113–2137. [Google Scholar] [CrossRef] [Green Version]
- Barca, S.; Cocozza, T.; Salvadori, I. Storia delle ricerche geologiche nel Massiccio Sardo. In Cento Anni di Geologia Italiana: Volume Giubilare, 1st ed.; Tecnoprint: Bologna, Italy, 1984; pp. 315–352. [Google Scholar]
- Aquino, A.; Pagnotta, S.; Pecchioni, E.; Cecchi, V.M.; Columbu, S.; Lezzerini, M. The role of 3D modelling for different stone objects: From mineral to artefact. In Proceedings of the 2020 IMEKO TC-4 International Conference on Metrology for Archaeology and Cultural Heritage, Trento, Italy, 22–24 October 2020; pp. 184–188. [Google Scholar]
- Beltrame, M.; Sitzia, F.; Liberato, M.; Columbu, S.; Mirão, J. Comparative pottery technology between the Middle Ages and Modern times (Santarém, Portugal). Archaeol. Anthropol. Sci. 2020, 12, 130. [Google Scholar] [CrossRef]
- Columbu, S. Petrographic and geochemical investigations on the volcanic rocks used in the Punic-Roman archaeological site of Nora (Sardinia, Italy). Environ. Earth Sci. 2018, 77, 577. [Google Scholar] [CrossRef]
- Columbu, S.; Verdiani, G. Digital Survey and Material Analysis Strategies for Documenting, Monitoring and Study the Romanesque Churches in Sardinia, Italy. In Lecture Notes in Computer Science. Digital Heritage. Progress in Cultural Heritage: Documentation, Preservation and Protection, 5th International Conference, EuroMed 2014 Limasol, Cyprus, 3–8 November 2014; Magnenat-Thalmann, I., Zarnic, F., Quac, I., Eds.; Springer: Cham, Switzerland, 2014; pp. 446–453. ISSN 03029743. [Google Scholar] [CrossRef] [Green Version]
- Columbu, S.; Antonelli, F.; Lezzerini, M.; Miriello, D.; Adembri, B.; Blanco, A. Provenance of marbles used in the Heliocaminus Baths of Hadrian’s Villa (Tivoli, Italy). J. Archaeol. Sci. 2014, 49, 332–342. [Google Scholar] [CrossRef]
- Columbu, S.; Sitzia, F.; Verdiani, G. Contribution of petrophysical analysis and 3D digital survey in the archaeometric investigations of the Emperor Hadrian’s Baths (Tivoli, Italy). Rend. Lincei 2015, 26, 455–474. [Google Scholar] [CrossRef]
- Lezzerini, M.; Antonelli, F.; Columbu, S.; Gadducci, R.; Marradi, A.; Miriello, D.; Parodi, L.; Secchiari, L.; Lazzeri, A. Cultural heritage documentation and conservation: Three-dimensional (3D) laser scanning and geographical information system (GIS) techniques for thematic mapping of facade stonework of St. Nicholas Church (Pisa, Italy). Int. J. Archit. Herit. 2016, 10, 9–19. [Google Scholar] [CrossRef]
- Antonelli, F.; Columbu, S.; De Vos Raaijmakers, M.; Andreoli, M. An archaeometric contribution to the study of ancient millstones from the Mulargia area (Sardinia, Italy) through new analytical data on volcanic raw material and archaeological items from Hellenistic and Roman North Africa. J. Archaeol. Sci. 2014, 50, 243–261. [Google Scholar] [CrossRef]
- Antonelli, F.; Columbu, S.; Lezzerini, M.; Miriello, D. Petrographic characterisation and provenance determination of the white marbles used in the roman sculptures of Forum Sempronii (Fossombrone, Marche, Italy). Appl. Phys. A Mater. Sci. Process. 2014, 115, 1033–1040. [Google Scholar] [CrossRef]
- Bertorino, G.; Franceschelli, M.; Marchi, M.; Lugliè, C.; Columbu, S. Petrographic characterisation of polished stone axes from Neolithic Sardinia: Archaeological implications. Per. Miner. 2002, 71, 87–100. [Google Scholar]
- Columbu, S. Provenance and alteration of pyroclastic rocks from the Romanesque Churches of Logudoro (north Sardinia, Italy) using a petrographic and geochemical statistical approach. Appl. Phys. A Mater. Sci. Process. 2017, 123, 165. [Google Scholar] [CrossRef]
- Columbu, S.; Antonelli, F.; Sitzia, F. Origin of Roman worked stones from St. Saturno Christian Basilica (South Sardinia, Italy). Mediterr. Archaeol. Archaeom. 2018, 18, 17–36. [Google Scholar] [CrossRef]
- Columbu, S.; Gioncada, A.; Lezzerini, M.; Sitzia, F. Mineralogical-chemical alteration and origin of ignimbritic stones used in the old Cathedral of Nostra Signora di Castro (Sardinia, Italy). Stud. Conserv. 2019, 64, 397–422. [Google Scholar] [CrossRef]
- Columbu, S.; Garau, A.M.; Lugliè, C. Geochemical characterisation of pozzolanic obsidian glasses used in the ancient mortars of Nora Roman theatre (Sardinia, Italy): Provenance of raw materials and historical–archaeological implications. Archaeol. Anthropol. Sci. 2019, 11, 2121–2150. [Google Scholar] [CrossRef]
- Miriello, D.; Antonelli, F.; Bloise, A.; Ceci, M.; Columbu, S.; Luca, R.D.; Lezzerini, M.; Pecci, A.; Mollo, B.S.; Brocato, P. Archaeometric approach for studying architectural earthenwares from the archaeological site of St. Omobono (Rome-Italy). Minerals 2019, 9, 266. [Google Scholar] [CrossRef] [Green Version]
- Raneri, S.; Pagnotta, S.; Lezzerini, M.; Legnaioli, S.; Palleschi, V.; Columbu, S.; Neri, N.F.; Mazzoleni, P. Examining the reactivity of volcanic ash in ancient mortars by using a micro-chemical approach. Mediterr. Archaeol. Archaeom. Int. Sci. J. 2018, 18, 147–157. [Google Scholar] [CrossRef]
- Columbu, S.; Garau, A.M. Mineralogical, petrographic and chemical analysis of geomaterials used in the mortars of Roman Nora theatre (south Sardinia, Italy). Ital. J. Geosci. 2017, 136, 238–262. [Google Scholar] [CrossRef]
- Columbu, S.; Sitzia, F.; Ennas, G. The ancient pozzolanic mortars and concretes of Heliocaminus baths in Hadrian’s Villa (Tivoli, Italy). Archaeol. Anthropol. Sci. 2017, 9, 523–553. [Google Scholar] [CrossRef]
- Lezzerini, M.; Raneri, S.; Pagnotta, S.; Columbu, S.; Gallello, G. Archaeometric study of mortars from the Pisa’s Cathedral Square (Italy). Measurement 2018, 126, 322–331. [Google Scholar] [CrossRef] [Green Version]
- Miriello, D.; Antonelli, F.; Apollaro, C.; Bloise, A.; Bruno, N.; Catalano, M.; Columbu, S.; Crisci, G.M.; De Luca, R.; Lezzerini, M.; et al. A petro-chemical study of ancient mortars from the archaeological site of Kyme (Turkey). Period. Mineral. 2015, 84, 497–517. [Google Scholar] [CrossRef]
- Ramacciotti, M.; Rubio, S.; Gallello, G.; Lezzerini, M.; Columbu, S.; Hernandez, E.; Morales-Rubio, A.; Pastor, A.; De La Guardia, M. Chronological classification of ancient mortars employing spectroscopy and spectrometry techniques: Sagunto (Valencia, Spain) Case. J. Spectrosc. 2018, 2018, 1–10. [Google Scholar] [CrossRef] [Green Version]
- Columbu, S.; Giamello, M.; Pagnotta, S.; Aquino, A.; Lezzerini, M. Ca-oxalate films on the stones of the medieval architecture: The case-study of Romanesque Churches. In Proceedings of the 2020 IMEKO TC-4 International Conference on Metrology for Archaeology and Cultural Heritage, Trento, Italy, 22–24 October 2020; pp. 196–201. [Google Scholar]
- Columbu, S.; Lisci, C.; Sitzia, F.; Buccellato, G. Physical-mechanical consolidation and protection of Miocenic limestone used on Mediterranean historical monuments: The case study of Pietra Cantone (Southern Sardinia, Italy). Environ. Earth Sci. 2017, 76, 148. [Google Scholar] [CrossRef]
- Columbu, S.; Piras, G.; Sitzia, F.; Pagnotta, S.; Raneri, S.; Legnaioli, S.; Palleschi, V.; Lezzerini, M.; Giamello, M. Petrographic and mineralogical charecterization of volcanic rocks and surface-depositions on Romanesque monuments. Mediterr. Archaeol. Archaeom. 2018, 18, 37–64. [Google Scholar] [CrossRef]
- Verdiani, G.; Columbu, S.E. Stone, an archive for the Sardinia monumental witnesses. Lect. Notes Comput. Sci. 2010, 6436 LNCS, 356–372. [Google Scholar] [CrossRef] [Green Version]
- Aragoni, M.C.; Giacopetti, L.; Arca, M.; Carcangiu, G.; Columbu, S.; Gimeno, D.; Isaia, F.; Lippolis, V.; Meloni, P.; Ezquerra, A.N.; et al. Ammonium monoethyloxalate (AmEtOx): A new agent for the conservation of carbonate stone substrates. New. J. Chem. 2021, 45, 5327–5339. [Google Scholar] [CrossRef]
- Buosi, C.; Columbu, S.; Ennas, G.; Pittau, P.; Scanu, G.G. Mineralogical, petrographic, and physical investigations on fossiliferous middle Jurassic sandstones from central Sardinia (Italy) to define their alteration and experimental consolidation. Geoheritage 2019, 11, 729–749. [Google Scholar] [CrossRef]
- Sitzia, F.; Beltrame, M.; Columbu, S.; Lisci, C.; Miguel, C.; Mirão, J. Ancient restoration and production technologies of Roman mortars from monuments placed in hydrogeological risk areas: A case study. Archaeol. Anthropol. Sci. 2020, 12, 147. [Google Scholar]
- Columbu, S.; Carboni, S.; Pagnotta, S.; Lezzerini, M.; Raneri, S.; Legnaioli, S.; Palleschi, V.; Usai, A. Laser-Induced Breakdown Spectroscopy analysis of the limestone Nuragic statues from Monte Prama site (Sardinia, Italy). Spectrochim. Acta Part B At. Spectrosc. 2018, 149, 62–70. [Google Scholar] [CrossRef]
- Columbu, S.; Lisci, C.; Sitzia, F.; Lorenzetti, G.; Lezzerini, M.; Pagnotta, S.; Raneri, S.; Legnaioli, S.; Palleschi, V.; Gallello, G.; et al. Mineralogical, petrographic and physical-mechanical study of Roman construction materials from the Maritime Theatre of Hadrian’s Villa (Rome, Italy). Measurement 2018, 127, 264–276. [Google Scholar] [CrossRef]
- Columbu, S.; Palomba, M.; Sitzia, F.; Murgia, M.R. Geochemical, mineral-petrographic and physical-mechanical characterisation of stones and mortars from the Romanesque Saccargia Basilica (Sardinia, Italy) to define their origin and alteration. Ital. J. Geosci. 2018, 137, 369–395. [Google Scholar] [CrossRef]
- Ramacciotti, M.; Rubio, S.; Gallello, G.; Lezzerini, M.; Raneri, S.; Hernandez, E.; Calvo, M.; Columbu, S.; Morales, A.; Pastor, A.; et al. Chemical and mineralogical analyses on stones from Sagunto Castle (Spain). J. Archaeol. Sci. Rep. 2019, 24, 931–938. [Google Scholar] [CrossRef] [Green Version]
- Columbu, S.; Gioncada, A.; Lezzerini, M.; Marchi, M. Hydric dilatation of ignimbritic stones used in the Church of Santa Maria di Otti (Oschiri, northern Sardinia, Italy). Ital. J. Geosci. 2014, 133, 149–160. [Google Scholar] [CrossRef]
- Lamarmora, A. Voyage En Sardaigne 2; Atlas: Paris, France, 1840. [Google Scholar]
- Lamarmora, A. Itinerario dell’isola di Sardegna; (traduz. G. Spano); Alagna: Cagliari, Italy, 1868. [Google Scholar]
- Acquaro, E.; Barreca, F.; Cecchini, S.M.; Fantar, D.; Fantar, M.; Guzzo Amadasi, M.G.; Moscati, S. Ricerche Puniche ad Antas: Rapporto Preliminare della Missione Archeologica Dell’Università di Roma e Della Soprintendenza alle Antichità di Cagliari, 1st ed.; Istituto di Studi del Vicino Oriente: Roma, Italy, 1969; p. 54. [Google Scholar]
- Advokaat, E.L.; Van Hinsbergen, D.J.J.; Maffione, M.; Langereis, C.G.; Vissers, R.L.M.; Cherchi, A.; Schroeder, R.; Madani, H.; Columbu, S. Eocene rotation of Sardinia, and the paleogeography of the Western Mediterranean region. Earth Planet. Sci. Lett. 2014, 401, 183–195. [Google Scholar] [CrossRef]
- Burrus, J. Contribution to a geodynamic synthesis of the Provencal Basin. (NW Mediterranean). Mar. Geol. 1984, 55, 247–269. [Google Scholar] [CrossRef]
- Carminati, E.; Doglioni, C. Alps vs. Apennines: The paradigm of a tectonically asymmetric Earth. Earth-Sci. Rev. 2012, 112, 67–96. [Google Scholar] [CrossRef]
- Gattaceca, J.; Deino, A.; Rizzo, R.; Jones, D.S.; Henry, B.; Beaudoin, B.; Vadeboin, F. Miocene rotation of Sardinia: New paleomagnetic and geochronological constraints and geodynamic implications. Earth Planet. Sci. Lett. 2007, 258, 359–377. [Google Scholar] [CrossRef]
- Speranza, F.; Villa, I.M.; Sagnotti, L.; Florindo, F.; Cosentino, D.; Cipollari, P.; Mattei, M. Age of the Corsica-Sardinia rotation and Liguro-Provençal Basin spreading: New paleomagnetic and Ar/Ar evidence. Tectonophysics 2002, 347, 231–251. [Google Scholar] [CrossRef]
- Vai, G.B.; Martini, I.P. (Eds.) Anatomy of an Orogen: The Apennines and adjacent Mediterranean Basins, 1st ed.; Springer: Dordrecht, The Netherlands, 2001; p. 550. [Google Scholar]
- Cassinis, G.; Durand, M.; Ronchi, A. Permian-Triassic continental sequences of Northwest Sardinia and South Provence: Stratigraphic correlations and palaeogeographical implications. Boll. Della Soc. Geol. Ital. 2003, 2, 119–129. [Google Scholar]
- Gandin, A.; Tongiorgi, M.; Rau, A.; Virgili, C. Some examples of the Middle-Triassic marine transgression in South-Western Mediterranean Europe. Geol. Rund. 1982, 71, 881–884. [Google Scholar] [CrossRef]
- RAS. Regione Autonoma della Sardegna, Carta Geologica di Base della Sardegna in Scala 1:25000. 2010. Available online: http://www.sardegnageoportale.it/index.php?xsl=2420&s=40&v=9&c=14479&es=6603&na=1&n=100&esp=1&tb=14401 (accessed on 4 July 2021).
- Lustrino, M.; Morra, V.; Fedele, L.; Franciosi, L. Beginning of the Apennine subduction system in central western Mediterranean: Constraints from Cenozoic ‘‘orogenic’’ magmatic activity of Sardinia, Italy. Tectonics 2009, 28, TC5016. [Google Scholar] [CrossRef]
- Lustrino, M.; Fedele, L.; Melluso, L.; Morra, V.; Ronga, F.; Geldmacher, J.; Duggen, D.; Agostini, S.; Cucciniello, C.; Franciosi, L.; et al. Origin and evolution of Cenozoic magmatism of Sardinia (Italy). A combined isotopic (Sr–Nd–Pb–O–Hf–Os) and petrological view. Lithos 2013, 180–181, 138–158. [Google Scholar] [CrossRef]
- Cherchi, A.; Montadert, L. Oligo-Miocene rift of Sardinia and the early history of the western Mediterranean basin. Nature 1982, 298, 736–739. [Google Scholar] [CrossRef]
- Cherchi, A.; Mancin, N.; Montadert, L.; Murru, M.; Putzu, M.T.; Schiavinotto, F.; Verrubbi, V. The stratigraphic response to the Oligo-Miocene extension in the western Mediterranean from observations on the Sardinia graben system (Italy). Bull. De La Soc. Geol. De Fr. 2008, 179, 267–287. [Google Scholar] [CrossRef]
- Coulon, C. Le Volcanism Calco-Alcalin Cenozoique de Sardaigne, Italie. Master’s Thesis, Univesité St. Jerome, Marseille, France, 1977. [Google Scholar]
- Dostal, J.; Coulon, C.; Dupuy, C. Cainozoic andesitic rock of Sardinia (Italy). In Andesites: Orogenic Andesites and Related Rocks, 1st ed.; Thorpe, R.S., Ed.; Wiley & Sons: Chichester, UK, 1982; pp. 353–370. [Google Scholar]
- Balia, R.; Illiceto, V.; Loddo, M.; Santarato, G. Modelling of the Campidano graben (Sardinia, Italy) by combined geophysical data. Geoexploration 1991, 28, 43–54. [Google Scholar] [CrossRef]
- Carmignani, L.; Carosi, R.; Di Pisa, A.; Gattiglio, M.; Musumeci, G.; Oggiano, G.; Pertusati, P.C. The Hercynian chain in Sardinia (Italy). Geodin. Acta 1994, 7, 231–247. [Google Scholar] [CrossRef]
- Carmignani, L.; Oggiano, G.; Barca, S.; Conti, P.; Salvadori, I.; Eltrudis, A.; Funedda, A.; Pasci, S. Geologia della Sardegna. Note Illustrative Della Carta Geologica in Scala 1:200,000; Servizio Geologico d’Italia: Roma, Italy, 2001. [Google Scholar]
- Leone, F. La serie paleozoica del settore di Orbai-Monte Maiori (Valle del Cixerri-Sardegna sud-occidentale). Boll. Della Soc. Geol. Ital. 1973, 92, 621–633. [Google Scholar]
- Cocozza, T.; Leone, F. Sintesi della successione stratigrafica paleozoica della Sardegna sud-occidentale. In Escursione In Sardegna 1977: Risultati E Commenti; Vai, G.B., Ed.; Istituto Geologia: Parma, Italy, 1977; p. 59. [Google Scholar]
- Pillola, G.L. Lithologie et Trilobites du Cambrien inférieur du SW de la Sardaigne (Italie): Implications paléobiogéographiques. Comptes. Rendus. L’académie Des. Sci. 1990, 310, 321–328. [Google Scholar]
- Pasci, S.; Pertusati, P.C.; Salvadori, I.; Medda, F.; Murtas, A.; Rizzo, R.; Uras, V. Note Illustrative Della Carta Geologica d’Italia 1:50,000, Foglio 555 Iglesias; Servizio Geologico d’Italia: Roma, Italy, 2016. [Google Scholar]
- Bechstädt, T.; Boni, M. Sedimentological, stratigraphical and ore deposits field guide of the Autochtonous Cambro-Ordovician of Southwestern Sardinia. Mem. Descr. Carta Geol. Ital. 1994, 48, 436. [Google Scholar]
- Boni, M.; Parente, G.; Bechstad, T.; De Vivo, B.; Iannace, A. Hydrothermal dolomites in SW Sardinia (Italy): Evidence for a widespread late Variscan fluid flow event. Sediment. Geol. 2000, 131, 181–200. [Google Scholar] [CrossRef]
- Costamagna, L.G. Lithostratigraphy and sedimentology of the lower Cambrian carbonate Gonnesa Group of Iglesiente (SW Sardinia, Italy): Data from the Oridda area. Rend. Online Della Soc. Geol. Ital. 2020, 50, 29–38. [Google Scholar] [CrossRef]
- Cocco, F.; Funedda, A. The Sardic phase: Field evidence of Ordovician tectonics in SE Sardinia, Italy. Geol. Mag. 2019, 156, 25–38. [Google Scholar] [CrossRef]
- Martini, I.P.; Tongiorgi, M.; Oggiano, G.; Cocozza, T. Ordovician alluvial fan to marine shelf transition in SW Sardinia, Western Mediterranean Sea: Tectonically (“Sardic phase”) influenced clastic sedimentation. Sediment. Geol. 1991, 72, 97–115. [Google Scholar] [CrossRef]
- Dott, R.H.; Bourgeois, J. Hummocky stratification: Significance of variable bedding sequences. Geol. Soc. Am. Bulletin. 1982, 93, 663–680. [Google Scholar] [CrossRef]
- Leone, F.; Ferretti, A.; Hammann, W.; Loi, A.; Pillola, G.L.; Serpagli, E. A general view on the post-Sardic Ordovician sequence from SW Sardinia. Rend. Della Soc. Paleontol. Ital. 2002, 1, 51–68. [Google Scholar]
- Traversa, G.; Ronca, S.; Del Moro, A.; Pasquali, C.; Buraglini, N.; Barabino, G. Late to post-Hercynian dyke activity in the Sardinia-Corsica Domain: A transition from orogenic calc-alkaline to anorogenic alkaline magmatism. Boll. Della Soc. Geol. Italiana. 2003, V, 131–152. [Google Scholar]
- Stone Materials: Sampling; CNR-ICR: Roma, Italy, 1988.
- Ulmer-Scholle, D.S.; Scholle, P.A.; Schieber, J.; Raine, R.J. A Color Guide to the Petrography of Sandstones, Siltstones, Shales and Associated Rocks; Document 1: 8–12; American Association of Petroleum Geologists: Tulsa, OK, USA, 2014; pp. 109–503. [Google Scholar]
- Folk, R.L. Nutrient Fluxes and Sediments Composition in El Mex Bay and Surround Drains, Alexandria, Egypt. In Petrology of Sedimentary Rocks; Hemphill Publishing Company: Austin, TX, USA, 1974; p. 190. [Google Scholar]
- Folk, R.L. Shallow Marine Cretaceous Sequences and Petroleum Geology of the Onshore Portion Rio del Rey Basin, Cameroon, Gulf of Guinea. In Petrology of Sedimentary Rocks; Hemphill Publishing Company: Austin, TX, USA, 1980; p. 182. [Google Scholar]
- Mount, J. Mixed siliciclastic and carbonate sediments: A proposed first-order textural and compositional classification. Sedimentology 1985, 32, 435–442. [Google Scholar] [CrossRef]
- Dunham, R.J. Classification of carbonate rocks according to depositional texture. Mem. Amer. Ass. Petrol. Geol. 1962, 1, 108–121. [Google Scholar]
- Embry, A.F.; Klovan, E.J. Absolute water depths limits of Late Devonian paleoecological zones. Geol. Rund. 1972, 61, 672–682. [Google Scholar]
- Flugel, E. Microfacies of Carbonate Rocks: Analysis, Interpretation and Application, 1st ed.; Springer: Berlin/Heidelberg, Germany, 2004. [Google Scholar]
- Columbu, S.; Cruciani, G.; Fancello, D.; Franceschelli, M.; Musumeci, G. Petrophysical properties of a granite-protomylonite-ultramylonite sequence: Insight from the Monte Grighini shear zone, central Sardinia, Italy. Eur. J. Mineral. 2014, 27, 471–486. [Google Scholar] [CrossRef]
- Columbu, S.; Mulas, M.; Mundula, F.; Cioni, R. Strategies for helium pycnometry density measurements of welded ignimbritic rocks. Meas. J. Int. Meas. Confed. 2021, 173, 108640. [Google Scholar] [CrossRef]
- ISRM-International Society for Rock Mechanics and Rock Engineering. Suggest method for determining the point load strength index. In International Society for Rock Mechanics; Document 1: 8–12; Committee on Field Tests, ISRM: Lisbon, Portugal, 1972. [Google Scholar]
- ISRM-International Society for Rock Mechanics and Rock Engineering. Suggest method for determining the point load strength. In International Society for Rock Mechanics 1985; Abstr 22: 51–60; ISRM Commission for Testing Methods, Working Group on Revision of the Point Load Test Methods, ISRM: Lisbon, Portugal, 1985. [Google Scholar]
- Demicco, R.V.; Hardie, L.A. Sedimentary Structures and Early Diagenetic Features of Shallow Marine Carbonate Deposits; SEPM: Tulsa, OK, USA, 1994. [Google Scholar]
- Zuffa, G.G. Hybrid Arenites: Their Composition and Classification. J. Sediment. Res. 1980, 50, 21–29. [Google Scholar]
- Pettijohn, F.J.; Potter, P.E.; Siever, R. Sand and Sandstone, 2nd ed.; Springer: Berlin/Heidelberg, Germany, 1987. [Google Scholar]
- Barca, S.; Costamagna, L.G. Compressive “Alpine” Tectonics in Western Sardinia: Geodynamic Consequences. Comptes Rendus. Académie Sci. 1997, 325, 791–797. [Google Scholar] [CrossRef]
- Leeder, M. Sedimentology and Sedimentary Basins. From Turbulence to Tectonics, 1st ed.; Blackwell: Chichester, UK, 1999. [Google Scholar]















| Sample | Monument | Sampling Position | Lithology | Description of Rock |
|---|---|---|---|---|
| TAR1 | Roman Temple | Access steps | Metadolostone | Weathered massive metadolostone |
| TAR2 | Roman Temple | Access steps | Metadolostone | Dolomitic metabreccia with calcite cement |
| TAR3 | Roman Temple | Perimeter of the podium | Metadolostone | Peloidal metadolostone showing voids filled by calcite |
| TAR4 | Roman Temple | Perimeter of the podium | Metadolostone | Dolomitic metabreccia with calcite cement |
| TAR5 | Roman Temple | North-east side entrance | Metadolostone | Crystalline laminated metadolostone with ghost of pre-existing structures |
| TAR7 | Roman Temple | Perimeter of the podium | Metadolostone | Dolomitic metabreccia with recent sparry calcite cement |
| TAR9 | Roman Temple | Mosaic tesserae of cell floor | Limestone | Mesozoic bioclastic packstone-grainstone |
| TAR14 | Roman Temple | North-western basin | Sandstone | Calcarenaceous sandstone with fossil fragments and carbonate cement |
| TAR19 | Roman Temple | Floor near the entrance | Marly limestone | Laminated, clayey mudstone-wackestone with tiny planktonic forams (Mesozoic) |
| TAR20 | Roman Temple | Pillar of cell-room | Metadolostone | Massive metadolostone with ghosts of pellettoidal texture |
| TAR22 | Roman Temple | Column base | Metadolostone | Massive metadolostone with ghosts of pellettoidal texture |
| TAR49 | Roman Temple | Perimeter of the podium | Metadolostone | Massive metadolostone with ghosts of pellettoidal texture |
| TAR50 | Roman Temple | Steps of lateral access | Sandstone | Calcarenaceous sandstone with bioclasts and carbonate cement |
| TAP23 | Punic Temple | Stone ashlar of masonry | Sandstone | Calcarenaceous sandstone with bioclasts and carbonate cement |
| TAP27 | Punic Temple | Stone ashlar of masonry | Sandstone | Calcarenaceous sandstone with bioclasts and carbonate cement |
| TAP30 | Punic Temple | Stone ashlar of masonry | Sandstone-like rock | “Sandstone” s.l. with quartz, rare feldspars and lithics |
| TAP31 | Punic Temple | Stone ashlar of masonry | Sandstone | Calcarenaceous sandstone with bioclasts and carbonate cement |
| TAP32 | Punic Temple | Stone ashlar of masonry | Sandstone-like rock | “Sandstone” s.l. with quartz, rare feldspars and lithics |
| TAP33 | Punic Temple | Outcrop (sacred Temple) | Metadolostone | Dolomitized algal bindstone |
| TAP35 | Punic Temple | Stone ashlar of masonry | Sandstone | Calcarenaceous sandstone with bioclasts and carbonate cement |
| TAP36 | Punic Temple | Stone ashlar of masonry | Sandstone | Calcarenaceous sandstone with bioclasts and carbonate cement |
| TAP37 | Punic Temple | Stone ashlar of masonry | Sandstone-like rock | “Sandstone” s.l. with quartz, rare feldspars and lithics |
| TAP38 | Punic Temple | Stone ashlar of masonry | Sandstone-like rock | “Sandstone” s.l. with quartz, rare feldspars and lithics |
| TAP39 | Punic Temple | Stone ashlar of masonry | Sandstone-like rock | “Sandstone” s.l. with quartz, rare feldspars and lithics |
| TAP40 | Punic Temple | Stone ashlar of masonry | Sandstone-like rock | “Sandstone” s.l. with quartz, rare feldspars and lithics |
| TAP41 | Punic Temple | Stone ashlar of masonry | Sandstone-like rock | “Sandstone” s.l. with quartz, rare feldspars and lithics |
| TAP42 | Punic Temple | Stone ashlar base | Sandstone | Calcarenaceous sandstone with bioclasts and carbonate cement |
| TAP45 | Punic Temple | Ashlar wall (in front steps) | Metadolostone | Weakly brecciated, weathered metadolostone |
| TAP48 | Punic Temple | Stone ashlar not in situ | Sandstone | Calcarenaceous sandstone with bioclasts and carbonate cement |
| TAC1 | Roman quarry | Worked rock outcrop | Metadolostone | Dolomitic breccia with massive metadolostone angular pebbles |
| TAC2 | Roman quarry | Worked rock outcrop | Metadolostone | Dolomitized algal bindstone |
| TAC3 | Roman quarry | Worked rock outcrop | Metadolostone | Dolomitic breccia with massive metadolostone angular pebbles |
| TASC1 | Rock outcrop | Path temple-quarries | Metadolostone | Massive metadolostone with calcite-filled fractures |
| TASC2 | Rock outcrop | Path temple-quarries | Metadolostone | Massive metadolostone with thin levels of microbreccias |
| TASC3 | Rock outcrop | Path temple-quarries | Metadolostone | Laminated metadolostone with algal mats and peloids |
| TASC4 | Rock outcrop | Path temple-quarries | Metadolostone | Laminated metadolostone with algal mats and peloids |
| TASC5 | Rock outcrop | Path temple-quarries | Metadolostone | Crushed laminated metadolostone with peloids |
| TASC6 | Rock outcrop | Path temple-quarries | Metadolostone | Peloidal metadolostone showing several overprinted stages of dolomitization |
| TASC7 | Rock outcrop | Path temple-quarries | Metasiltstone | Laminated fine litharenite (Fm di Nebida, Lower Cambrian?) |
| TASC8 | Rock outcrop | Path temple-quarries | Metadolostone | Metadolostone with rare laminae |
| Sample | Lithology | ρR | ρB | C | ΦO He | ΦO H2O | ΦC H2O | ICw | SI |
|---|---|---|---|---|---|---|---|---|---|
| g/cm3 | g/cm3 | / | % | % | % | % | % | ||
| TAP33 | Laminated metadolostone (from temples) | 2.80 | 2.71 | 0.97 | 3.1 | 2.7 | 0.4 | 1.0 | 86.1 |
| TAR3 | 2.71 | 2.26 | 0.83 | 16.8 | 15.6 | 1.2 | 6.9 | 92.8 | |
| TAR5 | 2.69 | 2.17 | 0.81 | 19.5 | 17.1 | 2.4 | 7.9 | 87.9 | |
| TAC2 | Lam. metadolostone (quarry) | 2.79 | 2.56 | 0.92 | 8.2 | 7.6 | 0.6 | 3.0 | 93.0 |
| TASC3 | Laminated metadolostone (from outcrops) | 2.81 | 2.69 | 0.96 | 4.3 | 4.2 | 0.1 | 1.6 | 97.7 |
| TASC4 | 2.81 | 2.66 | 0.95 | 5.3 | 4.6 | 0.7 | 1.7 | 87.0 | |
| TASC5 | 2.82 | 2.62 | 0.93 | 7.0 | 6.4 | 0.6 | 2.4 | 91.7 | |
| TASC6 | 2.82 | 2.68 | 0.95 | 5.3 | 5.0 | 0.2 | 1.9 | 95.9 | |
| TASC8 | 2.82 | 2.65 | 0.94 | 6.3 | 6.3 | 0.0 | 2.4 | 99.5 | |
| Average | 2.79 | 2.56 | 0.92 | 8.4 | 7.7 | 0.7 | 3.2 | 92.4 | |
| St. Dev. | 0.05 | 0.20 | 0.06 | 5.7 | 5.1 | 0.7 | 2.5 | 4.8 | |
| TAP45 | Brecciated metadolostone (from temples) | 2.72 | 2.40 | 0.88 | 11.7 | 11.4 | 0.4 | 4.7 | 97.0 |
| TAR2 | 2.77 | 2.35 | 0.85 | 15.2 | 12.0 | 3.2 | 5.1 | 78.9 | |
| TAR4 | 2.80 | 2.48 | 0.88 | 11.6 | 11.2 | 0.4 | 4.5 | 96.3 | |
| TAR7 | 2.78 | 2.29 | 0.82 | 17.8 | 16.3 | 1.5 | 7.1 | 91.7 | |
| TAC1 | Brecciated metadolostone (from quarry) | 2.70 | 2.48 | 0.92 | 8.5 | 6.2 | 2.3 | 2.5 | 72.5 |
| TAC3 | 2.72 | 2.38 | 0.88 | 12.4 | 10.5 | 1.9 | 4.4 | 84.7 | |
| Average | 2.75 | 2.40 | 0.87 | 12.9 | 11.3 | 1.6 | 4.7 | 86.9 | |
| St. Dev. | 0.04 | 0.07 | 0.03 | 3.2 | 3.3 | 1.1 | 1.5 | 9.9 | |
| TAR1 | Massive metadolostone (from Roman temple) | 2.74 | 2.34 | 0.85 | 14.6 | 11.6 | 3.0 | 5.0 | 79.5 |
| TAR20 | 2.80 | 2.47 | 0.88 | 11.7 | 11.2 | 0.5 | 4.5 | 95.8 | |
| TAR22 | 2.79 | 2.55 | 0.91 | 8.7 | 6.5 | 2.2 | 2.6 | 75.1 | |
| TAR49 | 2.74 | 2.46 | 0.90 | 10.1 | 9.6 | 0.5 | 3.9 | 94.9 | |
| TASC1 | Massive metadolostone (from outcrops) | 2.71 | 2.30 | 0.85 | 15.0 | 13.4 | 1.6 | 5.8 | 89.1 |
| TASC2 | 2.79 | 2.52 | 0.90 | 9.7 | 9.1 | 0.5 | 3.6 | 94.3 | |
| Average | 2.76 | 2.44 | 0.88 | 11.6 | 10.2 | 1.4 | 4.2 | 88.1 | |
| St. Dev. | 0.04 | 0.10 | 0.03 | 2.7 | 2.4 | 1.1 | 1.1 | 8.8 | |
| TAP23 | Sandstone (from temples) | 2.74 | 1.84 | 0.67 | 32.9 | 26.6 | 6.3 | 14.5 | 80.9 |
| TAP27 | 2.73 | 1.96 | 0.72 | 27.9 | 22.9 | 5.0 | 11.6 | 82.2 | |
| TAP31 | 2.73 | 1.70 | 0.62 | 38.0 | 31.8 | 6.2 | 18.7 | 83.7 | |
| TAP35 | 2.70 | 2.02 | 0.75 | 25.4 | 18.2 | 7.2 | 9.0 | 71.6 | |
| TAP36 | 2.74 | 1.94 | 0.71 | 29.2 | 21.1 | 8.1 | 10.8 | 72.4 | |
| TAP42 | 2.73 | 1.68 | 0.62 | 38.3 | 29.9 | 8.4 | 17.7 | 78.1 | |
| TAP48 | 2.70 | 1.77 | 0.66 | 34.4 | 29.6 | 4.8 | 16.6 | 86.1 | |
| TAR14 | 2.73 | 1.71 | 0.63 | 37.4 | 35.0 | 2.4 | 20.4 | 93.5 | |
| TAR50 | 2.72 | 1.69 | 0.62 | 38.1 | 33.4 | 4.7 | 19.8 | 87.8 | |
| Average | 2.73 | 1.81 | 0.66 | 33.5 | 27.6 | 5.9 | 15.5 | 81.8 | |
| St. Dev. | 0.01 | 0.13 | 0.05 | 5.0 | 5.8 | 1.9 | 4.2 | 7.1 | |
| TAP30 | Artificial “sandstone” s.l. (from Punic temple) | 2.60 | 1.91 | 0.73 | 26.6 | 21.3 | 5.3 | 11.1 | 80.1 |
| TAP32 | 2.58 | 1.92 | 0.75 | 25.3 | 21.5 | 3.8 | 11.1 | 84.8 | |
| TAP37 | 2.50 | 1.98 | 0.79 | 21.0 | 16.6 | 4.4 | 8.4 | 79.2 | |
| TAP38 | 2.60 | 1.91 | 0.73 | 26.6 | 22.1 | 4.5 | 11.6 | 83.1 | |
| TAP39 | 2.57 | 1.96 | 0.76 | 23.7 | 17.8 | 5.9 | 9.0 | 75.2 | |
| TAP40 | 2.53 | 1.96 | 0.77 | 22.7 | 19.0 | 3.7 | 9.7 | 83.6 | |
| TAP41 | 2.46 | 1.83 | 0.74 | 25.8 | 18.8 | 7.0 | 10.2 | 72.8 | |
| Average | 2.55 | 1.92 | 0.75 | 24.5 | 19.6 | 4.9 | 10.2 | 79.8 | |
| St. Dev. | 0.05 | 0.05 | 0.02 | 2.1 | 2.1 | 1.2 | 1.2 | 4.5 | |
| TAR19 | Marly limestone (temple) | 2.69 | 2.60 | 0.96 | 3.5 | 3.3 | 0.3 | 1.2 | 92.9 |
| TASC7 | Metasiltstone (outcrop) | 2.70 | 2.19 | 0.81 | 18.8 | 10.8 | 8.0 | 4.9 | 57.3 |
| Sample | Lithology | Water Immersion Absorption (g) | |||||||
|---|---|---|---|---|---|---|---|---|---|
| 24 h | 48 h | 72 h | 96 h | 120 h | 144 h | 168 h | 192 h | ||
| TAP33 | Laminated metadolostone (from temples) | 0.89 | 0.92 | 0.94 | 0.96 | 0.97 | 1.11 | 0.97 | 0.98 |
| TAR3 | 6.23 | 6.36 | 6.60 | 6.65 | 6.69 | 6.72 | 6.73 | 6.86 | |
| TAR5 | 4.85 | 5.38 | 5.39 | 6.04 | 6.70 | 7.37 | 7.84 | 7.85 | |
| TAC2 | Lam. dol. (quarry) | 2.64 | 2.75 | 3.01 | 3.00 | 2.99 | 2.95 | 2.94 | 2.96 |
| TASC3 | Laminated metadolostone (from outcrops) | 1.35 | 1.35 | 1.51 | 1.51 | 1.51 | 1.49 | 1.53 | 1.57 |
| TASC4 | 1.44 | 1.49 | 1.60 | 1.63 | 1.66 | 1.69 | 1.70 | 1.73 | |
| TASC5 | 2.02 | 2.14 | 2.19 | 2.24 | 2.30 | 2.29 | 2.26 | 2.44 | |
| TASC6 | 1.56 | 1.65 | 1.67 | 1.74 | 1.81 | 1.80 | 1.79 | 1.88 | |
| TASC8 | 1.97 | 2.17 | 2.19 | 2.23 | 2.28 | 2.28 | 2.30 | 2.36 | |
| Average | 2.55 | 2.69 | 2.79 | 2.89 | 2.99 | 3.08 | 3.12 | 3.18 | |
| TAP45 | Brecciated metadolostone (from temples) | 4.42 | 4.44 | 4.47 | 4.58 | 4.69 | 4.67 | 4.62 | 4.73 |
| TAR2 | 4.36 | 4.40 | 4.42 | 4.59 | 4.76 | 4.89 | 5.05 | 5.08 | |
| TAR4 | 3.68 | 3.95 | 4.10 | 4.19 | 4.27 | 4.33 | 4.37 | 4.48 | |
| TAR7 | 6.22 | 6.57 | 6.77 | 6.83 | 6.89 | 6.97 | 6.99 | 7.12 | |
| TAC1 | Brecciated metadolostone (from quarry) | 1.11 | 1.55 | 1.69 | 1.58 | 1.46 | 1.49 | 1.55 | 1.62 |
| TAC3 | 4.22 | 4.26 | 4.28 | 4.30 | 4.32 | 4.35 | 4.37 | 4.40 | |
| Average | 4.00 | 4.20 | 4.29 | 4.34 | 4.40 | 4.45 | 4.49 | 4.57 | |
| TAR1 | Massive metadolostone (from Roman temple) | 4.21 | 4.48 | 4.68 | 4.85 | 5.01 | 4.92 | 4.76 | 4.91 |
| TAR20 | 3.73 | 3.77 | 4.14 | 4.16 | 4.19 | 4.17 | 4.17 | 4.53 | |
| TAR22 | 2.20 | 2.41 | 2.42 | 2.48 | 2.55 | 2.55 | 2.56 | 2.56 | |
| TAR49 | 3.46 | 3.57 | 3.69 | 3.72 | 3.74 | 3.77 | 3.79 | 3.87 | |
| TASC1 | Massive metadolostone (from outcrops) | 5.33 | 5.52 | 5.72 | 5.74 | 5.76 | 5.77 | 5.75 | 5.79 |
| TASC2 | 3.04 | 3.38 | 3.40 | 3.42 | 3.44 | 3.48 | 3.52 | 3.62 | |
| Average | 3.66 | 3.85 | 4.01 | 4.06 | 4.11 | 4.11 | 4.09 | 4.21 | |
| TAP23 | Sandstone (from temples) | 12.78 | 13.35 | 13.40 | 14.04 | 14.67 | 15.00 | 13.98 | 14.21 |
| TAP27 | 7.76 | 9.20 | 9.24 | 10.04 | 10.84 | 11.13 | 11.43 | 11.61 | |
| TAP31 | 15.93 | 17.00 | 17.00 | 17.22 | 17.44 | 17.50 | 17.54 | 17.58 | |
| TAP35 | 6.25 | 7.36 | 7.92 | 8.01 | 8.10 | 8.32 | 8.61 | 8.93 | |
| TAP36 | 9.72 | 9.98 | 10.04 | 10.10 | 10.17 | 10.25 | 10.29 | 10.68 | |
| TAP42 | 15.61 | 16.53 | 16.75 | 16.96 | 17.17 | 17.29 | 17.47 | 17.48 | |
| TAP48 | 13.36 | 14.64 | 15.25 | 15.59 | 15.93 | 16.08 | 16.21 | 16.24 | |
| TAR14 | 17.28 | 19.31 | 19.65 | 19.85 | 20.05 | 20.11 | 20.15 | 20.18 | |
| TAR50 | 13.76 | 16.68 | 18.09 | 18.18 | 18.28 | 18.42 | 18.51 | 17.98 | |
| Average | 12.49 | 13.78 | 14.15 | 14.44 | 14.74 | 14.90 | 14.91 | 14.99 | |
| TAP30 | “Sandstone” s.l. (from Punic temple) | 9.39 | 10.45 | 10.53 | 10.64 | 10.75 | 10.83 | 10.90 | 11.13 |
| TAP32 | 4.22 | 4.42 | 4.48 | 4.63 | 4.78 | 4.76 | 4.75 | 4.95 | |
| TAP37 | 7.49 | 7.79 | 8.00 | 8.06 | 8.13 | 8.15 | 8.15 | 8.37 | |
| TAP38 | 1.90 | 11.39 | 11.50 | 11.52 | 11.54 | 11.56 | 11.56 | 11.57 | |
| TAP39 | 7.43 | 8.12 | 8.45 | 8.61 | 8.77 | 8.90 | 8.96 | 9.02 | |
| TAP40 | 8.80 | 9.09 | 9.30 | 9.39 | 9.47 | 9.50 | 9.54 | 9.64 | |
| TAP41 | 8.76 | 9.12 | 9.44 | 9.58 | 9.73 | 9.78 | 9.84 | 9.92 | |
| Average | 6.86 | 8.63 | 8.81 | 8.92 | 9.02 | 9.07 | 9.10 | 9.23 | |
| TAR19 | Marly limestone | 0.82 | 1.08 | 1.11 | 1.12 | 1.14 | 1.17 | 1.21 | 1.25 |
| TASC7 | Metasiltstone | 3.74 | 3.97 | 4.32 | 4.41 | 4.51 | 4.61 | 4.72 | 4.89 |
| Sample | Lithology | W | H | P | De2 | Is | F | Is(50) | RC | RT | ||
|---|---|---|---|---|---|---|---|---|---|---|---|---|
| mm | mm | kN | mm2 | N/mm2 | / | MPa | MPa | kg/cm2 | MPa | kg/cm2 | ||
| TAP32 | Laminated metadolostone (from temples) | 17.6 | 10.0 | 1.45 | 223.5 | 6.49 | 0.58 | 3.77 | 75.4 | 768.6 | 3.0 | 30.7 |
| TAR3 | 14.9 | 12.0 | 0.80 | 228.0 | 3.51 | 0.58 | 2.05 | 40.9 | 417.4 | 1.6 | 16.7 | |
| TAR5 | 18.1 | 15.5 | 0.60 | 356.2 | 1.68 | 0.65 | 1.09 | 21.7 | 221.6 | 0.9 | 8.9 | |
| TAC2 | Lam. dol. (quarry) | 18.5 | 11.5 | 2.85 | 270.9 | 10.52 | 0.61 | 6.38 | 127.6 | 1301.4 | 5.1 | 52.1 |
| TASC3 | Laminated metadolostone (from outcrops) | 17.7 | 15.5 | 3.90 | 348.3 | 11.20 | 0.64 | 7.19 | 143.7 | 1465.5 | 5.7 | 58.6 |
| TASC4 | 16.2 | 7.5 | 1.85 | 154.2 | 12.00 | 0.53 | 6.41 | 128.2 | 1307.1 | 5.1 | 52.3 | |
| TASC5 | 17.7 | 8.5 | 1.00 | 191.6 | 5.22 | 0.56 | 2.93 | 58.6 | 597.3 | 2.3 | 23.9 | |
| TASC6 | 17.8 | 15.5 | 4.45 | 351.3 | 12.67 | 0.64 | 8.15 | 162.9 | 1661.3 | 6.5 | 66.5 | |
| TASC8 | 18.9 | 15.0 | 2.75 | 361.0 | 7.62 | 0.65 | 4.93 | 98.6 | 1005.2 | 3.9 | 40.2 | |
| Average | 17.5 | 12.3 | 2.18 | 276.1 | 7.88 | 0.60 | 4.76 | 95.3 | 971.7 | 3.8 | 38.9 | |
| St. Dev. | 1.2 | 3.2 | 1.38 | 80.3 | 3.94 | 0.04 | 2.45 | 48.9 | 499.1 | 2.0 | 20.0 | |
| TAP45 | Brecciated metadolostone (from temples) | 18.7 | 15.5 | 1.85 | 368.1 | 5.03 | 0.65 | 3.27 | 65.3 | 666.1 | 2.6 | 26.6 |
| TAR2 | 17.4 | 9.5 | 0.50 | 210.5 | 2.38 | 0.57 | 1.36 | 27.2 | 277.6 | 1.1 | 11.1 | |
| TAR4 | 17.5 | 12.0 | 0.65 | 267.4 | 2.43 | 0.60 | 1.47 | 29.4 | 299.8 | 1.2 | 12.0 | |
| TAR7 | 16.8 | 8.0 | 0.65 | 170.9 | 3.80 | 0.55 | 2.08 | 41.6 | 424.2 | 1.7 | 17.0 | |
| TAC1 | Brecciated metadolostone (from quarry) | 16.3 | 10.0 | 1.65 | 206.9 | 7.97 | 0.57 | 4.55 | 91.0 | 928.4 | 3.6 | 37.1 |
| TAC3 | 19.5 | 13.0 | 1.90 | 322.8 | 5.89 | 0.63 | 3.71 | 74.3 | 757.4 | 3.0 | 30.3 | |
| Average | 17.7 | 11.3 | 1.20 | 257.7 | 4.58 | 0.60 | 2.74 | 54.8 | 558.9 | 2.2 | 22.4 | |
| St. Dev. | 1.2 | 2.7 | 0.66 | 76.0 | 2.17 | 0.04 | 1.30 | 26.0 | 265.3 | 1.0 | 10.6 | |
| TAR1 | Massive metadolostone (from Roman temple) | 19.4 | 10.0 | 0.25 | 247.3 | 1.01 | 0.59 | 0.60 | 12.0 | 122.5 | 0.5 | 4.9 |
| TAR20 | 16.2 | 11.0 | 0.95 | 226.5 | 4.19 | 0.58 | 2.44 | 48.9 | 498.3 | 2.0 | 19.9 | |
| TAR22 | 19.3 | 10.5 | 1.75 | 258.0 | 6.78 | 0.60 | 4.07 | 81.4 | 829.8 | 3.3 | 33.2 | |
| TAR49 | 18.9 | 15.5 | 0.15 | 372.0 | 0.40 | 0.65 | 0.26 | 5.3 | 53.6 | 0.2 | 2.1 | |
| TASC1 | Massive metadolostone (from outcrops) | 18.5 | 10.0 | 0.70 | 235.9 | 2.97 | 0.59 | 1.74 | 34.9 | 355.8 | 1.4 | 14.2 |
| TASC2 | 18.0 | 12.5 | 2.25 | 286.5 | 7.85 | 0.61 | 4.82 | 96.5 | 983.8 | 3.9 | 39.4 | |
| Average | 18.4 | 11.6 | 1.01 | 271.0 | 3.87 | 0.61 | 2.32 | 46.5 | 474.0 | 1.9 | 19.0 | |
| St. Dev. | 1.2 | 2.1 | 0.84 | 53.6 | 3.02 | 0.03 | 1.84 | 36.7 | 374.5 | 1.5 | 15.0 | |
| TAP23 | Sandstone (from temples) | 20.5 | 7.5 | 0.15 | 195.3 | 0.77 | 0.56 | 0.43 | 8.7 | 88.3 | 0.3 | 3.5 |
| TAP27 | 20.2 | 15.0 | 0.90 | 384.8 | 2.34 | 0.66 | 1.53 | 30.7 | 313.1 | 1.2 | 12.5 | |
| TAP31 | 20.5 | 13.5 | 0.10 | 351.9 | 0.28 | 0.64 | 0.18 | 3.7 | 37.3 | 0.1 | 1.5 | |
| TAP35 | 16.2 | 11.5 | 0.60 | 237.2 | 2.53 | 0.59 | 1.49 | 29.8 | 303.7 | 1.2 | 12.1 | |
| TAP36 | 19.7 | 15.0 | 0.65 | 375.3 | 1.73 | 0.65 | 1.13 | 22.6 | 230.5 | 0.9 | 9.2 | |
| TAP42 | 20.9 | 15.5 | 0.35 | 412.5 | 0.85 | 0.67 | 0.57 | 11.3 | 115.4 | 0.5 | 4.6 | |
| TAP48 | 20.3 | 12.0 | 0.15 | 309.8 | 0.48 | 0.63 | 0.30 | 6.1 | 61.7 | 0.2 | 2.5 | |
| TAR14 | 19.2 | 14.0 | 0.25 | 341.8 | 0.73 | 0.64 | 0.47 | 9.3 | 95.3 | 0.4 | 3.8 | |
| TAR50 | 18.5 | 11.0 | 0.15 | 258.4 | 0.58 | 0.60 | 0.35 | 7.0 | 71.0 | 0.3 | 2.8 | |
| Average | 19.5 | 12.8 | 0.37 | 318.6 | 1.14 | 0.63 | 0.72 | 14.3 | 146.3 | 0.6 | 5.9 | |
| St. Dev. | 1.5 | 2.6 | 0.28 | 73.8 | 0.84 | 0.03 | 0.52 | 10.5 | 106.8 | 0.4 | 4.3 | |
| TAP30 | “Sandstone” s.l. (from Punic temple) | 17.0 | 8.0 | 1.15 | 173.2 | 6.64 | 0.55 | 3.64 | 72.8 | 742.8 | 2.9 | 29.7 |
| TAP33 | 18.8 | 11.0 | 0.30 | 263.7 | 1.14 | 0.60 | 0.69 | 13.7 | 139.9 | 0.5 | 5.6 | |
| TAP37 | 17.3 | 12.5 | 1.15 | 275.3 | 4.18 | 0.61 | 2.54 | 50.8 | 518.5 | 2.0 | 20.7 | |
| TAP38 | 17.4 | 14.0 | 1.90 | 309.3 | 6.14 | 0.62 | 3.84 | 76.8 | 782.9 | 3.1 | 31.3 | |
| TAP39 | 15.0 | 12.0 | 1.15 | 229.2 | 5.02 | 0.58 | 2.93 | 58.6 | 597.8 | 2.3 | 23.9 | |
| TAP40 | 21.8 | 12.5 | 1.60 | 347.0 | 4.61 | 0.64 | 2.96 | 59.1 | 603.1 | 2.4 | 24.1 | |
| TAP41 | 19.5 | 12.0 | 0.60 | 297.6 | 2.02 | 0.62 | 1.25 | 25.0 | 254.7 | 1.0 | 10.2 | |
| Average | 18.1 | 11.7 | 1.12 | 270.7 | 4.25 | 0.60 | 2.55 | 51.0 | 520.0 | 2.0 | 20.8 | |
| St. Dev. | 2.2 | 1.9 | 0.55 | 56.8 | 2.03 | 0.03 | 1.18 | 23.6 | 240.3 | 0.9 | 9.6 | |
| TAR19 | Marly limestone | 17.0 | 11.0 | 0.95 | 238.5 | 3.98 | 0.59 | 2.35 | 47.0 | 478.9 | 1.9 | 19.2 |
| TASC7 | Metasiltstone | 19.1 | 15.0 | 1.50 | 365.3 | 4.11 | 0.65 | 2.66 | 53.3 | 543.3 | 2.1 | 21.7 |
Publisher’s Note: MDPI stays neutral with regard to jurisdictional claims in published maps and institutional affiliations. |
© 2021 by the authors. Licensee MDPI, Basel, Switzerland. This article is an open access article distributed under the terms and conditions of the Creative Commons Attribution (CC BY) license (https://creativecommons.org/licenses/by/4.0/).
Share and Cite
Columbu, S.; Gaviano, E.; Costamagna, L.G.; Fancello, D. Mineralogical-Petrographic and Physical-Mechanical Features of the Construction Stones in Punic and Roman Temples of Antas (SW Sardinia, Italy): Provenance of the Raw Materials and Conservation State. Minerals 2021, 11, 964. https://doi.org/10.3390/min11090964
Columbu S, Gaviano E, Costamagna LG, Fancello D. Mineralogical-Petrographic and Physical-Mechanical Features of the Construction Stones in Punic and Roman Temples of Antas (SW Sardinia, Italy): Provenance of the Raw Materials and Conservation State. Minerals. 2021; 11(9):964. https://doi.org/10.3390/min11090964
Chicago/Turabian StyleColumbu, Stefano, Emanuela Gaviano, Luca Giacomo Costamagna, and Dario Fancello. 2021. "Mineralogical-Petrographic and Physical-Mechanical Features of the Construction Stones in Punic and Roman Temples of Antas (SW Sardinia, Italy): Provenance of the Raw Materials and Conservation State" Minerals 11, no. 9: 964. https://doi.org/10.3390/min11090964
APA StyleColumbu, S., Gaviano, E., Costamagna, L. G., & Fancello, D. (2021). Mineralogical-Petrographic and Physical-Mechanical Features of the Construction Stones in Punic and Roman Temples of Antas (SW Sardinia, Italy): Provenance of the Raw Materials and Conservation State. Minerals, 11(9), 964. https://doi.org/10.3390/min11090964

