Influence of the Installation Position of Submersible Pumps on Deposition Characteristics in Prefabricated Pumping Stations
Abstract
1. Introduction
2. Research Model and Method
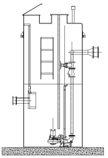
2.1. Research Model
2.2. Grid Generation
2.3. Calculation Method for the Internal Flow Field
2.4. Calculation Method for the Deposition Rate
2.5. Calculation Method for the Area Ratio of the Easy Deposition Region
- (1)
- Particles settling theory.
- (2)
- Image processing technology.
- (3)
- Area identification of easy deposition region.
2.6. Calculation Scheme
3. Results and Analysis
3.1. Influence of Suspension Height on Deposition Performance
3.2. Influence of Pump Interval on Deposition Performance
3.3. Influence of Center Distance on Deposition Performance
4. Conclusions
- With the increase in suspension height, flow field distribution is affected, the number of particles escaping from the pipeline is obviously different, and the total number of particles passing through also decreases, whereas the area ratio and deposition rate of the easy deposition region increase. The sewage discharge effect is best when the suspension height is 0.1H0, but at this time the inlet bias of the pump is larger. So, when determining the suspension height of submersible pumps, it is necessary to balance the discharge effect and the inlet state.
- With the increase in the interval of the pumps, the suction to the central region decreases, a large of particles escape from the pumps, and the number of absorbed particles gradually decreases, while the area ratio and deposition rate of the easy deposition region gradually increases.
- With the increase in center distance, the suction capacity of the pump is affected. The area ratio and deposition rate of the easy deposition region decreases first and then increases. The area ratio and deposition rate of the easy deposition region reach the minimum at 0.1R and 0R, respectively.
Author Contributions
Funding
Conflicts of Interest
References
- Peng, S.B.; Chen, Q.K.; Zheng, C.; Liu, E.B. Analysis of Particle Deposition in a New-type Rectifying Plate System During Shale Gas Extraction. Energy Sci. Eng. 2019, 8, 702–717. [Google Scholar] [CrossRef]
- Jassim, E.; Abdi, M.A.; Muzychka, Y. A New Approach to Investigate Hydrate Deposition in Gas-dominated Flowlines. J. Nat. Gas Sci. Eng. 2010, 2, 163–177. [Google Scholar] [CrossRef]
- Xu, Z.M.; Sun, A.D.; Han, Z.M.; Yu, X.Y.; Zhang, Y. Simulation of Particle Deposition in a Plate-fin Heat Exchanger Using a Particle Deposition Model with a Random Function Method. Powder Technol. 2019, 355, 145–156. [Google Scholar] [CrossRef]
- Manuel, G.P.; Esa, V.; Timo, H. The Contribution of Differently-sized Ash Particles to the Fouling Trends of a Pilot-scale Coal-fired Combustor with an Ash deposition CFD Model. Fuel 2017, 189, 120–130. [Google Scholar]
- Ling, B.C.; Ju, H.Y.; Ye, Z. Study on Numerical Simulation of Secondary Dust Deposition Phenomenon. Appl. Mech. Mater. 2013, 423, 2957–2962. [Google Scholar] [CrossRef]
- Heydarabadi, H.; Abdolzadeh, M.; Lari, K. Simulation of Airflow and Particle Deposition Settled over a Tilted Photovoltaic Module. Energy 2017, 139, 1016–1029. [Google Scholar] [CrossRef]
- Li, Q.; Kang, C.; Teng, S.; Li, M.Y. Optimization of Tank Bottom Shape for Improving the Anti-Deposition Performance of a Prefabricated Pumping Station. Water 2019, 11, 602. [Google Scholar] [CrossRef]
- Kang, C.; Li, Q.; Li, M.Y.; Teng, S. Deposition of solid particles exposed to the suction of dual pumps in the tank of a pumping station. Powder Technol. 2020, 361, 727–738. [Google Scholar] [CrossRef]
- Ding, Y.; Li, T.C.; Liu, X.Q.; Guo, Y.; Zhou, M.Z. Model test research on effect of flow accelerating-board in a pumping station. Mater. Sci. Eng. 2017, 242, 012048. [Google Scholar] [CrossRef]
- Mi, Z.H.; Zhou, D.Q.; Mao, Y.T. Three-dimensional CFD simulation of inlet structure flow in pumping station based on Eulerian solid- liquid two-phase flow model. J. Drain. Irrig. Mach. Eng. 2015, 33, 494–498. [Google Scholar]
- Wang, K.; Hu, J.B.; Liu, H.L.; Zhang, Z.X.; Zou, L.; Lu, Z.G. Research on the Deposition Characteristics of Integrated Prefabricated Pumping Station. Symmetry 2020, 12, 760. [Google Scholar] [CrossRef]
- Tong, Q.L. Theoretical Basis of Two-Phase Flow; Metallurgical Industry Press: Beijing, China, 1982. [Google Scholar]
- Govier, G.W.; Aziz, K. The Flow of Complex Mixtures in Pipes, 2nd ed.; Society of Petroleum Engineers: Richardson, TX, USA, 2008. [Google Scholar]














| Suspension Height H1 | 0.1H0 | 0.15H0 | 0.2H0 | 0.25H0 | 0.3H0 |
|---|---|---|---|---|---|
| Pumps interval S | 0.8R | 0.9R | 1R | 1.1R | 1.2R |
| Center distance L | −0.3R | −0.2R | −0.1R | 0R | 0.1R |
© 2020 by the authors. Licensee MDPI, Basel, Switzerland. This article is an open access article distributed under the terms and conditions of the Creative Commons Attribution (CC BY) license (http://creativecommons.org/licenses/by/4.0/).
Share and Cite
Wang, K.; Bao, H.; Liu, H.; Zhang, Z.; Hu, J. Influence of the Installation Position of Submersible Pumps on Deposition Characteristics in Prefabricated Pumping Stations. Symmetry 2020, 12, 1347. https://doi.org/10.3390/sym12081347
Wang K, Bao H, Liu H, Zhang Z, Hu J. Influence of the Installation Position of Submersible Pumps on Deposition Characteristics in Prefabricated Pumping Stations. Symmetry. 2020; 12(8):1347. https://doi.org/10.3390/sym12081347
Chicago/Turabian StyleWang, Kai, Haifeng Bao, Houlin Liu, Zixu Zhang, and Jianbin Hu. 2020. "Influence of the Installation Position of Submersible Pumps on Deposition Characteristics in Prefabricated Pumping Stations" Symmetry 12, no. 8: 1347. https://doi.org/10.3390/sym12081347
APA StyleWang, K., Bao, H., Liu, H., Zhang, Z., & Hu, J. (2020). Influence of the Installation Position of Submersible Pumps on Deposition Characteristics in Prefabricated Pumping Stations. Symmetry, 12(8), 1347. https://doi.org/10.3390/sym12081347

