Sign in to use this feature.

Years

Between: -

Subjects

remove_circle_outline
remove_circle_outline
remove_circle_outline
remove_circle_outline

Journals

Article Types

Countries / Regions

Search Results (1)

Search Parameters:
Keywords = area ratio of easy deposition region

Order results
Result details
Results per page
Select all
Export citation of selected articles as:
11 pages, 6430 KB  
Article
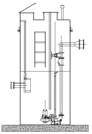
Influence of the Installation Position of Submersible Pumps on Deposition Characteristics in Prefabricated Pumping Stations
by Kai Wang, Haifeng Bao, Houlin Liu, Zixu Zhang and Jianbin Hu
Symmetry 2020, 12(8), 1347; https://doi.org/10.3390/sym12081347 - 12 Aug 2020
Cited by 2 | Viewed by 2626
Abstract
Based on the discrete phase model (DPM), solid–liquid two-phase flow calculation, particle settling theory and MATLAB image processing technology, the influence of the installation position of submersible pumps on the deposition characteristics in a cylinder-type prefabricated pumping station was studied, and two performance [...] Read more.
Based on the discrete phase model (DPM), solid–liquid two-phase flow calculation, particle settling theory and MATLAB image processing technology, the influence of the installation position of submersible pumps on the deposition characteristics in a cylinder-type prefabricated pumping station was studied, and two performance indices, the deposition rate and area ratio of the easy deposition region were proposed. The results show that the area ratio and deposition rate of the easy deposition region increase as the suspension height increases. The discharge effect is best when the suspension height is 0.1H0, however, at this time the inlet bias of the pump is larger, which is not conducive to the smooth operation of submersible pumps. The area ratio and deposition rate of the easy deposition region gradually increase with the increase in the interval of the pumps. As the center distance increases, the area ratio and deposition rate of the easy deposition region basically decreases first and then increases, and reach the minimum at 0.1R and 0R, respectively. Full article
Show Figures

Figure 1

Back to TopTop