The Impact of Traditional Raw Earth Dwellings’ Envelope Retrofitting on Energy Saving: A Case Study from Zhushan Village, in West of Hunan, China
Abstract
:1. Introduction
2. Methods
2.1. Location and Climate
2.2. Questionnaire
2.3. Analysis of Residential Characteristics
2.4. Winter Temperature and Humidity
2.5. Simulation work
2.5.1. Software
2.5.2. Modeling
2.6. Winter Heat Load Simulation
2.7. Building Energy-Saving Retrofit Methods
3. Result
3.1. Exterior Wall Renewal
3.2. Roof Renewal
3.3. Ceiling Renewal
3.4. External Window Renewal
3.5. Envelope Renewal
4. Disscussion
5. Conclusions
Author Contributions
Funding
Institutional Review Board Statement
Informed Consent Statement
Data Availability Statement
Acknowledgments
Conflicts of Interest
References
- Kim, J.; Tzempelikos, A.; Braun, J.E. Energy Savings Potential of Passive Chilled Beams vs Air Systems in Various US Climatic Zones with Different System Configurations. Energy Build. 2019, 186, 244–260. [Google Scholar] [CrossRef]
- Alhaj Hasan, O.; Defer, D.; Shahrour, I. A Simplified Building Thermal Model for the Optimization of Energy Consumption: Use of a Random Number Generator. Energy Build. 2014, 82, 322–329. [Google Scholar] [CrossRef]
- Aranda, J.; Zabalza, I.; Conserva, A.; Millán, G. Analysis of Energy Efficiency Measures and Retrofitting Solutions for Social Housing Buildings in Spain as a Way to Mitigate Energy Poverty. Sustainability 2017, 9, 1869. [Google Scholar] [CrossRef]
- Cao, W.; Yang, L.; Zhang, Q.; Chen, L.; Wu, W. Evaluation of Rural Dwellings’ Energy-Saving Retrofit with Adaptive Thermal Comfort Theory. Sustainability 2021, 13, 5350. [Google Scholar] [CrossRef]
- Juan, X.; Ziliang, L.; Weijun, G.; Mengsheng, Y.; Menglong, S. The Comparative Study on the Climate Adaptability Based on Indoor Physical Environment of Traditional Dwelling in Qinba Mountainous Areas, China. Energy Build. 2019, 197, 140–155. [Google Scholar] [CrossRef]
- Li, B.; Du, C.; Yao, R.; Yu, W.; Costanzo, V. Indoor Thermal Environments in Chinese Residential Buildings Responding to the Diversity of Climates. Appl. Therm. Eng. 2018, 129, 693–708. [Google Scholar] [CrossRef]
- Resende, J.; Corvacho, H. The NZEB Requirements for Residential Buildings: An Analysis of Thermal Comfort and Actual Energy Needs in Portuguese Climate. Sustainability 2021, 13, 8277. [Google Scholar] [CrossRef]
- Saif, J.; Wright, A.; Khattak, S.; Elfadli, K. Keeping Cool in the Desert: Using Wind Catchers for Improved Thermal Comfort and Indoor Air Quality at Half the Energy. Buildings 2021, 11, 100. [Google Scholar] [CrossRef]
- Xiong, Y.; Liu, J.; Kim, J. Understanding Differences in Thermal Comfort between Urban and Rural Residents in Hot Summer and Cold Winter Climate. Build. Environ. 2019, 165, 106393. [Google Scholar] [CrossRef]
- Almusaed, A.; Almssad, A.; Homod, R.Z.; Yitmen, I. Environmental Profile on Building Material Passports for Hot Climates. Sustainability 2020, 12, 3720. [Google Scholar] [CrossRef]
- Li, E.; Zhu, J. Parametric Analysis of the Mechanism of Creating Indoor Thermal Environment in Traditional Houses in Lhasa. Build. Environ. 2022, 207, 108510. [Google Scholar] [CrossRef]
- Wang, F.; Wang, S.; Cheng, B.; Wang, W. To Inhabit, Retain or Abandon? Adaptive Utilization of Energy-Efficient Sunken Buildings by Rural Households in Shanzhou, China. Energy Build. 2022, 255, 111668. [Google Scholar] [CrossRef]
- Rodrigues, L.; White, J.; Gillott, M.; Braham, E.; Ishaque, A. Theoretical and Experimental Thermal Performance Assessment of an Innovative External Wall Insulation System for Social Housing Retrofit. Energy Build. 2018, 162, 77–90. [Google Scholar] [CrossRef]
- Parthasarathy, P.; Narayanan, S.K. Effect of Hydrothermal Carbonization Reaction Parameters On. Environ. Prog. Sustain. Energy 2014, 33, 676–680. [Google Scholar] [CrossRef]
- Mardookhy, M.; Sawhney, R.; Ji, S.; Zhu, X.; Zhou, W. A Study of Energy Efficiency in Residential Buildings in Knoxville, Tennessee. J. Clean. Prod. 2014, 85, 241–249. [Google Scholar] [CrossRef]
- Ozel, M. Effect of Wall Orientation on the Optimum Insulation Thickness by Using a Dynamic Method. Appl. Energy 2011, 88, 2429–2435. [Google Scholar] [CrossRef]
- Yuan, J.; Farnham, C.; Emura, K.; Alam, M.A. Proposal for Optimum Combination of Reflectivity and Insulation Thickness of Building Exterior Walls for Annual Thermal Load in Japan. Build. Environ. 2016, 103, 228–237. [Google Scholar] [CrossRef]
- Kurekci, N.A. Determination of Optimum Insulation Thickness for Building Walls by Using Heating and Cooling Degree-Day Values of All Turkey’s Provincial Centers. Energy Build. 2016, 118, 197–213. [Google Scholar] [CrossRef]
- Lippiatt, N.; Ling, T.C.; Pan, S.Y. Towards Carbon-Neutral Construction Materials: Carbonation of Cement-Based Materials and the Future Perspective. J. Build. Eng. 2020, 28, 101062. [Google Scholar] [CrossRef]
- Pereira-Ruchansky, L.; Pérez-Fargallo, A. Integrated Analysis of Energy Saving and Thermal Comfort of Retrofits in Social Housing under Climate Change Influence in Uruguay. Sustainability 2020, 12, 4636. [Google Scholar] [CrossRef]
- Yecong, H.; Qi, D.; Xiaofeng, Z.; Huaican, L. Simulation of Thermal and Humid Environment of Rural Residence Envelope Inner Surface during the Plum Rains Season in Changsha China. Energy Built Environ. 2021, 108, 86–104. [Google Scholar] [CrossRef]
- Heinonen, J.; Junnila, S. Residential Energy Consumption Patterns and the Overall Housing Energy Requirements of Urban and Rural Households in Finland. Energy Build. 2014, 76, 295–303. [Google Scholar] [CrossRef]
- Liu, J.; Wang, L.; Yoshino, Y.; Liu, Y. The Thermal Mechanism of Warm in Winter and Cool in Summer in China Traditional Vernacular Dwellings. Build. Environ. 2011, 46, 1709–1715. [Google Scholar] [CrossRef]
- Li, Q.; You, R.; Chen, C.; Yang, X. A Field Investigation and Comparative Study of Indoor Environmental Quality in Heritage Chinese Rural Buildings with Thick Rammed Earth Wall. Energy Build. 2013, 62, 286–293. [Google Scholar] [CrossRef]
- Sun, H.; Leng, M. Analysis on Building Energy Performance of Tibetan Traditional Dwelling in Cold Rural Area of Gannan. Energy Build. 2015, 96, 251–260. [Google Scholar] [CrossRef]
- Manzano-Agugliaro, F.; Montoya, F.G.; Sabio-Ortega, A.; García-Cruz, A. Review of Bioclimatic Architecture Strategies for Achieving Thermal Comfort. Renew. Sustain. Energy Rev. 2015, 49, 736–755. [Google Scholar] [CrossRef]
- Khalili, M.; Amindeldar, S. Traditional Solutions in Low Energy Buildings of Hot-Arid Regions of Iran. Sustain. Cities Soc. 2014, 13, 171–181. [Google Scholar] [CrossRef]
- Zhu, X.; Liu, J.; Yang, L.; Hu, R. Energy Performance of a New Yaodong Dwelling, in the Loess Plateau of China. Energy Build. 2014, 70, 159–166. [Google Scholar] [CrossRef]
- Association, C.B.E.C. China Building Energy Consumption Annual Report 2020. Build. Energy Effic. 2021, 49, 1–6. [Google Scholar]
- Timur, B.A.; Başaran, T.; İpekoğlu, B. Thermal Retrofitting for Sustainable Use of Traditional Dwellings in Mediterranean Climate of Southwestern Anatolia. Energy Build. 2022, 256, 111712. [Google Scholar] [CrossRef]
- Zhang, T.; Hu, Q.; Ding, Q.; Zhou, D.; Gao, W.; Fukuda, H. Towards a Rural Revitalization Strategy for the Courtyard Layout of Vernacular Dwellings Based on Regional Adaptability and Outdoor Thermal Performance in the Gully Regions of the Loess Plateau, China. Sustainability 2021, 13, 13074. [Google Scholar] [CrossRef]
- Wang, H.F.; Chiou, S.C. Spatial Form Analysis and Sustainable Development Research of Traditional Residential Buildings. Sustainability 2020, 12, 637. [Google Scholar] [CrossRef]
- Becker, F.G.; Cleary, M.; Team, R.M.; Holtermann, H.; The, D.; Agenda, N.; Science, P.; Sk, S.K.; Hinnebusch, R.; Hinnebusch, A.R.; et al. Design Standard for Energy Efficiency of Residential Buildings in Hot Summer and Cold Winter Zone. Syria Stud. 2015, 7, 37–72. [Google Scholar]
- Huang, J.; Sun, W.; Zhang, Z.; Ling, Z.; Fang, X. Thermal Protection of Electronic Devices Based on Thermochemical Energy Storage. Appl. Therm. Eng. 2021, 186, 116507. [Google Scholar] [CrossRef]
- Mileto, C.; Vegas, F.; Llatas, C.; Soust-Verdaguer, B. A Sustainable Approach for the Refurbishment Process of Vernacular Heritage: The Sesga House Case Study (Valencia, Spain). Sustainability 2021, 13, 9800. [Google Scholar] [CrossRef]
- Manu, S.; Brager, G.; Rawal, R.; Geronazzo, A.; Kumar, D. Performance Evaluation of Climate Responsive Buildings in India-Case Studies from Cooling Dominated Climate Zones. Build. Environ. 2019, 148, 136–156. [Google Scholar] [CrossRef]
- Li-qiang, H.O.U.; Liu, Y.; Xin-yin, X.U.; Jia-ping, L.I.U. Envelope Opt Imizat Ion OfKangdingTradit Ional Res Ident Ial Building. Archit. Eng. 2016, 15, 86–105. [Google Scholar] [CrossRef]
- Chen, S.; Dewancker, B.J.; Yang, S.; Mao, J.; Chen, J. Study on the Roof Solar Heating Storage System of Traditional Residences in Southern Shaanxi, China. Int. J. Environ. Res. Public Health 2021, 18, 12600. [Google Scholar] [CrossRef]
- Wang, Z.; Zhao, J. Optimization of Passive Envelop Energy Efficient Measures for Office Buildings in Different Climate Regions of China Based on Modified Sensitivity Analysis. Sustainability 2018, 10, 907. [Google Scholar] [CrossRef]
- Far, C.; Far, H. Improving Energy Efficiency of Existing Residential Buildings Using Effective Thermal Retrofit of Building Envelope. Indoor Built Environ. 2019, 28, 744–760. [Google Scholar] [CrossRef]
- Xu, J.; Yang, W.; Lu, Z.; Wu, Y.; Hou, C.; Liu, D. Quality Analysis on Indoor Thermal Comfort and Energy-Saving Improvement Strategy of Slate Dwellings, China. Buildings 2022, 12, 468. [Google Scholar] [CrossRef]
- GB/T 51366-2019; Standard for Building Carbon Emission Calculation. The Standardization Administration of the People’s Republic of China: Beijin, China, 2019.














| Month | Mean Maximum Temperature | Mean Minimum Temperature | Record Temperature | Record Low Temperature |
|---|---|---|---|---|
| January | 9 °C | 3 °C | 23 °C | −6 °C |
| February | 11 °C | 4 °C | 30 °C | −3 °C |
| March | 16 °C | 8 °C | 36 °C | 2 °C |
| Type of Indoor Environment | Questions | Remarks | Scale/Options |
|---|---|---|---|
| Thermal | A: Are you satisfied with the indoor thermal condition in winter? | +1: satisfied; +0: improving; −1: dissatisfied | ![]() |
| B: What is your thermal sensation in winter? | +1: warm; 0: neutral; −1: cool; −2: cold;−3: very cold | ![]() | |
| C: Do you feel comfortable with the indoor thermal condition in winter? | 0: comfortable; 1: slightly uncomfortable; 2: uncomfortable; 3: very uncomfortable; 4: limited tolerance | ![]() | |
| D: What is your expectation for indoor thermal condition in winter? | – | A: cooler; B: warmer; C: maintain |
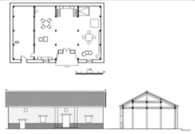
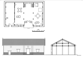
| Plan Type | Photos | Vertical and Sectional View |
|---|---|---|
| “I-shaped” dwelling | ![]() | ![]() |
| “L-shaped” dwelling | ![]() | ![]() |
| “U-shaped” dwelling | ![]() | ![]() |
| Plan Type | Measurement Point | Measured Data |
|---|---|---|
| “I-shaped” dwelling | ![]() | ![]() |
| “L-shaped” dwelling | ![]() | ![]() |
| “U-shaped” dwelling | ![]() | ![]() |
| Villager Self-built houses | ![]() | ![]() |
| Type of Building Envelop | Material Thermal Index | Thickness (mm) Density (kg/m³) | Specific Heat KJ/(kg.K) | Heat Conductivity W (m.k) | |
|---|---|---|---|---|---|
| External Wall (Outside-to-In) | 300 mm clay brick | 610 | 1820 | 1060 | 0.81 |
| Partition wall | 10 mm wooden board | 30 | 510 | 2520 | 0.17 |
| Roof (Outside-to-In) | 6 mm gray tile roofs 2 mm wooden board | 6 3.9 | 2045 515 | 1055 2512 | 0.96 0.18 |
| External Window | Single-glass window | K = 4.71 (W/m2) | - | - | - |
| External Door | 10 mm wooden door | 40 | 500 | 2515 | 0.175 |
| Inner Door | 10 mm wooden door | 22 | 520 | 2520 | 0.175 |
| Floor | 5 mm rammed earth | 35 | 1795.5 | 882 | 0.71 |
| “I-Shaped” Heat Balance (kW·h) | “L-Shaped” Heat Balance (kW·h) | ||||||
|---|---|---|---|---|---|---|---|
| Energy Outputs | Total | Energy Outputs | Total | ||||
| Envelope | Wall | 567.49 (18.9%) | 2461.41 | Envelope | Wall | 646.73 (17.7%) | 2885.37 |
| Ceilings | 686.27 (22.8%) | Ceilings | 565.86 (15.5%) | ||||
| Roofs | 652.46 (21.7%) | Roofs | 848.82 (23.3%) | ||||
| Glazing | 13.36 (0.04%) | Glazing | 62.24 (1.7%) | ||||
| External air | 541.83 (22%) | External air | 761.72 (26%) | ||||
| External Wall (Outside-to-In) | Material Thermal Index | |||
|---|---|---|---|---|
| Thickness (mm) | Density (kg/m³) | Specific Heat KJ/(kg·K) | Heat Conductivity W(m·k) | |
| Earth wall | 600 | 1800 | 1050 | 0.81 |
| Polyurethane | 10–80 mm | 30 | 1300 | 0.03 |
| Woodern board | 5 | 500 | 2510 | 0.17 |
| External Wall (Outside-to-In) | Material Thermal Index | |||
|---|---|---|---|---|
| Thickness (mm) | Density (kg/m³) | Specific Heat KJ/(kg·K) | Heat Conductivity W(m·k) | |
| Earth wall | 600 | 1800 | 1050 | 0.81 |
| Polyurethane | 10–60 mm | 30 | 1300 | 0.03 |
| Woodern board | 5 | 500 | 2510 | 0.17 |
| Ceiling (Top-to-Bottom) | Material Thermal Index | ||||
|---|---|---|---|---|---|
| Thickness (mm) | Density (kg/m³) | Specific Heat KJ/(kg·K) | Heat Conductivity W(m·k) | ||
| Wooden Floor | 10 mm wooden board | 10 | 500 | 2510 | 0.17 |
| Fiber Cotton Rock | 10 mm | 10–60 mm | 120 | 980 | 0.04 |
| Plaster board | 5 mm | 5 | 500 | 2510 | 0.17 |
| Wood veneer | 5 mm | 10 | 500 | 2510 | 0.17 |
| Type of the Window | ΔExternal Air (kW·h) | Glazing (kW·h) |
|---|---|---|
| 6 mm single layer glass | 228.6437 | 1.21 |
| 5 + 6 A + 5 mm double insulating glass | 228.4937 | 9.43 |
| Low-e6 + 12 A + 6 mm double insulating glass | 228.4037 | 13.96 |
| Low-e6 + 12 A+6 + 12 A + 6 mm double insulating glass | 228.4637 | 10.89 |
| 6 + 12 A + 6 mm three-layer insulating glass | 228.3937 | 13.98 |
| 6 + 12 A + 6 + 12 A + 6 mm three-layer insulating glass | 228.3737 | 15.63 |
| Type of the Window | Material Thermal Index | |
|---|---|---|
| Uw (W/m2 K) | C (¥/m2) | |
| 6 mm single layer glass | 5.746 | 24.79 |
| 5 + 6 A + 5mm double insulating glass | 3.125 | 41.265 |
| Low-e6 + 12 A + 6 mm double insulating glass | 1.761 | 75.529 |
| Lowe6 + 12 A + 6 + 12 A + 6 mm double insulating glass | 2.665 | 61.402 |
| 6 + 12 A + 6 mm three-layer insulating glass | 1.754 | 77.574 |
| 6 + 12 A + 6 + 12 A + 6 mm three-layer insulating glass | 1.307 | 92.320 |
| “I-Shaped” Heat Balance (kW·h) | “L-Shape” Heat Balance (kW·h) | ||||||
|---|---|---|---|---|---|---|---|
| Envelope Energy Outputs | Total | Envelope Energy Outputs | Total | ||||
| Envelope | Wall | 192.95 (24.2%) | 795.7 | Envelope | Wall | 220.81 (18.4%) | 1197.7 |
| Ceilings | 161.62 (20.3%) | Ceilings | 194.03 (16.2%) | ||||
| Roofs | 99.02 (12.4%) | Roofs | 456.03 (38.1%) | ||||
| Glazing | 4.23 (0.5%) | Glazing | 6.17 (0.5%) | ||||
| External air | 333.89 (42%) | External air | 285.71 (23.9%) | ||||
Publisher’s Note: MDPI stays neutral with regard to jurisdictional claims in published maps and institutional affiliations. |
© 2022 by the authors. Licensee MDPI, Basel, Switzerland. This article is an open access article distributed under the terms and conditions of the Creative Commons Attribution (CC BY) license (https://creativecommons.org/licenses/by/4.0/).
Share and Cite
Xie, L.; Li, Z.; Li, J.; Yang, G.; Jiang, J.; Liu, Z.; Tong, S. The Impact of Traditional Raw Earth Dwellings’ Envelope Retrofitting on Energy Saving: A Case Study from Zhushan Village, in West of Hunan, China. Atmosphere 2022, 13, 1537. https://doi.org/10.3390/atmos13101537
Xie L, Li Z, Li J, Yang G, Jiang J, Liu Z, Tong S. The Impact of Traditional Raw Earth Dwellings’ Envelope Retrofitting on Energy Saving: A Case Study from Zhushan Village, in West of Hunan, China. Atmosphere. 2022; 13(10):1537. https://doi.org/10.3390/atmos13101537
Chicago/Turabian StyleXie, Liang, Zhe Li, Jiayu Li, Guanglei Yang, Jishui Jiang, Zhezheng Liu, and Shuyuan Tong. 2022. "The Impact of Traditional Raw Earth Dwellings’ Envelope Retrofitting on Energy Saving: A Case Study from Zhushan Village, in West of Hunan, China" Atmosphere 13, no. 10: 1537. https://doi.org/10.3390/atmos13101537
APA StyleXie, L., Li, Z., Li, J., Yang, G., Jiang, J., Liu, Z., & Tong, S. (2022). The Impact of Traditional Raw Earth Dwellings’ Envelope Retrofitting on Energy Saving: A Case Study from Zhushan Village, in West of Hunan, China. Atmosphere, 13(10), 1537. https://doi.org/10.3390/atmos13101537


















