Implementation of Risk-Based Approaches in Urban Land Use Planning—The Example of the City of Erftstadt, Germany
Abstract
:1. Introduction
1.1. Role of Land Use Planning in Disaster Risk Management
- Mitigate the effects of a hazard (e.g., by creating retention ponds, redirecting flows or protective forests);
- Lower the exposure of vulnerable land uses, such as human settlements (e.g., by keeping hazard prone areas free of further development or relocating existing settlements to safer areas);
1.2. Land Use Planning in Disaster Risk Management Policies and Practice
- Collaborative approach across sectors: involvement of experts from different research communities such as natural hazards, socio-economic, policy-oriented (land use planning has the task to take care of a sound analysis for planning decisions and for involving relevant actors);
- Vulnerability data: considering socio-economic data (especially elements that need to be protected) to assess risk and diversify management options (land use planners are, in most cases, aware of vulnerable settlement or infrastructures and vulnerable social groups);
- Multi-hazard risk assessment: consideration, overlaying and integration of relevant hazards and risks within a territory (a spatial—and not only sectoral—perspective is intrinsic for land use planning);
- Consideration of critical infrastructures: their interruption can amplify risks within the system and across territorial borders due to cascading effects (planning can define and identify what must be considered “critical” in a regional or even a local context);
- Scenarios of future development: scenarios help to think of possible future situations, even in settings of uncertainty; however, at the same time, they consider future changes (due to demography, economic structural change or climate change) as well as potential extreme events (unlikely events, failures of protection measures, etc.);
- Primary integration of risk assessment and management into spatial planning processes: hazard zone can be used as a basis for planning decisions, as hazards and risks that are already integrated in spatial plans call for a more effective disaster risk management than a secondary integration of sectoral hazard and risk maps.
1.3. New German Federal Law Requires Recommendations for Its Applicability at the Local Level
1.4. Research Questions
- (a)
- How can a (flood) risk-based land use plan be guided by hazard zones?
- (b)
- What are the options for flood risk mitigation by land use planning that consider the hazard as well as the vulnerability dimension of risk?
- (c)
- Can a hazard zone approach be implemented within the given legal framework for land use planning in Germany?
2. Materials and Methods
2.1. Analytical Basis: Hazard Zone Plan
2.2. Environmental Report with Integrated Hazard Zone Plan as Evidence Base for Risk-Based Planning
- The potential of the project to cause serious accidents/disasters. This explicitly refers to the risks to human health, cultural heritage and the environment [43].
- The susceptibility (vulnerability) of the projects permitted under the binding land use plan to possible major accidents/disasters.
2.3. Flood-Adapted Land Use Plan
- Flood retention will be unimpaired or insignificantly impaired and the loss of lost retention space will be extensively, functionally and temporally compensated.
- Water levels and runoff during floods will not be adversely altered.
- Existing flood protection will not be affected.
- The structural facilities are designed to be flood-adapted.
2.3.1. Designations for the Reduction of the Hazard Intensity
2.3.2. Designations for the Avoidance of Damage Potentials
2.3.3. Designations to Strengthen the Response Capacity in Case of an Incident
2.4. Gaming Simulation
- Preparation;
- Introduction and distribution of roles;
- Simulation and negotiation phase (the gaming simulation as such);
- Evaluation and wrap up;
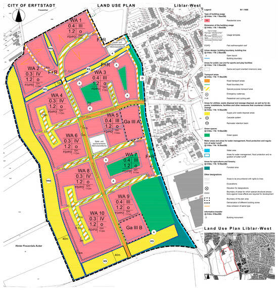
2.4.1. Design of the Liblar-West Gaming Simulation
2.4.2. (Methodological) Reflection of the Liblar-West Simulation
3. Results
4. Discussion
5. Conclusions
Author Contributions
Funding
Informed Consent Statement
Data Availability Statement
Acknowledgments
Conflicts of Interest
References
- Stein, L.A. Comparative Urban Land Use Planning. Best Practice; Sydney University Press: Sydney, Australia, 2017. [Google Scholar]
- Reimer, M.; Getimis, P.; Blotevogel, H.H. Spatial Planning Systems and Practices in Europe. A Comparative Perspective on Continuity and Changes; Routledge Taylor & Francis Group: London, UK; New York, NY, USA, 2014. [Google Scholar]
- Burby, R.J. Cooperating with Nature—Confronting Natural Hazards with Land-Use Planning for Sustainable Communities; Joseph Henry Press: Washington, DC, USA, 1998. [Google Scholar]
- Godschalk, D.R.; Beatley, T.; Berke, P.; Brower, D.J. Natural Hazard Mitigation—Recasting Disaster Policy and Planning; Island Press: Washington, DC, USA, 1999. [Google Scholar]
- Greiving, S.; Fleischhauer, M.; Wanczura, S. European Management of Natural Hazards: The Role of Spatial Planning in selected Member States. J. Environ. Plan. Manag. 2006, 49, 739–757. [Google Scholar] [CrossRef]
- World Bank. Land Use Planning for Urban Flood Risk Management; Urban Floods Community of Practice Knowledge Notes; World Bank: Washington, DC, USA, 2017; Available online: http://hdl.handle.net/10986/26654 (accessed on 10 September 2023).
- Struik, L.C.; Pearce, L.D.; Dercole, F.; Shoubridge, J.; van Zijll de Jong, S.; Allan, J.D.; Hastings, N.L.; Clague, J.J. Risk-Based Land-Use Guide: Safe Use of Land Based on Hazard Risk Assessment. Geological Survey of Canada. Open File 7722. Ottawa 2015. Available online: https://www.unisdr.org/preventionweb/files/53964_gscof7772riskbasedlanduseguidevol1.pdf (accessed on 10 September 2023).
- Der Sarkissian, R.; Al Sayah, M.J.; Abdallah, C.; Zaninetti, J.M.; Nedjai, R. Land Use Planning to Reduce Flood Risk: Opportunities, Challenges and Uncertainties in Developing Countries. Sensors 2022, 22, 6957. [Google Scholar] [CrossRef] [PubMed]
- The Australian Institute for Disaster Resilience. Planning Safer Communities—Land Use Planning for Natural Hazards; Australian Institute for Disaster Resilience: Melbourne, Australia, 2002; Available online: https://knowledge.aidr.org.au/media/1958/manual-7-planning-safer-communities.pdf (accessed on 10 September 2023).
- King, D.; Gurtner, Y.; Firdaus, A.; Harwood, S.; Cottrell, A. Land use planning for disaster risk reduction and climate change adaptation: Operationalizing policy and legislation at local levels. Int. J. Disaster Resil. Built Environ. 2016, 7, 158–172. [Google Scholar] [CrossRef]
- Word Meteorological Organization. The Role of Land Use Planning in Flood Management; Integrated Flood Management Tools Series No. 7 Version 2.0. Word Meteorological Organization: Geneva, Switzerland, 2016; Available online: https://www.floodmanagement.info/publications/tools/APFM_Tool_07.pdf (accessed on 10 September 2023).
- Schmidt-Thomé, P.; Greiving, S. Zoning. In Bobrowsky, P.T. Encyclopedia of Natural Hazards; Encyclopedia of Earth Sciences Series; Springer: Dordrecht, The Netherlands, 2013. [Google Scholar] [CrossRef]
- Haimes, Y.Y. Risk Modeling, Assessment, and Management, 3rd ed.; John Wiley & Sons: Totnes, UK, 2009; 1009p. [Google Scholar]
- Directive 2007/60/EC of the European Parliament and of the Council of 23 October 2007 on the Assessment and Management of Flood Risks. Available online: https://www.google.com.hk/url?sa=t&rct=j&q=&esrc=s&source=web&cd=&cad=rja&uact=8&ved=2ahUKEwiAtoGi9I6CAxVsqVYBHVrGDcgQFnoECAgQAw&url=https%3A%2F%2Fwww.legislation.gov.uk%2Feudr%2F2007%2F60&usg=AOvVaw00Hri3la1FDnCHxkL2FQAX&opi=89978449 (accessed on 10 September 2023).
- Fell, R.; Whitt, G.; Miner, A.; Flentje, P.N. Guidelines for landslide susceptibility, hazard and risk zoning for land use planning. Aust. Geomech. J. 2007, 42, 13–36. [Google Scholar]
- Saunders, W.S.A.; Kilvington, M. Innovative land use planning for natural hazard risk reduction: A consequence-driven approach from New Zealand. Int. J. Disaster Risk Reduct. 2016, 18, 244–255. [Google Scholar] [CrossRef]
- van Westen, C.; Greiving, S. Risk Assessment and Decision Making. In Environmental Hazards Methodologies for Risk Assessment and Management; Dalezios, N.R., Ed.; IWA Publishing: London, UK, 2017; pp. 31–94. [Google Scholar]
- Kimura, Y.; Hirabayashi, Y.; Kita, Y.; Zhou, X.; Yamazaki, D. Methodology for constructing a flood-hazard map for a future climate. Hydrol. Earth Syst. Sci. 2023, 27, 1627–1644. [Google Scholar] [CrossRef]
- UN-ISDR. Sendai Framework for Disaster Risk Reduction 2015–2030; UN-ISDR: Geneva, Switzerland, 2015; Available online: https://www.preventionweb.net/files/43291_sendaiframeworkfordrren.pdf (accessed on 10 September 2023).
- UN-Habitat. The New Urban Agenda. Available online: https://unhabitat.org/sites/default/files/2020/12/nua_handbook_14dec2020_2.pdf (accessed on 10 September 2023).
- Poljanšek, K.; Marin-Ferrer, M.; De Groeve, T.; Clark, I. Science for Disaster Risk Management 2017: Knowing Better and Losing Less; EUR 28034 EN; Publications Office of the European Union: Luxembourg, 2017. [Google Scholar] [CrossRef]
- ECA—European Court of Auditors. Floods Directive: Progress in Assessing Risks, While Planning and Implementation Need to Improve; Special Report No. 25 (Pursuant to Article 287(4), Second Subparagraph, TFEU); Publications Office of the European Union: Brussels, Belgium, 2018. [Google Scholar]
- Poljanšek, K.; Casajus-Valles, A.; Marin-Ferrer, M.; De Jager, A.; Dottori, F.; Galbusera, L.; Garcia-Puerta, B.; Giannopoulos, G.; Girgin, S.; Hernandez-Ceballos, M.; et al. Recommendations for National Risk Assessment for Disaster Risk Management in EU; EUR 29557; Publications Office of the European Union: Luxembourg, 2019. [Google Scholar] [CrossRef]
- Cantergiani, C.; Feliu, E. ESPON-TITAN—Territorial Impacts of Natural Disasters; Final Report; Applied Research; ESPON EGTC: Luxembourg, 2021; ISBN 978-2-919816-06-4. [Google Scholar]
- BMI—Bundesministerium des Inneren und für Heimat. Ordinance on Spatial Planning in the Federal Government for Cross-State Flood Protection (BRPHV). Federal Law Gazette, 25 August 2021; Part I No. 57. [Google Scholar]
- The European Parliament and the Council of The European Union. DIRECTIVE (EU) 2022/2557 of the European Parliament and of the Council of 14 December 2022 on the Resilience of Critical Entities and Repealing Council Directive 2008/114/EC. Off. J. Eur. Union 2022, L333, 164. [Google Scholar]
- BBSR. Handbuch zur Ausgestaltung der Hochwasservorsorge in der Raumordnung. Available online: https://www.bbsr.bund.de/BBSR/DE/Veroeffentlichungen/ministerien/MOROPraxis/2017/moro-praxis-10-17-dl.pdf?__blob=publicationFile&v=2 (accessed on 10 September 2023).
- BBSR. Testlauf Bundesraumordnungsplan. Hochwasserschutz (Phase 2). Available online: https://www.bbsr.bund.de/BBSR/DE/forschung/programme/moro/studien/2018/testlauf-brop-hochwasserschutz/dl-brph-p2-testplan.pdf?__blob=publicationFile&v=1 (accessed on 10 September 2023).
- The Federal Government. German Strategy for Strengthening Resilience to Disasters; Implementing the Sendai Framework for Disaster Risk Reduction (2015–2030)—Germany’s Contribution 2022–2030; The Federal Government: Berlin, Germany, 2022. Available online: https://www.bbk.bund.de/SharedDocs/Downloads/DE/Mediathek/Publikationen/Sendai-Katrima/deutsche-strategie-resilienz-kurz-eng_download.pdf?__blob=publicationFile&v=4 (accessed on 10 September 2023).
- Meier, R.L.; Duke, R.D. Gaming simulation for urban planning. J. Am. Inst. Plan. 1966, 32, 3–17. [Google Scholar] [CrossRef]
- BMBF-Project KAHR for Rhineland-Palatinate and North Rhine-Westphalia: Climate Adaptation, Flooding and Resilience. Available online: https://hochwasser-kahr.de/index.php/en/ (accessed on 10 September 2023).
- Maranzoni, A.; D’Oria, M.; Rizzo, C. Quantitative flood hazard assessment methods: A review. J. Flood Risk Manag. 2022, 16, e12855. [Google Scholar] [CrossRef]
- HRW—HR Wallingford. R&D Outputs: Flood Risks to People, Phase 2, 11545th ed.; FD2321/TR1 The Flood Risks to People Methodology; HRW: Wallingford, UK, 2006. [Google Scholar]
- The European Parliament and the Council of The European Union. Directive 2014/52/EU of the European Parliament and of the Council of 16 April 2014 amending Directive 2011/92/EU on the assessment of the effects of certain public and private projects on the environment. Off. J. Eur. Union 2014, L124, 1. [Google Scholar]
- European Parliament, Council of the European Union. Directive 2001/42/EC of the European Parliament and of the Council of 27 June 2001 on the assessment of the effects of certain plans and programmes on the environment. Off. J. Eur. Union 2001, L197, 30. [Google Scholar]
- EC (European Commission). Directorate-General for Environment. Guidance on Integrating Climate Change and Biodiversity into Environmental Impact Assessment; European Commission: Brussel, Belgium, 2013. [Google Scholar] [CrossRef]
- BMUV (Federal Ministry for the Environment, Nature Conservation, Nuclear Safety and Consumer Protection). Environmental Assessments EIA/SEA; BMUV: Berlin, Germany, 2023. Available online: https://www.bmuv.de/en/topics/education-participation/overview-citizen-participation/environmental-assessments-eia/sea (accessed on 10 October 2023).
- Glasson, J.; Therivel, R. Introduction to Environmental Impact Assessment, 5th ed.; Routledge: New York, NY, USA, 2019; ISBN 1138600741. [Google Scholar]
- McCallum, S.; Dworak, T.; Prutsch, A.; Kent, N.; Mysiak, J.; Bosello, F.; Klostermann, J.; Dlugolecki, A.; Williams, E.; König, M.; et al. Support to the Development of the EU Strategy for Adaptation to Climate Change: Background Report to the Impact Assessment, Part I—Problem Definition, Policy Context and Assessment of Policy Options; Environment Agency Austria: Vienna, Austria, 2013.
- Battis, U.; Moench, C.; Uechtritz, M.; Mattes, C.; von der Groeben, C. Expert Opinion on the Implementation of the EIA Amendment Directive in the Building Code on Behalf of BBSR. Bonn 2015. Available online: http://www.bmub.bund.de/fileadmin/Daten_BMU/Download_PDF/Staedtebaurecht/baugb_gutachten_uvp_aendrl_bf.pdf (accessed on 29 February 2016).
- Deutscher Bundestag. Entwurf Eines Gesetzes zur Umsetzung der Richtlinie 2014/52/EU im Städtebaurecht und zur Stärkung des neuen Zusammenlebens in der Stadt; Draft Bill of the Federal Government, 18th Legislative Period; Printed Matter 18/10942; Deutscher Bundestag: Berlin, Germany, 2017.
- Hartlik, J. Requirements for the EIA Report Under Consideration of Methodological and Content-Related Practicability—Part 1. EIA Rep. 2020, 34, 3–14. [Google Scholar] [CrossRef]
- EC (European Commission). Environmental Impact Assessment of Projects. Guidance on the Preparation of the Environmental Impact Assessment Report (Directive 2011/92/EU as Amended by 2014/52/EU); Publications Office of the European Union: Luxembourg, 2017; ISBN 978-92-7974374-0. [Google Scholar]
- IEMA (Institute of Environmental Management & Assessment). Major Accidents and Disasters in EIA: A Primer; ARUP: Lincoln, UK, 2020. [Google Scholar]
- Prenger-Berninghoff, K. Integrating risk assessment and risk management into the environmental assessment of urban land use plans. UVP-Rep. 2017, 31, 192–201. [Google Scholar] [CrossRef]
- Cologne District Government. Flood Hazards and Risk Maps Sub-Catchment Erft. Map Sheet 21/33. 2019. Available online: https://www.flussgebiete.nrw.de/system/files/atoms/files/274_erft_system_a02_gk_nw_b021.pdf (accessed on 10 September 2023).
- Kriz, W. Planspiel. In Handbuch Methoden der Organisationsforschung, 1st ed.; Kühl, S., Ed.; Verlag für Sozialwissenschaften: Wiesbaden, Germany, 2009; pp. 558–578. [Google Scholar] [CrossRef]
- Kriz, W.; Hense, J.U. Theory-oriented evaluation for the design of and research in gaming and simulation. Simul. Gaming 2006, 37, 268–283. [Google Scholar] [CrossRef]
- Katina, P.F.; Hester, P.T. Systemic determination of infrastructure criticality. Int. J. Comput. Inf. Syst. 2013, 9, 211–225. [Google Scholar] [CrossRef]
- Pescaroli, G.; Alexander, D. A definition of cascading disasters and cascading effects: Going beyond the “toppling dominos” metaphor. PlanetRisk 2015, 2, 58–67. [Google Scholar]
- Fekete, A. Common criteria for the assessment of critical infrastructures. Int. J. Disaster Risk Sci. 2011, 2, 15–24. [Google Scholar] [CrossRef]
- Lukitsch, K.; Müller, M.; Stahlhut, C. Criticality. In Key Concepts for Critical Infrastructure Research; Engels, J.I., Ed.; Springer: Wiesbaden, Germany, 2018; pp. 11–20. ISBN 978-3-658-22920-7. [Google Scholar]
- Aerts, J. A Review of Cost Estimates for Flood Adaptation. Water 2018, 10, 1646. [Google Scholar] [CrossRef]
- de Ruig, L.T.; Haera, T.; de Moela, H.; Wouter Botzena, W.; Aerts, J. A micro-scale cost-benefit analysis of building-level flood risk adaptation measures in Los Angeles. Water Resour. Econ. 2020, 32, 100147. [Google Scholar] [CrossRef]
- Ventimiglia, U.; Candela, A.; Aronica, G.T. A Cost Efficiency Analysis of Flood Proofing Measures for Hydraulic Risk Mitigation in an Urbanized Riverine Area. Water 2020, 12, 2395. [Google Scholar] [CrossRef]
- Neuvel, J.M.M.; Van den Brink, A. The consideration of emergency management issues in spatial planning practices. Environ. Plan. C Gov. Policy 2009, 28, 37–53. [Google Scholar] [CrossRef]
- Meyer, V.; Kuhlicke, C.; Luther, J.; Fuchs, S.; Priest, S.; Dorner, W.; Serrhini, K.; Pardoe, J.; McCarthy, S.; Seidel, J. Recommendations for the user-specific enhancement of flood maps. Nat. Hazards Earth Syst. Sci. 2012, 12, 1701–1716. [Google Scholar] [CrossRef]
- Ministerium für Heimat, Kommunales, Bau und Gleichstellung. Richtlinie über die Gewährung von Billigkeitsleistungen des Landes Nordrhein-Westfalen zur Beseitigung von Schäden an öffentlicher und privater Infrastruktur sowie zum Wiederaufbau anlässlich der Starkregen- und Hochwasserkatastrophe im Juli 2021 (Förderrichtlinie Wiederaufbau Nordrhein-Westfalen). Ministerialblatt (MBl. NRW.), 7 June 2022; pp. 409–472. [Google Scholar]
- Greiving, S.; Juan, D.; Puntub, W. Managed retreat—International and comparative perspectives. J. Extrem. Events 2018, 5, 1850011. [Google Scholar] [CrossRef]
- Lauer, H.; Delos Reyes, M.; Birkmann, J. Managed Retreat as Adaptation Option: Investigating Different Resettlement Approaches and Their Impacts—Lessons from Metro Manila. Sustainability 2021, 13, 829. [Google Scholar] [CrossRef]
- Valcik, N.A.; Jordam, T.A.; Benavides, T.J.; Stigdon, A.D. City Planning for the Public Manager; Routledge: New York, NY, USA, 2017. [Google Scholar]
- Solinska-Nowak, A.; Magnuszewski, P.; Curl, M.; French, A.; Keating, A.; Mochizuki, J.; Liu, W.; Mechler, R.; Kulakowska, M.; Jarzabek, L. An overview of serious games for disaster risk management—Prospects and limitations for informing actions to arrest increasing risk. Int. J. Disaster Risk Reduct. 2018, 31, 1013–1029. [Google Scholar] [CrossRef]
- Birkmann, J.; Schüttrumpf, H.; Handmer, J.; Thieken, A.; Kuhlicke, C.; Truedinger, A.; Sauter, H.; Klopries, E.-M.; Greiving, S.; Jamshed, A.; et al. Strengthening resilience in reconstruction after extreme events—Insights from flood affected communities in Germany. Int. J. Disaster Risk Reduct. 2023, 96, 103965. [Google Scholar] [CrossRef]
- Freudenberg, R.; Calvin, E.; Tolkoff, L.; Brawley, D. Buy-In for Buyouts: The Case for Managed Retreat from Flood Zones; Lincoln Institute of Land Policy: Cambridge, MA, USA, 2016. [Google Scholar]





| Types of Infrastructures | Examples | Legal Basis | Justification |
|---|---|---|---|
| Infrastructures that cause major accident hazards if hit by an extreme event | Establishments where dangerous substances are present | SEVESO III Directive (2012/18/EU) on the control of major accident hazards | Avoidance of secondary effects due to the contamination of groundwater, soil, air human assets and human beings |
| Sensible infrastructures | Hospitals, schools, homes for the elderly | Art. 1 of the Law on Fire Protection, Assistance and Civil Protection (BHKG NRW) | Avoidance of injuries/fatalities to groups of people who need assistance in the event of an incident |
| Built heritage | UNESCO world heritage; other historic monuments | Hague Convention for the Protection of Cultural Property (1972) and World Heritage Convention (1972) | Symbolic criticality: Destruction can emotionally shake a society and unbalance it |
| Critical infrastructures | Utility networks (gas, water, electricity, telecommunications) and transport networks | CER Directive on the resilience of critical entities (2022/2557/EC) | Avoidance of service disruptions that cause domino and cascade effects |
| (HR) | Level | Zone | Description |
|---|---|---|---|
| 0 < HR < 0.75 | Low | 1 | Floodplain with shallow, standing or slow-moving water. |
| 0.75 ≤ HR < 1.25 | Moderate | 2 | Floodplain with shallow to moderately deep or moderately flowing water. |
| 1.25 ≤ HR < 2.5 | High | 3 | Floodplain with deep or moderately flowing water. |
| HR ≥ 2.5 | Extreme | 4 | Flooded area with very deep and/or fast-flowing water. |
| Hazard Zone | Permissible Land Use Classes |
|---|---|
| 1 | All types of buildings may be permitted. Special protection is required for the following types of buildings: a. In which there are groups of people who would have to be evacuated in the event of an incident (hospitals, homes for the elderly, kindergartens); b. That are critical infrastructures which are sensitive to the effects of flooding; c. Dangerous facilities from which domino effects emerge in the event of a flood (e.g., the release of environmentally hazardous substances). They should be constructed in such a way that the first-floor level remains free of damage by setting appropriate minimum elevation heights above ground level. |
| 2 | All types of buildings may be permitted. Special protection is required for the following types of buildings: a. In which there are groups of people who would have to be evacuated in the event of an incident (hospitals, homes for the elderly, kindergartens); b. That are critical infrastructures which are sensitive to the effects of flooding; c. Facilities from which domino effects emerge in the event of a flood (e.g., the release of environmentally hazardous substances). They should be constructed in such a way that the first-floor level remains free of damage by setting appropriate minimum elevation heights above ground level. Basements should generally be excluded. |
| 3 | The permissibility of the construction or expansion of land uses in categories a–c requiring special protection should normally be excluded, unless they can be structurally designed in such a way that the following aspects can be avoided: a. Risks to life and limbs; b. Loss of function in the case of critical infrastructures; c. Domino effects. When permitting other building uses, appropriate minimum heights above ground level should be specified and basements should be excluded. |
| 4 | The permissibility of the construction, reconstruction or expansion of uses in categories a–c requiring special protection should normally be excluded unless there are a. No alternative locations for the use of category (a) throughout the municipality; b. No alternative locations or routing in the service area of the category (b) facilities. When other building uses are permitted, the use of first floors in buildings for residential purposes shall normally be excluded. Exceptions may be made if there are no alternative sites suitable for residential uses within the township that are not subject to flooding or are less subject to flooding. In such cases, vertical evacuation shall be provided. |
Disclaimer/Publisher’s Note: The statements, opinions and data contained in all publications are solely those of the individual author(s) and contributor(s) and not of MDPI and/or the editor(s). MDPI and/or the editor(s) disclaim responsibility for any injury to people or property resulting from any ideas, methods, instructions or products referred to in the content. |
© 2023 by the authors. Licensee MDPI, Basel, Switzerland. This article is an open access article distributed under the terms and conditions of the Creative Commons Attribution (CC BY) license (https://creativecommons.org/licenses/by/4.0/).
Share and Cite
Greiving, S.; Kruse, P.; Othmer, F.; Fleischhauer, M.; Fuchs, M. Implementation of Risk-Based Approaches in Urban Land Use Planning—The Example of the City of Erftstadt, Germany. Sustainability 2023, 15, 15340. https://doi.org/10.3390/su152115340
Greiving S, Kruse P, Othmer F, Fleischhauer M, Fuchs M. Implementation of Risk-Based Approaches in Urban Land Use Planning—The Example of the City of Erftstadt, Germany. Sustainability. 2023; 15(21):15340. https://doi.org/10.3390/su152115340
Chicago/Turabian StyleGreiving, Stefan, Philip Kruse, Felix Othmer, Mark Fleischhauer, and Marisa Fuchs. 2023. "Implementation of Risk-Based Approaches in Urban Land Use Planning—The Example of the City of Erftstadt, Germany" Sustainability 15, no. 21: 15340. https://doi.org/10.3390/su152115340
APA StyleGreiving, S., Kruse, P., Othmer, F., Fleischhauer, M., & Fuchs, M. (2023). Implementation of Risk-Based Approaches in Urban Land Use Planning—The Example of the City of Erftstadt, Germany. Sustainability, 15(21), 15340. https://doi.org/10.3390/su152115340

