Abstract
Cyprus was affected by different civilizations throughout history. After the 1974 war on the island, both parts of the island were affected by social, economic, cultural, environmental, and political factors. It is known that, in 1960, the construction of buildings containing the criteria of the modern architectural period in the northern and southern parts of the island of Cyprus continued increasingly. Although the architectural approaches that emerged with the modern period have different trends, the basis of all of them is based on the criteria of modern architecture. The main purpose of this research is to examine the architectural criteria of Efruz Houses (Müdüroğlu Houses) built in the modern period in the Nicosia Kumsal region in the context of sustainability parameters and modern architectural approach. In the study, these houses will be examined in terms of social, cultural, environmental, and economic which are parameters of sustainability. In the methodological approach, theoretical, analytical, and practical approaches were followed. In the theoretical approach stage, modern architecture, modern architectural approaches, and sustainability issues are discussed. At the analytical approach stage, the current analysis of the modern period residences in the Kumsal/Nicosia region, which was determined as the subject of the study, was made. In the practical approach phase, data revealing the physical and environmental conditions of the selected buildings were collected. The collected data were evaluated over the modern period residences in the Kumsal region in the context of modern architectural approaches and sustainability parameters. In the findings section, which is the last stage of the study, modern period houses that change function and do not change function are evaluated in the context of modern architectural approaches and sustainability parameters, taking into account the criteria of modern architecture. The research and findings clearly observed that the ideal principles and approaches of the modern period are associated with the sustainability parameters that emerged in the modern period. In the study, the necessity of applying modern period approaches in sustainable designs emerges. In this context, modern architectural criteria should be integrated into today’s sustainable designs and applied in practice. It is targeted to contribute to the existing literature by revealing the importance and values of houses, sustainability parameters, and modern period approaches and criteria.
1. Introduction
Modernism is described as a universal movement that shaped twentieth-century art and had an impact on Western literature, architecture, theater, music, and visual arts in the second part of the nineteenth century [1].
The 20th century has been a century of radical changes in social, economic, architectural, and artistic branches. This period, which is called the modern period, is known as a period in which new ideas and expansions were introduced and architectural designs began to be simplified. Modern architecture was created more than a century ago in an effort to discover solutions to the new problems brought on by the industrial revolution, which fundamentally altered how society viewed the world [2].
Depending on these problems, new approaches emerged under the title of modern architecture. These approaches are encountered in many applications in different world countries in the field of architecture. Approaches such as Functionalism, Futurism, Expressionism, De-Stijl, Bauhaus, Cubism, Purism, Constructivism, International Style, Organic Architecture, and Brutalism, brought a new perspective to the architectural designs of the period. Since modern architecture has many approaches, it includes different criteria. Designs in which criteria such as plain, simple lines, wide wall openings, modern and traditional building materials, open floor plans, and functional forms are applied together come to the fore in the modern period. These criteria at the same time also include Le Corbusier’s five principles to determine modern architecture.
The spread of modern architecture was worldwide and did not stop at certain geographic countries; Cyprus was certainly no exception [3]. In this study, it will be investigated how modern architectural criteria are applied in Efruz row houses designed in the Kumsal region of Northern Cyprus in the modern period and which of the modern period approaches have influence will also be investigated. How the pioneering Cypriot architects of the period reflected the modern architectural criteria to the island architectural approach, in line with their own education, will be examined through Efruz residences built in the Nicosia region. This review will be tried to be revealed in the context of the sustainability of modern architectural criteria, which are determined by the architectural approaches of the modern period. Sustainability, which emerged in the years when the modern period became widespread and gained ground, has replaced modernism within the framework of socio-economic, cultural, environmental, technological, and urban development. Sustainability, which is closely related to the field of architecture, adopts nature-friendly design approaches, preserving the existing building approach while being able to use the newly built building for a long time and adopting and reflecting all this directly into the design. In this context, designs that adopt and implement the parameters of sustainability will have effective use in terms of social, cultural, economic, and environmental aspects for a long time.
Efruz row houses, which were built during the period of modern architecture between 1963–1974 in Northern Nicosia on the island of Cyprus, were built considering the lifestyles of the users and social and environmental problems. These rowhouses are built with two-story reinforced concrete construction techniques and have five different plan forms. The plan organization of the houses is formed by the combination of simple, geometric forms. It is seen that the examined Efruz Houses (Müdüroğlu Houses) have adopted the modern period’s approaches of cubism, functionalism, and de-stijl in their plan and facade designs. In this regard, the modern architectural criteria of Efruz row houses built in the Kumsal region of Nicosia during the modern period will be examined and analyzed in the context of sustainability parameters and architectural approaches.
The Research Objectives
This research aims to examine the current conditions of the selected residences within the scope of the study, in line with the original identities of the modern period, by considering the architectural criteria. Another aim of this study is to reveal the social, cultural, environmental, and economic conditions of the residences in the selected region within the framework of sustainability parameters. This study does not claim to change the current definitions of modern architecture and sustainability. It emphasizes the relationship between modern architecture criteria and approaches and sustainability. There is a lot of common ground between modernism and sustainability. In this context, we hope to develop a more holistic perspective by adopting the approaches of the modern period and accepting that there is a continuity between the desire to be modern and the understanding of being sustainable. For this reason, modern period criteria and sustainability parameters should be examined together in order to present the current analysis of the selected houses. In line with this, the objective of this research is to identify the row houses that have the criteria of the modern period, whether they change function or not, and evaluate them with the criteria of the modern period and sustainability parameters.
2. Literature Review
2.1. Modern Architecture
The term “modern” is distinct from prior ages and comes from the Latin word “modo”, which means “today”. The term “modern” has been used in many contexts to distinguish between modern and traditional ways, and it is quite useful in all aspects of daily life [4]. “Modernity” is referring to their cultural, societal, and intellectual state that aids in repairing the distinctive from Western society. In contrast to earlier epochs, the concept of modernity is most often employed to describe the state of the world. It is frequently used to replace concepts such as industrialization, capitalism, rationality, secularism, communication and media society, and other ideological or organizational traits [5]. The term “modernism” defines a number of cultural movements which have roots in the transformations of Western society during the final years of the nineteenth century and the beginning of the twentieth century. The phrase designates a group of movements that took place at this time in the fields of applied arts, music, literature, architecture, and more [4]. Modernism, which is accepted synonymously with modern architecture and functionalism, is essentially a style of architecture that uses the plain form and rejects ornamentation in buildings. It resulted that more simple and quick constructions would arise in response to shifting needs and a quickly expanding population [6].
Modern architecture may be defined as an approach that evolved in contrast to the eclecticist style following the Industrial Revolution, affected architecture together with other areas of art, and met the same primary idea despite the variations in their forms. Various viewpoints have been presented regarding the emergence of modern architecture. Some historians claim that it happened in London around the 1850s, while others assert that it happened at the turn of the twentieth century [7]. Modern architecture, which emerged as a response to the style of the 19th century, has given many distinct meanings to the built environment by showcasing elements such as glass surfaces, open layouts, and functionality. The shift in architectural thought out of historicism and toward transparency set the stage for the emergence of modern architecture. Pioneers of early modernism included Mies van der Rohe, Le Corbusier, Peter Behrens, Walter Gropius, Adolf Loos, Auguste Perret, and Frank Lloyd Wright [8].
The modern period brought, social, cultural, economic, and technological changes, and different discourses emerged. Depending on these discourses, different architectural approaches, which basically advocate the same idea, have started to show themselves.
These approaches were classified as, Early Modernism (1900–1925), Functionalism (1900-Today), Futurism (1910–1925), Expressionism (1910–1925), De Stijl (1910–1925), Bauhaus (1919), Modernism and Art Deco (1911–1940), Cubism (1920–1930), Purism (1920–1930), Constructivism (1920–1930), International Style (1920), Organic Architecture (1920–1935), International Style in America (1931), Brutalism (1952–1975), Late Modernism (1945–1970), High Tech Architecture (1945–Today), Postmodernism (1960–Today), Deconstructivism (1980–Today) [9,10]. Architectural timelines in the modern period are given in Table 1 in chronological order.
Table 1.
Architectural Timeline in Modern Period 1900–1980 (edited by authors).
The initial generation of modernists made contributions to the development of a theoretical framework for their philosophy in order to advance knowledge of architecture and inspire upcoming designers to follow the avant-garde movement. They portrayed the characteristics and elements of modern architecture in their work. A shared notion of the function of modern architecture was created by the functions of Luis Sullivan (form follows function), simplicity and economy by Ludwig Mies van der Roch (less is more), and the transparency, formality, and abstractions of Le Corbusier [3].
A new generation of building techniques, conceptions, meanings, and technologies began with The Crystal Palace, which was built in 1851 and is acknowledged as the precursor of Modern architecture [3]. See Figure 1.
Figure 1.
Crystal Palace, 1851 [11].
The modern architect values functionality in design, clarity in plan, and simplicity in form. Modern architectural products are typically devoid of ornamentation and any unnecessary elements [3]. In his article “Ornament and Crime” from 1908, Adolf Loos suggested that decoration should be given up in architecture. Loos claims that the decorations on the buildings were designed for selfish and childish entertainment. He states that ornamentation no longer fulfills its cultural purpose in some countries as a result of mass production [12]. Instead of any decorations or other features that are unrelated to the general design, the space itself will be the main focus [3]. Additionally, there is a focus on the materials’ honesty; nothing is hidden, and the real qualities of the materials, particularly concrete, are revealed in their forms. Beams and other structures are typically seen by the users, revealing the inside workings of the building. In addition, the architect creates an open plan that is influenced by linear geometry by using linear elements that are rectangular forms and striking horizontal and vertical characteristics, particularly the windows, stairs, rooflines, and different structural elements [3].
In 1926, Le Corbusier and Pierre Jeanneret outlined five ideas for the modern period of architecture. The first thing is the support, which he refers to as “pilotis”. As a result, the bulk is divided from a floor by columns and the walls stop serving as bearers. The roof gardens are the second. To preserve the natural surroundings and promote structural harmony, gardens are situated on the flat. The third option is to freely design the floor plan. The absence of carriers in the walls allows for free plan design. The fourth component is the ribbon windows, which are horizontal windows that run horizontally along the exterior walls and let light into the rooms. The free facade’s design is the fifth item [13,14].
One of the best examples is the Fallingwater House by Frank Lloyd Wright, the renowned Villa Savoye by Le Corbusier, and the Barcelona Pavilion by Mies van der Rohe. See Table 2. The innovative design makes no allusion to earlier architectural styles; it was a revolutionary step forward by the late 1920s. The wide area surrounding the building and the open-concept interior are conducive to the ideas of communal life and communication. The form clearly reflects the intended purposes of the residential structure and lacks any superfluous ornamentation [15].
Table 2.
The buildings design approach between 1920–1940 according to the free plan (edited by authors).
Due to the assistance of multiple art schools, actions, and organizations such as constructivism, De Stijl, Bauhaus, and the CIAM, modern architecture has grown stronger and more widely accepted in the twentieth century. The avant-garde has taken it upon itself to adopt and spread modern architectural ideas and create new architectural visual appeal that glorifies technologies and materials. An amazing example of how a modern product should look is the Bauhaus building in Dessau [3,16]. See Figure 2. It is usually accurate to say that, “The Modern Movement was formed, aesthetically and pedagogically, whenever the Bauhaus passed to its new structure and syllabus in Dessau in 1926” because the Bauhaus had a huge impact on the physical structure of the Modern Movement [2,17].
Figure 2.
Bauhaus building, 1919–1933 [18].
In the following years, the use of steel and glass increased, and the liberation of spaces continued. The Glass House built by Philip Johnson in the state of Connecticut in 1949 and the Berlin National Art Gallery designed by Mies van der Rohe in Berlin in 1965 are designs that show that spaces are liberated with the disappearance of the walls that define the boundaries of the space. See Table 3.
Table 3.
Philip Johnson, Glass House; and Mies van der Rohe, Berlin National Art Gallery Design between 1945–1965 (edited by authors).
Using technological developments and the increase in material diversity, new construction techniques have shown themselves in buildings. In modern architecture, which is based on functionality, historicism was rejected. The developments experienced after the industrial period were architectural.
2.2. Modern Architectural Approach
Although many different ideas, views, and concepts emerged with the modern architectural period, these approaches basically adopted the same idea. These approaches formed the basis of modern architecture and gave direction to designs. Within the scope of this study, the approaches of the modern period, Functionalism, De Stijl, and Cubism, were examined. These approaches come to the fore in Efruz row houses (Müdüroğlu Houses) designed in the modern period.
2.2.1. Functionalism
The original meaning of the word “functions” has several different definitions depending on where it comes from, performance, occupation, role, duty, task, usage, purpose, behavior, operation, or activity. In the framework of architecture, function refers to the actualization of a notion and the determination of the structural interfaces between objects, which results in the assignment of a physical or informational function to the form’s constituent parts [19]. A design’s aesthetic (beauty) cannot be reduced to a design’s size, shape, and proportions; rather, it also includes the practical significance of the function served by the element or piece of architecture in question. [19,20]. If a building best serves the purpose for which it was intended to be used, then that structure is a result of that function. The character of a structure that arises from its function or from the reason it was conceived or built is the most pertinent type in architecture [19].
Functional inadequacies include the way that areas are arranged in a building as well as shortcomings in their comfort, color, and shape. Given how significant the circumstance is, the architect must consider functionality as they build. Additionally, it is architecture’s fundamental purpose to maintain a structure’s integrity while balancing form and function [21].
There are various views on the relationship between function and form. The adage, “the form follows the function” by L. Sullivan, had a unique resonance with functionalism ideas in the early Modern era [12].
According to the architect Le Corbusier, the form of architecture is caused by the mind and reflects the best aspects of art, mathematical principles, and a proportionately balanced representation of the total [22], therefore, Corbusier’s concept of form which is form is form that is more significant than function which is why form is a description of art, of mathematical concepts, and also of proportions that are harmonized with the entire [23]. The Villa La Roche structure, built in 1923 by Le Corbusier, generally known as the purist architect, is considered to reflect functionality in a balanced way, as shown in Table 4. The ground level is freed with the openings in the structure of The Villa La Roche, which was built on the pilotis. This construction technique provides the user with the opportunity to roam the ground code of the building, and at the same time creates a semi-enclosed space. The interior and exterior integrity and horizontal window openings and wide glass surfaces, which are the distinctive features of the modern period, are evident in the design.
Table 4.
Le Corbusier, Villa La Roche (edited by authors).
The prominence of functionalism in architecture played an important role in the development of modernism. The concept of the form used in the language of architecture is aimed to explain the external appearance of the buildings and the concept of function and spaces. Starting from the definition of form and function, the relationship between form and function reflects the meaning of the expression of architectural form.
2.2.2. Cubism
Cubism is widely regarded as the most innovative, and influential art style of the 20th century [24]. Since Giotto found linear perspective around the early fourteenth century, cubism represents the greatest fundamental change in visual language [25,26]. Point of view was now positioned subjectively within the frame rather than objectively outside of it. The observer was forced to change from his former privileged perspective of objective omniscience to that of ambiguous and fluctuating contingency set inside concurrent possibilities as a result of several points of view. The artist’s job was to penetrate into reality by choosing and synthesizing the components that were recalled, seen, and projected, broken into incomplete pieces, and then put back together again [27].
The Cubists, according to Apollinaire, preferred “designed actuality” over “the truth that the vision”. As fluid as its use of space, Cubism was a project that changed over time. The farther it veered from early works such as Picasso’s Demoiselles d’Avignon (1907), the more abstraction and universality it attained [25,26]. Picasso took things a step further by highlighting the intricate network of interactions between spaces and volumes as well as the shaky bond between solidity, and transparency, turning their ambiguities to become contradictions and destroying any pretense of spatial coherence [28,29]. Cezanne’s depiction of a pipe, Picasso’s depiction of a nose, Leger’s wheel, and Gris’s forms of the bottle are all similar to what Le Corbusier attempts to find in a cube. Le Corbusier attempted to move this novel concept from the realm of art to that of architecture in this situation [30].
According to Le Corbusier, geometry can be used to find solutions to issues in modern architecture. He claims that since light is what the human eye sees, shadows and shines indicate shapes. Additionally, he adopted the cubist painter Cezanne’s creative philosophy by claiming that the sharpest shapes made visible by light are cubes, cones, cylinders, and pyramids [30]. Frank Lloyd Wright also was affected by cubism, and his first true masterpiece, the Robie House, built outside of Chicago between 1908 and 1910, is the best example of this revolutionary use of architectural space [31,32]. In this building, the concept of cubism is not only limited to the rectangles that make up the house but also manifests itself by reflecting the integrity of the interior and exterior. Therefore, the main criterion in the design of the housing is to ensure the creation of an integrated design concept. See Table 5.
Table 5.
Frank Lloyd Wright’s Robie House in 1907–1909 (edited by authors).
2.2.3. De-Stijl
De Stijl was greatly affected by Cubism and its abstracting techniques in its early stages of development [33]. De Stijl, a significant modernist movement at the beginning of the twentieth century, was distinct from previous movements in that it existed for only 14 years and had a complete organizational structure and had no definite organizational themes. However, it had a significant influence on later modern creative design, architectural design, interior design, etc. It was regarded as one of the foundations of “Classic Modernism” [34].
The movement began as a magazine that sought to increase public access to art. The magazine, which mainly featured the works of architects, visual artists, and other creatives, promoted the unification of the arts. The artists believed it was essential to purify diverse disciplines (sculpture, painting, architecture, etc.) by knowing them at their most basic levels, allowing them to combine these arts, effectively combining them in a well-balanced relationship [33]. De Stijl opposed decoration of any kind and favored a more coherent application of modern materials and technologies based on rationality [35].
The “New Architecture” method called for by De Stijl aims to organize architectural design according to some standards. The new architecture should stress space units as pieces propelled outward from the central point of the cube by centrifugal force, transforming the traditional box into architectural products constituted of masses in various positions, heights, and sizes. De Stijl’s approach is a design strategy that achieves dynamic, unique, and complete abstraction. The new architecture suggested architectural forms which had been monumental and asymmetrical, economical, and free of stylistic imitation and binding. These proposals shaped modern architecture’s general forms [13,14,15,16,17,18,19,20,21,22,23,24,25,26,27,28,29,30,31,32,33,34,35,36].
De Stijl is primarily characterized by a pure universality achieved through its reduction of components to their most basic forms and colors, especially through the use of both vertical and horizontal lines combined with black, white, and primary colors [37].
After 1931, De Stijl continued to have a significant impact on architecture; Mies van der Rohe had been one of the movement’s most significant proponents. The Rietveld Schröder House, that one structure entirely constructed in accordance with De Stijl ideals, was erected by Rietveld between 1923 and 1924 [38]. The Schröder House clearly distinguishes itself from earlier architectural forms when viewed in terms of how interior and external relate. This house includes plastic building factors of modern architecture, including time and space, color, function, light, surface, mass, and material. The Schröder House has an open system thanks to the removal of load-bearing walls and the internal-external separation, and it also offers elements that are both economical and practical. He supports that color is a direct and organic manner of transmitting relationships in space and time not a tool for decoration [39]. The house, which was designed for the cube’s fragmentation fiction, is supported by both the vertical and horizontal harmony of the colors, geometric forms, and materials [40]. See Table 6.
Table 6.
Gerrit Rietveld’s Schröder House (edited by authors).
In this context, it can be said that De Stijl is another of the most important cornerstones of Modern Architecture. The Schröder House, which is the symbol of De Stijl, is clearly seen to contain all the principles of the movement in its design. In the modern period, this approach has been effective, although it did not produce many works in the field of architecture. The principles and design criteria of this approach are still adopted and applied by designers today.
2.3. Sustainability
Hans Carl von Carlowitz, a German scientist and forester, used the word sustainability for the first time in a book titled Sylvicultura oeconomica in 1713 [41]. The terms “sustainability” and “sustainable” mean being able to build and maintain environments where people and nature may coexist in a way that satisfies the economic, social, and other needs of both the present and future generations [42,43]. Sustainability is a manner of being where social, environmental, and economic elements are optimized while taking indirect and long-term effects into account [44].
The Brundtland Commission, formerly known as the World Commission on Environment and Development (WCED), first introduced the idea of sustainable development in 1987 as part of the document titled “Our Common Future”. According to the paper, sustainable development is defined as, “development that satisfies present needs while preserving the capacity of the next generation to satiate their own needs” [45,46]. Urbanization, industrialization, population growth, depletion of natural resources, rise in environmental pollution, global warming, and the idea of sustainable development, which was created as a remedy for issues such as species extinction. According to the Brundtland report, it is demanding that in order to “meet the needs of current, and the requirements of future generations”, abandoning the capacity to meet their own needs is how it is defined as “development that meets without giving” [45]. Apart from that, The United Nations released the Rio Declaration in 1992. This declaration proclamation suggests balancing the three aspects of sustainability environmental, social, and economic, and defining trade-offs and priorities [47,48].
Sustainability is a concept that is debated in both the architecture and science disciplines today. Sustainable architecture takes into consideration a number of factors, including minimizing environmental harm, protecting biological diversity, utilizing clean, renewable resources, utilizing locally produced recyclable materials, preserving and revitalizing historic sites, and taking into account the economic and cultural concerns of each society [49]. Utilizing regional and local resources, sustainable architecture is designed and built with an eye toward the environment [49].
2.3.1. Social Sustainability
Environmental, economic, cultural, and social sustainability are the four main pillars of sustainability. Social sustainability is often a debated idea and open, such as the general concept that is sustainable development [50]. The social pillar of sustainability, which was given more attention after the year 2000, is the one that has received the least amount of research among the social, economic, and environmental pillars [51,52].
Social sustainability is neither absolute nor constant, as claimed by Nicola Dempsey et al. (2011). It must be thought of as a dynamic idea that will alter as time passes in a location [53]. According to Eizenberg and Jabareen, the goal of social sustainability is to promote the adaption of equal and just economic, social, and environmental policies in order to protect people against danger, regardless of race, ethnic origin, culture, or socioeconomic situation [54,55].
Many who use the term “social sustainability” reference the definition of sustainable development given in the Brundtland Report, Our Common Future: “Development that meets the needs of the present without compromising the ability of future generations to meet their own needs” [56].
Experts constantly emphasize the need to define the recently recognized idea of social sustainability and are naturally interested in understanding social sustainability’s exact definition [57].
2.3.2. Cultural Sustainability
Cultural sustainability stated that the most complex of the two or three challenging terms is culture. Due to the fact that culture has grown to be a crucial term in many different, frequently contradictory, systems of thought and intellectual disciplines [58,59]. As the idea of cultural sustainability took shape, researchers’ attention turned to finding and examining the useful resources and strategies that may be utilized to protect, manage, and model culture in a way that achieves the broad goals of sustainable development [60]. The Johannesburg Earth Summit in 2002 identified culture as the fourth aspect of sustainable development, and the World Summit of Local and Regional Leaders in 2010 also emphasized this. Despite this, cultural considerations have historically been underemphasized in sustainable development objectives [61,62].
2.3.3. Environmental Sustainability
The phrase “environmental” is virtually typically used in connection with how people interact with ecosystems. In order to increase certainty, it seems appropriate to view “environmental” as a component of the more general concept of “ecological”, that is, the meeting point of human endeavors and ecological processes [63]. Once people can create and preserve it without harming the surrounding environment or natural resources, humanistic acts will aid in the continuity of the ecological environment. A sustainable environment is one that leaves the world in a better or more efficient state than it is now in order to benefit future generations. To not harm the environment or contribute to energy consumption, recycled materials should be entirely recyclable or renewable; in the end, utilized energy should be completely renewable and should not contribute to pollution [49]. Therefore, environmental sustainability might be explained more precisely as a state of equilibrium, adaptability, and interconnectedness that permits human society to meet its needs without going over the capacity of the ecosystems that support it to continue regenerating the services required to do so [63].
2.3.4. Economic Sustainability
Economics is the method by which people produce social and environmental consequences, economic sustainability refers to the way in which economic systems foster sustainable environmental and social results. The sustainability of the economy, one of the sustainability pillars, is essential to sustaining human, environmental, and social resources required for income and living standards [64]. The sustainability that “economic sustainability” aims toward is the sustainability of the system of the economy itself. The concept of economic sustainability was first used by Hicks [65]. Bernardi et al. (2017) stated that economic sustainability addresses the actual economic effect that exists on its economic environment [66,67].
3. Methodology
This study comprises four stages. In the first stage of the method, the literature search was investigated for modern architecture, architectural approaches that emerged as a result of the modern architectural period, and the concept of sustainability. Within the scope of the research, books, academic studies, theses, projects, and papers related to the subject were surveyed.
The Kumsal region, which has the highest economic, cultural, social, and environmental density in the city of Nicosia and has the distinctive features of the modern period, was chosen as the main scope of the study. Efruz row houses (Müdüroğlu Houses) built during the modern period in the Kumsal region were examined. The analysis of these structures was performed by evaluating modern architectural criteria within the sustainability parameters, and architectural approach contexts.
The analytical approach was obtained through building analyses of selected districts to determine the current situation in the second stage. The current status of the selected buildings in the analysis phase, the observation of the houses that change their functions and those that do not, have been examined by the modern period approach and criteria based on the sustainability parameters.
In the third stage, the practical approach was implemented. At this stage, the data obtained from the analysis of the plans, materials, facade designs, and environmental compatibility of the selected buildings were interpreted depending on the modern architectural criteria and approaches, together with the concept of sustainability. In addition, within the scope of the concept of sustainability, its social, cultural, economic, and environmental characteristics were evaluated.
In the last stage, observations were evaluated in the findings section of the study in order to determine the relationship between modern architectural criteria and approaches and sustainability. The conceptual framework of the study is presented in Figure 3.
Figure 3.
The schema describes the conceptual framework of this study.
4. The Case Study of Kumsal, North Nicosia
Cyprus has been affected by different civilizations over the course of its history. Due to its advantageous geographical position, the island has been able to successfully integrate Eastern and Western civilizations into its legacy. Its architectural style also reflects its rich cultural heritage and historical past. Today, a variety of architectural styles from many periods have been seen. The Republic of Cyprus was established in 1960 after the British government came to power. The island has since 1974 followed a bi-regional settlement policy [68]. See Figure 4.
Figure 4.
Map of Cyprus with the United Nations Buffer Zone [69].
Nicosia has been the capital of the island of Cyprus for many years. It is the last divided city of Europe, which is also the largest city on the island of Cyprus and known as Lefkosia in Greek and Nicosia in Turkish. See Figure 5. The medieval Nicosia walls that encircle the city’s historic center are split in two, mirroring the geographical division of the island. Since it is a city with remnants of the histories and cultures of numerous civilizations, it has been the focus of numerous studies [70]. Nicosia began to expand quickly in the final years of British colonial rule (1878–1960), particularly in the decades following World War II. Residential settlements were established outside of the walled city throughout time [69].
Figure 5.
Map of Nicosia [71].
Modern architecture has started to manifest itself in the buildings built in the 1960s on the island of Cyprus. The conventional approach to constructing dwellings was completely abandoned. Structures made of reinforced concrete have replaced them. Houses in the countryside have been converted mostly into villas. Buildings for offices and residences were mostly built in urban places [72]. Following their study in England and Turkey, Cypriot architects at the time began to establish their own architectural firms in Nicosia. It has been stated that because of the taut atmosphere within the two communities during those years, particularly in 1957–58–59, they attempted to practice under challenging circumstances or maintained their profession at state institutions [73]. Most residences built between 1960 and 1970 were one or two stories. As reinforced concrete use in construction increased, indigenous materials and traditional methods began to lose preference. Apartment-style housing became more commonplace after the 1970s. The housing units were built by independent professionals [68]. Due to the widespread use of modern building materials such as aluminum, iron beams, and bricks, traditional materials were mostly employed for decorative purposes such as fireplace and ceiling plating, and indoor or outdoor plating. After 1975, due to North Cyprus’s economic woes, land prices began to rise in a manner that was out of proportion to people’s ability to buy, making it extremely challenging to purchase private residences that were intended to satisfy their needs. Buildings with standard floor plans, whether high or low rise, were created according to the solution to this issue. As a result, both the government’s social housing rules and the private sector’s mortgage-style build-and-sell strategies forced people to buy high-rise and low-rise buildings that were not suited to their needs [74].
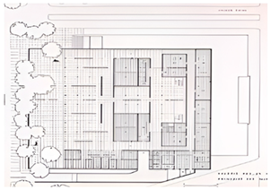
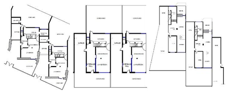
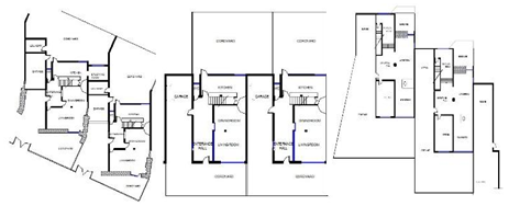
The Kumsal region, which is located between Mehmet Akif Caddesi (Dereboyu) and Bedrettin Demirel Avenues, which is examined in this study, is a region where commercial, entertainment, and residential areas are dense. See Figure 6. In the findings section of the study, the modern-period effects of the buildings selected from the Kumsal region in Nicosia, Northern Cyprus will be emphasized. Efruz Houses (Müdüroğlu Houses), designed by Ahmed Vural Behaeddin, one of the leading architects of the period, was chosen as the field study. The contractor of Efruz row houses, designed by the architect Ahmed Vural Behaeddin, was Efruz S. Müdüroğlu. That is why these row houses are called Efruz Houses. See Figure 7 and Figure 8.
Figure 6.
Map of Kumsal district (edited by authors).
Figure 7.
Kumsal map, shows Efruz Houses (Müdüroğlu Houses) (edited by authors).
Figure 8.
Social and environmental view of an Efruz Houses Street (Müdüroğlu Houses) (authors, 2023).
5. Findings of the Study
Investigation of Efruz row houses (Müroğlu Houses), designed in the North of Nicosia in the years when the modern period made itself felt, is the scope of this study. Efruz Houses are designed as a total of 31 residential buildings in the Kumsal region of Nicosia. The houses, built with reinforced concrete construction techniques and a two-story row house approach, have five different plan designs. The square meter areas of the houses differ with their typologies and vary between 250 and 300 square meters. While 27 of the buildings continue to function today, four houses have changed their functions. It has been observed that some of the features of the modern period have been partially lost in the buildings that have changed functional changes. In the regional analysis, it was observed that 31 houses were designed as five different building forms (Type-A/Type-B/Type-C/Type-D/Type-E) in five different blocks. Blocks that did not experience any change in function were classified as B, C, and D types. Blocks that have undergone changes in function are classified as A and E types within the scope of the study. It has one structure as the A-type and three structure functions changing as the E-type.
5.1. Analysis of the Modern Architectural Criteria and Sustainability Parameters of the Efruz Houses
Efruz Houses bear traces of adopting the modern approaches and architectural principles of the 1960s. The analysis of Efruz Houses will be revealed by examining the modern period architectural criteria and sustainability parameters. The space criteria of Efruz Houses (Müroğlu Houses), designed as five types in the context of modern period architectural criteria, will be evaluated in detail in terms of form, function, and construction. Architectural approaches have tried to be revealed in the analysis of the houses. In addition, Efruz Houses will be examined in the direction of sustainability parameters, based on social, environmental, cultural, and economic sustainability.
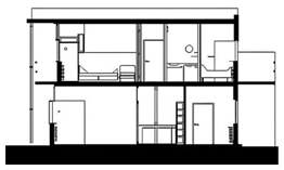
Ahmed Vural Behaaddin, one of the leading architects of modernism in Cyprus, used straight and sharp lines in his designs to reflect the influences of the modern age. It is possible to see the open plan approach and the interior-exterior integrity approach of the modern period in the large terraces designed in the houses with different plan organization. Efruz row houses were designed using reinforced concrete, which is the leading material of the modern period, and the use of local stone and the color white, which symbolizes the simplicity of modernism. The roofs of these buildings, which have a two-story building structure, are built with the sloped/pitched roof technique.
The sustainability of Efruz Houses is important according to the location where they are located. Efruz Houses are located in the center of the city of Nicosia. The hotels, business centers, restaurants, and shopping centers located in the near environment of Efruz Houses in the Kumsal region increase the real estate value of the houses. The majority of Efruz Houses, which were built with the criteria and approaches of the modern period, continue to maintain their sustainability today. In this context, the buildings make an important contribution to the sustainability of the region socially, culturally, economically, and environmentally.
Since Efruz row houses, designed by Ahmed Vural Behaeddin, the valuable architect of the period about half a century ago, carry all the architectural criteria and approaches put forward in the modern period and match the parameters of sustainability that emerged afterward, the majority of the houses still protect their sustainability today.
In order to determine the current status of the 31 Efruz housing project, analysis and observations of the houses were made. The research was carried out by measuring and redrawing the plan typology of the houses and talking with the building owners. Afterward, information cards were prepared for the analysis of houses with five different building types. The analysis of the original houses in one table and the analysis of the houses that changed function in four tables were made in the context of modern architecture criteria and sustainability parameters. In line with all the examinations and analyses made, Table 7, Table 8, Table 9, Table 10 and Table 11 include the evaluation of the sustainability parameters and modern architectural criteria of Efruz row houses.
Table 7.
The evaluation of modern buildings within the sustainability parameters and modern architectural criteria.
Table 8.
The evaluation of the sustainability parameters and modern architectural criteria of the insurance agency.
Table 9.
The evaluation of the sustainability parameters and modern architectural criteria of the hotel’s human resources office.
Table 10.
The evaluation of the sustainability parameters and modern architectural criteria of the information technology office.
Table 11.
The evaluation of the sustainability parameters and modern architectural criteria of the private bank.
5.1.1. Analysis of the Modern Architectural Criteria of the Efruz Houses
Form
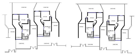
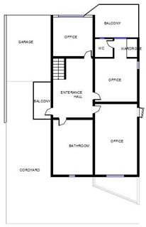
The Efruz Houses consist of a combination of plain and square forms, free from ornaments, and consisting of two floors. On the ground floor, there is the entrance hall, living room, dining room, kitchen, guest toilet, study area, and terrace spaces. The living room and dining room in the Efruz Houses (Müdüroğlu Houses) are designed in an open and interconnected manner. There is also a garage on the ground floor to the left of the entrance door. On the ground floor, the rooms are different in size and the plan is functionally divided. On the first floor, there are three bedrooms, a bathroom, and a small balcony. The direct relationship and spatial flow between the spaces draw attention.
The examined modern architectural approaches, the relationship between fullness and emptiness, one of the principles of Cubism, and simple geometric forms can be clearly read in these building plans. In addition, straight lines, simple geometric forms divided into parts, lack of concentricity, and clear plan organization are quite evident as in De Stijl. These buildings, which do not carry the organic architectural principles, the simple, without ornament, square, triangular, and rectangular forms that are the architectural characteristics of Bauhaus come to the fore.
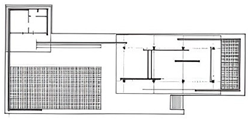
Although 27 Efruz Houses retained their residential function, four buildings were re-functionalized with different functions and partially preserved their formal sustainability. The first of these houses is an A-type building that has been converted into an insurance agency. Although this structure has changed in function, the plan design has been preserved. On the ground floor of the building, the interiors of which have been refunctioned, the entrance hall, kitchen, and guest toilet have been preserved, while the space used as a living room has been turned into a meeting room. The small living area, which was connected to the dining room in its previous function, was also re-functionalized by turning it into an office. On the upper floor, while preserving the bathroom function, two of the rooms used as bedrooms have functioned as an office and the other as an archive room. See Figure 9. Since the building has not changed formally, it still carries the features of functionalism, cubism, De Stijl, and Bauhaus, which are the features of the modern period principles.
Figure 9.
Ground and first-floor plans of the A-type insurance building, which has not undergone form changes.
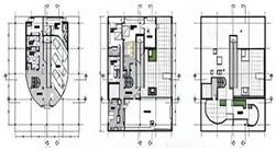
The other building whose function changed is the E-type building that has been converted into a private hotel’s human resources office. This structure has both changed in function and its plan design has not been preserved. The entrance hall and the guest toilet continue to function on the ground floor of the building, the interior spaces of which have been re-functionalized, and the other spaces have undergone a functional change. The space on the right side of the entrance hall, which was used as a kitchen, has been converted into a warehouse. The spaces, which are used as living rooms and dining rooms and designed according to an open-plan organization, have been extended to the front and back. In its new function, these spaces are divided into three sections, the kitchen at the back and two separate offices at the front. The space, which was a study room on the ground floor, was closed and turned into an office. No plan changes were made on the upper floor. The rooms used as bedrooms have been converted into offices. The space changes in the ground floor plan of the building are indicated by blue coloring in Figure 10 and Figure 11. This Efruz house continued to preserve the functionalism, cubism, and De Stijl, and Bauhaus features that were the main principles of the modern period. Since the building has not changed a radical change despite the formal additions it has changed, it has reached the present day by preserving its sustainability.
Figure 10.
(a,b). The original (a) and changed function (b) plans of the E-type human resources office building, which has undergone a change in form on the ground floor plan.
Figure 11.
(a,b). The original (a) and unmodified upper floor plans of the E-type human resources office building (b).
Another E-type Efruz House, which has changed in function, has been converted into an information technology office. This structure, whose function has changed, has a formal change with the additions of the original plan design. The ground floor of the building, whose interior spaces have been re-functionalized, includes the entrance hall, kitchen, guest toilet, open offices, and storage. The spaces, which were used as the living room and dining room in the original plan design and designed according to the open plan layout, were extended to the front and back. With formal additions, the design is divided into three different spaces; the space at the back is used as a warehouse, the middle part is used as an office and the space facing the front is used as a warehouse. The space, which was designed as a study room in the ground floor plan, was closed after the functional change and turned into a warehouse. No plan changes were made on the upper floor. The spaces used as bedrooms in the upper floor plan are not used after the new function, leaving them empty. The building has changed formal changes with the additions made on the front and rear facades of the ground floor plan. Formal space changes in the ground floor plan of the building are marked by blue coloring in Figure 12 and Figure 13. Despite all the changes made in the building form, the building style has not lost its modern period features.
Figure 12.
(a,b). The original (a) and changed function (b) plans of the E-type information technology office building, which has undergone a change in form on the ground floor plan.
Figure 13.
(a,b). The original (a) and unmodified upper floor plans of the E-type information technology office building (b).
Comparatively, in the E-type structure, whose function has changed as a private bank, the functions of all spaces in the ground floor plan and only two spaces in the upper floor plan have changed. These changes are very evident in the floor plans. The living room and dining area, designed in an open plan type on the ground floor plan, has been divided into three office areas with a change in function. In the original building design, the dining area and living room were changed by enlarging them forward. Again, the kitchen, located on the right side of the entrance hall, was moved to the garage, and in that section, it was extended toward the back, and associated with the meeting area. In the upper floor plan, the study room and living room on the ground floor are used as offices and meeting spaces after the change. The space changes in the ground and first-floor plan of the building are indicated by painting in blue in Figure 14 and Figure 15. These interventions to the original design of the building caused the building to lose its original plan. It has been observed that all the changes made in the building form partially changed the modern period approaches of the building.
Figure 14.
(a,b). The original (a) and changed function (b) plans of the E-type private bank which has undergone a change in form on the ground floor plan.
Figure 15.
(a,b). The original (a) and changed function (b) plans of the E-type private bank which has undergone a change in form on the first-floor plan.
Efruz Houses, which were designed in the modern period and changed functional changes in the process, were examined within the scope of the research, it was determined that only one building in the block, which was described as type A, changed a function change. The spaces of this building functioned by preserving their formal form. The three buildings classified as E-type, unlike the A-type structure, underwent a lot of changes in the formal context, thus causing the modern period approaches to be partially changed. In this context, the sustainability parameters of the structures that have undergone a change in function have also been partially changed.
Function
Twenty-seven Efruz Houses (Müdüroğlu Houses), consisting of thirty-one rows of houses, designed by Ahmet Vural Behaeddin with modern period materials, still maintain their sustainability as residences. As a result of research and observation, it has been determined that the sustainability of only four residences has been partially changed.
Of the 27 houses whose functions have not changed, three are located on Tuncer Hasan Street, 19 on Tuna Street, and five on Meriç Street, and they continue to function as residences today. Type A, one of the five houses whose function has changed is located on Tuncer Hasan Street. Although this building has changed its function, no changes have been made to its original plan. The other three structures that change their function are E-type structures located on Meriç Street. It has been determined as a result of the examinations that the structures, which are described as A and E type, partially preserve their sustainability depending on the functional changes they have changed over time and the approaches of the modern period.
Construction
Efruz Houses (Müdüroğlu Houses) consist of row houses designed by using modern and traditional materials together in the modern period. These structures, which were built with the reinforced concrete construction technique, emphasized both the features of the modern period and the local materials in their design, with the traditional natural stone used in their exteriors and interiors. The facade designs are free from ornamentation and painted in white. Large rectangular window openings on the facades enabled both daylights to enter the interior spaces and establish a relationship between the interior and the exterior environment of the row houses. It has been observed that the large window openings made in the façade design are in harmony with the façade surface, contain the approaches of the modern period, and create an indoor-outdoor relationship in the context of sustainability. Tile roof construction technique was used in the row houses designed as two floors. The houses are associated with each other through the garage space.
The facade designs of the houses consist of symmetrical and straight lines, as in their plans. The dimensions of the windows and doors, designed without disturbing the symmetry of the facades, vary according to the function of the interior. The natural stone and large windows used on the facade surfaces create movement on surfaces. In addition, the iron railings designed for decorative and security purposes on the upper floor balconies of the building are also prominent details in the facade design. It is clearly seen that functionality is prioritized in the facade and plan design setup of these houses.
One of the four Efruz Houses that changed functional changes, the A-type building lost its original function and was transformed into an insurance agency. Since the original facade design of the insurance agency has not been changed structurally, the sustainability of the styles and approaches of the modern period has been ensured today. In the building, which has only undergone functional change, the original materials of the existing building have been preserved, and the roof eaves have been painted green in the facade design to symbolize the insurance agency’s unique color. See Figure 16.
Figure 16.
Facade designs of the insurance agency.
In another building, which was used as the human resources office of an E-type hotel and lost its original function, its original facades were structurally changed. These changes consist of enlarging the dining area towards the front façade and closing the terrace facing the back of the hall and including it in the ground floor plan. On the other facades, the original building materials of the existing building were preserved. The facade design of this repurposed building has changed structural and visual changes, causing the modern period styles and approaches to be partially lost throughout the row houses. See Figure 17.
Figure 17.
Facade designs of the human resources office.
There were structural changes on the facades of the E-type building, which functions as a technology office. These changes are visible on the ground floor plan of the building. The expansions on the front and rear facades of the building have caused the building to lose its original identity. At the entrance door on the left side of the building, the upper cover element designed in addition to the original structure draws attention. When the other facades were examined, it was seen that the existing building preserved its original building materials. The interventions made to the building caused the building to lose its original identity, and the modern period styles and approaches to be partially lost in the row houses. See Figure 18.
Figure 18.
Facade designs of the information technology office.
In the otherwise E-type building, which changed its function as a private bank institution, changes were made to the original facade designs. These changes are due to the extension of the dining area towards the front and the room behind the staircase towards the back, incorporating it into the ground floor plan. The addition made on the ground floor plan on the rear façade has been expanded in line with the upper floor plan. The original facade materials were changed on the interior and exterior. The interventions after the functional change damaged the original structure. As a result, the row houses designed with the styles and approaches of the modern period have lost their original identity. See Figure 19.
Figure 19.
Facade designs of the private bank.
Within the scope of the research, when the five buildings that underwent a change in function were examined in terms of construction, it was observed that the A-type structure preserved its original identity, and the modern period style and approaches were partially preserved in two of the E-type buildings. In one E-type building, it was determined that the approaches damaged the original structure of the row houses in the context of sustainability.
5.1.2. Analysis of the Sustainability Parameters of the Efruz Houses
Efruz Houses (Müdüroğlu Houses), which are evaluated under the headings of social, cultural, environmental, and economic, which are one of the parameters of sustainability, constitute the second leg of the study.
Social Sustainability
The study area is located in the Kumsal region of North Nicosia, where the population and traffic are the busiest. The region is one of the most popular areas of Nicosia due to its social, and economic aspects and its proximity to public spaces. In addition, it is quite easy to reach the region by car and on foot. Due to all these features, the Kumsal region has developed by increasing its importance in the historical process in the context of sustainability.
Efruz Houses examined within the scope of the study are associated with each other in the form of row houses through the garage space. These row houses are the structures that best reflect the architectural approach criteria and styles, which are among the main features of the modern period and are still up to date in the context of sustainability. These structures, which are examined in the context of the social sustainability parameter, have criteria such as density, walkability, neighborhood relations, and transportation by vehicles.
The type of A building, which was designed as a residential building in the modern period and transformed into an insurance agency in the recent past, is evaluated in terms of social sustainability, it is located in a region with easy transportation for pedestrians and vehicles. With these features, it continues to protect its social sustainability today. The three E-types of buildings, which changed a functional change, were redesigned as human resources office, technology office, and private bank. When these structures are evaluated in terms of social sustainability, they maintain their social sustainability as they have the criteria of easy accessibility, walkability, and transportation by vehicle, as in the A-type structure.
Cultural Sustainability
Efruz Houses (Müdüroğlu Houses), which were designed in the modern period in Northern Nicosia of Cyprus and carry the architectural approach criteria of the modern period, were built with the modern materials of the period as well as local materials. When Efruz Houses are evaluated in the context of cultural sustainability, they are the buildings that best reflect the architectural identity of the modern period with their architectural style, building style, and architectural technique.
The four houses that change function are evaluated in terms of their architectural identities and cultural sustainability, the A-type house structure still maintains its cultural sustainability since it has not undergone any changes in the architectural construction technique. When the architectural identity of the two E-type buildings is examined in the context of cultural sustainability, some changes have been experienced with the additions made to the front and rear facades of the buildings. Thus, cultural sustainability has changed with the change of simple geometric forms, plain lines, and open-plan approaches, which are the main criteria of the modern period. The other E-type building, on the other hand, has not been able to protect its cultural sustainability by losing the criteria and approaches of the modern period, as it has changed too many changes in both floor plans.
Environmental Sustainability
Efruz Houses (Müdüroğlu Houses), designed in the modern period, were built in harmony with their surroundings. Since the modern and traditional materials used in its construction are environmentally friendly and durable materials, they are still up-to-date in the context of environmental sustainability in today’s conditions. Since the new buildings built in the near surroundings of these houses, which are described as row houses, do not meet the approaches and criteria of the modern period, they have caused the social neighborhood relations with the immediate surroundings of the buildings to be severed.
No material changes were made in the facade design of the insurance agency, which is classified as type A and evaluated within the scope of environmental sustainability. Therefore, the building, whose function has changed, has continued to protect the effects of the modern period in the context of environmental sustainability.
Since the additions made in the process to the building, which has turned into a human resources office, have affected the architectural approaches of the building, and the front and rear facade designs have also changed. Thus, since the simplicity, simplicity, and interior-exterior relationship revealed by the modern period has changed visually, environmental sustainability has also been partially damaged.
The change made in the Technology office building, which has changed functional change, is the top cover designed on the left facade entrance door, in addition to the original building structure. Another change is the addition of a new space to the rear facade. Thus, as the visual order created by this building with the other row houses has deteriorated, it is seen that its environmental sustainability has also partially changed.
The E-type structure, which has been converted into a private bank, is the structure that has changed the most spatial changes. By enlarging the space on the left rear facade and enlarging the space on the right front facade forward, the visual order of the row houses has been disrupted. The changes in all the facades of the building completely ignored the approaches and criteria of this building, which was designed in the modern period. During the change of function, the original building identity was changed with the interventions made to the building and it was reconstructed with today’s materials. Thus, as it harms the environmental sustainability of the building, the row has disrupted the visual order of the houses.
Economic Sustainability
Efruz Houses (Müdüroğlu Houses), which were built in the modern period and did not change their function, maintain their economic sustainability today, as they have social and cultural value. Row houses are located on the axis of a tourist attraction center with high land and real estate values due to their location. For this reason, as their environmental sustainability continues, their economic sustainability also continues.
The insurance office building, which was built with the approaches and criteria of the modern period, when examined within the scope of the economic sustainability parameter, since it has economic and cultural value according to today’s standards, it continues to maintain its economic sustainability. Since the functional change in the building is made by preserving the original construction criteria, the real estate value of the building increases.
It is seen that the sustainability of the original facade design has been partially changed as a result of the additions made on the front and rear facades of the human resources office, which has been re-functionalized by partially preserving the modern period approaches and criteria. This change partially damaged the economic sustainability of the structure.
The original building identity of the technology office, which changes function, has been distorted by the top coating material added to the left side entrance door and the additional structure added to the rear facade. Since this change has changed the modern period approaches and criteria of the building, it has also partially damaged its economic sustainability.
The private bank building, which was re-functionalized by ignoring the approaches and criteria of the modern period, has damaged its original building identity due to the very significant changes made in the building form and construction materials. As a result of the radical changes, the economic sustainability of the building was completely damaged.
6. Conclusions and Recommendations
The social, cultural, and environmental effects of architectural criteria and architectural approaches that emerged with the modern period are still visible in many countries of the world in the century we live in.
There are different construction styles on the island of Cyprus, which has been under the influence of many civilizations. This article explores the relationship between the effects of changing living conditions such as rapid urbanization, social and economic dynamics in the modern period, and the understanding of sustainable design. In particular, examples of the buildings in which the form-function relations, which are the distinctive features of the modern period, and the architectural approaches that emerged with the modern period are designed, are found throughout the island of Cyprus. Despite the negativities such as war, economy, and migration between the two communities on the island between 1960 and 1974, architectural structures reflecting the traces of the modern period were designed in the 1960s and 1970s. The architects of the period (Ahmed Vural Behaeddin, Abdullah Onar, Ayer Kaşif, etc.) created the building identity of the modern period with the original designs they built in different locations on the island, mostly residential buildings.
As stated in the setup of this study, Ahmed Vural Behaeddin, one of the architects who came to the island after studying abroad in the modern period, revealed a modern understanding of life in his designs by constructing functionality, open free plan technique, simplicity, integrity, indoor-outdoor relationship. In addition, in the context of modern period architectural criteria, reinforced concrete and local materials were used as construction materials. In this context, it is clearly seen that the understanding of the modern period comes to the fore in the design of Efruz row houses by Behaeddin. In light of all these frameworks, it is expected that this study will reveal the architectural identity of modern architectural period buildings and the importance and value of keeping them alive in the context of sustainability through analysis studies conducted with a holistic approach.
The concept of sustainability in the current century is a concept used instead of modernism in the formation of socio-cultural, economic, and architectural built environments. In this context, it can be said that the ideals, principles, and approaches of the modern period constitute the basis of today’s sustainable designs. Therefore, in this study, the importance of modern period criteria and approaches has been tried to be stated.
As a result, of the literature and analysis evaluations, it is thought that the sustainability context of the modern period architectural criteria and approaches of the field study will contribute to the scientific literature.
Consequently, the Research Findings and Recommendations of This Study Are Listed below
Considering the research and findings, the necessity of protecting the houses designed in the modern architectural period is an inevitable result. In particular, the interventions to which the structures undergoing functional change in the study area are exposed cause the era’s identity to disappear. It is an important issue to ensure the continuity of the urban development on the island with a holistic and sustainable approach while preserving the essence of the modern architecture of Cyprus. As a result of the examinations, it is revealed that the basis of the concept of sustainability, which emerged after the criteria and approaches of the modern period were determined, was shaped and developed with the understanding of Modernism. For these reasons, it is necessary to preserve the criteria of the modern period in order to ensure sustainable design. In the study, the modern architectural criteria and approaches of Efruz (Müdüroğlu) row houses designed in the modern period were evaluated together with the sustainability parameters, and their current status was investigated. In this research, the principles of modern period buildings in the understanding of design are as follows:
- It overlapped with the social sustainability parameters in the context of neighborhood relationships, ease of access, and density,
- Architectural identity, which is formed by architectural construction technique and architectural approach, overlapped with cultural sustainability parameters,
- Its environmentally friendly design approach in building design overlapped with environmental sustainability parameters,
- The use of sustainable and local materials applied in the building design and the real estate value of its immediate surroundings overlapped with the economic sustainability parameters, it has been clearly seen.
The importance of preserving the architectural heritage of the modern period and functioning together with the sustainability parameters has been suggested so that some rowhouses, whose function has changed in the process, can preserve their modern period identity without losing it. Consequently, it is suggested that building designs that coincide with social, cultural, environmental, and economic sustainability parameters should be applied, since only the preservation of modern architectural criteria and approaches will not be enough to keep the modern period identity alive. In this context, it should be applied in practice by integrating modern period architectural criteria into today’s sustainable designs.
Author Contributions
Conceptualization, Ç.B. and Ç.E.; methodology, Ç.B. and Ç.E.; software, Ç.B.; validation, Ç.B. and Ç.E.; formal analysis, Ç.B.; investigation, Ç.B.; resources, Ç.B.; data curation, Ç.B.; writing—original draft preparation, Ç.B.; visualization, Ç.B.; writing—review and editing, Ç.E.; supervision, Ç.E. All authors have read and agreed to the published version of the manuscript.
Funding
This research received no external funding.
Institutional Review Board Statement
Not applicable.
Informed Consent Statement
Not applicable.
Data Availability Statement
All data are available publicly as explained in the full article.
Conflicts of Interest
The authors declare no conflict of interest.
References
- Frisby, D. Analyzing modernity. In Tracing Modernity Manifestations of the Modern in Architecture and the City; Hvattum, M., Hermansen, C., Eds.; Psychology Press: London, UK, 2004; pp. 3–22. [Google Scholar]
- Amen, M.A. The inspiration of Bauhaus principles on the modern housing in Cyprus. J. Contemp. Urban Aff. 2017, 1, 21–32. [Google Scholar] [CrossRef]
- Ali, F.A. The influence of Le Corbusier on the emergence of the aesthetic values in the modern architecture of Cyprus. J. Contemp. Urban Aff. 2018, 2, 1–12. [Google Scholar] [CrossRef]
- Azizi, B.; Eshaq Zai, A. Explorıng the Characterıstıcs of Modernısm And Post-Modernısm: A Revıew Paper. J. Crıtıcal Rev. 2022, 9, 9. [Google Scholar]
- Madsen, O.J. Modernity. In Encyclopedia of Critical Psychology; Springer: New York, NY, USA, 2014; pp. 1199–1204. [Google Scholar]
- Menga, L. Industrıal Revolutıon And The Bırth Of Modern Archıtecture. Int. Sci. J. Vis. 2022, 7, 105–123. [Google Scholar] [CrossRef]
- Özyalvaç, A.N. Mimarlıkta modernite kavramı ve Türkiye. FSM İlmi Araştırmalar İnsan Ve Toplum Bilim. Derg. 2013, 1, 294–306. [Google Scholar]
- Moffett, M.; Fazio, M.W.; Wodehouse, L. A World History of Architecture; Laurence King Publishing: London, UK, 2003. [Google Scholar]
- Lawrence, J.; Miller, C.; Smith, D.A.; Taylor, J. Application Books Architecture, 3rd ed.; NTV Publications: Istanbul, Turkey, 2012. [Google Scholar]
- Şahin, S.T. 1930–1980 Yılları Arasında Üretilen Gaziantep Modern Mimarlık Yapılarının Cephe ve Kütle Özelliklerinin İncelenmesi. Master’s Thesis, Necmettin Erbakan Üniversitesi Fen Bilimleri Enstitüsü, Konya, Turkey, 2022. [Google Scholar]
- Schoenefeldt, H. Creating the right internal climate for the Crystal Palace. Proc. Inst. Civ. Eng. Eng. Hist. Herit. 2012, 165, 197–207. [Google Scholar] [CrossRef]
- Nia, H.A.; Rahbarianyazd, R. Aesthetics of modern architecture: A semiological survey on the aesthetic contribution of modern architecture. Civ. Eng. Archit. 2020, 8, 66–76. [Google Scholar] [CrossRef]
- Conrads, U. Programs and Manifestos on 20th-Century Architecture; MIT: Cambridge, MA, USA, 1971. [Google Scholar]
- Özsavaş Uluçay, N. A method proposal for interior design analysis via Villa Savoye. J. Art Arch. Stud. 2020, 9, 5–13. [Google Scholar] [CrossRef]
- Rowe, H.A. The rise and fall of modernist architecture. Inq. J. 2011, 3, 1. [Google Scholar]
- Sadler, S. An avant-garde academy. In New Interventions in Art History; John Wiley & Sons: Hoboken, NJ, USA, 2004; p. 33. [Google Scholar]
- Ballantyne, A. Architectures Modernism and After; Blackwell Publishing: Oxford, UK, 2004. [Google Scholar]
- Żychowska, M.J. Bauhaus—Didactic Experiments and Their Legacy. Glob. J. Eng. Educ. 2019, 21, 134–138. [Google Scholar]
- Arenibafo, F.E. The Transformation of Aesthetics in Architecture from Traditional to Modern Architecture: A case study of the Yoruba (southwestern) region of Nigeria. J. Contemp. Urban Aff. 2017, 1, 35–44. [Google Scholar] [CrossRef]
- Winter, E. Aesthetics and Architecture. Br. J. Aesthet. 2007, 48, 235. [Google Scholar] [CrossRef]
- Schumacher, T.L. “The outside is the Result of an Inside”: Some Sources of One of Modernism’s Most Persistent Doctrines. J. Archit. Educ. 2002, 56, 23–33. [Google Scholar] [CrossRef]
- Behne, A. The Modern Functional Building; Getty Research Institute: Los Angeles, VA, USA, 1996; Volume 1996. [Google Scholar]
- Trisno, R.; Lianto, F. Relationship Between Function-Form in The Expression of Architectural Creation. 2019. Available online: https://www.researchgate.net/profile/Fermanto-Lianto/publication/335596708_Relationship_Between_Function-Form_in_The_Expression_of_Architectural_Creation/links/5da0351e45851553ff86a912/Relationship-Between-Function-Form-in-The-Expression-of-Architectural-Creation.pdf (accessed on 18 December 2022).
- Besgen, A. The Effects of Cubist Design Theory on Modernism and Post Modernism. In Proceedings of the 4th International Conference on Design and Decision Support Systems in Architecture and Urban Planning, Eindhoven University of Technology, Maastricht, The Netherlands, 26–29 July 1998. [Google Scholar]
- Haftmann, W. Painting in the Twentieth Century; Lund Humphries: London, UK, 1960; Volume 1. [Google Scholar]
- Falcetta, J.R. Geometries of Space and Time: The Cubist London of” Mrs. Dalloway”. Woolf Stud. Annu. 2007, 13, 111–136. [Google Scholar]
- Galenson, D.M. Painting Outside the Lines: Patterns of Creativity in Modern Art; Harvard University Press: Cambridge, MA, USA, 2001; p. 14. [Google Scholar]
- Cottington, D. Cubism and Its Histories; Manchester University Press: Manchester, UK, 2004. [Google Scholar]
- Diamond, B. Landscape Cubism: Parks that break the pictorial frame. J. Landsc. Archit. 2011, 6, 20–33. [Google Scholar] [CrossRef]
- Gardiner, S. Le Corbusier; AFA Yayınları: İstanbul, Turkey, 1985. [Google Scholar]
- Sherrye, C. Arthur Dove: Nature as Symbol; UMI Dissertation Services: Ann Arbor, MI, USA, 1985. [Google Scholar]
- Wadsworth, S.M. Destroying Tradition and Rebuilding. In The Spiritual in Twentieth Century Art; Pollock, J., Stravınsky, I., Wright, F.L., Eds.; Dover Publications: Mineola, NY, USA, 2011. [Google Scholar]
- Holdren, T. A Re-Application of Neo-Plasticism: De Stijl Architecture in a Contemporary Context. 2016. Available online: https://surface.syr.edu/architecture_tpreps/334 (accessed on 20 January 2023).
- Qin, S. On De Stijl and Architectural Design. In Proceedings of the 2015 2nd International Conference on Education, Language, Language, Art and Intercultural Communication (ICELAIC-15), Henan, China, 7–8 November 2015; Atlantis Press: Amsterdam, The Netherlands, 2015; pp. 567–568. [Google Scholar]
- Doorman, M. 5. Innovation In Painting And Architecture: De Stijl. In Art in Progress; Amsterdam University Press: Amsterdam, The Netherlands, 2003; pp. 81–114. [Google Scholar]
- Birol, G. Modern Mimarlığın Ortaya Çıkışı ve Gelişimi; Megaron, Mimarlar Odası Balıkesir Şubesi Yayını: Balıkesir, Türkiye, 2006; pp. 3–16. [Google Scholar]
- Blotkamp, C. Mondrian: The Art of Destruction; Reaktion Books: London, UK, 2001. [Google Scholar]
- White, M. De Stijl and Dutch Modernism; Manchester University Press: Manchester, UK, 2003; p. 39. [Google Scholar]
- Frampton, K. The Evolution of 20th Century Architecture: A Synoptic Account; Springer: New York, NY, USA, 2007. [Google Scholar]
- Leuthäuser, G. Architecture in the Twentieth Century; Taschen: Cologne, Germany, 2001; Volume 1. [Google Scholar]
- Heinberg, R.; Lerch, D. What is sustainability. Post Carbon Read. 2010, 11, 19. [Google Scholar]
- Office of the Federal Register (US) (Ed.) Code of Federal Regulations, Title 26, Internal Revenue, PT. 1 (Sections 1.908–1.1000), Revised as of 1 April 2009; Government Printing Office: Washington, DC, USA, 2009.
- Fiksel, J.R.; Eason, T.; Frederickson, H. A Framework for Sustainability İndicators at EPA; National Risk Management Research Laboratory, Office of Research and Development, U.S. Environmental Protection Agency: Research Triangle Park, NC, USA, 2012.
- Litman, T. Sustainability and Livability: Summary of Definitions, goals, Objectives and Performance İndicators. 2010. Available online: http://www.vtpi.org/sus_liv.pdf (accessed on 28 January 2023).
- World Commission on Environment and Development. World commission on environment and development. Our Common Future 1987, 17, 1–91. [Google Scholar]
- Soini, K.; Birkeland, I. Exploring the scientific discourse on cultural sustainability. Geoforum 2014, 51, 213–223. [Google Scholar] [CrossRef]
- Manzi, T.; Lucas, K.; Jones, T.L.; Allen, J. (Eds.) Social Sustainability in Urban Areas: Communities, Connectivity and the Urban Fabric; Routledge: New York, NY, USA, 2010. [Google Scholar]
- Yenidünya, S.S.; Limoncu, S. Determination of Sustainability Criteria for Building Renewal Applications: A Systematic Literature Review and Meta-Analysis//Bina Yenileme Uygulamaları için Sürdürülebilirlik Ölçütlerinin Belirlenmesi: Sistematik Literatür Taraması ve Meta Analizi. Megaron 2020, 15, 270. [Google Scholar]
- Pourdehqan, B.; Rashidi, M.; Saeed Firouzbakht, M.; Najafi, N. Environment and Sustainable Architecture. Eur. Online J. Nat. Soc. Sci. Proc. 2015, 4 (Suppl. S3), 5. [Google Scholar]
- Boström, M. A missing pillar? Challenges in theorizing and practicing social sustainability: Introduction to the special issue. Sustain. Sci. Pract. Policy 2012, 8, 3–14. [Google Scholar] [CrossRef]
- Ghahramanpouri, A.; Lamit, H.; Sedaghatnia, S. Urban social sustainability trends in research literature. Asian Soc. Sci. 2013, 9, 185. [Google Scholar] [CrossRef]
- Doğu, F.U.; Aras, L. Measuring social sustainability with the developed MCSA model: Güzelyurt case. Sustainability 2019, 11, 2503. [Google Scholar] [CrossRef]
- Dempsey, N.; Bramley, G.; Power, S.; Brown, C. The social dimension of sustainable development: Defining urban social sustainability. Sustain. Dev. 2011, 19, 289–300. [Google Scholar] [CrossRef]
- Eizenberg, E.; Jabareen, Y. Social sustainability: A new conceptual framework. Sustainability 2017, 9, 68. [Google Scholar] [CrossRef]
- Duman, Ü.; Asilsoy, B. Developing an Evidence-Based Framework of Universal Design in the Context of Sustainable Urban Planning in Northern Nicosia. Sustainability 2022, 14, 13377. [Google Scholar] [CrossRef]
- Vallance, S.; Perkins, H.C.; Dixon, J.E. What is social sustainability? A clarification of concepts. Geoforum 2011, 42, 342–348. [Google Scholar] [CrossRef]
- McKenzie, S. Social Sustainability: Towards Some Definitions; Hawke Research Institute: Adelaide, Australia, 2004. [Google Scholar]
- Williams, R. A Vocabulary of Culture and Society; Oxford University Press: Oxford, UK, 2014. [Google Scholar]
- Soini, K.; Dessein, J. Culture-sustainability relation: Towards a conceptual framework. Sustainability 2016, 8, 167. [Google Scholar] [CrossRef]
- Pop, I.L.; Borza, A.; Buiga, A.; Ighian, D.; Toader, R. Achieving cultural sustainability in museums: A step toward sustainable development. Sustainability 2019, 11, 970. [Google Scholar] [CrossRef]
- Bandarin, F.; Van Oers, R. The Historic Urban Landscape: Managing Heritage in an Urban Century; John Wiley & Sons: Oxford, UK, 2012. [Google Scholar]
- Appendino, F. Balancing Heritage Conservation and Sustainable Development—The Case of Bordeaux. In IOP Conference Series: Materials Science and Engineering; IOP Publishing: Bristol, UK, 2017; Volume 245, p. 062002. [Google Scholar]
- Morelli, J. Environmental sustainability: A definition for environmental professionals. J. Environ. Sustain. 2011, 1, 2. [Google Scholar] [CrossRef]
- Jeronen, E. Economic Sustainability. In Encyclopedia of Sustainable Management; Idowu, S., Schmidpeter, R., Capaldi, N., Zu, L., Del Baldo, M., Abreu, R., Eds.; Springer: Cham, Switzerland, 2020. [Google Scholar]
- Basiago, A.D. Economic, social, and environmental sustainability in development theory and urban planning practice. Environmentalist 1998, 19, 145–161. [Google Scholar] [CrossRef]
- Berardi, U. Sustainability assessments of buildings, communities, and cities. In Assessing and Measuring Environmental Impact and Sustainability; Butterworth-Heinemann: Oxford, UK, 2015; pp. 497–545. [Google Scholar]
- Bernardi, E.; Carlucci, S.; Cornaro, C.; Bohne, R.A. An Analysis of the Most Adopted Rating Systems for Assessing the Environmental Impact of Buildings. Sustainability 2017, 9, 1226. [Google Scholar] [CrossRef]
- Ozay, N. A comparative study of climatically responsive house design at various periods of Northern Cyprus architecture. Build. Environ. 2005, 40, 841–852. [Google Scholar] [CrossRef]
- Oktay, D. An analysis and review of the divided city of Nicosia, Cyprus, and new perspectives. Geography 2007, 92, 231–247. [Google Scholar] [CrossRef]
- Günçe, K.; Mısırlısoy, D. Assessment of adaptive reuse practices through user experiences: Traditional houses in the walled city of Nicosia. Sustainability 2019, 11, 540. [Google Scholar] [CrossRef]
- Bakshi, A. Urban form and memory discourses: Spatial practices in contested cities. J. Urban Des. 2014, 19, 189–210. [Google Scholar] [CrossRef]
- Mesda, Y. An analytical approach to the house design in the walled city of Nicosia in Cyprus. Des. Princ. Pract. Int. J. 2011, 5, 389–430. [Google Scholar] [CrossRef]
- Feridun, S.; Feridun, A. İki Mimarın Bir Öyküsü, 1960′lardan Günümüz; Işık Kitabevi: Lefkoşa, Cyprus, 2013. [Google Scholar]
- Cogaloglu, M.; Turkan, Z. Plan organization in XX. Century housing architecture in North Cyprus. Amazon. Investig. 2019, 8, 381–388. [Google Scholar]
Disclaimer/Publisher’s Note: The statements, opinions and data contained in all publications are solely those of the individual author(s) and contributor(s) and not of MDPI and/or the editor(s). MDPI and/or the editor(s) disclaim responsibility for any injury to people or property resulting from any ideas, methods, instructions or products referred to in the content. |
© 2023 by the authors. Licensee MDPI, Basel, Switzerland. This article is an open access article distributed under the terms and conditions of the Creative Commons Attribution (CC BY) license (https://creativecommons.org/licenses/by/4.0/).




















































































