Abstract
Acknowledging the possible impacts of the location of a vertical handrail on the accessibility of wheelchair passengers, this study explores different dimensions of the vertical handrail and elements of the internal space of a metro carriage and how they can impact the behaviour of passengers. For this purpose, simulation scenarios have been developed with different configurations of the location of the vertical handrail, which includes variables such as the number of passengers boarding and alighting and the type of relationship that exists between them. In this way, participants have been recruited for the simulation in a controlled environment, using a mock-up with characteristics and dimensions representing the space inside a metro carriage. The results show that the current location, that is, in the centre of the carriage, affects the accessibility of wheelchair users. Similarly, it has been observed that placing the handrail on one side of the train has positive effects on the accessibility of these users since the boarding time is considerably reduced. In addition, it has been shown that the relationship between passengers who hold on to the vertical handrail has an impact on the accessibility of wheelchair users. If passengers holding the handrail know each other, they will use less space inside the metro, and therefore, the boarding time is reduced. Finally, a series of recommendations have been proposed for future research, for example, carrying out new simulations with a more significant number of passengers, considering other types of disabilities.
1. Introduction
The Santiago Metro is the principal public transport system in the capital of Chile, reaching more than 2.3 million trips per day [1]. Consequently, this system has been reaching a high level of interaction during peak hours, affecting the level of service of those passengers boarding and alighting. Similar to other metro systems worldwide, one of the most complex spaces inside an urban station in the Santiago Metro is the platform train interface (PTI). At the PTI, passengers can fall onto the tracks or be pushed inside the carriage due to a crowded situation [2,3]. In the case of other systems, such as the UK railway network, more than 3 billion interactions each year are reached, in which 21% of the safety risks (injuries and fatalities) and 48% of the fatality risk to passengers are produced in the boarding and alighting process, as reported by the Rail Safety and Standards Board [4,5]. In particular, disabled passengers perceive the PTI as a complex space due to the difficulties in boarding and alighting. In this sense, crowded situations may influence the space used by wheelchair users [6].
Moreover, the design features at the PTI could affect the accessibility of disabled passengers such as wheelchair users [7]. According to Tyler [8], if passengers cannot reach or use the PTI, it would affect the accessibility of the whole system. In fact, the accessibility is also related to evacuation caused by a rail disaster [9] or climate factors and space, in which the air pressure caused by the implementation of tunnels could affect the air variation inside the train, therefore influencing the pressure comfort of passengers [10]. Therefore, the importance of the PTI has reached such a point that today it is almost impossible to imagine a journey in a context of travel through public transport within the city of Santiago de Chile that does not involve the accessibility use of one of its services, lines, and urban or interurban connections.
In Chile, the concept of accessibility is defined in Law 20,422 [11] and implies that the entire process that is carried out in the conception and elaboration of the vertical handrail and the interior space of a metro must allow as many people as possible to use them. By the standards or regulations related to the design or dimensions of some elements and spaces of suburban trains, Decree 142 [12], in the third paragraph, establishes regulations on signalling, seats, and sufficient spaces that services must comply with, such as Santiago Metro system and suburban trains. Likewise, in Decree 122 [13], general dimensions are established for vehicles that provide urban collective locomotion services. As a consequence, the infrastructure, and with it the accessibility of the metro stations, have been changing over the years, so that we can find some stations and trains in the Santiago Metro with more than 50 years of service and others with only a couple of years. Currently, assembled trains are circulating in Santiago de Chile from pieces made in other countries with various improvements, such as ergonomic handrails and distributed seats for better movement [14]. In addition, the vertical handrails that are located right at the entrance of each carriage have improved compared to their predecessors. However, they have been located in areas that do not benefit users who move in wheelchairs when getting on or getting off the carriage. In fact, in our previous research, we have highlighted the importance of vertical handrails, which could be used in different positions to improve the accessibility at the PTI [15,16]. Therefore, it should be considered that a wheelchair user faces many accessibility problems at the PTI. In this regard, it is observed that 15.3% of the adult disabled population in Chile recognise the need for grab bars, while 5.7% require ramps or recesses, another 5.7% need accessible public transportation, and 4.2% need accessible public toilets [17]. This is very relevant considering that it is estimated that the trips per day at the Santiago Metro will increase in the medium and long term [14].
Although there are demarcated areas at the PTI to give preference to users in wheelchairs, the Santiago Metro has progressively implemented elements that benefit people with disabilities such as preferential seats, sound systems to announce the opening of doors, and tactile pavement on the yellow safety line at the edge of the platform. However, little attention has been given to identify the effect of the location of vertical handrails on the boarding and alighting time and passenger behaviour, which is the main objective of this study. Passenger behaviour is defined as the movement of the wheelchair users when turning or moving towards the waiting areas or preferential seating inside the carriage, when either boarding or alighting the metro.
The article is structured in five sections. In the following section, a discussion is provided based on the existing studies related to the effect of design features such as vertical handrails on the boarding and alighting time and behaviour of passengers. In Section 3, the method is described based on observation in existing stations. In Section 4, the results are explained based on laboratory experiments, in which a mock-up represents the boarding and alighting process, followed by the conclusions and suggestions for further research.
2. Passengers’ Behaviour in Metro Stations and Universal Accessibility
Currently, a large number of people in the world live in urban areas, therefore, a large part of their lives takes place in public spaces, and, to a large extent, the time they spend in these is affected not only by what it takes, for example, for a train to move from one point to another but also because of the interaction between users and the size and distribution of the elements found inside a station, as related to universal accessibility.
Under the argument that the public transport of Santiago de Chile presents several deficiencies in terms of accessibility for people with reduced mobility and that there is no official guideline for designing public transport for this social group, Cepeda et al. [18] assess elements of accessibility through a stated preference experiment. In this study, the authors compared people with and without reduced mobility in the face of several factors, such as audio–visual information at bus stops, the elevation of stops, buses’ access ramps, and time of travel. Results indicated that people with reduced mobility value the elements that support accessibility more. Similarly, Colmenero-Fonseca et al. [19] investigate and evaluate the conditions of adapted public transportation for people with disabilities in Mexico. The results of this study demonstrate that the management, design, and implementation of inclusive public transportation are dependent on an active articulation between the public, private, and civil society, aiming to identify the real needs of the population with reduced mobility.
From a geographical perspective, Dell’Olio et al. [20] identify barriers and opportunities related to the accessibility of people with reduced mobility to public transport. The authors applied a spatial tool (Geographical Information System) and user-friendly software to display results related to chosen route and problems encountered during the trips. Results show that adequate spatial visualization of accessibility problems for people with reduced mobility can support better planning and decision-making towards building places from the universal-accessibility perspective. With a specific focus on the population dependent on wheelchairs for mobility, Koontz et al. [21] identify problems related to wheelchair transfers in different spaces within a community. Through a questionnaire applied to 112 wheeled mobility users, the authors identified the relevance of the following transfer elements: the presence of transfer aids, presence of grab bars, large-enough transfer-surface size, storage space for a wheeled mobility device, large amounts of space and clearance for legs and feet, soft surfaces, and enough space next to the transfer surface.
Martens [22] argues that public transportation systems need to move beyond the universal-accessibility approach towards an inclusive system. The difference presented by the author refers to the fact that the universal-accessibility perspective aims to build an environment adequate to the needs of people with a wide range of abilities, while inclusive accessibility aims to provide adequate infrastructure for all users with access to key destinations. Therefore, it is interesting to highlight those studies focused on micro-mobility, such as boarding and alighting metro stations, which may improve aspects related to both universal and inclusive accessibility.
According to Seriani and Fernandez [2], there are five pedestrian circulation spaces in metro stations. These have been defined as platform train interface (PTI), platform stairs, mezzanine, complementary (e.g., commerce), and the city. Pedestrians circulate in each of these spaces and interact with each other and the existing facilities daily, although often the use of the spaces is not the most appropriate, and several elements can be identified that must be studied in the PTI space, especially inside the train [7,23].
Under the argument that boarding behaviour on high-speed railway platforms is not well-explored, Li et al. [24] propose a cellular-automaton model to investigate the impact of the heterogeneities of passengers during the boarding process. Results of this study show that the boarding process in a high-speed railway station is strongly impacted by the proportion of passengers carrying luggage, affecting, for example, the degree of congestion, inflow rate at the entrance, and route choice.
With a focus on the visual effects on metro station passengers´ behaviour, Ai et al. [25] studied the effect of different luminance configurations on pedestrian behaviour in metro stations, through empirical research. This study found that the higher the contrast of luminance is, the lower the fixation on the information displayed in the metro station. Authors believe that this kind of study can support better lighting design in stations, considering its importance in promoting certain behaviour of passengers.
Through a simulation study, Li et al. [26] explore passengers’ behaviour when some are eager to get on board and pressure front passengers to move forward. Furthermore, the results of this simulation are compared to existing pedestrian experiments. It is discovered that there are different effects of passengers pressuring people in front in terms of alighting and boarding efficiency, which depends on the environment of the station. Similarly, Chen et al. [27] propose a simulation framework based on the social-force model for three types of passengers´ behaviour (board, alight, and stay on the train) on the train and on the platform. It is found that there are passengers that stay on the train who have different movement patterns in comparison with a usual pedestrian. Moreover, it is found that there is a need to establish repulsive force between agents of the simulation based on movement patterns that are closely related to the platform and train reality, which should be based on data collected from fieldwork and experiments, which are currently lacking in this study. Moreover, Li et al. [28] developed a combination of empirical and simulation research on the micromobility of passengers in rail-transport infrastructure, with a focus on the impact of passengers’ non-compliance behaviours on alighting and boarding efficiency in the face of different passenger volume conditions. Results of this study effectively show that the higher the level of non-compliance behaviour of passengers is, the longer the time for alighting and boarding.
With respect to injuries, Nakai et al. [29] investigate through simulation the passengers´ onboard safety and behaviour in face of a train collision, based on different scenarios of the internal design of the train´s carriage. Within the results, it is found that the probability of injury of commuters reduces with adequate positions of handrails and partitions installed to divide bench seats in groups. Through simulation, Peng et al. [30] investigate head injuries of passengers of subway trains under different internal-design and collision-acceleration conditions. The results of this study show that horizontal handrails may provide better safety in terms of head injuries. Besides, it is found that depending on the standing position of passengers, the handrail height may also offer more protection. Yao et al. [31] assess this through simulation injuries that can happen to passengers when there is a subway-train collision, in the face of different standing positions. The authors point out that standing backwards to a handrail may cause serious head, neck, and leg injuries, in comparison with standing forward while holding the handrail, which can significantly reduce the possible injuries. Through an extensive literature review, Xu et al. [32] seek to identify recommendations on research direction related to train passengers’ safety. The authors highlight that human characteristics and posture while riding the train, according to the literature, have a relevant influence on passengers´ injury in the face of a collision. Therefore, Xu et al. (2021) affirm that there is a need to develop further research on the injuries of train passengers under different design conditions of the train carriage, considering the different distributions and behaviour of passengers within the carriage.
From an empirical perspective, Qu et al. [33] investigate pedestrians and crowd dynamics through surveillance videos in metro stations in Beijing. The data collected and analysed for this study are individual movement data, headway between every two adjacent passengers, and the burst size. The authors argue that the improvement of dwell time and system sustainability can be supported by the empirical data on passenger behaviour, such as the time gap between the first alighting passenger and the first boarding passenger under different contexts. This may affect customer satisfaction, as reported by Lopatinskaya et al. [34], who develop and proposes an innovative methodology to assess customers´ satisfaction with the technical quality of Moscow´s metro system. The authors argue that there is a need to understand the satisfaction of customers from a competitiveness of services perspective because it can support better management decisions in order to improve services. From the methodology proposed and the applied case study, the need is identified, for example, to reduce the costs of implementing quality attributes that are indifferent to consumers and to improve the monitoring of the technical-quality attributes of services in relation to consumers´ perception for better propositions and decision-making in this area.
In terms of accessibility in metro stations, Seriani et al. [7] study the existing horizontal and vertical gaps through laboratory experiments and propose different scenarios of gaps to improve accessibility for users with disabilities or reduced mobility. According to this research, the Santiago Metro station must improve these spaces to facilitate accessibility for all types of users. In addition, this brings with it other benefits such as, for example, a reduction in waiting times, which can ultimately translate into a reduction in travel times.
An improvement in existing facilities must consider the behaviour of people inside the train, since this is determined by a series of both objective and subjective variables. Likewise, the use of space in different density conditions should be considered, especially in extreme conditions, since in these circumstances the real needs of people can be observed more clearly, especially those who move in a wheelchair. Experiments have been carried out that address this type of situation. Some of these experiments are part of the research that Valdivieso and Seriani [6] developed. The authors studied the impact that exists on the space occupied by a person in a wheelchair inside the train, in different platform scenarios and occupational densities. They confirmed that a person in a wheelchair occupies more space inside the train, and, as the occupational density increases, this space is considerably reduced, as is the distance between them and those around them.
From a design perspective, Han et al. [35] suggest through a psychological experiment some recommendations for inside the carriage, in which the use of seats should be in the moving direction of the train and audio facilities are needed, as part of a variety of interior-convenience facilities. Atkins [36] presents a technical document that provides a series of recommendations, with the purpose of improving the accessibility in rail vehicles; the proposal considers people with reduced mobility. Similarly, Damen et al. [37], through laboratory experimentation and starting from the premise that the gap between public transport vehicles and platforms is an important factor in the accessibility of public transport, study different dimensions of horizontal and vertical gaps, considering the effects they can have on the mobility of passengers in wheelchairs. Fernandez et al. [38] show that marginal boarding and alighting times for passengers in the Metropolitan Mobility Network vary according to different platform heights, door widths, fare-collection methods, and passenger densities. Likewise, Seriani and Fernández [15], follow the course of the previous investigation and extend it to the case of a Santiago Metro station. In this research, experiments were carried out using a pedestrian microsimulation model and the elaboration of different simulation scenarios of the metros-train space in a laboratory condition. The researchers concluded that the best location for the vertical handrail is in the middle of the car door when the flow is unidirectional, supported by signage and demarcation. If the previous scenario was not possible, it was recommended to use two handrails on both sides displaced between 0.8 m and 0.84 m from the centre of the hall.
Moreover, the interaction between people who use public transport is a relevant factor, in which the personal and contextual characteristics of each passenger should be considered [39]. This is because, for example, inside trains, the occupational density increases or decreases depending on the day and time. In this way, during times of high demand, as there is a greater number of users inside the car, the distance between people is reduced, and the space becomes intimate in a forced way. This generates discomfort, since this space is usually only accessed by trusted people, that is, family members, partners, children, or friends. As a consequence, the behaviour of each pedestrian, in this type of situation, is different. In this regard, Hall [40] maintains that the distances vary substantially according to the personality of each individual and according to the space and environment. In this way, it is observed that in a place with low lighting or high noise, people tend to get closer. Likewise, the researcher establishes four distance zones that account for the type of relationship that occurs between those who interact. The first is the intimate distance, which is established when the distance between users is approximately less than 0.46 m; the second is the personal distance, which occurs in a space between about 0.46 m and 1.21 m; the third is the social distance, which occurs in an area around 1.21 m and 3.7 m; and, finally, the fourth corresponds to the public distance, which is carried out in a range of 3.7 m and 8 m or more.
The representation of the space that a person occupies has been defined in different ways. According to Sommer [41], personal space does not always have a spherical shape and does not expand homogeneously in all directions. In turn, Fruin [42] maintains that the plan view of the human body can be seen approximately as an ellipse defined by the measurements of the depth of the body and the width of the shoulders. In addition, they state that the dimensions of a person correspond to a body depth of around 0.3 m and a shoulder width of around 0.6 m. Finally, Pushkarev and Zupan [43] state that a moving pedestrian occupies a space that has an elliptical shape of approximately 0.75 m2.
Finally, how pedestrians move today has become an aspect of vital importance, therefore, it is important to consider a design with pedestrians in mind. By this, Fruin [42] maintains that conflicts between pedestrians who move through public transport spaces or facilities must be avoided, and, for this, the design must consider factors of human behaviour in different spaces according to the different levels of service. Of these human factors, the dimensions of the human body and the space occupied by its parts must be taken into account, since, usually, people in the space of the PTI avoid physical contact and use the space inefficiently, unlike what happens in times of greater flow in which the physical distance becomes intimate, in a forced way, and the space is occupied almost in its entirety. For people with disabilities, especially those with reduced mobility, the situation described above represents a conflict that the current design brings with it and that affects its accessibility, so it is necessary to improve and bring this level of design to a universal standard.
Mace [44] establishes that universal design has the purpose of promoting the development of products that, in addition to being attractive and commercial, can be used by all types of people. Likewise, the author maintains that it is oriented to the design of solutions related to the construction or elaboration of objects that respond to all the needs of all types of users that exist in society. According to Iwarsson and Stahl [45], universal design is related to democracy and design for all, that is, children, youth, adults, men, women, and people of different nationalities. As can be seen, this concept operates under the assumption that there are people in society who have different qualities and characteristics. In this way, it is expected that the development of the various products and services found in a city will allow them to be used by all. Products designed from the universal-design perspective naturally promote sustainability [46]. In this sense, it is important to prioritize the design of transport systems to consider the needs of people with reduced-mobility conditions [47,48]. Under this logic, this study can support the development of the internal design of metro carriages considering the universal-design concern, leading to a more sustainable system.
Although universal design is not the main object of this research, it is important to know about it, since the use of this term in recent years has gained strength and is closely related to the term universal accessibility, so it should not be ignored, especially considering that the vertical handrail has gone through a design process and, finally, has been installed inside the carriages. As a consequence, a change in the layout of the vertical handrail, which considers people in wheelchairs entering or leaving the train, may imply that there is a change in the design of this element or a modification in the structure of the metro carriage, since the vertical handrail has a structural function.
In conclusion, in this literature review, there is a research gap relating to the micromobility and universal accessibility in public-transport environments such as metro systems, which this research seeks to fill.
3. Materials and Methods
3.1. Variables Observed
To investigate the effect that the location of the vertical handrail has on the accessibility of passengers in wheelchairs, five study variables were identified according to Seriani and Fernandez [2]. These variables are based on the PTI, which may vary when moving from one metro line to another. These are:
- The location of the vertical handrail inside the train: measurements of the location of the vertical handrail on the NS-2004 and NS-2016 train models.
- Types of users: the effect of the location of the vertical handrail inside the train, on people who move in a wheelchair, and who require assistance, that is, those who move with the help of another person.
- Density: the influence of the number of people holding the vertical handrail on the accessibility of users who move in a wheelchair. Likewise, density in operational terms is related to the time that has elapsed since a user in a wheelchair boards the metro until, finally, they settle in the space that they consider best (e.g., comfortable) or is the one reserved for them, and the time that elapses from when a user begins to get off the train, until, finally, they reach the platform. In this way, the observations have one of their main purposes, to determine the usual number of people holding on to the vertical handrail.
- Types of trains: it is considered that, in the Santiago Metro, there are different types of trains that have different dimensions and elements that vary in terms of design. The NS-74, NS-88, NS-93, NS-2004, NS-2007, NS-2012, NS-2014, and NS-2016 models currently circulating on the metro lines have pneumatic wheels, that is, in the trains are on bogies with rubber wheels. Models AS-2002 and AS-2014 use iron wheels.
- Type of relationship between users holding on the vertical handrail: the study of this variable will make it possible to determine the impact that the type of relationship of the people holding the vertical handrail has on the accessibility of those who move in a wheelchair. For this purpose, this variable has two possible values. The first corresponds to a type of close relationship between passengers (e.g., family or friends), while the second type of relationship considers passengers who do not know each other (e.g., strangers). This implies that the space occupied by the users inside the train is different depending on the type of relationship of passengers, e.g., two friends holding the vertical handrail occupy less space than two strangers.
- Other accessibility design features: examples are considered, such as the width of the yellow safety line at the platform edge, the distance between the platform edge and the yellow safety line, the use of tactile pavement, the width of the platform, the use of seats at the platforms, the use of intercom on the platform, and the use of elevator at the platform.
3.2. Observation of the Santiago Metro Trains
The results of the observation on the Santiago Metro trains are shown below. The visits to existing stations focus on the study of only two models of trains with pneumatic wheels. One model is the NS-2004, which currently runs only on Line 2, while the second model is the NS-2016, which runs on Line 2 and Line 5. In both types of models, the observations were made at the end of the train in which a preferential space for wheelchair users is reserved. In addition, the observations were done in the middle of the trains (without reserved space for wheelchair users). These data allowed the elaboration of three simulation scenarios that are described in Section 4.
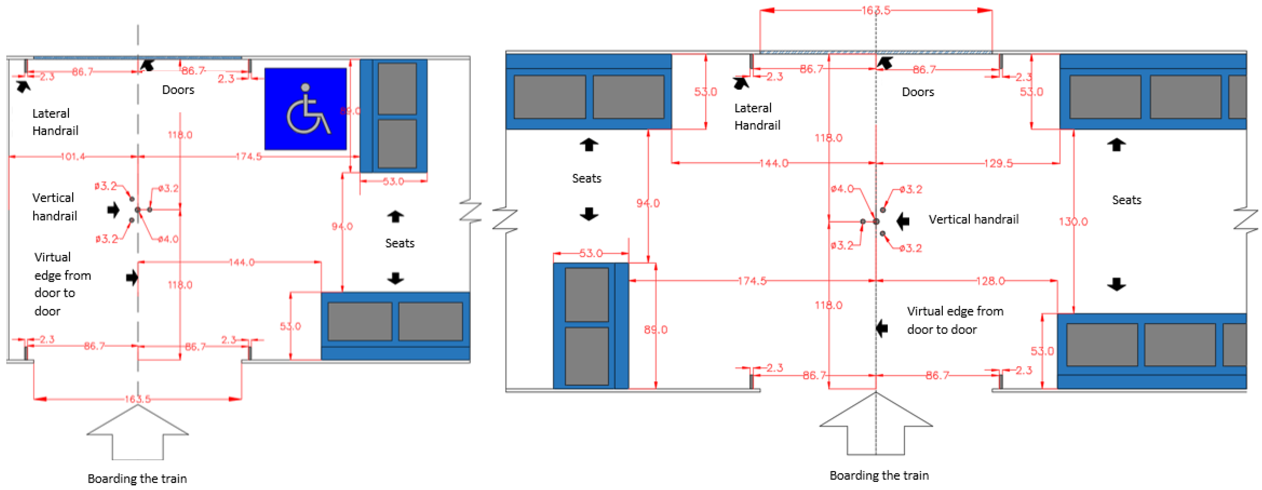
The diameter of the vertical handrail is in the range of 3.5 and 4 cm. The width of the train doors is 128.5 m (NS-2016) and 163.5 m (NS-2004). In both models, the vertical handrails are located in the centre of the hall inside the train. The distance between the train doors and the vertical handrail is about 120 cm. In addition, the minimum distance between the vertical handrail and the seats is 110 cm. In both models, the end of the train includes a preferential space for wheelchair passengers (see Figure 1 and Figure 2).
Figure 1.
Train measurements observed in the NS-2016 model (measured in cm).
Figure 2.
Train measurements observed in the NS-2004 model (measured in cm).
To simulate the space and internal dynamics of passengers inside a carriage, photographic records were taken of passengers who used the vertical handrail at different levels of demand conditions. With this objective, only one passenger holding on to the vertical handrail was photographed; then, two or more passengers were photographed. To protect the identity of the passengers who appeared in these photographs, their faces have been blurred. Considering the sanitary conditions and measures imposed due to the COVID-19 virus, the observations were made during off-peak hours, that is, at the times when the flow and the density of people inside the stations and carriages are low (see Figure 3 and Figure 4).
Figure 3.
Passengers holding on to the vertical handrail: one passenger (left) and two passengers (right).
Figure 4.
Three or more passengers holding on to the vertical handrail.
3.3. Survey on the Santiago Metro Network
This survey was done in a controlled environment, considering three different types of passengers: students and disabled. Of the total participants (18 people answered the survey), 11 passengers were between 25 and 54 years old, 6 passengers were between 15 and 24 years old, and only 1 passenger was between 55 and 64 years old. From the total number of passengers who answered the survey, two stated that they were people with reduced mobility, another stated that they only had visual impairment, and the others declared that they did not have any type of disability. Regarding the number of trips on the metro, most of them stated that they use the Santiago Metro network at least three days a week.
About the last time passengers used the metro, they indicated their perception of the location of the vertical handrail inside the carriage and how this affected its accessibility, according to the criteria defined in Table 1 from our previous study [7]. The results showed that only 1 user (with visual impairment) answered that the last time they had travelled by metro they had managed to get on or off, but with great difficulty, fatigue, or pain; 6 passengers succeeded, but with less difficulty, fatigue, or pain; and, finally, 11 answered that they managed to board or alight without any difficulty or problem.
Table 1.
Accessibility levels according to each situation (adapted from [7]).
Finally, the participants of the survey identified that the following elements, inside the carriage, cause difficulty to move:
- The handles at the height of the head of each passenger;
- The space between the train and the platform;
- The location of the vertical handrails;
- Passengers who are holding on to the vertical handrail;
- The location of the seats;
- The recklessness of metro users;
- The width of the doors;
- Passenger belongings (backpacks, bags, and suitcases).
It is appreciated that the number of participants in the survey is low because this study was performed during the first months of the COVID-19 pandemic. This is not a limitation for the objective of this study, since the survey was done with the purpose of highlighting some relevant elements that disabled passengers will consider when boarding and alighting. The results of the survey showed that, even though only two people had reduced mobility, seven had difficulties boarding or alighting the metro. Likewise, it is observed that the location of the vertical handrail inside the train affects metro users, and, in addition, other elements make it difficult for them to move. This suggests that improving or providing greater accessibility improves the boarding and alighting experience for people with reduced mobility and for all users.
3.4. Other Accessibility-Design Features
The observations at the stations included other design features, to study the accessibility at the PTI when passengers board and alight, as defined in Section 3.1. To this objective, 27 stations were observed on Line 1 of the Santiago Metro and were compared to the Chilean standards [11,12,13]. The results obtained show that 96% of the stations have elevators, since at the time of the study only Central Station did not yet have this element, which is already in the construction phase (or has been completed), along with additional improvements to the station for access and additional transit corridor to improve displacement. In addition, 100% have seats on the platform, and the platform width is greater than 3.0 m. The distance between the edge of the platform and the yellow line is greater than 0.8 m in all stations. In addition, all stations have an intercom located at a height of less than 1.2 m on the platform. However, not all stations have tactile pavement. In summary, only 33% of the stations meet the yellow-line standard, and 15% have tactile pavement (see Figure 5).
Figure 5.
Different yellow-safety-line designs of the Santiago Metro.
4. Experiments
Given the importance of the data collected in the measurements, three types of scenarios were elaborated, considering the characteristics of wheelchair passengers using full-scale simulations carried out in a controlled environment.
4.1. Scenarios
Three scenarios were designed to represent the internal space of the carriage (see Figure 6). Each of these scenarios considered one variable, which changed while the rest of them kept the same. The purpose of this was to determine the impact of each of the study variables on the mobility of people in wheelchairs. In the process of defining the values of the variables, the dimensions of the most important elements of the train in the laboratory were considered, such as the width of the doors, the vertical handrail, and the width and length of the carriage. It was determined that only one vertical handrail, four 45 cm × 55 cm (width × length) seats, and a wheelchair would be used to simulate the displacement of a person who requires assistance to move. These variables with fixed values were valid for the three scenarios (see Table 2).
Figure 6.
A controlled environment was built for the experiment.
Table 2.
Variables used in the simulations at the laboratory.
Similarly, other variables were changed according to the following:
- The location of the vertical handrail inside the carriage (in the centre of the hall and on one side of the carriage);
- The number of passengers holding on to the vertical handrail;
- The type of relationship between these passengers (e.g., relative, friend, or stranger).
In this way, it was determined that in each scenario a certain number of simulations would be carried out with the vertical handrail located in the centre of the hall of the carriage and on one side of it (at a distance of 65 cm from the centre of the train). Likewise, in each scenario, it was considered that the number of users holding on to the vertical handrail would be different. In this way, one passenger was placed around the handrail in the first scenario, two passengers in the second scenario, and three passengers in the third scenario. Finally, two types of relationships between passengers holding on to the vertical handrail were simulated (passengers who knew each other and passengers who were strangers).
4.2. Experimental Design
In this research, a representative urban wheelchair user was simulated. This wheelchair model has a carbon–steel structure and a weight of 9 kg (without rear wheels) and is easy to manoeuvre, according to the information provided by the supplier. The wheelchair has a width of 60 cm (seat width of 42 cm) and a seat back height of 33 cm. The length of the wheelchair is 84 cm. The rear wheels are 24″ while the front wheels are 3″ × 1.5″.
The wheelchair was used in the three scenarios defined in this study. To comply with the capacity, protect the health of the participants, and have representativeness to observe the effect of the variables on the boarding and alighting time and the behaviour of passengers inside the carriage, five simulations were established for the process of getting on and off the train, obtaining a total of 10 simulations per scenario.
In each simulation, a group of six participants represented the boarding and alighting process using the mock-up (see Figure 7). This group was created considering passengers of different genders and of different ages. The disability was simulated through the use of the wheelchair described previously. The first scenario was prepared considering one of the volunteers who used the wheelchair and another volunteer who helped them in the process of boarding and alighting (i.e., simulating assistance). Subsequently, the simulations of the other scenarios were carried out, in which the boarding time was recorded, that is, from the moment in which the user in a wheelchair located behind the yellow line in the platform area began to board until they had stopped next to the vertical handrail. Next, the alighting time was recorded, that is, from the moment the user began to move to get off the train until they were completely on the platform area.
Figure 7.
Group of passengers inside the controlled environment.
The group of six participants were considered 66% male and 33% female. The age of participants was: 47, 25, 28, 16, 8, and 4 years old. The participant who was 4 years old simulated the disabled condition, using the wheelchair when boarding and alighting assisted by another participant. It is important to notice that the experiments were performed during the COVID-19 pandemic, in which restrictions on mobility within the city were established, and, therefore, it was not possible to simulate agglomerations (i.e., only a few participants were allowed to be considered in a closed space such as for a laboratory experiment). Nonetheless, we considered the different characteristics of participants by using people of different ages and gender.
4.3. Results from the Experiments
Next, the results obtained in the experiments are described. In this way, the results and analyses of the first scenario are displayed, then the results of the second scenario are explained, and, finally, the results of the third scenario are reported.
4.3.1. Scenario 1: One Passenger Holding on the Vertical Handrail
In this section, the results of the experiments are presented considering only one passenger holding on the vertical handrail. Therefore, the variable of the type of relationship between passengers holding on the vertical handrail was not studied (see Figure 8).
Figure 8.
The layout of the mock-up for Scenario 1: vertical handrail in the centre of the carriage (left) and vertical handrail displaced a distance of 65 cm from the centre (right).
In the case in which the vertical handrail was located in the centre of the hall of the train (Figure 8-left and Table 3), it is observed that, on average, the wheelchair user (and their assistant) took less time to enter the carriage (3.69 s) than to get off (3.72 s). Likewise, it is observed that the boarding time was greater than the alighting time. This is because, in the simulations, the wheelchair user performed fewer manoeuvres to enter the train, as they were located in a position facing the vertical handrail with their back pointing to the train doors. However, to get off the train, the wheelchair user performed a greater number of manoeuvres to turn and avoid contact with other design features (e.g., seats) around the vertical handrail.
Table 3.
Boarding and alighting time considering one passenger holding on the vertical handrail.
In the situation with the vertical handrail located on one side of the train (Figure 8-right and Table 3), it is observed that, on average, the alighting time (2.92 s) is lower than the boarding time (3.90 s). This is because, in this scenario, the vertical handrail is on one side of the train, and, therefore, there is more space to manoeuvre the wheelchair when entering the train. Likewise, in the process of getting off the train, just as in the previous scenario, the wheelchair user took longer to get off because they needed to reach a better position to get out of the carriage, by turning and positioning themselves facing forward to move to the platform.
4.3.2. Scenario 2: Two Passengers Holding on to the Vertical Handrail
In this section, the results obtained in scenario number two are summarised, in which two passengers were holding on to the vertical handrail (located in the centre and on the side of the car). Likewise, the study of the variable of the type of relationship between the confirmed passengers was considered, in which two cases were compared: passengers who knew each other and passengers who were strangers (see Figure 9).
Figure 9.
The layout of the mock-up in Scenario 2: (A) vertical handrail in the centre of the carriage and passengers were strangers; (B) vertical handrail displaced a distance of 65 cm from the centre and passengers were strangers; (C) vertical handrail in the centre of the carriage and passengers knew each other; (D) vertical handrail displaced a distance of 65 cm from the centre and passengers knew each other.
In the case in which the two passengers holding on to the vertical handrail located in the centre of the carriage knew each other (Figure 9C), they were located at a distance between 10 and 40 cm and occupied less space inside the carriage. It is observed that, on average, the boarding time (4.27 s) was higher than the alighting time (3.50 s). Likewise, it is observed that the wheelchair passengers had less space to manoeuvre to find the location that is best for them and not interfere with the space occupied by other passengers next to the vertical handrail (see Table 4).
Table 4.
Boarding and alighting time considering two passengers holding on to the vertical handrail located in the centre of the hall.
In the case in which the two passengers holding on to the vertical handrail located in the centre of the carriage were strangers (Figure 9A), they were located at a distance between 40 and 100 cm and occupied more space inside the carriage. It is observed that, on average, the user in a wheelchair took a longer time to enter the train (4.74 s), which is almost twice the average time to get off the carriage (2.70 s). This is because the wheelchair passenger, upon entering the carriage, determined that the location that most favoured them was the one that accommodated facing the doors. In this way, they performed fewer manoeuvres to get off the train, and, therefore, the alighting time was shorter (see Table 4).
In the case in which the two passengers holding on to the vertical handrail located on one side of the carriage knew each other (Figure 9D), they were located at a distance between 10 and 40 cm and, therefore, occupied less space inside the carriage. It is found that, on average, the wheelchair passenger took less time to enter the carriage (3.85 s) than to get off (3.95 s). This is because, in this case, the passengers had more space to move around inside the train (see Table 5).
Table 5.
Boarding and alighting time considering two passengers holding on to the vertical handrail located on one side of the carriage.
In the case in which the two passengers holding on to the vertical handrail located on one side of the carriage were strangers (Figure 9B), they were located at a distance between 40 and 100 cm and occupied more space inside the carriage. It is observed that, on average, the wheelchair user took longer to enter the carriage (4.36 s) than to get off (4.09 s). This is because, in this case, compared to the previous one, the wheelchair passenger had less space to move around inside the train, which was reflected in longer boarding and alighting times (see Table 5).
In summary, it can be seen that in the four cases described in this section above, the lowest average value of the boarding time corresponds to that obtained in the case in which passengers knew each other and the vertical handrail is located at one side of the carriage, while the highest value was obtained in which the passengers were unknown and the vertical handrail was located on the centre of the carriage. Likewise, the lowest average value of the alighting time corresponds to the case in which passengers were unknown and the vertical handrail was located in the centre of the carriage, while the highest value was obtained in the case in which passengers were unknown and the vertical handrail was located on one side of the carriage. These results show the influence that the location of the handrail inside the carriage has on the accessibility for passengers who move in a wheelchair, considering the type of relationship between them. In the case in which passengers were known and the handrail was located on the side of the train, relatively homogeneous values for the average and standard deviation of boarding and alighting time were observed.
4.3.3. Scenario 3: Three Passengers Holding on to the Vertical Handrail
In this section, the results obtained in scenario number three are summarized. Similar to what is described in Section 4.2, the simulations of four cases were carried out, in which three passengers were holding on to the vertical handrail (located in the centre and on the side of the car). Therefore, in each of these cases, the study of the variable of the type of relationship between passengers was considered, in which two of the three passengers simulated the situation in which they knew each other or were strangers (see Figure 10).

Figure 10.
The layout of the mock-up in Scenario 3: (A) vertical handrail in the centre of the carriage and passengers were strangers; (B) vertical handrail displaced a distance of 65 cm from the centre and passengers were strangers; (C) vertical handrail in the centre of the carriage and passengers knew each other; (D) vertical handrail displaced a distance of 65 cm from the centre and passengers knew each other.
In the case in which two of the three passengers holding on to the vertical handrail located in the centre of the carriage knew each other (Figure 10C), they were located at a distance between 10 and 40 cm from each other, with a distance between 40 and 100 cm concerning the unknown passenger. It is observed that, on average, the wheelchair user took longer to enter the carriage (7.00 s) than to get off (4.65 s). This is because, in this case, the wheelchair passenger had less space to move around inside the train, and, therefore, the manoeuvrability and ease of entering the train considerably decreased (see Table 6).
Table 6.
Boarding and alighting time considering three passengers holding on to the vertical handrail located in the centre of the hall.
In the case in which the three passengers holding on to the vertical handrail located in the centre of the carriage were strangers (Figure 10A), they were located at a distance between 40 and 100 cm. It is observed that, on average, the passenger in a wheelchair took twice as long to enter the carriage (9.06 s) than to get off (4.50 s). This is because compared to the previous one, passengers had less space to move around inside the train, affecting the manoeuvrability of the wheelchair passenger (see Table 6).
In the case in which only two of the three passengers holding on to the handrail located on one side of the carriage knew each other (Figure 10D), they were located at a distance between 10 and 40 cm from each other, with a distance between 40 and 100 cm concerning the unknown passenger. The results show that the boarding and alighting time is reduced compared to the case in which the vertical handrail is located in the centre of the carriage, reaching on average 5.62 s and 3.69 s, respectively. This difference in values concerning the two previous cases is because, in this case, both passengers had more space to move inside the train, that is, there was a small increase in manoeuvrability (see Table 7).
Table 7.
Boarding and alighting time considering three passengers holding on to the vertical handrail located on one side of the carriage.
Finally, in the case in which the three passengers who were holding on to the vertical handrail located on one side of the carriage were strangers (Figure 10B), they were located at a distance between 40 and 100 cm. It is observed that, on average, the wheelchair passenger took longer to enter the carriage (5.04 s) than to get off (3.69 s). Compared to the previous test, passengers had less space to move inside the train, which was reflected in longer boarding and alighting times (see Table 7).
5. Discussion and Conclusions
The results show that the location of the vertical handrail inside urban trains influences the accessibility of passengers using wheelchairs. Consequently, longer or shorter times for getting on and off the train are reached, depending on the location of the vertical handrail inside the train and the relationship between the passengers holding the handrail. This is evident in all scenarios and becomes more noticeable as the number of people holding on to the vertical handrail increases.
In this sense, in scenario three, that is, in cases where three passengers were holding onto the vertical handrail, the average boarding time recorded when the vertical handrail was located in the centre of the train was 8.03 s, while that of when the handrail was located on one side was 5.33 s (i.e., a decrease of 34%). For the alighting time, the panorama was similar, in which a decrease of 19% was evidenced. Likewise, in scenario two, in the cases in which two passengers were holding the vertical handrail, the average boarding time decreased by 9%, while the boarding time increased by 30%. Finally, in scenario one, that is, in the cases in which a passenger was holding the vertical handrail, a decrease of 21% was recorded in the average boarding time and an increase of 5% in the average alighting time, by changing the handrail from the centre of the carriage to the side of it. In this way, it is suggested that the location of the handrail on one side is more efficient than the current location (in the centre of the carriage). According to the results of the survey, this new location of the vertical handrail will improve the accessibility for passengers in wheelchairs and all metro users.
In Table 8, it is observed that the average boarding and alighting times in the third scenario were higher compared to the other two scenarios, which means that if the number of passengers increases, the boarding and alighting times will also rise. Likewise, it is evident that, when going from scenario one to two, the average boarding time increased by 30%, while, when going from scenario two to three, it increased by 55%. This is due to the increase in the number of passengers inside the carriage, which, therefore, affects the manoeuvrability of the wheelchair passenger. In addition, in scenarios two and three, in cases where the vertical handrail was in the centre of the hall and in which passengers were strangers, the average boarding times were higher. Likewise, in all the scenarios, it was observed that how the passenger in a wheelchair accommodated themselves inside the carriage significantly affected the boarding and alighting times. In the cases in which the wheelchair passenger entered the carriage facing the vertical handrail and kept their back to the doors, the boarding time was shorter than when the wheelchair passenger needed to manoeuvre to accommodate another position.
Table 8.
Average boarding and alighting time.
It is important to highlight that in the experimentation stage, the volunteers were instructed to hold on to the vertical handrail in each scenario, considering the types of relationships that were utilized in this study. In this way, in the cases in which the type of relationship between users was unknown (e.g., strangers), it was observed that the distances between them were between 40 and 100 cm, while in those cases in which the type of relationship was known (e.g., family or friends), the distances ranged between 10 and 40 cm. This shows that the distances vary according to the type of relationship between the passengers and, as indicated by Hall [40] the environment. Likewise, it was determined that the zones established by this researcher are difficult to implement in the simulation conditions of a mock-up of a carriage, as seen in the three scenarios studied. In this sense, we can suggest a new definition of personal distance inside a train, in which two known passengers reach a value between 10 and 40 cm (which is a lower value compared to the personal distance defined by Hall: between 46 and 121 cm). Similarly, a new social distance is defined inside the train, in which the distance between strangers is between 40 and 100 cm (and not between 120 and 350 cm, as defined by Hall).
In relation to the other design features at the PTI, the accessibility should be focused on the tactile pavement of the yellow safety line at the platform edge, which is deficient in all stations. However, all the stations presented a platform width greater than 3.0 m and an adequate use of seats on the platform. In addition, the distance between the platform edge and the yellow safety line is greater than 80 cm in all stations.
The limitation of this study is that few participants were considered in the experiment simulations due to the COVID-19 pandemic, in which restrictions of mobility were considered. In other words, agglomeration restrictions were considered in closed spaces such as the laboratory facility used in this study. Nevertheless, further research (e.g., after COVID-19 restrictions are lifted or in a “back to a normal situation”) will consider new simulations that include more participants in the experiments. Further experiments need to be done to consider other types of disabilities, such as passengers using a cane or an electric wheelchair. In these new experiments, other types of passengers would be needed to represent different kinds of users, while also considering other layouts inside the train (e.g., location and type of seats).
Author Contributions
Conceptualization, F.C. and S.S.; methodology, S.S.; software, F.C.; validation, V.A.F. and P.M.; formal analysis, F.C. and S.S.; investigation, V.A.F., P.M. and S.S.; resources, F.C.; data curation, F.C.; writing—original draft preparation, F.C. and S.S.; writing—review and editing, V.A.F. and P.M.; visualization, F.C.; supervision, S.S.; project administration, S.S.; funding acquisition, S.S. All authors have read and agreed to the published version of the manuscript.
Funding
This research was funded by ANID Project 11200012 “Passengers on Urban Railway Platforms by Laboratory Experiments (PURPLE)”.
Institutional Review Board Statement
The study was conducted in accordance with the Declaration of Helsinki, and approved by the Institutional Review Board (or Ethics Committee) of Universidad de los Andes (protocol code CEC202089 and 23 October 2020).
Informed Consent Statement
Informed consent was obtained from all subjects involved in the study.
Acknowledgments
The authors would like to thank the volunteers who participated in the experiments. This study is supported by ANID, FONDECYT Project 11200012 “Passenger on Urban Railway Platform by Laboratory Experiments”.
Conflicts of Interest
The authors declare no conflict of interest.
References
- Metro de Santiago. Annual Report; Metro de Santiago S.A.: Santiago, Chile, 2019. [Google Scholar]
- Seriani, S.; Fernández, R. Planning guidelines for metro–bus interchanges by means of a pedestrian microsimulation model. Transp. Plan. Technol. 2015, 38, 569–583. [Google Scholar] [CrossRef]
- Larue, G.S.; Popovic, V.; Legge, M.; Brophy, C.; Blackman, R. Safe trip: Factors contributing to slip, trip and fall risk at train stations. Appl. Ergon. 2021, 92, 103316. [Google Scholar] [CrossRef] [PubMed]
- RSSB. Management of on-Train Crowding: Final Report; Rail Safety and Standards Board: London, UK, 2008. [Google Scholar]
- RSSB. Platform Train Interface Strategy; Rail Safety and Standards Board: London, UK, 2015. [Google Scholar]
- Valdivieso, J.; Seriani, S. Study of the space occupied by a wheelchair user at Metro Santiago platforms by laboratory experiments. J. Adv. Transp. 2021, 2021, 1789241. [Google Scholar] [CrossRef]
- Seriani, S.; Fernandez, R.; Oyanedel, C. The impact of gap dimensions on passengers boarding and alighting using different mobility aids at railway stations by laboratory experiments. Int. J. Rail Transp. 2021, 9, 186–202. [Google Scholar] [CrossRef]
- Tyler, N. Accessibility and The Bus System: Transforming The World; ICE Publishing: London, UK, 2015. [Google Scholar]
- Weyman, A.; O’Hara, R.; Jackson, A. Investigation into issues of passenger egress in Ladbroke Grove rail disaster. Appl. Ergon. 2005, 36, 739–748. [Google Scholar] [CrossRef] [PubMed]
- Schwanitz, S.; Wittkowski, M.; Rolny, V.; Basner, M. Pressure variations on a train—Where is the threshold to railway passenger discomfort? Appl. Ergon. 2013, 44, 200–209. [Google Scholar] [CrossRef]
- Law 20,422. Ley 20.422. 2010. Available online: https://www.bcn.cl/leychile/navegar?idNorma=1010903&idParte= (accessed on 4 October 2021).
- Decree 142. Normativas Sobre Igualdad de Oportunidades e Inclusión Social de Personas con Discapacidad, Relativo al Transporte Público de Pasajeros. Biblioteca del Congreso Nacional de Chile. 2011. Available online: https://www.bcn.cl/leychile/navegar?idNorma=1027577 (accessed on 29 October 2021).
- Decree 122. Normativas Sobre Requisitos Dimensionales y Funcionales de Vehículos que Presenten Servicios de Locomoción Colectiva Urbana. Biblioteca del Congreso Nacional de Chile. 1991. Available online: https://www.bcn.cl/leychile/navegar?idNorma=9612 (accessed on 29 October 2021).
- Metro de Santiago. Annual Report; Metro de Santiago S.A.: Santiago, Chile, 2021. [Google Scholar]
- Seriani, S.; Fernandez, R. Pedestrian traffic management of boarding and alighting in metro stations. Transp. Res. Part C Emerg. Technol. 2015, 53, 76–92. [Google Scholar] [CrossRef]
- Seriani, S.; Fujiyama, T. Exploring the effect of train design features on the boarding and alighting time by laboratory experiments. Collect. Dyn. 2019, 4, 1–21. [Google Scholar] [CrossRef]
- Senadis. II Estudio Nacional de la Discapacidad; Servicio Nacional de la Discapacidad, Ministerio de Desarrollo Social y Familia: Santiago, Chile, 2015. [Google Scholar]
- Cepeda, E.P.; Galilea, P.; Raveau, S. How much do we value improvements on the accessibility to public transport for people with reduced mobility or disability? Res. Transp. Econ. 2018, 69, 445–452. [Google Scholar] [CrossRef]
- Colmenero-Fonseca, F.; Fonce-Segura, C.D.; Guzmán-Ramírez, A.; Flores-García, M. Sustainable public transport service adapted for people with disabilities and reduced mobility in the municipality of León, Guanajuato, Mexico. Sustainability 2021, 13, 7471. [Google Scholar] [CrossRef]
- Dell’Olio, L.; Moura, J.L.; Ibeas, A. Bus transit accessibility for people with reduced mobility: The case of oviedo, Spain. Inst. Transp. Engineers. ITE J. 2007, 77, 28. [Google Scholar]
- Koontz, A.M.; Bass, S.R.; Kulich, H.R. Accessibility facilitators and barriers affecting independent wheelchair transfers in the community. Disabil. Rehabil. Assist. Technol. 2021, 16, 741–748. [Google Scholar] [CrossRef] [PubMed]
- Martens, K. Ageing, impairments and travel: Priority setting for an inclusive transport system. Transp. Policy 2018, 63, 122–130. [Google Scholar] [CrossRef]
- Luangboriboon, N.; Seriani, S.; Fujiyama, T. The influence of the density inside a train carriage on passenger boarding rate. Int. J. Rail Transp. 2021, 9, 445–460. [Google Scholar] [CrossRef]
- Li, C.Y.; Yang, R.Y.; Chen, L.; Tang, T.Q. A boarding model for heterogeneous passengers on the platform of high-speed railway station. Simul. Model. Pract. Theory 2021, 106, 102188. [Google Scholar] [CrossRef]
- Ai, X.; Liu, Y.; Wu, Z.; Chai, J.; Ju, X.; Duan, W.; Zhao, L.; Liang, Y. The effect of luminance contrast between sign and surrounding object on gaze behavior: A study in virtual metro station environment with rendered static/dynamic panorama. Informatica 2021, 45, 7. [Google Scholar] [CrossRef]
- Li, Z.; Lo, S.M.; Liu, S.; Ma, J.; Huang, D. Modeling metro passengers being eager to get aboard during the alighting and boarding process. Transp. A Transp. Sci. 2021, 17, 714–738. [Google Scholar] [CrossRef]
- Chen, F.; Gao, Y.; Wang, Z.; Liu, Y. Analysis on alighting and boarding movement laws in subway using modified social force model. Collect. Dyn. 2020, 5, 307–315. [Google Scholar] [CrossRef]
- Li, Z.; Lo, S.M.; Ma, J.; Luo, X.W. A study on passengers’ alighting and boarding process at metro platform by computer simulation. Transp. Res. Part A Policy Pract. 2020, 132, 840–854. [Google Scholar] [CrossRef]
- Nakai, K.; Omino, K.; Shiroto, H.; Suzuki, D. Simulation of passenger behavior on board a commuter train in the event of a level crossing accident. Q. Rep. RTRI 2012, 53, 235–240. [Google Scholar] [CrossRef][Green Version]
- Peng, Y.; Xu, T.; Hou, L.; Fan, C.; Zhou, W. An investigation of dynamic responses and head injuries of standing subway passengers during collisions. Appl. Bionics Biomech. 2018, 2018, 1096056. [Google Scholar] [CrossRef]
- Yao, S.; Li, X.; Xiao, X.; Xu, P.; Che, Q. Injuries to standing passengers using different handrails in subway train collision accidents. Int. J. Crashworthiness 2021, 26, 53–64. [Google Scholar] [CrossRef]
- Xu, P.; Xiao, X.; Yao, S. A review of train passenger safety—Inspiration from passive safety passenger protection technology of automobile. Transp. Saf. Environ. 2021, 4, tdab032. [Google Scholar] [CrossRef]
- Qu, Y.; Xiao, Y.; Liu, H.; Yin, H.; Wu, J.; Qu, Q.; Li, D.; Tang, T. Analyzing crowd dynamic characteristics of boarding and alighting process in urban metro stations. Phys. A Stat. Mech. Its Appl. 2019, 526, 121075. [Google Scholar] [CrossRef]
- Lopatinskaya, I.; Ivashkova, N.; Timokhina, G.; Skorobogatykh, I.; Shirochenskaya, I.; Grineva, O. Managing the Competitiveness of Moscow Underground (Metro) Based on Consumer Satisfaction. J. East. Eur. Res. Bus. Econ. 2021, 13, 126026. [Google Scholar] [CrossRef]
- Han, S.H.; Jung, E.S.; Jung, M.; Kwahk, J.; Park, S. Psychophysical methods and passenger preferences of interior designs. Appl. Ergon. 1998, 29, 499–506. [Google Scholar] [CrossRef]
- Atkins. Significant Steps, Research Commissioned by UK; Department for Transport: London, UK, 2004. [Google Scholar]
- Damen, W.; de Boer, E.; de Kloe, R. Assesing the gap between public transport vehicles and platforms as a barrier for the disabled: Use of laboratory experiments. Transp. Res. Rec. 2008, 2072, 131–138. [Google Scholar] [CrossRef]
- Fernandez, R.; Zegers, P.; Weber, G.; Tyler, N. Influence of platform height, door width, and fare collection on bus dwell time. Transp. Res. Rec. J. Transp. Res. Board 2010, 2143, 59–66. [Google Scholar] [CrossRef]
- Ross, T.; May, A.; Cockbill, S.A. The personal and contextual factors that affect customer experience during rail service failures and the implications for service design. Appl. Ergon. 2020, 86, 103096. [Google Scholar] [CrossRef]
- Hall, E. The Hidden Dimension. Doubleday 1966, 14, 103–124. [Google Scholar] [CrossRef]
- Sommer, R. Personal Space: The Behavioral Bases of Design; Prentice Hall, Inc.: Hoboken, NJ, USA, 1969. [Google Scholar]
- Fruin, J. Designing for Pedestrians: A Level of Service Concept. In Highway Research Record; The Port of New York Authority: New York, NY, USA, 1971; Volume 377, pp. 1–15. [Google Scholar]
- Pushkarev, B.; Zupan, J. Urban Space for Pedestrians; The MIT Press: Cambridge, MA, USA, 1975. [Google Scholar]
- Mace, R. Center for Universal Design. 1997. Available online: https://projects.ncsu.edu/ncsu/design/cud/about_us/usronmace.htm (accessed on 29 October 2021).
- Iwarsson, S.; Stahl, A. Accessibility, usability, and universal design—Positioning and definition of concepts describing person-environment relationships. Disabil. Rehabil. 2003, 25, 57–66. [Google Scholar] [CrossRef]
- Mustaquim, M.M. A reflection on interdisciplinarity research in universal design toward sustainability. Univers. Access Inf. Soc. 2017, 16, 73–83. [Google Scholar] [CrossRef]
- Tam, V.W.; Fung, I.W.; Tsang, Y.T.; Chan, L. Development of a Universal Design-Based Guide for Handrails: An Empirical Study for Hong Kong Elderly. Sustainability 2018, 10, 4233. [Google Scholar] [CrossRef]
- Grazuleviciute-Vileniske, I.; Seduikyte, L.; Teixeira-Gomes, A.; Mendes, A.; Borodinecs, A.; Buzinskaite, D. Aging, living environment, and sustainability: What should be taken into account? Sustainability 2020, 12, 1853. [Google Scholar] [CrossRef]
Publisher’s Note: MDPI stays neutral with regard to jurisdictional claims in published maps and institutional affiliations. |
© 2022 by the authors. Licensee MDPI, Basel, Switzerland. This article is an open access article distributed under the terms and conditions of the Creative Commons Attribution (CC BY) license (https://creativecommons.org/licenses/by/4.0/).