Abstract
Bearing in mind that dwellings generate a high environmental impact, the aim of this research is to improve their energy efficiency. The incorporation of an insulating layer in the extrados of the building envelope is the most effective way of reducing the transmittance of a facade, eliminating thermal bridges, and optimizing its energy consumption. There is no doubt about the effectiveness of this solution in terms of thermal protection. However, this process collides with the preservation of the original composition of buildings with ornate facades. This article presents a protocol for the rehabilitation of ornate facades of historic buildings through the application of an insulating layer on the outside of the walls. The protocol shows that advanced techniques applied with an integrated approach permit compatibility between energy rehabilitation and the preservation of the original value. In addition to applying strategies of a high technological level, the protocol proposes a reflection upon a balanced intervention on ornamental elements, as well as the relationship between the degree of energy improvement of an ornate facade, and the degree of preservation of the original composition. A methodology is established that combines different avant-guard techniques and systems. These include capturing reality in 3D, the Building Information Model (BIM), monitoring, advanced manufacturing, and active and passive solution simulations.
1. Introduction
Studies show that more than 65% of the world’s consumption of primary energy can be attributed to urban areas, which, in turn, generate more than two thirds of direct global greenhouse gas emissions. But it should be underscored that Directive 2012/27/EU of the European Parliament and Council, of 25 October 2012, relating to the Energy Efficiency of Buildings states that protected buildings are excluded from complying with energy improvement regulations [1]. This is detrimental to environmental sustainability, and demands a solution that addresses two problems: on the one hand, improving the energy efficiency of buildings, and on the other, maintaining the preservation of protected buildings. The main objective of this study is to establish a protocol where the heritage value of the building is adapted to possible energy intervention. The value of the protocol described and carried out on the Miñones Barracks lies in combining the application of a series of technological resources and a theoretical reflection upon the intervention on ornate facades. On the one hand, it incorporates a series of technical tools, relating to tests on permeability tests, thermal resistance and obtaining heat losses, as well as obtaining point clouds by means of 3D laser scanning and unmanned aerial vehicles (UAV)-assisted automated photogrammetry techniques, processing and management by using Building Information Model (BIM) technology, and manufacture of ornamental elements; on the other hand, after obtaining all the information, it proposes a balanced approach between energy optimization and preservation of the original architectural nature of the facades.
In the Basque Country, there are more than one million dwellings with an average age of 43 years [2], which undoubtedly have consequences on the environment, associated with energy consumption. Pursuant to European regulations, several initiatives have been proposed. In 2013, Law 8/2013 on Urban Rehabilitation, Regeneration and Renovation entered into force in Spain. It was foreseen in this law that future interventions on residential buildings were going to be essential to improve energy efficiency. After the law was passed, different programs were approved to manage public aid. At a state level, the Institute for Diversification and Saving of Energy was responsible for the launch of the Aid Program for energy rehabilitation of buildings (PAREER-CRECE). At a regional level, insofar as the Basque Country was concerned, the Basque Energy Board launched the RENOVE Plan, within the Europe 2020 Strategy, whose target was to increase the energy efficiency of dwellings and buildings, improve accessibility conditions, and strengthen social cohesion.
In 2017, the Basque Government conducted a study on Housing Needs and Demand in the Basque Country, concluding that 76,286 households would need to be rehabilitated within 4 years. In response to this, a series of programs have been launched, noteworthy among which is the Basque Government’s Housing Department’s AGREE Project (‘Aggregation and improved Governance for untapping Residential Energy Efficiency potential in the Basque Country’). This project is partially financed by the European Union, and the Housing Department hopes to mobilize 8.5 million Euros within the next three years to rehabilitate private residential buildings that are more than 40 years old. These programs aim to solve a prevailing problem in the management of the existing public housing stock [3], both for the tenants and for Alokabide, the Government’s rented housing stock agent, which has more than 7600 dwellings in its portfolio.
We present an action protocol for the smart energy rehabilitation of historic buildings, based on the work carried out to rehabilitate the Miñones Barracks of Ortuella (Vizcaya). The work was undertaken within the “nZEB, Rehabilitación Inteligente de Edificios Bajo Criterios de Consumo de energía casi Nulo”, (ZEB, Smart Building Rehabilitation under Nearly Zero-Energy Consumption Criteria) strategic initiative [4], promoted by the Department of the Environment, Territorial Planning and Housing of the Basque Government. During the years 2018 and 2019, the building underwent an in-depth analysis, led by the university team—authors of this paper—in order to propose innovative solutions related to energy efficiency and rehabilitation, but also to study, given that it is a classified building, the compatibility between the rehabilitation measures to be applied, and the preservation of the original configuration. These energy improvement solutions are based on non-destructive tests such as infrared thermography, supported by the massive capture of geometries by means of 3D laser scanning [5], and UAV-(Unmanned Aerial Vehicle) assisted automated photogrammetry [6], with the aid of advanced manufacturing using smart and industrialized systems, whose performance will be monitored through measurement instruments, permanently linked to BIM digital models, which will permit preventive and generative maintenance in virtual or augmented environments [7].
After intervening in the domestic hot water (DHW), HVAC and lighting systems, the most effective measure to limit the energy demand of a residential building is to reduce the thermal transmittance of the blind walls of its envelope. Regarding buildings constructed with load-bearing walls, there are two possible solutions: the incorporation of an insulating layer in the intrados of the facade, and the adherence of insulation on the outer part, whatever its finish. Of the two solutions, the one that acts upon the extrados is imposing itself, given a series of important reasons, such as the continuity of the new incorporated envelope, the elimination of thermal bridges, and the protection of the interior of the homes [8]. However, despite this being an efficient procedure from the thermal protection viewpoint, it does not really adapt to the compositive principles of ornate facades, characterized by a series of elements that jut out from the walls, such as moldings, shields, and bas-reliefs. Advanced techniques, applied with an integrated approach, permit making energy rehabilitation compatible with the preservation of the original value of the building [9]. These action protocols will afford benefits in the environmental field, as they reduce CO2 emissions, and they will also act as a reference, both for the residential sector and for the wider population in general.
2. Case, Materials, and Methods
In most of the energy interventions proposed and carried out today [10], the results in terms of energy improvement prevail, not taking into account the origin of the building or the consequences from a viewpoint of the urban environment, of the architecture or its original constructive characteristics. At the other extreme, we find a property where energy improvement becomes unfeasible due to the mere fact of being included in a protection inventory. There are many studies on the different solutions that exist in the market for the energy improvement of the different elements that make up the thermal envelope, the partial results that can be achieved, and the modifications of their installations to achieve better performances. However, it is not clear which solution, out of the wide range that exists, is the best for each of the cases.
Hence, it is considered that the most adequate energy intervention in built heritage is the solution that combines energy improvement of each building and respect for its original configuration [11]. This leads us to propose that each intervention must be specific for each specific case. In this applied study, a protocol consisting of different stages is proposed (Figure 1):
Figure 1.
Diagram of proposed intervention protocol. (Source: Authors).
- (1)
- Collect historical documentation
- (2)
- Data collection of the current state
- Analysis of existing regulations on energy efficiency
- Analysis of building protection regulations (study case). Establish the degree of intervention (0-IV)
- Building inspection
- Non-destructive testing, extraction of data from the baseline
- Capture of the textured geometry of the building (3D laser scanning and automated photogrammetry assisted by UAV)
- Baseline scenario monitoring
- (3)
- Creation of the BIM Model
- (4)
- Study of active and passive solutions for energy rehabilitation
- (5)
- Simulation of solutions with the BIM Model
- (6)
- Study of different ETICS solutions. Thermal bridges evaluation and study.
- (7)
- Study of different advanced manufacturing solutions to isolate ornate facades on the outside. Prototypes
- (8)
- Execute rehabilitation
- (9)
- Evaluation of the rehabilitation carried out. Monitoring linked to the BIM model
- (10)
- Sustainable management and maintenance of the building from the BIM model
In some cases, the energy saving achievements will be optimal, in others they will only go half-way, and in others they may even be low. On the other hand, we preserve the built heritage in agreement with the original value of each building. To this end, we must classify the different properties, not only from the viewpoint of heritage values to be preserved, but also in terms of the energy values to be achieved [12,13].
2.1. Proposal of Degrees of Intervention in Built Heritage
After analyzing many residential buildings, a 5-degree theory was determined for energy intervention in heritage. This theory must cover the entire spectrum of buildings considered to form part of the built heritage, and even those that are not protected, but that may have some value that must be protected. This classification in degrees must contain two basic values to be considered: On the one hand, the degree of building protection value, and on the other, the level of energy improvement that can be reached, bearing in mind the first value. Both values must form part of one single concept. The different degrees are going to be presented, starting with Degree 0, which is the study of the property as it is today, continuing until Degree IV, which would be the case of the most intervened building. Within these degrees, there is a progressive energy efficiency improvement level, and a regressive heritage protection level (Figure 2) [14].
Figure 2.
Diagram of configuration of the 5 intervention degrees. (Source: Authors).
2.1.1. Degree 0. Original State
This is not an intervention per se. It is the study and analysis of the property that is going to be intervened, described as it is in its current state. Before proposing any type of intervention, it is important to recognize and analyze the state of the construction on which we are going to take action. The building forms part of a built environment.
2.1.2. Degree I. Preservation, Restoration and Reconstruction
The energy intervention is complicated in buildings that have already been classified. The intervention carried out is as permitted in the different inventories. In the majority of the cases, they are exempt from compliance with energy efficiency.
2.1.3. Degree II. Selective Intervention
Some elements may be repaired, replaced, or even modified, but only those that have no conservation value, or that do not substantially modify the building. This is a mixed solution, where positive energy efficiency values are achieved, although always maintaining some heritage conservation characteristics.
2.1.4. Degree III. Mass Intervention
In this case, the solution could also be called a “mixed” one. The energy objectives are achieved, and the property is essentially maintained, but with variations in terms of its architecture. Unlike degree II, in this case, the solution may lead to slight variations in the image and configuration of the building. The volume and profile of the building are maintained, but it is afforded a new image, thanks to the use of new materials and constructive solutions.
2.1.5. Degree IV. Invasive Intervention
The action taken in this last degree is invasive. In other words, the original property is used as support to introduce new solutions or extensions, where energy efficiency improvement is the main consequence of the proposed new building [15].
2.1.6. Case Study Degree
The most suitable energy intervention for most of the buildings that make up the existing building stock is found between Degrees II and III. Thus, it is possible to intervene in these buildings to improve energy performance, but at the same time its heritage values can be preserved. In this case study, we would also be between Degree II and Degree III of the aforementioned stages. It is not a Degree I intervention as it is not a building, which, despite being protected, has great monumental value. It is not Degree IV either, which would permit any type of intervention that might transform the original configuration of the building. Selective Intervention or Mass Intervention may be the answers to the proposal of this study.
2.2. Energy Rehabilitation
Energy improvement, present in the objectives set out in the 2030 Euskadi Energy Strategy, which, in agreement with the objectives, would be in line with European, state and local guidelines in this field, translates into a series of intervention measures in the built stock [16], which are encompassed within the broad concept of energy rehabilitation, and in particular [17], in the orientation of this rehabilitation towards the transformation of buildings into nearly zero-energy buildings. The energy objective established as a priority by the Basque Government is to obtain consumption levels close to the European recommendations for nearly Zero-Energy Buildings. This would represent, on the one hand, a total primary energy consumption (nZEB) of ≤65 kWh/m2; on the other hand, it would represent the possible on-site contribution of renewable sources of 45 kWh/m2, and non-renewable primary energy of ≤20 kWh/m2/y.
The main objective cannot be achieved by applying conventional solutions, so solutions that adapt to this type of buildings must be studied and developed. The study was developed in several phases: first, the regulatory context of energy rehabilitation and the definition of nZEB buildings, applicable to the buildings targeted by this work, was analyzed; second, the data of the social housing of the Autonomous Community of the Basque Country (CAPV) managed by different public administrations, and which amount to a total of 7693 houses, were analyzed [2,18]. After determining the rehabilitation context, the study focused on the energy analysis of the pilot case, ending with the definition of measures to be adopted. Consequently, a methodological sequence, in several stages, was established, which might act as a model for this type of energy interventions in historic buildings.
The first stage focused on analyzing the current state, compiling data about the constructed reality of the building, and combining 3 main aspects. First, the building was inspected and non-destructive tests were conducted. Second, the geometric and texturized capturing of reality by 3D laser scanning, and UAV-assisted automated photogrammetry were carried out. The third aspect—one of considerable importance—entailed monitoring the energy variables, which permitted the characterization prior to the intervention. This led to a more concrete definition of the interventions, and the subsequent evaluation of the improvements reached with the implemented measures, enabling the building conditions to be controlled during its entire Life Cycle.
During the second stage, a BIM model was created, which, in addition to facilitating the efficient execution of the rehabilitation [19], and permitting the sustainable maintenance and management of the building during its entire working life, among other options, permitted simulation and analysis with specific software.
The third stage entailed studying different passive and active solutions for the energy rehabilitation. Six scenarios were established based on the preselected active solution alternatives, which were combined with the two passive measure scenarios finally selected.
In the fourth stage, the respective simulations of all the scenarios were carried out with specific software for dynamic calculations, analyzing several objective functions that contemplate aspects such as investment and operational costs, and energy and CO2 emissions analysis, which enabled the different systems to be compared, based on the criteria proposed, in this case, by the Basque Government.
This was followed by a technical and economic analysis of the passive solutions in agreement with the current demand and the optimal solution considered, which permitted selecting two basic passive measure scenarios, i.e., the one with the best cost-effective ratio, and the one that represented greater energy saving.
After this, the thermal bridges of the building were analyzed, with several intervention solutions in the envelope.
Finally, specific solutions were proposed through advanced manufacturing, for the thermal insulation on the outside, bearing in mind the complexity of ornate facades.
2.2.1. Passive Intervention Solutions
The so-called passive interventions can be found at the base of the pyramid [20]. These improve the original architectural design of the building, thus increasing the efficiency of existing constructive systems, as well as users’ comfort levels. This group of interventions is essential, insofar as the rehabilitation of heritage architecture is concerned, as they help to considerably improve the building efficiency. The passive intervention solutions to reduce demand were classified into 4 large groups.
The first group was the group of application technologies in opaque envelope for facades. These were divided into three types, starting with solutions on the outside, and continuing with solutions on the inside, finally concluding with technologies to improve opaque envelopes through their air chamber. The second group was the group of application technologies in opaque envelope for roofs, which are divided into two insulation solutions, on the outside and on the inside of the roof. The third group was the group of application technologies in glazed envelopes, which affect window carpentries, the different glass solutions, and shading elements. Finally, other interventions in building elements were contemplated, such as, for example, the insulation of the decks between stories, and the insulation of partitioning between non-heated areas and dwellings.
2.2.2. Active Intervention Studies
Active measures must be treated as a complement to the passive actions, which must always be proposed as a first step to be considered when addressing energy rehabilitation. Once the energy demand of the building was minimized by implementing the passive strategies contained in the previous point [21], the aim is for the systems, responsible for covering the lighting, heating, cooling, ventilation, and domestic hot water production needs, to be as efficient as possible, thus reducing the energy consumption associated with these systems. Low consumption active measures, which guarantee the reduction of consumptions, were implemented, on establishing synergies with some of the passive measures adopted. Renewable installations, which help to reduce consumptions, are found at the top of the pyramid. The most common ones used are thermal solar energy, photovoltaic solar energy, wind energy, and biomass. These systems generate clean energy from theoretically inexhaustible natural sources, such as the sun, water, or wind, and therefore have less environmental impact. The different renewable energy sources were not taken into account in this study, because their implementation is deemed difficult to apply, as the case study is an existing building, and has a heritage protection degree that does not permit a large variety of solutions.
2.2.3. Approach to the Case Study Solutions
Regardless of whether the carpentry and glass are renewed or not, there are two types of commonly used solutions to reduce the transmittance of the blind walls of the enclosure: the first is the incorporation of insulation on the internal face of the facade and the second is the adherence of insulation on the outer part; both can be used if the finish is with plaster, as is the case of External Thermal Insulation Composite Systems (ETICS), or by means of ventilated facade. A third possibility exists, moreover, in the case of the double ceramic skin facades used from the 1940s, consisting of injecting foam on the inside of the chamber. Of the three solutions, the one that is being imposed is the solution based on the action on the outside, given a series of important reasons: the continuity of the new added envelope, the elimination of thermal bridges, and the fact that the work is carried out on the outside of the building, safeguarding the interior of the dwellings, thus causing less inconvenience to users. Consequently, the most successful way of improving the envelope is precisely the solution that collides with the preservation of the original character of the facades. Given the impulse acquired by energy rehabilitation, the unprotected residential stock part is experiencing a speedy “shedding” process, with the subsequent transformation of the urban landscape. Despite this being an efficient system from the viewpoint of thermal protection and continuity of the new envelope, it is not equipped to respond to the compositive principles of certain ornate facades. Thus, we came up against a problem of continuity of the insulating skin in ornamental elements. The solutions could be synthesized in 2 options:
The first would be the preservation of the ornamental elements in their original state. In this option, the integrity of the elements is maintained intact, but the thermal bridge brought about by these elements is not solved. This would, according to the intervention theory proposed, consist of a Degree II intervention, i.e., selective, conservative insofar as the preservation of the architecture is concerned, but with faults relating to thermal insulation.
The second option consists in enveloping the ornamental elements, such as moldings, cornices, shields, and ornaments of any type, with an insulating material. Given the conception of exterior thermal insulation systems, their application to ornamental elements and points, requires an adaptation process, which could be an almost artisanal one, or by advanced manufacturing, starting with a precision 3D scan. This second option is the one that is pursued, as it is the most favorable, because the thermal bridges would be eliminated.
In the case of heritage buildings, whose outer envelopes are totally protected, the incorporation of insulating materials on the outside (ETICS or ventilated facade) was ruled out completely. In these cases, insulation on the internal face is considered as the most adequate and recurrent alternative [22,23,24], despite the fact that the hygrothermal behaviour of historical walls with internal insulation is difficult to predict, as the physical characteristics of the materials used to build these walls are unknown [25,26]. However, there are buildings with a partial protection degree where certain actions on the outside of the facade are permitted to improve their energy efficiency, so long as this does not alter the textures, color, or image of the original facade. By way of an example, the study case that is analyzed in the following points, and on whose cladding an ETICS solution is proposed, belongs to this group of partial protection buildings.
2.3. Case Study
The old Miñones Barracks in Ortuella were constructed in 1902. In 1988, the Integral Rehabilitation Project for the house was drafted on the request of the Department of Urban Development, Housing, and Environment of the Basque Government, with the aim of fitting out 8 public promotion dwellings in the house. During the reform, the four facade walls, of different thicknesses in brick, were cladded with 4 cm plasterboard panels with insulation on the interior. The roof had no insulation, although insulation was placed on the floor of the attic. The original molding still existed on the facades: double imposts marking the stories, and accentuated window ledges. A shield of the Vizcaya Council is located in the center of each one of the four facades, the most important being those situated in the gables. The building has fallen under different forms of protection in recent years (Figure 3). The heritage values used to analyze the assets are the following: no perceivable volumes from the adjacent public space, or associated with it, could be added. The property could be redone, but always maintaining the volume, the dimensions, textures, and colors of the original. The unit, movement, rhythm, scale, symmetry, hierarchy, proportion, color, texture, and balances of the property would be preserved.
Figure 3.
Datasheet of the Protection catalogue of the case study (Source: Ortuella Town Council).
2.3.1. Analysis and Identification of Deficiencies of the Initial State
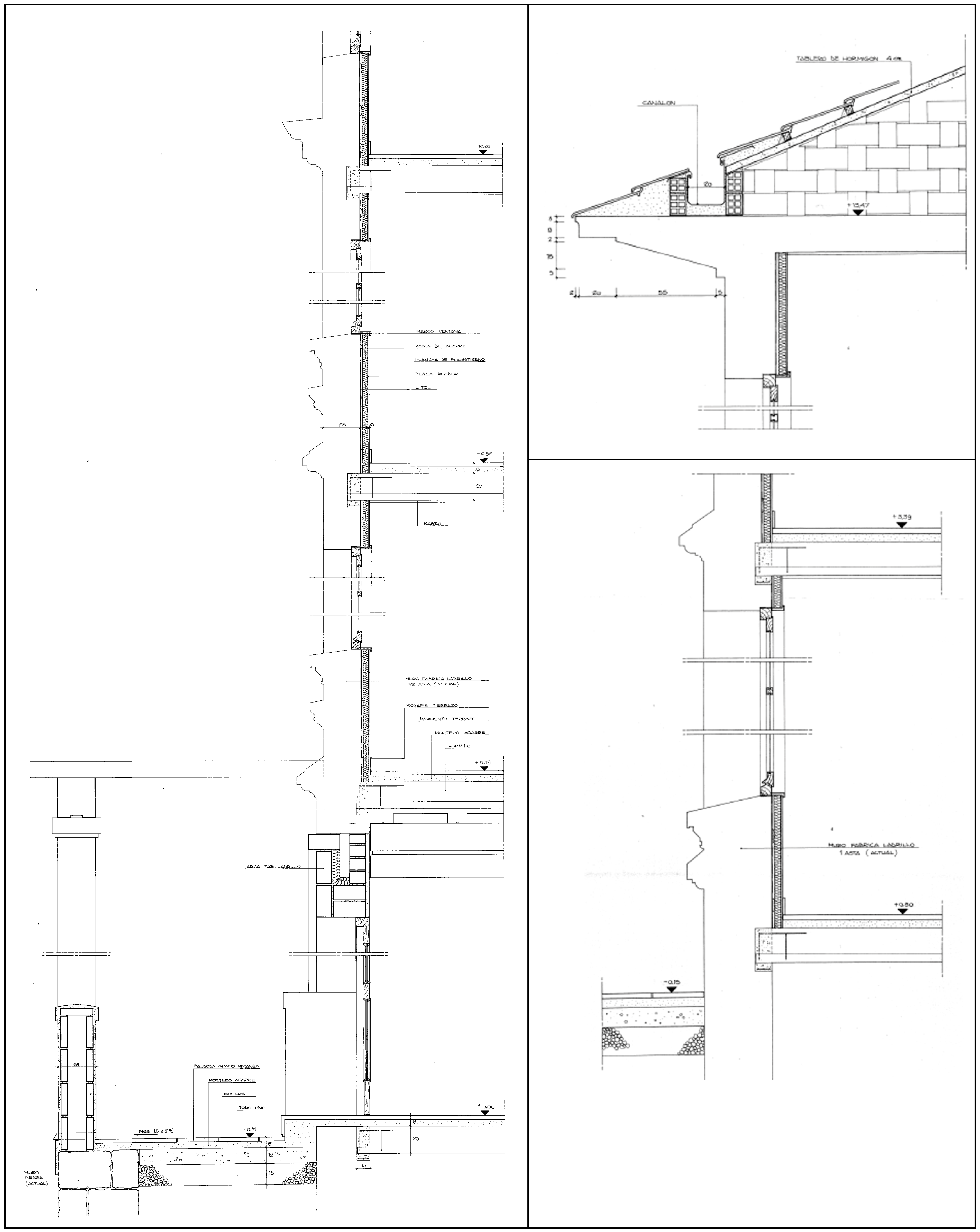
Some field work was carried out to verify the constructive reality, and check how close it is to that reflected on the building reform drawings of the year 1988. The facade has a series of light lesions where plastering has come off in places, as well as a loss of paint, plant colonizations, and lichens. The constructive section of the facade can be analyzed in Appendix A (Figure A1). Insofar as its protective capacity is concerned, as reference, we adopted the framework established in the Spanish regulation, the CTE [27], for the climatic area of Bilbao, for opaque facades: UM = 0.29 W/(m2.K). During the analytical work on the building, several tests were conducted to obtain the facade characteristics.
To characterize the envelope, the thermal resistance test was conducted at a point at mid-height, following ISO standard 9869-1:2014 “Thermal insulation–Building elements–In situ measurement of thermal resistance and thermal transmittance; Part 1: heat flow meter method” [28]. A surface temperature sensor, Pt100, 4 threads, class 1/3 DIN with two units, was used to obtain the surface temperature and the air temperature, and a flexible 180 × 100 × 0.6 mm flowmeter with Teflon PTFE substrate to measure the heat flow. The data were recorded over 17 days. The resistance obtained at this point was 1.42 m2.K/W.
Following this, the recesses and carpentry were analyzed. The windows are made with wood carpentry, with 4 mm double glazing and 6 mm air chamber. The air permeability of the windows was determined by means of tests conducted on site, following UNE EN standard 13829:2002 “Thermal performance of buildings. Determination of air permeability of buildings—Fan pressurization method” [29] (Figure 4a). The test findings point to very low infiltrations for a building of this type: 2.3 renewals an hour at 50 Pa. It was concluded that the wooden windows are in good conditions, and that there are no filtrations through false ceilings or installations.
Figure 4.
(a) Installation of the fan to test the permeability of the windows; (b) Thermography of the main facade. (Source: LCCE).
Finally, a study of the irregularities of the thermal envelope of the house was conducted, by means of thermographic test EN 13187:1998, “Thermal performance of buildings. Qualitative detection of thermal irregularities in building envelopes. Infrared method”. We also used a simplified method for building envelopes (ISO 6781:1983 modified). The outer images were captured on 15 November 2017, between 8 and 9 am, to analyze the steady-state effect after a cold night, and minimize solar effects (Figure 4b). The thermal images have been processed by means of FLIR Tools+ software, adjusting the images based on on-site verifications. A FLIR E60bx, 320 × 240 resolution camera was used. Both camera and software were manufactured by 2020 FLIR® Systems, Inc., and were sourced by the Basque Government’s Quality Control in Building Laboratory (Spanish acronym, LCCE).
The surface temperature performance of the opaque sections of the facade is similar in all dwellings. No significant differences were noticed between the floors of the original construction and the upper floor, which was built at a later date. However, the ground floor facades do have higher temperatures and there were hotter localized areas, such as the contours of recesses, the fronts of forging slabs, and on the eaves. The thermal bridges can be identified from the analysis of the thermographic photographs, as well as those points of the envelope where a greater heat loss occurs. These points are the window panes—especially those with one single sheet of glass—, the blind boxes, given that they have no built-in insulation on the inside, and the eaves, which are a prolongation of the attic deck, which has no insulation. On the other hand, it was deduced that the larger-sized ornamental elements, such as the Vizcaya shield and the lion that protects it, do not represent considerable thermal bridges, in contrast with the rest of blind walls of the envelope. However, they do represent an interruption insofar as the constructive characteristics of the envelope are concerned, which are the source of a series of difficulties, in the event that an improvement of the envelope, entailing the incorporation of insulation on the outside, was proposed.
2.3.2. Monitoring
The monitoring had four general objectives [30]. First, to characterize the energy performance of the dwellings [31], to be able to analyze the improvements in energy demand and consumption by means of dynamic simulations, using its current state as reference and applying the possible rehabilitation interventions. Second, to know the improvement of the environmental conditions inside the dwellings and to evaluate the advantages of this type of rehabilitations, beyond just costs and energy. The third focused on calculating the energy savings of the dwellings. Representative values, to extrapolate to similar cases, can be obtained using the monitored values and applying averaged construction values. The fourth focused on controlling the quality of the rehabilitation work, in terms of energy aspects [32]. The diagnosis tests permit continuing to monitor the critical points in the renewed elements.
The measurement system, whose composition is described below, was installed to carry out the monitoring (Figure 5). A data controller permitted the capture and local filing of data, as well as their transmission to a data management server for later display on a web platform. Regarding data capture, the following communication interfaces will be available: RS485, Ethernet, Wireless Network, GSM/GPRS; compatible with a variety of protocols, MODBUS RTU/TCP, MBUS, IEC870-5-102, KNX, IEC62056. In view of the age of the building, and in order to minimize the wiring work, data capture by means of the MBUS Radiofrequency protocol was selected. The captured data were sent from the datalogger to the external server by GPRS.
Figure 5.
Installation of the datalogger (Source: Ekitermik Efizientzia Energetikoa).
The monitoring permitted different types of measurements using different devices. On the one hand, the measurement of the basic comfort parameters was facilitated: 2 sensors were placed in each of the dwellings. The first of them measured the temperature and relative humidity conditions, and the second detected the CO2 concentration on the inside of each one of the dwellings. The characteristics of the sensors are supplied below (Table 1 and Table 2).
Table 1.
Characteristics of the Temperature and Humidity sensors.
Table 2.
Characteristics of the CO2 sensors 1.
On the other hand, the volumetric consumption of DHW was also measured (m3). To this end, a DHW meter was installed with pulse output to the electrical heater outlet. A box was fitted next to the meters where the RF Gateway is located. This acted as a gateway between the pulse meter and the radiofrequency network.
Finally, we conducted a measurement of the general DHW and heating electric consumption. The measurement of the general electricity consumptions of the dwellings was carried out from the datalogger installed in the space reserved for the centralization of the electricity meters. The actual datalogger has open core transformer inputs. To measure the electricity consumption of the heater and the electrical radiators, wireless measuring devices were placed in the sockets that supply them. They communicate with the central controller through a gateway by means of Zigbee protocol.
All the data obtained in the monitoring can be consulted from a web browser. The BIM model, which was developed later, was prepared for the monitoring data to be integrated in real time through the link with URL.
2.3.3. Digital Elevation in 3D
The elevation was divided into two phases in order to obtain the result: the data capture or fieldwork, and the data processing or office work.
The data capture was carried out with two different technologies: capture by 3D laser scanning, and capture by UVA- (Unmanned Aerial Vehicle)-assisted automated photogrammetry [33,34]. Preliminary work planning is essential for precise and efficient capture [35]. This planning varies from the 3D scanner to the UVA, but it must be coordinated in order to be able to combine the capture data in one single result.
Capture with 3D laser scanner requires defining the positions of the device location at each scanning point, as an initial step. These positions were located both on the inside and outside of the building, to be able to model with an accuracy of less than a square centimetre of surface area. The scanner used for the work was FARO Focus 3DX330, manufactured by FARO® Technologies, Inc., due to its light weight, precision, speed, resolution, and above all its scope range (Figure 6). Scanning was alternated on the outside of the house every 15–20 m, so the final point cloud overlapping exceeded the indicated resolution. A 1/4 resolution was used (44.4 million points per scan, 6 mm distance between points, at 10 m), and a 2× capture quality (low noise level and medium to high reflectance surfaces). Likewise, the capture of photograms on the outside was used to apply color to the resulting point cloud. The camera configuration was standard, without HDR, since the work demands precision in geometry, above all. On the inside of the building [36], as the distances were shorter than on the outside, a resolution of 1/5 was used (28.4 million points per scan, 9 mm distance between points, at 10 m), with the same 2× capture quality. No photograms were captured on the interior, due to the small added value provided.
Figure 6.
FARO Focus 3D×330 scanner on a tripod (Source: Urquizo Ingenieros&NorthBIM).
The UAV-assisted capture complemented the work of the laser scanner, to accurately represent the roof and the side ornaments of the building. The capture of the ornaments required a better definition than 5 mm between points on all sides and orientations, sufficient to generate an exportable grid to formats that can be integrated into additive manufacturing systems (3D printing). The flights were planned automatically with the DJI Ground Station Pro application (Figure 7). The equipment used was Phantom 4 Pro, manufactured by DJI®, with 20 megapixel and one-inch camera. To obtain the Digital Elevation Model (DEM), a photogrammetric flight was planned to cover an area of 2.28 Ha, at a flight height of 70 m, and a resolution on the terrain of 2.69 cm/pixel, taking 89 images. A network of 10 bases distributed over the coverage area was estimated [37]. These points are necessary in the topographic referencing at UTM coordinates both for processing data obtained with the UAV, and for the data captured with 3D laser scanner. A GNSS system in RTK was used to observe the points materialized on the terrain around the building studied in this project. Thus, both mappings could be superimposed and unified in one single dense point cloud.
Figure 7.
Planning of the unmanned aerial vehicles (UAV) flight. (Source: Urquizo&NorthBIM).
The second phase of the 3D digital elevation method was the data processing [38]. Work on the data from the scanner and from the UAV was also carried out independently in this phase, to finish by combining the work into one single georeferenced and coherent model [39]. Regarding the 3D laser scanner data processing, a series of steps must be followed to obtain a consolidated, coherent, and precise dense point cloud [40], that can be used to generate the definite 3D model. The first step entails filtering all the scans to optimize the point cloud. Then, the different scans were accurately combined and consolidated in one single block, in relative coordinates. The third step was the application and offset of the cloud color, unifying the differences between scans. Finally, taking the points materialized in the terrain with topographic technology as reference, the coordinate system was transformed to fit the 3D scanning model in the UTM global topographic system (Figure 8).
Figure 8.
3D Model produced by the laser scan (Source: Urquizo&NorthBIM).
The UAV data processing was carried out with Agisfot PhotoScan software, manufactured by Agisoft® LLC, following several steps. First, the photographs taken by the UAV were added to the project and aligned. Then, the first filtering of the cloud was carried out to eliminate any discordant points, and generate the dense point cloud. Afterwards, the point cloud was classified to obtain the Digital Terrain Model (DTM) and be able to later normalize the cloud. After constructing the DTM Grid, it was tested and fine-tuned. The next step was to soften the DTM, which helps to homogenize the surface and gives the model a softer aspect with no sharp edges. Then, the DTM Grid was constructed by means of the same filtering and softening process. Finally, the texture was constructed to give a more real aspect when visualized. Based on this 3D product, the metric orthography can be constructed and exported to scale.
The 3D products, both from the laser scanner and the UAV, obtained separately, have used the same georeferenced points as reference to give coherence to the final model. Although, the precision and quality of the results were verified in each of the two partial models, it is in this last step when they were combined in one single 3D model, verifying the correct relative location of some data with respect to others (Figure 9).
Figure 9.
Final 3D Model, combining both clouds (Source: Urquizo&NorthBIM).
2.3.4. Building Information Modeling—BIM
Taking the 3D model generated in the previous stage and the existing 1988 reform drawings as reference, a Building Information Model (BIM) was generated [41]. This model optimizes the energy rehabilitation process, permitting efficient and sustainable management and maintenance of the building. In rehabilitation interventions on already constructed buildings, which follow the traditional methodology, the existing procedures are not very efficient, owing to the lack of cohesion of existing information with respect to the object to be intervened upon. Further, the different agents participating in this process work separately, following disjointed protocols and favoring the dispersion of information [42]. There are international policies that highlight the need for collaborative systems that permit the exchange of this information [43]. The BIM (Building Information Modeling) methodology is one of those tools that permit integrated project development, representing a decisive advantage on the road towards efficient management. BIM can be used to manage the entire Life Cycle (LC) of the construction, permitting fluent information exchange.
The main objectives pursued in this project were to improve energy efficiency (nZEB) and improve the occupants’ satisfaction [44]. Currently, 7 BIM dimensions have been identified, although some sources even manage to specify the requirements and benefits of up to 10 dimensions [45]. The 6D dimensions (sustainability of assets) and 7D dimensions (operation and maintenance during the whole life cycle) are specifically responsible for the more relevant aspects that affect these energy reforms [46,47,48]. With the digital model, it is possible to know the state of the installations, have access to the manuals for use, etc. Further, a preventive maintenance calendar can be established, and an efficient, cost-effective maintenance administration program generated, at the right time [49,50,51].
Different associated and synchronized models were channelled in a common BIM model in this project, which permitted undertaking this specific energy reform case, both at the simulation and the design level. This model was shared with the property and the architecture team, for it to be evolved on site, and to be the grounds to sustainably manage the rest of the building life cycle.
To this end, Autodesk Revit, manufactured by Autodesk®, Inc., was used. This software permits the interoperability of the agents intervening in the process, through the exchange of information with open format files (IFC) in a common data environment. To work in this environment, it is essential to establish good practices, standards, and responsibilities. The information flows must be defined in a BIM Execution Plan (BEP), which responds to that established by the different parties intervening in the process, through a specific agreement (EIR).
In this project, LOD 300 was used as a starting point for the basic project modeling. This model helped to develop the execution project. The execution project model evolved to LOD 350. For the construction tender, the model development will have reached level 400. When the work ends, the “As-built” model will have reached an enrichment level with LOD 500 [52].
To obtain a nZEB building, it is essential to control the performances, and improve them whenever possible. The model needed to be prepared to incorporate monitoring data. The modeling company must have a bi-directional flow of collaboration with the monitoring company, so that the virtual model is prepared to be fed with the data that is being recorded. This required a series of templates and specific families for this task, and a specific platform that can facilitate the interoperability of the model between the agents involved in the control of the life cycle of the building. If the control is properly designed, implemented, and used with BIM methodology, the building can be fully automated and the building can be more efficient than with human control. For this purpose, energy monitoring of the building was carried out [53]. The virtual building developed was configured so that the data obtained in the monitoring are collected in this model, improving control of the system efficiency. Indicators of use, time, and costs for the operation and maintenance of the asset were calculated, monitored, and reported through data associated with the model. The model also helped to carry out simulations of the energy performance of the building. The modeling software used permits integrating energy calculation platforms. This combination of tools has been key to establishing the intervention criteria to act upon the building envelope.
One specific characteristic of this building, and one that is repeated in many architectural heritage buildings, is the decoration on the facades. These elements present complex geometries in the form of shields and moldings. Energy rehabilitation executed with actions from the outside of the facades poses a complication in these elements [54]. In this project, the possibility of these elements being able to incorporate insulation from the outside, thanks to the existing link between the BIM and 3D printing was studied.
2.3.5. Energy Simulation
The energy simulation of the building was carried out by analyzing the BIM model with DesignBuilder software, manufactured by DesignBuilder Software Ltd, London, using the Autodesk Revit Plug-in [55]. The model contains the following information for the simulation: on the one hand, the geometry obtained from the planimetry and rehabilitation project report (1998), and from the field work carried out. On the other hand, the thermal resistance and thermal inertia were obtained on site, through tests performed by the LCCE, as specified in Section 2.3.1. Both coincided with the theoretical value calculated. The equipment used for the test is described below (Table 3).
Table 3.
Specifications of the equipment used.
The energy simulation of the building was carried out with the different measures to be implemented. To this end, the EnergyPlus calculation motor, which permits a detailed introduction of geometry, constructive solutions, profiles of use, and active equipment, can be used. This software is manufactured by the U.S. Office of Energy Efficiency & Renewable Energy, Washington. An analysis of the energy diagnosis of the property was conducted in its current state or baseline scenario [56]. To this end, the global energy demands of the building were divided into 4 categories depending on their use, highlighting the main factors that affect each one of them. These demands are heating, DHW, lighting, and electrical equipment. This initial model, taken as baseline, was calibrated and adjusted with real consumption data, obtained from the tenants’ bills and/or from energy monitoring. The results obtained from the different models permit a theoretical comparison of the improvements represented by the passive and active systems analyzed, related to the baseline considered. This allows obtaining conclusions about which intervention packages studied have better energy saving-investment ratios.
2.3.6. Intervention on the Case Study
The case of the Miñones Barracks of Ortuella provides clarification. On the facade, in addition to the plain and plastered walls, there are ornamental elements such as moldings, cornices, shields, animal motifs, and floral elements, which are hardly compatible with an industrialized insulation system on the outside. In this regard, and in order to maintain the outside insulation-based solutions, the question arises of what to do with these ornamental elements. Different intervention possibilities on the facade have been assessed, the key characteristic being to intervene on the outside or the inside, in order to be able to assess the different available alternatives to preserve the original composition of the facades, and their elements, such as cornices and shields, with a considerable improvement of their thermal performance. If the facade has to be preserved intact, the only possible intervention is from the inside of the building, which would generate, in addition to inconvenience for the tenants, thermal bridges and heat losses at critical points. Thus, a detailed analysis of the thermal bridges was conducted in the different scenarios, in order to obtain results that permit justifying the decision adopted.
2.3.7. Preservation of Protected Elements—Advanced Manufacturing
Certain ornamental elements are difficult to reproduce with prefabricated products, in the form of moldings or other types of parts (Figure 10a). If these elements are artistic with sculptural, plant, or animal motifs, and the solution requires their reproduction, the method must be 3D scanning, for subsequent printing (Figure 10b,c). The 3D printer reproduction technique, after scanning the element, has been applied to one of the ornamental elements of the Miñones Barracks of Ortuella. This consists of a lion on the shield of Vizcaya, situated on the side facade, on the top floor, under the side pinion. To this end, the facade, as well as the ornamental elements, were scanned, by means of UAV flights and fixed scanning stations. After scanning the ornamental elements and modeling them in 3D, they were printed on a 50 cm Creality printer in three dimensions. To this effect, the choice made was to reproduce the shield in 6 parts that were later joined together (Figure 10c). The printing material of the prototype was recycled PLA (Polylactic Acid) with plant origin and biodegradable material. A technical polymer such as ASA (Acrynolitrine Styrene Acrylate) is proposed for the definite solution on the exterior.
Figure 10.
(a) Artisanal adaptation of polystyrene sheets by means of faceted cut (Source: FRL Arquitectos); (b) Advanced manufacturing of ornamental motifs after 3D scanning (Source: FRL Arquitectos); (c) Printed part of the shield in 3D after scanning (Source: 3R3D Technology Materials).
3. Results
The results of the on-site analysis of the thermal resistance, by means of steady-state and dynamic methods, coincide with thermal resistances of 1.42 and 1.39 m2K/W, respectively. The thermal properties of the main facade wall, at the established point, are as follows (Table 4):
Table 4.
Thermal properties of the facade wall.
The transmittance of 0.64 W/m2 K obtained from the test, was coherent, in turn, with that obtained analytically (0.647), considering the constructive system of the facade, obtained from the samples taken and from the analysis of the graphic documentation of the 1988 rehabilitation project.
3.1. Monitoring
In order to monitor and analyze the data collected from the different variables, access was given to a management platform where the different variables are compiled in 15-min periods. The monitoring data can be accessed in real time from a web browser by entering the following address: https://ui-new.blaulabs.com. A username and a password are required to access this platform, because the data pertain to the dwelling tenants, and thus are private and subject to data protection regulations. All those who have been granted authorization can access the platform, and select the data, the time interval, and the type of chart (bar, line, area) they want to display. After accessing the application, the monitoring data can be viewed by entering ‘DATA ANALYST’ and clicking on the relative button (Figure 11).
Figure 11.
Menu with the monitoring data (Source: Ekitermik).
Once the platform has been accessed, it is possible to browse its menu. A navigation tree was created to identify each one of the dwellings inside the building. Each dwelling, in turn, shows us all the variables that are subject to monitoring (Figure 12a,b).
Figure 12.
(a) Monitoring and obtaining of data relative to electricity consumption; (b) Monitoring and obtaining of data relative to atmospheric CO2. (The data of the 2 images are not relevant, they serve to see the graphical options for displaying the monitored data). (Source: Ekitermik).
3.2. Measures of the Adopted Energy Rehabilitation
As commented above, the objective of this energy rehabilitation is to obtain consumption levels that are close to the European recommendations for nearly-Zero Energy Buildings or nZEB. To this end, some intervention strategies have been established in this study example. An analysis of the possible active and passive solution packages, which could be incorporated into the energy rehabilitation of the building is undergone in the following sections, with the aim of reaching the total primary energy consumption objectives indicated by the Basque Government.
3.2.1. Passive Solutions
An ETICS system was selected for the insulation of the envelopes. Four different insulation thicknesses were considered for the facades: 6 cm, 8 cm, 10 cm, and 12 cm, with insulating material conductivity of 0.30 W/m K. Three different insulation thicknesses were proposed for the roof: 8 cm, 10 cm, and 12 cm, with an insulating material conductivity of 0.042 W/m K. To insulate the partitioning, 3 insulation thicknesses were proposed in the analysis: 6 cm, 8 cm and 10 cm, with a conductivity of 0.046 W/m K.
Four double glazing solutions with air chamber, and 2 triple glazing solutions with Kripton air chambers, were proposed for the glazed sections. The interventions are discretized in the energy model according to the main orientations (south, east, north, west).
Two aluminum carpentry solutions and 2 PVC carpentry solutions were proposed for the carpentry.
3.2.2. Active Solutions
Three installed power levels were proposed in the analysis for the LED lighting: 2.46 W/m2, 3.12 W/m2, and 3.78 W/m2; the choice of power level depended on the degree of intervention.
Three solution types were proposed for ventilation with heat recovery: ventilation by individual extraction, individual ventilation with individual recovery, and ventilation with collective recovery.
One basic reference alternative was proposed for the thermal generation and emission systems, as well as a further five that include different thermal generation systems to satisfy the heating and DHW demands of the dwellings. The 6 solutions were: (1) traditional individual natural gas boilers with radiators; (2) centralized natural gas condensation boiler with low temperature radiators; (3) centralized biomass boiler and low temperature radiators; (4) independent heat pumps for heating and DHW with low temperature radiators; (5) independent heat pumps for heating and DHW with low temperature radiators; and (6) independent heat pumps for heating and DHW with radiant floor.
For the solar support, of the two types of resources for solar, thermal, and photovoltaic harnessing, the implementation of the second was disregarded, due to two main reasons: high investment cost and legislation at the time of study. To implement a solar thermal support system, two systems were considered: an individual system made up of solar collectors, and a collective system made up of solar collectors.
3.3. Data and Details of the BIM Modeling
The point clouds of the 3D capture are directly imported to Autodesk Revit, in ReCap format (RCP or RCS), or from scans without format (for example, E57, FLS, LAS etc.). In the cloud blending, it is important to respect the relative orientation, and its subsequent georeferencing. To this end, the PointSense plug-in for Revit was used. In this plug-in, the shared coordinate system can be configured with the “Auto-center to center” option, moving and rotating the point cloud at will; alternatively, VirtuSurv (FARO) can be used, using the “Set Project Coordinates” command to establish the origin and alignment of the coordinate system.
In the basic project modeling (initial state of the building), the families were identified based on the information collected on site, and the information was obtained through the study of the reform project underwent by the building in 1988. These families have been collected for the Structure model, on the one hand, and the Architecture model, on the other hand. The following families were identified in the latter model: partitions (several types: inner partitions, separation between dwellings, etc.), doors, enclosures (facade, facade to inner courtyard), outside carpentry, roof, and stairs. A flow was developed to optimize the modeling work by way of federated models, as follows: one general or central model, which includes the masses by dwelling, and a URL link to external data, such as, for instance, the monitoring data. The following models were federated to this general model: A model with associated Point Cloud in .rcp format, Structure discipline model, and Architecture discipline model (Figure 13).
Figure 13.
The four Autodesk Revit models. (Source: Urquizo&NorthBIM).
There are ornamental elements on the facade that have a complex geometry and make manual modeling difficult. For these cases, a routine for Autodesk Dynamo, a visual programming tool compatible with BIM methodology that has been used through Autodesk Revit, was applied (Figure 14). This enables generating the volumes in the model.
Figure 14.
Volumes of the side shield for 3D printing (Source: Urquizo&NorthBIM).
After modeling the building, the point cloud was used to measure the accuracy of the model compared with the reality include in these clouds. Pointsense Surface Analysis Tool for Revit, created for FARO scanner solutions, permits generating a 3D inspection map, and analyzing these differences (Figure 15). The analysis was performed in 2 stages: a first analysis at the half-way point of the first modeling phase, when the ornaments or moldings still have to be generated, and a second analysis when the model is finished. Based on the superimposition of the point cloud on the definite model, it has been possible to analyze the modeled surfaces by means of objects with generic surfaces (portions of drawings, cylinder, torus, cones or spheres, etc.). Further, it has permitted correcting deviations in a first iteration of the model, specifically on the roof: after correcting its slopes, the analysis shows optimal results (roof in green). Also, thanks to this tool, some differences were detected in the contours of the roof (in blue) between the point cloud and the model. However, the conclusion was that, in this case, it is due to the capturing uncertainty of the farthest contours, so the model was not adapted.
Figure 15.
Inspection of the differences between the Cloud and the Model (Source: Urquizo&NorthBIM).
3.4. Energy Simulation
The basic characteristics of the model of the current state are summed up below (Table 5 and Table 6).
Table 5.
Values of thermal transmittance considered in the energy model corresponding to the current state.
Table 6.
Values of energy demand corresponding to current state.
3.4.1. Study of Passive Solutions
A parametric analysis is performed in this section to estimate the impact of the passive measures on the dwelling demands (Table 7). The final solution is a combination of different passive measures, so the demand reduction in the final solution can never improve the sum of all the demand reductions, taken separately. Therefore, the reference baseline, to know the real impact of each one of the measures, was established by a combination of the best solutions, and only varying the parameters of the measure to be studied. Below, the estimated demand values for the current state and for the optimal base solution considered are indicated. This optimal solution includes two active measures, which we understand must be applied to this reference solution: heat recovery and the replacement of light fixtures with LED technology, as both substantially modify the demand considered. If they were not considered, they would produce unreal percentage saving values:
Table 7.
Demands of the dwellings per m2.
The results obtained after the simulation, with each one of the measures adopted, are summed up in the following tables. For the insulation solutions (Table 8, Table 9 and Table 10):
Table 8.
Demand comparison with (ETICS) solutions for the envelope.
Table 9.
Demand comparison for the roof insulation.
Table 10.
Demand comparison with partition insulation to ventilated courtyard.
For the glazed sections, bearing in mind that the orientation of the glass is important, due to the different solar gains, the solutions to be applied were calculated independently for the main orientations: south, east, north, and west. In this case, the table of the southern orientation is included (Table 11):
Table 11.
Demand comparison with different glasses in the southern direction.
Both the exterior carpentry and the facade carpentry onto the inner courtyard were analyzed. Only the results of the exterior carpentries are summed up below (Table 12).
Table 12.
Demand comparison with different carpentries in windows of outward-facing dwellings.
To end this chapter, a technical-economic analysis of the passive solutions was performed. In this section, after presenting the impacts on the demands of the passive solution alternatives, each one of the alternatives is analyzed, also including an economic estimation of the implementation cost, permitting the execution of a cost-effective analysis. To give coherent dimensions to the heating demands, a reference price was used to satisfy that demand of 0.0924 €/kWh. This price was established, considering a heating system with seasonal yield of 0.92 based on LCP, by means of a natural gas supply with 3.1 tariff, inclusive of taxes.
As a result of this study of different strategic options for each one of the measures proposed, and bearing in mind the cost-effective analysis, the final combination of optimal passive measures selected for the model has been obtained. This is summed up below.
For the facade insulation, the ETICS solution with 8 cm insulation, and equivalent resistance of the insulation layer of 2.67 m2·K/W was used; for the 8 cm roof insulation, the equivalent resistance of the insulation layer was 1.90 m2·K/W; for the existing 4 cm partitionery insulation the equivalent resistance of the insulation layer was 1.00 m2·K/W.
The low emission double layer glass was U = 1.6 W/m2·K; g = 0.7; Visible transmittance = 0.74.
The carpentry was made of PVC monoblock with the following characteristics: U = 1.3 W/m2·K; Class 2 permeability at least.
3.4.2. Study of the Active Solutions
Having established the basic passive solution scenario, the cost-effective, and the major saving scenarios, the different active measures put forward for study, already presented above, were analyzed.
The intervention in lighting was considered as an effective measure both from the energy and economic viewpoint. As observed in the summary table, the replacement of traditional light fixtures for LEDs, despite increasing the heating demand, considerably decreases the electricity expenditure, so the investment is quickly recovered (Table 13).
Table 13.
Economic comparison with different degrees of implementation of LED lighting.
Six active solution scenarios were established: (1) Scenario 0 with individual boilers with reference performance, ventilation without recovery, and high temperature radiators; (2) Scenario 1 with individual condensation boilers, ventilation with individual recovery, and low temperature radiators; (3) Scenario 2 with centralized condensation boiler, ventilation with centralized recovery, and low temperature radiators; (4) Scenario 3 with centralized biomass boiler, ventilation with centralized recovery, and low temperature radiators, (5) Scenario 4 with DHW heat pump—heating heat pump, ventilation with centralized recovery, and low temperature radiators; and (6) Scenario 5 with CO2 heat pump for DHW, heating heat pump, ventilation with centralized recovery, and radiant soil.
For all the scenarios, except for scenario 0, which is a reference scenario, a solar support scenario for the generation of DHW was also analyzed. Therefore, a total of 11 active solution scenarios were proposed. Two types of configuration were proposed for the solar support system for the generation of DHW. On the one hand, for Scenario 1, an individual solar support was established, that is, an independent system for each dwelling. This system includes a solar collector for each dwelling, for a total of 8 collectors, being able to reach a solar contribution of approximately 63%. For the other scenarios, i.e., 2–5, a centralized solar support system was proposed, supplying DHW to each of the dwellings. The demands of the 8 dwellings are aggregated in this system, including 6 solar collectors in total, with the possibility of reaching a solar contribution of about 75%.
An investment price for all the interventions, both active and passive, was estimated for each one of the scenarios, also including the solar support cost in the event it should be implemented in the scenario. An operational cost for each one of the scenarios was estimated. This operational cost includes the energy cost at the building level (depending on whether the installation is individual or centralized, and on the energy vectors used), as well as an estimation of the maintenance cost of the building systems.
The summary table is presented below, with the energy and economic indicators for each one of the scenarios analyzed (Table 14). They include the two passive solution options for each of the 11 active solution alternatives proposed, thus resulting in a scenario with 22 alternatives. The energy indicators include the contributions of the heating, lighting, and electrical installation systems of the dwellings.
Table 14.
Summary table with the indicators for the different scenarios analyzed. Negative (red) Positive (green).
3.5. Study of Thermal Bridge Solution by Means of Insulation
A local thermal study of the critical points that might form a thermal bridge in different rehabilitation scenarios was carried out, in order to compare the different solutions proposed. The specific THERM software was used [57]. This is a steady-state, two-dimensional heat calculation program, which permits obtaining the characteristics of the thermal bridges in the building after implementing different insulation measures in the opaque envelope. After establishing several hypotheses, the comparison of results of the different constructive insulation solutions is shown below in graphic form, together with the advantages and disadvantages that each of the solutions entails in the case that concerns us.
The first option studied is Rehabilitation with ETICS from the exterior. This consists of removing all the ornamental elements, such as moldings and shields, and replacing them with reproductions in plastic materials. The insulation thickness would be 6 cm, in polystyrene (XPS) (Figure 16). The improvement of the thermal transmittance of the opaque envelope of the building would be 63%. It affords an obvious improvement from the thermal viewpoint, as all the thermal bridges are avoided. However, it is not compatible with the protection of the facade. The solution can be improved by advanced manufacturing of the ornamental elements at a larger scale in insulating material, covering the original motifs and not eliminating them. This would make the solution compatible with the protection. Nowadays, it is a feasible, but very complex, option (see Figure 10b).
Figure 16.
Diagram of the analyzed insulation and temperature profile for the case of ETICS on the exterior with 6 CM XPS insulation (Source: Tecnalia Research & Innovation).
The second option presented is the interior rehabilitation solution. This would consist of applying 6 cm polystyrene (XPS) insulation on the existing cladding (Figure 17). Different interior insulation options with different combinations of walls, ceiling, and floor, have been studied. However, only the two options that represent the extreme cases analyzed are included below. The improvement of the thermal transmittance of the opaque envelope of the building would be around 43% for the vertical cladding, which may increase to 55% if the insulation were to be placed on the floor and ceiling, in addition to the walls (Figure 18). This solution would preserve the ornamental elements, but however, the impact of the work inside the building would be high.
Figure 17.
Diagram of the analyzed insulation and temperature profile for the case of vertical cladding insulation (Source: Tecnalia Research & Innovation).
Figure 18.
Diagram of the analyzed insulation and temperature profile for the case of vertical cladding insulation and insulation on floor or ceiling (Source: Tecnalia Research & Innovation).
The next option presented is the mixed rehabilitation solution. This would consist of applying 6 cm thick polystyrene (XPS) ETICS on the outside, without removing ornamental elements, in addition to occasionally placing another, 6 cm thick XPS, insulation on the inside, in order to eliminate the thermal bridges in affected areas (Figure 19).
Figure 19.
Diagram of the analyzed insulation and temperature profile for the case of vertical cladding insulation on the outside and inside (Source: Tecnalia Research & Innovation).
As we can observe in the graphs, the improvement of thermal transmittance of the opaque envelope of the building is between 63% for the vertical cladding, both on the outside and on the inside, increasing to 69% if the insulation is also placed on the floor and ceiling, in addition to the vertical insulation (Figure 20). The results obtained are not comparable with those obtained from the two previous hypotheses, from the viewpoint of the economy and performance, as the insulation thickness is doubled on being placed both on the outside and the inside. The ornamental elements of the facade would be saved, although there would be a possibility of condensation building up at critical points. This is an intrusive action, however, which affects the inside of the dwellings, and which would cause inconvenience to the tenants.
Figure 20.
Diagram of the analyzed insulation and temperature profile for the case of vertical cladding insulation on the outside and inside, and insulation on floor or ceiling (Source: Tecnalia Research & Innovation).
In view of the results, it can be verified how the thermal bridges are a critical point in the intervention of the opaque envelope, especially in those cases where action on the outside is advised against, as is the case of buildings with protection degree on the facades. Thus, after defining the solution to be implemented, the constructive details must be included in the execution project. To this end, a detailed analysis will be required of the points where thermal bridges may occur, so that the proposed solution does not cause pathologies, such as surface or interstitial condensation at those points.
4. Discussion
The objective of the research was to establish a protocol for the energy rehabilitation of historic buildings with ornate facades. This initial hypothesis is included within the Basque Government’s strategic initiative for the Intelligent Energy Rehabilitation of public residential buildings that establishes specific intervention criteria. This problem affects all cities and an potential solutions also need to achieve the energy efficiency objectives set out in European regulations.
Focusing on the strategic initiative of the Basque Government, as reflected in the Euskadi 2030 Energy Strategy, the Basque Country currently has more than one million households. More than 70% of Basque households were built before 1980. The average household size is currently 2.5 people per household, whereas 20 years ago it was 3.4 people per household. According to the Euskadi-Energy 2015 document, it can be stated that, over the last 10 years, energy consumption has decreased by 11%, but however, energy bills have increased by more than 30%, due to the fact that the average specific cost of energy has increased by 46%. The results of this study reveal, in the current state, an estimated consumption of primary energy that ranges between 110 and 179 kWh/m2 per year. The lower value only considers consumption for heating, cooling, and Domestic Hot Water, whereas the higher value also considers consumption associated with lighting and electrical equipment, as established in the criteria indicated by the Basque Government. In relation to non-renewable primary energy consumption under these different criteria, this would range between 109 and 166 kWh/m2 per year.
The Basque Government’s Energy Strategy, aligned with European guidelines, is framed within the broad concept of energy rehabilitation that in particular translates into a series of intervention measures in residential buildings, orienting this rehabilitation to the transformation of constructions into nearly Zero Energy Buildings. This would represent, on the one hand, a total primary energy consumption (nZEB) of ≤65 kWh/m2, and on the other hand, the possible contribution of on-site renewable sources of 45 kWh/m2 and non-renewable primary energy of ≤20 kWh/m2/a. Considering that the case study is a historic building, which offers protection on its facades with certain ornaments, the casuistry has added complexity. Therefore, this main objective could not be achieved by applying conventional solutions, so solutions adapted to this type of building had to be researched and developed. A methodology was established that combines different systems and cutting-edge techniques, among which we can find 3D reality capture, BIM, monitoring, advanced manufacturing, and simulations of active and passive solutions. Of all the active and passive solutions studied, a final scenario with 22 alternatives was simulated, combining 11 active solutions with two passive solutions. As for active solutions, the interior installations were improved, contributing to the improvement of heating and DHW systems, lighting, and electrical equipment in homes.
Regarding the passive measures, after studying multiple options, and considering cost-effectiveness, the final combination of optimal passive measures, used for the model with which the simulation was carried out, was obtained. Passive solutions based on the improvement of glass and window frames were proposed, among others, in addition to the insulation of different elements. But of all the solutions, the incorporation of an insulating layer on the outside of the building envelope is the most effective way of reducing the thermal transmittance of a facade, eliminating thermal bridges, and optimizing its energy consumption. The aim is to rehabilitate with ETICS from the outside, which in the case study permits improving the thermal transmittance of the building facades by 63%. This solution provides the necessary improvement from the thermal point of view; however, this line collides with the preservation of the original composition of those buildings whose facades display certain ornaments.
After the study, it can be stated that the energy reform of these singular buildings can be made possible by combining multiple advanced technologies. Modern 3D laser scanning techniques, together with UAV-assisted automated photogrammetry, allow the generation of digital 3D Models, from which insulation solutions adapted to these facades can be produced through advanced manufacturing and 3D printing. Based on these digital captures, BIM Models can be generated that will allow simulating, building, and monitoring those energy rehabilitations, thus making it possible to achieve the objectives set out in the initial hypothesis.
5. Conclusions
Nowadays, the regulations do not force the energy reform of historic buildings, as it is not possible to guarantee the preservation of their protected elements, such as, for instance, decorative elements. But, if these buildings do not undergo an energy reform, many places in Europe are unlikely to reach the objectives set out in terms of the environment. Furthermore, many historic buildings may be left without appropriate comfort conditions. It is necessary to test protocols like the one proposed, so that these buildings can undergo energy reforms.
The novelty of this protocol lies is combining all these advanced technologies and techniques in a common procedural sequence, which, in addition to being able to obtain optimal theoretical results, will help to develop a real energy reform, bearing in mind such important factors in construction as planning regulations, comfort conditions of the inhabitants, and the real cost of the interventions.
Considering that the current regulations do not require energy reforms to be carried out on protected historic buildings, the decision about the type of energy reform to be performed remains in the hands of the building owners. It is normal for owners to avoid causing the tenants who live in the dwellings any inconvenience, and therefore, the best decision is usually to insulate the buildings on the outside. However, this is not always possible. In this case, it has been possible to insulate on the outside, thanks to the protocol presented, which has enabled the insulation to be accurately manufactured using 3D printers while preserving the ornamental motifs.
It can be said that, on the one hand, on the one hand, it is essential to carry out a preliminary approach of the action aimed to be carried out in order to achieve an intelligent energy intervention in the protected heritage. Following this, it is essential to have all the starting parameters of the building, to carry out a preliminary analysis that will reflect where the energy objectives can be achieved. But in these analysis options, we must not neglect the possibility of maintaining and preserving the heritage by altering as little as possible. It can be confirmed that, nowadays, the modern technologies of advanced digitization and printing, applied with an integral vision, make it possible to reconcile energy rehabilitation with the preservation of the original value of a historic building.
Author Contributions
Conceptualization, L.E. and I.L. (Iñigo Leon); methodology, L.E.; validation, L.E., I.L. (Iñigo Leon), and M.S.; formal analysis, I.L. (Iñigo Leon); investigation, E.J.U. and I.L. (Iñigo Lizundia); data curation, E.J.U. and I.L. (Iñigo Lizundia); writing—original draft preparation, L.E., M.S., E.J.U., I.L. (Iñigo Lizundia), and I.L. (Iñigo Leon); writing—review and editing, I.L. (Iñigo Leon), M.S. and L.E.; visualization, M.S.; supervision, I.L. (Iñigo Leon); project administration, L.E.; funding acquisition, L.E. All authors have read and agreed to the published version of the manuscript.
Funding
This research was funded by the the Basque Government’s Housing Department.
Acknowledgments
The authors would like to acknowledge the Department of Architecture, University of the Basque Country UPV/EHU for supporting this article. Also, for participating in the investigation, the authors would like to acknowledge the Tecnalia Research & Innovation team, the Building Quality Control Laboratory (LCCE), the Department of the Environment, Territorial Planning and Housing (DMAPTV) of the Basque Government, the Construction Cluster of the Basque Country (Eraikune), and the companies Ekitermik, Urquizo Ingenieros, NorthBIM, and 3R3D Technology Materials.
Conflicts of Interest
The authors declare no conflict of interest.
Appendix A
Figure A1.
Constructive sections of the Rehabilitation Project (Source: Rehabilitation Project of the Miñones Barracks (1988); Architects: Cenicacelaya, J.; Saloña, I.).
Figure A1.
Constructive sections of the Rehabilitation Project (Source: Rehabilitation Project of the Miñones Barracks (1988); Architects: Cenicacelaya, J.; Saloña, I.).

References
- European Parliament. Directive 2012/27/EU of the European Parliament and of the Council of 25 October 2012 on Energy Efficiency, amending Directives 2009/125/EC and 2010/30/EU and repealing Directives 2004/8/EC and 2006/32/EC. Available online: http://data.europa.eu/eli/dir/2012/27/oj (accessed on 18 June 2020).
- Eustat (Instituto Vasco de Estadística). Estadística Municipal de Viviendas 2019. Available online: https://www.eustat.eus/elem/ele0017300/not0017383_c.pdf (accessed on 18 June 2020).
- Bimchannel. Del BIM en alquiler al BIM Social: BIM Aplicado a Gestión de viviendas públicas en alquiler. Available online: https://bimchannel.net/es/del-bim-en-alquiler-al-bim-social/ (accessed on 18 June 2020).
- Alajmi, A.; Short, A.; Ferguson, J.; Vander Poel, K.; Griffin, C. Detailed energy efficiency strategies for converting an existing office building to NZEB: A case study in the Pacific Northwest. Energy Effic. 2020. [Google Scholar] [CrossRef]
- Gautier, Q.K.; Garrison, T.G.; Rushton, F.; Bouck, N.; Lo, E.; Tueller, P.; Schurgers, C.; Kastner, R. Low-cost 3D scanning systems for cultural heritage documentation. J. Cult. Herit. Manag. Sustain. Dev. 2020. [Google Scholar] [CrossRef]
- Luhmann, T.; Robson, S.; Kyle, S.; Boehm, J. Close-Range Photogrammetry and 3D Imaging; Walter De Gruyter: Boston, MA, USA, 2013; Volume 81. [Google Scholar]
- Stober, D.; Žarnić, R.; Penava, D.; Turkalj, P.M.; Virgej-Durašević, R. Application of HBIM as a Research Tool for Historical Building Assessment. Civ. Eng. J. 2018, 4, 1565–1574. [Google Scholar] [CrossRef]
- Varela, S.; Viñas, C.; Rodriguez, A.; Aguilera, P.; Gonzalez, M. Experimental comparative study of the thermal performance of the façade of a building refurbished using ETICS, and quantification of improvements. Sustain. Cities Soc. 2019, 51, 101713. [Google Scholar] [CrossRef]
- Troi, A. Comfort and energy efficiency in historic buildings—the 3ENCULT experience. In Proceedings of the 2nd International Conference on Energy Efficiency and Comfort of Historic Buildings (EECHB), Brussels, Belgium, 19–21 October 2016; de Bouw, M., Dubois, S., Dekeyser, L., Vanhellemont, Y., Eds.; Flanders Heritage Agency: Brussels, Belgium, 2016. [Google Scholar]
- Granados, M.H. Rehabilitación Energética de Edificios; Tornapunta Ediciones, S.L.U.: Madrid, Spain, 2012. [Google Scholar]
- Egusquiza, A. Propuesta Metodológica para una Aproximación Energética-Patrimonial a la Ciudad Histórica. Master’s Thesis, Universidad Politécnica de Catalunya, Barcelona, Spain, 2010. [Google Scholar]
- De Bouw, M.; Dubois, S.; Dekeyser, L.; Vanhellemont, Y. Energy efficiency and comfort of historic buildings. In Proceedings of the 2nd International Conference on Energy Efficiency and Comfort of Historic Buildings (EECHB), Brussels, Belgium, 19–21 October 2016; BBRI Flanders Heritage Agency: Brussels, Belgium, 2016. [Google Scholar]
- De Santoli, L. Guidelines on energy efficiency of cultural heritage. Energ. Build. 2015, 86, 534–540. [Google Scholar] [CrossRef]
- Uranga, E.J. La Intervención Energética en el Patrimonio edificado Residencial. Análisis del barrio de Gros en Donostia/San Sebastián. Ph.D. Thesis, University of the Basque Country—UPV/EHU, Donostia, Spain, 2017. [Google Scholar]
- Uranga, E.J.; Etxepare, L.; Lizundia, I.; Sagarna, M. The impact of the energy efficiency regulation on residential built heritage—The case of Gros district in the city of San Sebastian—2010/2015. In Proceedings of the 2nd International Conference on Energy Efficiency and Comfort of Historic Buildings (EECHB), Brussels, Belgium, 19–21 October 2016; Belgium Building Research Institute (BBRI): Brussels, Belgium, 2016. [Google Scholar]
- Lee, W.L. A comprehensive review of metrics of building environmental assessment schemes. Energy Build. 2013, 62, 403–413. [Google Scholar] [CrossRef]
- De Luxan, M.; Vázquez, M.; Gómez, G.; Román, E.; Barbero, M. Actuaciones con Criterios de Sostenibilidad en la Rehabilitación de Viviendas en el Centro de Madrid; Empresa Municipal de la Vivienda y Suelo (EMVS) del Ayuntamiento de Madrid: Madrid, Spain, 2009. [Google Scholar]
- Gobierno Vasco. Registro de Certificados de Eficiencia Energética del País Vasco. Departamento de Desarrollo Económico e Infraestructuras. Available online: https://apps.euskadi.eus/y67paUtilidadSeccionWar/utilidadSeccionJSP/y67painicio.do?idDepartamento=51&idioma=es (accessed on 18 June 2020).
- Backes, D.; Thompson, C.; Malki-Ephstein, L.; Bohem, J. Chadwick GreenBIM: Advancing operational understanding of historical buildings with BIM to support sustainable use. In Building Simulation and Optimization BSO14, Proceedings of the Second IBPSA England Conference, London, UK, 23–24 June 2014; UCL: London, UK, 2014. [Google Scholar]
- Violano, A.; Cannaviello, M.; della Cioppa, A.; Melchiorre, L. Technological design for the energy efficiency of the minor architectural heritage. In Proceedings of the XIV International Forum Le Vie dei Mercanti, La Scuola di Pitagora, Napoli, Italy, 16–18 June 2016; pp. 1493–1500. [Google Scholar]
- Jensen, T.; Chappin, É.J.L. Reducing domestic heating demand: Managing the impact of behavior-changing feedback devices via marketing. J. Environ. Manag. 2017, 197, 642–655. [Google Scholar] [CrossRef]
- Bottino-Leone, D.; Larcher, M.; Herrera-Avellanosa, D.; Haas, F.; Troi, A. Evaluation of natural-based internal insulation systems in historic buildings through a holistic approach. Energy 2019, 181, 521–531. [Google Scholar] [CrossRef]
- Lucchi, E.; Tabak, M.; Troi, A. The “Cost Optimality” Approach for the Internal Insulation of Historic Buildings. Energy Procedia 2017, 133, 412–423. [Google Scholar] [CrossRef]
- Lucchi, E.; Becherini, F.; Concetta Di Tuccio, M.; Troi, A.; Frick, J.; Roberti, F.; Hermann, C.; Fairnington, I.; Mezzasalma, G.; Pockelé, L.; et al. Thermal performance evaluation and comfort assessment of advanced aerogel as blown-in insulation for historic buildings. Build. Environ. 2017, 122, 258–268. [Google Scholar] [CrossRef]
- Andreotti, M.; Bottino-Leone, D.; Calzolari, M.; Davoli, P.; Días Pereira, L.; Lucchi, E.; Troi, A. Applied Research of the Hygrothermal Behaviour of an Internally Insulated Historic Wall without Vapour Barrier: In Situ Measurements and Dynamic Simulations. Energies 2020, 13, 3362. [Google Scholar] [CrossRef]
- Lucchi, E.; Roberti, F.; Alexandra, T. Definition of an experimental procedure with the hot box method for the thermal performance evaluation of inhomogeneous walls. Energy Build. 2018, 179, 99–111. [Google Scholar] [CrossRef]
- Código Técnico de la Edificación (CTE) Documento Básico de Ahorro de Energía (DB-HE). 2006. Available online: https://www.codigotecnico.org/index.php/menu-ahorro-energia.html (accessed on 2 August 2020).
- International Organization for Standardization. ISO 9869-1:2014—Thermal insulation—Building elements—In situ measurement of thermal resistance and thermal transmittance. Part 1: Heat flow meter method. 2014. Available online: https://www.iso.org/standard/59697.html (accessed on 2 August 2020).
- UNE EN 13829:2002. Aislamiento térmico de los edificios. Determinación de la estanqueidad al aire en edificios. Método de presurización por medio de ventilador. Available online: https://www.une.org/encuentra-tu-norma/busca-tu-norma/norma?c=N0026148 (accessed on 2 August 2020).
- Rye, C.; Scott, C.; Smith, O.; Gustafsson, J.; Brookers, C. The role of monitoring and feedback in the refurbishment of traditional buildings: New Court, Trinity College, Cambridge. In Energy Efficiency and Comfort of Historic Buildings; De Bouw, M., Dubois, S., Dekeyser, L., Vanhellemont, Y., Eds.; BBRI Flanders Heritage Agency: Brussels, Belgium, 2016; pp. 206–216. [Google Scholar]
- Allard, I.; Olofsson, T.; Nair, G. Energy evaluation of residential buildings: Performance gap analysis incorporating uncertainties in the evaluation methods. Build. Simul. 2018, 11, 725–737. [Google Scholar] [CrossRef]
- De Wilde, P. The gap between predicted and measured energy performance of buildings: A framework for investigation. Autom. Constr. 2014, 41, 40–49. [Google Scholar] [CrossRef]
- Mancini, F.; Dubbini, M.; Gattelli, M.; Stecchi, F.; Fabbri, S.; Gabbianelli, G. Using unmanned aerial vehicles (UAV) for high-resolution reconstruction of topography: The structure from motion approach on coastal environments. Remote Sens. 2013, 5, 6880–6898. [Google Scholar] [CrossRef]
- Barba, S.; Barbarella, M.; Di Benedetto, A.; Fiani, M.; Limongiello, M. Quality assessment of UAV photogrammetric archaeological survey. Int. Arch. Photogramm. Remote Sens. Spatial Inf. Sci. 2019, XLII-2/W9, 93–100. [Google Scholar] [CrossRef]
- Sun, Z.; Zhang, Y. Using Drones and 3D Modeling to Survey Tibetan Architectural Heritage: A Case Study with the Multi-Door Stupa. Sustainability 2018, 10, 2259. [Google Scholar] [CrossRef]
- Lehtola, V.; Kaartinen, H.; Nüchter, A.; Kaijaluoto, R.; Kukko, A.; Litkey, P.; Honkavaara, E.; Rosnell, T.; Vaaja, M.; Virtanen, J. Comparison of the Selected State-Of-The-Art 3D Indoor Scanning and Point Cloud Generation Methods. Remote Sens. 2017, 9, 796. [Google Scholar] [CrossRef]
- Carvajal-Ramírez, F.; Agüera-Vega, F.; Martínez-Carricondo, P.J. Effects of image orientation and ground control points distribution on unmanned aerial vehicle photogrammetry projects on a road cut slope. J. Appl. Remote Sens. 2016, 10, 34004. [Google Scholar] [CrossRef]
- Gaiani, M.; Remondino, F.; Apollonio, F.; Ballabeni, A. An advanced pre-processing pipeline to improve automated photogrammetric reconstructions of architectural scenes. Remote Sens. 2016, 8, 178. [Google Scholar] [CrossRef]
- María, S.; Iñigo, L.; José Javier, P. Graphic survey of industrial heritage in activity: Nueva Cerámica de Orio. EGA-Rev. Expr. Graf. Arquit. 2019, 36, 92–105. [Google Scholar] [CrossRef]
- Fontanilles, J.; Sole, J.; Domingo, J.; de Sola-Morales, P. Beyond metrics. Point clouds as semantic graphic expression. EGA-Rev. Expr. Graf. Arquit. 2017, 22, 228–237. [Google Scholar] [CrossRef]
- Rossi, A.; Iglesias, L.P.; Palmieri, U. From laser scanning to H-BIM: A case study. EGA-Rev. Expr. Graf. Arquit. 2020, 38, 182–193. [Google Scholar] [CrossRef]
- Xiongb, X.; Adana, A.; Akincic, B.; Huberb, D. Digitisation of existing buildings to support building assessment schemes: Viability of automated sustainability-led design scan-to-BIM process. Architect. Eng. Des. Manag. 2020, 16, 84–99. [Google Scholar]
- Jordan-Palomar, I.; Tzortzopoulos, P.; García-Valldecabres, J.; Pellicer, E. Protocol to Manage Heritage-Building Interventions Using Heritage Building Information Modelling (HBIM). Sustainability 2018, 10, 908. [Google Scholar] [CrossRef]
- Kaewunruen, S.; Kerinnonta, J.S. Potential Reconstruction Design of an Existing Townhouse in Washington DC for Approaching Net Zero Energy Building Goal. Sustainability 2019, 11, 6631. [Google Scholar] [CrossRef]
- Charefa, R.; Alaka, H.; Emmitt, S. Beyond the third dimension of BIM: A systematic review of literature andassessment of professional views. J. Build. Eng. 2018, 19, 242–257. [Google Scholar] [CrossRef]
- Lu, Y.; Wu, Z.; Chang, R.; Yongkui, L. Building Information Modeling (BIM) for green buildings: A critical review and future directions. Autom. Constr. 2017, 83, 134–148. [Google Scholar] [CrossRef]
- Wijekoon, C.; Manewa, A.; Ross, A.D. Enhancing the value of facilities information management (FIM) through BIM integration. Eng. Constr. Archit. Manag. 2020, 27, 809–824. [Google Scholar] [CrossRef]
- Calin-Bojea, A.G. Towards a semantic Construction Digital Twin: Directions for future. Autom. Constr. 2020, 114, 1–16. [Google Scholar]
- Jack, C.P.; Chenga, W.C. Data-driven predictive maintenance planning framework for MEP components based on BIM and IoT using machine learning algorithms. Autom. Constr. 2020, 112, 1–16. [Google Scholar]
- Delgado, J.M.; Oyedele, L.O. BIM Data Model Requirements for Asset Monitoring and the circular economy. J. Eng. Des. Technol. 2020. [Google Scholar] [CrossRef]
- Fabrizio-Banfia, R.B. Extended reality and informative models for the architectural heritage: From scan-to-BIM process to virtual and augmented reality. Virtual Archaeol. Rev. 2019, 10, 14–30. [Google Scholar] [CrossRef]
- Phaedra-Pocobelli, D.; Boehm, J.; Bryan, P.; Still, J.; Grau-Bové, J. BIM for heritage science: A review. Herit. Sci. 2018, 6, 30. [Google Scholar] [CrossRef]
- Rey-Hernandez, J.M.; Velasco-Gomez, E.; San José-Alonso, J.F.; Tejero-Gonzalez, A.; Gonzalez-Gonzalez, S.L.; Rey-Martinez, F.J. Monitoring Data Study of the Performance of Renewable Energy Systems in a Near Zero Energy Building in Spain: A Case Study. Energies 2018, 11, 2979. [Google Scholar] [CrossRef]
- Epelde, M. Thermal insulation solutions for listed buildings with special architectural or historic interest. Example of use. In Proceedings of the VI Congreso Europeo sobre Eficiencia Energética y sostenibilidad en Arquitectura y Urbanismo, San Sebastián, Spain, July 2017; Hernández, R., Ed.; [Google Scholar]
- Cheng, B.; Li, J.; Tam, V.W.Y.; Yang, M.; Chen, D. A BIM-LCA Approach for Estimating the Greenhouse Gas Emissions of Large-Scale Public Buildings: A Case Study. Sustainability 2020, 12, 685. [Google Scholar] [CrossRef]
- Tronchin, L.; Fabbri, K. Energy performance building evaluation in Mediterranean countries: Comparison between software simulations and operating rating simulation. Energy Build. 2008, 40, 1176–1187. [Google Scholar] [CrossRef]
- De Angelis, E.; Serra, E. Light steel-frame walls: Thermal insulation performances and thermal bridges. In Energy Procedia. In Proceedings of the 68th Conference of the Italian Thermal Machines Engineering Association (ATI), Bologna, Italy, 11–13 September 2013; Morini, G.L., Bianchi, M., Saccani, C., Cocchi, A., Eds.; Elsevier B.V: Amsterdam, The Netherlands, 2014; Volume 45, pp. 362–371. [Google Scholar]
© 2020 by the authors. Licensee MDPI, Basel, Switzerland. This article is an open access article distributed under the terms and conditions of the Creative Commons Attribution (CC BY) license (http://creativecommons.org/licenses/by/4.0/).



















