Abstract
The restoration of historical buildings often implies a change in the main use of the building so that it can once again become a part of people’s lives. Among the interventions needed to adapt the buildings to their new purpose, improving the energy performance is always a challenge due to their particular construction solutions and the influence that these improvements can have on their protected elements. The regulations in force in European Union (EU) member states leave a gap in how the energy performance evaluations in these types of buildings can be defined, and even exclude them from the process. However, rehabilitation of buildings is always seen as an opportunity, because it allows the building to once again be useful to society and play an important role in people’s lives. At the same time, it can also improve their performance and allow benefits to be gained from their use through a reduction in maintenance costs. In the rehabilitation process, the economic viability of the renovation plays a fundamental role which must be compared, in the case of protected buildings, to its impact on the architecture of the building. Since 2002, the EU has issued directives with the aim that countries should define objective methods to improve the energy performance of buildings and, in recent times, methods that demonstrate the amortization of such improvements. Within the process of implementing the new methodologies adapted to the EPBD, Spain was one of the last EU countries to define a process for the energy assessment of existing buildings, introducing an analysis of the economic viability of the construction improvements suggested in the process. The objective of this research was to describe the decision-making process during the evaluation of the feasibility of introducing construction improvements to the energy performance of two catalogued historic buildings located in a warm climate. The estimated energy consumption was evaluated, the net present value (NPV) and the payback period of the investment calculated, and the results obtained were compared with the real energy consumption. At the end of the process, it can be said that the methodologies adopted in Spain offer results that can lead designers to make wrong decisions that may affect the protected heritage values of these buildings.
1. Introduction
The overall value of a building is not solely limited to its economic, artistic, technical, or historical merits. A building forms part of an urban network where many activities take place at the same time, creating strong links to the subjective part of the inhabitants’ lives. Some of the oldest or most used buildings become anchor points for those who live close by, and reinforce the need to maintain history and tradition to create a healthy urban environment. Historical legacy is necessary for citizens’ lives and allows them to face challenges in the future. The loss of a building with historical, cultural, and artistic value is not only a material fact, but more importantly, results in the loss of collective identity, which is never to be restored. When these buildings reach the end of their lifespan, sometimes a change of use needs to be integrated in the urban network again. The adaptation of the building to the new purpose implies the maintenance of the building’s cultural value, as well as the introduction of construction and conditioned systems that were not used before. The evaluation of the viability of these construction improvements must be done from two points of view—economic viability, and the impact on the architecturally protected elements.
The analysis of the economic viability of a rehabilitation operation to stop the abandonment and ruin of a building and to be able to update its operation implies that a cost is established for the investment that must include the study costs, the construction costs, and the future operational costs that will occur during the new life cycle of the building after rehabilitation.
The technical decisions used for the renovation may lead to an increase in construction costs, but at the same time, to long-term savings in the maintenance or operation of the building. This variable allows a comparative analysis of the possible advantages of using higher-quality products, which are initially more expensive compared to a less significant investment in terms of subsequent costs.
When the viability of an intervention is measured based on energy savings, the savings achieved in energy consumption must be significant during the useful life of the building since energy savings are directly related to financial savings that could also be promoted as an indicator of sustainability.
Currently, within the initiatives of the European Union (EU) is the energy rehabilitation of existing buildings as a measure to reduce the energy bill and improve user comfort. In the EU, 38.7% of energy consumption is accounted for by residential, commercial, and institutional buildings [1]. In terms of electricity consumption, this percentage is close to 70% [2]. These figures take on importance when the built inventory shows signs of aging, as only 1% of the buildings have been built since 2006 [3].
Among the built inventory that is the object of renovation work are the buildings that, due to their architectural characteristics, are catalogued and subject to protection. These buildings are often outside the scope of the regulations for the evaluation of the energy performance of buildings [4], and it is up to the architect and the competent administration to define the scope of the renovation. An analysis of the investment in this type of building then becomes a complex process where there is no standardized method and where subjective factors come into play, limiting decision-making and the adoption of known and viable solutions.
At the same time, there is not a unified method which can be used to approach a building restoration, as every building has its specific protection level and uniqueness. Therefore, there is a chance to explore the viability of interventions over catalogued buildings where an improvement in energy performance is planned and where there are not official methods to be applied over the process.
For the explanation of the present investigation, the article is divided as follows: Section 2 introduces the regulatory framework. Related research is analyzed at Section 3. Two case studies are presented in Section 4. Section 5 presents the research methodology. The results obtained in the energy analysis of buildings are described in Section 6. Section 7 describes the results obtained from the calculation of the net present value (NPV). Section 8 describes decision-making at the end of the project. The discussion of the results and comparison with the actual performance of the building are analyzed in Section 9. Finally, Section 10 describes the conclusions drawn.
2. Regulation Analysis
2.1. Assessing the Energy Performance of Buildings in the EU
In 2002, the EU published the Energy Performance Building Directive (EPBD) [5] as the tool that is described in the Agreement of the European Union [6] for promoting initiatives to reduce energy costs. In the EPBD, the EU obliges the EU members to adopt measures for improving the energy performance of buildings. Previously, the EU had designated the European Committee for Normalization (CEN) [7] as responsible for developing the general regulations in Europe. Therefore, in 2006, the CEN provided a group of regulations for evaluating the energy performance of buildings and defining indicators of the sustainability and efficiency of buildings. These documents were gathered under an “umbrella document” [8] that includes UNE EN 13790 [9], entitled “Methodology for evaluating energy performance in buildings, energy for heating and cooling in buildings”; EN 15603 [10], entitled “Overall energy use and definition of energy ratings”; and EN 15217 [11], entitled “Energy efficiency in buildings. Methodologies to express energy efficiency and energy certifications in buildings ” [11].
Despite the EU’s efforts to homogenize the way member countries treat the assessment of the energy performance of buildings, EU analyzes have shown a wide variety of situations that dispute the claim that there is a standard procedure in Europe [12,13].
This situation is further complicated by the analysis of the methodologies adopted in southern European countries where warm climates prevail and, therefore, experience higher energy needs in summer. The results obtained when analysing buildings offer random situations, as the use of natural ventilation, thermal inertia, and the need for a more permeable envelope make the assessment more complex, and no adequate response can be obtained from official methods [14]. Neither has the appearance of new simulation tools linked to Building Information Modelling (BIM) work environments managed to improve the decision-making process, since the particularities of the performance of buildings in hot climates mean that the results are not comparable with the real performance of the building [15].
2.2. Evaluation of the Energy Performance of Existing Buildings
The process of adaptation of the different EU member countries to the EPBD mainly occurred between 2005 and 2013. Those particular countries located in southern Europe, where a warm climate prevails in a large part of its territory and the widespread use of air-conditioning systems in private homes has been relatively recent, were the last to adapt to the EPBD. Among these countries is Spain, which, in 2013, adopted a methodology for evaluating the energy performance of existing buildings [16].
Within the scope of the approved methods, both the EPBD and the most official methods provide that, in major interventions (1000 m is defined as the limit quantity), energy efficiency can be improved if the intervention is technically, functionally, and economically feasible. However, the directive allows for certain exceptions. Interventions in heritage and historical buildings with a certain degree of protection are exempted from compliance with the EPBD if the intervention could unacceptably alter the monument.
2.3. EPBD Update
The analysis of the various methods demonstrated that most of the countries used the EN ISO 13790 as a basis for calculating energy need in buildings [4]. Moreover, there is a lack of homogeneity in the way the methods evaluate the building geometry [13] in the material properties and constructive systems, which depend on software databases and the heat production systems. The methods for calculating the energy certification are mainly based on the EN 15217 standard with the indicators that are defined in EN 15603.
Most of the EU members certify residential buildings via a fixed reference method, while tertiary buildings, with fewer buildings for comparison, used to be certified via a variable method, although some authors state that this method causes designers to adopt incorrect decisions [17]. Nevertheless, the EU member governments’ priorities influence the limits and the method to be used [18].
In 2010, the EU published an update [19], in which the diversity and lack of unity among methodologies for evaluating the energy performance of buildings throughout Europe were discussed. It also identified some key ways to improve the methods, such as considering thermal inertia in the procedures, especially in the methods to be applied in countries with warm climates. In the other recommendations, the most important change came from the need to develop a recovery-of-investment method for the adopted energy-saving measures in the buildings.
This strategy was reinforced in 2018 when the EU forced the EU members to design methods to facilitate a profitable economic transformation of existing buildings with an almost zero-energy supply [20].
Therefore, since 2010, the EU has promoted the verification of the economic feasibility of interventions in buildings to improve their energy performance, and since 2018, this initiative has reached existing buildings. However, at the EU level, there is no minimum level of return on investment for any type of building [21].
2.4. Calculation of the NPV
To complement Directive 2010/31/UE, the UE published the Delegated Regulation (UE) 244/2012 [22] that developed the above-mentioned directive and obliges the EU members to define methods for evaluating energy performance in buildings that could guarantee the economic efficiency of the adopted measures. These regulations had to be adopted by all EU members by the beginning of 2013.
This regulation introduced the NPV as a comparative value of construction improvements. The purpose of the NPV was to determine the viability of an investment on the basis of the result obtained by comparing the investment initially made with the savings obtained, also taking into account the maintenance carried out over time. A positive NPV indicates a profitable investment that increases as the NPV increases.
The regulation offers two methods of global cost calculations as the NPV for any type of improvement intervention: the global cost at the financial level, and the global cost at the macroeconomic level. The difference between the two methods focuses on the exclusion in the second method of all applicable taxes and subsidies, and on the consideration instead of the costs of greenhouse gas emissions.
The overall cost at the financial level is calculated using the following formula:
- is the calculation period;
- is the overall cost (referring to the initial year during the calculation period);
- C are the initial investment costs of the measure or set of measures j;
- C(j) is the annual cost during year i of the measure or set of measures j;
- V (j) is the residual value of the measure or set of measures j at the end of the calculation period (updated to the initial value );
- R is the update factor applicable to each year based on the update rate r, which must be defined by each member state, calculated according to the formula:
- where p is the number of years from the initial year and r is the actual update rate.
In the case of a construction renovation to improve the energy efficiency of an existing building being studied, it is necessary to take the initial year as the moment in which work begins; use the calculation period of depreciation indicated by each country; and consider the types of costs and energy prices in the long-term.
The regulation also completes the methodological framework by defining an estimated life cycle of buildings, setting update rates, and defining the costs of energy carriers, products, systems, maintenance, operation, and labor. At the energy level, the regulation requires member countries to define primary energy conversion factors and an estimate of future energy prices. For calculation purposes, the regulation defines a calculation period of 30 years for public and residential buildings and 20 years for commercial and non-residential buildings.
As an alternative, we found the global cost at the macroeconomic level. As indicated above, this cost must consider the impact of greenhouse gas emissions and is calculated using the following formula:
- where C (j) is the carbon cost of the measure or set of measures j during year i.
Complementary to the regulation, the EU publishes a series of reports that define the conditions for an optimal calculation of the global cost by defining the future energy prices in each country [23]. In addition, it defines the amortization periods for each type of construction improvement—for example, the recovery periods for thermal insulation, windows, carpentry, and installations. These reports also set out the cost of CO emissions, the annual discount rate, and the final energy conversion factors into primary energy, and energy conversion into CO emissions.
As seen in the formulas, the cost optimization methodology is, in the first moment, technologically neutral, as it does not favour any technological solution to the detriment of others. However, in deep analysis of both methods and the report, those technological solutions with low maintenance costs and with low CO emissions are expected to obtain better results. Maintenance costs act negatively in the calculation through the analyzed period, while CO emission costs grows because of political strategies.
2.5. Regulatory Situation in Spain
As mentioned above, the process of adopting national methodologies for assessing the energy performance of buildings in southern Europe is slower than in northern countries. This situation also extends to the evaluation of existing buildings, with Spain becoming one of the last countries to enact a law accommodating this certification in 2013.
Spain has not been a pioneer in the implementation of measures to reduce energy consumption in its construction market. The first regulation published in Spain that sought to improve the energy performance of residential buildings was the NBE CT-79 [24], which defined a method based on the calculation of a building form factor, combined with a minimum transmittance value (U-Value).
The adaptation to the EPBD 2002/91/CE in Spain was carried out through the Technical Building Code [25], which has its origin in the Law on Building Management [26]. Within this document, the Basic Energy Saving Document (DB HE) (Government of Spain, 2017) [27] is the part of the CTE that defines the requirements for evaluating the energy performance of buildings. This document defines its scope in all types of new buildings and in existing buildings subject to major actions, but it also excludes protected buildings, leaving the improvement measures to be taken at the discretion of the designer and administration responsible for the conservation of the buildings. This exclusion follows the line of other methodologies approved in Europe where the degree to which the monument is affected by the construction improvements can condition its application.
To obtain energy certification for new buildings, Spain published its first law in 2007 (Spain, 2007) [28], although a fairly long moratorium period was allowed until the start-up of the certificate registration offices. In 2013, there was an update of the procedure for the energy assessment and certification of buildings, and a procedure was defined for the first time for the energy certification of existing buildings, becoming mandatory in the processes of renting or selling existing buildings. In 2017, the procedures were updated, including the limit values for obtaining the different energy certifications [29].
Until September 2018, the process for evaluating the energy performance of new buildings was obligatorily carried out through a tool developed by the Spanish government, called LIDER, and energy certification was achieved through a tool called CALENER, which, in 2013 became the Unified LIDER-CALENER Tool (HULC). This tool, based on the DOE-2 calculation engine, has proved difficult to manage and is characterized by offering results that do not help in the decision-making process during the project phase because it favors buildings with complicated geometry over buildings with an efficient design [17]. At the same time, this program follows the line of methods approved in other southern European countries that do not offer robust results in the process of studying construction improvements, and hampers the decision-making process by introducing construction improvements in the design [30].
The process of evaluation and energy certification of existing buildings is performed from two tools called CE3 and CE3X, both developed under the calculation engine, DOE-2. The first one is characterized by its simplicity and limitations in the introduction of building information. The second tool allows introduction of the geometry of the building, but without allowing its modeling. At the same time, CE3X allows, for the first time in Spain, the possibility of studying construction improvements to improve the energy performance of buildings, as well as analysis of the return on investment over time.
The process for justifying energy demand in residential buildings is defined, according to DB HE, by a maximum energy need per m of surface area. In the case of other-use buildings, the energy demand is made through a percentage improvement in the energy need of a reference building, called the object building, which the calculation program defines. This object building is defined as a building that has the same geometry and orientation and that at least meets the energy demand parameters of the climatic zone.
For the energy certification scale, Spain adopted a comparative framework between the options offered by EN 15217. Thus, certification is made after a comparison between buildings that have the same use and are in the same climate. However, as it happens while calculating the energy demand, a distinction is made between buildings intended for housing and buildings for other uses. This separation occurs because it is impossible to make a comparison between buildings in which there is a large difference in the envelope and in the size of the air-conditioning installations.
Residential buildings are compared with the performance of other buildings in the built inventory within a period. In the case of non-residential buildings, as there are not enough repetitive patterns to establish homogeneous groups of buildings for comparison, it was decided to compare the building subject to certification with a fictitious building, called the reference building, which must have the same geometry, orientation, uses and zoning, solar control elements, and construction that meets, at a minimum, the energy demand for the purposes of air-conditioning equipment and the production of domestic hot water. This system has proved to be imprecise, given the difficulties encountered by architects in interpreting the results of the program and, therefore, in decision-making in the project phase [17].
2.6. Objective of the Research
The adoption of non-transparent methods for evaluating the energy performance of buildings has made decision-making for a renovation difficult in Spain. The lack of information in the project’s process about the savings that will be obtained may make the promotor reconsider the need to renovate an existing building. This situation may worsen when such construction improvements can influence the architectural protection of the building.
The lack of a scope, and therefore of a specific methodology for listed buildings makes it necessary to establish a relationship between the impact of the construction improvements on the architecture and the energy savings that these may have. At the same time, it is necessary to evaluate the performance that the methods for evaluating the energy performance of new and existing buildings may have on this type of building.
It is therefore in the interest of this research to evaluate the recovery of investment in construction that improves the energy performance of existing buildings that also have some type of protection, and to evaluate the influence of current methodologies in Spain in the decision-making process during the project drafting phase.
3. Related Literature
Research shows that the lack of interest in efficient buildings, as in Spain, is related to a lack of importance of energy performance in terms of investment [31], as well as to a lack of information and adequate regulations [32]. This situation conflicts with the forecasts made by the United Nations when it stated that there has been an increase of 5 EJ in the final energy demand of buildings between 2010 and 2016. This is a consequence of the fact that energy efficiency efforts have not kept pace with the increase in the surface area used. It should be borne in mind that more than half of the buildings that will exist in 40 years will be constructed over the next 20 years, and two-thirds of them will be in countries that currently do not have adequate energy building codes. Energy consumption and CO emissions account for 36% of global final energy use and 39% of energy-related CO emissions when upstream power generation is included. Progress toward sustainable buildings and construction is advancing, but improvements are still not keeping up with a growing building sector and rising demand for energy services. The energy intensity per square meter (m ) of the global buildings sector needs to improve, on average, by 30% by 2030 (compared to 2015) to be on track to meet global climate ambitions set forth in the Paris Agreement [33].
The technical decisions made for rehabilitation can lead to an increase in the construction costs and long-term savings in the maintenance or operation of a building. This variable allows a comparative analysis of the possible advantages of using higher-quality products, which are initially more expensive compared to a less significant investment in terms of subsequent costs. In public residential buildings, it has been determined that seeking lower energy savings and emissions reductions has the relevant advantage of being sustainable from a financial point of view, compared to an intervention that seeks maximum energy savings [34].
In residential buildings, taking into account the energy contained in the materials, rehabilitation with the substitution of windows, improvement of insulation, and substitution of installations can lead to energy and pollution savings of 60% [35]. In addition, several studies indicate that the rehabilitation of a building represents potential energy savings compared to other types of interventions [36], since emissions related to the construction phase can be up to 12 times higher for the new construction than in the rehabilitation scenario [37].
ISO 15686-5 [38] defines the life cycle cost (LCC) as a tool or technique to evaluate the total costs that arise during the entire useful life of a renovation, including the installation, use, maintenance, and loss of value stages. Analyzing from the LCC, the process of renovating an existing building allows decisions to be made during the construction project to optimize future costs and plan maintenance budgets. Another advantage is the possibility of choosing between several alternatives, studying each of them separately to facilitate the choice of the most cost-effective option for the whole life cycle [39].
The evaluation of the economic viability of an intervention can be supported by different types of IT tools. Building Energy Modeling (BEM), used in early design phases, can be useful for measuring achievable energy and environmental savings [40], assisting in decision-making in the project phase. Computational Fluid Dynamics (CFD) simulation [41] also makes it possible to evaluate the viability of passive, and therefore, low-cost energy-saving measures. Some studies state that 86.5% of the experts studied consider that they would use Life Cycle Assessment (LCA) if integrated with Building Information Modelling (BIM). With automation, design experts can compare their options in real time, design to reduce emissions, and find optimal solutions at every stage of the design [21].
At the same time, it is considered that energy performance is a very important aspect of the building life cycle. There are management tools that cover the simulation of the complete building life cycle assessments (LCAs). The development of new software provides new measures for obtaining more efficient buildings, even in the early stages of design [42]. Moreover, operating, maintenance, and replacement costs of buildings make up more than 80% of total life cycle costs [43] and can be a very useful tool for big infrastructure management when combined with BIM tools [44].
Some authors consider that conventional energy efficiency technologies can be used to decrease energy use in new commercial buildings by 20–30% on average, and up to over 40% for some building types and locations. These reductions can often be performed at negative life-cycle costs because the improved efficiencies allow for the installation of smaller, cheaper HVAC equipment. These improvements not only save money and energy, but can also reduce a building’s carbon footprint by 16% on average. Costs on carbon emissions from energy use increases the return on energy efficiency investments because energy is more expensive, making some cost-ineffective projects economically feasible [45].
One of the main drawbacks in official methods for assessing the energy performance of buildings in hot climates is the lack of consideration of traditional measures to limit energy demand in buildings. Thermal inertia, cross-ventilation, or sun control have been traditional tools in hot climates. Passive energy rehabilitation, based on the improvement of the envelope and the implementation of solar control elements, especially benefits buildings located in warm climates as opposed to measures aimed at replacing thermal installations with others of greater efficiency. Numerous research studies highlight the importance of reducing energy demand through design and passive building solutions [46].
The process of simulating the energy performance of buildings is also confronted with the human factor when comparing the results of the evaluation with the reality of the use of the building. Several researchers have demonstrated the high impact on the variation in energy consumption after identifying and classifying occupant behavior with energy consumption results and temporary use data [47,48]. The influence of occupants on variations in energy consumption is estimated to be between 10–25% for residential buildings and between 5–30% for commercial buildings [49].
On the other hand, post-execution studies have also shown that there are conflicts between the real cases and the simulations carried out with the programs and the methods for evaluating the energy performance of buildings [15]. Conflicts between simulations and real cases have also been detected when quantifying amortization periods for the application of energy-efficiency improvement measures [46]. This situation can lead to erroneous decision-making when some authors argue that the time needed to amortize the energy consumption of new construction versus rehabilitation is 60 years [50].
The levels of comfort and security demanded by users are another variable that has indirect costs associated with the investment made and that can condition the cost of maintaining the building. In Spain, several studies have been carried out on this effect, as a result of which, in 2012, 9% of Spanish households declared themselves incapable of maintaining their home at an adequate temperature and almost 17% spent energy disproportionately [51]. In tertiary buildings, such as bank branches, the average final energy consumption of heating, ventilation, and air-conditioning accounts for 48% of the total consumption of the building [1].
From the point of view of the amortization of the investment through energy savings, it should be noted that energy savings are directly related to financial savings, and this should be promoted as an indicator of sustainability so that energy savings should be significant during the useful life of the building. It is therefore necessary to create new evaluation and assessment systems using tools integrated with quality models throughout the life of the building and all its elements [52,53].
On the other hand, there are contradictory opinions about life-cycle analyses (LCA). Some authors consider that the LCA of buildings is less advanced than in other industries, but researchers are working to enhance the possibilities of adopting LCA as a decision-making support tool within the design stage. At the same time, a full LCA of a product provides useful and accurate information, but it is costly and time-consuming, and using generic data and information in a specialized application could lead to a wrong choice. Nevertheless, LCA is considered a powerful tool for the evaluation of environmental impacts of buildings. It has the potential to make a strong contribution to the goal of sustainable development [54].
However, it is important to note that the relationship between the life cycle, energy efficiency, and heritage conservation has still been poorly explored [55]. Among the reasons for the lack of research in this field is the lack of an initiative at the European level to address this type of building, and this is denounced by some authors [56]. However, it is recognized that the analysis of improvements in protected buildings offers advantages in their energy performance, and can even change users’ habits [57].
Among the research on LCA in protected buildings, some authors argue that LCA for protected buildings should not have a maximum time limit for calculating the return on investment [58]. The lack of regulations to be applied over this type of intervention could be compensated for by the integration of an analysis of energy performance based on a methodology and the decision-making process about the impact of the construction improvements on the architecture, which is something subjective. This integrated treatment is being explored by some authors [59]. This opinion is also reinforced when some authors state that an analysis with an appropriate method will allow the value of construction to improve [60].
Finally, the extensive literature review carried out by Cabeza et al. [61], stated that the first approach for improving energy performance in listed buildings came from the improvement of the building envelope. This improvement must be done by analyzing the impact over the building’s protected values. Among all the available construction improvements, it showed promising potentiality for the improvement of energy efficiency and indoor wellbeing in historical buildings by means of implementing operational control solutions, as they minimize any invasive impact on construction, which means betting on technology applied over heritage buildings.
4. Research Method
As mentioned in the literature review, there is a clear interest in testing the LCA methods as a tool valid for the evaluation of the economic viability for interventions in listed buildings. There is also a clear interest in the evaluation of the energy savings because of improvements in the building’s envelope and the evaluation of the impact over the protected building values. Therefore, the aim of the method followed in this research was to analyze the economic viability of undertaking construction that improves the energy performance of buildings catalogued in their refurbishment process.
For this purpose, two case studies have been chosen, located in southeastern Spain, characterized by its warm and dry climate. These two buildings were chosen as the authors participated in the full refurbishment process, and there was an interest in learning about the recovery of the investment at the end of the process. These buildings had a unique geometry, and according to the design recommendations, they should be extremely efficient in a warm climate, although they cannot be considered as models for any generic thermal considerations. The thickness of their enclosures, the size of the windows, and the available cross-ventilation made us assume good energy performance.
Although the buildings fall outside the scope of the CTE, both buildings were analyzed with the regulations and tools in force in Spain for the evaluation of the energy performance of buildings with the aim of evaluating their impact on this type of building.
With these tools, an iterative process was proposed where calculation examples were developed in both case studies to support the decision-making process and to know of the impact that construction measures to improve the energy performance of buildings may have. At the same time, a preliminary assessment was made of the impact that the improvements may have on the protected parts of the buildings.
As a final part of the research, the impact of construction improvements on buildings was evaluated by analyzing the recovery of the investment, comparing the information obtained from the methods approved in Spain with those defined by the EU in Regulation 244/2012. Finally, the results obtained were compared with the real consumption of one of the buildings, evaluating the influence that the official methodologies had on the decision-making process.
The following steps have been taken in this research:
- Definition of case studies. These buildings are two rehabilitation cases actually executed and in which the decision-making process has been affected by the methodology for evaluating the energy performance of buildings.
- Construction improvements are proposed in both buildings with the aim of reducing energy demand and CO emissions. The impact on the architecture and protected elements of both construction solutions is evaluated initially.
- Evaluation of the energy performance of the buildings. The energy performance of the buildings is assessed at two levels: in its original state, and once the construction improvements have been made. The evaluation is carried out with the official tools in force in Spain, HULC, and CE3X. At the same time, energy certification is obtained.
- Assessment of the feasibility of the investment in terms of savings from energy efficiency improvements under the Regulation 244/2012 and through the CE3X program.
- Discussion of the results.
The software used during the evaluation of the energy performance and the obtention of the energy certifications, as mentioned above, were HULC (to be applied for new buildings) and CE3X (to be applied for existing buildings).
HULC is based on the DOE-2 calculation engine, and it permits the volumetric definition of the building in defining all the construction materials and systems to obtain the energy need. To obtain the energy supply, it allowed one to completely define all the HVAC systems of the building. The energy certification, as they are tertiary buildings, is obtained by comparing the analyzed building with an object building that met, at a minimum, the energy consumption and CO emission levels defined by the Spanish government.
As the energy certification in Spain uses the primary energy, energy supply, and CO emissions as indicators to evaluate the energy performance in buildings, it was possible to obtain these factors after the calculation.
CE3X works under the same calculation engine, but it is a simpler program as it simplifies the data introduction. It does not allow for volumetric definition, and the building geometry is introduced in a very basic way. Nevertheless, the building envelope and conditioning systems can be completely defined. The energy certification is obtained in the same way as HULC.
The main difference between both programs come from the simplifications and databases used in the calculation process. The different procedure used to introduce the building geometry, with a different certification scale by climate zone, building typology, and new or existing buildings is, according to what it is stated by the Spanish government [62], the origin of the slightly different yielded results.
5. Case Studies
The two case studies chosen for this research are two protected buildings that were under a rehabilitation process and where the authors of this research participated as consultors. As both rehabilitations implied a change in the building’s use, during the process of drafting the rehabilitation project, the possibility of adopting construction solutions to improve their energy performance was assessed, and the impact that the proposed methodology can have on the decision-making process was demonstrated. At the same time, it was also interesting to know the energy performance of the two buildings with a particular geometry that included passive solutions as thermal inertia and ventilation.
The buildings are located in the municipality of Orihuela in southeastern Spain, which is characterized by a vast heritage that requires urgent interventions. Both buildings are catalogued in the Orihuela Urban Master Plan with different levels of protection. In both cases, the buildings were facing serious maintenance problems and had begun the process of structural collapse.
Given the importance that both buildings had for the neighbors, an integral rehabilitation was proposed that included the reconstruction of some elements. On the other hand, a change of use was also considered, as the former use was not possible again and the neighborhood pursued other types of services. As part of the decision-making process, construction improvements were assessed with the aim of improving the energy performance of both buildings. These construction improvements were based on the introduction of thermal insulation on the outside of the enclosure involved an architectural modification that required authorization to a greater or lesser extent.
5.1. The Chapel of the Holy Sepulcher
The Chapel of the Holy Sepulcher is a building built during the 18th century whose deterioration and lack of prolonged maintenance caused a process of structural collapse. At that time, it was acquired by the Orihuela City Council, which began a process of reconstruction and rehabilitation that was based on the recovery of two annex buildings that collaborated structurally in the stability of the nave of the Chapel and the collapsed parts of the vault, shown in Figure 1. The Chapel had the maximum level of protection at the city’s catalogue. This level implies the global protection of façades, roofs, and interiors, and that authorization is needed prior to any modification. The objective of the rehabilitation was to turn it into a community center for the neighborhood where it was located, which also identified with this building.
Figure 1.
Image of the Chapel of the Holy Sepulcher.
The Chapel of the Holy Sepulcher has a surface area of 150.00 m, and as shown in Figure 2, it is characterized by its construction using thick masonry load-bearing walls, and by its absence of holes in the façade. This typology is typical in southeastern Spain for buildings of religious use, and adapts perfectly to the prevailing climate in the area since thermal inertia and solar control, along with adequate ventilation are traditional solutions for conditioning buildings in warm climates.
Figure 2.
Section and plan of the Chapel of the Holy Sepulcher.
During the project phase, it was considered that thermal inertia provided by the thick masonry walls completed with proper ventilation would be enough to guarantee the interior comfort conditions. Nevertheless, the option of adding insulation on the building envelope on the foundation and at the roof was considered. The construction solution for the façade, which has the greatest impact on the level of protection of the building, was based on the use of an External Thermal Insulation Control System (ETICS) based on the thermal insulation of extruded polystyrene covered by a monolayer mortar. The cost calculations in construction improvement are described in Table 1.
Table 1.
Calculation of the cost of installing the insulation system.
The use of the DB HE over the building implied the accomplishment of the basic parameters defined by this regulation. At the DB HE-1, the building must accomplish the defined U-values to be applied over the climate zone where the building is located. It also needs to demonstrate that the energy loss by thermal bridges is under a certain value, and that at any point, it does not reached the dew-point at any point of the building envelope.
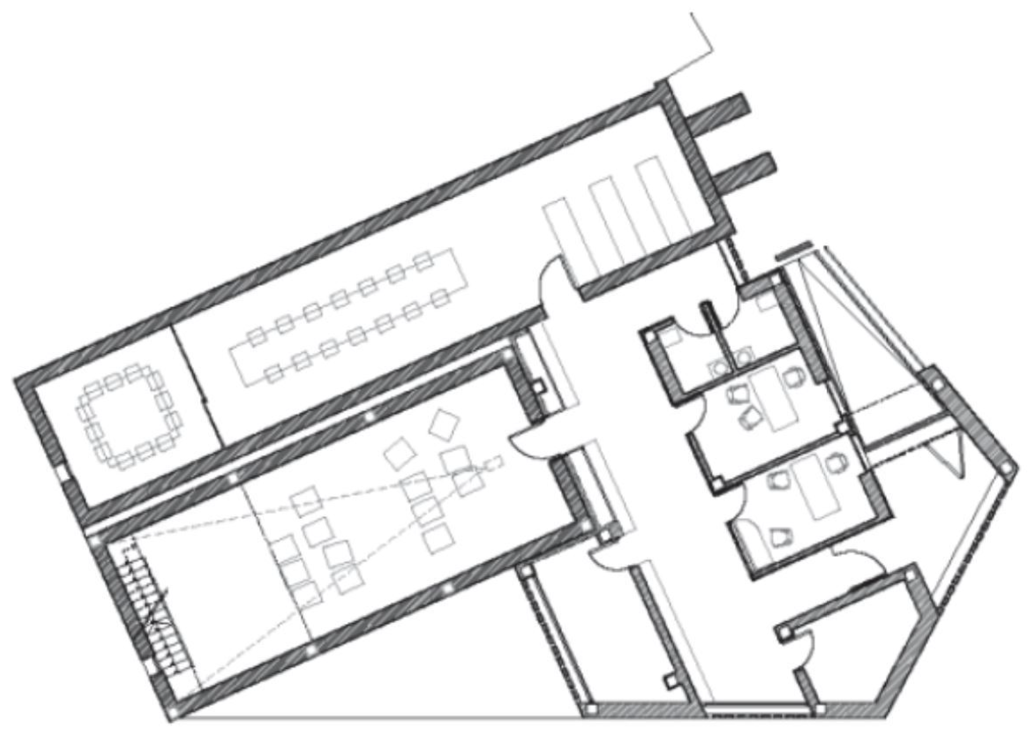
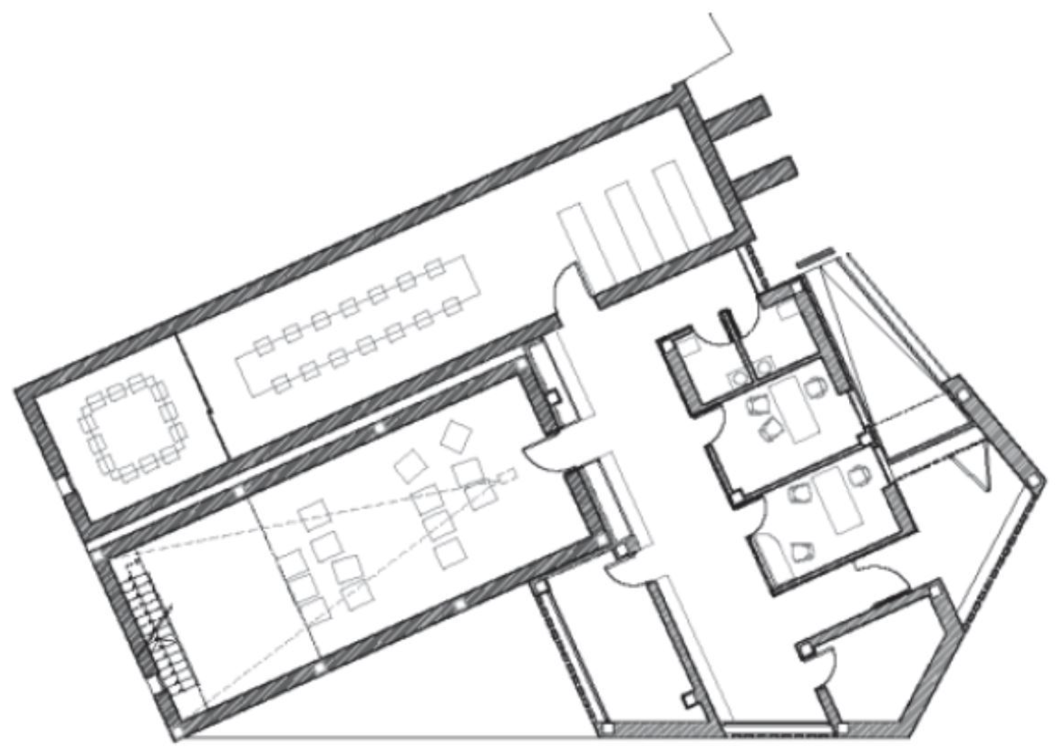
5.2. The Cisterns of Hurchillo
The Cisterns of Hurchillo are from the 19th century. Its function was to contain the water to be channeled to the town of Hurchillo, in Orihuela. This building was just as unfortunate as the Chapel, and the process of degradation culminated in its abandonment. This building was included at the catalogue of protected heritage buildings of the city, but with a lower level of protection. In this case, only the main façade to the street and the external shape of the cisterns needed authorization to be modified.
The aim of the rehabilitation was to reuse the cisterns for the local cultural center, recovering both cisterns and adding an annexed service building, as shown in Figure 3.
Figure 3.
Floor plan of the Cisterns.
In this case, the geometry of the building is much more complex, since it is a semi-buried structure. The building has an area of 236.00 m, of which a large part is buried, as shown in Figure 4. In addition to the high thermal inertia provided by the land, there is also a construction made with containing walls of masonry and very thick concrete. At the level of the enclosure, only the roofs and one of the facades are in contact with the outside environment.
Figure 4.
Section plan of the Cisterns.
As was the case with the Chapel of the Holy Sepulcher, an improvement of the thermal envelope was proposed by introducing thermal insulation in contact with the ground, but especially in the area of the roof by means of an ETICS system, given that the Cisterns originally only had plaster on the outside of the curved surface of the vault. The insulation system was completed with a reinforced ventilation system that guaranteed the proper comfort conditions in the interior. The cost calculations in construction improvement are described in Table 2.
Table 2.
Calculation of the cost of installing the insulation system.
The use of the DB HE over the building implied, as in the case of the Chapel, the accomplishment of the minimum requirements to guarantee proper building behaviour from a thermal point of view.
5.3. Preliminary Study of the Impact of Construction Improvements on Protected Buildings
The implementation of an insulation system in the Chapel of the Holy Sepulcher both inside and outside was complicated by the geometry and elements existing in the building. The baroque and neoclassical buildings in this area of Spain are characterized by a profusion of moldings and pictorial decorations that prevent the installation of an insulation system on the interior. In the case of the exterior, the execution of the ETICS system means an increase in the envelope, coming into conflict with decorative elements and historic materials existing on the exterior of the envelope, as shown in Figure 5. At the level of the roofs, conflicts arise with the roof system because there are both vaults and domes. The authorities in charge of heritage buildings protection were very reluctant to any intervention that modified the façades both inside and outside. They would only be taken them into consideration if very big benefits could be obtained during energy simulation.
Figure 5.
Detail of the main façade and example of the interior paintings of the Chapel of the Holy Sepulcher.
The impact of the construction improvements on the Cisterns was initially minor, given the absence of both interior and exterior decorative elements, as shown in Figure 6. The original image of the buried cisterns where the vault was simply finished with a mortar allowed this image to be recovered, provided that the execution problems of rendering on a curved surface were solved. In this case, the authorities were open to the introduction of new construction elements if the original shape of the buried cisterns was maintained.
Figure 6.
External images of the Cisterns.
6. Modeling the Energy Performance of Buildings
As indicated above, the DB HE in force in Spain, in its scope of application, exempts existing buildings with recognized historical or architectural value from complying with its prescriptions when the necessary solutions could unacceptably alter their character or appearance, and when the application of these solutions does not lead to an effective improvement in the features related to the basic “energy-saving” requirement, as well as when the solutions are not technically or economically viable.
However, this document also indicates that every effort should be made to improve the performance of the building on the condition that the solutions to be adopted can never worsen the original performance of the building.
To carry out this research, we decided to apply the two recognized methods developed by the Spanish Government for evaluating the energy performance of buildings, which were the only tools available until September 2018. In this way, the energy performance of both buildings was simulated, and the corresponding energy certification obtained with the HULC and CE3X programs. Two calculations are performed: a first calculation without the installation of thermal insulation, and a second calculation with the installation of this improvement.
6.1. Chapel of the Holy Sepulcher
As shown in Table 3 and Table 4, the consideration of a façade insulation system in the building improves the energy performance of the building. However, a paradoxical situation arises when the greatest demand for energy occurs in winter, as it should have occurred in summer because it is a building located in a warm climate. This situation is due to the tremendous efficiency of the building in front of a warm climate, given the absence of important openings to the outside and the absence of thermal insulation. On the other hand, this same absence penalizes the demand for heating.
Table 3.
Calculation of the energy performance of the Chapel of the Holy Sepulcher with HULC.
Table 4.
Calculation of the energy performance of the Chapel of the Holy Sepulcher with CE3X.
It is also worth noting that, although both programs share the same calculation engine, DOE-2, the results are manifestly different. Furthermore, in the case of CE3X, the introduction of higher thermal insulation results in an increased demand for cooling energy. This situation usually occurs in warm climates when excess thermal insulation is detected in the building envelope. It should be noted that this improvement was suggested by the program itself.
6.2. The Cisterns of Hurchillo
As reflected in Table 5 and Table 6, and as with the results obtained in the Chapel of the Holy Sepulcher, the building had a greater demand for energy in winter, which is related to the lack of thermal insulation and the absence of openings to the outside. This situation penalizes this demand, favoring a very low refrigeration demand.
Table 5.
Calculation of the energy performance of the Cisterns with HULC.
Table 6.
Calculation of the energy performance of the Cisterns with CE3X.
6.3. Conclusions to the Energy Evaluation
The analysis of Table 7 and Table 8 allows us to conclude that both buildings adapt to a warm climate as their design minimizes the energy demand for refrigeration. On the other hand, this design penalizes the demand for heating to not be able to count on contributions for sunshine and due to the absence of thermal insulation. This situation is one of the problems presented by the tools authorized in Spain since, as mentioned above, they do not consider thermal inertia in the calculation.
Table 7.
Comparison of energy demand and consumption per m of built area for the Chapel of the Holy Sepulcher.
Table 8.
Comparison of energy demand and consumption per m of constructed area for the Cisterns.
The results obtained also reinforce what has been indicated above regarding the lack of homogeneity of the results obtained when using different calculation tools. Although HULC and CE3X share the calculation engine, the simplifications and databases of the two tools make the results different and offer different reductions in energy consumption when construction improvements are introduced.
7. Modeling the Recovery of Investment
As outlined above, since 2010, the EU has issued directives in which, due to the lack of a sustainability standard in Europe, it urges member countries to develop methods that guarantee the return on investment in construction improvements to obtain energy savings. This first request is based on the Delegated Regulation 244/2012, as explained above. This research proposes a comparison between the method defined by this regulation and that offered by the CE3X program, which is the first approximation of a return on investment in improving the energy performance of buildings in Spain. Both methods are based on the NPV calculation.
7.1. Calculation of NPV through the Delegated Regulation 244/2012
The Delegated Regulation 244/2012 is based on a document drawn up by each country that defines amortization periods, financial and revaluation discounts, as well as an estimate of energy prices and CO emissions over the calculation period [23]. The information contained in this document was used as the basis for the calculation of NPV in both case studies. Among the factors defined by the regulation is the calculation period. The regulation indicates 20 years for public buildings, which is increased to 30 years for residential buildings. This calculation period contrasts with the useful life defined for the renovated construction elements, which are as follows:
- Insulation: 50 years
- Windows: 20 years
- Installations: according to values indicated in Annex A of the standard UNE-EN 15459.
The document also defines the following energy prices for Spain, for which it makes two estimates, among which the one described in Table 9 was chosen as it defines higher prices. In addition, as seen in Table 10, a forecast of the cost of CO emissions was made, demonstrating a clear intention to penalize them over time.
Table 9.
Forecasts of energy prices defined by the government of Spain.
Table 10.
Forecasts of the cost of CO emissions.
One of the factors that conditions the viability of the renovation is the updating factor. It is the annual benefit to be obtained by the realization of the energy improvement. This factor changes depending on the calculation method used and the building’s type of use, as shown in Table 11.
Table 11.
Updated factors defined for the different types of calculations and uses of the building.
Finally, for the calculation, the following factors were considered for the conversion of final energy into primary energy and the conversion of energy into CO emissions, which are described in Table 12.
Table 12.
Conversion factors to primary energy and CO emissions.
The process followed for the evaluation of the improvements during the project phase first considers the energy performance of the building in a stage prior to refurbishment, so that its enclosures are non-insulated. Once the results have been obtained, the performance is evaluated considering the installation of the thermal insulation system. In the calculation process, the difference between the energy consumption before and after the rehabilitation were the annual benefits with which we compared the cost of the installation of the construction improvement. During the process, and in accordance with what has been indicated above, the increase in the cost of energy must have been considered in accordance with what has been indicated by the government of Spain.
As seen in Figure 7, Figure 8, Figure 9 and Figure 10, the letter “r” is the minimum annual benefit (%) that must be considered to understand the renovation as viable. This performance or update factor is the one previously defined as conditioned by the type of calculation and by the building’s type of use in Table 12.
Figure 7.
Calculation of the NPV at the financial level with energy-savings data obtained with HULC and CE3X.
Figure 8.
Calculation of the macroeconomic NPV with energy-savings data obtained with HULC and CE3X.
Figure 9.
Calculation of the NPV at the financial level with energy-savings data obtained with HULC and CE3X.
Figure 10.
Calculation of the macroeconomic NPV with energy-savings data obtained with HULC and CE3X.
7.1.1. Calculation of the NPV for the Chapel of the Holy Sepulcher
Assuming an initial cost of the investment in the installation of the building insulation system and considering the primary energy consumption defined above, the following values of both financial and macroeconomic NPV were obtained from the results of the HULC and CE3X programs, described in Figure 7 and Figure 8.
7.1.2. Calculation of NPV for the Cisterns
7.2. Calculation of the NPV by Program CE3X
The CE3X program offers the possibility of performing an NPV calculation through a series of standardized improvements within the program. Data entry is limited to the choice of the construction improvement, the introduction of the cost of the improvement, and the definition of the annual cost/benefit factor. The result obtained is the period of time needed to recover the investment. Thus, the program indicates that for the Chapel of the Holy Sepulcher, the amortization period would be 51.50 years, and for the Cisterns, 52.10 years.
7.3. Comparative Results of the NPV Calculation
The calculation of the value of the NPV, as indicated in Table 13, shows that regardless of the method and the program used, in no case is the investment recovered in the calculation period defined by the delegated regulation and by the Spanish official methods, although in the case of the Cisterns, the values are closer to a positive result.
Table 13.
Comparison of NPV values obtained.
The reason why it is not possible to recover the investment through energy savings by increasing the insulation system is because both buildings are very efficient in their geometry and significantly reduce energy demand in the most demanding period, which is the summer. To increase energy savings, it would be necessary to undertake modifications to conditioning systems and introduce systems that penalize primary energy consumption less. These savings should be 12,500 KWh/year in the Chapel of the Holy Sepulcher, which represents an increase of 232% in the best of cases. In the case of the Cisterns, the savings would be viable from 8400 KWh/year, which means an increase of 7.1%.
In view of these results, more simulations are carried out, among which it is obtained that by reducing the update rate as shown in Figure 11 and Figure 12, it is possible to obtain a positive NPV in both cases but with different tools. This reduction could be considered acceptable since both buildings are publicly owned and their heritage value means that both buildings will be maintained over time.
Figure 11.
Calculation of the financial NPV with energy-savings data obtained with HULC and CE3X with a benefit of 5% for the Chapel.
Figure 12.
Calculation of the finantial NPV with energy-savings data obtained with HULC and CE3X with a benefit of 5% for the Cisterns.
On the other hand, to make an amortization increasing the term, the analysis becomes complicated due to the significant increase in the costs of the CO published by the government of Spain and the influence of the energy data obtained, as shown in Figure 13 and Figure 14.
Figure 13.
Comparison between financial and macroeconomic NPV with energysavings data obtained from CE3X during 50 years for the Chapel.
Figure 14.
Comparison between financial and macroeconomic NPV with energysavings data obtained from CE3X during 50 years for the Cisterns.
8. Decision-Making at the End of the Project
Once these results had been analyzed, decisions were made with the support of the administration responsible for the conservation of the buildings, and it was decided to undertake the renovation to improve the enclosure only in the Cisterns, shown in Figure 15 and Figure 16. This decision was based not only on the results obtained in terms of savings and recovery of the investment that were close to positive under the NPV point of view, but also on a lesser impact on the protected heritage elements of the building.
Figure 15.
Image of the Cisterns during the installation of the thermal insulation.
Figure 16.
Image of the interior of the Cisterns.
In the case of the Chapel, the results were not robust enough to justify such a deep intervention in highly protected elements, so it was decided not to be executed.
9. Discussion of Results and Comparison with Actual Consumption of the Cisterns of Hurchillo
The commissioning of the building made it possible to know the real energy consumption of the building during two years of its operation and to know the energy savings obtained, which can be observed in Table 14.
Table 14.
Real energy consumption of the Cisterns during 24 months.
As it is shown in Table 15, the analysis of the real data with the ones obtained from the simulation shows that the results yielded by the simulation programs are far from the real building performance. This implies that the energy savings are not real, so the NPV calculation had been guided in the wrong direction while developing the construction project. It is not possible to recoup the investment based on energy savings obtained by improvements to the building envelope alone. The energy savings were already shown to be low in the calculation, especially in the cooling demand, but when studying the actual data, these savings were even lower.
Table 15.
Comparison between the simulated and the real energy consumption.
At the end of the research and with the results obtained, it can be stated that the application of the Spanish official methods to evaluate the energy performance of new and existing buildings on protected buildings follows the same line of lack of homogeneity defended by several authors in the evaluation of these methodologies applied to other types of buildings.
Although the software may share a calculation engine, the application of different programs on the same building does not offer comparable results, something already concluded by other investigations [15]. Furthermore, although it is claimed that an LCA can help in the decision-making process [39], an inadequate tool can lead to erroneous decisions being made.
The calculation of the energy demand for cooling confirms the geometric uniqueness of the buildings and their adaptation to the climatic zone in which they are located. This adaptation contrasts with the high demand for heating, which is penalized by the lack of voids and the absence of thermal insulation in the original state. The installation of an external thermal insulation does not significantly influence the results, increasing the demand for refrigeration in one case. Therefore, the difficulties defended by some authors in the process of evaluating the energy performance of buildings with a singular geometry are still maintained [63].
The marked differences between theoretical and actual consumption are based on the unsuitability of the methods to work with passive measures to improve the energy performance of buildings, including thermal inertia. The importance of rehabilitation with passive measures is therefore demonstrated in this type of building [46]. At the same time, the influence of the human factor on buildings is confirmed as a factor to be taken into account in the methodologies for evaluating the energy performance of buildings, as it can distort the results obtained [47].
The results obtained to calculate the NPV indicate in all the assumptions that trying to recover the investment in construction improvements to reduce energy demand is not feasible in this type of building. As indicated above, the low demand for refrigeration does not allow great savings in energy consumption. This result is considered reasonable given the location and unique geometry of both buildings. It is then confirmed that, to be able to recoup the investment through energy-saving measures, the savings must be significant [53]. This situation also reaffirms what has been explored by other authors who affirm that to act in protected historic buildings, methods are needed that combine the analysis of energy performance with subjective decision-making [59,60]. It was not really confirmed whether the study period should be as long as possible because of the political decisions of the government related to the CO emissions cost [58], and that it was needed to explore the improvement of energy efficiency and indoor wellbeing in historical buildings by means of implementing operational control solutions, as they minimize any invasive impact on construction [61].
10. Conclusions
This research confirms that methods for energy assessment of buildings can condition the decision-making process in a project. The lack of homogeneity in the results made it difficult to analyze the decisions adopted in the project and, therefore, made it difficult to evaluate the impact that a construction improvement may have on the energy performance of a building.
It was also confirmed that methods based on a percentage of improvement over a reference building can penalize buildings with an efficient design that are adapted to the climate in which they are located. On the other hand, the inadequacy of using the methods developed for new buildings on old buildings was demonstrated due to the design particularities of old buildings.
This research demonstrates the validity of the NPV calculation as a measure to evaluate the economic viability of an intervention, but these data must be supported by robust results from the evaluation of the building energy performance. In addition, the savings obtained should come from other types of construction improvements that are not penalized for their CO emissions.
Finally, we demonstrated the need for the development of methodologies that allow a cross-sectional analysis of these types of buildings and support an objective decision-making process during intervention.
Author Contributions
A.G.-G. was in charge of the restoration of both buildings. The energy assessment and analysis of the LCA was carried out by all the authors during the construction and the analyzed building life period. The manuscript has been developed via collaboration among all authors.
Funding
This reseach received no external funding.
Acknowledgments
The authors of this paper thank the Municipality of Orihuela for providing the information about the projects that allowed this research.
Conflicts of Interest
The authors declare no conflicts of interest.
References
- Munarim, U.; Ghisi, E. Environmental feasibility of heritage buildings rehabilitation. Renew. Sustain. Energy Rev. 2016, 58, 235–249. [Google Scholar] [CrossRef]
- Bajenaru, N.; Damian, A.; Frunzulica, R. Evaluation of the Energy Performance for a nZEB Office Building under Specific Climatic Conditions. Energy Procedia 2016, 85, 26–34. [Google Scholar] [CrossRef]
- Sigmund, Z. Sustainability in architectural heritage: Review of policies and practices. Organ. Technol. Manag. Constr. Int. J. 2016, 8, 1411–1421. [Google Scholar] [CrossRef][Green Version]
- Galiano-Garrigós, A. Comparative Analysis of Methodologies for Evaluating and Certifying the Energy Performance of Buildings in the European Union (Análisis Comparado de las Metodologías de Evaluación y Certificación del Comportamiento Energético de los Edificios en la Unión Europea); University of Alicante: Alicante, Spain, 2013. [Google Scholar]
- European Parlament and Council of the European Comunity. EPBD European Directive for Energy Performance in Buildings; European Parlament and Council of the European Comunity: Brussels, Belgium, 2002. [Google Scholar]
- European Union. Treaty on European Union; European Parlament and Council of the European Comission: Brussels, Belgium, 1986. [Google Scholar]
- European Parlament and Council of the European Comunity. European Directive 98/34/CE; European Parlament and Council of the European Comunity: Brussels, Belgium, 1998. [Google Scholar]
- CEN. European Committee for Standardization—TR 15615 Explanation of the General Relationship between Various European Standards and the Energy Performance of Buildings Directive (EPBD)—Umbrella Document; European Committee for Standardization: Brussels, Belgium, 2008. [Google Scholar]
- CEN. European Committee for Standardization—EN ISO 13790. Energy performance of buildings Calculation of Energy Use for Space Heating and Cooling; European Committee for Standardization: Brussels, Belgium, 2008. [Google Scholar]
- CEN. European Committee for Standardization—EN ISO 15603 Energy Performance of Buildings—Overall Energy Use and Definition of Energy Ratings; European Committee for Standardization: Brussels, Belgium, 2008. [Google Scholar]
- CEN. European Committee for Standardization—EN ISO 15217. Energy Performance of Buildings. Methods for Expressing Energy Performance and for Energy Certification of Buildings; European Committee for Standardization: Brussels, Belgium, 2011. [Google Scholar]
- Maldonado, E. Concerted Action. Supporting Transposition and Implementation of the Directive 2002/91/EC (EPBD); European Commission: Brussels, Belgium, 2010. [Google Scholar]
- Spiekman, M.; Dijk, D.V. Comparing Energy Performance requirements over Europe. ASIEPI—Assessment and Improvement of the EPBD Impact; European Comission: Brussels, Belgium, 2008. [Google Scholar]
- Galiano, A.; Echarri, V. Analysis of the quality of public urban space through a graphical analysis method. WIT Trans. Ecol. Environ. 2014, 191, 1623–1636. [Google Scholar]
- Galiano-Garrigós, A.; García-Figueroa, A.; Rizo-Maestre, C.; González-Avilés, Á. Evaluation of BIM energy performance and CO2 emissions assessment tools: A case study in warm weather. Build. Res. Inf. 2019, 47, 787–812. [Google Scholar] [CrossRef]
- Government of Spain. Royal Decree 235/2013, of 5 April, Approving the Basic Procedure for the Certification of the Energy Performance of Buildings; Ministry of the Presidency: Madrid, Spain, 2013.
- Casals, X.G. Analysis of building energy regulation and certification in Europe: Their role, limitations and differences. Energy Build. 2006, 38, 381–392. [Google Scholar] [CrossRef]
- Economidou, M. Energy performance requirements for buildings in Europe. REHVA J. 2012, 2012, 16–21. [Google Scholar]
- European Parlament and Council of the European Comunity. Directive 2010/31/EU of the European Parlament and of the Council of 19 May 2010 on the Energy Performance of Buildings; European Parlament and Council of the European Comunity: Brussels, Belgium, 2010. [Google Scholar]
- European Parlament and Council of the European Comunity. Directive (EU) 2018/844 of the European Parliament and of the Council of 30 May 2018 Amending Directive 2010/31/EU on the Energy Performance of Buildings and Directive 2012/27/EU on Energy Efficiency; European Parlament and Council of the European Comunity: Brussels, Belgium, 2018. [Google Scholar]
- Bruce-Hyrkäs, T.; Pasanen, P.; Castro, R. Overview of Whole Building Life-Cycle Assessment for Green Building Certification and Ecodesign through Industry Surveys and Interviews. Procedia CIRP 2018, 69, 178–183. [Google Scholar] [CrossRef]
- EU Commission. Commission Delegated Regulation (EU) No 244/2012 of 16 January 2012 Supplementing Directive 2010/31/EU of the European Parliament and of the Council on the Energy Performance of Buildings by Establishing a Comparative Methodology Framework for Calculating; EU Commission: Brussels, Belgium, 2012. [Google Scholar]
- Minitry of Development. Report on Cost Optimal Calculations and Comparison with the Current and Future Energy; Ministry of Development: Madrid, Spain, 2012.
- Government of Spain. NBE CT-79. Thermal Conditions in Buildings (Condiciones Térmicas en los Edificios); Government of Spain: Madrid, Spain, 1979.
- CTE. Spanish Building Technical Code; CTE: Madrid, Spain, 2006. [Google Scholar]
- Government of Spain. LEY 38/1999, de 5 de Noviembre, de Ordenación de la Edificación; Government of Spain: Madrid, Spain, 1999.
- Government of Spain. CTE (Technical Building Code in Spain) Basic Document, Energy Saving DB-HE; CTE: Madrid, Spain, 2017.
- Government of Spain. Real Decreto 47/2007, de 19 de enero, por el que se Aprueba el Procedimiento Básico para la Certificación de Eficiencia Energética de Edificios de Nueva Construcción; Ministry of the Presidency: Madrid, Spain, 2007.
- Órgano Ministerio de la Presidencia y para las Administraciones Territoriales. Real Decreto 564/2017, de 2 de junio, por el que se Modifica el Real Decreto 235/2013, de 5 de Abril, por el que se Aprueba el Procedimiento Básico para la Certificación de la Eficiencia Energética de los Edificios; Ministry of the Presidency: Madrid, Spain, 2017.
- Yilmaz, Z. Evaluation of energy efficient design strategies for different climatic zones: Comparison of thermal performance of buildings in temperate-humid and hot-dry climate. Energy Build. 2007, 39, 306–316. [Google Scholar] [CrossRef]
- Williams, B.E.B.E. Overcoming Barriers to Energy Efficiency for Rental Housing. Ph.D. Thesis, Massachusetts Institute of Technology, Cambridge, MA, USA, 2008. [Google Scholar]
- Baek, C.; Park, S. Policy measures to overcome barriers to energy renovation of existing buildings. Renew. Sustain. Energy Rev. 2012, 16, 3939–3947. [Google Scholar] [CrossRef]
- UN Environment and International Energy Agency. Global Status Report: Towards a Zero-Emission, Efficient, and Resilient Buildings and Construction Sector; UN Environment and International Energy Agency: Paris, France, 2017. [Google Scholar]
- Bianco, V.; Righi, D.; Scarpa, F.; Tagliafico, L.A. Modeling energy consumption and efficiency measures in the Italian hotel sector. Energy Build. 2017, 149, 329–338. [Google Scholar] [CrossRef]
- De Luxán, M.; Vázquez Espí, M.; Barbero, M.; Román, E.; Gómez, G. Actuaciones con Criterios de Sostenibilidad en la Rehabilitación de Viviendas en el Centro de Madrid; Empresa Municipal de la Vivienda y Suelo de Madrid: Madrid, Spain, 2009; p. 235. [Google Scholar]
- Berg, F.; Flyen, A.C.; Godbolt, A.L.; Broström, T. User-driven energy efficiency in historic buildings: A review. J. Cult. Herit. 2017, 28, 188–195. [Google Scholar] [CrossRef]
- Berg, F.; Fuglseth, M. Life cycle assessment and historic buildings: Energy-efficiency refurbishment versus new construction in Norway. J. Archit. Conserv. 2018, 24, 152–167. [Google Scholar] [CrossRef]
- International Organization for Standardization. ISO 15686-5:2017—Buildings and Constructed Assets—Service Life Planning—Part 5: Life-Cycle Costing; ISO: Geneva, Switzerland, 2017. [Google Scholar]
- Ost, C.; Van Droogenbroeck, N. Report on Economics of Conservation. An Appraisal of Theories, Principles and Methods, Center for Economic Research; ICOMOS: Brussels, Belgium; Economics Committee: Brussels, Belgium, 1998. [Google Scholar]
- Abo-Elmagd, M.; Saleh, A.; Afifi, G. Evaluation of radon related parameters in environmental samples from Jazan city, Saudi Arabia. J. Radiat. Res. Appl. Sci. 2018, 11, 104–110. [Google Scholar] [CrossRef]
- Barrionuevo, A.S. Análisis de estrategias bioclimáticas aplicadas a edificaciones nZEB; University of Miguel Hernández: Elche, Spain, 2019; Volume 4, p. 4. [Google Scholar]
- Jalaei, F.; Jrade, A. Integrating Building Information Modeling (BIM) and energy analysis tools with green building certification system to conceptually design sustainable buildings. J. Inf. Technol. Constr. 2014, 19, 494–519. [Google Scholar]
- Boussabaine, H.A.; Kirkham, R.J. Whole Life-Cycle Costing; Blackwell Publishing Ltd.: Oxford, UK, 2004. [Google Scholar]
- Galiano-Garrigós, A.; Andújar-Montoya, M.D. Building information modelling in operations of maintenance at the university of alicante. Int. J. Sustain. Dev. Plan. 2018, 13, 1–11. [Google Scholar] [CrossRef]
- Kneifel, J. Life-cycle carbon and cost analysis of energy efficiency measures in new commercial buildings. Energy Build. 2010, 42, 333–340. [Google Scholar] [CrossRef]
- Luxán García de Diego, M.D.; Gómez Munoz, G.M.; Román López, M.E. Cuentas Energéticas no Habituales en Edificación Residencial. Inf. Constr. 2016, 67, 125–134. [Google Scholar] [CrossRef]
- Diao, L.; Sun, Y.; Chen, Z.; Chen, J. Modeling energy consumption in residential buildings: A bottom-up analysis based on occupant behavior pattern clustering and stochastic simulation. Energy Build. 2017, 147, 47–66. [Google Scholar] [CrossRef]
- Hong, T.; Taylor-Lange, S.C.; D’Oca, S.; Yan, D.; Corgnati, S.P. Advances in research and applications of energy-related occupant behavior in buildings. Energy Build. 2016, 116, 694–702. [Google Scholar] [CrossRef]
- Zhang, Y.; Bai, X.; Mills, F.P.; Pezzey, J.C. Rethinking the role of occupant behavior in building energy performance: A review. Energy Build. 2018, 172, 279–294. [Google Scholar] [CrossRef]
- Power, A. Does demolition or refurbishment of old and inefficient homes help to increase our environmental, social and economic viability? Energy Policy 2008, 36, 4487–4501. [Google Scholar] [CrossRef]
- Tirado Herrero, S.; Jiménez Meneses, L.; López Fernández, J.L.; Martín García, J.; Perero-Van-Hove, E. Pobreza Energética en España. Análisis de Tendencias; Asociación de Ciencias Ambientales: Madrid, Spain, 2014; p. 175. [Google Scholar]
- Langdon, D. Literature Review of Life Cycle Costing (LCC) and Life Cycle Assessment (LCA); Davis Langdon Management Consulting: London, UK, 2006. [Google Scholar]
- Langdon, D. Life Cycle Costing (LCC) as a Contribution to Sustainable Construction: A Common Methodology; Davis Langdon Management Consulting: London, UK, 2007. [Google Scholar]
- Khasreen, M.M.; Banfill, P.F.; Menzies, G.F. Life-cycle assessment and the environmental impact of buildings: A review. Sustainability 2009, 1, 674–701. [Google Scholar] [CrossRef]
- Fouseki, K.; Cassar, M. Energy Efficiency in Heritage Buildings—Future Challenges and Research Needs. Hist. Environ. Policy Pract. 2014, 5, 95–100. [Google Scholar] [CrossRef]
- Ferreira, J.V.; Domingos, I. Assessment of Portuguese thermal building legislation in an energetic and environmental perspective. Energy Build. 2011, 43, 3729–3735. [Google Scholar] [CrossRef]
- Sousa, G.; Jones, B.M.; Mirzaei, P.A.; Robinson, D. A review and critique of UK housing stock energy models, modelling approaches and data sources. Energy Build. 2017, 151, 66–80. [Google Scholar] [CrossRef]
- Zamperini, E.; Cinieri, V. Lifecycle oriented approach for sustainable preservation of historical built heritage. In Proceedings of the International Conference Built Heritage 2013 Monitoring Conservation Management, Milan, Italy, 18–20 November 2013. [Google Scholar]
- Meola, C.; Maio, R.D.; Roberti, N.; Carlomagno, G.M. Application of infrared thermography and geophysical methods for defect detection in architectural structures. Eng. Fail. Anal. 2005, 12, 875–892. [Google Scholar] [CrossRef]
- Tadeu, S.; Rodrigues, C.; Tadeu, A.; Freire, F.; Simões, N. Energy retrofit of historic buildings: Environmental assessment of cost-optimal solutions. J. Build. Eng. 2015, 4, 167–176. [Google Scholar] [CrossRef]
- Cabeza, L.; de Gracia, A.; Pisello, A. Integration of renewable technologies in historical and heritage buildings: A review. Energy Build. 2018, 177, 96–111. [Google Scholar] [CrossRef]
- Ministerio para la Transición Ecológica–Energía. Análisis de Precisión–Edificios Nuevos. Available online: https://energia.gob.es/es-es/Paginas/index.aspx (accessed on 15 May 2019).
- Casals, X.G. Problems of Variable References in the Energy Certification of Buildings; Conama 9; Congreso Nacional del Medio Ambiente: Madrid, Spain, 2009. [Google Scholar]
© 2019 by the authors. Licensee MDPI, Basel, Switzerland. This article is an open access article distributed under the terms and conditions of the Creative Commons Attribution (CC BY) license (http://creativecommons.org/licenses/by/4.0/).















