Experimental Study on the Flexural Performance of Composite Beams with Lipped Channels
Abstract
1. Introduction
2. Experiment Plan
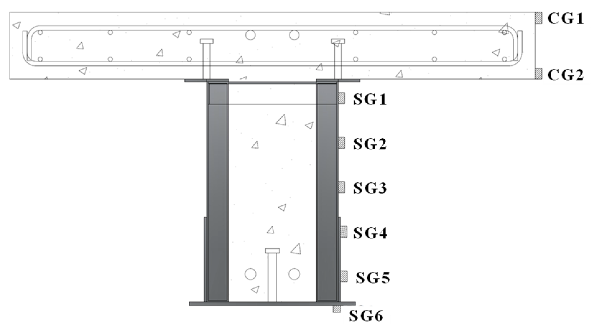
2.1. Specimen Plan
2.2. Material Test
3. Experimental Results
3.1. Load and Displacement
3.2. Failure Modes
4. Comparison and Discussion of Flexural Behaviors
4.1. Strength Evaluation
4.2. Strain Distribution
5. Conclusions
Author Contributions
Funding
Institutional Review Board Statement
Informed Consent Statement
Data Availability Statement
Conflicts of Interest
References
- Ryu, S.H.; Ahn, H.J. An Experimental Study on the Flexural Strength of SC-Beam with Rectangular Shape. J. Archit. Inst. Korea 2005, 21, 55–61. (In Korean) [Google Scholar]
- Heo, B.W.; Kwak, M.K.; Bae, K.W.; Jeong, S.M. Flexural capacity of the profiled steel composite beams-deep deck plate. J. Korean Soc. Steel Constr. 2007, 19, 247–258. (In Korean) [Google Scholar]
- Kim, Y.J.; Bae, J.H.; Ahn, T.S.; Choi, J.G. Flexural capacity of the composite beam using angle as a shear connector. J. Korean Soc. Steel Constr. 2015, 27, 63–75. (In Korean) [Google Scholar] [CrossRef]
- Lee, C.H.; So, H.J.; Park, C.H.; Lee, C.N.; Lee, S.H.; Oh, H.N. Flexural Behavior and Design of Concrete-Filled U-Shape Hybrid Composite Beams Fabricated from 570MPa High-Strength Steel. J. Korean Soc. Steel Constr. 2016, 28, 109–120. (In Korean) [Google Scholar] [CrossRef]
- Lee, J.S.; Haroon, M.; Kang, S.H.; Shin, K.J. Flexural behavior of large-scale U-shaped steel-concrete infilled composite beams with flat and embossed webs. Structures 2023, 55, 1949–1959. [Google Scholar] [CrossRef]
- Kim, D.B.; Lee, M.H.; Lee, Y.S.; Kim, D.J.; Kim, M.H. The Flexible Capacity Evaluation about Composite-Stage of Semi Slim AU Composite Beam for Saving Story Height. J. Korean Soc. Adv. Compos. Struct. 2018, 9, 17–25. (In Korean) [Google Scholar]
- Liu, Y.; Guo, L.; Qu, B.; Zhang, S. Experimental investigation on the flexural behavior of steel-concrete composite beams with U-shaped steel girders and angle connectors. Eng. Struct. 2017, 131, 492–502. [Google Scholar] [CrossRef]
- Yan, J.B.; Guan, H.; Wang, T. Steel-UHPC-steel sandwich composite beams with novel enhanced C-channel connectors: Tests and analysis. J. Constr. Steel Res. 2020, 170, 106077. [Google Scholar] [CrossRef]
- Yan, Q.; Zhang, Z.; Yan, J.; Laflamme, S. Analysis of flexural capacity of a novel straight-side U-shaped steel-encased concrete composite beam. Eng. Struct. 2021, 242, 112447. [Google Scholar] [CrossRef]
- Lee, M.H. Structural Characteristics of Closed Type U-Shaped Composite Beam Using n-Shaped Shear Connectors. Ph.D. Thesis, Wonk-Wang University, Jeollabuk-do, North Korea, 2018. (In Korean). [Google Scholar]
- Zhao, Y.; Zhou, X.; Yang, Y.; Liu, J.; Chen, Y.F. Shear behavior of a novel cold-formed U-shaped steel and concrete composite beam. Eng. Struct. 2019, 200, 109745. [Google Scholar] [CrossRef]
- Kim, S.B.; Kim, S.S.; Lee, W.R.; Kim, J.Y.; Lee, S.B.; Ryu, D.S.; Kim, D.H. Study on the flexible strength of U-shape hybrid composite beam. J. Korean Soc. Steel Constr. 2012, 24, 521–534. (In Korean) [Google Scholar] [CrossRef]
- Kim, S.B.; Cho, S.H.; Oh, K.S.; Jeon, Y.H.; Choi, Y.H.; Kim, S.S. Bending Performance Evaluation of Hybrid Composite Beam with Low Depth and New Shape. J. Korean Soc. Steel Constr. 2016, 28, 151–162. (In Korean) [Google Scholar] [CrossRef]
- Kim, S.B.; Cho, S.H.; Lee, J.Y.; Kim, S.S. Bending Performance Evaluation of Hybrid Forming Composite Beam with High Depth. J. Korean Soc. Steel Constr. 2016, 28, 403–414. (In Korean) [Google Scholar] [CrossRef]
- Kim, C.G.; Kim, H.S.; Lee, S.H. Flexural behavior of U-shaped steel-concrete composite beams under positive bending. J. Constr. Steel Res. 2023, 208, 108008. (In Korean) [Google Scholar] [CrossRef]
- KDS 14 20 20; Structural Concrete Design Standard for Flexure and Axial Load. Korea Construction Standards Center: Seoul, Republic of Korea, 2022. (In Korean)
- KDS 14 31 80; Design of Composite Members. Korea Construction Standards Center: Seoul, Republic of Korea, 2024.
- KDS 41 30 10; Design of Steel Structural Members. Korea Construction Standards Center: Seoul, Republic of Korea, 2022.
- AISC360-22; Specification for Structural Steel Buildings (ANSI/AISC 360–22). AISC (American Institute of Steel Construction): Chicago, IL, USA, 2022.
- KS F 2403; Standard Test Method for Making Concrete Specimens. Korean Standards Association: Seoul, Republic of Korea, 2022.
- KS F 2405; Test Method for Compressive Strength of Concrete. Korean Standards Association: Seoul, Republic of Korea, 2019.
- KS B 0801; Test Pieces for Tensile Test for Metallic Materials. Korean Standards Association: Seoul, Republic of Korea, 2022.
- KS B 1062; Method of Bend Test for Stud Welds. Korean Standards Association: Seoul, Republic of Korea, 2020.
- KS B 0802; Method of Tensile Test for Metallic Materials. Korean Standards Association: Seoul, Republic of Korea, 2022.
- EN 1994-1-1; Design of Composite Steel and Concrete Structures-Part 1-1: General Rules and Rules for Buildings. European Committee for Standardization: Brussels, Belgium, 2004; pp. 52–63.















| Design Criterion Strength fck (MPa) | W/B (%) | S/A (%) | Unit Amount of Material ) | ||||
|---|---|---|---|---|---|---|---|
| 24 | 49.4 | 49.4 | W | C | G | S | AE |
| 179 | 254 | 889 | 858 | 2.53 | |||
| Coupon | De (mm) | (GPa) | (MPa) | (MPa) | (%) |
|---|---|---|---|---|---|
| ∅16(HS1) | 12.11 | 186.7 | 309.8 | 421.3 | 33.1 |
| ∅19(HS1) | 11.90 | 179.5 | 303.3 | 421.3 | 23.9 |
| Coupon | (GPa) | (MPa) | (MPa) | (%) |
|---|---|---|---|---|
| D10(SD400) | 187.8 | 421.4 | 554.5 | 23.2 |
| D22(SD400) | 188.3 | 475.3 | 629.3 | 16.8 |
| D25(SD500) | 190.1 | 564.8 | 710.7 | 21.4 |
| Coupon | (mm) | (GPa) | (MPa) | (MPa) | (%) |
|---|---|---|---|---|---|
| 3.2 mm (SS275) | 3.15 | 184.5 | 267.1 | 418.1 | 32.0 |
| 4.0 mm (SS275) | 3.95 | 187.4 | 322.3 | 454.5 | 29.5 |
| 6.0 mm (SM355A) | 6.04 | 186.1 | 429.9 | 569.8 | 26.4 |
| 8.0 mm (SS275) | 7.71 | 186.8 | 314.0 | 469.9 | 37.6 |
| 8.0 mm (SM355A) | 7.82 | 187.2 | 384.5 | 533.3 | 33.4 |
| Specimens | (kN) | (kN) | (kN) | (mm) | (mm) | (mm) | ||
|---|---|---|---|---|---|---|---|---|
| H5-T6-R-S-B | 1448.4 | 1464.3 | 1108.3 | 1.01 | 1.32 | 62.1 | 16.97 | 20.6 |
| H5-T6-NR-S-B | 1234.8 | 1094.9 | 884.1 | 0.89 | 1.24 | 35.6 | 15.06 | 18.1 |
| H5-T6-R-NS-B | 1448.4 | 1365.7 | 1123.2 | 0.94 | 1.22 | 37.9 | 17.71 | 19.4 |
| H5-T8-R-S-B | 1436.4 | 1406.2 | 1052.8 | 0.98 | 1.34 | 65.6 | 16.12 | 19.1 |
| H5-T8-NR-S-B | 1222.2 | 1091.4 | 895.3 | 0.89 | 1.22 | 29.6 | 13.64 | 16.1 |
| H5-T8-R-NS-B | 1436.4 | 1469.2 | 1096.5 | 1.02 | 1.34 | 66.9 | 15.99 | 19.5 |
| H5-T6-R-S-A | 1448.4 | 1406.3 | 1058.6 | 0.97 | 1.33 | 67.5 | 17.45 | 20.2 |
| H5-T6-R-NS-A | 1448.4 | 1498.4 | 1113.7 | 1.03 | 1.35 | 82.6 | 18.97 | 23.2 |
| H5-T8-R-S-A | 1436.4 | 1507.7 | 1117.1 | 1.05 | 1.35 | 76.5 | 17.03 | 20.9 |
| H5-T8-R-NS-A | 1436.4 | 1359.1 | 1074.5 | 0.95 | 1.26 | 68.1 | 16.63 | 19.6 |
| Specimens | (kN) | (kN·m) | (kN·m) | (kN·m) | (mm) | P.N.A (mm) | ||
|---|---|---|---|---|---|---|---|---|
| H5-T6-R-S-B | 1461.3 | 1717.0 | 1701.9 | 1531.7 | 1.01 | 1.12 | 62.1 | 138.5 |
| H5-T6-NR-S-B | 1094.9 | 1286.5 | 1450.9 | 1305.8 | 0.89 | 0.99 | 35.6 | 116.8 |
| H5-T6-R-NS-B | 1365.7 | 1604.7 | 1701.9 | 1531.7 | 0.94 | 1.05 | 37.9 | 138.5 |
| H5-T8-R-S-B | 1406.2 | 1652.3 | 1687.8 | 1519.0 | 0.98 | 1.09 | 65.6 | 137.2 |
| H5-T8-NR-S-B | 1091.4 | 1282.4 | 1436.0 | 1292.4 | 0.89 | 0.99 | 29.6 | 115.4 |
| H5-T8-R-NS-B | 1469.2 | 1726.3 | 1687.8 | 1519.0 | 1.02 | 1.14 | 66.9 | 137.2 |
| H5-T6-R-S-A | 1406.3 | 1652.4 | 1701.9 | 1531.7 | 0.97 | 1.08 | 67.5 | 138.5 |
| H5-T6-R-NS-A | 1498.4 | 1760.7 | 1701.9 | 1531.7 | 1.03 | 1.15 | 82.6 | 138.5 |
| H5-T8-R-S-A | 1507.7 | 1771.6 | 1687.8 | 1519.0 | 1.05 | 1.17 | 76.5 | 137.2 |
| H5-T8-R-NS-A | 1359.1 | 1596.9 | 1687.8 | 1519.0 | 0.95 | 1.05 | 68.1 | 137.2 |
| Average | - | - | - | - | 0.97 | 1.08 | - | - |
Disclaimer/Publisher’s Note: The statements, opinions and data contained in all publications are solely those of the individual author(s) and contributor(s) and not of MDPI and/or the editor(s). MDPI and/or the editor(s) disclaim responsibility for any injury to people or property resulting from any ideas, methods, instructions or products referred to in the content. |
© 2024 by the authors. Licensee MDPI, Basel, Switzerland. This article is an open access article distributed under the terms and conditions of the Creative Commons Attribution (CC BY) license (https://creativecommons.org/licenses/by/4.0/).
Share and Cite
Lee, C.; Bae, B.; Kim, S.; Kim, T. Experimental Study on the Flexural Performance of Composite Beams with Lipped Channels. Materials 2024, 17, 6128. https://doi.org/10.3390/ma17246128
Lee C, Bae B, Kim S, Kim T. Experimental Study on the Flexural Performance of Composite Beams with Lipped Channels. Materials. 2024; 17(24):6128. https://doi.org/10.3390/ma17246128
Chicago/Turabian StyleLee, Changyong, Byungho Bae, Seunghun Kim, and Taesoo Kim. 2024. "Experimental Study on the Flexural Performance of Composite Beams with Lipped Channels" Materials 17, no. 24: 6128. https://doi.org/10.3390/ma17246128
APA StyleLee, C., Bae, B., Kim, S., & Kim, T. (2024). Experimental Study on the Flexural Performance of Composite Beams with Lipped Channels. Materials, 17(24), 6128. https://doi.org/10.3390/ma17246128

