On the Influence of Corrosion on the Load-Carrying Capacity of Old Riveted Bridges
Abstract
1. Introduction
1.1. Degradation of Bridges due to Corrosion
1.2. Influence of Corrosion on Load-Carrying Capacity
2. Study Description
2.1. Inputs for Analysis
2.2. Load-Carrying Capacity
3. Results of the Study
4. Conclusions and Discussion
- Bending resistance or combined with axial force: Equation (1)
- Combination of bending, normal force, and shear force: Equation (5)
- Shear resistance of the web: Equation (9)
- Resistance of the cross-sectional web to the biaxial stress state caused by normal stresses in the longitudinal and vertical directions in combination with the shear stresses: Equation (10)
Author Contributions
Funding
Conflicts of Interest
References
- Leygraf, C.; Wallinder, I.O.; Tidblad, J.; Graedel, T. Atmospheric Corrosion; Wiley & Sons: New York, NY, USA, 2016. [Google Scholar]
- Hays, G.F. Now is the Time. The World Corrosion Organization, Editorial. 2010. Available online: https://www.scientific.net/AMR.95.-2.pdf (accessed on 31 December 2019).
- Schmitt, G. Control global needs for knowledge dissemination, research, and development in materials deterioration and corrosion control. World Corrosion Organ. 2009, 38, 14. Available online: https://www.scribd.com/document/104293675 (accessed on 31 December 2019).
- Wiśniewski, D.F.; Casas, J.R.; Ghosn, M. Codes for safety assessment of existing bridges—Current state and further development. Struct. Eng. Int. 2012, 22, 552–561. [Google Scholar] [CrossRef]
- Adey, B.; Bailey, S.; Das, P.; O’Brien, E.J.; González, A. Cost345—Procedures Required for Assessing Highway Structures, European Cooperation in the Field of Scientific and Technical Research; Project Reports; COST: Brussels, Belgium, 2004. [Google Scholar]
- Piau, J.M. SAMARIS—Sustainable and Advanced Materials for Road Infrastructures; Project Reports; V FP: Brussels, Belgium, 2006. [Google Scholar]
- Sustainable Bridges—Assessment for Future Traffic Demands and Longer Lives; Project Reports; VI FP: Brussels, Belgium, 2007.
- ARCHES—Assessment and Rehabilitation of Central European Highway Structures; Project Reports; VI FP: Brussels, Belgium, 2009.
- UIC 778-2—Recommendations for Determining the Carrying Capacity and Fatigue Risks of Existing Metal Bridges; Guideline; UIC: Paris, France, 2018.
- Vičan, J.; Gocál, J.; Hlinka, R.; Odrobiňák, J.; Moravč, M.; Koteš, P. Určovanie zaťažiteľnosti Železničných mostov/Determination of Load Carrying Capacity of Railway Bridges; Gudeline; Railways of the Slovak Republic: Bratislava, Slovakia, 2015. [Google Scholar]
- Vičan, J.; Gocál, J.; Hlinka, R.; Odrobiňák, J.; Moravčík, M.; Koteš, P. Metodický pokyn pro určování zatížitelnosti železničních mostních objektů/Methodological Guideline for Determination of Load Carrying Capacity of Railway Bridges; Guideline; Czech Railway Infrastructure Administration: Prague, Czech Republic, 2015. [Google Scholar]
- Vičan, J.; Koteš, P. Hodnotenie Existujúcich Mostných Objektov/Evaluation of Existing Bridges; EDIS: Žilina, Slovakia, 2019. [Google Scholar]
- EN 1991-2. Eurocode 1: Actions on Structures—Part 2: Traffic Loads on Bridges; CEN: Brussels, Belgium, 2003. [Google Scholar]
- Vičan, J.; Gocál, J.; Odrobiňák, J.; Koteš, P. Existing steel railway bridges evaluation. Civ. Environ. Eng. 2016, 12, 103–110. [Google Scholar] [CrossRef]
- Vičan, J.; Odrobiňák, J.; Koteš, P. Determination of load-carrying capacity of railway steel and concrete composite bridges. Key Eng. Mater. 2016, 691, 172–184. [Google Scholar] [CrossRef]
- Gomes, W.J.; Beck, A.T.; da Silva, C.R. Modeling Random Corrosion Processes via Polynomial Chaos Expansion. J. Braz. Soc. Mech. Sci. Eng. 2012, 34, 561–568. [Google Scholar] [CrossRef][Green Version]
- Kamiński, M.; Szafran, J. Bridges for pedestrians with random parameters using higher order Stochastic Finite Element Method. Int. J. Appl. Mech. Eng. 2017, 22, 175–197. [Google Scholar] [CrossRef]
- Křivý, V.; Urban, V.; Fabian, L. Experimental investigation of corrosion processes on weathering steel structures. Key Eng. Mater. 2013, 577, 397–400. [Google Scholar] [CrossRef]
- Odrobiňák, J.; Gocál, J. Experimental measurement of structural steel corrosion. Proc. Struct. Integr. 2018, 13, 1947–1954. [Google Scholar] [CrossRef]
- Kayser, J.R.; Nowak, A.S. Capacity loss due to corrosion in steel-girder bridges. J. Struct. Eng. 1989, 115, 1525–1537. [Google Scholar] [CrossRef]
- Odrobiňák, J.; Hlinka, R. Degradation of steel footbridges with neglected inspection and maintenance. Proc. Eng. 2016, 156, 304–311. [Google Scholar] [CrossRef]
- Ágocs, Z.; Brodniansky, J.; Vičan, J.; Ziólko, J. Assessment and Refurbishment of Steel Structures; CRC Press: Boca Raton, FL, USA, 2004. [Google Scholar]
- Morcillo, M.; Simancas, J.; Feliu, S. Long-Term Atmospheric Corrosion in Spain: Results after 13–16 Years of Exposure and Comparison with Worldwide Data. In Atmospheric Corrosion; Kirk, W., Lawson, H., Eds.; ASTM International: West Conshohocken, PA, USA, 1995; pp. 195–214. [Google Scholar] [CrossRef]
- Kreislová, K.; Knotková, D. The results of 45 years of atmospheric corrosion study in the Czech Republic. Materials 2017, 10, 394. [Google Scholar] [CrossRef] [PubMed]
- Tidblad, J. Atmospheric corrosion of metals in 2010-2039 and 2070-2099. Atmos. Environ. 2012, 55, 1–6. [Google Scholar] [CrossRef]
- Morcillo, M.; Chico, B.; Díaz, I.; Cano, H.; Fuente, D.D.L. Atmospheric corrosion data of weathering steels. A review. Corr. Sci. 2017, 77, 6–24. [Google Scholar] [CrossRef]
- Křivý, V.; Kubzová, M.; Konečný, P.; Kreislová, K. Corrosion Processes on Weathering Steel Bridges Influenced by Deposition of De-Icing Salts. Materials 2019, 12, 1089. [Google Scholar] [CrossRef] [PubMed]
- Odrobiňák, J.; Gocál, J.; Jošt, J. NSS test of structural steel corrosion. Roczniki Inżynierii Budowlanej 2017, 15, 7–14. [Google Scholar]
- Koteš, P.; Vičan, J.; Ivašková, M. Influence of reinforcement corrosion on reliability and remaining lifetime of RC bridges. Mater. Sci. Forum 2016, 844, 89–96. [Google Scholar] [CrossRef]












| Bridge Superstructure | Chosen Member | ||||||
|---|---|---|---|---|---|---|---|
| No./type | Year/age | Span | Figure | Designation | Length | Section | |
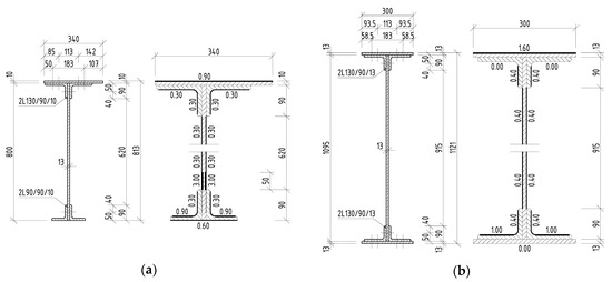
| Bridge 1 | 1877 | 10.92 m | Figure 1 | Stringer 1 | 1.82 m | Figure 4a | |
| plate girder | 142 years | Crossbeam 1 | 4.60 m | Figure 4b | |||
| Main girder 1 | 10.92 m | Figure 4c,d | |||||
| Bridge 2 | 1910 | 22.90 m | Figure 2 | Stringer 2 | 2.29 m | Figure 5a | |
| plate girder | 109 years | Crossbeam 2 | 5.24 m | Figure 5b | |||
| Main girder 2 | 22.90 m | Figure 5c,d | |||||
| Bridge 3 | 1943 | 57.40 m | Figure 3 | Stringer 3 | 4.20 m | Figure 6a | |
| truss girder | 76 years | Crossbeam 3 | 5.90 m | Figure 6b | |||
| Element of the Bridge | Age of the Bridge | Cross-Sectional Area | Section Modulus | LCC from Bending and Axial Load: Equation (1) or (5) | LCC from Biaxial Stress State in Web: Equation (10) | LCC Derived from Pure Shear: Equation (9) | |||
|---|---|---|---|---|---|---|---|---|---|
| t (y) | A (mm2) | Wy (mm3) | ZLM71 | Zt/Zt0 | ZLM71 | Zt/Zt0 | ZLM71 | Zt/Zt0 | |
| Stringer 1 | 0 | 12,300.0 | 1,540,127.1 | 0.639 | 1.000 | 1.585 | 1.000 | – | – |
| 142 | 11,733.0 | 1,477,247.9 | 0.582 | 0.911 | 1.505 | 0.950 | – | – | |
| Crossbeam 1 | 0 | 17,186.0 | 3,348,120.4 | 0.668 | 1.000 | 0.958 | 1.000 | 1.661 | 1.000 |
| 142 | 16,768.8 | 3,223,218.9 | 0.642 | 0.961 | 0.918 | 0.958 | 1.590 | 0.957 | |
| Main girder 1 | 0 | 33,224.0 | 1,3455,418.9 | 0.818 | 1.000 | 0.875 | 1.000 | 1.224 | 1.000 |
| 142 | 32,821.2 | 1,3280,169.9 | 0.806 | 0.985 | 0.861 | 0.984 | 1.179 | 0.963 | |
| Stringer 2 | 0 | 13,056.0 | 1,799,326.9 | 0.886 | 1.000 | 1.940 | 1.000 | – | – |
| 109 | 12,317.4 | 1,701,602.0 | 0.812 | 0.916 | 1.814 | 0.935 | – | – | |
| Crossbeam 2 | 0 | 19,000.0 | 3,997,194.4 | 0.465 | 1.000 | 0.767 | 1.000 | 1.490 | 1.000 |
| 109 | 18,536.0 | 3,870,092.9 | 0.448 | 0.963 | 0.739 | 0.963 | 1.427 | 0.958 | |
| Main girder 2 | 0 | 57,984.0 | 4,1565,670.1 | 0.908 | 1.000 | 1.109 | 1.000 | 1.436 | 1.000 |
| 109 | 55,848.0 | 4,0166,758.5 | 0.868 | 0.956 | 1.049 | 0.946 | 1.295 | 0.902 | |
| Stringer 3 | 0 | 20,878.0 | 3,954,636.7 | 1.204 | 1.000 | 1.236 | 1.000 | – | – |
| 76 | 19,567.0 | 3,572,712.3 | 1.040 | 0.864 | 1.102 | 0.892 | – | - | |
| Crossbeam 3 | 0 | 31,032.0 | 1,0593,420.7 | 1.404 | 1.000 | 1.043 | 1.000 | 1.736 | 1.000 |
| 76 | 29,582.8 | 1,0216,187.5 | 1.344 | 0.957 | 1.016 | 0.974 | 1.622 | 0.934 | |
© 2020 by the authors. Licensee MDPI, Basel, Switzerland. This article is an open access article distributed under the terms and conditions of the Creative Commons Attribution (CC BY) license (http://creativecommons.org/licenses/by/4.0/).
Share and Cite
Gocál, J.; Odrobiňák, J. On the Influence of Corrosion on the Load-Carrying Capacity of Old Riveted Bridges. Materials 2020, 13, 717. https://doi.org/10.3390/ma13030717
Gocál J, Odrobiňák J. On the Influence of Corrosion on the Load-Carrying Capacity of Old Riveted Bridges. Materials. 2020; 13(3):717. https://doi.org/10.3390/ma13030717
Chicago/Turabian StyleGocál, Jozef, and Jaroslav Odrobiňák. 2020. "On the Influence of Corrosion on the Load-Carrying Capacity of Old Riveted Bridges" Materials 13, no. 3: 717. https://doi.org/10.3390/ma13030717
APA StyleGocál, J., & Odrobiňák, J. (2020). On the Influence of Corrosion on the Load-Carrying Capacity of Old Riveted Bridges. Materials, 13(3), 717. https://doi.org/10.3390/ma13030717
