Abstract
The use of energy from waste can be a key means of reducing the consumption of fossil fuels and thus reduction of greenhouse gas emissions. Waste energy can be a worthy alternative to conventional energy sources in construction. This paper presents data on energy consumption for the preparation of domestic hot water in residential buildings. A review of the literature sources and inventions in the area of waste energy recovery from grey water was carried out. It also presents the results of research on prototypes of devices used to receive energy deposited in wastewater, published in recent years. The benefits of using drain water heat recovery systems for preheating utility water in residential buildings are presented. An analysis of technical solutions for grey water energy collection units was made, revealing their advantages and disadvantages. Great importance was attached to the review of patent sources as well as devices available on the market. According to the authors, the results of the technical review may be useful for contractors and designers of heat recovery equipment and installations, researchers and potential users of these technologies.
1. Introduction
The results of the analyses by the Intergovernmental Panel on Climate Change (IPCC), included in The Synthesis Report of the Sixth Assessment Report [1], clearly indicate that the intensifying extreme weather phenomena observed in recent years are of anthropogenic origin. These changes are related to greenhouse gas emissions resulting from the combustion of fossil fuels for the purposes of the energy and construction segments.
Currently the world economy is developing continuously, and hence, energy consumption is increasing, which is related to, inter alia, the growing demand for services, technology development, and population growth [2,3,4].
Compared to the times before the industrial revolution, over the last decade there has been an average increase in temperature in the world by nearly 1.09 °C [5], and it should be noted, in accordance with the Paris Agreement, that the global climate and energy policy is to prevent excessive growth in the average temperature worldwide by 2 °C [5], which, in the current scenarios concerning the emission of pollutants into the environment [6,7] is not attainable.
Currently, we are observing an energy crisis in the world resulting from an imbalance between supply and demand [8,9,10]. Such a situation may effectively hinder the achievement of the principal goal of European energy policy, that is, net zero emissions [10,11,12]. The increase in energy prices and the specter of possible shortages of energy supplies may contribute to the emergence of anti-transformation approaches in society regarding the transition to a carbon-neutral economy [13]. This situation requires an effective energy policy focused on the use of alternative energy sources, and thus on the design and implementation of high-efficiency low- and zero-emission technologies [14,15].
The growth of the world’s population, aspirations and efforts to improve the sanitary conditions of people’s lives are associated with a significant increase in energy demand, e.g., for the preparation of domestic hot water. One of the consequences of these processes is an increase in the amount of wastewater with high temperature parameters. For this reason, the recycling of wastewater with a low content of pollutants and the recovery of waste energy can play an important role as an unconventional source of energy and water, gaining particular importance in the circular economy (CE).
The implementation of the CE concept in the energy sector is a key factor in reducing greenhouse gas emissions and is an important tool in the transition to a climate-neutral economy.
It is estimated that only 1% of the water on our planet can be used for human activities and existence, and in many parts of the world there are major shortages of its quantity and quality. This problem has consequences for the environment and the economy; therefore, due to the growing demand for water, it is necessary to switch to the CE model, which is of key importance due to the management of water resources [16,17].
Adopting a CE strategy, although sometimes difficult and requiring huge changes and financial outlays, can effectively make the level of economic growth independent of the possibility of extensive use of natural resources. According to the CE doctrine, materials and raw materials should be used in the most efficient way for as long as possible, and the generation of waste should be minimized through the use of effective recycling of materials. Based primarily on renewable resources, the CE can become an effective response to the shortcomings of the linear economy [17,18].
It is worth noting that pro-ecological activities should be undertaken on a full scale, at all levels, including the local level. Even the most ambitious climate and energy goals will not be achieved if net zero emissions are not accomplished at the lowest levels of the economy [19,20,21]. To achieve these effects, it is necessary to reduce the need for primary energy, which can be effectively reached by using waste energy.
One of the largest energy consumers in the world is the construction industry [22,23], and, according to published data [24], the preparation of domestic hot water accounts for a significant part of the operating costs in the housing sector.
The total primary energy consumption in Poland in 2010–2020 increased from 100.5 Mtoe to 101.8 Mtoe, of which the share of energy consumption in households in 2020 was 25.6% [25,26]. It is estimated that economic activity, which increased energy demand by 13.7 Mtoe in 2020 compared to 2010, had the greatest impact on the change in energy consumption in the residential sector. In Poland, as in Canada, the second place in the structure of energy consumption in the residential sector is held by the preparation of domestic hot water. This tendency has not changed since 2015 (Figure 1) [26].
Figure 1.
Structure of energy consumption in households in Poland [26].
According to data published by the Canadian Department of Natural Resources [27], domestic water heating in Canada has consistently been the second largest factor in overall energy consumption for more than two decades, while research in Switzerland [28] has shown that as much as 6000 GWh of heat energy is lost annually in the sewage system, which corresponds to 7% of the total heat demand in this country.
As delineated by Wehbi [29], waste energy loss from wastewater discharged into the sewage system accounts for approximately 40% and 30% of total energy losses in residential buildings in the Netherlands and Switzerland, respectively. In addition, taking into account the average temperature of the grey water discharged, it is possible to recover up to 21.3 M of heat energy per residential building.
The global demand for energy [30], but also the need to undertake strategic and multidimensional actions in the times of the energy crisis, require looking for opportunities to reduce primary energy consumption in all areas of the economy, including construction [31,32,33].
According to estimates [34], one household produces about 136 dm3 of grey wastewater daily, the largest share of which comes from showers.
It is estimated that about 64% of water consumption in households corresponds to the generated grey wastewater [34], and there are studies [35] which show that this amount can be from 41% to even 91% of daily water consumption. Taking into account that the temperature of grey water is usually between 18 °C and 50 °C [36,37], it is not difficult to notice that grey waste water is a valuable source of heat.
2. Materials and Methods
The search for literature sources was based on the Scopus and Web of Science databases, while the selection of inventions was based on the analysis of data from international patent databases. Initial verification of the eligibility of scientific manuscripts and technical solutions on the subject of heat recovery from grey water was carried out on the basis of keywords. The scheme of searching for literature sources and inventions is shown in Figure 2.
Figure 2.
Model reference search.
Supplementing the literature sources was carried out based on the “snowball method”. It consists of including articles listed in the reference literature in the database.
Based on the obtained search results, the authors of the manuscript conducted a basic qualification of the results. Original articles and review articles from journals from the last 20 years were selected. The search was limited to articles written in English only.
The analysis of the state of technology was carried out on the basis of the results of solutions for grey water heat exchangers covered by legal protection, and not having legal protection. The analyzed sources also included heat exchanger solutions available on the market, which were included in the sales offers of the manufacturers of these devices. Only those devices that contained detailed technical documentation, i.e., description of the invention and drawings, were selected.
3. Theoretical Background
From the point of view of the heat exchange process, heat exchangers used in drainage heat recovery systems can be divided into four basic groups [38]: (i) parallel flow of fluids in the same direction (Figure 3a), (ii) parallel flow of fluids and countercurrent (Figure 3b), (iii) mixed flow (Figure 3c) and (iv) cross flow (Figure 3d) [38,39,40].
Figure 3.
Heat exchanger fluid flow classification: (a) co-current flow, (b) countercurrent flow, (c) hybrid flow, (d) crossflow; —temperature of the first medium at the inlet to the heat exchanger, —temperature of the first medium at the outlet of the heat exchanger, —temperature of the second medium at the inlet to the heat exchanger, —temperature of the second medium at the outlet of the heat exchanger [38,39,40].
One of the elementary calculations of heat exchangers focuses on determining the required energy exchange surface, which will ensure, among others, reaching a certain temperature of the heated factor and the heating medium [38,39]. The differential heat exchange surface at a given value of the heat flow exchanged can be determined using Equation (1) [39].
where:—heat flow, K—heat transfer coefficient, P—heat exchanger surface area, ,—temperature of flowing fluids in a given cross section of the heat exchanger.
With the variability of the heat transfer coefficient along the length of the exchanger K, the determination of the heat transfer area P is possible only numerically [39], e.g., with the use of Comsol Multiphysics, ANSYS CFX or ANSYS Fluent software. The determination of the heat exchange surface in an analytical way is possible when the heat capacity of the fluids flowing in the exchanger is independent of the changing temperature and when the heat transfer coefficient is constant and does not result from the length of the exchanger [39,41]. For the described case, Equation (2) is correct for co-current flow.
where:—heat flux, K—heat transfer coefficient, Pt—total heat exchanger surface area, —temperature difference between fluids at the inlet to the exchanger, —temperature difference between fluids at the outlet of the exchanger [39,41].
4. DWHR Applications in Domestic Conditions
4.1. General Classification of DWHR Units
Based on the amount of waste and the temperature, waste water from residential buildings can be divided into grey water and black water. Black water is characterized by a large amount of sullage and a relatively low temperature, usually ranging from 10 to 25 °C [36,42,43,44], which makes it less valuable as a source of heat waste. On the other hand, grey water is characterized by a much smaller amount of sullage and a higher temperature of about 18–50 °C [36,37]. Grey water is discharged from showers, bathtubs, washbasins, washing machines and dishwashers, while black water comes from toilet bowls and urinals. The definition and division of domestic waste water is included in the DIN-EN 12056-2 [45].
In the case of the sanitary installation, the design solution that does not include the separation of the system into drainage pipes for grey water and black water, drain water heat recovery (DWHR) exchangers can be used to preheat water at sanitary facilities. DWHR heat exchangers are the most commonly used in residential construction [46,47,48,49]. The division of this type of device is shown in Figure 4.
Figure 4.
Division of DWHR heat exchangers [46,47,48,49].
Waste heat exchangers are most often made of materials with good thermal conductivity, such as copper or aluminum, but there are also devices made of stainless steel or plastic, which are characterized by a much lower thermal conductivity [46,50].
4.2. Variants of Heat Exchanger Installation
Waste heat recovery at the residential building is possible: (i) individually, i.e., through the use of individual DWHR units located directly at the sanitary utensils, (ii) collectively, i.e., through the use of heat exchangers to which wastewater flows from several sanitary utensils [50].
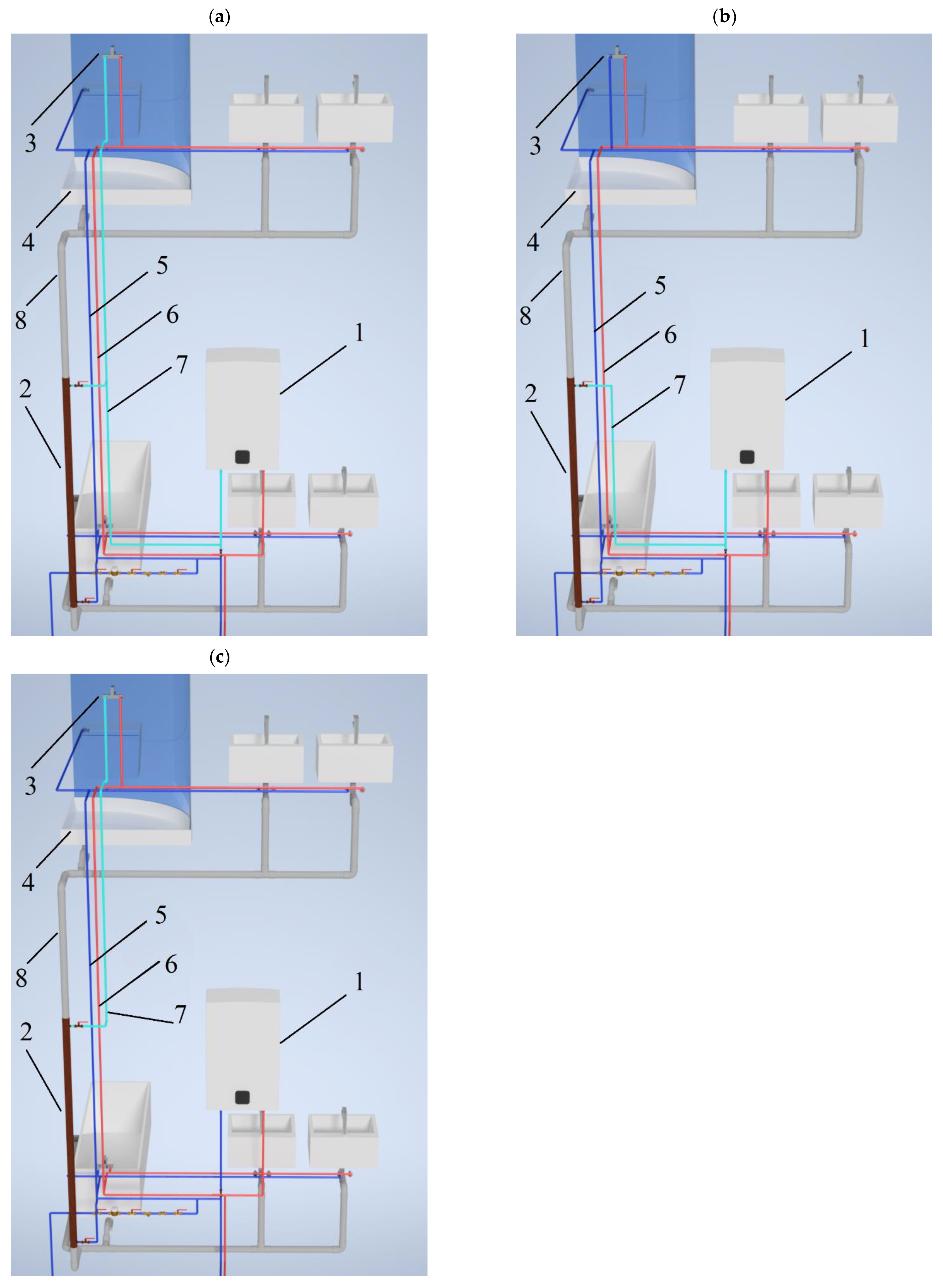
Heat exchangers intended for installation directly next to sanitary fittings can be installed according to various design variants that differ in their arrangement of planned cold water and heated water pipes (Figure 5) [24,48,51]. The following variants are distinguished: (i) Variant I, in which heated water flows to the water heater and the mixing valve (Figure 5a), (ii) Variant II, in which heated water flows only to the water heater (Figure 5b), (iii) Variant III, in which the pre-heated water is directed only to the mixing valve (Figure 5c). The adoption of a specific design variant of the heat recovery system determines the energy efficiency of the system [51,52,53,54]. Manouchehri and Collins [24] estimate that the energy efficiency of DWHR systems largely depends on the ratio of wastewater flow to water flow in the heat exchanger. It was determined [55] that Variant I of the system allows for maximizing the efficiency of energy recovery. In addition, Wehbi [29] emphasizes that part of the heat deposited in wastewater is lost already at the stage of its flow in the installation, which is important from the point of view of the efficiency of waste energy recovery. With this in mind, the water heater should be installed near the domestic hot water preparation system.
Figure 5.
Examples of installation of a vertical heat exchanger: (a) Variant I—installation with DWHR heat exchanger and preheated water flowing to the water heater and shower mixing valve, (b) Variant II—installation with DWHR heat exchanger and preheated water flowing to the water heater, (c) Variant III—installation with DWHR heat exchanger and preheated water flowing to the shower mixing valve; 1—water heater, 2—DWHR heat exchanger, 3—shower mixing valve, 4—shower stall, 5—cold water pipe, 6—hot water pipe, 7—preheated water pipe, 8—waste stack.
4.3. DWHR Standards
In Poland and other EU countries, in accordance with Directive (EU) 2018/2001 [56], wastewater is considered a renewable energy source, but the use of wastewater as an alternative source of heat in the residential sector is not covered by specific legal regulations [57,58].
According to the California Statewide Codes and Standards Enhancement (CASE) report [59], there are currently no federal regulations related to the standardization of DWHR applications in residential buildings. However, it is worth noting that in Canada, DWHR technology is promoted by the US Department of Energy (DOE) [59] and is also recommended by the US Environmental Protection Agency (EPA) (ENERGY STAR program) as an optional energy saving tool [59]. However, there are documents standardizing the efficiency analysis of vertical heat exchangers. These are the standards CSA B55.1:20 [60] and IAPMO IGC 346-2017 [61], which define the requirements for tests of the efficiency of heat recovery and safety standards for horizontal and vertical DWHR units. These documents also standardize test conditions for experimental analyses of heat exchangers.
DWHR units should be designed to provide protection against possible contamination of tap water by wastewater; therefore, vertical tube-in-tube heat exchangers often have an additional center tube to provide protection in the event that the internal pipe is damaged and leaks. The use of twin wall construction in DWHR units should be in accordance with BS EN 1717:2000 [62].
The ability to reduce CO2 emissions as a result of using grey water heat recovery technology to preheat utility water has been recognized in the Standard Assessment Procedure (SAP) system of methods for the energy assessment of residential buildings, recommended by the UK government [63].
As emphasized by Pomianowski et al. [36], it is common experience that if a given technology is included in the calculations of the Standard Assessment Procedure, its market share becomes more and more significant.
Heat recovery from wastewater is not a common technology used [36]; however, it is possible to specify the countries in which DWHR waste energy collection systems operate, i.e., Canada, USA, Switzerland, Norway, Denmark and the Netherlands [29,36,64].
4.4. A Short Review of Published Studies
In developed and developing countries, domestic hot water consumption has increased over the last 20 years. In Denmark, the demand for hot water increased from 10 m3/year to about 15 m3/year per person [65]. In view of observed changes, it becomes obvious that improving the energy efficiency of domestic hot water production is a key topic for the development of modern, low-energy buildings [36].
On the example of a multi-family building located in Brazil, it was found that the use of a shower, where hot water is prepared in an electric heater, can consume as much as 32% of the total monthly electricity consumption [66].
Researches [67] carried out for exchangers placed separately, in series and in combination with a vertical and horizontal arrangement, allowed the estimation of energy recovery savings at the level of 30 to 35%. The authors observed that the turbulence of the flow has quite a large impact on the efficiency of heat recovery. The influence of the layer of slime accumulated in the exchanger (thickness 0.01 mm) after about 6 months of using the device was also analyzed. It was estimated that after this period, the efficiency of heat recovery decreased by 0.8%. The authors found an approximate payback period of about 3 years for a family of four, emphasizing that the return on investment depends on a number of individual operating conditions.
A study by De Paepe et al. [68] presented a system of heat recovery from dishwasher wastewater, in which the heated water was to be used to power the dishwasher. This system was based on the idea of retaining sewage in a tank with a spiral pipe through which cold water flowed. Research has shown that the proposed solution is technically, ecologically and economically justified.
Tomlinson [55] determined that the installation of a vertical heat exchanger in a residential building, depending on the average daily number of showers, saves electricity in the range of 800 kWh/year to 2300 kWh/year.
Bartkowiak [69] conducted research on a prototype of a plate heat exchanger installed at the shower outlet. The analyses carried out for various grey water volume flows and at variable temperatures of the flowing fluids showed the financial justification for the installation of the device, but also showed the environmental legitimacy of using heat exchangers resulting from the reduction of energy demand and CO2 emissions.
McNabola and Shields [70] presented a new design for a horizontal heat exchanger. The device consists of a grey water pipe made of plastic, inside which there is a cold water pipe made of copper or other material with good thermal conductivity. The plastic pipe for grey water is an insulator that retains the waste heat. The design of the new exchanger is characterized by a certain number of loops, thanks to which it is possible to maintain the appropriate length of the device for a satisfactory level of heat exchange. Research has shown that for the proposed structure, efficiency of up to 50% can be achieved.
Torras et al. [71] studied an exchanger in the form of a tank with a coil and grey water retention. The proposed system was able to recover between 34% and 60% of the available heat energy in grey water.
Research [72] on the justification of using a common DWHR unit for two separate showers in a residential building and the analysis of savings resulting from the use of different types of water heaters showed that the legitimacy of installing a DWHR unit for two separate showers depends on the unit prices of energy consumption. As energy prices increase, so does the benefit of using separate DWHR units. Single heat exchangers may be more cost-effective in facilities with a long cumulative lifetime of the heat recovery system.
Analysis of the financial efficiency [73] of the heat exchanger installation depending on the method of hot water preparation showed that the type of hot water heater has a decisive influence on the profitability of the investment. Analyses conducted in Poland in 2017 proved that the use of heat recovery technology is particularly profitable when using electric heaters.
Research conducted by Manouchehri and Collins [74] showed that changes in the efficiency of waste heat collection from grey water depend mainly on the temperature of the flowing fluids and occur independently of the physical parameters characterizing the device.
Using the investment risk assessment method [75], it was found that the increase in financial results is achieved with the increase in the time of use of the shower installation and water consumption.
Analyses conducted at the Canadian Center for Housing Technology [76] confirmed that energy savings for the preparation of hot domestic water increase with the increase in the amount of outflowing sewage, but also depend on the temperature of the incoming cold utility water.
The results of the financial analysis carried out by Stec [32] show that the installation of a heat exchanger in an installation in which pre-heated water is supplied to the shower mixing valve can reduce the energy consumption needed to prepare domestic hot water by about 30% compared to a system that does not uses a heat exchanger unit.
5. Results and Discussion
5.1. Horizontal Heat Exchangers
In horizontal exchangers, grey water flows through the bottom of the sewer pipe, filling it only partially and at the same time flowing on the surface of the inner pipe that transports cold water. In some cases, heat recovery may take place with incomplete use of the heat exchange surface, which results in a lower efficiency of heat energy collection compared to vertical exchangers [70,77]. The efficiency of horizontal heat exchangers installed in residential buildings is lower than the efficiency of vertical units and, according to various sources, ranges from 4% to 15% [78]. However, horizontal units have a significant advantage, as their installation does not require so much space. The cross-sections of horizontal heat exchangers used in sewage systems are shown in Figure 6.
Figure 6.
Typical cross-sectional views of horizontal heat exchangers. 1—grey water drain, 2—cold water drain. (a) Grey water and cold water drains with circular cross-sections, (b) grey and cold water drains with a rectangular cross-section.
Heat exchangers used in waste water systems and domestic hot water preparation are devices in which the general design is based on the use of two drains with a circular (Figure 6a) and/or rectangular (Figure 6b) section. One of the drains is used to discharge sewage from sanitary facilities to the sewage system. The second drain is used to supply cold water to the domestic hot water system. The heat exchangers described in the references differ mainly in the size and method of running the cold water drain in relation to the waste water outflow. There are also studies that have focused on developing inexpensive heat exchanger solutions [79,80]. In the group of vertical exchangers, there are devices installed directly in the linear drainage of a shower. Examples of horizontal heat exchanger solutions described in the literature or patent sources are summarized in Table 1.
Table 1.
Summary of the analyzed references regarding horizontal exchangers.
5.2. Vertical Heat Exchangers
Vertical heat exchangers are the most commonly used devices for heat recovery in sewage systems and preparation of domestic hot water. However, these solutions require the available space on the lower floors of buildings for their installation. This increases the size of the installation and the investment costs of its implementation. It is worth noting, however, that this type of exchanger is characterized by the highest heat removal efficiency [23,70,77]. In the event of a significant amount of grey water flowing from sanitary facilities, it is possible to use two or more heat exchangers simultaneously, forming the so-called field-tube heat exchanger system.
Among the vertical exchangers, there are tube-in-tube units. The basic element of their construction is the grey water drain. Tap water is supplied to this type of device, which flows in countercurrent through the space created between the inner drain (waste water pipe) and the pipe constituting its outer casing. In this type of solution, the flowing grey water does not fill the entire cross-section of the conduit, but flows down its walls, creating a thin layer called film. In some solutions, elements are used to slow down the flow of wastewater [81], which serves to increase the heat exchange surface, in turn achieving a significant shortening of the required length of the exchanger without reducing its efficiency. A typical cross-sectional view of a vertical tube-in-tube heat exchanger is shown in Figure 7.
Figure 7.
Typical cross section of a vertical heat exchanger; 1—grey water drain, 2—cold water drain.
Research shows that the heat exchanger installation method is very diverse. A horizontal unit, in which heat recovery efficiency was estimated at 67%, was installed in a vertical orientation, which reduced the heat exchange efficiency by 17% [77]. Analysis of the efficiency of vertical heat exchangers conducted in Canada allowed investigators to determine the efficiency of eight heat exchangers available on the market. It has been estimated to be in the range of 30% to 75% [76].
The conducted analyses confirmed that the theoretical efficiency of heat recovery decreases with an increase in the volume of flowing grey water. At the same time, the heat capacity coefficient increases. However, it was found that at very low values of the flow rate, the efficiency of waste energy collection decreases, which results from the transition of the so-called water film from laminar to turbulent [70].
Among countercurrent vertical exchangers, there are spiral heat exchangers in which the duct carrying cold water is wrapped around the grey water drain that forms the basis of the exchanger [92,93,94,95].
There are devices in which the spiral drain is placed inside of the grey water pipe [93,94]. Examples of vertical devices for heat exchange from grey water, which have been developed in recent years, are presented in Table 2.
Table 2.
Summary of the analyzed references regarding vertical exchangers.
5.3. Financial Legitimacy of the Use of Heat Exchangers
The high efficiency of a system for energy recovery from grey water, which determines the financial profitability of the investment, depends primarily on the proper selection of the type and parameters of the heat exchanger and on the technical solution of the hot water preparation installation. According to researches published in recent years [24,51,54], the Variant I allows a system to achieve the highest energy savings needed for domestic hot water preparation.
The profitability of the investment related to the installation of the heat exchanger results not only from the value of operating costs, but is also determined by the investment cost, and the Variant III may turn out to be the least expensive in execution. This is due to the fact that the heat exchanger installation costs are not dependent on the distance between the grey water drain and the water heater.
The purchase cost of a heat exchanger can significantly determine the extent of investment costs. Market prices for heat exchange units vary widely. Estimated costs of DWHR units and their approximate levels of heat recovery efficiency are presented in Table 3.
Table 3.
Average efficiency of wastewater heat recovery [36,48,84,87].
The research in [72], which analyzed the financial efficiency of an investment consisting of the use of waste heat recovery, confirmed the fundamental impact of the energy carrier used and the type of domestic water heater on the level of profitability. Analyses conducted in Poland in 2017 [73] proved that the use of heat recovery technology is particularly profitable when heating water with electric water heaters, where the unit costs of hot water preparation are the highest. It has also been proved that an increase in financial results is obtained with increasing shower duration and water consumption [73]. It is also estimated that energy savings for the purpose of preparing domestic hot water grow not only with an increase in the amount of outflowing grey water, but also depend on the temperature of the incoming cold tap water [25,54,102]. However, the studies emphasized that one should take into account the situation where the payback period will exceed the technical lifespan of the device [51]; therefore, it is also important to be able to correctly select the exchanger allowing for effective collection of energy from grey water, which in turn translates into profitability of the investment.
5.4. The Concept of the Circular Economy in the Energy Sector
Circular economy (CE) tasks are important tools for achieving the Sustainable Development Goals 2030 (SDGs 2030) [103]. It is estimated that by 2032, actions in the area of CE may help reduce CO2 emissions by up to 200 Mt [104]. This economy, in contrast to the linear economy, is closely related not only to the reduction of greenhouse gas emissions, but also to an increase in energy efficiency and the development of renewable and waste energy sources [105,106,107]. In addition, the CE economy is key to achieving climate neutrality by 2050 and strengthening economic competitiveness in the area of innovation and modern zero- and low-emission technologies [104].
The dissemination and implementation of solutions in the area of CE require organizational, legislative, investment and educational activities [105,106]. In the EU, only 12% of raw materials and resources are recycled; therefore, it is reasonable to develop regulations specifying the minimum percentage of materials that should be recycled and the level of waste energy use [104,108].
Of particular importance in the context of the transition to a CE is the energy sector, which has a significant impact on the environment. It is estimated that in 2018, it was responsible for over 83% of greenhouse gas emissions produced in the EU, and according to the report “Circular Economy-Opportunities and Challenges” [109], over 80% of energy produced in Poland still comes from conventional sources. At the same time, it should be emphasized that the provisions contained in the “Energy Policy of Poland until 2040” in the perspective of the coming decades provide for a reduction in the share of solid fossil fuels to 55–60% already in 2030 [109].
The energy sector is key to achieving climate neutrality, i.e., reducing greenhouse gas emissions by 55% compared to 1990 levels by 2030 and achieving net zero greenhouse gas emissions in the EU by 2050 [110]. The implementation of CE practices in this sector can noticeably reduce the consumption of energy resources [111]. Energy sector companies have been obliged to implement measures to reduce greenhouse gas emissions, but in order to meet the assumptions of the Paris Agreement [5], further actions are necessary to reduce the use of non-renewable energy sources and develop energy-saving technologies. Moreover, increasing the share of waste energy in the energy mix is an important direction of energy transformation [112,113]. Currently, an important element of the CE is heat recovery in wastewater treatment plants, which is justified especially when using high-temperature sludge treatment processes (i.e., AD digestion, THP, thermal drying), and the collected energy can be effectively used, e.g., for heating water or heating sludge [112].
To minimize energy consumption, the energy demand of buildings, which is also responsible for 40% of the EU’s total energy consumption and 36% of greenhouse gas emissions, needs to be reduced. This is possible through, e.g., optimization of design variables, construction parameters [110] and the use of renewable and waste energy, which can be used to preheat domestic water, which in turn can significantly reduce the energy demand of buildings.
6. Conclusions
Considering the degree of dependence of the modern world on energy and bearing in mind the significant increase in energy prices, especially in recent months, it is very important from the point of view of users and the natural environment to popularize alternative energy sources, including waste energy.
In recent years, the state of knowledge in the field of grey water heat recovery technology has changed, but also, the standards for the design and operation of this type of equipment have changed. Thanks to the conducted research, grey water is no longer identified only with waste, but has become perceived as an effective source of energy [44,46,47,73]. Both vertical and horizontal devices for the recovery of thermal energy from the discharged grey water are commonly used in the construction industry. There are also many heat exchangers that can function both as single devices, but also create the so-called field-tube DWHR of several exchangers cooperating with each other [70].
It is estimated that the efficiency of vertical heat exchangers can reach even 75% [67], while horizontal units are much less efficient, and their efficiency sometimes does not exceed several percent [35,52].
The research on heat exchangers conducted in the last 20 years mainly covers the improvement of already known technologies by eliminating design defects, improving their efficiency, as well as providing information on the selection of the optimal waste heat recovery technology depending on the installation and operating conditions.
Designers and researchers are also focusing on the development of highly efficient, compact heat exchangers that can be used in single-family housing and also in small bathrooms.
Financial analyses [49,78,79] confirm that the recovery of waste heat from grey water in the waste water system may be financially profitable; however, the payback period on investment expenditures for the purchase and installation of an exchanger is individual for each project. The profitability of the system for collecting energy from wastewater depends on many factors, including the type of exchanger, the parameters of the installation, the type of water heater, and the level of discount rates.
Significant in the context of popularizing DWHR units are studies that will allow one to determine the benefits of using unconventional energy sources for heating water in residential buildings. Social research [51] conducted on the use of alternative energy sources shows that as we try to live with care for the natural environment and compliance with the principles of sustainable development, on the way to shaping ecological attitudes, including reducing energy consumption from alternative sources, we encounter financial problems. Environmentally friendly investments sometimes generate significant outlays, which is why decision-makers often decide to abandon or delay such investments. This approach can be found more often, especially in the case of technologies for which the potential recipient does not have sufficient substantive knowledge or knowledge of the cost-effectiveness of the installation.
Co-financing programs may turn out to be important in the context of popularizing the technology of heat recovery from grey water, as evidenced by the effective leap in interest in photovoltaic installations in Poland in recent years. According to the available data [114,115,116], the number of micro-installations connected by distribution system operators from the beginning of 2019 to the end of August 2022 increased by over 2044%, of which the vast majority were photovoltaic installations. According to research [117], subsidizing the installations was of great importance for the respondents, over and above the ecological aspects. In the surveys, 50% of respondents stated that the decision to install PV panels was made due to government support programs [117,118], and for 46%, the environmental aspect was the most important [119].
Based on the results of research published so far, it is estimated that the key parameters for the heat exchange process in the DWHR units are the temperature and the volumetric flow rates of the grey water and cold water. From the perspective of assessing the validity of the application of DWHR exchangers, a much broader approach to assessing the impact of all input parameters is important, including a comprehensive analysis of such parameters as the share of cold water flowing into the heat exchanger in relation to the amount of grey water produced, as well as the share of pre-heated water at the inlet to the heater and at the inlet to the mixing valve. In addition, previous studies did not exhaust the scope for analysis of the energy recovery potential from installation of various variants of DWHR units in domestic hot water preparation systems.
The review of the state of technology in the field of waste heat recovery from grey water showed that analyses of the energy, financial or environmental justifications usually do not take into account the combination of volumetric flows of grey water from many sanitary utensils. A significant number of papers focus on the collection of energy deposited in sewage at the shower outlet [42,46,51,54,63,69,70,72,73,78]. There are also studies that take into account the heat recovery from dishwasher wastewater [68], or focus on centralized systems [71], where low-temperature (black) water is combined with high-temperature (grey) water. The literature also includes studies on the efficiency of waste heat recovery using a heat pump [28,93]. According to the authors, increasing the volume of wastewater at the inlet to the exchanger by combining grey water and black water may turn out to be unprofitable and unjustified due to the efficiency of energy recovery. However, it seems reasonable to combine grey water streams from several sanitary utensils, e.g., showers, washbasins, bathtubs and even washing machines. In addition, it is suggested that a dual sewage system should be taken into account already at the design stage of sanitary installations in residential buildings, which is justified due to the installation of DWHR units. This will allow for the recovery of heat from all of the grey water flowing into the sewage system from a residential building.
7. Future Directions
The analysis of literature sources, research carried out by the team of authors, as well as the review of the state of technology allowed the identification of research areas and activities that may significantly contribute to the growth of decision-makers’ interest in systems for waste heat recovery from grey water. According to the authors, the activities should focus on the following issues.
- Scientific and industrial research aimed at developing solutions and technologies for low-cost production of heat exchangers and improving their energy efficiency. Activities in this area may be of significant importance for the profitability of industrial production and the financial viability of using these types of solutions.
- Undertaking educational activities aimed at increasing environmental awareness related to the use of waste heat as the most ecological and cheapest way of obtaining energy.
- Implementation of a financial support system for investments in waste heat recovery by individual and institutional recipients for existing and newly built facilities, for various purposes.
- Development of publicly available, reliable tools to calculate the profitability of investments related to the use of heat recovery systems.
- Development of design tools, including building information modeling (BIM) technology, to facilitate the design, selection and management of investment projects.
- Action by public administration bodies, in consultation with research institutes, to develop a common strategy for promoting the CE in the energy sector and in construction.
Author Contributions
Conceptualization B.P. and D.S.; methodology B.P.; formal analysis D.S.; writing—original draft preparation, B.P. and D.S.; editing, B.P.; supervision: D.S. All authors have read and agreed to the published version of the manuscript.
Funding
This research received no external funding.
Data Availability Statement
Not applicable.
Conflicts of Interest
The authors declare no conflict of interest.
References
- AR6 Synthesis Report: Climate Change. Available online: https://www.ipcc.ch/report/ar6/wg1/downloads/report/IPCC_AR6_WGI_Full_Report.pdf (accessed on 3 September 2022).
- Mrazek, M.; Honc, D.; Sanseverino, E.R.; Zizzo, G. Simplified Energy Model and Multi-Objective Energy Consumption Optimization of a Residential House. Appl. Sci. 2022, 12, 10212. [Google Scholar] [CrossRef]
- Mukhtarov, S.; Aliyev, F.; Aliyev, J.; Ajayi, R. Renewable Energy Consumption and Carbon Emissions: Evidence from an Oil-Rich Economy. Sustainability 2023, 15, 134. [Google Scholar] [CrossRef]
- EIA. International Energy Outlook 2019. U.S. Energy Information Administration. Available online: https://www.eia.gov/outlooks/ieo/pdf/ieo2019.pdf (accessed on 1 August 2022).
- Adoption of the Paris Agreement. Available online: http://unfccc.int/resource/docs/2015/cop21/eng/l09r01.pdf (accessed on 1 September 2022).
- International Energy Agency. World Energy Outlook 2019. Flagship Report-November 2019. Available online: https://www.iea.org/topics/world-energy-outlook (accessed on 3 April 2020).
- EIA. International Energy Renewables 2019. U.S. Energy Information Administration. Available online: https://www.iea.org/reports/renewables-2019 (accessed on 2 April 2020).
- Hernandez-Morales, A.; Hernandez, A. Europe’s Energy Freakout, Politico, 19. Available online: https://www.politico.eu/article/europe-energy-crisis-pipeline-natural-gas-eu (accessed on 1 September 2022).
- European Commission. Communication. Tackling Rising Energy Prices: A Toolbox for Action and Support. Available online: https://eur-lex.europa.eu/legal-content/EN/TXT/PDF/?uri=CELEX:52021DC0660&from=EN (accessed on 1 September 2022).
- IEA. Net Zero by 2050: A Roadmap for the Global Energy Sector, 4th Revision, October 2021. Available online: https://www.iea.org/reports/net-zero-by-2050 (accessed on 1 September 2022).
- European Green Deal. Available online: https://ec.europa.eu/info/sites/default/files/european-green-deal-communication_en.pdf (accessed on 1 September 2022).
- Energy Policy of Poland until 2040. Available online: https://www.gov.pl/web/climate/energy-policy-of-poland-until-2040-epp2040 (accessed on 1 September 2022).
- Popkostova, Y. Europe’s Energy Crisis Conundrum—Publications Office of the EU, 2022. European Union Institute for Security Studies. Available online: https://www.iss.europa.eu/sites/default/files/EUISSFiles/Brief_2_Energy%20Crisis.pdf (accessed on 1 September 2022).
- Soboń, A.; Słyś, D.; Ruszel, M.; Wiącek, A. Prospects for the Use of Hydrogen in the Armed Forces. Energies 2021, 14, 7089. [Google Scholar] [CrossRef]
- Ruszel, M.; Maslon, A.; Ogarek, P. Analysis of biogas from sewage sludge digestion in terms of diversification in the natural gas production structure in Poland. Desalination Water Treat. 2021, 232, 298–307. [Google Scholar] [CrossRef]
- Hernández-Chover, V.; Castellet-Viciano, L.; Hernández-Sancho, F. A Tariff Model for Reclaimed Water in Industrial Sectors: An Opportunity from the Circular Economy. Water 2022, 14, 3912. [Google Scholar] [CrossRef]
- Siuta-Tokarska, B.; Thier, A.; Hornicki, K. The Concept of Extended Producer Responsibility in the Field of Packaging Industry and the Energy Sector in the Light of the Circular Economy—The Example of Poland. Energies 2022, 15, 9060. [Google Scholar] [CrossRef]
- Zhang, Y.; Grant, A.; Sharma, A.; Chen, D.; Chen, L. Alternative water resources for rural residential development in Western Australia. Water Resour. Manag. 2010, 24, 25–36. [Google Scholar] [CrossRef]
- Christoff, P. The promissory note: COP 21 and the Paris Climate Agreement. Environ. Politics 2016, 25, 765–787. [Google Scholar] [CrossRef]
- Meggers, F.; Leibundgut, H. The potential of wastewater heat and exergy: Decentralized high-temperature recovery with a heat pump. Energy Build. 2011, 43, 879–886. [Google Scholar] [CrossRef]
- Vatansever, D.; Siores, E.; Shah, T. Alternative Resources for Renewable Energy: Piezoelectric and Photovoltaic Smart Structures. Glob. Warm. Impacts Future Perspect. 2012, 263–290. [Google Scholar] [CrossRef]
- Semkov, K.; Mooney, E.; Connolly, E.; Adley, C. Efficiency improvement through waste heat reduction. Appl. Therm. Eng. 2014, 70, 716–722. [Google Scholar] [CrossRef]
- Ravichandran, A.; Diaz-Elsayed, N.; Thomas, S.; Zhang, Q. An assessment of the influence of local conditions on the economic and environmental sustainability of drain water heat recovery systems. J. Clean. Prod. 2021, 279, 123589. [Google Scholar] [CrossRef]
- Manouchehri, R.; Collins, M.R. Investigating the Impact of Plumbing Configuration on Energy Savings for Falling-Film Drain Water Heat Recovery Systems. Energies 2022, 15, 1141. [Google Scholar] [CrossRef]
- Paska, J.; Surma, T.; Terlikowski, P.; Zagrajek, K. Electricity Generation from Renewable Energy Sources in Poland as a Part of Commitment to the Polish and EU Energy Policy. Energies 2020, 13, 4261. [Google Scholar] [CrossRef]
- Efficiency of Energy Use in 2010–2020 in Poland. Available online: https://stat.gov.pl/files/gfx/portalinformacyjny/pl/defaultaktualnosci/5485/1/9/1/energia_2021.pdf (accessed on 1 September 2022).
- Natural Resources Canada. Available online: https://oee.nrcan.gc.ca/corporate/statistics/neud/dpa/showTable.cfm?type=CP§or=res&juris=ca&rn=2&page=0 (accessed on 1 September 2022).
- Schmid, F. Sewage water: Interesting heat source for heat pumps and chillers. In Proceedings of the 9th International IEA Heat Pump Conference, Zürich, Switzerland, 22 May 2008; pp. 1–12. [Google Scholar]
- Wehbi, Z.; Taher, R.; Faraj, J.; Ramadan, M.; Castelain, C.; Khaled, M. A short review of recent studies on wastewater heat recovery systems: Types and applications. Energy Rep. 2022, 8, 896–907. [Google Scholar] [CrossRef]
- Ritchie, H.; Max Roser, M.; Rosado, P. Energy Production and Consumption. Available online: https://ourworldindata.org/energy (accessed on 1 September 2022).
- Wanjiru, E.; Xia, X. Optimal energy-water management in urban residential buildings through grey water recycling. Sustain. Cities Soc. 2017, 32, 654–668. [Google Scholar] [CrossRef]
- Stec, A.; Kordana, S. Analysis of profitability of rainwater harvesting, gray water recycling and drain water heat recovery systems. Resour. Conserv. Recycl. 2015, 105, 84–94. [Google Scholar] [CrossRef]
- Larrinaga, P.; Campos-Celador, A.; Legarreta, J.; Diarce, G. Evaluation of the theoretical, technical and economic potential of industrial waste heat recovery in the Basque Country. J. Clean. Prod. 2021, 312, 127494. [Google Scholar] [CrossRef]
- Vavrin, J.L. A Quantitative Study of the Viability of Greywater Heat Recovery (GWHR); Defense Technical Information Center: Belvoir Fort, VA, USA, 2011.
- Boyjoo, Y.; Pareek, V.K.; Ang, M. A review of greywater characteristics and treatment processes. Water Sci. Technol. 2013, 67, 1403–1424. [Google Scholar] [CrossRef]
- Pomianowski, M.Z.; Johra, H.; Marszal-Pomianowska, A.; Zhang, C. Sustainable and energy-efficient domestic hot water systems: A review. Renew. Sustain. Energy Rev. 2020, 128, 109900. [Google Scholar] [CrossRef]
- Oteng-Peprah, M.; Acheampong, M.A.; de Vries, N.K. Greywater Characteristics, Treatment Systems, Reuse Strategies and User Perception—A Review. Water Air Soil Pollut. 2018, 229, 255. [Google Scholar] [CrossRef] [PubMed]
- Muneer, T.; Jorge, K.; Thomas, G. Heat Transfer: A Problem Solving Approach, 1st ed.; Taylor & Francis Group: Abingdon, UK, 2013. [Google Scholar]
- Zarzycki, R. Wymiana Ciepła i Ruch Masy w Inżynierii Środowiska; Wydawnictwo Naukowo-Techniczne: Warszawa, Poland, 2005. [Google Scholar]
- Zhang, P.; Ye, J.; Zeng, G. Thermal Effects. Water Environ. Res. 2015, 87, 1901–1913. [Google Scholar] [CrossRef] [PubMed]
- Zagórski, J. Zarys Techniki Cieplnej; Wydawnictwo Naukowo-Techniczne: Warszawa, Poland, 1993. [Google Scholar]
- Cipolla, S.S.; Maglionico, M. Heat recovery from urban wastewater: Analysis of the variability of flow rate and temperature in the sewer of Bologna, Italy. Energy Procedia 2014, 45, 288–297. [Google Scholar] [CrossRef]
- Chudzicki, J.; Sosnowski, S. Instalacje Kanalizacyjne. Projektowanie, Wykonanie, Eksploatacja. Wydanie Trzecie; Wydawnictwo Seidel-Przywecki: Warszawa, Poland, 2011. [Google Scholar]
- Juan, Y.K.; Chen, Y.; Lin, J.M. Greywater reuse system design and economic analysis for residential buildings in Taiwan. Water 2016, 8, 546. [Google Scholar] [CrossRef]
- DIN-EN 12056-2; Gravity Drainage Systems Inside Buildings—Part 2: Sanitary Pipework, Layout and Calculation. British Standards Institution: London, UK, 2001.
- Vavricka, R.; Bohac, J.; Matuska, T. Experimental development of the plate shower heat exchanger to reduce the domestic hot water energy demand. Energy Build. 2022, 254, 111536. [Google Scholar] [CrossRef]
- Kordana, S. SWOT analysis of wastewater heat recovery systems application. In Proceedings of the 9th Conference on Interdisciplinary Problems in Environmental Protection and Engineering EKO-DOK, Boguszow-Gorce, Poland, 23–25 April 2017. [Google Scholar]
- Kimmels, A. Shower Heat Recovery Systems. Meander Heat Recovery. Available online: http://www.meanderhr.com/report/meanderhr_com_shower_dwhr_overview.pdf (accessed on 1 September 2022).
- Marszal-Pomianowska, A.; Jensen, R.L.; Pomianowski, M.; Larsen, O.K.; Jørgensen, J.S.; Knudsen, S.S. Comfort of Domestic Water in Residential Buildings: Flow, Temperature and Energy in Draw-Off Points: Field Study in Two Danish Detached Houses. Energies 2021, 14, 3314. [Google Scholar] [CrossRef]
- Nagpal, H.; Spriet, J.; Murali, M.; McNabola, A. Heat Recovery from Wastewater—A Review of Available Resource. Water 2021, 13, 1274. [Google Scholar] [CrossRef]
- Kordana-Obuch, S.; Starzec, M.; Słyś, D. Assessment of the Feasibility of Implementing Shower Heat Exchangers in Residential Buildings Based on Users’ Energy Saving Preferences. Energies 2021, 14, 5547. [Google Scholar] [CrossRef]
- Mazhar, A.; Liu, S.; Shukla, A. A key review of non-industrial greywater heat harnessing. Energies 2018, 11, 386. [Google Scholar] [CrossRef]
- Piotrowska, B.; Słyś, D.; Kordana-Obuch, S.; Pochwat, K. Critical Analysis of the Current State of Knowledge in the Field of Waste Heat Recovery in Sewage Systems. Resources 2020, 9, 72. [Google Scholar] [CrossRef]
- Collins, M.R.; van Decker, G.W.E.; Murray, J. Characteristic effectiveness curves for falling-film drain water heat recovery systems. HVACR Res. 2013, 19, 649–662. [Google Scholar]
- Tomlinson, J. Heat Recovery from Wastewater Using a Gravity-Film Heat Exchanger. Federal Energy Management Program, Department of Energy, Washington, DC, USA, 2005. Available online: http://gfxtechnology.com/Femp-ORNL.pdf (accessed on 29 November 2022).
- Directive (EU) 2018/2001 on the Promotion of the Use of Energy from Renewable Sources. Available online: https://eur-lex.europa.eu/legal-content/EN/TXT/HTML/?uri=LEGISSUM:4372645 (accessed on 25 November 2022).
- Ratajczak, K.; Michalak, K.; Narojczyk, M.; Amanowicz, Ł. Real Domestic Hot Water Consumption in Residential Buildings and Its Impact on Buildings’ Energy Performance—Case Study in Poland. Energies 2021, 14, 5010. [Google Scholar] [CrossRef]
- Niewitecka, K. Possibilities of heat energy recovery from greywater systems. The First Conference of the International Water Association IWA for Young Scientist in Poland “Water, Wastewater and Energy in Smart Cities”. ES3 Web Conf. 2018, 30, 03003. [Google Scholar] [CrossRef]
- 2019-RES-DHW2-F; Codes and Standards Enhancement (CASE) Initiative, California Building Energy Efficiency Standards Drain Water Heat Recovery—Final Report; Residential Plumbing. 2017. Available online: https://title24stakeholders.com/wp-content/uploads/2017/09/2019-T24-CASE-Report_DWHR_Final_September-2017.pdf (accessed on 15 December 2022).
- CSA. B55.1-15; Test Method for Measuring Efficiency and Pressure Loss of Drain Water Heat Recovery Units. Canadian Standards Association: Mississauga, ON, Canada, 2015.
- IAPMO IGC 346-2017; Test Method for Measuring the Performance of Drain Water Heat Recovery Units. IAPMO: Ontario, CA, USA, 2017.
- BS EN 1717:2000; Protection Against Pollution of Potable Water in Water Installations and General Requirements of Devices to Prevent Pollution by Backflow. BSI Standards Publication: London, UK, 2000.
- Ip, K.; She, K. Waste heat recovery from showers: Case study of a university sport facility in the UK. Water Effic. Conf. 2016, 114–121. Available online: http://www.watefnetwork.co.uk/files/default/resources/Conference2016/WatefCon2016_Proceedings.pdf (accessed on 4 December 2022).
- Danish Energy Agency. Regulation and Planning of District Heating in Denmark; Danish Energy Agency: København, Denmark, 2016; p. 27.
- Bøhm, B.; Schrøder, F.; Bergsøe, N.C. Varmt Brugsvand—Måling af Forbrug og Varmetab fra Cirkulationsledninger; SBI Forlag: Hoersholm, Denmark, 2009. [Google Scholar]
- Prado, R.T.A.; Gonçalves, M. Water heating through electric shower and energy demand. Energy Build. 1998, 29, 77–82. [Google Scholar] [CrossRef]
- Peereboo, P.W.E.; Visser, J.C. Recovering heat from shower water in dwellings. In Proceedings of the CIBW062 Symposium on Water Supply and Drainage for Buildings, Sydney, Australia, 8-10 November 1998. [Google Scholar]
- de Paepe, M.; Theuns, E.; Lenaers, S.; van Loon, J. Heat recovery system for dishwashers. Appl. Therm. Eng. 2003, 23, 743–756. [Google Scholar] [CrossRef]
- Bartkowiak, S.; Fisk, R.; Funk, A.; Hair, J.; Skerlos, S.J. Residential drain water heat recovery systems: Modeling, analysis, and implementation. J. Green Build. 2010, 5, 85–94. [Google Scholar] [CrossRef]
- McNabola, A.; Shields, K. Efficient drain water heat recovery in horizontal domestic shower drains. Energy Build. 2013, 59, 44–49. [Google Scholar] [CrossRef]
- Torras, S.; Oliet, C.; Rigola, J.; Oliva, A. Drain water heat recovery storage-type unit for residential housing. Appl. Therm. Eng. 2016, 103, 670–683. [Google Scholar] [CrossRef]
- Kordana, S. An assessment of the potential for shower water heat recovery. E3S Web Conf. 2018, 45, 00034. [Google Scholar] [CrossRef]
- Kordana, S.; Słyś, D. Analysis of profitability of using a heat recovery system from grey water discharged from the shower (case study of Poland). E3S Web Conf. 2017, 22, 00085. [Google Scholar] [CrossRef]
- Manouchehri, R.; Collins, M.R. An experimental analysis of the impact of temperature on falling film drain water heat recovery system effectiveness. Energy Build. 2016, 130, 1–7. [Google Scholar] [CrossRef]
- Słyś, D.; Kordana, S. Financial analysis of the implementation of a Drain Water Heat Recovery unit in residential housing. Energy Build. 2014, 71, 1–11. [Google Scholar] [CrossRef]
- Zaloum, C.; Gusdorf, J.; Parekh, A. Drainwater Heat Recovery Performance Testing at Canadian Centre for Housing Technology; Technical Series, CCHT, 07-116; Canada Mortgage and Housing Corporation: Ottawa, ON, Canada, 2007. [Google Scholar]
- Shields, K. Drain Water Heat Recovery. Master’s Thesis, Trinity College Dublin, Dublin, Ireland, 2011. [Google Scholar]
- Wong, L.T.; Mui, K.W.; Guan, Y. Shower water heat recovery in high rise residential buildings of Hong Kong. Appl. Energy 2010, 87, 703–709. [Google Scholar] [CrossRef]
- MacKelvie, W. Composite Pipe Heat Exchanger for Drainwater Heat Recovery. U.S. Patent Application No. 20130306289, 20 September 2016. [Google Scholar]
- Schmid, R.; Svaton, R.; Rusch, C. Heat Exchanger for a Shower or Bathtub. U.S. Patent Application No. US 10072897 B2, 10 September 2018. [Google Scholar]
- Żakowski, P. Shower Heat Exchanger Made of Typical Sewer Components. The Patent Office of the Republic of Poland Number W.129137, 27 April 2020. Available online: https://ewyszukiwarka.pue.uprp.gov.pl/search/pwp-details/W.129137?lng=pl (accessed on 1 September 2022).
- Kramarz, J. Sewr-Type Heat Absorber. The Patent Office of the Republic of Poland Number Pat.196379, 25 July 2000. [Google Scholar]
- MacKelvie, W. Drainwater Heat Recovery System. U.S. Patent Application No. US 2001/0004009 A1, 21 June 2001. [Google Scholar]
- Shower Heat Exchanger IZi30/IZi40 (ZYPHO) (PCT054506). Available online: https://www.zypho.pt/?it=base_home&nlg=16 (accessed on 1 September 2022).
- Mazur, A.; Stec, A.; Słyś, D. Horizontal Shower-Type Heat Exchanger. The Patent Office of the Republic of Poland Number Patent 234930, 2 January 2020. [Google Scholar]
- Mazur, A.; Słyś, D.; Dziopak, J. Horizontal Heat Exchanger. The Patent Office of the Republic of Poland Number Patent 230906, 3 September 2018. [Google Scholar]
- Mazur, A.; Stec, A.; Słyś, D. Linear Drainage with Heat Recovery. The Patent Office of the Republic of Poland Number Patent 230648, 11 October 2017. [Google Scholar]
- Kordana-Obuch, S.; Starzec, M. Horizontal Shower Heat Exchanger as an Effective Domestic Hot Water Heating Alternative. Energies 2022, 15, 4829. [Google Scholar] [CrossRef]
- Cardone, J. Shower Heat Exchanger with Clog-Removable Drain. U.S. Patent Application No. US8104532B2, 28 April 2011. [Google Scholar]
- Gilbert, G. Heat Exchange Devices. United. United States Patent No. US8893319 B2, 25 November 2014. [Google Scholar]
- Nobile, J.R. Heat Exchanger and Use Thereof in Showers. U.S. Patent Application No. 20080000616A1, 3 January 2008. [Google Scholar]
- Zaloum, C.; Lafrance, M.; Gusdorf, J. Drain Water Heat Recovery: Characterisation and Modelling; Final Report; Sustainable Buildings & Communities, Natural Resources Canada: Ottawa, ON, Canada, 2007. [Google Scholar]
- Wallin, J.; Claesson, J. Investigating the efficiency of a vertical inline drain water heat recovery heat exchanger in a system boosted with a heat pump. Energy Build. 2014, 80, 7–16. [Google Scholar] [CrossRef]
- Kramarz, J. Cascade Spiral Heat Exchanger. The Patent Office of the Republic of Poland Number Rp. 25423, 23 May 2019. [Google Scholar]
- Van Decker, G.W.E.; Watts, C.M. Helical Coil on Tube Heat Exchanger. U.S. Patent Application No. US20130025836A1, 31 January 2013. [Google Scholar]
- Mazur, A.; Stec, A.; Słyś, D. Vertical Spiral Heat Exchanger. The Patent Office of the Republic of Poland Number Patent 230910, 17 January 2018. [Google Scholar]
- Shower Heat Exchanger PiPe DW/PiPe (ZYPHO). Available online: https://www.zypho.pt/?it=base_home&nlg=16 (accessed on 1 September 2022).
- Stec, A.; Mazur, A.; Słyś, D. Vertical Heat Exchanger. The Patent Office of the Republic of Poland Number Patent 230590, 2 July 2018. [Google Scholar]
- Kramarz, J. Method of and Apparatus for Recuperating Waste Heat from Waste Water. The Patent Office of the Republic of Poland Number Patent 198134, 24 January 2001. [Google Scholar]
- Brunn, J. Grey Water Heat Recovery System. U.S. Patent Application No. US 2011/0155366 A1, 30 June 2011. [Google Scholar]
- Vaillancourt Mario, M.V. Heat Recovery Unit for Gray Water Equipped with a Protection Method and Device Preventing Contamination of Potable Water. Innovation, Science and Economic Development Canada Patent Publication Number CA2991210A1, 24 July 2018. [Google Scholar]
- Nolde, E. Water and energy recycling at a residential passive house. In Proceedings of the Poster Sustainable Building Conference, Graz, Austria, 25–28 September 2013; pp. 1353–1360. [Google Scholar]
- D’Adamo, I. Adopting a Circular Economy: Current Practices and Future Perspectives. Soc. Sci. 2019, 8, 328. [Google Scholar] [CrossRef]
- Mignacca, B.; Locatelli, G.; Velenturf, A. Modularisation as enabler of circular economy in energy infrastructure. Energy Policy 2020, 139, 111371. [Google Scholar] [CrossRef]
- Azevedo, S.G.; Godina, R.; de Oliveira Matias, J.C. Proposal of a Sustainable Circular Index for Manufacturing Companies. Resources 2017, 6, 63. [Google Scholar] [CrossRef]
- Rokicki, T.; Perkowska, A.; Klepacki, B.; Szczepaniuk, H.; Szczepaniuk, E.K.; Bereziński, S.; Ziółkowska, P. The Importance of Higher Education in the EU Countries in Achieving the Objectives of the Circular Economy in the Energy Sector. Energies 2020, 13, 4407. [Google Scholar] [CrossRef]
- Zorpas, A.A.; Doula, M.K.; Jeguirim, M. Waste Strategies Development in the Framework of Circular Economy. Sustainability 2021, 13, 13467. [Google Scholar] [CrossRef]
- de Medeiros, A.D.M.; da Silva Junior, C.J.G.; de Amorim, J.D.P.; do Nascimento, H.A.; Converti, A.; Costa, A.F.d.S.; Sarubbo, L.A. Biocellulose for Treatment of Wastewaters Generated by Energy Consuming Industries: A Review. Energies 2021, 14, 5066. [Google Scholar] [CrossRef]
- Circular Economy Report—Opportunities and Challenges. Available online: https://www.fortum.pl/media/5240/download (accessed on 12 December 2022).
- Sáez-de-Guinoa, A.; Zambrana-Vasquez, D.; Fernández, V.; Bartolomé, C. Circular Economy in the European Construction Sector: A Review of Strategies for Implementation in Building Renovation. Energies 2022, 15, 4747. [Google Scholar] [CrossRef]
- Andreou, A.; Fragkos, P.; Fotiou, T.; Filippidou, F. Assessing Lifestyle Transformations and Their Systemic Effects in Energy-System and Integrated Assessment Models: A Review of Current Methods and Data. Energies 2022, 15, 4948. [Google Scholar] [CrossRef]
- Neczaj, E.; Grosser, A. Circular Economy in Wastewater Treatment Plant—Challenges and Barriers. Proceedings 2018, 2, 614. [Google Scholar]
- Janik, A.; Ryszko, M. Szafraniec, Greenhouse Gases and Circular Economy Issues in Sustainability Reports from the Energy Sector in the European Union. Energies 2020, 13, 5993. [Google Scholar] [CrossRef]
- Clean Energy for All Europeans—Unlocking Europe’s Growth Potential. Available online: https://ec.europa.eu/commission/presscorner/detail/en/IP_16_4009 (accessed on 1 September 2022).
- Photovoltaics Micro- Installations in Poland. Available online: http://www.ptpiree.pl/energetyka-w-polsce/energetyka-w-liczbach/mikroinstalacje-w-polsce (accessed on 17 October 2022).
- PV Market in Poland 202. Available online: https://ieo.pl/en/pv-report (accessed on 17 October 2022).
- Clean Air Program. Available online: https://czystepowietrze.gov.pl (accessed on 24 October 2022).
- My Power. Available online: https://mojprad.gov.pl (accessed on 24 October 2022).
- RES Index in Poland. Available online: https://alians-oze.pl/?aktualnosci=oze-index-62-polakow-decyduje-sie-na-fotowoltaike-ze-wzgledu-na-oszczednosci (accessed on 16 October 2022).
Disclaimer/Publisher’s Note: The statements, opinions and data contained in all publications are solely those of the individual author(s) and contributor(s) and not of MDPI and/or the editor(s). MDPI and/or the editor(s) disclaim responsibility for any injury to people or property resulting from any ideas, methods, instructions or products referred to in the content. |
© 2022 by the authors. Licensee MDPI, Basel, Switzerland. This article is an open access article distributed under the terms and conditions of the Creative Commons Attribution (CC BY) license (https://creativecommons.org/licenses/by/4.0/).






