Indoor Air Quality Diagnosis Program for School Multi-Purpose Activity and Office Spaces
Abstract
1. Introduction

2. Methods
3. Prior Research
3.1. Architectural Drawing Analysis
3.1.1. Definition of Spaces by Function
3.1.2. Architectural Elements and Application Statuses of Air Purification Facilities
3.2. Indoor Air Quality Tests
3.2.1. Analysis of the Characteristics of PM2.5 and CO2: Outdoors and in Hallways
3.2.2. Analysis of the Characteristics of PM2.5 and CO2: Windows, Doors, and Air Purification Facilities
3.2.3. Analysis of the Characteristics of PM2.5 and CO2: Regions
4. General Structure of the Proposed Program
4.1. Prediction of PM2.5 Concentration
4.1.1. Factors Influencing PM2.5
4.1.2. Input Conditions for Factors Influencing PM2.5
4.1.3. Derivation of the PM2.5 Concentration Prediction Equation
4.2. Prediction of CO2 Concentration
4.2.1. Factors Influencing CO2
4.2.2. Input Conditions for Factors Influencing CO2
4.2.3. Derivation of the CO2 Concentration Prediction Equation
4.3. The Simple Diagnosis Program for Indoor Air Quality
4.3.1. Implementation of the Concentration Prediction Equation for Each Class Period
4.3.2. Coding of the Simple Diagnosis Program
5. Validation and Results
6. Discussion
7. Conclusions
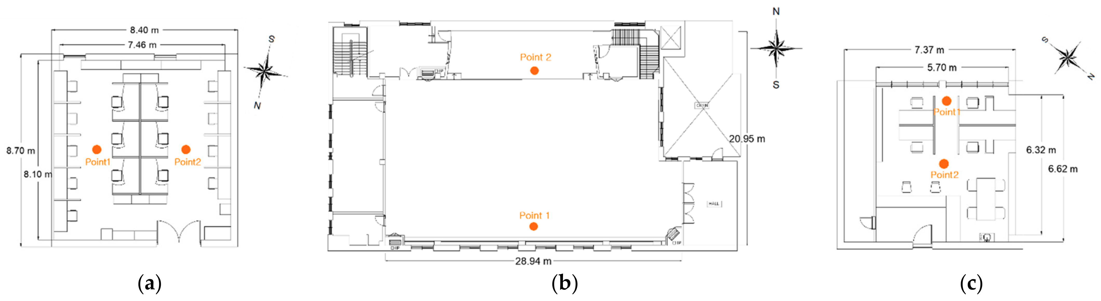
- Prior research was conducted to analyze the influencing factors to be selected for the Input sheet. Among them, the analysis of measurement data from 12 August 2021 confirmed a sharp increase in CO2 concentration. The CO2 concentration of Point 2, an office space with a total floor area of 60.43 m2, increased to a maximum of 860 ppm after 13:30, when the number of occupants rose. From the data results, it was inferred that the number of occupants influenced the increase in indoor CO2 concentration.
- The input conditions for the simple indoor air quality diagnosis program selected through previous research are as follows. In the program, input conditions for PM2.5 and CO2 were selected as floor area, ceiling height, and effective window area. In addition, in the case of PM2.5 input conditions, 10 categories, including the rate of air changes, outdoor PM2.5 concentration, and adjacent PM2.5 concentration, were additionally included because the PM2.5 concentration is greatly affected by external environmental factors. In the case of CO2 input conditions, eight categories, including the number and age of occupants and activity type, were additionally included because the CO2 concentration is greatly affected by the number and activity of occupants.
- The simple indoor air quality diagnosis program proposed in this study uses the equation derived using the mass and concentration conservation equation so that PM2.5 and CO2 concentrations can be predicted by the input conditions using Excel. Additionally, the program was configured by inputting the VBA code for each instructional schedule (number of people, hours of use, operation of air purification facilities, etc.) input by the user.
- To verify the accuracy of the simple indoor air quality diagnosis program, Simulation 1, which contained the program result data, was compared with the measured data. The average RMSE was 2.92 µg/m3, and the RMSE percentage was 21.35% according to the comparative analysis of the PM2.5 concentration of the measured data with those of Simulation 1. The RMSE was 154.11 ppm, and the RMSE percentage was 21.17% according to the comparative analysis of the CO2 concentration of the measured data with those of Simulation 1.
- In order to improve accuracy, Simulation 2, in which the wind speed and indoor/outdoor air pressure difference are corrected, was presented. The RMSE was 0.76 µg/m3, and the RMSE percentage was 5.84% in the PM2.5 by Simulation 2. In the case of CO2 concentration, the RMSE was 25.61 ppm, and the RMSE percentage was 3.55%.
Author Contributions
Funding
Institutional Review Board Statement
Informed Consent Statement
Data Availability Statement
Conflicts of Interest
References
- Ultrafine Dust Concentration Recorded 18 ug/m3 in 2021, Lowest Since Observation. Ministry of Environment Climate and Carbon Policy Office Press Release. Available online: https://eiec.kdi.re.kr/policy/materialView.do?num=222403&topic=%3Cbr%3E%3Cbr%3E118%ED%9A%8C&pp=20&datecount=&recommend=&pg= (accessed on 18 June 2022).
- Fine Dust Season Control. Available online: https://www.air.go.kr/jbmd/sub30.do?tabPage=3 (accessed on 18 June 2022).
- World Health Organization. WHO Global Air Quality Guidelines: Particulate Matter (PM2.5 and PM10), Ozone, Nitrogen di-579 Oxide, Sulfur Dioxide and Carbon Monoxide Executive Summary: Platz der Vereinten Nationen 1 D-53113 Bonn; World Health Organization: Geneva, Switzerland, 2021. [Google Scholar]
- Ministry of Environment. Presidential Decree No. 32557, Enforcement Decree of the Framework Act on Environmental Policy Attached Table 1 Environmental Standards; Ministry of Environment: Sejong, Korea, 2022.
- Ministry of Environment. Ministry of Environment Ordinance No. 918, Enforcement Rule of Indoor Air Quality Management Act Annex 2 Indoor Air Quality Recommendation Criteria; Ministry of Environment, Korea: Sejong, Korea, 2021.
- Yeo, M.J.; Kim, Y.P. Trends of the PM10 concentrations and high PM10 concentration cases in Korea. J. Korean Soc. Atmos. Environ. 2019, 35, 249–264. [Google Scholar] [CrossRef]
- Lee, S.J.; Kim, S.J.; Park, M.K.; Cho, I.G.; Lee, H.Y.; Choi, S.D. Contamination characteristics of hazardous air pollutants in particulate matter in the atmosphere of Ulsan, Korea. J. Korea Soc. Environ. Anal. 2018, 21, 281–291. [Google Scholar]
- Jo, Y.M. School fine dust management—School fine dust sources and inflow paths. Air Clean. Technol. 2019, 32, 1–8. [Google Scholar]
- Vohra, K.; Vodonos, A.; Schwartz, J.; Marais, E.A.; Sulprizio, M.P.; Mickley, L.J. Global mortality from outdoor fine particle pollution generated by fossil fuel combustion: Results from GEOS-Chem. Environ. Res. 2021, 195, 110754. [Google Scholar] [CrossRef] [PubMed]
- Liu, C.; Chen, R.; Sera, F.; Vicedo-Cabrera, A.M.; Guo, Y.; Tong, S.; Coelho, M.S.; Saldiva, P.H.; Lavigne, E.; Matus, P.; et al. Ambient particulate air pollution and daily mortality in 652 cities. N. Engl. J. Med. 2019, 381, 705–715. [Google Scholar] [CrossRef]
- National Health Insurance Ilsan Hospital Research Institute. Analysis of Medical Use and Death Effect on Respiratory Diseases Using Measurement Data of Fine Dust and Ultrafine Dust and National Health Insurance Claim Data (2018-20-020); National Health Insurance Ilsan Hospital Research Institute: Goyang-si, Korea, 2018. [Google Scholar]
- Korea Institute for Health and Social Affairs. Operation of An In-Depth Survey System for Public Awareness and Needs in Response to A Low Fertility and Aging Society (2019-05); Korea Institute for Health and Social Affairs: Sejong City, Korea, 2019. [Google Scholar]
- Ministry of Environment. High-Concentration Fine Dust Response Manual for the Protection of Vulnerable Groups Such as Children, Students, and Senior Citizens; Ministry of Environment: Sejong, Korea, 2019.
- Bennett, W.D.; Zeman, K.L.; Jarabek, A.M. Nasal contribution to breathing and fine particle deposition in children versus adults. J. Toxicol. Environ. Health 2008, 71, 227–237. [Google Scholar] [CrossRef]
- Bateson, T.F.; Schwartz, J. Children’s response to air pollutants. J. Toxicol. Environ. Health 2008, 71, 238–343. [Google Scholar] [CrossRef]
- Ministry of Education. School Air Purifier Installation and Maintenance Work Guide (Revised Version); Ministry of Education: Sejong City, Korea, 2022.
- Seoul Metropolitan Office of Education. 2019 Seoul Metropolitan Office of Education Working Manual for High Concentration Fine Dust Response; Seoul Metropolitan Office of Education: Seoul, Korea, 2019. [Google Scholar]
- Ministry of Education. No. 18196, School Health Act; Ministry of Education: Sejong, Korea, 2021.
- Nourry, C.; Deruelle, F.; Guinhouya, C.; Baquet, G.; Fabre, C.; Bart, F.; Berthoin, S.; Mucci, P. High-intensity intermittent running training improves pulmonary function and alters exercise breathing pattern in children. Eur. J. Appl. Physiol. 2005, 94, 415–423. [Google Scholar] [CrossRef]
- Bernasconi, P.; Bürki, P.; Bührer, A.; Koller, E.A.; Kohl, J. Running training and co-ordination between breathing and running rhythms during aerobic and anaerobic conditions in humans. Eur. J. Appl. Physiol. Occup. Physiol. 1995, 70, 387–393. [Google Scholar] [CrossRef]
- Cho, S.H.; Yang, S.H.; Lee, B.H.; Jeong, S.U.; Lee, B.H. Development of the two-zone model to estimate the air quality in indoor environments. J. Environ. Sci. Int. 1998, 7, 745–751. [Google Scholar]
- Kim, T.Y. Analysis of contribution ratio of pollutant sources to indoor air quality. Archit. Inst. Korea 2004, 20, 209–216. [Google Scholar]
- Chang, T.H.; Cho, H.W. A Study on the ventilation technology for indoor air quality improvement. J. Adv. Mar. Eng. Technol. 2005, 29, 540–551. [Google Scholar]
- Kim, W.H.; Kim, J.H.; Lee, S.K. Atrium Ceiling Jet Temperature Prediction Model Comparison. In Proceedings of the Korean Institute of Industrial Safety Conference, 2000; pp. 144–149. Available online: https://koreascience.kr/journal/HOJHAY.1ff8page (accessed on 10 August 2022).
- Kim, T.Y.; Lee, Y.G.; Han, K.W. Contribution ration of pollutant source to concentration of room center. Proc. AIK 2003, 23, 809–812. [Google Scholar]
- Yoon, S.H.; Park, J.Y.; Son, D.Y.; Choi, Y.H.; Park, K.S. A numerical study of automotive indoor thermal comfort model according to boarding conditions and parameters related to HVAC. Trans. Korean Soc. Mech. Eng. A 2014, 38, 979–988. [Google Scholar] [CrossRef]
- Szczepanik-Scislo, N.; Scislo, L. Comparison of CFD and multizone modeling from contaminant migration from a household gas furnace. Atmosphere 2021, 12, 79. [Google Scholar] [CrossRef]
- Marques, G.; Ferreira, C.R.; Pitarma, R. Indoor air quality assessment using a CO2 monitoring system based on internet of things. J. Med. Syst. 2019, 43, 67. [Google Scholar] [CrossRef]
- Loy-Benitez, J.; Heo, S.; Yoo, C. Soft sensor validation for monitoring and resilient control of sequential subway indoor air quality through memory-gated recurrent neural networks-based autoencoders. Control Eng. Pract. 2020, 97, 104330. [Google Scholar] [CrossRef]
- Taheri, S.; Razban, A. Learning-based CO2 concentration prediction: Application to indoor air quality control using demand-controlled ventilation. Build. Environ. 2021, 205, 108164. [Google Scholar] [CrossRef]
- Satish, U.; Mendell, M.J.; Shekhar, K.; Hotchi, T.; Sullivan, D.; Streufert, S.; Fisk, W.J. Is CO2 an indoor pollutant? Direct effects of low-to-moderate CO2 concentrations on human decision-making performance. Environ. Health Perspect. 2012, 120, 1671–1677. [Google Scholar] [CrossRef]
- Lee, Y.K.; Kim, Y.I.; Lee, W.S. Development of CO2 concentration prediction tool for improving office indoor air quality considering economic cost. Energies 2022, 15, 3232. [Google Scholar] [CrossRef]
- Lee, Y.K.; Kim, Y.I. Analysis of indoor air pollutants and guidelines for space and physical activities in multi-purpose activity space of elementary schools. Energies 2021, 15, 220. [Google Scholar] [CrossRef]
- Administrative Office, Principal’s Office, Office Definition. Available online: https://namu.wiki/w/%ED%96%89%EC%A0%95%EC%8B%A4 (accessed on 18 June 2022).
- Shin, W.S.; Han, K.Y. The study about architectural plan and practical use of multipurpose room of school facilities (auditorium, gymnasium). J. Korean Inst. Educ. Facil. 2004, 11, 5–16. [Google Scholar]
- Korean Institute of Educational Environment. Academic Research on School Facility Plan Design Guidelines and Facility Standards Development; Metropolitan Office of Education: Seoul, Korea, 2013. [Google Scholar]
- Wang, H.; Karava, P.; Chen, Q. Development of simple semiempirical models for calculating airflow through hopper, awning, and casement windows for single-sided natural ventilation. Energy Build. 2015, 96, 373–384. [Google Scholar] [CrossRef]
- Wang, H.; Chen, Q.Y. Modeling of the impact of different window types on single-sided natural ventilation. Energy Procedia 2015, 78, 1549–1555. [Google Scholar] [CrossRef]
- Li, C.; Bai, L.; He, Z.; Liu, X.; Xu, X. The effect of air purifiers on the reduction in indoor PM2.5 concentrations and population health improvement. Sustain. Cities Soc. 2021, 75, 103298. [Google Scholar] [CrossRef]
- Cooper, E.; Wang, Y.; Stamp, S.; Burman, E.; Mumovic, D. Use of portable air purifiers in homes: Operating behaviour, effect on indoor PM2.5 and perceived indoor air quality. Build. Environ. 2021, 191, 107621. [Google Scholar] [CrossRef]
- Liu, S.; Song, R.; Zhang, T.T. Residential building ventilation in situations with outdoor PM2.5 pollution. Build. Environ. 2021, 202, 108040. [Google Scholar] [CrossRef]
- Jones, E.R.; Laurent, J.G.C.; Young, A.S.; MacNaughton, P.; Coull, B.A.; Spengler, J.D.; Allen, J.G. The effects of ventilation and filtration on indoor PM2.5 in office buildings in four countries. Build. Environ. 2021, 200, 107975. [Google Scholar] [CrossRef]
- Size Korea. 6th Body Size Survey. Available online: https://sizekorea.kr (accessed on 27 December 2021).
- Our Neighborhood Air Environment Information, Measurement Data Inquiry. Available online: https://www.airkorea.or.kr/web/realschoolSearch (accessed on 20 June 2022).
- National Institute of Environmental Research. 2019 Air Environment Annual Report; Korea Environment Corporation: Sejong, Korea, 2021. [Google Scholar]
- Seoul Institute. Introduction of the Fine Dust Season System (2019-PR-17); Korea Environmental Policy Evaluation Institute: Seoul, Korea, 2019. [Google Scholar]
- Tran, D.T.; Alleman, L.Y.; Coddeville, P.; Galloo, J.C. Indoor particle dynamics in schools: Determination of air exchange rate, size-resolved particle deposition rate and penetration factor in real-life conditions. Indoor Built Environ. 2015, 26, 1335–1350. [Google Scholar] [CrossRef]
- Standard 62.1-2013; Ventilation for Acceptable Indoor Air Quality. ASHRAE: Atlanta, GA, USA, 2013.
- Korean Institute of Architectural Sustainable Environment and Building Systems. Building Airtightness Criteria; KIAEBS C-1; KIAEBS: Seoul, Korea, 2013. [Google Scholar]
- Yoon, J.H.; Park, J.W.; Lee, K.S.; Baek, N.C.; Shin, U. A study on the measurement of airtightness performance of detached houses in Chung-cheong area. J. Korean Sol. Energy Soc. 2008, 28, 65–71. [Google Scholar]
- Korea Ministry of Land, Infrastructure, and Transport. Ordinance of the Ministry of Land, Infrastructure, and Transport No. 882, Regulations on Equipment Standards for Buildings Attached Table 2 Standards for Calculating the Effective Area of Smoke Windows; Korea Ministry of Land, Infrastructure, and Transport: Sejong, Korea, 2021.
- Cho, K.; Chae, C.U.; Cho, D.; Kim, T. Changes in fan energy consumption according to filters installed in residential heat recovery ventilators in Korea. Sustainability 2021, 13, 10119. [Google Scholar] [CrossRef]
- Chu, Y.; Xu, P.; Yang, Z.; Li, W. Existing building retrofitting for indoor PM2.5 concentration control on smog days: Case study in China. Procedia Eng. 2017, 205, 3222–3227. [Google Scholar] [CrossRef]
- Liu, C.; Yang, J.; Ji, S.; Lu, Y.; Wu, P.; Chen, C. Influence of natural ventilation rate on indoor PM2.5 deposition. Build. Environ. 2018, 144, 357–364. [Google Scholar] [CrossRef]
- Ansanay-Alex, G. Estimating occupancy using indoor carbon dioxide concentrations only in an office building: A method and qualitative assessment. In Proceedings of the REHVA World Congress on Energy Efficient, Smart and Healthy Buildings (CLIMA), Prague, Czech Republic, 16–19 June 2013. [Google Scholar]
- Standard 55-2010; Thermal Environmental Conditions for Human Occupancy. ASHRAE: Atlanta, GA, USA, 2020.
- Steven, J.E.; Andrew, K.P. State-of-the-Art Review of CO2 Demand Controlled Ventilation Technology and Application NISTIR 6729; NIST: Gaithersburg, MD, USA, 2015.
- Comprehensive Climate Change Monitoring Information. Available online: http://www.climate.go.kr (accessed on 27 December 2021).
- Li, J.; Zhang, H.; Chao, C.Y.; Chien, C.H.; Wu, C.Y.; Luo, C.H.; Chen, L.J.; Biswas, P. Integrating low-cost air quality sensor networks with fixed and satellite monitoring systems to study ground-level PM2.5. Atmos. Environ. 2020, 223, 117293. [Google Scholar] [CrossRef]
- Kim, S.H.; Han, G.T. A study of indoor air pollution prediction based on LSTM model using fine dust sensor data in kitchen environment. In Proceedings of the Symposium of the Korean Institute of Communications and Information Sciences, Yongpyong, Korea, 5–7 February 2020; pp. 1127–1128. [Google Scholar]
- Hong, T.H.; Kim, H.P.; Kim, J.M.; An, J.B.; Kang, H.A.; Hong, J.W.; Yeom, S.K. Development of the indoor fine dust density forecast model using long short term memory. In Proceedings of the 2018 Korea Society of Energy and Climate Change Conference, Yeosu Expo Korea, Yeosu, Korea, 7–9 November 2018; Volume 11, p. 185. [Google Scholar]
- Chicco, D.; Warrens, M.J.; Jurman, G. The coefficient of determination R-squared is more informative than SMAPE, MAE, MAPE, MSE and RMSE in regression analysis evaluation. PeerJ Comput. Sci. 2021, 7, e623. [Google Scholar] [CrossRef]
- RMSE Definition. Available online: https://en.wikipedia.org/wiki/Root-mean-square_deviation (accessed on 10 August 2022).
- Yang, C.; Shi, H.; Yang, X.; Zhao, B. Research on flow resistance characteristics with different window/door opening angles. HVACR Res. 2010, 16, 813–824. [Google Scholar] [CrossRef]
- Tsujihara, M.; Imamura, S.; Tanaka, M. Architectural Environment Easily Explained with Pictures. In Moonundang. 2015. Available online: https://www.nottingham.edu.cn/en/study-with-us/undergraduate/courses/prospectus.aspx?id=8ce16932-d427-4889-835a-ef6aaaebac14 (accessed on 10 August 2022).
- Shin, M.S.; Kim, H.S.; Hong, J.E.; Jang, D.S. A numerical study for improvement of indoor air quality of apartment house. J. Korean Soc. Environ. Eng. 2009, 31, 521–530. [Google Scholar]
- Lee, T.C.; Son, Y.N.; Yoon, S.H. A study on ventilation and heat transfer coefficient of passive ventilation skin. Korean J. Air-Cond. Refrig. Eng. 2012, 24, 679–684. [Google Scholar]















| Space Type | Definition |
|---|---|
| Office | Space for teachers and school administrators to prepare for class and conduct business (Examples: principal’s office, teachers’ offices, and administration office) |
| Multipurpose activity | Space for various classroom activities and school events (Examples: multipurpose room, auditorium, and indoor gymnasium) |
| Name of School | Office | Multipurpose Activity Space |
|---|---|---|
| A | X | O (Jet fan) |
| B | X | X |
| C | X | O (Jet fan) |
| D | X | O (Jet fan) |
| E | X | X |
| F | O (HRV) | O (Jet fan) |
| G | O (HRV) | O (Jet fan) |
| H | O (ERV) | X |
| I | X | X |
| J | O (ERV) | O (Jet fan) |
| Large Category | Intermediate Category | Small Category |
|---|---|---|
| Architectural elements | Space | Floor area |
| Ceiling height | ||
| Window effective opening area | ||
| Door area (indoor/outdoor) | ||
| Door area (indoor/adjacent space) | ||
| Rate of air changes | ||
| Equipment elements | Air purifier | Number of machines |
| Supply/exhaust air flow rates | ||
| Filter type and efficiency | ||
| Operation time | ||
| Mechanical ventilation system | Number of machines | |
| Supply/exhaust air volume | ||
| Filter type and efficiency | ||
| Operation time | ||
| Indoor PM2.5 concentration | ||
| External | Outdoor PM2.5 concentration | |
| Adjacent PM2.5 concentration | ||
| Pressure difference (indoor/outdoor) | ||
| Pressure difference (indoor/adjacent space) |
| Small Category (Input Condition) | References |
|---|---|
| Window effective opening area ratio (Sliding: 0.5/Pivot horizontal: 0.26/Pivot vertical: 0.26/Awning: 0.13/Projected: 0.13) | [37,38,48] |
| Outdoor PM2.5 concentration (PM2.5 concentration by city and month) | [45] |
| Air change per hour (New school: 0.1/h/Normal school: 0.37/h/Old school: 1/h) | [48,49,50,51] |
| Air purifier efficiency (Pre: η = 0.28/Medium: η = 0.59/Hepa: η = 0.98) | [42,52,53] |
| Large Category | Intermediate Category | Small Category |
|---|---|---|
| Architectural elements | Space | Floor area |
| Ceiling height | ||
| Window effective opening area | ||
| Door area (indoor/outdoor) | ||
| Door area (indoor/adjacent space) | ||
| Equipment elements | Mechanical ventilation system | Number of machines |
| Supply/exhaust air flow rate | ||
| Operation time | ||
| Environmental factors | Indoor | Rate of air changes |
| Indoor CO2 concentration | ||
| External | Outdoor CO2 concentration | |
| Adjacent CO2 concentration | ||
| Pressure difference (indoor/outdoor) | ||
| Pressure difference (indoor/adjacent space) | ||
| Occupant characteristics | Number of occupants | |
| Age | ||
| Activity type |
| Small Category (Input Condition) | References |
|---|---|
| CO2 emission by occupant (Calculation of CO2 emissions by age/activity of occupants) | [31,32,33,43,55,56,57] |
| Outdoor CO2 concentration | [58] |
| Pollutant | Simulation | RMSE (µg/m3) | RMSE Percentage (%) | MAPE Percentage (%) |
|---|---|---|---|---|
| PM2.5 | 1(a) | 4.21 | 27.10 | 23.78 |
| 1(b) | 1.63 | 15.59 | 15.15 | |
| Average | 2.92 | 21.35 | 19.47 | |
| 2(a) | 0.86 | 5.49 | 3.82 | |
| 2(b) | 0.65 | 6.19 | 6.48 | |
| Average | 0.76 | 5.84 | 5.15 |
| Pollutant | Simulation | RMSE (ppm) | RMSE Percentage (%) | MAPE Percentage (%) |
|---|---|---|---|---|
| CO2 | 1(a) | 173.28 | 24.69 | 19.29 |
| 1(b) | 134.94 | 17.65 | 16.38 | |
| Average | 154.11 | 21.17 | 17.84 | |
| 2(a) | 32.39 | 4.61 | 3.48 | |
| 2(b) | 18.92 | 2.48 | 2.11 | |
| Average | 25.61 | 3.55 | 2.80 |
Publisher’s Note: MDPI stays neutral with regard to jurisdictional claims in published maps and institutional affiliations. |
© 2022 by the authors. Licensee MDPI, Basel, Switzerland. This article is an open access article distributed under the terms and conditions of the Creative Commons Attribution (CC BY) license (https://creativecommons.org/licenses/by/4.0/).
Share and Cite
Lee, Y.-K.; Kim, Y.I.; Kim, G.-H. Indoor Air Quality Diagnosis Program for School Multi-Purpose Activity and Office Spaces. Energies 2022, 15, 8134. https://doi.org/10.3390/en15218134
Lee Y-K, Kim YI, Kim G-H. Indoor Air Quality Diagnosis Program for School Multi-Purpose Activity and Office Spaces. Energies. 2022; 15(21):8134. https://doi.org/10.3390/en15218134
Chicago/Turabian StyleLee, Yeo-Kyung, Young Il Kim, and Ga-Hyeon Kim. 2022. "Indoor Air Quality Diagnosis Program for School Multi-Purpose Activity and Office Spaces" Energies 15, no. 21: 8134. https://doi.org/10.3390/en15218134
APA StyleLee, Y.-K., Kim, Y. I., & Kim, G.-H. (2022). Indoor Air Quality Diagnosis Program for School Multi-Purpose Activity and Office Spaces. Energies, 15(21), 8134. https://doi.org/10.3390/en15218134

