A Computer Vision-Based Occupancy and Equipment Usage Detection Approach for Reducing Building Energy Demand
Abstract
1. Introduction and Literature Review
1.1. Literature Gap and Novelty
1.2. Aims and Objectives
2. Method
2.1. Overview of the Research Framework and Approach
2.2. Deep Learning Method
2.2.1. Data Preparation: Datasets and Pre-Processing
2.2.2. Detection Model: CNN-Based Model Selection and Configuration
2.3. Deep Learning Model Application
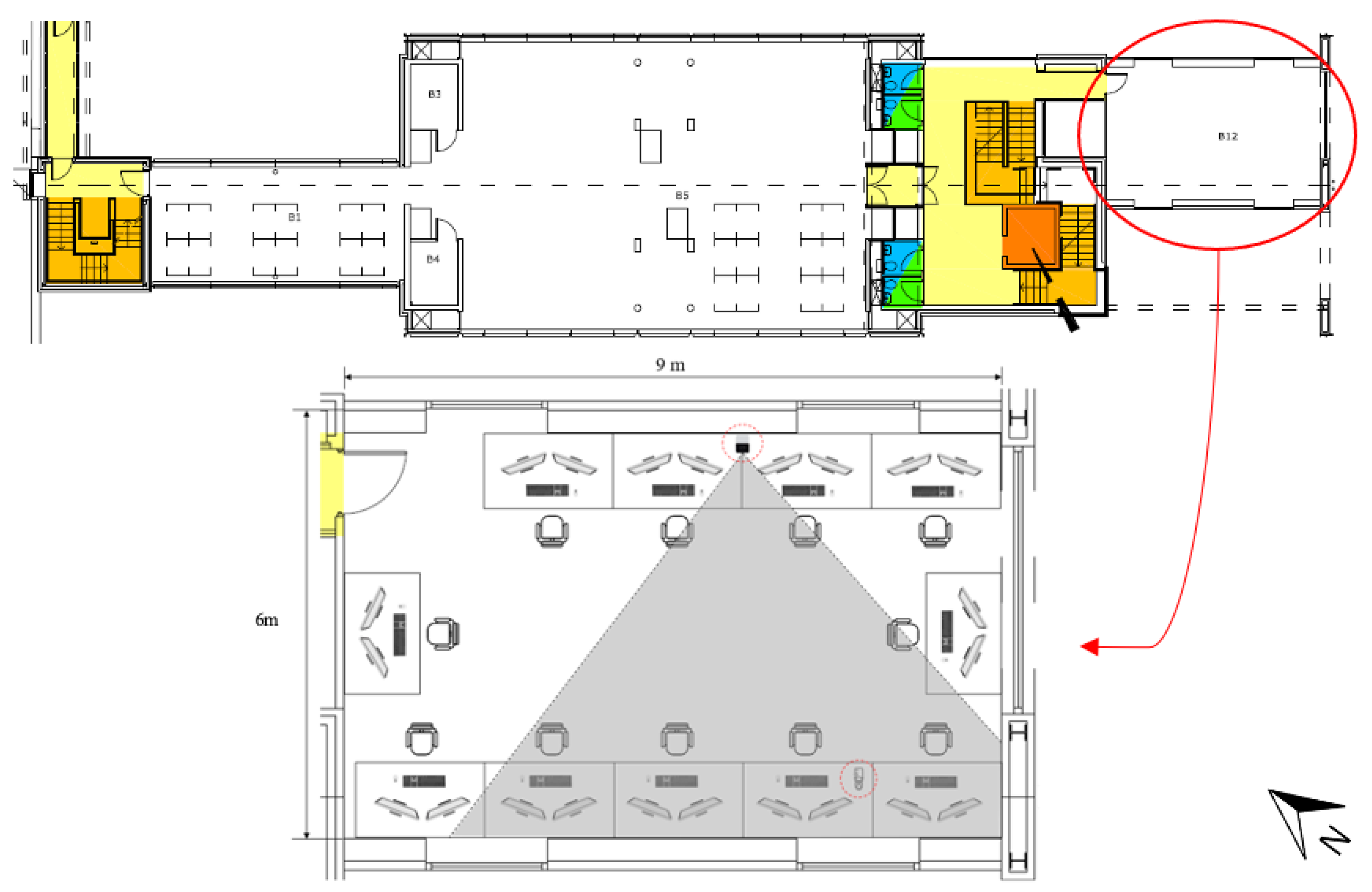
2.3.1. Experiment Setup and Case Study Building
2.3.2. Live Detection and Deep Learning Influenced Profile (DLIP) Formation
2.4. Conditions for Framework Performance and Analysis
2.4.1. Detection Performance Evaluation
2.4.2. Heat Gain Calculation
Equipment
Occupancy
2.4.3. Building Energy Simulation and Test Scenarios
Building Energy Simulation Model
Test Scenarios
3. Results and Discussion
3.1. Deep Learning Model Training and Evaluation
3.2. Detection Performance and Profiles
3.2.1. Detection Performance
3.2.2. Comparison between the Static and DLIP Profile
3.3. Building Energy Performance Analysis
3.3.1. Internal Heat Gains
3.3.2. Heating and Cooling Demand
4. Conclusions and Future Works
Author Contributions
Funding
Institutional Review Board Statement
Informed Consent Statement
Data Availability Statement
Conflicts of Interest
Abbreviations
| AI | Artificial Intelligence |
| ASHRAE | American Society of Heating, Refrigerating and Air-Conditioning Engineers |
| BES | Building Energy Simulation |
| BREEAM | Building Research Establishment Environmental Assessment Method |
| CIBSE | Chartered Institution of Building Services Engineers |
| CNN | Convolutional Neural Network |
| DLIP | Deep learning influenced profile |
| FN | False Negative |
| FP | False Positive |
| HVAC | Heating, Ventilation and Air-Conditioning |
| PIR | Passive Infrared |
| RCNN | Region-based Convolutional Neural Network |
| RoI | Region of Interest |
| TN | True Negative |
| TP | True Positive |
References
- IPCC. Contribution of Working Group III to the Fifth Assessment Report of the Intergovernmental Panel on Climate Change, Climate Change 2014: Mitigation of Climate Change; Cambridge University Press: Cambridge, UK; New York, NY, USA, 2014. [Google Scholar]
- International Energy Agency. Transition to Sustainable Buildings, Strategies and Opportunities to 2050; International Energy Agency: Paris, France, 2013. [Google Scholar]
- Congedo, P.M.; Baglivo, C.; D’Agostino, D.; Zacà, I. Cost-optimal design for nearly zero energy office buildings located in warm climates. Energy 2015, 91, 967–982. [Google Scholar] [CrossRef]
- Yang, L.; Yan, H.; Lam, J.C. Thermal comfort and building energy consumption implications—A review. Appl. Energy 2014, 115, 164–173. [Google Scholar] [CrossRef]
- Lu, S.; Li, J.; Lin, B. Reliability analysis of an energy-based form optimization of office buildings under uncertainties in envelope and occupant parameters. Energy Build. 2020, 209, 109707. [Google Scholar] [CrossRef]
- Mansor, R.; Sheau-Ting, L. Criteria for occupant well-being: A qualitative study of Malaysian office buildings. Build. Environ. 2020, 186, 197364. [Google Scholar] [CrossRef]
- Tien, P.W.; Calautit, J.K.; Darkwa, J.; Wood, C.; Wei, S.; Pantua, C.A.J.; Xu, W. A deep learning framework for energy management and optimisation of HVAC systems. In Proceedings of the IOP Conference Series: Earth and Environmental Science, Bangkok, Thailand, 11–14 December 2019. [Google Scholar] [CrossRef]
- Wei, S.; Calautit, J.K. Development of deep learning-based equipment heat load detection for energy demand estimation and investigation of the impact of illumination. Int. J. Energy Res. 2020, 1–18. [Google Scholar] [CrossRef]
- Hong, T.; Yan, D.; D’Oca, S.; Chen, C. Ten questions concerning occupant behavior in buildings: The big picture. Build. Environ. 2017, 114, 518–530. [Google Scholar] [CrossRef]
- Dong, J.; Winstead, C.; Nutaro, J.; Kuruganti, T. Occupancy-Based HVAC Control with Short-Term Occupancy Prediction Algorithms for Energy-Efficient Buildings. Energies 2018, 11, 2427. [Google Scholar] [CrossRef]
- Kwok, S.S.; Lee, E.W. A study of the importance of occupancy to building cooling load in prediction by the intelligent approach. Energy Convers. Manag. 2011, 52, 2555–2564. [Google Scholar] [CrossRef]
- Mahdavi, A.; Mohammadi, A.; Kabir, E.; Lambeva, L. Occupants’ operation of lighting and shading systems in office buildings. J. Build. Perform. Simul. 2008, 1, 57–65. [Google Scholar] [CrossRef]
- Peng, Y.; Rysanek, A.; Nagy, Z.; Schlüter, A. Occupancy learning-based demand-driven cooling control for office spaces. Build. Environ. 2017, 122, 145–160. [Google Scholar] [CrossRef]
- Masoso, O.T.; Grobler, L.J. The dark side of occupants’ behaviour on building energy use. Energy Build. 2010, 42, 173–177. [Google Scholar] [CrossRef]
- Sun, B.; Luh, P.B.; Jia, Q.S.; Jiang, Z.; Wang, F.; Song, C. Building energy management: Integrated control of active and passive heating, cooling, lighting, shading, and ventilation systems. IEEE Trans. Autom. Sci. Eng. 2013, 10, 588–602. [Google Scholar] [CrossRef]
- Valdiserri, P.; Biserni, C.; Garai, M. Energy performance of a ventilation system for an apartment according to the Italian regulation. Int. J. Energy Environ. Eng. 2016, 7, 353–359. [Google Scholar] [CrossRef]
- Tzempelikos, A.; Athienitis, A.K. The impact of shading design and control on building cooling and lighting demand. Sol. Energy 2017, 81, 369–382. [Google Scholar] [CrossRef]
- Sharma, I.; Dong, J.; Malikopoulos, A.A.; Street, M.; Ostrowski, J.; Kuruganti, T.; Jackson, R. A modeling framework for optimal energy management of a residential building. Energy Build. 2016, 130, 55–63. [Google Scholar] [CrossRef]
- Shih, H.C. A robust occupancy detection and tracking algorithm for the automatic monitoring and commissioning of a building. Energy Build. 2014, 77, 270–280. [Google Scholar] [CrossRef]
- Erickson, V.L.; Cerpa, A.E. Occupancy based demand response HVAC control strategy. In Proceedings of the 2nd ACM Workshop on Embedded Sensing Systems for Energy-Efficiency in Building, Zurich, Switzerland, 3–5 November 2010; pp. 7–12. [Google Scholar]
- Gunay, H.B.; O’Brien, W.; Beausoleil-Morrison, I. Development of an occupancy learning algorithm for terminal heating and cooling units. Build. Environ. 2015, 93 Pt 2, 71–85. [Google Scholar] [CrossRef]
- Labeodan, T.; Zeiler, W.; Boxem, G.; Zhao, Y. Occupancy measurement in commercial office buildings for demand-driven control applications—A survey and detection system evaluation. Energy Build. 2015, 93, 303–314. [Google Scholar] [CrossRef]
- Nagy, Z.; Yong, F.Y.; Frei, M.; Schlueter, A. Occupant centered lighting control for comfort and energy efficient building operation. Energy Build. 2015, 94, 100–108. [Google Scholar] [CrossRef]
- Federspiel, C.C. Estimating the inputs of gas transport processes in buildings Control Syst. Technol. IEEE Trans. 1997, 5, 480–489. [Google Scholar] [CrossRef]
- Benezeth, Y.; Laurent, H.; Emile, B.; Rosenberger, C. Towards a sensor for detecting human presence and characterising activity. Energy Build. 2010, 43, 305–314. [Google Scholar] [CrossRef]
- Zou, H.; Zhou, Y.; Yang, J.; Spanos, C.J. Towards occupant activity driven smart buildings via WiFi-enabled IoT devices and deep learning. Energy Build. 2018, 177, 12–22. [Google Scholar] [CrossRef]
- Tien, P.W.; Wei, S.; Calautit, J.K.; Darkwa, J.; Wood, C. A vision-based deep learning approach for the detection and prediction of occupancy heat emissions for demand-driven control solutions. Energy Build. 2020, 226, 110386. [Google Scholar] [CrossRef]
- Wei, S.; Tien, P.W.; Calautit, J.K.; Wu, Y.; Boukhanouf, R. Vision-based detection and prediction of equipment heat gains in commercial office buildings using a deep learning method. Appl. Energy 2020, 277, 115506. [Google Scholar] [CrossRef]
- Tien, P.W.; Wei, S.; Calautit, J.; Darkwa, J.; Wood, C. Occupancy heat gain detection and prediction using deep learning approach for reducing building energy demand. J. Sustain. Dev. Energy Water Environ. Syst. 2020. [Google Scholar] [CrossRef]
- Ramanan, D.; Forsyth, D.A. Finding and tracking people from the bottom up. In Proceedings of the IEEE Computer Society Conference on Computer Vision and Pattern Recognition, Madison, WI, USA, 18–20 June 2003; Volumn 2, pp. II-467–II-474. [Google Scholar] [CrossRef]
- Simonyan, K.; Zisserman, A. Very Deep Convolutional Networks for Large-Scale Image Recognition. arXiv 2014, arXiv:1409.1556. [Google Scholar]
- Girshick, R.; Donahue, J.; Darrell, T.; Malik, J. Rich Feature Hierarchies for Accurate Object Detection and Semantic Segmentation. In Proceedings of the 2014 IEEE Conference on Computer Vision and Pattern Recognition, Columbus, OH, USA, 24–27 June 2014. [Google Scholar]
- Yuan, L.; Qu, Z.; Zhao, Y.; Zhang, H.; Nian, Q. A convolutional neural network based on TensorFlow for face recognition. In Proceedings of the 2017 IEEE 2nd Advanced Information Technology, Electronic and Automation Control Conference (IAEAC), Chongqing, China, 25–26 March 2017. [Google Scholar]
- Zou, J.; Zhao, Q.; Yang, W.; Wang, F. Occupancy detection in the office by analysing surveillance videos and its application to building energy conservation. Energy Build. 2017, 152, 385–398. [Google Scholar] [CrossRef]
- Markovic, R.; Grintal, E.; Wölki, D.; Frisch, J.; van Treeck, C. Window opening model using deep learning methods. Build. Environ. 2018, 145, 319–329. [Google Scholar] [CrossRef]
- Google Trends, Comparison between Search Terms: Pytorch, Tensorflow and Keras between February 2015–2020. 2020. Available online: https://trends.google.com/trends/explore?date=2014-10-05%202019-05-15&q=Machine%20Learning,Deep%20Learning,IoT,Artificial%20intelligence (accessed on 9 July 2020).
- Fonnegra, R.D.; Blair, B.; Díaz, G.M. Performance comparison of deep learning frameworks in image classification problems using convolutional and recurrent networks. In Proceedings of the 2017 IEEE Colombian Conference on Communications and Computing (COLCOM), Cartagena, Colombia, 16–18 August 2017; pp. 1–6. [Google Scholar]
- TensorFlow. TensorFlow: An End-to-End Open Source Machine Learning Platform. 2020. Available online: https://www.tensorflow.org/ (accessed on 9 July 2020).
- Vázquez-Canteli, J.R.; Ulyanin, S.; Kämpf, J.; Nagy, Z. Fusing TensorFlow with building energy simulation for intelligent energy management in smart cities. Sustain. Cities Soc. 2019, 45, 243–257. [Google Scholar] [CrossRef]
- Jo, H.; Yoon, Y.I. Intelligent smart home energy efficiency model using artificial TensorFlow engine. Hum. Cent. Comput. Inf. Sci. 2018, 8, 1–18. [Google Scholar] [CrossRef]
- Huang, J.; Sun, C.; Zhu, M.; Korattikara, A.; Fathi, A.; Fischer, I.; Wojna, Z.; Song, Y.; Guadarrama, S.; Murphy, K. Speed/accuracy trade-offs for modern convolutional object detectors. arXiv 2016, arXiv:1611.10012. [Google Scholar]
- Galvez, R.L.; Bandala, A.A.; Dadios, E.P.; Vicerra, R.R.P.; Maningo, J.M.Z. Object Detection Using Convolutional Neural Networks. In Proceedings of the TENCON 2018—2018 IEEE Region 10 Conference, Jeju Island, Korea, 28–31 October 2018; pp. 2023–2027. [Google Scholar] [CrossRef]
- Phadnis, R.; Mishra, J.; Bendale, S. Objects Talk—Object Detection and Pattern Tracking Using TensorFlow. In Proceedings of the 2018 Second International Conference on Inventive Communication and Computational Technologies (ICICCT), Coimbatore, India, 20–21 April 2018; pp. 1216–1219. [Google Scholar] [CrossRef]
- Kim, S.; Kang, S.; Ryu, K.R.; Song, G. Real-time occupancy prediction in a large exhibition hall using deep learning approach. Energy Build. 2019, 199, 216–222. [Google Scholar] [CrossRef]
- Ng, A. Coursera. Model Selection and Train/Validation/Test Sets. 2019. Available online: https://www.coursera.org/lecture/machine-learning/model-selection-and-train-validation-test-sets-QGKbr (accessed on 9 July 2020).
- Tzutalin, LabelImg. 2015. Available online: https://github.com/tzutalin/labelImg (accessed on 9 July 2020).
- He, K.; Zhang, X.; Ren, S.; Sun, J. Spatial Pyramid Pooling in Deep Convolutional Networks for Visual Recognition. IEEE Trans. Pattern Anal. Mach. Intell. 2015, 37, 1904–1916. [Google Scholar] [CrossRef] [PubMed]
- Girshick, R. Fast R-CNN. In Proceedings of the 2015 IEEE International Conference on Computer Vision (ICCV), Santiago, Chile, 7–13 December 2015. [Google Scholar]
- Ren, S.; He, K.; Girshick, R.; Sun, J. Faster R-CNN: Towards Real-Time Object Detection with Region Proposal Networks. IEEE Trans. Pattern Anal. Mach. Intell. 2015, 39, 1137–1149. [Google Scholar] [CrossRef] [PubMed]
- John, P. Review Paper on Object Detection using Deep Learning—Understanding different Algorithms and Models to Design Effective Object Detection Network. Int. J. Res. Appl. Sci. Eng. Technol. 2019, 7, 1684–1689. [Google Scholar] [CrossRef]
- IESVE Integrated Environmental Solutions. 2019. Available online: https://www.iesve.com/ (accessed on 9 July 2020).
- CIBSE Chartered Institution of Building Services Engineer. Environmental Design: CIBSE Guide, A; CIBSE: London, UK, 2015. [Google Scholar]
- Shahzad, S.; Calautit, J.K.; Calautit, K.; Hughes, B.; Aquino, A.I. Advanced personal comfort system (APCS) for the workplace: A review and case study. Energy Build. 2018, 173, 689–709. [Google Scholar] [CrossRef]
- Shahzad, S.; Calautit, K.; Wei, S.; Tien, P.W.; Hughes, B. Analysis of the Thermal Comfort and Energy Performance of a Thermal Chair for Open Plan Office. J. Sustain. Dev. Energy Water Environ. Syst. 2020, 8, 373–395. [Google Scholar] [CrossRef]
- ASHRAE. Standard 55—Thermal Environmental Conditions for Human Occupancy; ASHRAE: Atlanta, GA, USA, 2017. [Google Scholar]
- ASHRAE. ANSI/ASHRAE/IES Standard 90.1-2019—Energy Standard for Buildings Except Low-Rise Residential Buildings; ASHRAE: Atlanta, GA, USA, 2019. [Google Scholar]
- TensorFlow, Tensorflow Detection Model Zoo. 2020. Available online: https://github.com/tensorflow/models/blob/master/research/object_detection/g3doc/detection_model_zoo.md (accessed on 9 July 2020).





















| Office Equipment | No. of Images | ||
|---|---|---|---|
| Training Images | Testing Images | Total Images | |
| PC Monitor | 400 | 80 | 480 |
| Occupant Activity | No. of Images | ||
|---|---|---|---|
| Training Images | Testing Images | Total Images | |
| None | 100 | 20 | 120 |
| Napping | 100 | 20 | 120 |
| Sitting | 100 | 20 | 120 |
| Standing | 100 | 20 | 120 |
| Walking | 100 | 20 | 120 |
| Total | 500 | 100 | |
| Occupancy Activity | Rate of Heat Emission | ||
|---|---|---|---|
| Total (W) | Sensible (W) | Latent (W) | |
| None | 0 | 0 | 0 |
| Napping | 105 | 70 | 35 |
| Sitting | 115 | 75 | 45 |
| Standing | 130 | 75 | 55 |
| Walking | 145 | 75 | 70 |
| Scenario 1: Constant Typical | Scenario 2: Equipment Only | Scenario 3: Occupancy Only | Scenario 4: Both | |
|---|---|---|---|---|
| Image Representation | ![]() | ![]() | ![]() | ![]() |
| Scenario Description | The deep learning method is not applied | Deep learning equipment detection model used | Deep learning occupancy detection model used | Both equipment and occupancy detection model used |
| Equipment Profile | Typical Static Profile (Figure 8a) | Equipment Deep Learning Influence Profile | Constant Typical (Figure 8a) | Equipment Deep Learning Influence Profile |
| Number of PC Monitor turned on (Equipment) | 8 | Varies according to the actual equipment usage | 8 | Varies according to the actual equipment usage and occupancy |
| Occupancy Profile | Constant Typical Occupancy 2 (Figure 8b) | Constant Typical Occupancy 2 (Figure 8b) | Occupancy Deep Learning Influence Profile | Occupancy Deep Learning Influence Profile |
| Number of occupants’ present in room | 3 | 3 | Varies according to the actual occupancy | Varies according to the actual occupancy |
| Occupancy Internal Gains | Maximum sensible gain: 75 W/person Maximum latent gain: 70 W/person (To meet the maximum total of 145 W/person for the activity of walking) | |||
| Heating Profile | Constant Heating (Room set point temperature, 22 °C during office hours) | |||
| Cooling Profile | Constant Cooling (Room set point temperature, 22 °C during office hours) | |||
| Ventilation Profile | Constant Typical (Maximum ventilation conditions during office hours) | |||
| Training Conditions and Results | Equipment Model | Occupancy Model |
|---|---|---|
| Model Used | Faster RCNN with InceptionV2 | |
| Total Steps | 24,064 | 102,194 |
| Training Duration | 2 h 24 min | 6 h 45 min |
| Average Loss | 0.1 | 0.06 |
| Minimum Loss | 0.02 | 0.000038 |
| Total loss versus the number of training steps | ![]() | |
| Class | Accuracy | Precision | Recall | F1 Score |
|---|---|---|---|---|
| PC Monitor—on | 80.00% | 0.9143 | 0.8600 | 0.8889 |
| Class | Activity | Accuracy | Precision | Recall | F1 Score |
|---|---|---|---|---|---|
| 1 | Napping | 96.88% | 0.9474 | 0.9000 | 0.9231 |
| 2 | None | 98.94% | 0.9524 | 1.000 | 0.9758 |
| 3 | Sitting | 95.88% | 0.8636 | 0.9500 | 0.9048 |
| 4 | Standing | 95.88% | 0.9444 | 0.8500 | 0.8947 |
| 5 | Walking | 97.89% | 0.9500 | 0.9500 | 0.9367 |
| Average for all activities | 97.09% | 0.9316 | 0.9300 | 0.9270 | |
Publisher’s Note: MDPI stays neutral with regard to jurisdictional claims in published maps and institutional affiliations. |
© 2020 by the authors. Licensee MDPI, Basel, Switzerland. This article is an open access article distributed under the terms and conditions of the Creative Commons Attribution (CC BY) license (http://creativecommons.org/licenses/by/4.0/).
Share and Cite
Tien, P.W.; Wei, S.; Calautit, J. A Computer Vision-Based Occupancy and Equipment Usage Detection Approach for Reducing Building Energy Demand. Energies 2021, 14, 156. https://doi.org/10.3390/en14010156
Tien PW, Wei S, Calautit J. A Computer Vision-Based Occupancy and Equipment Usage Detection Approach for Reducing Building Energy Demand. Energies. 2021; 14(1):156. https://doi.org/10.3390/en14010156
Chicago/Turabian StyleTien, Paige Wenbin, Shuangyu Wei, and John Calautit. 2021. "A Computer Vision-Based Occupancy and Equipment Usage Detection Approach for Reducing Building Energy Demand" Energies 14, no. 1: 156. https://doi.org/10.3390/en14010156
APA StyleTien, P. W., Wei, S., & Calautit, J. (2021). A Computer Vision-Based Occupancy and Equipment Usage Detection Approach for Reducing Building Energy Demand. Energies, 14(1), 156. https://doi.org/10.3390/en14010156






