Results of Large-Scale Propagation Models in Campus Corridor at 3.7 and 28 GHz
Abstract
:1. Introduction
- We measured the wave propagation in a 90–260 m-long corridor in the university campus, and the measured path losses were modeled with the CI, CIF, FI, and ABG methods;
- The parameters of the CI, CIF, FI, and ABG models were calculated using the MMSE-based optimization method;
- The resulted coefficients of CI, CIF, FI, and ABG models were analyzed.
2. Measurement Campaign
2.1. Measurement Equipment
2.1.1. Signal Generators
2.1.2. Signal Analyzer Properties
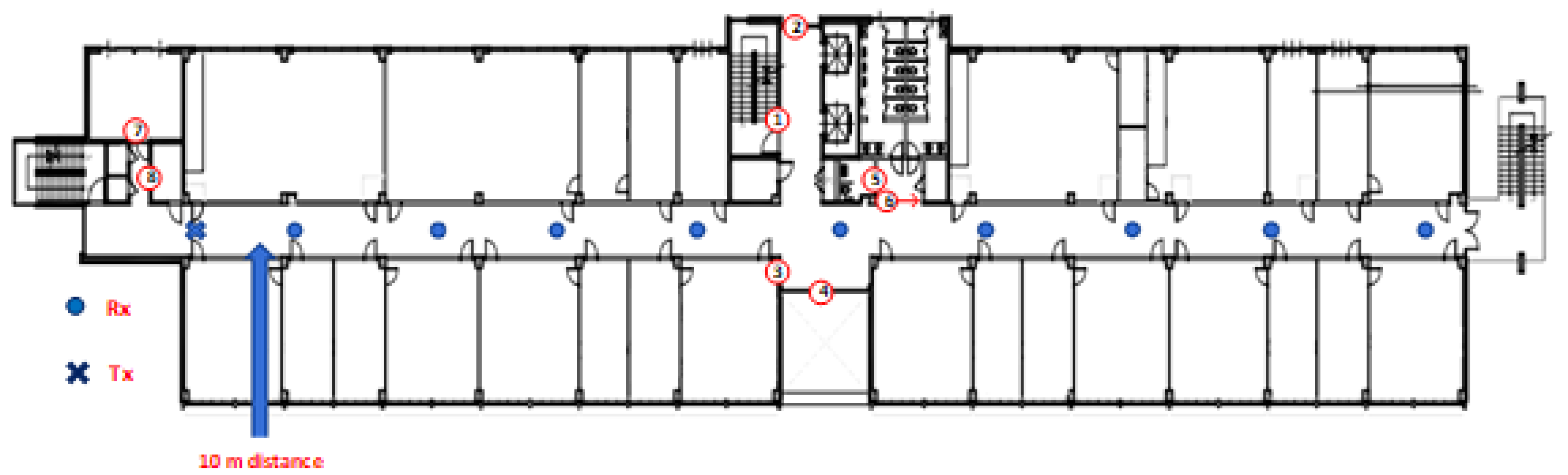
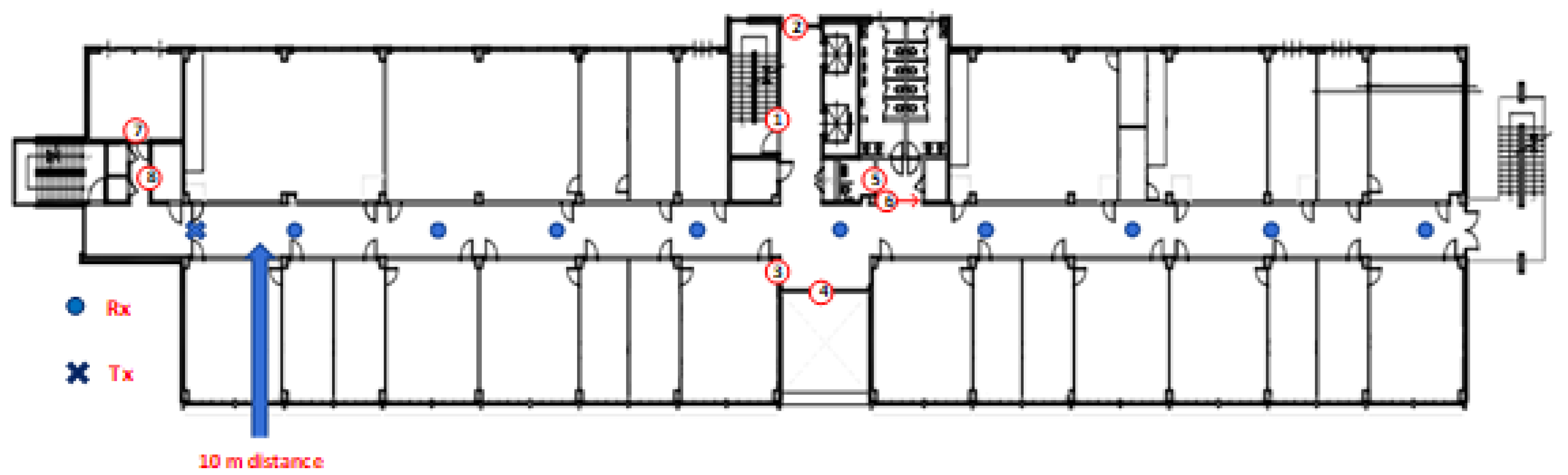
2.2. Environmental Scenario Descriptions of the Measurement Campaigns
2.2.1. Corridor Wall and Floor Materials
2.2.2. Corridor Shape Irregularities
2.2.3. Measurement Caution
2.2.4. Campaigns’ Description
2.3. Data Pre-Processing
3. Path Loss Prediction Models
3.1. Single-Frequency Propagation
3.1.1. CI Model
3.1.2. FI Model
3.2. Multi-Frequency Propagation
3.2.1. CIF Model
CIF Method: MMSE-Based Parameters
CIF Method: MMSE-Based Parameters
3.2.2. ABG Model
4. Analysis of the Large-Scale Path Loss Models
5. Results and Discussions
6. Conclusions
Author Contributions
Funding
Institutional Review Board Statement
Informed Consent Statement
Data Availability Statement
Conflicts of Interest
References
- White Paper, Cisco Public. Cisco Annual Internet Report (2018–2023). 2020. Available online: https://www.cisco.com/c/en/us/solutions/collateral/executive-perspectives/annual-internet-report/white-paper-c11-741490.pdf (accessed on 18 November 2021).
- Jiang, T.; Zhang, J.; Tang, P.; Tian, L.; Zheng, Y.; Dou, J.; Asplund, H.; Raschkowski, L.; D’Errico, R.; Jamsa, T. 3GPP Standardized 5G Channel Model for IIoT Scenarios: A Survey. IEEE Internet Things J. 2021, 8, 8799–8815. [Google Scholar] [CrossRef]
- Wang, X.; Kong, L.; Kong, F.; Qiu, F.; Xia, M.; Arnon, S.; Chen, G. Millimeter Wave Communication: A Comprehensive Survey. IEEE Commun. Surv. Tutor. 2018, 20, 1616–1653. [Google Scholar] [CrossRef]
- Varsier, N.; Dufrene, L.A.; Dumay, M.; Lampin, Q.; Schwoerer, J. A 5G New Radio for Balanced and Mixed IoT Use Cases: Challenges and Key Enablers in FR1 Band. IEEE Commun. Mag. 2021, 59, 82–87. [Google Scholar] [CrossRef]
- Rappaport, T.S.; Xing, Y.; MacCartney, G.R.; Molisch, A.F.; Mellios, E.; Zhang, J. Overview of Millimeter Wave Communications for Fifth-Generation (5G) Wireless Networks—With a Focus on Propagation Models. IEEE Trans. Antennas Propag. 2017, 65, 6213–6230. [Google Scholar] [CrossRef]
- Liu, D.; Wang, L.; Chen, Y.; Elkashlan, M.; Wong, K.K.; Schober, R.; Hanzo, L. User Association in 5G Networks: A Survey and an Outlook. IEEE Commun. Surv. Tutor. 2016, 18, 1018–1044. [Google Scholar] [CrossRef] [Green Version]
- Rappaport, T.S.; MacCartney, G.R.; Samimi, M.K.; Sun, S. Wideband Millimeter-Wave Propagation Measurements and Channel Models for Future Wireless Communication System Design. IEEE Trans. Commun. 2015, 63, 3029–3056. [Google Scholar] [CrossRef]
- Pi, Z.; Khan, F. An introduction to millimeter-wave mobile broadband systems. IEEE Commun. Mag. 2011, 49, 101–107. [Google Scholar] [CrossRef]
- Elkashlan, M.; Duong, T.Q.; Chen, H.H. Millimeter-wave communications for 5G: Fundamentals: Part I [Guest Editorial]. IEEE Commun. Mag. 2014, 52, 52–54. [Google Scholar] [CrossRef]
- He, H.; Du, Q.; Song, H.; Li, W.; Wang, Y.; Ren, P. Traffic-aware ACB scheme for massive access in machine-to-machine networks. In Proceedings of the 2015 IEEE International Conference on Communications (ICC), London, UK, 8–12 June 2015. [Google Scholar] [CrossRef]
- Du, Q.; Song, H.; Xu, Q.; Ren, P.; Sun, L. Interference-controlled D2D routing aided by knowledge extraction at cellular infrastructure towards ubiquitous CPS. Pers. Ubiquitous Comput. 2015, 19, 1033–1043. [Google Scholar] [CrossRef]
- Rodriguez, I.; Nguyen, H.C.; Jorgensen, N.T.K.; Sorensen, T.B.; Mogensen, P. Radio Propagation into Modern Buildings: Attenuation Measurements in the Range from 800 MHz to 18 GHz. In Proceedings of the 2014 IEEE 80th Vehicular Technology Conference (VTC2014-Fall), Vancouver, BC, Canada, 14–17 September 2014. [Google Scholar] [CrossRef] [Green Version]
- Larsson, C.; Harrysson, F.; Olsson, B.E.; Berg, J.E. An outdoor-to-indoor propagation scenario at 28 GHz. In Proceedings of the 8th European Conference on Antennas and Propagation (EuCAP 2014), The Hague, The Netherlands, 6–11 April 2014. [Google Scholar] [CrossRef]
- Diakhate, C.A.L.; Conrat, J.M.; Cousin, J.C.; Sibille, A. Millimeter-wave outdoor-to-indoor channel measurements at 3, 10, 17 and 60 GHz. In Proceedings of the 2017 11th European Conference on Antennas and Propagation (EUCAP), Paris, France, 19–24 March 2017. [Google Scholar] [CrossRef]
- Lee, J.; Kim, K.W.; Kim, M.D.; Park, J.J. Multipath Characteristics of Outdoor-to-Indoor Propagation Based on 32-GHz Measurements. In Proceedings of the 2020 14th European Conference on Antennas and Propagation (EuCAP), Copenhagen, Denmark, 15–20 March 2020. [Google Scholar] [CrossRef]
- Haneda, K.; Tian, L.; Zheng, Y.; Ghosh, A.; Thomas, T.; Nakamura, T.; Kakishima, Y.; Imai, T.; Papadopoulas, H.; Rappaport, T.S.; et al. 5G Channel Model for Bands up to 100 GHz. Available online: http://www.5gworkshops.com/2015/5G_Channel_Model_for_bands_up_to100_GHz(2015-12-6).pdf (accessed on 18 November 2021).
- Deng, S.; MacCartney, G.R.; Rappaport, T.S. Indoor and Outdoor 5G Diffraction Measurements and Models at 10, 20, and 26 GHz. In Proceedings of the 2016 IEEE Global Communications Conference (GLOBECOM), Washington, DC, USA, 4–8 December 2016. [Google Scholar] [CrossRef]
- Niu, Y.; Li, Y.; Jin, D.; Su, L.; Vasilakos, A.V. A survey of millimeter wave communications (mmWave) for 5G: Opportunities and challenges. Wirel. Netw. 2015, 21, 2657–2676. [Google Scholar] [CrossRef]
- Jämsä, T.; Kyösti, P.; Kusume, K. Project: Mobile and wireless communications Enablers for the Twenty-twenty Information Society. 2014, pp. 1–153. Available online: https://metis2020.com/wp-content/uploads/deliverables/METIS_D1.2_v1.pdf (accessed on 18 November 2021).
- Papazian, P.B.; Gentile, C.; Remley, K.A.; Senic, J.; Golmie, N. A Radio Channel Sounder for Mobile Millimeter-Wave Communications: System Implementation and Measurement Assessment. IEEE Trans. Microw. Theory Tech. 2016, 64, 2924–2932. [Google Scholar] [CrossRef]
- Batalha, I.D.S.; Lopes, A.V.R.; Araujo, J.P.L.; Castro, B.L.S.; Barros, F.J.B.; Cavalcante, G.P.D.S.; Pelaes, E.G. Indoor Corridor and Propagation Measurements and Channel Models at 8, 9, 10 and 11 GHz. IEEE Access 2019, 7, 55005–55021. [Google Scholar] [CrossRef]
- Okumura, Y. Field strength and its variability in VHF and UHF land-mobile radio service. Rev. Electr. Commun. Lab. 1968, 16, 825–873. [Google Scholar]
- Mogensen, P.E.; Wigard, J. COST Action 231: Digital Mobile Radio Towards Future Generation System, Final Report. In Section 5.2: On Antenna and Frequency Diversity in GSM. Section 5.3: Capacity Study of Frequency Hopping GSM Network; EU Publications: Rue Mercier, Luxembourg, 1999. [Google Scholar]
- Phillips, C.; Sicker, D.; Grunwald, D. A Survey of Wireless Path Loss Prediction and Coverage Mapping Methods. IEEE Commun. Surv. Tutor. 2013, 15, 255–270. [Google Scholar] [CrossRef]
- Haneda, K.; Jarvelainen, J.; Karttunen, A.; Kyro, M.; Putkonen, J. A Statistical Spatio-Temporal Radio Channel Model for Large Indoor Environments at 60 and 70 GHz. IEEE Trans. Antennas Propag. 2015, 63, 2694–2704. [Google Scholar] [CrossRef]
- Oyie, N.O.; Afullo, T.J.O. Measurements and Analysis of Large-Scale Path Loss Model at 14 and 22 GHz in Indoor Corridor. IEEE Access 2018, 6, 17205–17214. [Google Scholar] [CrossRef]
- del Valle, D.P.; Mendo, L.; Riera, J.M.; del Pino, P.G. Path Loss Results in an Indoor Corridor Scenario at the 26, 32 and 39 GHz Millimeter-Wave Bands. In Proceedings of the 2021 15th European Conference on Antennas and Propagation (EuCAP), Dusseldorf, Germany, 22–26 March 2021. [Google Scholar] [CrossRef]
- Maccartney, G.R.; Rappaport, T.S.; Sun, S.; Deng, S. Indoor Office Wideband Millimeter-Wave Propagation Measurements and Channel Models at 28 and 73 GHz for Ultra-Dense 5G Wireless Networks. IEEE Access 2015, 3, 2388–2424. [Google Scholar] [CrossRef]
- Rappaport, T.S. Wireless Communications: Principles and Practice, 2nd ed.; Prentice-Hal: Upper Saddle River, NJ, USA, 2002. [Google Scholar]
- Rath, H.K.; Timmadasari, S.; Panigrahi, B.; Simha, A. Realistic indoor path loss modeling for regular WiFi operations in India. In Proceedings of the 2017 Twenty-Third National Conference on Communications (NCC), Chennai, India, 2–4 March 2017. [Google Scholar] [CrossRef] [Green Version]
- Geng, S.; Vainikainen, P. Millimeter-Wave Propagation in Indoor Corridors. IEEE Antennas Wirel. Propag. Lett. 2009, 8, 1242–1245. [Google Scholar] [CrossRef]
- Ren, A.; Liu, Y.; Li, S. Simulation and Analysis of Millimeter-Wave Propagation Characteristics at 60 GHz in Corridor Environment. In Proceedings of the 2020 International Conference on Microwave and Millimeter Wave Technology (ICMMT), Shanghai, China, 20–23 September 2020. [Google Scholar] [CrossRef]
- Chizhik, D.; Du, J.; Feick, R.; Rodriguez, M.; Castro, G.; Valenzuela, R.A. Path Loss and Directional Gain Measurements at 28 GHz for Non-Line-of-Sight Coverage of Indoors With Corridors. IEEE Trans. Antennas Propag. 2020, 68, 4820–4830. [Google Scholar] [CrossRef] [Green Version]
- Khalily, M.; Taheri, S.; Payami, S.; Ghoraishi, M.; Tafazolli, R. Indoor wideband directional millimeter wave channel measurements and analysis at 26 GHz, 32 GHz, and 39 GHz. Trans. Emerg. Telecommun. Technol. 2018, 29, e3311. [Google Scholar] [CrossRef]
- Aborahama, M.; Zakaria, A.; Ismail, M.H.; El-Bardicy, M.; El-Tarhuni, M.; Hatahet, Y. Large-scale channel characterization at 28 GHz on a university campus in the United Arab Emirates. Telecommun. Syst. 2020, 74, 185–199. [Google Scholar] [CrossRef]
- Xu, H.; Kukshya, V.; Rappaport, T. Spatial and temporal characteristics of 60-GHz indoor channels. IEEE J. Sel. Areas Commun. 2002, 20, 620–630. [Google Scholar] [CrossRef] [Green Version]
- Al-Samman, A.M.; Rahman, T.A.; Azmi, M.H.; Hindia, M.N.; Khan, I.; Hanafi, E. Statistical Modelling and Characterization of Experimental mm-Wave Indoor Channels for Future 5G Wireless Communication Networks. PLoS ONE 2016, 11, e0163034. [Google Scholar] [CrossRef] [PubMed]
- Haneda, K.; Tian, L.; Asplund, H.; Li, J.; Wang, Y.; Steer, D.; Li, C.; Balercia, T.; Lee, S.; Kim, Y.; et al. Indoor 5G 3GPP-like channel models for office and shopping mall environments. In Proceedings of the 2016 IEEE International Conference on Communications Workshops (ICC), Kuala Lumpur, Malaysia, 23–27 May 2016. [Google Scholar] [CrossRef] [Green Version]
- Al-Samman, A.M.; Rahman, T.A.; Al-Hadhrami, T.; Daho, A.; Hindia, M.N.; Azmi, M.H.; Dimyati, K.; Alazab, M. Comparative Study of Indoor Propagation Model Below and Above 6 GHz for 5G Wireless Networks. Electronics 2019, 8, 44. [Google Scholar] [CrossRef] [Green Version]
- Pascual-García, J.; Martinez-Ingles, M.T.; Gaillot, D.P.; Molina-García-Pardo, J.M.; Egea-López, E. Experimental wireless channel analysis between 1 and 40 GHz in an indoor NLoS corridor environment. In Proceedings of the 2019 International Symposium on Antennas and Propagation (ISAP), Xi’an, China, 27–30 October 2019; pp. 1–3. [Google Scholar]
- Dupleich, D.; Müller, R.; Skoblikov, S.; Schneider, C.; Luo, J.; Del Galdo, G.; Thomä, R. Multi-band indoor propagation characterization by measurements from 6 to 60 GHz. In Proceedings of the 2019 13th European Conference on Antennas and Propagation (EuCAP), Krakow, Poland, 31 March–5 April 2019; pp. 1–5. [Google Scholar]
- Hafner, S.; Dupleich, D.A.; Muller, R.; Luo, J.; Schulz, E.; Schneider, C.; Thoma, R.S.; Lu, X.; Wang, T. Characterisation of Channel Measurements at 70 GHz in Indoor Femtocells. In Proceedings of the 2015 IEEE 81st Vehicular Technology Conference (VTC Spring), Glasgow, UK, 11–14 May 2015. [Google Scholar] [CrossRef]
- Rappaport, T.S.; Sun, S.; Mayzus, R.; Zhao, H.; Azar, Y.; Wang, K.; Wong, G.N.; Schulz, J.K.; Samimi, M.; Gutierrez, F. Millimeter Wave Mobile Communications for 5G Cellular: It Will Work! IEEE Access 2013, 1, 335–349. [Google Scholar] [CrossRef]
- Nurmela, V.; Karttunen, A.; Roivainen, A.; Raschkowski, L.; Hovinen, V.; Eb, J.Y.; Omaki, N.; Kusume, K.; Hekkala, A.; Weiler, R.; et al. Deliverable D1. 4 METIS channel models. Project: Mobile and wireless communications Enablers for the Twenty-twenty Information Society. 2015, pp. 1–220. Available online: https://metis2020.com/wp-content/uploads/deliverables/METIS_D1.4_v1.0.pdf (accessed on 18 November 2021).
- Fan, W.; Carton, I.; Nielsen, J.Ø.; Olesen, K.; Pedersen, G.F. Measured wideband characteristics of indoor channels at centimetric and millimetric bands. EURASIP J. Wirel. Commun. Netw. 2016, 2016, 58. [Google Scholar] [CrossRef] [Green Version]
- Zhang, G.; Saito, K.; Fan, W.; Cai, X.; Hanpinitsak, P.; Takada, J.I.; Pedersen, G.F. Experimental Characterization of Millimeter-Wave Indoor Propagation Channels at 28 GHz. IEEE Access 2018, 6, 76516–76526. [Google Scholar] [CrossRef]
- ITU Radio Propagation Series. Rec. P.1238-10. Propagation Data and Prediction Methods for the Planning of Indoor Radiocommunication Systems and Radio Local Area Networks in the Frequency Range 300 MHz to 450 GHz; Report; ITU-R: Genève, Switzerland, 2019. [Google Scholar]
- Su-hyun, S. Is ‘real 5G’ Elusive Goal for Korea? The Korea Herald by Herald Corporation. 2021. Available online: http://www.koreaherald.com/view.php?ud=20210530000162 (accessed on 18 November 2021).
- United States Telecommunications Training Institute. Spectrum Planning at the FCC and Emerging Technology Topics. 2020. Available online: https://www.itu.int/en/ITU-D/Conferences/GSR/2020/Documents/USTTI-ITU_2020-Technolgy-Topics_relelease2_FCC.pdf (accessed on 18 November 2021).
- Product Brochure: Technical Overview. Selecting a Signal Generator. 2021. Available online: https://www.keysight.com/kr/ko/assets/7018-03356/technical-overviews/5990-9956.pdf (accessed on 18 November 2021).
- Product Fact Sheet. M9393A PXIe Performance Vector Signal Analyzer. 2021. Available online: https://www.keysight.com/kr/ko/assets/7018-04297/product-fact-sheets/5991-4035.pdf (accessed on 18 November 2021).
- Chosun University: Attraction. 2019. Available online: https://www3.chosun.ac.kr/bbs/museum/309/198803/artclView.do (accessed on 18 November 2021).
- MacCartney, G.R.; Zhang, J.; Nie, S.; Rappaport, T.S. Path loss models for 5G millimeter wave propagation channels in urban microcells. In Proceedings of the 2013 IEEE Global Communications Conference (GLOBECOM), Atlanta, GA, USA, 9–13 December 2013. [Google Scholar] [CrossRef]
- Winner II. WINNER II Channel Models. 2007. Available online: http://www.ero.dk/93F2FC5C-0C4B-4E44-8931-00A5B05A331B (accessed on 18 November 2021).
- Meredith, J. Spatial Channel Model for Multiple Input Multiple Output (MIMO) Simulations. Tech-invite, Tech Rep. TR 25.996. 2012. Available online: https://www.etsi.org/deliver/etsi_tr/125900_125999/125996/11.00.00_60/tr_125996v110000p.pdf (accessed on 18 November 2021).
- Samimi, M.K.; Rappaport, T.S.; MacCartney, G.R. Probabilistic Omnidirectional Path Loss Models for Millimeter-Wave Outdoor Communications. IEEE Wirel. Commun. Lett. 2015, 4, 357–360. [Google Scholar] [CrossRef]
- Sulyman, A.I.; Nassar, A.T.; Samimi, M.K.; Maccartney, G.R.; Rappaport, T.S.; Alsanie, A. Radio propagation path loss models for 5G cellular networks in the 28 GHz and 38 GHz millimeter-wave bands. IEEE Commun. Mag. 2014, 52, 78–86. [Google Scholar] [CrossRef]
- Piersanti, S.; Annoni, L.A.; Cassioli, D. Millimeter waves channel measurements and path loss models. In Proceedings of the 2012 IEEE International Conference on Communications (ICC), Ottawa, ON, Canada, 10–12 June 2012. [Google Scholar] [CrossRef]
- Sun, S.; Thomas, T.A.; Rappaport, T.S.; Nguyen, H.; Kovacs, I.Z.; Rodriguez, I. Path Loss, Shadow Fading, and Line-of-Sight Probability Models for 5G Urban Macro-Cellular Scenarios. In Proceedings of the 2015 IEEE Globecom Workshops (GC Wkshps), San Diego, CA, USA, 6–10 December 2015. [Google Scholar] [CrossRef] [Green Version]







| Ref. | Link | Frequency (GHz) | Distance (m) |
|---|---|---|---|
| [32] | N/LOS | 60 | 30 |
| [26] | N/LOS | 14/22 | 30 |
| [34] | LOS | 39 | 5/50 |
| [35] | LOS | 28 | 1/60 |
| [36] | N/LOS | 60 | 2.4/60 |
| [27] | N/LOS | 26/32/39 | 65 |
| [37,38,39] | N/LOS | 28/38 | 1/67 |
| [40] | N/LOS | 41/0.5 | 1.35/70 |
| [41,42] | N/LOS | 60/74 | 10/80 |
| [41] | N/LOS | 30 | 10/80 |
| [33] | N/LOS | 28 | <100 |
| This work | N/LOS | 3.7/28 | 90/260 |
| Parameters | 3 GHz | 28 GHz | 28 GHz |
|---|---|---|---|
| Operating frequency (GHz) | 3.7 | 28 | 28 |
| Bandwidth (MHz) | 1 | 1 | 1 |
| Tx antenna | horn | horn | horn |
| Rx antenna | |||
| LNA gain (dB) | 57 | 57 | 57 |
| System gain (dB) | 40 | 40 | 40 |
| Tx antenna height (m) | 1.75 | 1.75 | 1.75 |
| Rx antenna height (m) | 1.5 | 1.5 | 1.5 |
| Tx antenna gain | 10 | 20 | 20 |
| Rx antenna gain | 10 | 20 | 20 |
| Beamwidth | 45–45 | 18–21 | 18–21 |
| Polarization | H | H | H |
| Tx cable loss (dB) | 2.8 | 9.4 | 9.4 |
| Rx cable loss (dB) | 2 | 6.2 | 6.2 |
| Location | Items | Materials |
|---|---|---|
| Main | Floor | Concrete tiles |
| Wall | Concrete + cement | |
| Ceiling | Styrofoam supported by suspended | |
| Door | Metal | |
| Window | Glass | |
| Height × width × length | 3.43 m × 2.9 m × 375 m | |
| IT | Floor | Concrete tiles |
| Ceiling | Styrofoam supported by suspended | |
| Wall | Cement + concrete | |
| Door | Metal | |
| Window | Glass (structure metal) | |
| Height × width × length | 2.7 m × 3.547 m × 90 m |
| Locat. | Freq. | CI | FI () | CIF | ABG () | CI (n) | FI () | CIF (n) | ABG () | CIF (b) | ABG () |
|---|---|---|---|---|---|---|---|---|---|---|---|
| IT | 3.7 | 43.810 | 46.522 | 43.810 | 29.507 | 1.830 | 1.668 | 1.692 | 1.439 | 0.028 | 5.563 |
| 28 | 61.380 | 58.691 | 61.380 | 29.507 | 1.763 | 1.924 | 1.692 | 1.439 | 0.028 | 5.563 | |
| 28 | 61.380 | 55.578 | 61.380 | 29.507 | 1.760 | 2.108 | 1.692 | 1.439 | 0.028 | 5.563 | |
| Main | 3.7 | 43.810 | 54.815 | 43.810 | 37.117 | 1.582 | 1.033 | 1.773 | 1.349 | 0.051 | 4.504 |
| 28 | 61.380 | 70.593 | 61.380 | 37.117 | 2.125 | 1.666 | 1.773 | 1.349 | 0.051 | 4.504 |
| Locat. | Freq. | CI () | FI () | CIF () | ABG() |
|---|---|---|---|---|---|
| IT | 3.7 GHz | 1.616 | 1.541 | 11.514 | 9.967 |
| 28 GHz | 2.936 | 2.896 | 3.312 | 6.893 | |
| 28 GHz (TAS) | 4.638 | 4.520 | 4.712 | 7.459 | |
| Main | 3.7 GHz | 3.046 | 2.257 | 9.100 | 14.238 |
| 28 GHz | 4.057 | 3.679 | 6.934 | 14.531 |
Publisher’s Note: MDPI stays neutral with regard to jurisdictional claims in published maps and institutional affiliations. |
© 2021 by the authors. Licensee MDPI, Basel, Switzerland. This article is an open access article distributed under the terms and conditions of the Creative Commons Attribution (CC BY) license (https://creativecommons.org/licenses/by/4.0/).
Share and Cite
Samad, M.A.; Diba, F.D.; Kim, Y.-J.; Choi, D.-Y. Results of Large-Scale Propagation Models in Campus Corridor at 3.7 and 28 GHz. Sensors 2021, 21, 7747. https://doi.org/10.3390/s21227747
Samad MA, Diba FD, Kim Y-J, Choi D-Y. Results of Large-Scale Propagation Models in Campus Corridor at 3.7 and 28 GHz. Sensors. 2021; 21(22):7747. https://doi.org/10.3390/s21227747
Chicago/Turabian StyleSamad, Md Abdus, Feyisa Debo Diba, Young-Jin Kim, and Dong-You Choi. 2021. "Results of Large-Scale Propagation Models in Campus Corridor at 3.7 and 28 GHz" Sensors 21, no. 22: 7747. https://doi.org/10.3390/s21227747
APA StyleSamad, M. A., Diba, F. D., Kim, Y.-J., & Choi, D.-Y. (2021). Results of Large-Scale Propagation Models in Campus Corridor at 3.7 and 28 GHz. Sensors, 21(22), 7747. https://doi.org/10.3390/s21227747

