Sign in to use this feature.

Years

Between: -

Subjects

remove_circle_outline
remove_circle_outline
remove_circle_outline
remove_circle_outline
remove_circle_outline
remove_circle_outline
remove_circle_outline
remove_circle_outline
remove_circle_outline

Journals

Article Types

Countries / Regions

Search Results (70)

Search Parameters:
Keywords = taxis origin

Order results
Result details
Results per page
Select all
Export citation of selected articles as:
27 pages, 5814 KB  
Article
Sustainable Customized Bus Services: A Data-Driven Framework for Joint Demand Analysis and Route Optimization
by Hui Jin, Zheyu Li, Guanglei Wang and Shuailong Zhang
Sustainability 2026, 18(1), 250; https://doi.org/10.3390/su18010250 - 25 Dec 2025
Viewed by 409
Abstract
Promoting demand-responsive transit (DRT) is crucial for developing sustainable and green transportation systems in urban areas, especially in light of decreasing transit ridership and increasingly varying demand. However, the effectiveness of such services hinges on their ability to efficiently match varying travel demand. [...] Read more.
Promoting demand-responsive transit (DRT) is crucial for developing sustainable and green transportation systems in urban areas, especially in light of decreasing transit ridership and increasingly varying demand. However, the effectiveness of such services hinges on their ability to efficiently match varying travel demand. This paper presents a data-driven framework for the joint optimization of customized bus routes and timetables, to enhance both service quality and operational sustainability. Our approach leverages large-scale taxi trip data to identify latent travel demand, applying a spatial–temporal clustering method to group trip requests and identify DRT stops by trip origin, destination, and direction. An adaptive large neighborhood search (ALNS) algorithm is improved to co-optimize passenger waiting times and bus operation costs, where an unbalanced penalty for early or late schedule deviations is developed to better reflect passengers’ discomfort. The framework’s performance is validated through a real-world case study, demonstrating its ability to generate efficient routes and schedules. The model manages to improve passenger experience and reduce operation costs. By creating a more appealing and efficient service, this model contributes directly to the goals of green transport in terms of reducing the total vehicle kilometers that are traveled, and demonstrating a viable, high-quality alternative to private car usage. This study offers a practical and robust tool for transit planners to design a next-generation DRT system that is both economically viable and environmentally sustainable. Full article
Show Figures

Figure 1

24 pages, 1978 KB  
Article
Decision Making for Energy Acquisition of Electric Vehicle Taxi with Profit Maximization
by Li Cui, Yanping Wang, Hongquan Qu, Yiqiang Li, Mingshen Wang and Qingyuan Wang
Sustainability 2025, 17(11), 5116; https://doi.org/10.3390/su17115116 - 3 Jun 2025
Viewed by 846
Abstract
With the emergence of joint business operations involving electric vehicle taxis (EVTs) and charging/swapping stations (CSSTs), a unified decision-making method has become essential for an EVT to select both the driving path and the energy acquisition mode (EAM). The decision making is influenced [...] Read more.
With the emergence of joint business operations involving electric vehicle taxis (EVTs) and charging/swapping stations (CSSTs), a unified decision-making method has become essential for an EVT to select both the driving path and the energy acquisition mode (EAM). The decision making is influenced by energy acquisition cost and potential operation profit. The energy acquisition cost is closely related to the driving time required to reach a CSST, and existing prediction methods for driving time ignore the spatial–temporal interactions of traffic flows on different roads and fail to account for traffic congestion differences across various sections of a road. Existing estimation methods for potential operation income ignore the distributions of taxi orders in different areas. To address these issues, a traffic flow prediction model is first proposed based on the long short-term memory–generative adversarial network (LSTM-GAN) deep learning algorithm. A refined driving time model is developed by segmenting a road into different sections. Then, an expected operation income model is developed considering the distributions of origins and destinations of taxi orders in different areas. Then, a decision-making method for path planning and the charging/swapping mode is proposed, aiming to maximize the total profit of EVTs. Finally, the effectiveness of the proposed decision-making method for EVTs is validated with a city’s traffic network. Full article
Show Figures

Figure 1

14 pages, 1769 KB  
Article
Next Arrival and Destination Prediction via Spatiotemporal Embedding with Urban Geography and Human Mobility Data
by Pengjiang Li, Zaitian Wang, Xinhao Zhang, Pengfei Wang and Kunpeng Liu
Mathematics 2025, 13(5), 746; https://doi.org/10.3390/math13050746 - 25 Feb 2025
Cited by 1 | Viewed by 1744
Abstract
With the development of transportation networks, countless trajectory data are accumulated, and understanding human mobility from traffic data could be helpful for smart cities, urban computing, and urban planning. Extracting valuable insights from traffic data, such as taxi trajectories, can significantly improve residents’ [...] Read more.
With the development of transportation networks, countless trajectory data are accumulated, and understanding human mobility from traffic data could be helpful for smart cities, urban computing, and urban planning. Extracting valuable insights from traffic data, such as taxi trajectories, can significantly improve residents’ daily lives. There are many studies on spatiotemporal data mining. As we know, arrival prediction or regional function detection encompasses important tasks for traffic management and urban planning. However, trajectory data are often mutilated because of personal privacy and hardware limitations, i.e., we usually can only obtain partial trajectory information. In this paper, we develop an embedding method to predict the next arrival using the origin–destination (O-D) pair trajectory information and point of interest (POI) data. Moreover, the embedding information contains region latent features; thus, we also detect the regional function in this paper. Finally, we conduct a comprehensive experimental study on a real-world trajectory dataset. The experimental results demonstrate the benefit of predicting arrivals, and the embedding vectors can detect the regional function in a city. Full article
(This article belongs to the Special Issue Advanced Research in Data-Centric AI)
Show Figures

Figure 1

19 pages, 5224 KB  
Article
A Spatiotemporal Feature-Based Approach for the Detection of Unlicensed Taxis in Urban Areas
by Yun Xiao, Rongqiao Li and Jinyan Li
Sensors 2024, 24(24), 8206; https://doi.org/10.3390/s24248206 - 23 Dec 2024
Cited by 1 | Viewed by 1051
Abstract
Unlicensed taxis seriously disrupt the transportation market order, and threaten passenger safety. Therefore, this paper proposes a method for identifying unlicensed taxis based on travel characteristics. First, the vehicle mileage and operation time are calculated using traffic surveillance bayonet data, and variance analysis [...] Read more.
Unlicensed taxis seriously disrupt the transportation market order, and threaten passenger safety. Therefore, this paper proposes a method for identifying unlicensed taxis based on travel characteristics. First, the vehicle mileage and operation time are calculated using traffic surveillance bayonet data, and variance analysis is applied to identification indicators for unlicensed taxis. Secondly, the mathematical model for identifying unlicensed taxis is established. The model is validated using the Hosmer–Lemeshow test, confusion matrix and ROC curve analysis. Finally, by applying methods such as geographic information matching, the spatiotemporal distribution characteristics of suspected unlicensed taxis in a city in Anhui Province are identified. The results show that the model effectively identifies suspected unlicensed taxis (ACC = 99.10%). The daily average mileage, daily average operating time, and number of operating days for suspected unlicensed taxis are significantly higher than those for private cars. Additionally, the suspected unlicensed taxis exhibit regular patterns in their travel origin–destination points and temporal distribution, enabling traffic management authorities to implement targeted regulatory measures. Full article
(This article belongs to the Special Issue Data and Network Analytics in Transportation Systems)
Show Figures

Figure 1

21 pages, 7788 KB  
Article
Additional Taxi-Out Time Prediction for Flights at Busy Airports by Fusing Flow Control Information
by Ligang Yuan, Jing Liu and Haiyan Chen
Appl. Sci. 2024, 14(21), 9968; https://doi.org/10.3390/app14219968 - 31 Oct 2024
Cited by 2 | Viewed by 2396
Abstract
The taxi-out time of an airport scene can be categorized into the unimpeded taxi-out time and the additional taxi-out time. Usually, additional taxi-out time is used as a key index to monitor taxi-out performance, and its accurate prediction plays an important role in [...] Read more.
The taxi-out time of an airport scene can be categorized into the unimpeded taxi-out time and the additional taxi-out time. Usually, additional taxi-out time is used as a key index to monitor taxi-out performance, and its accurate prediction plays an important role in optimizing the allocation of time slots at an airport and improving scene operation efficiency. Taking Shanghai Pudong International Airport as the research object, we first analyze its layout and construct the origin–destination pairs (ODPs) based on the stand groups and runways. Then, we develop a multiple linear regression model based on the arrival and departure flows to calculate the unimpeded taxi-out times for all ODPs. The actual taxi-out time is then subtracted from the unimpeded taxi-out time to obtain the historical additional taxi-out time of each flight. We propose three new flow features related to the structure: the corridor departure flow, the corridor arrival flow, and the departure flow proportion of ODPs, based on which we construct a dataset for training the prediction model. We then propose an additional taxi-out time prediction model based on the nutcracker optimization algorithm (NOA) and XGBoost and run comparison experiments on the operation data of our target airport. The results show that the optimized prediction model we proposed has the best performance compared with the traditional XGBoost model and other commonly used prediction models, and the proposed structure-related features have high correlations with additional taxi-out time. Full article
Show Figures

Figure 1

18 pages, 3277 KB  
Article
STEFT: Spatio-Temporal Embedding Fusion Transformer for Traffic Prediction
by Xiandai Cui and Hui Lv
Electronics 2024, 13(19), 3816; https://doi.org/10.3390/electronics13193816 - 27 Sep 2024
Cited by 5 | Viewed by 2905
Abstract
Accurate traffic prediction is crucial for optimizing taxi demand, managing traffic flow, and planning public transportation routes. Traditional models often fail to capture complex spatial–temporal dependencies. To tackle this, we introduce the Spatio-Temporal Embedding Fusion Transformer (STEFT). This deep learning model leverages attention [...] Read more.
Accurate traffic prediction is crucial for optimizing taxi demand, managing traffic flow, and planning public transportation routes. Traditional models often fail to capture complex spatial–temporal dependencies. To tackle this, we introduce the Spatio-Temporal Embedding Fusion Transformer (STEFT). This deep learning model leverages attention mechanisms and feature fusion to effectively model dynamic dependencies in traffic data. STEFT includes an Embedding Fusion Network that integrates spatial, temporal, and flow embeddings, preserving original flow information. The Flow Block uses an enhanced Transformer encoder to capture periodic dependencies within neighboring regions, while the Prediction Block forecasts inflow and outflow dynamics using a fully connected network. Experiments on NYC (New York City) Taxi and NYC Bike datasets show STEFT’s superior performance over baseline methods in RMSE and MAPE metrics, highlighting the effectiveness of the concatenation-based feature fusion approach. Ablation studies confirm the contribution of each component, underscoring STEFT’s potential for real-world traffic prediction and other spatial–temporal challenges. Full article
Show Figures

Figure 1

27 pages, 1590 KB  
Article
Sojourn Time Analysis of a Single-Server Queue with Single- and Batch-Service Customers
by Yusei Koyama, Ayane Nakamura and Tuan Phung-Duc
Mathematics 2024, 12(18), 2820; https://doi.org/10.3390/math12182820 - 11 Sep 2024
Cited by 2 | Viewed by 2078
Abstract
There are various types of sharing economy services, such as ride-sharing and shared-taxi rides. Motivated by these services, we consider a single-server queue in which customers probabilistically select the type of service, that is, the single service or batch service, or other services [...] Read more.
There are various types of sharing economy services, such as ride-sharing and shared-taxi rides. Motivated by these services, we consider a single-server queue in which customers probabilistically select the type of service, that is, the single service or batch service, or other services (e.g., train). In the proposed model, which is denoted by the M+M(K)/M/1 queue, we assume that the arrival process of all the customers follows a Poisson distribution, the batch size is constant, and the common service time (for the single- and batch-service customers) follows an exponential distribution. In this model, the derivation of the sojourn time distribution is challenging because the sojourn time of a batch-service customer is not determined upon arrival but depends on single customers who arrive later. This results in a two-dimensional recursion, which is not generally solvable, but we made it possible by utilizing a special structure of our model. We present an analysis using a quasi-birth-and-death process, deriving the exact and approximated sojourn time distributions (for the single-service customers, batch-service customers, and all the customers). Through numerical experiments, we demonstrate that the approximated sojourn time distribution is sufficiently accurate compared to the exact sojourn time distributions. We also present a reasonable approximation for the distribution of the total number of customers in the system, which would be challenging with a direct-conventional method. Furthermore, we presented an accurate approximation method for a more general model where the service time of single-service customers and that of batch-service customers follow two distinct distributions, based on our original model. Full article
(This article belongs to the Special Issue Advances in Queueing Theory and Applications)
Show Figures

Figure 1

17 pages, 2795 KB  
Article
Taxi Travel Distance Clustering Method Based on Exponential Fitting and k-Means Using Data from the US and China
by Zhenang Song, Jun Cai and Qiyao Yang
Systems 2024, 12(8), 282; https://doi.org/10.3390/systems12080282 - 3 Aug 2024
Cited by 1 | Viewed by 2452
Abstract
The taxi travel distance distribution can be used to forecast the origin and destination (OD) distribution of taxis and private cars. Most of the existing studies on taxi trip distributions have summarized a “low–high–low” trend and approached zero at both ends; however, they [...] Read more.
The taxi travel distance distribution can be used to forecast the origin and destination (OD) distribution of taxis and private cars. Most of the existing studies on taxi trip distributions have summarized a “low–high–low” trend and approached zero at both ends; however, they failed to explain the reason for this distance distribution. The key indicators and parameters identified by various researchers using big data for the same city and year typically differ, especially in terms of the mode and mean values of distance and time. This study uses New York yellow and green taxi data (a total of 417,018,811 data points) from 2017 to 2022, as well as data from China, to obtain a general law of the taxi travel distance distribution through an analysis of the relative distance and relative frequency. The travel mode was 0.54 times the relative distance, while the data tended towards zero at 2.0 times the relative distance. We verified the reliability of the research method based on reference and survey data. The results reveal the formation mechanism of the taxi travel distance distribution characteristics, which follow an exponential distribution. These laws can be used in the context of urban planning and transportation research. We propose a taxi form distance clustering method based on the k-means approach, chosen for its effectiveness on large datasets, interpretability, and alignment with our research objectives. This method provides visual results for the travel distance and accurate information for urban transportation planning and taxi services. The practical implications for policymakers, urban planners, and taxi services are discussed, demonstrating how the identified travel distance distribution laws can influence urban planning and taxi service optimization. Finally, the problems of data collection, cleaning, and processing are identified from the perspective of data statistics and analysis. Full article
(This article belongs to the Section Systems Engineering)
Show Figures

Figure 1

12 pages, 12874 KB  
Article
New Evidence for an Episode of Accelerated Environmental Change in the Late Barremian: Geochemical and Paleontological Records from the Subbetic Basin (Western Tethys)
by Ginés A. de Gea, José Manuel Castro, Miguel Company, Luis O’Dogherty, José Sandoval, María Luisa Quijano, Cristina Sequero, Sandro Froehner and Roque Aguado
Geosciences 2024, 14(7), 187; https://doi.org/10.3390/geosciences14070187 - 11 Jul 2024
Cited by 2 | Viewed by 1666
Abstract
We investigate a new event of accelerated environmental change that was recorded during the late Barremian in the pelagic Subbetic Basin (Western Tethys). Two pelagic sections have been studied using a multi-proxy approach based on C-isotope stratigraphy and a high-resolution quantitative study of [...] Read more.
We investigate a new event of accelerated environmental change that was recorded during the late Barremian in the pelagic Subbetic Basin (Western Tethys). Two pelagic sections have been studied using a multi-proxy approach based on C-isotope stratigraphy and a high-resolution quantitative study of nannofossil assemblages, along with major and trace elements and biomarkers. Our results provide a detailed biostratigraphy and C-isotope stratigraphy, and outline the paleoenvironmental conditions recorded during the early stages of the Taxy Episode. A disturbance has been identified in the C-isotope record, called the IFeNE (Intra-Feradianus negative C-excursion), which is coeval with environmental and biotic changes that predate the well-known ISNE (Intra-Sarasini negative C-excursion). The combined analysis of nannofossil associations, C-isotopes, major and trace elements, and biomarker distributions indicates a separate episode of warming heralding the ISNE, resulting in the acceleration of the hydrological cycle and a consequent increase in continental inputs and the fertilization of surface waters. The origin of the Taxy Episode (the IFeNE and ISNE) has been related to orbital factors (high-eccentricity cycles), and to a global increase in volcanism, probably related to the early phases of the Ontong Java Plateau. Full article
Show Figures

Figure 1

23 pages, 5243 KB  
Article
Urban Mobility Pattern Detection: Development of a Classification Algorithm Based on Machine Learning and GPS
by Juan José Molina-Campoverde, Néstor Rivera-Campoverde, Paúl Andrés Molina Campoverde and Andrea Karina Bermeo Naula
Sensors 2024, 24(12), 3884; https://doi.org/10.3390/s24123884 - 15 Jun 2024
Cited by 15 | Viewed by 4246
Abstract
This study introduces an innovative algorithm for classifying transportation modes. It categorizes modes such as walking, biking, tram, bus, taxi, and private vehicles based on data collected through sensors embedded in smartphones. The data include date, time, latitude, longitude, altitude, and speed, gathered [...] Read more.
This study introduces an innovative algorithm for classifying transportation modes. It categorizes modes such as walking, biking, tram, bus, taxi, and private vehicles based on data collected through sensors embedded in smartphones. The data include date, time, latitude, longitude, altitude, and speed, gathered using a mobile application specifically designed for this project. These data were collected through the smartphone’s GPS to enhance the accuracy of the analysis. The stopping times of each transport mode, as well as the distance traveled and average speed, are analyzed to identify patterns and distinctive features. Conducted in Cuenca, Ecuador, the study aims to develop and validate an algorithm to enhance urban planning. It extracts significant features from mobility patterns, including speed, acceleration, and over-acceleration, and applies longitudinal dynamics to train the classification model. The classification algorithm relies on a decision tree model, achieving a high accuracy of 94.6% in validation and 94.9% in testing, demonstrating the effectiveness of the proposed approach. Additionally, the precision metric of 0.8938 signifies the model’s ability to make correct positive predictions, with nearly 90% of positive instances correctly identified. Furthermore, the recall metric at 0.83084 highlights the model’s capability to identify real positive instances within the dataset, capturing over 80% of positive instances. The calculated F1-score of 0.86117 indicates a harmonious balance between precision and recall, showcasing the models robust and well-rounded performance in classifying transport modes effectively. The study discusses the potential applications of this method in urban planning, transport management, public transport route optimization, and urban traffic monitoring. This research represents a preliminary stage in generating an origin–destination (OD) matrix to better understand how people move within the city. Full article
(This article belongs to the Section Vehicular Sensing)
Show Figures

Figure 1

28 pages, 14236 KB  
Article
Delineating Source and Sink Zones of Trip Journeys in the Road Network Space
by Yan Shi, Bingrong Chen, Jincai Huang, Da Wang, Huimin Liu and Min Deng
ISPRS Int. J. Geo-Inf. 2024, 13(5), 150; https://doi.org/10.3390/ijgi13050150 - 30 Apr 2024
Cited by 1 | Viewed by 2224
Abstract
Source–sink zones refer to aggregated adjacent origins/destinations with homogeneous trip flow characteristics. Current relevant studies mostly detect source–sink zones based on outflow/inflow volumes without considering trip routes. Nevertheless, trip routes detail individuals’ journeys on road networks and give rise to relationships among human [...] Read more.
Source–sink zones refer to aggregated adjacent origins/destinations with homogeneous trip flow characteristics. Current relevant studies mostly detect source–sink zones based on outflow/inflow volumes without considering trip routes. Nevertheless, trip routes detail individuals’ journeys on road networks and give rise to relationships among human activities, road network structures, and land-use types. Therefore, this study developed a novel approach to delineate source–sink zones based on trip route aggregation on road networks. We first represented original trajectories using road segment sequences and applied the Latent Dirichlet Allocation (LDA) model to associate trajectories with route semantics. We then ran a hierarchical clustering operation to aggregate trajectories with similar route semantics. Finally, we adopted an adaptive multi-variable agglomeration strategy to associate the trajectory clusters with each traffic analysis zone to delineating source and sink zones, with a trajectory topic entropy defined as an indicator to analyze the dynamic impact between the road network and source–sink zones. We used taxi trajectories in Xiamen, China, to verify the effectiveness of the proposed method. Full article
Show Figures

Figure 1

18 pages, 2337 KB  
Article
Urban Origin–Destination Travel Time Estimation Using K-Nearest-Neighbor-Based Methods
by Felipe Lagos, Sebastián Moreno, Wilfredo F. Yushimito and Tomás Brstilo
Mathematics 2024, 12(8), 1255; https://doi.org/10.3390/math12081255 - 20 Apr 2024
Cited by 7 | Viewed by 3209
Abstract
Improving the estimation of origin–destination (O-D) travel times poses a formidable challenge due to the intricate nature of transportation dynamics. Current deep learning models often require an overwhelming amount of data, both in terms of data points and variables, thereby limiting their applicability. [...] Read more.
Improving the estimation of origin–destination (O-D) travel times poses a formidable challenge due to the intricate nature of transportation dynamics. Current deep learning models often require an overwhelming amount of data, both in terms of data points and variables, thereby limiting their applicability. Furthermore, there is a scarcity of models capable of predicting travel times with basic trip information such as origin, destination, and starting time. This paper introduces novel models rooted in the k-nearest neighbor (KNN) algorithm to tackle O-D travel time estimation with limited data. These models represent innovative adaptations of weighted KNN techniques, integrating the haversine distance of neighboring trips and incorporating correction factors to mitigate prediction biases, thereby enhancing the accuracy of travel time estimations for a given trip. Moreover, our models incorporate an adaptive heuristic to partition the time of day, identifying time blocks characterized by similar travel-time observations. These time blocks facilitate a more nuanced understanding of traffic patterns, enabling more precise predictions. To validate the effectiveness of our proposed models, extensive testing was conducted utilizing a comprehensive taxi trip dataset sourced from Santiago, Chile. The results demonstrate substantial improvements over existing state-of-the-art models (e.g., MAPE between 35 to 37% compared to 49 to 60% in other methods), underscoring the efficacy of our approach. Additionally, our models unveil previously unrecognized patterns in city traffic across various time blocks, shedding light on the underlying dynamics of urban mobility. Full article
Show Figures

Figure 1

15 pages, 5593 KB  
Article
A CNN-GRU Hybrid Model for Predicting Airport Departure Taxiing Time
by Ligang Yuan, Jing Liu, Haiyan Chen, Daoming Fang and Wenlu Chen
Aerospace 2024, 11(4), 261; https://doi.org/10.3390/aerospace11040261 - 27 Mar 2024
Cited by 2 | Viewed by 2155
Abstract
Scene taxiing time is an important indicator for assessing the operational efficiency of airports as well as green airports, and it is also a fundamental parameter in flight regularity statistics. The accurate prediction of taxiing time can help decision makers to further optimize [...] Read more.
Scene taxiing time is an important indicator for assessing the operational efficiency of airports as well as green airports, and it is also a fundamental parameter in flight regularity statistics. The accurate prediction of taxiing time can help decision makers to further optimize flight pushback sequences and improve airport operational efficiency while increasing flight punctuality. In this paper, we propose a hybrid deep learning model for departure taxiing time prediction based on the new influence factors of taxiing time. Taking Pudong International Airport as the research object, after analyzing the scene operation mode, we construct the origin–destination pairs (ODPs) with stand groups and runways and then propose two structure-related factors, corridor departure flow and departure flow proportion of ODP, as the new features. Based on the new feature set, we construct a departure taxiing dataset for training the prediction model. Then, a departure taxiing time prediction model based on convolutional neural networks (CNNs) and gated recurrent units (GRUs) is proposed, which uses a CNN model to extract the high-dimensional features from the taxiing data and then inputs them to a GRU model for taxiing time prediction. Finally, we conduct a series of comparison experiments on the historical taxiing dataset of Pudong Airport. The prediction results show that the proposed hybrid prediction model has the best performances compared with other deep learning models, and the proposed structure-related features have high correlations with departure taxiing time. The prediction results of taxiing time for different ODPs also verify the generalizability of the proposed model. Full article
Show Figures

Figure 1

16 pages, 12663 KB  
Article
Modeling Study of Factors Determining Efficacy of Biological Control of Adventive Weeds
by Yuri V. Tyutyunov, Vasily N. Govorukhin and Vyacheslav G. Tsybulin
Mathematics 2024, 12(1), 160; https://doi.org/10.3390/math12010160 - 4 Jan 2024
Cited by 2 | Viewed by 1783
Abstract
We model the spatiotemporal dynamics of a community consisting of competing weed and cultivated plant species and a population of specialized phytophagous insects used as the weed biocontrol agent. The model is formulated as a PDE system of taxis–diffusion–reaction type and computer-implemented for [...] Read more.
We model the spatiotemporal dynamics of a community consisting of competing weed and cultivated plant species and a population of specialized phytophagous insects used as the weed biocontrol agent. The model is formulated as a PDE system of taxis–diffusion–reaction type and computer-implemented for one-dimensional and two-dimensional cases of spatial habitat for the Neumann zero-flux boundary condition. In order to discretize the original continuous system, we applied the method of lines. The obtained system of ODEs is integrated using the Runge–Kutta method with a variable time step and control of the integration accuracy. The numerical simulations provide insights into the mechanism of formation of solitary population waves (SPWs) of the phytophage, revealing the factors that determine the efficacy of combined application of the phytophagous insect (classical biological method) and cultivated plant (phytocenotic method) to suppress weed foci. In particular, the presented results illustrate the stabilizing action of cultivated plants, which fix the SPW effect by occupying the free area behind the wave front so that the weed remains suppressed in the absence of a phytophage. Full article
Show Figures

Figure 1

19 pages, 1408 KB  
Article
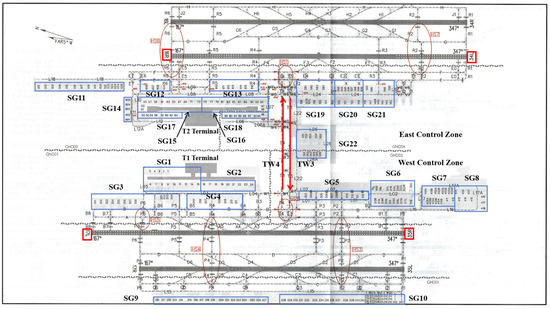
Airport Surface Arrival and Departure Scheduling Using Extended First-Come, First-Served Scheduler
by Bae-Seon Park and Hak-Tae Lee
Aerospace 2024, 11(1), 24; https://doi.org/10.3390/aerospace11010024 - 26 Dec 2023
Cited by 3 | Viewed by 3310
Abstract
This paper demonstrates the effectiveness of the Extended First-Come, First-Served (EFCFS) scheduler for integrated arrival and departure scheduling by comparing the scheduling results with the recorded operational data at Incheon International Airport (ICN), Republic of Korea. The EFCFS scheduler can handle multiple capacity- [...] Read more.
This paper demonstrates the effectiveness of the Extended First-Come, First-Served (EFCFS) scheduler for integrated arrival and departure scheduling by comparing the scheduling results with the recorded operational data at Incheon International Airport (ICN), Republic of Korea. The EFCFS scheduler can handle multiple capacity- or flow-rate-related constraints along the path of each flight, which is represented by a node–link graph structure, and can solve large-scale problems with low computational cost. However, few studies have attempted a systematic verification of the EFCFS scheduler by comparing the scheduling results with historical operational data. In this paper, flights are scheduled between gates and runways on the airport surface with detailed constraints such as runway wake turbulence separation minima and conflict-free taxiing. The scheduler is tested using historical flight data from 15 August 2022 at ICN. The input schedule is generated based on the flight plan data extracted from the Flight Operation Information System (FOIS) and airport surface detection equipment data, and the results are compared with the times extracted from the FOIS data. The scheduling results for 500 aircraft show that the average takeoff delay is reduced by about 19 min, while the average landing delay is increased by less than one minute when the gate occupancy constraint is not considered. The results also confirm that the EFCFS effectively utilizes the available time slots to reduce delays by switching the original departure or arrival orders for a small number of flights. Full article
(This article belongs to the Section Air Traffic and Transportation)
Show Figures

Figure 1

Back to TopTop