Additional Taxi-Out Time Prediction for Flights at Busy Airports by Fusing Flow Control Information
Abstract
1. Introduction
- (1)
- The arrival and departure flows of different ODPs are analyzed, and a multiple linear regression model of taxi-out time is constructed to calculate the UTT.
- (2)
- Three new features are proposed to improve the ATT feature set and dataset: corridor departure flow, corridor arrival flow, and the departure flow proportion of ODP.
- (3)
- An ATT prediction model based on NOA-XGBoost is proposed.
- (4)
- The effectiveness of the proposed features and prediction model is verified through comparative experiments and ablation experiments on the operation data of Shanghai Pudong International Airport.
2. Literature Review
2.1. Related Work
2.1.1. Research on Calculating Unimpeded Taxi-Out Time
2.1.2. Research on Taxi Time Prediction
2.2. Research Gap
- (1)
- (2)
- (3)
- (1)
- Unlike existing studies that examine taxi-out time as a whole, we separate taxi-out time into UTT and ATT, which allows us to provide detailed analyses and give more accurate predictions.
- (2)
- Compared with existing studies, we focus on the flow of special structural corridors, in addition to the overall flow of the scene, such as the number of departure flights on the scene and the number of arrival flights on the scene. Combining the micro-flow with the macro-flow enables us to capture the impact of the scene flow factors in a more comprehensive way.
- (3)
- We combine the NOA algorithm with the XGBoost algorithm and apply the new intelligent NOA optimization algorithm to optimize multiple parameters of the XGBoost algorithm so as to improve the prediction accuracy.
3. Prediction of Additional Taxi-Out Time
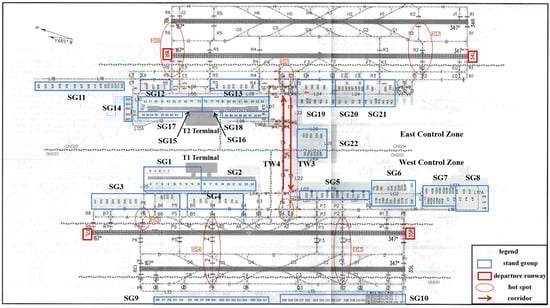
3.1. Layout of Shanghai Pudong Airport
3.2. Calculation of UTT
3.2.1. Selection of Arrival and Departure Flow Indicators
3.2.2. Calculation Model
3.3. Prediction of ATT
3.3.1. Construction of Feature Set
- (1)
- Corridor flow
- (2)
- Departure Flow Proportion of ODP
3.3.2. Construction of Dataset
3.3.3. Model Construction
| Algorithm 1. Pseudo-code of NOA-XGBoost |
| Input: Population size , upper and lower limits on the value of the XGBOOST hyper parameters Output
|
4. Experiment and Results
4.1. Experimental Setup
4.2. Results and Discussion
4.2.1. Performance Comparison of Different Prediction Models
4.2.2. Prediction with Different Features
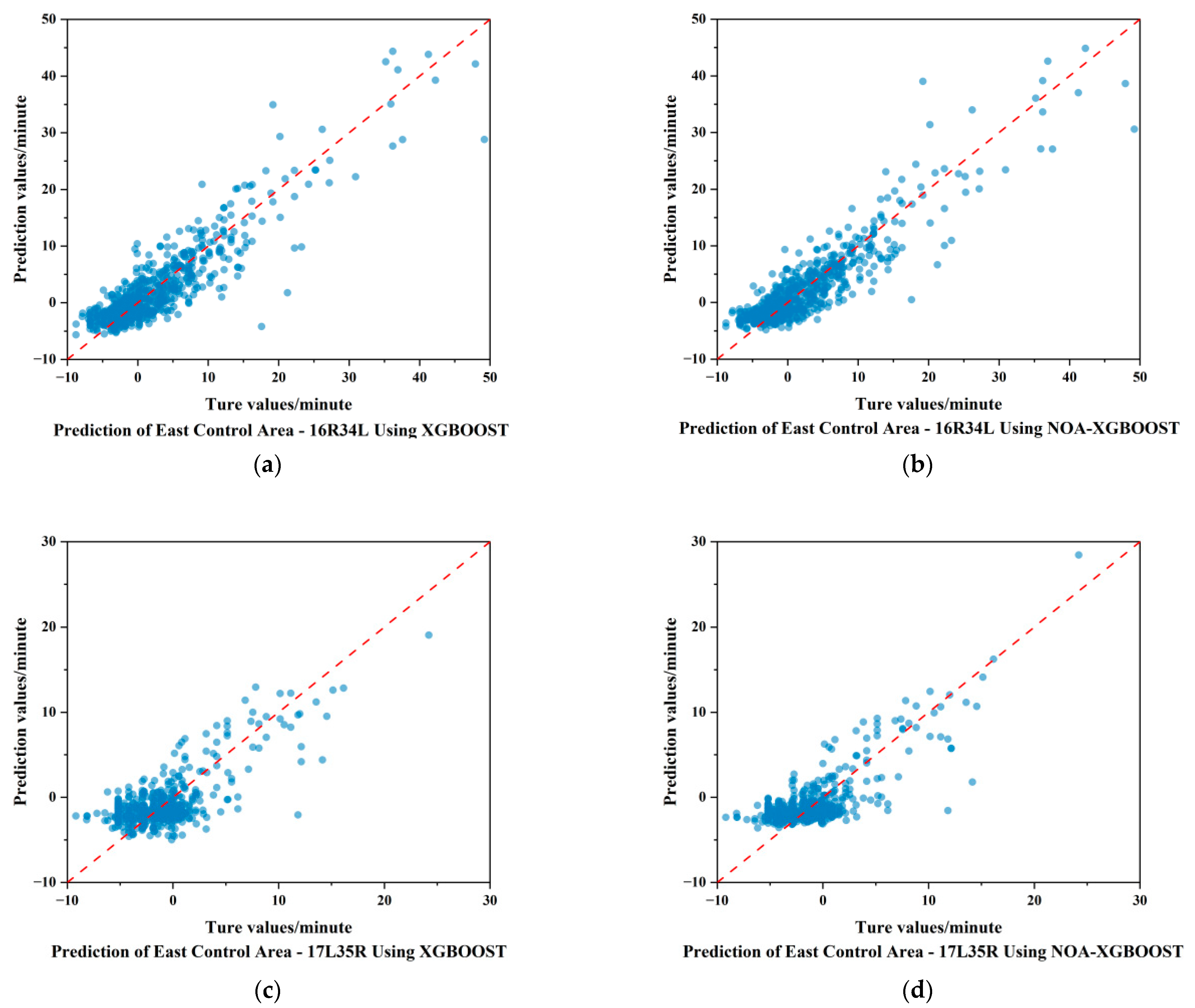
4.2.3. Prediction for Different Pairing Method
4.2.4. Prediction Based on ACDM Calculation Time
5. Conclusions
Author Contributions
Funding
Institutional Review Board Statement
Informed Consent Statement
Data Availability Statement
Acknowledgments
Conflicts of Interest
References
- ASPM Taxi Times: Definitions of Variables. Available online: https://aspm.faa.gov/aspmhelp/index/ASPM_Taxi_Times__Definitions_of_Variables.html (accessed on 10 September 2024).
- FAA. EUROCONTROL Performance Review Commission and Federal Aviation Administration Air Traffic Organization System Operations Services. U.S./Europe Comparison of 2010 ATM-Related Operational Performance. March 2012. Available online: https://www.faa.gov/air_traffic/publications/media/us_eu_comparison_2010.pdf (accessed on 10 September 2024).
- Lu, H.; Zhao, Z. Refined evaluation method for aircraft unimpeded taxi-out time. In Proceedings of the 2022 4th International Academic Exchange Conference on Science and Technology Innovation (IAECST), Guangzhou, China, 9–11 December 2022. [Google Scholar]
- Srivastava, A. Improving departure taxi time predictions using ASDE-X surveillance data. In Proceedings of the 2011 IEEE/AIAA 30th Digital Avionics Systems Conference, Seattle, WA, USA, 16–20 October 2011. [Google Scholar]
- Liu, J.; Yin, M.; Zhu, X. Research on departure influencing factors based on aircraft taxiing out time. J. Wuhan Univ. Technol. Transp. Sci. Eng. 2018, 42, 195–200. [Google Scholar]
- Wang, X.; Brownlee, A.E.I.; Woodward, J.R. Aircraft taxi time prediction: Feature importance and their implications. Transp. Res. Part C Emerg. Technol. 2021, 124, 102892. [Google Scholar] [CrossRef]
- Zhao, Z.; Feng, S.; Song, M. Research on dynamic taxi time prediction method for aircraft based on XGBoost. Adv. Aeronaut. Sci. Eng. 2021, 13, 76–85. [Google Scholar]
- Song, J.; Tang, Y.; He, J. Importance and Prunability Analysis of Basic Features in Machine-Learned Aircraft Taxi-Out Time Prediction. In Proceedings of the International Conference on Green Intelligent Transportation System and Safety, Qinhuangdao, China, 16–18 September 2022. [Google Scholar]
- Park, D.K.; Kim, J.K. Influential factors to aircraft taxi time in airport. J. Air Transp. Manag. 2023, 106, 102321. [Google Scholar] [CrossRef]
- Balakrishna, P.; Ganesan, R.; Sherry, L. Accuracy of reinforcement learning algorithms for predicting aircraft taxi-out times: A case-study of Tampa Bay departures. Transp. Res. Part C Emerg. Technol. 2010, 18, 950–962. [Google Scholar] [CrossRef]
- Ravizza, S.; Chen, J.; Atkin, J.A.; Stewart, P.; Burke, E.K. Aircraft taxi time prediction: Comparisons and insights. Appl. Soft Comput. 2014, 14, 397–406. [Google Scholar] [CrossRef]
- Lordan, O.; Sallan, J.M.; Valenzuela-Arroyo, M. Forecasting of taxi times: The case of Barcelona-El Prat airport. J. Air Transp. Manag. 2016, 56, 118–122. [Google Scholar] [CrossRef]
- Diana, T. Can machines learn how to forecast taxi-out time? A comparison of predictive models applied to the case of Seattle/Tacoma International Airport. Transp. Res. Part E Logist. Transp. Rev. 2018, 119, 149–164. [Google Scholar] [CrossRef]
- Li, N.; Jiao, Q.; Zhu, X. Prediction of departure aircraft taxi time based on deep learning. Trans. Nanjing Univ. Aeronaut. Astronaut. 2020, 37, 232–241. [Google Scholar]
- Zhi, W.; Jiang, S.; Qian, L. Prediction of flight taxi-out time in a busy airport based on LWSVR. J. Syst. Simul. 2020, 32, 927–935. [Google Scholar]
- Pham, D.T. A data-driven approach for taxi-time prediction: A case study of Singapore Changi airport. In Proceedings of the 6th ENRI International Workshop on ATM/CNS (EIWAC2019), Nakano, Japan, 29–31 October 2019. [Google Scholar]
- Xia, Z.; Jia, X. Taxi-out time prediction of departure aircraft based on BP neural network. Adv. Aeronaut. Sci. Eng. 2022, 13, 99–106. [Google Scholar]
- Du, J.; Hu, M.; Zhang, W. Finding Similar Historical Scenarios for Better Understanding Aircraft Taxi Time: A Deep Metric Learning Approach. IEEE Intell. Transp. Syst. Mag. 2022, 15, 101–116. [Google Scholar] [CrossRef]
- Zbakh, D.; El Gonnouni, A.; Benkacem, A. Taxi-out time prediction at Mohammed V Casablanca Airport. Int. J. Electr. Comput. Eng. 2024, 14, 2126–2134. [Google Scholar] [CrossRef]












| Reference | Features | Airport | Prediction Method |
|---|---|---|---|
| Balakrishna et al. [10] (2010) | Scene traffic flow | Tampa International Airport | Reinforcement learning |
| Srivastava et al. [4] (2011) | Taxi distance, number of flights, average taxi time of the previous quarter and weather | John F Kennedy Airport | Linear regression model |
| Ravizza et al. [11] (2014) | Taxi distance, taxi turning angle, departure or arrival and number of flights | Arlanda Airport and Zurich Airport | Multiple linear regression, least median squared linear regression, support vector regression, M5 model trees, and fuzzy rule-base systems |
| Lordan et al. [12] (2016) | Gate, runway, departure or arrival, and number of flights | Barcelona-El Prat Airport | Log-linear regression |
| Diana et al. [13] (2018) | Scene traffic flow, runway configuration, weather, and delay | Seattle-Tacoma International Airport | RL, RR, LR, ER, SVR, RF, AR, BR, ETR, GBRT |
| Li et al. [14] (2020) | Weather, air traffic flow control, runway configuration, and aircraft category | Hong Kong Airport | Spatiotemporal–environment deep learning model |
| Xing et al. [15] (2020) | Scene traffic flow, taxi routes, departure waiting queues, and airlines | Unknown | Locally weighted support vector regression |
| Pham et al. [16] (2019) | Gate, runway, day-of-week, hour, aircraft type, weather, and number of flights | Singapore Changi Airport | RF, LR |
| Wang et al. [6] (2021) | Airport operational information, congestion, average speed, and weather | Manchester Airport, Zurich Airport and Hong Kong International Airport | Random forest, gradient boosting regression trees, polynomial regression, linear regression, multilayer perceptron |
| Zhao et al. [7] (2021) | Airline, aircraft type, runway, parking period, number of flight taxiing at the same time on the field, severe weather, length of takeoff queue, cross-taxiing or not, and number of passes through HS | Guangzhou Baiyun International Airport | XGBoost, SVR, RF |
| Xia et al. [17] (2022) | Scene traffic, taxiing distance, number of turns, delays, and time of day at takeoff time | Unknown | BP |
| Song et al. [8] (2022) | Surface traffic flow, departure runway, operating load, taxi distance, air route control, and flight properties | Beijing Capital International Airport | GBRT |
| Du et al. [18] (2022) | Flight properties, surface traffic, and meteorological conditions | Shanghai Pudong International Airport | Deep metric learning approach |
| Zbakh et al. [19] (2024) | Congestion level, unimpeded taxi-out time, saturation level, and aircraft type | Mohammed V Casablanca Airport | NN, SVM, and RT |
| Indicator Type | Indicator | Definition |
|---|---|---|
| Departure | D1 | For a departing flight , the number of other departure flights |
| D2 | For a departing flight , the number of other departure flights | |
| D3 | For a departing flight , the number of other departure flights | |
| D4 | For a departing flight , the number of other departure flights | |
| Arrival | A1 | For a departing flight , the number of other arrival flights |
| A2 | For a departing flight , the number of other arrival flights | |
| A3 | For a departing flight , the number of other arrival flights | |
| A4 | For a departing flight , the number of other arrival flights |
| Feature Categories | Feature Name | |
|---|---|---|
| Airline | Domestic airline, foreign airline | |
| Aircraft | Type C aircraft, type D aircraft, type E aircraft, and type F aircraft | |
| Restricted status | Restricted flight, unrestricted flight | |
| Time | Hour | |
| Scene traffic flow | Normal | Departure flow, arrival flow |
| Structure-related | Corridor departure flow, corridor arrival flow, and departure flow proportion of ODP | |
| Model | Parameter | Value |
|---|---|---|
| NOA | Population size | 50 |
| Maximum iterations | 100 | |
| XGBOOST | N estimators | 100 |
| Max depth | 6 | |
| Learning rate | 0.3 | |
| Gamma | 0 | |
| Subsample | 1 | |
| Colsample bytree | 1 | |
| Reg alpha | 0 | |
| Reg lambda | 1 |
| Model Based | MAE | RMSE | R2 | ±3 min Accuracy | ±5 min Accuracy | (+5, −10) min Accuracy |
|---|---|---|---|---|---|---|
| NOA-XGBOOST | 2.06 | 2.73 | 0.77 | 0.77 | 0.94 | 0.97 |
| XGBOOST | 2.15 | 2.85 | 0.75 | 0.76 | 0.93 | 0.96 |
| RF | 2.25 | 2.95 | 0.73 | 0.73 | 0.92 | 0.95 |
| SVR | 2.27 | 3.19 | 0.69 | 0.73 | 0.92 | 0.95 |
| Features Removed | MAE | RMSE | R2 | ±3 min Accuracy | ±5 min Accuracy | (+5, −10) min Accuracy |
|---|---|---|---|---|---|---|
| None | 2.06 | 2.73 | 0.77 | 0.77 | 0.94 | 0.97 |
| Airline category | 2.07 | 2.74 | 0.76 | 0.76 | 0.94 | 0.97 |
| Aircraft category | 2.09 | 2.75 | 0.76 | 0.75 | 0.93 | 0.96 |
| Restricted status category | 2.07 | 2.75 | 0.75 | 0.75 | 0.93 | 0.95 |
| Time category | 2.07 | 2.74 | 0.77 | 0.75 | 0.93 | 0.96 |
| Normal features of scene traffic flow | 2.46 | 3.39 | 0.65 | 0.71 | 0.89 | 0.94 |
| Structure-related features | 2.23 | 2.92 | 0.70 | 0.74 | 0.91 | 0.94 |
| Pairing Method | Model Based | MAE | RMSE | R2 | ±3 min Accuracy | ±5 min Accuracy | (+5, −10) min Accuracy |
|---|---|---|---|---|---|---|---|
| East Control Zone-16R34L | XGBOOST | 2.35 | 3.31 | 0.80 | 0.74 | 0.89 | 0.94 |
| NOA-XGBOOST | 2.23 | 3.14 | 0.82 | 0.76 | 0.91 | 0.94 | |
| RF | 2.33 | 3.31 | 0.80 | 0.72 | 0.90 | 0.94 | |
| SVR | 2.69 | 4.22 | 0.68 | 0.67 | 0.87 | 0.92 | |
| East Control Zone-17L35R | XGBOOST | 1.96 | 2.54 | 0.51 | 0.79 | 0.95 | 0.97 |
| NOA-XGBOOST | 1.83 | 2.40 | 0.56 | 0.83 | 0.96 | 0.98 | |
| RF | 2.01 | 2.59 | 0.49 | 0.76 | 0.94 | 0.97 | |
| SVR | 2.15 | 2.90 | 0.37 | 0.75 | 0.93 | 0.96 | |
| West Control Zone-16R34L | XGBOOST | 2.53 | 3.49 | 0.66 | 0.70 | 0.90 | 0.94 |
| NOA-XGBOOST | 2.23 | 3.19 | 0.72 | 0.77 | 0.91 | 0.95 | |
| RF | 2.47 | 3.37 | 0.68 | 0.72 | 0.90 | 0.94 | |
| SVR | 2.97 | 4.11 | 0.53 | 0.61 | 0.84 | 0.91 | |
| West Control Zone-17L35R | XGBOOST | 1.98 | 2.75 | 0.60 | 0.77 | 0.95 | 0.98 |
| NOA-XGBOOST | 1.95 | 2.67 | 0.62 | 0.80 | 0.95 | 0.98 | |
| RF | 2.09 | 2.96 | 0.54 | 0.75 | 0.95 | 0.97 | |
| SVR | 2.25 | 3.53 | 0.35 | 0.75 | 0.92 | 0.98 |
| Model Based | MAE | RMSE | ±3 min Accuracy | ±5 min Accuracy | (+5, −10) min Accuracy |
|---|---|---|---|---|---|
| NOA-XGBOOST | 3.94 | 5.62 | 0.51 | 0.74 | 0.85 |
| XGBOOST | 4.04 | 5.82 | 0.51 | 0.72 | 0.84 |
| RF | 4.21 | 6.06 | 0.49 | 0.71 | 0.84 |
| SVR | 4.17 | 6.21 | 0.53 | 0.72 | 0.82 |
Disclaimer/Publisher’s Note: The statements, opinions and data contained in all publications are solely those of the individual author(s) and contributor(s) and not of MDPI and/or the editor(s). MDPI and/or the editor(s) disclaim responsibility for any injury to people or property resulting from any ideas, methods, instructions or products referred to in the content. |
© 2024 by the authors. Licensee MDPI, Basel, Switzerland. This article is an open access article distributed under the terms and conditions of the Creative Commons Attribution (CC BY) license (https://creativecommons.org/licenses/by/4.0/).
Share and Cite
Yuan, L.; Liu, J.; Chen, H. Additional Taxi-Out Time Prediction for Flights at Busy Airports by Fusing Flow Control Information. Appl. Sci. 2024, 14, 9968. https://doi.org/10.3390/app14219968
Yuan L, Liu J, Chen H. Additional Taxi-Out Time Prediction for Flights at Busy Airports by Fusing Flow Control Information. Applied Sciences. 2024; 14(21):9968. https://doi.org/10.3390/app14219968
Chicago/Turabian StyleYuan, Ligang, Jing Liu, and Haiyan Chen. 2024. "Additional Taxi-Out Time Prediction for Flights at Busy Airports by Fusing Flow Control Information" Applied Sciences 14, no. 21: 9968. https://doi.org/10.3390/app14219968
APA StyleYuan, L., Liu, J., & Chen, H. (2024). Additional Taxi-Out Time Prediction for Flights at Busy Airports by Fusing Flow Control Information. Applied Sciences, 14(21), 9968. https://doi.org/10.3390/app14219968

