Sign in to use this feature.

Years

Between: -

Subjects

remove_circle_outline
remove_circle_outline
remove_circle_outline
remove_circle_outline
remove_circle_outline
remove_circle_outline
remove_circle_outline

Journals

Article Types

Countries / Regions

Search Results (19)

Search Parameters:
Keywords = linear-arch beam

Order results
Result details
Results per page
Select all
Export citation of selected articles as:
17 pages, 9781 KB  
Article
Research on the Tensile-Bending Dynamic Response of the Half-Through Arch Bridge Short Suspender Considering Vehicle-Bridge Coupling Vibration
by Lianhua Wang, Guowen Yao and Xuanbo He
Vibration 2025, 8(3), 51; https://doi.org/10.3390/vibration8030051 - 4 Sep 2025
Viewed by 440
Abstract
The half-through arch bridge short suspender is more prone to damage due to its high linear stiffness and special force characteristics. To analyze the vehicle-induced vibration characteristics of the short suspender during service, a half-through arch bridge finite element model and a three-axis [...] Read more.
The half-through arch bridge short suspender is more prone to damage due to its high linear stiffness and special force characteristics. To analyze the vehicle-induced vibration characteristics of the short suspender during service, a half-through arch bridge finite element model and a three-axis vehicle model were established to realize the coupled vibration of the suspender axle under bridge deck unevenness excitation. The suspender was simulated using LINK element and BEAM element and separated along its axial and radial directions, and its tension-bending response characteristics was studied. The study found that the short suspender’s amplitude and frequency are higher than those of the long suspender as vehicle critical duration increases. Influenced by the tensile bending effect, the vibration, cross-section equivalent force amplitude, and impact coefficient at the anchorage end are larger than those at the center, and the lower anchorage end’s cross-section peak stress is biased towards the direction of the side column. The internal force of the short suspender is consistent with the deformation trend; its internal force coincides with the deformation trend; and its axial alternating load is generated by the axial relative deformation between the arch rib and the bridge deck, while the bending alternating load originates from the rotational deformation of the short suspender. Full article
Show Figures

Figure 1

16 pages, 5811 KB  
Article
Efficient Vibration Measurement and Modal Shape Visualization Based on Dynamic Deviations of Structural Edge Profiles
by Andong Zhu, Xinlong Gong, Jie Zhou, Xiaolong Zhang and Dashan Zhang
Sensors 2024, 24(13), 4413; https://doi.org/10.3390/s24134413 - 8 Jul 2024
Cited by 1 | Viewed by 1741
Abstract
As a non-contact method, vision-based measurement for vibration extraction and modal parameter identification has attracted much attention. In most cases, artificial textures are crucial elements for visual tracking, and this feature limits the application of vision-based vibration measurement on textureless targets. As a [...] Read more.
As a non-contact method, vision-based measurement for vibration extraction and modal parameter identification has attracted much attention. In most cases, artificial textures are crucial elements for visual tracking, and this feature limits the application of vision-based vibration measurement on textureless targets. As a computation technique for visualizing subtle variations in videos, the video magnification technique can analyze modal responses and visualize modal shapes, but the efficiency is low, and the processing results contain clipping artifacts. This paper proposes a novel method for the application of a modal test. In contrast to the deviation magnification that exaggerates subtle geometric deviations from only a single image, the proposed method extracts vibration signals with sub-pixel accuracy on edge positions by changing the perspective of deviations from space to timeline. Then, modal shapes are visualized by decoupling all spatial vibrations following the vibration theory of continuous linear systems. Without relying on artificial textures and motion magnification, the proposed method achieves high operating efficiency and avoids clipping artifacts. Finally, the effectiveness and practical value of the proposed method are validated by two laboratory experiments on a cantilever beam and an arch dam model. Full article
(This article belongs to the Special Issue Structural Health Monitoring Based on Sensing Technology)
Show Figures

Figure 1

12 pages, 2442 KB  
Article
Nonlinearity-Induced Asymmetric Synchronization Region in Micromechanical Oscillators
by Zhonghua Liu, Bingchan Qin, Zhan Shi, Xuefeng Wang, Qiangfeng Lv, Xueyong Wei and Ronghua Huan
Micromachines 2024, 15(2), 238; https://doi.org/10.3390/mi15020238 - 4 Feb 2024
Viewed by 1739
Abstract
Synchronization in microstructures is a widely explored domain due to its diverse dynamic traits and promising practical applications. Within synchronization analysis, the synchronization bandwidth serves as a pivotal metric. While current research predominantly focuses on symmetric evaluations of synchronization bandwidth, the investigation into [...] Read more.
Synchronization in microstructures is a widely explored domain due to its diverse dynamic traits and promising practical applications. Within synchronization analysis, the synchronization bandwidth serves as a pivotal metric. While current research predominantly focuses on symmetric evaluations of synchronization bandwidth, the investigation into potential asymmetries within nonlinear oscillators remains unexplored, carrying implications for sensor application performance. This paper conducts a comprehensive exploration employing straight and arch beams capable of demonstrating linear, hardening, and softening characteristics to thoroughly scrutinize potential asymmetry within the synchronization region. Through the introduction of weak harmonic forces to induce synchronization within the oscillator, we observe distinct asymmetry within its synchronization range. Additionally, we present a robust theoretical model capable of fully capturing the linear, hardening, and softening traits of resonators synchronized to external perturbation. Further investigation into the effects of feedback strength and phase delay on synchronization region asymmetry, conducted through analytical and experimental approaches, reveals a consistent alignment between theoretical predictions and experimental outcomes. These findings hold promise in providing crucial technical insights to enhance resonator performance and broaden the application landscape of MEMS (Micro-Electro-Mechanical Systems) technology. Full article
(This article belongs to the Special Issue Recent Advances in N/MEMS Nonlinear Dynamics)
Show Figures

Figure 1

18 pages, 6980 KB  
Article
On the Structural Behavior of MEMS Shallow Arch under Combined Effects of In-Plane Parallel Fields and Out-of-Plane Fringing-Fields
by Hassen M. Ouakad, Fehmi Najar and Najib Kacem
Actuators 2023, 12(10), 374; https://doi.org/10.3390/act12100374 - 28 Sep 2023
Viewed by 1913
Abstract
We propose to study the nonlinear stroke and lower-order modal interactions of a clamped–clamped shallow-arch flexible micro-electrode. The flexible electrode is electrically actuated through an in-plane parallel-plates field superimposed over out-of-plane electrostatic fringing fields. The in-plane electrostatic fields result from a difference of [...] Read more.
We propose to study the nonlinear stroke and lower-order modal interactions of a clamped–clamped shallow-arch flexible micro-electrode. The flexible electrode is electrically actuated through an in-plane parallel-plates field superimposed over out-of-plane electrostatic fringing fields. The in-plane electrostatic fields result from a difference of potential between the initially curved flexible electrode and a lower stationary parallel-grounded electrode. Moreover, the out-of-plane fringing fields are mainly due to the out-of-plane asymmetry of the flexible shallow arch and two respective surrounding stationary side electrodes (left and right). A nonlinear beam model is first introduced, consisting of a nonlinear partial differential equation governing the flexible shallow-arch in-plane deflection. Then, a resultant reduced-order model (ROM) is derived assuming a Galerkin modal decomposition with mode-shapes of a clamped–clamped beam as basis functions. The ROM coupled modal equations are numerically solved to obtain the static deflection. The results indicate the possibility of mono-stable and bi-stable structural behaviors for this particular device, depending on the flexible electrode’s initial rise and the size of its stationary side electrodes. The eigenvalue problem is also derived and examined to estimate the variation of the first three lower natural frequencies of the device when the microbeam is electrostatically actuated. The proposed micro-device is tunable with the possibility of pull-in-free states in addition to modal interactions through linear coupled mode veering and crossover processes. Remarkably, the veering zone between the first and third modes can be electrostatically adjusted and reach 22.6kHz for a particular set of design parameters. Full article
Show Figures

Figure 1

15 pages, 4084 KB  
Article
Correlation between Accuracy in Computer-Guided Implantology and Peri-Implant Tissue Stability: A Prospective Clinical and Radiological Pilot Study
by Pier Paolo Poli, Mattia Manfredini, Carlo Maiorana, Federica E. Salina and Mario Beretta
J. Clin. Med. 2023, 12(15), 5098; https://doi.org/10.3390/jcm12155098 - 3 Aug 2023
Cited by 2 | Viewed by 1520
Abstract
The present pilot study was designed by hypothesizing a possible correlation between lack of accuracy in implant placement and peri-implant hard and soft tissue health. A total of five patients underwent computer-guided implant surgery and full-arch immediate loading between 2013 and 2014. They [...] Read more.
The present pilot study was designed by hypothesizing a possible correlation between lack of accuracy in implant placement and peri-implant hard and soft tissue health. A total of five patients underwent computer-guided implant surgery and full-arch immediate loading between 2013 and 2014. They subsequently underwent postoperative cone-beam computed tomography (CBCT). After a follow-up of 5 years, all patients were recalled for a clinical-radiographic evaluation of peri-implant health status. The mean linear deviation was 0.5 ± 0.2 mm at the implant’s head and 0.6 ± 0.2 mm at the implant’s apex, while the mean angular deviation of the long axis was 2.8° ± 1.2°. A mean marginal bone loss (MBL) of 1.16 ± 0.94 mm and 2.01 ± 1.76 mm was observed after 1 and 5 years of follow-up, respectively. At 5 years, the mean peri-implant probing depth (PPD) was 4.09 ± 1.44 mm, 66.6% of the evaluated implants showed peri-implant bleeding on probing (BOP), keratinized mucosa (KM) was <2 mm in 48.4% of cases, and mucosal recession (REC) ≥ 1 mm was assessed in 45.4% of the included implants. A negative correlation was observed between bucco-palatal/lingual linear inaccuracy and MBL, PPD, BOP, and KM. Full article
Show Figures

Figure 1

19 pages, 7753 KB  
Article
Construction-Monitoring Analysis of a Symmetrical Rigid Frame Tied Steel Box Arch Bridge in Southwest China Based on Segmental Assembly Technique
by Yuanchong Zhang, Longlin Wang, Yu Nong and Wensheng Wang
Symmetry 2023, 15(7), 1437; https://doi.org/10.3390/sym15071437 - 18 Jul 2023
Cited by 2 | Viewed by 3128
Abstract
Tied steel box arch bridges are increasingly being used due to their attractive appearance, high load-bearing capacity, and good stress performance. Their construction involves multiple processes and factors. Construction monitoring can ensure that such a bridge remains in its intended stress and linear [...] Read more.
Tied steel box arch bridges are increasingly being used due to their attractive appearance, high load-bearing capacity, and good stress performance. Their construction involves multiple processes and factors. Construction monitoring can ensure that such a bridge remains in its intended stress and linear states during and after construction. This helps to minimize deviations from the design state at every stage of construction. Using the segmental assembly construction technique, this study conducted construction monitoring of the alignment and force at each stage of the reconstruction of bridges using MIDAS Civil software. The construction monitoring analysis indicated that the arch rib and lattice beam were correctly placed, thereby meeting the specified requirements for arch rib closure. Displacement errors between the measured and theoretical values at each stage of construction fell within an allowable range, resulting in overall smooth bridge alignment. The measured stress in the main arch and the lattice beam generally corresponded to the theoretical stress derived from the control section stress of the entire bridge. The deviation between the cable force of the suspender and the tie rod and theoretical value fell within 10%, indicating good stress reserve. The symmetrical monitoring points in the analyzed rigid-frame tied steel box arch bridges exhibited symmetrical displacement, stress, and cable force results under various working conditions. This observation further confirms the effectiveness of construction monitoring using the segmental assembly technique. Full article
Show Figures

Figure 1

19 pages, 8142 KB  
Article
Symmetrically Construction Monitoring Analysis and Completed State Evaluation of a Tied Steel Box Arch Bridge Based on Finite Element Method
by Jian Pan, Xirui Wang, Kainan Huang and Wensheng Wang
Symmetry 2023, 15(4), 932; https://doi.org/10.3390/sym15040932 - 18 Apr 2023
Cited by 4 | Viewed by 4051
Abstract
Because of their beautiful appearance, strong crossing ability, and reasonable stress performance, the application of tied steel box arch bridges is becoming more and more extensive. Bridge construction monitoring can control and adjust the deviation state to ensure the stress and linear state [...] Read more.
Because of their beautiful appearance, strong crossing ability, and reasonable stress performance, the application of tied steel box arch bridges is becoming more and more extensive. Bridge construction monitoring can control and adjust the deviation state to ensure the stress and linear state of the bridge after completion. This study carried out a symmetrical construction monitoring analysis and completed state evaluation of the newly built Dafeng River Bridge in Guangxi Province based on the finite element method. MIDAS Civil finite element software is used for simulation analysis to calculate the deformation and stress of the tied steel box arch bridge at the construction and completion stages. The tensile and compressive stress of the main arch and transverse brace, as well as the cumulative displacements of the main arch and lattice beam, are symmetrically distributed. The maximum tensile and compressive stresses are 15.1 MPa and 74.6 MPa, respectively, less than the specification’s allowable value. Meanwhile, for the completed bridge under the loading combinations of serviceability limit state and bearing capacity ultimate limit state, the stress of the main arch, transverse brace, and lattice beam meets the specification requirements. The maximum cable forces of the suspender and tie rod under the bearing capacity ultimate limit state are 2189.4 kN and 2991.2 kN, and their corresponding minimum safety factors are 3.2 and 2.7. In addition, the deviations between the on-site monitoring and the finite element theoretical values are within the specification allowable range for the cable force of the suspender and tie rod and the bridge deck alignment. It indicates that the bridge construction monitoring effect is reasonable and ideal, and the symmetrically finite element simulation analysis can provide a theoretical basis for construction monitoring. Full article
(This article belongs to the Special Issue Symmetry in the Finite Element Method and Finite Element Analysis)
Show Figures

Figure 1

23 pages, 8076 KB  
Article
Numerical Analysis on the Impact Effect of Cable Breaking for a New Type Arch Bridge
by Jianhong Huo, Yonghui Huang, Jialin Wang and Qiye Zhuo
Buildings 2023, 13(3), 753; https://doi.org/10.3390/buildings13030753 - 13 Mar 2023
Cited by 3 | Viewed by 2689
Abstract
Taking Haixin Bridge as an example, the structural response of a new type arch bridge composed of an inclined arch and a curved beam under cable breaking is analyzed numerically. The cable breaking at different positions, different numbers of broken cables and different [...] Read more.
Taking Haixin Bridge as an example, the structural response of a new type arch bridge composed of an inclined arch and a curved beam under cable breaking is analyzed numerically. The cable breaking at different positions, different numbers of broken cables and different ways of breaking are modeled and calculated, and the remaining cables’ internal force and main girder’s deflection are selected as research indexes to evaluate the degree of impact effect of broken cables on the bridge. The numerical results show that (1) duration time of cable breaking is an important factor affecting the impact effect of the bridge, when the cable breaking time is less than 1% of the first order natural vibration period of the structure, the dynamic response caused by cable breaking no longer variates with time; (2) for the cables adjacent to the breaking cable at equal distances, the cable with a shorter length will carry more released force of breaking cable than the longer, and the impact effect is more significant; (3) the dynamic response of displacement and cable force caused by cables at different locations are different, a cable located in the L/4 arch rib area suddenly breaking shows the largest dynamic response; (4) it is feasible to take the dynamic amplification factor (DAF) of cable force and the main girder’s deflection as 2, but it is unsafe to take the DAF of the arch rib’s deflection as 2; (5) the dynamic response of multiple cables breaking at the same time cannot be simplified as a linear superposition of single cable breaks one by one, and the amplification effect becomes more significant with the increase of the number of broken cables. These conclusions can provide guidance for structural safety assessment of similar arch bridges after cable breakage. Full article
(This article belongs to the Special Issue Soft Computing for Structural Health Monitoring)
Show Figures

Figure 1

8 pages, 1245 KB  
Article
Assessment of Posterior Dentoalveolar Expansion with Invisalign in Adult Patients
by Vincent Santucci, Paul Emile Rossouw, Dimitrios Michelogiannakis, Tarek El-Baily and Changyong Feng
Int. J. Environ. Res. Public Health 2023, 20(5), 4318; https://doi.org/10.3390/ijerph20054318 - 28 Feb 2023
Cited by 18 | Viewed by 4726 | Correction
Abstract
Purpose: The primary aim was to evaluate dentoalveolar expansion with Invisalign clear aligners comparing linear measurements in ClinCheck vs. cone beam computed tomography (CBCT). This would enable an assessment of to what extent expansion gained from Invisalign clear aligners was due to buccal [...] Read more.
Purpose: The primary aim was to evaluate dentoalveolar expansion with Invisalign clear aligners comparing linear measurements in ClinCheck vs. cone beam computed tomography (CBCT). This would enable an assessment of to what extent expansion gained from Invisalign clear aligners was due to buccal tipping and/or bodily translation of the posterior teeth. The study also evaluated the predictive value of Invisalign ClinCheck® (Align Technology, San Jose, CA, USA) to final outcomes. Methods: The orthodontic records of thirty-two (32) subjects comprised the sample to conduct this study. Linear values of the upper arch width were measured for premolars and molars at two different points (occlusal and gingival) utilized for ClinCheck® measurements and three different points for CBCT measurements before (T0 and after treatment (T1). Paired T-tests at a significance level of 0.05 were used for analyses. Results: Expansion was found to be possible with Invisalign clear aligners. However, more expansion was measured at the cusp tips compared to gingival margins (p < 0.0001), indicating more tipping was occurring than bodily translation. ClinCheck® also showed a significant overestimation of the amount of expansion capable, with nearly 70% expression in the first premolar area, and the expression decreased as one moved posteriorly with only 35% expressed at the first molar area (p < 0.0001). Conclusions: Dentoalveolar expansion with Invisalign is achieved through buccal tipping of posterior teeth and bodily translation; and there is a significant overestimation of the amount of expansion achieved between ClinCheck® and clinical results. Full article
(This article belongs to the Special Issue Recent Advances in Orthodontics and Clear Aligner Therapy)
Show Figures

Figure 1

24 pages, 24585 KB  
Review
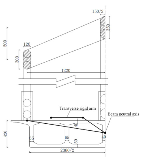
Track–Bridge Interaction of CWR on Chinese Large-Span Bridge of High-Speed Railway
by Bin Yan, Wenfei Kuang, Rui Gan, Haoran Xie and Jie Huang
Appl. Sci. 2022, 12(18), 9100; https://doi.org/10.3390/app12189100 - 10 Sep 2022
Cited by 9 | Viewed by 3454
Abstract
The track–bridge interaction is a fundamental concern in the field of railway engineering, which plays an important role in the optimization design of railway bridges, especially for heavy-haul railway and high-speed railway bridges. This paper systematically introduces the research status of the CWR [...] Read more.
The track–bridge interaction is a fundamental concern in the field of railway engineering, which plays an important role in the optimization design of railway bridges, especially for heavy-haul railway and high-speed railway bridges. This paper systematically introduces the research status of the CWR track–bridge interaction for large-span bridges of high-speed railway in China. The evolution process of the track–bridge interaction model from the simplest elastic bar and linear longitudinal resistance model to the complex beam–rail interaction model considering the loading history is described. In this paper, the modeling methods of the track–bridge interaction model for five types of long-span railway bridges, namely simply supported beam bridge, continuous beam bridge, cable-stayed bridge, arch bridge, and suspension bridge, are systematically introduced, and the characteristics of longitudinal force distribution under the track–bridge interaction are analyzed. This paper discusses the practical application of the theory of the track–bridge interaction on extra-large-span bridges from the aspects of system dynamic performance evaluation and system safety evaluation. The practical application of track–bridge interaction theory under special conditions such as earthquake load, complex temperature load, shrinkage and creep load, and superposition of multiple loads is emphasized. It provides guidance for the further improvement of the track–bridge interaction model and the design of large-span high-speed railway bridges in the future. Full article
(This article belongs to the Section Civil Engineering)
Show Figures

Figure 1

19 pages, 7966 KB  
Article
Numerical Study on Stratigraphic and Structural Deformation Patterns Considering Surface Load with Pile-Beam-Arch Method Construction
by Yu Zeng, Yao Bai, Yu Zou and Bo Huang
Symmetry 2022, 14(9), 1892; https://doi.org/10.3390/sym14091892 - 9 Sep 2022
Cited by 6 | Viewed by 1997
Abstract
Due to soil disturbance during the construction of metro stations, the initial stress of the stratum is modified, leading to ground settlement within a particular range, fracturing the surrounding buildings and even causing significant ground deformation and building collapse. This paper employed the [...] Read more.
Due to soil disturbance during the construction of metro stations, the initial stress of the stratum is modified, leading to ground settlement within a particular range, fracturing the surrounding buildings and even causing significant ground deformation and building collapse. This paper employed the Pile-Beam-Arch method to assemble the Daguanying Station of Beijing Metro Line 7 as the engineering background. The numerical calculation method was used to study the regulations of ground settlement and structural deformation throughout the construction stage. Meanwhile, the effect of surface loading was taken into account and surface settlement control strategies were suggested. Finally, the Stochastic medium theory was used to predict surface settlement. It was evident from the study’s findings that the pilot tunnels excavation and the arches installation accounted for 67% and 23.1% of the total surface settlement, respectively, and produced the most surface settlement. Surface settlement can be significantly reduced by utilizing grouting reinforcement technology and the pilot tunnels excavation approach of “upper first, then lower and side first, then middle”. The structure was much less stressed during the pre-construction stage, with the maximum principal stress ranging from 1 to 5 MPa; after construction was finalized, the maximum principal stress reached 14.203 MPa, concentrating mostly in the middle column part, which was the consequence of the combined action of the upper load and the lower soil uplift. Additionally, there was a linear relationship between the surface load and ground settlement. The bottom slab and the middle column were situated where the structure’s most unfavorable components were concentrated. The conclusions of the surface settlement prediction demonstrated that there were discrepancies between the theoretical calculation and the simulated; thus, the prediction results were more conservative. The study results can serve as a reference for construction sites. Full article
Show Figures

Figure 1

15 pages, 17110 KB  
Article
Dynamic Characteristics and Experimental Research of Linear-Arch Bi-Stable Piezoelectric Energy Harvester
by Xuhui Zhang, Fulin Zhu, Luyang Chen, Xiaoyu Chen, Yan Guo and Hengtao Xu
Micromachines 2022, 13(5), 814; https://doi.org/10.3390/mi13050814 - 23 May 2022
Cited by 5 | Viewed by 2394
Abstract
Collecting vibration energy in the environment is expected to solve the problem of the self-power supply of wireless monitoring nodes in underground coal mines. By introducing nonlinear factors, a linear-arch bi-stable piezoelectric energy harvester (LBPEH) is designed. In order to reveal the influence [...] Read more.
Collecting vibration energy in the environment is expected to solve the problem of the self-power supply of wireless monitoring nodes in underground coal mines. By introducing nonlinear factors, a linear-arch bi-stable piezoelectric energy harvester (LBPEH) is designed. In order to reveal the influence of system parameters on the dynamic characteristics of LBPEH, the magnetic force model is established by the magnetizing current method, and the restoring force model is acquired through experimental measurement. The electromechanical coupling dynamics model of the system is established based on the Lagrange equation and Kirchhoff’s law. The influence of excitation amplitude and excitation frequency on the dynamic characteristics of the piezoelectric energy harvester is simulated and analyzed. Moreover, experiments are designed to verify the results of the simulation. The results reveal that the restoring force of the linear-arch beam is nonlinear, and the LBPEH constructed by the linear-arch beam has an asymmetric potential well. Changing the excitation frequency or excitation amplitude can make the system in the well chaotic and achieve a large periodic motion state. With the increase of excitation amplitude, it is beneficial for the system to realize large periodic motion. The research provides theoretical guidance for the design of piezoelectric energy harvesters for different excitation conditions. Full article
Show Figures

Figure 1

12 pages, 19309 KB  
Article
Guided Bone Regeneration in the Edentulous Atrophic Maxilla Using Deproteinized Bovine Bone Mineral (DBBM) Combined with Platelet-Rich Fibrin (PRF)—A Prospective Study
by João Manuel Mendez Caramês, Filipe Araújo Vieira, Gonçalo Bártolo Caramês, Ana Catarina Pinto, Helena Cristina Oliveira Francisco and Duarte Nuno da Silva Marques
J. Clin. Med. 2022, 11(3), 894; https://doi.org/10.3390/jcm11030894 - 8 Feb 2022
Cited by 14 | Viewed by 4865
Abstract
Background: Bone regeneration procedures represent a major challenge in oral surgery. This study aimed to evaluate a composite PRF/particulate xenograft in guided bone regeneration. Methods: Edentulous patients with horizontal ridge deficiencies in the anterior maxilla and candidates to an immediate-loading full-arch rehabilitation were [...] Read more.
Background: Bone regeneration procedures represent a major challenge in oral surgery. This study aimed to evaluate a composite PRF/particulate xenograft in guided bone regeneration. Methods: Edentulous patients with horizontal ridge deficiencies in the anterior maxilla and candidates to an immediate-loading full-arch rehabilitation were included. Horizontal linear measurements indicating bone gain were assessed from computer beam computer tomography (CBCT) scans obtained at pre-surgery, post-surgery, and the 12-month follow-up. Mean bone values were presented as mean ± 95% CI. Non-parametric tests were used as appropriate, and the effect size was calculated with Cohen’s d repeated measures. Results: Eighteen patients were rehabilitated with 72 implants. The mean horizontal bone width was 4.47 [4.13–4.80] mm pre-surgically, 9.25 [8.76–9.75] mm post-surgically, and 7.71 [7.28–8.14] mm 12 months after. Conclusions: PRF associated with a xenograft seems to promote an effective horizontal bone gain. Randomized clinical trials are needed to confirm the benefits of this surgical approach. Full article
Show Figures

Figure 1

15 pages, 3960 KB  
Article
Skeletal and Dental Morphological Characteristics of the Maxillary in Patients with Impacted Canines Using Cone Beam Computed Tomography: A Retrospective Clinical Study
by María Elena Montes-Díaz, Alicia Martínez-González, Riánsares Arriazu-Navarro, Alfonso Alvarado-Lorenzo, Nuria Esther Gallardo-López and Ricardo Ortega-Aranegui
J. Pers. Med. 2022, 12(1), 96; https://doi.org/10.3390/jpm12010096 - 12 Jan 2022
Cited by 11 | Viewed by 3793
Abstract
The aim of this study is to analyze the skeletal and dentoalveolar morphological characteristics of the maxillary in subjects with a unilateral palatally impacted canine using Cone Beam Computed Tomography (CBCT). A retrospective clinical study was conducted of 100 adult patients divided into [...] Read more.
The aim of this study is to analyze the skeletal and dentoalveolar morphological characteristics of the maxillary in subjects with a unilateral palatally impacted canine using Cone Beam Computed Tomography (CBCT). A retrospective clinical study was conducted of 100 adult patients divided into two groups: one consisting of patients with a unilaterally palatally impacted maxillary canine (GI), with the subgroups in the right and left hemiarches (GI-R and GI-L), and the second, without impacted canine, as the control group (CG). The CBCT measured skeletal variables (maxillary basal width and alveolar crest height) and dentoalveolar variables (inclination of the upper incisor, tooth lengths of incisors and canines, arch length, tooth size and bone dental discrepancy). In skeletal variables, statistically significant differences were found in alveolar crest height (ACH) in all groups and subgroups (p < 0.01). In the dentoalveolar variables, there were differences in the angle of the upper incisor (II) and lateral incisor length (LLIL) between the GI and GC and the angle of the upper incisor (II′), arch length (AL′) and arch length-tooth size discrepancy (ATD′) among the GI subgroups (p < 0.01). There are skeletal and dentoalveolar differences in patients with unilateral palatally impacted maxillary canines, with lower angular and linear measurements compared with patients without impaction. Full article
(This article belongs to the Special Issue New Trends in Precision Medicine)
Show Figures

Figure 1

15 pages, 4115 KB  
Article
A Method for Parameter Identification of Composite Beam Piezoelectric Energy Harvester
by Xuhui Zhang, Chao Zhang, Lin Wang, Luyang Chen, Xiaoyu Chen, Dongmei Xu, Hongwei Fan and Fulin Zhu
Sensors 2021, 21(21), 7213; https://doi.org/10.3390/s21217213 - 29 Oct 2021
Cited by 6 | Viewed by 2435
Abstract
This paper proposes a parameter identification method for the multiparameter identification study of the linear–arch composite beam piezoelectric energy harvester. According to the voltage response characteristics of the system under short-circuit conditions, the mechanical equation is solved by transient excitation, combined with the [...] Read more.
This paper proposes a parameter identification method for the multiparameter identification study of the linear–arch composite beam piezoelectric energy harvester. According to the voltage response characteristics of the system under short-circuit conditions, the mechanical equation is solved by transient excitation, combined with the backbone curve theory and logarithmic attenuation method, to obtain the system’s linear damping, linear stiffness, and nonlinear stiffness. According to the voltage response characteristics of the system under open-circuit conditions, combined with the electrical equations, the system electromechanical coupling coefficient and equivalent capacitance coefficient are obtained; numerical simulation results show that the identification parameters have good accuracy. Finally, an experimental platform was built for verification, and the results show that the method has high accuracy and practicability. Full article
Show Figures

Figure 1

Back to TopTop