Abstract
The construction of concrete pavements has increased due to their better durability, lifespan, and lower maintenance costs. However, this has resulted in the increased consumption of Portland cement, which is one of the major contributors to carbon emissions. Consequently, the research on alternative binders such as geopolymer concrete has increased in recent times. There are several research studies that investigate the feasibility of geopolymer concrete as a construction material, with limited studies exploring its application in concrete pavements. Therefore, this review study explores the material properties of geopolymer concrete pertinent to the performance of concrete pavements. It also discusses the potential of various industrial and agricultural waste as precursor material in geopolymer concrete. The findings of this paper show that most of the studies used fly ash and ground granulated blast furnace slag (GGBFS) as precursor material in geopolymer pavement-quality concrete, and there is a vast scope in the exploration of other industrial and agricultural waste as precursor material. The mechanical and durability properties of geopolymer pavement-quality concrete are superior to conventional pavement concrete. It is also observed that the drying shrinkage and coefficient of thermal expansion of geopolymer pavement-quality concrete are lower than those of conventional pavement concrete, and this will positively benefit the long-term performance of concrete pavements. The results of fatigue analysis and mechanical load test on the geopolymer pavement-quality concrete indicate its improved performance when compared to the conventional pavement concrete.
1. Introduction
The need for construction of roadway pavement from an economic, environmental, and social viewpoint has become an important priority for highway officials. Pavements should provide durability under various weather conditions and require less repair and maintenance during their service life. Therefore, the popularity of concrete pavement has risen over time due to its better design life, durability, and lower maintenance when compared to asphalt pavements [1]. In India, the government has emphasized the progress of a world-class multimodal transport network. Therefore, in the 2024–2025 budget, the central government sanctioned a massive amount of 32.7 billion USD for the Ministry of Road Transport and Highways (MoRTH) [2]. This will tremendously increase the demand for the production of Portland cement concrete for the construction of concrete pavements. While concrete pavement seems to be favorable for rapid infrastructure development, the negative effects of Portland cement concrete on the environment cannot be ignored. For instance, the production of Portland cement is estimated to contribute towards 8% of global CO2 emissions [3]. Figure 1 shows the contribution of carbon emissions during the various stages of Portland cement production. Portland cement production depends heavily on raw materials, which are extracted from natural habitats. The extraction of such materials in voluminous quantities causes a negative impact on the environment and results in biodiversity loss [4]. Thus, globally, the need for sustainable construction materials in the application of pavements has become an attractive approach.
Figure 1.
CO2 emissions during various stages of Portland cement production [5].
Geopolymers are inorganic polymers that are formulated with aluminosilicate materials along with alkaline activators. The raw aluminosilicate consists of materials such as slag, fly ash, metakaolin, etc., with alkaline activators such as sodium silicate and sodium hydroxide. The interaction of alkaline solution with aluminosilicates results in a three-dimensional inorganic structure that consists of an interconnected network of tetrahedral silicon-oxygen and aluminum-oxygen units sharing oxygen atoms, as shown in Figure 2. This mechanism was proposed by Davidovits, and in such a system, the metal cations, which are Na+, K+, and Ca2+, become embedded in the framework to balance the negative charges [6].
Figure 2.
Mechanism of geopolymer reaction [7].
The chemical formula of such a system is represented in Equation (1) taken from [6];
where the degree of polymerization is denoted by n and the metal cations are denoted by M, and the ratio of silica to alumina is indicated by z. From this equation, it is clear that silica and alumina play a crucial role in the geopolymerization process. The industrial byproducts rich in silica and alumina have great potential in geopolymer concrete. Therefore, the application of geopolymer binders provides a great opportunity for the development of sustainable pavement-quality concrete. Another interesting field is alkali activation, which is different from geopolymerization. Alkali-activated materials have shown potential for sustainable binding materials due to lower embodied energy [8]. Slag is used in alkali activation, and the glassy substance in such a system depolymerizes due to the action of alkali, resulting in the formation of calcium di-silicate hydrate (C–S–H) [9]. In the case of Ca-rich alkali-activated material, the major binding phase is calcium (sodium) aluminate silicate hydrate (C–(N–)A–S–H), while in the case of Ca-low system, the major binding phase is sodium-aluminate-silicate-hydrate (N–A–S–H) [10]. Therefore, low calcium alkali-activated materials are called geopolymer.
Mn [–(Si–O2) z–O–Al–O–] ngwH2O
The quality of concrete is important to ensure the service life of concrete pavements. Therefore, in the selection of sustainable materials for pavement construction, it is crucial to ensure that they satisfy the required specifications and provide environmental benefits over the long term [11]. The durability of geopolymer concrete is attributed to the development of stable sodium aluminosilicate (N–A–S–H) gel, and in the case of alkali-activated materials, the presence of calcium develops stable calcium aluminosilicate (C–A–S–H) gel. The development of N–A–S–H and C–A–S–H gel progresses with age to form solid N–A–S–H and C–A–S–H crystals, which provide the bonding and stability properties to the geopolymer matrix [12]. Due to this distinctive inorganic polymer structure, it possesses exceptional mechanical and durability properties, which make it ideal for its application in pavement-quality concrete. There are numerous review studies that emphasize the properties and applications of geopolymer concrete [13,14,15,16,17,18,19,20,21,22,23,24,25,26]. However, very few studies assess the suitability of geopolymer concrete for pavement applications. Moreover, a detailed discussion on the properties of geopolymer concrete from a perspective of pavement performance is very scarce in the existing literature. Therefore, this study has emphasized a systematic review of research papers on geopolymer pavement-quality concrete. This review paper is presented in four main chapters as follows:
- (a)
- Precursor materials used in geopolymer concrete.
- (b)
- Alkaline activators used in geopolymer concrete.
- (c)
- Material properties relevant to the performance of geopolymer pavement-quality concrete.
- (d)
- Performance studies on geopolymer pavement-quality concrete.
2. Precursor Materials Used in Geopolymer Concrete
This chapter provides a detailed discussion on various precursor materials that are used in geopolymer binder formulation. In geopolymer binder formulation, precursors are aluminosilicate materials that contain silica (SiO2) and alumina (Al2O3). Moreover, the use of calcium-rich material such as slag is also common in geopolymer concrete. The precursor materials will completely replace Portland cement in proportioning pavement-quality concrete; therefore, a detailed discussion on this subject is necessary. In this regard, various precursors such as natural pozzolans and artificial pozzolans, which include fly ash, ground granulated blast furnace slag, silica fume, red mud, calcined clay, iron-rich clay, nonferrous slag, clay-rich sludge, glass powder, rice husk ash, sugarcane bagasse ash, and corncob ash are briefly discussed in the following sections.
2.1. Natural Pozzolans
Soils that are formed during the volcanic eruption and contain aluminosilicates are called natural pozzolans. The main chemical components of calcined clay are SiO2 and Al2O3, and due to its high content of aluminosilicate, it acts as a good cementitious material. Thus, it is widely used along with lime to form rock-like material upon curing [27]. Due to the pozzolanic properties, these soils are popularly known as natural pozzolans and are very effective as precursor material for geopolymer concrete. Various types of cements and cement pastes were prepared using volcanic ash, which is considered to be natural pozzolan by many researchers in the past [28]. Previous studies confirm the efficiency of natural pozzolans as a precursor for geopolymer concrete. The common natural pozzolans used in various constructions are volcanic ash (tuff), diatomaceous earth, opaline cherts, shales, pumicites, etc. Natural pozzolans are increasingly used in construction practices to reduce the carbon footprint associated with the production of Portland cement. In another study [29], it showed that geopolymer concrete made with natural pozzolans (natural zeolite) as a precursor had better compressive strength than regular cement concrete when cured at a temperature of 40 °C. This method of concrete is more eco-friendly than regular cement concrete. Moreover, there is a wide scope to continue research on these natural pozzolans with various activated materials for the development of sustainable construction practices.
2.2. Artificial Pozzolans
2.2.1. Fly Ash
Fly ash is a commonly used precursor in geopolymerization. The main chemical components of fly ash are SiO2, Al2O3, Fe2O3, and CaO. It is a fine powder generated in thermal power plants during the combustion of coal, commonly referred to as coal fly ash. However, in countries with abundant wood resources, the combustion of wood or biomass generates wood ash or biomass fly ash. Due to its fine nature, it has become a challenge for the industries with respect to its handling and disposal. Moreover, the storage of fly ash poses environmental issues due to secondary dusting [30]. The secondary dust from fly ash storage can be a source of water and air pollution. Furthermore, fly ash can contain heavy metals and toxic substances that can enter the environment and impact human health and the ecosystem. The global fly ash generation exceeds 363 million tons annually, with India being the leading country, followed by China and the US [31]. Since fly ash can be used for the synthesis of fly ash-based geopolymer concrete, it is estimated that approximately 2 billion tons of fly ash would be required to completely replace Portland cement [32]. A compressive strength of 82 MPa was obtained for fly ash-based geopolymer concrete, which shows its potential for construction applications [33]. In another study [34], the combination of fly ash with other industrial waste in the synthesis of geopolymer concrete achieved a compressive strength in the range of 16 MPa to 62 MPa. Fly ash is also used as a supplementary cementitious material in Portland cement concrete production. It offers several advantages, particularly enhancing the durability and dimensional stability of concrete. It minimizes the drying shrinkage of concrete, lowers its porosity, decreases water sorptivity, and reduces chloride permeability [35]. The workability of fly ash-based geopolymer increases up to 120% in the flow table test, which indicates that fly ash is ideal for the production of geopolymer concrete. The microstructure studies on fly ash-based geopolymer confirm the improvement in the density of the concrete structure [36]. Moreover, the leachate characteristics of fly ash-based geopolymer show it is environmentally safe and does not contaminate the ground or surface water [37].
2.2.2. Ground Granulated Blast Furnace Slag
Ground Granulated Blast Furnace Slag (GGBFS) is a byproduct from the iron and steel making industries. The main chemical components of GGBFS are CaO, SiO2, Al2O3, and MgO. Annually, the global output of GGBFS is approximately 394 million tons, with China leading in its production, which accounts for 267 million tons [38]. GGBFS gives an effective stability matrix and helps in lowering the curing temperature for geopolymer concrete [39]. The hydration products of alkali-activated GGBFS are gel-type C(–A) –S–H, N–A–S–H, and K–A–S–H [40]. Calcium reacts with reactive silica from the source material and alkaline solution, which results in the formation of the calcium silicate hydrate (C–S–H) and calcium aluminosilicate hydrate (C–A–S–H) gel [41]. The microstructure studies reveal that GGBFS is mostly amorphous, and thus it is more reactive when compared to fly ash. The particle size analysis shows that GGBFS is finer than fly ash, with 95% finer than 30 μm, as compared to 60% for fly ash, which affects its reactivity [42]. The major advantage of GGBFS is that it accelerates the rate of setting of the geopolymer concrete and assists in the strength development with time [43]. A geopolymer mix with 80% GGBFS with 8 molar (M) sodium hydroxide and with a ratio of sodium silicate to sodium hydroxide of 2.5, achieves compressive strength of 35 MPa, which shows that GGBFS is effective in the production of geopolymer concrete with the right proportion of alkaline activators [44]. It is a direct replacement for cement, and it has many advantages, including an extended life cycle of concrete, durability of concrete, and a reduction in the carbon and energy footprint of concrete production [45].
2.2.3. Silica Fume
Silica fume is a byproduct generated from the silicon and ferro-silicon industries. Silica fume is a highly reactive, ultra-fine pozzolanic material, made up mainly of amorphous silicon dioxide (SiO2). On average, globally, 1 to 1.5 million tons of silica fume are produced, which becomes a major concern of disposal for many industries [46]. Its particles are about 100 times finer than the average cement particles, with sizes generally between 0.1 to 0.3 microns. This very fine particle size leads to an extremely high specific surface area, which greatly increases its reactivity [47]. Silica fume can be used as an auxiliary precursor in the manufacture of geopolymers, particularly when used along with materials such as metakaolin or fly ash. While silica fume itself is not an ideal geopolymer precursor, because it contains a low concentration of alumina, it can dramatically enhance the performance of geopolymer systems if used as an activator or additive due to the presence of high silica content. The chemical composition of silica fume includes 97.02% of SiO2, 0.55% of Al2O3, 0.21% of Fe2O3, 0.32% of CaO, 0.98% of K2O, and 0.49% of MgO [48]. Introducing silica fume helps to increase the strength of the composition, energy absorption capacity, while decreasing the pH, which shows that the addition of silica fume helps to increase the geopolymerization [49]. Another study reveals that the addition of silica fume to the cemented sand increases the maximum shear strength and stiffness [50]. One more study shows that silica fume, with its very small spherical particles, improves the ball-bearing and micro-filling effects, which refines the pore structure and decreases pore connectivity, substantially lowering the diffusion and leaching of mobile alkali ions [51].
2.2.4. Red Mud
Red mud is an industrial waste generated during Bayer’s process in the extraction of aluminum from bauxite. The storage of untreated red mud can cause serious challenges due to its strong alkalinity. In a disastrous event, the strong alkaline red mud effluents can enter the ground, contaminating the soil and the groundwater [52]. Furthermore, it can affect the growth of crops and pose a health hazard to human beings. The main chemical components of red mud are Fe2O3, Al2O3, and SiO2. On average, producing one tonne of alumina results in about 1.23 tonnes of red mud, with values varying between 0.55 and 2.21 tonnes depending on the type of bauxite and processing methods used. Each year, around 175 million tonnes of red mud are produced [53]. Due to the presence of high silica and alumina, it is efficient in making geopolymer concrete. The combination of red mud and GGBFS geopolymer concrete has achieved compressive strength of 54 MPa, which indicates that this combination can even be used for load-bearing structures [54]. Similarly, studies show that up to 50% of red mud can be used in the preparation of geopolymer concrete with a compressive strength of approximately 66 MPa [55]. The microstructure studies reveal that a significant amount of geopolymeric products is formed through the reaction of OH− with the aluminosilicate components of fly ash and red mud in the strongly alkaline environment. The products of such a reaction are far superior to the conventional cement concrete, as they exhibit lower porosity, an improved pore structure, and reduced permeability to chloride ions [56]. With respect to durability, the red mud-based geopolymer concrete shows a better ability to protect the steel bars from corrosion when compared to the cement mortars [57]. In conclusion, red mud is considered to be a suitable precursor due to its particle size, chemical properties, and reaction mechanism in geopolymer concrete.
2.2.5. Calcined Clay
Calcined clay is made by heating clay at a temperature of 600 °C to 750 °C, resulting in changes with respect to the chemical composition properties. The main chemical components of calcined clay are SiO2 and Al2O3 [58], and the global annual production of calcined clay is approximately 3.9 million tons [59]. When a normal clay, preferably kaolinite clay, is heated at such a temperature, the pozzolanic properties will develop in the clay, which is necessary as a binding material. The amount of silica increases with the increase of temperature, and thus forms calcined clay, which is suitable as a precursor for the geopolymer concrete [60]. Calcined clay is also popularly known as metakaolin or industrial pozzolan. By mixing calcined clay with an alkaline solution, a three-dimensional synthetic material is formed, which is called calcined clay-based geopolymer concrete, and the process is called geopolymerization [61]. A compressive strength of 50 MPa was achieved by mixing calcined clay with alkaline solution, which completely replaces conventional Portland cement and indicates its suitability as a precursor material for geopolymerization [62].
2.2.6. Iron-Rich Clay
Iron-rich clay possesses a high amount of iron in its mineral composition and is also popularly known as iron-bearing clay minerals. Kaolin is one example of iron-rich clay, which is available in many countries [63]. Based on the type of iron and the clay present in soil, the amount of silica and alumina varies. The global annual production of iron-rich clay is approximately 3.5 million tons [64], and the normal iron-enriched clay has 40–45% of SiO2 and 35–40% of Al2O3, which indicates the high concentration of necessary elements for the geopolymerization and proves as a good precursor for the alkaline activated concrete [65]. One of the research studies showed that iron-rich fly ash-based geopolymer concrete produces a compressive strength of 46 MPa after 28 days, and it proves that iron-rich waste material is also suitable for geopolymer concrete [66]. In another study, it showed that kaolin-based geopolymer concrete attains a compressive strength of 45 MPa after seven days curing, and it confirms that iron-rich clay is also a suitable precursor in geopolymer concrete [67].
2.2.7. Nonferrous Slag
The main chemical components of nonferrous slag are Fe2O3, SiO2, CaO, and Al2O3 [68], and the global annual generation of nonferrous slag is approximately 280 million tons [69]. Nonferrous slag is a byproduct of the recovery, refining, and processing of nonferrous metals from primary raw materials such as ores and secondary raw materials such as recycled scrap. This slag is formed as molten residue during a high-temperature metallurgical process. The process is specifically designed to extract and purify nonferrous metals such as aluminum, copper, lead, nickel, and zinc by separating the valuable metal components from the impurities [70]. The most common situation involves the smelting and refining of nonferrous ores. During this process, raw materials undergo high-temperature treatment in furnaces, causing gangue (non-metallic impurities) and fluxes (which aid in separation) to melt together, forming a liquid slag. Since slag is less dense than the metal, it floats to the top of the furnace, allowing for easy removal. Nonferrous slag is diverse in its composition and depends on factors such as the metal being processed, the raw materials used, and the process conditions. The primary components of this slag include silicates, aluminates, oxides, and other compounds. Despite being byproducts, nonferrous slag often exhibits properties that make it suitable for secondary applications. These applications include their use in construction materials, such as aggregates for road construction, cement production, or as fill material. The reuse of nonferrous slag minimizes the environmental impact of disposal while promoting sustainable resource management and contributing to the development of a circular economy. There are very few research studies that attempt a synthesis of geopolymer concrete using nonferrous slag. The compressive strength of the nonferrous-based geopolymer concrete, along with some fibers, has attained a value of 55 MPa, which is desirable for various construction [71]. Another type of slag, which increases the strength of geopolymer concrete, is granulated phosphorous slag (GPS). GPS is produced from the yellow phosphorous manufacturing process through the electric furnace method. The research shows that the addition of GPS can influence the physical, mechanical, and microstructural properties of fly ash-based geopolymer concrete by up to 50%. The compressive strength of the class F fly ash-based geopolymer concrete has increased with the increase of GPS content up to 50% which indicates that GPS is a good resource from the waste [72].
2.2.8. Clay-Rich Sludge
Clay-rich sludge is a waste produced from various human activities containing a high quantity of clay. Due to the presence of clay, it can be used as a construction material such as fired clay bricks [73,74]. The main chemical components of clay-rich sludge are SiO2 and Al2O3 [75], and the global annual generation of clay-rich sludge is approximately 45 million tons [76]. Due to high silica and alumina, the sludge also has the potential to react with the alkaline activator and behave as a precursor material. The chemical stability increases with the addition of waste treatment sludge in the case of clay-rich sludge-based geopolymer concrete. This indicates a characteristic of good cementitious material with the addition of sludge [77]. Even soil can be stabilized using the clay-rich sludge along with the alkaline activators, which gives a wide scope for using such materials as a precursor for geopolymer concrete. The microstructural analysis shows the development of cementitious materials with the addition of this waste sludge. It is also observed that the type of clay present in the sludge influences the quality of precursor for the alkali-activated binder [78].
2.2.9. Glass Powder
Glass powder is finely ground crushed glass with a median grain size ranging from 30 µm to as fine as 0.1 µm. Glass powder is primarily composed of silica, and the global annual generation of glass powder is approximately 200 million tons [79]. Research indicates that incorporating 20% waste glass powder into an alkali-activated system maintains its strength and supplies reactive silica for geopolymerization. Waste glass powder has also been shown to improve soil stabilization by reducing water content, organic matter, and plasticity index, offering a cost-effective and environmentally friendly alternative to Portland cement. Studies highlight the synergistic effects of combining glass powder with other materials, such as fly ash [80]. For instance, Samarakoon et al. [81], reported improved workability, setting time, and microstructural properties of geopolymer binders with 30% waste glass powder substitution. Romero et al. [82], developed glass–ceramic foams from soda-lime glass and coal fly ash using weak alkali activation, resulting in materials with high mechanical strength, low thermal conductivity, and high porosity—ideal for thermal and acoustic insulation in building applications.
2.2.10. Rice Husk Ash
Rice husk ash is a byproduct of rice milling industries produced by burning the rice husk after separating it from the paddy [83]. The main chemical component of rice husk ash is SiO2 (approximately 88% to 97%), with minor components of Al2O3, CaO, K2O, MgO, Na2O, and Fe2O3. Rice husk ash is available across the world, with India as one of the top producers, and the global rice husk ash market is projected to reach 3.1 billion USD by 2030 [84]. In the past, rice husk ash has been successfully used in the production of geopolymer concrete. Rice husk ash is a biogenic silica source used to produce low-cost activators in geopolymers. The addition of about 15 wt.% rice husk ash improved geopolymer properties through filling effects and the formation of strong Si-O-Si bonds, thus improving strength. Due to its availability and performance, rice husk ash is a promising material in geopolymer applications [85]. Another study shows that the presence of 90% silica in rice husk ash is favorable for geopolymer concrete, where the strength and durability of geopolymer material primarily depend on the amount of silica [86]. Therefore, rice husk ash is a very good precursor material for the geopolymer concrete, which is widely available in all countries the paddy is grown.
2.2.11. Sugarcane Bagasse Ash
Sugarcane is abundantly grown in countries like India, Thailand, and the Philippines, from where sugarcane bagasse ash is produced after the incineration of waste sugarcane bagasse. Sugarcane bagasse ash shows substantial pozzolanic activity. It reacts with alkalis to form cementitious compounds, which further improve the strength and durability of the concrete with time. The chemical composition of sugarcane bagasse ash consists of SiO2, Al2O3, Fe2O3, CaO, and K2O. Moreover, sugarcane bagasse ash contains amorphous silica, which actively participates in the alkali-activation process, leading to the formation of calcium silicate hydrate (C–S–H) and contributing to strength-enhancing phases. The finely ground nature of sugarcane bagasse ash increases its surface area, thereby enhancing its reactivity and integration in the matrix to give a denser and stronger material structure. The amorphous nature of sugarcane bagasse ash also makes it reactive to a certain extent, ensuring effective interaction with the alkaline activators. Sugarcane bagasse ash contributes to the generation of hydration products, which are accountable for strength development mainly at later curing stages [87].
2.2.12. Corncob Ash
Corn cob ash is obtained from the burning of corn cobs, which are the central core of corn ears after the removal of kernels. It is a byproduct from the production of corn, generating about 170–190 kg of corncob for every 1000 kg of corn. Based on existing data, the global availability of corncob ash is approximately 4500 tons a year [88,89]. Corn cob ash is a readily available and economically feasible precursor material in the manufacturing process of geopolymer concrete. It is an abundant agricultural residue with a high concentration of minerals, especially silica (SiO2) and alumina (Al2O3), which constitutes about 70% when combined. Due to the presence of a high concentration of soluble silica and alumina, corn cob ash can become a valuable precursor for the preparation of geopolymer concrete [90].
3. Alkaline Activators Used in Geopolymer Concrete
An alkaline activator is necessary in the synthesis of geopolymers, which activate the aluminosilicate materials. These activators dissolve silica and alumina from the source material, and further allow it to polycondense into a solid binder. The most common alkaline activators are sodium hydroxide (NaOH), potassium hydroxide (KOH), sodium silicate (Na2SiO3), and potassium silicate (K2SiO3). The global market size for these activators is expected to grow in the coming years. For instance, the compounded annual growth rate of NaOH, Na2SiO3, KOH, and K2SiO3 is 4.6%, 4.2%, 3.3%, and 3.7%, respectively [91,92,93,94]. It is clear that the increase in usage of NaOH and Na2SiO3 in the construction industry will drive its market in the coming years. Similarly, most literature indicates that the frequency of the use of NaOH, and the combination of NaOH and Na2SiO3, is more when compared to the other types of alkaline activators. Based on existing studies and the frequency of usage of alkaline activators, it can be categorized into: commonly used, moderately used, and less commonly used. Figure 3 shows the usage frequency of different types of alkaline activators in geopolymer binders.
Figure 3.
Usage frequency of alkaline activators in geopolymer binders.
One of the practical challenges of geopolymers and alkali-activated materials is the high cost and energy footprint of the activators. For instance, the energy required for the production of NaOH is approximately 20.5 GJ/t, and that for Na2SiO3 is approximately 5.37 GJ/t [95]. Therefore, researchers are attempting alternative activators derived from waste materials such as rice husk ash [96,97,98], glass waste [99,100], sugar cane straw ash [101], olive biomass ash [102,103], etc. Thus, the current research trend is to develop alternative activators from industrial waste that can reduce both cost and energy consumption.
4. Material Properties Relevant to the Performance of Geopolymer Pavement-Quality Concrete
This chapter discusses the material properties of geopolymer concrete from the viewpoint of the performance of pavements. Performance-related concrete properties, such as workability, compressive strength, split tensile strength, flexural strength, modulus of elasticity, resistance to abrasion, resistance to freeze–thaw and wet–dry cycles, drying shrinkage, and coefficient of thermal expansion, are considered in the following sections.
4.1. Flow Properties
The workability of geopolymer concrete is lower than that of conventional Portland cement concrete [104]. This is primarily attributed to the viscous alkaline solution and the physical characteristics of the precursor materials used in the synthesis process. To achieve desirable workability for pavement application, it is necessary to add extra water to the viscous alkaline solution [105,106]. The workability of geopolymer concrete is also affected due to the morphology of the precursor materials. For instance, the spherical morphology of fly ash particles imparts a better workability than the angular morphology of GGBFS particles [107]. Moreover, the reactivity of precursor materials will also contribute towards faster setting and a reduction in the workability of the fresh mix. According to Badkul et al. [108], in fly ash–GGBFS geopolymer pavement concrete, the slump of fresh mix reduces with an increase in the concentration of NaOH and GGBFS content. As per the authors, there was a 68% decrease in slump when the molarity of NaOH increased from 10 to 14, whereas there was a 79% decrease in slump when GGBFS content increased from 20% to 33%. Therefore, in order to ensure desirable workability for geopolymer pavement-quality concrete, it is crucial to prepare the mix with optimum quantity and proportion of precursor materials and alkaline activators.
4.2. Compressive Strength
The compressive strength of concrete is perhaps the most widely adopted performance characteristic used for the design of concrete structures. The compressive strength of concrete relates well to its hardened microstructure [109]. Additionally, the compressive strength correlates well with the flexural strength of the concrete and gives an indication of the density and permeability of the hardened concrete structure. Therefore, compressive strength is specified and measured in concrete pavement applications. As per MoRTH, the minimum target compressive strength at 28 days is 40 MPa for low-volume concrete roads and 50 MPa for high-volume concrete roads [110]. Geopolymer concrete relies on alkaline activators such as sodium hydroxide or a combination of sodium silicate and sodium hydroxide, and therefore, its concentration and proportion will significantly influence the polymerization process. This will further impact the setting time, hardness, and final mechanical strength. The aluminosilicate precursor material type also influences the compressive strength of geopolymer pavement concrete [111]. Moreover, increasing the sodium hydroxide molarity from 10 to 14 results in a significant improvement in the compressive strength of concrete, and inclusion of GGBFS delivers an excellent balance of workability and strength. This improvement is attributed to the accelerated dissolution of Si and Al ions from the precursor materials, which enhances the formation of binding gels such as calcium-aluminum-silicate-hydrate (Ca–Al–Si–H) and sodium-aluminum-silicate-hydrate (Na–Al–Si–H). Badkul et al. [108] reported that utilizing a 12 M NaOH along with 30% GGBFS yields a geopolymer concrete with 28-day compressive strength meeting the pavement-quality concrete (PQC) standard requirements. Furthermore, this composition maintains satisfactory workability, highlighting its potential for practical applications in sustainable construction. It is observed that metakaolin-based geopolymer concrete is more effective for rigid pavement slabs when compared to the Portland cement concrete [112]. Since such materials demonstrate superior early strength development due to the high reactivity of metakaolin, which enhances the geopolymerization process. Geopolymer concrete is ideal for pavement repairs, especially when early traffic access is needed. The best ratio of silicon dioxide to sodium oxide for faster geopolymerization and higher compressive strength is 1.0 [113]. This strength was higher than that of the conventional pavement-quality concrete, showing that the calcium oxide from GGBFS enhances the concrete’s performance [114]. Fly ash-based geopolymer concrete with 10M NaOH and a ratio of sodium silicate to sodium hydroxide of 2.0 attained a compressive strength of 47 MPa after 28 days of curing, which exceeds the minimum requirement for rigid pavement application [115]. The highest 28-day compressive strength of 62 MPa was achieved for geopolymer concrete with 75% GGBFS and 25% fly ash along with conventional aggregates. Furthermore, adding hybrid fibers such as steel fibers and polypropylene fibers significantly enhances the compressive strength of geopolymer concrete. The optimal hybrid fiber dosage was found to be 1%, and beyond this dosage, the compressive strength decreased due to fiber clumping and a weak fiber-matrix interface [116]. With a mix of 50% fly ash and 50% GGBFS along with NaOH molarity of 14, and a ratio of sodium silicate to sodium hydroxide of 2.5, it achieved compressive strength of 55 MPa after 28 days of ambient curing. Such geopolymer concrete proportions can be used for high-volume roads, and it is suitable for early opening of the roadway traffic [117]. Table 1 summarizes the results of compressive strength from various studies on geopolymer pavement-quality concrete.
Table 1.
Summary of compressive and split tensile strength for geopolymer pavement-quality concrete.
4.3. Split Tensile Strength
Pavement structures are subjected to repeated tensile stresses resulting from dynamic traffic loading, thermal expansion and contraction, shrinkage, and moisture fluctuations. Concrete is naturally weak in tension; therefore, split tensile strength is an important measure of the material’s crack resistance, which directly impacts the durability and lifespan of pavements. In the context of geopolymer concrete, which utilizes alternative binders such as fly ash and GGBFS, the split tensile strength plays an essential role in assessing the mechanical integrity and long-term performance of sustainable pavement materials. Enhanced split tensile strength of geopolymer concrete is often attributed to improved interfacial transition zone and superior bond strength between aggregates and the geopolymer binder matrix, which is crucial under varying environmental and loading conditions. Experimental investigations have shown a strong influence of alkali concentration and precursor composition on the split tensile strength of geopolymer concrete. Table 1 summarizes the results of split tensile strength from various studies on geopolymer pavement-quality concrete. The average split tensile strength of fly ash-based geopolymer concrete increased from 3.96 MPa to 4.82 MPa, representing a 21% improvement, when the sodium hydroxide molarity increased from 10 to 12. Similarly, increasing the GGBFS content from 20% to 33% resulted in a gain in split tensile strength from 3.81 MPa to 4.88 MPa, equivalent to a 28% increase. These enhancements were attributed to superior gel formation and polymerization, especially the development of C–S–H and C–A–S–H gels, which reinforce the binder matrix and contribute to improved split tensile strength when compared to control specimens made of ordinary Portland cement concrete [108]. Several studies have confirmed that geopolymer concrete exhibits split tensile strength values comparable to or greater than those of conventional concrete. For example, one study reported a splitting tensile strength of 3.8 MPa at 28 days, while others observed split tensile strength values ranging between 2.25 MPa and 3.65 MPa at a similar curing period, thus validating the suitability of geopolymer concrete for pavement applications subjected to repeated tensile stresses [112,114]. Moreover, variations in the alkaline solution to binder ratio and the sodium silicate to sodium hydroxide ratio significantly affect the split tensile strength. An increase in the alkaline solution to binder ratio from 0.45 to 0.50 led to measurable gains in splitting tensile strength. A mix with 8M NaOH and a sodium silicate to sodium hydroxide ratio of 3 achieved a splitting tensile strength of 4.2 MPa, underscoring the importance of optimized activator concentrations in strength development [118]. A regression model using least-squares fitting was proposed to estimate the split tensile strength of ambient-cured fly ash–GGBFS-based geopolymer concrete to assist in predictive modeling. The empirical Equation (2) is taken from [117]
where Fs = split tensile strength, fck = obtained compressive strength at 28 days of ambient curing. This relationship provides a reliable method for correlating compressive strength to tensile performance in geopolymer mixtures intended for rigid pavement applications.
Fs = 0.47fck0.5
4.4. Flexural Strength
Flexural strength is a critical design parameter for concrete pavements, as it governs the ability to resist repetitive flexural stresses caused by the traffic loads. This parameter quantifies the structural resistance to cracking and failure under flexural loading, ensuring the pavement’s durability and serviceability. Sufficient flexural strength reduces the likelihood of early structural deterioration, minimizes maintenance demands, and prolongs the service life of pavements, particularly in regions with heavy traffic. Research indicates that geopolymer concrete of similar grades exhibits superior flexural strength when compared to ordinary Portland cement concrete [119]. According to IRC: 58-2002 [120], the 28-day flexural strength of cement concrete should be at least 4.5 MPa for pavement applications. This value can be derived from the characteristic compressive strength of conventional Portland cement concrete using the relationship specified in IS: 456-2000, as expressed in Equation (3) taken from [121].
where Fcr = flexural strength in MPa, and fck = compressive strength of concrete in MPa
Fcr = 0.7fck0.5
Ravi Kumar and Venkateswara Rao [117] investigated geopolymer pavement concrete incorporating GGBFS and fly ash and activated using a 12 M sodium hydroxide. The study reported a flexural strength of 4.68 MPa at 28 days. An empirical equation, as shown in (3), was proposed using least-squares regression analysis to estimate the relationship between compressive strength and flexural strength of fly ash–GGBFS-based geopolymer concrete mixes based on experimental results. This Equation (4), taken from [117], is specifically applicable to ambient-cured mixes.
where Fcr = flexural strength in MPa and fck = compressive strength of concrete in MPa
Fcr = 0.62fck0.5
Badkul et al. [108] reported that the flexural strength of geopolymer concrete mixes remained largely unchanged when the molarity of sodium hydroxide exceeded 12. However, a slight reduction in strength, approximately 1.5%, was observed with GGBFS inclusion levels exceeding 28%. In a related study, Marathe et al. [118] investigated the performance of alkali-activated concrete using a GGBFS-to-fly ash ratio of 75 to 25, with a NaOH molarity of 12 and a sodium silicate to sodium hydroxide ratio of 3. The alkali-activated concrete achieved a flexural strength of 5.8 MPa after 28 days of ambient curing, demonstrating the potential of such mixes for enhanced mechanical performance under ambient curing conditions. Eisa et al. [112] conducted a comparative study on the flexural strength of geopolymer concrete and Portland cement concrete. The results showed that geopolymer concrete achieved a flexural strength of 8.6 MPa at 28 days, representing a 7.5% increase when compared to the Portland cement concrete, which achieved 8.0 MPa. According to concrete pavement design methodologies, the enhanced flexural performance of geopolymer concrete suggests its potential to reduce the required thickness of concrete pavement slabs, contributing to material efficiency and cost savings. Abbass and Singh [122] reported that a geopolymer concrete mix with 10% rice husk ash and 10% basalt fibers achieved the highest flexural strengths of 3.38 MPa, 5.35 MPa, and 5.88 MPa at 7, 28, and 90 days, respectively. The structural evaluation showed that a 250 mm slab thickness was adequate for rigid pavements using this mix. Flexural strength tests revealed superior performance with 5% and 15% RHA, while 20% and 25% RHA resulted in reduced strength compared to the control mix. Another study by Rambabu et al. [114] found that the flexural strength of geopolymer concrete was significantly influenced by the binder composition, particularly the ratio of fly ash to GGBFS. Their study showed that a mix comprising 90% fly ash and 10% GGBFS achieved the highest flexural strength of 5.59 MPa at 28 days of ambient curing. This outcome highlights the role of balanced partial fly ash replacement with GGBFS in optimizing the polymerization process and enhancing flexural performance. However, an increase in GGBFS content beyond 10% led to a decline in flexural strength, attributed to the higher calcium content, which caused increased brittleness in the concrete matrix. Singh et al. [116] investigated the flexural strength of pavement-quality geopolymer concrete with and without fibers. The inclusion of hybrid fibers (steel and polypropylene) significantly enhances the flexural strength of geopolymer concrete, with the optimum performance observed at 1% hybrid fiber content. Geopolymer concrete demonstrates enhanced flexural strength compared to Portland cement concrete, ensuring better durability, reduced pavement thickness, and material efficiency. The optimal binder ratio of fly ash and GGBFS, along with alkaline activators like NaOH molarity of 12, plays a crucial role in achieving superior mechanical performance. Incorporating hybrid fibers (steel and polypropylene) improves flexural strength, ductility, and post-crack behavior, with 1% fiber content providing the best performance. The observed flexural strengths in geopolymer concrete exceeded 4.5 MPa, which makes it suitable for rigid pavements, aligning with IRC:58-2015 requirements for high-traffic regions. These insights underscore the viability of geopolymer concrete as a sustainable and high-performance alternative for pavement construction. Table 2 summarizes the results of flexural strength from various studies on geopolymer pavement-quality concrete.
Table 2.
Summary of flexural strength for geopolymer pavement-quality concrete.
4.5. Modulus of Elasticity
The elastic modulus of geopolymer concrete increases with an increase in compressive strength. High-strength geopolymer concrete pavement shows a better comparable elastic modulus than Portland cement concrete [26,123]. The modulus of elasticity of ambient-cured geopolymer concrete tends to be lower than that of Portland cement concrete of similar grade [119]. The modulus of elasticity of concrete is an important parameter to assess structural performance in service. Hardjito et al. [124,125] observed that elastic modulus results for fly ash geopolymer concrete samples were 23.0–30.8 GPa. In another study [126], the modulus of elasticity of geopolymer concrete was found to be in the range of 10.7–18.4 GPa, falling much lower than that of Portland cement concrete (30.3–34.5 GPa). Puertas et al. [127] compared the elastic modulus of pulverized fuel ash mortars with ordinary Portland cement mortars and found that alkali-activated fly ash mortar had a lower elastic modulus than ordinary Portland cement mortar. However, Bondaret al. [128] observed that, although alkali-activated natural pozzolan mixes gained lower values of static modulus of elasticity than ordinary Portland cement mixtures during the first 14 days, the values were about 5–20% higher than ordinary Portland cement mixes in long-term tests. Thus, the previous studies observed a wide variation in the modulus of elasticity of geopolymer concrete. Eisa et al. [112] investigated the elastic behavior of metakaolin-based geopolymer concrete in rigid pavements. The results showed that the modulus of elasticity and Poisson’s ratio of geopolymer concrete were slightly higher than those of Portland cement concrete, indicating that geopolymer concrete is more rigid. Badkul et al. [108] studied the modulus of elasticity (Ec) of fly ash-based geopolymer concrete, reporting values ranging from 26 GPa to 33 GPa. These variations were influenced by the concentration of sodium hydroxide and the content of GGBFS in the mix. For comparison, control Portland cement concrete exhibited a modulus of elasticity of 30 GPa. The study highlighted the following trends: increasing NaOH molarity from 10 to 14 improved Ec by 23%, increasing GGBFS content from 20% to 33% enhanced Ec by 26%. The observed increase in the modulus of elasticity was attributed to improved geopolymerization, which resulted in denser and more compact microstructures in the concrete. These findings demonstrate the potential of mix design optimization in enhancing the mechanical properties of fly ash-based geopolymer concrete. Nath et al. [119] observed that for similar compressive strength, the modulus of elasticity (Ec) of geopolymer concrete was approximately 25–30% lower than that of ordinary Portland cement concrete at 28 days. Despite this reduction, the modulus of elasticity showed a positive correlation with compressive strength, increasing as compressive strength improved. The study also demonstrated that geopolymer concrete cured at room temperature achieved a modulus of elasticity comparable to that of geopolymer concrete cured under elevated-temperature conditions, highlighting the potential for ambient curing as a practical option. Equation (5), taken from [119], was proposed to predict the modulus of elasticity of ambient-cured fly ash-based geopolymer concrete. These findings underscore the role of curing conditions and compressive strength in determining the elastic properties of geopolymer concrete.
where Ec = modulus of elasticity of ambient-cured fly ash geopolymer concrete, and fc = compressive strength of geopolymer concrete (MPa).
Ec = 3510fc0.5
The studies reviewed reveal significant variability in the modulus of elasticity of geopolymer concrete. While geopolymer concrete generally exhibits lower modulus of elasticity values when compared to Portland cement concrete, the improvement in mix design, such as increased NaOH molarity or GGBFS content, will enhance the elastic modulus. Additionally, ambient curing conditions can produce modulus values comparable to elevated-temperature curing, providing a practical advantage for field applications. The modulus of elasticity of geopolymer concrete is strongly influenced by mix proportions, precursor materials, and curing conditions. Fly ash-based geopolymer concrete generally has a lower modulus of elasticity compared to Portland cement concrete, but this gap can be narrowed through optimized mix design. These findings are crucial for advancing the application of geopolymer concrete in rigid pavement design and construction.
4.6. Resistance to Abrasion
The resistance to abrasion is an important property of concrete in pavement applications. This is because concrete pavements are subjected to dynamic loading from moving traffic. Therefore, it is crucial to ensure good resistance to abrasion for geopolymer concrete when used in concrete pavements. Rambabu et al. [114] studied the Cantabro abrasion loss of ambient-cured geopolymer concrete for high-traffic pavements. In the case of geopolymer concrete formulated with 100% fly ash at room temperature, the abrasion resistance was inferior. This was primarily attributed to the low reactivity of fly ash at room temperature, which results in a lack of dissolution and improper polymerization. In such geopolymer concrete, the structure is weak due to the unreacted fly ash, which results in poor bonding with the aggregates, and thus causes higher mass loss due to abrasive force. On the contrary, it was observed that increasing the GGBFS content in geopolymer concrete reduced the mass loss. This lower mass loss was due to denser N–A–S–H and C–A–S–H gel formation. Moreover, this was attributed to an improvement in the compressive strength and a reduction in the porosity of concrete. Similar trends were observed by Badkul et al. [108], where Cantabro abrasion loss of geopolymer concrete was reduced with an increase in the compressive strength of concrete. Also, increasing the GGBFS content reduced the porosity of the geopolymer concrete and positively influenced its compressive strength. Migunthanna et al. [129] conducted an abrasion resistance test on the top and bottom of a geopolymer concrete slab according to BS EN 13892-4:2002 standard. The test setup is shown in Figure 4. The findings of this study revealed that most of the aggregates showed good binding with the geopolymer matrix, and there was no detachment from the surface of the slab during the application of abrasive force. Moreover, as shown in Figure 5, the results show that the average abrasion was higher on the top surface of the slab when compared to the bottom surface. The resistance to abrasion of concrete is significantly influenced by the compressive strength and porosity of the hardened concrete. Moreover, the mix ingredients, such as binder type and content, liquid content, and quality of aggregate, also influence the behavior of resistance to abrasion of concrete. The results of past studies, though limited, provide some valuable insights into the abrasion resistance of geopolymer concrete. It exhibits that geopolymer concrete possesses excellent abrasion resistance and can be a reliable candidate for application in pavements.
Figure 4.
Stages in abrasion testing (a) Marking reference points on the slab surface using a steel plate. (b) Taking the initial depth reading. (c) Fixing the abrasion head to the slab surface and connecting the electric controller. (d) Taking the depth measurements after testing [129].
Figure 5.
Wearing depth of geopolymer concrete slabs due to abrasion [129].
4.7. Resistance to Freeze–Thaw and Wet–Dry Cycles
The ability of geopolymer concrete to resist the effect of the freeze–thaw (F–T) cycle is very crucial for the durability and long-term performance of concrete pavements. The effect of precursors on the F–T resistance of geopolymer concrete is significant. Typically, geopolymer concrete synthesized with GGBFS shows much better resistance to F–T cycles than that with fly ash. This is because GGBFS possesses a higher calcium to silica ratio when compared to fly ash, and this results in the formation of stable C–S–H gel [130]. For instance, Figure 6 shows the weight loss and reduction in dynamic elastic modulus of geopolymer concrete with 100% GGBFS and 0% fly ash (i.e., F0), 75% GGBFS and 25% fly ash (i.e., F25), 50% GGBFS and 50% fly ash (i.e., F50), 25% GGBFS and 75% fly ash (i.e., F75), and 0% GGBFS and 100% fly ash (i.e., F100). The relative dynamic elastic modulus (RDEM) of fly ash–GGBFS geopolymer concrete decreased substantially for mixes with a high content of fly ash. After 300 F–T cycles, the mixes with 75% and 100% fly ash could not withstand the exerted stresses and completely fell apart. On the contrary, with the increase in GGBFS content in the mix, the RDEM values of geopolymer concrete were not significantly affected. Figure 7 shows the SEM images of geopolymer concrete samples exposed to 300 F–T cycles. It is seen that microcracks and voids decrease with the inclusion of GGBFS in the geopolymer concrete, and the visual appearance, as shown in Figure 8, clearly shows that geopolymer concrete with high fly ash content disintegrates under F–T cycles. Therefore, the inclusion of GGBFS in geopolymer concrete is crucial from a durability perspective. The addition of fibers has been shown to enhance the durability properties of geopolymer concrete for roadways. For instance, the relative dynamic modulus of geopolymer concrete did not change significantly after 90 F–T cycles, and this was higher than the required dynamic modulus for construction materials as per the ASTM requirements [131]. Moreover, the mass loss in geopolymer concrete was very minimal, and it was much lower than that of conventional concrete.
Figure 6.
(a) weight loss and (b) relative dynamic elastic modulus of GGBS-based geopolymer concrete samples exposed to freeze–thaw. Reprinted with permission from Ref. [130]. Copyright 2019, John Wiley and Sons.

Figure 7.
Scanning electron microscopy images of slag-based geopolymer concrete samples exposed to 300 F–T cycles (a) F0, (b) F25, and (c) F50. Reprinted with permission from Ref. [130]. Copyright 2019, John Wiley and Sons.
Figure 8.
Appearance of the samples after exposure to F–T cycles of (a) 100 cycles, (b) 200 cycles, and (c) 300 cycles. Reprinted with permission from Ref. [130]. Copyright 2019, John Wiley and Sons.
Xie et al. [132] performed a wet–dry cycle test to evaluate the sulfate resistance of fly ash–GGBFS geopolymer concrete with recycled aggregates. The study showed that geopolymer concrete provides excellent resistance to wet–dry cycles and thereby improves the sulfate resistance of concrete. GGBFS and fly ash provide an excellent coupling effect in resisting the wet–dry cycles, which has been exhibited with lower mass loss, lower crack propagation, and higher residual compressive strength for geopolymer concrete when compared to the cement-based concrete. In another study [133], the resistance of fiber-reinforced fly ash–GGBFS geopolymer concrete on wet–dry cycles was evaluated. The results indicate that at the beginning of wet–dry cycles, the mass loss rate of the samples is much higher; however, after 15 cycles, the mass loss rate of the sample decreases. The compressive and flexural strength of samples does not decrease, indicating the efficiency of the geopolymer matrix to resist the wet–dry cycles. The best results were observed for geopolymer samples with fibers. However, it was interesting to notice that fly ash–GGBFS-based geopolymer without fibers also exhibits good performance when subjected to sulfate attack and wet–dry cycles.
4.8. Drying Shrinkage
The drying shrinkage of concrete is a time-dependent volume change due to moisture loss from the tiny capillaries of the hydrated concrete structure. Such deformations can cause cracking in the concrete structure and thus affect the durability and service life of the concrete pavements. Several factors influence drying shrinkage in geopolymer concrete, including alkaline liquid and water content, precursor material, aggregate properties, and curing conditions. For instance, in ambient-cured geopolymer concrete with 20% GGBFS and 80% fly ash, the drying shrinkage decreased significantly when the ratio of sodium silicate to sodium hydroxide decreased from 2.5 to 1.5, as shown in Figure 9. Moreover, for similar concrete compressive strength, the drying shrinkage of conventional Portland cement concrete was 11% higher than that of the geopolymer concrete, as shown in Figure 10. Eisa et al. [112] evaluated the drying shrinkage of metakaolin-based geopolymer pavement-quality concrete. It was observed that metakaolin-based geopolymer concrete showed much better performance than conventional concrete, and the reduction in shrinkage values was 58% higher for geopolymer concrete when compared to normal concrete after 56 days. Similarly, in another study, the authors compared drying shrinkage in biaxial geogrid-reinforced and unreinforced conventional and geopolymer pavement concrete as per ASTM C596-18. The results showed that using a geogrid in geopolymer concrete pavement reduced drying shrinkage by approximately 78.5% when compared to conventional concrete. Such reductions were attributed to the combined effect of the restricting effect of the geogrid and lower volumetric changes in geopolymer concrete. Singh et al. [116] performed a detailed investigation on the effect of hybrid fibers on the drying shrinkage of geopolymer pavement-quality concrete. The combined effect of steel and polypropylene fibers helps in reducing shrinkage in geopolymer concrete. The fibers improve the cohesiveness between the aggregate particles and the geopolymer binder, which thereby improves the structural integrity and reduces crack formation during the drying process. Additionally, the fibers are also effective in distributing the stress more evenly across the material, which reduces the total shrinkage in the concrete structure. The addition of fibers significantly improves the performance of geopolymer concrete and results in a denser and compact concrete matrix. This will further diminish the shrinkage fractures and reduce the possibility of severe cracking in slabs, which can be desirable in enhancing the performance of concrete pavements and further improving service life.
Figure 9.
Drying shrinkage of concrete with varying sodium silicate to sodium hydroxide ratio [134].
Figure 10.
Drying shrinkage of conventional OPC concrete and geopolymer concrete of similar grade strength [134].
4.9. Coefficient of Thermal Expansion
The coefficient of thermal expansion (CTE) is an important parameter that measures a material’s change in length with respect to a change in temperature. CTE has a significant impact on the performance of concrete pavements, since it directly affects the movement of the concrete slab at the joints. Moreover, variation in the temperature through the concrete slab will result in curling of the slab. According to AASHTO’s mechanistic empirical pavement design guide, the CTE of concrete is an important input parameter in the design of pavements, and it has a crucial impact on the pavement thickness design. Therefore, an accurate measurement of CTE of concrete can assist in the optimization of pavement design, which has a direct bearing on the performance and service life of the concrete pavement. In the existing literature, there are limited studies that explore the CTE of geopolymer concrete. According to Asayesh et al. [135], in a comparison between the CTE of normal concrete and geopolymer concrete, it was found that the CTE of geopolymer concrete is lower than that of normal concrete. For instance, the CTE of normal concrete was 9.92 µ-strain/°C, and it decreased by 19% to 8.03 µ-strain/°C for geopolymer concrete with 100% GGBFS. Furthermore, it was found that the type of precursor material significantly influenced the CTE of geopolymer concrete, and the CTE values increased when GGBFS was partially replaced by pumice and silica fume. However, in most cases, the CTE of geopolymer concrete was still found to be lower than that of conventional concrete. Eisa et al. [112] evaluated the CTE of metakaolin-based geopolymer concrete, and Figure 11 shows the obtained results. It was found that the average CTE for normal concrete was 11.45 µ-strain/℃, and it decreased by 51% to 5.62 µ-strain/°C. A significant reduction in the CTE for metakaolin-based geopolymer concrete was observed, suggesting that the microstructure of geopolymer concrete is much denser, which reduces its porosity and thus positively influences the CTE results. It is interesting to notice that the CTE of geopolymer concrete is much lower than that of conventional concrete, and this will positively contribute to the long-term performance of the concrete pavements. However, it is also observed that precursor type significantly influences the CTE of geopolymer concrete, and therefore, when designing geopolymer pavement-quality concrete, it is critical to determine the actual CTE values since this will help engineers optimize the geopolymer concrete performance for pavement applications.
Figure 11.
Results of the coefficient of thermal expansion for normal and geopolymer concrete.
5. Performance Studies on Geopolymer Pavement-Quality Concrete
The resistance of concrete pavement slabs to incremental damage under repeated traffic loading is crucial for their performance in service. With an increase in load repetitions, the material’s resistance to crack propagation reduces, and thus results in the failure of concrete pavements due to fatigue. Rambabu et al. [114] performed fatigue analysis of ambient-cured geopolymer concrete for high-traffic pavements. The authors used fly ash and GGBFS as precursor materials, with an NaOH molarity of 8 and a ratio of Na2SiO3 to NaOH of 1.5 as alkaline activator. A detailed laboratory experiment and statistical analysis were performed to determine the stress-life (S-N) curves of geopolymer concrete pavement. Based on the analysis, equations were developed to determine the fatigue life of geopolymer concrete. This relation for conventional and geopolymer concrete is shown in Equations (6) and (7), taken from [114], respectively.
The above equations were used to calculate the S-N curves, and Figure 12 shows the developed curves. It is seen that in the case of geopolymer concrete, the fracture propagation is almost similar to that of the conventional concrete, and therefore, geopolymer concrete is desirable for the application of pavement-quality concrete under medium to heavy traffic loads.
Figure 12.
S-N curve for geopolymer pavement concrete and conventional pavement-quality concrete. Reprinted with permission from Ref. [114]. Copyright 2024, Springer Nature.
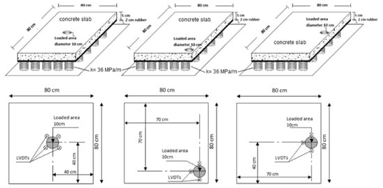
In another study, by Eisa et al. [136], the authors studied metakaolin-based geopolymer concrete in concrete pavement slabs. The slabs were cast with conventional and geopolymer concrete and tested for three loading cases, which were interior, edge, and corner loading. The details of loading cases are shown in Figure 13, and the test setup is shown in Figure 14. It was found that the maximum load to cause cracking at the interior, edge, and corner of the geopolymer concrete slabs was 3.40%, 7.72%, and 11.5% higher than the interior, edge, and corner of the corresponding Portland cement concrete slabs, respectively. Similarly, the deflections of the geopolymer concrete slabs were lower than the corresponding Portland cement concrete slabs, as seen in Figure 15. Therefore, based on the obtained results of the mechanical loading test, it can be concluded that the load capacities of geopolymer concrete are slightly higher than those of Portland cement concrete. This shows the potential of geopolymer concrete in pavement applications; however, it is also important to understand the behavior of geopolymer concrete under heavier loads. This is because geopolymer concrete is more brittle than conventional Portland cement concrete, and due to this, the fatigue life of geopolymer concrete can be compromised under higher stress levels. Therefore, in the future, more studies should focus on the optimization of geopolymer material properties pertinent to the performance of concrete pavements. It is relevant to undertake field studies with geopolymer concrete in pavement application, with proper attention given to instrumentation of slabs to collect real-time data under traffic conditions. Such techniques will assist in evaluating the response of geopolymer pavement-quality concrete under a realistic scenario and provide better insights into the performance of concrete pavements.
Figure 13.
Loading cases for conventional concrete and geopolymer concrete. Reprinted with permission from Ref. [136]. Copyright 2022, Springer Nature.
Figure 14.
Test setup for loading at (a) interior, (b) edge, and (c) corner. Reprinted with permission from Ref. [136]. Copyright 2022, Springer Nature.

Figure 15.
Load versus deflection for conventional concrete slab (CI, CE, CC) and geopolymer concrete slab (GI, GE, GC) for (a) interior load (b) edge load, and (c) corner load. Reprinted with permission from Ref. [136]. Copyright 2022, Springer Nature.
6. Summary of Geopolymer Mixes for Pavement Application
Table 3 presents a summary of various geopolymer mixes for pavement application. The following are the important points observed from the review.
Table 3.
Summary of geopolymer mixes for pavement application.
- Most of the geopolymer mixes utilize fly ash and GGBFS in varying ratios, with NaOH molarity ranging from 10 to 16, and sodium silicate to sodium hydroxide ratio ranging from 1.5 to 2.5.
- Geopolymer mixes with a 50:50 or 40:60 proportion of GGBFS to fly ash showed good strength development under ambient curing conditions, making them suitable for high-volume roads as per IRC:58-2015, IRC:44-2017, and MoRTH specifications.
- Higher molarity (14–16 M) was used in mixes with a desired early strength or dense microstructure, such as the metakaolin-based mix. Mixes with higher GGBFS content also achieved the required strength using either ambient or oven curing.
- The total binder content was consistently around 400–450 kg/m3, indicating a consensus on binder quantity for geopolymer pavement-quality concrete.
- Notably, oven curing was applied where faster geopolymerization was needed, while most studies preferred ambient curing, aligning with site practices.
- Overall, it confirms that well-optimized geopolymer mixes with proper activator ratios and precursor blends can effectively meet PQC standards for high- and low-volume roads.
7. Challenges of Geopolymer Concrete
There is no doubt that geopolymer concrete is the future of concrete technology and a method to control pollution from various industries [15]. However, there are several challenges in the development and production of geopolymer concrete. The strength development in geopolymer concrete is governed by various interdependent parameters such as precursor type, silica to alumina ratio in the precursor material, concentration and type of alkaline activator, ratio of alkaline solution to precursor material, curing period, and curing temperature [137]. Although many studies have explored these parameters, a complete understanding of their interactive effect remains a significant research challenge. This is primarily due to the diverse chemical composition of the binders, the varying formulation of alkaline activators, and the temperature-sensitive nature of the geopolymerization reaction [138]. Therefore, a more integrated approach that considers the synergy between these parameters is essential for maximizing the performance and longevity of geopolymer concrete. Additionally, the non-availability of bulk aluminosilicates with consistency in their properties is a major challenge [139]. The challenges of high cost and energy footprint of commercial activators are also a hurdle for the widespread use of geopolymer concrete in the construction industry.
Several other challenges, such as difficulty in handling the alkaline solution due to its corrosive and hazardous nature [140], along with the highly sticky nature of the viscous alkaline solution, cause issues in mixing, placing, and finishing the concrete on-site. Moreover, due to limited standards and guidelines, there is a lack of widespread awareness among practicing engineers on the deployment of such technology. Furthermore, it results in limited hands-on training for professionals to realize the benefits of such materials in the construction industry [141].
8. Conclusions
This review article highlights the latest research findings on geopolymer pavement-quality concrete. Special attention is given to the discussion of material properties that are relevant to the performance of concrete pavements. Based on the comprehensive review, the following are the conclusions.
- The quality of precursor materials is crucial in achieving the desired properties for geopolymer pavement-quality concrete. Most studies in the past focused on the use of fly ash and GGBFS as precursor materials, and very few studies have explored other industrial and agricultural wastes. It shows that other precursors have potential in the application of geopolymer pavement-quality concrete. It is important to carefully assess the physical and chemical characteristics of precursor materials to ascertain their application in geopolymer pavement-quality concrete. The exploration of locally available precursor materials can reduce the carbon footprint of geopolymer concrete pavements and thereby achieve the sustainable development goals in the pavement industry.
- The strength properties of geopolymer concrete were found to be superior and meet the requirements of geopolymer pavement-quality concrete. However, attention should be given to the optimum proportion of precursors and alkaline solution in the mix design process.
- The modulus of elasticity of geopolymer concrete shows variability when compared to conventional Portland cement concrete. Several factors, such as precursor materials, concentration of alkaline activators, and curing conditions, influence the elastic modulus of geopolymer concrete. Moreover, ambient curing can produce a desirable elastic modulus for geopolymer pavement-quality concrete and therefore show practical viability in construction.
- The drying shrinkage of geopolymer concrete was found to be lower than that of the conventional Portland cement concrete, and similar trends were observed for the coefficient of thermal expansion. The reduction in the coefficient of thermal expansion of the geopolymer concrete will positively contribute towards the long-term performance of concrete pavements.
- The durability of geopolymer concrete with respect to resistance to abrasion and freeze–thaw resistance was found to be excellent and was attributed to the formation of dense binding phases such as sodium alumina silicate hydrate and calcium alumina silicate hydrate in the hardened geopolymer concrete.
- The results of fatigue analysis for ambient-cured geopolymer concrete indicate that the fracture propagation in geopolymer pavement-quality concrete is similar to that of the conventional Portland cement concrete. Additionally, the mechanical loading test on geopolymer concrete slabs indicates a higher load-carrying capacity for geopolymer concrete slabs when compared to the conventional Portland cement concrete slabs.
9. Future Recommendations
- Future studies should focus on evaluating properties of geopolymer concrete relevant to the performance of concrete pavement. Pertinent properties such as elastic modulus, coefficient of thermal expansion, drying shrinkage, and thermal conductivity should be determined.
- The potential of locally available industrial and agricultural waste should be studied for its use as precursor material in geopolymer pavement-quality concrete.
- Emphasis should be given to developing alternative activators derived from waste materials to reduce cost and improve the energy efficiency of geopolymer pavement-quality concrete.
- There is significant scope to understand the effect of recycled aggregates in geopolymer concrete and further evaluate its pertinent properties for pavement application.
- Studies can also be carried out to evaluate the field performance of geopolymer pavement-quality concrete and ascertain its optimum design for resilient concrete pavement in the context of extreme global climate change.
- Research shows the environmental benefits of various precursors in construction materials [142,143], and there is great scope to explore their benefits in geopolymer pavement-quality concrete. A systematic approach, such as life cycle analysis (LCA) or life cycle cost analysis (LCCA), can provide valuable insights into the product’s life, environmental, and financial impacts. Additionally, it can assist in assessing the sustainability of a product by identifying the areas for improvement and minimizing environmental burdens.
Author Contributions
Conceptualization, N.H.; methodology, N.H.; validation, S.C. (Saikrishna Chelluri), N.H., S.C. (Sarath Chandra), P.B. and M.T.; formal analysis, S.C. (Saikrishna Chelluri), N.H. and S.C. (Sarath Chandra); investigation, S.C. (Saikrishna Chelluri), N.H. and S.C. (Sarath Chandra); resources, N.H.; data curation, S.C. (Saikrishna Chelluri), N.H. and S.C. (Sarath Chandra); writing—original draft preparation, S.C. (Saikrishna Chelluri), N.H. and S.C. (Sarath Chandra); writing—review and editing, S.C. (Saikrishna Chelluri), N.H., S.C. (Sarath Chandra), P.B. and M.T.; visualization, S.C. (Saikrishna Chelluri), N.H. and S.C. (Sarath Chandra); supervision, N.H.; project administration, N.H.; funding acquisition, N.H. All authors have read and agreed to the published version of the manuscript.
Funding
This research received funding from Christ University under the seed-money scheme, sanction number CU: CRP: SMSET-2333.
Data Availability Statement
This is a comprehensive review article, and there was no new data created in this study. Data sharing is not applicable to this article.
Acknowledgments
The authors acknowledge the support provided by the Department of Civil Engineering, Christ University.
Conflicts of Interest
The authors declare no conflicts of interest.
References
- Rout, M.D.; Biswas, S.; Shubham, K.; Sinha, A.K. A Systematic Review on Performance of Reclaimed Asphalt Pavement (RAP) as Sustainable Material in Rigid Pavement Construction: Current Status to Future Perspective. J. Build. Eng. 2023, 76, 107253. [Google Scholar] [CrossRef]
- India Brand Equity Foundation. Road Infrastructure in India. Available online: https://www.ibef.org/industry/roads-india (accessed on 11 December 2024).
- Akintayo, B.D.; Babatunde, O.M.; Olanrewaju, O.A. Comparative Analysis of Cement Production Methods Using a Life Cycle Assessment and a Multicriteria Decision-Making Approach. Sustainability 2024, 16, 484. [Google Scholar] [CrossRef]
- Dawoudian, J.; Bahamin, S.; Tantoh, H.B. Environmental impact assessment of cement industries using mathematical matrix method: Case of Ghayen cement, South Khorasan, Iran. Environ. Sci. Pollut. Res. Int. 2021, 28, 22348–22358. [Google Scholar] [CrossRef] [PubMed]
- Imbabi, M.S.; Carrigan, C.; McKenna, S. Trends and Developments in Green Cement and Concrete Technology. Int. J. Sustain. Built Environ. 2012, 1, 194–216. [Google Scholar] [CrossRef]
- Davidovits, J. Geopolymer Chemistry and Sustainable Development. In The Poly(sialate) Terminology: A Very Useful and Simple Model for the Promotion and Understanding of Green-Chemistry; Geopolymer Institute: Saint-Quentin, France, 2005. [Google Scholar]
- Yu, J.; Ji, F.; Lv, Q.; Li, W.; Lin, Z.; Peng, Y. Mechanical property and microstructure of fly ash-based geopolymer by calcium activators. Case Stud. Constr. Mater. 2024, 21, e03811. [Google Scholar] [CrossRef]
- Xiao, R.; Huang, B.; Zhou, H.; Ma, Y.; Jiang, X. A state-of-the-art review of crushed urban waste glass used in OPC and AAMs (geopolymer): Progress and challenges. Clean. Mater. 2022, 4, 100083. [Google Scholar] [CrossRef]
- Paiste, P.; Liira, M.; Heinmaa, I.; Vahur, S.; Kirsimäe, K. Alkali activated construction materials: Assessing the alternative use for oil shale processing solid wastes. Constr. Build. Mater. 2016, 122, 458–464. [Google Scholar] [CrossRef]
- Xiao, R.; Jiang, X.I.; Zhang, M.; Polaczyk, P.; Huang, B. Analytical investigation of phase assemblages of alkali-activated materials in CaO-SiO2-Al2O3 systems: The management of reaction products and designing of precursors. Mater. Des. 2020, 194, 108975. [Google Scholar] [CrossRef]
- Plati, C. Sustainability Factors in Pavement Materials, Design, and Preservation Strategies: A Literature Review. Constr. Build. Mater. 2019, 211, 539–555. [Google Scholar] [CrossRef]
- Jiang, D.; Shi, C.; Zhang, Z. Recent progress in understanding setting and hardening of alkali-activated slag (AAS) materials. Cem. Concr. Compos. 2022, 134, 104795. [Google Scholar] [CrossRef]
- Almutairi, A.L.; Tayeh, B.A.; Adesina, A.; Isleem, H.F.; Zeyad, A.M. Potential applications of geopolymer concrete in construction: A review. Case Stud. Constr. Mater. 2021, 15, e00733. [Google Scholar] [CrossRef]
- Amran, Y.H.M.; Alyousef, R.; Alabduljabbar, H.; El-Zeadani, M. Clean production and properties of geopolymer concrete; A review. J. Clean. Prod. 2020, 251, 119679. [Google Scholar] [CrossRef]
- Shehata, N.; Mohamed, O.; Sayed, E.T.; Abdelkareem, M.A.; Olabi, A. Geopolymer concrete as green building materials: Recent applications, sustainable development and circular economy potentials. Sci. Total Environ. 2022, 836, 155577. [Google Scholar] [CrossRef] [PubMed]
- Cong, P.; Cheng, Y. Advances in geopolymer materials: A comprehensive review. J. Traffic Transp. Eng. (Engl. Ed.) 2021, 8, 283–314. [Google Scholar] [CrossRef]
- Farooq, F.; Jin, X.; Faisal Javed, M.; Akbar, A.; Izhar Shah, M.; Aslam, F.; Alyousef, R. Geopolymer concrete as sustainable material: A state of the art review. Constr. Build. Mater. 2021, 306, 124762. [Google Scholar] [CrossRef]
- Zhao, J.; Tong, L.; Li, B.; Chen, T.; Wang, C.; Yang, G.; Zheng, Y. Eco-friendly geopolymer materials: A review of performance improvement, potential application and sustainability assessment. J. Clean. Prod. 2021, 307, 127085. [Google Scholar] [CrossRef]
- Verma, M.; Dev, N.; Rahman, I.; Nigam, M.; Ahmed, M.; Mallick, J. Geopolymer Concrete: A Material for Sustainable Development in Indian Construction Industries. Crystals 2022, 12, 514. [Google Scholar] [CrossRef]
- Raza, A.; El Ouni, M.H.; Azab, M.; Ali, K.; Haider, H.; Rashedi, A. A scientometric review on mechanical and durability performance of geopolymer Paste: Effect of various raw materials. Constr. Build. Mater. 2022, 345, 128297. [Google Scholar] [CrossRef]
- Parathi, S.; Nagarajan, P.; Pallikkara, S.A. Ecofriendly geopolymer concrete: A comprehensive review. Clean Technol. Environ. Policy 2021, 23, 1701–1713. [Google Scholar] [CrossRef]
- Wasim, M.; Ngo, T.D.; Law, D. A state-of-the-art review on the durability of geopolymer concrete for sustainable structures and infrastructure. Constr. Build. Mater. 2021, 291, 123381. [Google Scholar] [CrossRef]
- Amran, M.; Al-Fakih, A.; Chu, S.H.; Fediuk, R.; Haruna, S.; Azevedo, A.; Vatin, N. Long-term durability properties of geopolymer concrete: An in-depth review. Case Stud. Constr. Mater. 2021, 15, e00661. [Google Scholar] [CrossRef]
- Matsimbe, J.; Dinka, M.; Olukanni, D.; Musonda, I. Geopolymer: A Systematic Review of Methodologies. Materials 2022, 15, 6852. [Google Scholar] [CrossRef] [PubMed]
- Jwaida, Z.; Dulaimi, A.; Mashaan, N.; Othuman Mydin, M.A. Geopolymers: The green alternative to traditional materials for engineering applications. Infrastructures 2023, 8, 98. [Google Scholar] [CrossRef]
- Ikotun, J.O.; Aderinto, G.E.; Madirisha, M.M.; Katte, V.Y. Geopolymer Cement in Pavement Applications: Bridging Sustainability and Performance. Sustainability 2024, 16, 5417. [Google Scholar] [CrossRef]
- Firdous, R.; Stephan, D.; Djobo, J.N.Y. Natural pozzolan based geopolymers: A review on mechanical, microstructural and durability characteristics. Constr. Build. Mater. 2018, 190, 1251–1263. [Google Scholar] [CrossRef]
- Siddique, R. Effect of volcanic ash on the properties of cement paste and mortar. Resour. Conserv. Recycl. 2011, 56, 66–70. [Google Scholar] [CrossRef]
- Villa, C.; Pecina, E.; Torres, R.; Gómez, L. Geopolymer synthesis using alkaline activation of natural zeolite. Constr. Build. Mater. 2010, 24, 2084–2090. [Google Scholar] [CrossRef]
- Obraniak, A.; Gluba, T.; Ławińska, K.; Derbiszewski, B. Minimisation of environmental effects related with storing fly ash from combustion of hard coal. Environ. Prot. Eng. 2018, 44, 177–189. [Google Scholar] [CrossRef]
- Qaidi, S.; Najm, H.M.; Abed, S.M.; Ahmed, H.U.; Al Dughaishi, H.; Al Lawati, J.; Sabri, M.M.; Alkhatib, F.; Milad, A. Fly Ash-Based Geopolymer Composites: A Review of the Compressive Strength and Microstructure Analysis. Materials 2022, 15, 7098. [Google Scholar] [CrossRef] [PubMed]
- Dwivedi, A.; Jain, M.K. Fly ash–waste management and overview: A Review. Recent Res. Sci. Technol. 2014, 6, 1. [Google Scholar]
- Mortar, N.A.M.; Kamarudin, H.; Rafiza, R.A.; Meor, T.; Rosnita, M. Compressive Strength of Fly Ash Geopolymer Concrete by Varying Sodium Hydroxide Molarity and Aggregate to Binder Ratio. IOP Conf. Ser. Mater. Sci. Eng. 2020, 864, 012037. [Google Scholar]
- Ahmed, H.U.; Mahmood, L.J.; Muhammad, M.A.; Faraj, R.H.; Qaidi, S.M.; Sor, N.H.; Mohammed, A.S.; Mohammed, A.A. Geopolymer concrete as a cleaner construction material: An overview on materials and structural performances. Clean. Mater. 2022, 5, 100111. [Google Scholar] [CrossRef]
- Saha, A.K. Effect of class F fly ash on the durability properties of concrete. Sustain. Environ. Res. 2018, 28, 25–31. [Google Scholar] [CrossRef]
- Bohra, V.K.J.; Nerella, R.; Madduru, S.R.C. Material properties, processing & characterization of fly ash based geopolymer. Mater. Today Proc. 2019, 19, 2617–2621. [Google Scholar]
- Chandra, K.S.; Krishnaiah, S.; Reddy, N.G.; Hossiney, N.; Peng, L. Strength Development of Geopolymer Composites Made from Red Mud–Fly Ash as a Subgrade Material in Road Construction. J. Hazard. Toxic. Radioact. Waste 2021, 25, 04020068. [Google Scholar] [CrossRef]
- Li, L.-M.; Xie, J.-H.; Zhang, B.-F.; Feng, Y.; Yang, J. A state-of-the-art review on the setting behaviours of ground granulated blast furnace slag- and metakaolin-based alkali-activated materials. Constr. Build. Mater. 2023, 368, 130389. [Google Scholar] [CrossRef]
- Mishra, J.; Nanda, B.; Patro, S.K.; Krishna, R.S. A comprehensive review on compressive strength and microstructure properties of GGBS-based geopolymer binder systems. Constr. Build. Mater. 2024, 417, 135242. [Google Scholar] [CrossRef]
- Liu, B.; Zhuang, K.; Li, D.; Fang, Y.; Pan, G. Understanding the early reaction and structural evolution of alkali activated slag optimized using K-A-S-H nanoparticles with varying K2O/SiO2 ratios. Compos. B Eng. 2020, 200, 108311. [Google Scholar] [CrossRef]
- Thakur, G.; Singh, Y.; Singh, R.; Prakash, C.; Saxena, K.K.; Pramanik, A.; Basak, A.; Subramaniam, S. Development of GGBS-Based Geopolymer Concrete Incorporated with Polypropylene Fibers as Sustainable Materials. Sustainability 2022, 14, 10639. [Google Scholar] [CrossRef]
- Ravikumar, D.; Peethamparan, S.; Neithalath, N. Structure and strength of NaOH activated concretes containing fly ash or GGBFS as the sole binder. Cem. Concr. Compos. 2010, 32, 399–410. [Google Scholar] [CrossRef]
- Phummiphan, I.; Horpibulsuk, S.; Rachan, R.; Arulrajah, A.; Shen, S.-L.; Chindaprasirt, P. High calcium fly ash geopolymer stabilized lateritic soil and granulated blast furnace slag blends as a pavement base material. J. Hazard. Mater. 2018, 341, 257–267. [Google Scholar] [CrossRef] [PubMed]
- Tanu, H.M.; Unnikrishnan, S. Mechanical Strength and Microstructure of GGBS-SCBA based Geopolymer Concrete. J. Mater. Res. Technol. 2023, 24, 7816–7831. [Google Scholar] [CrossRef]
- Grace, M.A.; Clifford, E.; Healy, M.G. The potential for the use of waste products from a variety of sectors in water treatment processes. J. Clean. Prod. 2016, 137, 788–802. [Google Scholar] [CrossRef]
- Türköz, M.; Umu, S.U.; Öztürk, O. Effect of Silica Fume as a Waste Material for Sustainable Environment on the Stabilization and Dynamic Behavior of Dispersive Soil. Sustainability 2021, 13, 4321. [Google Scholar] [CrossRef]
- Billong, N.; Oti, J.; Kinuthia, J. Using silica fume based activator in sustainable geopolymer binder for building application. Constr. Build. Mater. 2021, 275, 122177. [Google Scholar] [CrossRef]
- Vogt, O.; Ukrainczyk, N.; Koenders, E. Effect of Silica Fume on Metakaolin Geopolymers’ Sulfuric Acid Resistance. Materials 2021, 14, 5396. [Google Scholar] [CrossRef] [PubMed]
- Hasanzadeh, A.; Shooshpasha, I. A study on the combined effects of silica fume particles and polyethylene terephthalate fibres on the mechanical and microstructural characteristics of cemented sand. Int. J. Geosynth. Ground Eng. 2021, 7, 98. [Google Scholar] [CrossRef]
- Hasanzadeh, A.; Shooshpasha, I. PET fiber reinforcement efficiency in the mechanical and microstructural characteristics of cemented sand modified with silica fume. Constr. Build. Mater. 2023, 397, 132363. [Google Scholar] [CrossRef]
- Zhao, Q.; Ma, C.; Lu, X.; Huang, B.; Chen, Z.; Lian, C. Effect of silica fume on the efflorescence, strength, and micro-properties of one-part geopolymer incorporating sewage sludge ash. Constr. Build. Mater. 2024, 436, 136840. [Google Scholar] [CrossRef]
- Wang, M.; Liu, X. Applications of red mud as an environmental remediation material: A review. J. Hazard. Mater. 2021, 408, 124420. [Google Scholar] [CrossRef] [PubMed]
- Svobodova-Sedlackova, A.; Calderón, A.; Fernandez, A.I.; Chimenos, J.M.; Berlanga, C.; Yücel, O.; Barreneche, C.; Rodriguez, R. Mapping the research landscape of bauxite by-products (red mud): An evolutionary perspective from 1995 to 2022. Heliyon 2024, 10, e24943. [Google Scholar] [CrossRef] [PubMed]
- Liang, X.; Ji, Y. Mechanical properties and permeability of red mud-blast furnace slag-based geopolymer concrete. SN Appl. Sci. 2021, 3, 23. [Google Scholar] [CrossRef]
- Zakira, U.; Zheng, K.; Xie, N.; Birgisson, B. Development of high-strength geopolymers from red mud and blast furnace slag. J. Clean. Prod. 2023, 383, 135439. [Google Scholar] [CrossRef]
- Bellum, R.R.; Venkatesh, C.; Madduru, S.R.C. Influence of Red Mud on Performance Enhancement of Fly Ash-Based Geopolymer Concrete. Innov. Infrastruct. Solut. 2021, 6, 1–9. [Google Scholar] [CrossRef]
- Liang, X.; Ji, Y. Experimental study on durability of red mud-blast furnace slag geopolymer mortar. Constr. Build. Mater. 2021, 267, 120942. [Google Scholar] [CrossRef]
- Kadhum, A.O.; Haider, M.O. Experimental Investigation of Self-Compacting High Performance Concrete Containing Calcined Kaolin Clay and Nano Lime. Civ. Eng. J. 2020, 6, 1798–1808. [Google Scholar] [CrossRef]
- Update on Calcined Clay, January 2025. Available online: https://www.globalcement.com/news/item/18361-update-on-calcined-clay-january-2025#:~:text=The%20work%20by%20Aumund%20and,cement%20manufacturers%20and%20equipment%20suppliers (accessed on 15 January 2025).
- Niyomukiza, J.B.; Eisazadeh, A.; Tangtermsirikul, S. Recent advances in slope stabilization using porous vegetation concrete in landslide-prone regions: A review. J. Build. Eng. 2023, 76, 107129. [Google Scholar] [CrossRef]
- Caselles, L.D.; Balsamo, B.; Benavent, V.; Trincal, V.; Lahalle, H.; Patapy, C.; Montouillout, V.; Cyr, M. Behavior of Calcined Clay Based Geopolymers under Sulfuric Acid Attack: Meta-Illite and Metakaolin. Constr. Build. Mater. 2023, 363, 129889. [Google Scholar] [CrossRef]
- Yamchelou, M.T.; Law, D.; Brkljac, R.; Gunasekara, C.; Li, J.; Patnaikuni, I. Geopolymer synthesis using low-grade clays. Constr. Build. Mater. 2021, 268, 121066. [Google Scholar] [CrossRef]
- Saikia, N.; Bharali, D.; Sengupta, P.; Bordoloi, D.; Goswamee, R.; Saikia, P.; Borthakur, P. Characterization, beneficiation and utilization of a kaolinite clay from Assam, India. Appl. Clay Sci. 2003, 24, 93–103. [Google Scholar] [CrossRef]
- Starý, J.; Jirásek, J.; Pticen, F.; Zahradník, J.; Sivek, M. Review of production, reserves, and processing of clays (including bentonite) in the Czech Republic. Appl. Clay Sci. 2021, 205, 106049. [Google Scholar] [CrossRef]
- Guillemin, F.; Lecomte-Nana, G.; El Hafiane, Y.; Peyratout, C.; Smith, A. Influence of the firing atmosphere onto the thermal transformation of iron-enriched kaolin. Appl. Clay Sci. 2024, 258, 107512. [Google Scholar] [CrossRef]
- Patrisia, Y.; Law, D.W.; Gunasekara, C.; Wardhono, A. Long-term durability of iron-rich geopolymer concrete in sulphate, acidic and peat environments. J. Build. Eng. 2024, 97, 110744. [Google Scholar] [CrossRef]
- Matalkah, F.; Aqel, R.; Ababneh, A. Enhancement of the Mechanical Properties of Kaolin Geopolymer Using Sodium Hydroxide and Calcium Oxide. Procedia Manuf. 2020, 44, 164–171. [Google Scholar] [CrossRef]
- Marsh, A.; Yang, T.; Adu-Amankwah, S.; Bernal, S. Utilization of metallurgical wastes as raw materials for manufacturing alkali-activated cements. In Waste and Byproducts in Cement-Based Materials; Woodhead Publishing: Cambridge, UK, 2021; pp. 335–383. [Google Scholar]
- Li, X.Y.; Liu, H.W.; Zhang, Y.S.; Mahlknecht, J.; Wang, C.Q. A review of metallurgical slags as catalysts in advanced oxidation processes for removal of refractory organic pollutants in wastewater. J. Environ. Manag. 2024, 352, 120051. [Google Scholar] [CrossRef] [PubMed]
- Kovacs, T.; Bator, G.; Schroeyers, W.; Labrincha, J.; Puertas, F.; Hegedus, M.; Doherty, R. From raw materials to NORM by-products. In Naturally Occurring Radioactive Materials in Construction; Woodhead Publishing: Thorston, UK, 2017; pp. 135–182. [Google Scholar]
- Rossi, L.; Patel, R.A.; Dehn, F. Compressive behaviour of alkali-activated slag-based concrete and Portland cement concrete incorporating novel multiple hooked-end steel fibres. Mater. Struct. 2023, 56, 96. [Google Scholar] [CrossRef]
- Wang, Y.; Xiao, R.; Hu, W.; Jiang, X.; Zhang, X.; Huang, B. Effect of granulated phosphorus slag on physical, mechanical and microstructural characteristics of Class F fly ash based geopolymer. Constr. Build. Mater. 2021, 291, 123287. [Google Scholar] [CrossRef]
- Detho, A.; Kadir, A.A.; Ahmad, S. Utilization of wastewater treatment sludge in the production of fired clay bricks: An approach towards sustainable development. Results Eng. 2024, 21, 101708. [Google Scholar] [CrossRef]
- Weng, C.H.; Lin, D.F.; Chiang, P.C. Utilization of sludge as brick materials. Adv. Environ. Res. 2003, 7, 679–685. [Google Scholar] [CrossRef]
- Detho, A.; Kadir, A.A.; Shayuti, A.; Rahim, B.A.; Ghazouani, N.; Mabrouk, A.; Elhag, A.B.; Rassem, H.H. Improvement of engineering properties and environmental impact of fired clay bricks utilizing industry sludge waste. Sci. Rep. 2025, 15, 4820. [Google Scholar] [CrossRef] [PubMed]
- Chang, Z.; Long, G.; Zhou, J.L.; Ma, C. Valorization of sewage sludge in the fabrication of construction and building materials: A review. Resour. Conserv. Recycl. 2020, 154, 104606. [Google Scholar] [CrossRef]
- Mañosa, J.; Cerezo-Piñas, M.; Maldonado-Alameda, A.; Formosa, J.; Giro-Paloma, J.; Rosell, J.; Chimenos, J. Water treatment sludge as precursor in non-dehydroxylated kaolin-based alkali-activated cements. Appl. Clay Sci. 2021, 204, 106032. [Google Scholar] [CrossRef]
- Pourakbar, S.; Maneshmoaveni, A.; Moazami, D.; Moretti, L.; Yousefi, A.; Cristelo, N. Stabilization of clay soil using alkali-activated sewage sludge. J. Rock Mech. Geotech. Eng. 2025, 17, 3213–3224. [Google Scholar] [CrossRef]
- Selvakumar, M.; Geetha, S.; Rangan, S.K.; Sithrubi, T.; Sathyashriya, K. Effect of glass powder as partial fine aggregate replacement on properties of basalt fibre reinforced concrete. Mater. Today Proc. 2021, 43, 1460–1464. [Google Scholar] [CrossRef]
- Xiao, R.; Polaczyk, P.; Zhang, M.; Jiang, X.; Zhang, Y.; Huang, B.; Hu, W. Evaluation of Glass Powder-Based Geopolymer Stabilized Road Bases Containing Recycled Waste Glass Aggregate. Transp. Res. Rec. J. Transp. Res. Board 2020, 2674, 22–32. [Google Scholar] [CrossRef]
- Samarakoon, M.H.; Ranjith, P.G.; De Silva, V.R.S. Effect of soda-lime glass powder on alkali-activated binders: Rheology, strength and microstructure characterization. Constr. Build. Mater. 2020, 241, 118013. [Google Scholar] [CrossRef]
- Romero, A.R.; Toniolo, N.; Boccaccini, A.R.; Bernardo, E. Glass-Ceramic Foams from ‘Weak Alkali Activation’ and Gel-Casting of Waste Glass/Fly Ash Mixtures. Materials 2019, 12, 588. [Google Scholar] [CrossRef] [PubMed]
- Chelluri, S.; Hossiney, N. Performance evaluation of ternary blended geopolymer binders comprising of slag, fly ash and brick kiln rice husk ash. Case Stud. Constr. Mater. 2024, 20, e02918. [Google Scholar] [CrossRef]
- Rice Husk Ash Market—Forecast (2025–2031). Available online: https://www.industryarc.com/Report/16231/rice-husk-ash-rha-market.html (accessed on 28 January 2025).
- Hossain, S.S.; Roy, P.; Bae, C.-J. Utilization of waste rice husk ash for sustainable geopolymer: A review. Constr. Build. Mater. 2021, 310, 125218. [Google Scholar] [CrossRef]
- Mahdi, S.N.; Babu R, D.V.; Hossiney, N.; Abdullah, M.M.A.B. Strength and durability properties of geopolymer paver blocks made with fly ash and brick kiln rice husk ash. Case Stud. Constr. Mater. 2022, 16, e00800. [Google Scholar] [CrossRef]
- Marathe, S.; Martyna, N.; Gronostajska, B. Alkali-Activated Permeable Concretes with Agro-Industrial Wastes for a Sustainable Built Environment. Materials 2025, 18, 87. [Google Scholar] [CrossRef] [PubMed]
- Singh, K.; Singh, J.; Kumar, S. A sustainable environmental study on corn cob ash subjected to elevated temperature. Curr. World Environ. 2018, 13, 144. [Google Scholar] [CrossRef]
- Lizotte, P.L.; Savoie, P.; De Champlain, A. Ash content and calorific energy of corn stover components in eastern Canada. Energies 2015, 8, 4827–4838. [Google Scholar] [CrossRef]
- Xiong, G.; Cundy, A.; Guo, X. Utilization of Corn Cob Ash (CCA) to Prepare Geopolymer Grout: Reaction Mechanism, Crack Repair Effectiveness and Life Cycle Assessment. J. Clean. Prod. 2024, 476, 143741. [Google Scholar] [CrossRef]
- Sodium Hydroxide Market Size and Share Analysis-Growth Trends and Forecasts (2025–2032). Available online: https://www.coherentmarketinsights.com/industry-reports/sodium-hydroxide-market (accessed on 2 May 2025).
- Sodium Silicate Market Size, Share & Trends Analysis Report by Application, by Region, and Segment Forecasts (2023–2030). Available online: https://www.grandviewresearch.com/industry-analysis/sodium-silicate-market#:~:text=The%20global%20sodium%20silicate%20market,%25%20from%202023%20to%202030 (accessed on 2 May 2025).
- Potassium Hydroxide Market Analysis, Size, and Forecast (2025–2029). Available online: https://www.technavio.com/report/potassium-hydroxide-market-analysis (accessed on 2 May 2025).
- Potassium Silicate Market Analysis, by Form, by End-Use, and Region, GLOBAL MARKET INSIGHTS (2023–2033). Available online: https://www.factmr.com/report/potassium-silicate-market (accessed on 2 May 2025).
- Alsalman, A.; Assi, L.N.; Kareem, R.S.; Carter, K.; Ziehl, P. Energy and CO2 Emission Assessments of Alkali-Activated Concrete and Ordinary Portland Cement Concrete: A Comparative Analysis of Different Grades of Concrete. Clean. Environ. Syst. 2021, 3, 100047. [Google Scholar] [CrossRef]
- Bouzón, N.; Payá, J.; Borrachero, M.V.; Soriano, L.; Tashima, M.M.; Monzó, J. Refluxed Rice Husk Ash/NaOH Suspension for Preparing Alkali Activated Binders. Mater. Lett. 2014, 115, 72–74. [Google Scholar] [CrossRef]
- Tong, K.T.; Vinai, R.; Soutsos, M.N. Use of Vietnamese rice husk ash for the production of sodium silicate as the activator for alkali-activated binders. J. Clean. Prod. 2018, 201, 272–286. [Google Scholar] [CrossRef]
- Nimwinya, E.; Arjharn, W.; Horpibulsuk, S.; Phoo-Ngernkham, T.; Poowancum, A. A Sustainable Calcined Water Treatment Sludge and Rice Husk Ash Geopolymer. J. Clean. Prod. 2016, 119, 128–134. [Google Scholar] [CrossRef]
- Torres-Carrasco, M.; Puertas, F. Waste glass in the geopolymer preparation. Mechanical and microstructural characterization. J. Clean. Prod. 2015, 90, 397–408. [Google Scholar] [CrossRef]
- Vinai, R.; Soutsos, M.J.C.; Research, C. Production of sodium silicate powder from waste glass cullet for alkali activation of alternative binders. Cem. Concr. Res. 2019, 116, 45–56. [Google Scholar] [CrossRef]
- Melges, J.L.P.; Monzó, J.; Tashima, M.M.; Moraes, J.C.B.; Borrachero, M.V.; Soriano, L.; Akasaki, J.L.; Payá, J. Increasing the sustainability of alkali-activated binders: The use of sugar cane straw ash (SCSA). Constr. Build. Mater. 2016, 124, 148–154. [Google Scholar] [CrossRef]
- Alonso, M.M.; Gascó, C.; Morales, M.M.; Suárez-Navarro, J.A.; Zamorano, M.; Puertas, F. Olive Biomass Ash as an Alternative Activator in Geopolymer Formation: A Study of Strength, Durability, Radiology and Leaching Behaviour. Cem. Concr. Compos. 2019, 104, 103384. [Google Scholar] [CrossRef]
- De Moraes Pinheiro, S.M.; Font, A.; Soriano, L.; Tashima, M.M.; Monzó, J.; Borrachero, M.V.; Payá, J. Olive-stone biomass ash (OBA): An alternative alkaline source for the blast furnace slag activation. Constr. Build. Mater. 2018, 178, 327–338. [Google Scholar] [CrossRef]
- Waqas, R.M.; Butt, F.; Zhu, X.; Jiang, T.; Tufail, R.F. A Comprehensive Study on the Factors Affecting the Workability and Mechanical Properties of Ambient Cured Fly Ash and Slag Based Geopolymer Concrete. Appl. Sci. 2021, 11, 8722. [Google Scholar] [CrossRef]
- Hossiney, N.; Sepuri, H.K.; Mohan, M.K.; Arjun, H.R.; Govindaraju, S.; Chyne, J. Alkali-Activated Concrete Paver Blocks Made with Recycled Asphalt Pavement (RAP) Aggregates. Case Stud. Constr. Mater. 2020, 12, e00322. [Google Scholar] [CrossRef]
- Hossiney, N.; Sepuri, H.K.; Mohan, M.K.; Chandra, K.S.; Kumar, S.L.; Thejas, H.K. Geopolymer concrete paving blocks made with Recycled Asphalt Pavement (RAP) aggregates towards sustainable urban mobility development. Cogent Eng. 2020, 7, 1824572. [Google Scholar] [CrossRef]
- Skariah Thomas, B.; Yang, J.; Bahurudeen, A.; Chinnu, S.N.; Abdalla, J.A.; Hawileh, R.A.; Siddika, A.; Hamada, H.M. Geopolymer concrete incorporating recycled aggregates: A comprehensive review. Clean. Mater. 2022, 3, 100056. [Google Scholar] [CrossRef]
- Badkul, A.; Paswan, R.; Singh, S.K.; Tegar, J.P. A comprehensive study on the performance of alkali activated fly ash/GGBFS geopolymer concrete pavement. Road Mater. Pavement Des. 2022, 23, 1815–1835. [Google Scholar]
- Mehta, P.K.; Aitcin, P.C. Microstructural basis of selection of materials and mix proportions for high-strength concrete. Spec. Publ. 1990, 121, 265–286. [Google Scholar]
- Ministry of Road Transport & Highways. Specifications for Road and Bridge Works; Ministry of Road Transport & Highways: New Delhi, India, 2013.
- Madirisha, M.M.; Dada, O.R.; Ikotun, B.D. Chemical Fundamentals of Geopolymers in Sustainable Construction. Mater. Today Sustain. 2024, 82, 100842. [Google Scholar] [CrossRef]
- Eisa, M.S.; Basiouny, M.E.; Fahmy, E.A. Effect of metakaolin-based geopolymer concrete on the length of rigid pavement slabs. Innov. Infrastruct. Solut. 2021, 6, 91. [Google Scholar] [CrossRef]
- Alanazi, H.; Yang, M.; Zhang, D.; Gao, Z. Early strength and durability of metakaolin-based geopolymer concrete. Mag. Concr. Res. 2016, 69, 46–54. [Google Scholar] [CrossRef]
- Rambabu, D.; Sharma, S.K.; Akbar, M.A. Fatigue analysis of ambient-cured geopolymer concrete for high-traffic pavements. Environ. Sci. Pollut. Res. 2024. [Google Scholar] [CrossRef] [PubMed]
- Tahir, M.F.M.; Abdullah, M.M.A.B.; Rahim, S.Z.A.; Mohd Hasan, M.R.; Sandu, A.V.; Vizureanu, P.; Ghazali, C.M.R.; Kadir, A.A. Mechanical and Durability Analysis of Fly Ash Based Geopolymer with Various Compositions for Rigid Pavement Applications. Materials 2022, 15, 3458. [Google Scholar] [CrossRef] [PubMed]
- Singh, S.; Sharma, S.K.; Akbar, M.A. A Detailed Investigation on Assessing the Introduction of Hybrid Fibres in Geopolymer Composites for Pavement Application. Int. J. Pavement Eng. 2024, 25, 2403681. [Google Scholar] [CrossRef]
- Ravi Kumar, N.S.M.; Venkateswara Rao, S. Experimental studies on pavement quality geopolymer-based concrete (PQGPC) for high-volume roads: A sustainable infrastructure. Int. J. Pavement Eng. 2024, 25, 2337917. [Google Scholar] [CrossRef]
- Marathe, S.; Shetty, T.S.; Mithun, B.; Ranjith, A. Strength and durability studies on air cured alkali activated pavement quality concrete mixes incorporating recycled aggregates. Case Stud. Constr. Mater. 2021, 15, e00732. [Google Scholar] [CrossRef]
- Nath, P.; Sarker, P.K. Flexural strength and elastic modulus of ambient-cured blended low-calcium fly ash geopolymer concrete. Constr. Build. Mater. 2017, 130, 22–31. [Google Scholar] [CrossRef]
- IRC 58: 2002; Guidelines for the Design of Plain Jointed Rigid Pavements for Highways. The Indian Roads Congress: New Delhi, India, 2002.
- IS 456: 2000; Indian Standard Plain and Reinforced Concrete Code of Practice. Bureau of Indian Standards: New Delhi, India, 2000.
- Abbass, M.; Singh, G. Fatigue analysis of rice husk ash and basalt fibre-based sustainable geopolymer concrete in rigid pavements. Mater. Today Proc. 2021, 45, 5014–5022. [Google Scholar] [CrossRef]
- Rambabu, D.; Sharma, S.K.; Akbar, M.A. A review on suitability of using geopolymer concrete for rigid pavement. Innov. Infrastruct. Solut. 2022, 7, 286. [Google Scholar] [CrossRef]
- Hardjito, D.; Wallah, S.; Sumajouw, D.; Rangan, B. On the development of fly ash-based geopolymer concrete. ACI Mater. J. 2004, 101, 467–472. [Google Scholar] [CrossRef] [PubMed]
- Hardjito, D.; Wallah, S.; Sumajouw, D.; Rangan, B. The stress-strain behaviour of fly ash-based geopolymer concrete. Dev. Mech. Struct. Mater. 2004, 35, 831–834. [Google Scholar]
- Guerrieri, M.; Sanjayan, J.G. Behavior of combined fly ash/slag-based geopolymers when exposed to high temperatures. Fire Mater. 2010, 34, 163–175. [Google Scholar] [CrossRef]
- Puertas, F.; Amat, T.; Fernandez-Jimenez, A.; Vazquez, T. Mechanical and durable behaviour of alkaline cement mortars reinforced with polypropylene fibres. Cem. Concr. Res. 2003, 33, 2031–2036. [Google Scholar] [CrossRef]
- Bondar, D.; Lynsdale, C.J. Engineering Properties of Alkali-Activated Natural Pozzolan Concrete. ACI Mater. J. 2011, 108, 64–72. [Google Scholar] [CrossRef]
- Migunthanna, J.; Rajeev, P.; Sanjayan, J. Waste Clay Brick as a Part Binder for Pavement Grade Geopolymer Concrete. Int. J. Pavement Res. Technol. 2024, 17, 1450–1467. [Google Scholar] [CrossRef]
- Özdal, M.; Karakoç, M.B.; Özcan, A. Investigation of the properties of two different slag-based geopolymer concretes exposed to freeze–thaw cycles. Struct. Concr. 2019, 22, E332–E340. [Google Scholar] [CrossRef]
- Yang, M.; Paudel, S.R.; Gao, Z.J. Snow-proof roadways using steel fiber–reinforced fly ash geopolymer mortar–concrete. J. Mater. Civil. Eng. 2021, 33, 04020444. [Google Scholar] [CrossRef]
- Xie, J.; Zhao, J.; Wang, J.; Wang, C.; Huang, P.; Fang, C. Sulfate resistance of recycled aggregate concrete with GGBS and fly ash–based geopolymer. Materials 2019, 12, 1247. [Google Scholar] [CrossRef] [PubMed]
- Guo, X.; Xiong, G. Resistance of fiber-reinforced fly ash-steel slag based geopolymer mortar to sulfate attack and drying-wetting cycles. Constr. Build. Mater. 2021, 269, 121326. [Google Scholar] [CrossRef]
- Deb, P.S.; Nath, P.; Sarker, P.K. Drying shrinkage of slag blended fly ash geopolymer concrete cured at room temperature. Procedia Eng. 2015, 125, 594–600. [Google Scholar] [CrossRef]
- Asayesh, S.; Shirzadi Javid, A.A.; Ziari, H.; Mehri, B. Evaluating Fresh State, Hardened State, Thermal Expansion and Bond Properties of Geopolymers for the Repairing of Concrete Pavements under Restrained Conditions. Constr. Build. Mater. 2021, 292, 123398. [Google Scholar] [CrossRef]
- Eisa, M.S.; Fahmy, E.A.; Basiouny, M.E. Using metakaolin-based geopolymer concrete in concrete pavement slabs. Innov. Infrastruct. Solut. 2022, 7, 1. [Google Scholar] [CrossRef]
- Upadhyay, H.; Mungule, M.; Iyer, K.K.R. Issues and challenges for development of geopolymer concrete. Mater. Today Proc. 2022, 65, 1567–1574. [Google Scholar] [CrossRef]
- Sindhunata; van Deventer, J.S.J.; Lukey, G.C.; Xu, H. Effect of Curing Temperature and Silicate Concentration on Fly-Ash-Based Geopolymerization. Ind. Eng. Chem. Res. 2006, 45, 3559–3568. [Google Scholar] [CrossRef]
- Danish, A.; Ozbakkaloglu, T.; Ali Mosaberpanah, M.; Salim, M.U.; Bayram, M.; Yeon, J.H.; Jafar, K. Sustainability benefits and commercialization challenges and strategies of geopolymer concrete: A review. J. Build. Eng. 2022, 58, 105005. [Google Scholar] [CrossRef]
- Ajay, A.; Ramaswamy, K.P.; Thomas, A.V. A Critical Review on the Durability of Geopolymer Composites in Acidic Environment. IOP Conf. Ser. Earth Environ. Sci. 2020, 491, 012044. [Google Scholar] [CrossRef]
- Liew, K.M.; Sojobi, A.O.; Zhang, L. Green concrete: Prospects and challenges. Constr. Build. Mater. 2017, 156, 1063–1095. [Google Scholar] [CrossRef]
- Lima, M.S.S.; Hajibabaei, M.; Thives, L.P.; Haritonovs, V.; Buttgereit, A.; Queiroz, C.; Gschösser, F. Environmental potentials of asphalt mixtures fabricated with red mud and fly ash. Road Mater. Pavement Des. 2021, 22, S690–S701. [Google Scholar] [CrossRef]
- Kurda, R.; de Brito, J.; Silvestre, J.D. A comparative study of the mechanical and life cycle assessment of high content fly ash and recycled aggregate concrete. J. Build. Eng. 2020, 29, 101173. [Google Scholar] [CrossRef]
Disclaimer/Publisher’s Note: The statements, opinions and data contained in all publications are solely those of the individual author(s) and contributor(s) and not of MDPI and/or the editor(s). MDPI and/or the editor(s) disclaim responsibility for any injury to people or property resulting from any ideas, methods, instructions or products referred to in the content. |
© 2025 by the authors. Licensee MDPI, Basel, Switzerland. This article is an open access article distributed under the terms and conditions of the Creative Commons Attribution (CC BY) license (https://creativecommons.org/licenses/by/4.0/).