Fortification Architecture in Argolis, Greece: Documentation, Analysis and Restoration Proposal of the Princess Tower
Abstract
1. Introduction
2. Historical Validation
2.1. The Evolution of Tower Architecture in the Peloponese
2.2. Historical Background
3. Description of Princess Tower
3.1. Naming of the Tower
3.2. Geographical Characteristics
3.3. Use of the Structure
3.4. Interpreting the Internal Spatial Organization
3.5. Description of Defense Structures and Defense Elements of the Tower
3.6. Description of Construction Materials
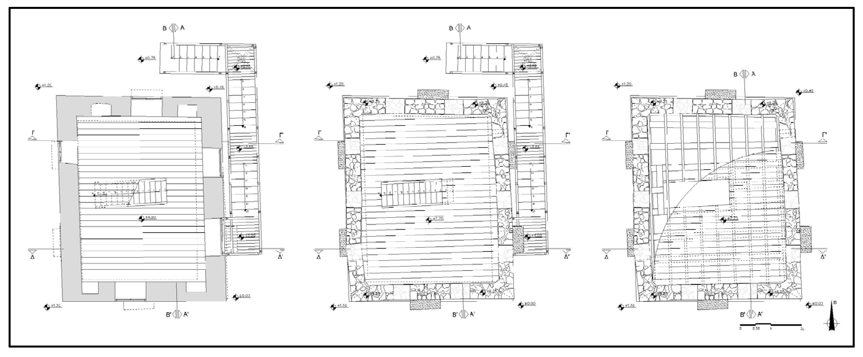
4. Current Condition of Princess Tower—Pathology Diagnosis of the Structure
4.1. General Description
4.2. Discussion on the Recognition of Construction Phases
4.2.1. Introductory Elements
4.2.2. Discussion of the Identification of Construction Phases
- ➢
- Most elaborated masonry
- ➢
- Small openings with stone frames and enlargement towards the interior
- ➢
- Four levels (A, B, C and D)
- ➢
- Retention of the majority of the elements of the previous phase
- ➢
- Repair/reconstruction of masonry in a rough manner (e.g., west side, on both sides of the south side opening, etc.)
- ➢
- Three levels (B, C and D), with cancellation of level A due to the filling
- ➢
- Retention of the openings (with the exception of the southern one on the west side)
- ➢
- Addition of external enclosure
- ➢
- Widening of the openings
- ➢
- Possible aconstruction of wooden balconies/ancillary spaces
(?) - ➢
- Coating on the eastern façade
5. Restoration Proposal for the Structure
5.1. General Requirements
5.2. Suggested Restoration Works
- ➢
- Reconstruction of the north-western corner of the tower
- ➢
- Reconstruction of the timber floors
- ➢
- Construction of new proposed ascending internal and external ladders
- ➢
- Restoration of the geometry of the openings, the merlons and the machicolations of the tower
- ➢
- Installation of new double-leaf opening window shutters
- ➢
- Sealing of the cracks appearing on the masonry
- ➢
- Application of new grouts and conservation of the remaining coatings
- ➢
- Conservation of the enclosure of the tower
6. Conclusions
Author Contributions
Funding
Data Availability Statement
Acknowledgments
Conflicts of Interest
References
- De Minicis, E. (Ed.) Case e Torri Medievali IV Indagini Sui Centri Dell’italia Meridionale e Insulare (Sec. XI–XV) Campania, Basilicata, Puglia, Calabria, Sicilia e Sardegna, Atti del V Convegno Nazionale di Studi, Orte, Italy, 15–16 Marzo 2013; Edizioni Kappa: Rome, Italy, 2014. [Google Scholar]
- Russo, G.; Bergamo, O.; Damiani, L.; Lugato, D. Experimental analysis of the “Saint Andrea” Masonry Bell Tower in Venice. A new method for the determination of “Tower Global Young’s Modulus E”. Eng. Struct. 2010, 32, 353–360. [Google Scholar] [CrossRef]
- Casolo, S.; Milani, G.; Uva, G.; Alessandri, C. Comparative seismic vulnerability analysis on ten masonry towers in the coastal Po Valley in Italy. Eng. Struct. 2013, 49, 465–490. [Google Scholar] [CrossRef]
- Bartoli, G.; Betti, M.; Giordano, S. In situ static and dynamic investigations on the “Torre Grossa” masonry tower. Eng. Struct. 2013, 52, 718–733. [Google Scholar] [CrossRef]
- Saisi, A.; Gentile, C.; Ruccolo, A. Static and dynamic monitoring of a Cultural Heritage bell-tower in Monza, Italy. Procedia Eng. 2017, 199, 3356–3361. [Google Scholar] [CrossRef]
- Ramos, L.F.; Marques, L.; Lourenço, P.B.; De Roeck, G.; Campos-Costa, A.; Roque, J. Monitoring historical masonry structures with operational modal analysis: Two case studies. Mech. Syst. Signal Process. 2010, 24, 1291–1305. [Google Scholar] [CrossRef]
- Meniku, J.; Kortoçi, D.; Çapeli, L. Perspectives on Knowledge, Conservation and Assessment of Patrimonial Zones in Durres (Venetian Tower); Universitat Politecnica de Valencia: Valencia, Spain, 2024. [Google Scholar] [CrossRef]
- Gil-Crespo, I.J.; Cusano, C.; Cennamo, C. The Tower of Nisida as centre of 17th century fortified naples system. Front. Archit. Res. 2023, 12, 308–318. [Google Scholar] [CrossRef]
- Bartoli, G.; Betti, M.; Galano, L.; Zini, G. Numerical insights on the seismic risk of confined masonry towers. Eng. Struct. 2019, 180, 713–727. [Google Scholar] [CrossRef]
- Saisi, A.; Gentile, C. Post-earthquake diagnostic investigation of a historic masonry tower. J. Cult. Herit. 2015, 16, 602–609. [Google Scholar] [CrossRef]
- Dimitroulias, K. The Peloponnese after the Fourth Crusade: Spatial Organization, Defense, and the Architecture of Fortification Works, Part A. Ph.D. Thesis, National Technical University, Athens, Greece, 2025. (In Greek) [Google Scholar]
- Dimitroulias, K. The Peloponnese after the Fourth Crusade: Spatial Organization, Defense, and the Architecture of Fortification Works, Part B. Ph.D. Thesis, National Technical University, Athens, Greece, 2025. (In Greek) [Google Scholar]
- Lock, P. The Frankish Towers of Central Greece. Annu. Br. Sch. Athens 1986, 81, 101–123. [Google Scholar] [CrossRef]
- Langdon, M. The Mortared Towers of Central Greece: An Attic Supplement. Annu. Br. Sch. Athens 1995, 90, 475–503. [Google Scholar] [CrossRef]
- Bintliff, J.L. Frankish countryside in central Greece: The evidence from archaeological field survey. In The Archaeology of Medieval Greece; Lock, P., Sanders, G.D.R., Eds.; Oxbow Book: Oxford, UK, 1996; pp. 1–18. [Google Scholar]
- Vionis, A. The Archaeology of Landscape and Material Culture in Late Byzantine–Frankish Greece. Pharos J. Neth. Inst. Athens 2014, 20, 313–346. [Google Scholar]
- Loizou, C. The medieval towers of Euboea: Their dimension as domestic and landscape phenomena. In An Island Between Two Worlds, The Archaeology of Euboea from Prehistoric to Byzantine Times, Proceedings of the International Conference, Eretria, Greece, 12–14 July 2013; Norwegian Institute at Athens: Athens, Greece, 2017. [Google Scholar]
- Bogdanović, J. Life in a Late Byzantine Tower: Examples from Northern Greece. In Approaches to Byzantine Architecture and Its Decoration, Studies in Honor of Slobodan Ćurčić; Johnson, M., Ousterhout, R., Papalexandrou, A., Eds.; Ashgate: Farnham, UK, 2012; pp. 187–202. [Google Scholar]
- Androudis, P. Historical and archaeological evidence for the so-called “Tower of the Albanian” of the Monastery of Chilandar on Mount Athos. Byzantiaka 2002, 22, 219–245. (In Greek) [Google Scholar]
- Androudis, P. The Byzantine tower at the site “Pinaka” in Kassandra, Chalkidiki. Byzantiaka 2007, 26, 247–270. (In Greek) [Google Scholar]
- Androudis, P. The Byzantine towers of Chalkidiki: Historical and archaeological evidence. Byzantiaka 2019, 35, 281–323. (In Greek) [Google Scholar]
- Pikoulas, G. Towers: Network, function, issues and research questions. An approach based on data from Argolis, Arcadia, and Laconia. Horos 1990–1991, 8–9, 247–257. (In Greek) [Google Scholar]
- Karapanagiotou, A.V. Ephorate of Antiquities of Arcadia 2011–2019: Aspects of the excavation work. In Proceedings of the the Archaeological Work of the Ephorates of Antiquities during the Period 2011–2019, Athens, Greece, 25–28 November 2019. (In Greek) [Google Scholar]
- Kondis, I. Aigio—Aigialeia: Tourist Guide; Γραφικές Τέχνες Κ. Μιχαλάς A.Ε.: Athens, Greece, 1983; pp. 77–79. (In Greek) [Google Scholar]
- Chrysafi-Zografou, M. Greek Traditional Architecture. Peloponnese B—Central Greece; Filippidis, D., Ed.; Melissa Publishing House: Athens, Greece, 1987; Volume 5, pp. 9–42. (In Greek) [Google Scholar]
- Christopoulos, V. Achaia. In Greek Traditional Architecture; Peloponnese, A., Filippidis, D., Eds.; Melissa Publishing House: Athens, Greece, 1985; Volume 4, pp. 9–42. (In Greek) [Google Scholar]
- Sarantakis, P. Arcadia: Its Acropoleis, Castles, and Towers, Silent Ruins of a Glorious Land; Oiatis Editions: Athens, Greece, 2006; pp. 63, 101–108, 162–163, 171–180. (In Greek) [Google Scholar]
- McLeod, W. Kiveri and Thermisi. Hesperia J. Am. Sch. Class. Stud. Athens 1962, 31, 378–392. [Google Scholar] [CrossRef]
- Bon, A. La Morée Franque, Recherches Historiques, Topographiques et Archéologiques sur la Principauté d’ Achaïe (1205–1430); Texte; Éditions E. de Boccard: Paris, France, 1969; pp. 494, 636, 642–644, 659, 681. [Google Scholar]
- Varalis, I.; Tsekes, G.; Boudouris, K. The Latin castle of Chiveri at Myloi of Lerna. In Proceedings of the International Conference, Defensive Architecture in the Peloponnese (5th–15th century), Loutraki—Corinth Canal, Greece, 30 September–2 October 2011. (In Greek) [Google Scholar]
- Miliarakis, A. Political Geography, Modern and Ancient, of the Prefectures of Argolis and Corinthia, with a Geographical Map of the Prefecture; Hestia Publishers & Bookseller: Athens, Greece, 1886; pp. 41–42. (In Greek) [Google Scholar]
- Ntokos, K. Kiveri–Myloi–Skafidaki. In Argiaki Gi; Cultural Centre of the Municipality of Argos: Argos, Greece, 2004; Volume 2. (In Greek) [Google Scholar]
- Bon, A. La Morée Franque, Recherches Historiques, Topographiques et Archéologiques sur la Principauté d’ Achaïe (1205–1430); Album; Éditions E. de Boccard: Paris, France, 1969; pp. 8, 128–129. [Google Scholar]
- Sathas, C.N. Documents Inédits Relatifs à L’ Histoire de la Grèce au Moyen Âge Publiés Sous les Auspices de la Chambre des Débuteés de Grèce; Tome IX; J. Maisonneuve Libraire—Éditeur: Paris, France, 1890. [Google Scholar]
- Asdrahas, S.; Tsarouhis, G. Greek Painters: From the 19th to the 20th Century; Karakatsani, A., Lydakis, S., Eds.; Melissa Publishing House: Athens, Greece, 1974; Volume A, pp. 12–61. (In Greek) [Google Scholar]
- Bory de Saint-Vincent, J.B.G.M.; Le Puillon de Boblaye, É. French Scientific Expedition, Expédition Scientifique de Morée, 1832–1836, Map of the Peloponnese. Available online: https://gallica.bnf.fr/ark:/12148/bpt6k1519194v/f35.item.r=Expedition%20scientifique%20de%20Mor%C3%A9e (accessed on 15 December 2025).
- Sigalos, E. Housing in Medieval and Post-Medieval Greece; BAR Publishing: Oxford, UK, 2004; pp. 89–91, 293. [Google Scholar]
- Kofiniotis, I. History of Argos from the Most Ancient Times to the Present; Palamidis Printing: Athens, Greece, 1892; p. 123. (In Greek) [Google Scholar]
- Ministry of Culture and Sports—Ephorate of Antiquities of Corinth. Restoration of the Archaeological Site of the Castle of Agionori in Corinthia); Ministry of Culture and Sports—Ephorate of Antiquities of Corinth: Ancient Corinth, Greece, 2015. (In Greek)
- Ministry of Culture and Sports—25th Ephorate of Byzantine Antiquities—Ephorate of Antiquities of Messenia. Karytaina: Projects for the Enhancement of Its Monuments; Ministry of Culture and Sports—25th Ephorate of Byzantine Antiquities—Ephorate of Antiquities of Messenia: Kalamata, Greece; pp. 7–20. (In Greek)
- Woodhouse Photographic Archive of Nicholson Museum, Now of Chau Chak Wing Museum at the University of Sydney, Australia. Available online: https://www.flickr.com/photos/ccwm-woodhouse/34320976093/in/album-72157716834269768 (accessed on 15 December 2025).
- Dimitroulias, K. Architectural documentation of a rectangular defensive Tower in Argos Larissa castle. In Proceedings of the International Conference: Byzantine, Western and Post-Byzantine Towers (10th–16th Centuries), Online, 18–20 November 2022. [Google Scholar]
- Dimitroulias, K.; Koliatsi, P.; Alvanou, E. Architectural and historical documentation of the so-called “Castle of Monovyza” in Stavri, Gortynia. In Proceedings of the Third International Scientific Meeting, Archaeological Work in the Peloponnese (AWOP 3), Kalamata, Greece, 2–5 June 2021. (In Greek) [Google Scholar]
- Athanasoulis, D. The Castle of Acrocorinth and Its Enhancement, 2006–2009; Ministry of Culture and Sports—25th Ephorate of Byzantine Antiquities: Ancient Corinth, Greece, 2014; pp. 78–79. (In Greek)
- Ministry of Culture and Sports—Ephorate of Antiquities of Corinth. Stabilization and Restoration of the Southwestern (Frankish) Tower and Its Enceinte. Emergency Stabilization Works of the Upper Peirene Fountain at the Castle of Acrocorinth, Prefecture of Corinthia); Ministry of Culture and Sports—Ephorate of Antiquities of Corinth: Ancient Corinth, Greece, 2015; pp. 4–7. (In Greek)
- Peppas, I. Medieval Pages of Argolis, Arcadia, Corinthia, and Attica; Athens, Greece, 1990; pp. 166–168. (In Greek) [Google Scholar]
- Andrews, K. Castles of the Morea, 2nd ed.; Adolf M. Hakkert Publisher: Amsterdam, The Netherlands, 1978; p. 219. [Google Scholar]
- Available online: http://ecastles.culture.gr/architektonike (accessed on 15 December 2025).
- Sfikopoulos, I. The Medieval Castles of the Morea; E.N. Tsailanis Printing House: Athens, Greece, 1968; pp. 118–121. (In Greek) [Google Scholar]
- Zamenopoulou-Chronopoulou, N. Tower-Houses in Small Settlements of the Nafplio Region; Athens, Greece, 1977. (In Greek) [Google Scholar]
- Simou, X. Ottoman Fortifications of the Peloponnese During the First Ottoman Period (1458–1685), Part B—Monographs. Ph.D. Thesis, University of Patras, Patra, Greece, 2023. (In Greek) [Google Scholar]
- International Charter for the Conservation and Restoration of Monuments and Sites (Venice Charter 1964). Available online: https://www.icomos.org/charters-and-doctrinal-texts/ (accessed on 15 December 2025).
- Papatzani, S.; Pnevmatikos, N.; Dimitroulias, K.; Michail, G.; Sapiridis, G.; Flentzouris, V. Mount Athos: Restoration of an Almost Extinct Type of 18th–19th C. UNESCO Masonry OX Stable. Heritage 2021, 4, 1284–1303. [Google Scholar] [CrossRef]
- Papatzani, S.; Michail, G.; Tzamalis, G.; Skitsas, G. UNESCO Historic Centre (Chorá) of Patmos Island: Conservation and Reconstruction of a Collapsed Urban House. Heritage 2022, 5, 3100–3132. [Google Scholar] [CrossRef]
- Dimacopoulos, J. Scripta Minora, Architectural Investigations and Monument—Conservation Projects; Ministry of Culture: Athens, Greece, 2005; pp. 220–222, 287–290.


























Disclaimer/Publisher’s Note: The statements, opinions and data contained in all publications are solely those of the individual author(s) and contributor(s) and not of MDPI and/or the editor(s). MDPI and/or the editor(s) disclaim responsibility for any injury to people or property resulting from any ideas, methods, instructions or products referred to in the content. |
© 2026 by the authors. Licensee MDPI, Basel, Switzerland. This article is an open access article distributed under the terms and conditions of the Creative Commons Attribution (CC BY) license.
Share and Cite
Dimitroulias, K.; Papatzani, S. Fortification Architecture in Argolis, Greece: Documentation, Analysis and Restoration Proposal of the Princess Tower. Heritage 2026, 9, 71. https://doi.org/10.3390/heritage9020071
Dimitroulias K, Papatzani S. Fortification Architecture in Argolis, Greece: Documentation, Analysis and Restoration Proposal of the Princess Tower. Heritage. 2026; 9(2):71. https://doi.org/10.3390/heritage9020071
Chicago/Turabian StyleDimitroulias, Konstantinos, and Styliani Papatzani. 2026. "Fortification Architecture in Argolis, Greece: Documentation, Analysis and Restoration Proposal of the Princess Tower" Heritage 9, no. 2: 71. https://doi.org/10.3390/heritage9020071
APA StyleDimitroulias, K., & Papatzani, S. (2026). Fortification Architecture in Argolis, Greece: Documentation, Analysis and Restoration Proposal of the Princess Tower. Heritage, 9(2), 71. https://doi.org/10.3390/heritage9020071

