Abstract
Ivo Radić (Split, 1930–Split, 2006) is a prominent Croatian architect who contributed mostly to the field of residential architecture and tourism facilities. The most important buildings that he designed were realised in Split, a city in the Mediterranean part of Croatia. Buildings that he designed have many features of the International style. Nevertheless, in their design, the architect also successfully introduced the elements of regional Mediterranean vocabulary, using contemporary materials and technology. This paper is focused on three formative projects of architect Ivo Radić, analysing them by their urban context, architectural design and technical innovation of their architectural elements, trying to outline the architect’s discourse. The aim of the research is to emphasise the importance of Ivo Radić’s work in the context of the modernist urban and architectural heritage of Split and Croatia and to underline the need to define an appropriate approach in the evaluation and protection of the heritage of modernist residential architecture and urbanism.
Keywords:
Ivo Radić; Split; Croatia; residential building; International style; regional vocabulary; blinds 1. Introduction
Ivo Radić (Split, 1930–Split, 2006) is a prominent Croatian architect who contributed mostly to the field of residential architecture and tourism facilities. The most important buildings that he designed were realised in Split, a city in the Mediterranean part of Croatia.
Three prestigious lifetime achievement awards demonstrate the importance of his work: the “Viktor Kovačić” Award of the Croatian Architects’ Association, the “Vladimir Nazor” Award of the Republic of Croatia and the City of Split Award [1,2,3,4].
Ivo Radić is the laureate of several major professional awards as well. In 1967, he received the Award of the Urban Planning Bureau of Split, which was awarded to the most successful employees for their achievements in 1967, for the residential buildings in Meje. In 1976, he received the Award of the Urban Planning Institute of Dalmatia-Split for the ensemble of residential buildings in Split 3. In 1972, he received the Golden Plaque of the Urban Planning Institute of Dalmatia-Split, a recognition for the development and affirmation of the Institute.
He did not often participate in architectural competitions, but in his opus there are awarded and realised competition works as well. In 1963, he won the second prize in a competition for a tower in Rijeka [5]. In 1962, he won the first prize with the competition proposal for residential buildings in Kralja Zvonimira Street and Mažuranić Promenade in Split, and the buildings were realised according to his design [6] (pp. 124–133). In 1964, he participated in the competition for a residential and commercial building on Ivana Gundulića Street in Split [6] (pp. 150–155). In 1964–1965, he won the first prize in the competition for army residential buildings in Spinut in Split, and the buildings were realised according to his design [6] (pp. 156–161). In 1966, he won the first prize in the competition for the Brodospas office building, and the building was realised according to his design [6] (pp. 176–179).
The apartment building designed by Radić in the city district of Split 3 was presented in the exhibition Toward a Concrete Utopia: Architecture in Yugoslavia 1948–1980, which was organised by Martino Stierli and held at the Museum of Modern Art (MoMA) in New York (2018–2019) [7].
His works were continually followed and popularised by the professional press of the time [8,9], [10] (pp. 32–34), [11] (pp. 75–80), [12,13,14] (pp. 31, 88–89, 92–94), [15] (pp. 26, 29, 31, 33), [16,17,18], [19] (pp. 82–83), [20] (pp. 101–102), and [21,22] (pp. 34, 36).
The daily newspapers of Split also regularly reported on the construction of his buildings [21,23,24,25].
In many lexicographic editions and review editions on Croatian architecture, there are notes on Ivo Radić [26,27,28], [29] (p. 31), [30] (pp. 51–53), [31] (pp. 211–213, 216–217), [32], and [33] (pp. 182–185).
There are many notes on his work in the books on the architecture and urbanism of Split by Darovan Tušek as well [6] (pp. 86, 99, 122, 126–130, 133, 150, 153, 155, 158–159, 161, 176–177, 179, 213, 216, 218, 362, 366, 455–456, 470, 499, 502, 504) [34] (pp. 81, 93, 96, 115), and [35] (pp. 77–78, 170, 172, 182, 189, 211, 217, 233, 255).
However, although the creative potential of architect Ivo Radić was recognised even in the first buildings constructed by his design, his architectural opus has been scientifically studied in a fragmented way by a small number of articles focused on single buildings. The reason for this could be the inadequate emphasis on the contribution of post-war collective housing to the modernist architectural and urban heritage of Croatia.
This paper is focused on three formative projects of architect Ivo Radić, analysing them by their urban context, architectural design and technical innovation of their architectural elements, trying to outline the architect’s discourse. The aim of the research is to emphasise the importance of Ivo Radić’s work in the context of the modernist urban and architectural heritage of Split and Croatia and to underline the need to define an appropriate approach in the evaluation and protection of the heritage of modernist residential architecture and urbanism.
2. Professional Background of Architect Ivo Radić
Architect Ivo Radić (Split, 1930–Split, 2006) lived in Split his entire life, apart from the years spent studying in Zagreb. After graduating from the Technical High School in Split, he worked for a short time in the Urban Planning Bureau in Split. In 1950, he enrolled at the Architectural Department of the Technical Faculty in Zagreb. He finished his studies in 1956, with a diploma thesis designed under the mentorship of Professor Neven Šegvić.
He worked as a designer at the Urban Planning Institute of Dalmatia—Split throughout his entire career. After collaborating with senior designer Lovro Perković on his first design assignments, he soon began to design independently. As early as 1961, he authored projects of buildings within the residential complex along Domovinskog rata Street in Split, which were built from 1962 to 1965.
During his career, he mainly designed residential buildings and tourism facilities. In addition to the residential area along Domovinskog rata Street, Radić’s prominent realisations in Split are the residential buildings in the city district of Meje from 1965 to 1966, the residential building on the West Coast from 1967 to 1968, the three residential towers in the city district of Spinut from 1968 to 1969, the residential corner interpolations in Zoranićeva Street from 1972 and in Cankareva poljana Square from 1987 to 1989, the residential-commercial ensemble in Papandopulova Street in Split 3 from 1974 to 1979, and the residential-commercial building in Punta in Omiš from 1979 to 1982. Radić designed buildings for tourism in the late 1960s and early 1970s. Those that stand out are the accommodation pavilions and the hotel restaurant in the Raduča area in the town of Primošten, the Bodul hotel in the Križna luka area in the town of Hvar, the Mala Sirena restaurant in Mala Grčka Bay on the island of Hvar, and the unfinished Issa hotel in the town of Komiža on the island of Vis. Radić is also the author of the workers’ dormitories of the railway transport company Željezničko-transportno poduzeće—ŽTP in the city district of Ravne njive in Split and the County Remand Prison in the Bilice area in Split from 1986 to 1987 [5,6,26,27,28,29,30,31,32,33,34,35,36].
3. Split as the Urban Context of Ivo Radić’s Architectural Discourse
Most of Ivo Radić’s projects were carried out in Split, a Mediterranean city in Croatia, located on the eastern coast of the Adriatic Sea. The nucleus of Split is the ancient Diocletian’s Palace built on the western part of the Split peninsula, in the bay east of Marjan hill. The historical core consists of the palace, filled over time with constructions of different stylistic periods, and the suburbia that surrounded the palace during the Middle Ages.
In the early 19th century, Split began to expand north and west of the historical core. The typical construction of this period was five-storey residential blocks in a more regular street network.
The urban regulatory framework, within which Ivo Radić designed, was developed after the Second World War. At that time, Split was becoming the cultural, economic and administrative centre of central Dalmatia. The number of inhabitants grew rapidly at the time because residents from the vicinity of Split, but also from distant parts of Yugoslavia, moved to Split. This particularly applies to the military personnel who worked in the administration of the Yugoslav Navy—JRM in the Command Building on the West Coast and in the naval base in Lora. From the end of the 1950s, and after the reconstruction from war damages, the intensive construction of Split began.
The Directive Regulatory Basis of the City of Split was adopted in 1951 to improve the quality of the city’s development [6] (p. 105). In addition to the city of Split, the document covered the wider area, from the town of Trogir to the town of Omiš [37]. Since ancient times, following the relief configuration of Mosor, a mountain in the hinterland of Split, the city has been approached from two sides. Access from the north, from the direction of Solin, leads through Domovinskog rata Street (formerly Solinska Road). From the east, from the direction of Stobreč, Split is approached via Poljička Road, laid along the route of the Roman centuriation. These two main city roads stretch along the Split peninsula in the east-west direction. A network of transverse and longitudinal roads is connected to them. With the Directive Regulatory Basis document, this network of city roads demarcated the areas of residential settlements, for which urban regulations were drawn up in the 1960s following CIAM urban planning principles. By the end of the 1960s, residential areas characterised by a regular street network and buildings surrounded by urban green areas were built.
In addition to the construction of residential areas in the area between Domovinskog rata Street and Poljička Road, the Directive Regulatory Basis envisioned the expansion of the city to the area north of the historic core, the development of the West Coast of Split City harbour, and the regulation of individual locations by constructing within the existing city fabric.
In 1968, a competition for Split 3 was announced, a new urban area for 50,000 inhabitants on the eastern part of the Split peninsula, which was built until 1979. The urban area of Split 3 was a departure from the urban planning according to the CIAM principles and a reaffirmation of the Mediterranean way of life through a return to the “street” and public spaces.
4. The Impact of the Socio-Political Context on Ivo Radić’s Contribution to the Architectural and Urban Heritage of Croatia
After the Second World War, Croatia was one of six republics within the former Yugoslavia, a state with a socialist socio-political system. This fact marked the entire career of Ivo Radić. The socialism reflected on architectural activity in the following two ways: through new forms of work organisations in which architects designed and through the planned economy, where the state was the most common investor.
The work organisations within which the architectural profession operated after the Second World War took on a new form because of the abolition of private ownership. In the observed period, architects mostly worked professionally for the design offices of large socially owned construction companies or for state design institutes [38] (p. 120). One such institute, where Ivo Radić spent his entire career as a designer, was the Urban Institute of Dalmatia—Split.
Shortly after the Second World War, Croatian architects liberated themselves from the politically imposed socialist-realist tendencies under the influence of the USSR and established the continuity of interwar modernist architectural theory and practice. The political and economic blockade of Yugoslavia, which was introduced by the USSR after the so-called Informbiro Resolution in 1948, contributed to that. Informbiro operated from 1947 to 1956 as an advisory and coordinating body of nine communist and labour parties (of the USSR, Poland, Czechoslovakia, Hungary, Romania, Bulgaria, Yugoslavia, Italy and France), which imposed directives of the USSR on its members. Yugoslavia, led by Josip Broz Tito, began to resist the directives and was consequently sanctioned and isolated [39]. Since the Resolution of the Informbiro, the former Yugoslavia, although a socialist state itself, separated politically from the USSR and Stalin’s policies and began its opening to the West. Its resulting unique socio-political position enabled it to play a role as a link between the socialist East and the capitalist West, among other things, in architectural theory and practice. Croatian architects re-established contacts with their European colleagues of the interwar period. The result was, for instance, the holding of the 10th CIAM Congress in 1956 in Dubrovnik. The international contacts and experiences of Croatian architects influenced the contemporaneity of their architectural practice.
In the period after the Second World War, due to intensive industrialisation and urbanisation, the state invested in collective housing construction and accompanying facilities of social standard, such as schools and kindergartens. After the Yugoslav opening to the West, tourism became a significant economic activity in the Mediterranean part of Croatia, and the state began to invest intensively in tourism facilities. Ivo Radić was the most productive precisely in the period of the 1960s and 1970s, and therefore his work is largely related to collective housing and tourism facilities.
Rapid industrialisation and modernisation of society were features of the 1960s, common to the socialist as well as welfare state countries. The need for cost rationalisation and quick execution led to the industrialisation, standardisation and prefabrication of construction. The International style, which arose in architecture between the two world wars, entered its reduced form in the 1960s. The International style of the interwar period was characterised by the universality of the approach, which assumed the use of modern techniques and materials [40] (p. 248). By the beginning of the 1930s, through the series of buildings constructed all around the world, it was possible to glimpse the features of the new style, such as the use of simple, rectangular, often hovering volumes; avoidance of architectural decoration and use of transparent layers [41] (pp. 257–258). Some of the pioneers of this new style were W. Gropius, P. Behrens, L. Mies van der Rohe, Le Corbusier, J.J.P. Oud, R. Neutra and P. Johnson, while in the former Yugoslavia Drago Ibler, Stjepan Planić, Edvard Ravnikar, Juraj Neidhardt and Nikola Dobrović stood out. Nonetheless, in the 1960s, architecture was in many cases completely subordinated to the industrialisation of construction, which largely contributed to the box-like residential slabs appearing as a characteristic type of the time [41] (p. 549).
Some common features of the International style, such as large glazed surfaces, were strongly colliding with the Mediterranean climate. This is why Mediterranean architects often reached for regional architectural elements and interpreted them to solve the problem of heat and sun glaring. This can be seen in the works of the Italian architect Ignazio Gardela in his Casa Borsalino in Alessandria, Italy (1951–1953) and of the Spanish architect José Antonio Coderch in the ISM apartment block in Barcelona, Spain (1951) [40] (pp. 340–341). Buildings designed by Ivo Radić bear many features of the International style from the 1960s. However, Ivo Radić is one of the Croatian architects who successfully articulated the regional conditions of the Mediterranean climate with his architecture.
5. Materials and Methods
This research aims to establish the formation of the architectural discourse of Ivo Radić. The research is focused on three residential buildings designed in the early stage of his career, showing the development of his architectural vocabulary and architectural design that the architect was improving later throughout his entire career.
Analysed buildings are in the city of Split, in the Split-Dalmatia County. This county occupies the central part of the Croatian coast of the Adriatic Sea. The buildings are presented in chronological order as follows: Section 6.1—residential towers in the city district of Bol from 1962 to 1963, Section 6.2—mixed-use building on the West Coast of the Split City harbour from 1967 to 1968, and Section 6.3—residential towers in the city district of Spinut from 1968 and1969 (Figure 1 and Figure 2).
Figure 1.
Position of the Republic of Croatia and the City of Split in Europe. The city of Split marked with the letter “S”. Source: Author’s archive.
Figure 2.
Plan of the City of Split. Buildings designed by Radić and analysed in this article are marked on the map by numbers: 1—residential towers in the residential settlement along Domovinskog rata Street, 2—mixed-use building on the West Coast of the Split City harbour, and 3—residential towers in the city district of Spinut. Source: Author’s archive.
The research is based on the project documentation found in the State Archives in Split. Since the project documentation is not completely preserved, the missing parts of documentation were drawn by the authors following the on-site observation. Each building is analysed by its urban context, architectural design, architectural elements and their technical innovation.
6. Analysis of the Selected Buildings by Architect Ivo Radić
6.1. Residential Towers in the Settlement Along Domovinskog Rata Street, Project 1960–1962, Construction 1962/1963
6.1.1. Urban Context
The residential area along Domovinskog rata Street (formerly Solinska Road, Victims of Fascism Street) in the city district of Bol is one of the first residential areas of post-war Split. The district is in the central part of the Split peninsula on a slope orientated to the west. The analysed residential area is located at the bottom of the slope, on relatively flat ground, in a narrow strip between the important city road, Domovinskog rata Street and the quiet residential Tršćanska Street.
The project documentation for residential buildings had been prepared from 1960 to 1962, according to the Urban Regulation Plan of the area along Solinska Road. The urban plan had been designed in 1959 by architect Berislav Kalogjera, an employee of the same institution as Ivo Radić. Kalogjera proposed to keep several buildings from the beginning of the 20th century and to fill the vacant lots with new buildings, which would close the blocks to the south. Towards the north of the area, he proposed a semi-open type of block, which gradually transitioned into buildings freely distributed in urban green spaces. His aim was to create a gentle transition towards the sparsely built city periphery of Split in the 1960s. The analysed area is nowadays a part of the wider city centre [12,42] (Figure 3).
Figure 3.
Residential settlement along Domovinskog rata Street, urban regulation. The residential towers designed by Radić are marked with numbers 1–4. Source: Author’s rendering of the illustration from the article [9] (p. 97).
6.1.2. Architectural Design
The settlement was built from 1962 to 1963. Architect Ivo Radić designed all the buildings in the settlement, namely, low-rise residential buildings three to five floors tall and high-rise residential towers fourteen floors tall. This research is focused on four towers since they stand out for their height and the more ambitious design of façades and architectural details compared to the other buildings in the area. Besides, due to their position and height, they are noticeable from a distance, hinting at the beginning of a continuously built city structure and defining its perimeter (Figure 4).
Figure 4.
Residential towers along Domovinskog rata Street designed by Radić, view from the northeast. Source: Ref. [21] (p. 25).
The investor of the southern tower (anagraphic designation: 43 Slobode Street) was the army (Yugoslav People’s Army—JNA), and the other three towers (anagraphic designation: 35 and 53 Tršćanska Street and 60 Domovinskog rata Street) were built for the County Fund for Housing Construction—Split [43,44,45,46,47,48].
The volumes of the Bol residential towers are prismatic. The only horizontal outside the façade membrane is the tip of the canopy in front of the entrance, which is the only space slightly recessed into the volume of the building.
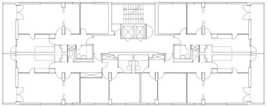
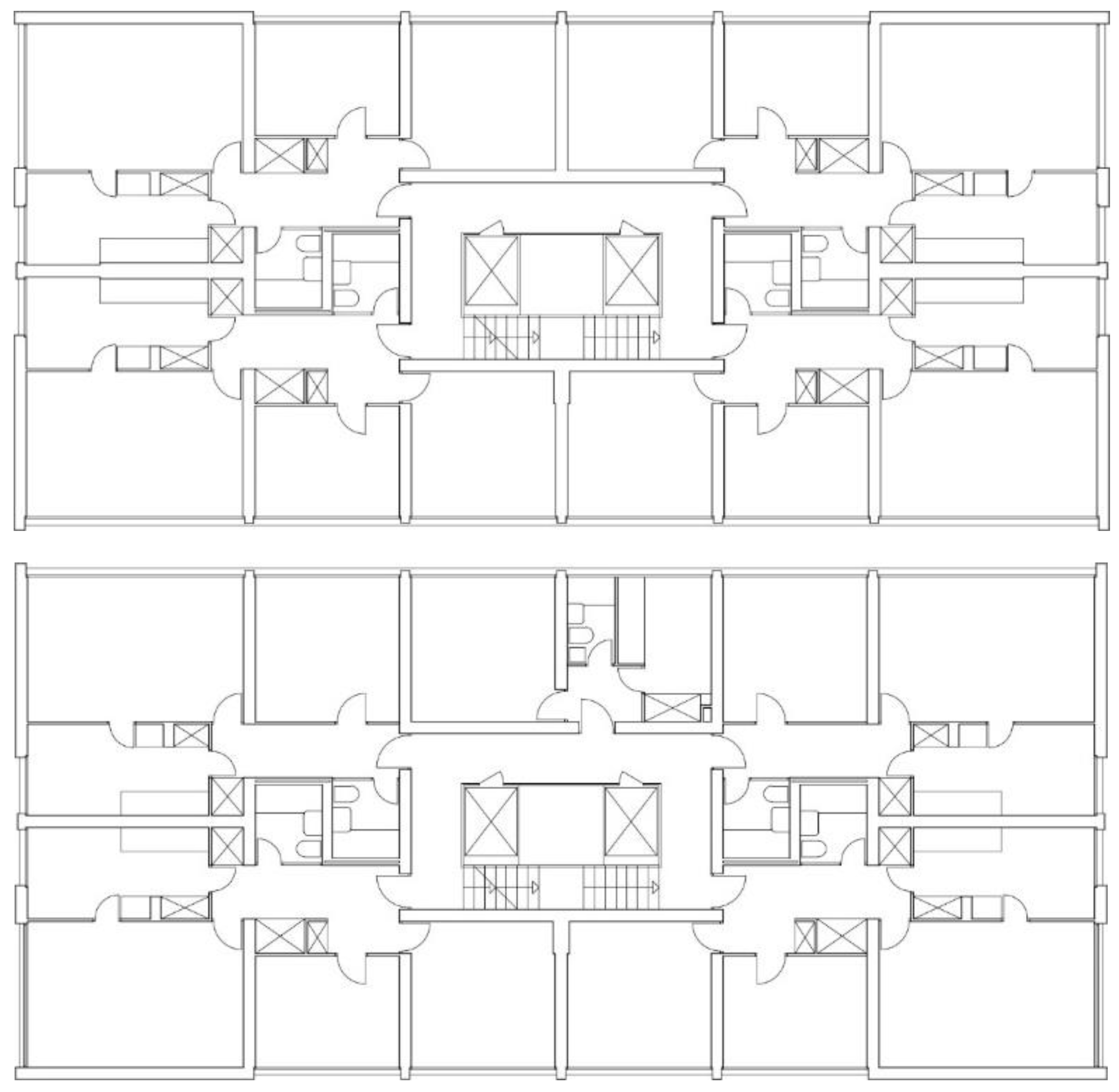
In the low-rise buildings, the layout of the apartments is still the same as that of the pre-war Split, where bedrooms face the street side and the living room faces the courtyard. The layout of the apartments in the towers shifts towards modernity. The central part of the rectangular floor plan is occupied by a communication area with elevators, a one-legged staircase and a corridor that leads to the apartments.
The typical floor plan of the “civilian” tower contains the following five apartments: two two-bedroom apartments, two one-bedroom apartments and one studio apartment. The “army” tower contains four two-bedroom apartments. The layout of the apartments is symmetric to the central communication area. The access to all rooms in the apartments is from the entrance area. The only rooms without daylight and natural ventilation are the bathrooms. Except for the studio apartment, all the apartments face two directions, which enables cross ventilation (Figure 5).
Figure 5.
Residential towers along Domovinskog rata Street designed by Radić: “Army” residential tower, typical floor plan (top) and “Civilian” residential tower, typical floor plan (bottom). Source: Redrawn by the author in 2024 from a layout obtained from the National Archives in Split, HR-DAST-119 [43,44,45,46,47,48].
6.1.3. Architectural Elements and Technical Innovation
Radić proposed two alternatives for the façade of the Bol towers in the preliminary design. The first one was cladding with asbestos cement panels, which was not accepted for this site. The second, the executed alternative, was a simple plaster façade, like in other buildings in Split at the time. Still, the parapet walls of the southern and northern façades of Bol towers were covered with asbestos cement panels (Figure 6).
Figure 6.
Residential towers along Domovinskog rata Street designed by Radić: east façade (left), north façade (middle) and south façade (right). Source: Redrawn by the author in 2024 from a layout obtained from the National Archives in Split, HR-DAST-119 [43,44,45,46,47,48].
Radić meticulously designed the railings on the French windows. They are composed of vertical, black-painted iron rods so that the view is unobstructed, which the author himself pointed out in an interview [36].
As sun protection on the Bol towers, classic roller shutters were installed. However, in his perspective drawings, Radić presented them pushed outwards in some places, hinting at his awareness of the importance of sun protection and ventilation in the Mediterranean area (Figure 7 and Figure 8).
Figure 7.
Residential towers along Domovinskog rata Street designed by Radić, perspective view from the west (top) and perspective view of the alternative façade solution from the west (bottom). Source: National Archives in Split, HR-DAST-119 [43].
Figure 8.
Residential towers along Domovinskog rata Street designed by Radić, windows on the north façade (top) and on the south façade (bottom), condition in 2025. Source: Author’s archives.
6.2. Residential-Commercial Building on the West Coast of the Split City Harbour, Project 1965/1966, Construction 1967/1968
6.2.1. Urban Context
Although collective housing areas were the focal point of the urban development of Split in the 1960s, the development of the West Coast of the spacious bay of the Split City harbour was also of great importance. The area of the West Coast belongs to the city district of Meje—a predominantly residential area on the southern slopes of Marjan hill.
The area was a sparsely built industrial suburb with a cement factory from the 19th century. It was gradually refurbished and established as an attractive area close to the city centre between the two world wars.
Several buildings were built on the West Coast at that time. Closer to the city centre, the residential building Čorak by architect Josip Kodl was constructed in 1924. The adjacent Hotel Ambasador was built in 1937 following the project of architects Josip Kodl, Vojin Simeonović, Helen Baldasar and Emil Ciciliani. At the southernmost part of the bay, the administrative building of Primorska Banovina (the Command of the Yugoslav Navy—JRM after the Second World War) was built from 1938 to 1940, according to the project of architects Vladimir Turina, Nikola Despot and Vid Vrbanić.
After the Second World War, the Directive Regulatory Basis of the City of Split from 1951 gave this city area a high-profile character considering its coastal location and the proximity to the historic centre of Split with Diocletian’s Palace and Marjan Park-Forest. The Directive Regulatory Basis of the City of Split proposed the construction of public and tourist buildings and the design of an attractive promenade along the coast [49], which would shape a recognisable skyline of the city from the sea.
In the early 1960s, the Split city government announced a competition for the urban regulation of this important city strip [50,51].
In accordance with the winning competition entry and the urban regulation of the West Coast from 1960, Hotel Marjan was built in 1962–1966 following the design of architect Lovro Perković. Between the hotel and the administrative building of the JRM Command, the office building of Pomorska privreda (Shipping Economy, today the Croatian Pension Insurance Institute and the Croatian Health Insurance Fund) was built according to the design of architect Neven Šegvić in 1961–1964 [34] (pp. 82–83, 87), [35] (pp. 175–176). On the site between the Čorak building and Hotel Marjan, architect Antun Šatara designed an office building that was not realised [52]. In 1965/1966, architect Ivo Radić proposed a six-storey residential-commercial building project for the same site (anagraphic designation: 2, 3, 4, 5, 6 Obala kneza Branimira Street) [53,54,55]. With the construction of this residential-commercial building in 1967/1968, the shaping of the West Coast of the Split City harbour was mostly completed (Figure 9).
Figure 9.
Regulation of the West Coast City harbour in Split. Banovina administration building (1), Pomorska privreda building (2), Hotel Marjan (3), architect Ivo Radić’s residential-commercial building (4), Čorak residential building (5) and Hotel Ambassador (6). Source: Author’s rendering of the illustration from article [52] (p. 96).
6.2.2. Architectural Design
Radić’s residential-commercial building on the West Coast breaks the long horizontal strip formed by the Pomorska privreda building and the lower part of Hotel Marjan. It closes the urban block started with the Čorak residential building.
The architectural design of Radić’s mixed-use building derives from the configuration of the terrain and its orientation. The building was built on flat ground, between two streets, the Čorak building and Hotel Marjan. Northern Dražanac Street is positioned on the cliffs that once were reaching the sea and is approximately eight meters above the southern Obala kneza Branimira Street. This type of coast is characteristic of most of the Split peninsula [49] (pp. 45–50).
Radić positioned the building on a flat terrain next to the cliff, designing the access to the building from both streets. On the ground floor, with access from the coastal promenade, he designed a shop. The floors above the shop were designed as apartments. In the section of the building accessed from Dražanac Street, a health centre was envisioned. The five floors of the apartments in the southern section feature loggias with a view of the city harbour. In contrast to the lightness of the residential part of the building, the northern volume with the health centre is shaped as a solid volume with strip windows (Figure 10).
Figure 10.
Building on the West Coast in Split, designed by I. Radić (in the foreground) and Hotel Marjan, designed by L. Perković (in the background). Source: Author’s archive, around 1970.
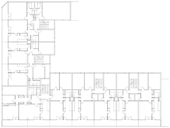
The floor plan of the residential part of the complex is “L”-shaped. One-bedroom and two-bedroom apartments are laid out between transverse load-bearing walls. The rooms of the apartment are accessible from the entrance area. Apartments face two directions, enabling cross ventilation. The bedrooms are oriented towards the inner courtyard. The living rooms have a loggia with a view of the city’s harbour in front of them.
Apart from these typical apartments, at the southern corner of the building, one three-bedroom apartment per floor was designed, and at the northeast end of the building, two studios per floor were designed (Figure 11).
Figure 11.
Building on the West Coast in Split designed by Radić, floor plan. Source: Redrawn by the author in 2024 from a layout obtained from the National Archives in Split, HR-DAST-119 [54].
6.2.3. Architectural Elements and Technical Innovation
The design of the loggia railings contributes to the lightness of the residential part of the complex. The railings are composed of reinforced glass in a flat iron frame. On the inside of the fence, along the entire railing, a flower stand was designed, encouraging tenants to refine the outdoor space of the apartment.
For the sun protection of loggias, Radić designed distinctive jalousies that cover the entire façade. The jalousies are made of horizontally laid wooden slats in an iron frame. By rotating around the horizontal axis, they can be placed in three positions: horizontal, vertical and at an angle of 45°. This allows the tenants to regulate the scale of intimacy and to control the inflow of light into the loggia area. According to Radić, jalousies were not primarily aesthetic elements of the façade, but its functional and technological part [36].
Series of loggia modules with their railings and jalousies is the main element of facade design. However, as in the towers in Bol, the closed parts of the façade are covered with asbestos cement panels (Figure 12, Figure 13 and Figure 14).

Figure 12.
Building on the West Coast in Split designed by Radić, southeast façade (top) and southwest façade (bottom). Source: Redrawn by the author in 2024 from a layout obtained from the National Archives in Split, HR-DAST-119 [54].
Figure 13.
Building on the West Coast in Split designed by Radić, detail drawings of jalousies on the façade. Source: National Archives in Split, HR-DAST-119 [54].

Figure 14.
Building on the West Coast in Split designed by Radić, detail of jalousies, condition in 2025. Source: Author’s archives.
6.3. Residential Towers in Sedam Kaštela Street in Spinut, Project 1965, Construction 1968 and 1969
6.3.1. Urban Context
The city district of Spinut is on the northern side of the Split peninsula, close to the city’s historic centre. In the late 19th and early 20th centuries, central and western parts of Spinut, along Zrinsko-Frankopanska Street, Teslina Street and Matoševa Street (formerly M. Gorkog Street), started to develop. Residential and public buildings were built, such as the Archaeological Museum, the Archbishop’s Seminary and the Technical School. This construction thoroughly transformed the area according to the principles of modernist urbanism. However, at the end of the 1950s, the area of Spinut and Poljud was still largely undeveloped. In that period, the Split County Government planned its urbanisation.
At the end of 1962, for the areas of Spinut and Poljud, an all-Yugoslav urban planning competition was announced. The competition entry of the Split District Urban Planning Institute won the first prize. In 1964, architects Žarko Turketo and Mihovil Antičević, employees of the Institute and members of the winning team, designed the urban plan for the Spinut collective housing complex [6] (p. 136–147), [56,57,58].
The investor of most of the planned buildings was the Army, which initiated the architectural competition for construction in Spinut. The competition was announced in 1964. In the western part of Spinut, residential towers were built according to the winning proposals of architect Ivo Radić and architect Ivan Vitić. In its central part, following the winning proposal of architects Antun Šatara and Lovro Perković, several residential buildings up to five storeys tall were built [6] (p. 156–161), [59,60] (Figure 15).
Figure 15.
Residential settlement Spinut, urban regulation with the marked towers designed by Ivo Radić (1, 2, 3). Source: Ref. [56] (p. 82), markings 1–3 drawn by authors.
6.3.2. Architectural Design
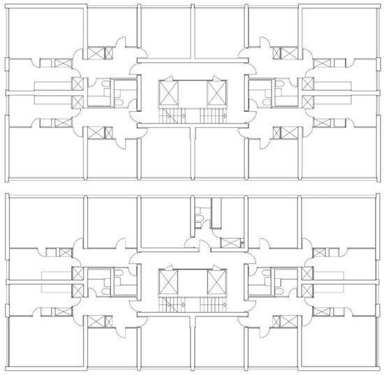
The project documentation for Ivo Radić’s three sixteen-storey residential towers along Sedam Kaštela Street was prepared in 1965. The towers were built in 1968 (anagraphic designation: 6, 8 Sedam Kaštela Street—no. 1 and 2 on the map) and in 1969 (anagraphic designation: 2 Sedam Kaštela Street—no. 3 on the map) [61,62,63,64].
The volumes of the towers are simple prisms, with only a horizontal overhang of the canopy in front of the entrance to the building, just like in the case of the residential towers in Bol (Figure 16).
Figure 16.
Residential towers in Spinut in Split designed by Radić. Source: Author’s archive.
While in the towers in Bol, the communication area is in the central part of the rectangular floor plan; in the towers in Spinut, the central part is occupied by the corridor, and the elevators and staircase have been moved towards the façade in accordance with the new fire safety regulations [36]. Radić proposed four apartments per floor: two one-bedroom, one two-bedroom and one one-and-a-half-bedroom apartment. Like in the towers on Domovinskog rata Street, all rooms are accessible from the entrance area. All the apartments are complemented with loggias accessible from the living room and from the dining area attached to the kitchen. Next to the living room, there is also a workspace that was required for military residential buildings in Split. The workspace can be separated from the living room by an accordion door (Figure 17).
Figure 17.
Residential tower in Spinut in Split designed by Radić, floor plan. Source: Redrawn by the author in 2024 from a layout obtained from the National Archives in Split, HR-DAST-119 [61,62,63].
6.3.3. Architectural Elements and Technical Innovation
Only a few years after the unaccepted proposal for the Bol towers, the solution with complete cladding of the façade with asbestos cement panels was accepted and executed on the towers in Spinut. The longer façades of these towers, facing north and south, were cladded with naturally grey asbestos cement panels, that were produced near Split, in a factory in Vranjic.
Behind the asbestos cement panels, in the zone of their substructure, there was a ventilated cavity, as well as a layer of thermal insulation attached to the reinforced concrete wall. This is the first example of a ventilated façade in Split, as the author himself points out in the interview [36]. In the 1960s and 1970s, various types of inexpensive ventilated façades were produced locally in Croatia. They were commonly used in collective housing construction, which was not the case in the later periods (Figure 18).
Figure 18.
Residential tower in Spinut in Split designed by Radić, south façade (left) and west façade (right). Source: Redrawn by the author in 2024 from a layout obtained from the National Archives in Split, HR-DAST-119 [61,62,63].
Panel layout creates an orthogonal grid on the façade, which is followed by French windows of different widths. On this project, Radić developed another ingenious solution for sun protection. Sliding blinds are inserted into horizontal iron guides separated from the façade by brackets. This design prevented rainwater from getting trapped in the rails and causing corrosion and rust stains on the façade [36]. The blinds consist of horizontally laid slats of spruce wood in an iron frame (Figure 19 and Figure 20).
Figure 19.
Residential tower in Spinut in Split designed by Radić, detail drawing of sliding blinds—executed solution (left) and detail drawing of sliding blinds—alternative solution (right). Source: Ref. [64] (left and right).
Figure 20.
Residential tower in Spinut in Split designed by Radić, sliding blinds, condition in 2025. Source: Author’s archives.
The layout of the narrow façades is determined by loggias facing east and west, with views of Marjan hill or the city. The railings on the loggias and on the French windows on the longer façades are made of wired glass in a black iron frame, the same design as the railings on the West Coast building.
7. Results
This research analysed three formative buildings designed by architect Ivo Radić. All three buildings are in a part of Split nowadays referred to as Split 2. The term refers to a part of Split developed in line with the Directive Regulatory Basis of the City of Split from 1951. The area covered by this urban plan developed around the historic core of Split and by the end of the 1980s became part of the wider city centre. All three buildings have a prominent position. The residential towers in Bol and the residential towers in Spinut were built along important urban roads, while the residential-commercial building on the West Coast is placed on an urban promenade along the coast. The residential towers in Bol and in Spinut stand out due to their height and are visible from the wider city areas. The building on the West Coast is part of the skyline viewed from the sea, from the ships arriving into the city harbour. Over time, all three buildings became part of the recognisable image of the city (Table 1).
Table 1.
Research results.
The analysed buildings bear the sign of the time of their creation. But they also represent a refinement in the architecture of collective housing of the 1960s. The volumes of the buildings are simple prisms, subordinated to function, without any redundant elements. However, the buildings are strongly linked to the climate in which they were created.
In the first building designed, Radić used the contemporary, commonly applied roller shutters as sun protection. In designing the building on the West Coast, he is taking a leap from the usual practice by inventing specific jalousies that are a creative interpretation of traditional sun protection in the Mediterranean. On the towers in Spinut, he designed sliding shutters that emphasise the flatness of the tower’s volume, reminiscent of the flat traditional solid stone buildings with closed jalousies. Sliding shutters or jalousies as sun protection became an important part of the architectural expression of Ivo Radić, which he would later develop and improve further throughout his career. Apart from Radić, such a design approach, which is characterised by the creative transposition of regional formal, spatial or ambient qualities, is represented in Croatia by I. Vitić, I. Emili and B. Kalogjera at that time [65]. In the international context, the regional approach to modernism positions Ivo Radić along with other representatives of critical regionalism such as Spanish architect J.A. Coderch and or Greek architect D. Antonakakis [40] (pp. 316–318).
Only a few Croatian architects realised innovative details on residential buildings, such as Drago Ibler on the residential tower at Iblerov Square in Zagreb (designed in 1955, realised in 1958) and Ivan Vitić on the block on Laginjina Street in Zagreb (designed in 1958, realised in 1962). However, these buildings are not examples of mass collective housing construction. Among the authors who designed mass collective housing architecture, only a few reached the level of recognition and inventiveness as Ivo Radić. Important examples of collective housing architecture are most numerous not only in the capitals of the former Yugoslav republics, such as Belgrade, Zagreb and Ljubljana, but also in Split, which still attracts attention with its collective housing buildings and urban areas [66] (p. 92). Outstanding examples of Split collective housing construction are residential areas of Split 2, with buildings by architects such as Vuko Bombardelli, Stanko Fabris, Frano Gotovac, Lovro Perković, Ivo Radić and Ivan Vitić, and residential area Split 3, with buildings by architects such as Dinko Kovačić and Ivo Radić [67].
Split residential buildings designed by Ivo Radić are recognisable and inventive. As a significant contribution to the modernist heritage of Split and Croatia, they are entitled to scientific evaluation and presentation.
8. Discussion
In the socialist system of former Yugoslavia, residential buildings were mostly owned by society, and the state took care of their maintenance. After 1991, when Croatia became a capitalist state, the buildings gradually became private property. The previous tenants bought the apartments in which they lived and became their owners. Ever since then, the maintenance of these apartments and of the common areas has been their responsibility. Buildings built at the beginning of the second half of the 20th century were often constructed with the pioneering use of new materials and technologies. Due to the lack of previous experience related to the durability of installed materials and joints, buildings often aged rapidly. In the early 21st century, they are often in need of refurbishment or renovation. Successful examples of refurbishment of modernist buildings in Croatia are the previously mentioned residential tower by Drago Ibler at Ibler Square (designed in 1955, realised in 1958) and the block by Ivan Vitić in Laginjina Street (designed in 1958, realised in 1962), both in Zagreb. However, these buildings are individually protected as cultural heritage. Although in these cases the refurbishment was complex and long awaited, the maintenance and renovation of buildings in housing settlements built during socialism is an even more complex issue. In these settlements, there is a large number of identical buildings, which are renovated separately, in different ways, often without a project. This degrades the author’s idea in the individual buildings, as well as the integrity of the image of the settlement. To preserve not only the often-exceptional urban quality of residential areas but also the architectural value of the single buildings, a systematic approach to refurbishment, and especially to its financing, is needed.
The current condition of the buildings designed by Ivo Radić points to the lack of a systematic and appropriate approach to their renovation as well. Because of an unprofessional approach, on the towers in Bol, the original grey colour of the asbestos cement panels were replaced with a plaster façade of inappropriate orange-ochre colour. The original design of the building on the West Coast has also been significantly changed by the individual and arbitrary renovation of parts of the façade. The jalousies have been removed or improperly replaced. The towers in Spinut were also poorly renovated around 2010. The transparent wired glass of the railings has been largely replaced with milky white polycarbonate panels. The original railings were installed in front of reinforced concrete slabs, hiding them, while the new railings are now installed above the slabs, leaving them visible. The wooden slats of the blinds have also been largely replaced with aluminium ones, while the original blind guides have been retained. In this way, the original design of the façade has been degraded (Figure 21).

Figure 21.
Residential tower in Bol (top), residential-commercial building on the West Coast of the Split City harbour (middle) and residential towers in Spinut (bottom). Source: Author’s archives: Photo taken by the author, condition in 2021 (top) and condition in 2025 (middle and bottom).
Settling architectural heritage under protection does not guarantee it an opportunity to refurbish, primarily due to the lack of a systematic financing model in Croatia. However, settling architectural heritage under protection is the first step in preserving its value for future generations. The valorisation of the architectural and urban modernist heritage from the 1960s and 1970s in Croatia mainly depends on the affirmation of an individual building or urban area in the scientific and professional circles, but also in the wider public. Therefore, every published professional and scientific research is a contribution to the valorisation process of cultural goods.
The protection of architectural heritage in Croatia is carried out by 20 regional units. For the area of Split and Split-Dalmatia County, it is carried out by the Conservation Department in Split. According to the Register of Cultural Goods of the Republic of Croatia, in Split, there are seven cultural and historical ensembles, one cultural landscape and 132 buildings protected. Among them, there are only eleven modernist buildings, built starting from the second half of the 1920s [68]. Guidelines for protection are prescribed individually for each building and mostly depend on the level of investigation performed on the individual cultural asset and on the assessment of the conservator.
Increased activity on documenting and protecting the modernist architectural and urban heritage in Croatia resulted in the establishment of a Croatian branch—the Croatian Chapter Docomomo. At the end of 2024, the branch was accepted into Docomomo International, the most important international organisation that deals with documenting and protecting the modernist heritage. Residential towers in Spinut, designed by Radić, analysed in this paper, can be found on the Docomomo International list. The Docomomo International list also includes residential buildings on Papandopulova Street in Split 3, designed by Ivo Radić [69].
The three residential buildings designed by architect Ivo Radić, analysed in this article, are a significant contribution to the architectural and urban heritage of the affirmative period of mass collective housing construction in Split and Croatia. Collective housing construction in Split was leading by its quantity as well as its quality in then-Yugoslavia. Although significant, the buildings are not protected either individually or as part of a modernist cultural and historical ensemble. By examining the buildings through their urban context, their overall architectural design and the analysis of their specific architectural elements, this article represents a contribution to the recognition of the work of architect Ivo Radić and of the modernist urban and architectural heritage of Split and Croatia.
9. Conclusions
Croatian architect Ivo Radić lived in Split for almost his entire life. He spent his career as a designer at the Urban Planning Institute of Dalmatia—Split. His major contribution is in the field of residential architecture and tourism facilities. The most important part of his opus was realised in the 1960s and 1970s in the city of Split.
The article analyses three formative residential buildings designed by Ivo Radić that were built in the 1960s in Split. The analysis of the buildings showed a recognisable thread in the formation of his architectural discourse. The architect often applied and developed his successful floor plan solutions and architectural details of the exterior design of his buildings in his later projects.
The apartments that Radić proposed in the towers in Bol (project from 1960/1961) could be recognised in a slightly modified layout in the apartments in Spinut (project from 1965). In the residential building in Meje (project from 1965), he applied again an almost identical layout. In a residential-commercial building on the West Coast (project 1965/1966), he proposed a different apartment layout, arranged between transverse load-bearing walls, facing two directions and with loggias attached to the living rooms. He inaugurated this type of apartment in the 1962 competition for the residential corner block in Kralja Zvonimira Street (project from 1963/1964). He used it later in an almost unchanged form in many realisations, for example, in the residential corner block in Zoranićeva Street in Split (project from 1971), in the residential ensemble in Papandopulova Street in Split 3 (project from 1973/1974), in the apartment block in Omiš (project from 1978) and in the residential building in Cankareva poljana Square in Split (project from 1986).
The volumes of the analysed buildings are simple, restrained and extremely flat. The refinement of the façade design is visible, starting with his first design of the towers in Bol, to the building on the West Coast and the towers in Spinut. The progress is noticeable in the design of loggia railings and French windows, and especially in the protection from the sun.
The design of these three buildings has many features of the International style. It was adapted to the available technology; it accepted modern materials and was characterised by standardisation and modularity, which allowed for faster construction. The design approach of Ivo Radić is therefore universal in many elements. Nevertheless, the buildings he designed establish a relationship to the context of local climate and traditional building. The innovative design of the blinds became a recognisable part of his architectural language. In his career, Radić developed two types of blinds—the sliding ones and the vertically opening ones. Through their application on many buildings and while experimenting with different materials, he continuously improved them. He applied them on the residential complex in Split 3 in Papandopulova Street, the apartment block in Omiš, the residential buildings in Cankareva poljana Square and the residential corner block in Zoranićeva Street in Split, culminating with the entire façade designed in a sheer structure of partly movable jalousies.
In his architecture, in addition to the universal language of the International style as a marker of the time in which he created, Ivo Radić successfully employed the regional Mediterranean vocabulary, using new materials and technologies. The design of his collective housing buildings is recognisable and innovative, and it should take its place as a modernistic architectural heritage of Split and Croatia.
Author Contributions
Conceptualisation, V.P.J., N.M.K. and I.M.; methodology, V.P.J., N.M.K. and I.M.; validation, V.P.J., N.M.K. and I.M.; formal analysis, V.P.J., N.M.K. and I.M.; investigation, V.P.J., N.M.K. and I.M.; resources, V.P.J., N.M.K. and I.M.; data curation, V.P.J., N.M.K. and I.M.; writing—original draft preparation, V.P.J., N.M.K. and I.M.; writing—review and editing, V.P.J., N.M.K. and I.M.; visualisation, V.P.J., N.M.K. and I.M.; supervision, V.P.J., N.M.K. and I.M.; project administration, V.P.J., N.M.K. and I.M.; funding acquisition, V.P.J., N.M.K. and I.M. All authors have read and agreed to the published version of the manuscript.
Funding
This research was funded by the University of Split, Faculty of Civil Engineering, Architecture and Geodesy, project KK.01.1.1.02.0027, which is co-financed by Croatian Government and the European Union through the European Regional Development Fund—the Competitiveness and Cohesion Operational Programme, the University of Zagreb, Faculty of Architecture, institutional project “Conservation of the Twentieth-Century Architectural Heritage in Principles and Practice” and the University of Zagreb, Faculty of Architecture, institutional project “Urban and architectural characteristics of a modern and contemporary city”.
Data Availability Statement
The original contributions presented in this study are included in the article material. Further inquiries can be directed to the corresponding author(s).
Conflicts of Interest
The authors declare no conflicts of interest. The funders had no role in the design of this study; in the collection, analyses, or interpretation of data; in the writing of the manuscript or in the decision to publish the results.
References
- Vladimir Nazor Award. Winners “Vladimir Nazor” Award 1959–2005. Available online: https://min-kulture.gov.hr/o-ministarstvu/djelatnosti/nagrade-u-kulturi/nagrada-vladimir-nazor/16565 (accessed on 30 November 2024).
- Viktor Kovačić Award. Available online: https://hr.wikipedia.org/wiki/Nagrada_Viktor_Kova%C4%8Di%C4%87 (accessed on 30 November 2024).
- Plejić, R. Ivo Radić, “Viktor Kovačić” Lifetime Achievement Award, 1988; Čovjek i Prostor: Zagreb, Croatia, 1990; pp. 13–15. Available online: https://arhitekti.eindigo.net/?pr=iiif.v.a&id=10843&tify={%22pages%22:[13],%22panX%22:0.494,%22panY%22:0.396,%22view%22:%22info%22,%22zoom%22:0.387} (accessed on 19 October 2024).
- Winners of the Lifetime Achievement Award of the City of Split Finally Get a Place on the Website. Available online: https://tvorenost.video.blog/2018/01/17/dobitnici-nagrade-grada-splita-za-zivotno-djelo-konacno-dobili-mjesto-na-mreznoj-stranici/ (accessed on 19 October 2024).
- Ivo Radić; URBS 7: Split, Croatia, 1967; p. 85.
- Tušek, D. Architectural Competitions in Split 1945–1995; University of Split, Faculty of Civil Engineering, Split Society of Architects: Split, Croatia, 1996. [Google Scholar]
- MoMA: Toward a Concrete Utopia: Architecture in Yugoslavia, 1948–1980; 15 July 2018–13 January 2019; Museum of Modern Art in New York (MoMA): New York, NY, USA, 2018; Available online: https://www.moma.org/calendar/exhibitions/3931 (accessed on 27 October 2024).
- Mudnić, P. Residential Settlement “Meje”; URBS 6: Split, Croatia, 1966; pp. 77–80. [Google Scholar]
- Kalogjera, B. Residential Settlement in Solinska Road; URBS 6: Split, Croatia, 1965–1966; pp. 95–97. [Google Scholar]
- Perković, L. Review of the Architectural Achievements of the Urban Planning Bureau; URBS 7: Split, Croatia, 1967; pp. 29–46. [Google Scholar]
- Works of the Urban Planning Bureau 1947–1967: Architectural Projects; URBS 7: Split, Croatia, 1967; pp. 74–80.
- Mrkonjić, I. Residential Settlement in Žrtava Fašizma Street in Split; Čovjek i Prostor, XIV, 5(170): Zagreb, Croatia, 1967; pp. 1, 3. Available online: https://arhitekti.eindigo.net/?pr=iiif.v.a&id=10885&tify={%22view%22:%22info%22} (accessed on 19 October 2024).
- Mrkonjić, I. Residential Objects in Meje; Čovjek i Prostor, XIV, 7(172): Zagreb, Croatia, 1967; pp. 1, 5. Available online: https://arhitekti.eindigo.net/?pr=iiif.v.a&id=10887&tify={%22panX%22:0.449,%22panY%22:0.719,%22view%22:%22info%22,%22zoom%22:0.378} (accessed on 19 November 2024).
- Chronological Review of the Construction of Split 1944–1969; URBS 8: Split, Croatia, 1969; pp. 47–101.
- Muljačić, S. Construction of Split 1944–1969; URBS 8: Split, Croatia, 1969; pp. 7–42. [Google Scholar]
- Residential Tower in the “Spinut” Area in Split; Čovjek i Prostor, XVII, 7(208): Zagreb, Croatia, 1970; p. 7. Available online: https://arhitekti.eindigo.net/?pr=iiif.v.a&id=10573&tify={%22pages%22:[7],%22panX%22:0.281,%22panY%22:0.724,%22view%22:%22info%22,%22zoom%22:0.38} (accessed on 15 November 2024).
- Group of Objects for Collective Housing in the Area of Meje–Split; Arhitektura-Urbanizam, X, 55: Belgrade, Serbia, 1969; p. 50.
- Residential Building on the West Coast; URBS 9: Split, Croatia, 1973; p. 78.
- Residential Objects; URBS 9: Split, Croatia, 1973; pp. 81–83.
- Projects on Hvar; URBS 9: Split, Croatia, 1973; pp. 98–104.
- Ivan Lučić Lavčević, Split, Yugoslavia: 1948–1978: I. L. Lavčević–Split, Croatia, 1978.
- Gotovac, F. Omiš–Maribor–Zagreb; Slobodna Dalmacija, 2.8.1987: Split, Croatia, 1987; p. 10. [Google Scholar]
- J. E. Prefabricated Department Store; Slobodna Dalmacija, 5.5.1964: Split, Croatia, 1964; p. 2. [Google Scholar]
- Unešić Too Gets a Medical Post. Slobodna Dalmacija, 21.9.1964: Split, Croatia, 1964; p. 3.
- Gotovac, F. Chicago–Split; Slobodna Dalmacija, 12.1.1985: Split, Croatia, 1985; p. 9. [Google Scholar]
- Radić, I. Hrvatska Enciklopedija, Mrežno Izdanje; Leksikografski Zavod “Miroslav Krleža”: Zagreb, Croatia, 2021; Available online: https://www.enciklopedija.hr/Natuknica.aspx?ID=51439 (accessed on 30 September 2024).
- Matošić, D.; Radić, I. Enciklopedija Hrvatske Umjetnosti, 2nd ed.; Domljan, Ž., Ed.; Leksikografski zavod Miroslav Krleža: Zagreb, Croatia, 1996; p. 126. [Google Scholar]
- Radić, I. Hrvatska Enciklopedija, Svezak 9. (Pri-Sk); Leksikografski zavod Miroslav Krleža: Zagreb, Croatia, 2007; p. 146. [Google Scholar]
- Gamulin, M. Residential Architecture in Split from 1945 Until Today; Arhitektura, 1–3 (208–210): Savez društava Arhitekata Hrvatske: Zagreb, Croatia, 1989–1991; pp. 28–32. Available online: https://arhitekti.eindigo.net/?pr=iiif.v.a&id=11200&tify={%22pages%22:[30],%22view%22:%22info%22} (accessed on 20 September 2024).
- Odak, T. Overview of Residential Architecture in Croatia 1945–91; Arhitektura, 1–3 (208–210): Savez društava Arhitekata Hrvatske: Zagreb, Croatia, 1989–1991; pp. 37–72. Available online: https://arhitekti.eindigo.net/?pr=iiif.v.a&id=11200&tify={%22pages%22:[53],%22panX%22:0.49,%22panY%22:0.722,%22view%22:%22info%22,%22zoom%22:0.441} (accessed on 25 September 2024).
- Muljačić, S. Construction of Split 1944–1990. In Split in Tito’s Era/Memento on the 110th Anniversary of the Birth, 22nd Anniversary of the Death of Josip Broz Tito and the 58th Anniversary of the Liberation of Split; Čurin, M., Ed.; Society “Josip Broz Tito”-Split/The Association of Anti-Fascist Fighters and An-ti-Fascists-Split: Split, Croatia, 2002; pp. 200–244. [Google Scholar]
- Zanchi, J. Review of the work of architect Ivo Radić. In Proceedings of the Union of Associations of Engineers Split/on the Occasion of the 100th Anniversary of Its Activity; Piplović, S., Ed.; Zajednica udruga inženjera Split: Split, Croatia, 2010; pp. 209–214. [Google Scholar]
- Uchytil, A.; Barišić Marenić, Z.; Kahrović, E. Lexicon of Architects—Atlas of 20th Century Croatian Architecture; University of Zagreb—Faculty of Architecture: Zagreb, Croatia, 2011. [Google Scholar]
- Split 20th Century Architecture. A Guidebook; Tušek, D., Ed.; University of Split, Faculty of Civil Engineering, Architecture and Geodesy: Split, Croatia, 2011. [Google Scholar]
- Tušek, D. A Lexicon of Split Modern Architecture; University of Split, Faculty of Civil Engineering, Architecture and Geodesy: Split, Croatia, 2018. [Google Scholar]
- Gamulin, M. Postmodernism Passed Me by, I Did Not Even Look Back; Čovjek i Prostor, XLIII, 1–2 (501–502): Zagreb, Croatia, 1996; pp. 12–14. Available online: https://arhitekti.eindigo.net/?pr=iiif.v.a&id=10876&tify={%22pages%22:[12],%22view%22:%22info%22} (accessed on 19 November 2024).
- Čičin-Šain, Č.; Pervan, B.; Vekarić, Z. The Directive Regulatory Basis of the City of Split; Arhitektura 5–8: Savjet društava arhitekata Jugoslavije: Zagreb, Croatia, 1951. [Google Scholar]
- Šegvić, N. Situation in Architecture, a Point of View, 1945–1985; Arhitektura, 39/196–199: Zagreb, Croatia, 1986; pp. 118–128. [Google Scholar]
- The Information Bureau of the Communist and Workers’ Parties. Hrvatska Enciklopedija, Mrežno Izdanje. Leksikografski Zavod Miroslav Krleža, 2013–2025. Available online: https://www.enciklopedija.hr/clanak/informbiro (accessed on 10 January 2025).
- Frampton, K. Modern Architecture: A Critical History; Kralj-Štih, A., Ed.; Globus nakladni zavod, Biblioteka Posebna izdanja: Zagreb, Croatia, 1992. [Google Scholar]
- Curtis, W.J.R. Modern Architecture Since 1900; Phaidon Press Limited: London, UK; Phaidon Press Inc.: New York, NY, USA, 2007. [Google Scholar]
- National Archives in Split. HR-DAST-119 Urban Planning Institute of Dalmatia—Split, Sign. 2.7, SP-006/15 Urban Regulation Plan of the Area Along Solinska Road-Explanation; National Archives in Split: Split, Croatia, 1960. [Google Scholar]
- National Archives in Split. HR-DAST-119 Urban Planning Institute of Dalmatia—Split, Sign. 2.7, 326/id Residential Towers in Žrtava Fašizma Street in Split; National Archives in Split: Split, Croatia, 1960. [Google Scholar]
- National Archives in Split. HR-DAST-119 Urban Planning Institute of Dalmatia—Split, Sign. 2.7, 326/po Residential Tower in Žrtava Fašizma Street in Split; National Archives in Split: Split, Croatia, 1961. [Google Scholar]
- National Archives in Split. HR-DAST-119 Urban Planning Institute of Dalmatia—Split, Sign. 2.7, 356/po-A, B, C Residential Tower in Žrtava fašizma Street in Split; National Archives in Split: Split, Croatia, 1961. [Google Scholar]
- National Archives in Split. HR-DAST-119 Urban Planning Institute of Dalmatia—Split, Sign. 2.7, 356-A/po/II Residential Tower in Žrtava Fašizma Street in Split; National Archives in Split: Split, Croatia, 1961. [Google Scholar]
- National Archives in Split. HR-DAST-119 Urban Planning Institute of Dalmatia—Split, Sign. 2.7, 356/po-B Residential Tower in Žrtava Fašizma Street in Split; National Archives in Split: Split, Croatia, 1961. [Google Scholar]
- National Archives in Split. HR-DAST-119 Urban Planning Institute of Dalmatia—Split, Sign. 2.7, 356-C/po/II Residential Tower in Žrtava Fašizma Street in Split; National Archives in Split: Split, Croatia, 1961. [Google Scholar]
- Muljačić, S. History of the Construction of the Coastal Belt in the Split Harbour, from Matejuška to Sustipan (1850–1960); URBS 4: Split, Croatia, 1961; pp. 43–66. [Google Scholar]
- Excerpt from the competition for the creation of the conceptual urban design of part of the city harbour and for the architectural-urban design for the coast of the Yugoslav People’s Defense in Split; URBS 4: Split, Croatia, 1961; pp. 67–69.
- Report of the Judging Panel for the Creation of the Conceptual Urban Design of Part of the City Harbour and for the Archi-Tectural-Urban Design of the Coast of the Yugoslav People’s Defense in Split; URBS 4: Split, Croatia, 1961; pp. 70–90.
- Pervan, B. Definitive Design of the West Coast Based on the Tender Decision of the Urban Planning Bureau; URBS 4: Split, Croatia, 1961; pp. 91–112. [Google Scholar]
- National Archives in Split. HR-DAST-119 Urban Planning Institute of Dalmatia—Split, Sign. 2.7, 557/id Residential-Commercial Building on the West Coast in Split; National Archives in Split: Split, Croatia, 1965. [Google Scholar]
- National Archives in Split. HR-DAST-119 Urban Planning Institute of Dalmatia—Split, Sign. 2.7, 557/gl Residential-Commercial Building on the West Coast in Split; National Archives in Split: Split, Croatia, 1965. [Google Scholar]
- National Archives in Split. HR-DAST-119 Urban Planning Institute of Dalmatia—Split, Sign. 2.7, 557/po Residential-Commercial Building on the West Coast in Split; National Archives in Split: Split, Croatia, 1966. [Google Scholar]
- Turketo, Ž. Residential Settlement “Spinut”; URBS 6: Split, Croatia, 1965–1966; pp. 81–84. [Google Scholar]
- Trebotić, M. Urban Design of the Spinut-Poljud Area in Split; Arhitektura-Urbanizam, VII, 39: Belgrade, Serbia, 1966; p. 48. [Google Scholar]
- B.O. Spinut-Poljud Area Intended for Recreation, Sports, Housing and the Construction of Colleges and Schools: Interview with Engineer Žarko Turketo; Slobodna Dalmacija, 27.6.1963: Split, Croatia, 1963; p. 6. [Google Scholar]
- Regulation of Meje and Spinut; Slobodna Dalmacija, 23.3.1959: Split, Croatia, 1959; p. 6.
- New Residential Settlement Spinut in Split; Arhitektura-Urbanizam, X, 55: Belgrade, Serbia, 1969; p. 49.
- National Archives in Split. HR-DAST-119 Urban Planning Institute of Dalmatia—Split, Sign. 2.7, 591/po Residential Tower No. 9–Spinut, Split; National Archives in Split: Split, Croatia, 1965. [Google Scholar]
- National Archives in Split. HR-DAST-119 Urban Planning Institute of Dalmatia—Split, Sign. 2.7, 592/po Residential Tower No. 10–Spinut, Split; National Archives in Split: Split, Croatia, 1965. [Google Scholar]
- National Archives in Split. HR-DAST-119 Urban Planning Institute of Dalmatia—Split, Sign. 2.7, 593/po Residential Tower No. 11–Spinut, Split; National Archives in Split: Split, Croatia, 1965. [Google Scholar]
- National Archives in Split. HR-DAST-119 Urban Planning Institute of Dalmatia—Split, Sign. 2.7, 591-2-3/dtb Residential Tower No. 9, 10, 11–Spinut, Split; National Archives in Split: Split, Croatia, 1966. [Google Scholar]
- Domljan, Ž. Architecture in Croatia after the Second World War. Život umjetnosti, 10, Zagreb, Croatia. 1969, pp. 3–45. Available online: https://hrcak.srce.hr/302086 (accessed on 24 January 2025).
- Bjažić Klarin, T. Housing in Socialist Yugoslavia. In Toward a Concrete Utopia: Architecture in Yugoslavia, 1948–1980; Stierli, M., Kulić, V., Eds.; The Museum of Modern Art: New York, NY, USA, 2018; pp. 90–95. [Google Scholar]
- Marinović, H.; Mlinar, I.; Tomšić, A. Split 2 Housing Developments Planned from 1957 to 1968; Prostor, XXIX, 1(61): Zagreb, Croatia, 2021; pp. 72–87. Available online: https://hrcak.srce.hr/file/377462 (accessed on 15 November 2024).
- Searching the Register of Cultural Properties of the Republic of Croatia. Available online: https://registar.kulturnadobra.hr/#/ (accessed on 10 January 2025).
- DOCOMOMO International Mass Housing Archive: Croatia. Available online: https://datashare.ed.ac.uk/handle/10283/4091 (accessed on 10 January 2025).
Disclaimer/Publisher’s Note: The statements, opinions and data contained in all publications are solely those of the individual author(s) and contributor(s) and not of MDPI and/or the editor(s). MDPI and/or the editor(s) disclaim responsibility for any injury to people or property resulting from any ideas, methods, instructions or products referred to in the content. |
© 2025 by the authors. Licensee MDPI, Basel, Switzerland. This article is an open access article distributed under the terms and conditions of the Creative Commons Attribution (CC BY) license (https://creativecommons.org/licenses/by/4.0/).